Ele Paul Portfolio 2025

Page 1


Hello! My name is Ele and I am an Architectural Designer with 3+ years of experience. I received my MArch degree at Arizona State University’s Herberger Institute of Design & Arts in addition to a Bachelor’s in Urban Planning investigating design solutions to solve wicked problems, exploring mediums to design for the human scale and human experience.

SONORIAN STUDIO, AZ

Arizona’s First Living Building WL GORE KP CAFETERIA, AZ

Office Cafeteria re-model

FEDERAL WAY, WA

Evaluation and treatment center.

MARYVALE PARKWAY REMODEL, AZ

Senior public housing re-model.

Research based-studio focused on social housing in Mexico City. TIMBER IN THE CITY CLT

CIUDAD NEZA

DOWN SOUTH

Adaptive re-use centering building performance and cultural impact

01 SONORAN STUDIO

Professional | Commercial | 2020 - 2023

Sonoran Studio is a new architectural office building that has a mission of building better for people and the planet. To do so, this building is perusing the Living Building Challenge which can be seen through features such as Net-Zero Energy, Net-Zero Water, a positive carbon footprint, and much more. These ways of building a better building will be achieved through passive strategies (such as site orientation, ample daylighting, xeriscape landscaping), use of innovative technologies (such as Source hydropanels, composting toilets and Red List Free (toxin free) materials), and through human centric design (such as biophilic design elements, a connection to nature, community inclusive spaces, and even growing food native to the Sonoran Desert). This thoughtful and beautiful new space will be home to the Sonoran Studio Foundation, created to ‘educate and challenge communities to create the most sustainable future.’

02 WL GORE KP RE-MODEL

Professional | Commercial | 2024 - Present

The WL Gore KP Cafeteria Remodel is a renovation project for W. L. Gore & Associates, aimed at enhancing the functionality and efficiency of the kitchen and dining space. The remodel focuses on optimizing food preparation areas, increasing appliance capacity, and improving workflow while maintaining a welcoming atmosphere for employees.

As an architectural designer, I played a key role in shaping the design direction and developing the BIM model in Revit, ensuring accuracy and constructability. I also created high-quality renderings using Adobe Photoshop and Enscape to visualize the design intent. The project is currently in the Schematic Design and Design Development phases, with primary goals including the addition of refrigeration and ice-making capacity, reconfiguration of counter spaces to improve usability, and modifications to the island layout for better accessibility. The remodel integrates strategic spatial planning with functional upgrades, balancing the client’s operational needs with a cohesive design vision.

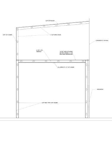
02 FEDERAL WAY, WA EVAL CENTER

Professional | Behavioral Health | 2020 - Dec 2023

Federal Way – Phase I is a transformative renovation project aimed at converting a 1987-built facility into a state-of-theart Evaluation and Treatment Center for psychiatric care. The project includes structural modifications, installation of new mechanical, electrical, plumbing, and fire suppression systems, and reconfiguration of interior spaces to improve functionality and accessibility. Exterior upgrades, such as a new patio enclosure and ADA-compliant ramps, further enhance usability.

I spearheaded the Construction Administration phase, serving as the primary point of contact and coordinating with consultants, contractors, and the City of Federal Way to ensure seamless execution and compliance with all regulatory requirements.

03 MARYVALE PARKWAY

Professional | Architectural On-Call | 2022 - Present

Maryvale Parkway is a senior public housing complex built in the 1970s, consisting of 108 one-bedroom units. This renovation focuses on modernizing 48 units in Building A, 60 units in Building B, and the Community Center in Building C, enhancing both living spaces and essential building systems. I helped secure the project through my RFQ On-Call Proposal (2021) submission and served as the liaison between the City of Phoenix, MEP consultants, and the contractor to ensure seamless coordination.

During the Construction Documentation phase, I developed detailed CDs that served as a critical tool for the contractor bidding process, allowing for accurate cost estimation and scope definition. My involvement extended beyond documentation, as I actively participated in the bidding process, ensuring that design solutions remained feasible and within budget. By integrating strategic planning with technical precision, this renovation project delivers a thoughtful, efficient, and resident-focused modernization of Maryvale Parkway, reinforcing its role as a vital senior living community in Phoenix.

04 TIMBER IN THE CITY

Located on an unoccupied waterfront in Queens, New York. This project re-evaluates social interactions and re-imagines the creation of neighborhood and community integration in a mixed-use, high-rise complex.

Set in a prime location, the project maximizes the urban framework of the site with the integration of new forms of dwelling, leisure, learning, and social consciousness. With strong relation to the street and waterfront, this project provides various means of retail, parking, walkability, education, and outdoor recreation with the incorporation of a roof garden.

The main premise of this project is to expand the opportunities of social interaction. The building is designed with a series of varying stacked CLT balcony types, providing residents with the opportunity to socialize and create connections which will lead to a stronger sense of community. The architecture encourages the opportunity for life to truly exist between walls and buildings.

Type 1
Type 2
Type 3
Balcony Types

CIUDAD NEZA

Issue:

Rural to urban migration has had a significant impact on housing trends in Mexico. Mexico City has experienced massive population growth, pushing affordable housing development for the working class into the city’s periphery.

Premise:

This thesis proposes the re-examination of zoning policies in housing today. It recognizes homeownership’s financial implications and offers zoning as a tool to legitimize homeownership for upward mobility. The social and cultural fabric determines the existing forms of living. Zoning is realized as a symbolic representation of residence, whereas the proposed architectural design adheres to the use patterns. The onus on self-management is reduced by introducing solutions that address dysfunctional services and infrastructure

How the home is designed VS. How he home is used

The onus on self management is reduced by introducing solutions that address dysfunctional services and infrastructure.

SOCIAL & CULTURAL FABRIC FINANCIAL MODEL

FLEXIBILITY OF HOUSING

RESOURCES & SERVICES

PROXIMITY

Street Layout
Void Space
Green Space Community Workshop
Communal Center
Single Family Units
Single Parent Units
CIUDAD NEZA
CIUDAD NEZA

DOWN SOUTH

Jackson Street Garage and Phoenix Union Station is a very dynamic site. It consists of a garage, bridge and underutilized railway tracks which creates a wicked problem known as “border vacuum”. The term “border vacuum” is used to describe factors that inhibit people from occupying a space, thus creating a barrier that divides neighborhoods in a city.

The site consists of three major border vacuums; the bridge, the parking structure and the rail tracks. The design approach to this site is to reconcile the effects of the border vacuums on the site in order to bring people into a once alienated place. The proposed plan is to incorporate a triple layered facade system, utilizing varying opacities of fritted glass and iridescent aluminum that refracts sunlight, offering an array of distinct colors that draws people in.

Facade Layers
Iridescent Aluminium
Fritted Glass

Turn static files into dynamic content formats.

Create a flipbook
Issuu converts static files into: digital portfolios, online yearbooks, online catalogs, digital photo albums and more. Sign up and create your flipbook.