P OR T F O L I
Emma Tollett
Interior Design
Selected Work | 2023-2025

INTRODUCTION
Deeply passionate about design & dedicated to transforming spaces into environments that are representative of those who occupy them.


Ready to Wear Lounge


One Shopping Centre, Mississauga | 5,800 sq. ft.
Inspired by Coco Chanel‘s iconicapartment at 31 Rue Cambon, this retail design contemporary refinement. Sophisticated textures and forms create a luxurious, cross-cultural sensibility. Subtle modern updates pay homage to Chanel‘s legacy

fuses Art Deco and Art Moderne influences from the 1920‘s and 30‘s with immersive shopping experience that reflects Chanel‘s timeless elegance and legacy while resonating with today‘s clientele.








Entrance Fixture & Sketch



















evolving journey of technollogy through a retro-futuristic lens, merging nostalgia as hotelling and benching to support flexible schedules and foster collaboration well-being, and productivity in a dynamic work environment.







Clave is a restaurant that evokes a sense of desire and curiosity through its subtle, popular in Latin American music, translated in English to “ key“ or “clue “ guiding the making them want to return again and again.

Speakeasy Entry & False Washroom
subtle, concealed gestures and fluid, contoured surfaces. Clave, an insturment the inspiration. The dynamic space takes guests on a relevatory journey

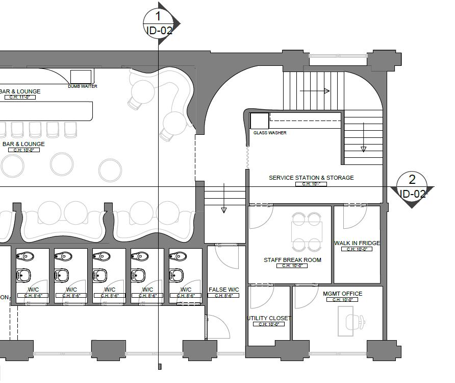
Floor Plan




Bar & Standing Room






Vaughan, Ontario | 9,000 sq.ft.
Focus Forward embraces the evidence based principles of Hygge to cultivate a research that links Hygge to improved mental health and well-being, the desgin

sense of presence, belonging, and connection to geriatric care. Rooted in approach fosters security, dignity, and gentle reassurance.



Wayfinding & Tactile Ground Surface Indicator
Simple, familliar, and distinctly different pictograms inspired by the Hygge Manifesto recognizable silhouette to ensure clarity and avoid confusion between focus areas,

Mobility Cane Storage Within Seating
Manifesto are used to identify rooms. Each pictogram features a unique and areas, aiding in the confident navigation of elderly users.
