Skip to main content

Thomas Pickering Portfolio - UCL

Page 1


https://issuu.com/edrwerfdfg

https://www.instagram.com/thomas.p_arch/

2021-2023

UniversityofNottingham(1st classHonours) Architecture(ARB/RIBA)

2018–2020

CedarsAcademyandSixthForm,LeightonBuzzard

Alevels- ArtA*,PhysicsA,MathematicsA

2013–2018

CedarsAcademyandSixthForm,LeightonBuzzard

GCSE’s- Maths,Chemistry,Geography,English,Spanish,Business ,Physics,Art,Biology(9A*/A’s)

2024-Present

BenchmarkArchitects

2023–2024

SargeantArchitects

ArchitecturalAssistant

ArchitecturalAssistant

Thisportfolioisacollectionthatreflectsmypassionsboth withinandoutsideofarchitecture.Itbeginswitha compilationofmyworkfromNottinghamUniversity, showcasingimagesfrommyfinalproject.Itthentransitions toaprojectpersonalprojects,includingoneextendedproject andseveralsmallerspeculativesketches.Finally,the documentconcludeswithprojectsI’veworkedoninpractice, detailingmyroleandtheimagesIproduced.Notallthe practicesI’veworkedatareincluded.

Thankyouforyourtimeandconsideration.

ProjectOverview

CardboardPanels

Benchmark-Roseland

Sargeant- Claridgecourt

Sargeant- CastleHill

1. Importedbatteriesarebroughtinbyhale woodtrainandonsitetram(toaseparated insulatedstructureduetothedangerofthis process).Heretheyareseparatedfromthere casinginfireprotectedbaysandtheinternal cathodesarethenshredded

2. Acentrifugalsorterseparatestheshredded materialsintolithiumandnotwiththelatter beingdepositedintotheneighbouringrail cartforredistribution/recycling

6. Repeatevaporationpondssuckupocean waterdirectlyandevaporateitthrougha repeatprocesstocreateaconcentratedbrine. Ata0.3mmdepthdropthecranecomes togetherandpoursthebrineintothelower inordertomaintainefficiency

OceanicHusbandry

Projectoverview

Year3Project3-Liverpooldockland

‘Anoceaniclithiumextractionplantwiththeambition tomergetheproductandpublicintoamulti-tiered viewingexperience’

Thisprojectexplorestraditionalhusbandryprinciplestosupporteconomicalandsustainablelithiumharvesting.Byreusing allmaterialsandby-products,thesystemaddsvaluetowhatwould otherwisebewaste,improvingoverallefficiency.Asterrestriallithiumresourcesdecline,ocean-basedextractionoffersapotentialalternative,thoughitslowyieldandhighcostscurrentlylimititsviability.

TheprojectstartswithhighLi+brinebeingcollectedfromhydro thermalventsandtransportedbacktothesite.These ‘jellyfish drones’ becameaprincipaldesignethosfortheprojectduetothe cyclicalnatureoftheirdesign.

Asthissinglestreamisn'tsufficientforviabilityfurtherwassort afterthroughparallelprogrammesdrawinglocalcommunitymembersintothesite,rejuvenatingtheLiverpooldocklands.

‘Jellyfishdrones’ -thespeculativedesignlookstoreclaimexistingpartsinordertocreateits Frankenstein body,the shorttermuseallowsforlessinterventionwhichcanbedevelopeduponasthesitecalcifiesitselfintothecommunity.

‘Jellyfishdrones’ harvestinglithiumbrine

Duetothescaleoftheproject(approximately 15,000m²),theprogrammefocuseson productionandeducationalspaces.

Theproductionarea,locatedonthesouthbank, integratespubliccirculationwhilemaintaining thehermeticallysealedconditionsrequiredfor lithiumextraction.Transitionalzonesallow closerengagementwithelementsoftheprocess, creatingtheimpressionofaliving,autonomous system.

Theeducationalspacesadoptamoreopenlayout withminimalpartitionstoencourage collaborationandcommunication.Extending towardthemainhall,theyreflectthecollective atmosphereofthehistoricfactoriesthatonce surroundedthesite.

ProductionPlant

Circulationstrategy

Primary,secondary,andtertiaryroutesweavethroughthesite,encouragingexplorationandmovement.Thesepathsarecomplementedbytime-responsivestaircasesthatopenintodifferentrooms atvarioustimesoftheday,promotingrepeatvisitsandfosteringanaturallyevolvingcommunity culture.

Mobilelaboratories,inspiredbywarehouserobotics,supportefficientinternaloperationsandthe servicingofindividualcells.Atthesametime,theirmovementintroducesaperformativelayerto theenvironment,allowingvisitorstoobservetheworkingsofthespacesinaction.

OceanicHusbandry

EvolvingLandscapes

Thesite,likethe“JellyfishDrones,”isdesignedto remaininconstantmotionanddevelopment.The pontoonactsasadynamicfocalpointwithinthis system.Usingapre-tensionedhydraulicandcable mechanism,itcancurltoprovideshelteredwalkways acrossthesite,thenuncurl,likeanopeninghand,to receivereturningdrones.

Becausethepontoonsriseandfallinresponseto operationalneeds,thesiteisconstantlyreconfigured. Visitorsreturningondifferentdaysencounternew routes,viewpoints,andmomentsofactivity.This shiftingenvironmentencouragesrepeatedvisitsand sharedexperiences,allowingthepontoontofunction asacommunitycatalyst,anactivegatheringpoint wherepeoplecomenotonlytoobservetheharvesting processbutalsotoengagewithoneanotherarounda continuouslyevolvinglandscape.

Theprojectisdividedintothreesections,eachusing specificstructuraltechniques.Therecyclingbayis lightweightandhermetictosupportthechemistry areas.TheTate&Lylebuilding,whichmanageswater movement,useslightweightframesattachedtothe existingstructuretominimiseaddedmass.

Publicspacesextendfromthemainframe,where integratedelementssuchasbookshelvesactas structuraltensioncolumns.

OceanicHusbandry

Sandcastaluminiumcircular columntoIbeamjoint

Thenewstructureintegrateswith theexistingone,bothformallyand physically,reducingmaterialusage andmaintainingasensitive architecturallanguage.Usingsteel beams,columns,andtensilecables, thedesigncreatesaninternalframe thatprovidesphysicalsupportand actsasaclimaticbuffer.Internal spaces,treatedasexternalrooms,are insulatedandweatherproofedfor stabilityinpublicandlabareas.

Inparallelwiththeoceanic husbandryproject,thegoalwasto createastructurethatminimisednew materialsandreducedthecarbon footprint.Thedesignwasdeveloped throughiterativehandmodels,then 3Dprintedbeforebeingsand-castata localfoundry.Thisprocessallowsthe site’shistorytobereflectedinthe finalcast,withthesandcapturingthe manufacturingdetails.

Themouldplacedinaboxand sandisthenrammedroundthe pattern.

The3dprintisthenremovedensuringnosandisdisplaced

Acoatingisthensprayedoverthe differentsandtostopitfromturningtoglasswhenmetalispoured

Itsthensetinfiretoreducedrying times

Channelsarethencutwithruns extendingpastthefinstoensureit poursalltheway.

Metalwasthenpoureddownboth channelssimultaneouslytoensure itrantheentirecast.

Appliedsystemaxonometric Processofsandcasting

Final1:5scalemodelonacastconcretepost-replicatingitsintendedhost-withrustprotectivepaintapplied

OceanicHusbandry

Development

Todeveloptheproject,Ibeganbydistillingallthecore ideasintosimplediagramsanddrawingsonpost-itnotes. Thisapproachhelpedmeclearlydefineeachkeyaspectof theprojectandensuredtheseelementscouldbemaintainedthroughoutitsdevelopment.

Ithenadoptedacyclicaldesignprocessusingthreemain techniques.First,Ilayeredspatialdiagramstoanalyse thecirculationofboththepublicandmaterials.This helpedmeunderstandtherelationshipsbetweenspaces. Next,Idevelopedkeysectionstoexplorehowlightinteractswiththespaceandhowvoidscouldinfluencetheuser experience.Finally,Icreatedrough3Dmodelstobring thedesignstolife,whichallowedmetorefinethemfurtherthroughrepeatediterations.

Tosupportthisiterativeprocess,Icreatedcollagestoinformthearchitecturalstyle,ensuringconsistencyacross theproject’stimeline.Additionally,Iusedphysical model-makingtobetterunderstandthesite’sreal-world qualities,allowingmetoassessscale,materiality,andthe overallspatialexperience.

Siteanalysisdiagramusedtoassestherelationshipbetweenneighbouringbuildingsandtheenvironment

Storyboardofthetouristexperience

Initialsticky-notespacialideas

Keynotedrawingsmadeatthestartoftheproject,providingtheheartoftheprojectforeverythingtobederivedfrom

Layeringiconagraphicplans

Developmentcollageexploringaesthetics Layeredplandrawings,exploringintersectionsandarrangements

Sectionaldevelopmentdrawings

Internalsketchforfastformfinding

3DMassingdevelopment,exploringstackingand3dimensionalinterconnections

3DSketchdiagramseeinghowlargespacesneedtobeandhowthecanfitaroundeachother

PersonalWork 2.1

CardboardPanels

Buildingonpreviousresearch,Iaimedtocreatean accessiblemethodusingcardboardmoulding,repurposingexcessdeliverycardboard.Theprocess involvescuttingcardboard,blendingitwithwaterand PVAglue,andpressingitthroughcheeseclothtoremove moisture.Asitdries,themixturehardensandis compressedinamoulduntilsolid.Athree-partmould provedmosteffective,thoughseveraliterationswere neededtoensureporosityforairflowandreduced artifacting.

Ialsoexperimentedwithfixingsforthedesiredaesthetic, ultimatelysettlingonasimplesinglescrewtoattachthe panels.

Lookingahead,Iplantoincorporatewildflowers, inspiredbyaproductfromOrganoid,toaddvisual, tactile,andaromaticappeal.

PersonalWork 2.2

MarchingCubes

Inspiredbythewaywedecoratetheinteriorsofour homes,thisprojectproposesamethodforcustomising theexterior.Buildingonthepreviousproject,itexplores theuseoftheMarchingCubesalgorithmtogenerate adaptablewallpanelsthatcanwraparoundhouses. Whiletheconnectionpointsofthefourteenplanes remainfixed,thesurfacesbetweenthemcanvary, allowingforawiderangeofformalvariations.

Becausethepanelsarebasedonvoxelcubes,their dimensionsarestandardised.Thisallowsthemtoalign withbrickcoursesandenablesfixingstobeintegrated duringconstruction.

Combinedwiththepreviousproject,thesepanelscould beproducedatalargerscaleusingcardboardembedded withdyesororganicmaterialstoenableindividual expression.Overtimethepanelswouldnaturallydecay andbereplaced,allowingnewexteriordecorationsto emergeeachyear.

Conceptrenderwithpanelsappliedonontoalocalhousingestate,paneldensityandorientationcanbecustomisedbyownerdependingonweathertheywanttousethemdecorativelyorforshading

3dprintedproofofconcept
Grasshopperscripttoplaceandorientatepanels
Originalconceptrenders

Roseland

Projecttype -Commercial

Location -Bolsover

Scale -34,316m²

RIBAStage -5

Thisprojectwastakenoverduringtheconstruction phasebyBenchmarkafterchallengeswiththeprevious architects.Asaresult,Icontributedtovariousaspectsof bothconstructionanddesign.

Ihelpedcreatetheconstructionpackforboththemain buildingandthesurroundingstructures,usingthemto developrendersthatprovidedcrucialinformationforthe client’sdecisionsoninternalfinishesandfurniture selections.Additionally,Idrewuptheexternalworks packageforthesurroundingmemorialspaces.

OpeningHead-Wake +140705m

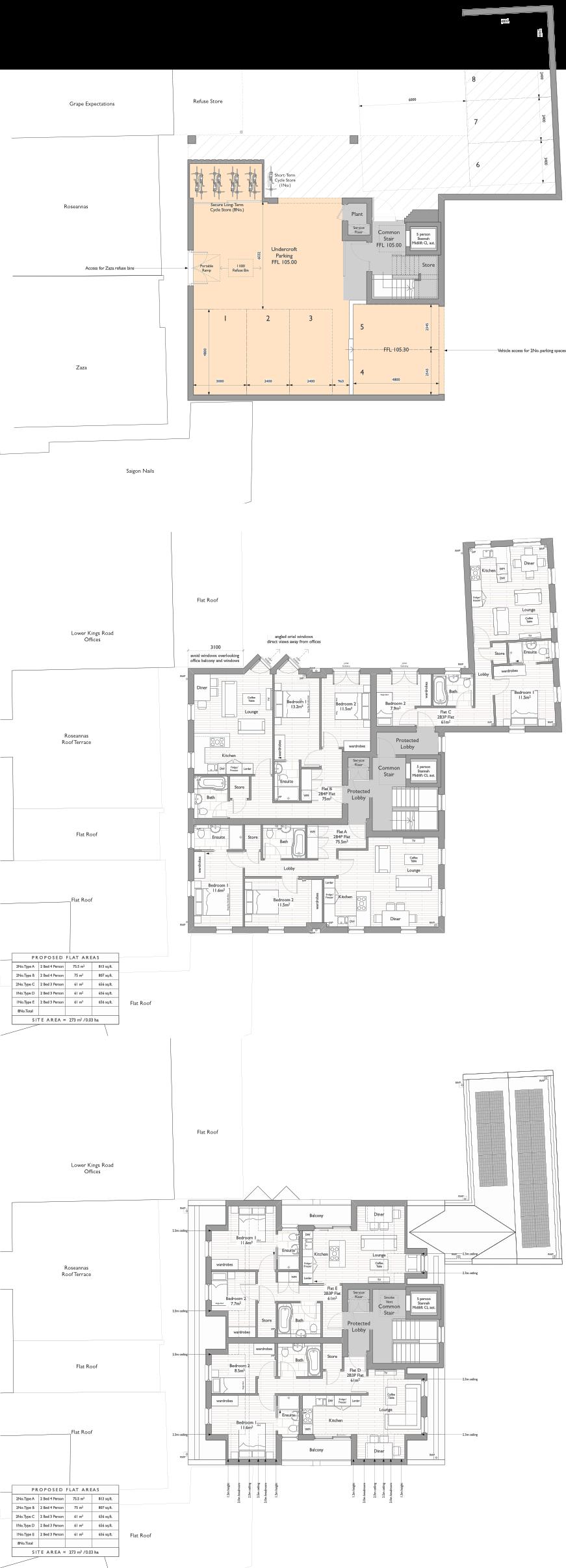
Claridgecourt

Projecttype -Residential

Ijoinedtheprojectduringtheconceptstage assistingdrawingfloorplansandcreateconcept images.Thesiterestrictedscaleoftheproposal meaningtheinternallayoutshadtobeorientated increativewaysleadingtofinalboldgeometric shape.PartOalsoofferedissuesassurrounding buldingshadedkeyspaces.

FollowingthisIhelpedcreatetheDASdocument andfinalrendersfortheapplication.

CastleHill

Projecttype -Residential

Location -Berkhamstead

Scale -753m²

4Bedroomdetachedhouse

RIBAStage -4

Ijoinedtheprojectduringthe tenderstageandwasresponsible forcreatingallthedrawingsforthe tenderpack,includinglighting plans,CDM,setting-outplans,and details.Themainchallengewas fittingthestructuralsteelwithout disruptingthebrickcoursesand maintainingthehiddendrainage systemattherearoftheproperty.

18mmWBPplywooddecktozinc 164

50mmswbattenstoformupstand

50mmswfirringsoverjoists.100mmreducing to50mmat1:80falltodownpipe. 38mmswbattenandfirringsagainstwall toallowfordownpipe

Inadditiontothedrawings,Ihad theopportunitytowritethetender specificationdocument,allowing metocontributesignificantlytothe developmentoftheentiretender pack.

VMZinc(zincplus)fasciawithstanding

VMZinc(zincplus)continuous sheetdrip

VMZinc(zincplus)soffitwithweltedpanels max.400x2000mm

10mmventilationgapwithinsectmesh AluminiumppcRALcolouredgreyand bondedtoundersideofsoffit

20mmsand/cementrenderwith2coats externalwallpaintfinish

Slidingdoorwithintegrallevelthresholdtobe installedinaccordancewithmanufacturer's requirements

2No.layers12.5mmBritishGypsumGyprocFireLine laidinstaggeredpatternwithskimfinish. fixedwithsuitableBritishgypsumscrewsa infieldofboardand150mmc/catboardends. BritishGypsumGypCeilingMFsuspendedce -GypframeMF5CeilingSectionsat.max MF7withtwosuitableBritishGypsumsc -GypframeMF6Pe meterChannelsuitablyfixedto -GypframeMF7PrimarySupportChanne -GypframeFEA1SteelAnglehangersat1200 wosuitableBritishGyspumwaferheadscre suitableBritishGypsumscrews(min.35mmfrombottomofjoist)

teelbeamandweldedbaseplatetobe withStructuralEngineer'sdetails

2No.layers12.5mmBritishGypsumGyprocFireLine toexposedsideandsoffitofsteel

Turn static files into dynamic content formats.

Create a flipbook