Revista del Colegio de Arquitectos de Valladolid





Nº 14 | Edición semestral gratuita
Revista del Colegio de Arquitectos de Valladolid
Nº 14 | Edición semestral gratuita
ARQUITECTURA CON FUTURO
5. Parque deportivo del rugby 11. P.F.C. Sede de “tierra de sabor” 19. Ciudad Refugio 2015 27.
Nueva sede de la Seminci
35. Una escuela de doctorado 43. El museo es la calle 51. Materializar la velocidad 57. Talla lítica 63. Un templo en la Ribera del Duero 69. Intervenciones urbanas
73. Entrevista: Jesús de los Ojos 82. Próximo número
Descarga tu revista:
Revista del Colegio de Arquitectos de Valladolid. Nº14 | Edición semestral gratuita. Edita: Colegio de arquitectos de Valladolid (Tel.: 983 344 244. www.coavalladolid.com) y Editorial MIC (Tel.:902 251 902/983 456 518. www.editorialmic.com).
Diseño: Cristina Aparicio Castaño Maquetación: Editorial MIC. Imagen de portada: fotomontage de los 9 artículos de está edición
Depósito Legal: VA-389-2013.
Muchos de los que hoy presentan en esta revista su proyecto Fin de Carrera, algunos de ellos ya colegiados, e incluso me atrevería a decir grandes arquitectos, coincidieron conmigo en los pasillos de la Escuela Tecnica Superior de Arquitectura de Valladolid. Es por ello, que me resulta tan emocionante escribir la editorial de esta revista.
La etapa del fin de carrera siempre se recuerda como una espiral de momentos buenos y malos donde la noche y el día no tenían una línea clara de definición y las tardes de verano (en el peor de los casos) se convirtieron en una prueba de confinamiento no convalidable (por desgracia) con el actual. Los tutores ejercen en muchos casos, más de psicólogos y coaches que de maestros. La familia del alumno observa desesperada el proceso y no tiene más que resignarse a aguantar el breve periodo que resta hasta la entrega. Los resultados, en parte debido a ese trabajo incansable, son los que se muestran en esta revista.
A continuación, podrás ver lo mejor de lo recién salido del horno demostrado con infinidad de ejemplos sobresalientes que dotan a estos trabajos de una calidad arquitectónica excepcional que nuestra sociedad podrá disfrutar tras su graduación. Sin embargo, estos ejemplos no son una excepción de cómo están trabajando las nuevas generaciones.
Por otro lado, queda probado que no existe ninguna escala que se resista. Estos proyectos reflejan la versatilidad y calidad de esta nueva (mi) generación de arquitectos.
El tribunal, formado por Julio Grijalba, Jose Manuel Martinez, Eduardo Carazo, Alfonso Basterra, Juan Luis de Las Rivas e Ignacio Paredes, compañeros de la demarcación, plantea el enunciado invitando a reflexionar sobre las necesidades sociales, económicas y conceptuales de la ciudad de Valladolid desde un estatus de gran experiencia profesional e investigadora.
Estos ejercicios, en todos sus casos, pretenden la continuidad de una línea realista y heterogénea que permite abarcar diferentes escalas y alejarse de los parámetros caducos de una arquitectura del espectáculo. A su vez, tratan de provocar un dialogo con la tradición cinematográfica, la restauración de bienes muebles, la industria automovilística, con los productos de tierra de sabor, la educación en la Universidad de Valladolid, la ribera del Duero, o con el Rugby. En definitiva, una arquitectura que ahonde y fomente el desarrollo económico sostenible ligado históricamente a nuestra ciudad, además de reflejar sus valores ricos y diversos.
En mi opinión, estas problemáticas educan y hacen reflexionar a los alumnos veteranos sobre los temas más complejos que atañen a la ciudad fomentando una actitud crítica, sosegada, meditada, en muchos casos atrevida, por qué no, que termina con una solución modélica.
Varios de los enunciados exploran la recuperación de infraestructuras degradadas y abandonadas o se insertan en entornos urbanos complejos. Es el caso la sede de la Seminci, el laboratorio i+d+i en el Polígono Argales, la Escuela de Doctorado o el museo de Semana Santa.
Estas intervenciones no persiguen por sí solas la preservación del patrimonio, sino aprovechar lo construido como una base crítica para el desarrollo de una arquitectura contemporánea que resuelva esos
problemas. Podríamos decir que buscan manifiestos de actuación que revitalicen este tipo de infraestructuras o espacios urbanos, respetando y poniendo en valor el patrimonio construido.
De todos ellos, los de menor escala y realistas con la situación profesional a la que se enfrentan los egresados al salir de la escuela, son especialmente valorados por nuestro Colegio. Desde aquí, no podemos hacer otra cosa que reivindicarlos, para que se conviertan en algo habitual.
Por otra parte, encontramos otra serie de proyectos muy diferentes. Los que exploran temas derivados del paisajismo con edificios de una escala más territorial que local. Este es el caso de los campos de Rugby, la nueva sede de Renault o la nueva sede de Tierra de sabor donde las preexistencias son más conceptuales que físicas. Sorprende que, con esa gran complejidad de programas, los proyectos no dejan atrás la precisión del detalle constructivo y un coherente desarrollo estructural.
En muchas ocasiones reflexiono sobre lo que significa hacer arquitectura y siempre llego a la misma conclusión: Todo lo que nos haga reflexionar, dudar o aprender sobre domesticidad, paisaje, regeneración, construcción o espacio, ya sea sobre el plano o hecho realidad merece ser llamado arquitectura. Y siendo así, lo que verás a continuación es una excelente muestra de ARQUITECTURA en mayúsculas.
Con este número de la revista queremos homenajear, con la inestimable ayuda de la Escuela Técnica Superior de Arquitectura de Valladolid, a los alumnos (ya arquitectos y compañeros), profesores, tribunal y tutores por su esfuerzo y dedicación hacia la ciudad de Valladolid y su territorio
Los dos clubes vallisoletanos de rugby con mayor trayectoria han experimentado en los últimos años un ascenso a la élite nacional de este deporte. Esto ha convertido a la ciudad de Valladolid en un punto de referencia para el deporte oval. El presente proyecto tiene como objetivo la mejora, reforma y ampliación de las actuales instalaciones deportivas Pepe Rojo para equiparar su calidad con los requerimientos actuales de los deportistas.
adaptarse frente a los requerimientos funcionales de cada momento. Ya sea para el funcionamiento diario como espacio de entrenamiento o como lugar de espectáculo en los días de mayor afluencia. Un espacio capaz de catalizar el espíritu deportivo y que a la vez sea generoso con la ciudad y el paisaje circundante.
MANUEL FERNÁNDEZ CATALINA, ARQUITECTO
Previa a la realización de la propuesta, partimos de un estudio de las preexistencias que existen en la parcela para su futura integración y aprovechamiento. Las actuales instalaciones son el resultado de múltiples intervenciones, muchas de ellas inconexas entre sí. Uno de los mayores condicionantes del proyecto fue la insuficiencia de los accesos al complejo los días de mayor aforo. Otros usos deportivos conviven en la actualidad con el rugby, como una pista de atletismo, una escuela de tiro con arco, un canódromo o el velódromo Narciso Carrión.
El proyecto propone un espacio dinámico, flexible y con capacidad de
La propuesta explora un nuevo lenguaje formal para la totalidad de la parcela, un lenguaje que refleje esta realidad variable, que es blanda, flexible y cambiante. No es rígida, recta e inamovible
Encontramos las instalaciones Pepe Rojo más allá de la masa construida de la ciudad de Valladolid. Un enclave encorsetado entre un meandro del Canal del Duero y la carretera VA30, junto a las instalaciones universitarias de Fuente de la Mora, generando un punto de atracción
periférico vinculado a actividades deportivas. Apostamos por utilizar la parcela para que esta no forme parte de la mancha edificada, sino que nutra a la red de espacios públicos verdes de la ciudad, como una parte dentro del futuro borde verde de la ciudad.
El proyecto es concebido como algo arraigado al lugar y no como algo sin contexto, ajeno al paisaje que lo rodea. Comenzamos introduciendo elementos característicos del paisaje en nuestra área de actuación: elementos traídos del exterior al interior de la parcela.
Los cambios efectuados en el plano topográfico enriquecerán la experiencia del parque. Los campos serán pequeños valles dentro del conjunto.
AFLUENCIAS.
USUARIOS Y DEPORTISTAS.
Las afluencias generadas en grandes partidos o campeonatos que utilicen múltiples campos serán conducidas entre estos elementos naturales hacia los diferentes lugares. Para favorecer el correcto funcionamiento de los accesos rodados, la carretera de Renedo se eleva a su paso por el Parque Deportivo. Para ello se utiliza la tierra extraída de los pozos de aparcamiento, donde un pinar tupido ocultará los vehículos estacionados. El funcionamiento de los nuevos accesos elimina la existencia de cruces problemáticos y los atascos en los grandes eventos.
Los meandros garantizarán el funcionamiento de los diferentes flujos los días de mayor afluencia. Las vaguadas serán los lugares de reposo y esparcimiento
El parque está vertebrado por un paseo central que recorre el conjunto en el eje este-oeste. El camino desemboca en el ágora, la pieza central del parque, un punto elevado donde se gobierna el resto de la intervención. Desde allí se puede vislumbrar el paisaje circundante y cruzar el umbral para acceder al campo principal. Cual río, las vaguadas de este paseo central se van afilando según se sigue su curso. En el comienzo de la parcela son ligeras laderas verdes, pero a la llegada al campo principal pasan a ser quebradas o muros de hormigón capaces de albergar los espacios auxiliares para los deportistas.
Los elementos arquitectónicos se conciben como coronas blandas capaces de albergar los diferentes bloques programáticos: el campo principal (estadio con 10000 localidades), el campo secundario, el ágora (plaza central y umbráculo de acceso), la zona administrativa y social (club, bar, restaurante, tienda y administración), la zona residencial (residencia para los deportistas), el velódromo Narciso Carrión (anillo preexistente) y, por último, una pequeña zona de recuperación higrotérmica.
Cada uno de estos elementos se adapta a su función con su posición, tamaño, grosor y orientación. La localización de cada anillo permite que diferentes partes programáticas tengan una relación directa entre sí, mientras que cada uno posee su propio espacio central introspectivo
Todos estos elementos son recubiertos por una piel común que alberga circulaciones, terrazas y accesos. La piel está formada por chapas metálicas perforadas con forma cóncava e inspiradas en los fustes de los pinos castellanos.
El meandro central atraviesa la parcela bajo los anillos, creando una secuencia de espacios que son dimensionados por la afluencia de los usuarios. Entre el campo principal y el velódromo es donde se genera un espacio de menor escala pensado para los deportistas y demás usuarios que utilizan el parque con mayor asiduidad.
IDENTIDAD. CONSTRUCCIÓN Y MATERIALIDAD.
E l primer material utilizado es el propio terreno: los movimientos de tierras necesarios para la formación del parque no requieren otro material que el existente en la parcela.
El plano topográfico, paisajístico, incide en los anillos mediante el uso del hormigón: elemento masivo relacionado con la tierra
Las geometrías de los forjados horizontales y las gradas son generadas mediante el uso de losas de hormigón aligerado con bloques de polietileno expandido.
Las pieles de los anillos y la cubierta del estadio se resuelven mediante estructuras tubulares de acero. La corona del campo principal consta de 146 cerchas de dos metros de canto que cubren a la totalidad de los espectadores.
Los proyectos finales de carrera propuestos en los últimos años en la Escuela Técnica Superior de Arquitectura de Valladolid se han vinculado a la ciudad y a la reflexión sobre el patrimonio existente. Es necesario que en el ámbito académico sigamos repensando acerca del modelo de ciudad que queremos para el futuro. El proyecto aquí descrito pretende continuar con esta línea de actuaciones que buscan dinamizar lo heredado y ponerlo al servicio de la ciudad y de las necesidades reales de la misma.
El proyecto es el resultado del trabajo llevado a cabo durante un curso académico completo y me gustaría finalizar agradeciendo a todas las personas que colaboraron y ayudaron en su desarrollo. En primer lugar, quiero dar las gracias a mi tutor Jesús de Los Ojos, cuya guía fue fundamental en el desarrollo de este ejercicio. También a todos aquellos que nunca dudaron en desenfundar el bolígrafo, discutir y dibujar sobre los planos semana a semana. Me refiero a Alejandro, Alberto, Ana, Andrea, Andrés, Ángela, Bea, David, Jaime, Marta, Miriam, Sara, Sergio y especialmente a Natalia. Éste trabajo hubiese sido muy diferente sin todos ellos.
Mi Proyecto Fin de Grado fue entregado en septiembre de 2017. El documento completo está disponible en el repositorio de la Universidad de Valladolid UVADOC. Puede descargarse tanto la memoria técnica como los planos que conforman el proyecto para una mayor información
Sobre el plano topográfico se apoyan los anillos, elementos más relacionados con el mundo telúrico, concebidos como elementos ligeros que flotan sobre el paisaje
*Imágenes del artículo.
01. Vista aérea del Parque Deportivo. 02. Vista del acceso al Parque Deportivo. Meandro central. 03. Axonometría del conjunto. Escala paisaje. 04. Vista del campo principal. 05. Secciones del campo principal y anillos anexos. 06. Axonometría constructiva del campo principal. 07. Vista del campo principal. Umbráculo de entrada. 08. Idea. Formación del lenguaje formal. Imagen pequeña. 09. Situación del Parque Deportivo en la ciudad. Nodos deportivos. Tensiones entre la masa construida y el sistema de parques exteriores. 10. Axonometría del meandro del Canal del Duero y carretera VA30. Escala paisajística. 11. Planta baja. Meandros de hormigón con los programas auxiliares. 12. Primera planta. Coronas apoyadas en el plano topográfico.
13. Vista del área deportiva bajo los anillos.
14. Vista del interior del anillo residencial.
Si tuviéramos que definir la provincia de Valladolid en su relación con el patrimonio industrial y preindustrial lo haríamos con una palabra: HARINA. Una de las características esenciales de este tipo de patrimonio es su estrecha vinculación con los recursos que ofrece el territorio.
La provincia de Valladolid se encuentra ubicada en el centro de Castilla y León, ocupando gran parte del paisaje meseteño de la Comunidad, caracterizado por una agricultura extensiva con plantaciones de grandes cultivos, entre los que destaca el cereal.
A lo largo de la historia la transformación del cereal ha provocado la construcción de numerosos ingenios. Al levantamiento de aceñas en la edad media, le fue sucediendo la construcción de molinos a lo largo de los siglos posteriores, transformados en modernas fábricas de harina durante los siglos XIX y XX.
A este desarrollo hay que sumarle la construcción del Canal de Castilla, diseñado para el transporte de mercancías hacia el norte, que fue la obra de ingeniería más destacable de la
época y constituye un conjunto excepcional, representativo de una actividad económica que fue motor de desarrollo de la “Tierra de Campos”.
Posteriormente, tras la llegada del ferrocarril a Valladolid, se inicia la industrialización de la provincia. No obstante, es a partir de la década de 1950 cuando la provincia experimenta un importante cambio debido a la instalación de grandes empresas automovilísticas y otras industrias de transformación, situándose en grandes explanadas anteriormente ocupadas por plantaciones y cultivos.
El presente Proyecto, en colaboración con la corporación “Tierra de Sabor”, pretende recuperar el espacio ganado por la industria a la agricultura, introduciendo el valor ambiental y paisajístico propio de los campos de cultivo en el paisaje urbano de Valladolid
El Proyecto propone ubicar la Sede de la marca “Tierra de Sabor” (Corporación destinada a la promoción de los productos agroalimentarios de Castilla y León), en unos terrenos periurbanos de la ciudad de Valladolid, donde se pretende recuperar un espacio residual, situado entre suelos urbanos de uso industrial.
Se trata de una zona con un alto valor histórico y medioambiental, ya que está situada al borde de uno
de los meandros más pronunciados del río Pisuerga y en frente al paraje denominado “Soto de Medinilla”, donde se encuentra el yacimiento arqueológico más antiguo de la ciudad, que data de la Edad del Hierro y que cuenta con una extensión de unas 2 hectáreas.
El solar del proyecto se localiza en las inmediaciones de la Ribera del río Pisuerga, entre las fábricas MICHELIN y TAFISA. Situados frente del Soto de Medinilla, los terrenos tienen una localización óptima para la observación de un paraje
natural con gran calidad paisajística y valor ecológico.
La parcela tiene una superficie de 50.000 m² y su geometría es sensiblemente triangular, con algunos quiebros en su límite noroeste. Su topografía comienza plana al sur, descendiendo hacia el norte y con fuerte pendiente hacia el río Pisuerga. Cabe destacar la presencia de una Central Hidroeléctrica (antigua harinera en sus orígenes) colindante con el lado norte de la parcela, la cual aprovecha el salto del agua presente en el meandro.
El proyecto propone recuperar el espacio ganado por la industria a la agricultura, creando un sistema de “anillo” que circunda la zona con dos puentes o pasarelas peatonales que cruzan el río Pisuerga, situando en su centro el Soto de Medinilla. Este anillo pretende ser capaz de revitalizar la zona Norte de la ciudad, introduciendo el valor ambiental y paisajístico propio de los campos de cultivo en el paisaje urbano de Valladolid.
De esta manera, dentro del “anillo” quedarán inscritos tanto los usos propuestos por el Plan General, como la futura Sede de “Tierra de Sabor”, formando
El sistema de anillo en la parcela del Proyecto está compuesto por un terreno con diferentes pendientes que conformarán los cuatro accesos principales a la futura Sede:
Acceso Norte: desde el Soto de Medinilla.
Acceso Sur desde el centro de Valladolid.
Acceso Este: desde la ribera del Pisuerga.
Acceso Oeste: desde el Canal de Castilla.
un nuevo pulmón en la ciudad que contribuirá a su desarrollo ecológico sostenible
Gracias a este “valle” artificial se consigue comunicar de forma más amable el nuevo edificio con el exterior, así como generar una continuidad en los diferentes caminos peatonales.
La idea de diseñar un edificio pensado para el peatón ha sido uno de los objetivos más importantes del Proyecto. Esto se consigue elevando los caminos peatonales, dejando la movilidad rodada cubierta y dando prioridad al peatón
PLANTA DE SEMISÓTANO: Con la elevación de los caminos la planta sótano quedará encajada o “tallada” dentro del anillo, formando parte de él, pasando a llamarse “mundo estereotómico” y siendo construida en hormigón. Los usos de esta planta son aquellos ligados a la tierra y destinados a la producción, quedado así relacionados con los cultivos situados en las laderas del anillo. A estos cultivos irá asociada la planta baja de las viviendas del personal de mantenimiento.
PLANTA BAJA: Gracias al basamento del sótano queda una superficie en un plano superior destinada a los usos principales, ligados a los cuatro accesos para que exista una continuidad directa. De este modo la planta baja estará construida o “apoyada” sobre el anillo, pasando a llamarse “mundo tectónico” y siendo construida con pórticos de madera laminada. Los usos de esta planta son aquellos destinados a recibir público y al funcionamiento de la Sede, quedando así relacionados con los accesos principales y con el paisaje que los rodea.
Todo el sistema queda perfectamente encajado gracias a la piel cerámica que interrelaciona ambos mundos, haciendo que estos se unan y se auto-complementen.
Dada la forma de arco de la planta baja del edificio, todas las es -
tancias están orientadas hacia el paisaje, además de conseguir su encaje con la Central Hidroeléctrica existente. Gracias a la inclinación de su cubierta, el edificio se abre hacia el Soto
de Medinilla y se cierra al paisaje industrial. Además, se consigue una imagen exterior que recuerda a las naves de almacén o antiguos graneros sucesivos y yuxtapuestos.
En la cabeza del arco se sitúan los espacios más públicos (Sede Gastronómica), relacionándose con el acceso desde el Canal de Castilla, mientras que desde el acceso de la ciudad se accede al Mercado en planta sótano y a la Sede Administrativa en planta baja. Las viviendas quedan así en la cola del arco, otorgándolas más privacidad al estar alejadas de los accesos, creando así un recorrido de espacio público a lugar privado.
Aunque que la parcela está dispersa hoy en día, encontrándose en un lugar residual situado entre zonas o polígonos industriales, con la creación de nuevos accesos junto con la ribera del río Pisuerga, se dota a la parcela de un gran potencial para regenerar la zona y generar un nuevo “centro periférico” entorno al edificio proyectado.
Para finalizar, conviene destacar que, gracias al sistema de anillo y a sus ramificaciones Norte–Sur, se consigue acercar el entorno rural y el paisaje natural al centro de la ciudad, haciendo del Proyecto una propuesta reconocible a gran escala en el plano de la ciudad de Valladolid
El presente Proyecto de Fin de Carrera fue realizado bajo la supervisión del arquitecto y profesor de la E.T.S.A Jairo Rodríguez Andrés, a quien me gustaría expresar mi agradecimiento, además de por su tiempo y dedicación, por hacer posible la realización de este proyecto. Enfrentarse a un edificio de nueva planta con un programa tan amplio y de usos tan diversos supuso todo un reto. La ubicación del mismo y la amplitud del solar daban, quizá, demasiada libertad de diseño y costaba definir una volumetría que se adaptara a todos los condicionantes. La solución pasó por abarcar el proyecto desde una escala más amplia atendiendo al urbanismo exterior y a los condicionantes que este imponía
*Imágenes del artículo.
01. Ubicación del sistema en anillo. 02. Axonometría de idea de proyecto. 03. Vista exterior acceso Oeste. 04. Planta de semisótano. 05. Planta baja. 06. Sección mercado y oficinas. 07. Axonometría constructiva. 08. Vista interior acceso a restaurante.
El arquitecto es una figura acostumbrada y educada en las crisis que, ya sean de valores estéticos o económicos, acaban desgastando su espíritu, pero es nuestra responsabilidad como profesionales y siempre en estos momentos, dar respuesta a los problemas socio- económicos con la arquitectura como motor de arranque y propulsor del cambio de paradigma.
«Como Arquitectos tenemos que dar liebre por gato», era una famosa frase de Alejandro de la Sota -bastante anterior a la que citábamos de Foster-, que recuerdo en boca del Profesor Julio Grijalba, Presidente del tribunal ante el que presenté este proyecto fin de carrera. Durante ese duro viaje que comporta la tutoría del Proyecto de Fin de Carrera, mi tutor, el profesor Luis Alberto Mingo, al que en estas líneas quisiera agradecer por todo lo aprendido, me hizo saber que este proyecto se asemejaba a aquel gran arca contenedora que dibujó el célebre humanista del siglo XVI, Benito Arias Montano. Además del profesor Grijalba, todos los miembros del tribunal habían sido profesores míos en algún momento: José Ma-
ría Martínez, profesor de Proyectos; Alfonso Basterra, de Construcción; Rosario del Caz, de Urbanismo; y Eduardo Carazo, de Análisis de Formas. Creo que el éxito de este ejercicio fue poder canalizar lo que había aprendido con cada uno de ellos en un único documento.
El Programa del edificio al que se tenía que dar respuesta se dividía en tres bloques fundamentales:
-. Banco de Alimentos ligado a unos talleres-escuela de cocina y a un comedor social.
-. Banco de Ropa vinculado a unos talleres de confección y reciclaje de ropa con una zona comercial donde darle salida.
-. Refugio para estancias temporales para las diferentes unidades familiares.
Había que emplazar el edificio en un solar de la Calle Valle de Arán nº 1 en Valladolid, teniendo en cuenta el entorno próximo que constituye el Barrio España, altamente densificado, deprimido y sin prácticamente espacio libre. El proyecto se incorporaba al sistema de zonas verdes
«La crisis te obliga a hacer más con menos. Algunos de los mejores proyectos surgen de las mayores dificultades», Norman Foster
de la ribera del río al que se ofrecía. Para ello, uno de los criterios principales consistiría en resolver el programa del edificio con la menor ocupación y altura posible sobre el solar dado, de tal manera que evitase también en lo posible el mayor consumo de suelo.
A su vez, la necesidad del edificio en constituirse también en filtro o transición hacia el río, necesitaba soluciones constructivas amparadas en conceptos de permeabilidad, mediante la elección de los materiales, la inclusión de vías pasantes y la ligereza formal.
La superficie total de la parcela era de 13136 m2. Se ocupaba tan solo un área de 2138 m2 en planta, escasamente un 16 % de la superficie estaba edificada. Además, 3162 m2 se destinaban a punto limpio, parking y tráfico rodado, un 24 % de la superficie total de la parcela. Como resultado, se liberaba un 60 % de la superficie total para aprovechamiento de la ciudad, bien para formar parte del sistema de parque de la Ribera de Castilla o bien como una serie de huertos sociales aledaños al edificio.
Un programa como el de ciudad refugio debía estar supeditado al contexto socio- económico en el que se encontrase en ese momento, debiendo prever que fuese susceptible al cambio tanto de intensidad como de función programática. También, su situación tan próxima al río y a un área de recreo natural como el parque de la ribera parecían requerir una construcción ligera y que pudiese ser desmantelable en el futuro.
Una arquitectura con un carácter versátil o incluso efímera podría ser la respuesta
Una dificultad añadida era la idea de compatibilizar los diferentes usos y tipologías demandados por el programa del proyecto. Por ejemplo, un banco de alimentos tiene un carácter industrial y sus necesidades de luz, permeabilidad y habitabilidad distan mucho de las del refugio habitable. Reducir esas diferencias a un único volumen que contuviera todas estas variaciones y paquetes heterogéneos permitía desarrollar la idea bajo el amparo de un único lenguaje arquitectónico.
Respecto al reciclaje, preexistía un punto limpio en la parcela como un elemento extraño ajeno a la misma, así que este se absorbió y se recicló para integrarlo en la nueva propuesta.
hilo argumental de la propuesta:
• Reducir superficie al máximo liberando más espacio para la ciudad y reducir complejidad constructiva con una estructura sincera y modulada.
• Reducir la escala según el uso y programa y diferentes funciones: Producir, almacenar, habitar.
De esta manera, se fragmentaban las funciones en diferentes paquetes que, dependiendo de cómo se depositaran y se desplegaran configuraban el espacio, pudiendo algunos de los mismos ser reutilizados y reciclados y adoptar nuevos usos.
Se excavó el terreno y se contuvo con elementos modulares ecológicos (gaviones). La tierra extraída se usó para rampa de acceso y la estructura, forjados y envolvente se realizaron con elementos prefabricados modulares
que se presentaron de una manera abierta y sincera, evitando el uso de falsos techos y falsos elementos en previsión de una fácil desmantelación.
Lo importante era que, en un futuro, lo que era del río volviera a pertenecer al mismo
La concepción de la ciudad refugio como un gran elemento contenedor casi sin compartimentar dotaba al edificio de gran versatilidad, pudiendo adoptar diversos usos e incluso modificar las dimensiones o exigencias de cada parte programática de acuerdo a la intensidad de la demanda. Además, se hizo un esfuerzo por optimizar el coeficiente de forma y facilitar su acondicionamiento térmico regulado de manera inteligente por la permeabilidad solar del policarbonato reciclado y por el sistema de aperturas de huecos y ventilaciones automatizadas.
Se planteó un gran doble muro fachada que, a la vez servía de estantería y de almacenaje. A través del policarbonato translúcido se percibía un nuevo skyline cambiante y permeable para la ciudad refugio que se definía así como un gran arca contenedora modular. Estaba recorrida por dos espinas que daban servicio longitudinalmente al edificio. Estas espinas contenían la maquinaria y los cuartos húmedos. A ellas se enchufaban y conectaban los diferentes elementos móviles: huertos móviles, cocinas móviles, mesas y muebles de comedor móviles así como unidades de habitación también móviles.
En la elección de los materiales, los objetivos eran dejar la menor huella ecológica y facilitar una futura desmantelación o transporte del edificio construido mediante elementos modulares ligeros. La madera laminada era la que mejor respuesta podía dar a la estructura. Los forjados se resolvieron con losas de madera apoyadas sobre el sistema de vigas de madera laminada. La fachada se compuso por paneles de policarbonato reciclado con un sistema de apertura eléctrica automática. Los muros en cimentación se constituyeron con elementos modulares de gaviones y cámaras ventiladas. Por último, el pavimento exterior consistió en mallas de polietileno también reciclado para las zonas de trafico rodado con material drenante y tierra compactada en los caminos peatonales.
En 2015 ya habían pasado los peores años tras la explosión de la burbuja inmobiliaria y el enunciado del PFC parecía estar fuera de contexto, pero ahora, ante
la crisis sanitaria y la recesión económica de 2020, conceptos como reutilizar, reciclar y reducir son más que necesarios. Quizás un crecimiento expansivo de las ciudades ya no sea sostenible y debamos hacer más con menos, como señalaba Foster: reutilizar, restaurar y optimizar lo ya construido, idear nuevas herramientas que doten de flexibilidad y versatilidad a los edificios y, a escala urbana, proyectar una cirugía que extirpe y recicle lo necesario para regenerar, articular y oxigenar estos espacios de convivencia que son las ciudades
Se trataba de un gran contenedor matriz customizable y reutilizable gracias a la inclusión y versatilidad de los sub-elementos móviles
Como arquitectos, nuestras ideas y métodos deben reciclarse o flexibilizarse para dar liebre por gato. Ese es el reto al que nos enfrentamos los arquitectos de mi generación, la llamada generación de las dos crisis
10
*Imágenes del artículo. 01. Vista exterior Ciudad Refugio. 02. Vista interior Refugio. 03. Planta de situación. 04. Vista interior escalinata. 05. Sección constructiva. 06. Alzado Ciudad Refugio. 07. Planta Refugio unidades móviles. 08. Vista zona de carga. 09. Vista Exterior. 10. Plantas tipo. 11. Vista interior. Hall.
LEONARDO TAMARGO NIEBLA, ARQUITECTO
Centro de difusión de la cultura cinematográfica
Amediados de 2014 regresé a Valladolid para rematar la carrera de arquitectura. Había pasado los dos últimos años en Madrid, primero como estudiante de intercambio en la ETSAM, después como estudiante en prácticas en el estudio de Juan Herreros. En la Escuela de Valladolid me esperaba con los brazos abiertos mi tutor de Fin de Carrera Miguel Ángel de la Iglesia. Con él había cursado Proyectos en tercer curso y Rehabilitación en cuarto, y bajo su tutela sería becario en el grupo de investigación que aún hoy codirige con Darío Álvarez, el Laboratorio de Paisaje Arquitectónico, Patrimonial y Cultural. Nos entendíamos a la perfección, y a él le debo en gran medida el éxito de mi PFC como experiencia personal y como proyecto académico.
fábrica textil en un centro de difusión de la cultura cinematográfica y nueva sede para la Seminci en Valladolid
Sin yo buscarlo activamente, la rehabilitación había sido un tema central durante toda mi trayectoria formativa, y lo sigue siendo en mi labor profesional actual. Javier Blanco, Jesús de los Ojos, Miguel Ángel de la Iglesia, Emilio Tuñón, todos mis profesores de proyectos estaban interesados en la materia. Incluso mis padres, ambos arquitectos, tenían un gusto especial por este campo. Yo mismo había debutado como estudiante en prácticas en un proyecto de rehabilitación: la Galería Carreras-Mújica de Juan Herreros Arquitectos. En definitiva, con este enunciado de PFC me sentía como pez en el agua.
El edificio a rehabilitar era una antigua fábrica de sacos situada junto a la facultad de Comercio de la Universidad de Valladolid a la orilla del río Esgueva, un ejemplo típico de arquitectura industrial de ladrillo y teja de principios del
El enunciado de Fin de Carrera asignado por el tribunal aquel año no podía ser más próximo a mis intereses arquitectónicos, la conversión de una antigua
siglo XX. Tenía cuatro naves contiguas con cubiertas a dos aguas y un solo nivel. Utilizado en la actualidad como almacén de la universidad, el enunciado proponía su conversión en centro de gestión, formación, y programación cultural compartido por la Seminci, la Cátedra de Cine, y la Film Commission.
Durante mi tiempo en la UVa había asistido a varias fiestas estudiantiles cerca de ese edificio, lo había visto en numerosas ocasiones desde el Paseo del Cauce, y siempre lo había ignorado. Así que mi primer instinto fue volver a ese lugar familiar y a la vez tan extraño para escrutarlo por primera vez.
Una vez allí, dos cosas me llamaron profundamente la atención, y me hicieron comprender porqué este edificio me había pasado desapercibido hasta entonces. Hacia el este, el arbolado urbano era denso y ocultaba parcialmente la fachada. Por otro, existía un desnivel de algo más de metro y medio entre el Paseo del Cauce y el edificio, resuelto mediante un pequeño podio que desaparecía hacía el norte, donde el paseo ascendía hacia la Avenida Valle de Esgueva.
Por tanto, mi tarea inicial fue transformar la plataforma sobre la que se asentaba la fábrica. Hacia el este, esculpí una rampa paralela a la del propio Paseo del Cauce. Esto me permitió ganar 1,70 m de fachada a costa de la plataforma, suficiente para generar un acceso a nivel y una entreplanta en ese extremo del edificio. Hacia el norte, transformé el espacio en torno a la fábrica en una plaza pública. Hacia el oeste, conecte el edificio con el aparcamiento semienterrado de la UVa.
Entusiasmado con el carácter sólido y discreto de la arquitectura semienterrada, llegué a pensar que aquella operación “topográfica” sería suficiente para resolver el proyecto.
Instantáneamente supe que este desnivel sería la clave para integrar el edificio en su entorno
Pero pronto descubrí que no alcanzaba a cumplir con la superficie del programa, y me vi abocado al complejo reto de proyectar una ampliación contemporánea adyacente a un edificio antiguo. Repasé ejemplos paradigmáticos de la historia de la arquitectura, como el Ayuntamiento de Gotemburgo por Gunnar Asplund. Pensé en proyectos que conocía bien, como el Centro Cultural de las Escuelas Pías en Madrid por José Ignacio Linazasoro. Finalmente recordé un proyecto que me había impactado por su atrevimiento, el Hangar FRAC Dunkerque por Lacaton y Vassal. En este último, los arquitectos ampliaron un gran hangar de hormigón construyendo un hangar gemelo adyacente de acero y
vidrio. En ese momento comprendí que la fuerza icónica del perfil industrial de las naves era demasiado dominante. Toda propuesta formal alternativa parecería caprichosa y produciría un equilibrio precario entre lo nuevo y lo viejo.
En este caso, lo radical era dejar que la ampliación adoptara el perfil exacto del edificio existente. Una vez acatada esta condición inicial, el diálogo entre ambas partes estaba asegurado y las diferencias sólo podían enriquecerlo
El resto del proyecto consistió en enfatizar el contraste entre lo nuevo y lo viejo. Frente a la imagen tradicional de la arquitectura de ladrillo, la ampliación presentaba un acabado continuo de zinc negro en cubierta y fachada. Frente a la secuencia de ventanas de la fachada existente, la fachada de la ampliación era totalmente ciega. En su interior, la secuencia dentada de la cubierta sirvió de pretexto para acomodar el techo acústico plegado de la sala de proyección. Para explotar al máximo este paralelismo formal, integré un palco convertible en mini sala, generando una sección a modo de muñeca matrioshka.
En la nave este de la antigua fábrica, aprovechando la nueva altura ganada al podio, situé el restaurante-cafetería con vistas al paseo fluvial. Esta operación fue la más compleja del proyecto desde un punto de vista técnico. Debía excavar y construir un nuevo muro con múltiples aperturas bajo la fachada de ladrillo existente. Además de mi tutor, consulté expertos como Marisol Camino y Mariano Benito. Finalmente, encontré una manera técnica y económicamente sensata de realizar esta operación por tramos, con micro pilotes, y una estructura auxiliar de apeo modesta y manejable.
En el exterior, dos elementos añadidos reforzaban la integración del proyecto en su entorno: una pantalla urbana que anunciaba su presencia desde la Avenida Valle de Esgueva, y una embocadura que daba acceso y visibilidad al edificio desde el Paseo del Cauce.
Convencido de que debía entregar mi proyecto en primera convocatoria (junio), decidí presentarlo de una manera sencilla pero precisa.
Renuncié a contratar especialistas para los renders, práctica muy habitual entre los proyectos fines de carrera. El tribunal agradeció esta simplicidad y fue tremendamente generoso con su valoración de mi trabajo.
El Proyecto Fin de Carrera es un gran reto para cualquier estudiante, y para muchos, una experiencia amarga. Yo tuve la suerte, el apoyo, y (pienso) la actitud necesaria para llegar a buen puerto. Recuerdo el día de mi presentación pública como uno de los momentos más felices de mi vida
Recurrí a los tonos grises y a la línea. Me divertí dibujando y dibujé mucho, pero sólo lo que consideré imprescindible
MARÍA BASTERRA GARCÍA, ARQUITECTO
El reto planteado como último ejercicio de la carrera de Arquitectura comenzó, para mí, en diciembre de 2017. El objetivo era llegar a diseñar un lugar donde acoger a los estudiantes “predoctorales” de la Universidad de Valladolid. Los alumnos de Master, de los pioneros en esta modalidad, teníamos la ventaja de que, en la parcela donde teníamos que actuar, habíamos estado desarrollando otro proyecto, también relacionado con la Universidad de Valladolid.
Este trataba de un condensador para las distintas actividades universitarias que se generan fuera de un aula, un Ágora. Y parte del reto consistía en que ambos proyectos dialogasen, Master y PFC, y no renegáramos del edificio que habíamos estado diseñando 3 meses atrás.
En el nuevo proyecto, la parcela era el espacio vacío que se encuentra en el sur del campus Miguel Delibes. Sus límites son la ronda interior de Valladolid, por la parte superior, y en otro de sus lados las vías del tren, que cuentan con el apeadero Valladolid- Universidad. En este
conjunto se encuentran varios edificios de la Universidad, como son la Facultad de Educación, el Centro de Idiomas, el IOBA, el edificio LUCIA, el edificio QUIFIMA, el edificio de I+D y la Escuela Técnica Superior de Ingeniería de la Telecomunicación, entre otros.
El campus actual es un conjunto muy cerrado en sí mismo, con todos sus edificios volcados a un “patio abierto” común. Y nuestra actuación se descolgaba dentro del diseño general, así que se hacía complicado buscar un diseño que dialogara con los edificios que existen ahora ahí.
En esta zona vacía, el único eje reconocible era el que conectaba, de forma transversal al resto de edificios, el apeadero con el campus. Así pues, todos decidimos hacer énfasis en este camino.
En este primer proyecto, desarrollado durante el año del Master, fue generar en esta área un gran parque universitario, que estuviera incluso abierto a los vecinos del barrio Belén, y que sirviera un poco para difuminar el límite entre la ciudad y el campo, que consideramos que
El diseño de un pabellón que se expanda como símil de lo que ocurrirá en su interior: la divulgación y estudio de las distintas ramas de conocimiento
atravesaba justo nuestro solar. Se creaba un edificio enterrado, con una gran plaza escondida y que sólo se podía descubrir desde el campus y no directamente desde fuera. Si accedes por la ciudad, lo único que se vería serían tres volúmenes emergiendo, creando un hito o icono en una zona en la que hasta ahora no había nada. Pero como no queríamos generar un gran impacto, estos tres volúmenes translúcidos u opacos se cubrían con una malla vertical de alambres por donde podía crecer la vegetación y ser en sí mismos el propio parque, creciendo hacia el cielo gracias a la arquitectura.
Estas mismas ideas luego, en diciembre, serían heredadas para diseñar el nuevo proyecto, la Escuela de doctorado. Como ya se ha comentado, ambos edificios tenían que poseer una estrategia compositiva en común. Para mí, lo más fácil, fue partir de los condicionantes que nos habíamos autoimpuesto para el anterior proyecto, y que se reflejaran también en este.
Por tanto, la idea principal fue diseñar un edificio que se integrara en el entorno de una forma un poco orgánica, sin que sobresaliera ni fuera muy rígido, en contraposición a lo que ocurre ahora en el campus Miguel Delibes. La idea fue siempre que los nuevos edificios que se iban a consolidar en esta zona, no compitiesen con lo que existe en la actualidad.
Por el contrario, yo pretendía que esas mismas ramas de conocimiento, que ahora están dispersas por toda la ciudad, se concentrasen en los estudios superiores de doctorado.
No quería que se discriminasen unas de otras, sino generar un espacio donde el intercambio de conocimiento fuera la base que lo hiciera funcionar
Finalmente, opté por generar una serie de módulos poligonales, basados en la idea de los polígonos de Voronoi, distintos unos de otros en función de los requisitos del programa, pero sin estar, por decirlo de alguna manera, categorizados. Serían flexibles, para poder albergar cualquiera actividad que se demande en su interior. Todos estos módulos se van adhiriendo unos a otros, y se conectan mediante una espina, que también es orgánica, y que fluye libremente para dar acceso a las distintas estancias, o bien para crear a lo largo de ella misma, espacios de relación y de descanso.
Así, se fue tallando el edificio para cumplir exigencias funcionales de programa, constructivas y estructurales.
Como no me sometí a un volumen rígido, y la idea era que el propio edificio fluyera naturalmente, al final casi el proyecto se iba generando solo
No quería discriminar aulas por conocimiento, pero sí organizar el edificio estableciendo un orden de privacidad. De esta forma, lo más público estaría más cerca del acceso principal, y se dejarían los despachos de tutores en la parte más escondida y privada. Así, de alguna
Todo surgió analizando el plano de Valladolid, con sus edificios universitarios, y estableciendo también donde aparecían las facilidades para los estudiantes. Me di cuenta que están muy desvinculados entre sí y en la ciudad
manera, la escuela se podría fragmentar. En el caso de que no hubiera clases o seminarios, la biblioteca, administración y salón de actos, por ejemplo, podría permanecer abierto, aunque lo demás estuviera cerrado. Este concepto no solo aparece aquí, sino que me ayudó a resolver problemas de las instalaciones, como los sectores de incendios, que dividen el edificio de esta manera, o incluso en cuanto a la climatización, donde se podría calefactar esta parte del edificio más pública mientras que el resto no.
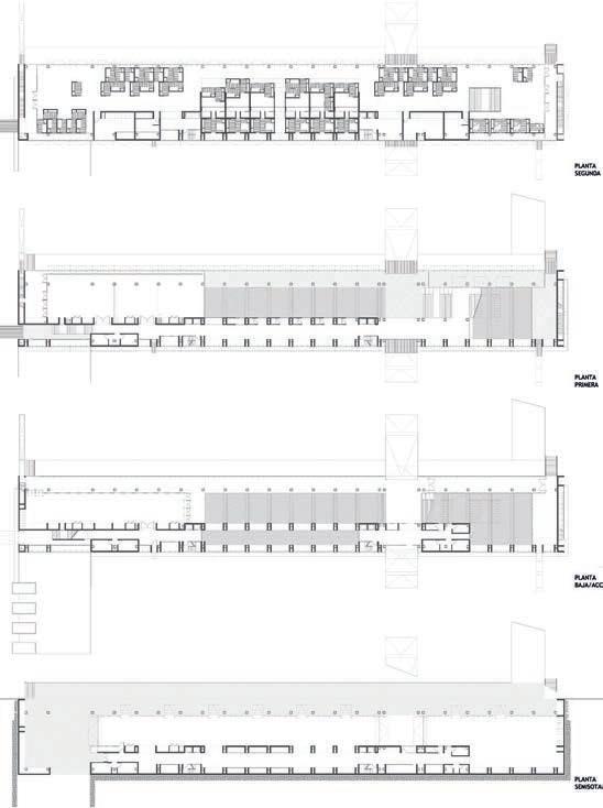
Volumétricamente, la arquitectura no pretendía tener un gran impacto. Así, en primer lugar, quise desarrollarlo en una sola planta, pero al ser tan extenso casi habría abarcado toda la parcela. Por ello, finalmente se desarrolló en tres niveles distintos: baja, primera y sótano. Sin embargo, estos niveles van escalonados de tal forma que en el único punto donde coinciden los tres es en el ascensor, para poder hacer el edificio accesible. Es decir, en el acceso principal descubres un edificio en horizontal, enterrando en esta parte el sótano, con la primera planta apareciendo más al fondo.
En cuanto a la materialización, el edificio busca un poco el ensimismamiento y la concentración por el programa que va a desarrollar en su interior, a la vez que quiere
el edificio de Master
Se me ocurrió que, con las mismas líneas verticales que generan la fachada de este último, transcribir a partir de paneles GRC los irregulares polígonos de la planta, en una sola dimensión. Esto pasa no solo en las fachadas opacas, sino al llegar a las zonas transparentes. Donde se
establecer algún tipo de relación con
abre una ventana se utiliza una celosía de acero, de forma arbitraria, que escribe el mismo código.
En cambio, en el interior, era importante estudiar bien como entraba la luz natural. Al tener tamizada la luz que procede de la fachada, había que buscar otro tipo de solución. Se resuelve a través de distintos módulos que funcionan con el mismo elemento. Es el polígono, el que se extruye en 3 dimensiones, creando una pirámide truncada, como si fuese un foco artificial que dirige la luz hacia el interior del edificio. Estos módulos aparecen, por una parte, de forma cenital en los seminarios, dando forma al techo y dotando a la luz natural de mucho protagonismo. Por otra, esculpiendo patios con doble fachada acristalada, pero la misma volumetría.
Esta doble fachada se pensó para que funcionara de forma bioclimática. En días de invierno luminosos, el sol entrará por el primer vidrio generando un efecto invernadero en este espacio intermedio que funcionará como un radiador hacia el interior. En cambio, en verano, la fachada interior y el paramento inclinado se abrirán, generando una ventilación natural a partir del aire que circula por convección.
En cuanto a la estructura, se trataba que no predominase ninguna dirección, sino que fuese muy isótropa, como pasa con el propio proyecto. Así que se optó por una losa aligerada que soportase las luces que se exigían. También en la estructura vertical se utilizan pilares redondos, por la misma razón de no dotar de ortogonalidad a un diseño que en ningún momento posee tal carácter.
Para resumir, opté por un edificio muy flexible, que incluso se podría expandir a partir de los mismos módulos, pero intentando dar una imagen final sobria, que representara a los usuarios: los estudiantes de doctorado.
A partir de aquí, quiero aportar mi punto de vista personal como alumna. Creo que es muy importante realizar un ejercicio como este, y aún más lo pienso 2 años después de entregarlo, a lo largo de todo un año. No porque el proyecto en sí sea de tal envergadura, siéndolo también, sino porque una parte muy importante del proceso ocurre lejos del ordenador y fuera de tu “espacio de trabajo”. Es sabido que para poder sacar el planteamiento de un edificio acorde a lo exigido hay que reflexionar mucho. En este caso, casi transformándome en un estudiante de los que desarrollaría su actividad en el propio edificio imaginado. Primero, porque la motivación no la vas a encontrar delante del ordenador, sino investigando las relaciones que se pueden dar, el lugar que va a acoger tu diseño, su programa específico, etc. Y para eso hace falta que las ideas principales que se tuvieron en el aula de Master, cuando nos repartieron el ejercicio, evolucionen y se puedan plasmar en la propia arquitectura representada. Desde mi opinión de arquitecto aprendiz, hay que aprender en la Escuela algo que no se enseña, que es calcular y analizar, sin ser consciente, procesos humanos en el día a día, en tus momentos de ocio, para lograr después diseñar espacios luminosos, confortables y vivideros. Para mí, la verdadera forma de disfrutar de esta profesión tan bonita no es ninguna otra que ser consciente del objetivo de tu trabajo, socializar la arquitectura y empatizar con el habitante de tus espacios imaginados
En un mundo tan cambiante y vertiginoso como el de hoy, hay muy pocas cosas absolutas e inamovibles que caigan con todo su peso y resistan a vientos y mareas de cualquier índole. Una de ellas es sin duda el trámite que hace que el arquitecto pase a la edad adulta: el Proyecto Fin de Carrera. Puede parecernos que llega como la prolongación natural de las entregas de la carrera, que es un pacto asumido desde el primer día en la Escuela o que viste un traje de otra época para una profesión que corre como puede detrás del tiempo. Pero todavía hoy supone un momento crucial para enfrentarse a miedos y desarrollar virtudes.
GONZALO BASULTO, ARQUITECTO
C ada uno de nosotros ha engendrado su historia particular con este singular compañero tratando la pasión, el amor, el odio y los desencuentros de la mejor forma posible. Para mí fue el momento de unir en uno solo ejercicio muchas preguntas y algunas respuestas.
E l proyecto sobre el que trata este artículo fue el planteado para el
curso 2016 y consistió en la ampliación del Museo Nacional de Escultura de Valladolid como museo de la Semana Santa. La notoriedad del trabajo no residió solo en la elección de un espacio único en forma, historia y complejidad dentro de la ciudad sino que además inauguró un nuevo plan docente como primer enunciado del vigente Máster en Arquitectura.
Si algo se aprende en la Escuela, y en los ocultos deseos personales de hacer concursos, es que todo comienza por entender bien un problema. El correcto análisis de los déficits de hoy nos puede dar muchas pistas sobre las soluciones que como arquitectos planteemos para mañana. Esto puede parecer difícil cuando al final todo se reduce a responder a un enunciado universal que desciende a la tierra en forma de Guía Docente, pero aplicando el conocido teorema de Alejandro de la Sota de dar liebre por gato, siempre hay que mirar más allá de lo obvio.
Es realmente difícil trabajar sobre un lugar donde el contexto está tan presente. La Calle Cadenas de San Gregorio es el lugar histórico y artístico de referencia en la ciudad y uno de los más interesantes de la región. La sucesión de monumentos desde el Palacio de Pimentel hasta el Palacio del Sol establece un continuo en el que leer el ADN de Valladolid. Y por si eso fuese poco, la Semana Santa es una de las manifestaciones sociales y culturales de mayor identidad para la ciudad. Es por ello que la propuesta planteada al tribunal Fin de Carrera indagó en el Museo como institución y en su necesidad de externalizarse, de relacionarse con la ciudad y de que una de las colecciones de mayor calidad de Europa en su categoría adquiera el protagonismo que merece.
Todas las intenciones del proyecto responden a una idea: concebir el museo como un almacén visitable y versátil con múltiples lecturas. Un espacio capaz de acoger a todos, desde el turista curioso hasta el investigador especializado. Un lugar dispuesto a transformarse periódicamente y relacionarse con la ciudad
Siempre hay algo atractivo en las propuestas arquitectónicas radicales. Son fáciles de entender, su-
ponen una respuesta única ante la vida y están visualmente conectadas con esas vanguardias que soñaban un mundo de esferas, conos y cubos. Resolver múltiples problemas a través de un único gesto ha sido una forma sintética de hacer arquitectura constantemente. Se minimizan los recursos y es la mejor demostración de que un problema se ha interiorizado tanto que se expresa en su modo más abstracto y sencillo, que no simple.
En este caso el gesto ya estaba trazado desde hacía muchos siglos. La extravagante fachada quebrada del Palacio del Sol es la huella de la antigua calle que colmataba el Colegio de San Gregorio y separaba sus huertas. Hoy es un espacio urbano sin explicar que parece más un toque de modernidad que una necesidad urbanística.
Aprovechando que el Pisuerga pasa por Valladolid y que la Semana Santa tiene su razón de ser en la idea de recorrido al exterior, el proyecto se plantea como una gran calle cubierta que ocupa el espacio de la antigua y que cose todos los elementos que componen hoy esta parte de la ciudad
Atendiendo a la dirección y orientación como principales elementos compositivos del proyecto, se definen dos grandes muros de hormigón que delimitan el espacio de la calle y que dialogan con la multitud de medianeras y paramentos históricos de los palacios y conventos de la zona. Los testeros transversales que cierran la calle son traslúcidos, para iluminar el interior y focalizar la mirada. Uno de ellos, en concreto el que vigila la ciudad, se encuentra a medio camino entre un retablo contemporáneo y un tablón de marketing en el que anunciar exposiciones. En último término es una gran puerta que, abierta, da continuidad al espacio público permitiendo que las procesiones, y las piezas de imaginería, se encuentren en su lugar natural.
El sueño de la razón produce monstruos y la virtud de un proyecto es que todas las decisiones sigan una misma idea. La definición de la calle y la geometría tomada en el proyecto requerían de una solución para el problema funcional: albergar un museo con espacios de exposición, almacenaje, consulta y administración. Por ello la primera decisión fue dejar lo más libre posible el espacio que ocupaba la antigua calle convirtiéndola en una
nueva, cubierta. Esto desembocó en una solución creativa: crear un edificio interior de tres alturas donde albergar una serie de cajas con diferentes partes del programa. A modo de cofres, estos cubos perfectos son transportados por un puente grúa que se mueve a través de la nueva calle como una pieza industrial ajena e inquietante. Las cajas seleccionadas para exponerse son depositadas en la calle y en ese momento se despliegan generando nuevos espacios sorprendentes y versátiles que organizan cada exposición. Dada la diversidad del programa se adoptan tres tipologías diferentes para cubrir todas las necesidades de tamaños e iluminaciones: cajas cofre, para las piezas pequeñas; cajas imaginería, para las tallas de madera policromada; y cajas sentidos, para escuchar, oler y sentir la Semana Santa.
Por otro lado, estas piezas están diseñadas para visitarse también cuando están almacenadas. A través de unas pasarelas ocultas a la calle, los investigadores y aquellos estudiosos especializados pueden acceder a cada caja y consultar elementos concretos. En la cúspide del edificio almacén y volcado sobre la calle interior encontramos un espacio de biblioteca calmado y sereno bajo los lucernarios que filtran la luz del exterior.
La solución estructural y técnica dada a todo el conjunto es también sencilla y sigue los pasos de la idea que desde un inicio fue el faro para orientar todo el trabajo. Todo el conjunto se soporta por los dos grandes muros de hormigón que flanquean la calle. Las caras más pequeñas del volumen adquieren más transparencia y se difuminan con el espacio público. El retablo moderno a través del cual el edificio se relaciona con la ciudad se compone de
paneles traslúcidos y elementos retro iluminados. Los cofres son piezas móviles, ligeras y resistentes proyectadas como un juego de mecano metálico.
De esta forma la idea de calle está presente durante todo el proceso, haciendo que hasta el último detalle se piense en este sentido y unificando todas sus partes para que funcionen como un todo. La calle es el museo y el museo es la calle, de principio a fin
EPILOGO. ¿QUIÉN?
Si hay una singularidad en el Proyecto Fin de Carrera es que se desarrolla bajo la supervisión de un tutor. Alguien que guía el proyecto, que inspira las soluciones, que descubre caminos sorprendentes y que aporta todo el conocimiento de su experiencia en el mundo real. El mío me enseñó por su propia experiencia personal que es una elección importante, pero en mi caso ya lo tenía decidido diez años antes de matricularme. José Antonio Lozano, profesor de proyectos de la Escuela de Arquitectura de Valladolid, fue la persona que hizo posible la idea de crear una calle. Con él la docencia adquiere su sentido más amplio y profundo. La búsqueda incesante de una mejor solución para cada problema no se detuvo nunca en un aprendizaje continuo que dura hasta hoy.
Ésa fue sin duda la lección más importante en todo este proceso, la que hace que cada día me dedique profesionalmente a aplicar lo que aprendí en esos meses. La que da importancia al rigor, a la coherencia y a los conocimientos técnicos pero también a la diversión, al sentido del humor y a la creatividad con mayúsculas
*Imágenes del artículo.
01. Imagen exterior del proyecto. Una museo – calle abierto a la ciudad. 02. Idea. Croquis de un museo que es una calle. 03. Axonometría. Funcionamiento del edificio y todas sus partes relacionadas con la ciudad. 04. Cajas expositivas. De izquierda a derecha: cajas imaginería, cajas cofre y cajas sentidos. 05. Sección transversal del proyecto. Las cajas expositivas salen a través del puente grúa y son depositadas en la calle. 06. Planta baja del proyecto. El museo adquiere formas sorprendentes con las cajas expositivas desplegadas. 07. Sección longitudinal. El gran edificio interior que alberga la colección al fondo y los lucernarios heterogéneos que filtran la luz del exterior. 08. Imagen interior del espacio expositivo.
El concepto y el sistema son los procesos que nos ayudan a proyectar y conseguir la armonía de los espacios. El análisis y la implantación en su entorno. Un recorrido proyectual que va materializándose poco a poco gracias al respeto por la idea generadora.
El proyecto pretende repensar la relación Renault-Valladolid, para fomentar e impulsar el desarrollo económico y social de la ciudad, acercándose a la población a través de un centro de promoción y desarrollo del automóvil. Un espacio donde mostrar al público tanto modelos antiguos de la firma (actualmente almacenados en la nave Alpine), como modelos actuales y prototipos que mostrarán el futuro hacia el que se dirige Renault.
El lugar de actuación se sitúa en un corredor viario, muy cerca de sus plantas de montaje, en una parcela de 140.000m2 que cuenta con los restos industriales de una fábrica ya desmantelada.
Se persigue la generación de un espacio singular y representativo de la cultura
del automóvil en Valladolid, que comprenda y se relacione con su entorno, paisaje urbano y espacio público.
Un lugar con historia cuya visita no permite obviar su pasado, inspirando a la hora de la concepción del proyecto. Restos de edificaciones, texturas de hormigón desgastadas por el paso del tiempo, pozos inundados, raíles olvidados. Una torre depósito que se erige en el eje de la parcela creando una gran avenida en el desierto de hormigón. Una percepción del eje que domina el resto casi arqueológico de la antigua factoría, desbalijada y saneada debido a la contaminación del amianto.
Una parcela que una vez descontaminada, presenta un reto a la vez que un espacio de juego para la arquitectura, cuyos condicionantes son al final pistas para la resolución del proyecto.
El movimiento del automóvil, las estelas de luz que la velocidad genera, esa sensación difusa que nos proporciona el movimiento lineal.
Cómo exponer un elemento tan dinámico de una manera estática a través de la sensación espacial adecuada, una sensación que por qué no intentar asemejar a la velocidad, al carácter difuso del movimiento
Un espacio diluido a través de su materialización que también nos haga presentes el carácter pulido y perfecto de la modernidad del automóvil. Un espacio limpio, cuya neutralidad focalice la atención del visitante en el elemento expuesto.
En primer lugar, el análisis de la parcela aporta claves de qué hacer y dónde. Al norte limitaba con el futuro barrio residencial y al sur con el pinar del Jalón, separado por la avenida Zamora. Al este se encontraban unas naves industriales,
mientras que al oeste discurría en paralelo la avenida Madrid, una de las vías de acceso a la ciudad. De su lectura, el eje norte sur, era el que tenía las visuales libres de las que poder disfrutar, la transición entre ciudad y pinar.
El estudio de las preexistencias se basó en su posible reincorporación en la intervención como elemento potenciador, ya que eran ruinas de una factoría sin mayor interés que el que nosotros mismos decidiéramos. Pero lo importante era que no se partía de un lienzo en blanco.
En el centro de la parcela se encontraba una gran explanada donde antes se almacenaban las mercancías, vacía de estos elementos. Era el lugar idóneo para el tipo de intervención que se quería plantear. Un lugar al que poder generar dos accesos cruzados que se intersecaran en el corazón del edificio. Uno que conectara el nuevo barrio a través de la parcela y que discurriera por encima de la Avenida Zamora hasta llegar al pinar, y otro para conectar
por ambos extremos con la Avenida Madrid y la calle colindante.
E l proyecto partía de la premisa de diluir el límite de la parcela, creando en los restos de la antigua fábrica una transición entre la ciudad y la naturaleza existente al sur, el pinar del Jalón, de uso público. De esta forma se trata de acercar al potencial visitante, que tal vez acuda únicamente al lugar a disfrutar de sus zonas recreativas, y que finalmente acabe siendo atraído a acceder al nuevo edificio.
U na propuesta que trata de integrar paisajísticamente las actuales preexistencias, creando en ellas focos de diversas actividades programáticas de carácter complementario a la del Centro. Un emplazamiento central del proyecto, potenciando el eje creado por la torre, que se aprovecha como hito vertical visible desde los viales colindantes.
Con todo ello surge el sistema de muros que marcan la direccionalidad combinados con plataformas a distintas alturas en los que se desarrolla el programa. Las líneas del movimiento del coche como elementos divisorios para conseguir esa direccionalidad visual entre lo urbano y lo natural.
estos
El espacio fragmentado permite exponer grupos reducidos de vehículos para mantener activo el factor sorpresa y la intriga del visitante. Un sistema que se tensiona al implantarse en la parcela, abriéndose hacia el pinar, generando un alzado más
construido hacia el límite urbano, y cuyos muros van descendiendo hacia el pinar fundiéndose con el suelo. El esquema general se complementa con bandas auxiliares para albergar espacios suplementarios, así como recorridos accesibles que permiten también el movimiento de los vehículos desde su lugar de exposición hasta el circuito de pruebas.
Un edificio que se perfora, introduciendo patios ajardinados diluyendo aún más el elemento construido.
Existen múltiples maneras de aproximarse al edificio, aunque todas ellas conducen al eje subterráneo donde aparecen distintos espacios, aun sin llegar al control de acceso, que nos permiten disfrutar de determinadas perspectivas para atraernos, entre las que destacan el mirador suspendido sobre el circuito de pruebas y la apertura hacia los talleres para poder observar los trabajos de los mecánicos.
Una vez llegamos a la recepción, nos adentramos en el desarrollo propio de la exposición donde el espacio queda caracterizado por el recorrido principal, continuo, que tiene un punto inicial y final coincidentes, en el vestíbulo principal. Una línea que se cierra sobre sí misma
Una consecución espacial de dilataciones, contracciones, juegos de profundidad y de alturas, que permiten crear un recorrido dinámico. Este recorrido continuo a su vez permite el movimiento de todos los vehículos desde su punto
de exposición hasta la plataforma elevadora que conecta con el taller, donde el edificio enlaza con la pista de pruebas. Los vehículos se exhiben en modelos agrupados por cronologías y tipologías, mezclándose con elementos audiovisuales. Un camino en el que la iluminación adquiere un gran valor añadido como elemento que nos orienta mediante líneas de luz que fluyen por los espacios definiendo este recorrido principal.
Una propuesta que pretende, en definitiva, ser percibida a través del movimiento, del cambio de sensaciones y del intercambio de visuales cruzadas. Un lugar de encuentro donde poder disfrutar tanto de sus espacios exteriores como de sus interiores, ya sea en espacios como la cafetería-restaurante o el anfiteatro, que pueden ser usados de manera independiente, o la exposición propia del Centro
En conclusión, un espacio que adquiere dinamismo gracias a la percepción del visitante durante el recorrido
*Imágenes del artículo.
1. Alzado principal hacia el frente urbano. 2. El edificio se difumina para integrarse con el pinar. 3. Corredor de acceso que conecta el pinar con la ciudad. 4. Vestíbulo, corazón del edificio, sobre el que se adentra la cafetería. 5. Los patios ajardinados introducen la naturaleza en el edificio. 6. Axonometría seccionada por las bandas principales. 7. Planta principal del edificio. 8. Evolución espacial reflejada en tres secciones.
ANA MUÑOZ LÓPEZ, ARQUITECTO; TUTOR: JESÚS DE LOS OJOS MORAL.
En una parcela salvaje situada en la zona Noroeste de la ciudad de Valladolid, delimitada por los puentes de la Condesa Eylo y el de Santa Teresa, así como en río Pisuerga y un polígono industrial emerge de la tierra un volumen de textura negruzca terrosa.
A pesar de estar en un lugar con un carácter natural el entorno destaca por la diversidad de construcciones: residenciales de varios pisos de altura, casas molineras, naves industriales…
En el interior la topografía mantiene una cota uniforme en la zona superior y va descendiendo a medida que nos aproximamos al río. La pendiente varía siendo menos escarpada hacia el sur, donde el terreno forma una playa y más pronunciada a medida que nos desplazamos hacia el norte.
Por estos condicionantes el Centro de Restauración de Bienes Muebles -CRBM- brota en la zona superior del solar, de la que sobresale como un volumen tallado. Además, mantiene una doble relación tanto con el entorno urbano como con el natural adoptando un lenguaje lineal,
doméstico y con cubierta a un agua en la zona próxima a la calzada y un aspecto escultórico y orgánico en el lado salvaje de la parcela.
El volumen se separa de la calzada a una distancia prudencial para dar a los transeúntes un espacio amplio por el cual discurrir.
En esta zona en contacto con un ambiente urbano el CRBM mantiene un lenguaje con una sección a un agua evocando el carácter doméstico de las construcciones que anteriormente ocupaban el lugar
Contrariamente, en la zona más próxima al río la edificación brota con formas de carácter orgánico, subiendo en altura y con unas cubiertas con forma de pirámide truncada
Un cuerpo terroso emerge en el noroeste de la ciudad albergando un Centro de Restauración de Bienes Muebles
Estos volúmenes poligonales se separan los unos de los otros generando unos patios que permiten la penetración de la vegetación en el entorno próximo.
La parte próxima a la vía tiene un aspecto lineal cuya rectitud se ve quebrada por una serie de retranqueos, siendo el más drástico una perforación que divide el edificio parcialmente en dos partes. Esta división conduce a los visitantes hacia el río de dos formas diferentes una en la cota suelo, llegando hasta la playa, y otra elevada en forma de pasarela de hormigón. Además, una serie de caminos de tierra apisonada atraviesan la parcela y llegando hasta el anfiteatro el cual enmarca las vistas al río Pisuerga formado por unos asientos en hormigón.
en sentido transversal en la parte pública donde la zona doméstica se encuentra en una cota superior que la orgánica, mientras que en la parte privada el descenso es en sentido longitudinal
En ambos lados – tanto en el de carácter público como en el privado-, las actividades principales tienen lugar en los volúmenes tallados con formas piramidales, mientras que las complementarias se alojan en la parte doméstica del proyecto.
redes y techo, siendo en cada una dispuesto de una manera, y la parte orgánica utiliza un mortero de arcilla con textura rugosa en paredes y techo, pero manteniendo el mismo pavimento. En la zona del edificio en la que se realizan los trabajos de restauración se aplican algunas variaciones en la materialidad con el objetivo de adaptarse a las exigencias de los espacios: por ejemplo, el suelo es acabado en hormigón y las paredes de los talleres contienen armarios, algunos de ellos extraíbles para almacenar y trabajar con los objetos a restaurar.
En este punto de fragmentación se encuentran las entradas principales tanto a la parte pública como a la privada del edificio. Estas no quedan totalmente desligadas ya que el conjunto mantiene su unión por medio de una conexión elevada la enlaza los dos usos diferenciados. Por un lado, en la parte pública, encontramos la zona divulgativa del Centro de Restauración, en la que se encuentra un aula, una sala polivalente y una amplia zona de exposiciones en la que poder contemplar las labores realizadas en el edificio. Por el otro, el volumen privado reúne las diferentes actividades relacionadas con la restauración, así como con la gestión de esta.
Las relaciones entre el interior y el exterior son estudiadas y adecuadas tanto al tamaño como al uso de los ámbitos que relacionan, los retranqueos en fachada se aprovechan para realizar aberturas y aproximar los dos mundos- el natural y el urbano-, los vanos de los patios entre las piezas piramidales sirven para relacionar las zonas de trabajo y la naturaleza con un aire de carácter doméstico, la pasarela elevada se abre en la parte superior para mirar al río y lo hace a través de una celosía. Las salas de mayor envergadura se iluminan cenitalmente dejando resbalar la luz por las paredes de la pirámide, aportando una luz difusa y controlada por medio de un sistema domotizado y con capacidad de ser potenciada por medio de unas luces led.
I nteriormente, se emplean distintos recursos materiales para la división de los espacios según su carácter. Una línea led en la parte superior del muro técnico separa la parte doméstica de la orgánica. La diferenciación de estas dos escalas también se hace contemplando la materialidad de los espacios: la parte doméstica emplea madera de fresno en carpinterías, suelo, pa -
Todos los materiales empleados, así como la intervención en sí tienen el ánimo de unir ambos mundos – el urbano y el natural- creando un espacio amable tanto para los visitantes, trabajadores como para los transeúntes. Se respeta la escala del barrio y se utilizan materiales que evocan el mundo natural como el hormigón oscuro desactivado el cual evoca a la tierra o la madera de fresno, árbol que también se encuentra en la ribera y el cual crea espacios de gran calidez. Además, las intervenciones exteriores se realizan de una manera no intrusiva con el medio natural considerando la zona de la ribera y sus especies, replantando con vegetación propia del lugar cuando fuera necesario
El Proyecto Fin de Carrera fue una experiencia intensa y exigente en la cual desarrollé el proyecto que nos había encomendado el tribunal de la escuela con ayuda de mi tutor, Jesús de los Ojos.
Fue una oportunidad única para crear un proyecto de principio a fin llegando a un desarrollo detallado al cual nunca antes había llegado en la carrera. Esto implicó poner en
Este material, el hormigón desactivado será el material predominante en el proyecto configurando el volumen principal, las pequeñas intervenciones paisajísticas y la pasarela del mismo material que divide la edificación en dos partes
El cuerpo se adapta a la topografía, descendiendo
práctica los conocimientos adquiridos en la escuela en un mismo ejercicio, enfrentándome a diferentes situaciones y problemáticas en el desarrollo del proyecto.
En mi caso, comencé el proyecto en febrero, nada más acabar la primera parte del Máster en Arquitectura. Al ser tan próximo a la conclusión de dicha parte y tener el mismo emplazamiento el mismo lugar que en la parte anterior encontré difícil despojarme de las ideas y soluciones interiorizadas para resolver el proyecto anterior.
Esta misma dificultad fue la que me llevó a tener que parar y retroceder en el desarrollo del proyecto al poco de haber comenzado, lo cual me hizo reflexionar sobre cuáles eran las decisiones erróneas que estaba tomando influenciadas por el proyecto realizado en la primera parte del master de manera grupal. Por esto, decidí volver a realizar un análisis del entorno y así llegar a identificar cuáles eran estas decisiones.
Por medio de un análisis más exhaustivo, tomar una mayor consciencia de las problemáticas que suceden en el entorno y, de esta manera, dar soluciones acordes a ellas con unas premisas muy claras para mi propuesta: que relacionase el mundo urbano con el natural, con una escala amable y acorde a ambos lugares, colonizando la parcela dentro de lo necesario para poder respetar la atmósfera del lugar y ofrecer a la ciudad un lugar agradable en el cual poder relacionarse con el río
*Imágenes del artículo.
DIEGO SIERRA LÓPEZ, ARQUITECTO
E l proyecto que se plantea pretende continuar la línea de trabajo de una serie de convocatorias del PFC de la ETSA de Valladolid con propuestas arquitectónicas al servicio de necesidades reales que permitan contribuir a fomentar e impulsar el desarrollo económico y social de la región.
E n esta ocasión el trabajo se centra en el sector del vino en la provincia de Valladolid y en el enoturismo como una consecuencia directa de la actividad productiva que suponen las grandes extensiones de campos dedicados al cultivo de la vid. Es concretamente en la Ribera del Duero, en el Valle del Cuco (Bocos de Duero), donde se plantea la ubicación de este proyecto. Se trata de desarrollar la propuesta del primer cuatrimestre del máster, una bodega, incorporándole un área destinada a actividades de descanso, relajación y gastronomía; esto es, un hotel con spa y un restaurante.
E n este caso, era de vital importancia garantizar la coexistencia con el edificio preexistente desde un punto de vista estético y funcional. Además, por el valor natural del entorno había que lograr la adecuada integración de la nueva arquitectura en el paisaje, controlando su impacto visual y ambiental. Por último, hacer uso de la arquitectura para generar una imagen de marca acorde y que ayude a potenciar la industria que representa.
La cultura del vino ha moldeado el paisaje de la región y los hábitos de su gente desde tiempos remotos. Ahora, se crea un espacio de culto, un templo consagrado a la veneración del vino
“Dichoso aquél que lejos de los negocios, como la antigua raza de los hombres, dedica su tiempo a trabajar los campos paternos con sus propios bueyes, libre de toda deuda, y no se despierta, como el soldado, al oír la sanguinaria trompeta de guerra, ni se asusta ante las iras del mar, manteniéndose lejos del foro y de los umbrales soberbios de los ciudadanos poderosos”.
En base a este concepto se tomarán las decisiones del proyecto en todos sus niveles, desde su implantación hasta el detalle constructivo.
En este caso se toma el concepto de templo clásico, se concibe el proyecto como un espacio de culto al vino y las actividades que giran en trono a él.
La figura del templo, en relación a los lugares en que se implanta, se convierte en la referencia del lugar. Se trata de construcciones que parecen haber estado siempre ahí y que nunca vayan a dejar de estar
Es, además, un concepto que hace frente a las recientes construcciones representativas del sector: edificios-cartel que solo ofrecen una imagen controvertida y llamativa que sirva para publicitar la marca.
En contraposición a estas arquitecturas sin fondo, se busca establecer contacto con un pasado en que se exaltaban los valores de la vida en el campo, el vino era venerado y su producción tenía carácter de liturgia divina
Horacio, Epodos, 2, 1
Nace así la vocación de recrear un escenario de calma y disfrute donde tengan lugar las escenas descritas por los poetas clásicos y hacer del visitante aquel “dichoso” al que se refiere Horacio en sus versos.
La nueva intervención debía establecer una relación armónica con la bodega existente. Se componía de dos elementos. El primero, un zócalo de hormigón semienterrado, un elemento escultórico abstracto a modo de mirador ocupado por el programa industrial de producción del vino. El segundo, una estructura metálica apoyada sobre la base
de hormigón que se correspondía con el programa representativo y de administración.
Se opta por continuar visual y funcionalmente la base de la bodega, conservando el carácter de mirador como mecanismo de relación con el paisaje. Al igual que la bodega, la nueva intervención se sitúa en la parte más alta del valle. Se minimiza así la ocupación de terreno cultivable y se aprovecha, fiel a su carácter de templo clásico (recordemos que acrópolis significa, literalmente, ciudad alta), una posición privilegiada y representativa sobre el pueblo.
La geometría de la nueva base se adapta a la curvatura natural del terreno manteniéndose a la misma cota de la bodega y logrando además una forma más expresiva y de menor impacto visual.
La compatibilidad funcional entre el proyecto existente y el nuevo debía ser total. Los flujos de abastecimiento de la bodega y los recorridos de acceso al centro de enoturismo son independientes, permitiendo así la coexistencia de ambos aun funcionando al máximo de su capacidad.
Un recurso que facilita la concepción y el desarrollo de un proyecto arquitectónico es adoptar un concepto integrador que sirva de guía a lo largo del proceso de diseño
La nueva intervención consiste en un zócalo de piedra masivo, que esconde parte del programa y hace las veces de mirador, sobre el que se asienta la arquitectura evidente: dos templetes que a modo de belvedere contemplan la belleza del entorno.
El visitante llegará al complejo serpenteando entre los cultivos de vid hasta toparse con el imponente acceso, abierto en el podio a modo de arco de entrada. Por su situación alejada del pueblo y la naturaleza del programa, se entiende que el acceso al centro será principalmente en vehículo privado, resulta entonces de vital importancia el aparcamiento, que queda oculto tras los muros del zócalo en un nivel inferior, separandose así de los recorridos a pie del nivel superior.
Una vez sobre el podio, el visitante puede vagar libremente y de forma despreocupada disfrutando del paisaje. Un sistema de pérgolas describe unos recorridos que lo guían hacia los accesos al centro de enoturismo. Dos cons -
trucciones de carácter transparente y liviano, como si de ruinas habitadas se tratase. Éstas se corresponden con el programa más público: el punto de exhibición y venta y acceso al spa la más pequeña; y con el restaurante y el acceso al hotel la de mayor tamaño.
A través de estos templetes se accede al interior de podio, donde la atmósfera es totalmente distinta. La arquitectura es pesada y masiva, como si el espacio se hubiera conseguido excavando el interior de una roca. Dentro del zócalo se encuentra el programa más privado: el spa y el hotel, donde se favorecen la intimidad y el recogimiento; a través de una relación con el entorno más comedida.
El zócalo debía asemejarse a la base de roca tallada sobre la que se apoyan los templos clásicos. Se opta por una solución de hormigón ciclópeo. La ejecución de estos muros es artesanal, colocándose piezas de piedra con alambre a una de las caras del encofrado. Tras desencofrar, se abujarda parte de la superficie para que algunas de estas piedras queden a la vista. Se consige así una superficie rica en acabados y con distintas rugosidades, como si de un corte en el terreno se tratase.
La coronación de este podio, en cambio, se resuelve con una fachada ventilada de piezas de piedra natural. Logrando así el aspecto de lo que hubiera sido un templo clásico de sillares de mármol, pero aplicando los avances técnicos de la construcción actual.
La estructura del edificio es un sistema combinado de muros y pilares de hormigón armado. Las pérgolas a lo largo del zócalo son de estructura metálica tubular y sirven para marcar los recorridos exteriores y regular el soleamiento de la superficie del podio.
Agradezco esta oportunidad para mirar atrás y reflexionar sobre lo que supuso entonces y supone ahora para mí el Proyecto Fin de Carrera.
Durante los estudios, el PFC es el reto más ambicioso que se nos plantea a los alumnos, llevando a la práctica de manera transversal los conocimientos adquiridos a lo largo de la carrera. En muchos casos nos sentimos poco preparados, y el volumen de trabajo y de exigencia parecen desproporcionados; pero el esfuerzo vale la pena.
Va camino de los tres años desde que acabé los estudios en Valladolid y, tras una breve experiencia en Lisboa en forma de prácticas, trabajo en una oficina de arquitectura en la ciudad de Berlín. El PFC va a ser la mejor carta de presentación que uno va a tener a la hora de entran en el mundo laboral. Y es con las capacidades desarrolladas a lo largo del proyecto, con las que se hace frente a la cuestiones que se planteen en el ejercio de la profesión.
Y pienso que, se aplique a la arquitectura o a otras disciplinas, ésta es una competencia de enorme utilidad
Fundamentalmente, lo que supone el Proyecto Fin de Carrera es el desarrollo de una idea, siguiendo un discruso coherente de lo general a lo concreto hasta su consecución
Sección permanente de nuestra revista que acoge vuestras ideas sobre intervenciones urbanas en Valladolid. ¿Qué queréis que Valladolid sea? ¿Qué cambiaríais en la ciudad? En esta sección os concedemos una varita mágica que posibilite cualquier propuesta. Vuestros objetivos pueden ser ecológicos, representativos, funcionales, constructivos o demoledores; realistas, utópicos o directamente imposibles. Sólo os pedimos que nos encantéis con vuestra idea y vuestra presentación. Es un concurso sin bases ni condicionantes económicos, y con el único premio de sacar a la luz una idea inspiradora que puede ser brutal o poética.
¡Animaos a participar!. Füller, Archigram, Tatlin, Boullée, Superestudio…, nosotros mismos. Valladolid es nuestro terreno y tenemos cosas que proponer o que imaginar. Coged el lápiz y dejadlo vagar un poco. Ahora zambullíos en esta nueva propuesta:
En este último volumen dedicado a la infancia, queremos compartir este collage que a modo de palimpsesto recoge gráficamente algunos de los anhelos, preocupaciones, deseos y testimonios que nos ha ido dejando a lo largo del tiempo la mirada hacia el mundo de la infancia y su relación con el espacio construido. Querríamos formular esta visión como una reivindicación del espacio urbano que acoge a los niños y las niñas y seguramente está impregnada de todo lo aprendido con el proyecto arquitectura minúscula, que venimos desarrollando desde hace años de manera intermitente y también de nuestra propia experiencia vital, familiar.
De nuevo, los elementos se entrelazan mediante estrategias mínimas, no monumentales, a través de la puesta en valor del entorno construido, desde las plazas y calles que reciben a las niñas y niños, hasta los edificios que les sirven de telón de fondo, de portería, de escondite; también necesitamos los elementos naturales, la ribera del río, árboles, parques, aves, … que deberían estar siempre presentes en cualquier espacio para favorecer una amalgama de acciones diversas, cotidianas, que se superponen unas a otras sin fin y de manera imprevisible.
E sta visión de superposiciones espaciales sencillas, sin diseño,
sin adornos, que niega la estandarización del espacio para la infancia, no deja de ser utópica en la mayor parte de nuestras ciudades. Nuestra sociedad en ocasiones parece haber olvidado que las niñas, los niños y los jóvenes son ciudadanos de pleno derecho y que, por tanto, tienen derecho al juego, a la participación, al espacio seguro, a la naturaleza, a la independencia, o a encontrarse en su propia cultura; nada nuevo por otro lado si recordamos que todo ello ya queda recogido desde finales de los años ochenta en la Convención Internacional sobre los Derechos del Niño (Naciones Unidas 1989)
Para finalizar esta reflexión nos viene a la cabeza un pensamiento de Manuel Delgado, a propósito del libro The Child in the City de Colin Ward. Nos habla de la cultura de la infancia como una cultura paralela, casi contestataria:
“Un universo de iniciativas consistentes en una exploración sistemática de una geografía hecha de rincones y escondrijos, que reimaginaban de manera singular el espacio urbano y encontraban en él el escenario para un cúmulo de nuevas experiencias. Esta vida de pandilla ocupaba solo una faceta de la cotidianidad de sus miembros, y cobraba vida en los intersticios del tiempo ocupado por otras instituciones recono-
cidas como la escuela, la familia, la iglesia e incluso el trabajo, resquicios a la vez topográficos y sociales de y en el espacio urbano que, como una suerte de inframundo, aparecía en las fisuras del orden social de los adultos”
Recordemos entonces aquella vida de pandilla, y con la sonrisa dibujada, pensemos ahora en los niños y niñas de hoy
Cita: Delgado, M. (2020). Colin Ward y los últimos salvajes. En http://manueldelgadoruiz.blogspot.com/2020/07/colin-ward-y-los-ultimos-salvajes.html
En esta sección de entrevistas; gracias al magnífico trabajo del grupo ArquitecturaVA.es formado por los arquitectos Rubén Hernández, Pablo Guillén, Pedro Iván Ramos, José Santos y Kike García; conocemos en cada nuevo número quién está detrás de la destacada arquitectura moderna de Valladolid. ¿Cómo trabajan? ¿Qué piensan de la situación actual? ¿Qué opinan de Valladolid?, etc. Esperamos que la disfrutéis tanto como a nosotros.
Llegamos al nuevo estudio de Jesús un día cualquiera del improbable verano de 2020. Nos ve desde el ventanal de una especie de entreplanta en un edificio con más de medio siglo de vida y nos recibe. Viste pantalón y polo negros que combina con gafas y mascarilla a juego en el mismo no color. Seguimos el extraño protocolo actual: saludo con el codo, gel hidroalcohólico y caras tapadas. Abre las ventanas y nos sentamos en torno a una gran mesa de reuniones. Distanciados los unos de los otros. Se van las mascarillas y por fin podemos vernos como las personas que un día fuimos. Nos ofrece una cerveza, la suya sin alcohol, las nuestras con.
Tras los primeros sorbos nos cuenta la historia de este nuevo estudio en el que, una vez más, se ha reinventado. Hablamos de los paneles japoneses hechos con cortinas alicantinas, de listones de pino, carpinterías metálicas de los años 50 y de la preciosa luz que entra desde el garaje que da acceso al estudio en esos últimos minutos de la tarde.
Jesús mantiene la vitalidad de siempre con su característico sentido del humor agudo y acerado. Un tono calmado y reflexivo será el hilo durante toda la entrevista. El continuo movimiento en sus manos denota la expresividad de alguien que está acostumbrado a contar y a explicar la arquitectura. Y la vida.
ENTREVISTA REALIZADA POR ARQUITECTURAVA.ES
ARQUITECTURAVA.ES ESTÁ FORMADA POR LOS ARQUITECTOS RUBÉN HERNÁNDEZ, PABLO GUILLÉN, PEDRO IVÁN RAMOS, JOSÉ SANTOS Y KIKE GARCÍA
¿Quién es Jesús de los Ojos? Defínete, diferénciate Alguien que está siempre buscando, que tiene pocas ganas de pararse, que investiga, que inventa, que siempre está buscando nuevas opciones, tanto en el mundo de la arquitectura como en el de la docencia y en el personal.
Eres el primer entrevistado en época post-pandemia apocalíptica, ¿Cómo has pasado el encierro? Yo creo que en cuarentena todos hemos pasado por diferentes ciclos. Ha habido rachas malas y otras mejores. En un determinado momento decidí retomar los horarios de la época de estudiante, cuando me acostaba a las cinco de la mañana, porque estaba más tranquilo y trabajaba mejor por la noche que durante el día. Para mí el peor momento fue cuando pudieron volver a abrirse las obras, porque no sabías en qué condiciones, si podías ir o no podías ir. Me generó bastante ansiedad. Pero en general bien, leyendo, dibujando, pintando, retomando cosas que no había hecho desde hacía un montón de tiempo.
¿Qué estilo tienes? Por lo que se te reconoce. Yo no creo que pueda hablar de un estilo sino de algo que se va desarrollando en función de tu personalidad y tus gustos a lo largo del tiempo. Si echo la vista atrás y veo mi primera obra lecorbusieriana,
tan blanca, tan ortogonal, con dobles alturas a lo Adolf Loos, con esa contundencia volumétrica, y la comparo con lo que estamos haciendo ahora que casi son obras ingrávidas de carpintería, sí que ha habido una evolución, pero no diría que eso pueda corresponderse con un estilo. Está en la personalidad propia de nuestro estudio aprovechar el momento para hacer cosas nuevas, ligadas en muchos casos a temas paralelos vinculados a ámbitos sociales y culturales. Habitualmente trabajamos con presupuestos muy ajustados, hasta el punto de que muchas veces tenemos que retorcer las ideas para poder construirlas, indagando en cuestiones como la autoconstrucción, el diseño de mínimos, la reutilización, etc. Por eso no creo que a todo este conglomerado de intereses se le pueda denominar estilo, sino más bien compromiso con la realidad que nos toca vivir en cada momento.
¿Qué te inspira a la hora de proyectar? ¿algo fuera de la arquitectura? ¿En estos meses has reflexionado de manera distinta sobre ello?
A mí me gusta mucho mirar, y no solo arquitectura. Mirar pensando; esa especie de paseo sin rumbo, observando todo el amasijo de situaciones que se originan en las ciudades. Yo creo que el deambular es una manera muy sencilla de nutrirse.
También me inspiran la música y el cine… En cuarentena me he aficionado a las series europeas… tienen mucha relación con la arquitectura. Las series suecas, noruegas, islandesas, muestran unos paisajes y unas arquitecturas increíbles.
También me inspiran las películas de Federico Fellini porque sus personajes siempre están envueltos en arquitecturas fantásticas. Algo parecido a lo que ahora está haciendo Paolo Sorrentino . Sus películas y sus series son la arquitectura de Roma en estado puro. Todo lo que miramos va generando una determinada estética, un gusto personal que tiene su reflejo en lo que haces.
¿Cómo fueron tus inicios en el mundo profesional?, ¿tus primeras influencias?
Arriesgando, igual que ahora. Montamos un primer estudio, en Pilarica, donde pasábamos muchas horas haciendo concursos, porque no teníamos nada más que hacer.
¿Qué echo de menos de esa época? Ser joven, esa vitalidad, tener un mundo delante por descubrir.
¿Qué te parece cómo han cambiado en este tiempo las herramientas de trabajo?
En el estudio utilizamos todas las herramientas que tenemos a nuestra disposición como si se tratase de un laboratorio. No creo que haya habido dos proyectos que hayamos desarrollado de la misma manera: proyectos que se encajan a mano, proyectos que se empiezan con autocad y se terminan con Photoshop, proyectos que se desarrollan con el montador en el taller conforme avanza la obra.
Utilizamos todo lo que podemos para expresarnos de la mejor manera posible en cada proyecto, herramientas analógicas o digitales, maquetas o montajes a escala real.
Recientemente os habéis mudado a un nuevo estudio, incluso multi-localizado Valladolid-Burgos-Lisboa, y parece que Oaestudio ha dado un nuevo impulso. Cuéntanos cómo ha sido esa decisión o la meta que os ha motivado a este proceso. Sí, funcionamos casi como una red. De entrada, Jairo, mi socio en Oaestudio vive en Burgos. Siempre tuvimos una complicidad especial y el contacto telemático lo llevamos trabajando desde hace mucho tiempo. Nos entendemos bien y siempre fue muy fácil. Además, por el estudio han pasado muchas personas en los últimos años y por lógica se terminan por establecer vínculos que se mantienen posteriormente. Tampoco somos un estudio grande, de gran producción, así que hay momentos en los que la gente se une para desarrollar un proyecto en particular desde diferentes puntos geográficos. Es un funcionamiento un poco caótico, pero con un caos organizado. Ese funcionamiento en red nos ha servido para seguir funcionando en estos momentos en los que hay que ser capaz de adaptarse a las nuevas formas de trabajo on line. Cuanto más flexible es tu disposición, mejor te acoplas a los cambios.
Actualmente, en esta época, ¿qué tipo de trabajo estás desarrollando?
En estos últimos meses con la pandemia se nos han caído varios proyectos, ya que estaban ligados a locales comerciales y restaurantes, justo los que más han sufrido con la cuarentena. La gente, en general, está a la expectativa, a ver qué ocurre, los movimientos son mucho más lentos. Para compensar el parón hemos desarrollado algunos concursos.
¿Los concursos son época pasada?
Hacer concursos es muy caro, muy cansado y muy frustrante en ocasiones.
Ahora elegimos los concursos de otra manera, con más cuidado. Res-
pecto a los años posteriores a 2008, en los que, como había poco trabajo, se presentaban muchísimas propuestas, parece que se ha estabilizado y hay más posibilidades.
¿A qué proyecto le tienes más cariño?
Yo creo que es mi primera vivienda, en la calle Pilarica, porque se juntó todo: acababa de terminar la carrera, con ilusión, los clientes eran una pareja joven, con los que se creó una muy buena relación, y un constructor magnífico, que te hacía caso y del que aprendimos un montón. Una obra maravillosa.
Además de la arquitectura ¿qué haces?, ¿el interiorismo?, ¿el diseño?, ¿proyectos culturales?, cuéntanos.
A partir de 2008 en plena crisis de la construcción nos dedicamos a trabajar con todas aquellas cosas paralelas a la arquitectura que nos interesaban y que creíamos que estaban vinculadas a nuestra profesión: arquitecturas efímeras, stands, exposiciones, diseño gráfico, diseño de mobiliario, de lámparas, diseño editorial. Esa época fue de descubrimiento de otros campos y creo que ahora estamos adentrándonos en una época similar.
¿Crees que los locales que se hacen ahora tienen menos intensidad que lo que se hacía antes, en el siglo XX?
Nos hemos dejado ganar la partida por los decoradores; recuerdo la época dorada de los locales en Valladolid, Belín, Chema, Arnuncio, Roberto Valle … locales diseñados hasta el último detalle, con atmósferas únicas. Eran locales en los que te tenían que pasar cosas por el mero hecho de entrar. Ahora triunfa un estilo que en el estudio denominamos “dorado tropical”: unas plantas de plástico gigantes, unos hierritos dorados, una botellita negra, un marco con moldura, bancos tapizados con motivos tropicales y algún elemento con pátina industrial.
Todos los locales iguales, sin estilo propio, copiando cosas que han visto en locales de Madrid, una marca visual sin ningún interés arquitectónico. No hay una idea espacial, todo es puro revestimiento.
En lo que se refiere a tu trayectoria como interiorista, en los últimos tiempos destacas en la categoría BBB, proyectos de calidad, útiles, prácticos y con bajo presupuesto, Matilda, Gondomatik, La Otra... Cuén -
tanos, ¿echas de menos presupuestos más alegres?, ¿te preocupa que te encasillen?
No, ahora mismo no echo de menos presupuestos más altos. Creo que el lenguaje que manejamos nos permite ser muy flexibles y esta nueva materialidad nos da la posibilidad de trabajar otras formas, más orgánicas, más blandas, más adaptables, más humanas. Y por supuesto más ecológicas y sostenibles, también económicamente.
¿Podríamos volver a esas materialidades? probablemente, pero nos costaría.
En algunas obras en las que hemos dispuesto de un mayor presupuesto, aun trabajando con esos materiales, que podrían denominarse “povera” la puesta en valor ha surgido con el montaje. Exprimimos al máximo las posibilidades de cada material, utilizándolos de forma poco habitual, pensando mucho los encuentros, la manera de ensamblarlos, los detalles y los elementos de unión. Por eso, muchas veces, aunque los materiales sean “povera”, el presupuesto se nos va en una ejecución artesanal mucho más delicada.
¿Cuál es el local que más pena te da que se hayan “cargado”?
Recuerdo una galería de arte que hizo Gabriel Gallegos cerca de la iglesia de San Lorenzo, con una escalera maravillosa al fondo, al estilo de Siza, que terminó siendo una tintorería. Al menos hay que reconocer que no hubo mala intención en el dueño del negocio cuando lo adaptó. Lo adecuó como pudo para darle un nuevo uso e incluso llegó dejar la escalera detrás de todos aquellos trajes embalados en plástico. En cambio, hay otros locales que eran fantásticos, (no me apetece decir ninguno en concreto, la lista sería larga), que se han destrozado a sabiendas con una buena dosis de soberbia y desprecio hacia el proyecto original.
¿Qué le dirías a alguien que se pregunta para qué sirve un arquitecto?
Un arquitecto es una persona que ha estado durante muchos años forjándose una sensibilidad; también sabemos gestionar licencias y CTEs, por supuesto, pero lo que nos diferencia es esa sensibilidad que te puede ayudar a diseñar un espacio, una casa, un mueble o un jardín. Nuestro plus no es la gestión, en eso hay otras profesiones que lo hacen mejor; nosotros tenemos algo que otros no poseen, sensibilidad con el espacio, con los colores, con la ciudad. …
¿Cómo ves la relación entre el arquitecto y la sociedad?
¿Crees que todo esto que ha pasado ha producido o producirá algún tipo de cambio?
Tanto como personas como como arquitectos.
Es lógico que en la actualidad un arquitecto quiera hacer arquitectura contemporánea, porque es lo que estudiamos, y como especialistas tendemos a ir un paso por delante. El problema no está en los clientes a los que la arquitectura contemporánea les suena a chino. Eso hasta cierto punto es lógico. Sus códigos son de entrada diferentes a los nuestros. Desde mi punto de vista es que hay profesionales que no dedican ni cinco minutos a explicar sus ideas, no luchan por ellas y prefieren adaptarse a los gustos del cliente. En el fondo les lleva mucho menos trabajo.
Nosotros hemos entendido, gracias a la experiencia con el primer estu-
dio donde trabajé, que la primera fase de contacto con el cliente es fundamental. Mostrar imágenes, a veces ni siquiera de arquitectura, poner en situación al cliente, seducirle. Hay que trabajar con el cliente, pero a veces no se hace porque parece que siempre hay prisa; nosotros le dedicamos mucho tiempo a los preliminares.
Qué le aconsejas a un estudiante de primer año de Arquitectura o a un recién titulado que se pregunta ¿y ahora qué hago?
A uno de primer año, le diría que pierda el miedo, que no sienta recelo a la hora de experimentar, investigar, crear, descubrir . Para ponerte límites ya tendrán tiempo con los ayuntamientos y las normativas ...
Has llevado muchísimos fines de carrera, ¿cómo lo llevas? ¿Sabes el número de los que se han hecho arquitectos gracias a ti? Me encanta dirigir pfcs. Es otra liga; ya no les tienes que enseñar; les guías, hablas de tú a tú con personas que ya tienen su propio bagaje; les dejo mucha libertad, dentro de unos límites bastante amplios. Normalmente son alumnos que ya me conocen y quieren experimentar porque es el último proyecto de la carrera; aunque sepan que el experimento les vaya a llevar más trabajo.
¿Hacéis porra con quién tiene los tutorados con mejores notas?
¿hay piques entre tutores? No, no. Es más, creo que nunca he hablado del tema notas con otro tu-
tor. Yo creo que el trabajo del tutor debe llegar hasta el momento en que el alumno entrega, de ahí en adelante no debes entrar ni en competiciones ni en discusiones, el tribunal es soberano.
¿Qué supuso realizar la tesis? Personal, académica y profesionalmente.
Empecé investigando un tema que me interesaba, relacionado con el poder de lo matérico en las arquitecturas de los años 50. Fui buscando el origen de todo aquello que me fascinaba, Ronchamp, los Smithson, Lewerentz, Mendes da Rocha. Y en esa búsqueda hacia atrás llegué a la Inglaterra victoriana, con la Red House de William Morris, Webb y los Arts & Crafts. La tesis acaba justo en el punto en que todo tenía que haber comenzado, en 1952, cuando se termina la Unidad de Habitación de Le Corbusier. Lo que iba a ser la introducción terminó siendo el tema central de la tesis cuando empecé a descubrir la influencia que la arquitectura vernácula de Inglaterra y Alemania de principios de siglo tuvo en los orígenes de la arquitectura moderna.
Más allá de su utilidad académica e investigadora. Los temas que te interesan en tu tesis, ¿en qué proyectos puedes desarrollarlo mejor?
El vínculo se establece a través de la recuperación de arquitecturas anónimas, el Re-use. Descubrir edificios que parecen anodinos y merecen hacerse valer, edificios sencillos que podemos considerar arquitectura vernácula en tanto en cuanto parten de una tradición constructiva sólida y sincera.
Terminas apreciando la arquitectura anónima, y por ende el trabajo del artesano. Yo creo que por eso nos gusta tanto trabajar con carpinteros; son los últimos artesanos. ¿Te la has vuelto a leer entera?
Leo partes de vez en cuando para alguna charla, clase, … pero de un tirón no.
¿Qué opinas, en general, del repertorio de arquitectura en Valladolid?
Valladolid tiene cosas tapadas con una especie de velo, a lo Christo, que no se ven a simple vista y que a este paso pueden acabar por desaparecer ya que son arquitecturas anónimas. El desarrollismo de los 60, tan denostado, generó edificios muy interesantes, o al menos, mejores que muchas de las cosas que se están haciendo ahora. Valladolid tiene arquitectura muy buena de esa época, arquitectura residencial e industrial que con cierta dificultad empieza a ser reconocida. Aquí al lado en la avenida Reyes Católicos se puede ver un ejemplo de lo que digo. Esos bloques de ladrillo marrón con grandes balcones y contraventanas de madera. Podría ser perfectamente una calle de Copenhague.
Algún edificio que recomiendes de Valladolid? (Que no sea tuyo)
El Centro Cívico de Parquesol, las dos fases. La primera fase ya empieza a tener ese punto de arquitectura de la que hablábamos antes, del artesano, del aparejo. El edificio y el espacio, la plaza, esas vistas bajo la escultura de Julio Prieto, ...
¿Te atreverías a calificar otro como “desafortunado” o una oportunidad perdida? En Valladolid hay arquitectura muy interesante que se debe poner en uso y rehabilitar. El SATE está dando resultados aberrantes. A ver qué pasa con todos los edificios de ladrillo que se están forrando de aislante pintado o de paneles de colorines. Va a terminar por desaparecer la identidad de algunos barrios de la ciudad.
En este sentido, a nosotros nos gusta la manera de rehabilitar edificios modernos de Lacaton y Vassal, haciendo arquitectura de calidad cumpliendo con los estándares de sostenibilidad.
¿Qué opinión te merece ArquitecturaVA? Sin tapujos, haznos la pelota
Sois el Docomomo paralelo de Valladolid, esa labor de catalogación de la arquitectura más actual es muy importante y además el matiz crítico, que le habéis dado le aporta un mayor valor.
Está muy bien que alguien lo pensara y lo hiciera.
¿Alguna sugerencia? ¿Cómo podríamos acercar la arquitectura al público general?
Ahora no se lleva nada, pero yo siempre pienso “y si lo hicieran en papel”, un catálogo de edificios de Valladolid, sería ya el punto “gourmet”. Como un coleccionable; me suscribiría seguro. O tener un espacio en un periódico, sería la forma de tener ese vínculo directo con la ciudadanía.
Un libro, película, obra... apto para cualquiera Rayuela, porque siempre puedes leer un trozo, empiezas y acabas cuando te apetece. Una película, soy más de cine europeo, La Gran Belleza. Una cita que te inspire…
No tengo memoria y no me gusta aprendérmelas, …
¿A qué arquitecto nos recomendarías para continuar la sección de entrevistas?
o… ¿Quién no debería faltar? Gabriel Gallegos Borges
Nº 15 | Edición semestral gratuita
Para el próximo número barajamos diversas opciones. Por ello, en esta ocasión, nos gustaría que fuerais vosotros los que nos plantearais el tema a tratar. Somos todo oídos.
Estamos abiertos a cualquier propuesta o enfoque relacionado con la arquitectura que pueda resultar interesante para nuestro sector.
Seguro que ya tienes algún posible tema en mente. Si es así no dudes en mandar tu propuesta para el próximo número de la revista Aa Arquitectura. Ánimate y participa enviando un e-mail al Colegio de Arquitectos de Valladolid (COAVA) a la dirección: vocalcomunicacion@coavalladolid.com.
También puedes contactar con nosotros para cualquier sugerencia que nos ayude a mejorar.
Contamos contigo.
¡Participa en el próximo número!