Locales Comerciales


5.
Bar-Restaurante La Tarara. 13. Pop a la mexicana. 19. Oficina
Muebles del Valle. 27.
FOOGA. 33. Del residuo al uso. 39. Lutton
Bar-Restaurante La Tarara. 13. Pop a la mexicana. 19. Oficina
Muebles del Valle. 27.
FOOGA. 33. Del residuo al uso. 39. Lutton
Gant Photography. 45.
Reforma de local para la Inmobiliaria Sotocasa.
54. Próximo número.
Descarga tu revista:
Es hora de dejar que el tiempo pase y de poco a poco regresar.
El 13 de marzo 2020 el Gobierno declara el estado de alarma en España. Esta decisión nos obligó a permanecer confinados en nuestro domicilio hasta finales de junio del mismo año. Durante todo ese tiempo la actividad económica se vio paralizada. Muchos locales comerciales estuvieron cerrados incluso después del confinamiento. Mientras estuvimos en nuestras casas, esos espacios permanecieron varados en el tiempo esperando a su clientela.
Cuando a un arquitecto le encargan un local siempre piensa cuáles son las exigencias del promotor, pero no puede olvidar lo que el posible cliente puede necesitar. El primero expondrá lo que quiere, cuál es su presupuesto, incluso algunas ideas que ha visto por ahí.
Entonces al arquitecto empezará su diseño, se pondrá en la piel del promotor, del usuario del local, del repartidor, del comprador habitual, del que no viene tanto… porque todos estos ámbitos son de un carácter claramente público. Todos ellos han sido pensados desde su origen para ser usados, utilizados por distintas personas con diferentes exigencias a lo largo del día.
Revista del Colegio de Arquitectos de Valladolid. Nº15 | Edición semestral gratuita. Edita: Colegio de arquitectos de Valladolid (Tel.: 983 344 244. www.coavalladolid.com) y Editorial MIC (Tel.:902 251 902/983 456 518. www.editorialmic.com).
Diseño: Cristina Aparicio Castaño Maquetación: Editorial MIC. Imagen de portada: local Cielito mío: la revolución Depósito Legal: VA-389-2013.
Estos lugares llenos de vida, de repente se han visto vacíos, sin nadie que los utilice. Se cerraron sus puertas y se quedaron varios meses esperando a que la clientela habitual pudiera volver a disfrutar de ellos. Espacios que fueron diseñados por nuestros compañeros buscando la mejor solución, pero que, de un día
para otro, congelaron su uso hasta una situación sanitaria más segura.
Después del confinamiento (¿Hay un después?… ¿Ha terminado?) las personas vuelven a tomar la ciudad, sus parques, sus calles... casi todos nos reencontramos con el espacio público, y poco a poco volvimos a entrar en lugares cerrados. Muchos al principio lo hacíamos con miedo, luego poco a poco aprendimos a esperar en sus puertas, porque el aforo es muy limitado. Y mientras esperamos nuestro turno para entrar, ¿Por qué no explorar sus fachadas de una manera que hasta ahora no habíamos hecho? Al acceder a su interior, ¿Por qué no recorrer todos los paramen-
tos disfrutando de su espacio, sus detalles, de las soluciones arquitectónicas que nos ofrecen, de aquel rincón agradable, de su luz?
Desde este número queremos hacer un pequeño homenaje a todos aquellos locales que han permanecido cerrados durante largo tiempo esperando a su clientela. A todos esos diseños arquitectónicos que estuvieron aguardando tiempo mejores. Deseamos de corazón que lleguen.
Desde este Colegio de Arquitectos, os invitamos a pasar y ver. A contemplar y a homenajear a sus dueños y a sus diseñadores. A disfrutar de lo que más nos gusta. A vivir y a dar gracias por la vida.
Un saludo a todos.
FOTOGRAFÍAS: PEDRO IVÁN RAMOS
El germen del proyecto de La Tarara, no sólo como proyecto arquitectónico, sino como nuevo proyecto de ocio y restauración, estuvo en el edificio existente que albergaba ya otro local de restauración, La Palloza, bien conocido por clientes de la zona y de todo Valladolid.
Situado en la carretera de Fuensaldaña, en el límite municipal de Valladolid, se trataba de un edificio exento que, fruto de diversas ampliaciones, había crecido a lo largo de los años sin un verdadero control técnico.
Si bien el edificio existente adolecía de ciertos problemas, tanto constructivos como de adecuación a las necesidades de un negocio de restauración actual, su situación tenía un gran potencial, sobre todo teniendo en cuenta la parcela aneja al edificio.
Por otro lado, los condicionantes urbanísticos del lugar no permitían actuaciones que no fueran de reforma interior y, en caso de tener que realizar actuaciones que afectaran a la envolvente, el volumen debía ser respetado escrupulosamen-
te. Esta circunstancia junto con el mal estado de las cubiertas y algunas de las fachadas convirtieron el proyecto en una actuación a medio camino entre la reforma y la recuperación volumétrica y estructural.
Así, fue necesaria la consolidación de los muros existentes de fachada, en particular el de la fachada principal, y la demolición parcial de algunos elementos. La cubierta se levantó entera, ya que tenía múltiples problemas de estanqueidad, producto de años de añadidos e intervenciones parciales, y se ejecutó sobre una nueva estructura de acero que se apoya en aquellos muros existentes suficientemente seguros y en nuevos pilares.
Parte de la planta sótano se encontraba sustentada por una estructura auxiliar muy inestable y en muros de contención de fábrica, por lo que fue necesario desmontar el forjado de planta baja en esa zona y dichos elementos estructurales y ejecutar un nuevo vaso formado por muros de contención, una losa de cimentación continua y un forjado de placas aligeradas.
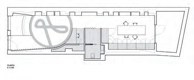
El edificio consta de dos plantas: una planta baja que, a su vez, se desarrolla en dos niveles, y una planta semisótano, aprovechando el desnivel del terreno hacia el sureste. El futuro funcionamiento del mismo llevó a la definición de tres ambientes diferenciados, el bar y el comedor del restaurante, situados junto a la cocina en planta baja, y la sala de eventos, en la planta semisótano, a todo lo cual hay que añadir las dependencias de servicio, vestuarios y aseos. Los tres ambientes se han tratado, a nivel de diseño y de elección de materiales, de forma diferente, teniendo en cuenta siempre cada uno de los usos previstos.
En primer lugar, el acceso principal en planta baja se realiza por el bar, en el cual destacan tres elementos principales: un gran ventanal en la fachada norte, que permite la conexión visual con la terraza exterior y
que se enfrenta a la barra, un elemento mueble diseñado íntegramente para adaptarse al espacio disponible, y la pieza de la chimenea, que divide la planta en los dos espacios principales en el interior, y forma un potente elemento de anclaje visual en el exterior del edificio.
A continuación se accede al comedor, que consta de dos niveles y dos zonas separadas, y en el cual la vegetación natural cobra una gran importancia, funcionando como filtro visual y acústico con las zonas de comunicación y aseos, entre zonas de comedor y con el bar.
En la fachada sur se han conservado los ventanales en arco preexistentes, que iluminan y permiten la ventilación de la zona superior del comedor y de la cocina.
En toda la planta baja se optó por el uso de un número muy limitado de materiales principales, buscando sencillez y cierta neutralidad, pero en contraste con el fondo de los pa-
ramentos, siempre blanco, y con los elementos decorativos y mobiliario. Así, en toda la superficie se colocó un pavimento cerámico de gran formato, texturado y de color gris antracita, que continúa en la terraza exterior y en la gran pieza de la chimenea.
La barra del bar se diseñó en madera, mediante montantes verticales muy marcados formando una malla irregular que se adapta al espacio disponible y a las necesidades de funcionamiento. Cada una de las celdas está retroiluminada mediante tubo led y las grandes luminarias sobre la barra, de diseño propio, delimitan el espacio de trabajo y el público.
El conjunto arquitectónico se completa con piezas de cerámica decorativa de Gonzalo Coello y pinturas y dibujos de Victoria Francia creadas exprofeso para cada uno de los espacios y en base a la idea del cliente de lo que debería insinuar, tanto el nombre elegido “La Tarara” como su ideario.
En la planta semisótano se encuentra la sala de eventos, un espacio de carácter polivalente en el cual se podrán desarrollar diferentes ac-
tividades, apoyadas por la cocina, tanto abiertas al público como de carácter privado.
Al contrario de la planta baja, en la cual la luz tiene un claro protagonismo, la planta semisótano tiene una carácter más íntimo, por lo que se optó por una gama de colores y materiales totalmente diferente. Así, se le dio especial protagonismo a los materiales estructurales puros, tanto el hormigón con diferentes texturas como el acero en perfiles estructurales.
En la fachada norte se sitúa el patio inglés, uno de los elementos más característicos del conjunto, que se abre completamente al espacio interior mediante un gran ventanal en acordeón dando lugar a un espacio continuo. Las especiales características de la luz en el patio inglés, rasante en muchos momentos del día, junto con la elección de la textura del hormigón y la escalera de hormigón armado en voladizo, lo convierten en un espacio dinámico, como un gran cuadro que se abre al interior y va cambiando a lo largo de toda la jornada.
En el interior se han dejado vistos los muros de contención laterales y la cara inferior de las placas aligeradas de once metros de luz que forman el forjado del espacio diáfano principal, así como la estructura de la escalera, con sus texturas, recalcando la sinceridad material que se pretendía en este espacio.
En el resto del semisótano se optó por un enfoscado y acabado ligeramente rugoso en diferentes tonos de gris. El juego de dichos tonos con diferentes alturas de falsos techos y la iluminación indirecta mediante carriles led regulables da lugar a diferentes espacios y ambientes muy confortables.
En el diseño de la barra de bar, enfrentada al patio inglés, se han utilizado perfiles estructurales de acero
laminado, UPE 300 en la contrabarra y UPE 100 en la cara exterior de la barra, delimitando la pieza de madera que la forma.
Sobre la gama de colores grises de fondo se optó por el contraste de la madera, que además constituye un elemento de conexión con la planta baja. Así, se ha utilizado en elementos puntuales como la barra o el peldañeado de las escaleras, pero también para el acabado de las zonas de servicios, como los baños y el muro curvo de las salas de instalaciones.
Para el pavimento de toda la sala de semisótano se eligió un material continuo y muy resistente a la abrasión mediante resinas con acabado pulido, de forma que la luz que entra desde el patio inglés forma un reflejo y aumenta la claridad en el interior. 07
Además del diseño puramente arquitectónico del edificio, desde el estudio desarrollamos la imagen de marca y el diseño de los logos y la tipografía, de forma que se ha tratado tanto el diseño como la formalización de los mismos mediante chapa de acero pintado anclada a los paramentos, y así mantener la relacción con la materialidad del conjunto.
Los trabajos, que se alargaron durante dos años y medio desde el inicio de la redacción del proyecto, culminaron en plena pandemia, en mayo de 2020, y fue posible celebrar la inauguración, limitada por las restricciones sanitarias y al aire libre durante el mes de junio. En este último año, aprovechando por las zonas
verdes anexas, ha sido posible poner en marcha un proyecto hostelero, por su puesto apoyado en la arquitectura, que ha sido capaz de capear los problemas derivados de la situación sanitaria y tiene un futuro muy prometedor, como uno de los locales de referencia de Valladolid.
*Imagenes del artículo.
01. Vista de la barra principal. 02. Patio inglés. Luz, sombra y textura. 03. Comedor. La naturaleza en el interior. 04. Vista panorámica del bar. 05. Detalle de la barra y las luminarias. 06. Sala de Eventos. 07. Sala de Eventos
En línea con su vocación de atención al cliente, la compañía cuenta con un equipo de profesionales de larga trayectoria en el sector de la arquitectura para aportar soluciones constructivas: estudio de materiales, cálculo energético y acústico, memoria de carpintería y seguimiento en obra. De esta forma asesoran resolviendo dudas y problemas para dar forma a los proyectos desarrollados por los estudios de arquitectura. Este equipo se complementa con su Oficina Técnica, pensada para dar un soporte técnico personalizado que permite optimizar tiempo y recursos. Asimismo, STRUGAL ha diseñado
soluciones BIM a medida que se adaptan a cada una de las particularidades de los proyectos. El BIM o Building Information Modeling está suponiendo una auténtica revolución en los procesos y forma de trabajar para los profesionales de la construcción. Basado en reproducción 3D de cada uno de los elementos constructivos, posibilita el diseño paramétrico de forma sencilla, rápida y completa. El catálogo de sistemas STRUGAL está disponible desde cualquier aplicación BIM. De esta forma los productos tienen réplicas digitales, convertidos en objetos inteligentes que contienen gran cantidad de
información del sistema, reproduciendo virtualmente su comportamiento en la realidad. Diseñadores, arquitectos e ingenieros pueden acceder e integrar toda esta información digital a sus proyectos de forma sencilla.
Más info en www.strugal.com
Accede a la biblioteca BIM de STRUGAL a través de su web o a través de este código:
STRUGAL refuerza su red de consultores técnicos y presenta su biblioteca BIM actualizada
El restaurante se ubica en el entorno de la Iglesia de La Antigua, en Valladolid; es un local comercial relativamente pequeño, en el que espacio se aprovecha al máximo para logar el mayor número de puestos posible. A través de dos celosías se estructura el área del comedor, el interior alberga las mesas bajas, el exterior las mesas altas y el mostrador donde se sirve la comida desde un concepto de fast-food
Una de las dos celosías se trata de una pieza mueble, que contiene tanto una mesa alta como un banco corrido, que además actúa de filtro en el área del comedor y el espacio de cocinas y servicios. Esta compartimentación visual se consigue mediante unos listones de colores de suelo a techo que van a marcar la gama cromática de todo el local.
El color es otro de los elementos característicos de esta intervención. Huyendo de la paleta cromática típica de los restaurantes mexicanos, se apostó por cuatro colores, azul, verde, amarillo y rojo, además del blanco para todo el local, buscando no saturar el espacio y aprovechar el máximo de luz que entra por la única fachada al exterior. Esta gama cromática aparece en los lis-
tones de las celosías, sobre los zócalos de madera y en los asientos. Esta combina armónicamente con el resto de acabados del local, maderas, cuerdas de rafia y el esparto de las lámparas que con su textura natural nos conectan con la Revolución Mexicana.
Pero quizás los elementos más representativos del local son los grandes murales que decoran las paredes. Con una idea de collage pop realizado por el propio equipo sobre las paredes del local, se combinan tramas, brochazos, dibujos, textos y fotografías a escala real de los protagonistas de la revolución mexicana. Zapata protagoniza uno de los murales en los que se superponen un mapa del estado americano, la foto del líder militar y una trama que conceptualiza la imagen de un trigo. Sobre el, aparecen unos grandes brochazos en rojo y verde, guiño a la bandera mexicana, que conectan con el otro gran mural en el que aparecen unas adelitas junto a un cañón. Este segundo mural muestra también alimentos típicos de la dieta mexicana, aguacates, tomates, chile… y su dimensión de suelo a techo crea un photocall respondiendo al deseo de los clientes. El último mural, el más sutil, se sitúa en la pared de la entrada, mostrándonos
Con el proyecto para el restaurante mexicano de comida rápida “Cielito Mío: La Revolución” se busco reflejar el colorido de México y la imaginería de la revuelta desde una idea pop y contemporánea, en la que se mezclan los materiales naturales y grandes murales tipo collage.GIOVANNI OLCESE, JULIO GARCÉS Y RAQUEL ÁLVAREZ
un cronograma con algunos de los eventos más importantes de la Revolución, acompañándonos cuando accedemos al local.
L os colores y los guiños a la cultura mexicana se llevan hasta los espacios de servicio. Las paredes del mostrador de cocina, y los baños, presentan un alicatado en el que se juega con su despiece para mostrar los motivos de los tejidos
*Creditos del artículo.
Arquitectos: Giovanni Olcese, Julio Garcés y Raquel Álvarez. Colabordores: Rubén
Ceínos, Lorena Álvarez, Sergio Riestra y Sara Pérez. Ubicación: C/ Solanilla nº3, Valladolid, España. Promotor: Cielito Mío
La Revolución S.L. Año: 2018 Fotografías: Giovanni Olcese y Javier Sanz.
mexicanos, dibujos geométricos coloridos fuera de escala, que acercan el color de México a todos los rincones del local.
E l resultado es un local colorido, desenfadado y alegre con el que hemos querido llevar lo tradicional de la cultura mexicana al concepto contemporáneo y pop del fast-food que pedían nuestros clientes mexicanos.
*Imagenes del artículo.
01. Axonometría del conjunto. 02. Alzado con las imágenes que decoran el local. 03. Interior del local 04. Ámbito de la barra con el gran mural al fondo. 05. Detalle de los alicatados del baño. 06. Interior del local. 07. Zona de restaurante. 08. Fachada del local.
La transformación de este local debería resolver algunos problemas detectados en la distribución original y, uno de ellos, quizá el principal, pasaba por la climatización del espacio de atención al público, que es la piedra angular de la reforma. Por ello se piensa en hacer una caja, independiente y conectada, cerrada y abierta al mismo tiempo; de madera, por el carácter de la empresa, y de vidrio, por la transparencia, la sencillez y la sinceridad.
Con el nuevo proyecto también se modifica la posición de la zona de atención al público, ahora más retrasada, pero más discreta y recogida. Se aprovecha de la luz y del calor del sol, tamizada a través del muro de pavés existente; y mantiene la conexión visual con el acceso y con la zona de muestras de materiales. El hecho de modificar la posición de las oficinas ha dado lugar a un
recibidor, una antesala que crea la ambientación necesaria para que la experiencia ofrecida al cliente sea cercana, amable y satisfactoria en todos los sentidos.
La intervención se está llevando a cabo en 3 fases diferentes, resultado del análisis del funcionamiento del local y del negocio. La primera de ellas - y más urgente - pasaba por reacondicionar el espacio de oficina y atención al público. La distribución que nos encontramos mostraba un grave problema de ubicación que impedía el control visual sobre el resto del local, pero que además no funcionaba correctamente en otros aspectos cotidianos como la comunicación entre los puestos de trabajo, ya que apenas contaba con espacio de almacenaje para muestrarios o catálogos y, sobre todo, una climatización mal diseñada y calculada que no satisfacía los requerimientos de un espacio abierto,
Un espacio cálido, luminoso y acogedor donde recibir a sus clientes. Fue la premisa de esta empresa familiar para concebir su nueva casa.ARIADNA GUTIÉRREZ QUIÑONES Y SERGIO ALONSO ALONSO. NORO ESTUDIO
rodeado de vidrio y con orientación norte como es la fachada a la Avenida de Burgos.
Así pues, la primera fase se completa con la reordenación de una primera oficina, en una posición más retrasada con respecto al acceso, pero con una capacidad de control del espacio incluso superior a la original. Luminosa, cálida y acogedora, en parte por los materiales elegidos, en parte por la cercanía al muro sur de vidrio pavés existente y el nuevo circuito de climatización, más eficiente que el original. La reubicación de estos puestos de trabajo permite liberar la zona del acceso para dar paso a nuevas exposiciones de cocina más amplias, más vistosas y más atractivas para el público que las observa desde el escaparate.
La segunda fase, actualmente en redacción, conectará la nueva oficina con una sala de reuniones, más reservada, colocada en una posición discreta pero conectada con el resto del local. En ella se llevarán a cabo presentaciones de productos, entregas de proyectos y reuniones de equipo, tan importantes para el buen funcionamiento del negocio. Esta sala mantendrá el mismo nivel
de luminosidad y confort que su semejante, ya que también se aprovechará de un muro de pavés orientado a sur y maderas trabajadas por la propia empresa.
Por otro lado, se acondicionará un espacio de muestras. Un lugar cercano a la oficina, pero independizado de esta, visible y atractivo desde el exterior, pero recogido para que el cliente se sienta el protagonista de ese momento. Un área donde aglutinar todas las tipologías de puertas, acabados, encimeras, suelos… combinarlos entre ellos y ayudar al comprador a personalizar su proyecto.
La última fase abrirá por completo toda la tienda al escaparate. Se eliminarán dos tabiques sobre los que se apoyan tres exposiciones, para dar paso a una gran cocina, un elemento singular y exento que pueda mostrar todas las tipologías de herrajes y soluciones y que, además, estará en funcionamiento. En ella podrán realizar eventos de cocina con público, grandes presentaciones de producto, degustaciones, conferencias y charlas.
Un proyecto dividido en fases es lento y requiere de mucha paciencia
y organización, pero siempre asegura un buen resultado. La previsión y la estrategia permiten continuar el trabajo tras cada etapa, de modo que la superposición de capas sea coherente. Esto aporta tranquilidad al promotor, ya que, en casos como este, - pequeños negocios familiares - no siempre se puede disponer de solvencia económica para afrontar todas las reformas que se pretenden.
La primera fase se saldó con un total de 15.000€. En esta bolsa se debían incluir no sólo las modificaciones de las que hemos hablado, sino también la sustitución de exposiciones que suponía el proyecto. Esto repercute en 300€/m2 teniendo en cuenta toda la superficie intervenida. Estas cifras sólo pueden llegar a conseguirse utilizándose los propios recursos de la empresa. Evidentemente las exposiciones salen a precio de coste, pero nos veíamos obligados a hacer algo más para conseguir el objetivo sin sobrepasar el presupuesto. Se debían mantener y transformar los tabiques; habría que construir los armarios y estanterías de la oficina con módulos de cocina - que por otro lado sirven como exposición en sí mismos-; y por supuesto emplear
la madera natural en suelos, puertas y revestimiento del techo como amortiguador acústico.
El resultado de este proyecto es el claro ejemplo de la rentabilidad de la inversión en diseño. Por un lado, hablamos del diseño aplicado a una distribución, a una estrategia y a la superposición de capas a la hora de llevar a cabo una intervención de estas características. El diseño
aplicado a la gestión económica. Por otro lado, el diseño aplicado a la estética, al aspecto que ahora muestra el negocio ante sus clientes, a la comparación entre el antes y el ahora, a la evolución y a la voluntad por mejorar.
La actualización de la tienda mediante la reforma del local viene acompañada de una actualización de la propia marca. A través de la arquitectura no sólo se reforma un espacio comercial, sino que también es capaz de actualizar la imagen de un negocio, rediseñar el logotipo, la señalética y hasta la tipografía utilizada. Un trabajo global y unitario para renovar el negocio en todos los sentidos.
*Fotografías del artículo. 01. Interior de la oficina. Conexión con sala de reuniones. 02. Espacio representativo y nueva imagen de marca. 03. Umbral exterior - interior. 04. El mobiliario de cocina se integra en el diseño. 05. Aprovechamiento de la luz a través del pavés. 06. Empleo de materiales propios de la empresa. 07. Axonometría. 08. Planta Fase 3.
El encargo de una reforma para una tienda de zapatillas se plantea en realidad como un espacio que refleje las aspiraciones de un marca local, juvenil y contemporánea. Un cliente con tres ideas claras de su estilo de negocio: libertad, buen rollo y sencillez. Este proyecto plantea, por tanto, una respuesta a su idea de negocio. Además, partimos de la base de crear un modelo a seguir, una estrategia neutra que pueda repetirse si el crecimiento futuro de la marca así lo requiere. Se trata de generar un marco neutro, diáfano y flexible que sirva como base para disponer sus productos, los verdaderos protagonistas.
El modelo de marketing la moda virtual y el e-commerce generan, en muchos casos, un impacto en el entorno construido. Este local pretende dar respuesta a unas lógicas de mercado que indagan en lo que Giles Lipovetsky denomina capitalismo artístico o lo que OMA y Bengler recogen en su exposición PANDA . La democratización del espacio virtual, donde las modas estéticas se bifurcan en miles de ramales que, sin embargo, empiezan a confluir y a mostrar una cierta estandarización en lo espacial y lo doméstico. Sin la necesidad de oponerse a esa idea, este proyecto
trata de dar respuesta, fuera de las modas concretas de este periodo de tiempo, a una idea de espacio, de estrategia y de manipulación material cuyo resultado, formal se asemeje al modelo de negocio requerido por el cliente.
El proyecto nace de la idea de compatibilizar en un solo lugar: tienda, oficina, centro logístico y taller de diseño. La marca, nacida de manera online, necesitaba tener un espacio-reflejo del ‘ modo multitarea ’ de los negocios contemporáneos asociados a la generación millenial , un espacio del ‘yo me lo guiso, yo me lo como’ . Esta nueva generación de emprendedores busca una manera de adaptar su modo de vida a una idea concreta de comercio y, como tal, los arquitectos debemos dar respuesta a eso que estos nuevos clientes demandan. De hecho, la hibridación de usos e industrias, la transformación de los entornos construidos o, como es este caso, la respuesta arquitectónica a un concepto de marca o vida serán algunos de los espacios de trabajo de una nueva generación de arquitectos.
El local situado en la calle Cánovas del Castillo, en pleno centro, de la capital vallisoletana. Dando frente a una calle estrecha, de tra -
Estrategias espaciales para el comercio de la actual sociedad digital o solo una nueva forma de vender zapatillas.ARQUITECTOS SLP. MANUEL CUADRADO, DANIEL GONZÁLEZ Y ÁLVARO MORAL. FOTOGRAFÍAS: LUTTON GRANT.
zado medieval y por el que ahora discurre una vía fundamental del poco trazado viario que queda en el centro histórico. Este local contaba con una serie de condicionantes de partida, de preexistencias e irregularidades y una escasa anchura en su fachada asociada principalmente a las lotificaciones medievales comerciales.
La estrategia llevada a cabo en la intervención propone la manipulación de los dos muros medianeros, que presentaban una geometría diversa. La medianera principal, eje conceptual del proyecto, contaba con numerosos entrantes y salientes fruto de múltiples interacciones infraestructurales y reformas sin reflexión acontecidas.
El proyecto propone convertir ésta en un muro-escaparate, mediante la regularización de todos sus desfases y la articulación de su superficie basada en la generación de
numerosos nichos discontinuos. Se crea así un lienzo neutro que cede la importancia al producto, verdadero protagonista de la intervención. Así mismo, la escasa anchura de la crujía del local no permitía disponer de un espacio de escaparate al uso, por ello se incorpora el mismo al aprovecha r la profundidad del local al añadir el logo al diseño del propio espacio.
La medianera opuesta, sin embargo, se concibe como un ámbito multiforme y equipado que integra en su interior tres elementos fundamentales. Una separación no física, pero si conceptual entre el espacio comercial y el creativo, lograda a través de la compresión espacial de la imagen corporativa, por otro lado, los espacios servidores: el baño, el probador, el almacén y la caja de cobro. Este muro grueso permite colocar gracias a su menor altura, las instalaciones necesarias de ventilación y climatización.
El taller creativo se resuelve con unos armarios básicos lacados en blanco, que hoy almacenan toda clase de diseños, pruebas de textil, modelos diseñados y otros tipos de merchandising . Un gran ventanal abierto al patio de manzana colmata el conjunto y permite una iluminación natural al fondo del local. El espacio se equipa con una mesa de obra rematada con un grueso tablero de abeto. Esta mesa, pensada para el trabajo creativo y colaborativo, se coloca específicamente en el centro de este segundo micro-espacio.
La materialidad, por imperativo económico, se resuelve mediante tres elementos: madera de abeto, una solera básica de hormigón y el blanco. Estos se combinan con espejos, vegetación y el propio producto textil a la venta, aportando un toque de contraste y color que genera en el local un ambiente más cálido y acogedor.
El sistema de yeso laminado es fácilmente adaptable a una gran variedad de formas permitiendo incluso su curvado en la zona de escaparate. Este sistema resuelve también los dos muebles principales: la mencionada mesa de trabajo y el banco donde los clientes se prueban el calzado. Como acabado se utiliza la pintura plástica blanca, que permite un extraordinario reflejo de la luz.
El suelo, aprovechando el desnivel preexistente, está realizado mediante una solera de hormigón armado, cuyo acabado final es un simple pulido. El color gris que la caracteriza supone una base neutra y sufrida para el tránsito comercial. Lo rudo y urbano de este solado contrasta con las maderas y
los acabados blancos del resto del conjunto . El tono permite que el espacio no se oscurezca aportando además una sensación de amplitud al extenderse por todo el local.
La madera utilizada es el abeto, cuya estabilidad material permite su encolado sin problemas, y realizar tanto la celosía de lamas como los acabados de mesas y asientos. También se utiliza la misma madera como marco grueso de los espejos y como barra de colgar prendas en los nichos. Es por ello, que el poco material disponible se exprime aportando una depuración formal, estética y constructiva.
La iluminación se piensa desde los primeros croquis como un punto fundamental del proyecto. Una gran línea electrificada recorre la tienda entera desde fachada hasta el patio interior generando una iluminación directa y sin sombras que permita percibir el color original del producto. Este carril electrificado permite una flexibilidad total a través de la variedad de soluciones de sus proyectores, pudiendo configurar los ambientes concretos necesarios según la temporalidad comercial. Lo mismo ocurre en el escaparate, donde dos líneas del mismo tipo se colocan ocultas en la carpintería permitiendo una flexibilidad fundamental a la hora de trabajar el escaparatismo. La iluminación de la mesa se resuelve con un perfil lineal que flota a escasos centímetros del plano realizado en madera de abeto.
La materialidad, por imperativo económico, se resuelve mediante tres elementos: madera de abeto, una solera básica de hormigón y el blanco*Imagenes del artículo.
La arquitectura mínima genera situaciones que parecen imposibles. Donde unos ven un espacio residual, módulo ARQUITECTOS es capaz de gestar un espacio funcional.A PIE DE CALLE
En el contexto de crisis económica en el que aparece el local, resulta pertinente la búsqueda de inversión en un espacio “anticrisis”, es decir, de características pequeñas y de escasa materialización económica.
Desde el punto de vista de la práctica de la profesión, un local en planta baja se entiende como una oportunidad de acercarse al cliente desde la cota de calle por la que éste transita, y así romper con los estereotipos de figura profesional inaccesible propios de los antiguos estudios o despachos, normalmente situados en la entreplanta de edificios residenciales.
Ocurre que el estudio se encuentra en el inicio, o final, según se mire, de una calle peatonal con mucha historia: la calle Expósitos. Esta vía contiene el tránsito de personas, acogiendo flujos que van y vienen desde el centro histórico hacia uno de los barrios de la primera periferia de Valladolid.
Con una calle que parece ser sólo de paso, el estudio se materializa paralelamente a este ir y venir de personas, teniendo por delante un futuro para interactuar con todas
ellas desde el momento en que los vecinos se paran a conversar a la puerta del estudio.
En este contexto, módulo ARQUITECTOS [mA], decide intervenir en el entorno inmediato como reclamo social a pie de calle, utilizando el propio cartel de pres entación como una “performance”, con un diseño que no sólo sirve de presentación de la marca, sino que además se dota de un carácter funcional, de apropiación del espacio público de forma temporal como se viene haciendo en muchas ciudades del norte de Europa, o mejor dicho, aportando un elemento de utilidad pública al exterior.
C onsiste en un banco revistero, móvil, que genera un espacio estancial, pues pese a ser una vía peatonal, no cuenta con ningún elemento para el descanso o el uso del espacio por parte de nuestros vecinos. Esta actuación implica un gran contraste para la calle, porque reconocemos “nuestra puerta” como una zona donde pararse a hablar o informarse.
Con una superficie útil de 9,00 m2 en planta, el local se muestra como un residuo en el edificio al que pertenece. Un pequeño es -
pacio intersticial atrapado en la masa construida del edificio, ajeno al resto, como resultado sobrante de un proceso edificatorio en el que ha habido incompatibilidades entre los límites del programa interior y la parcela, conllevando la aparición de un espacio extremadamente pequeño y aparentemente inservible.
Por su anchura, enseguida se concibe como un espacio que parece estar anidado en el gran muro de mampostería de piedra, a modo de hueco interior oculto tanto a los viandantes de la calle como a los propios inquilinos del edificio donde se encuentra.
Lo único que necesitaba este ámbito era la mirada atenta de una persona conocedora del concepto poché, entendido más bien como el concepto utilizado en el Barroco de espacio oculto y de servicio, que aquel asociado a la represen -
tación gráfica utilizada en la enseñanza Beaux Arts; para saber apreciar la posibilidad de utilización que este local podía ofrecer.
El concepto se consolida cuando al finalizar el proyecto sigue conservando la capacidad de sorprender a todo aquel que entra.
módulo ARQUITECTOS [mA] desecha la idea del arquitecto solitario y apuesta más por un pensamiento de despacho profesional, donde tienen cabida diferentes profesionales y sinergias de trabajo. De modo que el espacio tiene que ser doblemente acogedor, por un lado para el trabajador y por otro, para el cliente o visitante.
Debido a la relación que mA busca con el cliente, un despacho profesional no es otra cosa que su carta de presentación, y esta idea es la que se busca en última estancia mediante el cuidado en el diseño, el disfrute de los detalles, la calidez de los acabados y la utilización del espacio hasta el último rincón. La finalidad es sacar el máximo aprovechamiento al espacio , sin olvidar ninguna de las funciones necesarias para el ejercicio de la profesión: ámbito de trabajo, lugar de reuniones, aseo, office, volumen de almacenamiento y espacio de ocio.
te a la puerta con todos los equipos necesarios para la realización de las tareas, y con la finalidad de que quien se asome por la puerta a indagar se encuentre siempre a módulo ARQUITECTOS haciendo su trabajo.
La plataforma permite la ejecución de lugar de almacenamiento: dos cajones, donde guardar por ejemplo los A4s.
El lugar debe ser aprovechado al máximo, de manera flexible, y debe conseguir encajar distintos ambientes asociados a los diferentes modos de trabajo que se dan a lo largo del día.
El espacio principal se ubica fren -
En el interior, a la izquierda, se sitúa el office, ubicado en una plataforma privilegiada que hace la doble función de aseo y cocina. Lo que en un principio parece un espacio continuo, se convierte en una dimensión flexible que se cierra y se abre a partir de una puerta plegable, escondiendo el inodoro a un lado mientras que al otro se coloca la cafetera, lavabo y una serie de armarios con todo tipo de utensilios; si se levanta la mirada, hacia arriba, está el archivo del estudio que alcanza hasta el techo.
A la derecha del espacio de trabajo se encuentra la sala de reuniones, donde se tienen largas charlas con los clientes u otros profesionales del sector, siempre y cuando sean pocos, y que hace también las veces de sala de maquetación y preparación final de los proyectos. Atravesando este lugar, encontramos al fondo la biblioteca que conquista el espacio gracias a su larga extensión en superficie… de suelo a techo. A medio camino entre la sala de reuniones y la biblioteca se dispone el área de impresión con las impresoras, un pequeño orificio escavado en la piedra. Es el poché dentro del poché.
Al final tienen cabida más de seis espacios. En verdad, sólo hay un espacio.
El proyecto continúa en la planta de arriba, donde un vidrio asume la función de suelo de este altillo, permitiendo que la vista se alargue hasta la altitud del techo, sin perder la dimensión del espacio total, aunque el ámbito inferior de trabajo se encuentre acotado por parte de este forjado.
En ese altillo se proyecta una mesa, también de vidrio, de cara al gran ventanal y se permite el paso desde este punto al hueco que deja la abertura de la ventana en el grosor del muro, pudiendo utilizarse como espacio de descanso.
Cuando se concibe este espacio, el mueble es indiscutiblemente parte del proyecto. Es el único que permite el encaje de los usos, el gran número de utilidades para un volumen tan reducido. Ayuda a coser las ideas, convierte a este espacio mínimo en un lugar realmente interesante. En este punto
es necesaria la complicidad del que ejecuta, que tenga unas manos de “artista” y la paciencia de trabajar en un ámbito tan pequeño; no es fácil. Afortunadamente, existía esa complicidad que ha permitido a mA encajar todas las ideas: un suelo que se eleva 30 cm sólo para hacer unas cajoneras debajo; un mueble que se alicata con las mismas piezas cerámicas que la pared del office, y que con su geometría es aprovechado al máximo y regulariza el espacio. Se mantiene la idea hasta final, sobre todo cuando quieres que esas piezas pa -
rezcan una pared alicatada perfectamente, sin ningún agarre para mantener la planiedad y con un corte perfecto de las piezas, no es pedir nada cuando todo está hecho a mano. Sobre este mueble se encuentra la estantería de la biblioteca, que cuenta con un pequeño giro en las baldas inferiores, de modo que visualmente no ocupen espacio, espacio que se vuelve a regularizar en la parte superior.
¿Se escava una hornacina en la pared?, pues claro si hace falta, y se diseña una estantería corredera en
acero corten, que permite extraerla para que el uso de las impresoras sea cómodo. La mesa de trabajo es importante, cuanto más amplia mejor pero sin ocupar demasiado , así que se diseña con una parte fija y otra móvil que encaja perfectamente debajo, de manera que se gana superficie cuando se trabaja sin ocupar mucho espacio el día que se mantiene una reunión.
Todo esto se completa con un sin fin de detalles que precisarían de otra publicación.
El colofón del proyecto radica en concebir un espacio singular; el módulo, algo repetitivo, del que emerge una pared “de escamas” con más de 500 piezas de madera colocadas pacientemente unas sobre otras, porque aunque no sabemos la razón, los elementos repetitivos tienen un carácter especial que aporta tranquilidad y que, simplemente, encajan.
*Créditos del artículo
Proyecto: Laura Fernández Fonseca y Pedro del Olmo Tejerina [módulo ARQUITECTOS]. Área: 09,00 m2 Año: 2017. Constructor: José Luis Fernández García. Artículo: Teresa Bahillo León [módulo ARQUITECTOS]
*Fotografías del artículo
01. Espacio de trabajo. Foto: Rafa Crespo. 02. El estudio a pie de calle, al servicio de las personas. 03. Flexibilidad del espacio con el panel plegable divisorio. 04. Planta baja 05. Vista interior: sala de reuniones, biblioteca y zona de maquetación 06. Planta alta 07. Sección transversal / longitudinal
n día cualquiera hace tres años que ahora parecen lustros, en un bar que ya no existe.
— Hemos cogido una oficinita en la Plaza del Viejo Coso para montar allí el estudio.
— ¡El Viejo Coso! uno de los más deliciosos rincones de Valladolid… ¿Y si hacemos algo interesante con unos palos?
Primero arquearon una ceja, se miraron. Luego asintieron. Vaciamos nuestras cervezas. Llegaron más.
Lutton Gant y Sonia Volpini son dos de los mejores fotógrafos de esta parte del Occidente Europeo. Siempre es fascinante observar cómo mira un fotógrafo: en cualquier rincón, en el espacio más anodino son capaces de ver lo que el resto no ve, de mirar como el resto no mira y con un leve gesto de su dedo índice, íntimamente conectado con su ojo, derecho en el caso de Sonia, izquierdo en el de Lutton; hacer click y con ello, magia.
Lutton había vuelto a Valladolid después de un tortuoso periplo
barcelonés y tenía la intención de establecerse permanentemente en la ciudad. Surgió la oportunidad de alquilar una pequeña oficina de apenas 36 m2 en esa rareza urbana y exquisita que es la Plaza del Viejo Coso y no la dejó escapar.
Era un espacio estrecho, alargado y oscuro con un horroroso suelo laminado, una nefasta acústica y una descomunal altura de casi 4 metros. En un rinconcito con un pilar en medio, junto a la entrada, se abría la única ventana del local desde donde ver el tejo centenario que preside la plaza y al fondo, a la derecha, estaba el aseo. Cuando les dieron las llaves, dos mesas enclenques y unas fotos enmarcadas constituían lo que sería el futuro estudio de fotografía. Habría que darle una vuelta.
Un fotógrafo debe ser, por definición, una persona sensible. Por tanto, su lugar de trabajo no debería ser anodino. Debería proporcionarle la serenidad necesaria para estar a gusto. También, no lo olvidemos, debería transmitir una determinada imagen, una imagen que llegase a sus clientes y que les diese la confianza necesaria para contratar sus
servicios. Y es que, al final, la vida es un negocio y para vivir antes de nada hay que sobrevivir. El primer objetivo de un local es que sea rentable y un activo, que gracias al diseño se trabaje mejor en él y se facture más.
En un espacio oblongo e insustancial había que intentar construir la base de un negocio que se cimen -
taba, literalmente, en la imagen y en la necesidad de narrar cómo entiende esta pareja de artistas la fotografía y unos valores muy concretos a sus clientes potenciales. El espacio debía ser acogedor, sencillo, amable y agradable. El presupuesto disponible era mínimo pero la confianza era máxima. ¿Podríamos conseguir algo a la altura de esas necesidades? Si usá -
bamos listones de madera adecuadamente, posiblemente, lo lograríamos. Puede que necesitásemos algo más, pero no mucho más.
A Lutton le gusta andar descalzo. Sentir el suelo donde pisa. Para Leonardo los pies eran una obra maestra de la ingeniería y el secreto placer que es liberarlos de esa cárcel llamada calzado constituye toda una declaración de principios. Si colocábamos una moqueta, de las buenas, conseguiríamos una superficie agradable a la pisada, acogedora, amable, que, además , contribuiría a la acústica del local. Tendríamos una base diferenciadora sobre la que empezar a colonizar el espacio, porque de eso se trataba, de colonizar un espacio. Y de usar listones de madera.
Podría pensarse que meter un estudio de fotografía en 30 metros
cuadrados es ir un poco justo. Pero si queríamos conseguir un espacio complejo y versátil con múltiples usos y zonas diferenciadas deberíamos emplear, además, algunos mecanismos de prestidigitador.
En MOI hemos equipado grandes espacios, hemos amueblado importantes empresas, distinguidos despachos de abogados y de altísima dirección, edificios con amplias aulas universitarias, enormes espacios de oficinas, laureadas residencias para mayores… hemos trabajado con las mejores firmas y exquisitos ebanistas y editado muebles con las más cuidadas maderas y lacados. Al final la experiencia acaba demostrando que, aunque la calidad material es importante, no es lo más importante.
Ahora teníamos que crear un pequeño universo en un espacio
constreñido y para ello contábamos con listones de pino cepillado al natural, sin ningún tratamiento, sabiendo que no eran exactamente iguales, que se iban a retorcer y la ayuda de un voluntarioso carpintero que se define a sí mismo como un clavaclavos sin muchas pretensiones de finezza. Era suficiente.
La idea, construir pequeños espacios dentro del gran espacio para ponerlo en valor, para matizarlo y para crear las distintas zonas y escalas que necesitaba el estudio.
Una larga mesa que acompaña buena parte del lateral del local sería la base donde Lutton y Sonia tendrían sus ordenadores y editarían incansablemente los centenares de miles de fotos que disparan cada año. Una luminaria de suspensión baja la escala del altísimo techo
para iluminar desde una altura de poco más de 170 cms en esa zona.
Esa mesa se apoya en un pequeño armario de almacenaje y a partir de él mediante una celosía de listones se crea un pequeño y recogido espacio donde pueden maquillarse y prepararse las y los modelos.
Con este mismo sistema se crea una mínima zona expositiva junto a la ventana anteriormente mencionada.
En la pared opuesta, se emplean los mismos listones adosados al paramento para acotar la altura, juntándolos para marcar la zona donde en un cómodo sofá se harán las reuniones con clientes, generando un espacio desenfadado en el que romper esa distancia que el fotógrafo debe conseguir traspasar a la hora de fotografiar a alguien.
Es muy importante el factor psicológico en un negocio como éste donde el cliente debe sentirse cómodo y los fotógrafos deben transmitir cercanía a la par que profesionalidad. Por eso el local debía ser una proyección de ellos mismos.
Por supuesto en el estudio deben poder hacerse fotos, tanto de personas como de producto por lo que el fondo del local se dedica a ese efecto aprovechando el largo tiro que permite la sala.
Pintando de negro la última parte y creando un falso fondo con un telón de terciopelo negro que
permite tener una amplia zona de almacenaje a modo de tramoya se genera un espacio en el que, una vez más, apoyados en la idea generadora de las celosías colonizadoras, de un falso techo de listones se articulan los mecanismos de fondos enrollables permitiendo incorporar pantógrafos y demás elementos cuando sea necesario.
En este espacio también es muy importante el control de la luz, que no existiesen luces parásitas o reflejos con dominantes de color a la hora de trabajar con flashes, rebotes ni contaminaciones del propio flash. Por ello el empleo del telón negro mate, el suelo en color
antracita y un segundo telón que cierra por completo el paso de la luz en la zona de la entrada. Este tipo de elementos crean, además, un espacio acústicamente confortable y cálido.
Pero las zonas no tienen una sola función. Todo debía ser un escenario en el que los fotógrafos pudiesen jugar a tener distintas “localizaciones” dentro del propio local. Los muebles también colaboran formando parte del propio atrezzo, desde el sofá a la mesa convertible de centro o la exquisita silla DKR de Vitra como remate del diseño
Se genera así un espacio versátil y poliédrico donde lo sensorial debe apoyar a lo etéreo. Debe transmitir confianza. Debe hacer que el cliente que entra en ese microuniverso sepa que confiando en Lutton y Sonia, no se equivoca.
01. Vista general del local. 02. Detalles del juego de listones de madera. 03. Vista desde la entrada. 04. Área de trabajo. 05. Detalle del interior. 06. Mesa de trabajo. 07. Proceso de ejecución. 08. Detalle del cambio de ritmo en los listones de madera. 09. Vista del interior del local. 10. Mesa de trabajo.
¡E l Viejo Coso! uno de los más deliciosos rincones de Valladolid…
si hacemos algo interesante con unos palos?*Imagenes del artículo.
La intervención se lleva a cabo en un antiguo local existente bajo un edificio de viviendas consolidado en los años 70, con fachada a la calle Santa Clara. Con el fin de albergar una nueva oficina inmobiliaria, es necesaria una reorganización del espacio para adaptarse a las necesidades de ese nuevo uso, formalizada en un interior reestructurado, con doble altura en la zona pública y una gran pieza de madera que, a modo de “elemento mueble”, actúa como una segunda fachada insertada al fondo y donde se ubica el resto del programa: despachos, almacenes y aseo. La pieza, de geometría sencilla, cuenta con partes opacas y transparentes que, a través de un sistema de carpinterías, permiten
mantenerla totalmente cerrada o abrir alguno de los paneles para acceder o iluminar.
Mientras que el espacio de atención al público se resuelve en un único espacio organizado apoyándose en la presencia de los dos pilares de acero, contrastados cromáticamente para de algún modo poner en valor la preexistencia, el “elemento mueble” cuenta con una sencilla escalera de acero en el interior que conecta los dos niveles.
Finalmente, al exterior, se adosan a las carpinterías existentes dos grandes bastidores metálicos que enmarcan los huecos y sirven a su vez de soporte para el rótulo de la empresa.
Autores: Arias Garrido Arquitectos SLP. Javier Arias Madero y Susana Garrido Calvo
Ubicación: c/Santa Clara 36, Valladolid Colaboradores: Beatriz Fernández García, Alberto López del Río, Lara Redondo González, Mª Eugenia Ruiz Heras
Promotor: Inmobiliaria Sotocasa (González Consulting SL)
En el próximo número de nuestra revista, bajo el título “Intervenciones en la España Vacía” queremos poner en valor todos aquellos proyectos que se han llevado a cabo en nuestra región en los últimos 5 años.
Castilla y León es una de las comunidades autónomas con un porcentaje mayor de municipios que han perdido población entre los últimos 25 años. Esta situación no ha impedido que en este territorio se hayan realizado muchas intervenciones de gran valor arquitectónico, desde la recuperación de su magnífico patrimonio, espacios públicos, edificios administrativos y por supuesto viviendas, por citar algunos ejemplos. Proyectos que se insertan en nuestro paisaje y lo revalorizan y que de alguna manera llenan esa España vacía.
La XV Bienal Española de Arquitectura y Urbanismo lleva como título “Estrategias de conciliación”, comisariada por Oscar Miguel Ares junto a Anna Bach y Eugeni Bach, trata sobre estas dos realidades que conviven en nuestro país, la España vacía y la España llena. Esta magnífica exposición se organiza en dos sedes, Barcelona y nuestra ciudad, Valladolid
Desde este número queremos hacer una reflexión acerca de cómo los arquitectos intervenimos en nuestra comunidad, en el territorio que vivimos y qué soluciones damos para mejorar la calidad de vida de sus habitantes. Podéis enviarnos un e-mail al Colegio de Arquitectos de Valladolid (COAVA) a la dirección vocalcomunicacion@coavalladolid.com. También podéis contactar con nosotros para proponer temas de números sucesivos o cualquier sugerencia que nos ayude a mejorar.
Contamos contigo.