RIOJA FRAGMENTOS Nº9

Page 1


Edita:

Colegio Oficial de Arquitectos de La Rioja

Barriocepo 40, 26001 Logroño, La Rioja www.coar.es

941 22 01 08 cultura@coar.es

Imagen de de portada: Extraída del libro "Capital de Provincia" de Carlos Romero Rey

Coordinación y edición: Javier Peña

Diseño y maquetación: Estudio Casao–Terrazas

Depósito legal: LR 411-2021

Imprime:

Editorial MIC

902 271 902 www.editorialmic.com

Las joyas de nuestro Archivo Histórico

2

PAISAJE, ENERGÍA Y ORDENACIÓN

DEL TERRITORIO

© COAR 2024

© de los textos: sus respectivos autores

© de las imágenes: sus respectivos autores

Reservados todos los derechos. La reproducción total o parcial de esta publicación, su transmisión en cualquier forma o por cualquier medio o procedimiento, ya sea electrónico o mecánico, incluidas las fotocopias, la grabación o la incorporación a un sistema informático de almacenamiento y recuperación, y la distribución de ejemplares del mismo mediante alquiler o préstamos públicos no están permitidos sin la autorización previa del Colegio de Arquitectos de La Rioja (COAR).

Las joyas de nuestro Archivo Histórico

Hay que vivir, amigo mío, antes que nada, hay que vivir, y ya va haciendo frío. Hay que burlar ese futuro, que empieza a hacerse muro en ti” .

Así cantaba, en el año 1980, Joan Baptista Humet, en un himno a la esperanza y al deseo de vivir. Vivir, un regalo al que cada persona intenta dar sentido, para ser feliz, y puestos a conseguirlo, saber o poder convertir el espacio construido que le toca habitar, sola o en compañía, en un auténtico hogar. Nadie puede negar que los profesionales de la arquitectura podemos favorecer mucho, con nuestro trabajo, esa legítima aspiración, ya que nadie puede dudar que somos los técnicos más adecuados, por formación específica y vocación, para afrontar el diseño de una vivienda. Por eso nunca acabamos de estudiar y aprender a lo largo del tiempo, nunca acabamos de sondear nuevas soluciones habitacionales y nunca nos cansamos de valorar y analizar las buenas propuestas de vivienda de quienes nos precedieron en el oficio. En ese sentido, en el Archivo Histórico del COAR custodiamos muy buenos ejemplos de planos y memorias de proyectos de viviendas, unifamiliares o colectivas, algunas de innegable calidad e interés. Hoy queremos destacar entre todos ellos, el edificio de viviendas diseñado por el arquitecto Agapito del Valle en el año 1939, ubicado en la calle Vara del Rey nº 7 de la ciudad de Logroño. Es conocido como el Edificio del gasógeno, por la similitud de su torreón en esquina con un surtidor cilíndrico de dicho combustible en la posguerra, o también como la Casa del torero, dedicada por su oficio a un tal Noaín, uno de los promotores. Este edificio colectivo de viviendas es calificado, en alguna publicación, como icono del racionalismo, especialmente por su singular torreón, siendo vinculado también con el expresionismo como movimiento artístico. Sea como fuere, nos

encontramos, sin duda, con un edificio notable, vinculado efectivamente a una interpretación particular del arquitecto de ambas tendencias estilísticas.

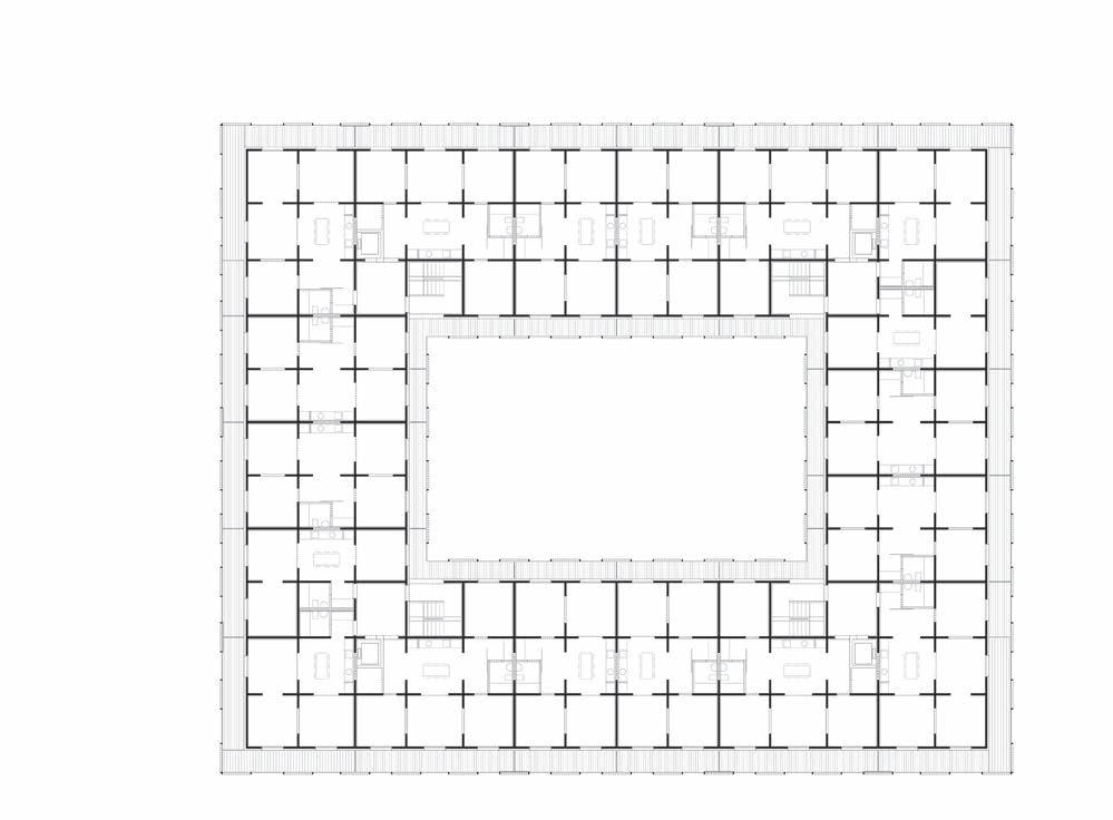
Se trata de un inmueble con un volumen importante, desarrollado en planta baja, entreplanta y cinco alturas, en el que destaca, efectivamente, su solución de torreón en esquina que se alza por encima del conjunto construido, con una serie de espléndidos ventanales curvos abiertos al Paseo del Espolón. Hay quienes encuentran una semejanza razonable con el famoso edificio Carrión en Madrid, proyectado por los arquitectos Luis Martinez Feduchi y Vicente Eced en el año 1931, si bien la verticalidad en el ejemplo madrileño resulta más acentuada que en el logroñés, donde la horizontalidad se desarrolla con más fuerza, dado el volumen de los cuerpos laterales que flanquean el torreón.

La planta muestra una clara organización en torno a tres núcleos verticales de comunicación e iluminación y ventilación naturales, con el apoyo de seis patios de luces, de modo que cada núcleo de escalera sirve a dos viviendas, con una distribución muy acorde a la zona de ensanche propia de aquellos difíciles años. Predomina la orientación norte-sur en las viviendas, abiertas a calle y patio de manzana, muy favorable en la ciudad.

Las fachadas juegan adecuadamente con los materiales, fábricas de ladrillo con morteros y hormigón visto, disponiendo paños lisos con fajas decorativas y suaves almohadillados, así como se combinan los diversos tipos de huecos, dispuestos en un escalonado suave de paños que conduce la mirada a la cúspide del torreón cilíndrico de esquina, utilizando dinteles rectos, pero también arcos

de medio punto, donde los aparejos de ladrillo se matizan con buen oficio. En ese sentido, los ojos de buey se combinan con los ventanales de grandes dimensiones y el resto de huecos cuadrangulares, y destacan ubicados en las zonas altas del edificio.

¿Racionalismo? ¿Expresionismo? ¿Influencia del Art decó en las ménsulas y los herrajes? En todo caso, un espléndido edificio de viviendas amplias, luminosas y bien ventiladas, racionalmente distribuidas, que abren vistas a la ciudad y la ciudad a ellas, por que es un disfrute contemplar su volumen y sus fachadas. Sin duda, un espacio pensado para vivir...

Iñaki Gómez

↓ Alzado de bloque de viviendas, fachada Vara de Rey.

“Habrá que demoler barreras, crear nuevas maneras y alzar otra verdad. Desempolvar viejas creencias que hablaban en esencia sobre la simplicidad. Darles a nuestros hijos, el credo y el hechizo del alba y el rescoldo en el hogar. Y si aún nos queda algo de tiempo, poner la cara al viento y aventurarnos a soñar.”

↑ Planta de bloque de viviendas.

Alzados de bloque de viviendas, fachadas a Calvo Sotelo y Vara de Rey.

OPINIÓN BORJA LÓPEZ

Ilustración: Carlos López @mr_legaz

Últimamente asistimos a una proliferación de proyectos de infraestructuras para la generación de electricidad a partir de fuentes renovables como el sol, el viento y el agua. No es casual. Esta situación está impulsada desde la misma Unión Europea, que insiste en la importancia de que la producción de energía renovable aumente en todo el continente.

Hay dos razones principales para esta política: por un lado, reducir las emisiones de CO2 y así mitigar el cambio climático; y por otro, disminuir la alta dependencia de Europa respecto a los combustibles fósiles. Esta última razón ocupa menos espacio en los medios de comunicación, pero es igualmente importante: el petróleo y el gas escasean en Europa, por lo que dependemos de terceros países para conseguirlos, algo arriesgado en el contexto actual de creciente inestabilidad geopolítica y mayor competencia por los recursos a nivel mundial. La invasión de Ucrania es un ejemplo de cómo circunstancias externas pueden provocar un encarecimiento de las fuentes de energía que más utilizamos, afectando con ello a nuestra economía. Por ello, la Unión Europea promueve un aumento de la producción de energía renovable, mejorando la independencia energética a la vez que se reduce la generación de CO2, al menos durante el largo periodo de tiempo que será necesario para avanzar en la verdadera solución: disminuir el consumo total de energía de manera sustancial (edificios mejor aislados, movilidad sostenible, procesos productivos más eficientes, etc.). Sin embargo, el cambio de modelo energético que propone Europa no está exento de inconvenientes. En primer lugar, requiere una transformación importante del sistema productivo y de las pautas de consumo. Además, necesitará consumir un gran volumen de materiales para producir los nuevos equipos generadores (placas fotovoltaicas, aerogeneradores), sistemas de almacenamiento (baterías) o artículos de consumo actualmente no electrificados (sobre todo vehículos). También será necesario ampliar la red de

transporte de energía eléctrica con nuevas líneas de media y alta tensión a través del territorio. Y por último, todo ello tendrá un impacto inevitable sobre el paisaje y el medio ambiente, consumiendo importantes cantidades de suelo (especialmente la producción fotovoltaica), generando elementos difícilmente ocultables a la vista (en esto destacan los aerogeneradores y los tendidos aéreos de alta tensión), y afectando a los ecosistemas naturales. En cualquier caso, las infraestructuras energéticas no son las únicas que modificarán el medio ambiente y el paisaje de regiones como La Rioja. Las redes de transporte, tanto de carreteras como de ferrocarril, también producirán un impacto importante si se materializan futuros proyectos como, por ejemplo, la alta velocidad ferroviaria o el desdoblamiento de la carretera nacional N-232.

En realidad, el hombre lleva milenios modificando el paisaje con escasa preocupación por los resultados estéticos o por la desaparición de legados culturales. De hecho, el concepto de paisaje es relativamente reciente, al menos como concepto merecedor de protección por parte de las instituciones, y no deja de ser subjetivo, pues su valor depende de la mirada del hombre sobre el entorno. Agricultores y ganaderos han sido tradicionalmente los grandes transformadores del paisaje. Por ejemplo, si pudiéramos retroceder 200 o 300 años en el tiempo, nos sorprendería ver la montaña riojana prácticamente despoblada de árboles, en una época en que la ganadería aprovechaba cualquier terreno para pastos. En La Rioja actual tenemos el ejemplo de la viticultura, una actividad que define en buena medida el paisaje de la mitad

norte de la región y que está en permanente transformación en función de los cambios tecnológicos: hoy día se impone la plantación de viñas en espaldera, generando unas características visuales diferentes a las tradicionales. Al menos, el cambio de modelo de las explotaciones agropecuarias suele ser un proceso sutil y lento, que es una de las mejores formas de modificar un paisaje sin generar un fuerte impacto.

Por el contrario, las grandes infraestructuras, ya sean energéticas o de comunicaciones, se construyen de golpe: en unos pocos meses el paisaje recibe un fuerte impacto con la aparición de elementos totalmente ajenos al mismo. En el entorno de Logroño se puede ver ahora, en su peor momento, que siempre es la fase de obras, el importante impacto de los nuevos enlaces de la Ronda Sur, que afectan incluso al Camino de Santiago, una ruta cultural y paisajística que debiera estar mejor tratada. Aquí es donde surge el problema: las gentes que habitan los territorios donde aparece (o amenaza con aparecer) una gran infraestructura se quejan de la degradación del paisaje. Incluso se solidarizan con ellos habitantes de las áreas urbanas que, paradójicamente, suelen ser los principales beneficiados por esas nuevas infraestructuras.

¿Debemos por tanto renunciar a la posibilidad de conseguir la energía que necesitamos sin recurrir a los inestables mercados internacionales? ¿Y a disfrutar de mejores comunicaciones? Desde luego que no. Existe una forma de lograr una mejor coordinación y acuerdo entre los muy diferentes intereses que confluyen en el paisaje y el territorio. Se trata de la Ordenación del Territorio, un instrumento de planificación espacial cuyo objetivo es, precisamente, organizar cómo se utiliza el territorio para atender el mayor número posible de necesidades económicas y sociales con el menor impacto sobre el medio ambiente y el patrimonio paisajístico.

La Ordenación del Territorio es una competencia atribuida a las comunidades autónomas por la Constitución Española, pero que no siempre se utiliza en toda su plenitud. La Rioja es una de las siete

comunidades autónomas de España que no cuenta con un Plan de Ordenación del Territorio completo. Sí dispone de algunos planes de ordenación territorial de carácter parcial (el Plan Especial del Alto Oja, por ejemplo) o de carácter sectorial (como la Directriz de Protección del Suelo No Urbanizable o el Plan Especial del Camino de Santiago). Pero no hay un instrumento de Ordenación Territorial de carácter integral, a pesar de que la LOTUR establece en su Disposición Adicional Primera que el Gobierno de La Rioja enviaría al Parlamento el proyecto de Estrategia Territorial de La Rioja a los 2 años de aprobada esa ley, es decir, en 2008. Se empezó a redactar un documento que incluso se publicó en forma de Avance, pero nada más se supo desde 2010.

Mientras tanto, otras comunidades autónomas cercanas si cuentan con instrumentos de ordenación territorial e incluso están preparando planes concretos para regular las infraestructuras energéticas1, lo cual les da una ventaja a la hora de condicionar el desarrollo de ciertas infraestructuras en su territorio. La falta de ordenación territorial en La Rioja nos deja en desventaja a este respecto e impide abordar la transición energética de forma ordenada.

En conclusión, toda actividad humana deja su huella en el paisaje. La diferencia estriba en si esas actividades están organizadas y coordinadas a través de la planificación territorial, o bien se deja que se desarrollen en función de intereses sectoriales y particulares. Por ello, es clave que la administración regional asuma el papel de árbitro que le encomienda la Constitución Española y el propio Estatuto de Autonomía de La Rioja. Sin Ordenación del Territorio, la transformación del paisaje seguirá siendo el resultado de actuaciones y proyectos descoordinados, que nos escandalizarán puntualmente, pero contra los cuales no tendremos argumentos fuertes con los que defender un patrimonio que nos pertenece a todos, incluidas las futuras generaciones.

1

En el País Vasco están elaborando el Plan Territorial Sectorial de las Energías Renovables (disponible en https://www.euskadi.eus/proceso-parala-elaboracion-del-plan-territorialsectorial-de-las-energias-renovables-eneuskadi/web01-a2energi/es/)

LA CIUDAD CONSTRUIDA A PARTIR DE SU PROPIA DESTRUCCIÓN

Una de las posibles relaciones entre el cine y la arquitectura surge del encuentro de la cámara con el espacio urbano.

Ha sido bajo este principio cuando durante los primeros años del siglo XX fueron surgiendo unos particulares films conocidos como Sinfonías de Ciudad donde Manhatta de Charles Sheeler (1922), Berlín Sinfonía de Ciudad de Walter Ruttmann (1929), El hombre de la cámara de Dziga Vertov (1929), A propósito de Niza de Jean Vigo (1930), Lluvia de Joris Ivens (1929) o Rien que les hures de Alberto Cavalcanti (1926) habían sido algunas de las más representativas de la época. Toda ciudad puede ser considerada como un organismo vivo en continua transformación que se organiza a través de sus monumentos, calles o espacios públicos, los que al encontrarse con sus habitantes van construyendo una memoria urbana tanto individual como colectiva. Estos lugares comunes no son algo menor ya que con el tiempo se transforman en símbolos de la ciudad. Respecto a esto, podríamos tomar como ejemplo el film Vacaciones en Roma de William Wyler (1953), donde Roma es presentada a través de un recorrido que los personajes van realizando por los diferentes monumentos turísticos (1). Es de esta manera como la ciudad se representa cinematográficamente utilizando sus postales más

conocidas. La parte por el todo se había puesto en funcionamiento. Pero; ¿qué sucede si todo desaparece?

CONSTRUIR CON LO QUE HAY

Al término de la segunda guerra mundial las ciudades sufrieron un gran cambio. El paso de las bombas lo transformaron todo. Ya no había monumentos, ni plazas, ni referencias claras. Aquel paisaje urbano grabado en la retina de la población se había transformado en un territorio desértico e infinito donde todo parecía igual y donde la topografía se había modificado con la aparición de innumerables montañas de escombros que la gente necesariamente tenía que bordear o escalar para ir de un lado a otro. Las casas carecían de puertas o ventanas y sus tejados habían desaparecido modificando bruscamente la relación entre la ciudad y sus habitantes; donde la diferenciación entre lo público y lo privado se había desfigurado y donde el límite entre interior y exterior había saltado por los aires.

Vacaciones en Roma. La ciudad se va presentando a través de un recorrido por sus diferentes monumentos.

Dentro de este contexto de destrucción y desolación, el cine tomará una decisión importante. Abandonando los estudios, o lo que quedaban de ellos, la cámara cinematográfica volverá a recorrer las calles como lo había hecho en aquellas Sinfonías, pero esta vez en lugar de ciudades en ebullición y movimiento, se encontrará con algo muy diferente. Introduciendo la cámara en estos entornos tan reales como desconcertantes, el cine incorporará la ficción iniciando una búsqueda que utilice como materia prima “lo que hay”; transformando a toda la ciudad en un gran plató cinematográfico.

La cámara entonces, se aprovechará de este nuevo contexto utilizándolo como un espacio tan real como imaginario a través del cual se irán construyendo las diferentes ficciones dando como resultado un cine donde la realidad urbana documental de la época se fusionará con la "fantasía" de la ficción, desdibujando los límites de la representación clásica.

Una nueva manera de construir el espacio urbano aflora de la mano de la experimentación basada únicamente en lo que queda al alcance de la mano, es decir, de la destrucción.

Será entonces, como a partir del encuentro de la cámara con estos entornos rotos, surgirá una ciudad construida a partir de su propia destrucción.

Un buen ejemplo de esto lo podemos encontrar en el inicio del film Berlín Occidente de Billy Wilder (1948) cuando al término de la guerra, representantes americanos llegan en avión a una Berlín irreconocible y completamente destruida. A través de sus ventanillas pueden ver desde el aire, el estado de la ciudad. El paisaje desde el cielo es terroríficamente homogéneo. Todo está destruido. No existen referencias claras ni ningún elemento urbano que destaque del conjunto. Las casas se entremezclan con las calles y como los techos han dejado de existir, podemos ver de que manera los interiores han quedado al aire libre.

El uso de la gran escala ayuda a presentarnos una idea general del sitio donde están llegando. Se trata de un plano aéreo que podría asimilarse a una representación en planta de la ciudad donde los volúmenes se aplanan para ofrecernos la visión general de una gran ruina (2).

Aquella gran ciudad en ebullición de búsquedas, y de expresión de movimiento que unos años antes habíamos visto en Berlín Sinfonia de ciudad y en tantos otros films, sencillamente estaba reducida a escombros. Las postales de ciudad habían dejado de existir.

En Berlín Express de Jacques Tourneur (1948), cuando la cámara baja a pie de calle, vamos descubriendo lo que queda de la ciudad guiados por un general americano que nos pasea por las ruinas de los distintos lugares más representativos del nazismo, estableciéndose una relación directa en términos representacionales con la manera utilizada en Vacaciones en Roma, es decir, mostrar la ciudad a través de la parte por el todo, que en este caso, en lugar de ser los tópicos urbanos, se hace utilizando lo que queda de esa ciudad, a la los personajes se refieren como un monumento en ruinas.

El tour nos pasea por la avenida Unter der Linden que aparece sin árboles ni edificios; luego pasamos por la puerta del hotel Adlon completamente abandonado, destruido y con sus puertas y ventanas tapeadas. La puerta de Brandeburgo aparece a lo lejos llena de marcas de disparos. El recorrido termina con el edificio del Reichstag al fondo que aparece como un gigante en ruinas (3).

La ciudad de Berlín es construida cinematográficamente mediante una serie de lugares que en otro tiempo habían sido iconos del poder; pero que en el presente se han transformado en ruinas. La incorporación de una ficción en la ciudad real, hará que el cine pueda dar un sentido a la destrucción presentando un conjunto donde el espacio urbano surge como algo diferente a lo anteriormente conocido.

2 ↑ ↗ →

Berlín Occidente. Vemos la ciudad de Berlín totalmente transformada en un territorio desértico e infinito. El cine nos muestra el espacio donde introducirá su cámara para construir ficciones.

3 →

Berlín Express. A partir de un recorrido por algunos de los lugares emblemáticos del nazismo podemos ver la ciudad que fué. Ahora en ruinas. ser plana a oblicua.

4 ↑

Paisá. Las montañas de escombros modifican la relación con el ciudadano que tiene que escalarlas para poder caminar por la ciudad. Su relación con la topografía urbana pasa de ser plana a oblicua.

5 →

Alemania año cero. La ciudad es utilizada como un gran plató de cine donde el personaje vagabundea entre sus muros en ruinas donde la relación entre interior y exterior o entre lo público y lo privado ha saltado por los aires.

Paisá de Roberto Rossellini (1946), es otro de los ejemplos. En el capítulo de Florencia podemos ver el deambular de los personajes por las calles de esta ciudad. Las innumerables montañas de escombros han alterado la topografía urbana que ha pasado de ser plana a ser irregular transformando al espacio urbano. Caminar por la ciudad provoca una nueva relación física con el cuerpo (4).

El film Alemania año cero de Roberto Rossellini (1948), es el exponente más claro que surge como resultado directo de la aplicación de este procedimiento constructivo. Toda la película esta trabajada a partir de la escala peatonal. En ella Berlín aparece como un paisaje laberíntico e infinito que el personaje de este film tiene que recorrer sin percibir ningún tipo de referencias urbanas claras. Las casas ya no son casas, sino esculturas rotas, sin techo que sirven como paredes del enorme laberinto en el que se ha transformado la ciudad (5).

Es de esta manera como el cine se sirvió de la

ciudad existente para experimentar con el espacio. Durante este período la ciudad destruida pasó a ser un personaje más en la cinematografía ya que en realidad solo le quedaba construir con lo que había. Y lo que se tenía, eran ciudades devastadas. El cine no tenía otro camino que utilizar la realidad para introducir sus historias y transformar la ciudad mediante sus imágenes permitiendo ofrecer a la representación una nueva manera de ver, analizar y entender la realidad.

No olvidemos que muchas veces, aunque la realidad supere a la ficción; la ficción tiene la gran cualidad de poder acercarnos a la realidad.

ENTREVISTA: CARLOS ROMERO REY, AUTOR DE “CAPITAL DE PROVINCIA”

ENTREVISTA

POR MARÍA BENI EZQUERRO

Podríamos decir que Logroño es una capital de comunidad autónoma más bien pequeña. También podríamos decir que Logroño es una capital de provincia más bien grande. En todo caso, es un buen ejemplo de ciudad (mediana) desde la que hablar de algunos asuntos generalizables a otras muchas ciudades del interior de la península como, por ejemplo, Cáceres.

Carlos Romero Rey es magistrado y autor del libro Capital de provincia, galardonado con el premio FAD de pensamiento y crítica del año 2022. Desde una ciudad mediana del interior como lo es Cáceres, Carlos Romero desgrana una serie de problemáticas ―e insinúa algunas posibles soluciones― a asuntos tan extrapolables a Logroño como la indiferencia frente a un urbanismo "desparramado", el abandono del centro, la alarmante pérdida de población joven o la desafección ciudadana por ciertas áreas de la ciudad.

El libro queda reseñado así: «Entre las grandes urbes y el pintoresquismo rural existe un conjunto de núcleos urbanos que parecen haberse instalado en tierra de nadie. Capitales de provincia que a menudo se esconden tras un rico legado histórico para no afrontar un futuro incierto. Víctimas del centralismo estatal, el desapego institucional y la desafección ciudadana, este entramado de ciudades que sostiene el mapa del país se encuentra más necesitado que nunca de atención y de política». Por todo ello, es un placer entrevistarlo en el contexto de la revista del Colegio de Arquitectos de La Rioja y repasar algunas de las situaciones que compartimos con la ciudad extremeña, y con muchas otras ciudades del interior.

P: En el libro habla de su ciudad natal, Cáceres, pero si le hemos propuesto esta entrevista ―de ámbito local― es porque nos parece que ya escribe pensando en una cierta extrapolación de su tesis a otros municipios. ¿Piensa que todas las “capitales de provincia” podrían aplicar estrategias similares?

R: Mi objetivo, efectivamente, era abordar el tema de la ciudad mediana de manera amplia, pero no quería incurrir en generalizaciones que hicieran perder el punto de vista del lector. Por eso pensé que lo más honesto era abordar toda una serie de problemas comunes a través de la ciudad mediana que mejor conocía, que era la ciudad en la que nací y en la que he vivido una buena parte de mi vida. A pesar de que en todos los casos mis reflexiones parten de experiencias personales concretas, acaban generando conclusiones o propuestas que son aplicables a cualquier ciudad española de tamaño medio.

P: Hay una escena de la película de Juan Antonio Bardem Calle Mayor, ambientada en Logroño en los años 50, en la que un escritor forastero recién llegado de la capital explica que Madrid es todo mentira y todo neón, que la verdad del país está en las ciudades pequeñas, en sus rutinas y en su calle mayor. ¿Hay algo de eso en su afirmación de que «Ser de provincias ha dejado de ser una desventaja para convertirse en un puesto de observación y reflexión inmejorable sobre el mundo»?

R: Es cierto que las grandes urbes han representado para muchos un ejercicio de escapismo frente a una vida que se les antojaba atosigante en provincias. Y en esos escenarios escapistas es más fácil autoconstruirte una realidad que no deja de resultar artificiosa. Pero a su vez, esa vida en la gran ciudad, rodeada de estímulos, dificulta un posicionamiento sereno que sí lo facilita estar más cerca de la periferia.

P: Sobre esto último, usted habla de la pérdida de significado de las ciudades intermedias y, sin embargo, plantea que son más necesarias que nunca frente a las grandes urbes. ¿A qué se refiere?

R: Creo que las ciudades medianas, lo que podríamos entender en nuestro país por la mayor parte de las capitales de provincia y la manera en la que desarrollamos nuestra vida en ellas, han dejado de formar parte de los debates colectivos, que se han centrado mucho más en el potencial expansivo de las grandes urbes o en el pintoresco y exótico regreso a lo rural. Pero creo, sinceramente, que las ciudades medianas son la única receta de sostenibilidad, tanto en lo medioambiental como en lo social. Tienen el tamaño suficiente como para generar economías de escala que no resulten desmesuradas y permiten una sociabilidad menos fragmentada e inclusiva, con menores grados de desigualdad social.

Las capitales de provincia y la manera en la que desarrollamos nuestra vida en ellas, han dejado de formar parte de los debates colectivos.

P: En el libro habla de la descentralización territorial como una solución al abandono institucional de las “capitales de provincia”. ¿Es realmente la panacea para ciudades como Cáceres o Logroño que sufren un estancamiento poblacional alarmante?

R: Vivimos en un Estado que presume de ser descentralizado y ese reparto de los centros de toma de decisión creo que ha tenido unos enormes efectos benéficos. Pero esto no se compadece con que la presencia de las instituciones del Estado, o al menos de las más simbólicas, se concentre casi exclusivamente en Madrid. Ni siquiera tras la Constitución de 1978 los nuevos espacios institucionales surgidos con el advenimiento de la democracia han sopesado implantarse en otras ciudades españolas, lo que hubiera permitido hacerlas más presentes en el imaginario colectivo, vislumbrarlas como posibilidades reales de vida allí y equilibrar el peso tanto económico como cultural y social en todo el territorio.

P: Y, sin embargo, también argumenta la necesaria “re–centralización” de las ciudades medianas contra el proceso de desparramamiento urbano. ¿Cómo se entiende que en ciudades sin apenas aumento de población las periferias sigan creciendo a buen ritmo? ¿Qué atractivo pueden tener frente al centro, antiguo o no?

R: Se ha potenciado, también desde el sector público, una exagerada construcción de nuevas promociones de vivienda, con la consiguiente sobreocupación del suelo, sin llevar a cabo estudios previos y realistas del estado del parque de vivienda en cuanto a ocupación y necesidades. Se trataba de iniciativas cortoplacistas que convenían a las arcas municipales porque las dotaban de más ingresos y eximían al ciudadano de repensar cómo habitar de nuevo la ciudad consolidada y que convenían especialmente a los promotores inmobiliarios. Pero creo que la rehabilitación, la reutilización, la dotación de nuevos usos, posibilidades y potencialidades resulta esencial para ofrecer racionalidad y sensatez al urbanismo y a nuestras ciudades.

P: Pero insuflar vida a zonas urbanas en proceso de abandono no es únicamente tarea de los poderes públicos, sino que implica también una toma de postura personal que ha de ejercerse con responsabilidad y compromiso. ¿De dónde cree que viene la desafección ciudadana por el centro de las ciudades, o, usando sus propias palabras, por qué cree que existe un déficit de cariño hacia nuestros centros?

R: Existe un doble orden de causas, a mi juicio. En primer lugar, existen determinados centros urbanos, especialmente en ciudades históricas, donde la vida en el centro se

A CARLOS ROMERO REY AUTOR DE “CAPITAL DE PROVINCIA”

ha convertido en algo incómodo puesto que se han reinventado para hacerlas atractivas para el turista más que para los vecinos; parques temáticos que se han traducido en una sobreabundancia de viviendas turísticas, de privatización del espacio público y que, en muchos casos, han expulsado al residente tradicional. Por otro lado, muchos ciudadanos han preferido el “folio en blanco” de una nueva construcción en una nueva urbanización, donde no te encuentras con las limitaciones y el agotamiento emocional que sentían en el centro de la ciudad. Creo que esto es un error y que ha venido favorecido por insuficientes políticas públicas de fomento de la rehabilitación, reutilización y puesta en valor de los centros históricos y de los ámbitos urbanos consolidados.

P: Hay una frase de su libro que sacada de contexto podría malinterpretarse. Dice algo así como: «…la única opción de futuro ha de construirse más desde lo político que desde lo cultural» ¿Cree que la cultura corre el riesgo de instrumentalizarse? En La Rioja, por ejemplo, la supuesta cultura del vino, o todo lo relativo al Camino de Santiago, monopolizan la agenda de la ciudad…

R: La cultura es esencial para la vida ciudadana, pero efectivamente, se ha instrumentalizado en un buen número de ocasiones utilizándola como mero reclamo turístico o detonante de operaciones inmobiliarias y especulativas.

P: Parece que el estudio de las ciudades desde la disciplina de las leyes y del derecho no le parecen suficientes. ¿De dónde le viene el interés por la arquitectura y especialmente por el arte como metodología de investigación y de especulación urbana?

R: Para mí nunca han sido campos separados. De hecho, en una determinada época en la que impartía clases de urbanismo, las primeras sesiones siempre las dedicaba a caminar con los alumnos por determinadas zonas para tratar de encontrar sentido a por qué esa parte de la ciudad se había urbanizado (o no); por qué la arquitectura era de una determinada forma; cómo se transitaba por ella y qué cuestiones surgían o a qué análisis podíamos llegar. Creo, por otro lado, que el arte nos permite contemplar determinadas realidades desde nuevos puntos de vista, más excéntricos, más periféricos y de los que pueden surgir reflexiones especialmente fértiles y productivas.

P: De hecho propone, entre otras cosas, incorporar elementos artísticos que doten de un mayor valor a las nuevas construcciones. Si hacemos extensiva su propuesta al espacio público, en Logroño se celebra anualmente un festival de arquitectura efímera, Concéntrico, que actúa en ese sentido, alterando a través de instalaciones la percepción y el uso que los ciudadanos tienen de determinadas áreas de la ciudad, situadas casi siempre en el casco viejo. ¿cree que el arte puede operar como método reparador de esas áreas deterioradas u olvidadas?

R: Sin ninguna duda, pero creo que también es importante la involucración ciudadana y que las propuestas artísticas que se incorporen al espacio público o a las nuevas construcciones sean visualizadas por los vecinos como algo propio, que las interioricen como algo que genera un valor cultural y emocional. Lo cual es algo que va más

Existe toda una maquinaria interesada en generarnos una sensación de falsa libertad individual a través de la compra de un vehículo y su desproporcionada utilización en un entorno colapsado como es el entorno urbano.

allá de que les guste o no les guste, que lo consideren atractivo o no. Esto último es algo meramente superficial, lo importante sería que tomáramos en consideración el valor añadido que esos elementos culturales pueden imprimir a nuestro escenario de vida en común.

P: Pero, muchas veces, existe cierta reticencia ciudadana frente a cualquier intervención contemporánea en los centros históricos. En Logroño, se ha hecho muy polémico un proyecto de Kengo Kuma para unas oficinas de una empresa tecnológica en pleno casco viejo. ¿Por qué cree que existe este miedo a “lo nuevo”?, o, usando una de las frases de su libro: ¿Son las cosas que no conocemos las que cambiarán nuestra vida?

R: Esa es una frase de Wolf Vostell que se utilizó en Cáceres en un momento dado en el marco de una polémica que había surgido acerca de una intervención de arquitectura contemporánea también en pleno casco histórico. Polémica que, por cierto, no tomó en consideración que precisamente el valor de los conjuntos históricos es la superposición de épocas, estilos y discursos. Creo que uno de los síntomas que mejor reflejan que una sociedad está sana desde el punto de vista cultural es la curiosidad. Pongo un ejemplo totalmente personal: a principios de los 2000 yo aún vivía en Cáceres y fui a Madrid a ver una exposición de Ana Laura Aláez en el Museo Reina Sofía. Había convertido algunas salas en un club, con djs, proyecciones… yo no entendí absolutamente nada de lo que significaba estar asistiendo a eso en un museo tan canónico como el Reina Sofía, pero no necesité saber en ese momento nada de lo que significaba el arte relacional o la trayectoria de la artista para salir de allí maravillado y pensando que en el arte contemporáneo todo ―absolutamente todo― era posible. Y poco después me pasó algo parecido con una exposición de Jon Mikel Euba en la galería Soledad Lorenzo. Se trataba de propuestas que escapaban de mi control y mi conocimiento, pero precisamente por eso, resultaban tan transformadoras para mí y afilaban mi curiosidad.

P: También observamos ciertos paralelismos cuando explica que en Cáceres se le encargó, a Álvaro Siza, un proyecto desorbitado de miles de nuevas viviendas totalmente desconectadas del centro. En Logroño contamos

con un ejemplo similar, construido en 2012, por Toyo Ito ―parece que apostamos por los japoneses…― ¿Cree que recurrir a los arquitectos estrella es una forma de justificación, por parte de los políticos, para validar ciertos proyectos descabellados?

R: Desde luego no existiría la necesidad de “vestir” y justificar proyectos poco realistas si previamente se hubiera llevado a cabo un amplio y minucioso proceso de reflexión sobre las necesidades reales de la ciudad y de sus habitantes. En cualquier caso, creo que también sería conveniente analizar el papel que la disciplina arquitectónica ha desempeñado en las últimas décadas y si no se ha dejado instrumentalizar ―interesadamente y de manera acrítica― por ciertas estrategias hegemónicas de poder que, sin duda, han coadyuvado a una sobreconstrucción innecesaria, a un desmesurado aumento de ocupación del suelo y a un empobrecimiento, en definitiva, de la calidad de la vida urbana.

P: Estos nuevos barrios desconectados y alejados del centro suelen, además, venir de la mano de alguna gran superficie comercial (que en parte ayuda a financiarlos) concentrando toda la actividad en un solo punto y produciendo una dramática pérdida de tejido comercial a escala de barrio. ¿Qué haremos con tantos locales vacíos, que además también se multiplican en nuestros centros?

R: Creo que incluso estas grandes superficies comerciales están llamadas a desaparecer o, al menos, a redimensionarse; porque estamos asistiendo a un acelerado proceso de modificación de nuestros hábitos de consumo, en el que el ciudadano no necesariamente acude al espacio público para adquirir bienes y servicios. Por lo tanto, efectivamente, estas nuevas maneras resignificarán el antiguo tejido comercial de barrio y tendremos que pensar nuevos usos para todas esas superficies. Todo esto es enormemente importante porque probablemente uno de los actos de mayor carga política que llevamos a cabo es el del consumo.

P: Otro asunto derivado es cómo llegar a estos nuevos barrios periféricos, ¿sólo son accesibles en coche? En Logroño, la movilidad urbana se ha convertido en un asunto no solo político sino casi ideológico, cuando no debería serlo. Si hay una cosa positiva de las ciudades pequeñas es que son perfectamente “caminables”. La famosa ciudad de los 15 minutos es Cáceres, o Logroño, literalmente. ¿Cómo cree que afectarán los cambios en las dinámicas de movilidad intra y peri–urbana a las ciudades en el futuro?

R: Es una obviedad, pero no cabe duda de que la forma más sostenible de movilidad urbana es caminar y esto es algo perfectamente factible y deseable en la ciudad mediana. Pero existe toda una maquinaria interesada en generarnos una sensación de falsa libertad individual a través de la compra de un vehículo y su desproporcionada utilización en un entorno colapsado como es el entorno urbano.

P: Un argumento que nos resulta interesante de su libro es que hace una defensa, aunque discreta, por los crecimientos “desarrollistas” de los años 60. ¿Cree que, a pesar de todas las críticas, el modelo de barrio que propo-

A CARLOS ROMERO REY AUTOR DE “CAPITAL DE PROVINCIA”
Se debería promover por las administraciones una apuesta real por nuevas formas de convivencia que tengan reflejo a su vez en una nueva manera de construir interesante y propositiva.

nen es más válido que el de las nuevas periferias hechas a partir del fin de siglo? ¿Incluso estéticamente? Ahora parece que todo han de ser edificios de franjas blancas y negras…

R: Como espectador de la ciudad y de las nuevas propuestas constructivas, también me resulta sorprendente esta uniformidad que señalas en la última frase, que se está produciendo en todas las ciudades en los últimos años. Por el bien de la arquitectura y de la construcción, creo que se debería promover por las administraciones una apuesta real por nuevas formas de convivencia que tengan reflejo a su vez en una nueva manera de construir interesante y propositiva que leguemos a nuestros descendientes, de la misma manera que nosotros hemos recibido y disfrutado de las innovaciones que a lo largo de los siglos la sociedad ha ido aplicando a nuestra forma de vida. Como dijo Rem Koolhaas, «la arquitectura está más relacionada con la acción política que con la belleza». Por lo que se refiere al “desarrollismo” y a su supuesta mala imagen, lo cierto es que ese tipo de crecimiento resultaba más compacto y, por lo tanto, más eficiente desde el punto de vista de la sostenibilidad. Las nuevas propuestas de desarrollo urbano, con grandes avenidas y baja densidad, además de suponer una sobredimensionada ocupación de suelo y de consumo de recursos públicos para dotarlas de servicios, responden peor a las crisis climáticas, de sociabilidad, etc.

P: Y, para terminar; yo, al igual que usted, también me marché de Logroño y me gusta pensar que escribo con cierta condición de observadora externa de la ciudad. ¿Puede ser que una de las conclusiones de su ensayo, escrito “desde fuera”, sea que no habría por qué irse si las cosas se hiciesen de otra manera?

R: O al menos, que quedarnos o volver sea una posibilidad real y positiva. Sin duda las nuevas tecnologías han de facilitar el acceso a todas las posibilidades laborales y de desarrollo personal sin que impliquen tener que marcharse.

Diciembre de 2023

Carlos Romero Rey (Cáceres, 1973) es doctor en Derecho y magistrado. Su tesis se centró en los distintos modos de crear ciudad y ha dedicado una parte importante de su trayectoria profesional al urbanismo. Paralelamente, ha impartido clases en la Universidad Carlos III de Madrid y en otros centros y ha desarrollado una intensa labor de carácter curatorial y editorial.

ARQUITECTURAS QUE FUERON — CAPÍTULO I

REPORTAJE ISABEL MUÑOZ

EL MUEBLE URBANO

El Espolón. Postal de la Imprenta y Librería Hijos de Merino. Fuente: red social.
“Der zeit ihre kunst, der kuns ihre freiheit”

→ Para cada época, su arte y, para el arte, su libertad. Cita del escritor Ludwig Hevesi sobre el dintel del Pabellón de la Sezession Vienesa, obra de Josep María Olbrich, (1897).

Toda creación es gestada por su tiempo y toda etapa produce un arte específico, cuyo fin, ha sido olvidado. Este artículo mostrará la historia del singular mobiliario urbano que un día ocupó algunos puntos notables del espacio público de Logroño y que, en virtud, de la innovación y de la evolución rompieron con el pasado y desaparecieron.

El arte de la construcción de mobiliario se rige por las leyes de la estática al igual que la Arquitectura. Más allá de su función, el mueble, debe generar una sensación espacial similar a una escultura y por ello, se puede considerar como un elemento arquitectónico.

de bebidas en El Espolón. Foto Víctor Lorza, 1920. Fuente: red social.

Quiosco
“La arquitectura implica la toma en consideración de todo el entorno físico de la vida humana”

A finales del XIX proliferaron los paseos, los parques y los jardines que resultaban ser el encuentro entre la ciudad y la naturaleza. En aquel tiempo, El Espolón, era un lugar de esparcimiento y atrajo actividades lúdicas al aire libre. Se entendía que, el entorno urbano, debía ser digno de embellecimiento y acomodación, por lo tanto, aparecieron algunos objetos diseñados según el espíritu de la época.

Se crearon fuentes, farolas, bancos forjados, esculturas y quioscos. Siendo estos últimos los protagonistas de la presente narrativa. Dentro de los quioscos existieron distintos tipos; los hubo destinados a la música, a la venta (de refrescos, de flores y periódicos), estaban los anunciadores y no podemos olvidar a los quioscos excusatos

En época estival, los propietarios de los establecimientos, solicitaban al Ayuntamiento instalar sus cafés de verano con sus mesas y veladores en el Paseo de las Amescoas. Así aprovechaban, las actividades al aire libre como los conciertos y recitales. Tenían personalidad de spot artístico siendo testigos de la estética del momento. Eran construcciones sencillas con escala reducida y realizados con listones de madera que se pintaban y perfiles metálicos, cuyo carácter efímero y perecedero certificaba la intensidad de la experimentación en las formas y en los significados ya que eran partícipes del paisaje urbano. Cuando estos quioscos abrían se apoderaban del espacio que los circundaba, eran la forma–función mínima y flexible ya que únicamente contaban con una barra para que el camarero recogiese las bebidas, pues era costumbre que las consumiciones se sirviesen en la misma mesa. De igual forma, las terrazas se convirtieron en un enclave para ver y dejarse ver donde se citaba el pensamiento en un intercambio de opiniones y dónde se podía leer la prensa.

De diseño refinado y elegante era el quiosco que aparece en la fotografía de Víctor Lorza de 1920. De autor desconocido, para la narradora, presenta una ordenación arquitectónica con encanto por sus proporciones y recubierta por gráciles ornamentos que mistifican su estructura. La composición forma un todo, cada una de las partes se acomoda como una sinfonía en las que predominan las líneas verticales y los modelos geométricos centrados en la idea de lo delicado. Decoración estilizada y abstracta en la cual dieron importancia a la tipografía con el rótulo decorativo.

Otra tipología, de quiosco, es el de la música. →

Aquel simpático, curioso, romántico y entrañable templete fue diseñado por el arquitecto Luis Barrón en el año 1892. Estaba situado en la parte oriental del Paseo de los Reyes de El Espolón. Signo emblemático de los tiempos modernos gracias a la incorporación del hierro en la arquitectura y del refinamiento estilizado de lo utilitario. Se presentaba como una construcción ligera compuesta por un basamento de piedra, un soporte de hierro con arcos trilobulados y una cubierta de tejas rematada con un volumen curvo. Su planta centralizaba el espacio, estaba concebido para cubrir una superficie reducida que se elevaba sobre un zócalo para ser contemplado.

Quiosco de música en el Paseo de los Reyes (1920). Fuente: Archivo personal de Enrique Martínez

Quiosco de música en el Paseo de los Reyes, (1920). Postal Librería Hijos de Alesón. Fuente: La tarjeta postal en Logroño hasta 1950.

Los quioscos de necesidad eran denominados excusados o urinarios, se instalaron en las calles y las plazas siguiendo las medidas higienistas de la época. Un ejemplo fueron los que se encontraban frente al Hotel Comercio en la Calle Tirso Rodrigañez (actual Avd. de La Rioja). Su organización era melódica y en su diseño estaba presente la atención al detalle. En 1872, el Ayuntamiento adquirió algunas cubetas urinarias de hierro fundido y de planta circular que sirvieron para modernizar la ciudad y dejar atrás los malos olores. Su estilo seguía el modelo de los instalados en Madrid que, a su vez, eran copiados de los de París. Eran elegantes y tenían un encanto particular.

Urinarios frente al Hotel Comercio, años 20. Postal Librería Hijos de Alesón. Fuente: La tarjeta postal en Logroño hasta 1950.

Urinarios frente al Hotel Comercio, años 20. Fuente: Red social.

Cubetas urinarias, año 1872, de una y dos personas. Fuente: AML 69/6.

Existieron otros quioscos de los cuales quedan curiosas planimetrías cuya autoría es anónima.

En el año 1889, siendo arquitecto municipal Luis Barrón, el Ayuntamiento concedió permiso para instalar a instancia de Juan Esteban dos quioscos de hierro forjado. Uno se colocó en la Plaza del Mercado, frente al Café de los dos Leones y el otro en la Calle Abades en la esquina con el Seminario frente al reloj Berjerón. Un templete en el cual la parte acristalada dotaba de la utilidad y su ornamentación estaba centrada en su coronación.

En 1900 Joaquín Mayoral construyó un quiosco de refrescos para la temporada de verano en el Paseo de las Amescoas. Realizado de madera y con cierto aire de cabaña.

En 1911 frente al Café Suizo se levantó un quiosco para la venta de artículos propiedad de Trinidad Fernández de Lauda y López de Garay. En esta ocasión el plano aparece coloreado y en él se aprecia el ornamento de la basa y el remate superior que recuerda a una carpa de circo.

Ese mismo año, Pelegrín Urzay Hidalgo asentó un quiosco de venta de refrescos en el Paseo del Príncipe de Vergara. Realizado de madera y cuya parte superior refiere al art-nouveau por sus elegantes curvas y elementos florales.

Lo pintoresco y lo festivo de estos templetes se apoderaron de la ciudad. Estas arquitecturas encontraron, en el espacio público, una libertad creativa y una permisividad de diseño que otro tipo de edificaciones difícilmente aceptaban. Para concluir cabría añadir que ni son todos los que están, ni están todos los que son

Quiosco de refrescos para la temporada de verano de Joaquín Mayoral, año 1900. Fuente: AML 234/15.

Quiosco para la Plaza del Mercado y Calle Abades de Juan Esteban, año 1889. Fuente: AML 128/4.

Quiosco frente al Café Suizo de Trinidad Fernández de Lauda y López de Garay, año 1911. Fuente: AML 239/5.

Quiosco de refrescos en el Paseo del Príncipe de Vergara de Pelegrín Urzay Hidalgo, año 1911. Fuente: AML 239/5.

FOTORRELATO:

VIVIENDAS SOCIALES EN CORNELLÀ DE PERIS+TORAL

FOTOGRAFÍAS JOSÉ HEVIA

¿Imaginas un espacio donde los roles familiares se redibujan, donde se visibiliza el trabajo doméstico y se suspenden los roles de género? Esa fue la visión de Peris+Toral Arquitectes al proyectar las 85 viviendas sociales en Cornellà, Premio de Arquitectura Española 2021.

ARQUITECTURAS PARA LA

En este edificio aislado, ubicado en el solar antes ocupado por el emblemático Cine Pisa, la igualdad entre mujeres y hombres se convierte en el hilo conductor de un imaginario que se desafía la idea tradicional de roles en la familia.

Las 85 viviendas sociales de Cornellà se distribuyen en cinco plantas con estructura de madera, apoyadas sobre una planta baja con estructura de hormigón armado, que responde al uso comercial y de equipamiento público.

En la planta baja, un pórtico abierto a la ciudad anticipa la puerta del edificio y filtra la relación entre el espacio público y el patio vecinal que actúa como una pequeña plaza para la comunidad.

Las escaleras y los ascensores están ubicados en las esquinas del patio central. Este diseño garantiza un espacio seguro para todos sus habitantes, que confluyen y se encuentran en el patio-plaza, fomentando la participación y la cohesión social.

Las viviendas, distribuidas en un conjunto de espacios interconectados, desafían la idea tradicional de roles en la familia.

Las viviendas sociales de Cornellà cuentan con ventilación cruzada, doble orientación y flexibilidad en la distribución.

El edificio se organiza en 114 espacios por planta, de dimensiones semejantes, que eliminan pasillos tanto privados como comunitarios para obtener el máximo aprovechamiento de la planta.

La matriz de habitaciones comunicantes se convierte en un lienzo donde la flexibilidad es la esencia del imaginario colectivo. Los espacios indiferenciados permiten una reprogramación constante, reflejando la fluidez de la vida cotidiana. ARQUITECTURAS

La cocina, abierta e inclusiva, se sitúa en la habitación central y es la pieza distribuidora que sustituye a los pasillos, a la vez que permite visibilizar el trabajo doméstico y evitar roles de género.

Las zonas de baño y almacenaje se disponen en el anillo central, mientras el resto de las habitaciones de uso y tamaño indiferenciado, de unos 13 m², se sitúan al exterior, ofreciendo distintos modos de habitar.

Las terrazas perimetrales de la corona exterior son umbráculos con protecciones solares y filtros de intimidad que junto con la ventilación cruzada reducen la demanda energética en verano.

En este imaginario, las estructuras de madera y hormigón dan forma a un hogar donde la distribución eficiente no solo optimiza el espacio, sino que también crea un ambiente donde los roles de familia se redibujan.

Estas viviendas sociales son un testimonio arquitectónico de cómo la igualdad de género puede tejerse en el tejido urbano. Cada espacio, cada diseño, es un paso hacia una sociedad más justa y equitativa en la que los roles de familia son parte de la narrativa colectiva.

VIVIENDAS SOCIALES EN CORNELLÀ

85 viviendas, 543 espacios y 2172 esquinas

PERIS+TORAL ARQUITECTES

Valores

Valores universales: Mediante la optimización de los materiales, la industrialización de la construcción y la correcta elección de los materiales utilizándolos en estados biosféricos (madera) y reciclados (acero, áridos) se consigue reducir la huella del edifico hasta un 55% menos que un edificio equivalente convencional. El edificio dispone de una calificación energética A y se ha conseguido reducir el consumo de energía primaria a 20 kW/m² año y las emisiones de C0₂ durante su uso a 3 kgCO₂/m² año. Los dos anillos de terrazas perimetrales funcionan como un alero. La fachada se reviste por la parte interior de la malla electrosoldada con una malla de sombreo como protección solar y para la protección visual e intimidad del uso exterior de la terraza sobre las visuales de los vecinos. En paralelo se coloca la persiana Barcelona actuando como protección solar y control de iluminación. Esta suma de capas en fachada genera un umbráculo en la terraza que permite reducir varios grados la temperatura exterior.

Valores básicos de la arquitectura y el urbanismo: El diseño de una matriz de habitaciones comunicantes y el uso de la madera en favor de la mejora de la calidad de la construcción son los ejes de este nuevo edificio de viviendas. El edificio distribuido alrededor de un patio se organiza en 114 espacios por planta, de dimensiones semejantes, que eliminan pasillos tanto privados como comunitarios para obtener el máximo aprovechamiento de la planta. Las viviendas constan entre cinco, seis o siete módulos. La cocina abierta e inclusiva se sitúa en la habitación central, actuando como pieza distribuidora que sustituye a los pasillos, a la vez que permite visibilizar el trabajo doméstico y evitar roles de género. El resto de habitaciones de uso y tamaño indiferenciado, de unos 13 m², discurren en fachada ofreciendo distintos modos de habitar. Otra terraza en la corona exterior completa la secuencia espacial, el enfilade de espacios interconectados por grandes aberturas, permeables al aire, la mirada y el paso.

Otra mirada Vara de Rey, 7

Sin que sirva de precedente y sin querer ser redundantes, este Otra mirada ilustra el espléndido edificio que nuestro compañero Iñaki Gómez desempolva en Las joyas de nuestro archivo histórico

El edificio situado frente al edificio que albergó el Gran Hotel en la esquina entre las calles Vara de Rey y Calvo Sotelo, conocido como el “Gasógeno” y proyectado por Agapito del Valle en 1939, ha llegado hasta nuestros días sin apenas cambios en su aspecto exterior, apenas unas ligeras modificaciones en los vanos de sus locales comerciales, que se han ido adaptando a las necesidades de quienes los regentan.

Edificio rompedor en su época, con el que no todos estuvieron de acuerdo, forma parte del paisaje urbano de nuestra ciudad siendo tan atractivo ahora como entonces.

Vanesa Marauri

Ilustración

Carlos López @mr_legaz

MÚSICA Y ARQUITECTURA EN 2 MOVIMIENTOS

REPORTAJE

SERGIO ROJO

El Congreso Nacional, diseñado por Oscar Niemeyer, en Brasilia. Fuente: GTRESONLINE.

← Favelas en Brasil, David Araeeva. Fuente: Unsplash. MÚSICA

“I'm not meant to live alone, turn this house into a home When I climb the stairs and turn the key”

A house is not a home

Bacharach, David. Scepter label, (1964)

Hoy no se puede entender que la definición corbuseriana de arquitectura («el juego sabio, correcto y magnífico de los volúmenes unidos bajo la luz») sea una exposición adecuada de lo que realmente significa esta disciplina.

La crisis financiera de 2008 trajo consigo un vuelco importante hacia la función en detrimento de la forma, y la necesidad de que la arquitectura, para que lo sea, tenga que estar habitada y sea usada, es ahora mismo irrenunciable. De modo que, todo aquel edificio que se erija esbelto o armonioso, pero para el que no se haya encontrado una función, y, por ende, se encuentre vacío, no es arquitectura.

Ya el joven profesor de urbanismo nos alumbró que, en este sentido, había mucha más arquitectura en las bulliciosas y pobres favelas que en el Eje Monumental de Brasilia, donde se levantan los edificios de Niemeyer.

El centro de Brasilia fue ocupado por funcionarios y políticos, fracasando así en el intento de crear ciudad.

Por eso una casa sin nadie no es un hogar. Como una película que no ve nadie no es cine, como un libro que no lee nadie no es literatura.

Urbanismo y música: Detroit y Motown Records.

Dancing in the Street. Gaye, Stevenson, Jo Hunter (1964)

Vista aérea actual de Detroit, en las inmediaciones del Berry Gordy Jr. Boulevard. Fuente: Google Earth.

“Philadelphia, PA (dancing in the street) Baltimore and D.C. now (dancing in the street) Can't forget the Motor City (dancing in the street)”

¿Pudo el Fordismo contribuir de forma decisiva a la divulgación de la música negra norteamericana?

Si urbanismo, arquitectura y construcción, son lo mismo, hay que abrir las relaciones entre la música y la arquitectura a las trazas de las ciudades.

«La trama urbana de Detroit está condicionada por el régimen Fordista. Es una ciudad planeada exclusivamente para optimizar la producción industrial, fenómeno que comenzó con la apertura de la primera planta industrial de Henry Ford, en 1903.» Así lo asevera Mónica Arzoz (@marzozcanalizo) en Detroit, ¿fin del sueño americano o laboratorio urbano?

El desarrollo de la industria automovílistica, promovida por el visionario Henry Ford, atrajo a muchos músicos afroamericanos que provenían del sur de los Estados Unidos. Los altos sueldos y la tipología predominante de casas amplias de dos plantas propició la aparición de pianos en las casas, algo impensable en apartamentos de familias obreras.

En este contexto fue como Berry Gordy, —empleado de Ford desde 1955 y posteriormente pareja de Diana Ross— fundó Motown Records, en el actual Berry Gordy Jr. Boulevard. Motown Records, cuyo nombre en su nacimiento fue Motor City, fue la cuna de artistas de la talla de Stevie Wonder, The Four Tops, The Supremes, The Temptations o The Jackson Five entre otros muchos.

La canción elegida es Dancing in the street, popularizada por el duo Jagger–Bowie en 1985 con fines benéficos. El video mantiene viva la reivindación del espacio urbano para un uso inhabitual: bailar en la ciudad.

¿Hay relación directa entre los géneros musicales y las ciudades en las que nacieron?

¿Es inevitable la relación entre el grunge y Seattle, el tecno y Berlín o el tango y Buenos Aires?

MÚSICA Y ARQUITECTURA EN 2 MOVIMIENTOS

Berry Gordy delante Hitsville USA, actual sede de Museo Motow en Detroit. Fuente: motownmuseum.org. Actualmente está siendo ampliado por los arquitectos Perkins&Will.

Lecturas recomendadas

“Las casas que generaron el sonido de Detroit”. Lucía Lijtmaer, @ lalitx, recuperado de: https://www.elperiodico.com/es/ ocio-y-cultura/20191018/toponimiapop-lucia-lijtmaer-sonido-dedetroit-7689717

“El tango o los límites del barrio”. Lucía Lijtmaer, @lalitx, recuperado de:

https://www.elperiodico.com/es/ocioy-cultura/20190922/toponimia-popel-tango-o-los-limites-del-barriolucia-lijtmaer-7642263

“Cómo Brasilia se convirtió en la capital más ignorada del mundo” Alexandra Lores, recuperado de: https://www.revistavanityfair. es/poder/articulos/como-brasiliase-convirtio-en-la-capital-masignorada-del-mundo/22745

Vídeo Dancing in the Street. Martha & The Vandellas.
Vídeo
A House is Not a Home. Dusty Springfield and Burt Bacharach.

A LA CONTRA, DE LA DESCONTEXTUALIZACIÓN (II)

PEPE GARRIDO

¿Qué hacemos con el contexto, en cuyo nombre tanto se desvaría?

La anterior frase era la última del artículo que entregué a Fragmentos No 8 para su publicación. La conclusión era una duda así que poco concluía, aunque en el fondo la convicción estaba muy clara y la misma frase preguntando, respondía.

Al poco tiempo me llegó la información sobre la existencia de un edificio singular en Estados Unidos, en Nashville para ser concreto, que con absoluta seguridad reafirma la convicción a la que alude el título del artículo.

Sólo haré un mínimo recordatorio, porque es sabido el significado y contenidos para la arquitectura que tuvo y tiene el Partenón, el gran templo de Atenea.

El templo, ejecutado mayoritariamente con mármol blanco del Pentélico, es una herencia clara de las primeras manifestaciones de la arquitectura construida en madera, de la cabaña primitiva. Fue promovido por Pericles en agradecimiento de la ciudad a los dioses por su victoria contra los persas. Se diseñó en estilo dórico, entre el año 447 a.C. y el 438 a.C., por los arquitectos Ictino y Calícrates. Su volumen y dimensiones estuvieron condicionados por el tamaño de la estatua de Atenea Pártenos, que debía ser alojada en él, por lo que estuvieron coordinados con el arquitecto y escultor Fidias, autor de los relieves decorativos, acabados hacia el 432 a.C.

Es un templo octástilo, el único de toda Grecia, con ocho columnas en las dos fachadas más cortas y diecisiete en las laterales. Períptero y anfipróstilo en cada entrada, en los lados más cortos. Consta, además, de una doble cella con pronaos y opistodomo con próstilo de seis columnas.

Las dimensiones del edificio, levantado sobre tres gradas, son 69,5 metros de longitud por 30,9 metros de anchura, con columnas que alcanzan 10,4 metros de altura. Estas dimensiones permitieron crear dos grandes salas: una al Este, que albergaba una estatua de doce metros de altura y otra al Oeste. La proporción largo–ancho y ancho–alto es de 9/4.

La altura colosal de la estatua de Atenea, de casi doce metros, incluyendo su pedestal de algo más de un metro, precisaba de una inmensa cella de más de dieciocho metros de anchura, dividida en tres naves mediante una doble columnata conformada por dos órdenes superpuestos de estilo dórico. La nave central medía de diez metros de anchura. Dentro de la cella del lado Este, la columnata se dispuso en forma de “U” y estaba compuesta por nueve columnas con un entrepaño entre cada dos, en los lados largos de la “U”.

En la zona Oeste, al fondo del interior de la columnata de cuatro columnas, existía el basamento de la estatua, para el culto a Atenea Pártenos con un estanque poco profundo, que producía un reflejo de la escultura en el agua. El agua cumplía, además, la función de mantener estable la humedad del ambiente y a conservar el marfil de la estatua. Ambas cellas estaban cerradas con puertas de bronce.

El equilibrio y la armonía en las proporciones, el orden y la geometría eran valores constantes en la arquitectura clásica griega. Por ello, esta construcción es uno de los ejemplos más radicales del saber geométrico, matemático y arquitectónico griego. La búsqueda de la belleza ideal, los había llevado a corregir los efectos ópticos que surgen al observar los templos de cerca, o de lejos (normalmente desde el mar), ya que el observador, cuanto menor es la distancia, percibe las columnas y las líneas verticales deformadas, pues no se ven ni rectas ni paralelas. Los arquitectos consiguieron, que el efecto visual que mostraba el Partenón no permitiera apreciar la deformación

→ Planta del Partenon.

↑ Vista frontal del Parteon en la Acrópolis de Atenas.

percibida al situarse en las proximidades de las grandes construcciones. Lograron así obtener un efecto visual idealizado con acertadas alteraciones de la construcción: columnas con éntasis, un poco curvadas hacia el centro, no equidistantes y algo más gruesas en las esquinas; frontón levemente arqueado y estilóbato ligeramente convexo. Ese estilóbato presenta una tenue curvatura, elevándose unos seis centímetros, en las fachadas frontales y unos once centímetros en el centro de las laterales.

Tan ejemplar edificio fue destruido por un incendio en la Antigüedad tardía que le causó graves daños, sobre todo en la cubierta. El calor del fuego fisuró los entablamentos y las metopas de mármol. Después se acometió su restauración, reconstruyendo el techo interior, con lo que las metopas delanteras y traseras quedaron más expuestas a la intemperie. Hasta el edicto de Teodosio de 380, el Partenón conservó su papel religioso pagano. Más tarde quedó abandonado, hasta que, entre los siglos VI y VIII, fue transformado en iglesia.

En 1674, un viajero tomó dibujos de gran parte de la estructura, una acción fortuita y feliz, considerando el desastre que estaba a punto de ocurrir.

En 1687, los turcos utilizaron el Partenón como depósito de pólvora. Y durante el sitio realizado por los venecianos sobre

la Atenas otomana, uno de los cañonazos venecianos cayó en el Partenón y causó una enorme explosión que destruyó gran parte del templo, preservado hasta entonces en aceptables condiciones.

El posterior deterioro y erosión continuó, pero no terminó ahí, ya que los daños siguieron a principios del s. XIX, entre los años 1801 y 1811, cuando el embajador británico en Constantinopla, Thomas Bruce Elgin, expolió la mayor parte de los relieves que quedaban del edificio (frisos, métopas, frontones) y los trasladó a Inglaterra para venderlos al Museo Británico, en donde todavía se exhiben.

Durante la conquista de Grecia por los nazis, estos entraron en la Acrópolis y alzaron la esvástica en el punto más alto del monte.

En el año 1983 con la creación del nuevo Museo de la Acrópolis, fue posible ver algunas muestras de los restos de la ciudad antigua situados bajo un suelo de cristal, infinidad de esculturas y piezas clásicas que pertenecieron a la Acrópolis, o bien diversos fragmentos de algunos edificios como los Propileos, el Templo de Atenea Niké y el Erecteion

Unas décadas más tarde del expolio de los relieves del Partenón, se construyó en Nashville, para ser la pieza central de la Exposición de 1897, una réplica a escala real del Partenón de Atenas. Se construyó como parte de la Exposición del Cente-

nario de Tennessee, en la que se celebró el centenario de la unión de este Estado a los Estados Unidos.

Hubo otros edificios también copiados de antiguas construcciones, como las pirámides de Egipto, aunque en este caso no a escala real (sólo faltaba). Esta primera versión del edificio estaba construida provisionalmente, con yeso, madera y ladrillo ya que el edificio iba a ser desmontado una vez terminada la exposición, tal y como se hizo con los demás edificios del Parque del Centenario.

Sin embargo, la construcción gustó tanto (qué tendrán las antigüedades para los pueblos sin historia), que la ciudad de Nashville decidió conservarlo. Como el edificio había sido construido para demolerlo la construcción no era lo suficientemente sólida. Así que, en 1920, la maqueta a escala real fue demolida y, en el mismo lugar que antes ocupaba, se construyó de nuevo con hormigón, para que perdurase. La decisión de reconstruir involucró al arquitecto local Russell Hart. En esta segunda versión participaron numerosos especialistas que estudiaron minuciosamente el Partenón de la Acrópolis de Atenas y los mármoles de Elgin, alojados en el Museo Británico, realizando reproducciones en yeso de los mismos. Además, el mamotreto posee una decoración policromada igual a la que, en teoría, poseía el original. La es-

Y si en algo difieren fundamentalmente es en el contexto.

tructura permanente debía ser una réplica completa y tan precisa como lo permitiera la erudición, recreando la inclinación de las líneas horizontales, la inclinación de las columnas y los muros y la éntasis de las columnas.

En el colmo de la reproducción exacta (eso creen), también se reprodujo la estatua de Atenea Pártenos, en 1990 por Alan LeQuire, a imitación de la que estuvo en el Partenón griego, esculpida por Fidias y perdida hace muchos años. Esta estatua tiene una altura de unos trece metros y está recubierta de oro.

Los dos edificios incluidos en este relato, evidentemente, no tienen nada en común a pesar de que el segundo haya pretendido ser una reproducción del primero.

Nada tiene que ver la presencia del Partenón en lo alto de la colina de la Acrópolis, orientado hacia el mar (El Pireo), adueñándose del territorio y siendo visible con su imponente presencia desde los puntos más lejanos de Atenas y sus alrededores, incluso para los barcos que llegan, con el sol vibrando en las estrías de sus columnas talladas que, incluso sin la policromía perdida, posee unos admirables cambios de color del mármol a lo largo del día.

La pieza de Nashville se asienta en una explanada de césped, en un remedo de jardín palaciego y al borde de un pequeño estanque en el que llega a reflejarse. El hormigón policromado no tiene ni la intensidad del color ni la nobleza del mármol. Y la proximidad de las calles, coches y aparcamientos serían una falta de respeto al original que, seguramente, ni pretendieron los ideólogos del proyecto.

En este caso entiendo que se trató de imitar, estilísticamente, las formas de un pasado histórico prestigioso, características de la alta cultura, social y estéticamente aceptadas. Tal vez un ejemplo clásico americano desarrollado a

causa del éxito de la industria del cine de Hollywood, que enriqueció rápidamente a una generación de inmigrantes europeos e intentó recrear nostálgicamente el estilo de nuestro continente.

Con esta premisa se dio pie a la construcción de mansiones en las que se mezclaban caóticamente estilos como el barroco, el renacimiento florentino, el gótico y el rústico propio de América. También así se llegó al exceso de comprar antiguos castillos, claustros y ermitas europeos que eran trasladados piedra a piedra a los Estados Unidos.

Ahora sí, ha quedado suficientemente claro que el contexto no puede servir para justificar la proyección de edificios iguales en emplazamientos y contextos diferentes, del mismo modo que un edificio ejemplar, por si mismo, no es capaz de crear por sí solo un contexto que le convenga. ■

↑ Réplica del Partenon construida en Nashville.

Turn static files into dynamic content formats.

Create a flipbook
Issuu converts static files into: digital portfolios, online yearbooks, online catalogs, digital photo albums and more. Sign up and create your flipbook.