Murcia Arquitectos nº 6 - 2022 CUADERNOS

Page 1

COMERCIAL

06 _ 2022 _ REVISTA DEL COLEGIO DE ARQUITECTOS DE MURCIA
06

Este CUADERNOS Nº 6 recoge muestras ejemplares de ARQUITECTURA Y DISEÑO COMERCIAL, firmadas por compañeros de nuestra Región.

Todos somos conscientes, y nos congratulamos, de la importancia creciente que se le está dando a la concepción y diseño del espacio comercial. Campo de trabajo amplio y complejo, llegando a coordinar varias disciplinas. El espacio doméstico mira hacia el interior, buscando la belleza y el bienestar de quien lo habita. El espacio comercial mira hacia el exterior, creando también un ambiente cuidado con un carácter acogedor, buscando reclamo, atención.

Quiere atraer, quiere mostrar su identidad, quiere que te identifiques con él y que te metas en su mundo interior, en un espacio donde el cliente se encuentre cómodo, en un espacio atractivo y bello.

En este tipo de trabajos la arquitectura muestra su mejor versión como elemento comunicador, porque los arquitectos sacamos nuestras mejores armas de seducción. La arquitectura puede coger tanta importancia que se puede emplear incluso como escenario, sin más. Los arquitectos podemos llegar a crear atmósferas y experiencias únicas. Inmersos en el movimiento NEW EUROPEAN BAUHAUS, este cuaderno nº 6 sale a luz en el mejor momento, demostrando que a través de nuestras intervenciones, vamos marcando tendencia, vamos inculcando a la sociedad la necesidad de cambiar de modelo. A través de nuestras intervenciones, nuestros diseños y creatividad, mostramos conceptos más sostenibles, bellos e inclusivos: El movimiento New European Bauhaus pretende ser un puente entre el mundo de la ciencia, la tecnología, el mundo del arte y la cultura ... se trata de una nueva estética del Green Deal europeo que combina el buen diseño con la sostenibilidad.

Estos diseños de espacios que tienen ese carácter público, sirven de caja de resonancia para estas ideas. Podemos estar orgullosos de las obras que se han seleccionado para este número, felicitando a los compañeros por el esfuerzo realizado para poder llegar a esa calidad en los trabajos. Ese esfuerzo va en beneficio de todos , pues lo recibe la sociedad.

Agradecemos una vez más a la Comisión del COAMU que mantiene con su trabajo esta revista, y a la editorial, que nos permite dar difusión de una pequeña muestra de lo que se realiza en nuestra Región.

Espero que os guste

5 COLEGIO DE ARQUITECTOS DE MURCIA | 062022
E
Maria Jose Peñalver Sanchez Decana del COAMU

S UMARIO

P.05...... EDITORIAL

P.08 .... ARQUITECTURA COMERCIAL. UN PASEO POR LA HISTORIA MODERNA

P.11 ...... COMERCIO Y CIUDAD

P.15 PROYECTOS

P.16 ACADEMIA GAUSS. UN ESTUDIO PROPIO

P.20 LA CASA SANITARIA. URBA+ARQUITECTOS

P.28 TIENDA UNIFORMIDAD LABORAL LORCAEPIS. QUIÑONERO MARTÍNEZ ARQUITECTOS

P.32 VEINTICUATRO SIETA. DICTINIO DE CASTILLOELEJABEYTIA GÓMEZ

P.36 LA MADRUGADA DE JAVIER MORENO. LAURA ORTÍN

P.48 FLORISTERÍA FERNANDO HIJO. LMS ARQUITECTURA + ZUECO TOMÁS ARQUITECTOS

P.52 CALZADOS LA FUENSANTICA. OKONO

P.56 INTERIORISMO LA GLORIA DE ANDRÉS MÁRMOL. PEPA DÍAZ CALVO

P.64 KISSA. RUBÉN MÁRQUEZ MÁS

P.68 CENTRO DE BIOMECÁNICA DEPORTIVA. SLATO PROYECTOS DE ARQUITECTURA

P.72 BODEGAS VIÑA ELENA. SANTA - CRUZ ARQUITECTURA

P.76 BODEGAS CASA ROJO. SRTA. ROTTENMEIER

P.80 .... ACTIVIDADES COAMU 2022

Revista del Colegio de Arquitectos de Murcia. Nº6. Edición semestral gratuita.

Edita: Colegio de Arquitectos de Murcia (Tel: 968 213268). www.coamu.es- revistacoamu@coamu.es)

COMISIÓN EDITORIAL CUADERNOS Nº6: JUNTA DE GOBIERNO DEL COAMU

DISEÑO E IMPRESIÓN

RQUITECTURA COMERCIAL. UN PASEO POR LA HISTORIA MODERNA

Es por todo conocido que la arquitectura moderna centró su atención en la tipología residencial fundamentalmente y en una serie de grandes equipamientos públicos dejando la arquitectura comercial como algo mas que residual. Sin embargo, la historia nos presenta algunos ejemplos destacados que en este breve repaso pretendemos poner en valor. Resulta complicado hablar de arquitectura moderna sin atender a sus antecedentes, a aquellos arquitectos que, con su trabajo, sus ideas y su talento provocaron la aparición de lo que luego se convertiría en el denominado Estilo Internacional. Entre estas figuras destaca la presencia de Adolf Loos, un arquitecto que pasó a la historia por sus obras pero también por sus ideas como su célebre rechazo al ornamento. Entre su prolija producción de viviendas también encontramos brillantes propuestas de arquitectura comercial como el Café Museum, una obra que profundiza en un concepto tan contemporáneo como el del minimalismo y la posibilidad de dejar las instalaciones vistas, tan en auge en los últimos años para todo tipos de comercios, y que el genial arquitecto vienes plasmó en este proyecto, hace más de 120 años. Las celebres fachadas blancas de Loos se trasladan al ámbito del comercio. No será esta su única inclusión en esta tipología, célebre es su conocido

Karntner Bar, construido una década después del Café Museum, en el que cambia radicalmente de criterio planteando una fachada rica en ornamentos en la que destaca el antecuerpo de cristal en forma de prisma que sobresale situado sobre tres puertas de vidrio del mismo tamaño. El prisma, realizado en cristal de color, consta de dos partes, en la parte inferior encontramos una bandera estadounidense en la que se lee el nombre del bar y en la parte superior un rotulo en la que se

8 COLEGIO DE ARQUITECTOS DE MURCIA | 062022
Lorenzo Tomás Gabarrón Doctor Arquitecto | Historiador del Arte A

puede leer “American Bar”. Finalmente, en este repaso a la arquitectura comercial de Loos nos detenemos en una de sus obras cumbre, el Edificio en Michaelerplatz, en pleno centro de Viena, frente al Palacio Real de los Habsburgo en el que combina un edificio de viviendas con una planta baja que albergaba la sastrería masculina Goldman & Salatch. Esta obra se considera una aportación más al avance de la modernidad, como un edificio moderno cuya fachada sin ornamento marcaba el camino hacia una nueva arquitectura. Si Loos dio los primeros pasos para la llegada de la arquitectura moderna, fueron las vanguardias artísticas las que finalmente modificaron la forma de ver la arquitectura dando paso a una nueva era. Será el neoplasticismo, una de las vanguardias que, si bien no tuvo tanto reflejo en arquitectura como el expresionismo, sí que nos dejó algunos ejemplos brillantes de arquitectura comercial como el Café de Unie, proyectado por J. P. Oud en el año 1925 con una fachada

semejante a un cuadro de Mondrian, pensada como un cartel publicitario con las letras del rótulo en una nueva tipografía y los colores rojo, azul, amarillo, blanco y gris propios del neoplasticismo. Vemos en la fachada la clara representación de los ideales del neoplasticismo (líneas horizontales y verticales, ángulo recto, planos de color, etc). Si el Café De Unie plasmaba los ideales neoplasticistas en la fachada, en el Café Aubette, obra de Theo van Doesburg, vemos como De

9 COLEGIO DE ARQUITECTOS DE MURCIA | 062022

Stijl se filtra al interior del edificio con una decoración radicalmente moderna, incluso contemporánea, pues observamos como, aun habiendo pasado más de un siglo desde su construcción, mantiene su plena vigencia. Se trataba de un diseño de planos de color alineados con los elementos horizontales/verticales de la arquitectura, sin atravesar los límites establecidos por las esquinas. Cada pared estaba tratada como una composición distinta, con lo que se refuerza la integridad de las superficies discretas y se subordina el color a la arquitectura. Finalizamos este breve paseo por la historia de la arquitectura comercial con un proyecto bastante desconocido de uno de los más grandes arquitectos de la historia. Frank Lloyd Wright había visitado en uno de sus viajes por Europa los

biergarten (local al aire libre) alemanes y austriacos, una afición que compartía con su amigo Ed Wallen, quien a su vuelta le propuso diseñar algo semejante para la ciudad de Chicago. El elemento más importante del programa era un gran espacio abierto, el “jardín de verano”, organizado a base de terrazas escalonadas en torno a una pista central de baile. Todo ello estaba delimitado por una construcción perimetral en cuyo lado principal un cuerpo intermedio albergaba un amplio salón, el “jardín de invierno”, también rodeado por galerías elevadas. De este modo, la superficie al aire libre era prácticamente equivalente a la situada en cubierto. En su desarrollo uso sus habituales recursos compositivos: unas masas muy articuladas, líneas predominantemente horizontales, y cuerpos prismáticos más altos que parecían dar solidez al conjunto. Desgraciadamente fue derribado en 1929 por su escasa rentabilidad.

En definitiva, estas incursiones de los grandes maestros en la arquitectura comercial, aunque de forma aislada, nos muestran como se trataba de una tipología con muchas posibilidades para la experimentación y desde luego abrió camino a las siguientes generaciones que pudieron poner en práctica todo lo aprendido.

10 COLEGIO DE ARQUITECTOS DE MURCIA | 062022

COMERCIO Y CIUDAD

La ciudad europea en general y la mediterránea en particular están íntimamente ligadas al intercambio comercial, no solo en términos económicos y de negocio sino, sobre todo, en términos urbanos. Las calles con locales comerciales diversos y en funcionamiento son el ADN de nuestros barrios, aquello que les da autenticidad y vida. Las tiendas, como los bares y los restaurantes, además de una actividad económica son espacios de socialización y los ojos que dotan de seguridad informal al entorno inmediato. Además, las más antiguas forman parte de la memoria social y el patrimonio de un lugar produciendo esa sensación reconfortante del reconocimiento que se transforma en pérdida en el momento en el que alguna de ellas desaparece.

De hecho, cuando el tejido comercial de un barrio se resiente cerrando tiendas o simplemente heterogeneidad, el barrio entero reduce su calidad de

11 COLEGIO DE ARQUITECTOS DE MURCIA | 062022
Patricia Reus Martinez Doctora Arquitecta

vida independientemente del nivel socioeconómico de sus habitantes. En estos casos los principales damnificados suelen los más vulnerables. La gente mayor, que pierde independencia, pero también las ocasiones para socializar lo que, además de dificultar su vida cotidiana, puede llegar a vaciar sus vidas de apoyo mutuo, compañía y distracción. Y los más pequeños para los que se desvanece la formidable oportunidad de crecimiento que les brinda deambular por la calle para hacer pequeños recados o acompañar a sus mayores en el ritual de lo doméstico. Las amenazas que se ciernen sobre la supervivencia del comercio de proximidad en la ciudad son fundamentalmente las crisis económicas, la gentrificación y los cambios en las dinámicas de los consumidores cuando optan por las grandes superficies o el temido comercio On Line, pero dado su inmenso valor social y urbano es imperativo velar por la salud del tejido comercial y para ello la gestión urbana, así como la arquitectura tienen mucho que aportar. Por un lado, las políticas de apoyo y regulación de la actividad comercial pueden amortiguar los efectos de las crisis económicas que se ciernen sobre el pequeño comercio, y evitar fenómenos especulativos que encarecen de forma prohibitiva los bajos en ciertas zonas y expanden una homogenización que rompe los equilibrios funcionales complicando la cotidianeidad del vecindario. Las áreas que padecen este tipo de fenómenos acaban por convertirse en un frágil espejismo sin alma que incluso llega a expulsar a sus habitantes debido a la dificultad de desarrollar con comodidad sus vidas cotidianas. Por otro lado, los comercios también tienen que adaptarse para sobrevivir. Una adaptación que tiene un gran aliado en el diseño que ayuda a seducir y generar experiencias agradables y memorables con las que fidelizar a los clientes y resultar lo suficiente-

mente atractivos como para devenir en una alternativa deseable frente al vertiginoso comercio On Line o al compacto Centro Comercial.

El abanico de posibilidades es amplísimo; Evidentemente está la elección de un buen proyecto para los locales, en este número de la revista podemos ver algunos de los ejemplos más interesantes que se han producido últimamente en la Región; pero también son eficaces los actos efímeros como el diseño de escaparates, la decoración estacional o las acciones Pop Up con las que adquirir visibilidad y cautivar al consumidor.

Tanto en una modalidad como en la otra, los planteamientos innovadores y de calidad pueden ayudar a las tiendas y las marcas a transmitir sus valores y conseguir así que las personas que se acerquen a ellas se sientan interesadas e incluso identificadas. En este sentido, un buen diseño es también una excelente oportunidad para potenciar el boca a boca y la presencia en la red ya que ofrecer experiencias únicas, atractivas, agradables o sorprendentes provoca que los usuarios salgan con ganas, no solo de repetir sino también de compartirlo. Es cierto que la agilidad del comercio digital y la condensación de los Centros Comerciales producen un impacto en la ciudad a muchos niveles, para empezar porque parte de las compras que tradicionalmente se habían realizado en la calle han desaparecido, pero la mejor estrategia de supervivencia es la adaptación y mantenerse útil dentro del ecosistema. Y en este sentido el pequeño comercio aun tiene mucho que ofrecer y más en las ciudades sostenibles y saludables hacia las que estamos transitando y en las que proximidad y peatonalidad son ejes importantes. Eso sí, para lograrlo requiere apoyo y una cultura del diseño en la que confiar para ofrecer la experiencia irremplazable del contacto, el bienestar y los estímulos positivos.

12 COLEGIO DE ARQUITECTOS DE MURCIA | 062022

PRO YEC TOS

15 COLEGIO DE ARQUITECTOS DE MURCIA | 062022
ARQUITECTURA COMERCIAL ESPACIOS DE TRABAJO

ACADEMIA GAUSS Ana Belén López Plazas Un Estudio Propio

FICHA TÉCNICA:

Nombre del Proyecto: Academia Gauss

Oficina de Arquitectura: Ana Belén López

Plazas /\ Un Estudio Propio Sitio Web: www.unestudiopropio.es

E-mail contacto oficina: info@unestudiopropio.es

Arquitecto a cargo: Ana Belén López

Plazas

Ubicación (calle, comuna, ciudad, país): Calle Juan Antonio López Alcaraz, Puerto Lumbreras, Murcia, España

Año término construcción: 2022

Superficie construida / PEM: 65 m2 / 35.000€

Fotógrafo / Sitio web: Alex Lafuente https://alexlafuente.com/

Descripción del Proyecto

En las reuniones me contaba todo lo que no quería. Había analizado los espacios en los que había dado clase para comenzar un negocio propio. “Quiero ofrecer un espacio de calidad para enseñar matemáticas, el pueblo se lo merece”.

Quería grupos reducidos, donde la clase pasase volando y el profesor fuera alguien cercano. A su corta edad buscaba en el diseño un aliado para crear espacios para la concentración. Recurrimos al recurso más primitivo que tiene el ser humano: contar his-

17 COLEGIO DE ARQUITECTOS DE MURCIA | 062022
“Quiero ofrecer un espacio de calidad para enseñar matemáticas, el pueblo se lo merece”.

torias. Sentarse en corro para atrapar la atención y hacer que la historia te abrace. Esta idea se alejaba del mobiliario regular y en serie que encontramos en los espacios escolares, y propiciaba unas mesas de trazo libre que abrazaban al profesor y alumnos, acomodándose en el espacio irregular del local.

Las curvas nos ayudaron también a crear la división principal y a suavizar la rigidez del espacio, y las presentes tensiones que provocaban los pilares centrales de la sala. El resto se resolvió con materiales sencillos en una armonía matemática. Utilizamos chapa ondulada blanca en la división interior para marcar la ubicación de las aulas. El rosa fue el color usado para las formas libres de las mesas, su contraste con el blanco nos ayudaba a leer mejor el espacio. Unas plataneras vigilan cada espacio porque el verde relaja la mente. Creamos un zócalo de gotelé de pintura satinada por todas las estancias para ayu-

18 COLEGIO DE ARQUITECTOS DE MURCIA | 062022

dar a la limpieza que respondía a las preocupaciones de la cliente respecto al envejecimiento de la intervención. En los baños combinamos un azulejo simple con una junta de color rosa, ambas cabinas con el mismo tratamiento, inclusivos, sin espejos y con los mínimos accesorios posibles. Para propiciar la concentración buscamos texturas sutiles, un color, y un poco de vegetación, pocos materiales que ayudaran a crear limpieza visual. La chapa ondulada blanca del interior pasó a forrar la fachada marcando, pero acompañando, el nuevo uso que se añadía al edificio existente de viviendas. La imagen corporativa de academia continuó con los colores interiores y el ritmo de franjas verticales de la chapa ondulada. Crear mucho con muy poco.

Crear mucho con muy poco.

19 COLEGIO DE ARQUITECTOS DE MURCIA | 062022

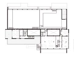
LA CASA SANITARIA Urba+ arquitectos

FICHA TÉCNICA

Farmacia+Ortopedia+Vivienda Duplex

Año: 2017-2018

Programa: Farmacia, ortopedia y vivienda

Ubicación: Abanilla (Murcia)

Superficie: Farmacia 80m2, Ortopedia 94 m2 y Vivienda dúplex 154m2

Arquitectura: Urba+ arquitectos / Colabora-

dores: Andrés Rojo López (HA_HA Estudio

Arquitectura)+ Emilio Macanás Martínez (Uno100 Arquitectura)

Fotografía: HA_HA + Emilio Macanás Martínez

Arquitecto Técnico: Andrés Rojo Guillén y Ginés Sánchez Andreu

Estructura: Urba+ arquitectos

Contratista: Vaper Ilice

Referencias: Rap studio y Larissa Johnston

Architecture / enlaces web: https://es-la.facebook.com/urbamasarquitectos/ https://haharquitectura.com/ https://www.unocienarquitectos.com

Los dueños del inacabado edificio, en estructura durante varios años, decidieron retomar el proyecto. Para ello se creó un equipo multidisciplinar entre el estudio de arquitectura redactor del proyecto original, HA_ HA y Emilio Macanás donde estos 2 últimos se ocuparon de rediseñar el proyecto desde la parte ya construida.

La intervención debía de permitir la coexistencia de una farmacia, una ortopedia (negocio de los clientes) y una vivienda. La parte sanitaria del programa ocupa la planta baja y planta 1º y la vivienda la 2º planta y el ático. Para casar estas piezas del puzle se trabaja la permeabilidad, la luz, la materialidad y el contraste.

20

La intervención en la farmacia y en la ortopedia se caracteriza por maximizar la permeabilidad visual y espacial, reduciendo al mínimo las particiones interiores y dividiendo las estancias mediante mamparas de vidrio y muebles que no llegan al techo. Las líneas de las lamas del techo fluyen ininterrumpidamente de fachada a fachada, enfatizando la amplitud del espacio. La luz y la materialidad definen la percepción de un lugar. Se pretende que la farmacia y la ortopedia transmitan salubridad, pulcritud. Para ello se hace uso de paredes y muebles blancos (éstos no formaron parte del encargo, ya venían dados y se adaptaron al diseño del espacio

21
· Planta ortopedia
· Ortopedia

planteado), uso de colores neutros, y un techo de lamas marcando una fuga, una dirección, precisas, de metal lacado en blanco. La entrada de la luz natural por estos grandes huecos de escaparate, algunos abiertos a orientaciones no deseadas pero necesarios para la venta (en la actualidad ya se ha colocado un screen exterior a oeste) apoyada por las líneas de LED en las juntas del techo potencian esa atmósfera sana que tiene que transmitir un programa sanitario. En apoyo, los focos bañan con intensa luz los productos. En la vivienda se usa la misma estrategia: abrirse al exterior, en todas las orientaciones (respondiendo cada fachada de forma diferente según la orientación) para ganar la mayor luminosidad posible para reducir el uso de luz artificial.

En contraste para la vista y las sensaciones, se decide introducir el panel de OSB que matiza la frialdad de los demás colores y materiales y dan a los espacios un toque de color y calidez. Con ellos diseñamos un zócalo alto continuo que arranca en planta baja en la farmacia, subiendo por la caja del ascensor, resolviendo el muro separador de las escaleras y dando forma al mueble que separa la ortopedia del laboratorio.

Las carpinterías, perfiles metálicos, rotulación y otros elementos de color negro vienen a acentuar el contraste con el blanco. El suelo de aspecto continuo (piezas cerámicas de gran formato), conseguido al mini -

22 COLEGIO DE ARQUITECTOS DE MURCIA | 062022

mizar el número de juntas, apoya la sensación de continuidad del espacio y su color gris cementoso busca un tono intermedio entre el blanco y el negro.

23 COLEGIO DE ARQUITECTOS DE MURCIA | 062022

TIENDA UNIFORMIDAD LABORAL LORCAEPIS.

Quiñonero Martínez ARQUITECTOS.

FICHA TÉCNICA

TIENDA UNIFORMIDAD LABORAL LORCAEPIS

Promotor: Lorcaepis S.L.

Arquitecto: quiñonero martínez ARQUITECTOS.

Fotografía: Vacío Estudio

Ubicación: Carretera de Águilas. Lorca (Murcia).

Superficie: 218.00 m2

Año de proyecto: 2.017

El proyecto consiste en el diseño de un nuevo tipo de tienda de uniformidad y equipos de protección laboral y tiene como objetivo dotar a la empresa Lorcaepis, de un espacio que sea seña de identidad y se convierta en su imagen de marca. Para ello la dirección de la empresa depositó total confianza en nuestro equipo, haciéndonos participes de la elección del local, la organización del producto y el diseño del mobiliario y sistemas expositivos. En cuanto al emplazamiento tenia que cumplir unos requisitos claros, proximidad a la anterior ubicación y

28 COLEGIO DE ARQUITECTOS DE MURCIA | 062022

al centro urbano, fácil accesibilidad y zona de aparcamiento. Entre varias opciones se opto por un local en desuso, que si bien cumplía las premisas anteriores podía resultar limitado en cuanto a superficie a la vez que ofrecía la oportunidad de doblar su espacio expositivo por su altura libre.

Con el fin de aprovechar al máximo la altura del local, se proyectó una estructura intermedia de acero, vidrio y hormigón que nos permitió una clara diferenciación del espacio. Distinguiendo entre zona de almacén, tienda y administración, estas últimas áreas siempre conectadas visualmente.

La prioridad siempre fue potenciar por un lado la experiencia en la tienda y por otro la exposición del producto, para ello ideamos un revestimiento metálico de todos los paramentos verticales compuesto por chapa perforada galvanizada y montantes tipo cremallera que nos permitieran la modulación y mutabilidad de los espacios expositivos según las necesidades en cada momento. Así cómo mostradores, expositores y estantes con los mismos acabados y gran versatilidad a la hora de adaptarse los diferentes productos.

29 COLEGIO DE ARQUITECTOS DE MURCIA | 062022

En general se apostó por una imagen industrial con estructuras de acero y vidrio, pavimentos continuos de hormigón pulido, instalaciones vistas, y revestimientos metálicos en colores grises y oscuros que contrastan y hacen destacar los artículos, todo ello apoyado por una iluminación centrada en el producto.

30 COLEGIO DE ARQUITECTOS DE MURCIA | 062022
31 COLEGIO DE ARQUITECTOS DE MURCIA | 062022

VEINTICUATRO SIETE Dictinio de Castillo-Elejabeytia Gómez

FICHA TÉCNICA

Arquitectos: Dictinio de Castillo-Elejabeytia Gómez, COL 1955 y María Alcázar Morga, COL 2348

Promotor: Veinticuatro Siete SL

Superficie: 498m2 construidos

Presupuesto: privado

Ubicación: Av. General Ortín, 46, 3010, Ronda Sur, Murcia

MEMORIA

Las bases conceptuales que definieron el diseño del nuevo supermercado Veinticuatrosiete estuvieron bien definidas desde el inicio. Desde el desarrollo de la definición del proyecto hasta la ejecución en obra del último detalle, contamos con una continua participación de la propiedad, lo que hizo posible un resultado acorde a los objetivos propuestos.

Podemos desglosar los conceptos clave del diseño en los siguientes apartados:

32 COLEGIO DE ARQUITECTOS DE MURCIA | 062022
33 COLEGIO DE ARQUITECTOS DE MURCIA | 062022
Dictinio de Castillo-Elejabeytia Gómez Arquitecto Col. nº 1955 COAMU María Alcázar Morga Arquitecta Col. nº 2348 COAMU

Imagen de marca claramente urbana

El espacio de supermercado se concibe como una prolongación de la calle, una transición fluida entre dentro y fuera, en el que la actividad comercial se desarrolla de forma natural. Esta transparencia se hace evidente con la construcción de un gran escaparate que abre el supermercado al jardín José Antonio Camacho.

Materialidad cruda

Para fortalecer visualmente el mensaje “naturalmente urbano” la materialidad en el local se presenta en un estado crudo. El hormigón del pavimento, la chapa galvanizada de la fachada reflejando el movimiento de los árboles del parque y las sombras de los transeúntes, las instalaciones vistas en su totalidad.

34 COLEGIO DE ARQUITECTOS DE MURCIA | 062022

Vida noche y día

La iluminación y la imagen nocturna del local cobra una relevancia especial. Realizamos varios estudios buscando un acabado de fachada que presentara cierta textura y expresividad tanto de día como de noche, que tuviera un coste medido dadas las dimensiones de fachadas a tratar y contara con un mantenimiento mínimo. Finalmente optamos por la chapa grecada galvanizada en crudo, que de día permitiera juegos de luz y sombras y, de noche, desvelara la textura gracias a una iluminación lineal en su parte superior.

Salir de lo común

Exprimir unos recursos controlados y medidos desde el inicio para crear una imagen claramente diferente para un uso más que conocido como es el de supermercado, ha sido el reto que con más ahínco todos los implicados en el proceso hemos querido surfear. En el fondo, no hemos dejado de pensar en encontrar las correctas soluciones arquitectónicas para una marca de espíritu callejero y espontáneo, sumado a un servicio amable, y más acorde a un entorno urbano que no deja de crecer y cuya actividad horaria es prácticamente continua día-noche, atraerán al público y serán la clave del éxito.

35 COLEGIO DE ARQUITECTOS DE MURCIA | 062022

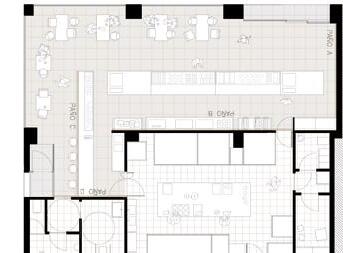
LA MADRUGADA DE JAVIER MORENO

Laura Ortín

FICHA TÉCNICA

Adecuación de local comercial para panadería y obrador

Promotor: Javier Moreno

Panadería y Obrador: La Madrugada de Javier Moreno

Diseño Gráfico: Rubio & Del Amo

Arquitectura e Interiorismo: Laura Ortín

Vestuario: Constanza Mas

Situación: Calle Salvador de Real, 1 esquina carretera de San Javier, Beniaján (Murcia)

Sup.: 250m2

Estado: acabado 10/2019

Fotografía: David Frutos

Vídeo: Baikal

¿Qué es La Madrugada?

Queríamos hacer algo sólo para Javier Moreno, panadero que trabaja desde la vanguardia recuperando la tradición. Queríamos una identidad y un espacio único para él.

La idea la originan entre él y Rubio y del Amo, diseñadores gráficos. Aparecen una serie de conceptos paralelos entorno a la noche, a un mundo onírico, al mundo de los sueños.

Se habla de artesanía, de lo manual, del imaginario colectivo de la panadería tradicional, el panadero que madruga y trabaja de noche…

Queríamos huir de una estética que recuerde a lo industrial o a les pâtisseries francesas.

Por una lado está el obrador, un espacio amplio y grande donde se colma de maquinaría, bandejas con ruedas y grandes mesas enharinadas para amasar. Pese a las estrictas normativas sanitarias hemos sido capaces de realizar una estética bondadosa y nueva. Las paredes rectas y curvas se revisten de azulejo color crema. El suelo es de terrazo tradicional, un material que amamos por su carácter

fuerte y resistente además de una estética tradicional imperecedera. La tienda se proyecta como un vaciado. Techos, paredes y mobiliario forman un continuum curvilíneo que se reviste manualmente de microcemento color tierra suave. Esa espacialidad onírica, algo surrealista hace que la tienda te envuelva 360º, su suavidad, su esponjosidad produce calma, sosiego, bienestar.

37 COLEGIO DE ARQUITECTOS DE MURCIA | 062022

El mostrador curvo te recibe y te desliza por la amplia variedad de producto. Un flujo contínuo y amable que hace recorrer el local invadido de sensaciones y aromas familiares.

La panadería está cargada de sutiles mensajes que nos transportan a ese mundo de dualidad real-irreal. Al fondo, un trigal inventado, el origen, coronado por una lámpara de barro hecha a mano, sorprende su ligereza, trabajada como filigrana, miles de agujeros precisos muestran la luz. Este espacio, no lo podemos negar, es nuestro favorito, es ese rincón en el que te encuentras a gusto, como en casa.

38 COLEGIO DE ARQUITECTOS DE MURCIA | 062022
39 COLEGIO DE ARQUITECTOS DE MURCIA | 062022
45 COLEGIO DE ARQUITECTOS DE MURCIA | 062022
46 COLEGIO DE ARQUITECTOS DE MURCIA | 062022
47 COLEGIO DE ARQUITECTOS DE MURCIA | 062022

FLORISTERÍA FERNANDO HIJO

LMS Arquitectura + Zueco Tomás Arquitectos

48 COLEGIO DE ARQUITECTOS DE MURCIA | 062022

FICHA TÉCNICA:

Titulo de la intervención: REFORMA INTERIOR DE FLORISTERÍA FERNANDO HIJO

Promotor: FLORISTERÍA FERNANDO HIJO

Arquitectos: LMS ARQUITECTURA (Loles Martínez Sánchez) + ZUECO TOMÁS

ARQUITECTOS (Lorenzo Tomás Gabarrón, Javier Zueco Sánchez)

Constructor: Mosa&co

Localización: C/ Isidoro de la Cierva, nº10, 30.001 Murcia

Año de finalización: 2018

Fotografía: David Frutos

49 COLEGIO DE ARQUITECTOS DE MURCIA | 062022

Nos encontramos ante un proyecto ubicado en uno de los ejes principales de la ciudad de Murcia, en la calle Correos y con un cliente, Floristería Fernando Hijo, de reconocido prestigio en el mundo de la floristería con más de 50 años de historia y que quería repensar su modelo de negocio abandonando el concepto tradicional de tienda para abordar una nueva perspectiva comercial apostando por dividir el espacio existente del local en dos zonas comunicadas pero claramente diferenciadas. En la parte más visible se ubica la exposición y tienda de flores con un espacio central libre de atención al público delimitado por las pieza que acogen la administración y las cámaras climatizadas de flores, una de las cámaras sirve de elemento charnela entre este espacio y la parte más privada que da a plaza Raimundo González Frutos y que se convierte en auténtico taller, laboratorio de experimentación, donde los clientes pueden ver el proceso mediante el cual se montan y se preparan sus encargos. Los distintos ambientes se diferencian no solo por el concepto espacial y por la compartimentación sino por los

50 COLEGIO DE ARQUITECTOS DE MURCIA | 062022

elementos expresivos que revisten los interiores, con una apuesta por los materiales nobles como la madera y la piedra en la parte pública y más industrial y con mas presencia de otros materiales como el acero y el aluminio para la compartimentación mediante estanterías. En definitiva, una apuesta por la flexibilidad que sea capaz de compatibilizar una importante zona de trabajo con otra de exposición de las creaciones de Fernando Hijo.

51 COLEGIO DE ARQUITECTOS DE MURCIA | 062022

Calzados La Fuensantica okono

FICHA TÉCNICA

Nombre del proyecto: Calzados La Fuensantica

Oficina de arquitectura: okono

Sitio web: http://okono.es/ · Redes sociales: https://www.instagram.com/okonoarquitectura/

https://www.facebook.com/OKONOstudio/

Email de contacto: info@okono.es

Ubicación de la oficina (Ciudad, País): Murcia, España

Año finalización construcción: 2018

Superficie construida (m2): 62,22 m²

Ubicación: Murcia, España

Programa: Comercial

Arquitecto(s) a cargo: okono

E-mail arquitecto(s) a cargo: info@okono.es

Fotografía:Créditos fotógrafo: David Frutos ·

Sitio web fotógrafo: http://davidfrutos.com/ ·

E-mail fotógrafo: info@davidfrutos.com

52 COLEGIO DE ARQUITECTOS DE MURCIA | 072022
53 COLEGIO DE ARQUITECTOS DE MURCIA | 072022

Con La Fuensantica nos enfrentamos a un proyecto en el que tradición y vanguardia debían ir de la mano. Un comercio, en la Calle Sociedad, con 66 años de antigüedad y un objetivo claro: insuflar vida a cada esquina, pero manteniendo su identidad y filosofía. Así, guiándonos por la luz, el espacio, y ese camino celestial que había llevado la zapatería hasta nuestros días, creamos el espacio para “La Fuensantica, divinos zapatos”.

El primer paso, el primer rito, fue proyectar un espacio completamente abierto, en el que el ladrillo primario del edificio tomase el poder de convertir la tienda en un lugar que ha respetado el paso de tiempo, añadiendo esa puerta de entrada en forma de halo que, de alguna manera, separa la tierra del cielo, lo humano de lo divino. Y en La Fuensantica, el blanco deja de ser neutral para tener valor propio y dotar al espacio de pureza, sencillez y sensibilidad.

La zapatería es el hilo conductor, y a través de una malla de chapa micro-

54 COLEGIO DE ARQUITECTOS DE MURCIA | 062022

perforada, colocada en zigzag, conseguimos que el producto se presentase ante el cliente como un cuadro se descubre ante nuestros ojos en un museo. Además, los soportes cilíndricos de metacrilato permiten que los zapatos vuelen fijos en el espacio como en un cielo fotográfico. A veces, la revelación divina simplemente significa conseguir que tu cerebro oiga lo que tu corazón ya sabe, y en La Fuensantica la conexión entre todos los órganos es real.

55 COLEGIO DE ARQUITECTOS DE MURCIA | 062022
Entrar en lo divino y dejar volar la imaginación(y los zapatos).

INTERIORISMO LA GLORIA de ANDRÉS MÁRMOL Pepa Díaz Calvo

Partiendo de una distribución interior y particiones impuestas por la propiedad en el que además anteriormente se había llevado a cabo una labor similar a la nueva actividad, en primer lugar comprobamos estabilidad y eficiencia, tomando la decisión de reutilizar algunos revestimientos y materiales existentes, en aras de cumplir con la propuesta de sostenibilidad de los objetivos de desarrollo sostenible Agenda 2030, por ejemplo falsos techos, conductos o terminales de climatización entre otros. A partir de este escenario la propuesta arranca con la búsqueda de aunar serenidad, belleza y coherencia, identificando la esencia de la materia prima y productos que ofrece este local para dar traducción arquitectónica y convivir con lo impuesto y existente. Por sus connotaciones de pureza, que lo vinculan a lo que degustamos y olemos cuando estamos en éste, diversas piedras y maderas en composición geométrica que encontramos en las formas, texturas y tratamientos de sus productos, configuran la identidad del interior del local que evoca la calidad de las materias primas que Mármol utiliza: chocolates ecológicos, fermentaciones lentas y naturales, productos de la huerta murciana...

FICHA TÉCNICA:

INTERIORISMO LA GLORIA DE ANDRÉS MÁRMOL

Arquitecta: Pepa Díaz Calvo

Promotor: Andrés Mármol Martínez

Superficie: 176,30 m2

Local Venta Público Intervenido: 91,50 m2

Presupuesto: 74.543,23€

Ubicación: Avda Pintor Pedro Cano con calle Cronista Carlos Varcalcer. El Parmar. Murcia

57 COLEGIO DE ARQUITECTOS DE MURCIA | 062022
58 COLEGIO DE ARQUITECTOS DE MURCIA | 062022

El objetivo en éste es intentar que vibre como conjunto, producto y arquitectura. La arquitectura como marco, donde el protagonista es el producto, intentado que ésta no devore a éste, envolver sin abrumar.

59 COLEGIO DE ARQUITECTOS DE MURCIA | 062022
60 COLEGIO DE ARQUITECTOS DE MURCIA | 062022
61 COLEGIO DE ARQUITECTOS DE MURCIA | 062022
62 COLEGIO DE ARQUITECTOS DE MURCIA | 062022
63 COLEGIO DE ARQUITECTOS DE MURCIA | 062022

FICHA TÉCNICA:

PROMOTOR: KISSA (www.kissa-lamps.com)

ARQUITECTO AUTOR: RUBÉN MÁRQUEZ MÁS

SUPERFICIE: 72 m²

PRESUPUESTO: 42.000 €

UBICACIÓN: FRANKFURT feria Light&Bulinding

FECHA: OCTUBRE 2022

64 COLEGIO DE ARQUITECTOS DE MURCIA | 062022

KISSA Rubén Márquez Más

65 COLEGIO DE ARQUITECTOS DE MURCIA | 062022
66 COLEGIO DE ARQUITECTOS DE MURCIA | 062022

KISSA es una nueva empresa de iluminación fabricante de esculturas de luz, lámparas retroiluminadas con un profundo sentido artístico y perfiles arquitectónicos para proyectos integrales de iluminación. Recibo el encargo de integrar todo ello en un espacio de pequeña escala como es un stand. Esto supone el gran reto de crear un espacio singular, arquitectónico, expositivo, con armonía, visualmente llamativo y funcional. La solución propuesta fue incorporar la gama de perfiles de menor sección (serie K31), como costillas de una cubierta ligera que delimitara el espacio expositivo, aportando escala humana en el contexto de un pabellón de gran altura típico de las ferias de muestras. Esta cubierta nace de una superficie reglada, conformada por estos perfiles de extrusión, que han sido a la vez curvados para conseguir su forma orgánica. La variedad de gama de producto permitió poner distintas anchuras y orientaciones de líneas de luz (permiten poner el led en una, dos o incluso 4 caras del perfil). De esta manera la cubier -

ta se ilumina, destella, te invita a acercarte. A la vez se incorporan las mencionadas lámparas combinadas con los elementos escultóricos, conformando la identidad de la marca, siendo el propio stand el que se hace identificable como referencia de marketing.

67 COLEGIO DE ARQUITECTOS DE MURCIA | 062022

CENTRO DE BIOMECÁNICA

DEPORTIVALa Goleta, Torre Pacheco 2020

SALTO Proyectos de Arquitectura

El proyecto comprende la reforma integral de un local en La Goleta, para uso de centro de biomecánica deportiva. El objetico general de la investigación biomecánica deportiva es analizar cada movimiento realizado durante la actividad deportiva, con el fin de señalar los grupos musculares activos, buscando la técnica más efectiva para aumentar el desempeño y prevención de lesiones. La aspiración desde el comienzo del proyecto fue conseguir un espacio de alta calidad, donde los usuarios se inspiren y relajen. Un lugar donde arquitectura y deporte van de la mano. Era clave que el espacio estuviera al nivel de las expectativas de la clientela, a la que se le ofrecen clases altamente personalizadas, que incluyen un máximo de 4 participantes. La propuesta utiliza la materialidad y el color como principales estrategias para la limitación y definición de los

FICHA TÉCNICA:

CENTRO DE BIOMECÁNICA

DEPORTIVA—La Goleta, Torre

Pacheco 2020

Arquitecta: Rosa Ballester Espigares

Web: www.saltoproyectos.es

Promotor: Samuel Zamora Gutiérrez

Web: https://www.youtube.com/@ funcionalmechanics

Constructor: Miyaki Construcciones S.L.

Fotografías: David Frutos

Superficie: 100m2

69 COLEGIO DE ARQUITECTOS DE MURCIA | 062022
70 COLEGIO DE ARQUITECTOS DE MURCIA | 062022

distintos ámbitos que configuran un único espacio versátil. El corcho funciona a la vez como acabado y material absorbente y soporte de múltiples actividades. Una caja negra de vestuarios y zonas de almacenamiento, unificada a través de una gran cortina negra, configura el fondo de la intervención, mientras que el verde unifica y configura un ámbito de entrada, una transición.

71 COLEGIO DE ARQUITECTOS DE MURCIA | 062022

BODEGAS VIÑA ELENA

Santa-Cruz Arquitectura

FICHA TÉCNICA:

REHABILITACIÓN Y ADECUACIÓN DE COMPLEJO BODEGUERO PARA ESTABLECIMIENTO DE RESTAURACIÓN Y ENOTURISMO. BODEGAS VIÑA ELENA

Autores: Santa-Cruz Arquitectura. Juan

Antonio Santa-Cruz Alemán, Juan

Antonio Santa-Cruz García, Carmen

Santa-Cruz García, Javier Esquiva

López, Beatriz Lorente Martínez.

Colaboradores: Patricia Cortés Sandoval Ingeniería: PGA Ingeniería

Arquitecto técnico: Jose Luis Morenilla

Promotor: Bodegas Viña Elena S.L.

Ubicación: Jumilla Superficie interior: 470m2 Superficie exterior: 1100 m2

Fotografías: David Frutos Fotografía de Arquitectura

Las instalaciones bodegueras de Viña Elena están formadas por la suma de las edificaciones que han ido realizando las sucesivas generaciones familiares en los años 50, 70 y 2000 conforme a las necesidades de producción y crecimiento, partiendo de la antigua vivienda rural y bodega de los abuelos, de difícil datación, en que se realizaba toda la producción, almacenamiento e incluso el alojamiento de los vendimiadores.

La intervención parte de la rehabilitación de esas primeras edificaciones, para evitar el avance del deterioro y destinarlas a acogida y restauración para los visitantes, así como a museo de los orígenes bodegueros. A partir de ello, buscamos potenciar la idea de conjunto del complejo que actualmente es el resultado de esa suma de edificaciones, estilos y materialidades dispares, para consolidar una imagen de unidad, diseño y calidad espacial, potenciando el patrimonio y tradición de la firma y afianzando su proyección a futuro.

73 COLEGIO DE ARQUITECTOS DE MURCIA | 062022

Identidad corporativa:

“Tradición con la mirada puesta en el futuro” es la frase con la que Bodegas Viña Elena resume cómo su identidad se sustenta en una actitud innovadora, sin perder sus valores de bodega familiar, combinando tradición y vanguardia. Se propone una arquitectura de tradición y de vanguardia. Respetuosa con el entorno y respetuosa con los edificios existentes, que los conserva prácticamente tal y como son. Una ligera piel vegetal con el lenguaje de la arquitectura contemporánea, que abraza y protege lo existente, que aporta unidad al conjunto y que es capaz de crear nuevos espacios y situaciones fieles a la identidad y los valores de la familia. Hacer vino en Viña Elena, es una historia de emociones personales; del esfuerzo de los antepasados; de principios que van más allá de los resultados económicos; de búsqueda de la originalidad y creatividad; de amor por la Tierra; de mostrar lo que te hace único; de lucha con la naturaleza; de la obra inacabada, abierta y en constante evolución. Esa es la historia que cuenta la arquitectura de Viña Elena. Una bodega en la que el diálogo entre generaciones está basado en el valor de la tradición, del amor por la tierra y el esfuerzo, mirando adelante.

con la mirada puesta en el futuro

74 COLEGIO DE ARQUITECTOS DE MURCIA | 062022
“Tradición

Arqueología familiar:

El paso del tiempo, la evolución del cultivo que crece generación tras generación, está latente en Viña Elena. Hay diferentes edificaciones, cada una con el lenguaje de la época en la que fue construida. Respetamos y preservamos los elementos de arquitectura popular ligadas al uso domésticofamiliar y productivo, como habitaciones con suelos originales, despensa, mobiliario, puertas, carpinterías, tinaja, chimenea, cornisa con sus tejas bocacachas, portón de entrada, marcas de las cuentas del grano en paredes… Incluso musealizando la excavación arqueológica en la bodega 0 para dejar visibles las instalaciones con que se producía vino a principios del siglo pasado.

Envolvente vegetal:

El escenario actual de emergencia climática nos plantea el gran reto de adaptar los edificios ya existentes a los nuevos objetivos de sostenibilidad. Mediante la implementación de soluciones bioclimáticas o basadas en la naturaleza, podemos aumentar la eficiencia energética a la vez que reducir la huella de carbono y favorecer la biodiversidad.

Con este objetivo, para las naves de bodegas Viña Elena se proyecta un sistema de doble piel vegetal con una estructura exterior, ligeramente separada del edificio, realizada a base de tubos de acero, que reconoce la volumetría del edificio y la distribución de huecos en fachada. La vegetación se planta en grandes jardineras situadas en la base de esta estructura. Con el fin de que la vegetación tenga un soporte continuo por el que trepar, toda la estructura portante se cubre con un trenzado de cable de acero inoxidable formando una trama geométrica.

75 COLEGIO DE ARQUITECTOS DE MURCIA | 062022

BODEGA CASA ROJO

Srta. Rottenmeier

FICHA TÉCNICA

BODEGAS CASA ROJO

Nombre arquitecto:

Srta. Rottenmeier Estudio de Arquitectura SLP

Promotor: BODEGA CASA ROJO

Presupuesto: 2.500.000 €

Superficie: 3733,9 m2

Ubicación: Jumilla

Un mar de viñedos envuelve la moderna construcción, un proyecto llevado a cabo por Srta. Rottenmeier en un espectacular paraje natural, entre las sierras de El Carche y La Pila, en el Altiplano de la Región de Murcia, España.

Aquí el lugar es el principal protagonista del proyecto, donde la naturaleza y el silencio transmiten una profunda sensación de paz. El edificio se adapta a su enclave a la vez que responde a la imagen y necesidades de una empresa dinámica e innovadora. El espacio interior de la bodega queda conectado visualmente con el medio natural que le rodea a través de gran-

des huecos que enmarcan el paisaje, a la vez que se encuentran protegidos de la radiación directa del sol por grandes voladizos. La bodega está situada en una zona con una climatología extrema, con temperaturas muy altas en verano y con inviernos fríos, por ello se trabajó la envolvente del edificio para conseguir gran eficiencia energética y confort interior. Se apostó por la sencillez del diseño, utilizando materiales tradicionales, como el estuco blanco y la cerámica. La elección de la cerámica responde al color natural de la arcilla, material utilizado a lo largo de los años para la elaboración de vino en ánforas y

en sintonía además con el color de la tierra de las parcelas de viñedos que rodean la bodega. El edifico integra la zona industrial y social, sin una distinción aparente desde el exterior. En la zona sur se sitúan las oficinas, zonas de catas y visitas de enoturismo; reservando la parte norte y el subsuelo para la elaboración del vino, estancias que necesitan estar protegidas por el calor y la radiación solar.

La separación de estas zonas es únicamente estructural, lo que permite crear una cubierta inclinada con cerchas de madera en la zona de elaboración, que le confiere un carácter cálido y reducen la visión industrial; y una estructura independiente de

hormigón in situ en la zona social que permiten generar espacios de trabajo y ocio.

Trabajar en un entorno natural es un privilegio, por lo que se enmarcó la zona social, de oficinas y de dirección, con un mirador hacia el paisaje, que les hiciera disfrutar diariamente del entorno en el que trabajan. El mirador orientado a poniente ofrece atardeceres mágicos a las visitas enoturísticas, desde donde pueden disfrutar de una copa de vino y de la inmensidad de viñedos que rodean el entorno. Este mirador es, a su vez, la prolongación de la zona de restauración, donde al abrir los grandes ventanales se crea una simbiosis entre la zona interior y exterior.

78 COLEGIO DE ARQUITECTOS DE MURCIA | 062022

Este mirador apergolado es testigo de la variedad de colores que refleja el cielo a lo largo de las estaciones: azules intensos durante el día, atardeceres rojizos color fuego, o cielos rosas y morados en las tardes de verano.

La zona de elaboración es cómoda, práctica y respetuosa con la elaboración del vino. El vino se recolecta de parcelas cercanas de manera natural en pequeñas cajitas de 12 kg, que se transportan refrigeradas hasta la bodega, para no romper la cadena de frío.

La uva es recepcionada en los muelles traseros de la zona norte durante los meses de agosto y septiembre, meses que rondan los 35º en esta zona sur de España, por lo que el voladizo que recorre la fachada norte permite disfrutar de sombra durante los duros días de vendimia. La selección de la uva cuando llega a la bodega es manual, donde se eligen minuciosamente los racimos que irán directamente hasta los depósitos. La sala de barricas, situada en el corazón del edifico, está bien protegida por la construcción para que su temperatura sea constante. El ambiente oscuro, donde sólo destaca la madera de las barricas, hace agudizar los sentidos, y percibir el olor a madera y vino mientras recorres el espacio. El sótano, con muros de hormigón y un forjado de casetón recuperable, hace de dormitorio de las botellas donde termina de realizar la crianza el vino, para cerrar el ciclo y comenzar otra nueva añada.

El mimo tanto en la elaboración como en la construcción es lo que ha permitido que tanto el vino como el edificio sean hoy reconocidos a nivel mundial. La bodega, finalizada en el año 2017, es la combinación perfecta entre modernidad y tradición, valores que forman parte de la propia firma, de Casa Rojo. Esos valores, esa alma, son los que encontramos en la construcción por Srta. Rottenmeier.

Además, el estudio de arquitectura ha sido seleccionado de nuevo por Casa Rojo para llevar a cabo la construcción de una nueva bodega en Ribera del Duero (Curiel de Duero, Valladolid), donde la firma enológica contará con una nueva sede para elaboración y visitas enoturísticas en una de las denominaciones de origen más importantes del mundo.

79 COLEGIO DE ARQUITECTOS DE MURCIA | 062022

ACTIVIDADES COAMU - 2022

CURSOS

CURSO DISEÑO DE ESTRUCTURAS DE MADERA

PARA VIVIENDAS INDUSTRIALIZADAS

Fechas: 21, 23 y 23 de febrero.

Nº asistentes: 25

Horas lectivas: 12

Importe: 70€

Lugar: Aula de Formación COAMU y Plataforma

Webinar

Profesor: Antonio Maciá Mateu

Cualificación profesional: Dr.Arquitecto.

CURSO NUEVO CÓDIGO ESTRUCTURAL:

CE 2021

Fechas: 3, 10, 17, 24, 31 de marzo y 1, 7 de abril

Nº asistentes: 39

Horas lectivas: 30

Importe: 225€

Lugar: Aula de Formación COAMU y Plataforma

Webinar

Profesor: Juan Roldán Ruiz

Cualificación profesional: Dr. Arquitecto.

CURSO DISEÑO DE ILUMINACIÓN PARA

ARQUITECTOS

Fechas: 21, 22, 28, 29 de marzo, 4, 5, 11 y 12 de abril

Nº asistentes: 23

Horas lectivas: 16

Importe: 95€

Lugar: Aula de Formación COAMU y Plataforma

Webinar

Profesores: Gisela Steiger y Miquel Ángel Juliá

Cualificación profesional: Arquitectos

CURSO LIBRO DEL EDIFICIO EXISTENTE

Fechas: A partir del 24 de marzo.

Nº asistentes: 224

Horas lectivas: 8

Importe: Gratuito

Lugar: Plataforma Moodle

Profesor: Juan Queipo de Llano Moya

Cualificación profesional: Arquitectos

CURSO APLICACIÓN Y EJEMPLOS

PRÁCTICOS DEL NUEVO CÓDIGO

ESTRUCTURAL 2021.

LA LLEGADA DE LOS EURO-CÓDIGOS DE HORMIGÓN Y ACERO A ESPAÑA.

Fechas: 3, 11, 23, 30 de mayo

1, 6, 13, 15, 20 y 22 de junio.

Nº asistentes: 13

Horas lectivas: 50

Importe: 325€

Lugar: Plataforma Webinar

Profesores: Carlos José Parra Costa y Mariano

Calabuig Soler

Cualificación profesional: Arquitectos

CURSO METODOLOGÍA BIM APLICADA A LA CONTRATACIÓN PÚBLICA + TALLER PRÁCTICO DE EFICIENCIA ENERGÉTICA

Fechas: Del 16 de mayo al 19 de junio

Nº asistentes: 12

Horas lectivas: 28

Importe: 60€

Lugar: Plataforma Moodle

Profesor: Carlos Lucena

Cualificación profesional: Arquitecto

CURSO GESTIÓN DE LOS PROGRAMAS DE AYUDAS A LA REHABILITACIÓN (GPAR)

Fechas: A partir del 1 de septiembre

Nº asistentes: 93

Horas lectivas: 16

Importe: Gratuito

Lugar: Plataforma Moodle

Profesor: Cristina Cabello Matud y Noemi Cortés Montero

Cualificación profesional: Arquitectas

CURSO PAISAJISMO APLICADO PARA ARQUITECTOS: LOS JARDINES EN LAS VIVIENDAS UNIFAMILIARES.

Fechas: 20, 22, 27, 29 de septiembre y 4 de octubre.

Nº asistentes: 23

ACTIVIDADES 2022 80 COLEGIO DE ARQUITECTOS DE MURCIA | 062022

Horas lectivas: 15

Importe: 90€

Lugar: Plataforma Webinar

Profesores: Nathalie Gidrón Sánchez. Arquitecta

Hugo Riquelme Ortega.

Cualificación profesional: Ingeniero Técnico Forestal.

CURSO HERRAMIENTA UNIFICADA LIDERCALENER (HULC). VIVIENDA Y PEQUEÑO TERCIARIO

Fechas: 5, 7, 13 y 14 de octubre

Nº asistentes: 23

Horas lectivas: 20

Importe: 100€

Lugar: Plataforma Webinar

Profesor: Pedro Antonio Díaz Guirado

Cualificación profesional: Arquitecto

CURSO DE CERTIFICACIÓN DE EDIFICACIÓN EXISTENTE Y VERIFICACIÓN

DEL DB-HE CON CE3X

Fechas: 18, 20, 25, 27 de octubre

Nº asistentes: 25

Horas lectivas: 15

Importe: 70€

Lugar: Plataforma Webinar

Profesor: Iván Lledó Llorca

Cualificación profesional: Arquitecto

TALLER 1. EL DB-HE APLICADO A REHABILITACIÓN

Fechas: 10 de noviembre

Nº asistentes: 33

Horas lectivas: 3

Importe: 30€

Lugar: Plataforma Webinar / Aula de Formación

COAMU

Profesor: Pedro Antonio Díaz Guirado

Cualificación profesional: Arquitecto

TALLER 2. MEJORAS PARA LA REDUCCIÓN DE LA DEMANDA ENERGÉTICA Y ACTUACIÓN SOBRE LAS INSTALACIONES TÉRMICAS PARA LA REDUCCIÓN DEL CONSUMO ENERGÉTICO

Fechas: 18, 21, 24 y 25 de noviembre

Nº asistentes: 25

Horas lectivas: 12

Importe: 70€

Lugar: Plataforma Webinar

Profesor: Iván Lledó Llorca

Cualificación profesional: Arquitecto

TALLER 3. INSTALACIONES FOTOVOLTAICAS PARA AUTOCONSUMO

Fechas: 28, 29 y 30 de noviembre

Nº asistentes: 30

Horas lectivas: 4,5

Importe: 40€

Lugar: Plataforma Webinar

Profesor: Alejandro Suarez

Cualificación profesional: Ingeniero Industrial

CURSO METODOLOGÍA BIM PARA INTEGRACIÓN DE DECLARACIONES

AMBIENTALES DE PRODUCTO EN LAS ESTRATEGIAS DE CONSTRUCCIÓN SOSTENIBLE. BIMEPD

Fechas: 1 de diciembre

Nº asistentes:

Horas lectivas: 2

Importe: Gratuito

Lugar: Aula de Formación COAMU

Profesor: David Caparrós

Cualificación profesional: Arquitecto

ACTIVIDADES 2022 81 COLEGIO DE ARQUITECTOS DE MURCIA | 062022

JORNADAS TÉCNICAS

Jornada informativa.

LA ACCESIBILIDAD: UN NICHO-RETO PARA LOS ARQUITECTOS. FUNDACIÓN ARS

Fecha: 1 de marzo.

Nº asistentes: 28

Jornada técnica online.

REFUERZO DE ESTRUCTURAS FRENTE A SISMO. MAPEI

Fecha: 15 de marzo.

Nº asistentes: 20

Jornada técnica.

NUEVAS SOLUCIONES PARA LA CONSTRUCCIÓN Y REHABILITACIÓN MODERNA. INFOCONSTRUCCIÓN Y DPARQUITECTURA.

Fecha: 26 de abril

Nº asistentes: 30

Jornada técnica

HERRAMIENTAS DIGITALES PARA

LA PRESCRIPCIÓN DE SISTEMAS DE VENTILACIÓN. SIBERZONE.

Fecha: 25 de mayo

Nº asistentes: 30

Charla

¿QUIERES CONOCER MÁS SOBRE LA NUEVA GAMA DE PUNTOS DE RECARGA PARA VEHÍCULOS ELÉCTRICOS?. SIMON.

Fecha: 23 de junio

Nº asistentes: 20

Jornada técnica

SMART HOME APLICADO A SOLUCIONES EN VENTANAS Y CIERRES CLIMÁTICOS.

AISLAMAS.

Fecha: 30 de junio

Nº asistentes: 43

Jornada técnica

INSTALACIÓN DE ASCENSORES Y

SOLUCIONES DE ACCESIBILIDAD EN EDIFICIOS EXISTENTES. ORONA PECRÉS

Fecha: 28 de septiembre

Nº asistentes: 43

Jornada técnica

PAVIMENTOS DEL FUTURO SOSTENIBLES CON EFECTO DESCONTAMINANTE. RNC

Fecha: 24 de noviembre

Nº asistentes: 16

Jornada técnica

SOLUCIONES INTELIGENTES PARA LAS INSTALACIONES ELÉCTRICAS DEL FUTURO.

ABB

Fecha: 1 de diciembre

Nº asistentes:

ACTIVIDADES 2022 82 COLEGIO DE ARQUITECTOS DE MURCIA | 062022

CONFERENCIAS/CHARLAS/MESAS REDONDAS/JORNADAS FORMATIVAS

Jornada

FINANCIAR LA REHABILITACIÓN: SISTEMAS, MECANISMOS Y CONFLICTOS.

Fecha: 25 de enero.

Jornada

ARQUITECTURA JOVEN.

Fecha: 3 de marzo

Jornada

SOBRE SALIDAS PROFESIONALES

Fecha: 16 de marzo

Jornada

INFORMATIVA DE CONCURSOS DEL PIREP (Programa de Impulso a la Rehabilitación de Edificios Públicos)

Fecha: 11 de abril

Conferencia FRANCISCO MANGADO

Fecha: 12 de mayo

DESAYUNOS COAMU CON JUAN FRANCISCO LAJARA. DIRECTOR GENERAL DE VIVIENDA.

Fecha: 28 de junio

Charla

PAISAJISMO PRÁCTICO PARA ARQUITECTOS. LA VIDA MÁS ALLÁ DE LA FACHADA.

Fecha: 21 de junio

Jornada

SOFTWARE PARA CERTIFICACIÓN

ENERGÉTICA: CUÁNDO USAR HULC, CE3X O

CYPETHERM HE PLUS

Fecha: 3 de octubre

II JORNADA ARQUITECTURA JOVEN

Fecha: 13 de octubre

Jornada

ESTRATEGIAS DE CONSTRUCCIÓN SOSTENIBLE. BIMEPD

Fecha: 19 de octubre

Jornada informativa I. PRESENTE Y FUTURO DE LOS SISTEMAS DE PREVISIÓN

Fecha: 25 de octubre

Jornada informativa: EXIGENCIAS DE MEJORA ENERGÉTICA DE LOS DISTINTOS PLANES DE AYUDA Y PRESENTACIÓN DE LOS TALLERES

Fecha: 4 de noviembre

2º DESAYUNO COAMU. ESTADO DE LA VIVIENDA COLECTIVA EN LA REGIÓN

Fecha: 8 de noviembre

Conferencia ARANGUREN+GALLEGOS. CICLO DE VIVIENDA COLECTIVA

Fecha: 10 de noviembre

Jornada

ESTRATEGIA DE MOVILIDAD MUNICIPAL DE MURCIA

Fecha: 14 de noviembre

Conferencia PERIS+TORAL.

CICLO DE VIVIENDA COLECTIVA

Fecha: 17 de noviembre

ACTIVIDADES 2022 83 COLEGIO DE ARQUITECTOS DE MURCIA | 062022

EXPOSICIONES

EXPOSICIÓN PUNTO DE PARTIDA. REGENERACIÓN URBANA DE LORCA.

Fecha: Del 25 de enero al 10 de febrero.

EXPOSICIÓN LA CASA POSTPANDEMIA

Fecha: Del 10 al 23 de febrero.

EXPOSICIÓN 20 AÑOS DE BIENALES DE ARQUITECTURA. PREMIO EXTRAORDINARIO ALEJANDRO DE LA SOTA.

Fecha: Del 26 de abril al 21 de junio

EXPOSICIÓN RINCÓN EXQUISITO. SUPLEMENTO DE VERANO DIARIO LA VERDAD

Fecha: Del 6 al 20 de octubre

EXPOSICIÓN VIVIR

EL ARTE XXV. ASSIDO

Fecha: Del 3 al 30 de noviembre

OTROS

Visita

OBRAS XXI PREMIOS DE ARQUITECTURA

Fecha: 12 de marzo.

COLOCACIÓN PLACA DOCOMOMO CLUB

NÁUTICO DOS MARES

Fecha: 8 de octubre

FERIA DE LA CONSTRUCCIÓN SOSTENIBILIDAD Y REHABILITACIÓN.

FECONS 20.30

Fecha: Del 20 al 22 de octubre

1ª Ruta Patrimonio. MUSEO DE LA CATEDRAL Y SALA VERÓNICAS

Fecha: 28 de octubre

2ª Ruta Patrimonio. MOLINOS DEL RÍO Y EDIFICIO BALTASAR

Fecha: 11 de noviembre

VISITA INSTALACIONES

COSENTINO

Fecha: 23 de noviembre

Fecha: 25 de noviembre

ACTIVIDADES 2022 84 COLEGIO DE ARQUITECTOS DE MURCIA | 062022
NEW EUROPEAN
BAUHAUS PARTY
85 COLEGIO DE ARQUITECTOS DE MURCIA | 062022

Turn static files into dynamic content formats.

Create a flipbook
Issuu converts static files into: digital portfolios, online yearbooks, online catalogs, digital photo albums and more. Sign up and create your flipbook.