Lisboa Arquitectos Quintas nº3

Page 1

EDIFÍCIO DE HABIRUATAÇÃODAS QUINTAS, ALMADA

OA > SRLVT CONCURSO

O serviço de encomenda é um dos principais veículos da OA para promover a arquitetura de qualidade, bem como a justa seleção, contratualização e remuneração dos serviços prestados pelos arquitetos. Em conjunto com os promotores, tem levado a cabo um trabalho de aperfeiçoamento dos programas e contribuído para a transparência dos processos, através da nomeação de um jurado com experiência no programa a concurso e com um percurso profissional exemplar.

Os concursos de conceção em particular, ao colocar a concurso apenas os projetos e estabelecendo à partida as futuras condições a que o vencedor estará sujeito, é também uma forma de democratizar o acesso à profissão e permitir uma evolução dos projetistas na escala e nos programas a que se dedicam.

Os concursos são também uma oportunidade única de ter uma grande quantidade de profissionais debruçados sobre um determinado problema. Dos concursos resulta um vencedor, que desejavelmente se materializará num edifício, mas também um conjunto de projetos, de produção intelectual, que importa não perder.

Estas publicações são, portanto, um documento para o futuro. Um património coletivo, que poderá ser utilizado como fonte de conhecimento para participantes em concursos similares e também como registo histórico da arquitetura feita no nosso tempo.

SÉRGIO
VICE-PRESIDENTE E RESPONSÁVEL PELO PELOURO DA ENCOMENDA
ANTUNES

Os resultados obtidos fruto da decisão do Conselho Diretivo do IHRU, I.P., de utilizar a figura do concurso de conceção para selecionar a equipa projetista para desenvolver o projeto de Edifício de habitação na Rua das Quintas em Almada vieram confirmar, de forma inequívoca, a pertinência desta opção enquanto instrumento para a obtenção de um projeto de qualidade.

Ainda que se trate de um procedimento bastante exigente, o apoio técnico da Secção Regional de Lisboa e Vale do Tejo foi decisivo para assegurar a celeridade, a transparência e o sucesso de todo o processo.

Com efeito, a realização deste concurso permitiu ao IHRU, I.P., selecionar, de entre um conjunto bastante extenso e diversificado de trabalhos, a solução que melhor respondia às necessidades deste Instituto.

Uma vez ultrapassada a fase de contratação e estando o projeto em pleno desenvolvimento, constata-se que este processo foi determinante para permitir que este Instituto tivesse a oportunidade para trabalhar com uma equipa projetista altamente qualificada, determinante para assegurar que, no final, o IHRU, I.P., terá nas suas mãos um projeto de elevada qualidade arquitetónica, sem que sejam descuradas as questões técnicas e financeiras.

LUÍS MARIA GONÇALVES VOGAL DO CONSELHO DIRETIVO INSTITUTO DA HABITAÇÃO E DA REABILITAÇÃO URBANA

EDIFÍCIO DE HABITAÇÃO RUA DAS QUIN-

TAS, ALMADA

PROMOTOR

>IHRU – INSTITUTO DA HABITAÇÃO E DA

REABILITAÇÃO URBANA, I.P.

ASSESSORIA TÉCNICA

>OA - SECÇÃO REGIONAL LISBOA E VALE DO TEJO.

CONCURSO

O presente concurso de conceção, promovido pelo Instituto de Habitação e Reabilitação Urbana (IHRU, I.P.) com a assessoria técnica da Secção Regional de Lisboa e Vale do Tejo da Ordem dos Arquitectos (OA-SRLVT) e com o apoio institucional do Município de Almada, tem como objeto a seleção de 1 (um) Trabalho de Conceção para elaboração do Projeto de edifício de habitação na Rua das Quintas, localizado no Plano Integrado de Almada, para cuja concretização e desenvolvimento o IHRU, I.P., tem a intensão de celebrar um contrato de prestação de serviços na sequência de um procedimento de ajuste direto realizado ao abrigo da alínea g) do n. o 1 do artigo 27o do Código dos Contratos Públicos.

Este concurso foi publicitado através do Anúncio de procedimento n. o 5422/2022, enviado para publicação a 29 de abril de 2022 e publicado no Número 84 do Diário da República - II Série, de 2 de maio de 2022 e do Anúncio de Concurso de Conceção n. o 2022/S 087-237409, publicado no Suplemento do Jornal Oficial da União Europeia, tendo as respetivas peças sido disponibilizadas na plataforma eletrónica de contratação pública AnoGov e nos sítios do IHRU, I.P. e da OA-SRLVT.

PROGRAMA

De acordo com o Programa Preliminar, a intervenção deveria cumprir os parâmetros urbanísticos definidos, nomeadamente ao nível dos alinhamentos, cérceas e área de construção.

Deveria ser previsto um total de 27 fogos, com uma distribuição preferencial de tipologias de acordo com o definido no ponto 6 do Programa Preliminar, ou seja, 8 T1, 11 T2, 6 T3 e 2 T4, sem prejuízo da possibilidade de algum ajustamento pontual a estes números, desde que se cumprisse o número total de fogos.

O valor da área bruta de construção acima do

solo não poderia ultrapassar 2.820,0 m2, enquanto que a área bruta de construção total estaria limitada a 4.030,0 m2, área essa onde se incluiria as áreas destinadas ao estacionamento e às arrecadações. Deveria ser considerado o número de lugares de estacionamento requerido pela legislação e regulamentos aplicáveis, a resolver integralmente no interior do conjunto edificado, a que acresceriam os necessários lugares no exterior. Deveriam, igualmente, ser previstos lugares para estacionamento de bicicletas, quer no interior do lote, quer no exterior.

8
EDF. HABIT. RUA DAS QUINTAS

Na proposta a elaborar, a área das habitações deveria atender ao limite de áreas por fogo determinado pelo regime da Habitação a Custos Controlados, podendo ser consideradas as majorações previstas nesse regime. A organização das habitações deveria ter em consideração a preferência por soluções que assegurassem a possibilidade de ventilação natural transversal.

LOCAL DE INTERVENÇÃO

O local de intervenção, com uma área de 2.128,0 m2, localiza-se no lado sul da Rua das Quintas. O polígono do terreno inclui uma moradia e respetivos anexos, os quais deverão ser demolidos, bem como uma faixa estreita que que estabelece a ligação à Rua da Boa Esperança. A nascente, o terreno confina um edifício de habitação coletiva, enquanto que, a poente, confina com uma outra moradia. A topografia apresenta um declive acentuado entre a Rua das Quintas e a Rua da Boa Esperança.

JÚRI DO CONCURSO

O presente concurso foi conduzido por um Júri designado por deliberação do Conselho Diretivo do IHRU, I.P..

O Júri iniciou as suas funções no dia útil subsequente à data de envio para publicação do Anúncio do concurso na II Série do Diário da República, exercendo as suas funções de acordo e conforme o estabelecido no artigo 68.o do Código dos Contratos Públicos, competindolhe praticar todos os atos e realizar todas as diligências relacionadas com o presente concurso cuja competência não seja cometida ao IHRU, I.P., nomeadamente a prestação de esclarecimentos necessários à boa compreensão e interpretação das peças do concurso, a avaliação das propostas e a elaboração do presente Relatório.

Os trabalhos do Júri foram apoiados pelo gestor do procedimento designado pelo Conselho Diretivo do IHRU, I.P..

As deliberações do Júri sobre a ordenação dos Trabalhos de Conceção apresentados ou sobre a exclusão dos mesmos por inobservância da descrição das características, das particularidades, das referências e de quaisquer outros requisitos que estes devem apresentar, têm carácter vinculativo para o IHRU, I.P., não podendo ser alteradas depois de concluído o presente relatório e conhecida a identidade dos concorrentes.

O Júri designado pelo Conselho Diretivo do IHRU, I.P., para apreciação dos Trabalhos de Conceção apresentados ao presente concurso, foi composto pelos seguintes membros efetivos:

• PRESIDENTE

Luís Maria Vieira Pereira Roxo Gonçalves (arquiteto) Vogal do Conselho Diretivo do IHRU, I.P.

• MEMBROS EFETIVOS INDICADOS PELO IHRU, I.P.

Paulo Jorge Alves dos Reis (engenheiro) Diretor da Direção de Promoção e Reabilitação do Património Imobiliário, em substituição da arquiteta Ana Cláudia Miguéns Gomes de Almeida.

Joel António Gonçalves Pereira (engenheiro) Técnico do Departamento de Promoção e Reabilitação do Sul.

• MEMBRO EFETIVO INDICADO PELA CÂMARA MUNICIPAL DE ALMADA

Luís Filipe Azenha Bernardo (arquiteto)

• MEMBRO EFETIVO INDICADO PELA SECÇÃO REGIONAL DE LISBOA E VALE DO TEJO DA ORDEM DOS ARQUITECTOS

Tiago Botelho Alberto (arquiteto).

PUBLICAÇÃO

Maio 2022

PRÉMIOS

1° : € 6 400,00

2° : € 3 600,00

3° : € 2 800,00

VALOR BASE

€ 260 000,00 + IVA

ESTIMATIVA DE CUSTO DE OBRA

€ 3 297 900,00 + IVA

CRITÉRIOS DE SELEÇÃO

Conforme estabelecido no artigo 18.º dos Termos de Referência, os critérios de seleção dos trabalhos e a respetiva ponderação foram os seguintes:

C1: Qualidade estética e coerência global da solução concetual (30%)

C2: Racionalidade construtiva e exequibilidade financeira (25%)

C3: Adequação aos objetivos do Programa Preliminar (15%)

C4: Articulação com o território e sistemas envolventes (15%)

C5: Articulação com o território e sistemas envolventes (15%)

ORDENAÇÃO DOS TRABALHOS

Concluída a análise dos Trabalhos de Conceção, o Júri atribuiu, por unanimidade, a classificação de cada subcritério de avaliação para cada um desses trabalhos, aplicando de seguida os valores de ponderação estabelecidos no n. o 1 do artigo 20.o dos Termos de Referência para determinação da pontuação de cada um dos dois critérios, procedendo assim à ordenação dos Trabalhos de Conceção, conforme consta do quadro seguinte:

9
EDF. HABIT. RUA DAS QUINTAS

RELATÓRIO FINAL

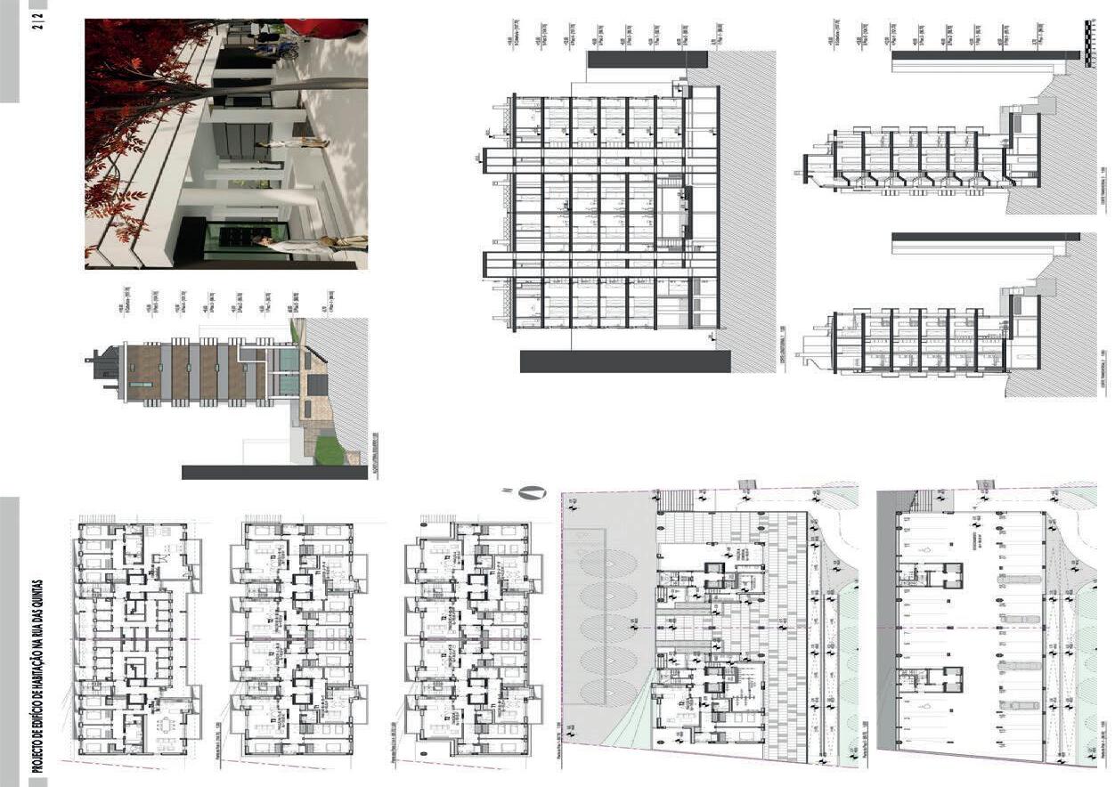
1º CLASSIFICADO: A proposta apresenta uma maisvalia na sua relação com a envolvente, aproveitando a quebra do edifício em dois blocos independentes para desconstruir o alinhamento existente e marcar o acesso pedonal ao jardim a tardoz.

Esta solução permite a quebra visual da continuidade do circuito pedonal norte sul existente, marcando e reforçando urbanisticamente a centralidade na Rua das Quintas, com os espaços comerciais, a entrada do edifício e o estacionamento de bicicletas.

A relação de continuidade com o jardim interior do quarteirão reforça e valoriza o espaço urbano, sendo ainda de salientar o aproveitamento das cotas do jardim já existente e o acesso ao estacionamento pela Rua da Boa Esperança.

O Júri destaca a qualidade das fachadas, de uma simplicidade contemporânea, a orientação dos fogos em função da exposição solar, dispondo na sua maioria de dupla ventilação, bem como a dicotomia entre as áreas sociais e as áreas de maior intimidade na compartimentação das habitações, com a extensão da zona social para o exterior através de amplas varandas.

O júri salienta ainda a forma como foi resolvido um vazio urbanístico algo complexo, e como a proposta conseguiu responder as condicionantes técnicas construtivas exigidas para este tipo de edificação, sendo evidente o cuidado com os processos construtivos, manifestado pela adoção de soluções que procuram assegurar a durabilidade e a resistência ao desgaste decorrente da utilização das habitações.

A existência de vãos das instalações sanitárias na empena poente e a solução de “trincheira” na relação com os edifícios a sul deverão ser reequacionadas aquando do desenvolvimento do projeto.

2º CLASS.: A proposta evidencia-se por uma especial atenção na sua inserção urbana e arquitetónica, contribuindo para a criação de novos espaços públicos de utilização e fruição coletiva qualificados, potenciando uma coerente continuidade dos espaços de circulação e interação com as atividades comerciais propostas nos pisos térreos do edifício.

Destaca-se igualmente a forma de como é potenciada a relação pedonal entre ruas, resolvendo a acentuada diferença de cotas do quarteirão, bem como o cuidado na salvaguarda dos sistemas de vistas existentes no contexto da malha urbana onde se insere e na articulação morfológica com as áreas e edifícios adjacentes..

Apesar de assegurar uma resposta aos objetivos do programa, apresentando uma organização racional e eficaz dos fogos e dos espaços de circulação interna do edifício, considera-se, contudo, que existem condições para uma melhor clarificação e melhoria das soluções apresentadas.

A proposta procura dar resposta aos objetivos do programa, apresentando uma boa organização do interior das habitações e assegurando a ventilação transversal dos espaços interiores.

O Júri considerou a existência de alguns aspetos menos conseguidos, destacando-se a falta de privacidade nas habitações ao nível do piso térreo, a solução apresentada para os espaços situados abaixo da cota de soleira e a opção por dois corredores a partir de um único núcleo de acessos verticais.

Digitalize o QrCode para ver os painéis em alta definição.

3º CLASS.: A proposta revela uma abordagem singular na inserção urbana e arquitetónica preconizada, nomeadamente através do recurso a um

10
Digitalize o QrCode para ver os painéis em alta definição.
1 0 15,0 14,4 14,0 14,6 15,0 14,640 Ordenação Final C1 (30%) C2 (25%) C3 (15%) C4 (15%) C5 (15%) Pontuação Final 8 0 14,0 11,6 10,8 10,6 12,4 12,170 4 0 13,4 13,8 13,8 14,0 13,6 13,680 2 0 14,4 13,4 14,0 16,6 14,8 14,480 6 0 12,2 13,4 13,6 12,2 12,6 12,770 9 0 10,6 13,0 10,4 12,2 11,6 11,560 5 0 12,0 13,4 14,2 13,8 14,2 13,280 3 0 13,6 14,2 13,4 14,2 13,8 13,840 7 0 13,0 12,2 12,8 12,2 12,4 12,560
EDF. HABIT. RUA DAS QUINTAS

cuidado jogo de diferentes volumes edificados para a Rua da Quintas, contribuindo deste modo para uma mitigação do impacte volumétrico na envolvente e para a salvaguarda dos sistemas de vistas existentes no contexto da malha urbana onde se insere.

A sobriedade e a elegância do desenho não é completamente homogénea, sendo a relação com o miolo do quarteirão um pouco prejudicada pela a imagem monolítica dos pisos inferiores do edifício.

O Júri destaca o pragmatismo na organização e disposição dos fogos e dos espaços de circulação interna do edifício, ainda que a opção por 3 núcleos de acessos verticais implica uma redução da área disponível para afetar às habitações.

A questão da ventilação transversal e da privacidade de algumas das habitações e o tratamento do espaço envolvente a sul revelam-se como situações a melhorar.

RESULTADO FINAL

Digitalize o QrCode para ver os painéis em alta definição.

1º CLASSIFICADO: (concorrente) Miguel JudasArquitecto, Lda; (coordenação) Miguel Nuno Pessoa Marques Judas. / 2º CLASS.: (conc.) Girão Lima Arquitectos, Lda + Raffaele Sarubbo; (coord.) Ricardo Ribeiro Machado Pedroso de Lima. / 3º CLASS.: (conc.) Arte Tectónica - Arquitetura e Desenho, Lda; (coord.) João Cassiano Santos. / 4º CLASS.: (conc.) Lima & Paixão - Gestão e Projetos, Lda; (coord.) Jorge Manuel Lopes Paixão. / 5º CLASS.: (conc.) Nuno Mendonça; (coord.) Nuno Adriano Santos Mendonça. / 6º CLASS.: (conc.) Aguiar Maia - Arquitectos, Lda; (coord.) José Manuel Ribeiro de Aguiar. / 7º CLASS.: (conc.) Clanet & Brito, Lda; (coord.) Daniela Pascoal Figueiredo. / 8º CLASS.: (conc.) Branco Sampaio, Unipessoal, Lda; (coord.) Tiago Miguel Branco Sampaio. / 9º CLASS.: (conc.) César Ruivo Arquitectos, Lda; (coord.) César de Jesus Ruivo.

11
EDF. HABIT. RUA DAS QUINTAS

1º CLASSIFICADO

CONCORRENTE >MIGUEL JUDAS - ARQUITECTO, LDA

COORDENAÇÃO

MIGUEL NUNO PESSOA MARQUES JUDAS

13
EDF. HABIT. RUA DAS QUINTAS
>
14 1º CLASS. 1/2
15 1º CLASS. 2/2

CONCORRENTE

GIRÃO LIMA ARQUITECTOS, LDA

RAFFAELE SARUBBO

COORDENAÇÃO

RICARDO RIBEIRO MACHADO PEDROSO DE LIMA

16
2º CLASSIFICADO
>
>
>
EDF. HABIT. RUA DAS QUINTAS
17 2º CLASS. 1/2
18 2º CLASS. 2/2

3º CLASSIFICADO

CONCORRENTE: >ARTE TECTÓNICA - ARQUITETURA E DESENHO, LDA

COORDENAÇÃO > JOÃO CASSIANO SANTOS

19
EDF. HABIT. RUA DAS QUINTAS
20 3º CLASS. 1/2
21 3º CLASS. 2/2

CONCORRENTE > LIMA & PAIXÃO - GESTÃO E PROJETOS, LDA

COORDENAÇÃO >JORGE MANUEL LOPES PAIXÃO

22
4º CLASSIFICADO
EDF. HABIT. RUA DAS QUINTAS
23 4º CLASS. 1/2
24 4º CLASS. 2/2

5º CLASSIFICADO CONCORRENTE >NUNO MENDONÇA

COORDENAÇÃO > NUNO ADRIANO SANTOS MENDONÇA

25
EDF. HABIT. RUA DAS QUINTAS
26 5º CLASS. 1/2
27 5º CLASS. 2/2

6º CLASSIFICADO CONCORRENTE >AGUIAR MAIA - ARQUITECTOS, LDA

COORDENAÇÃO >JOSÉ MANUEL RIBEIRO DE AGUIAR

28
EDF. HABIT. RUA DAS QUINTAS
29 6º CLASS. 1/2
30 6º CLASS. 2/2

7º CLASSIFICADO

CONCORRENTE

CLANET & BRITO, LDA

COORDENAÇÃO > DANIELA PASCOAL FIGUEIREDO

31
>
EDF. HABIT. RUA DAS QUINTAS
32 7º CLASS. 1/2
33 7º CLASS. 2/2

CONCORRENTE > BRANCO SAMPAIO, UNIPESSOAL, LDA

COORDENAÇÃO: > TIAGO MIGUEL BRANCO SAMPAIO

34 8º
CLASSIFICADO
EDF. HABIT. RUA DAS QUINTAS
35 8º CLASS. 1/2
36 8º CLASS. 2/2

CLASSIFICADO CONCORRENTE > CÉSAR RUIVO ARQUITECTOS, LDA

COORDENAÇÃO >CÉSAR DE JESUS RUIVO

37
EDF. HABIT. RUA DAS QUINTAS
38 9º CLASS. 1/2
39 9º CLASS. 2/2

MAIO 2022

EDIÇÃO: Ordem dos Arquitectos – Secção Regional de Lisboa e Vale do Tejo. / CONSELHO DIRETIVO

REGIONAL LISBOA E VALE DO TEJO: (presidente) Helena Botelho; (vice-presidente) Sérgio Antunes; (vogais) Ana Miguéns Gomes, Carolina Matos Rocha, João Caria Lopes, Sebastião de Botton, Vanda Alves. / COORDENAÇÃO GERAL: João Caria Lopes, Pelouro Comunicação e Cultura. / SERVIÇO DE ENCOMENDA: Célia Faria, Débora Félix. / APOIO JURÍDICO: Helena Rocha. / DESIGN GRÁFICO: Paulo Condez www.designbynada.com / IMPRESSÃO E PUBLICIDADE: Editorial MIC www.editorialmic.com

(assessoria técnica) (promotor)

Turn static files into dynamic content formats.

Create a flipbook
Issuu converts static files into: digital portfolios, online yearbooks, online catalogs, digital photo albums and more. Sign up and create your flipbook.