Lisboa Arquitectos Nascente nº2

Page 1

O serviço de encomenda é um dos principais veículos da OA para promover a arquitetura de qualidade, bem como a justa seleção, contratualização e remuneração dos serviços prestados pelos arquitetos. Em conjunto com os promotores, tem levado a cabo um trabalho de aperfeiçoamento dos programas e contribuído para a transparência dos processos, através da nomeação de um jurado com experiência no programa a concurso e com um percurso profissional exemplar. Os concursos de conceção em particular, ao colocar a concurso apenas os projetos e estabelecendo à partida as futuras condições a que o vencedor estará sujeito, é também uma forma de democratizar o acesso à profissão e permitir uma evolução dos projetistas na escala e nos programas a que se dedicam.

Os concursos são também uma oportunidade única de ter uma grande quantidade de profissionais debruçados sobre um determinado problema. Dos concursos resulta um vencedor, que desejavelmente se materializará num edifício, mas também um conjunto de projetos, de produção intelectual, que importa não perder. Estas publicações são, portanto, um documento para o futuro. Um património coletivo, que poderá ser utilizado como fonte de conhecimento para participantes em concursos similares e também como registo histórico da arquitetura feita no nosso tempo.

VICE-PRESIDENTE E RESPONSÁVEL PELO PELOURO DA ENCOMENDA
SÉRGIO ANTUNES

Os resultados obtidos fruto da decisão do Conselho Diretivo do IHRU, I.P., de utilizar a figura do concurso de conceção para selecionar a equipa projetista para desenvolver o projeto de Conjunto Habitacional Casquilho Nascente em Almada vieram confirmar, de forma inequívoca, a pertinência desta opção enquanto instrumento para a obtenção de um projeto de qualidade.

Ainda que se trate de um procedimento bastante exigente, o apoio técnico da Secção Regional de Lisboa e Vale do Tejo foi decisivo para assegurar a celeridade, a transparência e o sucesso de todo o processo.

Com efeito, a realização deste concurso permitiu ao IHRU, I.P., selecionar, de entre um conjunto bastante extenso e diversificado de trabalhos, a solução que melhor respondia às necessidades deste Instituto.

Uma vez ultrapassada a fase de contratação e estando o projeto em pleno desenvolvimento, constata-se que este processo foi determinante para permitir que este Instituto tivesse a oportunidade para trabalhar com uma equipa projetista altamente qualificada, determinante para assegurar que, no final, o IHRU, I.P., terá nas suas mãos um projeto de elevada qualidade arquitetónica, sem que sejam descuradas as questões técnicas e financeiras.

LUÍS MARIA GONÇALVES VOGAL DO CONSELHO DIRETIVO INSTITUTO DA HABITAÇÃO E DA REABILITAÇÃO URBANA

CONJUNTO HABITACIONAL CASQUILHO NASCENTE

PROMOTOR

> I HRU – INSTITUTO DA HABITAÇÃO E DA REABILITAÇÃO URBANA, I.P.

ASSESSORIA TÉCNICA

> OA - SECÇÃO REGIONAL LISBOA E VALE DO TEJO.

5 CONCURSO

O presente concurso de conceção, promovido pelo Instituto de Habitação e Reabilitação Urbana (IHRU, I.P.) com a assessoria técnica da Secção Regional de Lisboa e Vale do Tejo da Ordem dos Arquitectos (OA-SRLVT) e com o apoio institucional do Município de Almada, tem como objeto a seleção de 1 (um) Trabalho de Conceção para elaboração do Projeto do Conjunto Habitacional do Casquilho Nascente, localizado no Plano Integrado de Almada, para cuja concretização e desenvolvimento o IHRU, I.P. tem a intenção de celebrar um contrato de prestação de serviços na sequência de um procedimento de ajuste direto realizado ao abrigo da alínea g) do n. o 1 do artigo 27 o do Código dos Contratos Públicos.

Este concurso foi publicitado através do Anúncio de procedimento n. o 15574 2021 enviado para publicação a 10 de dezembro de 2021 e publicado no Número 239 do Diário da República II Série, de 13 de dezembro de 2021 e do Anúncio de Concurso de Conceção n. o 2021 /S 243 641703 publicado no Suplemento do Jornal Oficial da União Europeia, tendo as respetivas peças sido disponibilizadas na plataforma eletrónica de contratação pública AnoGov e nos sítios do IHRU, I.P. e da OA-SRLVT.

PROGRAMA

De acordo com o Programa Preliminar, a intervenção deveria cumprir os parâmetros urbanísticos definidos, sem prejuízo de poder decorrer da proposta apresentada a criação de vários edifícios, e de serem propostos alguns ajustes, desde que devidamente justificados, ao nível dos respetivos limites, alturas e alinhamentos.

Deveria ser previsto um total de 112 fogos, com uma distribuição preferencial de tipologias de acordo com o definido no loteamento, ou seja, 49 T1, 63 T2

sem prejuízo da possibilidade de algum ajustamento pontual a estes números (e até incluir alguns T3 desde que o número total de fogos não fosse comprometido.

O valor da área bruta de construção acima do solo não poderia ultrapassar 10 416 m2 enquanto que a área bruta de construção total estaria limitada a 14 493 m2 área essa onde se incluiriam as áreas destinadas ao estacionamento e às arrecadações. A área de implantação não poderia ultrapassar 2 677 m2 .

Deveria ser considerado o número de lugares

6

de estacionamento requerido pela legislação e regulamentos aplicáveis, a resolver integralmente no interior do conjunto edificado, a que acresceriam os lugares no exterior. Deveriam, igualmente, ser previstos lugares para estacionamento de bicicletas, quer no interior do conjunto edificado, quer no exterior.

Na proposta a elaborar, a área das habitações deveria atender ao limite de áreas por fogo determinado pelo regime da Habitação a Custos Controlados, podendo ser consideradas as majorações previstas nesse regime. A organização das habitações deveria ter em consideração a preferência por soluções que assegurassem a possibilidade de ventilação natural transversal.

LOCAL DE INTERVENÇÃO

O local de intervenção, com uma área de 6.540 m2 , localiza-se no Plano Integrado de Almada, numa área sobrante localizada a sul do Bairro do Matadouro. Limitado a norte pela Estrada do Casquilho, a sudoeste pela Rua dos Três Vales a sudeste pela Avenida Torrado da Silva, o local é utilizado atualmente como parque de estacionamento informal.

A topografia apresenta declive suave e contínuo desde o ponto mais a norte do troço da Estrada do Casquilho até ao ponto de cota mais baixa, no gaveto formado pela Rua dos Três Vales e pela Avenida Torrado da Silva.

JÚRI DO CONCURSO

O presente concurso foi conduzido por um Júri designado por deliberação do Conselho Diretivo do IHRU, I.P..

O Júri iniciou as suas funções no dia útil subsequente à data de envio para publicação do Anúncio do concurso na II Série do Diário da República, exercendo as suas funções de acordo e conforme o estabelecido no artigo 68.o do Código dos Contratos Públicos, competindo-lhe praticar todos os atos e realizar todas as diligências relacionadas com o presente concurso cuja competência não seja cometida ao IHRU, I.P., nomeadamente a prestação de esclarecimentos necessários à boa compreensão e interpretação das peças do concurso, a avaliação das propostas e a elaboração do presente Relatório.

Os trabalhos do Júri foram apoiados pelo gestor do procedimento designado pelo Conselho Diretivo do IHRU, I.P..

As deliberações do Júri sobre a ordenação dos Trabalhos de Conceção apresentados ou sobre a exclusão dos mesmos por inobservância da descrição das características, das particularidades, das referências e de quaisquer outros requisitos que estes devem apresentar, têm carácter vinculativo para o IHRU, I.P., não podendo ser alteradas depois de concluído o presente relatório e conhecida a identidade dos concorrentes.

O Júri designado pelo Conselho Diretivo do IHRU, I.P., para apreciação dos Trabalhos de Conceção apresentados ao presente concurso, foi composto pelos seguintes membros efetivos:

→ PRESIDENTE Luís Maria Vieira Pereira Roxo Gonçalves (arquiteto) Vogal do Conselho Diretivo do IHRU, I.P..

→ MEMBROS EFETIVOS INDICADOS PELO IHRU, I.P. Vítor Manuel Carneiro Pinto Rei (arquiteto) indicado pelo IHRU, I.P. (DPRS); Sérgio Paulo da Silva Pereira (engenheiro) indicado pelo IHRU, I.P. (DPRN)

→ MEMBRO EFETIVO INDICADO PELA CÂMARA MUNICIPAL DE ALMADA

Paulo Alexandre Neves Pardelha (arquiteto).

→ MEMBRO EFETIVO INDICADO PELA SECÇÃO REGIONAL DE LISBOA E VALE DO TEJO DA ORDEM DOS ARQUITECTOS

Nuno José Ribeiro Lourenço da Fonseca (arquiteto).

PUBLICAÇÃO

Dezembro 2021

PRÉMIOS

1° PRÉMIO: € 10 000,00

2° PRÉMIO: € 6 000,00

3° PRÉMIO: € 4 000,00

VALOR BASE

€ 699.000,00 + IVA

ESTIMATIVA DE CUSTO DE OBRA

€ 11.319.200,00 + IVA

CRITÉRIOS DE SELEÇÃO

Conforme estabelecido no artigo 18.o dos Termos de Referência, os critérios de seleção dos trabalhos e a respetiva ponderação foram os seguintes:

1 QUALIDADE DA SOLUÇÃO (60%)

1.1 Qualidade estética e coerência global da solução concetual (40%)

1.2 Adequação da solução programática e funcional com os objetivos definidos no Anexo I (25%)

1. 3 Inovação e pertinência da solução concetual (20%)

1.4 Integração e articulação da proposta com o território e sistemas envolventes (15%)

2 EXEQUIBILIDADE DA SOLUÇÃO (40%)

2.1 Adequabilidade do sistema construtivo e dos materiais propostos (40%)

2.2 Sustentabilidade da solução, nomeadamente no que concerne aos aspetos ambientais e de

7

manutenção futura (30%)

2.3 Exequibilidade financeira da proposta (30%)

ORDENAÇÃO DOS TRABALHOS

Concluída a análise dos Trabalhos de Conceção, o Júri atribuiu, por unanimidade, a classificação de cada subcritério de avaliação para cada um

desses trabalhos, aplicando de seguida os valores de ponderação estabelecidos no n o 1 do artigo 18.o dos Termos de Referência para determinação da pontuação de cada um dos dois critérios, procedendo assim à ordenação dos Trabalhos de Conceção, conforme consta do quadro seguinte:

RELATÓRIO FINAL

1º CLASSIFICADO: A solução urbanística proposta consegue criar um espaço habitacional rico e complexo através do posicionamento criterioso no

lote de cinco volumes simples de forma cúbica. Por via desse posicionamento, evita-se o efeito retórico da repetição tipológica, natural em projetos de construção económica, criando um lugar inovador no

8
1 0 16,0 13,6 15,0 16,4 15,26 1 0 15,8 15,4 15,4 15,56 15,380 Ordenação da Solução 1.1 (40%) 1.2 (25%) 1.3 (20%) 1.4 (15%) Qualidade da Solução (60%) Ordenação da Solução 2.1 (40%) 2.2 (30%) 2.3 (30%) Qualidade da Solução (40%) Pontuação Final 8 0 12,2 13,6 12,2 12,4 12,58 8 0 12,2 13,4 14,4 13,22 12,836 4 0 14,6 15,6 13,6 15,4 14,77 4 0 12,0 14,6 14,4 13,50 14,262 12 0 11,2 11,6 12,0 13,4 11,79 12 0 12,4 12,4 12,2 12,34 12,010 17 0 12,2 9,8 11,4 11,6 11,35 17 0 11,0 11,6 8,0 10,28 10,922 2 0 15,6 16,2 14,2 16,2 15,56 2 0 13,8 13,6 15,0 14,10 14,976 10 0 11,4 12,8 10,2 12,0 11,60 10 0 14,0 12,6 13,0 13,28 12,272 15 0 11,6 11,8 11,0 11,0 11,44 15 0 11,8 11,6 11,2 11,56 11,488 6 0 12,8 14,6 14,2 15,2 13,89 6 0 13,6 13,6 14,0 13,72 13,822 14 0 11,8 9,6 10,6 11,4 10,95 14 0 11,6 13,2 12,6 12,38 11,522 19 0 9,8 10,4 9,8 10,4 10,04 19 0 10,2 11,0 10,4 10,50 10,224 9 0 13,8 12,6 13,0 12,2 13,10 9 0 10,6 12,6 10,4 11,14 12,316 5 0 12,0 16,8 12,8 14,6 13,75 5 0 14,8 15,0 14,2 14,68 14,122 13 0 10,2 11,8 9,6 12,8 10,87 13 0 12,2 13,0 12,6 12,56 11,546 18 0 10,2 9,8 8,8 11,4 10,00 18 0 13,0 11,4 11,8 12,16 10,864 3 0 14,0 15,6 13,6 16,0 14,62 3 0 14,6 14,2 15,0 14,60 14,612 11 0 11,0 12,8 11,4 12,2 11,71 1 1 0 12,6 12,8 12,6 12,66 12,090 16 0 9,8 11,2 11,0 12,4 10,78 16 0 11,2 11,4 11,4 11,32 10,996 7 0 13,8 13,2 13,8 13,4 13,59 7 0 13,0 14,0 14,2 13,66 13,618

contexto em que se insere, mas sem estabelecer ruturas de escala nem descontinuidades no espaço público.

A escala e posição relativa dos volumes habitacionais permite tirar partido do sistema de vistas para sul, mantendo uma distância apropriada entre blocos que, sem comprometer a privacidade dos fogos, promove o desejável sentido de vizinhança. O espaço coletivo cuidadosamente desenhado entre os diversos volumes tem também esse sentido de confluência entre vizinhos, sem deixar de ser aberto aos bairros envolventes.

A organização do piso tipo permite tirar partido da superfície de fachada disponível para efeitos de ventilação e iluminação natural, destacando-se a colocação de varandas nos cunhais dos edifícios.

O sistema construtivo proposto para as fachadas dos edifícios assenta na utilização de poucos elementos modulares de revestimento e de um número muito reduzido de tipos de vãos, o que será certamente um fator de eficácia e economia da construção e manutenção deste conjunto. A solução das escadas comuns deverá ser aprofundada, de modo a assegurar o cumprimento das regras de segurança contra risco de incêndios.

habitações com instalações sanitárias não acessíveis.

Digitalize o QrCode para ver os painéis em alta definição.

3º CLASS.: O projeto, composto por um único edifício de três volumes, estabelece uma relação de continuidade com a malha edificada do Bairro do Matadouro, modelando uma frente urbana, a qual protege e configura uma praça longilínea onde se concentram as várias atividades de comércio e de desfrute do espaço exterior.

A opção de implantação permite estabelecer uma relação muito interessante com a Avenida Torrado da Silva, mas revela uma presença quase monolítica, criando uma “muralha” entre aquela avenida e o Bairro do Matadouro.

A proposta desenvolvida dá resposta aos objetivos do programa, apresentando uma boa organização do interior das habitações e assegurando a ventilação transversal dos espaços interiores.

O Júri destaca a qualidade da organização dos espaços, em particular as circulações verticais e sua articulação com o piso do estacionamento, o qual beneficia de vários pontos de iluminação natural.

2º CLASS.: O projeto assenta numa solução reveladora de um especial cuidado ao nível do desenho urbano: a proposta é constituída por três edifícios muito semelhantes, dispostos na zona de intervenção, adotando conceitos que nos remetem à cidade/jardim, criando um espaço público central qualificado e, simultaneamente, estabelecendo uma articulação com edificado do Bairro do Matadouro, assegurando a preservação das vistas ao nível das ruas existentes.

A organização espacial e as opções construtivas, nomeadamente a modularidade das fachadas e a repetição de elementos construtivos, são reveladoras de uma reflexão sobre as questões de economia e da facilidade de construção.

Do ponto de vista do interior dos fogos, o Júri destaca a qualidade da organização interna, que se revela muito compacta, quase sem desperdício de espaços de circulação. Cumpre, no entanto, assinalar alguns dos aspetos menos conseguidos, nomeadamente a qualidade espacial das circulações horizontais comuns, bem como o facto de existirem

Não obstante a qualidade da proposta, importa referir que o Júri identificou algumas situações passíveis de ser melhoradas, nomeadamente a falta de privacidade dos fogos junto ao diedro côncavo, bem como o problema da exposição solar reduzida que se verifica no pátio norte e nas respetivas fachadas adjacentes.

RESULTADO FINAL

1º CLASSIFICADO: (concorrente) Pedro Domingos - Arquitectos, Unipessoal, Lda.; (coordenação) Pedro Miguel Estaca da Cruz Domingos. / 2º CLASS.: (conc.) Arquitectos Aliados Consulting, Lda.; (coord.)

José Luís Barbosa e Silva Soares. / 3º CLASS.: (conc.) Paula Santos | Arquitectura, Lda.; (coord.) Ana Paula

9
Digitalize o QrCode para ver os painéis em alta definição.
Digitalize o QrCode para ver os painéis em alta definição.

Lopes dos Santos. / 4º CLASS.: (conc.) Machado

Costa, Arquitectos Associados, Lda.; (coord.) Pedro

Machado Costa. / 5º CLASS.: (conc.) CNLL, Lda.;

(coord.) Carlos Nuno Lacerda Lopes. / 6º CLASS.: (conc.) Miguel Marcelino, Arquitectura, Lda.; (coord.)

Miguel Enes Marcelino. / 7º CLASS.: (conc.) Miguel

Saraiva & Associados - Arquitectura e Urbanismo, S.A.; (coord.) Miguel Alexandre Pereira Alves Saraiva. / 8º CLASS.: (conc.) Cónica Arquitectura, Lda.; (coord.) Paulo Miguel de Andrade Fernandes. / 9º

CLASS.: (conc.) NERALP - Arquitectura, Engenharia e Construções, Lda.; (coord.) Vítor Manuel Gonçalves

Teixeira de Sousa. / 10º CLASS.: (conc.) Peixoto & Monteiro - Arquitectos, Lda.; (coord.) Luís Miguel

Lopes Silva Peixoto. / 11º CLASS.: (conc.) Fala Atelier, Lda.; (coord.) Ana Luísa Afonso Ferreira Soares. / 12º CLASS.: (conc.) Oitoo, Lda.; (coord.) Nuno

Miguel Baptista Rodrigues. / 13º CLASS.: (conc.)

António Paulo Marques, Arquiteto e Associados, Lda.; (coord.) António Paulo Marques. / 14º CLASS.: (conc.) ReviewREM, Lda.; (coord.) António Maria

Vasconcelos Cruz de Almeida Mota. / 15º CLASS.: (conc.) Rosmaninho & Azevedo, Lda.; (coord.)

Pedro Filipe Santos Azevedo. / 16º CLASS.: (conc.)

Diretrizessencial - Projetos e Consultoria, Lda.; (coord.)

Luís Miguel Rodrigues Branquinho. / 17º CLASS.: (conc.) QLJ - Arquitectos, Lda + CASCA®; (coord.) João

Rezende de Queiroz e Lima. / 18º CLASS.: (conc.)

Atelier do Chiado, Arquitectos, Lda.; (coord.) Fernando

Alberto Nunes da Silva Bagulho. / 19º CLASS.: (conc.)

Plano Oblíquo - Consultores Técnicos, Lda.; (coord.)

Inês Veloso Guerra Rodrigues.

10

1º CLASSIFICADO

CONCORRENTE > PEDRO DOMINGOS -ARQUITECTOS, UNIPESSOAL, LDA

COORDENAÇÃO > PEDRO MIGUEL ESTACA DA CRUZ DOMINGOS

11
CONJUNTO HABITACIONAL CASQUILHO NASCENTE
12 1º CLASS. (P. 1/4)
13 1º CLASS. (P. 2/4)
14 1º CLASS. (P. 3/4)
15 1º CLASS. (P. 4/4)

CONCORRENTE > ARQUITECTOS ALIADOS CONSULTING, LDA

COORDENAÇÃO > JOSÉ LUÍS BARBOSA E SILVA SOARES

2º CLASSIFICADO
CONJUNTO HABITACIONAL CASQUILHO NASCENTE
17 2º CLASS. (P. 1/4)
18 2º CLASS. (P. 2/4)
19 2º CLASS. (P. 3/4)
20 2º CLASS. (P. 4/4)

3º CLASSIFICADO

CONCORRENTE

> PAULA SANTOS | ARQUITECTURA, LDA

COORDENAÇÃO

> ANA PAULA LOPES DOS SANTOS

21
CONJUNTO
CASQUILHO NASCENTE
HABITACIONAL
22 3º CLASS. (P. 1/4)
23 3º CLASS. (P. 2/4)
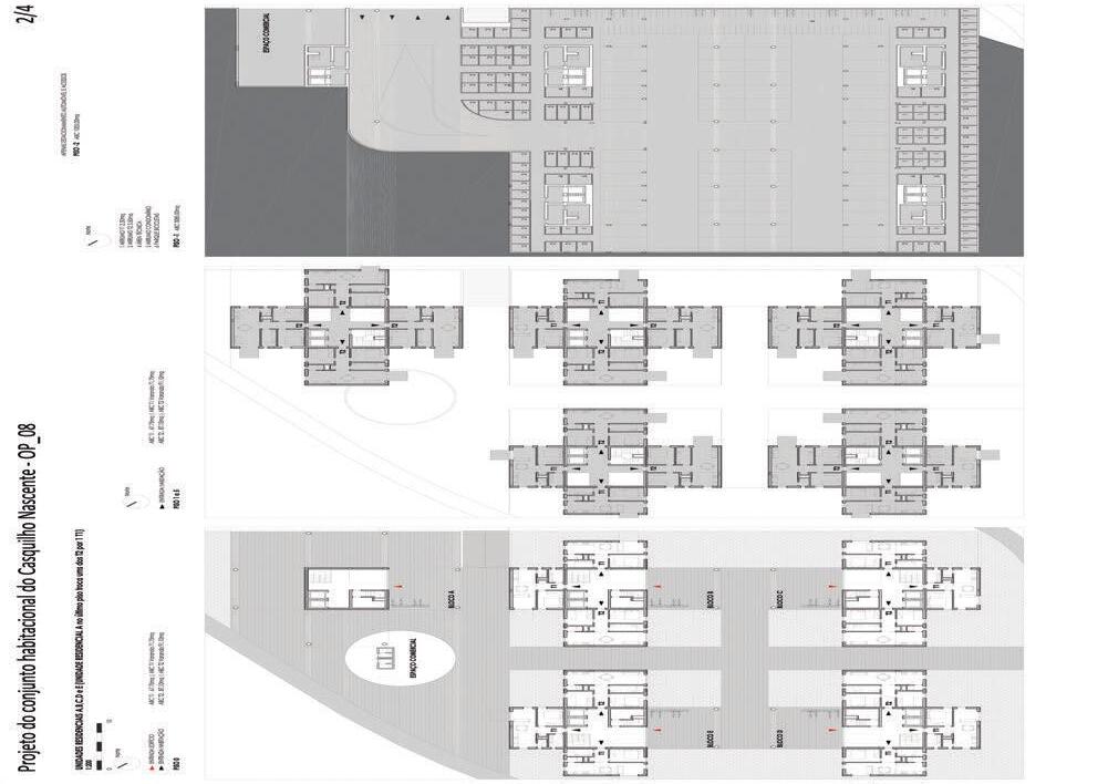
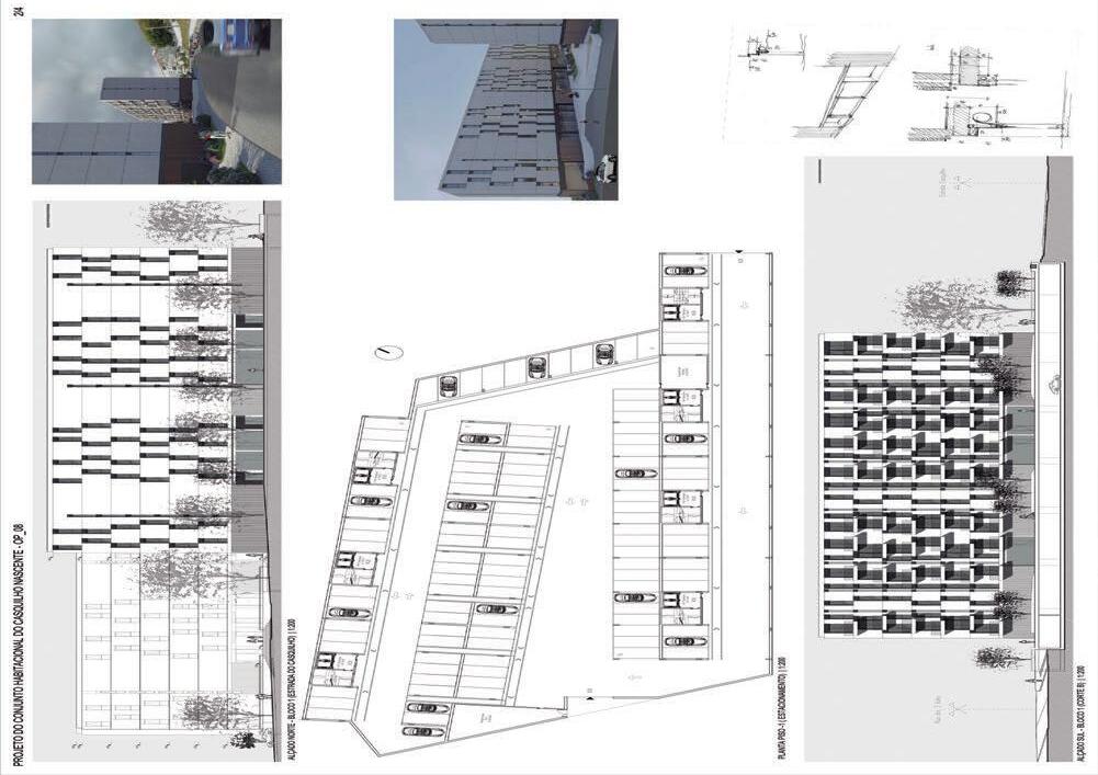
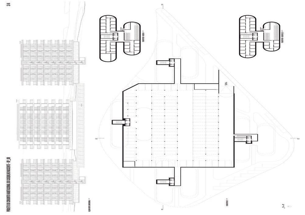
24 3º CLASS. (P. 3/4)
25 3º CLASS. (P. 4/4)

4º CLASSIFICADO

CONCORRENTE > MACHADO COSTA, ARQUITECTOS ASSOCIADOS, LDA

COORDENAÇÃO > PEDRO MACHADO COSTA

CONJUNTO HABITACIONAL CASQUILHO NASCENTE
27 4º CLASS. (P. 1/4)
28 4º CLASS. (P. 2/4)
29 4º CLASS. (P. 3/4)
30 4º CLASS. (P. 4/4)

COORDENAÇÃO > CARLOS NUNO LACERDA LOPES

5º CLASSIFICADO CONCORRENTE > CN LL, LDA
CONJUNTO
CASQUILHO NASCENTE
HABITACIONAL
33 5º CLASS. (P. 1/4)
34 5º CLASS. (P. 2/4)
35 5º CLASS. (P. 3/4)
36 5º CLASS. (P. 4/4)

CONCORRENTE

> M IGUEL SARAIVA & ASSOCIADOS - ARQUITECTURA E URBANISMO, S.A.

COORDENAÇÃO

> M IGUEL ALEXANDRE PEREIRA ALVES SARAIVA

CLASSIFICADO
CONJUNTO HABITACIONAL CASQUILHO NASCENTE
39 7º CLASS. (P. 1/4)
40 7º CLASS. (P. 2/4)
41 7º CLASS. (P. 3/4)
42 7º CLASS. (P. 4/4)

CÓNICA ARQUITECTURA, LDA

COORDENAÇÃO > PAULO MIGUEL DE ANDRADE FERNANDES

CLASSIFICADO CONCORRENTE >
CONJUNTO HABITACIONAL CASQUILHO NASCENTE
45 8º CLASS. (P. 1/4)
46 8º CLASS. (P. 2/4)
47 8º CLASS. (P. 3/4)
48 8º CLASS. (P. 4/4)

CONCORRENTE > N ERALP - ARQUITECTURA, ENGENHARIA E CONSTRUÇÕES, LDA

COORDENAÇÃO > VÍTOR MANUEL GONÇALVES TEIXEIRA DE SOUSA

CLASSIFICADO
CONJUNTO HABITACIONAL CASQUILHO NASCENTE
51 9º CLASS. (P. 1/4)
52 9º CLASS. (P. 2/4)
53 9º CLASS. (P. 3/4)
54 9º CLASS. (P. 4/4)
55

CONCORRENTE > FALA ATELIER, LDA

COORDENAÇÃO > ANA LUÍSA AFONSO FERREIRA SOARES

11º
CLASSIFICADO
CONJUNTO HABITACIONAL CASQUILHO NASCENTE
57 11º CLASS. (P. 1/4)
58 11º CLASS. (P. 2/4)
59
60 11º CLASS. (P. 3/4)
12º
CLASSIFICADO CONCORRENTE > OITOO, LDA
CONJUNTO HABITACIONAL CASQUILHO NASCENTE
COORDENAÇÃO > NUNO MIGUEL BAPTISTA RODRIGUES
63 12º CLASS. (P. 1/4)
64 12º CLASS. (P. 2/4)
65 12º CLASS. (P. 3/4)
66 12º CLASS. (P. 4/4)

CLASSIFICADO CONCORRENTE

ANTÓNIO PAULO MARQUES, ARQUITETO E ASSOCIADOS, LDA

COORDENAÇÃO

ANTÓNIO PAULO MARQUES

67
13º
>
CONJUNTO HABITACIONAL CASQUILHO NASCENTE
>
68 13º CLASS. (P. 1/4)
69 13º CLASS. (P. 2/4)
70 13º CLASS. (P. 3/4)
71 13º CLASS. (P. 4/4)

ANTÓNIO PAULO MARQUES

COORDENAÇÃO

ANTÓNIO MARIA VASCONCELOS CRUZ DE ALMEIDA MOTA

14º
>
CLASSIFICADO CONCORRENTE
>
CONJUNTO HABITACIONAL CASQUILHO NASCENTE
73 14º CLASS. (P. 1/4)
74 14º CLASS. (P. 2/4)
75 14º CLASS. (P. 3/4)
76 14º CLASS. (P. 4/4)

15º CLASSIFICADO CONCORRENTE > ROSMANINHO & AZEVEDO, LDA

COORDENAÇÃO > PEDRO FILIPE SANTOS AZEVEDO

77
CONJUNTO HABITACIONAL CASQUILHO NASCENTE
78 15º CLASS. (P. 1/4)
79 15º CLASS. (P. 2/4)
80 15º CLASS. (P. 3/4)
81 15º CLASS. (P. 4/4)

CONCORRENTE

DIRETRIZESSENCIAL - PROJETOS E CONSULTORIA, LDA

COORDENAÇÃO

LUÍS MIGUEL RODRIGUES BRANQUINHO

16º
CLASSIFICADO
>
>
CONJUNTO HABITACIONAL CASQUILHO NASCENTE
83 16º CLASS. (P. 1/4)
84 16º CLASS. (P. 2/4)
85 16º CLASS. (P. 3/4)
86 16º CLASS. (P. 4/4)

17º CLASSIFICADO

CONCORRENTE

> QLJ - ARQUITECTOS, LDA

> CASCA®

COORDENAÇÃO

> JOÃO REZENDE DE QUEIROZ E LIMA

87
CONJUNTO HABITACIONAL CASQUILHO NASCENTE
88 17º CLASS. (P. 1/4)
89 17º CLASS. (P. 2/4)
90 17º CLASS. (P. 3/4)
91 17º CLASS. (P. 4/4)

CONCORRENTE

> ATELIER DO CHIADO, ARQUITECTOS, LDA

COORDENAÇÃO

> FERNAN DO ALBERTO NUNES DA SILVA BAGULHO

18º
CLASSIFICADO
CONJUNTO HABITACIONAL CASQUILHO NASCENTE
93 18º CLASS. (P. 1/4)
94 18º CLASS. (P. 2/4)
95 18º CLASS. (P. 3/4)
96 18º CLASS. (P. 4/4)

CONCORRENTE > PLANO OBLÍQUO - CONSULTORES TÉCNICOS, LDA

COORDENAÇÃO > INÊS VELOSO GUERRA RODRIGUES

97
19º CLASSIFICADO
CONJUNTO HABITACIONAL CASQUILHO NASCENTE
98 19º CLASS. (P. 1/4)
99 19º CLASS. (P. 2/4)
100 19º CLASS. (P. 3/4)
101 19º CLASS. (P. 4/4)

EDIÇÃO: Ordem dos Arquitectos – Secção Regional de Lisboa e Vale do Tejo. / CONSELHO DIRETIVO REGIONAL LISBOA E VALE DO TEJO: (presidente) Helena Botelho; (vice-presidente) Sérgio Antunes; (vogais) Ana Miguéns Gomes, Carolina Matos Rocha, João Caria Lopes, Sebastião de Botton, Vanda Alves. / COORDENAÇÃO GERAL: João Caria Lopes, Pelouro Comunicação e Cultura. / SERVIÇO DE ENCOMENDA: Célia Faria, Débora Félix. / APOIO JURÍDICO: Helena Rocha. / DESIGN GRÁFICO: Paulo Condez www.designbynada.com / IMPRESSÃO E PUBLICIDADE: Editorial MIC www.editorialmic.com

DEZEMBRO 2021

(assessoria técnica) (promotor)

Turn static files into dynamic content formats.

Create a flipbook
Issuu converts static files into: digital portfolios, online yearbooks, online catalogs, digital photo albums and more. Sign up and create your flipbook.
Lisboa Arquitectos Nascente nº2 by editorialmic - Issuu