Arquitectos Lisboa Antonio Couto nº4

Page 1

EDIFÍCIO HABITAÇÃO &PÚBLICOESPAÇO R. ANTÓNIO DO COUTO, LISBOA

OA > SRLVT CONCURSO

Oserviço de encomenda é um dos principais veículos da OA para promover a arquitetura de qualidade, bem como a justa seleção, contratualização e remuneração dos serviços prestados pelos arquitetos. Em conjunto com os promotores, tem levado a cabo um trabalho de aperfeiçoamento dos programas e contribuído para a transparência dos processos, através da nomeação de um jurado com experiência no programa a concurso e com um percurso profissional exemplar.

Os concursos de conceção em particular, ao colocar a concurso apenas os projetos e estabelecendo à partida as futuras condições a que o vencedor estará sujeito, é também uma forma de democratizar o acesso à profissão e permitir uma evolução dos projetistas na escala e nos programas a que se dedicam.

Os concursos são também uma oportunidade única de ter uma grande quantidade de profissionais debruçados sobre um determinado problema. Dos concursos resulta um vencedor, que desejavelmente se materializará num edifício, mas também um conjunto de projetos, de produção intelectual, que importa não perder.

Estas publicações são, portanto, um documento para o futuro. Um património coletivo, que poderá ser utilizado como fonte de conhecimento para participantes em concursos similares e também como registo histórico da arquitetura feita no nosso tempo. SÉRGIO

ANTUNES VICE-PRESIDENTE E RESPONSÁVEL PELO PELOURO DA ENCOMENDA

Este concurso faz parte da série Lisboa Imagina a Nova Bauhaus Europeia, onde se convidam todos os projetistas a participar na construção de uma cidade que inscreve no seu território soluções sustentáveis, inclusivas e belas – em linha com o desafio lançado a todos os países por Ursula von der Leyen a partir da residência da Comissão Europeia.

O direito à livre constituição de cooperativas encontra-se consagrado no artigo 61.º da Constituição da República Portuguesa1. A Lei de Bases da Habitação habilita os municípios a apoiar as cooperativas de habitação e prevê nos instrumentos de promoção de habitação, a cedência de terrenos ou imóveis para habitação cooperativa.

O presente projeto é assim o primeiro de uma série projetos municipais vocacionados para relançar o movimento cooperativo em Lisboa. O princípio-base é a mobilização do património municipal disperso e de escala comunitária, a recuperar para uso habitacional através de obras de edificação ou reabilitação, pela via do movimento cooperativo: construção privada sob propriedade pública, cedida em direito de superfície.

O projeto será integralmente desenvolvido em colaboração direta com o Município, via Lisboa Ocidental, SRU, com o horizonte de na fase de construção o dono de obra vir a ser, legitimamente, a cooperativa entretanto selecionada em concurso para concretizar a obra.

O concurso recebeu 28 propostas bastante diversas e com elevada qualidade arquitetónica que vieram enriquecer a reflexão sobre a intervenção na cidade e o habitar contemporâneo.

CONCURSO
> LISBOA OCIDENTAL, SRU - SOCIEDADE DE REABILITAÇÃO URBANA E. M., S. A. ASSESSORIA TÉCNICA > OA - SECÇÃO REGIONAL LISBOA E VALE DO TEJO
PROMOTOR
EDF. HABITAÇÃO & ESPAÇO PÚBLICO
R. ANTÓNIO
DO COUTO, LISBOA

Lisboa é uma cidade com séculos de história e séculos de futuro. Construída através da cultura do encontro e da diversidade, os seus habitantes são e serão o seu património mais precioso. No momento presente a cidade enfrenta a complexa contradição entre a dinâmica em alta do mercado imobiliário globalizado, desacompanhada do nível dos rendimentos das famílias portuguesas, e a herança de um património edificado frequentemente envelhecido e desqualificado.

Entre a insuficiência de condições económicas e habitacionais, o acesso à habitação em Lisboa tem-se provado um grave desafio para muitas famílias e cidadãos que aqui residem ou pretendem residir. A constituição portuguesa estabelece com muita clareza o direito universal à habitação e a função determinante das políticas públicas nesta concretização.

Atento à desarmonia entre oferta e procura de habitação na cidade, o Município de Lisboa pretende, entre várias estratégias a co-criar com o Conselho Municipal de Habitação, investir na utilização eficaz do património municipal ao serviço da função social da habitação. Assim, a necessidade de aumentar a oferta de habitação é o motor para a reabilitação criativa dos espaços vazios da cidade: este é um novo fôlego no desenho da política de habitação, e de cidade, que a Câmara Municipal de Lisboa pretende implementar.

À luz dos valores da Nova Bauhaus Europeia – uma iniciativa da Comissão Europeia que pretende posicionar a cultura e a criatividade no centro do Pacto Ecoló-

8 EDF. HABIT. & ESP. PÚBLICO R. ANTÓNIO COUTO

gico Europeu – assente nos valores da sustentabilidade ambiental, estética e inclusão, serão lançados concursos públicos para desafiar os projetistas a imaginar como poderá e deverá Lisboa protagonizar esta transição para novos tempos.

O presente projeto é, ainda, o primeiro de uma série projetos municipais vocacionados para relançar o movimento cooperativo em Lisboa. O princípio-base é a mobilização do património municipal disperso e de escala comunitária, a recuperar para uso habitacional através de obras de edificação ou reabilitação, pela via do movimento cooperativo: construção privada sob propriedade pública, cedida em direito de superfície.

O projeto será integralmente desenvolvido em colaboração direta com o Município, via Lisboa Ocidental, SRU, com o horizonte de na fase de construção o dono de obra vir a ser, legitimamente, a cooperativa entretanto selecionada em concurso para concretizar a obra. A possibilidade alternativa de construção por parte do município fica salvaguardada como último recurso caso algum terreno não venha a ter procura por parte de cooperativas.

OBJETO DO CONCURSO

O concurso público de conceção foi promovido pela Lisboa Ocidental, SRU, com a assessoria técnica da Secção Regional de Lisboa e Vale do Tejo da Ordem dos Arquitectos (OASRLVT) e tem como objeto a seleção de 1 (um) trabalho de conceção para elaboração do projeto de um edifício de habitação e requalificação do espaço público na Rua António do Couto, no Lumiar, para cuja concretização e desenvolvimento a Lisboa Ocidental, SRU se obriga a celebrar um contrato de prestação de serviços na sequência de um procedimento de ajuste direto realizado ao abrigo da alínea g) do n. o 1 do artigo 27.o do Código dos Contratos Públicos (CCP).

JÚRI DO CONCURSO

• PRESIDENTE Margarida Oliveira Bernardo (arquiteta).

• MEMBRO EFETIVO INDICADO PELA CÂMARA MUNICIPAL DE LISBOA

Paulo Diogo (arquiteto);

• MEMBRO EFETIVO INDICADO PELA SECÇÃO REGIONAL DE LISBOA E VALE DO TEJO DA ORDEM DOS ARQUITECTOS

António Pedro Sousa Louro (arquiteto)

PUBLICAÇÃO

Novembro 2022

9
EDF. HABIT. & ESP. PÚBLICO R. ANTÓNIO COUTO

PRÉMIOS

1° € 7 000,00

2° € 5 000,00

3° € 3 000,00

VALOR BASE

€ 221 542,98 + IVA

ESTIMATIVA DE CUSTO DE OBRA

€ 3 692 383,05 + IVA

CRITÉRIOS DE SELEÇÃO

Conforme estabelecido no artigo 18.o dos Termos de Referência, os critérios de seleção dos trabalhos e a respetiva ponderação foram os seguintes:

A. Qualidade e coerência da solução conceptual (30%)

B. Racionalidade construtiva e exequibilidade financeira (25%)

C. Adequação aos objetivos do Programa

Preliminar (15%).

D. Articulação com o território e sistemas envolventes (15%).

E. Sustentabilidade e aspetos de manutenção futura (15%).

ORDENAÇÃO DOS TRABALHOS

Terminada a análise dos trabalhos de conceção, o Júri atribuiu por unanimidade a classificação a cada um dos trabalhos, aplicando-se os valores de ponderação estabelecidos no n o 1 do artigo 16.o dos Termos de Referência para determinação da pontuação de cada um dos cinco subcritérios, procedendo assim à ordenação dos trabalhos de conceção.

Nos casos em que se verificou o empate entre trabalhos de conceção foi utilizado como critério de desempate, a classificação no fator “Qualidade e coerência da solução conceptual”, de acordo com o n. o 2 do artigo 15.o dos Termos de Referência.

Nas situações em que o empate se manteve foi aplicado o mesmo processo, fazendo uso das classificações atribuídas nos fatores “Racionalidade construtiva e exequibilidade financeira” e “Adequação aos objetivos do Programa Preliminar”, conforme previsto no n. o 3 do artigo 15.o dos referidos Termos de Referência.

Tendo em consideração o acima referido, o Júri procedeu à ordenação dos trabalhos de conceção, conforme se reflete no quadro seguinte:

10
1.° 9 9 9 10 9 9,15 12.° 6 6 6 6 6 6,00 Ordenação Final A (30%) B (25%) C (15%) D (15%) E (15%) Pontuação Final 4.° 8 7 7 8 7 7,45 15.° 6 5 6 6 7 5,90 7.° 7 7 8 7 7 7,15 18.° 6 5 5 5 5 5,30 24.° 4 5 4 6 5 4,70 10.° 7 6 7 7 7 6,75 21.° 5 5 5 5 5 5,00 27.° 4 4 4 3 3 3,70 2.° 8 7 9 8 7 7,75 13.° 6 7 6 5 5 5,95 11.° 6 7 6 7 6 6,40 22.° 5 5 4 5 5 4,85 28.° 4 3 3 3 4 3,45 5.° 8 7 6 8 7 7,30 16.° 5 6 6 5 6 5,55 8.° 7 7 7 6 7 6,85 19.° 6 4 4 5 7 5,20 25.° 5 4 5 4 5 4,60 3.° 8 8 7 8 7 7,70 14.° 6 7 5 5 6 5,95 6.° 9 7 4 7 7 7,15 17.° 6 5 5 6 5 5,45 23.° 5 4 5 5 5 4,75 9.° 6 8 7 6 7 6,80 20.° 5 5 6 5 5 5,15 26.° 4 4 5 5 6 4,60

RELATÓRIO FINAL

1º CLASSIFICADO: A proposta destaca-se pelo foco colocado no habitar coletivo e na requalificação do espaço público como contributo fundamental para a dinamização do Bairro. A solução estabelece uma forte relação com a envolvente e contribui para a imagem positiva do lugar, respeitando, ainda, os critérios fundamentais do programa preliminar.

O posicionamento dos lugares de estacionamento público ao longo da frente edificada, garante a continuidade do passeio e aumenta a segurança do peão. A escolha de um pavimento com alta rugosidade para o arruamento, contribui para a diminuição da velocidade de circulação dos veículos e para uma maior permeabilidade do espaço público.

O edifício apresenta coerência formal e uma correta articulação com a envolvente, quer em termos de volumetria, quer em termos de profundidade da empena.

A solução apresenta áreas generosas dedicadas às zonas comunitárias e aos serviços partilhados, incentivando a convivência social. As áreas comunitárias distribuem-se no edifício de forma correta e ajustada, de acordo com a sua vocação funcional.

O Júri considerou igualmente interessante o sistema de distribuição funcional com uma ampla galeria, garantindo a ventilação cruzada de todas as unidades habitacionais, multiplicando a possibilidade de encontro e convivência entre vizinhos.

A orientação dos quartos a nascente e das salas a poente aproveita de forma adequada a exposição solar e a organização dos fogos é bastante eficaz. Destaca-se o desenho da cozinha com iluminação e ventilação naturais, a relação visual com a galeria exterior e a possibilidade de individualização deste compartimento.

O Júri salienta, ainda, a qualidade estética dos materiais selecionados e o desenho do acesso vertical que funciona, no piso térreo, como elemento escultórico.

Como aspeto menos conseguido refere-se a organização do estacionamento privativo em cave que carece de reformulação funcional.

O edifício apresenta uma linguagem contemporânea, na qual se salienta a simplicidade, modularidade e repetição das soluções e dos materiais propostos. Destaca-se a qualidade estética das fachadas, a estrutura modelar que se reflete nos alçados, particularmente na frente voltada para a Rua António do Couto e o desenvolvimento de uma cobertura inclinada, em continuidade com o edificado adjacente.

O Júri valorizou o fato do piso térreo se encontrar dedicado aos espaços comunitários e utilitários de uso comum, estimulando a criação de laços de vizinhança e hábitos de convivência social que o programa do concurso pretende incentivar. Considera-se igualmente positivo o desenho do átrio de uso polivalente e a permeabilidade visual e física estabelecida entre o logradouro e a Rua António do Couto.

No modelo de distribuição das habitações salienta-se a organização em esquerdo/direito garantindo a ventilação transversal dos fogos. Na organização funcional dos fogos destaca-se a previsão de duas varandas: uma associada à sala e outra ligada à cozinha, permitindo uma utilização independente de cada compartimento (nomeadamente a utilização da varanda para estendal).

Nas habitações ‘em duplex’ salienta-se a previsão de um terraço na continuidade do quarto, tornando esta tipologia mais atrativa. O Júri valorizou ainda a previsão de um espaço de lavandaria/despensa, em todas as unidades habitacionais.

Como aspetos menos positivos considera-se que a solução apresentada para o estacionamento, ocupando a totalidade do logradouro, impermeabiliza de forma excessiva esta área e não garante o cumprimento da superfície vegetal ponderada. Acresce referir que os envidraçados a poente, tendo em consideração a sua dimensão, carecem de mecanismos de proteção solar.

2º CLASS.: O trabalho apresenta uma proposta qualificada para o espaço público e uma relação equilibrada entre as zonas de circulação automóvel e as zonas de estadia e lazer.

3º CLASS.: A proposta apresenta uma volumetria bem integrada na frente urbana. A fachada tardoz com um sistema de distribuição em galeria e a escada helicoidal de acesso às habitações, propõe um desenho leve e elegante, bem articulado com o logradouro.

A opção do sistema de distribuição através de uma galeria pública permite a ventilação transversal das habitações e constitui um incentivo à interação comunitária. A solução apresentada prevê o alarga-

11
Digitalize o QrCode para ver os painéis em alta definição.
o QrCode para ver os painéis em alta definição. …
Digitalize

mento da galeria na zona de acesso às habitações, criando um átrio mais privado junto das mesmas.

O Júri valorizou ainda a solução ampla das habitações, a otimização das áreas interiores e a possibilidade de autonomização das cozinhas. Relativamente à racionalidade construtiva e exequibilidade financeira, o Júri destaca a capacidade de modularidade, permitindo uma maior rapidez de execução. A previsão de colocação dos azulejos da fachada, com suporte em painéis prefabricados, permitirá obter ganhos de produtividade em obra.

Como, aspetos menos conseguidos, menciona-se a colocação dos quartos a poente, sem proteção solar, com uma orientação solar menos favorável. Refere-se ainda que o acesso ao estacionamento privativo, através do espaço público, compromete a exequibilidade desta solução. A impermeabilização de todo o logradouro não verifica os parâmetros de superfície vegetal ponderada (SVP).

Digitalize o QrCode para ver os painéis em alta definição. …

5º CLASS. (MENÇÃO HONROSA): O trabalho apresenta uma relação franca entre o espaço público e privado e um grande equilíbrio entre áreas permeáveis e impermeáveis. Salienta-se, ainda, de forma positiva a zona de estadia prevista junto do edifício, o nivelamento da via automóvel com os passeios e o desenho da zona de manobras. O Júri valoriza ainda a grande permeabilidade do logradouro e a relação visual franca, no piso térreo, com o espaço público.

A proposta apresenta um desenho de fachada elegante e harmonioso, com grande equilíbrio entre planos opacos e áreas envidraçadas. As janelas de canto e as varandas generosas adjacentes constituem soluções elegantes e harmoniosas.

Digitalize o QrCode para ver os painéis em alta definição.

4º CLASS. (MENÇÃO HONROSA): A solução revela uma elevada preocupação na relação que estabelece com a envolvente construída. Destaca-se o modo como a nova construção se articula com a frente edificada através da repetição do volume do edifício a sul e o recuo do plano de fachada para integração das varandas, resultando numa relação harmoniosa com a envolvente.

Com a previsão de dois núcleos de acesso verticais a proposta garante a ventilação transversal das unidades habitacionais. Considera-se, igualmente, positivo o modo como se encontram distribuídas as áreas mais privadas e públicas dos fogos e a adequada orientação solar destes compartimentos. Os painéis deslizantes no limite das varandas configuram, igualmente, uma boa solução de controlo de eventuais ganhos solares excessivos do lado poente.

Destaca-se ainda de forma positiva, o fato do bloco habitacional se encontrar afastado do muro do Parque de Saúde Pulido Valente, garantido um bom remate para o edifício.

Contudo, o acesso ao estacionamento em cave através do espaço público e a ocupação total do lote, com a implantação do mesmo, comprometem a exequibilidade desta solução.

Em termos de organização funcional, a utilização de painéis deslizantes na relação das áreas sociais com as áreas mais privativas mostra-se versátil e confere flexibilidade às tipologias.

A solução estrutural composta por uma malha regular de pilares e paredes resistentes é bastante simples e eficaz em termos construtivos.

Como aspetos menos conseguidos refere-se o não cumprimento da dupla exposição solar para os dois quadrantes em 4 apartamentos de tipologia T2 e o fato das varandas sobre o Parque de Saúde Pulido Valente não cumprirem os necessários afastamentos.

12
Digitalize o QrCode para ver os painéis em alta definição.

RESULTADO FINAL

1º CLASSIFICADO: (concorrente) Patrícia Rocha Leite, Unipessoal, Lda. + Jorge Miguel de Almeida Castro Trigo + A400 - Projetistas e Consultores de Engenharia, Lda; (coordenação) Patrícia Rocha Leite. / 2º CLASS.: (conc.+ coord.) Alda Sofia Fernandes de Jesus. 3º CLASS.: (conc.) Miguel Judas - Arquiteto, LDA; (coord.) Miguel Nuno Pessoa Marques Judas. / 4º CLASS. (MENÇÃO HONROSA): (conc.) BMC – Barros Martins Camelo, Arquitetos, Lda; (coord.) Hugo Luís da Rocha Nunes Barros Martins Camelo. / 5º CLASS. (MENÇÃO HONROSA): (conc.) CDA – Consultório de Arquitetura Lda; (coord.) Madalena Malta Duarte Silva. / 6º CLASS.: (conc.) Francisco Afonso de Pina Cabral / Sofia Margarida Passos dos Santos; (coord.) Sofia Margarida Passos dos Santos. / 7º CLASS.: (conc.) Sepioz, Lda. / Pro.Experimental, Unipessoal, Lda; (coord.) Fábio Edgar Rodrigues Peixoto. / 8º CLASS.: (conc.) Branco del Rio, Arquitetos; (coord.) João Manuel Sarmento Duarte Branco. / 9º CLASS.: (conc.) BUREAU / Black Bureau, Lda; (coord.) Carine Fernandes Pimenta. / 10º CLASS.: (conc.) Reis Pereira Arquitetos, Lda; (coord.) João Paulo Mendes da Seiça da Providência Santarém. / 11º CLASS.: (conc.+ coord.) Pedro José Carvalho Filipe. / 12º CLASS.:

(conc.) Certigy – Arquitetura e Engenharia, Lda; (coord.) João Pedro Santo Ferreira Coutinho / Cláudia Sofia dos Santos Tomaz Lobato. / 13º CLASS.: (conc.+ coord.) Francisco Tavares Ascensão. / 14º CLASS.: (conc.) CAL30, Arquitectos, Lda; (coord.) Gilberto

Azinheirinha Gomes Veiga de Oliveira. / 15º CLASS.: (conc.) Gil Menezes Cardoso Unipessoal, Lda; (coord.) Francisco Vieira de Araújo Gutierres Caseiro. / 16º CLASS.: (conc.) ESTÚDIO PERIFÉRICO, LDA; (coord.) Ricardo Antunes Rodrigues Martins Carneiro. / 17º CLASS.: (conc.) ARX Portugal Arquitectos; (coord.) Nuno Miguel Feio Ribeiro Mateus. / 18º CLASS.: (conc.) Atelier 17, Lda; (coord.) Sebastião Daun e Lorena de Mattos Taquenho. / 19º CLASS.: (conc.) Arcos

Combinados - Arquitectura e Engenharia, S.A.; (coord.) Ana Rita Rodrigues de Matos e Falcão de Carvalho Tomás. / 20º CLASS.: (conc.+ coord.) Rui Filipe Pinto. / 21º CLASS.: (conc.) Orgânica Arquitectura, Lda; (coord.) Paulo Jorge Serôdio Lopes. / 22º CLASS.: (conc.+ coord.) Bernardo Martins Barbosa França do Amaral. / 23º CLASS.: (conc.) Miguel Nuno Pereira Vinagre; (coord.) Paulo Teixeira de Nápoles Guerra. / 24º CLASS.: (conc.+ coord.) Alessandro Pepe.

13

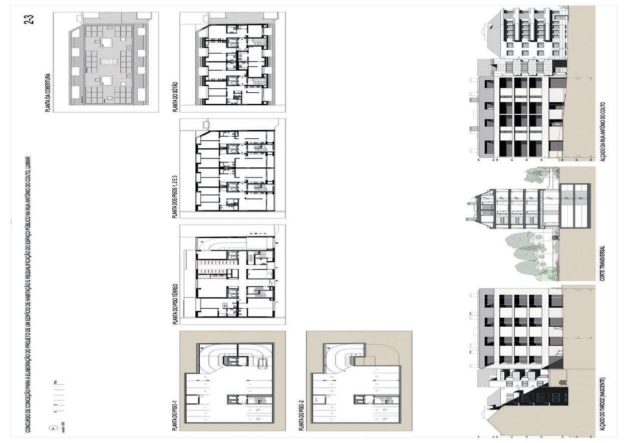
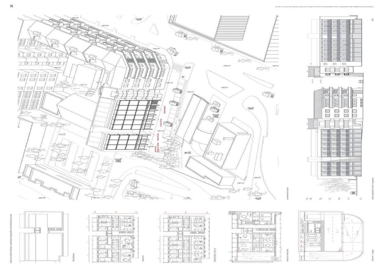
1º CLASSIFICADO

CONCORRENTE

> PATRÍCIA ROCHA LEITE, UNIPESSOAL, LDA

> JORGE MIGUEL DE ALMEIDA CASTRO TRIGO

> A400 - PROJETISTAS E CONSULTORES DE ENGENHARIA, LDA

COORDENAÇÃO

> PATRÍCIA ROCHA LEITE

15
EDF. HABIT. & ESP. PÚBLICO R. ANTÓNIO COUTO
16 1° CLASS.: 1/3
17 1° CLASS.: 2/3
18 1° CLASS.: 3/3

2º CLASSIFICADO

CONCORRENTE + COORDENAÇÃO

> ALDA SOFIA FERNANDES DE JESUS

19
EDF. HABIT. & ESP. PÚBLICO R. ANTÓNIO COUTO
20 2° CLASS.: 1/3
21 2° CLASS.: 2/3
22 2° CLASS.: 3/3

3º CLASSIFICADO CONCORRENTE

> MIGUEL JUDAS - ARQUITETO, LDA

COORDENAÇÃO

>

MIGUEL NUNO PESSOA MARQUES JUDAS

23
EDF. HABIT. & ESP. PÚBLICO R. ANTÓNIO COUTO
24 3° CLASS.: 1/3
25 3° CLASS.: 2/3
26 3° CLASS.: 3/3

4º CLASSIFICADO (MENÇÃO HONROSA

)

CONCORRENTE

> BMC – BARROS MARTINS CAMELO, ARQUITETOS, LDA

COORDENAÇÃO

> HUGO LUÍS DA ROCHA NUNES BARROS

MARTINS CAMELO

27
EDF. HABIT. & ESP. PÚBLICO R. ANTÓNIO COUTO
28 4° CLASS.: 1/3
29 4° CLASS.: 2/3
30 4° CLASS.: 3/3

5º CLASSIFICADO (MENÇÃO HONROSA)

CONCORRENTE > CDA – CONSULTÓRIO DE ARQUITETURA LDA

COORDENAÇÃO

>

MADALENA MALTA DUARTE SILVA

31
EDF. HABIT. & ESP. PÚBLICO R. ANTÓNIO COUTO
32 5° CLASS.: 1/3
33 5° CLASS.: 2/3
34 5° CLASS.: 3/3

6º CLASSIFICADO

CONCORRENTE

> FRANCISCO AFONSO DE PINA CABRAL

> SOFIA MARGARIDA PASSOS DOS SANTOS

COORDENAÇÃO

> SOFIA MARGARIDA PASSOS DOS SANTOS

37
EDF. HABIT. & ESP. PÚBLICO R. ANTÓNIO COUTO
38 6° CLASS.: 1/3
39 6° CLASS.: 2/3
40 6° CLASS.: 3/3

7º CLASSIFICADO CONCORRENTE

> SEPIOZ, LDA

> PRO.EXPERIMENTAL, UNIPESSOAL, LDA

COORDENAÇÃO

>

FÁBIO EDGAR RODRIGUES PEIXOTO

41
EDF. HABIT. & ESP. PÚBLICO R. ANTÓNIO COUTO
42 7° CLASS.: 1/3
43 7° CLASS.: 2/3
44 7° CLASS.: 3/3

8º CLASSIFICADO CONCORRENTE

> BRANCO DEL RIO, ARQUITETOS

COORDENAÇÃO

> JOÃO MANUEL SARMENTO DUARTE BRANCO

45
EDF. HABIT. & ESP. PÚBLICO R. ANTÓNIO COUTO
46 8° CLASS.: 1/3
47 8° CLASS.: 2/3
48 8° CLASS.: 3/3

9º CLASSIFICADO CONCORRENTE

>

BUREAU / BLACK BUREAU, LDA

COORDENAÇÃO > CARINE FERNANDES PIMENTA

49
EDF. HABIT. & ESP. PÚBLICO R. ANTÓNIO COUTO
50 9° CLASS.: 1/3
51 9° CLASS.: 2/3
52 9° CLASS.: 3/3

10º CLASSIFICADO CONCORRENTE

> REIS PEREIRA ARQUITETOS, LDA

COORDENAÇÃO

> JOÃO PAULO MENDES DA SEIÇA DA PROVIDÊNCIA SANTARÉM

53
EDF. HABIT. & ESP. PÚBLICO R. ANTÓNIO COUTO
54 10° CLASS.: 1/3
55 10° CLASS.: 2/3
56 10° CLASS.: 3/3

CONCORRENTE + COORDENAÇÃO

> PEDRO JOSÉ CARVALHO FILIPE

57
11º CLASSIFICADO
EDF. HABIT. & ESP. PÚBLICO R. ANTÓNIO COUTO
58 11° CLASS.: 1/3
59 11° CLASS.: 2/3
60 11° CLASS.: 3/3

12º CLASSIFICADO CONCORRENTE

> CERTIGY – ARQUITETURA E ENGENHARIA, LDA

COORDENAÇÃO

> JOÃO PEDRO SANTO FERREIRA COUTINHO

> CLÁUDIA SOFIA DOS SANTOS TOMAZ

LOBATO

61
EDF. HABIT. & ESP. PÚBLICO R. ANTÓNIO COUTO
62 12° CLASS.: 1/3
63 12° CLASS.: 2/3
64 12° CLASS.: 3/3

CONCORRENTE + COORDENAÇÃO > FRANCISCO TAVARES ASCENSÃO

65 13º CLASSIFICADO
EDF. HABIT. & ESP. PÚBLICO R. ANTÓNIO COUTO
66 13° CLASS.: 1/3
67 13° CLASS.: 2/3
68 13° CLASS.: 3/3

14º CLASSIFICADO CONCORRENTE

> CAL30, ARQUITECTOS, LDA

COORDENAÇÃO

>

GILBERTO AZINHEIRINHA GOMES VEIGA DE OLIVEIRA

69
EDF. HABIT. & ESP. PÚBLICO R. ANTÓNIO COUTO
70 14° CLASS.: 1/3
71 14° CLASS.: 2/3
72 14° CLASS.: 3/3

15º CLASSIFICADO CONCORRENTE

> GIL MENEZES CARDOSO UNIPESSOAL, LDA

COORDENAÇÃO

>

FRANCISCO VIEIRA DE ARAÚJO GUTIERRES CASEIRO

73
EDF. HABIT. & ESP. PÚBLICO R. ANTÓNIO COUTO
74 15° CLASS.: 1/3
75 15° CLASS.: 2/3
76 15° CLASS.: 3/3

16º CLASSIFICADO CONCORRENTE

> ESTÚDIO PERIFÉRICO, LDA

COORDENAÇÃO

> RICARDO ANTUNES RODRIGUES MARTINS CARNEIRO

77
EDF. HABIT. & ESP. PÚBLICO R. ANTÓNIO COUTO
78 16° CLASS.: 1/3
79 16° CLASS.: 2/3
80 16° CLASS.: 3/3

17º CLASSIFICADO CONCORRENTE

> ARX PORTUGAL ARQUITECTOS

COORDENAÇÃO

> NUNO MIGUEL FEIO RIBEIRO MATEUS

81
EDF. HABIT. & ESP. PÚBLICO R. ANTÓNIO COUTO
82 17° CLASS.: 1/3
83 17° CLASS.: 2/3
84 17° CLASS.: 3/3

18º CLASSIFICADO CONCORRENTE

>

ATELIER 17, LDA

COORDENAÇÃO

>

>

SEBASTIÃO DAUN

LORENA DE MATTOS TAQUENHO

85
EDF. HABIT. & ESP. PÚBLICO R. ANTÓNIO COUTO
86 18° CLASS.: 1/3
87 18° CLASS.: 2/3
88 18° CLASS.: 3/3

19º CLASSIFICADO CONCORRENTE

> ARCOS COMBINADOS - ARQUITECTURA E ENGENHARIA, S.A.

COORDENAÇÃO

> ANA RITA RODRIGUES DE MATOS

> FALCÃO DE CARVALHO TOMÁS

89
EDF. HABIT. & ESP. PÚBLICO R. ANTÓNIO COUTO
90 19° CLASS.: 1/3
91 19° CLASS.: 2/3
92 19° CLASS.: 3/3
93
EDF. HABIT. & ESP. PÚBLICO R. ANTÓNIO COUTO
20º CLASSIFICADO CONCORRENTE + COORDENAÇÃO > RUI FILIPE PINTO
94 20° CLASS.: 1/3
95 20° CLASS.: 2/3
96 20° CLASS.: 3/3

21º CLASSIFICADO CONCORRENTE

> ORGÂNICA ARQUITECTURA, LDA

COORDENAÇÃO

> PAULO JORGE SERÔDIO LOPES

97
EDF. HABIT. & ESP. PÚBLICO R. ANTÓNIO COUTO
98 21° CLASS.: 1/3
99 21° CLASS.: 2/3
100 21° CLASS.: 3/3

22º CLASSIFICADO CONCORRENTE + COORDENAÇÃO

> BERNARDO MARTINS BARBOSA FRANÇA DO AMARAL

101
EDF. HABIT. & ESP. PÚBLICO R. ANTÓNIO COUTO
102 22° CLASS.: 1/3
103 22° CLASS.: 2/3
104 22° CLASS.: 3/3

23º CLASSIFICADO CONCORRENTE

>

MIGUEL NUNO PEREIRA VINAGRE

COORDENAÇÃO

>

PAULO TEIXEIRA DE NÁPOLES GUERRA

105
EDF. HABIT. & ESP. PÚBLICO R. ANTÓNIO COUTO
106 23° CLASS.: 1/3
107 23° CLASS.: 2/3
108 23° CLASS.: 3/3

PEPE

109 24º
EDF. HABIT. & ESP. PÚBLICO R. ANTÓNIO COUTO
CLASSIFICADO CONCORRENTE + COORDENAÇÃO > ALESSANDRO
110 24° CLASS.: 1/3
111 24° CLASS.: 2/3
112 24° CLASS.: 3/3

NOVEMBRO 2022

EDIÇÃO: Ordem dos Arquitectos – Secção Regional de Lisboa e Vale do Tejo. / CONSELHO DIRETIVO REGIONAL LISBOA E VALE DO TEJO: (presidente) Helena Botelho; (vice-presidente) Sérgio Antunes; (vogais) Ana Miguéns Gomes, Carolina Matos Rocha, João Caria Lopes, Sebastião de Botton, Vanda Alves. / COORDENAÇÃO GERAL: João Caria Lopes, Pelouro Comunicação e Cultura. / SERVIÇO DE ENCOMENDA: Célia Faria, Débora Félix. / APOIO JURÍDICO: Helena Rocha. / DESIGN GRÁFICO: Paulo Condez www.designbynada.com / IMPRESSÃO E PUBLICIDADE: Editorial MIC www.editorialmic.com

(assessoria técnica) (promotor)

Turn static files into dynamic content formats.

Create a flipbook
Issuu converts static files into: digital portfolios, online yearbooks, online catalogs, digital photo albums and more. Sign up and create your flipbook.