azero 41

Page 29

41 Trimestrale – anno 13 – n° 41 luglio 2023 Registrazione Trib. Gorizia n. 03/2011 del 29.7.2011 Poste italiane S.p.A. Spedizione in a.p. D.L. 353/2003 (conv. in L. 27/02/2004 n. 46) art. 1, comma 1 NE/UD Euro 15,00 ISSN 2239-9445 Costruire e ri-costruire nZEB Edifici residenziali mono e plurifamiliari

4 Demoricostruzione in classe Oro quattropiulab; evologica

12 Sostenibilmente verde Emanuele Garufi

20 La casa dei sogni Fabio Ferrario; Daniela Casagranda

28 Rigenerare con la natura PS_Architetture

38 Innovazione e tradizione PS_Architetture

50 Il rispetto è... d’Oro! Federico Lestini

azero

rivista trimestrale – anno XIII

n. 41, luglio 2023

Registrazione Tribunale Gorizia n. 03/2011 del 29.7.2011

Numero di iscrizione al ROC: 8147

ISSN 2239-9445

Direttore responsabile

Ferdinando Gottard

Redazione Lara Bassi, Gaia Bollini

Editore EdicomEdizioni – Monfalcone (GO)

indice
41
12 04

MARE Architetti; Menichetti+Caldarelli

Architetti; Abitare A+

72 Un nuovo allineamento

Studio GIOLA

Redazione e amministrazione via 1° Maggio 117 – 34074 Monfalcone (GO) tel. 0481.484488 – fax 0481.485721 redazione@edicomedizioni.com www.azeroweb.com

Stampa

Grafiche Manzanesi – Manzano (UD)

Stampato su carta con alto contenuto di fibre riciclate selezionate

Prezzo di copertina

15,00 euro

Abbonamento

Italia (4 numeri): 50,00 euro

Estero (4 numeri): 100,00 euro

Gli abbonamenti possono iniziare, salvo diversa indicazione, dal primo numero raggiungibile in qualsiasi periodo dell’anno

80 Sinergicamente attiva e passiva

Davide Tarca

90 Vivibilità, comfort ed energia

Aldo Zirio

È vietata la riproduzione, anche parziale, di articoli, disegni e foto se non espressamente autorizzata dall’editore

Copertina Rigenerare con la natura, foto: Sergio Camplone

62
Abitare contemporaneo
28 50
4 _41

Demoricostruzione in classe Oro

Jesolo (VE)

Seppur riqualificato energeticamente in tempi recenti, l’edificio è stato demolito e ricostruito in quanto non presentava condizioni statiche ottimali e non rispondeva alle esigenze dei committenti. Il risultato è un’abitazione contemporanea, confortevole ed estremamente performante certificata CasaClima Oro

Casa L è il risultato della demolizione e ricostruzione di un edificio che ospitava due unità residenziali e che, pur essendo stato riqualificato energeticamente in tempi recenti, con le sue caratteristiche costruttive tipiche degli anni 1960/70 in murature portanti in laterizio/pietrame e forometrie regolari, presentava scarso valore estetico-funzionale, condizioni statiche delle strutture portanti non regolari e non rispondeva alle esigenze dei nuovi proprietari. La volontà progettuale è stata quella di evidenziare la contemporaneità dell’intervento in modo da allinearsi alla spinta edificatoria della città di Jesolo, iniziata con l’ambizioso programma di rilancio urbanistico, comunemente noto come “Master Plan”, realizzato dall’architetto Kenzō Tange e continuata con la realizzazione di complessi edificatori e torri verticali progettate da architetti internazionali.

Il nuovo edificio, dalle forme moderne, è stato studiato sulla composizione architettonica di tre volumi ben distinti, che dialogano in maniera proporzionata tra loro, e mostra una copertura che nasconde tutti gli impianti tecnologici, riducendo l’impatto dell’inserimento nel contesto urbano limi-

quattropiulab; evologica 5 quattropiulab;
evologica

trofo, costituito da fabbricati edificati a partire dagli anni ‘80, di due a cinque livelli fuori terra, per la maggior parte a destinazione residenziale e turistico ricettiva. Il progetto ha previsto aperture regolari che giocano con gli allineamenti verticali e con i riquadri delle stesse forometrie allo scopo di muovere il prospetto e di creare finti disallineamenti. Tutti gli affacci sono stati studiati in egual modo nelle proporzioni e nelle forme, perché tutti hanno pari valore paesaggistico e pari importanza di confronto con il costruito adiacente. I materiali con cui è stato fabbricata la casa sono tutti legati alla bioedilizia;

l’abitazione infatti è stata realizzata con struttura in legno massiccio costituita da pannelli in X-lam, coibentata con cappotto in fibra minerale e intonaci che sfruttano i vantaggi delle nanotecnologie a protezione delle finiture interne, rispettando i rigidi parametri della certificazione di CasaClima. Dopo aver analizzato le esigenze dei committenti, si è deciso di installare un impianto di climatizzazione invernale ed estiva a bassa inerzia, a ventilconvettori (in parte incassati a controsoffitto e parte incassati a parete), con ventilatori tangenziali estremamente silenziosi per tutelare la fase del sonno.

Progetto architettonico e D.L. arch. Paolo Piccin – quattropiulab, Vittorio Veneto (TV)

Strutture ing. Davide Marcon, Vittorio Veneto (TV)

Consulente CasaClima

Kristian Mattiuz, Conegliano (TV); Elisa Cum, Udine

Progetto Impianti ing. Michele Taffarel, Pieve di Soligo (TV)

Appaltatore evologica, Conegliano (TV)

Certificazione

• CasaClima Gold

Trasmittanza media pareti esterne

0,13 W/m2 K

Trasmittanza media solaio contro terra

0,15 W/m2 K

Trasmittanza media copertura

0,15 W/m2 K

Trasmittanza media superfici trasparenti

Ug 0,6 W/m2 K

Fabbisogno energia per riscaldamento

3 kWh/m2 anno

6 _41
quattropiulab; evologica 7 0
1
2
3
4
5
7
8
9
10
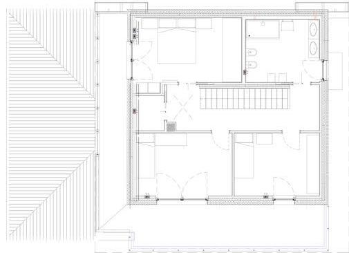
Pianta
A A 0 6 5 4 3 1 2 B B 7 Pianta
A 4 5 9 8 8 8 10 B B A
garage
soggiorno-pranzo
cucina
ripostiglio
distributivo
bagno 6 lavanderia – centrale termica
portico
camera
cabina armadio
terrazzo
piano terra
primo piano
Prospetto nord-est
Prospetto nord-ovest
Prospetto sud-est
Prospetto
sud-ovest Sezione A-A Sezione B-B

A. Copertura, dall’esterno

• modulo fotovoltaico con zavorra in c.a.

• guaina bituminosa granigliata con protezione UV (4 mm)

• guaina bituminosa (4 mm)

• pannello OSB 3 (20 mm)

• triplo strato pannelli fibra di legno (100+100+100 mm incrociati) con interposti morali in legno (60x100 mm)

• guaina bituminosa (4 mm)

• pannello OSB 3 (20 mm)

• perline in abete maschio-femmina (20 mm)

• travetti a vista

B. Parete esterna, dall’esterno

• rasatura con intonachino silossanico

• lana di roccia (220 mm)

• parete in X-lam (100 mm)

• contro parete interna isolata per impianti (50 mm)

• doppia lastra in cartongesso (12,5+12,5 mm)

• stuccatura e pittura

C. Copertura loggia, dall’estradosso

• pavimento in legno (15 mm)

massetto cementizio (45 mm)

• telo separatore

• EPS granulato legato con cemento (150 mm)

• barriera al vapore

doppio pannello OSB 3 (20 mm)

• travetti portanti (240 mm) con interposta lana di roccia

• perline in abete maschio-femmina (20 mm)

• lana di roccia (60 mm)

rasatura con intonachino silossanico

D. Solaio contro terra, dall’estradosso

• pavimento in legno (15 mm)

massetto in cls (50 mm)

• massetto alleggerito con cemento e granulato di EPS (ca. 135 mm)

• telo separatore

pannello XPS (100 mm)

• pannello in schiuma rigida PIR (100 mm)

• guaina bituminosa (4 mm)

• platea in c.a. (ca. 350 mm)

8 _41
A B B C D

Immagini di cantiere della realizzazione della casa: la struttura lignea, la coibentazione a cappotto, l’isolamento della controparete interna, la realizzazione della pergola esterna sul terrazzo.

quattropiulab; evologica 9

Tecnologia

Il cuore impiantistico

Il cuore dell’impianto è costituito da una pompa di calore reversibile monoblocco a 4 tubi che in fase estiva può recuperare il 100% dell’energia di condensazione dell’impianto di raffrescamento direttamente nell’accumulo dell’ACS, producendo ACS gratuita. Il rinnovo dell’aria è gestito da una macchina a recupero attivo, che ricambia costantemente l’aria mantenendo altissimi livelli di salubrità e riducendo l’eventuale eccesso di umidità in ambiente. Grazie alla presenza di un piccolo circuito frigorifero, che preriscalda l’aria esterna prima di immetterla nei vari ambienti, la macchina fornisce una piccola potenza termica aggiuntiva gratuita per l’integrazione invernale ed estiva, aumentando così l’efficienza complessiva dell’abitazione. Tutto l’impianto è gestito da un sistema domotico che ne ottimizza i consumi e si interfaccia attivamente con l’impianto fotovoltaico installato in copertura.

Installazione dell’impianto fotovoltaico zavorrato sulla copertura piana.
_41 10
La macchina della ventilazione meccanica.

quattropiulab

Dopo anni di collaborazioni personali con studi di architettura, gli arch.tti Paolo Piccin e Enrico De Conti con Pierluigi Slis, la cui formazione spazia tra arte e ricerca visiva, fondano nel 2018 quattropiulab. I progetti dello studio variano dai lavori pubblici alla progettazione del dettaglio, concentrandosi prevalentemente sulla parte residenziale e sugli spazi interni, sullo studio della luce naturale e artificiale con attenzione quasi maniacale ai dettagli e ai materiali. Lo studio è specializzato inoltre nella progettazione della bioedilizia, realizzando vari edifici in legno certificati CasaClima.

evologica

Nata dall’esperienza di un’impresa costruttrice già specializzata nell’architettura tradizionale, evologica più di dieci anni fa ha iniziato a dedicarsi alla creazione di abitazioni ecologiche, evolute e confortevoli, rispettose della salute e delle energie, dove l’elemento naturale del legno è protagonista del benessere indoor. L’azienda realizza edifici sartoriali e secondo le esigenze dei clienti, coniugando la sicurezza e il comfort dell’abitare con la certificazione CasaClima. Gli edifici, realizzati in X-lam, si contraddistinguono per l’involucro ad alte prestazioni che consente di ridurre quasi a zero l’utilizzo degli impianti di climatizzazione.

quattropiulab; evologica 11
12 _41

Sostenibilmente verde

Casalmaiocco (LO)

GreenWood: questo il nome di un piccolo quartiere residenziale dove la scelta del sughero a vista per la coibentazione e del legno per la struttura portante sono la naturale risposta alla ricerca della più alta sostenibilità costruttiva e abitativa, nel rispetto e in equilibrio con l’ambiente circostante

Nato e progettato ricercando la massima sostenibilità attraverso la realizzazione di architetture ad alta efficienza energetica e costruite interamente con struttura in legno, GreenWood è un quartiere residenziale composto da singole ville e da edifici plurifamiliari multipiano, tutti certificati CasaClima Gold Nature.

In questo piccolo borgo virtuoso gli obiettivi di sostenibilità si esprimono attraverso le forme delle abitazioni; come il design di una vettura da corsa è delineato dall’aerodinamica, così le linee delle ville sono tracciate dal percorso del sole e dalla sua ricerca, o protezione, nel corso delle giornate e delle stagioni. Grazie a un’attenta progettazione si è conseguita la migliore e la più economica fra le strategie di efficienza nel costruire, ovvero quella ottenuta dalle configurazioni volumetriche e dal corretto orientamento delle facciate, guadagnando il massimo beneficio dall’irraggiamento solare, opportunamente schermato nei periodi più caldi. Le sette ville a schiera, disposte su fronti contrapposti di una via pubblica, si sviluppano compositivamente in due piccoli complessi abitativi, la cui architettura è stata adattata alla disposizione delle facciate con gronde pronunciate

Emanuele Garufi 13 Emanuele Garufi
Photo © Studio Quattro Terzi

e grandi vetrate a sud e fronti compatti sulle altre esposizioni.

In questi edifici la volontà di effettuare un intervento altamente sostenibile è simboleggiata dall’impiego, emozionale e significativo, del sughero faccia a vista sui prospetti, il quale, come la corteccia di un albero, protegge il cuore strutturale in legno. Tuttavia, la scelta dei materiali non si limita al solo ricorso a materiali naturali e per le facciate ventilate sono state impiegate

pannellature metalliche che garantiscono una migliore efficacia dell’effetto camino che si genera nell’intercapedine. All’interno delle ville le strutture in legno lasciate a vista, che espongono le superfici naturali dei pannelli portanti di solai e pareti, permettono di realizzare ambienti curati, caldi e avvolgenti, rivelando il senso di rispetto della natura e di equilibrio con essa e favorendo, al tempo stesso, un design moderno e tecnologico.

Progetto architettonico e D.L. arch. Emanuele Garufi, Livorno

Strutture e Impianti Next Wood srl, Mulazzano (LO)

Consulenti

Dr. Claudio Bellocchio - Next Wood srl

Appaltatore e Lavori

Gardenia srl, Mulazzano (LO)

Superficie utile

127 m2 a villa

Trasmittanza media pareti esterne

0,10 W/m2 K

Trasmittanza media solaio contro terra

0,10 W/m2 K

Trasmittanza media copertura

0,12 W/m2 K

Trasmittanza media superfici trasparenti

0,6 W/m2 K

Fabbisogno energia per riscaldamento

7 kWh/ m2 anno

14 _41
Pianta copertura Primo piano
• CasaClima Gold Nature
Piano terra
Certificazione
Emanuele Garufi 15
Photo Quattroterzi Photo Quattroterzi Photo Emanuele Garufi Architecture Office Photo Quattroterzi Photo Quattroterzi Photo Quattroterzi
16 _41
Photo Emanuele Garufi Architecture Office Photo Emanuele Garufi Architecture Office Photo Emanuele Garufi Architecture Office Photo Emanuele Garufi Architecture Office
Concept sketch di studio (©Emanuele Garufi) del fronte opaco del complesso abitativo e sezione A-A della parete.
Emanuele Garufi 17
Disegni di dettaglio della copertura (©Emanuele Garufi). Photo Emanuele Garufi Architecture Office Photo Emanuele Garufi Architecture Office Vista da sud ovest di uno dei due complessi abitativi.

Tecnologia

Legno e sughero

L’intera struttura in legno è coibentata con sughero bruno espanso. L’utilizzo del legno e del sughero ha permesso di evitare l’emissione in ambiente di circa 450 tonnellate di CO 2 equivalente. Questo è dovuto alla capacità di questi due materiali naturali di ridurre la concentrazione di anidride carbonica in atmosfera nella misura di una tonnellata di CO 2 equivalente per ogni metro cubo di legno o sughero impiegato.

_41 18
Photo Emanuele Garufi Architecture Office
Architecture Office
Photo Emanuele Garufi

Architetto Emanuele Garufi

Altri progetti

Cross Light House, struttura di quattro piani interamente realizzata in legno con pannelli prefabbricati in X-lam.

Il lavoro dell’arch. Emanuele Garufi e del suo studio si sviluppa nella ricerca del “Design della Sostenibilità”, in cui il linguaggio architettonico è sintesi del connubio fra la bioclimatica e utilizzo di materiali naturali e soluzioni sostenibili, e ciò ha portato l’attività a specializzarsi nella progettazione di edifici in legno a grande efficienza e sostenibilità. Negli ultimi anni lo studio si è evoluto, fondando la società di progettazione NextWood con Claudio Bellocchio, estendendo il livello della progettazione dal design di architettura alla cura della progettazione integrata sino a occuparsi interamente delle progettazioni speciali, strutturali e BIM development.

Edificio a Sesto Fiorentino (FI), struttura di quattro piani realizzati in X-lam isolata interamente in sughero.

Photo Studio Quattroterzi Photo Studio Quattroterzi
19
Photo Claudio Bellocchio
Emanuele Garufi
_41 20

Fabio Ferrario; Daniela Casagranda

La casa dei sogni

Per soddisfare appieno le richieste di spazio dei committenti, questa villa si articola su due piani, così da separare la zona dell’accoglienza da quella più privata delle camere. La progettazione architettonica e impiantistica, particolarmente attenta, ha dato vita a una casa virtuosa dal punto di vista energetico, della sostenibilità e del comfort abitativo

Una casa dei sogni, capace di ospitare una famiglia di quattro persone, ma di avere spazi interni ed esterni sufficienti per poter accogliere anche amici e parenti; sono questi i presupposti da cui nasce Villa Armellini, dove ogni dettaglio è stato studiato e definito per garantire la corretta esecuzione e il rispetto delle prestazioni progettate. Per soddisfare dunque le richieste dei committenti, la villa si compone di due livelli, il piano terra che ospita l’area giorno e il primo piano che accoglie la zona notte.

Il materiale che caratterizza la struttura portante ma che contraddistingue anche l’estetica degli interni e dell’esterno è il legno. L’edificio è stato costruito in pannelli X-lam, che garantiscono la resistenza statica sia per le forze verticali gravitazionali sia per le forze orizzontali (vento e sisma). Il solaio di primo piano è caratterizzato da una struttura portante in legno lamellare a vista con una trave principale realizzata con tecnologia Armalam® (legno lamellare armato), così da limitarne la dimensione e assicurare un’adeguata resistenza e rigidezza; la trave funge da appoggio centrale per un’orditura secondaria di travetti in legno lamellare, collaboranti con una cappa di calcestruzzo, a garantire le verifiche di vibrazione. La copertura è realizzata con elementi in legno lamellare a vista. L’attenzione progettuale al dettaglio si riscontra nella definizione di molti elementi architettonici, quali la scala interna a vista,

Fabio Ferrario; Daniela Casagranda 21

l’illuminazione, i serramenti in legno alluminio a elevate prestazioni termiche e acustiche, i parapetti in acciaio del terrazzo, tutti progettati e realizzati su misura dal costruttore.

La villa è certificata in Classe A4, anche se il fine ultimo è il comfort abitativo. L’attenzione ai dettagli costruttivi e l’elevata coibentazione termica hanno permesso l’eliminazione dei ponti termci e l’ottenimento di elevate temperature superficiali interne che prevengono formazioni di condense. Si è riservata,inoltre, particolare cura alla progettazione dell’impianto termico, con l’impiego di un aggregato compatto che assolve in un’unica macchina alla climatizzazione invernale ed estiva.

Progetto architettonico ing. Fabio Ferrario, arch. Daniela Casagranda – Armalam S.r.l., Pergine Valsugana (TN)

Strutture ing. Fabio Ferrario, ing. Gabriele Pasquazzo - Armalam S.r.l.

Direttore dei lavori ing. Fabio Ferrario - Armalam S.r.l.

Certificatore energetico ing. Mariano Luchi – Armalam S.r.l.

Impianti

p.i. Marco de Pinto - PH Studio, Arco (TN) – Cles (TN)

Appaltatore Armalam S.r.l., Pergine Valsugana (TN)

Certificazioni

• Classe A4 (nazionale)

Lavori 2019

Trasmittanza media pareti esterne < 0,12 W/m2K

Trasmittanza media solaio contro terra < 0,15 W/m2K

Trasmittanza media copertura < 0,14 W/m2K

Trasmittanza media superfici trasparenti < 1,0 W/m2K

Fabbisogno energia per riscaldamento 21,27 kW/m2anno

• Classe A+ (Provincia Autonoma Trento)

• ARCA Silver

22 _41

Planimetria

Copertura

Prospetto sud

Prospetto ovest

Prospetto nord

Prospetto est

Fabio Ferrario; Daniela Casagranda 23
Piano terra Primo piano

Copertura, dall’esterno

- manto in lamiera grecata multistrato

- listelli (50×50 mm)

- listelli (50x50 mm)

- guaina impermeabile traspirante termoriflettente

- tavolato grezzo (20 mm)

- listelli per ventilazione (60×40 mm)

- guaina impermeabile traspirante

- pacchetto coibente (120+120 mm)

- barriera al vapore

- perlinato maschiato in abete (20 mm)

Parete, dall’esterno

- rasatura (10 mm)

- cappotto lana minerale (180 mm)

- pannello X-lam (100 mm)

- telo di tenuta all’aria

- lana minerale alta densità (30 mm)

- intercapedine (75 mm) + lana minerale (50 mm)

- doppia lastra cartongesso (25 mm)

Solaio contro terra, dall’estradosso

- finitura (20 mm)

- massetto con pannello bugnato non isolato e primer (25 mm)

- massetto alleggerito (60 mm)

- anticalpestio (5 mm)

- alleggerito per passaggio impianti (120 mm)

- massetto ripartitore (50 mm)

- telo PE

- coibente XPS (160 mm)

- vespaio areato (350+50 mm)

- magrone (100 mm)

24 _41 271 48 42 32 2 12 12 2 5 5 19 10 13 25 30 13 19 PEND 7% 10 10 40 16 5 12 0.5 6 2.5 2 10 10 120 44 3 10.5 2.5 10 19

Solaio interpiano, dall’estradosso

• pavimento (20 mm)

massetto autolivellante per pavimenti

radianti (25 mm) e pannello bugnato non isolato

• massetto alleggerito (60 mm)

anticalpestio (5 mm)

• alleggerito per passaggio impianti (115 mm)

• barriera acustica (5 mm)

• massetto ripartitore (50 mm)

telo PE

• perlinato in abete (20 mm)

Solaio balcone, dall’esterno

• pavimentazione inclinata (10 mm)

• guaina impermeabilizzante

• massetto cementizio pendenzato

• guaina bituminosa (5 mm)

• solaio a sbalzo in X-lam (172 mm)

• cappotto in lana minerale (50 mm)

• montanti supporto rivestimento in abete

• rivestimento in larice (20 mm)

1 X-lam (172 mm)

2 canale di raccolta acque in inox

3 piastra aggancio parapetto

4 lastra in cemento rinforzato (20 mm)

5 lattoneria raccordo rivestimento larice

Fabio Ferrario; Daniela Casagranda 25 48 112 10.8 17.2 2 30 10 4 PEND 1.5% 12 10 12.5 4.7 6 8 PAV. FINITO 16 22 10.8 2 52 30 PEND 2% D5 D5 D6 D6
1 2 3 4 5 2 3 4 5

Tecnologia

L’impiantistica

La climatizzazione in inverno e in estate è demandata a un aggregato compatto che assicura il necessario ricambio d’aria mediante un sistema integrato di VMC, mentre la distribuzione del calore è realizzata un impianto radiante a pavimento; una pompa di calore monoblocco aria/ acqua produce l’acqua calda e refrigerata per le utenze. Tale scelta impiantistica garantisce la copertura dei carichi termici, l’efficienza energetica del sistema in ogni condizione funzionale e la migliore qualità dell’aria interna. Un sistema di gestione consente di monitorare e gestire a distanza l’intera generazione termica e la ventilazione.

_41 26

Ingegnere Fabio Ferrario

Altri progetti

Laureato nel 2000 in Ingegneria Civile, indirizzo strutture, presso la Facoltà di Ingegneria di Trento, dal 2001 è iscritto all’Ordine degli Ingegneri di Trento. Nel 2003 ha conseguito il titolo di Dottore di Ricerca (Ph.D.) e da allora riveste l’incarico di assistente e ricercatore presso la Facoltà di Ingegneria di Trento con specializzazione nella progettazione sismica delle strutture. All’interno di questo ruolo ha collaborato in modo attivo alla scrittura e realizzazione di numerosi progetti di ricerca nazionale (MIUR) e europei (RFCS). Socio di Armalam S.r.l. dal 2009, all’interno della società riveste il ruolo di Direttore Tecnico del settore Ricerca e Innovazione.

27
Fabio Ferrario; Daniela Casagranda Ecohotel Bonapace, Riva del Garda (TN). Progettazione architettonica e strutturale di un hotel passivo.
_41 28

Rigenerare con la natura

Bisceglie (BT)

La rigenerazione di un’area dismessa è stata l’occasione per realizzare un complesso residenziale che fa della sostenibilità l’elemento cardine del progetto.

La valorizzazione delle caratteristiche bioclimatiche del luogo ha originato un edificio quasi autosufficiente dal punto di vista energetico e rispettoso dell’ambiente

Rigenerare un’area dismessa con criticità ambientali in un contesto costruito è, al giorno d’oggi, più che mai necessario; tale operazione, infatti, permette di evitare il consumo di suolo e al contempo di bonificare spazi urbani compromessi, migliorando la qualità dell’edificato che si integra con nuove infrastrutture a verde. Da questi presupposti ha origine Case di Luce, un intervento che, realizzato in un’area semiperiferica della città di Bisceglie, diventa un nuovo modello urbano fungendo da volano alla riqualificazione di un quartiere fortemente urbanizzato, in stato di degrado e di abbandono e caratterizzato dalla presenza di insediamenti produttivi dismessi. Dopo un’incisiva operazione di bonifica del territorio e la demolizione delle vecchie preesistenze, la costruzione di questo edificio pluriresidenziale nZEB è avvenuta senza consumo di suolo, fornendo risposte concrete grazie a soluzioni progettuali energeticamente sostenibili che accrescono la qualità urbana e la sostenibilità ambientale.

Costituito da 21 alloggi distribuiti su 5 livelli fuori terra e un piano attico, questo complesso residenziale nasce da un approccio integrato sistemico e olistico che coniuga il rispetto della bioclimatica del luogo con la valorizzazione delle potenzialità dello stesso al fine di raggiungere il massimo contenimento dei

PS_Architetture 29 PS_Architetture
Photo Sergio Camplone

bisogni energetici, quasi al limite dell’autosufficienza. La composizione architettonica articola principi di sostenibilità, tecniche costruttive, materiali naturali e fonti energetiche rinnovabili, interpretati secondo il linguaggio tipico dell’architettura mediterranea. Troviamo dunque serre solari per la captazione passiva dell’energia termica, una copertura a vela inclinata a sud / sud est per accogliere i sistemi di produzione di energia pulita e i blocchi in calce canapa della struttura dalle ottime prestazioni termoigrometriche, elementi che da un lato arricchiscono il lessico architettonico e dall’altro consentono il raggiungimento del comfort visivo, termico e illuminotecnico delle singole abitazioni.

Le serre solari

La complessa articolazione spaziale, tanto in pianta che nei prospetti, è stata orientata a favorire l’introduzione di elementi che massimizzano gli apporti solari gratuiti nel ciclo invernale, ovvero le serre solari, veri

e propri elementi di captazione solare e di mediazione tra interno ed esterno ma, al contempo, di difficile interpretazione alle nostre latitudini, dove l’attenzione deve essere posta sia al guadagno termico invernale sia alla protezione estiva. Grande accuratezza è stata dunque posta alla ricerca del migliore soleggiamento, studiando a fondo i diagrammi solari durante le varie stagioni, orientando l’edificio in direzione sud est e lavorando sulla forma dell’intera facciata che, piegandosi a ogni piano con una geometria diversa, consente in inverno alla luce di penetrare negli ambienti, evitando la proiezione delle ombre sulle serre sottostanti, e in estate con il sole maggiormente zenitale permette alle ombre portate delle stesse serre di ombreggiare i corpi vetrati delle serre sottostanti. Per evitare il temuto fenomeno del surriscaldamento estivo degli ambienti interni, le pareti cieche delle serre sono rivestite in sughero bruno a faccia vista e le chiusure vetrate possono essere completamente aperte e impacchettate, trasformando così la natura dello spazio di ciascuna serra da interno a esterno e fruibile alla pari dei balconi.

Progetto architettonico arch.tti Pantaleo Pedone, Massimo Pedone, ing. Pietro Pedone – PS_Architetture con arch. Annamaria Perruccio, Bisceglie (BT)

Strutture ing. Pietro Pedone

Direttore dei lavori arch.tti Pantaleo Pedone, Massimo Pedone

Consulenti p.i. Carmine Scarciolla, ing. Giuseppe Dicorato - CFE Centro di Fisica Edile, Gravina di Puglia (BA)

Impianti Greentech, Gravina di Puglia (BA); Energy3 S.a.s., Bisceglie (BT)

Appaltatore Pedone Working S.r.l, Bisceglie (BT)

Certificazioni

• Classe A4

• CasaClima Gold

Progetto 2010-2011

Lavori 2012-2016

Superficie utile

3200 m2

Trasmittanza media pareti esterne

0,18 W/m2K

Trasmittanza media solaio verso locali commerciali

0,23 W/m2K

Trasmittanza media copertura

0,18 W/m2K

Trasmittanza media superfici trasparenti

1,00 W/m2K; con infissi 1,20 W/m2K

Efficienza involucro

10 kWh/m2 anno

30 _41

I disegni mostrano lo studio del percorso solare in inverno e in estate, così da ottimizzare nelle stagioni più fredde gli apporti solari passivi e nel periodo estivo da garantire l’adeguato ombreggiamento delle serre di captazione solare.

Nelle due fotografie, si notano la diversa disposizione in facciata delle serre, connotate dal rivestimento in sughero bruno e dai corpi vetrati impacchettabili che permettono di ampliare lo spazio esterno.

Riscaldamento solare invernale

Ombreggiamento estivo

PS_Architetture 31
Photo Sergio Camplone Photo Sergio Camplone
32 _41
Pianta secondo piano Pianta quinto piano Prospetto est

L’involucro opaco

L’involucro isolante esterno è costituito da un tamponamento con biomattone in canapa e calce, mentre le tramezzature interne sono in tufo, materiale locale a km zero; alcune murature sono invece di tipo multistrato con paramento interno in tufo, strato di biocomposito canapa e calce in rapporto di 1:1 e biomattone in canapa e calce. Tanto il biocomposito quanto il biomattone sono costituiti da truciolato vegetale di canapa con un legante a base di calce in rapporto variabile a seconda delle prestazioni termiche e meccaniche richieste; questo composto si differenza dagli altri materiali isolanti in quanto combina alte proprietà di isolamento e massa termica con un’elevata eco-compatibilità, riciclabilità e regolazione igroscopica, oltre a essere un materiale a bilancio negativo di emissioni di CO 2 e capace di catturare e sequestrare 60 kg di CO2

dall’atmosfera per ogni metro cubo di materiale. Tale tecnologia costruttiva innovativa consente, con un unico materiale naturale omogeneo, di assolvere contemporaneamente alla funzione di involucro e di isolante e di risolvere anche tutti i problemi di umidità interstiziale dovuti al diverso valore di permeabilità al vapore dei materiali impiegati. Grazie a un’impiantistica ottimizzata e alla presenza di un impianto di trattamento dell’aria con recupero di calore, la muratura, perfettamente permeabile al vapore acqueo, mantiene altresì negli ambienti interni livelli di umidità costanti, assicurando l’assenza di muffe e agenti patogeni, e garantisce benessere termo-acustico e termo-igrometrico e bassa o nulla emissione di sostanze organiche volatili inquinanti (VOC) per un’elevata qualità dell’aria e il massimo benessere abitativo.

PS_Architetture 33
Photo Sergio Camplone Photo Sergio Camplone

Vela (A), dall’esterno

- copertina in pietra

- impermeabilizzazione con doppia guaina

- copertura vela in cls

- rivestimento vela con pannelli in sughero a faccia vista

Solaio di copertura (B), dall’esterno

- pavimento in ciotoli

- impermeabilizzazione con doppia guaina

- massetto in cls armato pendenzato

- isolamento in XPS

- solaio in latero-cemento

- intonaco di calce

Parete esterna (C), dall’interno

- intonaco di calce

- calcarenite tufella

- biocomposito in canapa e calce (200 kg/m3)

- listello guida in legno

- biocomposito in canapa e calce (500 kg/m3)

- rasatura armata

Solaio interpiano (D), dall’estradosso

- grès porcellanato / pavimento in legno

- collante

- massetto

- pavimento radiante

- tappetino acustico

- massetto in cls cellulare

- struttura in c.a. antisismica con tecnologia REP

- intonaco in calce

Solaio terrazzo (E), dall’esterno

- grès porcellanato

- sistema impermeabilizzante

- massetto cementizio

- isolamento in XPS

- struttura in c.a. antisismica con tecnologia REP

- isolamento in XPS

- intonaco

34 _41
A B C D E

Le foto di cantiere di questa pagina mostrano come è stata realizzata la struttura portante e di tamponamento dell’involucro e della serra.

Il telaio portante in c.a. è stato tamponato con blocchi in canapa e calce di differente densità con rasature e finiture sempre in calce mentre i tramezzi interni si caratterizzano per l’uso di blocchi di tufo. Alcune murature sono di tipo multistrato e presentano un paramento verso l’interno in tufo, uno strato di biocomposito canapa e calce e il biomattone in canapa e calce. Nelle serre le pareti cieche sono rivestite in sughero bruno a faccia vista, al fine di evitare il surriscaldamento estivo dei locali interni.

PS_Architetture 35

Tecnologia

Sostenibilità ed energia

Vista la natura del luogo e del contesto urbano in cui l’edificato è inserito, si è fatta una scelta di sostenibilità nel concetto costruttivo del corpo di fabbrica, impiegando tecnologie innovative, sperimentali e sostenibili. L’edificio è caratterizzato da un bassissimo fabbisogno energetico grazie all’utilizzo di diverse soluzioni e accorgimenti: eliminazione dei ponti termici, infissi altamente termoisolanti, riscaldamento mediante pompa di calore e involucro altamente performante dal punto di vista termico, acustico e igrometrico, in quanto completamente naturale in canapa e calce, materie prime naturali con produzione a basso consumo e impatto ambientale prossimo allo zero.

_41 36

PS_Architetture

PS_Architetture è un team di architetti e ingegneri specializzati in ideazione, progettazione e ingegnerizzazione di case naturali ad altissima efficienza energetica nZEB e a bassissimo impatto ambientale con alto comfort interno. Lo studio fonda la sua ricerca progettuale su ambiente, materiali naturali e architettura mediterranea e la sua attività, pura innovazione e sperimentazione applicate all’architettura ecosostenibile, è stata avvalorata da premi nazionali e internazionali (Premio sviluppo sostenibile ECOMONDO 2018; Green Building Solution 2016; CasaClima Awards 2013 e 2016; Energia sostenibile nelle città 2012 URBANPROMO).

In PS_Architetture - ing. Pietro Pedone, arch. Pantaleo Pedone, arch. Massimo Pedone e arch. Eleonora Pedone – collaborano Francesco Tiritiello, Francesco Ricchiuti, Marianna Cosmai, Rosaria Minervini, Antonia Capurso.

Altri progetti

Villa Di Gioia, Bisceglie – CasaClima Gold.
PS_Architetture 37
Case nel Verde, Bisceglie (BT). Photo Sergio Camplone
_41 38
Photo Sergio Camplone

Innovazione e tradizione

Bisceglie (BT)

“Case nel Verde” è un progetto che coniuga innovazione e tradizione in un nuovo concetto di villa urbana ripensata all’interno di un edificio in linea. Un edificio altamente sostenibile realizzato con blocchi di canapa e calce e con un sofisticato uso della ventilazione naturale Bisceglie, a seguito dell’espansione residenziale degli anni ‘80, un’area destinata ad attività manifatturiera, posta a ridosso di una ferrovia, venne dismessa con il decentramento dell’attività; con il conseguente abbandono, la zona subì un forte degrado, fino al recupero, attuato con un progetto di rigenerazione urbana di cui sono parte Case di Luce, costruito nel 2016 (vedi pag. 28-37), e Case nel Verde, oggetto di questo approfondimento. Il progetto si è caratterizzato per lo sviluppo di due temi di ricerca in ambito mediterraneo, il primo connesso alla sperimentazione degli apporti passivi bioclimatici nel periodo estivo attraverso una cross-ventilation all’interno dell’edificio, il secondo legato alla tipologia abitativa mediante l’applicazione di caratteri tipici delle ville con l’obiettivo di creare una nuova forma dell’abitare: “la villa urbana”. Quest’ultima, infatti, rappresenta una delle tre declinazioni delle residenze progettate che, assieme ad appartamenti e attici e ognuna con un diverso rapporto con lo spazio esterno, costituiscono le 26 unità del complesso di sette piani fuori terra e un livello interrato, completato da locali commerciali al piano terra. In fase progettuale, pertanto, è stata ripresa una soluzione tipica dell’architettura mediterranea, la villa a patio, ripensata e inserita all’interno di un edificio in linea, rispondendo alle nuove esigenze del mercato immobiliare

PS_Architetture 39 PS_Architetture

che persegue l’idea di stili di vita contemporanei. Nasce così la “villa urbana”, un appartamento caratterizzato da una serra-giardino, che filtra l’ingresso della residenza dal pianerottolo, e sviluppato tutto attorno alle logge a doppia altezza che attraverso vetrate panoramiche definiscono un continuum visivo tra spazio interno ed esterno in perfetta simbiosi tra “Natura e Architettura”.

Pur avendo un’anima naturale, il fabbricato - il più grande complesso a uso abitativo costruito in canapa - reinterpreta gli stilemi estetici odierni secondo un linguaggio mediterraneo. La composizione architettonica è fatta per “sottrazioni” e il blocco puro dell’edificio è scavato dalle logge a doppia altezza costruendo un partito “pieno-vuoto” solo apparentemente casuale, ma ricucito dai marcapiani in sughero e dai frangisole, questi ultimi posizionati a una altezza calcolata tramite l’analisi dei diagrammi solari per consentire l’apporto del sole nei mesi invernali e la schermatura in quelli estivi. L’attacco sull’affaccio stradale resta pieno e unitario, risolvendo gli accessi dei locali al piano terra, filtrati dalla sede stradale grazie a piccole aiuole con piante grasse. Sul fronte interno l’edificio stabilisce un rapporto intimo con l’elemento naturale; l’architettura, infatti, da una parte viene scavata portando a nudo l’ossatura dei pilastri a doppia altezza e svelando il blocco musivo del piano terra, dall’altra si solleva per lasciare entrare al suo interno il giardino, sacrificando due piani a favore di zone relax per i condomini e di gioco per i bambini. Quest’area è caratterizzata da un sotto linguaggio architettonico scandito da un volume sospeso e da una composizione, con segno quasi kandinskiano, fatta da pavimentazioni, fioriere e panche.

Progetto architettonico arch.tti Pantaleo Pedone, Massimo Pedone, Eleonora Pedone, ing. Pietro Pedone – PS_Architetture

Strutture ing. Pietro Pedone

Direttore dei lavori arch. Massimo Pedone

Consulenti

p.i. Carmine Scarciolla, ing. Giuseppe Dicorato - CFE Centro di Fisica Edile, Gravina di Puglia (BA)

Cross-ventilation

Innovazione e tradizione sono coniugate anche nei caratteri bioclimatici, usando una torre di ventilazione di araba memoria. Lo studio delle esposizioni solari, l’analisi dei venti dominanti e il controllo attraverso l’analisi fluidodinamica hanno portato alla sperimentazione di un sistema passivo estivo, ottenuto attraverso un articolato sistema di ventilazione interno all’edificio. I pianerottoli di distribuzione ai piani si trasformano in canali di ventilazione orizzontali, le scale in linea diventano deflettori, il cavedio verticale è una vera e propria torre di ventilazione interna con presa ai piani e tiraggio contrapposto al piano attico. Il sistema, quasi fosse un polmone, permette di ottenere, nell’area dei pianerottoli, un gradiente termico estivo mitigato, utile a ridurre la temperatura all’interno degli appartamenti tramite gli scambiatori.

Impianti

Smartenia S.r.l., Bari; Energy3 S.a.s., Bisceglie (BT)

Appaltatore Pedone Working S.r.l, Bisceglie (BT)

Lavori

2019/2022

Superficie utile

3.020 m2

Trasmittanza media pareti esterne

0,168 W/m2K

Trasmittanza media solaio verso locali commerciali

0,26 W/m2K

Trasmittanza media copertura

0,12 W/m2K

Trasmittanza media superfici trasparenti

1,00 W/m2K; con infissi 1,20 W/m2K

Prestazione energetica globale media

11,75 kWh/m2anno

40 _41
• A4 nZEB
Certificazione
Photo Sergio Camplone

L’idea progettuale di Case nel verde ha integrato all’interno di un edificio in linea il nuovo concetto di “villa urbana”, assieme ad appartamenti e attici. Il verde è inoltre parte fondamentale del concept, entrando di fatto negli spazi abitativi e articolando il volume.

PS_Architetture 41
42 _41
Pianta secondo piano, Villa Urbana.
2 2 4 5 6 1 1 2 3 2 1
Pianta terzo piano, Appartamenti verdi 1 serra-giardino 2 loggia a doppia altezza 3 loggia del piano inferiore 4 deflettori 5 canali di ventilazione orizzontali 6 torre di ventilazione interna 1 loggia a doppia altezza 2 loggia 3 loggia del piano inferiore
2 1 1 2 2 4 5 6 3 3 3 3
4 deflettori 5 canali di ventilazione orizzontali 6 torre di ventilazione interna
PS_Architetture 43
3 1 3 3 2 4 5 6 1 1 1 3 3 3 2 2
Pianta sesto piano, Attico 1 terrazzo 2 solarium 3 loggia del piano inferiore 4 deflettori 5 canali di ventilazione orizzontali 6 torre di ventilazione interna Photo Sergio Camplone Photo Sergio Camplone
44 _41
Prospetto ovest
Sezione trasversale
Prospetto est Prospetto nord 1 loggia a doppia altezza (h. 6 m) 2 loggia (h. 4,5 m) 3 terrazzo (h. 3m) 4 canali di ventilazione orizzontali Photo Sergio Camplone
Photo Sergio Camplone 2 3
4 1

L’involucro opaco

Nella costruzione di Case nel Verde si è posta grande attenzione all’etica ambientale, con una riduzione della CO 2 già a partire dalla tecnica costruttiva. L’usuale metodo di costruzione con consumo di risorse primarie, che si è trasformato in questo edificio in criterio di costruzione con consumo di piante annuali, passando così dalla “città cratere” alla “città foresta”. L’involucro è realizzato con mattoni di canapa, costituiti da un biocomposito naturale di legno di canapa e calce dalle elevate caratteristiche termo-igrometriche, ecocompatibile, riciclabile e a bilancio negativo di emissioni di anidride carbonica, unendo alte proprietà di isolamento e massa termica con la regolazione igroscopica. Questa tecnologia costruttiva naturale, caratterizzata da un unico materiale omogeneo, assolve contemporaneamente alla funzione di involucro e di isolamento, realizzando una muratura perfettamente permeabile al vapore acqueo che, associata ad un’impiantistica ottimizzata, consente di mantenere negli ambienti interni livelli di umidità costanti e assicurare così l’assenza di muffe e di agenti patogeni.

L’elevato isolamento, la correzione dei ponti termici primari e secondari, la buona tenuta all’aria hanno determinato un bassissimo fabbisogno energetico in Case nel Verde: il complesso residenziale è stato certificato in classe A4 nZEB e ha inoltre ottenuto il Certificato di Sostenibilità ambientale - Protocollo Itaca Puglia 2017 con il ragguardevole punteggio di 3,7.

PS_Architetture 45

Solaio interpiano (A), dall’estradosso

- pavimento

- massetto ripartitore carichi

- tappetino acustico

- massetto di canapa

- struttura in c.a. antisismica con tecnologia REP

- intonaco di canapa e calce

Parete esterna (B), dall’interno

- intonaco di canapa e calce

- mattone in biocomposito in canapa e calce (40 cm)

- intonaco di canapa e calce

3 4 5 6 7 8

1 cassonetto coibentato e a tenuta all’aria

2 infisso

3 sughero

4 piastra di aggancio in acciaio

5 montante in alluminio anodizzato titanio

6 doghe frangisole (8x4 cm)

7 doghe frangisole (16x4 cm)

8 soglia in pietra

Solaio balcone (C), dall’esterno

- pavimento

- sistema impermeabilizzante

- massetto cementizio

- isolamento in XPS

- struttura in c.a. antisismica con tecnologia REP

- isolamento in XPS

46 _41
- rasatura e finitura 1 2

Nelle immagini di cantiere alcune fasi della costruzione della struttura opaca e delle logge.

L’involucro è stato realizzato con muratura in biomattone in canapa e calce dello spessore di 40 cm, isolato con pannelli di canapa e finito internamente e all’esterno con intonaci in calce e canapa. Come in Case di luce, anche qui si è utilizzato il sughero bruno espanso che evidenzia e sottolinea le logge che si aprono nelle ville e negli appartamenti. I frangisole sono realizzati in bio-wpc, un materiale composto principalmente da cloruro di polivinile – riciclato e recuperato da scarti e da trucioli di scarto ottenuti da un processo di fabbricazione in cui viene utilizzato il 60% di energia rinnovabile –, lolla di riso e calcare.

PS_Architetture 47

Tecnologia

Canapa e calce

Case nel verde e Case di Luce, attraverso l’uso della canapa nella loro costruzione, hanno sottratto circa 100.000 kg di CO2, valore equiparabile all’anidride carbonica assorbita in 20 anni da 2.000 alberi. La calce, materiale usato sin dai tempi dei Romani, incontra un inerte vegetale, il truciolo di canapa, dando vita a un materiale da costruzione carbon-negative che in questo progetto si sposa con altri materiali naturali a creare un complesso residenziale di appartamenti salubri e con elevato comfort abitativo.

_41 48

PS_Architetture

PS_Architetture è un team di architetti e ingegneri specializzati in ideazione, progettazione e ingegnerizzazione di case naturali ad altissima efficienza energetica nZEB e a bassissimo impatto ambientale con alto comfort interno. Lo studio fonda la sua ricerca progettuale su ambiente, materiali naturali e architettura mediterranea e la sua attività, pura innovazione e sperimentazione applicate all’architettura ecosostenibile, è stata avvalorata da premi nazionali e internazionali (Premio sviluppo sostenibile ECOMONDO 2018; Green Building Solution 2016; CasaClima Awards 2013 e 2016; Energia sostenibile nelle città 2012 URBANPROMO).

In PS_Architetture - ing. Pietro Pedone, arch. Pantaleo Pedone, arch. Massimo Pedone e arch. Eleonora Pedone – collaborano Francesco Tiritiello, Francesco Ricchiuti, Marianna Cosmai, Rosaria Minervini, Antonia Capurso.

Altri progetti
Case di Luce, Bisceglie (BT) – CasaClima Gold. Villa Di Gioia, Bisceglie (BT) – CasaClima Gold.
PS_Architetture 49
Photo Sergio Camplone Photo Sergio Camplone Photo Sergio Camplone
_41 50

Il rispetto è... d’Oro!

All’interno di un’area protetta, una villa unifamiliare coniuga architettura ed energia per rispondere alle esigenze dei committenti che volevano realizzare la propria abitazione secondo standard nZEB e, con un ridotto impatto ambientale e un elevato livello di comfort

Inserita all’interno del Parco Nazionale del Circeo, questa abitazione nasce dalla volontà della committenza di costruire la propria casa con prestazioni energetiche da edificio nZEB e con caratteristiche tali da renderla pienamente compatibile con i vincoli di tutela e di valorizzazione previsti dall’Ente Parco. Pertanto, la scelta del progettista e del consulente energetico è stata quella di realizzare un fabbricato dall’involucro altamente performante, a basso impatto ambientale e dotato di un alto livello di comfort e qualità dell’aria indoor, rispondendo ai requisiti richiesti per la certificazione, poi ottenuta, CasaClima Gold Nature.

Sotto il profilo compositivo, nonostante i numerosi obblighi da rispettare, lo sforzo è stato quello di dare un’identità a un edificio “anonimo” dal punto di vista architettonico e di romperne la staticità, nel rispetto delle caratteristiche proprie del contesto urbano all’interno del quale ci si trovava a operare.

Sorto in seguito alla demolizione e successiva ricostruzione con il mantenimento della sagoma del fabbricato esistente, il nuovo edificio, con struttura intelaiata in c.a., tamponatura in laterizio alveolato e cappotto esterno, è costituito da un piano seminterrato e un piano fuori terra ed è inserito all’interno di un lotto

Federico Lestini 51 Federico Lestini

di terreno di circa 1.000 m2. Il volume complessivo è stato quindi suddiviso in due corpi distinti sovrapposti attraverso un processo di trasformazione della forma basato su superfici planari e parallele. La manipolazione delle geometrie, necessaria per organizzare gli elementi della composizione e creare un’immagine coerente, ha richiesto un preciso e diverso uso del colore al fine di modificare la percezione delle masse e influenzare il peso visivo della forma stessa. Il risul-

tato ottenuto è un volume puro, bianco, che sembra sospeso, un contenitore delle attività della zona giorno che interagisce con l’esterno attraverso ampie superfici vetrate a garantire una forte continuità tra l’interno e il contesto circostante. La permeabilità, elemento caratterizzante degli spazi interni, è rafforzata dall’ingresso rientrante in grado di fornire riparo e accogliere una parte dello spazio esterno nell’ambito dell’edificio.

Progetto architettonico

arch. Federico Lestini, Roma

Strutture

ing. Arianna Secci, Sabaudia (LT)

Direttore dei lavori geom. Davide Martino, Sabaudia (LT); arch. Federico Lestini, Roma

Consulenti geom. Davide Ignazi, Bolzano (BZ)

Impianti

EXRG S.r.l., Mareno di Piave (TV)

Lavori

2017/2019

Certificazione

Superficie utile 228 m2

Trasmittanza media pareti esterne

0,17 W/m²K

Trasmittanza media solaio contro terra

0,19W/m²K

Trasmittanza media copertura

0,20 W/m²K

Trasmittanza media superfici trasparenti

0,78 W/m²K

Fabbisogno energia per riscaldamento

4 kWh/m² anno

In queste due pagine, le immagini sottolineano come le grandi aperture vetrate nell’open space della zona giorno e della cucina permettano di abbracciare il paesaggio circostante con un solo sguardo e come la scala e il camino costituiscano il sistema attorno al quale è definita la distribuzione degli spazi e i collegamenti verticali.

52 _41
CasaClima Gold Nature

La composizione architettonica

Il grande open space del salone, pranzo e cucina è caratterizzato da due punti focali. Il primo, esterno a sud-ovest, è rappresentato dal Monte del Circeo che ne condiziona l’orientamento e il grado di apertura; le ampie superfici vetrate degli infissi a triplo vetro in legno proseguono infatti in direzione del Monte lungo l’angolo che diviene allusivo piuttosto che reale, consentendo al campo spaziale di dilatarsi ed estendersi oltre i piani di chiusura e catturare il panorama particolarmente suggestivo. Il secondo elemento, interno, è rappresentato dal volume pieno del camino e dall’adiacente corpo ideale della scala verticale, la quale funge da connessione con il piano seminterrato della zona notte. Questo sistema camino-scala costituisce il segno di riferimento della

distribuzione in quanto organizza, attraverso la sua regolarità, continuità e presenza, tutte le parti e gli spazi della casa, così come le linee del pentagramma costituiscono una base visiva costante per la lettura delle note. L’elemento compositivo si estende orizzontalmente e verticalmente oltre il piano della copertura e, grazie all’ampio lucernario della scala, il percorso di collegamento verticale diviene un pozzo di luce in grado di illuminare il volume stesso del camino e il piano sottostante della zona notte. L’apertura zenitale della scala ristabilisce un rapporto con l’esterno - e in particolare con il sovrastante tetto verde semi estensivo - e la scala stessa, completamente aperta da un lato, offre continuità visiva e spaziale con gli spazi che unisce.

Federico Lestini 53
54 _41 RAMPA pendenza 14 % N 2.60 intercapedine A A' B B'
Pianta piano terra Pianta copertura Pianta piano seminterrato

Prospetto sud-est

Prospetto sud-est

Prospetto sud-ovest

Prospetto nord-ovest

Prospetto nord-est

Sezione B-B’

Sezione A-A’

Federico Lestini 55 +0.00 +1.12 quota pavimento finito -2.06 quota pavimento finito +4.30 quota pavimento finito -0.10 +0.00 +1.12 quota pavimento finito -2.06 quota pavimento finito +0.00 -2.16 piano finito rampa +0.00 +1.12 quota pavimento finito -2.06 quota pavimento finito +4.30 quota pavimento finito +0.00 +1.12 quota pavimento finito -2.06 quota pavimento finito +0.00 -2.46 +4.30 quota pavimento finito -2.46 +0.00 +1.12 quota pavimento finito -2.06 quota pavimento finito -2.46 +4.30 quota pavimento finito +0.00 +1.12 quota pavimento finito -2.06 quota pavimento finito +4.30 quota pavimento finito -2.16 piano finito rampa -0.10

Il sistema edificio-impianto

L’edificio ha una struttura intelaiata in c.a. tamponata in laterizio e l’isolamento del volume è realizzato con cappotto esterno in fibra di legno, soluzione che ha permesso di eliminare i ponti termici. Il tetto verde incrementa l’inerzia termica della copertura e le ampie superfici vetrate a sud-ovest favoriscono la captazione solare invernale, mentre la presenza di frangisole esterni permette la riduzione dell’irraggiamento estivo.

Un sistema geotermico di superficie sfrutta il calore

del terreno, un impianto fotovoltaico in copertura copre la poca richiesta di energia elettrica della casa e il sistema di recupero delle acque piovane provvede all’irrigazione delle aree verdi esterne e ad alimentare le cassette di scarico dei WC. Infine, la barriera per il gas radon in fondazione e la macchina di ventilazione meccanica controllata centralizzata, che provvede al ricambio d’aria e al riscaldamento e raffrescamento degli ambienti dell’abitazione, assicurano la qualità dell’aria interna.

56 _41

Nella pagina accanto, viste degli elementi schermanti dell’abitazione.

In questa pagina alcune immagini della realizzazione dell’edificio a partire dalle fondazioni con l’impermeabilizzazione, la platea armata, il piano seminterrato, dettagli del cappotto esterno, degli elementi in vetro cellulare in corrispondenza delle aperture e della copertura.

Federico Lestini 57

Copertura (A), dall’esterno

- substrato vegetale e impianto di irrigazione di soccorso

- tessuto filtrante

- strato di accumulo e drenaggio

- strato di protezione

- membrana impermeabile

- pannello in fibra di legno (80 mm)

- freno igrovariabile

- pannello in fibra di legno (60 mm)

- freno igrovariabile

- freno al vapore

- massetto delle pendenze

- massetto

- struttura portante in latero-cemento

- intonaco gesso e sabbia (10 mm)

Parete zona (B), dall’esterno

- intonachino ai silicati di potassio (8 mm)

- rasante (7 mm)

- isolante in fibra di legno (160 mm)

- collante (7 mm)

- blocco laterizio alleggerito con farina di legno (300 mm)

- intonaco gesso e sabbia (10 mm)

Solaio interpiano (C), dall’estradosso

- pavimentazione in legno (15 mm)

- massetto impianti

- isolante acustico al calpestio (5 mm)

- struttura portante solaio in latero-cemento

- intonaco gesso e sabbia (10 mm)

Solaio contro terra (D), dall’estradosso

- pavimentazione in legno (15 mm)

- massetto impianti

- isolante acustico al calpestio (5 mm)

- calcestruzzo armato

- pannello in XPS (160 mm)

- impermeabilizzante (1,5 mm)

- magrone

58 _41 N
A C B
B

Parete contro terra (A), dall’esterno

- impermeabilizzante (1,5 mm)

- pannello in XPS (160 mm)

- collante e rasante (7 mm)

- struttura in c.a.

- collante e rasante (7 mm)

- pannello in XPS (160 mm)

Parete su intercapedine (B), dall’esterno

- intonachino ai silicati di potassio (8 mm)

- collante e rasante (7 mm)

- pannello in XPS (160 mm)

- collante e rasante (7 mm)

- blocco laterizio alleggerito con farina di legno (300 mm)

- intonaco gesso e sabbia (10 mm)

Solaio contro terra intercapedine (C), dall’estradosso

- massetto

- pannello in XPS (100 mm)

- collante e rasante (7 mm)

- calcestruzzo armato

- pannello in XPS (160 mm)

- impermeabilizzante (1,5 mm)

- magrone

1 drenaggio perimetrale con ghiaia

2 vetro cellulare

3 frangisole

4 cassonetto isolato in EPS

5 pannello isolante in EPS

6 PUR

7 striscia polietilene espanso desolidarizzante

Federico Lestini 59 N
C A B 1 2 2 3 4 6 6 5 7 7

Tecnologia

Il cuore impiantistico

La VMC integrata dispone di uno scambiatore passivo a flussi incrociati ad alta efficienza, combinato a un sistema attivo in pompa di calore capace di raffreddare e riscaldare l’aria immessa negli ambienti con contestuale recupero termico sull’aria esausta per la produzione di acqua calda sanitaria ad accumulo con bollitore. Un sistema di pre temperamento geotermico passivo, costituito da uno speciale scambiatore di calore geotermico integrato, sfrutta l’energia presente nel terreno per il preriscaldamento e raffrescamento dell’aria esterna.

Passaggi impiantistici a pavimento.
_41 60
L’impianto fotovoltaico installato sulla copertura

Architetto Federico Lestini

Altri progetti

Dopo varie esperienze professionali e imprenditoriali nel 2016 deposita 3 brevetti comunitari per invenzione industriale relativi a un sistema edilizio modulare componibile nZEB ecosostenibile, ottenendo le licenze di brevetto nei principali paesi a livello mondiale grazie alle quali nel 2018 costituisce la Startup Innovativa EMMEallaENNE S.r.l. Dal 2017 al 2020 è Consigliere Europeo del MBI, istituto USA per lo sviluppo e la commercializzazione dell’edilizia modulare in America, Canada ed Europa. Nel 2017 costituisce la Dromos S.r.l., società di ingegneria che si occupa di servizi integrati di ingegneria e architettura.

Nel 2019 ha realizzato Villa Angelino a Sabaudia, oggetto di questo articolo: certificata CasaClima Gold Nature, gli è valsa il cubo d’oro ai CasaClima Awards 2020. Oggi consulente energetico CasaClima con Master internazionale “CasaClima Bioarchitettura” ed esperto nazionale protocollo Itaca, si occupa di progettazione ecosostenibile e dello sviluppo di innovative soluzioni costruttive green.

Palazzina per uffici, Anagni (FR). Modulo abitativo, Atina (FR).
Lestini 61
Vista della casa dall’ingresso sulla strada. Federico
_41 62

Menichetti+ Caldarelli Architetti; Abitare A+ Abitare contemporaneo Arezzo

Una demolizione e ricostruzione di un fabbricato esistente ha permesso di realizzare un complesso di 10 residenze caratterizzate dall’alta efficienza energetica e dall’ottimo comfort abitativo. Certificato CasaClima Gold, questo edificio regala una nuova visione dell’abitare contemporaneo al quartiere della città toscana in cui è stato costruito

In attesa delle nuove disposizioni in materia di edifici a zero emissioni di CO 2 da parte dell’Unione Europea, è oggi più che mai necessario realizzare edifici in cui la progettazione architettonica sia integrata fattivamente con quella impiantistica al fine di ottenere un’adeguata efficienza energetica e comfort abitativo. E questo è ciò che è avvenuto in questo complesso residenziale di 10 unità abitative che, risultato di una sostituzione edilizia di un fabbricato esistente, ha donato nuova linfa al quartiere in cui è stato realizzato nella città di Arezzo. Fin dalle prime fasi progettuali è apparso indispensabile che concept architettonico e impianti fossero sviluppati simultaneamente e che gli obiettivi prestazionali energetici fossero identificati su calcoli basati su precise simulazioni del comportamento energetico dell’edificio.

Equilibrio, questo il nome del fabbricato, è stato progettato cercando di ridurre quanto più possibile i consumi, scopo raggiunto grazie anche all’utilizzo di tecnologie innovative, come ad esempio

MARE Architetti;
MARE Architetti; Menichetti+Caldarelli Architetti; Abitare A+ 63

il sistema di pareti a cassero in EPS con strato esterno maggiorato. Parallelamente, lo studio bioclimatico prima e l’adozione in seguito di vetrate ad alte prestazioni ha permesso all’involucro di godere di maggiori apporti solari invernali e la configurazione tecnologica ha combinato impianti di generazione a energia tradizionale con sistemi alimentati da fonti rinnovabili.

Infine, l’aver dotato il complesso residenziale di una gestione intelligente degli impianti ha permesso, e permette tutt’ora, di controllare in modo puntuale il comfort interno invernale ed estivo di ogni singola unità abitativa, monitorando attentamente le richieste elettriche e il calore prodotto così da ottimizzare i consumi e raggiungere livelli di efficienza elevatissimi. Tuttavia, manca ancora la sensibilizzazione del mercato e, in particolare, quella degli utenti / acquirenti tipo che sembrano non ancora pronti a edifici di questa qualità, non potendo toccare con mano ciò che non viene percepito visivamente.

Progetto architettonico

MARE Architetti, Sansepolcro (AR); Menichetti+Caldarelli

Architetti, Gubbio (PG)

Strutture

ing. Giorgio Frontani, Arezzo

Direttore dei lavori

arch. Luciano Borgogni, Arezzo

Progetto CasaClima arch. Guido Gallina, Gubbio (PG)

Impianti Abitare A+, Gubbio (PG)

Appaltatore e lavori

Misuri Costruzioni srl, Citerna (PG)

Superficie utile

1.585 m2

Trasmittanza media pareti esterne

0,12 W/m2K

Trasmittanza media solaio contro terra

0,17 W/m2K

Trasmittanza media copertura

0,11 W/m2K

Trasmittanza media superfici trasparenti

1,2 W/m2K

Fabbisogno specifico energia primaria per riscaldamento 3 kWh/m2 anno

Certificazione

• CasaClima Gold

In questa pagina e alla pagina successiva, le viste del complesso Equilibrio evidenziano l’articolazione dei volumi e delle terrazze, frutto di un attento studio bioclimatico.

64 _41
MARE Architetti; Menichetti+Caldarelli Architetti; Abitare A+ 65

I quattro schemi in alto mostrano lo sviluppo dell’articolata volumetria del complesso residenziale; ogni unità abitativa è dotata di uno spazio esterno fruibile che, tutelando la privacy degli occupanti, crea l’adeguata riservatezza. Allo stesso tempo, come visibile dai prospetti alla pagina seguente e dalle foto presenti nell’articolo, lo sguardo è libero di spaziare verso l’esterno senza barriere, grazie all’impiego di parapetti vetrati.

66 _41
Sezione tipo
Piano terra Prospetto est Prospetto ovest Prospetto nord Prospetto sud
Menichetti+Caldarelli Architetti; Abitare A+ 67
Piani superiori
MARE Architetti;

Non solo involucro...

Come già accennato la progettazione degli impianti in questo edificio è stata fin da subito integrata a quella architettonica con il risultato di aver creato le condizioni idonee per il normale svolgimento delle attività quotidiane all’interno dei vari appartamenti. I sistemi di climatizzazione, infatti, sono stati previsti con lo scopo di creare condizioni di benessere abitativo, strettamente correlato al controllo di fattori fondamentali quali: la temperatura dell’aria, la temperatura media radiante, l’umidità relativa, la velocità dell’aria e il rinnovo dell’aria ambiente e filtrazione.

I solai tra le varie residenze e contro terra sono opportunamente isolati e in presenza delle bucature si può osservare il taglio termico e il contro telaio.

68 _41

Alcune fasi della realizzazione del complesso residenziale. Dall’alto a sinistra, il sito di cantiere, il sistema strutturale in pareti a cassero in EPS con strato esterno maggiorato, il placcaggio isolante all’intradosso del solaio interpiano, un dettaglio del foro finestra perfettamente nastrato e un particolare della coibentazione in prossimità di una soglia.

Menichetti+Caldarelli Architetti; Abitare A+ 69
MARE Architetti;

Tecnologia

… ma anche impianti

La scelta della tipologia dell’impianto di riscaldamento e di raffrescamento dell’edificio ha rappresentato un passo importante verso il traguardo della realizzazione di un fabbricato a zero emissioni di CO 2 L’energia richiesta per il funzionamento del sistema impiantistico, con una pompa di calore che produce anche l’acqua calda sanitaria, è da fonti rinnovabili grazie all’impianto fotovoltaico in copertura.

L’impianto fotovoltaico in copertura a servizio della dotazione impiantista delle unità immobiliari.
_41 70
L’impianto di distribuzione di calore radiante a pavimento.

Abitare A+

Società formata da architetti e tecnici altamente specializzati nel settore del risparmio energetico e della sostenibilità ambientale, Abitare A+ opera in gran parte del territorio nazionale, offrendo servizi integrati a privati, aziende, imprese, studi tecnici, rivenditori, agenzie immobiliari ed enti pubblici. Il team multidisciplinare di professionisti ed Esperti Consulenti CasaClima effettua valutazioni costi-benefici e diagnosi finalizzate alla riduzione del fabbisogno energetico. La progettazione di un sistema edificio/ impianti è estremamente complessa ed è possibile solo grazie all’integrazione di saperi ed esperienze che nascono dalla collaborazione attiva di Abitare A+ con università e aziende leader nel settore del risparmio energetico. Nella foto l’arch. Guido Gallina, uno dei soci di Abitare A +.

Altri progetti

Villa unifamiliare nZEB. L’isolamento della copertura della palazzina residenziale.
71
MARE Architetti; Menichetti+Caldarelli Architetti; Abitare A+
72 _41

Un nuovo allineamento

Canegrate (MI)

Realizzata con un sistema completo in c.a.a., questa abitazione si distingue per lo sviluppo in diagonale che caratterizza anche la copertura contrastando l’omogeneità del contesto residenziale circostante

Un elemento di contrasto e innovazione che spicca nel contesto composto da tipiche architetture residenziali. Il progetto di Villa D2 ha perseguito, infatti, due obiettivi: rompere la neutralità del luogo e dare personalità a un ambito omogeneo, aggiungendo una nuova e riconoscibile architettura al tessuto urbano. L’idea di generare un nuovo allineamento, dal fulcro centrale dell’ingresso della villa in obliquo rispetto alla conformazione dell’area, non ha privilegiato un prospetto rispetto a un altro ma, grazie all’originale disposizione, la collocazione del lotto – posizionato all’incrocio di due strade – è stata usata come elemento di forza e novità dell’intero progetto. La nuova disposizione ha creato e definito lo spazio interno della casa sia a livello planimetrico sia a livello volumetrico e ha permesso di tagliare un semplice tetto a capanna in due triangoli che, ruotati e variati di quota, hanno elevato la copertura a elemento architettonico cardine della costruzione.

La villa è stata costruita tramite l’impiego completo di un sistema in calcestruzzo aerato autoclavato, dalle strutture portanti e di tamponamento alle malte, realizzando così un involucro omogeneo. Il doppio tetto inclinato è composto da un’ossatura portante in c.a. con elementi di alleggerimento in EPS, sormontata da una copertura totalmente disaccoppiata in legno, isolata con fibra di

Studio GIOLA 73 Studio GIOLA
©Studio GIOLA

legno e dotata di camera di ventilazione e guaina ad alta riflessione. Il foro finestra presenta falsi telai coibentati su quattro lati, serramenti perimetrali in PVC con triplo vetrocamera e frangisole esterni motorizzati per gestire

al meglio l’irraggiamento solare durante l’arco dell’anno senza rinunciare al confort luminoso interno. L’isolamento controterra è assicurato da un vespaio aerato maggiorato con isolamento in XPS.

Progetto architettonico e D.L. arch. ing. Marco Giola – Studio GIOLA, Casorezzo (MI)

Strutture

ing. Valentina Chinosi – Studio GIOLA, Casorezzo (MI)

Impianti

Michele Bonizzoni, Gallarate (VA)

Appaltatore

Edilmer Srl; Isoall Srl; Emmedi Termoidraulica Snc; FA Eelettronica; Isoenergia Srl

Certificazione

• A4 – CEER LOMBARDIA

Fine lavori 2019

Superficie utile

147,50 m2

Trasmittanza media pareti esterne

0,161 W/m2 K

Fabbisogno energia per riscaldamento Eph,nd

35,21 kWh/m2 anno

Sopra: l’immagine dall’alto dell’abitazione mostra la geometria triangolare delle falde del tetto, ben evidente anche nelle ore notturne grazie all’illuminazione artificiale della stessa casa e a quella pubblica. Nella pagina accanto, viste esterne e interne della villa.

L’allineamento obliquo rispetto al fronte strada ha definito lo spazio interno sia in pianta sia nei volumi, creando prospettive sempre nuove nella grande area living.

74 _41
Pianta piano terra Pianta primo piano ©Studio GIOLA ©Studio GIOLA
Studio GIOLA 75
©Studio GIOLA ©Studio GIOLA ©Studio GIOLA ©Studio GIOLA ©Studio GIOLA ©Studio GIOLA

Il sistema costruttivo

L’utilizzo di un sistema completo in calcestruzzo aerato autoclavato, dai blocchi per tamponamento, alle tramezze per le pareti divisorie alle malte, è stato funzionale a rispondere a tutte le esigenze costruttive permettendo di ottenere omogeneità di materiali e realizzare le assisten-

ze murarie degli impianti con estrema facilità. Oltre ad avvantaggiare le performance tecniche ed energetiche dell’edificio, il sistema consente di ottenere un contributo attivo alla riduzione della CO 2 presente nell’ambiente durante il suo ciclo di vita in opera.

76 _41

Tamponamento perimetrale dall’esterno

- rasatura armata e finitura minerale in pasta (1 cm)

- blocco in c.a.a. (45 cm)

- rasatura armata + gesso (1 cm)

Correzione ponte termico dall’esterno

- rasatura armata e finitura minerale in pasta (1 cm)

- pannello in idrati di silicato di calcio (10 cm)

- pilastro in c.a. della struttura portante (25 cm)

- blocco in c.a.a. sagomato (11 cm)

- rasatura armata + gesso (1 cm)

Studio GIOLA 77
Sezione trasversale

Tecnologia

Gli impianti

La climatizzazione è costituita da una pompa di calore aria-acqua che con l’impianto radiante a pavimento è in grado di riscaldare e raffrescare gli ambienti interni; un bollitore in pompa di calore si occupa, in maniera indipendente, del fabbisogno di ACS. Il sistema di VMC con recupero di calore e il deumidificatore permettono il rinnovo dell’aria e il contemporaneo controllo costante dell’umidità interna dei singoli locali. Su una delle due coperture a triangolo è collocato un impianto fotovoltaico da circa 4,50 kW che copre gran parte del fabbisogno di questa villa completamente gas free.

_41 78
_Ytong

Studio GIOLA

Nato nel 1978, lo Studio GIOLA nei suoi oltre 45 anni di attività ha sviluppato il tema del progetto, dalla nuova costruzione al disegno urbano, analizzandone tutti i molteplici fattori spesso connessi e integrati tra di loro; questo approccio è diventato fondamento della filosofia progettuale dello studio, una filosofia moderna e attenta all’architettura che non tralascia gli aspetti tecnici legati alla sostenibilità, all’alta efficienza energetica, al confort indoor e ai dettagli esecutivi. La gestione di ogni progetto avviene in modo integrato, progettando tutti gli elementi che lo compongono e accompagnando il committente dai primi passi sino alla conclusione dell’opera. L’abitazione monofamiliare di elevata qualità è da molto tempo uno dei pilastri dello Studio.

Altri progetti

Villa due + 1, Casorezzo (MI). Edificio monofamiliare dall’involucro performante e con un’impiantistica di nuova concezione per elevatissimi standard di comfort indoor.

VillA/S, Busto Garolfo (MI). Edificio monofamiliare con ridotti fabbisogni energetici, assolti con un’impiantistica totalmente gas free.

©Studio GIOLA
80 _41

Sinergicamente attiva e passiva

Valtellina (SO)

L’intervento su questa casa in montagna ha privilegiato lo sfruttamento dell’energia solare e strategie passive per ridurre significativamente il fabbisogno energetico. Un risultato testimoniato dalle bollette elettriche, ulteriormente ridotte grazie alla produzione dell’impianto fotovoltaico

La Valtellina è un territorio ospitale e generoso composto da piccoli paesi lungo le Alpi immerso tra zone di vigneti e sentieri che fanno scoprire antichi borghi si trova questo nuovo edificio che è il risultato della riqualificazione, architettonica ed energetica, di una casa bifamiliare degli anni ‘70, parzialmente ristrutturata negli anni ‘90. Il progetto di recupero ha snellito i volumi e i fronti e ha adeguato la copertura in modo da ottenere linee più rigorose ma in grado di creare volumi semplici ed eleganti. Il luogo, lo spazio, la luce, il dettaglio, l’alternarsi delle stagioni, la chiarezza delle forme, il rispetto degli elementi e i segni culturali, unitamente alla contemporaneità sono stati gli elementi essenziali che hanno ispirato l’idea e lo sviluppo del concept, assieme a un’alta qualità del comfort interno e alla sostenibilità, in sinergia con le esigenze del cliente.

Fattore fondamentale della riqualificazione è stato il sole, sfruttandone la radiazione che contribuisce a ridurre la domanda di riscaldamento. Il guadagno energetico per irraggiamento è stato supportato dalla posa del giusto spessore di cappotto e di serramenti ad altissima efficienza, oltre alla cura nella risoluzione dei ponti termici così da minimizzare

Davide Tarca 81 Davide Tarca
Photo © Davide Tarca

la dispersione di calore durante l’inverno. L’estremizzazione dei dettagli ha consentito di non installare alcun tipo di terminale per il riscaldamento nei bagni, ottimizzando anche i costi degli impianti, che sono stati completamente rifatti; sono stati installati un sistema di ventilazione meccanica controllata con recuperatore di calore e una pompa di calore e inseriti moduli fotovoltaici e pannelli solari solari e termici in copertura. Per la realizzazione del progetto sono stati scelti i materiali legati al territorio come il legno di larice naturale, la pietra, il metallo e la calce naturale; quest’ultima è utilizzata anche per la finitura esterna “scazzuolata”, donando un effetto materico molto interessante, a richiamare l’intonaco.

L’importanza del Sole

Il sole non è stato considerato solo dal punto di vista energetico ma anche a livello sensoriale e spaziale per migliorare la percezione degli ambienti e i volumi interni attraverso la luce. Pertanto sono state adeguate alcune aperture e inserite superfici trasparenti di grandi dimensioni al fine di ottimizzare la gestione energetica e l’illuminazione. Inoltre, l’orientamento dell’edificio verso sud e la grande trasparenza creano un rapporto diretto interno-esterno dando vita a relazioni con il contesto naturale escludendo, per quanto possibile, il costruito esistente e instaurando un deciso legame con la vista ritmica dello skyline naturale delle Alpi Orobie, delle Valli laterali e del lago di Como sullo sfondo. Il risultato finale è un ambiente completamente occupato dalla luce naturale che, grazie al sole che invade ogni stanza e che regala un quadro sempre diverso miscelando sapientemente la sua tavolozza di colori, si impossessa ogni giorno degli ambienti raggiungendo ogni angolo e mutando a seconda delle nuvole, del trascorrere delle ore e delle stagioni ma sempre protagonista.

• Standard Passivhaus

Progetto architettonico e DL

Studio bioprogettazionetarca di Davide Tarca, Mello (SO);

F.LY di Ferola Lilliana

Impianti

Studio bioprogettazionetarca di Davide Tarca, Mello (SO)

Appaltatore

Tarca costruzioni, Mello (SO)

Superficie utile

165 m2 (appartamento 1) – 85 m2 (appartamento 2)

Trasmittanza media pareti esterne

0,154 W/m²K (massa superficiale 564 kg/m3)

Trasmittanza media superfici trasparenti

0.75 W/m²K

Fabbisogno energia per riscaldamento

18,61 Kwh/m2anno

82 _41
Photo © Davide Tarca Photo © Davide Tarca
Davide Tarca 83
Primo piano Secondo piano Piano terra Prospetto ovest
Prospetto nord Prospetto sud
Prospetto est

Energia attiva e passiva

A livello energetico il progetto contempla due strategie, una passiva e una attiva. La prima si attua attraverso le grandi aperture che, in inverno, con le schermature completamente aperte/alzate, lasciano entrare la radiazione solare negli ambienti e riscaldare passivamente le stanze; mediante gli impianti solare termico e fotovoltaico è possibile invece riscaldare attivamente l’acqua tecnica e l’acqua calda sanitaria. Con questa sinergia di passivo attivo la casa “funziona” e l’energia che proviene dal sole non viene mai dispersa, poiché grazie alle batterie di accumulo ciò che non è utilizzato durante il giorno viene immagazzinato e usato quando manca il sole; in caso di esubero l’energia in eccedenza viene immessa in rete. Essendo l’edificio in zona di montagna si sarebbe propensi a pensare all’impianto di raffrescamento come a una comodità, un comfort extra, ma non è così. Da alcuni decenni, infatti, anche a queste latitudini è imprescindibile, in fase di progettazione, studiare nel dettaglio l’impianto per il raffrescamento degli ambienti e porre attenzione nella scelta dei materiali coibenti e dei serramenti oltre, naturalmente, all’utilizzo delle schermature solari che durante le lunghe giornate estive evitano il calore dei raggi solari, lasciando libero ingresso alla luce. Questo fa sì che si possa avere un controllo passivo e nelle ore più calde mentre, attraverso l’energia fornita dal fotovoltaico, l’ambiente interno venga raffrescato senza pesare sulla bolletta energetica.

84 _41
Photo © Davide Tarca Photo © Davide Tarca Photo © Davide Tarca

Copertura, dall’esterno

- manto di copertura in lamiera colore grigio

- assito di abete (25 mm)

- camera di aerazione (60 mm)

- isolamento in fibra (20 mm; 50 kg/m3)

- isolamento in fibra (200 mm; 80 kg/m3)

- membrana freno vapore

- perlina

- travetto

1 punto chiodo

2 ventilazione

3 perlina in larice

4 travetto di gronda

Davide Tarca 85
1 2 3 4

Particolare apertura (intervento su esistente)

1 nastro autoespandente

2 taglio mazzette per mantenimento aperture esistenti e per inserimento monoblocco coibentato

3 nastro tenuta all’aria esterno intonacabile

4 cappotto in fibra di legno in doppio strato

5 rasante, rete e finitura in Calce NHL5

6 rasante e incollaggio

7 schermature solari mobili e orientabili

8 soglia davanzale

9 nastro tenuta all’aria intonacabile

10 rasatura mazzetta per adeguamento

Dall’alto a sinistra in senso orario: scassi esterni per il posizionamento del monoblocco coibentato e incasso del frangisole (intervento effettuato tutto dall’esterno con casa abitata); nastro esterno di tenuta al vento sul monoblocco; sigillatura delle tubazioni impiantistiche verso l’esterno; nastro rasabile interno per la tenuta all’aria sul monoblocco.

86 _41 1 7 8 1 9 10 2 3 4 5 6 6

Qualche numero

Il risultato della convenienza economica dell’aver reso totalmente elettrico l’edificio è tangibile anche attraverso l’analisi delle bollette. In un clima di montagna dove solitamente il caminetto a legna veniva messo in funzione da fine settembre a fine aprile, abbinato al riscaldamento a gas nei periodi più freddi, si sono ottenuti i seguenti risultati per le bollette dei mesi invernali e dell’inizio della primavera: dicembre 104 €, gennaio 92 € , febbraio 37 €, marzo/aprile 24,00 €, da cui deve ancora essere detratta la quota della vendita della corrente elettrica in esubero.

Davide Tarca 87
Photo © Davide Tarca Photo © Davide Tarca Photo © Davide Tarca Photo © Davide Tarca

Tecnologia

Impianti

Il completo rifacimento degli impianti ha previsto l’inserimento della VMC e dell’impianto termico (riscaldamento e raffrescamento) con la posa di ventilconvettori nei controsoffitti in appositi cavedi, operazione che ha permesso di minimizzare le opere murarie necessarie per il passaggio degli impianti. Una pompa di calore da 6 kW, abbinata a un contatore di 220 Volt e di 4.5 kW di potenza elettrica, soddisfa il fabbisogno energetico di una famiglia di 4 persone che utilizzano la casa durante tutta la giornata, garantendo 22 C° di temperatura interna durante il periodo invernale.

_41 88

Davide Tarca

Altri progetti

Davide Tarca ha realizzato progetti con particolare attenzione allo studio delle forme verso nuove linee progettuali dell’abitare un luogo, alla trasparenza, al contatto con l’esterno e all’uso del verde. Utilizza i materiali nella loro essenza, senza l’aggiunta di protettivi per le parti strutturali in legno naturale, ferro grezzo e Corten; predilige materiali primari per le finiture come la terra cruda, l’argilla, la calce, la pozzolana e le vernici naturali; la fibra di legno e la canapa per le coibentazioni. Di recente ha implementato i sistemi per la realizzazione di progetti con elevate prestazioni energetiche e con certificazione internazionale Passivhaus. Il tutto per un confort e benessere interno, verso la transizione ecologica.

Studio – edificio Passivhaus.
89
Davide Tarca Photo © Davide Tarca Photo © Davide Tarca
90 ®studioumo.com _41

Vivibilità, comfort ed energia

Torino

Questo edificio multipiano, progettato per diventare un esempio di efficienza energetica, di sostenibilità e di rispetto per l’ambiente, mette assieme una serie di tecnologie per essere il più possibile autosufficiente, producendo energia elettrica e termica da fonti rinnovabili

In zona Mirafiori Sud a Torino, l’edificio multipiano CasaZero è stato progettato per raggiungere standard nZEB e garantire il benessere delle persone e la salvaguardia dell’ambiente, contraddistinguendosi per vivibilità, comfort, efficienza e risparmio. Il progetto nasce con l’obiettivo di unire diverse tecnologie al fine di autoprodurre quanta più energia elettrica e termica possibile da fonti rinnovabili, riducendo il fabbisogno energetico grazie a un isolamento a cappotto di 20 cm, serramenti triplo vetro basso emissivo e un’impiantistica innovativa. La climatizzazione – riscaldamento e raffrescamento – e la produzione di ACS di ogni unità abitativa sono demandate a una pompa di calore; gli appartamenti sono dotati di ventilazione meccanica controllata con recupero di calore a tecnologia passiva e attiva e dispongono di un impianto fotovoltaico autonomo, posto nella facciata a sud e della potenza di 3.3 kWep, il quale produce una parte consistente dell’energia elettrica richiesta. Tutto è gestito da un impianto domotico di ultima generazione in grado di governare tutte le utenze anche da remoto (temperatura, illuminazione, anti-intrusione, tapparelle etc.). Ciò permette agli abitanti di ottenere una considerevole porzione di autoconsumo, riducendo la propria spesa energetica, e di soddisfare la richiesta imposta dalle normative europee di parziale autopro-

Aldo Zirio 91
Aldo Zirio

duzione di energia rinnovabile. L’illuminazione è a LED per le parti comuni e l’acqua piovana viene recuperata e conservata in due cisterne per l’accumulo dell’impianto antincendio e per l’irrigazione del giardino. Date le caratteristiche dell’edificio e la soluzione impiantistica adottata, i progettisti hanno voluto effettuare un approfondimento di studio mediante un calcolo di tipo dinamico, utilizzando un software specifico, per valutare le reali prestazioni del sistema edificio-impianto, a integrazione delle usuali valutazioni progettuali di legge e delle determina-

zioni energetiche incluse nella certificazione CasaClima. È stato così possibile quantificare in maniera puntuale e precisa tutti i fabbisogni termici degli appartamenti con un grado di accuratezza più elevato rispetto ai tradizionali standard di calcolo di tipo stazionario, imputando correttamente i fenomeni di trasmissione del calore e tenendo conto opportunamente sia delle variabili climatiche esterne sia della capacità termica dei materiali, oltre che del singolo comportamento degli utenti. L’edificio è certificato CasaClima A.

Progetto architettonico e D.L. arch. Aldo Zirio, Torino

Progettista energetico ing. Ivan Filippini, Sondrio

Certificatore energetico arch. Samuel Bella, Torre Pellice (TO)

Certificatore CasaClima arch. Ivano Talmon, Torino

Appaltatore

GIPA SpA, Moncalieri (TO)

Lavori 2016

Certificazione

• CasaClima A

Superficie utile 2006 m2

Trasmittanza media pareti esterne

≤ 0,15 W/m2K

Trasmittanza media copertura

≤ 0,15 W/m2K

Trasmittanza media serramenti

≤ 0,7 W/m2K

Fabbisogno energia per riscaldamento

EPgl,nren 6 kWh/m2 anno

92 _41
®studioumo.com ®studioumo.com

Analisi dell’andamento della temperatura e umidità degli ambienti nell’appartamento n. 20.

Analisi dell’andamento della potenza erogata dal sistema nell’appartamento n. 20.

Aldo Zirio 93
®studioumo.com

Sistema impiantistico

Tecnologia

La soluzione impiantistica adottata prevede l’impiego di un sistema di climatizzazione autonomo a tutt’aria mediante aggregato compatto con doppia ventilazione meccanica statica e termodinamica e produzione sanitaria con bollitore, integrato da una piccola resistenza elettrica di post trattamento dell’aria. In tal modo si garantisce la migliore qualità dell’aria interna, oltre all’efficienza energetica in ogni condizione sfruttando appieno la tecnologia di recupero della pompa di calore.

_41 94

Architect Aldo Zirio

Altri progetti

Palazzina residenziale di 5 piani di civile abitazione a bassissimo consumo energetico, Torino. Fine lavori: luglio/ agosto 2023.

Dopo la laurea in Architettura presso il Politecnico di Torino e una parentesi di lavoro all’estero, nel 1988 fonda lo studio Architettura & Design, formato da professionisti in grado di progettare e realizzare nuovi edifici e restauri di ville antiche e che amano la sperimentazione a tutto tondo, dalla progettazione nautica alla realizzazione di complessi residenziali e turistici, passando per restauri e ristrutturazioni. Ogni progetto è sviluppato senza trascurare l’aspetto economico, l’impatto ambientale, lo sviluppo ecocompatibile, la salute e la sicurezza sui luoghi di lavoro. Con l’esperienza acquisita nel settore industriale lo studio immagina e definisce articolate forme architettoniche e dirige lavori di notevoli dimensioni e complessità tecnologica.

Concessionario di auto di alta gamma all-electric, Torino. Fine lavori: ottobre 2022.

Aldo Zirio 95 ®studioumo.com

back page – Eco Quiz

testi e matita di Michele De Beni

Turn static files into dynamic content formats.

Create a flipbook
Issuu converts static files into: digital portfolios, online yearbooks, online catalogs, digital photo albums and more. Sign up and create your flipbook.
azero 41 by EdicomEdizioni - Issuu