how to install juunoo

Page 1

TECHNISCHE DOCUMENTATIE Versie 2022 11 23 - NL

T echnische documentatie

Versie 2022 11 23 - NL

Voorwoord

In de komende 100 jaar zal onze wereldbevolking groeien tot 12 miljard mensen. Al deze mensen hebben nood aan huizen, scholen, kantoren, … De huidige constructiemethodes hebben een immense ecologische impact en zijn verantwoordelijk voor de grootste financiële kost De impact en kost stijgt nog verder omwille van globalisatie en onze hypersnelle samenleving. Hierdoor veranderen gebouwen en ruimtes steeds vaker

Om zowel onze planeet te beschermen als een groeiende bevolking aan te kunnen, zullen we de architectuur totaal moeten heruitvinden. De principes van circulaire economie zijn hierin cruciaal om de ecologische noodzaak te combineren met de economische realiteit.

JUUNOO geeft u de mogelijkheid om dit in de praktijk te realiseren voor compartimentering van ruimtes, waarbij groei of aanpassingen niet telkens moeten leiden tot meer bouwafval en kosten.

JUUNOO doet dit door het slim inrichten van ruimtes, via een gepatenteerd systeem voor binnenwanden. Het is volledig ontwikkeld volgens de principes van de circulaire economie. Het resultaat is een systeem met zeer hoge restwaarde en lage arbeidskosten die ervoor zorgen dat de totale levenscycluskost van een gebouw lager ligt dan met conventionele systemen.

Een foutloze en vlotte opbouw is gegarandeerd door de bouwsnelheid, eenvoud en beperkt aantal onderdelen. Alle modules zijn uitschuifbaar in hoogte, kunnen onderling uitgewisseld worden of simpelweg in een andere lay-out geplaatst worden. Dit resulteert in ruimtes die altijd aanpasbaar zijn.

De ‘look & feel’ van een JUUNOO wand is volledig in handen van de architect en bouwheer. Alle gangbare afwerkingsplaten kunnen reversibel en stevig op JUUNOO gemonteerd worden Ook isolatiematerialen en nutsvoorzieningen vormen geen enkel probleem. Deze vrijheid in afwerking zorgt ervoor dat uw ruimtes niet enkel vandaag performant & esthetisch zijn, maar ook in de toekomst voldoen aan alle eisen & trends.

Vanuit JUUNOO hebben we een eerste stap gezet met de ontwikkeling, certificering en lancering van dit product. Laat ons nu starten met samen als partners te werken en ervoor zorgen dat wij de generatie worden die de circulaire economie groot maakt.

Technische documentatie Versie 2022 11 23 - NL | 1/ 122 Inhoud Voorwoord 0 Inhoud 1 1 Introductie 3 2 Afmetingen 6 3 Modules 13 4 In de wand 35 5 Platen 39
Technische documentatie Versie 2022 11 23 - NL | 2/ 122 6 Afwerkingen 55 7 Deuren 76 8 Probox 81 9 Glas 88 10 Testverslagen 111

1 Introductie Algemene plaatsingsmethodiek met B aseClick paneel

Technische documentatie Versie 2022 11 23 - NL | 3/ 122
Plaats laser op center van de wand. Plaats de eerste I-module Centreer het horizontale en verticale profiel op laser. Fixeer deze module Lijn de tweede module uit met de eerste. Klik de modules in elkaar en centreer het uiteinde op de laser. Fixeer. Vul de wand verder op met I-modules.

Haal de laser weg en fixeer de C-modules. Fixeer alle modules.

Zaag het eerste paneel op maat en kleef het, perfect verticaal, op de modules

Haak het 2de paneel onder 30° in het eerste. Beweeg het paneel naar voor en achter tot het klikt.

Duw het paneel vast op de JUUNOO tapes. Breng de rest van de panelen aan. Gebruik een extra strip JUUNOO tape voor het laatste paneel.

Technische documentatie Versie 2022 11 23 - NL | 4/ 122

Herbruikbaarheid

De JUUNOO-modules en de klikpanelen zijn ontworpen en getest voor meervoudig gebruik of hergebruik.

De verbinding met JUUNOO tape kan probleemloos tot 30 keer gebruikt worden zonder meetbaar verlies in stevigheid. Het stevig aandrukken van de beplating op de modules is belangrijk om een goeie verbinding te garanderen.

Wanneer men gipskarton of vezelplaten tegen de modules schroeft, is het belangrijk om schroeven te gebruiken met een boorpunt. Op die manier ontstaan er minder bramen en kunnen de profielen van de modules vlot over elkaar blijven schuiven. Na 10 keer een plaat op en van de module geschroefd te hebben, wordt de wrijving tussen de schuivende profielen alsnog te groot om efficiënt te kunnen werken.

De verouderde modules kunnen - dankzij onze cash back guarantee - door JUUNOO opgewaardeerd worden. Deze zijn dan in te zetten bij nieuwe projecten. De verouderde klikpanelen worden gerecycleerd tot nieuwe panelen.

Technische documentatie Versie 2022 11 23 - NL | 5/ 122

2 Afmetingen

Afmetingen I- module

Afmetingen C- module

Technische documentatie Versie 2022 11 23 - NL | 6/ 122

Afmetingen D - set: voor enkele deur

De deurset bestaat uit 1 horizontaal topprofiel boven de C- modules, aangevuld met 1, 2 of 3 dwarsprofielen afhankelijk van de hoogte van de C-modules.

Het topprofiel heeft de afmeting van 2 naast elkaar geplaatste I-modules, en zorgt er dus voor dat het het ritme van 600 mm over de ganse wand behouden blijft.

Afmetingen DD - set: voor dubbele deur

De DD-deurset bestaat uit 1 horizontaal topprofiel boven de C-modules, aangevuld met 1, 2 of 3 dwarsprofielen afhankelijk van de hoogte van de C-modules.

Het topprofiel heeft de afmeting van 3 naast elkaar geplaatste I-modules, en zorgt er dus voor dat het het ritme van 600 mm over de ganse wand behouden blijft.

Technische documentatie Versie 2022 11 23 - NL | 7/ 122

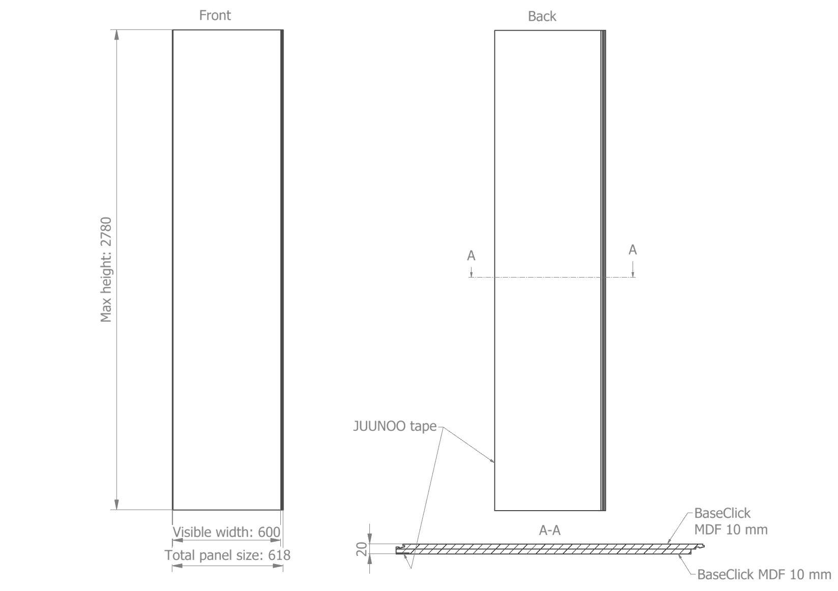
Afmetingen BaseClick

De BaseClick panelen zijn beschikbaar op 2780 en 3500 mm. Deze worden op hoogte verzaagd geleverd afhankelijk van het project. De platen zijn inclusief de JUUNOO blue tapes.

Gewicht:

Oppervlakte masse: 8.11 kg/m²

Hoogte 2780 mm: 13.5kg per paneel

Hoogte 3500 mm: 17 kg per paneel

Technische documentatie Versie 2022 11 23 - NL | 8/ 122

Afmetingen AcouClick

Gewicht: Oppervlakte masse: 16.22 kg/m²

Hoogte 2780 mm: 27.1 kg per paneel

Technische documentatie Versie 2022 11 23 - NL | 9/ 122

Afmetingen SilentClick

Gewicht: Oppervlakte masse: 24.33 kg/m²

Hoogte 2780 mm: 40.5 kg per paneel

Technische documentatie Versie 2022 11 23 - NL | 10/ 122

Generieke a fmetingen van een wand

Wand dikte met BaseClick panelen

Wan d dikte met AcouClick panelen

Technische documentatie Versie 2022 11 23 - NL | 11/ 122

Wandikte met SilentClick panelen

Materiaalgebruik

De JUUNOO modules bestaan uit S250GD – gegalvaniseerd staal. Wij garanderen dat minstens 40% van dit staal uit recyclage komt. Het materiaalverbruik van de medium modules is als volgt:

AutoCAD, Revit, BIM - modellen

Alle elementen kunnen in 2D- of 3D-formaat aangeleverd worden voor detailleringen. Gelieve contact op te nemen met info@juunoo.com voor deze technische tekeningen.

Assistentie kan geboden worden bij het uittekenen van projecten met het JUUNOO systeem.

Technische documentatie Versie 2022 11 23 - NL | 12/ 122
Medium grootte Nieuw materiaal Gerecycleerd materiaal totaal C-module 2,3 kg 1,5 kg 3,8 kg I-module 2,9 kg 2,0 kg 4,9 kg D-set 1,5 kg 1,0 kg 2,5 kg

3 Modules Werking I- module

Bovenkant: uitsparing in de vorm van een “dak”. Onderkant: uitsparing in de vorm van een “huis”.

De modules worden opgevouwen geleverd. Klap de horizontale profielen open.

Technische documentatie Versie 2022 11 23 - NL | 13/ 122
3.1.1 Boven - en onderkant van een I- module 3.1.2 Plaatsen van de I- module Open de Quickspan en schuif de module open. Span de module tussen vloer en plafond door de Quickspan te sluiten
Technische documentatie Versie 2022 11 23 - NL | 14/ 122
Koppel de tweede module aan de eerste. De profielen hebben ‘flapjes’ die het uitlijnen eenvoudig maken Klik de horizontale profielen in elkaar. Open de Quickspan en schuif de module open. Klik het bovenste horizontale profiel in het voorgaande. Span de module op en fixeer. Bouw zo verder!

3.1.3 Hoogte fixeren : Quickspan

Met een open Quickspan stelt u de hoogte van een module traploos in.

De Quickspan functioneert als hefboom zodat u vlot kan werken.

De modules schuiven open en klemmen tussen vloer en plafond. Vanaf nu is de module gefixeerd.

Met een gesloten Quickspan zijn de modules maximaal opgespannen.

Technische documentatie Versie 2022 11 23 - NL | 15/ 122

Werking C- module

3.2.1 Boven - en onderkant van een C - module

Bovenkant: uitsparing in de vorm van een “dak”. Onderkant: uitsparing in de vorm van een “huis”.

Technische documentatie Versie 2022 11 23 - NL | 16/ 122
3.2.2 Plaatsen v an een C- module Klap de horizontale profielen uit. Plaats de C-module in de I-module. Schuif de C-module tegen de hoek Klik de C-module bovenaan in de I-module en fixeer het geheel.

3.2.3 Hoogte fixeren: Quickspan

Met een open Quickspan stelt u de hoogte van een module traploos in.

De modules schuiven open en klemmen tussen vloer en plafond

Startlocatie

3.3.1 Symmetrisch bouwen

Gesloten Quickspan: De hoogte is gefixeerd.

Bij een JUUNOO wand worden de I-modules centraal verdeeld over de wand zodat de afstand tot de I- en C-modules aan beide uiteinden van de wand even lang is

Technische documentatie Versie 2022 11 23 - NL | 17/ 122
I modules staan centraal Start- en stoppaneel worden op maat gezaagd.

3.3.2 Locatie startmodule bepalen met rolmeter

Een rolmeter laat toe om vooraf de groep I-modules fictief te verschuiven over de lengte van de wand om te zien hoe deze symmetrisch kan opgebouwd worden.

Omcirkel op een rolmeter alle veelvouden van 60 cm.

Deze afstanden stellen de breedtes van de horizontale profielen van de I-modules voor.

Eens de rolmeter op de juiste plek ligt, plaats de eerste I-module aan het begin van de rolmeter.

Technische documentatie Versie 2022 11 23 - NL | 18/ 122

3.3.3 Rolmeter gebruiken om wand vlot te plannen

Een rolmeter is een perfect hulpmiddel om rondom deuren of leidingen de modules te plaatsen. Door de meter uit te leggen en te verschuiven kan u heel snel zien hoe alles met elkaar interageert.

Duid deuropeningen en uiteinden van de wand aan op de grond.

Let op dat er slechts 2 fictieve I-modules de deuropening overlappen. Indien de voet van een derde I-module toch in de deuropening zit, knip dan de voet van die I-module bij.

Plaats de I-modules. Steek een topprofiel van de deur op de plaats van de deuropening

3.3.4 Locatie startmodule berekenen

Plaats nu de C-modules op de vloermarkering

Als de rolmeter te kort is kan het handig zijn om de startpositie manueel als volgt te bepalen:

a) Meet de lengte van de wand in cm

vb.: lengte = 260 cm

b) Deel deze lengte door 60 cm

vb.: 260cm/60cm = 4,33

c) Vermenigvuldig de cijfers na de komma met 30 cm.

vb.: 0,33 x 30 cm = 9,9 cm

Technische documentatie Versie 2022 11 23 - NL | 19/ 122

Fixeren van de modules

De Quickspan is heel performant in het tijdelijk vastzetten van de modules. Deze spanning is echter niet groot genoeg om een aparte fixatie van de modules aan de omgeving te vervangen.

3.4.1 Fixeren met sch roeven

De modules zijn boven en onder voorzien van voorgemaakte gaten (Ø 6 mm). Het is voldoende om elke module 1x bovenaan en 1x onderaan te fixeren met een schroef. Afhankelijk van de toepassing kunnen er meerdere schroeven gebruikt worden.

Afhankelijk van het materiaal waartegen de modules gefixeerd worden, wordt een specifiek type schroef aangeraden. Tip:werk met schroeven zonder verzonken kop

Type schroef (suggestie)

Slagplug 5 x 30 mm

Houtschroef 3.5 x 13 mm

Materiaal omgeving

Beton, tegels, …

Hout, laminaat, ….

Schroef met boorpunt 4 x 25 mm

Technische vloer met metalen laag

Teksschroef 4.2 x 13 mm

Metalstuds, ander JUUNOO modules

Technische documentatie Versie 2022 11 23 - NL | 20/ 122

3.4.2 Fixeren met JUUNOO tapes

De wand kan zonder schade aan te brengen gefixeerd worden aan vloer en plafond. Hiervoor worden JUUNOO blue tapes gebruikt. Om beschadiging bij demontage van de tapes te vermijden kan u eerst kwaliteitsvolle schildertape aanbrengen.

De opgespannen modules zorgen ervoor dat de lijmverbinding van de tapes heel erg wordt samengedrukt en een heel sterke fixatie tot stand komt

Optioneel: Breng schildertape aan op alle fragiele oppervlaktes.

Breng eerst de haakzijde van de JUUNOO tapes aan, daarna de luszijde. Het schutblaadje deels verwijderen.

Plaats zoals in een normale situatie de I-module. Om later eenvoudig te kunnen afbouwen, wordt aangeraden om de tape ter hoogte van elke module door te snijden.

Werk de structuur verder af. Bij demontage kan de JUUNOO tape verwijderd worden van de omgeving. Alsook van de modules indien gewenst.

Technische documentatie Versie 2022 11 23 - NL | 21/ 122

Hoeken

3.5.1 Opbouw hoek: detail

Twee JUUNOO C-modules kunnen vlot onder een hoek geplaatst worden. Het is aangeraden om de panelen van de ene wand te laten doorlopen tussen de 2 C-modules.

3.5.2 Opbouw methode

We raden aan om in hoek de C module van de aansluitende wand pas te fixeren na het paneel is gemonteerd. Zo kan 1 bouwteam modules plaatsen en een andere de panelen

Plaats en fixeer 1 modulestructuur. Plaats de haakse structuur, maar fixeer de aangrenzende C-module (blauw) nog niet en schuif ze in naar links.

Breng de panelen aan op de 1ste structuur. Schuif de C-module tegen de panelen en fixeer waar nodig.

Technische documentatie Versie 2022 11 23 - NL | 22/ 122

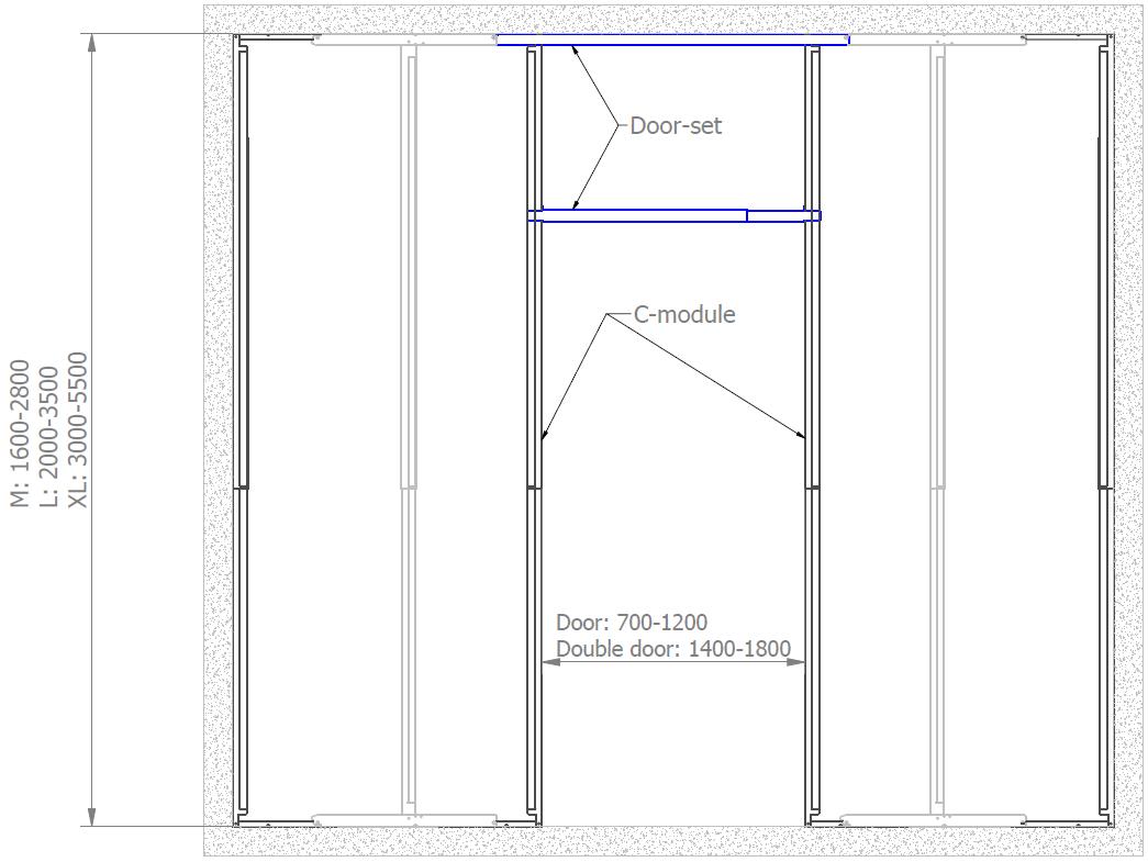
Deuropening: D - set

3.6.1 Algemeen principe om een deuropening te maken

Een deuropening wordt gemaakt door 2 C- modules en een deurset te installeren op de plaats waar normaal gezien 2 I-modules komen. De 2 C-modules staan links en rechts van de deuropening. De deurset zal boven de deuropening gemonteerd worden. De klikpanelen blijven gewoon doorlopen waarbij de JUUNOO blue tapes op de panelen links en rechts van de deur blijven samenvallen op de tapes van de modules.

Technische documentatie Versie 2022 11 23 - NL | 23/ 122

3.6.2 Standaard p laatsing deuropening : D- set

Klik het grote deursetprofiel van 120 cm (= 2 I-modules) in de I-modules en fixeer.

Klik de volgende I-module in het deurprofiel. Let erop dat deze opnieuw waterpas staat.

Plaats de 2 C-modules op de positie van de deur. Deze schuiven bovenaan in het deurprofiel en onderaan in de I-modules

De positie van de C-modules / breedte deuropening kan aangepast worden.

Bij voorkeur de C-module vastgeschroeven aan vloer en plafond.

Bij deuropening van 90cm komen de gaatjes in de I- en C-module overeen. Boor bij andere breedtes een nieuw gaatje.

Bij fixeren van de modules met JUUNOO blue tapes, dient u 2 extra stroken tape te voorzien ter hoogte van de C-modules naast deuropening.

Technische documentatie Versie 2022 11 23 - NL | 24/ 122

Als er niet in de plafond kan geschroefd worden, moet de horizontale bovenzijde van de C-module worden vastgemaakt aan de deurmodule met JUUNOO blue tapes.

Bevestig het telescopische dwarsprofielop de Cmodules op de gewenste hoogte. Het dwarprofiel heeft een flapje waarmee het met een zelftapper kan gefixeerd worden.

Technische documentatie Versie 2022 11 23 - NL | 25/ 122
Werk de structuur af.

3.6.3 Deur links /rechts verschuiven

In bepaalde situaties (brede deuren, specifieke deurposities, …) kan het zijn dat het horizontaal profiel van de I-module in het deurgat komt. Deze kan afgeknipt worden indien nodig.

Deur schuift naar links, waardoor de I-module, links van de deur in de deuropening uitsteekt. Dit stuk moet voor de plaatsing van de module afgeknipt worden.

Bovenaan geeft de structuur geen problemen.

Om de I modules af te knippen gaat u als volgt te werk:

Vouw de laatste Imodule open.

Knip de opstaande randen op het horizontale profiel op de aangegeven markering door

Plooi het stuk profiel over en knip de onderkant.

Op deze manier bekomt u een I/C –module.

Technische documentatie Versie 2022 11 23 - NL | 26/ 122

3.6.4 Plaatsing d eur dicht tegen muur

Wanneer de deur op minder dan 60 cm van de muur staat, komen 2 C-modules tegenover elkaar te staan zonder een I-module ertussen. In dit geval wordt het aangeraden om de Cmodule tegen de muur in te klappen en eventueel de C-module tegen de deur in te korten

Het inkorten van de C- module gebeurt op een gelijkaardige manier als het inkorten van een I-module.

Knip de opstaande randen op het horizontale profiel op de aangegeven markering door

Plooi het stuk profiel over en knip de onderkant

Uiteraard kan het profiel ook op een ongemarkeerde zone ingekort worden.

Technische documentatie Versie 2022 11 23 - NL | 27/ 122

Combinatie met gla zen ramen, glazen deuren en speciale elementen

3.7.1 Generieke afmetingen : open wand met 2 C - module s

Kleine modules (Small, S) zijn optioneel.

3.7.2 Plaatsing van een combinatie wand

Een JUUNOO wand kan vlot gecombineerd worden met glazen wanden, ramen, grote deuren of andere types van openingen. Op locaties waar u andere systemen moet inbouwen eindigt de JUUNOO wand simpelweg met een C- module.

Technische documentatie Versie 2022 11 23 - NL | 28/ 122

Hoge wanden

De plaatsing van een hoge wand is identiek als die van een normale wand.

3.8.1 Generiek e afmetingen: hoge wanden

Technische documentatie Versie 2022 11 23 - NL | 29/ 122

3.8.2 Deur in hoge wand

Meerdere dwarsprofielen worden voorzien afhankelijk van de hoogte. Deze geven extra steun aan de naden van de panelen die boven deuropening komen.

Technische documentatie Versie 2022 11 23 - NL | 30/ 122

Aansluiting verlaagd plafond

3.9.1 Basisaansluiting

Indien de wand op een profiel van het verlaagd plafond komt te liggen, kunnen de modules op dit profiel gefixeerd worden.

Indien de wand niet op een profiel van het verlaagd plafond komt te liggen, kan eerst een houten lat tegen het plafond gefixeerd worden, waartegen de modules dan worden geplaatst.

Technische documentatie Versie 2022 11 23 - NL | 31/ 122

Meestal worden de modules tegen het plafond uitgeschoven en dan pas opgespannen. Maar bij een verlaagd plafond gaat dit moeilijk gezien het verlaagd plafond naar boven zou worden geduwd. Daarom volgende methode:

VAST PLAFOND VERLAAGD PLAFOND

De module stopt net onder verlaagd plafond. Het verlaagd plafond wordt niet naar boven gedrukt. Fixeer met een zelftappende schroef

Technische documentatie Versie 2022 11 23 - NL | 32/ 122
Schuif uit tot volledig tegen het plafond. Schuif uit tot tot ±1 cm onder plafond De module wordt opgespannen tegen het plafond. Klem de Quickspan dicht. De module wordt opgespannen tegen het plafond.

3.9.2 Akoestische aansluiting

Bij plaatsing van de JUUNOO wand onder een verlaagd plafond is het indien nodig aangeraden om deze verticaal en horizontaal te verstevigen . Het werken met bandrasters is evenzeer aangeraden.

Voor het vermijden van akoestische lekken moet de ruimte boven de wand opgevuld worden met een akoestische dam en de naden dicht gekleefd met aluminium tape. De instructies van de fabrikant moeten gevolgd worden bij plaatsing van de akoestische dam.

In een alternatieve opstelling vindt de plaatsing van het verlaagd plafond pas plaats na het plaatsen van de JUUNOO wand. Dit is een performantere opbouw, die echter minder vlot aangepast kan worden.

Technische documentatie Versie 2022 11 23 - NL | 33/ 122

Wanden onder hellend dak

De JUUNOO wanden kunnen onder een hellend dak geplaatst worden, zolang deze binnen het minimum en maximum bereik liggen van de modules. Als de afmetingen hierbuiten vallen biedt maatwerk een vlotte oplossing.

Bij montage onder een hellend dak moeten de I-modules elk apart verticaal gemonteerd worden. Deze klikken niet in elkaar in deze situatie. Bovenaan de modules moeten minstens 2 fixatiepunten per module voorzien worden.

Technische documentatie Versie 2022 11 23 - NL | 34/ 122
3.10.1 Minimum en m axi mum bereik onder hellend dak

4 In de wand Akoestische i solatie

Standaard panelen passen perfect tussen het verticale profiel van de JUUNOO modules.

Technische documentatie Versie 2022 11 23 - NL | 35/ 122

Bekabeling

In de JUUNOO modules zijn vierkante openingen 40 mm x 40 mm voor nutsleidingen voorzien. In de horizontale delen van de modules is telkens 1 opening voorzien, in het verticale profiel zijn 3 openingen voorzien.

Doorheen de openingen in de horizontale profielen kunnen kabels vanuit een technische vloer of vals plafond worden binnengetrokken in de JUUNOO structuur.

Kabels kunnen boven en onder de verticale profielen heen lopen, de maximale hoogte tussen de horizontale en de verticale stijlen is 39 mm.

Technische documentatie Versie 2022 11 23 - NL | 36/ 122

Stopcontacten

4.3.1 Plaatsing

Stopcontacten kunnen zonder problemen in de JUUNOO wand gemonteerd worden.

4.3.2 Herbruikbaarheid optimaliseren

Er wordt aangeraden om het stopcontact in de centrale zone van het paneel te steken, en niet op een naad. Op die manier hoeft er geen uitsparing in de modules gemaakt te worden.

Slecht

Door een uitsparing te maken in de module, wordt deze minder bruikbaar. Ook wordt door deze positie in 2 panelen een gat gemaakt

Goed

Slechts in 1 paneel wordt een gat gemaakt. De module blijft gespaard, wat de herbruikbaarheid doet stijgen

Technische documentatie Versie 2022 11 23 - NL | 37/ 122
Voorzie de nodige kabels. Bevestig de klikpanelen aan de modules. Klok een gat op de gewenste positie. Bevestig het inbouwpotje voor het stopcontact

4.3.3 Akoestische positionering

Let op bij het plaatsen van stopcontacten in een akoestischewand Stopcontacten langs beide zijden van een wand vormen een groot ‘akoestisch lek’ wanneer deze recht tegenover elkaar worden ingebouwd. Beter is om wat plaats te laten tussen twee tegenover elkaar liggende stopcontacten.

Slecht: Geluid kan in 1 rechte lijn door de wand.

Beter:

Het geluid moet een langere weg afleggen door de akoestische wol binnenin

Best:

Het geluid moet een lange weg afleggen en wordt voor een deel tegen gehouden door de module stijl.

Op de markt zijn pasta’s, schuimen, etc. te vinden die het inbouwpotje volledig geluiddicht kunnen maken

Technische documentatie Versie 2022 11 23 - NL | 38/ 122
✓✓

5 Platen

Bevestiging van platen op JUUNOO

5.1.1 Bevestiging met JUUNOO tapes

Bij een combinatie tussen JUUNOO en de klikpanelen kan er gekozen worden voor het gebruik van JUUNOO tapes. Wij raden aan om bij een hogere belasting (> 25 kg per plaat) dit te combineren met schroeven.

Het voordeel van het gebruik van de JUUNOO tapes is de zéér hoge plaatsingssnelheid en de eenvoud om de panelen te demonteren van de wand.

Voor de montage van andere afwerkingspanelen met de JUUNOO tapes raden we u aan om contact op te nemen met de technische dienst van JUUNOO of info@JUUNOO.com.

De JUUNOO tapes kunnen door JUUNOO standaard op de modules en klikpaneel platen voorzien worden. De aannemer heeft ook de optie om de tapes aan te kopen op rollen van 25 m.

JUUNOO tapes, lus & haak

JUUNOO tapes, rol 25m

Montage moet gebeuren op een stofvrije, ontvette ondergrond, bij een temperatuur boven de 20 °C en bij een luchtvochtigheid tussen 40 & 60 %. Na montage moet de JUUNOO tape goed aangedrukt worden. De JUUNOO tape moet minstens 24 uur gerust hebben vooraleer te belasten.

Technische documentatie Versie 2022 11 23 - NL | 39/ 122

5.1.2 Bevestiging met schroeven

Gebruik voor het schroeven van de afwerkingsplaten de gepaste schroeven en tussenafstanden zoals de fabrikant van de platen voorschrijft. Dit is het geval bij bv. brandwerende wanden.

JUUNOO raadt ten sterkste aan om van deze schroeven de variant te gebruiken mét boorpunt. Dit zorgt ervoor dat er geen kraag wordt gevormd in het schroefgat waardoor de profielen vlot over elkaar kunnen blijven schuiven na het verwijderen van de schroef.

Houtschroef met boorpunt Gipsplaatschroef met boorpunt

5.1.3 Aanvulling mbt akoestiek en brand veiligheid

Fermacell schroef met boorpunt

Op vlak van akoestiek is er geen verschil te merken tussen het verbinden met schroeven of met tape. Dit omdat de industriële JUUNOO tapes een heel starre verbinding leveren. Info over de testresultaten bevinden zich in hoofdstuk 10.1. Voor een brandwerende wand moeten er uiteraard schroeven gebruikt worden op platen tegen de structuur gezien de JUUNOO tapes hier niet voor gemaakt zijn.

Technische documentatie Versie 2022 11 23 - NL | 40/ 122

Meet de breedte van de muur tot aan de overmeten rand van de I-module.

Breng het eerste paneel aan, tegen de linker muur en tegen het plafond. Druk het paneel nog niet aan tegen de tape.

M.b.v. een waterpas moet het eerste paneel zo recht mogelijk gehangen worden. Kaleerblokjes kunnen de aansluiting tegen het plafond garanderen.

Technische documentatie Versie 2022 11 23 - NL | 41/ 122 BaseClick & AcouClick monteren
Teken dit af op het startpaneel. Kort het paneel af. Test of het gezaagde paneel past Kleef JUUNOO tape (haak) op de C-modules. Scheur het schutblaadje in 2 en plooi 2 flapjes over tegen de muur.

De panelen worden niet rechtstreeks op de vloer geplaatst, om eventuele probemen met opstijgend vocht te vermijden. Eens waterpas, druk het paneel goed aan

Trek het schut blad van de JUUNOO tape er van tussenuit en druk het paneel aan.

Breng het 2de paneel aan onder een hoek van ±30°.

De tand van het 2e paneel haakt in de groef van het eerste paneel. Wikkel het paneel dicht.

Breng de rest van de panelen aan

Verzaag het laatste paneel op breedte. Voorzie min. 2 mm speling tussen de muur en het paneel.

Technische documentatie Versie 2022 11 23 - NL | 42/ 122

Een plamuurmes is vereist om de JUUNOO tape tussen het eerste paneel en de JUUNOO modules los te maken.

Haak het plamuurmes achter het klikpaneel en rits naar boven en onder terwijl u het paneel naar achteren trekt (evt. met behulp van een zuignap).

Het paneel kan nu opengevouwen worden. De rest van de Klikpanelen kan met een rechte spatel los gemaakt worden. Steek deze tussen het paneel en de module

Beweeg naar boven en beneden om de JUUNOO tape los te maken.

Het paneel kan nu openplooien en los geklikt worden van het aangrenzende paneel.

Technische documentatie Versie 2022 11 23 - NL | 43/ 122 BaseClick & AcouClick demonteren

Gips karton platen

Gipsplaten kunnen perfect op de JUUNOO modules geschroefd worden m.b.v. zwart gecoate schroeven met boorpunt.

Dankzij de extra stevige circulaire voegband en de correcte filler, kunnen de gipsplaten veelvuldig opnieuw gebruikt worden

Plaats de JUUNOO structuur. Gebruik modules zonder JUUNOO tape.

Schroef de gipsplaten aan de structuur mbv schroeven met boorpunt. De boorpunt zorgt ervoor dat zich geen kraag vormt rond de gaatjes. Zo wordt de herbruikbaarheid van de modules verhoogd.

Bedek alle naden en schroeven met de extra stevige circulaire voegband. Laat onderaan ±10cm uitsteken. Bij panelen van 120cm: bekleef ook de centrale rij schroeven.

Zorg ervoor dat kruisende voegbanden elkaar overlappen

Technische documentatie Versie 2022 11 23 - NL | 44/ 122

Strijk de voegen af met verwijderbare voegpasta. Werk de wand af met Gyproc® Promix Premium, Light, Hydro of Airless.

Verberg het flapje achter een plint. Om af te bouwen: Verwijder de plint en trek de voegband los. Hierdoor worden de schroeven opnieuw zichtbaar zodat je de platen en stijlen makkelijk kan demonteren.

De algemene gipsplaat plaatsings- en voegrichtlijnen gelden ook voor gebruik op een JUUNOO structuur.

Bij het bouwen van een gyproc of habito wand, moet een uitzetvoeg met uitzetvoegprofiel voorzien worden om de 15 m.

Plaats de gipsplaten stotend en de voegband mooi gecentreerd.

Deze herbruikbare oplossing kan worden toegepast in de brandwerende en akoestische systemen zonder invloed op de performantie.

Technische documentatie Versie 2022 11 23 - NL | 45/ 122

BUITENHOEK

1. Gipsplaat

2. Circulaire voegband. Laat onderaan een ±10 cm uitsteken

3. Circulaire voegpasta

4. Habito flex 83 (hoekprofiel)

5. Afstrijken met circulaire voegpasta

BINNENHOEK

1. Gipsplaat

2. Circulaire voegband. Laat onderaan een ±10 cm uitsteken

3. Circulaire voegpasta

Technische documentatie Versie 2022 11 23 - NL | 46/ 122

OSB en gipskarton

Schroef de eerste plaat enkel aan de stijlen vast. Zorg dat er ±5 mm speling tussen de vloer en de plaat is en dat de plaat waterpas ligt.

Bevestig de volgende platen, waarbij de rest van de rechtste plaat als begin van de eerste plaat gebruikt wordt. Het is niet noodzakelijk dat de naad op een stijl valt.

Bevestig de gipsplaat met standaard zwarte schroeven (zonder boorkop). Zorg dat de schroeven niet door de OSB komen.

Werk het geheel af als een standaard gipsplaatwand.

Deze opbouw is niet aan te raden bij lange wanden. Door de verschillende uitzettingscoëfficiënt van het hout en de Gyproc kunnen er barsten optreden in de loop van de tijd. Voorzie minimaal om de 15 m een uitzetvoeg

Technische documentatie Versie 2022 11 23 - NL | 47/ 122

Spaanplaat + klikpaneel

Een dikkere spaanplaat van 12 of 18 mm, al dan niet RF, zorgt voor een nog hogere akoestische prestatie, en een verhoogde brandweerstand. Deze wordt met klikpanelen afwerkt. Deze kunnen (nog) niet zoals de AcouClick samen met een klikpaneel in 1 sandwichplaat gecombineerd worden. Het geheel wordt op de modules geschroefd.

Op de modules zonder JUUNOO tape kunnen m.b.v. schroeven met boorpunt panelen vastgeschroefd worden.

De rand van het paneel komt op de hartlijn van de stijlen. Let op: het gebruik van te lange schroeven kan het binnenwerk kapot maken.

Vervolledig het vlak met spaanplaten Het klikpaneel kan met kleine schroefjes en/of met montagelijm in de groef vastgemaakt worden

Gebruik montagelijm voor het laatste paneel. Om de panelen te demonteren, zaag m.b.v. een multitool een randje van het laaste paneel af. De rest valt los te schroeven.

Technische documentatie Versie 2022 11 23 - NL | 48/ 122

Houten platen 120 cm

5.7.1 Houten plaat met tand - groef

Een variant op bovenstaande type platen, zijn houten platen met een tand-groefverbinding. Deze klikken dan in elkaar

Kleef een zwarte MDF-lat (30x10 mm) m.b.v. dubbelzijdige tape onderaan tegen de modules. Dit creëert een schaduwvoeg.

In deze situatie worden de normale modules gebruikt met 1 strook JUUNOO tape. De houten platen zijn ook voorzien van 1 strook tape.

Plaats de plaat met de groef tegen de muur op de schaduwvoeg en zet de plaat m.b.v. kaleerblokjes waterpas. Druk de plaat daarna aan tegen de modules.

Laat de volgende plaat aan de eerste haken. Lijn de hoogte uit met het eerste paneel en draai de plaat dicht. Zorg dat de naad goed dicht gedrukt is.

De platen sluiten op volgende manier aan op de modules.

Werk de wand af. Breek de kaleerblokjes onder de platen af, zodat nog een klein stukje onder de plaat blijft steken. Dit verzekert dat de plaat niet zakt.

Technische documentatie Versie 2022 11 23 - NL | 49/ 122

5.7.2 Houten plaat met vlakke rand

Kleef een zwarte MDF-lat (30x10 mm) m.b.v. dubbelzijdige tape onderaan tegen de modules. Dit creëert een schaduwvoeg..

In deze situatie zijn de modules voorzien van 2 stroken JUUNOO tape i.p.v. 1 strook . De houten platen zijn ook voorzien van tape.

Plaats de houten plaat op de schaduwvoeg en zet de plaat m.b.v. kaleerblokjes waterpas. Druk de plaat daarna aan tegen de modules.

Plaats de volgende plaat en zorg voor een voeg tussen de 2 platen m.b.v. kaleerblokjes onderaan en bovenaan

Druk de plaat aan. Breek de onderste kaleerblokjes af, zodat nog een klein stukje onder de plaat blijft steken. Dit verzekert dat de plaat niet zakt.

Werk de wand af.

Technische documentatie Versie 2022 11 23 - NL | 50/ 122

Schilderen van BaseClick of Acouclick

Naast een afwerking met verschillende decors, hebben de BaseClick en AcouClick panelen ook een variant die eenvoudig, zonder voorbehandeling, te overschilderen is .

Aangeraden is om als eerste laag een acrylaat primer aan te brengen en als tweede laag een kwaliteitsvolle, solvent dragende verf. Merken als Levis, Bosch, … hebben hiervoor een goed aanbod.

Wanneer het oppervlak van een klikpaneel met decor afwerking, doorheen de jaren beschadigd is geraakt, is het mogelijk om deze panelen toch van een laagje verf te voorzien. Schuur hiervoor de wand fijn op met een schuurspons en wat water met ammonia. Na het reinigen hiervan dient dan een primer aan gebracht te worden om deze daarna af te werken met de juiste lak of verf. Voor de beste verf of lak alsook de samenstelling water met ammonia, verwijzen we door naar de fabrikant hiervan om het beste resultaat te bekomen.

Textiel afwerking of whiteboardfolie

JUUNOO kan bekleed worden met verschillende materialen zoals textiel of een whiteboardfolie. Hiervoor zijn er beschilderbare panelen beschikbaar, of men kan oude panelen, waarvan de afwerking door de jaren wat schade heeft opgelopen, een nieuw leven geven.

Textiel.

Maak de panelen stofvrij, breng behangerslijm aan, en stijk het textiel glad over de panelen.

Whiteboardfolie.

Maak de panelen stofvrij, en lamineer de whiteboardfolie er over.

Technische documentatie Versie 2022 11 23 - NL | 51/ 122

Paneel

rond een deur

Teken het deurgat af op de achterkant van de klikpanelen. Doe hetzelfde voor elk paneel aangrenzend aan de deur. Zaag het overtollige deel af.

Zorg ervoor dat u een kleine afstand voorziet tussen paneel en deurkader (zie hieronder)

Breng JUUNOO tape aan op de stijlen van de deur en plooi het schutblad over.

Na het zagen, stof de achterkant van het paneel goed af en ontvet zodat de JUUNOO tape goed kan hechten op het paneel.

Werk de volgende panelen af volgens dezelfde methodiek.

Plaats het paneel niet tegen het deurkader maar zorg ervoor dat er een voeg is van enkele mm.

Deze voeg zorgt ervoor dat er zich geen akoestisch lek vormt

Bovendoen dient de voeg als uitzetvoeg

Technische documentatie Versie 2022 11 23 - NL | 52/ 122

Bij een blokdeur wordt de voeg afgedicht met kit.

Bij een verfdeur dekken de chambranten de voeg af.

Bevestigen aan de JUUNOO wand

Aan de JUUNOO wand kan er een zeker gewicht gemonteerd worden, bv. een tv, tafeltje, etc. De montage kan rechtstreeks in de klikpanelen. Bij gewichten boven 250 kg moet er achter de klikpanelen een extra verstevigende plaat aangebracht worden.

Technische documentatie Versie 2022 11 23 - NL | 53/ 122

Klimatisatie klikpanelen

Om vervorming voor en na de installatie van de klikpanelen te voorkomen, wordt het volgende aangeraden :

• Acclimatiseer de panelen minstens 48 uur in ongeopende verpakking in de ruimte waar ze worden geïnstalleerd. Dit bij normale kamertemperatuur (15-20°C) envochtigheid (50-60%). Hou deze temperatuur en vochtigheid tijdens de installatie constant. De omgeving moet wind- en waterdicht zijn om de temperatuur en vochtigheid onder controle te houden.

• Verwijder de verpakking pas bij de aanvang van de installatie van de klikpanelen.

• De klikpanelen zijn niet geschikt voor klamme en/of vochtige ruimtes, extreem droge ruimtes, of ruimtes met extreem hoge temperaturen.

• Bij het reinigen van de klikpanelen, vermijd overvloedig watergebruik.

Door temperatuur- en vochtverschillen in de ruimte, kan het hout van de klikpanelen uitzetten en krimpen. Het is daarom noodzakelijk om een uitzettingsvoeg van 1 mm per meter wand te voorzien Voor wanden korter dan 8 m, kan dit op de uiteindes van de wand. Deze uitzettingsvoeg kan worden afgewerkt met een aluminium profiel of elastische kit. Voor wanden langer dan 8 m, dienen extra uitzetvoegen voorzien te worden.

Wand korter dan 8 m: Uitzetvoegen kunnen worden voorzien aan de uiteinden van de wand.

Reken 1mm per meter wand.

Afwerken met kit of met een alu-profiel

Wanden vanaf 8 m: Een extra voeg is nodig. Deze kan worden afgewerkt met kit in combinatie met een klein T-profiel

Zonder uitzettingsvoeg bestaat de kans dat panelen loskomen, en dus onregelmatigheden vormen in de wand.

Technische documentatie Versie 2022 11 23 - NL | 54/ 122

6 Afwerkingen B uitenhoeken

6.1.1 Type buitenhoeken

De buitenhoek wordt afgewerkt met een aluminium buitenhoekprofiel .

De geadviseerde methode van buitenhoek met BaseClick & AcouClick panelen is een aluminium profiel met zichtzijde 5x5mm.

De profielen worden in wit, zwart of anodisé geleverd.

Technische documentatie Versie 2022 11 23 - NL | 55/ 122
Optie 1: Aluminium buitenhoek 5x5mm Optie 2: Aluminium buitenhoek 20x20mm.

6.1.2 Montage aluminium hoekprofiel 90°

Zaag een paneel op 45°

Breng JUUNOO tape (haak) aan, trek het papier er af, en ontvet het paneel aan de achterkant.

Breng kit aan op de ‘benen’ van het hoekprofiel, waar er contact is met het paneel. Het profiel hoeft niet vastgelijmd te worden aan de Cmodule.

Schuif het profiel over het paneel.

Plooi het paneel dicht. Schuif het beentje van het profiel tussen het al aangebrachte paneel en de C-module.

Om het geheel goed te laten drogen, span de 2 panelen samen met schildertape

Technische documentatie Versie 2022 11 23 - NL | 56/ 122

6.1.3 Acouclick hoekprofiel 90°

Het standaard hoekprofiel voor het klikpaneel kan ook gebruikt worden om een afgewerkte hoek te maken met de AcouClick. Omdat de AcouClick panelen dikker zijn dan de standaard klikpanelen, wordt een extra uitsparing gemaakt in de onderste laag van de AcouClick.

Snijd eerst het verstek op de juiste breedte.

Maak in de achterste laag met de duikzaag een snede van 8 mm diep op ±30 mm van de hoek.

Het overgebleven strookje kan m.b.v. een beitel makkelijk los gemaakt worden

Technische documentatie Versie 2022 11 23 - NL | 57/ 122

6.1.4 Montage L - profiel 90°

Breng kit aan in de hoek van het L-profiel

Tip:Indien je het profiel aan 1 paneel bevestigt, valt het nadien makkelijker te herbruiken.

Technische documentatie Versie 2022 11 23 - NL | 58/ 122

Hoek > 90°

De opbouw van deze hoek is gelijkaardig aan een hoek van 90°.

6.1.5 Hoek < 90°

De opbouw van deze hoek is de combinatie van een hoek van 90° en een hoek van >90°. De uitwerking is dus gelijkaardig aan die twee

Technische documentatie Versie 2022 11 23 - NL | 59/ 122

B innenhoeken

6.2.1 Aluminium binnenhoekprof iel

Dit profiel wordt tussen de panelen geduwd. Dit kan op pure spanning blijven zitten en is achteraf eenvoudig te hergebruiken

6.2.2 Kitten

Het kitten van de binnenhoek is een snelle en voordelige methode, die akoestisch het beste resultaat geeft.

Technische documentatie Versie 2022 11 23 - NL | 60/ 122

Akoestisch ontkoppelen van een wand

Om te voldoen aan de brand technische en akoestische resultaten is het belangrijk om de JUUNOO modules te ontkoppelen van de vloer en plafond. Verder moet de perimeter van de wand dicht gekit worden (incl. de boven- en onderkant van de plint). Voor het ontkoppelen is een PE-schuimband van 3x30mm nodig.

De modules moeten boven en onder, in de horizontale U-profielen, elke 600mm gefixeerd worden met een schroef of spijkerplug (6 mm > Ø > 4mm). Deze fixatie gebeurt idealiter in de door JUUNOO voorziene openingen, zo dicht mogelijk bij de stijl.

Voor de verticale aansluitingen moet er elke 750mm een fixatie voorzien worden.

De aansluiting tussen de afwerkingsplaten en de vloer moet gebeuren volgens de regels van de fabrikant van de afwerkingsplaten.

Technische documentatie Versie 2022 11 23 - NL | 61/ 122

Aansluiting vloer

6.4.1 Plint

Plinten worden aan de JUUNOO wand bevestigd m.b.v. de JUUNOO Glue. Deze dubbelzijdige tape heeft een zeer hoge hechting vanaf het begin, degradeert in de loop van de tijd nauwelijks, en laat geen schade of lijmresten na bij het verwijderen. Op deze manier zijn de panelen en de plint perfect herbruikbaar.

Maak de onderkant van de wand stofvrij. Op de plint is de JUUNOO Glue reeds aangebracht. Textiel lipjes worden meegeleverd.

Maak het schutblad en de eerste centimeters van de tape los.

Steek een deel van het textiel lipje onder de tape. Zorg ervoor dat het lipje aan de andere kant van de tape wat uitsteekt.

Kleef de losgemaakte tape opnieuw over het lipje

Plooi het lipje dubbel over de tape zodat er een kleine lus ontstaat die uit de plint steekt.

Technische documentatie Versie 2022 11 23 - NL | 62/ 122

Aan de andere kant van de plint, rek een klein stukje van de tape uit en kleeft het opnieuw vast.

Kleef de plint tegen de wand en druk stevig aan.

Voorzie bij de volgende plint ook een stukje uitgerekte tape aan het uiteinde. Kleef deze plint over het uitstekende stukje tape van de vorige plint.

Verwijderen van de plint

Bouw zo verder door elke plint te verbinden met de vorige. Telkens een nieuwe reeks plinten geplaatst wordt, moet een nieuw textiel lipje worden gebruikt.

Door aan het textiel lipje te trekken, wordt de tape uitgerokken en verliest zo zijn kleefkracht. Op die manier wordt de JUUNOO Glue van tussen de plint en het wandpaneel getrokken.

De overlap van de tape tussen 2 plinten zorgt ervoor dat alle plinten in één reeks kunnen worden losgemaakt.

Schade of lijmresten aan plinten of panelen zijn er niet.

Technische documentatie Versie 2022 11 23 - NL | 63/ 122

Tip:

In plaats van een zichtbaar textiel lipje, kan een stukje JUUNOO Glue ook verborgen worden achter een deurkader of in een hoek. Hier loopt u weliswaar het risico dat de uiteindes van de tape niet makkelijk teruggevonden worden bij het demonteren

Een andere mogelijkheid is geen flapje voorzien. Dan moet de plint van het eerste/laatste paneel losgewrikt worden om zo bij een stukje JUUNOO Glue te geraken. Dan wordt het eerste of laatste paneel beschadigd.

6.4.2 V erzonken plint

Een verzonken plint is een plint die i.p.v. op de panelen onder de panelen bevestigd wordt Dit heeft een strakke afwerking, en zorgt voor extra draagkracht van de panelen. Bevestiging met siliconelijm of dubbelzijdige tape.

6.4.3 Schaduwvoeg

Een schaduwvoeg wordt gebruikt als esthetisch element. Een zwart MDF-latje (30 mm x 10 mm) wordt, aansluitend op de vloer, onderaan de modules gekleefd. Daarop worden dan de panelen aangebracht. Bevestiging met siliconelijm of dubbelzijdige tape.

Technische documentatie Versie 2022 11 23 - NL | 64/ 122

Kopse kant afwerking

Wanneer een wand een vrij uiteinde heeft, dan moet de kopse kant van deze wand afgewerkt worden.. Naargelang de esthetische voorkeur zijn verschillende afwerkingen mogelijk.

6.5.1 Afwerking met aluminium profiel

Doorsnede van de kopse zijde afgewerkt met aluminium profiel Werk de wand af met aluminium plinten (dikte 2 mm)

Technische documentatie Versie 2022 11 23 - NL | 65/ 122
Breng aan beide zijden BaseClick paneel aan. De panelen moeten ±5 mm voorbij de C-module komen. Breng kleine dotjes siliconelijm aan in de binnenhoeken van het afdekprofiel. Positioneer het profiel en druk aan.

6.5.2 Afwerking met melamine balk (18 mm x 126 mm)

Laat minimum 1 kant van de module structuur open, zodat de balk gevezen kan worden langs de binnenkant van de structuur.

Bekleef de C-module met JUUNOO tape. Verwijder het schutblad

Maak de wand volledig dicht. Bevestig de plinten.

Werk de naad tussen de klikpaneel en eindbalk af met sanitaire silicone.

Technische documentatie Versie 2022 11 23 - NL | 66/ 122

6.5.3 Afwerking met klikpaneel

Deze opbouw heeft als voordeel dat het decor aan de kopse kant gelijk is als het decor van de wand. De opbouw hiervan is gelijkaardig aan de opbouw van een hoek met klikpaneel,

Technische documentatie Versie 2022 11 23 - NL | 67/ 122

Aansluiting plafond en muur

6.6.1 Schaduwvoeg

Een schaduwvoeg wordt gebruikt als het plafond niet gekit mag worden, of als esthetisch element. Een EPDM-rubber wordt aangebracht op de modules voordat de platen er tegen komen.

Een schaduwvoeg van 5 mm is esthetisch heel aantrekkelijk, maar de voorwaarde is dat het plafond heel effen ligt, om een voeg te krijgen die over de volledige lengte even breed is.

Een schaduwvoeg van 20 mm geeft meer speling voor oneffen plafonds of bv. valse plafonds.

6.6.2 AfKitten

Het afkitten van de bovenste naad wordt tegenwoordig het meest gekozen als afwerking. De snelheid en de akoestische voordelen zijn hier meestal de beslissende factoren.

De voorwaarden zijn dat het plafond relatief effen ligt zodat er geen te grote gleuf ontstaat tussen de panelen en het plafond wanneer het plafond naar boven gaat.

Technische documentatie Versie 2022 11 23 - NL | 68/ 122

6.6.3 Hoekprofiel aluminium

Het hoekprofiel kan, naast een binnenhoek tussen 2 wanden, ook als afwerking tegen het plafond gebruikt worden. De voorwaarde is dat het profiel kan spannen tussen het plafond en de panelen, en dat het plafond vlak is.

6.6.4 Kniklijst

Het kniklijstje is een MDF-latje dat in dezelfde decors te verkrijgen is als de klikpanelen. Het is eenvoudig aan te brengen met transparante kit, en kan grote spelingen tussen het plafond en de panelen opvangen.

6.6.5 Halve kniklijst

Het kniklijstje kan eenvoudig in 2 worden gesneden voor een strakkere afwerking aan bv. valse plafonds

Technische documentatie Versie 2022 11 23 - NL | 69/ 122

Aansluiting details aan bestaande gebouw

6.7.1 Afwerking aan bestaande plint

Plaats de C-module tegen de plint. Fixeer boven- en onderkant van de C-module zo nauw mogelijk tegen de muur.

Opmerking:De C-module mag wat schuin staan. Zolang de eerste I-module wel waterpas begint

Maak in de klikpaneel een uitsparing voor de plint.

Laat het klikpaneel volledig tegen de muur aansluiten.

Voor akoestische redenen, of wanneer de JUUNOO tapes worden gebruikt, is het wenselijk dat de C- module toch volledig tegen de muur aansluit. Andere mogelijkheden om de Cmodule aan de muur te bevestigen zijn de onderstaande.

Maak een uitsparing in de plint ter breedte van de wand.

De wand past in de uitsparing.

Technische documentatie Versie 2022 11 23 - NL | 70/ 122

6.7.2 Afwerking rond een retombé

Fixeer de C-module onder de retombé. Zorg ervoor de I-module waterpas staat. Eventueel zal hier een stuk van geknipt moeten worden.

lager fixeren, indien nodig I-module afknippen

Technische documentatie Versie 2022 11 23 - NL | 71/ 122
C-module

6.7.3 Afwerking rondom buizen

Idealiter worden ventilatiebuizen etc. geïnstalleerd nadat de wand is gezet. Op die manier hoeft men enkel een gat te maken in de wand en de buis erdoor te steken. Het spreekt voor zich dat de afwerking op die manier heel vlot kan gebeuren. Echter komt het voor dat er al leidingen hangen op de werf. Onderstaande methode toont hoe men hiermee kan omgaan.

Plaats alle modules. In de meeste gevallen komen de leidingen tussen de stijlen, en kan men de horizontale profielen boven de leidingen aan het plafond bevestigen.

Na de eerste klikpaneel aangebracht te hebben, wordt een stuk van de groef van het 2de paneel afgesneden.

Ook een stuk van de JUUNOO tapes wordt afgesneden.

Dit paneel wordt zoals gewoonlijk aan het eerste paneel bevestigd.

Breng een fijn lijntje transparante siliconelijm aan in de groef.

Uit het 3de paneel is een uitsparing van de buis gemaakt, met een tolerantie van 3 mm. Breng deze langs onderen aan, maar druk het nog niet tegen de tape van de I-module aan.

Technische documentatie Versie 2022 11 23 - NL | 72/ 122

Zonder de buis zou het paneel een draaiende beweging kunnen maken om in het 2de paneel te klikken. De buis verhindert deze beweging.

De afgesneden groef laat toe om de tand van het 3de paneel zijdelings in het 2de paneel te schuiven. Hiervoor is 3 mm speling nodig rond de buis zelf.

Schuif het paneel eerst vast in de groef van het linkse paneel, vooraleer op de tape aan te drukken.

Hierna kan verder gebouwd worden

lndien het profiel van de I-module niet boven de buis gestoken kan worden, kan een stukje van het profiel afgeknipt worden.

Technische documentatie Versie 2022 11 23 - NL | 73/ 122
De siliconelijm houdt de verbinding op zijn plaats. Breng het bovenste stuk van het paneel aan.

6.7.4 Leidingen komen op de stijl

Als de stijl van de I-module op een buis uitkomt, is het meestal niet mogelijk om een de module op de buis te fixeren.

Breng een balkje aan onder de buizen en tussen de I-modules links en rechts van de centrale module.

Snij zoals hierboven beschreven een strookje af van de groef van het eerste paneel. Breng transparante siliconelijm aan in de groef.

Maak een uitsparing in het paneel. Snij ook hier een strook van de tand af. Breng deze zoals hierboven beschreven aan. Schuif het paneel uiteindelijk naar links om vast te klikken.

Technische documentatie Versie 2022 11 23 - NL | 74/ 122
Bevestig het balkje m.b.v. schroeven met een boorkop. Volg dezelfde procedure voor het volgende paneel. Schuif naar links om te fixeren. Bouw hierna verder.

Aansluiting op venster

Fixeer de C-module zo dicht mogelijk tegen het venster.

Fixeer een houten balkje tegen het raam om het klikpaneel te ondersteunen. Breng JUUNOO tape aan op de C-module.

Tip : Indien het raam diep genoeg is kan ook een Cmodule Small gebruikt worden

Snij de contour van de vensterbank en buizen, gemeten vanaf de eerste I-module uit het paneel.

Wees zeker dat de vorm goed past, vooraleer het schutblad van de tape te trekken.

Tip : alvorens het papier van de JUUNOO tape te trekken, pas het paneel eerst goed of het naar wens aansluit op de contour

Verschillende types k it

Om de beste resultaten te bekomen, moet een correcte kit voor elke toepassing worden gebruikt.

• Montage kit: verlijmen

• Sanitaire kit: voegen afwerken

• Acryl kit: voegen afwerken om daarna te overschilderen

Technische documentatie Versie 2022 11 23 - NL | 75/ 122

7 Deuren JUUNOO schilderdeur

Het is heel eenvoudig om een deur te plaatsen met de JUUNOO modules. Door het flexibele karakter van de modules kunnen deze tegen het losstaande deurkader gefixeerd worden. Het geheel van kader en verschuifbare Cmodules is eenvoudiger te kalleren dan wanneer het kader in een voorgemaakte opening wordt gemonteerd. Deze methode werkt zowel bij schilderdeuren als bij blokdeuren. De methode heeft volgende voordelen:

• Eenvoudiger te kalleren

• Geen kepers nodig

• Geen afstandsschroeven, deurspieën of montageschuim nodig

• Schroeven niet zichtbaar

JUUNOO levert een totaalpakket met alle nodige onderdelen om een schilderbare deur te plaatsen. Het kader en de chambranten worden op maat aangeleverd.

Technische documentatie Versie 2022 11 23 - NL | 76/ 122

Plaatsen van een schilderdeur

Plaats en fixeer de I-modules en het deurprofiel van 120 cm.

Plaats de C-modules in de deuropening, maar fixeer deze nog niet.

Assembleer het kader met bijgeleverde schroeven.

Plaats het kader tussen de C-modules en schuif de C-modules tegen het kader.

Zet de bovenste lat waterpas en fixeer beide Cmodules aan het kader. Eengedetailleerdereuitlegoverhetkallerenwordt hieronderbeschreven.

Hang het deurblad op. Zet de C-module aan de scharnierkant waterpas.

Technische documentatie Versie 2022 11 23 - NL | 77/ 122

Indien er chambranten op het deurkader komen, hoeven de klikpanelen niet perfect aan te sluiten op het kader. Er is een marge van 4 cm mogelijk.

Zorg er sowieso voor dat de panelen niet tegen het deurkader komen, om een akoestisch lek te vermijden.

De chambranten zijn prefab op maat gezaagd. Bevestig deze aan het kader.

Technische documentatie Versie 2022 11 23 - NL | 78/ 122
Fixeer de C-module onderaan en bovenaan. Lijn de C-module en kader aan de slagkant uit met het deurblad. Fixeer deze C-module. Leg de travers op het kader en schuif deze open. Vastschroeven hoeft niet. Bevestig de klikpanelen aan de modules.

Nivelleren van een deur

Tijdens de plaatsing van een deur is het belangrijk aandacht te hebben voor een hellende vloer. Dit kan de deur doen slepen of een lelijke naad tussen deurblad en -kader nalaten. M.b.v. de JUUNOO modules kan het deurkader eenvoudig genivelleerd worden om deze problemen te vermijden. Onderstaand staan enkele extra stappen om het deurkader perfect horizontaal uit te lijnen beschreven

Bij het plaatsen van de C-modules: laat ± 5 mm speling tussen C-modules en deurprofiel. Laat de Quickspans nog open staan.

Schroef eerst de bovenste verticale profielen van beide C-modules aan het kader.

Zet de bovenste zijde van het kader waterpas. Verhoog de zijde die naar beneden hangt door. de Quickspan geleidelijk aan op te spannen.

Schroef het kader aan de onderkant vast tegen beide C-modules. Klap daarna indien nodig de Quickspans volledig dicht.

Hang het deurblad in het deurkader. Zet de onderkant van de C-module aan de scharnierkant waterpas en fixeer de voet.

Technische documentatie Versie 2022 11 23 - NL | 79/ 122

Zet de bovenkant van de deze C-module waterpas en fixeer. Steek een houten blokje tussen de C-module en het deurprofiel indien er een te grote speling over gebleven is

Zet de onderkant van het deurkader op de juiste breedte. Fixeer de voet van de C-module.

Tot slot, fixeer de C-module aan de slagkant. Steek ook hier een houten blokje tussen indien nodig.

Werk de wand verder af met traverse, chambrant en klikpanelen.

Technische documentatie Versie 2022 11 23 - NL | 80/ 122

8 Probox

De JUUNOO wanden kunnen ook in een box concept gebruikt worden: Productivity Box (kortweg Probox). Dit zijn ruimtes die los staan in een kantooromgeving, en waarin men dus akoestisch afgezonderd zit van de rest. Mogelijke toepassingen kunnen zijn: vergaderruimtes of individuele belcellen.

3 types Probox worden standaard aangeboden: de Probox UNO (voor één persoon), de Probox DUO (voor 1 à 2 personen) en de Probox Quattro (voor 4 personen).

Deze zijn voorzien van isolatie, ventilatie, stroompunten, werkblad, etc. Uiteraard is ook een Probox op maat mogelijk. Contacteer ons gerust voor meer info en mogelijkheden.

Grootte, kleur en afwerking kan worden aangepast

De Probox kan omgebouwd worden tot een wand en omgekeerd.

Technische documentatie Versie 2022 11 23 - NL | 81/ 122

Algemeen principe Probox Quattro en Probox op maat

Grotere Proboxen (bv. voor 4 personen) hebben een houten frame als dragende structuur; knoopwerk genoemd. Na het bouwen van dit knoopwerk, is het opvullen met modules en klikpanelen gelijkaardig aan het bouwen van een wand.

Technische documentatie Versie 2022 11 23 - NL | 82/ 122
Leg de basislatten op de grond. Op elk hoekpunt bevindt zich een gat. Schroef op elk hoekpunt de regelbare voeten. Draai de stijlen op de voeten tot op gelijke hoogte. Maak de knoopwerkkubus met 4 identieke plaatjes.

Zet een kubus op elke stijl. Fixeer de kubus met 2 conische pennen

Bevestig de dwarsbalken aan de kubus en fixeer eveneens met de conische pennen.

Plooi de buitenste flapjes om zodat deze later niet hinderen voor de BaseClick.

Bevestig CLS’en rondom het plafondcontour. Hierop wordt later het spanplafond bevestigd.

Plaats de JUUNOO modules tussen de houtstructuur zoals een gewone JUUNOO wand.

Schoor de structuur tijdelijk haaks Doe dit wand per wand.

Bevestig de buitenste BaseClick panelen aan de modules. Deze maken de structuur stijf.

Technische documentatie Versie 2022 11 23 - NL | 83/ 122

de afwerkingslatten met kit. Vul de bovenkant van het plafond op met OSB.

Plaats een spanplafond met bijhorende verlichting, ventilatie en bewegingssensor.

Werk af met plinten, glas en meubilair

Technische documentatie Versie 2022 11 23 - NL | 84/ 122
Monteer de voorste kleine paneeltjes met JUUNOO tape Plaats akoestische isolatie tussen de modules. Bevestig de binnenste BaseClick panelen Vul het plafond op met JUUNOO modules. Bevestig

Algemeen principe Probox UNO & DUO

Bij de Proboxen Uno en DUO worden de modules en panelen, samen met een plafondplaat, geassembleerd tot een op zichzelf staande stevige structuur.

Klik de houten basislatten in elkaar. Schroef de metalen lat aan de onderkant van deze latten

Leg de I-modules uit op de grond en schuif deze uit tot de gepaste hoogte.

Fixeer deze met zelftappende schroeven. Klap de Quickspan dicht.

Plaats de I-modules op de basislatten en fixeer in de voorgemaakte gaatjes.

Leg de plafondplaat op de I-modules. Fixeer de Imodules in de voorgemaakte gaatjes in de plaat.

Plaats en fixeer alle C-modules behalve de 2 stuks die tegen de achterwand moeten komen

Technische documentatie Versie 2022 11 23 - NL | 85/ 122

Zet de achterkant waterpas en kleef de Petac panelen aan de binnenkant tegen de modules.

Plaats de resterende 2 C-modules tegen de Petacpanelen.

Zet de zijkant van de Probox waterpas en bevestig de verstevigingspanelen tussen de modules.

Kleef de Petac-panelen aan de zijkanten binnenin de Probox

Klik en schroef de kopse balken aan de voorkant van de Probox

Bevestig de op voorhand gemaakt klikpanelen tegen de achterzijde.

Technische documentatie Versie 2022 11 23 - NL | 86/ 122

Bevestig de op voorhand gemaakt klikpanelen tegen de zijkanten.

Monteer tot slot het tafelblad en de glazen wand

Technische documentatie Versie 2022 11 23 - NL | 87/ 122

Het JUUNOO Glas kan kosten-efficiënt hergebruikt worden wanneer we het glas standardiseren. De resterende hoogte en breedte van de wand worden aangevuld met de JUUNOO-modules en panelen.

Indien toch vereist, kan het glas ook op maat geleverd worden.

Standaard afmeting glas blad: 900 x 2335 mm (voor opening hoogte 2360 mm)

Gewicht: 68,3 kg voor 66.2(A) glas / 83,3 kg voor 88.2(A) glas

Insta l latie

Benodigd gereedschap:

• Schroef- en boormachine

• Metaalboren (3mm) en eventueel steenboren

• Afkortzaag voor aluminium

• Laser

• Glaslepel (voor het losmaken van de klikprofielen)

• Rubberen hamer

• Glasdrager

• Platenspanners

• Kaleerblokjes in verschillende diktes

• Reinigingsmiddel voor glas + enkele schone vezeldoeken

• Meter

• Breekmes

Technische documentatie Versie 2022 11 23 - NL | 88/ 122
9 Glas Algemeen principe

Variabel

Om geluidslekken te voorkomen, wordt een PE rubber 2x6mm gebruikt

Deze wordt gekleefd op de onderkant van de profielen

Zaag de basisprofielen op maat. Schroef het horizontale basisprofiel op de vloer/plafond. Voorzie dunne kaleerblokjes in het onderste profiel. (methode is gelijkaardig als enkelsporig glasprofiel)

Schroef de vertikale profielen. Snijd eerst een hoekje af van het basisprofiel zodat het klikprofiel kan klikken. (zie 92 - Hoeken)

Technische documentatie Versie 2022 11 23 - NL | 89/ 122
Glaswand 66.2 88.2 66.2 / 88.2 Akoestische absorptie 28
Verwijder
glas
9.2.1
mm 30 mm
dit stukje bij 88.2

Plaats het eerste glasblad. Zorg dat deze waterpas staat. Steek hiervoor indien nodig extra kaleerblokjes onder het glas

Tip: de geplaatste glasbladen kunnen tijdelijk vastgezet worden met een klein stukje klikprofiel

Veeg het stof van de rand af en ontvet. Kleef de G2G (Glass to Glass) Druk stevig aan.

Plaats het 2de glasblad. Voeg indien nodig kaleerblokjes bij. Kleef dit glasblad stevig tegen het eerste glasblad m.b.v. een platenspanner.

Zaag de klikprofielen op maat. Fixeer hiermee het glas Het helpt om tegen het glas te duwen en het klikprofiel met een rubberen hamer op zijn plaats te tikken.

Maak de binnenkant van het glas schoon. Stofzuig het vilt. Plaats de andere zijde van het glas zoals de eerste zijde werd geplaatst.

Technische documentatie Versie 2022 11 23 - NL | 90/ 122

In plaats van in de vloer te schroeven, kan ook de JUUNOO Glue gebruikt worden.

Dit is enkel mogelijk op een vlakke en nette ondergrond. Hierop zijn impacttesten uitgevoerd. (zie achteraan deze bundel)

Ook de verticale glasprofielen kunnen met de tape bevestigd worden. Horizontale glasprofielen bovenaan moeten geschroefd worden.

Bij het gebruik van de JUUNOO Glue, wordt geen PE dichtingsrubber gebruikt.

Glaswand afbouwen

Het losmaken van de klikprofielen wordt gedaan mbv een glaslepel.

Technische documentatie Versie 2022 11 23 - NL | 91/ 122

9.2.2 Hoeken

Een rechtopstaande hoek maken met de glasprofielen gebeurt op volgende manier:

Plaats eerste het horizontale profiel. Snijd een hoekje af van het verticale basisprofiel. Fixeer dit daarna.

Dit hoekje zorgt ervoor dat het horizontaal klikprofiel niet botst tegen het verticaal basisprofiel.

Plaats het klikprofiel op het horizontale basisprofiel. Er is een klik te horen wanneer het vastzit.

Zaag het verticale klikprofiel op maat en klik het vast

Technische documentatie Versie 2022 11 23 - NL | 92/ 122

Een liggende hoek wordt op onderstaande manier gemaakt. Wanneer het klikprofiel aan de binnenkant van de hoek zit, is de methode gelijkaardig.

Snijd en fixeer de basisprofielen in 45° verstek (of andere gewenste hoek) Meet het te snijden klikprofiel en gebruik een restje klikprofiel om de overmeten maat precies te kennen.

Technische documentatie Versie 2022 11 23 - NL | 93/ 122
Snijd de klikprofielen in de juiste hoek en klik vast.

Een T-verbinding wordt op de volgende wijze gebouwd:

Plaats de basisprofielen. Zorg dat er een klikprofiel past tussen de aansluiting van het haakse profiel.

Plaats het glas in het doorlopende profiel.

Snijd de klikprofielen zodat ze uitlijnen met de binnenkant van het aluminium van de haakse basis- en klikprofiel.

Breng de G2G aan op het glas m.b.v. een laser en druk deze goed aan. Leg min. 3 mm kaleerblokjes in het basisprofiel.

Plaats het glas en druk deze heel goed aan tegen de G2G.

Klik het glas vast.

Technische documentatie Versie 2022 11 23 - NL | 94/ 122

Bij een T-verbinding met dubbel glas, blijft het principe hetzelfde. Ter hoogte van de akoestische absorbtie, wordt een stukje klikprofiel ertussen gezet.

9.2.3 Aansluiting in het verlengde van een JUUNOO wand

9.2.3.1 ENK ELE WAND

Het uiteinde van een wand bekleed met BaseClick wordt afgewerkt met een aluminium U-profiel. Tegen dit profiel kunnen allerhande zaken worden aangesloten, waaronder het enkelsporige glasprofiel.

Ligt vlak met plint + JN Glue + textielen flapje

Glasprofiel geschroefd aan het eindprofiel

JUUNOO Glue of schroef op center

BaseClick

De BaseClick panelen steken een beetje uit tegenover de rug van de C-module (max. 8mm). Het aluminium profiel wordt hier over gekleefd met JUUNOO Glue of vastgeschroefd in het center van het profiel 1

Wandeinde of retombé

Het enkele glasprofiel wordt op het center vastgeschroefd.

De buitenste beentjes van het U-profiel liggen vlak met de plint (incl. JUUNOO Glue en het textielen flapje om los te trekken 2)

1 Meer info, zie Afwerking met aluminium profiel, p.65

2 Meer info, zie Plint, p.62

Technische documentatie Versie 2022 11 23 - NL | 95/ 122

9.2.3.2 DUBBELE WAND

Glasprofiel is 8 mm breder dan wand

Ligt vlak met plint + JN Glue + textielen flapje

Geschroefd aan AcouClick of SilentClick

Het overlappende klikprofiel heeft een langer beentje dan de gewone klikprofiel. Deze wordt op dezelfde manier vastgeklikt. Het beentje overlapt de aanliggende klikpanelen zodat oneffenheden in de rand bedekt worden.

Wandeinde of retombé

Het dubbele glasprofiel wordt vastgeschroefd in de AcouClick of SilentClick panelen.

De buitenste beentjes van het overlappende klikprofiel liggen vlak met de plint (incl. JUUNOO Glue en het textielen flapje om los te trekken 3)

Het monteren van het overlappende klikprofiel gebeurt in de volgorde zoals hieronder De aanliggende overlappende klikprofielen sluiten onder 45° aan. De aansluiting van een overlappend klikprofiel en een gewoon klikprofiel is haaks.

9.2.4 Deur

De profielen van de deur worden op maat geleverd. Deze zijn reeds voorzien van een uitsparing voor de schieter van het slot en een kaliber om de fixeergaten van scharnieren af te punten.

Het deurkader wordt in elkaar geschroefd met schroeven 3.9x32 of 38mm met torx cilinderkop (zonder boorpunt). Deze kunnen op www.wurth.be gevonden worden.

Technische documentatie Versie 2022 11 23 - NL | 96/ 122

Alternatief kunnen ook verbindingsstukken gebruikt worden (zie verder). Schroeven zijn echter efficiënter te monteren en de verbinding is iets steviger.

Verbinding met schroeven

Alternatief: verbinding met hoekstukkken

Plaats alle basisprofielen. Laat beneden een opening voor de deur. Zorg ervoor dat alle connectiestukken* er vooraf in zitten.

Klik een klikprofiel met dezelfde breedte als het deurkader in het basisprofiel tegen het plafond. Houd het klikprofiel op zijn plaats met een blokje van 12 mm dik

Steek een basisprofiel over de connectiestukken. Breng JUUNOO Glue aan op de achterkant van het glasprofiel aan de slotzijdevan de deur.

Assembleer het deurprofiel. Steek onderaan 2 connectiestukken.

Technische documentatie Versie 2022 11 23 - NL | 97/ 122
9.2.4.1 INSTALLATIE DEUR KAMERHOOG

Schroef de scharnieren vast aan het deurprofiel. Boor hiervoor een gaatje voor van 3 of 3.5 mm. Gebruik onderstaande schroeven** om de scharnier, deurprofiel en glasprofiel aan elkaar te bevestigen.

Zet het geheel waterpas. Daarna kunnen de connectiestukken aangespannen worden. Het kader is nu klaar om er het deurblad in te hangen.

Plaats het glasblad naast de deur Monteer het verticale klikprofiel. Wat zeepsop op het rubber vermindert de wrijving.

Plaatst de horizontale klikprofielen. Doe hetzelfde aan de andere kant van de deur

Technische documentatie Versie 2022 11 23 - NL | 98/ 122

* De connectiestukken worden vlak geleverd inclusief M5 inbus schroefjes. Deze kunnen op verschillende manieren geplooid worden afhankelijk van verschillende situaties.

M5 stelschroef (inbus 2,5)

Deurprofiel onderaan Deurprofiel bovenaan Glasprofiel in een hoek. Dit is meestal niet noodzakelijk, maar kan in vervelende situaties van pas komen.

** Om de scharnieren vast te maken, worden parkers 3.9x22mm met verzonken kop zonder boorpunt gebruikt. Deze kunnen op Berner.eu gevonden worden.

Technische documentatie Versie 2022 11 23 - NL | 99/ 122

Verschillende aansluitingen: enkele doorsnedes

Vlnr.

• Scharnierkant verticale zijde & glas

• Slotkant verticale zijde & glas

• Horizontaal profiel deur & glasprofiel plafond

• Verticale zijde & volle wand / bestaande wand

• Dubbele glaswand & enkel glazen deur. Er wordt momenteel gewerkt aan een dubbelglas deur die op vlak van akoestische prestaties overeenkomt met de dubbelglas wand.

9.2.4.2 INSTALLATIE VAN EEN DEUR NIET - KAMERHOOG

Wanneer er een glasblad boven een deur wordt geïnstalleerd, wordt een glasprofiel in het horizontaal profiel van het deurkader gestoken.

Installeer alle basis glasprofielen. Voorzie 2 connectiestukken onderaan.

Assembleer het deurkader. Steek de meegeleverde glasprofielen in het deurkader. Kleef daarbij het glasprofiel vast aan de slagkant met JUUNOO Glue. Zorg dat de verstekken van de glasprofielen mooi aansluiten.

Technische documentatie Versie 2022 11 23 - NL | 100/ 122

Schroef de scharnieren vast. Hiermee wordt ook het glasprofiel gefixeerd.

Breng een G2G aan op het glasblad aan de scharnierkant over de volledige lengte. Druk deze tegen het deurkader. Zorg dat het deurkader waterpas staat.

Steek het glasblad boven het deurkader en druk goed tegen het linkse glasblad.

Breng een G2G aan over de volledige lengte van het volgende glasblad. Druk deze ook stevig aan tegen de deurkader. Vervolledig nu de rest van de glaswand.

9.2.4.3 INSTALLATIE DEUR TEGEN VOLLE WAND

Bevestig alle basis glasprofielen aan de omgeving. Merk op dat de zijde van de deuropening tegen de muur niet waterpas staat.

Steek een dikke houten lat (18 mm) in het profiel en teken een waterpas lijn af m.b.v. een laser.

Technische documentatie Versie 2022 11 23 - NL | 101/ 122

Snijd het overtollige hout er af. Steek de lat terug in het glasprofiel.

Bevestig het deurkader met lange schroeven of slagpluggen (rood) samen met de scharnieren. Door de lat staat het deurkader nu waterpas. Doorsnede A-A toont de uiteindelijke opbouw.

Indien de slotkant van de deur tegen een schuine muur zit, kan deze zijde niet worden vast geschroefd omdat de schroeven dan heel zichtbaar zijn. Gebruik daarom het best met wat dotjes montagekit.

Schuif het deurprofiel over het glasprofiel en laat drogen.

Technische documentatie Versie 2022 11 23 - NL | 102/ 122

9.2.4.4 INSTALLATIE VAN EEN DEUR TUSSEN 2 VOLLE WANDEN

De opbouw van een wand tussen twee volle wanden is heel gelijkaardig aan de vorige methode.

Snijd enkel de verticale basis glasprofielen. Fixeer hiervan enkel het profiel aan de slotzijde van de deur. Worst case zijn de verticale zijden niet waterpas.

Steek een dikke houten lat in het profiel, teken een waterpas lijn af m.b.v. een laser en zaag af.

Neem het glasprofiel aan de scharnierzijde en steek deze inclusief de houten lat in het deurkader.

Breng montagekit aan aan de binnenzijde van het deurkader aan de slotzijde. Draai het geheel van de deurkader en glasprofiel met houten lat in de opening.

Technische documentatie Versie 2022 11 23 - NL | 103/ 122
Scharnier zijde Slot zijde

Fixeer met een lange schroef of slagplug de scharnierzijde van het deurkader. Doe dit op een hoogte waar de scharnieren komen, zo wordt de schroefkop bedekt

9.2.5 Deurbeslag

Breng de scharnieren aan op de correcte hoogte. Een klein naadje zal zichtbaar zijn als de aansluitende muren scheef staan

Standaard wordt volgend deurbeslag voorzien. Deze kunnen allen in zwart, wit en geanodiseerd verkregen worden. Naast het onderstaande, kunnen ook valdorpels en deurstoppen worden voorzien.

9.2.5.1 SCHARNIER

Technische documentatie Versie 2022 11 23 - NL | 104/ 122

9.2.6

Bij een circulaire opbouw van een glaswand, is de glaswand standaard 2.36 m hoog. De resterende hoogte van deze wand wordt opgevuld met een retombé. In essentie is de retombé een wand die tegen het plafond wordt gemonteerd. Hieronder kan dan een glaswand geplaatst worden.

Afhankelijk van de hoogte van de retombé, wordt een andere opstelling van modules gebruikt. Hieronder een overzicht.

Retombé is lager dan 700 mm hoog: gebruik horizontaal liggende C-modules.

Technische documentatie Versie 2022 11 23 - NL | 105/ 122
9.2.5.2 SLOTKAST 9.2.5.3 KLINK Retombé Fixeer een C-module tegen het plafond. Hang een 2de C-module er onder op de gewenste hoogte. Fixeer deze met de voeten tegen de wand.

Plaats het isolatiemateriaal en bekleed de Cmodules met klikpanelen of gipskarton.

Schroef het afwerkingsprofiel tegen de onderkant. Zorg dat de schroeven verzonken zitten. Hiertegen komt het glasprofiel.

Als de retombé nog kleiner wordt, kunnen de voetprofielen van de C- modules geknipt of volledig in gevouwen worden, zodat de stijlen dichter bij elkaar kunnen liggen.

De voetprofielen worden bijgeknipt en naar binnen gevouwen.

Deze opbouw heeft een minimum hoogte van 240 mm.

Het voetprofiel van de bovenste C-module wordt ingekort en tegen de muur bevestigd. Het voetprofiel van de onderste C-module wordt volledig ingeklapt. Deze opbouw heeft een minimum hoogte van 50 mm

Retombé is hoger dan 700 mm hoog: gebruik verticaal hangende I- en C- modules.

Fixeer de I- en C-modules tegen het plafond zoals een gewone wand. Klik ze in elkaar

Schuif de modules in of uit tot de gewenste hoogte. Fixeer de stijlen met een zelf borende schroef.

Technische documentatie Versie 2022 11 23 - NL | 106/ 122

Plaats het isolatiemateriaal en bekleed de modules met klikpanelen of gipskarton.

Schroef een afwerkingsprofiel tegen de onderkant. Zorg dat de schroeven verzonken zitten. Hiertegen komt het glasprofiel.

Verbindingen van 90° en 180° kunnen gemaakt worden d.m.v. een houten balkje Deze methode is gelijkaardig bij de verticaal hangende modules.

Een verbinding van 90° Deze methode is gelijkaardig bij de verticaal hangende modules.

Een verbinding van 180°

Technische documentatie Versie 2022 11 23 - NL | 107/ 122

Opmeten van een glaswand

9.3.1 Hoogte

Een standaard glaswand is 2.36 m hoog. Hiervoor zijn de glasbladen 900 mm x 2335 mm Deze hoogte past in ongeveer 80% van de projecten. Zo kan gegarandeerd worden dat bij hergebruik de glasbladen telkens zullen passen.

Gewicht van deze standaard glasbladen:

68,3 kg voor 66.2 en 66.2A glas

83,3 kg voor 88.2 en 88.2A glas

Een standaard deurblad heeft afmetingen 10 x 930 x 2305 mm

Men kan ook kiezen om kamerhoog te werken. Meet daarvoor elke meter de hoogte en breedte van de wand op.

∆ hoogte = max 20mm

A = Standaard glasbladhoogte = 2335 mm

B = Standaard glasbreedte = 900 mm

C = Spannende maat = mediaan plafond hoogte (niet gemiddelde!)

Technische documentatie Versie 2022 11 23 - NL | 108/ 122

Nominale hoogte Min. hoogte Max. hoogte

Min. overlap = 12 mm

Spannende mediaan maat

9.3.2 Breedte

Glasblad hoogte = Spannende maat –25 mm

Nominale breedte Min. breedte Max. breedte

Min. Overlap = 8 mm

Min. overlap = 8 mm

Spannende maat

Glasblad breedte = Spannende maat –25 mm

Vergeet niet de G2G-strip met dikte 4mm!

Min. Overlap = 8 mm

Technische documentatie Versie 2022 11 23 - NL | 109/ 122

9.3.3 Deur in een wand

Spannende maat

Glasmaat = spannende maat – 37 mm

Aanvulling mbt akoestiek Wanneer voor een wand met akoestisch verhoogde waarde wordt gekozen, is het belangrijk dat ook het glas een verhoogde akoestische waarde heeft. Indien dit niet zo is, dan gaat het grootste deel van het geluid ontsnappen via het glas, en dit onafh ankelijk van de performantie van de wand. Algemeen gesproken, mag het verschil in akoestische demping (Rw) niet meer dan 10 dB verschillen.

Technische documentatie Versie 2022 11 23 - NL | 110/ 122

10 Testverslagen

Volle wanden: Akoestische test verslagen – samengevat – daidalos peutz

Technische documentatie Versie 2022 11 23 - NL | 111/ 122

Gedetailleerde rapporten kunnen opgevraagd worden bij de technische dienst van JUUNOO via email info@juunoo.com

Technische documentatie Versie 2022 11 23 - NL | 112/ 122

Glaswanden: Akoestische testverslagen

Getest volgens NBN EN ISO 17025:2017

samengevat

D aidalos P eutz

*Deze waarden zijn simulaties. Gedetailleerde rapporten kunnen opgevraagd worden bij de technische dienst van JUUNOO via email info@juunoo.com.

Technische documentatie Versie 2022 11 23 - NL | 113/ 122
Glas type Rw (C; Ctr) Aansluitend op … 4 Enkel 66.2A Profielbreedte: 30 mm 36 (0; -3) dB BaseClick wand Enkel 66.2 Profielbreedte: 30 mm 35 (-2; -3) dB BaseClick wand Enkel 88.2A Profielbreedte: 30 mm 38 (-1; -3) dB BaseClick wand Enkel 88.2 Profielbreedte: 30 mm 37 (-2; -4) dB * BaseClick wand Dubbel 66.2A Spouw: 75 mm Profielbreedte: 120 mm 50 (-2; -8) dB AcouClick wand Dubbel 66.2A Spouw: 106 mm Profielbreedte: 149
54 (-1; -6) dB * SilentClick wand Dubbel 88.2A Spouw: 80 mm Profielbreedte:
54 (-2; -6) dB * AcouClick wand Dubbel 88.2A Spouw: 102 mm Profielbreedte: 149 mm 57 (-3; -8) dB SilentClick wand Dubbel 66.2A
Spouw:
Profielbreedte:
56 (-2,-7) dB SilentClick wand
mm
127 mm
+ 88.2A
104 mm
149 mm
Technische documentatie Versie 2022 11 23 - NL | 114/ 122
10.2.1 JUUNOO Glazen scheidingswand - Enkel 66.2A glas
Technische documentatie Versie 2022 11 23 - NL | 115/ 122
10.2.2 JUUNOO Glazen scheidingswand - Dubbel 66.2A glas
Technische documentatie Versie 2022 11 23 - NL | 116/ 122 Impacttest r
apporten
WTCB

Volle wanden: FEM - analyse – sterkte - Indurium

Technische documentatie Versie 2022 11 23 - NL | 117/ 122
Technische documentatie Versie 2022 11 23 - NL | 118/ 122 Volle wanden: Brandweerstand Classificatie – Warrington Fire – EI 60
Technische documentatie Versie 2022 11 23 - NL | 119/ 122 Unil in klikpaneel – technische validatie JUUNOO
Technische documentatie Versie 2022 11 23 - NL | 120/ 122
Gelijkwaardigheid vervanging Gyproc® Metal Stud® door JUUNOO

SNEL

Snelle en eenvoudige plaatsing zonder stof of lawaai

MOOI

Esthetisch & kwalitatief in combinatie met top akoestiek

CIRCULAIR

Eindeloos hergebruik in andere opstellingen, ruimtes of gebouwen

Op basis van uw feedback werken wij onze technische info voortdurend bij. Daarom is deze uitgave waarschijnlijk al niet meer up-to-date wanneer u ze in handen krijgt. Voor de meest recente versie verwijzen we graag naar www.juunoo.com/technisch

Of scan:

JUUNOO NV

BLOKKESTRAAT 51

B – 8550 ZWEVEGEM

+32 (0)56 44 18 90

INFO@JUUNOO.COM

WWW.JUUNOO.COM

Turn static files into dynamic content formats.

Create a flipbook
Issuu converts static files into: digital portfolios, online yearbooks, online catalogs, digital photo albums and more. Sign up and create your flipbook.