Hoe maak ik mijn gebouw toekomstgericht

Page 1


Hoe maak ik

mijn gebouw toekomstgericht?

Een praktische gids voor opdrachtgevers

Colofon

Deze publicatie geeft opdrachtgevers een houvast bij het bepalen van toekomstgerichte ambities van hun (ver)bouwproject. Deze publicatie werd uitgevoerd door CERAA asbl en archipelago architects nv in opdracht van de OVAM.

Titel publicatie: Hoe maak ik mijn gebouw toekomstgericht? Een praktische gids voor opdrachtgevers. 2023.

Uitgever: V.U. OVAM, Stationsstraat 110, 2800 Mechelen D/2023/5024/16

Aantal bladzijden: 140

Datum publicatie: november 2023

Trefwoorden: toekomstgericht bouwen, veranderingsgericht bouwen, circulair bouwen, voorbeeldprojecten, ambities, checklist, principes

Auteur: Mieke Vandenbroucke, Joost Declercq, Eliah Mallants, Maarten Lambrechts, Wendy Boswell

Layout: Camille Marot

Contactpersonen: Karlien Wauters, OVAM, karlien.wauters@ovam.be, ovam.vlaanderen.be

Disclaimer

Deze publicatie geeft opdrachtgevers een houvast bij het bepalen van toekomstgerichte ambities van hun (ver)bouwproject. Deze gids vervangt dus geenszins de wetgeving, en bij interpretatie- en toepassingsproblemen is het steeds de wet die primeert. Het is steeds aangeraden een architecten- en/ of studiebureau te contacteren bij de uitwerking van een (ver)bouwproject.

Hoewel de makers van deze publicatie met uiterste zorg de copyrights van de afbeeldingen hebben proberen te achterhalen, kunnen fouten en onvolledigheden niet worden uitgesloten. Als dit laatste het geval zou zijn, kunt u dit melden aan de communicatiedienst van OVAM.

Online versie

Hoe maak ik mijn gebouw toekomstgericht?

Een praktische gids voor opdrachtgevers

Waarom toekomstgericht bouwen?

Toekomstgericht bouwen betekent dat we de capaciteit voor verandering inbouwen. Op deze manier kan een gebouw zich aanpassen aan de veranderende noden van de mensen die erin wonen, werken en leven.

In deze publicatie werd gekozen voor de term ‘toekomstgericht’ in plaats van ‘veranderingsgericht’. Als online zoekterm levert 'toekomstgericht bouwen’ ongeveer 50 keer meer resultaten op en sluit dus beter aan bij onze opzet om een zo breed mogelijk doelpubliek te bereiken.

Een toekomstgericht gebouw kan inspelen op maatschappelijke veranderingen zoals nieuwe gezinssamenstellingen, vergrijzing, nieuwe manieren van werken, mobiliteit, en beantwoorden aan de nood voor meer woningen, scholen en zorg.

Een langere levensduur van een gebouw leidt bovendien tot minder afval en een efficiënter gebruik van grondstoffen en energie. Die efficiëntie resulteert onder meer in een lagere uitstoot van broeikasgassen, beperkter landgebruik en fijn stof en ondersteunt mee de bouwshift.

Naast de positieve milieu-impact, zal een toekomstgericht gebouw langer zijn vastgoedwaarde behouden. Een gebouw hoeft niet meer na 30 jaar gesloopt te worden. Er kan zo een gemeenschap ontstaan van beheerders en gebruikers die zorg dragen voor het gebouw en samen nadenken over de toekomst.

Bij aanvang van elk nieuw (ver)bouwproject moeten we daarom goed nadenken over hoe we op lange termijn omgaan met materialen, energie en investeringen. Toekomstgericht bouwen kan zo op ecologisch, financieel en sociaal vlak renderen.

Leeswijzer

Het doel van de gids is om een inleiding te geven tot toekomstgericht bouwen. Door de lezers actief te betreken en een inzichtte geven in de algemene principes, hopen we dat ze een eerste stap zetten richting een toekomstgericht project.

De gids is opgedeeld in 3 'levels': contextuele analyse, concept en gedetailleerd ontwerp. Deze 'levels' zijn ook terug te vinden in de interregionale duurzaamheidsmeter GRO (vanaf 2024) en het Europese Level(s) raamwerk.

Level 0 – checklist

Contextuele analyse:

Door de huidige en toekomstige noden in kaart te brengen voor gebruikers, buurt en maatschappij, willen we de lezer bewust. maken dat een programma van eisen niet statisch is, maar kan evolueren in de tijd. Met een evoluerend programma van eisen in het achterhoofd, wordt de lezer vervolgens via een checklist geleid naar de toekomstgerichte principes die het meest relevant zijn voor het project.

Level 1 – voorbeeldprojecten

Concept:

De matrix op de volgende pagina toont dat bestaande en nieuwe gebouwen kunnen aangepast worden binnen hetzelfde programma of daarbuiten. Een overzicht van voorbeeldprojecten, geordend volgens hun oorspronkelijke functie, geeft weer hoe toekomstgerichte projecten worden gerealiseerd. We linken elk voorbeeldproject daarom aan enkele toegepaste principes van toekomstgericht bouwen.

Level 2 – algemene princpes

Gedetailleerd ontwerp:

Ten slotte bevat het derde deel een zo volledig mogelijk overzicht van alle toekomstgerichte principes met telkens enkele concrete voorbeelden.

Hoe maak ik mijn gebouw toekomstgericht?

Praktische gids voor opdrachtgevers

Voeg uw eigen project toe aan deze matrix via de OVAM-webpagina. U vindt er steeds de meest recente versie van deze matrix.

N toekomstgerichte nieuwbouwprojecten

Wonen Kantoren Zorg Retail

Wonen - Dethy - Karper - Passiefrijhuis - Mobble N - Ambassade - Copost - Cosmopolitan - Huis Madou

- Martini N - Bracops N - Grand Hospice - PATCH22 N - YALO - Parenthesis complex N - Grand bazar

Kantoren

- PATCH22 N - Circular retrofit lab - Multi - VICTORIA - ZIN - Logopediepraktijk - 't Centrum N - Martini N - Grand Hospice - PATCH22 N

Zorg - Clarenhof - AZ Groeninge - Toontjeshuizen Retail

- PATCH22 N - BRIC - PATCH22 N - Grand Hospice - Grand bazar - Moose in the City - PATCH22 N

Onderwijs - Karreveld - Plurielle

Parkeer ruimte Publ. functies - Gemeentehuis Brummen - LBSN

klik op een van de functies om meteen naar de voorbeeldprojecten te gaan

Onderwijs Parkeerruimte Publieke functies Bedrijfsinfrastructuur

- USQUARE - SBS lofts - Saclay N - Portier 51 - Ambassade - P.NT2 - Vierkantshoeve - Verbiest

- MØDÜLL - LLEXX N - Vakgroep Arch VUB - Mobility Hub N - Saclay N - Gare Maritime - A6K Workspace - Lakenhuis - PUUR - Engineering Office

- Ensorinstituut - Spikdorenhoeve - Hermes Boutique - Gare Maritime - De Potterij

- Go! Talentschoolgebouw - Virga Jesse College - Ensorinstituut - De stadmus N - Vakgroep Arch VUB - KABO Beringen - Bellevue - Loodtoren - Wijnegem - Mobility Hub N - Fietsenparking - Londot3 - Permeke - People's pavilion - DING - Bibliotheek Pelt - Zinneke - De Potterij - Bluecity - PAKT - Circularium - BE HERE

Hoe maak ik mijn gebouw toekomstgericht?

Praktische gids voor opdrachtgevers

Programma van eisen

Contextuele analyse

Toekomstgericht bouwen start met een grondige en kritische analyse van de context, de gegeven randvoorwaarden (bv. kwaliteiten of gebreken van bestaande gebouwen) en het grondig in kaart brengen van de huidige en toekomstige noden voor het project. Niet enkel de context op schaal van de site en het gebouw is belangrijk, maar ook de ruimere stedenbouwkundige en socio-enomische context kan een impact hebben. Als opdrachtgever is het belangrijk om een brede analyse te maken om vervolgens een correcte en realistische vraag naar aanpasbaarheid te kunnen formuleren.

Een toekomstgericht programma van eisen

De huidige & toekomstige noden

Deze pagina toont enkele voorbeelden van situaties waar de opdrachtgever vandaag en in de toekomst mee geconfronteerd kan worden. De noden van de eindgebruikers, van de buurt en van de maatschappij kunnen veranderen doorheen de tijd. Idealiter kan het gebouw telkens worden aangepast om aan deze noden te voldoen. Zo is het programma van eisen niet langer een statisch gegeven, maar kan het, net als het gebouw evolueren in de tijd.

vandaag korte termijn lange termijn

Eindgebruiker

Een jong koppel koopt een rijhuis met een koer. Hun verlanglijstje is lang, hun budget net iets minder. Ze willen graag bovenop de normale leefruimtes, een veilige fietsenstalling, een afgescheiden kantoorruimte. om klanten te ontvangen en een grote ruimte om in het weekend meubels op te knappen

voorbeeld

Hoe maak ik mijn gebouw toekomstgericht? Praktische gids voor opdrachtgevers

Vlakbij is er een fietsbox waarbij via een abonnementsysteem enkele fietsen gestockeerd kunnen worden. Er is ook een co-workingspace, waardoor een individuele kantoorruimte in de eigen woning niet nodig is.

Het koppel krijgt misschien in de toekomst kindjes. Er is dan wat minder tijd voor hobby's, waardoor het ideaal zou zijn om de hobbyruimte op te splitsen in twee kinderkamers, die los van elkaar toegankelijk zijn. Een extra deur, een lichtpunt en enkele stopcontacten, kunnen misschien al bij de eerste verbouwing voorzien worden. Door waterproblemen besluit het koppel de koer te ontharden.

De buurt kampt met als maar grotere waterproblemen en met het hitte-eilandeffect.

We zien vandaag een groeiend aandeel fietsers en mensen die van thuis uit werken.

Door de klimaatopwarming zijn er op korte termijn alsmaar intensievere regenbuien en hittegolven.

De kinderen zijn intussen volwassen en gaan het huis uit. Doordat er al wachtleidingen voorzien waren, kunnen de kinderkamers gemakkelijk omgevormd worden tot een studio.

Een alleenstaande uit de buurt zoekt een betaalbare woning.

We zien op lange termijn een groeiend aandeel aan alleenstaanden.

Een toekomstgericht programma van eisen

Hoe maak ik mijn gebouw toekomstgericht? Praktische gids voor opdrachtgevers

Ga nu zelf aan de slag om de noden van de eindgebruikers, de buurt en de maatschappij in kaart te brengen. U kan nota's maken in de lege kaders door erop te klikken.

vandaag

Eindgebruiker

Ga in gesprek met (potentiële) eindgebruikers van het gebouw, uitbaters, onderhoudstechnici,... om hun noden te kennen, vandaag en morgen.

Welke ruimtes hebben ze vandaag nodig?

Hoe groot dienen deze ruimtes te zijn?

Hebben de gebruikers in de toekomst meer of minder ruimte nodig?

Buurt

Ga in gesprek met de buurt. Een aanbod/ gebrek aan functies kan relaties versterken.

Zijn er synergieën mogelijk? Welke plannen heeft de buurt in de toekomst? Welke stedenbouwkundige voorschriften gelden er?

Maatschappij

Breng de vraag in kaart d.m.v. een marktonderzoek, maatschappelijke trends en evoluties...

Denk aan de vergrijzing van de bevolking, een groeiend aandeel alleenstaanden, thuiswerk, klimaatopwarming,... Hebben deze evoluties invloed op uw gebouw?

korte termijn

lange termijn

Hoe maak ik mijn gebouw toekomstgericht? Praktische gids voor opdrachtgevers

Stap 1

Stap 2

Vink de ambities aan waar u op inzet.

Ambities

Met de noden van de eindgebruikers, de buurt en de maatschappij in het achterhoofd kunnen onderstaande vragen beantwoord worden.

> Breng de ambities in kaart die vandaag relevant zijn

• Is het programma van eisen voldoende afgestemd op de reële noden van de eindgebruiker, de buurt en de maatschappij?

• Zijn er onderbenutte gebouwen en materialen op of rond de site?

Bv. vaak is er een overschot aan kwalitatieve ruimte aanwezig en/of een gebouw in de omgeving dat ontmanteld wordt

• Is het mogelijk om een deel van de individuele noden in de nabije omgeving op te vangen?

Bv. een co-workingspace, een wasserette, een logeerkamer, mobib-punt, polyvalente ruimte

• Bevindt uw project zich op een goede locatie? Dichtbij complementaire voorzieningen, zoals crèches, woningen, scholen, speeltuinen, kantoren, winkels,..., aangesloten op een netwerk van paden, fietsroutes, openbaar vervoer,...

• Zijn er ruimtes in het programma van eisen die onderbezet zullen zijn?

Ga dit na door de bezetting van de ruimtes in kaart te brengen

Stap 3

We raden aan om zeker in te zetten op de ambities die in het blauw aangeduid zijn.

Stap 4

Klik op een van de bolletjes en vind meer info over een bepaald principe van toekomstgericht bouwen.

Indien nog niet

• Zorg voor een divers programma

Indien ja

• Denk aan de renovatie van een gebouw

• Denk aan het hergebruik van componenten

Indien ja

• Denk aan collectieve voorzieningen

Indien nee

• Denk aan omkeerbaar ontwerpen

• Denk aan het gebruik van :

- materialenkringloopsluiting

Indien ja

• Combineer functies in een polyvalente ruimte

• Maak de ruimte collectief

> Breng de ambities in kaart die op korte termijn relevant zijn ongeveer binnen nu en 10 jaar

• Kan het programma van eisen nog veranderen tijdens het bouwproces of in de nabije toekomst?

Bv. door wijzigingen in visie, budget, wijzigende gezinssamenstelling, een bedrijf dat wil uitbreiden, functiewijzigingen van bepaalde ruimtes,...

• Denkt u dat de vraag naar kleinere/grotere ruimtes doorheen de dag kan veranderen?

Bv. kleinere of grotere vergaderzalen

• Denkt u dat er onderdelen van het gebouw zijn die vaak onderhoud nodig hebben of vervangen zullen moeten worden?

Bv. zoals de technieken

• Is het mogelijk dat de mobiliteit van een van de gebruikers van het gebouw tijdelijk/permanent beperkt kan worden op korte termijn?

• Denkt u dat de inrichting van het gebouw op korte termijn aangepast zal worden?

Bv. een nieuwe winkelindeling

> Breng de ambities in kaart die op lange termijn relevant zijn ongeveer binnen 10 en 20 jaar

• Denkt u dat de vraag naar uw programma op uw locatie kan verminderen op lange termijn?

Ga hiervoor bv. ten rade bij de bevoegde gemeentelijke dienst.

• Denkt u dat de vraag naar uw programma op uw locatie kan vermeerderen op lange termijn?

Ga hiervoor bv. ten rade bij de bevoegde gemeentelijke dienst.

• Denkt u dat de klimaatopwarming een invloed zal hebben op het comfort in uw project?

• Moet het gebouw op lange termijn voldoen aan strengere energie-eisen?

Indien ja

• Denk aan uitbreidbaar bouwen

• Denk aan een polyvalente uitwerking

Indien ja

• Denk aan aanpasbare wanden

Indien ja

Indien ja

• Maak het gebouw toegankelijk

Indien ja

• Denk aan een omkeerbaar ontwerpen bij binnenafwerking en planindeling

• Denk aan een gelaagde uitvoering

• Denk aan circulaire business modellen

• Denk aan een polyvalente uitwerking

Indien ja

• Denk aan polyvalente uitwerking

• Maak deze onderdelen toegankelijk Indien ja

• Denk aan een uitbreidbaar gebouw

Indien ja

• Denk aan klimaatadaptief bouwen

Indien ja

• Voldoe direct of zorg voor:

- uitbreidbare technieken en isolatieschil

- een gelaagde uitvoering

- een polyvalente uitwerking

Voorbeeldprojecten

Concept

Op basis van de vaststellingen uit ‘Level 0 – contextuele analyse’ kan verder nagedacht worden over de concepten voor een toekomstgericht project. Welke aanpasbaarheid is relevant? In welke mate? Welke toekomstige functies komen in aanmerking? Wordt er best ingezet op een aanpasbare structuur of een demonteerbare structuur? We tonen met een beknopt overzicht enkele toekomstgerichte projecten om de toepassingen concreet te maken. Voor elk project hebben we gekeken naar zowel de inherente kwaliteiten, zoals een bestaand gebouw met een heldere en daarom aanpasbare structuur, als de toegevoegde kwaliteiten die volgen uit een nieuwe visie op toekomstgericht bouwen.

Hoe maak ik mijn gebouw toekomstgericht? Praktische gids voor opdrachtgevers

Wonen

voorbeeldprojecten

Herbestemming

Elsene, België - 200 m2 architect: Kader studio opdrachtgever: VUB ©KADER studio

Meergezinswoning

NIEUWBOUW

Amsterdam, Nederland - 5.400 m2

waarvan 4800m2 voor huisvesting architect: FRANTZEN et al architecten

opdrachtgever: Lemniskade Projects

©Luuk Kramer

Uitbreidbare technieken en isolatieschil

Om een functieverandering mogelijk te maken zijn enkele wanden 'overgedimensioneerd' en zitten er brandkleppen op ventilatiekanalen waar later een brandwand kan komen.

Toegankelijke onderdelen

De technieken werden deels in opbouw uitgevoerd en deels onder een computervloer. De plint is wegneembaar.

meer info over deze projecten

Eengezinswoning

> Prefab zorgwoning

NIEUWBOUW

Zomergem, België - 105 m2 architect: BAST architects & engineers opdrachtgever: particulier bron: Bast Architects & Engineers

origineel

Gelaagd

De bestaande betonnen portiekstructuur kon volledig hergebruikt worden bij de herbestemming.

Omkeerbaar ontwerpen

De wandopbouw en vloerafwerking zijn demonteerbaar en modulair opgebouwd. Er werd gebruik gemaakt van een systeem bestaande uit een catalogus van prefab elementen. De toegepaste materialen werden gelinkt in een BIMmodel en kregen elk een materiaalpaspoort.

Mariakerke, België - 132 m2 architect: Studio HAAN opdrachtgever: particulier ©Luc Roymans

Omkeerbaar ontwerpen

De vloerverwarmingstegels zijn demonteerbaar. De wanden tussen de woningen zijn demonteerbaar, waardoor ze groter en kleiner gemaakt kunnen worden. Materiaalgebruik werd beperkt door het 'ruwbouw is afbouw' principe toe te passen.

Polyvalent

Alle ruimtes hebben minimaal een hoogte van 4m, kunnen belast worden tot 4kN en de techniekenkoker werd gecentraliseerd. Door deze maatregelen is het mogelijk om de ruimtes later te herbestemmen tot woning of kantoor.

Divers programma

Verschillende functies (retail, kantoren en wonen) werden gecombineerd in één gebouw. De ruimtes werden casco verkocht waardoor de gebruikers zelf de indeling, afwerking, etc. nog konden bepalen. Om er zeker van te zijn dat er in de toekomst geen bezwaren van de overheid zouden zijn tegen een alternatief gebruik, werd er in samenwerking met de gemeente Amsterdam een nieuw soort erfpachtcontract opgesteld.

Toegankelijke onderdelen

De technieken zijn toegankelijk door een demontabele vloerverwarmingstegel.

Evere België - Netto-oppervlakte van de uitbreiding: 54 m2 architect: VLA-architecture opdrachtgever: particulier bron: circulareconomy.brussels

Omkeerbaar ontwerpen

Het gebouw bestaat uit 3 verplaatsbare modules op schroefpalen die terug uit de grond gehaald kunnen worden. De binnenwanden zijn demonteerbaar.

5 10 6

Toegankelijke onderdelen

De verlichting, de elektrische leidingen en de datavoorzieningen zijn verwerkt in de opbouw van de designrails op het plafond.

Polyvalent

Door in een centrale module de technieken en de natte functies, zoals keuken, badkamer en toilet te clusteren kan de kamerindeling gemakkelijk aangepast worden.

Toegankelijk gebouw

De woning is toegankelijk via een hellend vlak. Ook de badkamer is toegankelijk door de integratie van een rolstoeltoegankelijke douche en toilet. Alle ruimtes bevinden zich op één niveau.

origineel

Uitbreidbaar

Het originele gebouw werd opgetopt in CLT, wat een lichte en snelle constructiemethode is door de droge opbouw.

Klimaatadaptief

De compacte, lageenergiewoning heeft een lindeboom die dienst doet als zonnewering. Er is driedubbel glas, een douchewarmtewisselaar en nachtkoeling voorzien.

origineel

Hergebruik

Van het afgebroken bijgebouw werden de bakstenen, de ramen, dorpels, een trap, sanitair, radiator, vloerafwerking, klinkers, linteel en grond hergebruikt.

Omkeerbaar ontwerpen

De structuur van de uitbreiding werd demonteerbaar verbonden met de bestaande structuur. Ook het nieuwe terras kan volledig gedemonteerd worden zonder ingrepen aan het basisvolume.

Aanpasbare ruimtes

De kinderkamers worden gescheiden met gordijnen. Als de kinderen huiswerk maken of slapen gaan ze dicht en terug open als ze samen willen spelen.

Polyvalent

Van een niveauverschil in het gebouw wordt handig gebruik gemaakt: het doet dienst als opbergruimte.

Uitbreidbare/opsplitsbare gebouwen

Door bij de uitbreiding een aparte toegang en interne circulatie te voorzien kan het later ook los van de woning gebruikt worden, bijvoorbeeld voor een vrij beroep, een studentenkamer of als kangeroewoning.

> Adriaan
> Dupontgaarde

Hoe maak ik mijn gebouw toekomstgericht? Praktische gids voor opdrachtgevers

Kantoren

voorbeeldprojecten

meer info over deze projecten

Kleinschalige projecten

> Kantoor META

Antwerpen, België - 346 m2

architect: META opdrachtgever: META architectuurbureau

©Filip Dujardin

origineel

Uitbreidbare gebouwen

Een tweede verdieping werd aangekocht en met een interne spiltrap werden de twee verdiepingen geconnecteerd.

Er zijn individuele werkplekken, een vergaderzaal, een landschapskantoor, een maquettehoek en een serverlokaal 3 5 1 9

Divers programma

origineel

Polyvalent

Het gebouw bestaat uit een skeletstructuur. De refter kan ingezet worden als vergaderzaal.

Aaanpasbare ruimtes

Door de losse werktafels en verhoogde vloer kan de ruimte snel aangepast worden.

Grootschalige projecten

3 > Multi

Brussel, België - 44.000 m2

architect: Conix RDBM

opdrachtgever: Immobel

Bron: Immobel

origineel

Hergebruik

De volledige structuur werd hergebruikt en daarnaast werden nog extra hergebruikmaterialen via externe kanalen toegepast.

Polyvalent

Het atrium kan op verschillende manieren ingevuld worden, net als het dakterras.

Divers programma

Het betreft een kantoorgebouw bestemd voor verschillende huurders. Het bevat een commerciëel programma in de plint en een multifunctioneel atrium.

Uitbreidbare/opsplitsbare gebouwen

Er werd een nieuwe structuur toegevoegd aan de gevel om de verdiepingen te vergroten.

Herbestemming

Molenbeek, België - 330 m2

architect: Hé architectuur opdrachtgever: particulier ©Tim Van de Velde

origineel

Hergebruik

Vloeren, trappen, tegels en schrijnwerk werden ter plaatse hergebruikt. Radiatoren, keukenkasten, gordijnen en meubilair werden ex situ gevonden en gerecupereerd.

Materialenkringloopsluiting

Stro, kurk en leem werden overvloedig gebruikt in het project. Deze materialen kunnen later hergebruikt worden en ofwel hoogwaardig gerecycleerd worden ofwel veilig terug gegegeven worden aan de natuur.

Sint-Gillis België - lofts van tussen de 67 m2 en 170 m2

architect: De Bouwerij architecten, Giulia Caterina Verga

opdrachtgever: particulieren

©Bernard Boccara

> Ambassade

Schaarbeek België - 2.500 m2 architect: Twyce architects opdrachtgever: particulier ©Stéphane Lagasse

origineel

Uitbreidbare/opsplitsbare gebouwen

Het originele gebouw werd opgetopt, de bestaande structuur diende daarvoor verstevigd te worden. De studio kan later deel uitmaken van het appartement om extra slaapkamers te huisvestigen

7

Klimaatadaptief

Hoewel in stedelijke context niet evident werd een hemelwaterput voorzien in het project. De koer werd vergroend en er is een semiintensief groendak.

origineel

Hergebruik

Onder meer deuren, plinten en sanitair konden ter plaatse hergebruikt worden. De gebruikte vloerafwerking werd gedemonteerd uit een ander project.

origineel

12 5 4 15

Renovatie

De gemeenschappelijke gang werd uit het beschermd volume gehouden. De woningen zelf werden geïsoleerd volgens het box-in-boxprincipe.

origineel

Polyvalent

Door de 14 meter vrije overspanning kon het gebouw gemakkelijk op verschillende manieren ingevuld worden. Ook de gemeenschappelijke ruimte kan op verschillende manieren gebruikt worden.

Materialenkringloopsluiting

Er werd gekozen voor materialen als aarde, stro en kurk. Deze kunnen perfect hoogwaardig gerecycleerd en/ of gecomposteerd worden.

origineel

Hergebruik

Er werd een inventaris opgemaakt. Allerhande materialen werden in situ en ex situ hergebruikt, zoals deuren en binten uit de bijgebouwen.

12 13 2 1

Collectieve voorzieningen

Een logeerkamer wordt gedeeld met de verschillende bewoners. De gemeenschappelijke ruimte is ook open voor de buurt.

Omkeerbaar ontwerpen

De lichte wanden zijn demonteerbaar uitgevoerd.

Divers programma

Er zijn verschillende woontypologieën in het gebouw beschikbaar, zoals kangeroewoningen. Ook worden enkele eenheden sociaal verhuurd.

> Karper
> Copost

Hoe maak ik mijn gebouw toekomstgericht? Praktische gids voor opdrachtgevers

voorbeeldprojecten

Ziekenhuis

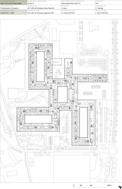
> AZ Groeninge

Kortrijk, België - 105.000 m2

architect: Baumschlager Eberle, Osar

opdrachtgever: AZ Groeninge

©Baumschlager Eberle

Klimaatadaptief

Het gebouw maakt gebruik van een BEO-veld, warmtepompen en een WKK. Er is een groendak aangebracht.

Uitbreidbare/opsplitsbare gebouwen

Het gebouw is erop voorzien dat extra vleugels toegevoegd kunnen worden. Er is ook een extra verdieping mogelijk door een overgedimensioneerde draagstructuur. In de vleugels zijn er extra verticale circulatieruimtes zodat de vleugels los van elkaar kunnen opereren.

Polyvalent

meer info over deze projecten

De structuur en gevel zijn modulair opgebouwd. Er zijn weinig kolommen.

Omkeerbaar ontwerpen Enkele gevelelementen zijn demonteerbaar om een uitbreiding toe te laten. Enkele dakelementen en ramen zijn demonteerbaar om grote installaties te vervangen en grote toestellen binnen te brengen. De vloerwapening is erop voorzien dat de dragende gevel daar onderbroken kan worden.

NIEUWBOUW

Groningen, Nederland - 60.000 m2 architect: SEED architects opdrachtgever: MARTINI ZIEKENHUIS bron: SEED architects

Polyvalent

Het gebouw werd modulair opgebouwd en kan herbestemd worden naar kantoor en woongebouw.

Omkeerbaar ontwerpen

De binnenwanden zijn modulair en demonteerbaar.

Uitbreidbare/opsplitsbare gebouwen

De vloeroppervlakte kan met 10% uitbreiden.

Gelaagd

In het Martiniziekenhuis kan de afwerking van de binnenwanden lokaal gedemonteerd worden waardoor de technieken snel aangepast kunnen worden. Het ziekenhuis heeft een skeletstructuur.

NIEUWBOUW

Anderlecht, België - 15.000 m2

architect: archipelago & NU

architectuuratelier

opdrachtgever: Iris

Ziekenhuizen Zuid (IZZ)

©Drawfield

Uitbreidbare/opsplitsbare gebouwen

Er is een centrale as voorzien, waarop uitbreidingen kunnen aangeplugd worden, telkens met een eigen toegang en verticale circulatie.

Gelaagd

Slechts enkele scheidingswanden werden statisch uitgevoerd. Alle overige muren zijn demonteerbaar.

Omkeerbaar ontwerpen

Er werd gekozen voor verplaatsbare, demonteerbare systeemwanden en een demonteerbare, modulaire gevelbekleding.

Polyvalent

Een patio zorgt voor optimaal daglicht. De technische kokers werden aan de kolommen geplaatst. Het meubilair kan uitgewisseld worden tussen de verschillende diensten.

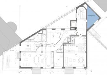
> Martini

Hoe maak ik mijn gebouw toekomstgericht?

Praktische gids voor opdrachtgevers

Zorg

voorbeeldprojecten

Kinderdagverblijf

> Lentetuiltje

NIEUWBOUW

Wolvertem, België - 1.140 m2 architect: BAST architects & engineers opdrachtgever: KDV Lentetuiltje bron: BAST architects & engineers

Gelaagd

De constructie is opgevat als een flexibel inzetbaar houten kolommengrid met een schil van houtskeletwanden.

8 15 3 10

Toegankelijke onderdelen

Door de technieken in opbouw te plaatsen zijn ook die makkelijk bereikbaar en aanpasbaar.

meer info over deze projecten

Woonzorgcentra

> Klein Veldekens

NIEUWBOUW

Materialenkringloopsluiting

De houtskeletwanden zullen ingeblazen worden met stro of hennep.

Uitbreidbare/opsplitsbare gebouwen

Het grid van 5 op 5 meter en de lichte binnenwanden tussen de structuur laten toe dat de invulling van het gebouw makkelijk aanpasbaar is en het gebouw zelf makkelijk uit te breiden valt. Het atrium is er zelfs op voorzien om ooit de realisatie van een binnenkoer toe te laten

Geel, België - 2100 m2 architect: osar opdrachtgever: Astor vzw ©Olmo Peeters & osar

Circulaire business modellen

Het gebouw wordt van verlichting voorzien via een dienstcontract.

Het woonzorgcentrum bevat naast groepswoningen van 8 tot 12 personen, assistentiewoningen met 1 of 2 slaapkamers, een dienstencentrum, een brasserie, een welness, een kapper en een kinderdagverblijf. 14 13

Divers programma

Omkeerbaar ontwerpen

De CLT-structuur is demonteerbaar.

Herbestemming

> Grand Hospice

Brussel, België architect: Henri Partoes opdrachtgever: OCMW van de Stad Brussel

©Gordon-Delacroix

Divers programma

In afwachting van een definitieve herbestemming wordt het oude ziekenhuis tijdelijk ingevuld met werkplekken voor allerlei organisaties. 1

Klimaatadaptief

Een BEO-veld voorziet koeling in de brasserie en er zijn zonnepanelen..

Hoe maak ik mijn gebouw toekomstgericht?

Praktische gids voor opdrachtgevers

voorbeeldprojecten

Kleinschalige projecten

Antwerpen, België - 390 m2 architect: PUUR opdrachtgever: Moose in the City ©Stijn Bollaert

4

12

origineel

Renovatie

Twee winkelpanden werden samengevoegd. De bestaande betonnen vloer werd opgeschuurd en opnieuw behandeld. De muren en het plafond bleven behouden. Ze kregen een schilderbeurt.

origineel

Hergebruik

Een deel van de originele winkelinrichting, zoals de verlichting, spiegels, vouwtafels, gordijnen,... werden hergebruikt en in een nieuwe opstelling teruggeplaatst. De houten legplanken werden opgeschuurd en kregen een nieuwe verniskleur.

meer info over deze projecten

15

Materialenkringloopsluiting

Het nieuwe kassameubel bestaat uit “rammed earth”. Gebruikt katoen en wol kregen een tweede leven in de multifunctionele spievormige blokken.

Uitbreidbare technieken en isolatieschil

Een deel van de winkel was reeds voorzien van verwarming op warmtepompen. In de rest van de ruimte zijn in deze fase leidingen voorzien om in de nabije toekomst op een makkelijke manier de bestaande verwarming ook door warmtepompen te kunnen vervangen. Het is voorzien dat er PV-panelen geplaatst kunnen worden.

Grootschalige projecten

> Parenthesis complex

NIEUWBOUW

Charleroi, België - 10.000 m2

architect: OPEN ARCHITECTES

©Utku PEKL

Polyvalent

De skeletstructuur van het winkelcomplex, opgebouwd uit prefab betonnen kolommen en gelamelleerde liggers, werd volgens een modulair stramien gedimensioneerd. Samen met de doorlopende beglazing van de gevel, kunnen de ruimtes zo naar behoefte aangepast worden.

Collectieve voorzieningen

Er werd een prominente plaats uitgekozen om parking voor deelwagens te voorzien.

> Patch 22

Amsterdam, Nederland - 5.400 m2, waarvan 600 m2 voor retail architect: FRANTZEN en al architecten ©Luuk Kramer

Herbestemming

Standaertsite

Gent, België - 525m2 architect: AE-architecten, Carton123 architecten, murmuur architecten opdrachtgever: SOGENT ©Michiel De Cleene

Yalo

Gent, België - 6.000 m2 architect: Bontinck Architecten, King George opdrachtgever: Braempoort Properties; Joris Van Duffel ©Alexandra Van Battel

Gelaagd

Er werden geen structurele scheidingswanden geplaatst, die latere veranderingen in de planindeling zouden kunnen bemoeilijken.

Polyvalent

Alle ruimtes hebben minimaal een hoogte van 4m, kunnen belast worden tot 4kN en de techniekenkoker werd gecentraliseerd. Door deze maatregelen is het mogelijk om de ruimtes later te herbestemmen tot woning of kantoor.

Divers programma

Verschillende functies (retail, kantoren en wonen) werden gecombineerd in één gebouw. De ruimtes werden casco verkocht waardoor de gebruikers zelf de indeling, afwerking, etc. nog konden bepalen. Om er zeker van te zijn dat er in de toekomst geen bezwaren van de overheid zouden zijn tegen een alternatief gebruik, werd er in samenwerking met de gemeente Amsterdam een nieuw soort erfpachtcontract opgesteld.

origineel

Renovatie

Het terrein van de voormalige doe-het-zelf-zaak ‘Standaert’ werd herbestemd tot een gemeenschapscentrum. Het aandeel bebouwing op de site werd beperkt en rationeel ingezet. Het ontwerpvoorstel behoudt in het centrum van de site de ‘mooiste’ loods met vakwerkspanten.

origineel

Polyvalent

De oude metalen spanten maken een andere functieinvulling van het oude magazijn mogelijk.

origineel

Renovatie

Waar vroeger een klein winkelcentrum was, kan je nu overnachten in hippe hotelkamers.

origineel

Uitbreidbare/opsplitsbare gebouwen

Op het dak werd na de verbouwing een rooftopbar geïnstalleerd.

Divers programma

De nieuwe invulling bevat een café en 4 ateliers/polyvalente ruimtes. Een luifel maakt ook diverse buitenactiviteiten mogelijk, zoals buurtfeesten, concerten, markten etc.

origineel

Hergebruik

Gelamineerde spanten uit gesloopte loodsen werden hergebruikt om een nieuwe luifel mee op te bouwen.

origineel

Gelaagd

De originele kolomstructuur bepaalde de maat van de kamerverdeling en de ritmering van de gevelopeningen.

Collectieve voorzieningen

De lobby van het hotel is samen met heel wat collectieve faciliteiten centraal in het gebouw gelegen. Het restaurant met coctailbar, 5 vergaderzalen, 2 retailruimtes, een fitnessruimte en een rooftopbar zijn toegankelijk voor het brede publiek.

> Moose in the City
NIEUWBOUW

Hoe maak ik mijn gebouw toekomstgericht?

Praktische gids voor opdrachtgevers

Onderwijs

voorbeeldprojecten

Kleuter- en lagere school

NIEUWBOUW

Sint-Jans Molenbeek, België - 4.200 m2

architect: OSK-AR architecten opdrachtgever: Administration Communale de Molenbeek Saint-Jean ©Luca Beel

Volwassenonderwijs

NIEUWBOUW

Genk, België - 1.420 m2

architect: A-tract Architecture

opdrachtgever: Provincie Limburg

bron: A-tract

Polyvalent

De skeletstructuur in prefabbeton en de indeling van het gebouw – binnenwanden in gipskarton – kunnen aangepast en/of uitgebreid worden om in te spelen op de steeds veranderende noden van het onderwijs.

Uitbreidbare technieken en isolatieschil

De bereikbare en modulaire technische installaties kunnen aangepast en/of uitgebreid worden.

meer info over deze projecten

Uitbreidbare/opsplitsbare gebouwen

De klassen werden per twee geschakeld om co-teaching mogelijk te maken. Het gevelsysteem is modulair opgebouwd en bijgevolg ook eenvoudig partieel te vervangen en maakt eventuele uitbreidingen mogelijk.

Collectieve voorzieningen

Het auditorium en het fablab worden ook naschools opengesteld voor buurtbewoners.

Middelbare school

> Ensorinstituut

Oostende, België - 4.000 m2 architect: RE-ST opdrachtgever: GO!-Onderwijs bron: RE-ST

Omkeerbaar ontwerpen

Er werden niet-hybride materialen toegepast die eenvoudig van elkaar te scheiden zijn. Materialen kunnen zo integraal hergebruikt worden, zoals de staalstructuur met boutverbindingen, CLT-wanden, prefabbetonpanelen, technieken in opbouw.

Polyvalent

Grote overspanningen vormen de basis, ze maximaliseren de toekomstmogelijkheden van het gebouw.

Hergebruik

Betonplaten werden hergebruikt en, omwille van het beperkte aanbod, verwerkt in een patchwork met verschillende diktes, maten en afwerkingen. De hergebruikte gevelplanken werden verkoold wat zorgt voor een extra beschermlaag.

Circulaire business modellen

In plaats van armaturen aan te kopen, wordt de verlichting als dienst aangeboden aan de gebruikers.

origineel

Polyvalent

Het gebouw werd ooit ontworpen als potentieel militair ziekenhuis, waardoor de gangen overmaats zijn en er heel wat lege liftkokers zijn.

> Go! Talentschoolgebouw Dendermonde

Dendermonde, België - 7.194m2 architect: B-architecten opdrachtgever: GO! onderwijs van de Vlaamse Gemeenschap ©Lucid

origineel

Renovatie

Het bestaande gebouw werd hergebruikt en nieuwe ingrepen werden tot een minimum beperkt. Aan de westelijke zijde kwam een nieuw gebouw met faciliteiten voor industriële schoolopleidingen en sport.

Toegankelijke onderdelen Technieken werden zichtbaar in opbouw uitgevoerd om hun onderhoud te faciliteren en hun hergebruik mogelijk te maken. 4 12 10 3

Collectieve voorzieningen

Een gebruikscan van de bestaande scholencampus van het Ensorinstituut toonde aan dat ruimtes gemiddeld maar 63% van de tijd bezet waren en dat de gebruikte ruimtes vaak te groot waren voor de klasgroepen. Het bleek mogelijk te zijn om 4 scholen te combineren op de bestaande site met volwassenonderwijs als ‘gatenvuller’.

origineel

Hergebruik

Voor de herstelling van de gevel van het Ariagebouw werden stenen gebruikt die gerecupeerd werden op de site zelf, uit afbraak van onder meer binnenmuren.

Uitbreidbare/opsplitsbare gebouwen

Het tweede niveau van het nieuwe gebouw werd overgedimensioneerd zodat toekomstige inbreiding mogelijk is.

Hoe maak ik mijn gebouw toekomstgericht?

Praktische gids voor opdrachtgevers

Parkeerruimte

voorbeeldprojecten

Parkeergebouw

NIEUWBOUW

Mechelen, België - 20.100 m2 architect: archipelago & POLO opdrachtgever: Kairos, Montreal ©Johnny Umans

Polyvalent

De positie van de circulatiekernen en de dragende gevel zorgen voor volledig open grondplannen. Elke verdieping heeft voldoende vrije hoogte om de ruimtes later van binnenuit te kunnen isoleren. Aan de overloop van de trappen kunnen split-levels toegevoegd worden zodat een compacte parkeergarage met zelfrijdende wagens mogelijk wordt.

meer info over deze projecten

Divers programma

Er is een toegankelijk groendak, een publiek plein, kantoren op de twee bovenste verdiepingen, een winkel en een fietsparking.

Collectieve voorzieningen

Twee stedelijke terrassen met een panoramisch uitzicht kunnen worden gebruikt door kantoormedewerkers (overdag) en voor publieke evenementen (’s avonds of in het weekend).

Herbestemmingen

> Vakgroep Architectuur VUB

Elsene, België - 1.000 m2 architect: meta opdrachtgever: VUB bron: VUB

Collectieve voorzieningen

De centraal gelegen nutsvoorzieningen en andere gemeenschappelijke functies delen het plan op in functie van de ruimten toegankelijk voor studenten en voor onderzoekspersoneel.

Toegankelijke onderdelen

De technieken werden voornamelijk in opbouw uitgevoerd en zichtbaar gelaten. 2 9

5

Aanpasbare wanden

Kastenwanden delen een grote polyvalente ruimte op naargelang de noden.

origineel

Polyvalent

De rationele structuur en het grid van de parking maakten het mogelijk om de parkeergarage een andere functie te geven.

Saclay

NIEUWBOUW

Palaiseau (Essonne), Frankrijk - 9.750

m2

architect: BAUKUNST + BRUTHER

opdrachtgever: Etablissement Public d’Aménagement Paris-Saclay

©Maxime-Delvaux

Divers programma

Er zijn 192 studentenunits, gemeenschappelijke en commerciële ruimtes, een tuin en 491 parkeerplaatsen.

Polyvalent

De architecten hebben dit gebouw als een regelmatige structuur ontworpen, met traveeën van 7,60 m die zowel drie parkeerplaatsen als drie eenpersoonskamers, twee studio's of zelfs kantoren kunnen herbergen.

> Permeke

Antwerpen, België - 15.000 m2 architect: Stramien opdrachtgever: Stad Antwerpen bron: Stramien

origineel

Renovatie

Van garageloods tot bibliotheek. Op de verdieping is het enorme glazen sheddak met zijn originele draagstructuur volledig hersteld.

origineel

5

Polyvalent

De originele skeletstructuur maakte het mogelijk om het gebouw te transformeren tot bibliotheek.

Hoe maak ik mijn gebouw toekomstgericht? Praktische gids voor opdrachtgevers

Publieke functies

voorbeeldprojecten

Bibliotheek

meer info over deze projecten

Herbestemming

> Portier 51

origineel

Hergebruik

Uitbreidbare technieken en isolatieschil

Pelt, België

architect: SCOOP Architecten

opdrachtgever: Publiek

©SCOOP Architecten

Tijdelijk

Bibliotheek Pelt > Molenwest square

NIEUWBOUW

Sint-Jans Molenbeek, België architect: 1010 architecture urbanism

opdrachtgever: SAU-MSI.brussels Bron: 1010au.net

origineel

Hergebruik

80% van het beton wordt op de site hergebruikt, naast heel wat andere materialen, zoals de gevelsteen en de rekken na een opfrisbeurt. Nieuwe spanten worden uit recuperatiehout opgetrokken.

Polyvalent

In een nieuw volume zorgen de kolommen voor een vrije invulling van de bibliotheek.

Divers programma

Op de site is er een bibliotheek, een raadzaal voor huwelijken en andere ceremonies en een vestiging van Huis van het Kind en Kind & Gezin.

Omkeerbaar ontwerpen

De staalstructuur van het nieuw dak kan volledig gedemonteerd worden.

Mechelen, België - 3.700 m2 architect: BOB361 opdrachtgever: Stad Mechelen en CAAAP bron: Caaap & BOB 361

De ambitie is om 75% van alle bouwmaterialen waaruit de oude bibliotheek bestond te hergebruiken op of buiten de site. Raamprofielen, balustrades, … kregen al een nieuwe bestemming, maar ook de bestaande kelder wordt gespaard. Deze zal de basis vormen voor een ondergrondse parkeergarage.

Polyvalent

De skeletstructuur en de gevel volgen een regelmatig stramien. De verdiepingsvloer kan op sommige plaatsen weggenomen worden waardoor de vrije hoogte kan wisselen tussen 3m50 tot 5m26. De technieken en de natte cellen worden geclusterd. Er zijn meerdere ontsluitingsmogelijkheden zodat het gebouw in onafhankelijke zones onderverdeeld kan worden.

De technieken zijn er op voorzien dat later een smart grid aangesloten kan worden. De schachten en de technische ruimtes worden overgedimensioneerd, zodat deze later gemakkelijk kunnen aangepast worden.

Uitbreidbare/opsplitsbare gebouwen

Elke containerunit heeft een apart netwerk, waardoor af- en aankoppelen op een nieuwe plek eenvoudig kan gebeuren.

Omkeerbaar ontwerpen

Het gehele project is omkeerbaar uitgevoerd. Zo kunnen de containers worden losgekoppeld en weggehaald met een vrachtwagen en kregen ze geïsoleerde binnenwanden die bestaan uit demonteerbare sandwichpanelen. Ook de overkappingen en bovengrondse technische installaties kunnen gedemonteerd worden.

Divers programma

De tijdelijke infrastructuur biedt ruimte aan een zogenaamd fablab, een kook- en workshopruimte, een opslagruimte voor spelmateriaal en een woonunit voor een conciërge.

Hergebruik

De bestaande betonplaat werd behouden en de containers zijn tweedehands. Heel wat gebruikte bouwmaterialen waren al aanwezig op de site omdat de site lange tijd als depot diende voor afgedankte materialen. Jongeren maakten met het overschot meubilair en spelmateriaal.

> KABO

Beringen België - 5.100 m2 architect: a2o architecten & acc architecten opdrachtgever: KOBeL ©Stijn Bollaert

origineel

Renovatie

De oude badhallen van een mijnsite werden herbestemd naar een school.

Uitbreidbare/opsplitsbare gebouwen

De verhouding private/publieke fietsenstalling kan evolueren in de tijd. In de toekomst, kunnen optoppingen toegevoegd worden en kan een tussenvloer in sommige woningen weggenomen of toegevoegd worden. Technische installaties werden op basis van de bouwkundige modulemaat uitgewerkt en de circulatiekern werd centraal geplaatst.

origineel

Polyvalent

Door de originele skeletstructuur kon het gebouw gemakkelijk herbestemd worden.

Toegankelijke onderdelen

De technieken werden in opbouw uitgewerkt, waardoor ze gemakkelijk aan te passen en te onderhouden zijn.

Divers programma

Er is een crèche, een basisschool en een naschoolse opvang in het gebouw gevestigd.

Hoe maak ik mijn gebouw toekomstgericht?

Praktische gids voor opdrachtgevers

Bedrijfsinfrastructuur

voorbeeldprojecten

Antwerpen, België - 7.000 m2 architect: Roel Vermeesch opdrachtgever: Ismail en Yusuf Yaman, Stefan Bostoen bron: Pakt Antwerpen

origineel

Renovatie

Oude pakhuizen werden herbestemd tot een hedendaags bedrijvencentrum.

Klimaatadaptief

Circulaire oplossingen voor wateropvang, verwerking van restafval tot compost, recuperatie van meststoffen, robuuste gewassen in slimme polyculturen, maken de wijk klimaatbestendig, halen CO2 uit de lucht, matigen hitte en vergroten de biodiversiteit. Op een relatief kleine oppervlakte kan op een efficiënte en ecologische manier gezond voedsel geproduceerd worden. Het warme stadsklimaat zorgt voor een snelle teeltrotatie, waardoor per vierkante meter een hoge productie kan gerealiseerd worden.

Anderlecht, België - 20.000 m2 opdrachtgever: D’Ieteren ©circularium

origineel

Renovatie

Het betreft een tijdelijke ingebruikname van een ex-automobielcomplex door circulaire, lokale organisaties, vaak start-ups, als test, mogelijks definitief.

origineel

Uitbreidbare gebouwen

De site is zo groot, dat een organisatie gemakkelijk kan uitbreiden.

origineel

Hergebruik

Oude toegangsdeuren werden in de herinrichting hergebruikt als schuifdeuren voor een boekenkast en ook oude werktafels kregen een nieuw leven als bureaumeubel.

Divers programma

In 2017 vestigde een mix van 25 bedrijven zich op de nieuwe PAKT-site. Er is ruimte voor stadslandbouw, kantoren, fitness, een kledingwinkel, een dagopvang, chefs, brouwers, barista's, koffiebranders, lifestyle, sportliefhebbers, creatieve ondernemers en duurzame initiatieven.

Molenbeek, België - 9055m2 architect: A.M. BESP – Ozon – Studeo opdrachtgever: A.M. BESP – Ozon –Studeo bron: be-here.be

Herbestemming

Verbiest

Molenbeek, België - 1.000 m2 architect: AgwA opdrachtgever: particulier ©Séverin Malaud

> Greenpeace

Collectieve voorzieningen

De aanwezige bedrijven kunnen gebruik maken van een gedeeld machinepark, een keuken, zwembad en buitenruimte, waardoor er ruimte is voor ontmoeting en er kruisbestuiving mogelijk is tussen de verschillende projecten. Er is ruimte voor workshops voor derden.

Divers programma

Er is ruimte voor culturele evenementen, opslag en ontmoeting. Er wordt over gewaakt dat de organisaties elkaar aanvullen en versterken.

Brussel, België - 1.682 m2 architect: archipelago opdrachtgever: ViaEX ©archipelago

Collectieve voorzieningen

Een grote hal voor unieke evenementen en twee vergaderzalen kunnen zowel door de bedrijven gehuisvest in het pand als derden afgehuurd worden.

origineel

Renovatie

Een fabriekshal die deels beschermd is, werd omgetoverd tot een hedendaags bedrijfscentrum. De grote overdekte hal heeft een nieuw dak gekregen dat er exact uitziet zoals vroeger maar over een hogere thermische performantie beschikt.

origineel

Polyvalent

Er is een grote polyvalente ruimte onder de centrale overkapping die als publieke ruimte ingevuld kan worden, als marktplaats, als receptieruimte,...

Divers programma

In het gebouw zijn 20 diverse bedrijven gehuisvest die actief zijn in duurzame voeding, circulaire economie, sociale economie en culturele en sociale projecten. Er zijn kantoren, productieateliers, verkoopruimtes van 200 tot 600 m2 en een grote polyvalente ruimte te huur.

origineel

Renovatie

Een pakhuis werd herbestemd naar een eengezinswoning met kunstenaarsatelier. Er werd gebruik gemaakt van thermische zones: het gebruik van de verwarmde zones is seizoensgebonden. De betonnen structuur is versterkt met massief houten kolommen.

Materialenkringloopsluiting

Er werd gebruik gemaakt van leempleister en hennepisolatie.

origineel

Renovatie

Een orgelfabriek werd herbestemd tot kantooruimte. De originele orgelwerkplaats werd omgevormd tot workshopruimte. Een ander deel diende volledig gestript te worden, waardoor dit deel zeer performant uitgevoerd kon worden. Hier zijn dan ook de meest veeleisende functies, namelijk de kantoorruimtes, in voorzien.

origineel

Uitbreidbare/opsplitsbare gebouwen

Het gebouw werd opgetopt en er werd een aansluitende horizontale uitbreiding in houtbouw voorzien.

Hergebruik

Ex situ werden tegels en ballustrades gevonden en in situ betondallen en dakpannen.

Klimaatadaptief De landbouwserre draagt bij tot de verwarming van het gebouw. Er is een groendak en de site werd onthard.

Klimaatadaptief

Het gebouw heeft heel wat thermische massa, zonnewering en beplanting. De ramen worden automatisch gestuurd, op basis van binnenen buitentemperatuur, wind en CO2, om zo op een natuurlijke manier te kunnen koelen.

Polyvalent

Aan de hand van daglichtsimulaties zijn enkele nieuwe vides ingepland. Door deze verbetering van de daglichttoetreding is de polyvalentie van de gebouwen ingrijpend toegenomen. Enkele ruimtes werden functieneutraal uitgevoerd. De ventilatie is vraaggestuurd waardoor het gebouw zich aanpast aan het eigenlijke gebruik.

meer info over deze projecten

2

Hoe maak ik mijn gebouw toekomstgericht?

Praktische gids voor opdrachtgevers

Gedetailleerd ontwerp

Eenmaal de concepten voor een toekomstgericht project zijn vastgelegd in 'Level 1 – concept', dienen deze concreet uitgewerkt te worden aan de hand van een reeks technische strategieën of maatregelen. Hier wordt alles zeer concreet. Deze fase kan je als opdrachtgever zelf opnemen of samen opvolgen met een ontwerper en uitvoerder. We hebben de verschillende aspecten van een gedetailleerd ontwerp onderverdeeld in 15 principes. Elk principe wordt samengevat in een fiche met aanvullende info en concrete voorbeelden.

Hoe werkt het?

De reeds aangevinkte principes worden aanbevolen, de overige principes kunnen door de lezer zelf worden aangevinkt.

Divers programma 1

Divers programma

Wat en waarom?

Door diversiteit te brengen in het aanbod van typologieën en voorzieningen op een site, kunnen de veranderende noden van de gebruikers lokaal opgelost worden zonder grote renovatiewerken of verhuisbewegingen. Een divers aanbod kan ook gemakkelijker inspelen op veranderende trends en maatschappelijke evoluties.

Kijk naar wat er al aanwezig is in de buurt van het project, breng de vraag verder in kaart door middel van een marktonderzoek en schat de vraag ook naar de toekomst in.

Voor meer informatie

zie principe

Hoe maak ik mijn gebouw toekomstgericht?

Praktische gids voor opdrachtgevers

Participatie

Betrek de (toekomstige) gebruikers in het opmaken van het programma, door middel van workshops, bevragingen,... Zij hebben het best zicht op hun eigen noden en die van hun omgeving.

Je kan nog een stapje verder gaan en de ruimtes casco opleveren. De gebruikers kunnen vervolgens met een (aangeboden) kit-of-parts zelf aan de slag om het gebouw in te delen en in te richten. Zo hebben de gebruikers niet enkel een ruimte aangepast aan hun noden, maar kennen ze deze ruimtes ook beter en kunnen ze het zelf gemakkelijker onderhouden en aanpassen. Door deze onderdelen zelf aan te bieden, blijft er wel een zekere coherentie in de interventies door de gebruikers. Als deze onderdelen ook nog eens demonteerbaar zijn, kunnen de gebruikers het zelf gemakkelijk aanpassen in de toekomst aan hun noden.

Omkeerbaar ontwerpen 13

In het co-housingproject ‘Bijgaardehof’ besprak het architectenbureau met elke individuele toekomstige cohouser de eigen woonwensen en bracht ze samen in een evenwichtig architecturaal geheel.

©Laurian Ghinitoi

Hoe maak ik mijn gebouw toekomstgericht? Praktische gids voor opdrachtgevers

Diverse typologieën

Door een divers aanbod aan typologieën wordt bij huisvestingsprojecten een sociale rijkdom en een generationele mix bewerkstelligd. Denk bijvoorbeeld aan diverse woontypologieën, zoals kangeroewoningen, studio's, appartementen, lofts en grondgebonden woningen. Maar ook bij andere functies zijn diverse typologieën interessant, zoals ruimtes voor individuele kantoren, informeel overleg, flexdesks,… Of kleine en grotere ruimtes, met of zonder daglicht bij retail en industriële functies.

Bij de herbestemming van ‘Ambassade’ werden verschillende woontypologieën voorzien, van studio’s tot 4 slaapkamerappartementen en kangeroewoningen (hier in blauw aangeduid), met een aparte ingang. ©Twyce Architects

Voor meer informatie zie principe

Diverse functies

Mix functies zoals woon-, werk- en ontspanningsruimtes. Dit zorgt voor een levendige wijk en een intenser dagdagelijks gebruik. Verschillende functies kunnen ook een andere energiebehoefte hebben waardoor warmte/koude gedeeld en opgeslagen kan worden via een lokaal warmtenet. Denk aan kantoren die een grote koudevraag hebben terwijl woningen een hoge warmtevraag hebben of industriële functies met afvalstromen die lokaal opgewaardeerd worden.

Op de Tour & Taxis-site verzamelt Perma Fungi het koffiegruis van de andere bedrijven op de site om paddestoelen te kweken. ©Perma Fungi

Door voorzieningen verder te delen met elkaar, zoals sanitair, wasruimtes, overlegruimtes,… kunnen de benodigde oppervlaktes dalen.

Collectieve voorzieningen 2

principe in relatie tot de omgeving

Hoe maak ik mijn gebouw toekomstgericht?

Praktische gids voor opdrachtgevers

Diversificatie in type gebruikers

Een diversificatie in type eindgebruikers kan voor kruisbestuiving zorgen, zowel economisch als sociaal.

In afwachting van een definitieve herbestemming wordt het oude ziekenhuis tijdelijk ingevuld met werkplekken voor diverse organisaties en ruimtes voor evenementen. Door de diversiteit en de gedeelde ruimtes en voorzieningen is er kruisbestuiving mogelijk. © Grand Hospice

Diversificatie in eigenaarschap

Denk ook aan diversifiëren door bijvoorbeeld (sociale) huuren koopeenheden te voorzien. Bij huisvesting loont het de moeite om de oprichting van een Community Land Trust (CLT) te onderzoeken als alternatief voor het individuele eigendomsrecht. In een dergelijk model koop je de woning zonder de grond, wat de aankoop betaalbaarder maakt.

Om er zeker van te zijn dat er in de toekomst geen bezwaren van de overheid zouden zijn tegen een alternatief gebruik van de verschillende ruimtes van PATCH22, werd er in samenwerking met de gemeente Amsterdam een nieuw soort erfpachtcontract opgesteld. © Luuk Kramer

Een ondoordachte diversificatie in eigenaarschap kan het beheer van het gebouw net minder evident maken.

Collectieve voorzieningen 2 principe in relatie tot de omgeving

Collectieve voorzieningen

Wat en waarom?

Door ruimtes te delen, zoals een wasruimte, een werkplaats, een ontspanningsruimte, een logeerkamer, een mobib-punt, opslag-/bergruimte... kan de nodige oppervlakte per eindgebruiker dalen en kan er sneller ingespeeld worden op veranderende noden van de individuele gebruikers. Ook kunnen deze als ontmoetingsruimtes fungeren voor de gebruikers.

Hoe maak ik mijn gebouw toekomstgericht?

Praktische gids voor opdrachtgevers

Centrale locatie

Plaats de collectieve voorzieningen centraal, zodat alle gebruikers er gemakkelijk gebruik van kunnen maken. Ze kunnen in een gebouw ook zorgen voor een overgang/scheiding tussen meer publieke en private functies. Denk bijvoorbeeld aan de gelijkvloerse verdieping om de collectieve voorzieningen te localiseren.

Voorzieningen in de buurt

Ga na welke voorzieningen al aanwezig zijn in de buurt. Zo hoeft jouw project misschien niet in alles te voorzien. Zo kan een co-workingspace in de buurt de nood aan een individuele bureauruimte wegnemen.

Maar ook omgekeerd: misschien worden sommige ruimtes binnen jouw project maar sporadisch gebruikt. Misschien kunnen deze ruimtes opengesteld worden voor de buurt?

Voor meer informatie zie principe Divers programma 1

In het Yalo-hotel in Gent ligt de lobby samen met heel wat collectieve faciliteiten centraal in het gebouw. Het restaurant met cocktailbar, 5 vergaderzalen, 2 retailruimtes, een fitnessruimte en een rooftopbar zijn toegankelijk voor het brede publiek. Door ze open te stellen kunnen deze functies veel meer klanten ontvangen. © Alexandra Van Battel

Collectieve voorzieningen binnen het project

Indien een project meerdere eenheden of eindgebruikers bevat, kan het interessant zijn om voorzieningen te delen met elkaar. Denk aan een logeerkamer, een wasruimte, een vuilnislokaal, een lokaal voor buggy's en fietsen, een tuin, hernieuwbare energie, een vestiaire, 'spullenbibliotheek’, een leefruimte, sanitair, een studieruimte, een keuken, een eetkamer, een speel- en ontspanningsruimte en een atelier.

Lijst de nodige voorzieningen op en onderzoek welke samengevoegd en geoptimaliseerd kunnen worden.

Binnen een kantoorgebouw kan het interessant zijn om de receptie, een cafetaria en vergaderzalen te delen met verschillende gebruikers.

Een gedeelde gastenkamer (in blauw) in het co-housingproject ‘Ambassade’ doet de nodige oppervlakte per woonunit dalen.

©Twyce Architects

In het Circularium-project zijn er allerhande machines beschikbaar voor de bedrijfjes die zich op de site bevinden

©Circularium

Hoe maak ik mijn gebouw toekomstgericht?

Praktische gids voor opdrachtgevers

Door in een bestaand project in kaart te brengen wanneer ruimtes standaard in gebruik zijn, op weekdagen, in het weekend, tijdens de vakanties,... kan het duidelijk worden dat sommige ruimtes onderbezet zijn. Deze ruimtes kunnen mogelijks opengesteld worden voor andere doeleinden opdat ze intensiever gebruikt worden.

Een gebruikscan van de bestaande scholencampus van het Ensorinstituut toonde aan dat ruimtes gemiddeld maar 63% van de tijd bezet waren en dat de gebruikte ruimtes vaak te groot waren voor de klasgroepen. Het bleek mogelijk te zijn om 4 scholen te combineren op de bestaande site met volwassenonderwijs als ‘gatenvuller’. ©RE-ST

Uitbreidbare/opsplitsbare

Uitbreidbare en opsplitsbare gebouwen

Wat en waarom?

Door gebouwen uitbreidbaar of opsplitsbaar uit te werken binnen de mogelijkheden van de stedenbouwkundige voorschriften kan een gebouw aangepast worden aan veranderende noden van de gehuisveste eindgebruiker en kan de bouw/verbouwing eventueel in fases uitgevoerd worden. Denk aan een veranderende gezinssamenstelling of een groeiende school of bedrijf.

Vandaag worden bijvoorbeeld heel wat woningen ontworpen op basis van het gewenste aantal kinderen. Kinderen gaan echter ooit het huis uit en de ouders worden minder mobiel, waardoor de bovenverdiepingen vaak in onbruik geraken. Door de woning vandaag al opsplitsbaar uit te voeren, kan bijvoorbeeld een deel later verhuurd worden.

Hoe maak ik mijn gebouw toekomstgericht?

Praktische gids voor opdrachtgevers

Masterplan

Werk een ‘masterplan’ uit voor het gebouw/ de site. Welke voorzieningen zijn vandaag nodig en welke in de toekomst, hoeveel oppervlakte hebben deze voorzieningen nu en morgen nodig en waar worden deze voorzieningen best gelokaliseerd?

Modulaire uitwerking

Door de structurele elementen te plaatsen op een vaste afstand, bekomen door een maatbepalende factor, en dit raster ook door te trekken in de gevel, de technieken, ... wordt het gemakkelijker om gelijkaardige onderdelen te vinden bij uitbreidingen in de toekomst of om de onderdelen te hergebruiken in andere toepassingen.

Doordachte circulatieflow en technieken

Door de circulatie en de technieken doordacht te lokaliseren is het mogelijk om op termijn een woning te splitsen in twee wooneenheden of van twee wooneenheden één te maken. Door verschillende scenario’s op voorhand uit te tekenen in de bestaande plannen, wordt soms duidelijk dat door kleine aanpassingen er meer mogelijk wordt in de toekomst. Centraliseer de circulatie in middelgrote gebouwen zodat de oppervlakteverliezen beperkt blijven bij een functieverandering. In grotere gebouwen is het interessant om net meerdere ontsluitingsmogelijkheden te voorzien, zodat het gebouw in onafhankelijke zones onderverdeeld kan worden.

Lokaliseer technische kokers op plaatsen waar weinig verandering verwacht wordt, bijvoorbeeld naast een kolom. Centraliseer de technieken per (woon)eenheid in een technische kern.

Demonteerbare planindeling

Maak de wanden demonteerbaar waar de kans bestaat dat deze in de toekomst verwijderd zullen worden.

Voor meer informatie zie principe Omkeerbaar ontwerpen 13

Uitbreidbaar of opsplitsbaar binnen in het gebouwd volume:

Uitbreidbare/opsplitsbare gebouwen 3

principe in relatie tot de omgeving

Aanpasbare technische installaties

Maak de installaties opsplitsbaar per verdieping, per ruimte of zelfs per bouwkundige modulemaat. Dit kan door ze fysisch van elkaar te scheiden of door het mogelijk te maken dat ze los van elkaar bij te sturen zijn.

Inplanning toekomstige trappen en schachten

Houd rekening met interessante plaatsen om in de toekomst een verbinding te maken tussen verschillende verdiepingen met trappen en schachten. In de structuur kunnen hiervoor al openingen worden voorzien en tijdelijk dichtgemaakt met demonteerbare verbindingen. Zo kunnen later bepaalde verdiepingen apart verbonden worden en nieuwe configuraties toelaten.

Kantoorruimtes hebben meer liften nodig dan woningen. Eventueel kan in een vloer al een opening voorzien worden om later een extra lift te plaatsen.

Na de aankoop van een extra verdieping binnen hetzelfde gebouw kon het architectenbureau

META met een interne spiltrap de twee verdiepingen met elkaar verbinden.

©Filip Dujardin

Voor meer informatie zie principe

Omkeerbaar ontwerpen 13

Hoe maak ik mijn gebouw toekomstgericht?

Praktische gids voor opdrachtgevers

Door in een grote ruimte bijvoorbeeld nu al twee deuren te voorzien, kan deze later eenvoudig opgesplitst worden in twee ruimtes, bijvoorbeeld in twee kinderkamers of twee klaslokalen.

Door bij een uitbreiding van de woning ‘Dupontgaarde’ een aparte toegang en interne circulatie te voorzien kan het later ook los van de woning gebruikt worden, bijvoorbeeld voor een vrij beroep, een studentenkot of als kangeroewoning.

©VLA-Architecture

Wachtleidingen

Door wachtleidingen te voorzien kan bijvoorbeeld later nog een extra badkamer voorzien worden bij opsplitsing in kleinere eenheden, zonder een grote meerkost vandaag.

Dubbele verdiepingshoogte

Door een dubbele verdiepingshoogte te voorzien, wordt een ruimte vaak als zeer aangenaam ervaren. Het kan door de gebruikers kunnen de ruimte later ook (deels) ontdubbelen met een omkeerbare tussenvloer om zo nieuwe kleinere ruimtes te voorzien.

Uitbreidbare/opsplitsbare gebouwen 3

Voor meer informatie zie principe Omkeerbaar ontwerpen 13 principe in relatie tot de omgeving

Lege ruimtes

Bij een grootschalige herbestemming of een renovatie dienen niet alle ruimtes tegelijkertijd aangepakt te worden. Het kan interessant zijn om ruimtes nog onbestemd te laten, waardoor organisaties kunnen groeien en het project in fases kan worden aangepakt.

De site van het Circularium-project is zo groot dat de organisaties die zich er gehuisvest hebben gemakkelijk kunnen uitbreiden. ©Circularium

Verticale uitbreiding buiten het bebouwd volume:

Bereikbare en lege daklaag

Hoe maak ik mijn gebouw toekomstgericht? Praktische gids voor opdrachtgevers

Door het dak gemakkelijk bereikbaar te maken, kan de toegang tot een toekomstige optopping vereenvoudigd worden. Houd het dak bovendien vrij van technieken, zodat het gebouw later opgetopt kan worden.

Het platdak van een vroeger winkelcomplex werd bij de herbestemming naar het Yalo-hotel omgetoverd tot een rooftopbar. © if

Overdimensionering structuur

In de eengezinswoning 'Adriaan' in Mariakerke werd de optopping in CLT uitgevoerd. In amper twee weken was de verdieping klaar en de woning weer waterdicht. ©Luc Roymans

Houd bij het dimensioneren van de draagconstructie rekening met potentiële toekomstige aanpassingen zoals een groendak of een optopping.

Door een optopping te voorzien in lichte materialen zoals houtskeletbouw of CLT, moeten er vaak geen grote bijkomende structurele maatregelen voorzien worden. Bovendien zijn deze bouwmethodes snel uit te voeren door de mogelijkheid elementen te prefabriceren en droog met elkaar te verbinden.

Uitbreidbare/opsplitsbare gebouwen 3

Horizontale uitbreiding buiten het bebouwd volume:

Open ruimte

Door open ruimtes op de site te voorzien kunnen gebouwen in de toekomst uitbreiden naargelang de noden. Plan daarbij het gebouw in op een strategische plaats om deze uitbreidingen later mogelijk te maken.

Na de herbestemming van het kantoorgebouw werd de school ‘Karreveld’ horizontaal uitgebreid. ©Séverin Malaud

Tijdens de renovatie van het Virga Jesse College werden twee nieuwe volumes toegevoegd: een inkom en een nieuwe sokkel dat halfondergronds een nieuwe sanitaire blok en een polyvalente ruimte huisvest. ©Stijn Bollaert

Voor meer informatie zie principe

Demonteerbare schil

Door gevelelementen op gerichte plaatsen demonteerbaar uit te voeren, kan later een nieuw volume aan het bestaande gekoppeld worden. Bijvoorbeeld door een deel van de achtergevel demonteerbaar uit te voeren, kan later zonder grote breekwerken nog een achterbouw voorzien worden.

Omkeerbaar ontwerpen 13

Hoe maak ik mijn gebouw toekomstgericht?

Praktische gids voor opdrachtgevers

Het ziekenhuis AZ Groeninge werd ontworpen om opgebouwd te worden in verschillende fases. Demonteerbare gevelelementen maken deze uitbreidingen mogelijk. Ook werden er demonteerbare dakelementen voorzien om grote installaties te vervangen in de toekomst of om grote toestellen binnen te brengen.©Kris Van de Vijver

Overdimensionering structuur

Houd bij het dimensioneren van de draagconstructie rekening met potentiële toekomstige uitbreidingen. Voorzie bijvoorbeeld steunpunten voor de eventuele aanbouw van terrassen of een passerelle, zodat er later buitenruimtes kunnen toegevoegd worden. Op deze plaatsen voorzie je best ramen tot op de vloer.

Hoe maak ik mijn gebouw toekomstgericht?

Praktische gids voor opdrachtgevers

Renovatie

Wat en waarom?

Door een bestaand gebouw te hergebruiken, wordt niet enkel de levensduur van het pand verlengd, maar vermindert de hoeveelheid nieuwe materialen die moeten ontgonnen, geproduceerd en getransporteerd worden en ontstaat er minder afval. Op deze manier verlaagt de milieu-impact van het gebouw vandaag al. Het gebouw dient daarbij niet de originele functie te behouden, maar kan ook herbestemd worden.

Vaak zijn opknap- of renovatiewerken nodig om te voldoen aan de huidige normen en noden, maar hierbij kunnen heel wat toekomstgerichte principes toegepast worden.

Analyse van het bestaande

Start vóór de aanvang van de werf met een analyse van het gebouw. Maak daarbij een inventaris op van de aanwezige materialen en evalueer hun herbruikpotentieel . Deze herbruikinventaris lijst onder meer de beschikbare hoeveelheden op, de dimensies en de staat. Een drone of een 3D scan zijn hierbij mogelijke hulpmiddelen.

De inventaris kan dienen als basis voor een bouwwerkpaspoort, dat kan aangevuld worden met extra informatie over de materialen als die voorhanden is. Denk bijvoorbeeld aan de energetische karakteristieken of de wijze waarop de materialen vastgemaakt worden.

Behoud van het bestaande

Probeer zoveel mogelijk van het bestaande gebouw te behouden, om zo de grootste milieuwinsten te bekomen. Vooral het behoud van de meest authentieke elementen in het gebouw verhoogt de kans dat het in de toekomst zijn waarde zal behouden en dus langer ingezet zal worden.

Bij de herbestemming van de voormalige Spaanse ambassade, een zeer dens bebouwde site, werden de rode zones zonder architecturale meerwaarde gesloopt en de grijze zones met een grote authenticiteit behouden. © Twyce Architects

Hoe maak ik mijn gebouw toekomstgericht?

Praktische gids voor opdrachtgevers

Aangepast programma

Het programma van gebouw dient aangepast te zijn aan de karakteristieken van het gebouw, zoals de beschikbare oppervlakte, de vrije hoogte en de daglichttoetreding. Indien dit niet mogelijk is, is het misschien beter om een gebouw te kiezen in functie van het programma dat moet worden uitgewerkt. Zo worden grote renovatiewerken vermeden.

Versterken van de structuur

Indien de structuur niet meer voldoet, kan deze versterkt worden met verstevigingsprofielen.

Voor meer info, zie Klimaatadaptief 7

Klimaatadaptief

Het renovatieproces is het ideale moment om het gebouw volledig aan te pakken en klimaatadaptief te maken. Door de klimaatopwarming krijgen we meer en meer te maken met extreme weersomstandigheden. Lange droge periodes en hevige stortbuien zullen meer en meer afgewisseld worden met hittegolven. Door vandaag daar al op te anticiperen in de gebouwde omgeving kunnen we onze gebouwen toekomstgericht maken.

Box-in-box

Is het niet mogelijk om te isoleren aan de buitenkant? Dan is het toepassen van een box-in-box systeem misschien wel een oplossing. Dit wordt vaak toegepast bij gebouwen met een zekere erfgoedwaarde.

Bij de herbestemming van de badhallen van de oude mijnsite in Beringen naar de school KABO werd gebruikgemaakt van het box-in-boxprincipe om de originele gevel te behouden. © Stijn Bollaert

Bij de herbestemming van een pakhuis naar woning ‘Verbiest’ met kunstenaarsatelier moest de structuur versterkt worden. © Séverin Malaud

Hoe maak ik mijn gebouw toekomstgericht?

Praktische gids voor opdrachtgevers

op gebouwniveau

Thermische zones

Het is niet altijd nodig om alle ruimtes te verwarmen. Zo wordt het beschermd volume een stuk kleiner en hoeft niet het volledige gebouw geïsoleerd te worden. Dit is vooral een interessante strategie bij zeer grote industriële projecten, projecten met een zekere erfgoedwaarde of in een stedelijke context waarbij isoleren aan binnen- en buitenkant niet altijd even evident is.

Niet het ganse project ‘Verbiest’ werd geïsoleerd maar enkele specifieke zones. Het gebruik van de niet-verwarmde zones is seizoensgebonden. © Séverin Malaud

Opgelet: Het is niet altijd even evident om een bestaand gebouw goed te isoleren zonder koudebruggen te creëren. Let op bij het werken met thermische zones dat de onverwarmde zones niet gebruikt worden als leefruimtes waardoor het energieverbruik veel hoger ligt dan initieel ingeschat.

Tijdelijke ingebruikname

Er durft wel eens wat tijd te zitten tussen de aankoop van een gebouw en de verbouwfase van de site. Ga na of het interessant is om de site tijdens deze periode tijdelijk in gebruik te laten nemen door bijvoorbeeld lokale non-profitorganisaties. Het kan ook een manier zijn om enkele herbestemmingsideeën uit te testen.

Omdat er nog geen nieuwe bestemming is gevonden voor een oude automobielcomplex, wordt het tijdelijk in gebruik genomen door diverse organisaties. © Circularium

Polyvalent

Wat en waarom?

Door een ruimte polyvalent of functieneutraal uit te voeren kan deze vandaag al op verschillende manieren in gebruik genomen worden en later gemakkelijker een nieuwe functie aannemen. Het laat toe een gebouw aan veranderende noden aan te passen zonder grote ingrepen. Polyvalent 5

Hoe maak ik mijn gebouw toekomstgericht?

Praktische gids voor opdrachtgevers

Verschillende scenario’s

Door verschillende gebruiks- en toekomstscenario’s voor een ruimte te bedenken en af te toetsen op het ontwerp, kan het ontwerp vaak met kleine aanpassingen deze en ook andere invullingen mogelijk maken. Anderzijds, een ruimte die voor alles kan worden gebruikt, wordt meestal om kwalitatieve redenen onderbenut of niet gebruikt.

Voor de Mobility Hub in Mechelen werden verschillende toekomstscenario’s bedacht en uitgetekend. Er werd een structuur bedacht die toelaat om het programma flexibel doorheen het gebouw te plaatsen, volgens de behoeften van toekomstige gebruikers, de buurt en de nieuwe ontwikkelingen aan Eandistip. Terwijl er een voor de hand liggende keuze is om het fietsparkeren uit te breiden, is er ook de optie van zelfrijdende en/of gedeelde auto’s die minder parkeerruimte innemen, waardoor er ruimte vrijkomt voor andere functies in het gebouw. © archipelago

Hoe maak ik mijn gebouw toekomstgericht?

Praktische gids voor opdrachtgevers

Aangepaste toegankelijkheid

Om vandaag alle ruimtes door verschillende types gebruikers te laten gebruiken op verschillende momenten van de dag, is het belangrijk na te denken over de toegankelijkheid van de ruimtes. -Het is bijvoorbeeld niet altijd wenselijk dat alle gebruikers zich in heel het gebouw kunnen begeven. Een deel van het gebouw kan ontoegankelijk gemaakt worden door een extra deur te voorzien of een extra inkom kan een onafhankelijk gebruik bewerkstelligen.

Voldoende vrije hoogte

Door een vloer-plafondhoogte te voorzien van minimum 3m30 en een totale breedte en lengte van 12m kan een woning op termijn ook een kantoor- of zelfs een schoolfunctie krijgen, waar meer plaats nodig is voor de HVAC-technieken en de bijhorende leidingen of kan het vloerpakket dikker worden om aan veranderende eisen te voldoen zonder in te boeten aan leefkwaliteit. Om een retailfunctie in de toekomst mogelijk te maken wordt best een vrije hoogte van minstens 4m50 voorzien.

Alle woon-, kantoor-, retailruimtes in het PATCH22-project hebben minimaal een hoogte van 4m, kunnen belast worden tot 4kN/m2 en de technische koker werd gecentraliseerd. Door deze maatregelen is het mogelijk om de ruimtes later te herbestemmen tot bijvoorbeeld kantoor- of woonruimte. © FRANTZEN et al architecten

Rationele draagstructuur

Maak de overspanningen van de draagstructuur groot genoeg, zodat ze een functiewijziging of een andere planindeling niet belemmeren. Door een skeletstructuur in plaats van een massieve draagstructuur te voorzien, wordt het gebouw automatisch polyvalent. De indeling kan dan onafhankelijk van de draagstructuur gebeuren en aangepast worden.

De skeletstructuur van de oude badhallen van de mijnsite in Beringen zorgde ervoor dat het gebouw gemakkelijk kon herbestemd worden tot de KABO-school. © Stijn Bollaert

Modulair plan

Door de structurele elementen te plaatsen op een vaste afstand, bekomen door een maatbepalende factor, en dit raster ook door te trekken in de gevel en de technieken, kunnen functieneutrale ruimtes bekomen worden, waardoor ze later gemakkelijk een andere functie kunnen krijgen. Door bovendien te werken met standaardafmetingen, wordt het gemakkelijker om gelijkaardige onderdelen te vinden bij uitbreidingen in de toekomst of om de onderdelen te hergebruiken in andere toepassingen.

In het ziekenhuis AZ Groeninge werden de dragende verticale elementen geplaatst volgens het stramien 8m10, 5m40 en 8m10 tussen de twee dragende gevels. Zo konden van gevel tot gevel achtereenvolgens een zone met ziekenkamers en een gang gecreëerd worden, een zone met meer technische ruimtes en nogmaals een zone met een gang en een ziekenkamer.

Door deze ruime overspanningen en hun functieneutrale uitstraling kunnen ze gemakkelijk op een andere manier ingevuld worden. De dragende gevelelementen werden bovendien onderling geplaatst op een vaste afstand van 1m80, omdat standaard ziekenhuiskamers 3m60 breed zijn, een tweevoud van deze afstand. De wanden van andere ruimtes bevinden zich op een veelvoud van deze afstand. © Baumschlager Eberle

Demonteerbare scheidingswanden

Hoe maak ik mijn gebouw toekomstgericht?

Praktische gids voor opdrachtgevers

Door het gebruik van (lichte,) demonteerbare scheidingswanden tussen en binnen gebouwen kan een toekomstige herinrichting van de binnenruimte vergemakkelijkt worden zonder bijvoorbeeld muren van zware baksteen of beton te moeten afbreken. Idealiter is het merendeel (> 80%) van de binnenwanden niet-dragend.

Voor meer informatie zie principe

Omkeerbaar ontwerpen 13

Voldoende daglicht en lucht

Ruimtes zijn best maximaal 9m diep om nog voldoende daglicht binnen te trekken bij een herbestemming naar leefruimte. Indien dit niet mogelijk is, kan men voldoende daglicht binnentrekken in diepere ruimtes door bijvoorbeeld dakkoepels, lichtschachten, patio's,...in het dak te voorzien. Deze zullen functieveranderingen vereenvoudigen. Plaats deze lichtschachten volgens een raster dat toekomstige planindelingen niet hindert.

Zorg dat de ramen open kunnen en vermijd daarbij grote gesloten gevelvlakken en gordijngevels om een eventuele herbestemming naar een woonfunctie mogelijk te maken.

Bij de herbestemming van een parkeerruimte naar onderwijsruimtes zorgen patio’s voor extra licht. © VUB

Hoe maak ik mijn gebouw toekomstgericht?

Praktische gids voor opdrachtgevers

Positie van de vaste elementen

Technische schachten en ruimtes, circulatiekernen en natte ruimtes met keukens en badkamers zijn vrij statisch. Door deze strategisch te clusteren en te positioneren, zullen ze het gebruik van de ruimte het minst hinderen.

Aanpasbaar meubilair

Met aanpasbaar meubilair kan een ruimte snel van de ene functie naar de andere veranderen. Meubilair dat niet vaststaat kan de ruimte indelen volgens de noden.

Functieneutrale ruimtes

Door ruimtes te overdimensioneren kunnen ze vandaag en in de toekomst verschillende functies herbergen. Woonruimtes van bijvoorbeeld 3x3m of zelfs 4x4m kunnen door meerdere functies ingevuld worden als slaapkamer, leefruimte of bureau.

De grote centrale hal van het het bedrijfscentrum BE-HERE, waar vroeger zelfs een trein stopte om de site te bevoorraden, kan vandaag op allerlei manieren gebruikt worden: als publieke ruimte waar mensen iets kunnen consumeren, als marktruimte, als receptieruimte,... © BE-HERE

Overdimensionering structuur

Door de structuur te overdimensioneren is het mogelijk om op lange termijn de functie aan te passen naar een kantoor (3.5 kN/m2) of zelfs een publieke ruimte (5 kN/m2). Voorzie bijvoorbeeld steunpunten voor de eventuele aanbouw van terrassen of passerellen, zodat er later buitenruimtes kunnen toegevoegd worden. Op deze plaatsen voorzie je best ramen tot op de vloer.

In het PATCH22-project werden de vloeren gedimensioneerd op 4kN/m² belasting in plaats van de gebruikelijke 2kN/m2 Zo kunnen de verdiepingen met een hoogte van 4m later andere functies huisvesten © Luuk Kramer

principe op gebouwniveau

Voor meer informatie

zie principe

Demonteerbare gevel

Door een functieafhankelijke gevel demonteerbaar uit te voeren, kan deze verwijderd worden bij een functieverandering.

Omkeerbaar ontwerpen 13

Beperkte ruimte

Is dit alles niet mogelijk? Beperk dan net de oppervlakte en het volume van de ruimte die onderbezet zal zijn.

In het PATCH22-project konden de bewoners zelf hun appartement inrichten. In één van de appartementen werd een slaapruimte voorzien boven een badkamer, in plaats van een grote, onderbezette logeerkamer. © PATCH22

In een niveauverschil werd opbergruimte voorzien in de compacte eengezinswoning 'Adriaan' in Mariakerke. © Luc Roymans

Hoe maak ik mijn gebouw toekomstgericht?

Praktische gids voor opdrachtgevers

Toegankelijk gebouw 6 principe op gebouwniveau

Toegankelijk gebouw

Wat en waarom?

Een toegankelijk gebouw is een gebouw dat inclusief is, waardoor het door iedereen kan gebruikt worden, zowel vandaag als morgen. Een gebouw kan bijvoorbeeld vandaag al dankzij kleine ingrepen rolstoeltoegankelijk gemaakt worden, zodat de gebruikers het gebouw kunnen (blijven) gebruiken bij een verminderde mobiliteit.

Hoe maak ik mijn gebouw toekomstgericht?

Praktische gids voor opdrachtgevers

Bereikbaar en betreedbaar

Zorg dat het gebouw gemakkelijk te bereiken is, bijvoorbeeld met het openbaar vervoer, zonder drempels of omwegen en dichtbij andere voorzieningen. Een gebouw dat gemakkelijk te bereiken is, zal veel intensiever gebruikt worden en zal zijn waarde gemakkelijker behouden in de toekomst.

Zorg ook dat het gebouw gemakkelijk te betreden is, zodat je gemakkelijk binnen en buiten kan, ook als je geen trappen kan nemen.

Begrijpelijk

Zorg dat het gebouw leesbaar is, dat mensen er gemakkelijk hun weg vinden en dat de ruimtes elkaar logisch opvolgen, zonder al te veel verloren hoekjes.

Aangepaste circulatie

Door voldoende brede gangen en deuren uit te voeren kan iemand met een rolstoel zich gemakkelijk door een gebouw verplaatsen. Een deuropening moet netto 90 cm breed zijn en een gang minstens 1m20. Bij voorkeur heeft een gang een vrije doorgang van 1m50 zodat een rolstoelgebruiker op elk moment rond zijn eigen as kan draaien en meerdere personen elkaar vlot kunnen kruisen. Door het aantal deuren te beperken, wordt de rolstoeltoegankelijkheid van de ruimtes verder verbeterd. Voor mensen met een rolstoel is het bovendien fijn als een deur automatisch open gaat.

Voor heel wat mensen is een trapleuning onontbeerlijk. Door vandaag de trappenhal wat groter te dimensioneren, kan later een (trap)lift toegevoegd worden.

Vermijd niveauverschillen

Vermijd niveauverschillen op een verdieping, zorg voor een egale ondergrond. Gebruik hellingen in plaats van tredes om beperkte niveauverschillen die er toch zouden zijn, op te vangen.

In de prefab zorgwoning werden alle ruimtes op één niveau geplaatst. De woning zelf is toegankelijk via een hellend vlak. Ook de badkamer is toegankelijk door de integratie van een rolstoeltoegankelijke douche en toilet. © BAST architects & engineers

Hoe maak ik mijn gebouw toekomstgericht?

Praktische gids voor opdrachtgevers

Connectie tussen verdiepingen

Idealiter worden alle (publieke) functies gebundeld op één verdieping. Voorzie een persoon- en/of goederenlift als trappen niet te vermijden zijn. Het kan soms interessant zijn om vides te maken om het contact tussen de verschillende verdiepingen te verbeteren. In huiselijke context kan in dergelijke vide bijvoorbeeld een waskoker voorzien worden om het zeulen met zware wasmanden te vermijden.

in een badkamermeubel. © Keukens Konings

Een waskoker werd in dit project ingewerkt

Toegankelijk gebouw 6 principe op gebouwniveau

Toegankelijk sanitair

Maak het sanitair rolstoeltoegankelijk. Denk bijvoorbeeld aan een voldoende grote inloopdouche. Zorg dat de doucheknoppen laag genoeg geplaatst zijn. Een douchegordijn in plaats van een glaswand verhoogt de manoeuvreerruimte. Als de wanden sterk genoeg zijn uitgevoerd, kunnen later of vandaag al leuningen worden toegevoegd.

Hoe maak ik mijn gebouw toekomstgericht?

Praktische gids voor opdrachtgevers

Demonteerbare wanden

Door demonteerbare wanden tussen verschillende ruimtes te voorzien en ook de afmetingen van de ruimtes aan te passen, kan (later) een badkamer, een slaapkamer,... met enkele kleine ingrepen rolstoeltoegankelijk gemaakt worden.

Van twee niet-aangepaste slaapkamers naar een rolstoeltoegankelijke slaapkamer © Construire Adaptable

Van een niet-aangepaste WC en badkamer naar een rolstoeltoegankelijke badkamer © Construire adaptable

Voor meer informatie zie principe Omkeerbaar ontwerpen 13

Door ruimte te voorzien onder de wastafel kan men er gemakkelijk onder rijden met een rolstoel. © BAO Living

Toegankelijk gebouw 6 principe op gebouwniveau

Polyvalente ruimte

Door ruimtes polyvalent uit te werken, kan de bestemming ervan eenvoudig wijzigen in de toekomst als de noden veranderen. Bijvoorbeeld een bureau of speelkamer op de gelijkvloerse verdieping, kan later een rolstoeltoegankelijke slaapkamer worden.

Hoe maak ik mijn gebouw toekomstgericht?

Praktische gids voor opdrachtgevers

Aangepast signalisatie

Contrasterende plinten en deuromlijstingen wijzen personen met een visuele beperking de weg. Signalisatie met zowel licht als geluid helpt hen verder. Eenvoudige pictogrammen en eenvoudige taal maken het gebouw toegankelijk voor een breed publiek.

Voor meer informatie zie principe

5 9

Polyvalent

Voor meer informatie zie principe

Aanpasbare ruimtes

Door het mogelijk te maken dat een ruimte op te delen is met gordijnen, kan een deel van de ruimte tijdelijk meer intimiteit verschaffen. Dit kan handig zijn bij thuiszorg en bezoek.

Aanpasbare ruimtes

Aangepaste voorzieningen

Door bijvoorbeeld stopcontacten op 40cm hoogte te plaatsen blijven ze gemakkelijker bereikbaar ten opzichte van de gebruikelijke 20cm. Bewegingssensoren kunnen de verlichting aansturen en voldoende lichtschakelaars kunnen het leven van een persoon met een beperkte mobiliteit aangenamer maken.

In Huis Madou werden heel wat maatregelen getroffen opdat het gebouw voor iedereen toegankelijk is. Onder meer werd de kofiehoek zo uitgewerkt dat je er gemakkelijk met een rolstoel onder kunt rijden. © VVSG

Voor meer informatie zie principe

Huis Madou wijst mensen met een visuele beperking de weg door onder meer markeringen op de trap en contrasten op plinten en deuromlijstingen (wit en blauw). © VVSG

Gezonde materialen

Zowel voor mensen met longproblemen als alle andere gebruikers is het belangrijk om met gezonde materialen te werken. Veel verven en lijmen stoten vluchtige organische componenten uit (VOC’s), deze hebben een negatieve impact op de gezondheid. Houd hier rekening mee bij de keuze van de materialen.

Materialenkringloopsluiting 15

Klimaatadaptief 7 principe op gebouwniveau

Klimaatadaptief

Minimaliseer verhardingen

Wat en waarom?

Door de klimaatopwarming krijgen we meer en meer te maken met extreme weersomstandigheden. Lange droge periodes en hevige stortbuien zullen meer en meer afgewisseld worden met hittegolven. Door vandaag daar al op te anticiperen in de gebouwde omgeving kunnen we onze gebouwen toekomstgericht maken.

Hoe maak ik mijn gebouw toekomstgericht?

Praktische gids voor opdrachtgevers

Door de bebouwde oppervlakte en de verharding rond het gebouw te beperken, kan het water maximaal infiltreren in de grond. Zo wordt het grondwater aangevuld, worden de rioleringen minimaal belast bij hevige regenbuien en wordt de kans op een overstroming van de site kleiner.

Door geen kelder of betonplaat te storten op het maaiveld, maar bijvoorbeeld te bouwen 30 cm boven het maaiveld, wordt de stroom van het grondwater niet gehinderd en kan er meer regenwater infiltreren op de site.

De zeer dens bebouwde site Verbiest werd opengemaakt, onthard en deels voorzien van groene daken. © AgwA

Hoe maak ik mijn gebouw toekomstgericht?

Praktische gids voor opdrachtgevers

Regenwaterbuffering

Door regenwater lokaal te bufferen en het vertraagd af te voeren, wordt het rioleringsstelsel verder ontlast en de kans op overstroming beperkt. Denk aan groendaken, wadi’s, vijvers, grachten, etc. Daarnaast zorgt het groen voor afkoeling tijdens hete periodes door verdamping en bevordert het het leefmilieu in stedelijk gebied.

Regenwatercaptatie

Door regenwater lokaal te stockeren en te gebruiken, wordt verder ingezet in het ontlasten van het rioleringsstelsel en het beperken van de kans op een overstroming. Door een goed gedimensioneerde regenput te voorzien, kan het gebouw gratis gebruikmaken van regenwater voor onderhoud, voor wasmachines en als doorspoeling van de toiletten.

In het PATCH22-project wordt regenwater opgevangen en gebruikt in het gebouw. © FRANTZEN et al architects

Groenvoorzieningen

Maximaliseer de groenvoorzieningen in, op en rond het gebouw, zoals door het voorzien van groene gevels, bomen, een groene erfafscheiding,... Groenvoorzieningen dragen bij tot het verlagen van de luchttemperatuur tijdens hittegolven en creëren een gezonde lucht. Ze kunnen bovendien zorgen voor een natuurlijke zonwering in de zomer en toch voldoende zonlicht doorlaten in de winter als het bijvoorbeeld een bladverliezende boom betreft.

Performante gevel

Het gebouw kan tijdens een hittegolf aangenaam fris blijven als er zonnewering is voorzien, als de raamoppervlaktes beperkt blijven en als er voldoende thermische massa aanwezig is, die de schommelingen van de binnentemperatuur afvlakt. Verder kunnen de ramen zo geplaatst worden dat ze tocht kunnen creëren tijdens de nacht en het gebouw kan afkoelen. Een lichte gevel- en dakkleur vermijden verder de opwarming van het gebouw.

Hoe maak ik mijn gebouw toekomstgericht?

Praktische gids voor opdrachtgevers

Gelaagd

Wat en waarom?

Door een project gelaagd uit te voeren kan een bepaalde laag met een specifieke levensduur in een gebouw aangepast worden zonder impact te hebben op een andere laag. Dit kan door onderdelen met een verschillende functie en levensduur fysiek van elkaar te scheiden en de levenscycli op elkaar af te stemmen. Zo kunnen ze vervangen worden zonder elementen met een langere levensduur te beschadigen of vervroegd te moeten verwijderen.

Door bijvoorbeeld de technieken niet in te storten in vloeren of wanden, maar in opbouw te plaatsen, kunnen de technieken en ook de wanden later gemakkelijk los van elkaar aangepast worden.

Functionele levensduurlagen

De belangrijkste functionele lagen in een gebouw zijn: ‘structure’, ‘skin’, ‘services’, ‘space plan’ en ‘stuff’, waarbij de structuur de langste levensduur heeft van het gebouw, vervolgens de gevel, de technieken en de planindeling. Dit houdt in dat bijvoorbeeld de planindeling standaard sneller aangepast zal worden dan de gevel van het gebouw. Dit, omdat de vraag naar grotere of kleinere ruimtes sneller verandert dan de nood om de raamopeningen bijvoorbeeld aan te passen. Door hier al vanaf het ontwerp mee rekening te houden, worden zware renovatiewerken vermeden. Bijvoorbeeld door de binnenwanden niet dragend uit te voeren, zijn geen structurele ingrepen nodig als de planindeling aangepast dient te worden in de toekomst.

Door een gebouw op te delen in functionele levensduurlagen, kunnen de lagen eenvoudiger los van elkaar aangepast worden © RoosRos, gebaseerd op Shearing layers, Brand

Gelaagd 8 principe op gebouwniveau

Demonteerbare planindeling

De exacte functionele levensduur van een specifieke laag is afhankelijk van de context en de functie van het gebouw. De planindeling van commerciële ruimtes kunnen bijvoorbeeld rond de 3 jaar veranderen. Het is dus zeer interessant om geen of een beperkt aantal dragende wanden te voorzien en de binnenwanden demonteerbaar uit te voeren. Zo kan de planindeling aangepast worden zonder grote structurele veranderingen.

Hoe maak ik mijn gebouw toekomstgericht?

Praktische gids voor opdrachtgevers

Voor meer informatie zie principe

Omkeerbaar ontwerpen 13

Het Bracops ziekenhuis is een omkeerbaar project dankzij doordachte analyses van de structurele, technische en ruimtelijke aspecten. © archipelago

In het Martiniziekenhuis kan de afwerking van de binnenwanden lokaal gedemonteerd worden waardoor de technieken snel aangepast kunnen worden. © SEED architects

Voor meer informatie zie principe

Demonteerbare gevel

De gevel van een retailfunctie is veel modegevoeliger dan een gevel van een woongebouw en zal waarschijnlijk sneller aangepast worden. In die situatie is het dus zeker interessant om de gevel los te koppelen van de structuur en deze zelfs demonteerbaar uit te voeren.

Omkeerbaar ontwerpen 13

Hoe maak ik mijn gebouw toekomstgericht?

Praktische gids voor opdrachtgevers

Technische levensduurlagen

Naast een functionele levensduur, heeft een bouwmateriaal ook een technische levensduur. Het grote verschil tussen beiden is dat een materiaal technisch misschien 60 jaar mee kan gaan zonder zijn karakteristieke eigenschappen te verliezen, maar dat het al sneller zal vervangen worden doordat de vraag veranderd is. Denk aan modetrends, nieuwere, efficiëntere technische installaties,... Het is interessant om ook de technische levensduur van materialen in kaart te brengen, zo weet je wanneer ze vervangen zullen moeten worden. Idealiter, zijn de materialen met een kortere levensduur gemakkelijker bereikbaar dan materialen met een langere levensduur. Zo moeten er geen lagen afgebroken worden om de materialen met een beperkte levensduur te vervangen.

Door de technische levensduur in kaart te brengen van bouwmaterialen kunnen mogelijke lock-ins vermeden worden. De isolatie op deze figuur heeft bijvoorbeeld een kortere levensduur dan de gevelafwerking. © Vansteenkiste

Tijdens de herbestemming bepaalde de kolomstructuur van een winkelcentrum de maat van de kamerverdeling en de ritmering van de gevelopeningen van het hotel Yalo. © Bontinck
gebouwniveau

Aanpasbare ruimtes 9 principe op element- en/of componentniveau

Aanpasbare ruimtes

Wat en waarom?

Door een ruimte aanpasbaar te maken, kunnen ruimtes snel vergroot of verkleind worden, naargelang de noden van de gebruikers. De keuze tussen de verschillende oplossingen (schuifwanden, gordijnen, kasten) zal voornamelijk afhangen van de gewenste akoestische performantie. Eventueel kan er ook een akoestische barrière voorzien worden in het vals plafond of de verhoogde vloer.

Hoe maak ik mijn gebouw toekomstgericht?

Praktische gids voor opdrachtgevers

Verplaatsbare wanden

Er zijn verschillende types verplaatsbare wanden: horizontale vouw- en paneelwanden en verticale vouwwanden. De eerste twee types kunnen zowel transparant als opaak uitgevoerd worden. Het laatste type wordt vandaag voornamelijk opaak uitgevoerd.

Algemeen geldt dat met paneelwanden en verticale vouwwanden een betere geluidsisolatie bereikt kan worden, aangezien de panelen opgespannen kunnen worden. Dankzij de zwaartekracht kunnen bijvoorbeeld de voegen tussen de panelen van een verticale vouwwand beter gedicht worden dan bij een horizontale vouwwand, waardoor een hogere geluidsisolatie gerealiseerd kan worden. De verticale vouwwand heeft als extra voordeel dat het in zijgeleiders opgehesen wordt en verdwijnt in het plafond waardoor de vloeroppervlakte volledig kan benut worden.

De geluidsisolatie van een transparante verplaatsbare wand ligt sowieso lager dan bij de opake versies, zeker als het glas niet in een kader zit. De voegen tussen de verschillende onderdelen van de mobiele wand kunnen dan onvoldoende geluidsdicht afgewerkt worden.

Er zijn verschillende types verplaatsbare wanden: horizontale vouw- (l) en paneelwanden (m) en verticale vouwwanden (r). © CERAA - M. Vandenbroucke

Hoe maak ik mijn gebouw toekomstgericht?

Praktische gids voor opdrachtgevers

Gordijnen

Gordijnen kunnen heel snel een ruimte opdelen waarbij geen hoge akoestische performantie gevraagd is. In sportomgevingen worden vaak ophijsbare rolgordijnen voorzien, bijvoorbeeld om een sportzaal in twee delen te delen. Deze rolgordijnen worden in zijgeleiders opgehesen, zoals bij de verticale vouwwanden, waardoor de ruimte volledig vrij gemaakt kan worden.

Door een combinatie van twee rolgordijnen op bijvoorbeeld 25cm van elkaar kan de akoestische performantie in een labo tot 30 dB verbeteren

De kinderkamers in de eengezinswoning 'Adriaan' in Mariakerke worden gescheiden met gordijnen. Als de kinderen huiswerk maken of slapen gaan ze dicht. © Luc Roymans

Kasten

Kastenwanden of rekken kunnen de ruimte op een meer informele manier indelen zonder contact te verliezen met elkaar.

Aanpasbare installaties

De technische installaties dienen rekening te houden met de verschillende mogelijke scenario's van de ruimte-indeling. Denk aan moduleerbare technieken in functie van de bezetting en ruimte-indeling.

Demonteerbare binnenwanden

Voor ruimtes die eerder op lange termijn aanpasbaar dienen te zijn, kan het interessanter zijn om te werken met demonteerbare binnenwanden.

Voor meer informatie zie principe

Omkeerbaar ontwerpen 13

Aanpasbare
De sportzaal van het schoolproject Karreveld kan eenvoudig in twee ruimtes opgedeeld worden. © Séverin Malaud

Toegankelijke onderdelen 10 principe op elementniveau

Toegankelijke onderdelen

Wat en waarom?

Sommige onderdelen, zoals de technieken, worden minstens jaarlijks onderhouden en bijgesteld. Denk aan het vervangen van de filters van het ventilatiesysteem en het schoonmaken van de ventilatiekokers. Zorg dus dat de technieken goed toegankelijk zijn om zo het onderhoud te vergemakkelijken.

Ook vloer- en gevelafwerking dienen regelmatig onderhouden te worden en vaak zijn plaatselijke herstellingen nodig door intensief gebruik, door vandalisme of door extreme weersomstandigheden.

Hoe maak ik mijn gebouw toekomstgericht?

Praktische gids voor opdrachtgevers

Gelaagd

Door een project gelaagd uit te voeren kan de laag met een specifieke levensduur in een gebouw aangepast worden zonder impact te hebben op een andere laag. Dit kan door onderdelen met een verschillende functie en levensduur fysiek van elkaar te scheiden en de levenscycli op elkaar af te stemmen. Zo kunnen ze vervangen worden zonder elementen met een langere levensduur te beschadigen of vervroegd te moeten verwijderen.

Door bijvoorbeeld de technieken niet in te storten in vloeren of wanden, maar in opbouw te plaatsen, kunnen de technieken en ook de wanden later gemakkelijk los van elkaar onderhouden en aangepast worden.

Voor meer informatie zie principe

Gelaagd 8

Aparte systemen

Ventilatie en verwarming/koeling zijn best twee aparte systemen. Zo moet er bijvoorbeeld niet geventileerd worden als er enkel warmte gevraagd wordt. Ook wordt zo vermeden dat het hele systeem vervangen moet worden als één van de onderdelen niet meer werkt.

Als er bijvoorbeeld met lucht verwarmd wordt, moeten er bovendien grotere debieten gerealiseerd worden dan enkel voor hygiënische ventilatie en moet er een deel van de lucht recirculeren wat voor veel functies niet toegestaan is. Zo gaat de milieuwinst van het kanalenwerk verloren en hangt het systeem vast aan een regime dat specifiek ingesteld is voor één functie.

Hoe maak ik mijn gebouw toekomstgericht?

Praktische gids voor opdrachtgevers

principe op element- en/of componentniveau

Positie van de vaste elementen

Technische ruimtes en natte functies, zoals sanitair en keukens, zijn vrij statisch. Centraliseer en bundel deze en zorg dat de leidingen ook weinig verspringingen vertonen tussen de verschillende verdiepingen. Zo wordt het materiaalgebruik beperkt, het onderhoud vereenvoudigd en een vrij plan gecreëerd in de rest van het gebouw.

Dit betekent dat er grote open ruimten beschikbaar zijn en vrij ingevuld kunnen worden, nu en in de toekomst.

In het Circular Retrofit Lab werden de technieken en natte functies gebundeld in een BAO-module.

© KADER STUDIO

Technieken in opbouw

Door technieken in opbouw uit te werken, is het verloop ervan zeer leesbaar en toegankelijk en dus ook gemakkelijk te onderhouden en aan te passen.

In deze eengezinswoning in Mariakerke werden de technieken zichtbaar gelaten. Een budget- en onderhoudsvriendelijke oplossing. © Luc Roymans

Toegankelijke

technische koker

Indien het niet mogelijk is om de technieken in opbouw te plaatsen, kan het onderhoud vereenvoudigd worden door alle leidingen goed zichtbaar en toegankelijk te maken in de technische koker.

Voorstel voor gemakkelijk bereikbare technieken. © Buildwise

Toegankelijke

Voor

Onderhoudsvriendelijke detaillering

Door kantjes en boordjes te vermijden in de detaillering, kan intensief onderhoud vermeden worden. Denk aan verdoken plinten.

Demonteerbare plafond-, wand- of vloerafwerking

Laat de technieken eenvoudig bereikbaar zijn door het toepassen van een demonteerbare plafond-, wand- of vloerafwerking, waarvan de onderdelen onafhankelijk van elkaar te verwijderen zijn. Door bijvoorbeeld het gebruik van computervloeren zijn de technieken van het zicht onttrokken, maar gemakkelijk bereikbaar via kabeldoorvoeren of door het wegnemen van een vloertegel.

In het Circular Retrofit Lab werden de technieken deels in opbouw uitgevoerd en deels onder een computervloer.

© Inneke Tavernier

Hoe maak ik mijn gebouw toekomstgericht?

Praktische gids voor opdrachtgevers

De vloerverwarmingstegels werden demonteerbaar uitgevoerd in het PATCH22-project zodat de leidingen toegankelijk blijven.

© FRANTZEN et al architects

Ook achter wegneembare plinten kunnen elektriciteitskabels lopen, waardoor deze gemakkelijker aangepast kunnen worden.

Inspectieluik

Indien de technieken niet in opbouw uit te werken zijn, kunnen ze bereikbaar gemaakt worden met een inspectieluik. Houd daarbij wel rekening met de eventuele noodzakelijke brandweerstand van het luik.

Onafhankelijke demontage

Als de verschillende onderdelen onafhankelijk van elkaar gedemonteerd kunnen worden, zonder hiervoor andere onderdelen te moeten verwijderen, kan bijvoorbeeld de gevel lokaal hersteld worden, zonder grote ingrepen. Denk bijvoorbeeld aan latten met een open voeg in plaats van een tand- en groefverbinding.

kunnen worden. ©

Hoe maak ik mijn gebouw toekomstgericht? Praktische gids voor opdrachtgevers

Gecentraliseerde informatie

Zorg dat de documentatie over de technieken gecentraliseerd, up to date en toegankelijk is. Handleidingen, onderhoudsschema's,... vereenvoudigen onderhoud en vervangingen. Zorg voor principeschema's in de technische ruimtes, duid aan per leiding/kanaal wat er in zit, van waar ze komt en waar ze naartoe gaat.

Een bouwwerkpaspoort kan hierbij een hulpmiddel vormen.

Wisselstukken

Zorg dat de wisselstukken gemakkelijk te verkrijgen zijn of stockeer de wisselstukken die vaak vervangen moeten worden.

Modulaire systemen

Door de ventilatie-, verwarmings- en koelingsystemen uit te werken volgens de modulemaat van het gebouw, kunnen later eenvoudiger delen losgekoppeld worden of geherprogrameerd worden. Bijvoorbeeld bij

het verplaatsen van een binnenwand kan een schakelaar op een andere lichtkring aangesloten worden. Universele systemen laten daarenboven een gemakkelijke uitwisseling van stukken toe.

Open gebouwbeheersysteem

Zorg ervoor dat regelsystemen en een gebouwbeheersysteem gebaseerd zijn op open systemen en standaardprotocollen, zodat ze compatibel zijn met verschillende systemen en zowel vandaag als in de toekomst gemakkelijk te beheren en aan te passen zijn.

Een open geometrische vormgeving van de componenten zorgt ervoor dat de onderdelen onafhankelijk van elkaar verwijderd
Leefmilieu Brussel

11 principe op element- en/of componentniveau

Uitbreidbare technieken en isolatieschil

Wat en waarom?

Door vanaf de ontwerpfase na te denken over een latere uitbreiding of aanpassing van de technieken of isolatieschil, zal dit later ook eenvoudiger uitgevoerd kunnen worden. Zo kan in de toekomst een upgrade gebeuren naar technieken of isolatieschil die nu nog te duur is of nog onvoldoende op punt staat.

Hoe maak ik mijn gebouw toekomstgericht?

Praktische gids voor opdrachtgevers

Overmaat leidingkokers en technische ruimte

Door minstens 15% extra ruimte te voorzien in de leidingkokers en de technische ruimtes kunnen op termijn gemakkelijk extra leidingen getrokken worden of installaties toegevoegd worden.

Plaats leidingkokers en technische ruimtes bijvoorbeeld naast bergruimtes plaatsen, zodat ze later (deels) de bergruimte kunnen innemen. Voorzie al uitsparingen in de welfsels ter hoogte van de bergruimtes die (tijdelijk) kunnen dichtgemaakt worden met bijvoorbeeld een houten roostering. Zo kunnen leidingen later gemakkelijk doorgetrokken worden.

Toegankelijke onderdelen

Technieken en de isolatieschil kunnen maar aangepast worden als ze gemakkelijk te bereiken zijn. Zorg ervoor dat deze gemakkelijk toegankelijk zijn om aanpassingen te faciliteren.

Voor meer informatie zie principe

Toegankelijke onderdelen 10

Wachtleidingen

Door op strategische plaatsen wachtleidingen te voorzien, kunnen later de technieken gemakkelijk uitgebreid worden, voor bijvoorbeeld een extra sanitaire ruimte, zonder een grote meerkost vandaag. Of technieken die vandaag nog te duur zijn, kunnen zo later nog toegevoegd worden.

Voor meer informatie zie principe

Balkenloze vloeren

Balkenloze vloeren laten vrije trajecten van technieken en een vrije plaatsing van wanden toe, vandaag en in de toekomst.

Door het toepassen van slimline-vloeren in het PATCH22-project kunnen de technieken later gemakkelijk andere routes volgen of uitgebreid worden. © Luuk Kramer

Vermijden van lockins

Wordt vandaag het dak aangepakt, maar nog niet de gevel? Of het schrijnwerk, maar nog niet de volledige isolatieschil? Vermijd lockins door voldoende ruimte te laten voor de toekomstige isolatieschil.

Demonteerbare gevelafwerking

Als de gevelafwerking eenvoudig weggenomen kan worden, wordt het gemakkelijker om in de toekomst een betere isolatieschil aan te brengen.

Omkeerbaar ontwerpen

Hoe maak ik mijn gebouw toekomstgericht?

Praktische gids voor opdrachtgevers

Zelfbouw/zelfrenovatie

Door de opdrachtgever of de eindgebruiker actief te betrekken bij de (ver)bouwing, verkrijgt hij/zij grotere inzichten in de werking van zijn/ haar gebouw dan bij een meer passieve houding. Dit laat toe om in de toekomst onderhoud en latere aanpassingen met meer kennis van zaken uit te voeren. Dit kan onder professionele begeleiding gebeuren van onder meer aannemers.

Overdimensionering technieken en isolatie

Om in de toekomst van functie te veranderen, kan het interessant zijn om nu al de normen na te gaan waaraan de toekomstige functie moet voldoen. Zo kunnen er andere akoestische en thermische eisen of een hogere brandweerstand gesteld worden. Misschien kan met een kleine meerkost het project nu al voldoen.

In het Circular Retrofit Lab werden de binnenwanden overgedimensioneerd en brandkleppen op de ventilatiekanalen voorzien waar later een brandwand komt. © Inneke Tavernier

Hergebruik 12

Hergebruik

Wat en waarom?

We spreken van hergebruik indien bouwproducten integraal hergebruikt kunnen worden, eventueel na een minimale reiniging of bewerking. Recyclage van materialen valt hier dus niet onder.

Door bestaande bouwproducten te hergebruiken, wordt niet enkel de levensduur van het onderdeel verlengd, maar vermindert ook de hoeveelheid nieuwe materialen die moeten ontgonnen, geproduceerd en getransporteerd worden en ontstaat er minder afval. Op deze manier verlaagt de milieu-impact van het bouwwerk vandaag al.

Er zijn al heel wat bedrijven gespecialiseerd hierin, zodat u zich deskundig kunt laten bijstaan.

Criteria

Bij een renovatieproject:

Analyse van het bestaande gebouw

Hoe maak ik mijn gebouw toekomstgericht?

Praktische gids voor opdrachtgevers

Vóór de aanvang van de werf wordt best een inventaris opgemaakt van de in situ aanwezige materialen om hun potentieel voor hergebruik te evalueren. Deze hergebruikinventaris lijst de aanwezige materialen, de beschikbare hoeveelheden, de dimensies en de staat op. Vervolgens dient men na te denken over de bestemming voor deze verschillende materialen: hergebruik in situ, hergebruik ex situ,... Zo kan men realistische ambities qua hergebruik formuleren naar het ontwerpteam toe. Een drone of een 3D scan zijn hierbij mogelijke hulptools.

Indien er meer informatie voorhanden is over de aanwezige materialen, zoals de technische eigenschappen, kan deze verzameld worden in een bouwwerkpaspoort.

Demontagetests

Als het niet duidelijk is hoe bepaalde producten gemonteerd werden in het gebouw, kan het interessant zijn om één of meerdere demontagetests uit te voeren. Zo kan men inschatten of de onderdelen zonder schade te ontmantelen zijn en/of er een bepaald verlies aan materiaal te verwachten is. Zo kan men de hoeveelheid te hergebruiken onderdelen vooraf juister inschatten.

In het Dethy-project werd via een 3D-scan een BIM-model opgemaakt, waaruit de exacte hoeveelheden konden worden gehaald inzake af te breken, te behouden en nieuwe materialen. © Lionel BOUSQUET

Hergebruik in situ

Probeer zoveel mogelijk onderdelen zoals de structuur, deuren,... ter plaatse te hergebruiken. Een behandeling zoals reinigen, zandstralen of op maat zagen, kan nodig zijn om hergebruik mogelijk te maken. Het kan interessant zijn om daarbij (toekomstige) gebruikers te betrekken, bijvoorbeeld bij het schoonmaken van de materialen. Zo kan de kostprijs verder dalen van de te hergebruiken materialen en krijgen de gebruikers meer respect voor het gebouw en inzicht in de gebruikte materialen.

Er kan gekozen worden om de onderdelen in eenzelfde toepassing te hergebruiken, bijvoorbeeld een structureel element dat een structureel element blijft. Maar er kan ook geopteerd worden om ze voor een andere toepassing te hergebruiken, bijvoorbeeld schrijnwerk hergebruiken in zones met minder of zelfs geen thermische eisen.

Belangrijk is om vooraf te bekijken waar de materialen (ter plaatse) gestockeerd kunnen worden in afwachting van het hergebruik.

de materialen die op de situ hergebruikt worden te stockeren. © Stephane Lagasse

Selectief slopen

Indien bouwonderdelen beschadigd en niet meer te herstellen zijn, kunnen ze nog gerecycleerd worden. Door selectief te slopen verhoogt de kans dat dit hoogwaardig gebeurt.

Idealiter is er in de toekomst in elke buurt een materialenhub, waar men terecht kan met de gesloopte materialen.

Hergebruik ex situ

Wanneer onderdelen niet ter plaatse kunnen worden hergebruikt, kunnen andere bedrijven ze terugwinnen en ze op andere werven gebruiken. Denk bijvoorbeeld aan Rotor, Batiterre, Buurman Antwerpen, Atelier Circuler.

In het Ambassade-project werd een tijdelijke beschutte plaats ingericht om
De bestaande inrichting van case Passiefrijhuis werd selectief gesloopt. © Christophe Lambrechts

Hergebruik 12 principe op element- en/of componentniveau

Bij een renovatie- en nieuwbouwproject:

Hergebruik ex situ

Indien nieuwe materialen nodig zijn, loont het zeker de moeite om tweedehands producten te zoeken. Deze hebben vaak een lage milieu-impact en een esthetische meerwaarde.

In het Ambassade-project werd tweedehands isolatiemateriaal gebruikt © Jonathan Ortegat

Om tweedehands schrijnwerk te kunnen inzetten in het Zinneke gebouw, werd een nieuw soort bestektekst ontwikkeld, waarbij de afmetingen binnen bepaalde marges dienden te vallen en aan bepaalde eisen moesten voldoen. Op basis van het beschikbare schrijnwerk dat voldeed aan deze eisen, werden verschillende composities gevormd om tot een esthetische keuze te komen.© Rotor

Hoe maak ik mijn gebouw toekomstgericht?

Praktische gids voor opdrachtgevers

Naast hergebruik loont het ook de moeite om te kijken naar afgekeurde loten bouwmateriaal. Denk bijvoorbeeld aan visuele onregelmatigheden in afwerkingsmateriaal.

In het Dethy-project werden afgekeurde loten tegels gebruikt als gevelafwerking © Lionel Bousquet

Gebruik demonteerbare verbindingen

Door de tweedehands en nieuwe materialen demonteerbaar te verbinden, sta je toekomstig hergebruik niet in de weg.

Voor meer informatie zie principe

Omkeerbaar ontwerpen 13

De winkelrekken van Moose in the City werden tijdens een renovatie uit elkaar gehaald en in een nieuwe configuratie hergebruikt. De legplanken uit Rubberwood werden daarbij opgeschuurd en vernist. © PUUR

Hergebruik 12

Hoogwaardige materialen

Wanneer nieuwe materialen nodig zijn, kies je het best voor kwalitatief hoogwaardige materialen met een lange technische levensduur en een lage milieu-impact. Zij hebben meer kans dat ze hun waarde behouden en/of hebben meer potentieel voor hergebruik en recycling. Door bovendien materialen te gebruiken met een hoge tweedehands marktwaarde, bevorder je het hergebruik van deze materialen.

Beperkt aantal verschillende materialen

Om hergebruik aan te moedigen, is het interessant om grote hoeveelheden van eenzelfde lot te hebben. Beperk daarom het aantal verschillende materialen in een project.

Bij de optopping van de KARPER-woning werd maar een beperkt aantal materialen gebruikt. Hout komt bijvoorbeeld terug als structureel materiaal, maar ook als materialisatie van de trap en van het meubilair. © Tim Van de Velde

Hoe maak ik mijn gebouw toekomstgericht?

Praktische gids voor opdrachtgevers

Hergebruikte verpakkingen

Ga na hoe de producten getransporteerd worden. Is het mogelijk om verpakte producten te vermijden? Is de verpakking gestandaardiseerd en herbruikbaar, zoals houten paletten?

Zo niet, verkies recycleerbare verpakking.

Paspoort

Maak van de gebruikte materialen en verbindingen een (digitaal) bouwwerkpaspoort op, idealiter gelinkt aan een BIM-model. Zo kan je bijvoorbeeld door het klikken op een bepaald component alle beschikbare informatie inlezen, zoals de exacte lokalisatie, de chemische samenstelling, de afmetingen, de fysische, chemische en biologische eigenschappen, de gebruiksgeschiedenis, de staat, de bevestigingsmethode, het hergebruik- en recyclagepotentieel,... Op deze manier kunnen doordachte keuzes gemaakt worden tijdens het gebruik van het gebouw en op het einde van zijn levensduur. Een paspoort dient vlot toegankelijk en aan te passen zijn, zodat de informatie gemakkelijk te raadplegen en up to date is.

Gezonde materialen

Om een tweede asbestproblematiek te vermijden, is het belangrijk om resoluut voor gezonde materialen te kiezen. Zo kunnen deze materialen zonder zorgen vandaag gebruikt en in de toekomst hergebruikt worden. Materialen dienen niet enkel REACH-conform te zijn, maar mogen ook geen schadelijke, hormoonverstorende stoffen bevatten.

Ecolabels type 1 die het materiaal onafhankelijk controleren op het gebruik van toxische of verdachte stoffen en de VOC-uitstoot kunnen daarbij een grote hulp zijn. Werk bijvoorbeeld met materiaalleveranciers die hier aandacht voor hebben.

Hoe maak ik mijn gebouw toekomstgericht?

Praktische gids voor opdrachtgevers

Omkeerbaar ontwerpen

Wat en waarom?

Een omkeerbaar ontwerp houdt rekening met het vermogen om het gebouw aan te passen om de levensduur te verlengen en de toekomstige ontmanteling en mogelijk hergebruik van elementen en materialen. Door een gebouw (deels) demonteerbaar uit te voeren, kan het na verloop van tijd terug gedemonteerd worden en kunnen de onderdelen hergebruikt worden, eventueel op een andere plaats en/of in een andere configuratie. Indien het gebouw volledig demonteerbaar is, heeft het slechts een tijdelijke impact op de omgeving.

Aan het einde van hun levensduur is het bovendien mogelijk om de gebruikte materialen gescheiden te houden van andere materialen en kan het recyclageproces hoogwaardig gebeuren.

Bij retailprojecten is het zeer interessant om de afwerking en niet-dragende binnenwanden demonteerbaar uit te voeren, omdat het interieur in een winkel sterk modegevoelig is. Bijvoorbeeld door het gebruik van systeemwanden, kunnen de wanden verplaatst worden zonder bouwkundige ingrepen.

Demonteerbare verbindingen

Het verbinden van componenten met onder meer lijm en mortel staat het hergebruik in de weg. Voor heel wat conventionele producten bestaat er een demonteerbaar alternatief. Denk aan het gebruik van schroeven, bouten, ophangen,...

Wens je toch te metselen, kies dan voor een zachte mortel, zoals kalkmortel. Stenen die verbonden zijn met een kalkmortel kunnen achteraf gemakkelijk gereinigd en hergebruikt worden.

Uitwerken van toekomstscenario’s

Door enkele toekomstscenario’s uit te werken voor het gebouw en deze in te tekenen in de bestaande plannen, zal duidelijk worden welke elementen gemakkelijk dienen aangepast te worden in de toekomst en welke dus idealiter demonteerbaar uitgevoerd moeten worden. Denk bijvoorbeeld aan een kantoorgebouw met individuele kantoren dat later mogelijks een landschapskantoor wordt, waardoor de binnenwanden verwijderd dienen te worden.

Demontageplan

Maak een demontageplan op. Dit is samen met de as-built tekeningen essentieel om de oorspronkelijke intenties jaren later waar te maken. Het bevat onder meer een inventaris van de gebruikte componenten, het laat zien welke elementen ontworpen zijn voor hergebruik en welke voor recyclage, het toont in welke volgorde de onderdelen gedemonteerd moeten worden, hoe ze ge(de)monteerd worden enz.

Voor meer informatie

zie principe

Hergebruik 12

Paspoort

Maak van het gebouw een (digitaal) bouwwerkpaspoort, dat aangevuld wordt met informatie over de gebruikte materialen en verbindingen, idealiter gelinkt aan een BIM-model. Zo kan je bijvoorbeeld door het klikken op een bepaald component alle beschikbare informatie inlezen, zoals de exacte lokalisatie, de afmetingen, de fysische eigenschappen, de gebruiksgeschiedenis, de staat, de bevestigingsmethode, het hergebruiken recyclagepotentieel,... Op deze manier kunnen doordachte keuzes gemaakt worden tijdens het gebruik van het gebouw en op het einde van zijn levensduur. Zo heeft men bij de ontmanteling weet van onder meer de demontagemogelijkheden. Een paspoort dient vlot toegankelijk en aan te passen zijn, zodat de informatie gemakkelijk te raadplegen en up to date is.

Eenvoud en hanteerbaarheid

Componenten die eenvoudig te plaatsen en te verwijderen zijn, kunnen ook in de toekomst gemakkelijk aangepast worden, zonder specifieke kennis of hulpmiddelen. Eenvoudige vormen en structurele systemen verhogen het verwijderingsgemak.

Hoe maak ik mijn gebouw toekomstgericht? Praktische gids voor opdrachtgevers

Onafhankelijke demontage

Om een snelle montage en demontage te garanderen, is het belangrijk dat de componenten zo vormgegeven zijn dat ze onafhankelijk van elkaar gemonteerd en gedemonteerd kunnen worden. Een extra voordeel is dat er zo plaatselijk een component verwijderd en vervangen kan worden, bijvoorbeeld bij lokale beschadiging.

Een open geometrie van de componenten staat een snelle demontage toe: Verschillende componenten kunnen op eenzelfde moment verwijderd worden. Dit is niet het geval voor een meer gesloten geometrie. Bron: Elma Durmisevic © Leefmilieu Brussel

Gestandaardiseerde onderdelen

Hergebruik in een nieuw ontwerp wordt eenvoudiger door gebruik te maken van gestandaardiseerde onderdelen met courante afmetingen en gestandaardiseerde verbindingen. Zo is er minder gereedschap nodig en kan de demontage efficiënter uitgevoerd worden. Tijdens het eerste gebruik vermijd je op deze manier ook de samenstelling van zeer specifieke onderdelen die vaak vervangen moeten worden, zoals onderdelen van technische installaties.

Verder kunnen onderdelen gebaseerd zijn op dimensionale standaarden waardoor ze binnen een bouwsysteem gemakkelijk te verwisselen en te combineren zijn.

Omkeerbaar ontwerpen

Prefabricatie

Hoe sneller de demontage op de werf kan gebeuren, hoe meer kans dat dit ook effectief zal gebeuren. Denk aan prefabmodules, waarbij kleinere onderdelen al in de fabriek geassembleerd worden tot een groter geheel. Deze modules kunnen vaak ook bij demontage als module gedemonteerd worden. Denk ook aan haken om de modules met de kraan op te heffen.

Twee Mobble-modules werden in de fabriek geassembleerd en afgewerkt op de site zelf © Inhout

Zichtbare verbindingen

Om in te zetten op een snelle demontage dienen de verbindingen tussen de verschillende onderdelen goed toegankelijk en zichtbaar te zijn. Door deze verbindingen op vaste afstanden te voorzien kan een esthetisch spel bereikt worden.

Hoe maak ik mijn gebouw toekomstgericht?

Praktische gids voor opdrachtgevers

In de eengezinswoning 'Adriaan' in Mariakerke werden de schroeven van de gipsplaten zichtbaar gelaten waardoor ze in de toekomst gemakkelijk te demonteren zijn. © Luc Roymans

Voor meer informatie zie principe

Beperkt materiaalgebruik

Indien minder (afwerkings)materialen gebruikt worden, bijvoorbeeld volgens het 'ruwbouw is afbouw'-principe, moeten er ook minder onderdelen gedemonteerd worden in de toekomst. Dit verhoogt de kans dat men in de toekomst het gebouw zal ontmantelen in plaats van slopen.

Door bijvoorbeeld geen verlaagde plafonds te voorzien, wordt het gebouw meer leesbaar en de initiële milieu-impact verlaagt.

In het kantoorgebouw van META werden de bakstenen muren niet bepleisterd en werd er geen verlaagd plafond voorzien © Filip Dujardin

Materialen en kringloopsluiting 15

Hoe maak ik mijn gebouw toekomstgericht?

Praktische gids voor opdrachtgevers

Circulaire business modellen

Wat en waarom?

Voor onderdelen van het gebouw die snel vervangen of veranderd worden, kunnen circulaire business modellen interessant zijn. Afhankelijk van het model blijft de producent eigenaar en betaalt de eindgebruiker een soort abonnementskost. Zo daalt de investeringskost van de opdrachtgever. Afhankelijk van het contract zijn onderhoud, vervangingen en aanpassingen inbegrepen.

Een circulair businessmodel biedt producenten bovendien een incentive om in te zetten op een circulair ontwerp, en het waarborgen van een hoge restwaarde. Zo biedt het de mogelijkheid om circulaire waarde te creëren door het sluiten van productkringlopen. Er zijn verschillende circulaire businessmodellen waarop ingezet kan worden.

Verkoop met terugnamegarantie

Bij een product met een terugnamegarantie neemt de producent het product terug na gebruik, al dan niet gekoppeld aan een vooropgestelde terugnameprijs. De gebouweigenaar wordt in dit geval dus wel eigenaar van het product, maar is zeker dat het teruggenomen wordt wanneer hij het niet meer nodig heeft. Zo kan afval een opbrengst worden.

Onderhoudscontracten

Het traditionele verkoopmodel wordt uitgebreid met een onderhoudscontract, dat verschillende diensten kan omvatten, zoals monitoring, preventief onderhoud, reparaties, vervangingen, en de levering van verbruiksgoederen zoals filters. De kosten voor deze diensten kunnen worden opgenomen in de initiële verkoopprijs van het product of kunnen worden verdeeld over periodieke betalingen in een afzonderlijk contract.

Leasing

Bij leasing geeft een producent of aanbieder het recht op gebruik van het product voor een vastgestelde periode over aan een afnemer tegen een vooraf afgesproken vergoeding, zonder dat de afnemer eigenaar wordt. Na het verstrijken van de overeengekomen termijn wordt het product weer teruggegeven aan de aanbieder.

Multi-functionaliteit en delen

Het gedeelde gebruik van goederen, infrastructuur en ruimtes in gebouwen kunnen gerealiseerd worden via vooraf bepaalde vergoedingen. Dit kan plaatsvinden tussen individuen, bedrijven en overheidsinstanties, en omvat praktijken zoals co-housing.

Hoe maak ik mijn gebouw toekomstgericht?

Praktische gids voor opdrachtgevers

Pay-per-use

De fabrikant of leverancier voorziet een oplossing voor een specifieke behoefte van de klant, meestal in de vorm van een dienst. In het geval van een pay-per-use contract betaalt de klant enkel wanneer hij van deze bepaalde dienst gebruik maakt. Bijvoorbeeld een hoeveelheid licht in plaats van de armaturen zelf.

In het Madouproject werd gepionierd door in het bestek circulariteit en product as a service expliciet op te nemen als een vereiste. Als resultaat werden onder meer de tapijttegels als dienst opgenomen in het project. © Signify, Jim Van Loo

Op het dak van het co-housingproject Waasland werden tweedehands zonnepanelen geplaatst. De bewoners huren of kochten de panelen niet aan, maar ze betalen een vooraf vastgestelde prijs per kWh elektriciteit aan de installateur en dienstverlener. Deze laatste blijft eigenaar van de installatie en staat in voor de monitoring, het preventieve onderhoud en herstelling ervan. © Alexander Meeus

Living-as-a-service

Het concept van "Living-as-a-Service" gaat verder dan het huren van een woning. De aanbieder is niet alleen verantwoordelijk voor de bouw en oplevering van de woningen, maar ook voor het beheer, onderhoud, en eventuele aanpassingen gedurende de gebruiksperiode om het noodzakelijke wooncomfort te waarborgen.

Informatiemanagement

Dit businessmodel omhelst het tegen een vergoeding beheren en verstrekken van informatie over het ontwerp, de architectuur, het gebruik en de einde levensduur van een product of gebouw aan de betrokkenen. Deze informatie kan technische, financiële, milieugerelateerde en andere gegevens omvatten.

Hoe maak ik mijn gebouw toekomstgericht?

Praktische gids voor opdrachtgevers

Materialenkringloopsluiting

Wat en waarom?

Om de kringloop te sluiten op materiaalniveau dient een gebouw opgebouwd te zijn uit materialen die perfect passen binnen de biologische of technische kringloop. Zo kunnen het gebouw en zijn onderdelen op het einde van hun levensduur ontmanteld worden en omgezet worden tot hoogwaardige, nieuwe materialen of als natuurlijke bemesting ingezet worden. Zo blijft er geen afval achter.

Indien een materiaal past in de technische kringloop kan men het upcyclen oftewel recycleren zonder kwaliteitsverlies en zo kunnen nieuwe, hoogwaardige materialen ontstaan.

Opgelet

Hergebruik van materialen dient te allen tijde verkozen te worden boven recyclage of biologische afbraak, zo wordt de milieu-impact van het productieproces en de verwerking op het einde van de levensduur verdeeld over verschillende gebruikscycli. Het recyclageproces heeft namelijk een grotere milieu-impact dan eenvoudig hergebruik. Echter voor producten die niet meer te hergebruiken zijn is het zeer relevant om de kringloop op materiaalniveau te sluiten.

Check zeker de milieu-impact van de volledige opbouw via TOTEM om gefundeerde materiaalkeuzes te maken.

Criteria

Beperkt materiaalgebruik

Indien minder (afwerkings)materialen gebruikt worden, bijvoorbeeld door te werken volgens het 'ruwbouw is afbouw'-principe, moeten er ook minder onderdelen gedemonteerd worden in de toekomst. Dit verhoogt de kans dat men in de toekomst het gebouw zal ontmantelen in plaats van te slopen en er dus minder materialen afgevoerd kunnen worden, wat hergebruik en een hoogwaardige recyclage bevordert.

Door bijvoorbeeld geen verlaagde plafonds te voorzien en de natte functies te centraliseren rond de technische kern, wordt het gebouw meer leesbaar en de initiële milieu-impact verlaagt.

In het GO! Talentschoolgebouw in Dendermonde werd tijdens de renovatie de binnenafwerking beperkt aangepakt, waardoor de nieuwe ingrepen zeer zichtbaar zijn ten opzichte van het bestaand gebouw. © Lucid

Materialenkringloopsluiting

principe op materiaalniveau

Beperkt gebruik van verpakkingen

Ga na hoe de producten getransporteerd worden. Is het mogelijk om verpakte producten te vermijden? Is de verpakking gestandaardiseerd en herbruikbaar, zoals houten paletten? Zo niet, verkies recycleerbare verpakking.

Upcyclebare materialen

Er zijn heel wat upcyclebare materialen die in de bouw kunnen worden gebruikt, zoals kurk, leem, glas, zink,... Deze materialen kunnen vrijwel zonder kwaliteitsverlies gerecycleerd worden.

In het BRIC-project werd de leempleister er afgeklopt en opnieuw ingezet door het toevoegen van water - Bron: bamb2020.eu

Hoe maak ik mijn gebouw toekomstgericht? Praktische gids voor opdrachtgevers

Hernieuwbare materialen

Gebruik hernieuwbare materialen die op korte termijn te telen en te oogsten zijn. Belangrijk hierbij is dat de hernieuwbare materialen continu aangevuld worden, waardoor er geen uitputting optreedt. Denk bijvoorbeeld aan stro, riet, kurk en zeegras.

Belangrijk hierbij is dat er geen stoffen worden toegevoegd zoals lijmen of brandwerende stoffen die de biologische afbreekbaarheid in het gedrang brengen, zoals vaak het geval is bij houtvezelisolatie en cellulose.

In het KARPER-project kreeg leem een prominente plaats: in de vorm van stampleem in een keukenmeubel en als leempleister voor de wandafwerking. Leem is een bijzonder materiaal: het behoort in principe tot de technische kringloop en kan dus perfect hoogwaardig gerecycleerd worden, maar het kan ook veilig teruggegeven worden aan de natuur. © Tim Van de Velde

In het KARPER-project werd stro gebruikt om de optopping te isoleren. Gezien de minder complexe opbouw van de wand verschilt de dikte van de wand niet zoveel van die van een conventionele buitenwand. © Hé Architectuur !

Materialenkringloopsluiting

op materiaalniveau

Beperk het aantal verschillende materialen

Om materialen hoogwaardig te kunnen recycleren en hernieuwbare materialen veilig te kunnen afbreken, dienen ze zuiver te blijven en niet vervuild te worden met andere materialen, die een andere afvalbehandeling nodig hebben. Door zo weinig mogelijk verschillende materialen met andere eigenschappen te gebruiken in een gebouw, zullen ze bij afbraak sneller te sorteren zijn en wordt een tijdsintensieve demontage/scheiding vermeden.

Zuivere materialen

Om materialen hoogwaardig te kunnen recycleren, dient de samenstelling goed gekend te zijn. Gebruik daarom pure materialen, met een eenvoudige samenstelling en gemakkelijk te herkennen, die niet nabewerkt worden. Synthetische toevoegingen zoals lijm, verf en vernis bemoeilijken het recyclageproces en geven bovendien vaak aanleiding tot emissies van vluchtige organische componenten (VOC’s) tijdens productie en gebruik. Over het algemeen behouden zuivere materialen ook beter hun waarde op lange termijn (bijvoorbeeld massief plaatmateriaal t.o.v. laminaat).

In de winkel ‘Moose in the City’ worden tapijten gebruikt van 100% wol. Gebruikt katoen en wol kregen een tweede leven als een soort viltachtig materiaal in de multifunctionele spievormige blokken. Het gebruikte materiaal kan uiteindelijk opnieuw worden gegranuleerd en gevormd tot nieuwe vilten platen. © PUUR

Hoe maak ik mijn gebouw toekomstgericht? Praktische gids voor opdrachtgevers

Beperkt aantal nabewerkingen

Onbehandelde en hernieuwbare materialen kunnen veilig afgebroken worden in de natuur. Indien een behandeling toch nodig is, kies dan voor een natuurlijke behandeling, zoals een thermische verduurzaming van hout, natuurlijke olie of zeep in plaats van synthetische middelen, zoals vernis of beits.

Hetzelfde geldt voor upcyclebare materialen. Nabewerkingen kunnen een hoogwaardige recyclageproces in de weg staan.

Biologisch afbreekbare verbindingen

Om het geheel biologisch te kunnen afbreken moeten niet enkel de materialen, maar ook de verbindingen afbreekbaar zijn. Door een afwerkingsplaat bijvoorbeeld te lijmen tegen de achterliggende structuur, zal deze niet langer afbreekbaar zijn.

Verbindingen van hetzelfde materiaal

Om materialen in de technische kringloop te doen passen, zijn de verbindingen dan eerder best uit hetzelfde materiaal vervaardigd. Zo kunnen ze samen hoogwaardig gerecycleerd worden.

Materialenkringloopsluiting 15 principe op materiaalniveau

Voor meer informatie zie principe

Demonteerbare verbindingen

Naast het gebruik van biologisch afbreekbare verbindingen, kunnen ook demonteerbare verbindingen gebruikt worden. Denk aan schroeven in plaats van lijmen. Zo kunnen de afbreekbare delen gescheiden worden van de niet-afbreekbare delen en kunnen de upcyclebare materialen hoogwaardig gerecycleerd worden.

Omkeerbaar ontwerpen 13

Hoe maak ik mijn gebouw toekomstgericht?

Praktische gids voor opdrachtgevers

Gezonde materialen

Om een tweede asbestproblematiek te vermijden, is het belangrijk om resoluut voor gezonde materialen te kiezen. Zo kunnen deze materialen zonder zorgen vandaag gebruikt en in de toekomst hergebruikt worden. Materialen dienen niet enkel REACH-conform te zijn, maar mogen ook geen schadelijke, hormoonverstorende stoffen bevatten.

Ecolabels type 1 die het materiaal onafhankelijk controleren op het gebruik van toxische of verdachte stoffen en de VOC-uitstoot kunnen daarbij een grote hulp zijn. Werk bijvoorbeeld met materiaalleveranciers die hier aandacht voor hebben.

Paspoort

Maak van het gebouw een (digitaal) bouwwerkpaspoort, dat aangevuld wordt met informatie over de gebruikte materialen en verbindingen, idealiter gelinkt aan een BIM-model. Zo kan je bijvoorbeeld door het klikken op een bepaald component alle beschikbare informatie inlezen, zoals de exacte lokalisatie, de afmetingen, de fysische eigenschappen, de gebruiksgeschiedenis, de staat, de bevestigingsmethode, het hergebruik- en recyclagepotentieel,... Op deze manier kunnen doordachte keuzes gemaakt worden tijdens het gebruik van het gebouw en op het einde van zijn levensduur. Zo heeft men bij de ontmanteling weet van onder meer de recyclagemogelijkheden. Een paspoort dient gemakkelijk toegankelijk te zijn en aan te passen, zodat de informatie gemakkelijk te raadplegen en up to date is.

Snelle demontage

Om de inzameling en de afvalverwerking te vereenvoudigen is het goed om ervoor te zorgen dat de onderdelen en zijn materialen gemakkelijk gedemonteerd en verkleind kunnen worden. Ook hier helpt het als er maar een beperkt aantal verschillende materialen gebruikt werden in het gebouw. Groepeer hiervoor bij de montage onderdelen in uniforme materiaalclusters.

Het kan daarbij interessant zijn om te werken met geprefabriceerde modules, die in de fabriek samengesteld worden. Deze modules of elementen zijn zowel snel te monteren op de werf als te demonteren op het einde van de levensduur van het gebouw. Daarnaast stijgt met het gebruik van prefab de kwaliteit en de uniformiteit van de gebruikte materialen en vermindert het geproduceerde bouwafval op de werf.

Aanvullende instrumenten

Het doel van deze publicatie is een eerste stap te zetten richting een toekomstgericht project. Aan de hand van de checklist, de voorbeeldprojecten en de principes kan een opdrachtgever toekomstgerichte ambities bepalen.

Een toekomstgericht bestek

Om er verder voor te zorgen dat deze toekomstgerichte ambities gerealiseerd zullen worden, worden ze best opgenomen in de bestektekst, bijvoorbeeld als gunningscriterium. De volgende publicaties kunnen daarbij helpen:

Vademecum circulair bouwen

Deze publicatie is gericht naar publieke opdrachtgevers. Het wenst de nodige ondersteuning te bieden om de algemene principes van een circulaire aanpak toe te passen. Dit vademecum is een leidraad die de opdrachtgevers kunnen volgen bij elke stap van hun project. Het biedt hen niet alleen een gedetailleerd inzicht in de algemene principes van de circulaire economie in de bouwsector, maar ook een aanpak die zij kunnen volgen om deze principes ook effectief op te nemen in hun project. Voor verschillende toekomstgerichte principes biedt de publicatie inspiratie voor clausules in de bestektekst.

via deze QR-code kom je op een online overzicht van aanvullende instrumenten

Draaiboek circulair aanbesteden

Dit document geeft inzichten hoe overheden via publieke aanbestedingen komaf kunnen maken met de laagste prijs als voornaamste gunningscriterium. Het onderzoekt voorbeeldbestekken en bekijkt of prestatiegerichte gunningscriteria zinvol en voldoende zijn om (ver)bouwoplossingen met betere kwaliteiten en prestaties zoals traditionele oplossingen te selecteren en te gunnen. Verder analyseert het hoe een overheid een koploper die als enige op de Vlaamse/ Belgische markt een bepaalde (circulaire) dienst aanreikt toch aanbesteed kan worden zonder een marktverstoring te creëren.

CircuBestek

Op basis van het Bouwtechnisch Bestek van Wonen in Vlaanderen (vroeger VMSW) werden alternatieve teksten opgemaakt met circulaire materialen en technieken.

Word een expert in toekomstgericht bouwen

Wil je nog meer te weten komen over toekomstgericht en duurzaam bouwen?

Dan raden we je aan de volgende tools verder te bekijken:

Praktijkgids circulair bouwen

Deze publicatie richt zich op een breed doelpubliek van opdrachtgevers, ontwerpers, aannemers en producenten. Het heeft als voornaamste doel deze verschillende actoren te begeleiden bij het in de praktijk brengen van innovatieve circulaire oplossingen en daarbij antwoorden te bieden op de belangrijkste vragen en bezorgdheden met aandacht voor de rol die elk van hen te spelen heeft.

Beleidsmatrix circulair bouwen

De publicatie richt zich op lokale besturen. Deze gids verkent inspirerende acties die een lokaal bestuur kan nemen om de shift naar een duurzame, circulaire bouw-economie te versnellen. Deze acties zijn in een overzichtelijke matrix samengebracht en met fiches en voorbeelden geïllustreerd.

Checklist Omkeerbaar Ontwerpen

Deze checklist, uitgebracht door het Brussels Hoofdstedelijk Gewest, is een vrijwillige ontwerptool die de opdrachtgevers en ontwerpers wil ondersteunen om omkeerbare en circulaire gebouwen te realiseren. Het gaat verder in detail op heel wat thema’s die in deze publicatie behandeld werden en maakt het tastbaarder. De checklist is opgevat als een kwalitatief ontwerpinstrument. Het kan al vroeg in het proces gebruikt worden, bijvoorbeeld bij de definitie van een programma van eisen, maar is ook een goede leidraad bij het maken van de eerste ontwerpschetsen of bij de opvolging van het project doorheen de verschillende fases.

Tool Circulair Gebouwd

De tool Circulair Gebouwd begeleidt je in het bepalen, opvolgen en evalueren van circulaire ambities in bouwprojecten. Het ondersteunt bouwpartners ook om hierover transparant te communiceren, van start tot oplevering. De scores drukken niet uit hoe circulair een gebouw is, maar tonen aan in hoeverre men op een bepaalde thematiek wil inzetten. Het doel is dus niet om 100% te halen op elk thema, maar wel om per project een ambitieus en realistisch percentage vast te leggen.

GRO

GRO is een instrument dat door de drie gewesten ondersteund wordt. Het meet en vergroot de duurzaamheid van bouwprojecten op een holistische manier. Het gaat dus breder dan de thema’s die in deze publicatie behandeld werden. De ambitie van GRO is om via een geïntegreerd ontwerpproces tot toekomstgerichte, comfortabele gebouwen te komen, waarin sterk wordt ingezet op circulair bouwen. Dit instrument kan zowel door opdrachtgevers als ontwerpteams gebruikt worden tijdens de verschillende fases van een privé en/of publiek project. GRO kan zowel voor nieuwbouw- en renovatieprojecten als herinrichtingsprojecten van bestaande gebouwen gebruikt worden

TOTEM

Een belangrijk doel van toekomstgericht (ver) bouwen is het verminderen van de milieuimpact van de bouwsector. Met de TOTEM-tool, ondersteund door de drie gewesten, wordt dit kwantificeerbaar. Deze tool, de Tool to Optimise the Total Environmental impact of Materials helpt de Belgische bouwsector de milieuimpact van gebouwen te objectiveren en te verminderen. Zo kunnen verschillende materiaal- en ontwerpkeuzes ten opzichte van elkaar afgewogen worden. Dit kan helpen om belangrijke beslissingen te maken.

Level(s)

Het Europees initiatief Level(s) biedt een gemeenschappelijke taal voor het beoordelen van en rapporteren over de duurzaamheidsprestaties van gebouwen, van ontwerp tot einde levensduur. De tool maakt gebruik van kernindicatoren voor duurzaamheid om de impact op koolstof, materialen, water, gezondheid, comfort en klimaatverandering te meten gedurende de volledige levenscyclus van een gebouw. Level(s) is open source en vrij beschikbaar voor iedereen.

Gids Duurzame Gebouwen

De Gids Duurzame Gebouwen van Leefmilieu Brussel is bedoeld voor bouwprofessionals. De dossiers, technische oplossingen en casestudies werden geschreven door gespecialiseerde adviesbureaus. Volgens 10 thema’s kan je je verdiepen in circulaire economie, energie, fysieke omgeving, materialen, water, comfort, mobiliteit, beheer & werf, natuur en akoestiek.

Colofon

Deze publicatie geeft opdrachtgevers een houvast bij het bepalen van toekomstgerichte ambities van hun (ver)bouwproject. Deze publicatie werd uitgevoerd door CERAA asbl en archipelago architects nv in opdracht van de OVAM.

Titel publicatie: Hoe maak ik mijn gebouw toekomstgericht? Een praktische gids voor opdrachtgevers. 2023.

Uitgever: V.U. OVAM, Stationsstraat 110, 2800 Mechelen D/2023/5024/16

Aantal bladzijden: 140

Datum publicatie: november 2023

Trefwoorden: toekomstgericht bouwen, veranderingsgericht bouwen, circulair bouwen, voorbeeldprojecten, ambities, checklist, principes

Auteur: Mieke Vandenbroucke, Joost Declercq, Eliah Mallants, Maarten Lambrechts, Wendy Boswell

Layout: Camille Marot

Contactpersonen: Karlien Wauters, OVAM, karlien.wauters@ovam.be, ovam.vlaanderen.be

Disclaimer

Deze publicatie geeft opdrachtgevers een houvast bij het bepalen van toekomstgerichte ambities van hun (ver)bouwproject. Deze gids vervangt dus geenszins de wetgeving, en bij interpretatie- en toepassingsproblemen is het steeds de wet die primeert. Het is steeds aangeraden een architecten- en/ of studiebureau te contacteren bij de uitwerking van een (ver)bouwproject.

Hoewel de makers van deze publicatie met uiterste zorg de copyrights van de afbeeldingen hebben proberen te achterhalen, kunnen fouten en onvolledigheden niet worden uitgesloten. Als dit laatste het geval zou zijn, kunt u dit melden aan de communicatiedienst van OVAM.

V.U. OVAM, Stationsstraat 110, 2800 Mechelen D/2023/5024/16 ovam.vlaanderen.be cover ©archipelago

Turn static files into dynamic content formats.

Create a flipbook
Issuu converts static files into: digital portfolios, online yearbooks, online catalogs, digital photo albums and more. Sign up and create your flipbook.