LUXE
CONSTRUCTION

DESIGN CONSULTANT GUIDE



Soft neutral tones and refined detailing create a timeless interior character. Natural light and balanced proportions shape comfortable



interiors expressed through simplicity, warmth, and subtle textures. Each space is designed to feel open, functional,



A contemporary interior language defined by natural materials and clean lines. Balanced and thoughtful layouts enhance both




Warm wood textures and soft lighting create a calm, modern interior atmosphere. Spaces are designed for functionality and

form and use.�
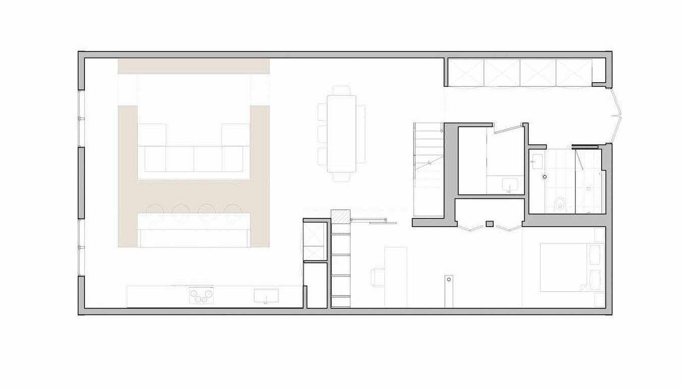
A warm, modern kitchen-dining space where natural wood tones meet clean white surfaces for everyday comfort.




A sleek minimalist kitchen design focused on symmetry, soft lighting, and seamless built-in storage.
















Correlated Color Temperature

Efficacy: 1
Lamp Life: 750–1,000 hours
Ballast/Transformer: no
Start-to-Full Output: instant
Efficacy: 2
Lamp Life: 2,000–3,000 hours
Ballast/Transformer: no
Start-to-Full Output: instant
Efficacy: 2 Lamp Life: 2,000–4,000 hours
Ballast/Transformer: yes
Start-to-Full Output: instant
Efficacy: 5 Lamp Life: 18,000–24,000 hours
Ballast/Transformer: yes
Start-to-Full Output: nearly instant
Efficacy: 5
Ballast/Transformer: yes
Start-to-Full Output: nearly instant
Efficacy: 5 Lamp Life: 10,000–20,000 hours
Ballast/Transformer: yes
Start-to-Full Output: 5 –10 minutes
Comparative Correlated Color Temperature
Ballast/Transformer: yes Start-to-Full
at Ceilings

Contrast of Hue
The simplest of the rules, contrast of hue, functions at the extremes of undiluted colors at the greatest luminosity. Solutions that use contrast of hue have a visual vibrancy and playful intensity. This contrast always requires three colors, and it is important to note that the effect lessens as the colors move away from Itten’s three primaries.
Light-Dark Contrast
Light-dark contrast exists in the relationship be tween black and white—as well as in the range of grays that exist between them. Itten saw gray as an essentially achromatic color, shifting in -rela tionship depending on the colors that surround it. The key to this contrast is a deeper understand ing of shading and its effects.

Complementary Contrast
Complements occur when two hues are mixed and the result is a neutral gray-black. (In additive color systems, the result will be white.) Every color within a color system has its complement; finding a com plementary color is a simple matter of selecting opposite colors on Itten’s wheel. In complementary contrasts, colors balance each other.

C o l d - Wa r m C o ntr a s t
Particular colors can affect the relative comfort of a room at a specific temperature. In fact, a perceptual change in physical temperature occurs in spaces when they are painted in cold versus warm colors. For Itten, cold-warm contrasts were highly versatile in their expressive powers.

Contrast of Saturation

Color can be diluted via four methods to obtain different results: Adding white makes a color cooler; adding black reduces the overall vitality of a color and renders it more subdued and, in the absence of light, quite dark; adding gray reduces the intensity of a color and tends to neutralize it; adding the complementary color produces various effects, depending on the intensity of the colors being mixed, their relative temperature, and their hue.

Paint Type Description
Primer Paints With all finish paints, the success of the final surface depends on the preparation of the wall or object being painted. It is common practice to prime a wall prior to painting; adding a few drops of the paint color into the primer allows for better concealment and coverage. Primers are also often necessary when changing from one sheen to another. Primers should be used for the following conditions: all uncoated surfaces, wallpaper, patched/repaired areas, paneling, stained areas, existing oil-based paint, and dramatic changes in color.
Latex Paints Latex paints are made with a synthetic polyvinyl material that is water solu ble, allowing for easy clean up. Latex paints dry more quickly than oil-based paints and release less off-gassing odor as they dry. Their fast-drying prop erties permit quicker recoating. Latex paints are also more elastic than oil-based paints and, as such, are less prone to substrate cracking.
Alkyd Paints Oil paints tend to be more durable and resistant to wear and tear. Made with an alkyd base, they dry much more slowly than latex paints. Conse quently, they produce smoother finishes since brush strokes and other discrepancies tend to disappear as the paint layer levels itself.
Enamel Paints Enamel paints dry to an extremely hard and durable finish. This finish is usually made by adding varnishes and other hardeners to a base paint. Enamels are used on walls, but also on appliances, signage, and other items that need a waterproof coating.
Stains and Varnishes
Contrast of Extension
Contrast of extension refers to the relative force that a color exerts in relation to the other colors in a system. Depending on the hue and value of a color, careful consideration must be taken to balance the addition of another color. The result is a ratio that harmonizes the colors in play. Of all the contrast rules, this is perhaps the most subjective.

Stains, an alternative to paint, are color finishes that absorb into the ma terial they are being applied to—usually wood. Stains come in a range of transparencies, controlling how much of the substrate remains visible once the stain is applied. Stains are unsuitable as finishes alone and need to be varnished to create a durable surface. Varnishes are transparent films and are available in several sheens.
Paint Sheen Description
Flat not reflective; hides surface imperfections, but makes it difficult to remove stains; good for low-traffic areas
Eggshell more reflective than a flat paint; hides surface imperfections and stains can be scrubbed out; ideal for medium-traffic areas
Satin minimal gloss, but more reflective than eggshell; provides a durable fin ish that is easier to clean than flat or eggshell; good for most spaces
Semigloss slightly glossy appearance; highly durable and easily cleaned, also moisture-retardant; good for wet areas
Gloss very reflective; good for highlighting detail such as trim and moldings; ideal for doors and cabinets
Ceiling Flats spatter-resistant; designed especially for painting ceilings
Surface Preparation
Surface Prep Description
Primers As with paint preparation, a primer coat provides a clean surface for
application of the covering.
S