Elzenweide Brochure

Page 1


17 DUURZAME WONINGEN IN ‘S GRAVENMOER

Landelijk en modern wonen

Rust, ruimte en een warme gemeenschap, dat is wonen in Elzenweide.

Dit kleinschalige nieuwbouwproject aan de rand van ‘s Gravenmoer biedt zes rijwoningen, tien twee-onder-een-kapwoningen en een vrijstaande woning. Speciaal ontworpen voor gezinnen die op zoek zijn naar comfort, kwaliteit en een fijne woonomgeving. Hier geniet je van het beste van twee werelden: de gemoedelijkheid van een dorp en de voorzieningen van de stad binnen handbereik.

Rust, natuur en centrale ligging

Elzenweide ligt in het sfeervolle ’s Gravenmoer, een dorp waar rust en natuur hand in hand gaan met moderne voorzieningen. In de directe omgeving vind je uitgestrekte natuurgebieden waar je heerlijk kunt wandelen, fietsen en ontspannen.

Dankzij de centrale ligging ben je snel in Dongen, Waspik of Kaatsheuvel, en via de A27, A58 en A59 bereik je eenvoudig Tilburg, Breda en ’s-Hertogenbosch. In het dorp zelf vind je winkels, gezellige horeca en goede scholen, en voor sportliefhebbers zijn er diverse verenigingen zoals Voetbalvereniging O.N.I. en Tennisclub De Wiel. Of je nu wilt hardlopen, wielrennen of gewoon genieten van het buitenleven, in Elzenweide woon je midden in het groen, met alles binnen handbereik.

‘S

Gevarieerd en duurzaam wonen

Elzenweide wordt een gevarieerd en sfeervol woongebied aan de rand van ’s Gravenmoer, waar rust en ruimte samenkomen. Hier verrijzen zes rijwoningen, tien twee-onder-een-kapwoningen en één vrijstaande woning. De architectuur sluit perfect aan bij de eerder gerealiseerde woningen, waardoor een harmonieus straatbeeld ontstaat.

Elke woning is standaard voorzien van een ruime uitbouw van 2,40 meter, wat zorgt voor extra wooncomfort. Daarnaast geniet je van een royale achtertuin en een groene, waterrijke omgeving die het buitenleven benadrukt. Parkeren kan op eigen terrein of in het openbaar, met voldoende plekken in de buurt.

Het worden duurzame en energiezuinige woningen, voorzien van triple glas, een individuele lucht/water warmtepomp en een aantal zonnepanelen. Comfortabel leven zoals je dat mag verwachten van een nieuwbouwwoning.

De woningen in Elzenweide hebben een verzorgde uitstraling. Dit zetten we binnen voort. De rijwoningen hebben een rechte keuken en de hoekwoningen een tweedelige keuken met een kook/spoelgedeelte en aan de overkant twee hoge kasten met diverse apparatuur. Uiteraard ontbreekt ook de vaatwasser niet. De badkamer op de eerste verdieping heeft een toilet, wastafel en douche met sanitair van Villeroy & Boch.

Bij de koop van een twee-onder-een-kap of vrijstaande woning hoort een prachtige eilandkeuken met apparatuur van Siemens, inclusief kookplaat met geïntegreerde afzuiging. Ook hier is het mooie sanitair van Villeroy & Boch.

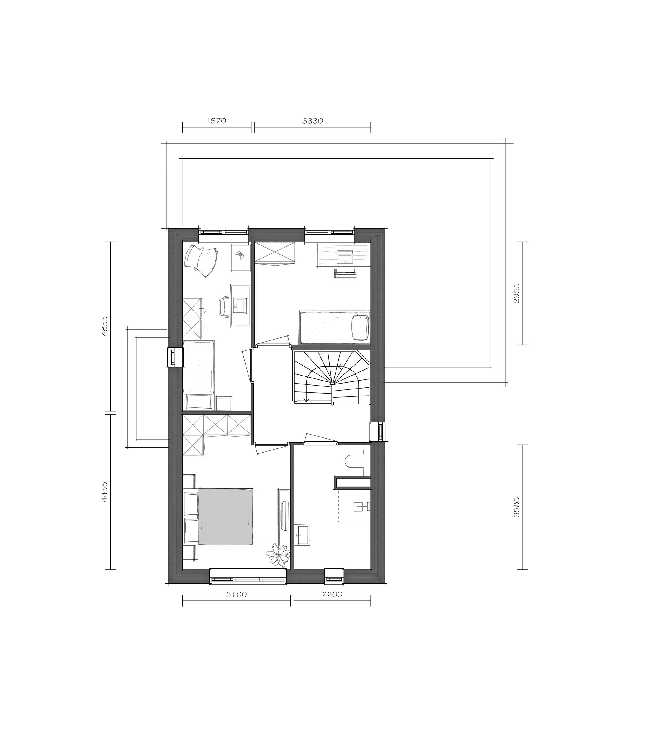
Type D Tussenwoning

111 m2 woonoppervlak

Type C Hoekwoning

135 m2 woonoppervlak

Type B Twee-onder-een-kapwoning 158 m2 woonoppervlak

Type A Vrijstaande woning 162 m2 woonoppervlak

Geniet van het buitenleven in je eigen achtertuin

Type D

Tussenwoning

Kavels 13 t/m 16

Type D is een mooie opstap in je wooncarrière, en wat voor een. Met een woonoppervlak van 111 m2 en een kavel van circa 120 m2 een buitenkans in ’s Gravenmoer.

Type D Tussenwoning

Kavels 13 t/m 16

KENMERKEN

• Woonoppervlakte circa 111 m2

• Kavelgrootte van circa 120 m2

• Lichte woonkamer met schuifpui

• Complete keuken met inductiekookplaat, afzuigkap, vaatwasser en magnetron

• Drie slaapkamers op de eerste verdieping, waarvan één woningbreed

• Complete badkamer met douchehoek, wastafel en toilet

• Vrij in te delen zolderverdieping

• Aparte technische ruimte met opstelling WTWunit, warmtepomp en wasmachine

• Parkeren in openbaar gebied

• Separate houten berging met buitenunit luchtwarmtepomp

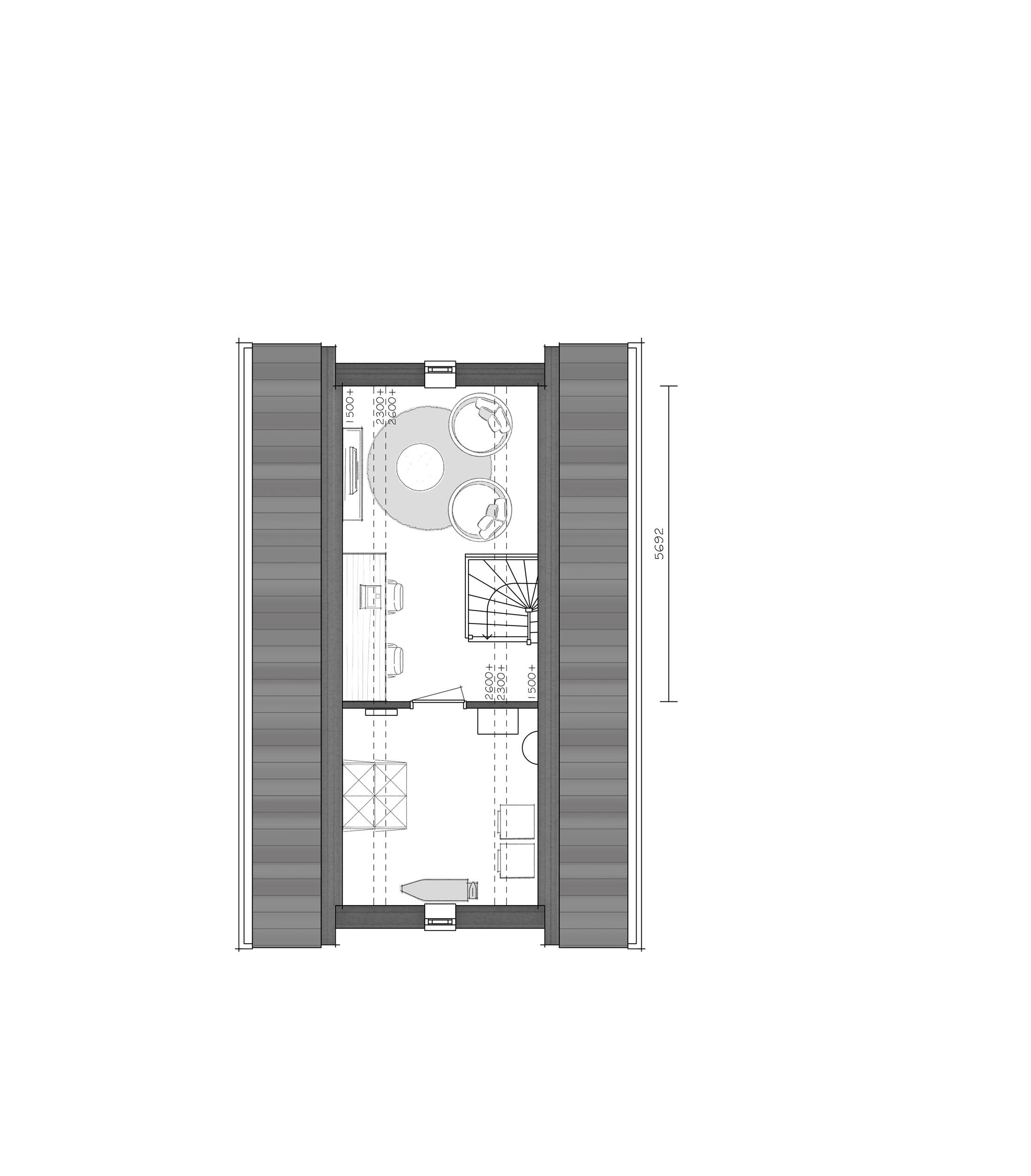
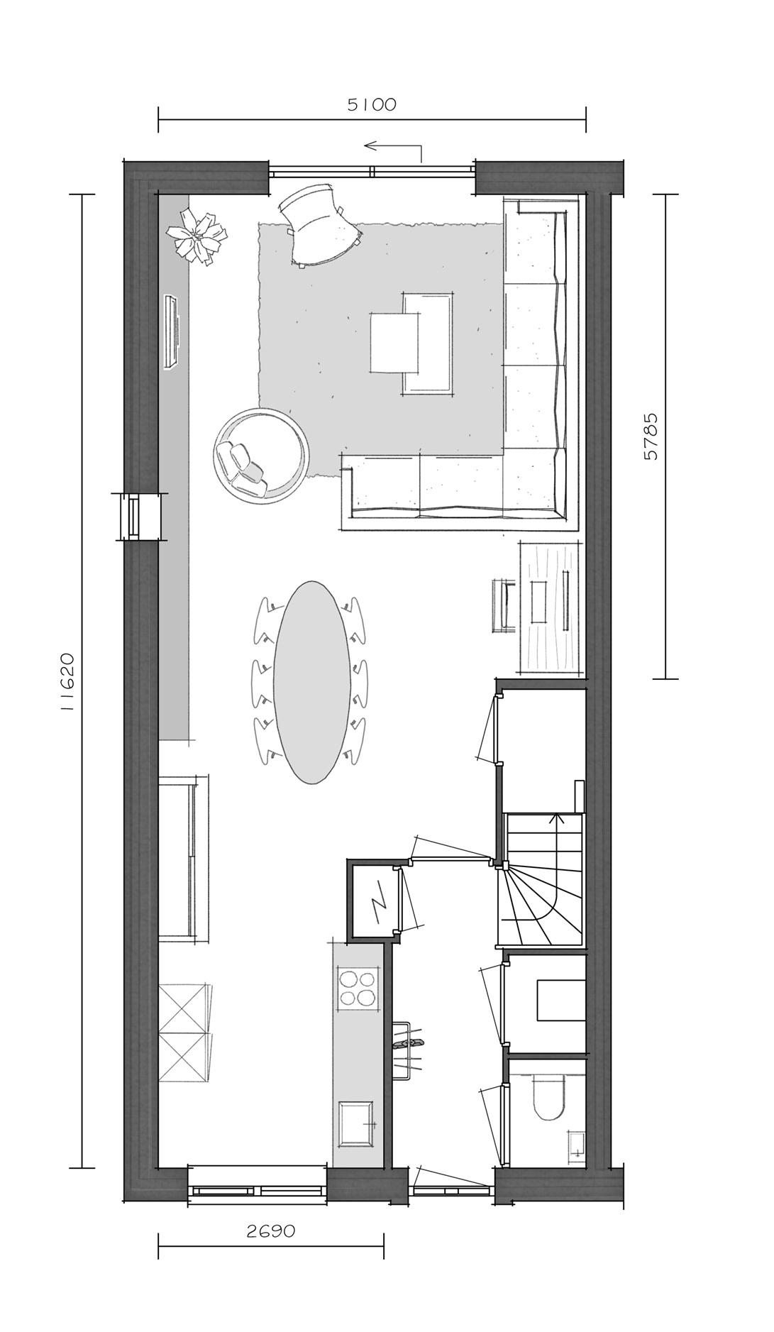
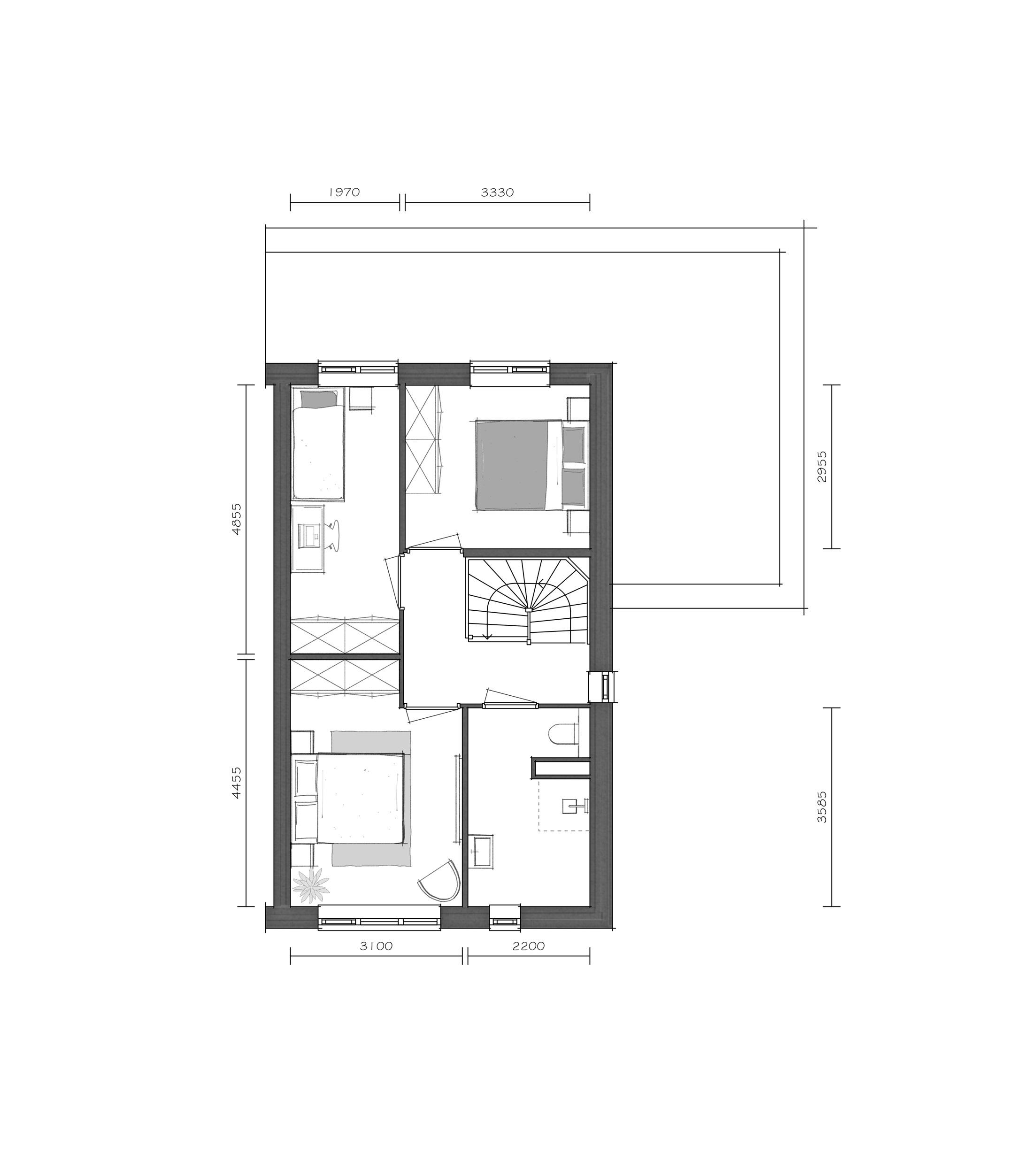
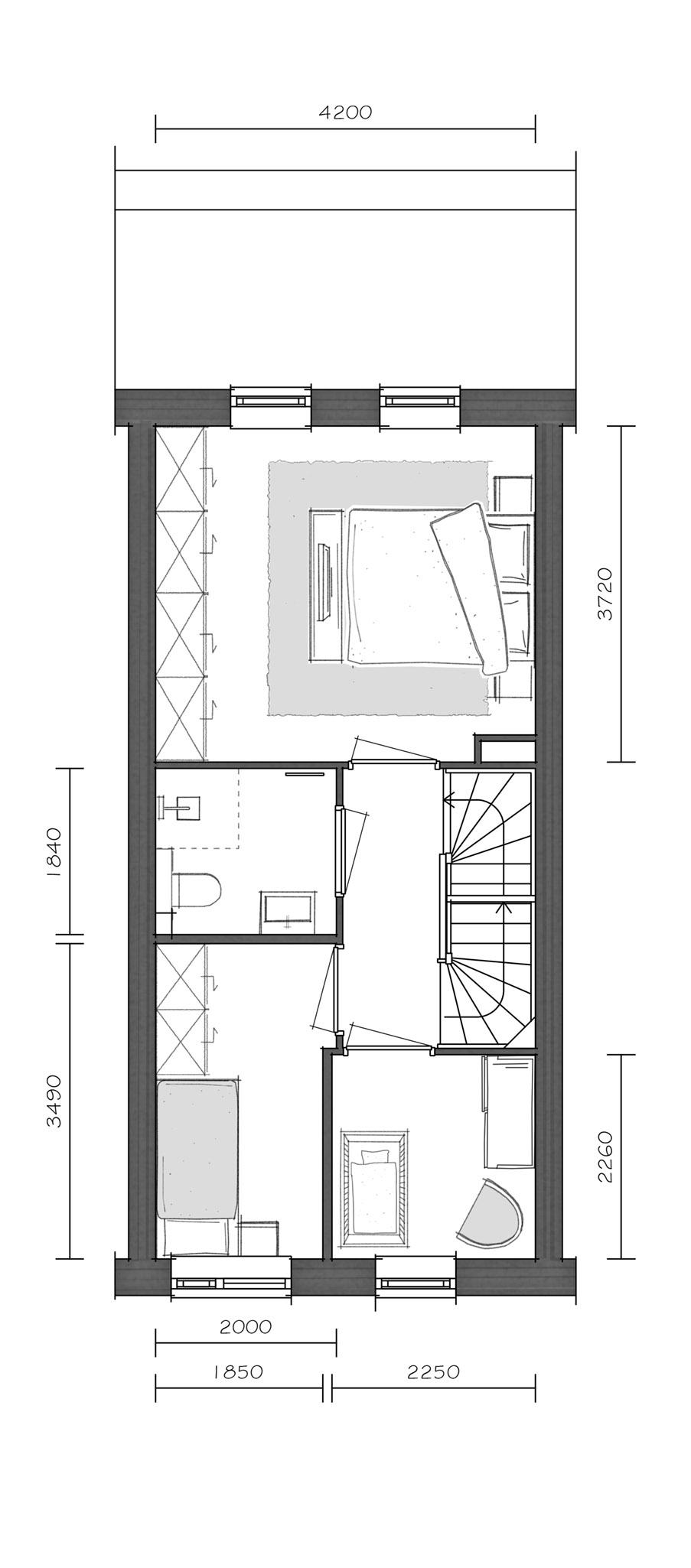
Type C

Hoekwoning

Kavels 12 en 17

Deze heerlijke hoekwoning met een woonoppervlakte van 135 m2 vormen samen met type D een fraai rijtje. De standaard uitbouw van 2,40 m maakt van de riante woonkamer een heerlijke ruimte.

Type C Hoekwoning

Kavels 12 en 17

KENMERKEN

• Woonoppervlakte circa 135 m2

• Kavelgrootte van circa 167 of 171 m2

• Riante tuingerichte woonkamer van circa 40 m2 met schuifpui

• Complete keuken met inductiekookplaat, afzuigkap, vaatwasser en magnetron

• Drie slaapkamers op de eerste verdieping

• Complete badkamer met inloopdouche, wastafel en toilet

• Ruime, vrij in te delen zolderverdieping

• Aparte technische ruimte met opstelling WTWunit, warmtepomp en wasmachine

• Parkeren in openbaar gebied

• Separate houten berging met buitenunit luchtwarmtepomp

rij hoek laag 0 tuin.jpg

Type B

Twee-onder-eenkapwoning

Kavels 2 t/m 11

Deze riante twee-onder-een-kapwoningen vormen een mooie afsluiting van de wijk. De standaard uitbouw en aparte werk- of speelkamer zorgen voor een benedenverdieping waar iedereen zijn plek kan vinden.

Type B

Twee-ondereen-kapwoning

Kavels 2 t/m 11

KENMERKEN

• Woonoppervlakte circa 158 m2

• Kavelgrootte tussen 333 m2 en 340 m2 met zonnige tuin

• Royale woonkamer van bijna 55 m2

• Luxe eilandkeuken met inductiekookplaat met integraal afzuigsysteem, losse hoge kasten, vaatwasser en magnetron van Siemens

• Drie slaapkamers op de eerste verdieping

• Luxe badkamer met inloopdouche met glazen douchewand, wastafelmeubel en toilet

• Ruime, vrij in te delen zolderverdieping

• Aparte technische ruimte met opstelling WTW-unit, warmtepomp en wasmachine

• Inpandige berging

• Een parkeerplaats op eigen terrein

IMPRESSIE TUIN

Type A Vrijstaande woning

Kavel 1

Met recht uniek binnen Elzenweide, want de enige vrijstaande woning. Gelegen aan de rand van het plan met prachtig uitzicht over weilanden, dat extra goed zichtbaar is door de erker in de zijgevel. En wat te denken van de royale woonkamer van 57 m2? Echt een buitenkans!

Type A Vrijstaande woning

Kavel 1

KENMERKEN

• Woonoppervlakte circa 162 m2

• Kavel van circa 432 m2

• Fraaie erker met vrij uitzicht over de weilanden

• Luxe eilandkeuken met inductiekookplaat met integraal afzuigsysteem, losse hoge kasten, vaatwasser en magnetron van Siemens

• Drie slaapkamers op de eerste verdieping

• Luxe badkamer met inloopdouche met glazen douchewand, ligbad, wastafelmeubel en toilet

• Ruime, vrij in te delen zolderverdieping

• Aparte technische ruimte met opstelling WTWunit, warmtepomp en wasmachine

• Inpandige berging

• Een parkeerplaats op eigen terrein

Groen geluk in Elzenweide

Wonen in Elzenweide betekent een frisse start in een groene, ruim opgezette woonomgeving. Een idyllisch dorp waar rust, ruimte en natuur samenkomen. Maar een huis is pas echt een thuis wanneer de tuin een verlengstuk wordt van je woning. Een plek waar je kunt ontspannen, waar kinderen veilig kunnen spelen en waar je samenkomt met familie en vrienden. Daarom helpen wij je niet alleen aan een prachtige woning, maar ook aan de tuin van je dromen.

Ontsnap naar jouw eigen groene plek Hoe zou het zijn om naast een nieuw huis ook direct een tuin te hebben die perfect bij je past? Een plek waar je:

• Tot rust komt en ontsnapt aan de drukte van alledag.

• Geniet van het moment, ontspannen in de zon met een goed boek of een drankje.

• Blije kinderen ziet spelen in een veilige en inspirerende groene omgeving.

• Gezellige momenten beleeft met vrienden en familie, met voldoende ruimte voor iedereen.

Krijg hulp bij het realiseren van jouw droomtuin. Als bewoner van Elzenweide krijg je exclusieve toegang tot Groen Geluk, een uniek concept waarbij tuinontwerper Esther den Braven, van Ontwerp je tuin met Esther, je stap voor stap begeleidt in het ontwerpen en realiseren van jouw ideale tuin.

Met een praktische online cursus leer je:

• Hoe je je tuin slim ontwerpt, afgestemd op jouw wensen en levensstijl, zodat je optimaal kunt genieten van jouw buitenruimte.

• Welke planten het beste passen bij de omstandigheden van jouw tuin (zon, schaduw, grondsoort, vochtigheid), zodat je tuin er het hele jaar door mooi, bloeiend en gezond uitziet.

• Hoe je je tuin aantrekkelijk maakt voor vlinders, bijen en andere nuttige dieren, zodat je bijdraagt aan een gezonde biodiversiteit.

• Op welke manieren je je tuin duurzaam en onderhoudsvriendelijk kunt inrichten, waardoor je er met minimale inspanning lang van kunt genieten.

• Hoe je je budget optimaal benut en fouten voorkomt die onnodig geld kosten, en je dus efficiënt investeert in een tuin die perfect bij je past.

• Welke regels gelden rondom erfgrenzen en hoe je daar rekening mee houdt in je ontwerp, zodat je zonder zorgen en gedoe met je buren je tuin kunt aanleggen.

Samen op weg naar jouw droomtuin

Met videolessen, e-books, handige sjablonen en praktische tools helpen we je op weg. Of je nu zelf aan de slag gaat of hulp inschakelt, we zorgen samen voor een concreet plan waarmee jouw tuin een prachtige aanvulling wordt op je nieuwe woning.

Het resultaat: jouw perfecte tuin

Wanneer je de cursus volgt, heb je niet alleen een goed doordacht tuinontwerp, maar ook de kennis en het vertrouwen om jouw tuin daadwerkelijk te realiseren. Je weet precies welke planten waar passen, hoe je jouw buitenruimte optimaal benut en hoe je een duurzame en onderhoudsvriendelijke tuin creëert. Jouw tuin wordt een plek waar je kunt ontspannen, genieten en samenkomen met familie en vrienden.

Groen Geluk als cadeau bij de aankoop van jouw woning

Wanneer je een woning koopt in Elzenweide, krijg je deze complete tuinbegeleiding cadeau! Wil je extra persoonlijke ondersteuning? Dat kan! Er zijn mogelijkheden voor 1-op-1 sessies, begeleiding tot aan de aanleg van jouw tuin en je kan zelfs alles uit handen geven en een tuinontwerp laten maken.

Maak van je huis en tuin een plek waar je écht gelukkig bent. Word ook Groen Gelukkig in Elzenweide!

De ideale keuken past natuurlijk precies bij jouw nieuwe woning, maar ook bij jouw persoonlijke wensen en leefsituatie. Onze ervaren adviseurs brengen daarom graag samen jouw keukenwensen tot leven in onze winkel in Den Bosch Omdat Bruynzeel Keukens vanaf moment één betrokken is bij project Elzenweide zijn wij altijd helemaal op de hoogte van alle ontwikkelingen en mogelijkheden binnen dit project. Dat is wel zo handig!

Speciale keukenontwerpen

Voor elk type woning in project Elzenweide hebben wij speciaal een keuken ontworpen, passend bij de stijl, aansluitpunten en beschikbare ruimte in de woning. Zo ben jij verzekerd van een handige indeling in combinatie met duurzame materialen en apparatuur. Deze keuken wordt standaard meegeleverd in de prijs van de woning. In een speciale keukenbrochure brengen we je verder op de hoogte van het ontwerp en alle opties op het gebied van kleuren, grepen en werkbladen.

Al vanaf 1918 is Plieger specialist op het gebied van sanitair. Bij Plieger geloven we in de kracht van een badkamer die niet alleen mooi is, maar ook bijdraagt aan een gezonde levensstijl van rust en ontspanning. Bezoek onze website en bekijk inspiratie zoals ons magazine, informatie en handige blogs over badkamers en toiletruimtes. In onze showrooms vind je een breed assortiment van badkamers en toiletten. Van luxe sanitair tot praktische accessoires, alles is er om jouw droombadkamer of toilet helemaal naar jouw wens te maken. Onze verkoopadviseurs staan voor je klaar om je te helpen bij het maken van de juiste keuzes. Wij bieden een complete service aan, van idee tot installatie.

Plieger heeft 20 showrooms verspreid over heel Nederland, zodat er altijd een showroom bij jou in de buurt is.

Voordelen van Plieger Showrooms:

• Wij helpen je met het upgraden van een bestaande badkamer tot de realisatie van een volledig nieuwe/verbouwde badkamer

• Je vindt een Plieger Showroom altijd in de buurt

• Dé plek voor trends en inspiratie

• Alle A-merken onder één dak

• 3D-ontwerp van je badkamer

• Mooie tegelcollectie

Verkoopinformatie

Een uniek project als Elzenweide vraagt om een toegewijd verkoopteam met goede makelaars. Team Elzenweide Bestaat dan ook uit uiterst vriendelijke en professionele Lokale makelaars met hart voor onderscheidende projecten.

Makelaar

Van de Water Groep nieuwbouw@vandewatergroep.nl 0162-447 447

Meer weten over nexthome of jouw mogelijkheden in Elzenweide?

• Kijk op www.nexthome.nl. Of bel gelijk 0186-745772 en vraag naar Miriam, Daniëlle of Marco.

• Zij zijn jouw hypotheekspecialisten voor Elzenweide. Je kunt Miriam, Daniëlle of Marco uiteraard ook mailen.

• Lagere maandlasten, betere hypotheekvoorwaarden en lage advieskosten; je kunt het allemaal bereiken met een Elzenweidehypotheek. Kopers (en potentiële kopers) van een woning in Elzenweide kunnen profiteren van de kennis en mogelijkheden van de hypotheekspecialisten van NEXTHome, de financiële partner van Dura Vermeer.

Waarom naar NEXTHome voor je hypotheek?

• Voorkom onjuiste of onvolledige informatie uit de commerciële hypotheekwereld, ga voor de perfecte koopervaring

• Keuken, vloeren, wanden en alle andere extra’s zijn gewoon mee te financieren

• Uitmuntende overbruggingsmogelijkheden voor kopers die nu al een eigen woning hebben

• Geen dubbele maandlasten indien gewenst

• Bepaal zélf je ideale maandlast

• Best-Buy-hypotheek, onafhankelijk

• Lage kosten (totale advies- en bemiddelingskosten slechts € 1375,-), hoge service

• Vrijblijvend en kosteloos advies

Colofon

Ontwikkeling en realisatie

Dura Vermeer Bouw Zuid BV

Pettelaarpark 1

Postbus 5066 5201 GB ‘s-Hertogenbosch T 073 528 89 11 www.duravermeer.nl

Makelaar Van de Water Groep Keiweg 24 4901 JA Oosterhout nieuwbouw@vandewatergroep.nl 0162-447 447

Notaris Huijbregts Notarissen ‘s Hertogenbosch T 073 691 87 87

Financieel adviseur NEXTHome Nieuwbouwhypotheken 0186 745 772

Ontwerp en realisatie brochure Scrambled Ads

Disclaimer

Deze brochure is bedoeld om de geïnteresseerden van dit project een globaal inzicht te geven in het plan en de woningtypen. De in deze brochure getoonde impressies, plattegronden en gevels zijn alleen bedoeld om je te helpen een goede keuze te maken. Deze brochure maakt geen deel uit van de contractstukken. Tijdens het gesprek met de makelaar worden de contractstukken van de woning verstrekt. Aan deze brochure kunnen dan ook geen rechten worden ontleend.

© 2025

Turn static files into dynamic content formats.

Create a flipbook
Issuu converts static files into: digital portfolios, online yearbooks, online catalogs, digital photo albums and more. Sign up and create your flipbook.