25 Oak Street, Wolfeboro NH 03894

Page 1

25 Oak Street

Welcome to your new home!

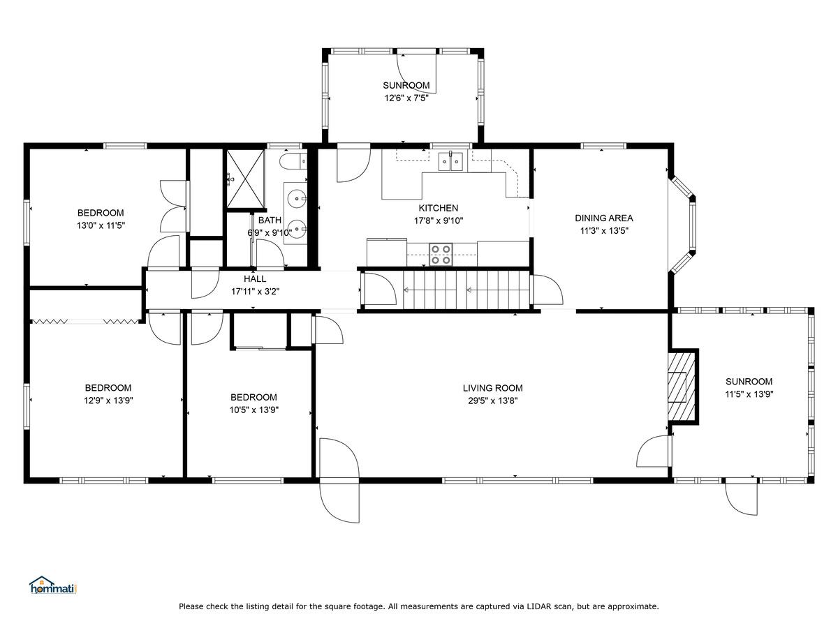
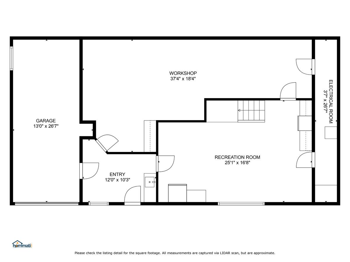
Location, location, location! This four bedroom two bathroom classic home is located at the end Oak Street which is within walking distance to downtown Wolfeboro Situated next to “Sewall Woods”, a 179 acre conversation area with walking/cross country and bike trails Beautiful custom details can be found in the home such as custom cabinetry, hardwood floors, and two sun rooms! The large sun filled living room has a gas fireplace. Two bedrooms can be found on the first floor that share a full bath with the remaining two bedrooms found upstairs with their own shared bath. The walk out basement has a large workshop as well as a game room and a one car garage Enjoy the convenient location as well as acres of adjoining privacy

25 Oak Street is offered at $599,000.

Sunroom

Living Room

Dining Areas

Kitchen

Bedroom

Bedroom

Bedroom

Office Space

Recreational Room and Workshop

Deck

Exterior Photos

Floor Plans

Floor Plans

Floor Plans

FINDOUT MORE THEDOWGROUP.COM MARGOT SKELLEY MARGOT@THEDOWGROUP.COM DIRECT: 866-525-3946 Office: 603-569-4663

Turn static files into dynamic content formats.

Create a flipbook
Issuu converts static files into: digital portfolios, online yearbooks, online catalogs, digital photo albums and more. Sign up and create your flipbook.