187 Bailey Rd Effingham, NH 03882

Page 1

2,504 SQFT 3 B A T H S 3 BEDS 187 Bailey Road EFFINGHAM, NEW HAMPSHIRE THEDOWGROUP.COM Welcome to Bailey Point! FOR SALE

peacefully resting on a picturesque 6-acre Peninsula

THEDOWGROUP.COM

Welcome to Bailey Point, peacefully resting on a picturesque 6-acre peninsula, offering over 1000 feet of waterfrontage, providing an unparalleled sanctuary Impeccably restored, this charming 3-bedroom farmhouse exudes timeless elegance and offers endless opportunities Wide pine floors and exposed beams showcase the historic character Discover built-in shelving, an inviting entryway, and a stone fireplace that adds to the charm The kitchen impresses with tall custom cabinets, a walk-in pantry, and ample storage space. The farmers' porch, a perfect spot to savor morning coffee while taking in the breathtaking views of the water. Feel the embrace of nature in the enclosed porch, a space that invites you to unwind and connect with the outdoors Outdoor living has endless possibilities with a private dock awaiting your waterfront adventures, while a cozy sleeping shed by the lake beckons for lazy afternoons by the water Enjoy dining on the outdoor patio, gather around the firepit under the starry sky, or tend to the raised garden beds Additional amenities include an insulated walk-out basement, central AC for year-round comfort, & a whole-house generator for peace of mind The detached barn with a sturdy Steel I beam Experience the tranquility and charm of Bailey Point, where modern comforts meet rustic elegance in a harmonious blend of nature and luxury Your waterfront retreat awaits

to your new home! Welcome 3 Bed | 3 Bath | 2,504 Sq Ft Offered at $1,190,000 THEDOWGROUP.COM
LIVING ROOM
DINING AREA

SCREENED PORCH

KITCHEN
FAMILY ROOM
OFFICE/BEDROOM
BATHROOM

PRIMARY BEDROOM

PRIMARY BATHROOM

BEDROOM
PATIO

The Barn

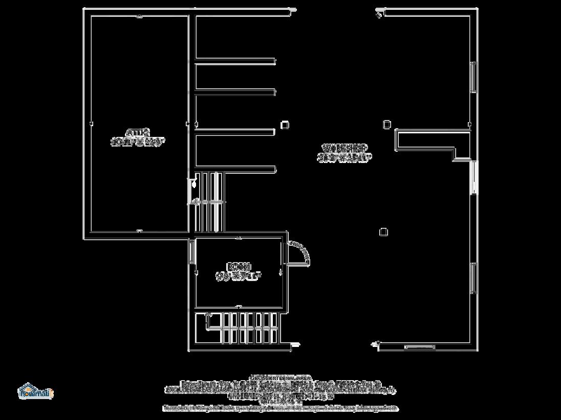
WORKSHOP
ATTIC
EXTERIOR

Main

BASE
Floorplan: LEVEL 2 3 Bed | 3 Bath | 2,504 Sq Ft Offered at $1,190,000 THEDOWGROUP.COM
House Basement & Level 2

Main House Level 3 Floorplan:

LEVEL 3
3 Bed | 3 Bath | 2,504 Sq Ft Offered at $1,190,000 THEDOWGROUP.COM
GARAGE
Floorplan:
3 Bed | 3 Bath | 2,504 Sq Ft Offered at $1,190,000 THEDOWGROUP.COM
Barn Garage, Workshop & Attic
ATTIC & WORKSHOP

187 Bailey Road Effingham, NH 03882

At the Dow Group, our agents are here to guide you through your real estate process. Whether you're buying, selling, investing, or looking towards luxury properties, the Dow Group is here Our in-depth knowledge of the local real estate market is unmatched, and our expert ability to deliver results is shown through our hard work and dedication to your satisfaction

Broker/agent does not guarantee the accuracy of square-footage, lot size, or other information concerning the condition or features of property provided by the seller or obtained from public records or other sources. Buyers are advised to independently verify the accuracy of all information
FOR SALE OFFERED AT $1,190,000
SAYRE BUOTE The Dow Group (603) 709-4565
com THEDOWGROUP.COM Over 1000 feet of waterfrontage
manicured grounds
enclosed porch
bedroom
sits on
6-acre peninsula
detached
ample parking
above
below.
Welcome to Bailey Point, peacefully resting on a picturesque 6-acre peninsula, offering over 1000 feet of waterfrontage, providing an unparalleled sanctuary Impeccably restored, this charming 3-bedroom farmhouse exudes timeless elegance and offers endless opportunities.
sayre@thedowgroup
Enjoy sunset views from the
or the
3
home
a
A multi-level
barn offering
space both
and

Turn static files into dynamic content formats.

CreateΒ aΒ flipbook
Issuu converts static files into: digital portfolios, online yearbooks, online catalogs, digital photo albums and more. Sign up and create your flipbook.