Portfolio 2023

Page 1

Dorna Shfieioun

2015-2023

PORTFOLIO

Introduction

This portfolio illustrates my journey in the field of architecture and interdisciplinary areas of art. Starting from an architecture student and a professional architectural designer in Iran to a Master’s student in London, dealing with issues of identity, authenticity, and critical thinking while expanding my cultural horizon and liberating my mind from the boundaries I had as an architectural designer.

As a young architect, I have always been curious about various ways of developing modern architecture based on cultural identity. Thus, during my studies in Iran, I have studied and employed traditional Iranian architecture principles, namely the importance of open spaces and voids, the presence of natural elements, climate-responsive architecture, and spatial diversity, to reach a design style with a regional character but compatible with modern lifestyle’s requirements. Working for two years in Iran as an architectural designer and a researcher later on, I have deepened my perception of building physics, construction details, and working in large groups of designers and engineers, but also affordable architecture, community-led projects, and experimenting with new materials.

Studying at the Bartlett School of Architecture, I have explored new definitions, new mediums, and new ways of thinking. I am more confident in my research skills and how to critically engage with various issues in the built environment, and more keen on interdisciplinary areas of art and architecture with a focus on sustainability, public engagement, and co-design.

Introduction

The Bartlett School of Architecture

Kilburn Grange Park Conversations

Column; The Storyteller

Other Works

Table of Contents
Professional Beheshte
Tower Competition Small Ashayeri Library Other Works P.2 P.3 P.4 P.15 P.16 P.21 P.22 P.27 P.32 P.36 P.41
Shahid Beheshti University Office-Commercial Complex Sonbolestan Hostel
Niatus

The Bartlett School of Architecture

MA Architecture and Historic Urban Environments

2022-2023

Kilburn Grange Park Conversations

Design Practice for Historic Urban Environments

Group Project:

Dorna Shafieioun, Suhela Maini, Matthias Palla

‘Sustaining and designing commons is a challenge for architects today: designing as commoning, designing for sharing, designing collectively, accessibly in such a way that design is not perceived as a privilege and a commodity any more, it does not segregate and exclude but assemble, socialise and eventually politicise.’ 1

Looking for an opportunity to design for the community, we chose Kilburn Grange Park and the area around Kilburn Community Garden to focus on. In search of a framework to begin our process with, we realized the shortage of such tools for the professional facilitators willing to follow co-design principles. This realization, shifted our focus from designing a physical structure to creating a framework based on which community-based projects can be implemented and sustained. Moreover, to test and criticize the process, we proposed a small-scale community project in the context of Kilburn Grange Park as an example of how a design intervention can be planned with respect to this framework.

1 (Petrescu 2013)

Plan of Work rsations

RIBA Plan of work provides architects with a tool to organize different stages of a building project throughout its life. Although, it might not be applicable to community projects seeking co-design principals to make the project for and by the community. In such projects a more cooperative, user friendly approach should be followed that may contradict with the somewhat patronizing point of view that RIBA Plan of Work suggests. As a result, we decided to alter this framework to provide a reference for designers and architects as professional facilitators intending to deliver small-scale community projects.

In order to design a new manual, we followed a critical approach towards the original Plan of Work as well as our altered version itself. Consequently, we tried to test the manual in the field, record every challenge carefully and edit and update the manual based on our findings. We consider this project as a process, not a finished product; with a self-critical attitude to make room for more explorations and improvements within the limited timeframe of this project and beyond.

SMALL SCALE COMMUNITY PROJECTS

This plan of work describes the process undertaken to deliver small-scale community projects with the help of design interventions by putting together a Project Programme. The different stages identified serve as a guidance to present the work to the community and can be used as stages to plan a community project that is adaptable, and sustained over a period of time. The manual works solely as a guide in the hope that communities at large can use and build by and for themselves.

(based on RIBA Plan of Work 2020).

SCOPE

OF WORK

STAGE BOUNDARIES

Stages 4-0 will generally be undertaken one after the other.

Stages 4 and 5 will overlap in the Project Programme for most projects.

Stage 5 commences when the protypes have been tested and feedback from the users/and community has been incorporated.

Stage 6 starts with the handover of the project entirely to the community, from whereon they manage the project by themselves. They run it and develop ways and means to understand and expand it.

Stage 7 starts concurrently with Stage 6 and lasts for the life of the intervention. It may be adapted over time as the needs of the community evolve.

SMALL SCALE COMMUNITY PROJECTS

A MANUAL FOR COMMUNITY BUILDERS

Facilitating the community in reaching their tasks and goals by using punctured architectural interventions, offering initial and sustained engagement. The guide is also aimes at invloving the community by transforming the members of community from merely users to stakeholders.

HANDOVER

3

DEFINITIONSTRATEGIC STAGEOUTCOME IdentifyaimsforprojectsandneedsofcommunityCORETASKS Identifyaimsofproject Defineareaofintervention EngageStartProjectResearchandSiteAnalysiswithcommunityathandtoidentifytheir

*Please Note: Stages 7 & 5,6 have not been tested at this time of the project, they are open to changes after they have been put through a round of testing.

*Please Note: Stages 7 & 5,6 have not been tested at this time of the project, they are open to changes after they have been put through a round of testing.

Siteonwork siteonupcomethatissuesanyResolveInvolveupcomesthatfeedbackanyforcommunityworkingwhileRecordprojectsfutureforsiteonprocesscycleprojectthroughbudgetMonitor

MANUFACTURING& CONSTRUCTION OUTCOMESTAGE coordinatesite,onworkOverseebetweenusers.andvolunteersteam,design

TASKSCORE workingteamsdifferentbetweenCoordinateMonitor

Siteonwork siteonupcomethatissuesanyResolveInvolveupcomesthatfeedbackanyforcommunityworkingwhileRecordprojectsfutureforsiteonprocesscycleprojectthroughbudgetMonitor

SPATIAL COORDINATION OUTCOMESTAGEidentifyingcommunity,fordesignFinalising communitythewithinfromvolunteers timelines.andbudgetsFinalising TASKSCOREusersfromfeedbackonbasedbriefdesignFinalise interventiondesignforscalesFinalisetimelineandBudgetOptions,FundingExplore ensuretocommunityinvolvetooptionsExplore ofusefromstreamsrevenueanyandusesustained projecttoapplicableifinterventions, projectforconstraintsIdentify

SMALL SCALE COMMUNITY PROJECTS A MANUAL FOR COMMUNITY BUILDERS
needs ANDPREPERATION BRIEFING STAGE OUTCOME Develop design brief in alignment with community aims and needs. CORE TASKS Plan and record Site Visits Build on Project Research & Site Analysis Study old community projects in the area as precedents for project Identify opportunities to build in the community Identify existing functioning network for community,if any Identify Gaps and Barriers in the community Develop Initial Design Brief DESIGNCONCEPT STAGE OUTCOME Evovlve Design Brief and work on initial concepts for design. CORE TASKS Evolve Design Brief based on gaps and barriers found in existing netowrks Identify new networks and integrate existing networks in the design Test design brief within community to receive feedback Identify scales for design intervention Discuss project budget and timeline Record challenges that come up through different stages
TECHNICAL DESIGN STAGE OUTCOME Test prototypes on users, i.e. community Start building on site with help of volunteers Create shop drawings for interventions. CORE TASKS Build Protoypes test and receive feedback from community Finalise design based on feedback from community Create final shop drawings for interventions Identify volunteers from within community to build on site Finalise revenue streams from community work, applicable to project Identify vendors to procure materials for construction Finalise funding options
USE STAGE OUTCOME Outline further involvement and use of interventions CORE TASKSImplement design on site Record use of interventions Make regular visits for maintenance purposesMakeanote of how the design is used so it can be used as a precedent for future community projects HANDOVER STAGE OUTCOME Handover to Community while ensuring sustained performance and adaptablity CORE TASKS Organise workshops and events to introduce design and explain uses so it can be sustained over a period of time Discuss design elements and key aims so they can be adapted or expanded through future community projects Record feedback and rectify, if required Stages 4- will generally be undertaken one after the other. Stages 4 and 5 will overlap in the Project Programme for most projects. Stage 5 commences when the protypes have been tested and feedback from the users/and community has been incorporated. Stage 6 starts with the handover of the project entirely to the community, from whereon they manage the project by themselves. They run it and develop ways and means to understand and expand it. Stage 7 starts concurrently with Stage and lasts for the life of the intervention. It may be adapted over time as the needs of the community evolve. *Please Note: Stages 7 & 5,6 have not been tested at this time of the project, they are open to changes after they have been put through a round of testing. STAGE BOUNDARIES This plan of work describes the process undertaken to deliver small-scale community projects with the help of design interventions by putting together a Project Programme. The different stages identified serve as a guidance to present the work to the community and can be used as stages to plan community project that is adaptable, and sustained over a period of time. The manual works solely as a guide in the hope that communities at large can use and build by and for themselves. (based on RIBA Plan of Work 2020). *Please Note: Stages 7 & 5,6 have not been tested at this time of the project, they are open to changes after they have been put through a round of testing. SMALL SCALE COMMUNITY PROJECTS Facilitating the community in reaching their tasks and goals by using punctured architectural interventions, offering initial and sustained engagement. The guide is also aimes at invloving the community by transforming the members of community from merely users to stakeholders. SCOPE OF WORK
egats
stage1 egats 2
An Altered Version of RIBA Plan of Work SMALL SCALE COMMUNITY PROJECTS A MANUAL FOR COMMUNITY BUILDERS CORE IdentifyaimsDefineareaof EngageStartProjectResearch withcommunity needs usersfrom timelineand ensuretocommunityrevenueofusefromstreamsprojectto project TECHNICAL DESIGN STAGE OUTCOME Test prototypes on users, i.e. community Start building on site with help of volunteers Create shop drawings for interventions. CORE TASKS Build Protoypes to test and receive feedback from community Finalise design based on feedback from community Create final shop drawings for interventions Identify volunteers from within community to build on site Finalise revenue of streams from community work, if applicable to project Identify vendors to procure materials for construction Finalise funding options MANUFACTURING& CONSTRUCTION OUTCOMESTAGE coordinatesite,onworkOverseebetweenusers.andvolunteersteam,designTASKSCORE workingteamsdifferentbetweenCoordinateMonitor
USE STAGE OUTCOME Outline further involvement and use of interventions CORE TASKSImplement design on site Record use of interventions Make regular visits for maintenance purposes Make a note of how the design is used so it can be used as a precedent for future community projects
STAGE OUTCOME Handover to Community while ensuring sustained performance and adaptablity CORE TASKS Organise workshops and events to introduce design and explain uses so it can be sustained over a period of time Discuss design elements and key aims so they can be adapted or expanded through future community projects Record feedback and rectify, if required
DEFINITIONSTRATEGIC STAGEOUTCOME Identifyaimsforprojectsandneedsofcommunity.CORETASKS Identifyaimsofproject Defineareaofintervention EngageStartProjectResearchandSiteAnalysiswithcommunityathandtoidentifytheir needs STAGE OUTCOME Develop design brief in alignment community aims and needs. CORE TASKS Plan and record Site Visits Build on Project Research & Site Analysis Study old community projects in the area as precedents for project Identify opportunities to build in the community Identify existing functioning network for community,if any Identify Gaps and Barriers in the community Develop Initial Design Brief found networksIdentify Test designfeedback Identify Discuss project Record challenges stages USE STAGE OUTCOME Outline further involvement and use of interventions CORE TASKSImplement design on site Record use of interventions Make regular visits for maintenance purposes Make a note of how the design is used so it can be used as a precedent for future community projects can STAGE BOUNDARIES SMALL SCALE COMMUNITY PROJECTS Selection of the Plan of Work Pages The description of the stages (0-7) represented as a cycle

Stages of Work sations

The Project‘s Stucture based on the Plan of Work

STAGE II TESTING IDEAS

This is a summary of our second engagement with different groups of people in Kilburn Grange Park, in a series of interviews.

During these interviews, we made an attempt to test our initial ideas in the political and social settings of the park as well as understanding the communities’ needs.

This summary will assist us, designers, as a research tool to criticise the functionality of the network we previously discovered , and vto push our design process towards a more realistic and practical approach.

The first stage of the project includes first hand community engagements and spatial, ecological and social analysis of the chosen site. This research process is supposed to result in deeper understanding of the community’s collective needs and existing network and infrastructure which leads to conscious planning for co-design.

The second stage of the project includes testing our findings and ideas from stage I, to criticise the functionality of the networks we previously discovered and push our design process towards a more realistic and practical approach based on the community’s feedback.

The final stage of our work is an implementation of co-design ideas as a pop-up project based on our findings in stage I and II. This is rather a conclusion to the process we went through to discover what people need and find a way to make it happen despite all the barriers.

In a project based on co-design, community engagement is a process that starts before any decisions is made and goes beyond generating proposals. 2
2 (Sendra, The ethics of co-design 2023) WE NEED MORE SECURITY IN THE PARK FOR YOUNG PEOPLE! YOUNG GIRLS NEED A SECURE SPACE TO HANG OUT! ACTIVE COMMUNITY CONVERSATIONS 04. MARCH 2023 KILBURN GRANGE PARK KILBURN RESIDENTS BARBEQUE SPACES! WHAT IS MISSING FROM THE PARK? TOILETS! CAMDEN COUNCIL AND GLA ARE FUNDING THE KILBURN GRANGE PARK PROJECT! THE PROJECT WILL BE IMPLEMENTED WITHIN 3-5 YEARS! KILBURN GRANGE PARK DEVELOPMENT PLAN NO! IT‘S IMPOSSIBLE! DO YOU WANT TO SELL WHAT GARDEN PRODUCES? HOW ABOUT MORE COMMUNITY PROJECTS IN THE PARK? YES! BUT IT‘S TOO MUCH BUREAUCRACY! SCURITY REASONS!

Social Network Analysis

Looking for opportunities to intervene and generate a proposal, we tried to identify the existing networks based on which we could analyse the gaps and barriers within the networks as a starting point to strengthen and integrate the existing infrastructure into our design intervention.

Based on network analysis, we could identify gaps and barriers as another form of social analysis which implies the power imbalance, weak connections and unused potentials. This study can ultimately lead to an understanding of what people may need as a collective for more urban resilience that empowers them to be promoters of their own community.

The initial idea for the project was promoting a locally closed ecological chain that encourages active participation and self-managed use of possible common territories and leftover spaces within the community.

To test the new Plan of Work on ground and develop it based on practical challenges we face, we selected Kilburn Grange Park as a site for our experimental small-scale community project.
Social and ecological network analysis of human, flora and fauna STAGE I - ANALYSIS Kliburn Grange Park Conversations Kingsgate Workshop Outdoor Gym Community Garden Playground Wood Soil Decoration Tools Regent's Park gardens idverde team at Regent's Park Street Tree Ltd HSS Hire Buttle’s Tree Surgery in London Robert Dyas B&Q Camden Council Friends of Kilburn Grange Park Community Champions Private Suppliers Kingsgate Workshop Kilburn Tin Tabernacle South Hampstead and Kilburn Community Partnership Transition Town Kensal to Kilburn Volunteers Veolia gninalPdna egatSlaitinI evnIlaitinIsttnem noCstnoitcur M a ni ecnanet S u p p o r t na d gnitomorP Social and political
analysis
Visible and Invisible Network, Gaps & Barriers
network
of existing infrastructure

Planning Process Guidlines, Policies and Funding

Considering Camden Council’s bureaucracy as one of the most determinizing factors in a project’s realization, we made a diagram to investigate the limitations as well as appropriate time and funding resources for our project’s implementation.

With the council proposing their masterplan 3 , our timeline had to fit in the timeframe of the next 2 years. The only way to achieve this during the given timeframe, considering the permissions and policies of the council, was through a pop-up that does not last more than two weeks.

PROJECT CONSTRAINT

A timeline illustrating the project constraint within existing developments

KILBURN GRANGE PARK COMMUNITY GARDEN 2022 2023 2024 2025 2026 2027 OVERHEARD CONVERSATIONS SEP 21 Request for Planning permission MAY 22 Construction starts OCT 22 Funding of £2000 granted by Camden Council MAR 23 Funding still not received MAY 22 Permission granted
KILBURN GRANGE PARK MASTER PLAN MAY 25 year contract runs out NOV 22 Community / Stakeholder Involvement by Soundings 2016 Old Masterplan OCT 22 Reworks on the Masterploan by CBA Studio MAR 23 Fund an organisation MAR 23 Open bank account JUN 23 Apply for Planning Permission JUN 24 Building JUN 24 Duration of the Installation MAR 23 Public Presentation Planning Process JUN 23 Apply for Pop-Up Installation APR 23 Building Artwork, Statues and Memorial CPG, Camden Council, March 2019 Pop up Shop Project General Information APR 23 Duration of the Installation MAR 23 Apply for Funding MAR 23 Safegarding Policy Manifesto JUN 23 Waiting for Funding FUNDING Arts Council England The London Community Foundation Art Fund Young Camden Fondation APR 22 Secure Funding by Camden Council GLA APR 25 Implementation of Stage 1 starts APR 27 Implementation of Stage 2 starts POP-UP INSTALLATION PERMANENT PERMISSION
RISK Critical Path RISK RISK
TESTING
The additions that community is asking for is actually quite simple: a toilet, a sheltered seating space and a barbecue area for communal activities.
3 (Council 2023) STAGE II - TESTING // STAGE III - IMPLEMENTATION Kliburn Grange Park Conversations Toilet Modular Unit made in 1.10 scale

Pop-up Manual ns

Implementable by the local community

BUILD A POP-UP

A MANUAL FOR THE COMMUNITY

SMALL SCALE COMMUNITY PROJECTS KILBURN GRANGE PARK LONDON

Who is the Manual for?

This manual is designed for members of the Kilburn community. The manual contains interventions devised from reasearch and testing phases carried out with the users of the Kilburn Grange Park.

The manual makes an attempt to provide a framework for members of this community to build the interventions and modify them as their needs change. The pop-ups are designed to be maintained and run by the Kilburn community.

The interventions are designed as pop-ups that will be present in the park for a duration of two weeks, on the conditions that the funding and planning permissions from the council are met in the timeframe provided in the timeline.

The pop-up can be seen as a testing phase for making these intereventions a more permanent feature in the Kilburn Grange Park

*

Please Note that at this stage, in accordance with Stages 4 & 5 of the ‘Plan of Work’ manual, the prototypes have to go through another round of community testing.

BUILD A POP-UP

1. BUILD A TOILET 1x Module [1200mm 1200mm]

2. BUILD A BARBECUE 3x Module [1200mm 1200mm]

3. BUILD A SEATING AREA 4x Module [1200mm

The idea of the pop-up project is to empower people of the community to build the design interventions and modify them if their needs change. As a result, based upon the proposal, we came up with a modular-based design. The single module unit has been designed as a toilet, with the possibility of the units’ expansion to accommodate various functions. For example, the 3 and 4 module units can be proposed as a barbecue space and seating area.

In the pop-up manual we have covered the construction stages as well as maintenance and cleaning instructions, an almost complete manual for the community to build and sustain the units as a pop-up project.

BUILD A BARBECUE

1200mm] 1200 1200 1200 1200 1200 1200 1200 The size of single module is 1200mmx1200mm. These have been designed to be extendable to accomodate di erent functions as they change over time. The following examples show how the module can work extended. The 1xmodule has been used to illustrate the example of the toilet. The 3xmodule illustrates the example of the barbecue space The 4xmodule illustrates the example of the seating area. The toilet is dry composting toilet that uses separator for liquids and solids. This type of toilet is an ordable,biodegradable option that works well in outdoor spaces. The compost can be used in the park and the community garden as natural fertilizer. For the purpose of this intervention, the toilet stands for two weeks as pop-up, but can be made permanent xture in the park the users respond well to the intervention. 1200 The size single module 1200mmx1200mm. These have been designed to be extendable accomodate erent the module can work extended. The 1xmodule has been used illustrate the example the toilet. The 3xmodule illustrates the example the barbecue space The 4xmodule illustrates the example the seating area. liquids and solids. This type toilet an ordable,biodegradable the park and the community garden as natural fertilizer. For the purpose this intervention, the toilet stands for two weeks pop-up, but can made permanent xture the park the users respond well the 1200 1200 1200 The size single module 1200mmx1200mm. These have been designed to be extendable accomodate erent functions they change over time. The following examples show how the module can work extended. The 1xmodule has been used illustrate the example the toilet. The 3xmodule illustrates the example the barbecue space The 4xmodule illustrates the example the seating area. The toilet dry composting toilet that uses separator for liquids and solids. This type toilet an ordable,biodegradable option that works well outdoor spaces. The compost can be used in the park and the community garden as natural fertilizer. For the purpose this intervention, the toilet stands for two weeks pop-up, but can made permanent xture the park the users respond well the The design interventions presented in this manual are based on a modular design to make the project adaptable to accommodate different functions as they change over time. Based on the findings in the first stages of this project in Kilburn Grange Park, the main intervention is community-built toilet unit as will be presented later in this manual. Additionally, as an exploration for more possible pop-up projects in Kilburn Grange Park, the following examples show how the module can work extended. The 1xmodule: Example of the toilet The 3xmodule: Example of the barbeque space The 4xmodule: Example of the seating area Modular-Based Design 1xModule [1200mm 1200mm] 1 2 3 4 5 6 7 8 9 Lay Foundation Beds: 150mmx150mm Insert Columns in Centre of Foundation Beds: 47mmx100mm Lay Framework for Flooring: 47mmx50mm Lay Wooden Planks for Flooring: 1200mmx100mmx19mm Build Walls: 1200mmx100mm Curtain for Entrance to Toilet Insert Rafters for Roofing Framework: 1400mmx75mmx19mm Insert Rafters for Roofing Framework: 1400mmx75mmx19mm Lay Corrugated Sheet for Roof: 1400mmx1400mm Insert Composting Toilet BUILD A TOILET BUILD A TOILET 1xModule [1200mm x 1200mm] MATERIALS Concrete 1. Foundation Timber 2. Columns 3. Flooring Framework 4. Planks for Floor & Walls 5. Flooring Framework 6. Roofing Rafters Metal 7. Corrugated Sheet for Roofin Pre-Made 8. Curtain & Curtain Rod 9. Grab bar 4x [150mmx150mmx75mm] 1x 10kg bag of concrete 4x [47mm x 100mm 2250mm] 4x [47mm x 50mm x 1200mm] 12x [100mm 1200mm 19mm] 57x [100mm x 1200mm 19mm] 4x [47mm x 50mm x 1200mm] 8x [1400mm 75mm x 19mm] 1x [1400mm 1400mm 5mm] 1x Curtain for entrance area 1x Curtain rod [1200mm long] 1x Grab Bar Composting toilet separator Solids Container: 22L Liquids Container: 10L Box for sawdust COMPOSTING TOILET The toilet is a dry composting toilet that uses a separator for liquid and solid waste. This type of toilet is an affordable, biodegradable option that works well in outdoor spaces. The compost can be used in the park and the community garden as natural fertilizer. For the purpose of this intervention, the toilet stands for two weeks as a pop-up, but can be made a permanent fixture in the park the users respond well to the intervention. BUILD A TOILET MAINTENANCE The toilet has to be used in a seated position. No paper towels to be thrown into toilet. Please use taps in park to wash hands. The toilet can be used only during the opening hours of the Kilburn Grange Park (7:30am-8pm) 1. 2. 3. 4. 12.5 HOURS 12.5 HOURS TONNES 12.5 HOURS 10 TONNES 12.5 HOURS CLEANING & DISPOSAL Cleaning and disposal should be done by members of Kilburn Community. The liquid-waste can be used as a fertilizer for plants. The solid-waste are collected in a bucket and emptied every few weeks on to compost heap, after it reaches maximum of 10 tonnes. Clean the toilet with citric acid powder.* *Mix citric acid powder with water in the ratio 2tbsps:500ml.Pour into spray bottle for efficient use. Use only with latex gloves. ** Please read Guidance: Treating solid waste from composting toilets: LRWP 90, https://www.gov.uk/government/publications/lowrisk-waste-positions-effluent-and-sludge/treating-solid-waste-from-composting-toilets-lrwp-90) 1. 2. 3. 4. 12.5 HOURS 12.5 HOURS TONNES
3xModule [1200mm x 1200mm]
BUILDING A BARBECUE MAINTENANCE: 1. The Barbecue pop-up is built by combining three 1200mmx1200mm modules. 2. They can be increased in size by adding a 1200mmx1200mm module. 3. This can be replicated in different parts of the park to accommodate more barbecue areas. 1. The grill is powered by charcoal. 2. All items for grilling to be brought by users, cleaned and taken back after their session. 3. The barbecue area can be used only during the opening hours of the Kilburn Grange Park (7:30am-8pm) BUILD A SEATING AREA 4xModule [1200mm 1200mm]
else can be made? BUILDING A SEATING AREA MAINTENANCE: 1. The Seating Area pop-up is built by combining four 1200mmx1200mm modules. 2. They can be increased in size by adding a 1200mmx1200mm module. 3. All the furniture is modelled around the columns so as to keep it secure 4. This can be replicated in different parts of the park to accommodate more covered seating areas. 1. No grilling should be done in covered seating areas 3. The seating area can be used only during the opening hours of the Kilburn Grange Park (7:30am-8pm) YOUR FEEDBACK IS IMPORTANT TO US! kilburngrangepark.conversations@gmail.com The manual as prepared for the community
What else can be made?
What
STAGE III - IMPLEMENTATION Kliburn Grange Park Conversations

Conclusion

Self-critical Approach

Design interventions especially if they involve a community’s collaboration are inescapably political. What started off as an ambitious community project to produce social processes to reinvent, maintain and reproduce the commons, became the documentation of an experimental process based on political and social challenges.

To conclude this self-critical process, we assessed our work based on the ethics of co-design to update the Plan of Work manual with a new focus on co-design principals and community’s active participations. As mentioned earlier, the project never ends, it’s a repeating cycle and the ending point, can be just another beginning.

Collective Thinking Local Partnerships Existing Social Infrastructure Power Imbalance Interactive Decision Making Inclusive Events and Language Collective Benefit Transparency and Clarity Time and Resources Co-design in Every Stages .SummeryofPossibleInterventions .PlanningProcesswithinTimeline .Stakeholder
.Assesment of Ideas .
inKilburnParkCouncilPopu p .CommunityEngagement S t a ge I I .InformationProcessing .
.
.
and EcologicalAnalysi s .
Analysis
Participating
PoliticalandSocialAnalysis
SocialActivity Analysis
Social
CoomunityEngagement

Column: The Story teller

3D Scanning for Urban Environments Individual Project

There is no right or wrong way of experiencing the world. Each of us perceives our surrounding differently, based on our culture and social background as well as our personal interests and approach. This project illustrates the lens through which I see the world, not necessarily as an artist or a designer but as an explorer trying to re-tell forgotten stories.

Fascinated by sculptures, their forms, details, the story they carry, their materials, and the changes they have been through, I decided to conduct this experimental project to document, re-compose and re-create sculptures in a form of an architectural element. The project itself carries the story of my recent trip to Italy, where there is always a story to tell in the form of an artefact. The final output is not supposed to be a work of art, but a physically interpreted model holding the memory of this experiment.

Stage I: Documantation

Techniques and Softwares: Photogrammetry, Agisoft

The first stage of my work includes scanning sculptures using photogrammetry method and processing the data in Agisoft to create a series of 3D objects. Therefore, during my travel to different cities in Italy, I tried to capture and document sculptures of various size, material, age and physical appearance to represent the culture of the city.

Genoa is where my trip started. Sculptures could be found in a lot of places, in main squares celebrating warriors, on small fountains in random alleys, and mostly as building ornaments and niches.

Turin was my second destination. I saw a lot of sculptures around the city; especially in the parks and green spaces. Those sculptures were fairly modest; humbly surrounded by vegetation, slowly fading away in the background. The signs of deterioration were evident in their form as if they were left to be forgotten, untitled, and with no visitors.

Florence was my next trip. This city seems to be a heaven for sculptures. Unlike what I experienced in Turin, original and copies of great sculptures throughout the history were carefully maintained for visitors’ display.

Rome was my final destination, the capital city of Italy. The whole city was a museum, an exhibition of sculptures in different piazzas, random alleys, over the bridges, and famous buildings. Some of them were well-known and some contained great stories about their discovery and restoration.

Sample of Scanned Sculpures - Genoa - The Barchile (1697) Sample of Scanned Sculpures - Turin - La Dora (1937) Sample of Scanned Sculpures - Florence - Patroclus and Menelaus (240-230 B.C.) Sample of Scanned Sculpures - Rome - Fontana del Nettuno (1878)

Stage II: Re-Composition

Techniques and Softwares: Agisoft, Rhino 7

1. Secondary Data Handling

During the second stage of the project, I extracted different fragments from each 3D object to provide sufficient material for the final collage. To do so, I edited the 3D mesh models in Agisoft, based on the model’s accuracy and levels of detail in the extracted bits. Sometimes it was just a head, sometimes it was a headless body, legs, or even textiles of statues’ clothing.

2. Collage Making

After extracting fragments from different sculptures, I exported the new 3D mesh models to compose the final collage in a form of a column in Rhino. Firstly, I made a base column with regard to the proportion of an actual column I have scanned in Rome. Subsequently, I added layers of extracted chunks to make the final output. Different chunks needed to be overlapping to cover each other’s holes and defects. During the composition process, some bits were scaled, some were attached to each other and some were omitted as they were flawed and disproportionate in accordance with the whole column.

10_1 11_1 12_1 19_1 28_1 29_1 30_1 20_1 21_1 22_1 23_1 25_1 26_1 27_1 27_2 25_2 24_1 24_2 21_2 19_2 14_1 15_1 16_1 18_1 18_2 17_1 13_1 11_2 12_2 14_2 12_3 10_2 10_3 1_1 2_1 3_1 4_1 5_1 6_1 7_1 8_1 9_1 9_2 8_2 5_2 3_2
Exracted chunks of the scanned scluptures

Stage II: Re-Composition

Techniques and Softwares: Agisoft, Rhino 7

Base Layer Base Column Genoa Chunks Turin Chunks Florence Chunks Rome Chunks Final Additions 0 Textured Isometric NW NW NW NW NW NW NW NW NW NW NW NW NW NW NE NE NE NE NE NE NE 0 Shaded Isometric 0 Shaded Isometric 0 Front View 1 Textured Isometric 1 Shaded Isometric 1 Shaded Isometric 1 Front View 2 Textured Isometric 2 Shaded Isometric 2 Shaded Isometric 2 Front View 3 Textured Isometric 3 Shaded Isometric 3 Shaded Isometric 3 Front View 4 Textured Isometric 4 Shaded Isometric 4 Shaded Isometric 4 Front View 5 Textured Isometric 5 Shaded Isometric 5 Shaded Isometric 5 Front View 6 Textured Isometric 6 Shaded Isometric 6 Shaded Isometric 6 Front View
Final Rendered Model Isometric NE View Final Rendered Model Isometric NW View Final Rendered Model Front View

Stage III: Re-Creation

Softwares and Techno;logies: Magics, GRABCad, SLS, Polyjet

In the previous stages of the project, the physical forms of the sculptures have been scanned and digitalized, decomposed, and recomposed in a new form. The final stage of the project includes bringing this recomposed model into a physical form, so the cycle of re-creation would be completed.

I decided to use the 3D printing method to bring the re-composed model into reality. To further explore the potential of different materials and technologies, I made two prototypes of the collaged column: a monochrome and a colored version. These two versions are completely similar in terms of size and shape, to highlight the difference that the color information would make.

The monochrome version was made using SLS, which prints models using opaque white powdered nylon. Prior to the print, the exported mesh model from Rhino needed some refinements to be ready for the print. Hence, the model was refined and rewrapped in Magics by adding thickness and merging different fragments to make a whole.

The colored version was made to add another layer of information showing the colors and textures using Polyjet. Using GrabCAD Print to prepare the model prior to the print, the base layer on which different chunks were composed was printed with VeroClear (the clear material) in comparison to VeroVivid (the colored material) to emphasize the collage nature of the column while exploring the machine’s features and various materials composition.

3D Printed Models - Similarities and Contrasts

The Double Entendre of the Covered Truth

Final Project

(Un)Veiling // An exhibition based on stories of Iranian women

This journey unfolds from the women of Iran to a small enclosed space in London, and then to the individuals who visited and engaged with these Iranian women‘s stories through the exhibition‘s space.

Using Woman, Life, Freedom movement as a focal point, this project aims to bring attention to the transitionary concept of ‘self, home, city’ from traditional mindset to ungoing social changes in cotemporary context of Iran.

(Un)Veiling is an intervention in the space using veils along with mirrors and textual elements to communicate profound meanings. Considering women as agents of change, regardless of their age and background, the experiential exhibition is curated using headscarves and narratives gathered from eleven Iranian women residing within Iran, which changes as the viewer walks through the space: the double entendre of the covered truth.

*Visit the (Un)Veiling website for complete information and videos*

(Un)Veiling rsations

Exhibition // 5-7 August 2023

As one navigates the exhibition space, the process of unveiling takes place. To engage with the narratives, the observer is enveloped within the headscarves, feeling their embrace, experiencing their simultaneous transparency and concealment – a representation of the struggle to unearth the truth, the desire to unveil. Stepping inside, the viewer establishes a closer connection with the women who‘ve shared their experiences. Within each narrative, they glimpse a subtle reflection of themselves, suggesting that anyone could embody the depicted figure.

In contrast to the headscarves that symbolize the veiled concept of ‚self, home, city‘ in the traditional mindset, the mirrors embody the idea of the unveiled truth. Beyond the layers and layers of veils, which might hinder viewers from perceiving their genuine reflections, mirrors are affixed to the walls, similar to those found within homes.

The presence of eleven mirrors, each one designated for a woman and her story, adds a personal touch to the setup. This arrangement establishes a visual representation of the connection between the women‘s experiences and the idea of self-reflection.

Embrace of Headscarves Visitors‘ Feedback Narratives on Mirror Cards Mirrors and Self-reflection Exhibition Space Visitors‘ Experiences

Other Works

Animations and Videos: Experimenting new mediums

Somewhere Over the Rainbow

Animation // Narratine the story of Kilburn‘s different communities

https://youtu.be/kMRBSFsHZpg

Overheard Conversations

Film // Documentation of public engagement in Kilburn Grange park and community garden

https://youtu.be/0pOuU1zdyO4

Stopmotion Model Video

Stopmotion// The process of model making and different layers of the project

https://youtu.be/0Hj-DoetN6c

Shahid Beheshti University // Professional Projects

Architectural Engineering // Architectual Design

2015-2021

01

Office-Commercial Complex

Academic Project

Year: 4th Year, Term 7&8, 2018

Architectural Design: Individual Project Technical Design: Group Project

Team: Dorna Shafieioon, Aria Torabi

Role: Architectural Developments, Structural Design and Calculations, Detail Design and Wall Sections

Supervised by: Dr. Matin Alaghmandan (m_alaghemandan@sbu.ac.ir)

Location: Tehran, Iran

Built-up Area: 12000 m2

Structure: Steel Framing System with Concrete Slab

Designing mid-rise and high-rise buildings are among the toughest challenges in modern capital cities as these buildings play a crucial role in the city’s skyline, the passers-by encounter, and energy matters.

This project was about designing a 12-story multifunctional building including commercial and cultural spaces along with offices, which should have been able to serve the neighborhood, and maybe beyond, in one of the most significant parts of Tehran in terms of access and function. Besides the architectural design, all of the required technical drawings and details were also prepared to design more realistic and comprehensive in the form of BIM. These drawings present the building in four disciplines: architecture, structure, mechanical, and electrical.

Initial hand drawing sketch of the project

Where and For Whom?

Site and User Analysis

The project’s site has located between two dominant streets in terms of communication and business, Gandhy and Valiasr street, with about a 17m height difference, connected by a walking path between green areas. Because of the exceptional location, the building will be on a 3400m2 land, free from all sides.

Big Corporations

Passer-by: A place to rest and chill!

Open

Spaces in connection with nature to relax while enjoying great views of surrounding vegetations and mountains in between the mass for different users.

Open sapace and Terrace

Spaces in connection with nature to relax while enjoying great views of surrounding vegetations and mountains in between the mass for different users.

Spaces connected with nature to relax while enjoying great views of surrounding vegetation and mountains in between the mass for different users

Residential Buldings

Offices Shopping Mall

Medical Sercives Restaurants Shops

Emloyee: A more vibrant workplace! Resident: A place for entertainment!

Salesperson: A more attractive store!

Costumer: A more diverse shopping space!

Employees Lounge

A place to rest and communicate with other employees in the building, have a meal or a snack, with adequate facilities.

Cultural Activities

Vibrant Workspace

Shops with various qualities for an easier access for the local and costumers and a wide storefront for a more enjoyable purchase.

To provide the users for entertainment and the possibility of cultral exchange while visiting the gallery or going to the cinema in the neighbourhood.

Employees Lounge

A place to rest and communicate with other employees in the building, have a meal or a snack, with adequate facilities.

A place to rest and communicate with other employees in the building to have a meal or a snack, with adequate facilities

Shops

Shops with various qualities for an easier access for the local and costumers and a wide storefront for a more enjoyable purchase.

Shops with various qualities for easier access for the local and costumers and a wide storefront for a more enjoyable purchase

Cultural Activities

To provide the users for entertainment and the possibility of cultral exchange while visiting the gallery or going to the cinema in the neighbourhood.

To provide the users with entertainment and the possibility of cultural exchange while visiting the gallery or going to the cinema in the neighborhood

Veriety of offices with different qualities (open office and regular ones) for different requirements. in connection with terraces, other offices and large common spaces.

Vibrant Workspace

Open spaces and Terraces Employees Lounge Shops Cultural Activities Vibrant Workplace

Veriety of offices with different qualities (open office and regular ones) for different requirements. in connection with terraces, other offices and large common spaces.

Variety of offices with different qualities (open office and regular ones) for different requirements connected with terraces, other offices, and large common spaces

N S W E Hemmat Expy ValiasrSt ValiasrSt GandhiSt GandhiSt Transportation Highway Main Streets Site Overview Mass Space Usage Offices Commercial Residential Building’s Height 7-9 Storeys 4-6 Storeys 1-3 Storeys Side walks Paths Vegetation Public Parks Green Areas N E Hemmat Expy ValiasrSt ValiasrSt GandhiSt GandhiSt Transportation Highway Main Streets Site Overview Usage Offices Commercial Residential Building’s Height 7-9 Storeys 4-6 Storeys 1-3 Storeys Side walks Paths Vegetation Public Parks Green Areas N E Hemmat Expy ValiasrSt ValiasrSt GandhiSt GandhiSt Transportation Highway Main Streets Site Overview Mass Space Usage Offices Commercial Residential Building’s Height 7-9 Storeys 4-6 Storeys 1-3 Storeys Side walks Paths Vegetation Public Parks Green Areas N S W E Hemmat Expy ValiasrSt ValiasrSt GandhiSt GandhiSt Transportation Highway Main Streets Site Overview Mass Space Usage Offices Commercial Residential Building’s Height 7-9 Storeys 4-6 Storeys 1-3 Storeys Side walks Paths Vegetation Public Parks Green Areas N S W E Hemmat Expy ValiasrSt ValiasrSt GandhiSt GandhiSt Transportation Highway Main Streets Site Overview Mass Space Usage Offices Commercial Residential Building’s Height 7-9 Storeys 4-6 Storeys 1-3 Storeys Side walks Paths Vegetation Public Parks Green Areas N S W E Hemmat Expy ValiasrSt ValiasrSt GandhiSt GandhiSt Transportation Highway Main Streets Site Overview Mass Space Usage Offices Commercial Residential Building’s Height 7-9 Storeys 4-6 Storeys 1-3 Storeys Side walks Paths Vegetation Public Parks Green Areas
sapace and Terrace

Design Process

The design process of the building is closely related to the project’s site and technical requirements as well as architectural considerations. Firstly stepped terraces are designed to be the extension of the nearby parks and resemble the stairs connecting the two streets between which the building is located. This gradual setback also avoids blocking the view of those passing by. Finally, the glass boxes, which are one of the project’s main features, reflect the voids inside, providing interaction while allowing the building to receive the most natural light.

< View from the northwest of the project

office commercial Sky! office commercial Sky! Sky!
View from the southwest of the project < 1. Site Development 4. City’s Extension 7. Veriaty of Terraces 2. Pull back the office tower 5. Functional Diversity 8. Glass Boxes 3. Stepped Terraces 6. Void for more light 9. Vertical Vegetation

Programming

This building consists of four main functions: commercial, cultural, and parking as the base building and the office as the tower. All different spaces had been organized to be easily accessible by their users from the variety of entrances besides staying connected visually to one another. In addition to the main required program, numerous communal areas had been designated to enhance the visitors’ interaction with each other and their neighborhood which is the project’s ultimate objective.

Net Area 13739.8 m2 Office 5241 m2 Regular Office 2889.5 m2 Parking Space 3135 m2 Open Office 1155 m2 Storage Room 825 m2 Staircases 825 m2 Mechanical Room 577.5 m2 Staircases 1155 m2 Shops 660 m2 Hypermarket 618.5 m2 Cinema 866.25 m2 Gallery 288.75 m Staircases 123.75 m2 Bank 371.25 m2 Staircases 371.25 m2 Lobby 206.25 m2 Commercial 1938.75 m2 Basement 5240 m2 Cultutal 1320 m2 Cultutal 866.25 m2 Basement 3010 m2 Commercial 866.25 m2 Office 287.75 m2 Cultutal 866.25 m2 Basement 3010 m2 Commercial 866.25 m2 Office 287.75 m2 Common Area 5525.25 m2
View from the south side of the project
<

The base buildings’ floors have a linear and core plan arrangement, divided into 2 parts by the central core. The hallways are faintly transparent spaces, situated around the voids with large windows and glass-wall stores surrounding them.

From the office building’s eight stories, two of them are allocated to open offices with curtain walls on all sides to be distinct from the outside. The open offices are designed to be interactive and diverse, allowing people to experience a flexible workplace in connection with their co-workers and other offices through voids and glass boxes.

General office tower’s floors consist of 4 or 2 regular offices with various rooms and sections. Each office had been designed uniquely to study different alternatives of office arrangements for a variety of purposes and requirements. All of the rooms receive natural light and are able to use the terraces’ view and space.

GroundFloor FirstFloor SecondFloor ThirdFloor ForthFloor 6-12thFloor Main Core Commercial Parking Cultural Offices GroundFloor FirstFloor SecondFloor ThirdFloor ForthFloor 6-12thFloor Main Core Commercial Parking Cultural Offices 1 3 1 3 4 4 5 5 7 5 4 6 6 6 6 6 2 2 2 5 5 5 5 9 9 9 8 9 10 9 8 8 11 14 14 14 14 11 14 14 14 11 12 12 11 12 10 14 13 13 13 12 9 9 11 8 7 7 2
1. Entrance 2. Lobby 3. Bank 4.Temorary Exhibitions 5. Vestibule 6. Shops
Main Core Commercial Parking Cultural Offices
7. Mechanical Room 8. Waiting Room 9. Office 10. Meeting Room 11. Kitchen 12. Restroom 13. Lounge 14. Terraces 3rd Floor Plan- Main Entrance (+18.00 ) Scale: 1.750 Scale: 1.500 Scale: 1.500 9th Floor Plan (+44.00) 10th Floor Plan (+48.00)

Technical Drawings and Details

: : : : : : ١ : ١٠ S. ٤١ Author ۱ IPE ۱ ۲ ٢ ١٠ ١٠ L ١٠ ٨٠ ١٦٠ ١٠ ١٠٠ ١٠٠ ١٥٠.٠ ٨٠ : : : : : : ١ : ٥ S. ٤٤ Author ۱ ٥ Slab - Detail ۱ ۱ ٥ Slab-Shear wall - Detail ۲ T ١٠ @ ١٨ 250 T ١٠ @ ١٦ UNP ٣٠ @ ٤٥ ٨٠ ٢٠ @ ١٢ T ٢٠ @ ١٨ T ٢٠ @ ١٢ 250 T ١٦ PL ١٢ ٢٢٠ ٢٢٠ L ١٠ ٧٥ ١٠٠ Bolt M١٢ T ١٠ @١٨ 1 1 2 2 3 3 4 4 5 6 8 17 18 19 20 21 21 26 27 30 28 29 12 14 24 25 22 23 9 11 10 12 13 14 15 16 7
Aluminium Cap
GFRC Pannel
Connection Member
Sub Structural Frame
Connection Profile
Cover Profile
Glass Railing
Box -150x30 mm
Ceramic Tile
Cement Mortar
Cement Screed
PL Water-proofing
Concrete
Heat Insulation
Concrete Slab 16. Rebar T18@20 17. CD60 Connection 18. Adjustment Needle 19. Connection Member 20. Runner 21. Knauf Wall 22. Wooden L-100 23. Knauf Ceiling 24. PVC Fixed Profile 25. Double Glazed Window 26. Gypsum Board 27. Wooden Cornice 28. Parquet Flooring 29. Foam 30. L-80
1.
2.
3.
4.
5.
6.
7.
8.
9.
10.
11.
12.
13.Light-weight
14.
15.
Connections Detail Wall Section South Eleveation Detail Wall Section South Eleveation Scale: 1.20 Scale: 1.20 Scale: 1.37/5
Column-Beam Connection, 3D Slab

Sonbolestan Hostel

Academic Project

Year: Final thesis, Term 9, 2019

Individual Project

Supervised by: Dr. Matin Alaghmandan (m_alaghemandan@sbu.ac.ir)

Location: Isfahan, Iran

Built-up Area: 4500 m2

Structure: Concrete Framing with Concrete Slab

Iran is of great significance in cultural, historical, and natural attractions with numerous unused potential in the tourism industry. Among its several amazing cities, Isfahan is one of the most popular destinations for travelers worldwide. However, the importance of staying in a hostel that provides for an economical, vibrant experience enabling people to expand their cultural horizon has been constantly overlooked in this city, making it a less probable destination for foreign visitors.

Since architecture is believed to have a social objective of serving and developing the community, I proposed this project as my final thesis to design in the cultural and traditional context of the city. During the project, I made an effort to employ my knowledge to make a difference in my hometown by preserving original Iranian architectural values while introducing modern principles in a new function.

02
Initial hand drawing sketch of the project

Historical houses being used as hotels in Sonbolestan st

Residential buildings with relatively religious elderly residents

Noticable vegetation with diverse types of trees, almost taller than the buildings

Site Analysis

The site of the project has been chosen with regard to a hostel’s requirements; for it to be in the traditional context of the city and close enough to tourist attractions. As most of Isfahan’s sights are located in district 3, the project is decided to be located here, at the corner of Abdolrazagh and Sonbolestan streets.

Capacity: 200

Low-rise small buildings; mostly commercial in Abdolrazagh st

Abdolrazagh St Valiasr St Kohneh Square Sonbolestan St
Majlesi St
Chahar Bagh Paeen St Hatef St 3.2 Km to: Zayaderood River, Khajoo Bridge 1.5 Km to: Naqsh e Jahan Square, Hasht Behesht Palace 0.8 Km to: Kohne Square, Jame Mosque, Hakim Bazaar
An important intersection Diagonal axis, more inviting A second yard for residents Connected open spaces More light and interaction Transparent internal spaces
1.Site
L-Shape
2.
3. Mass reduction 4. Stepped Terraces 5. Voids and Back Yards 6. Glass Boxes

Programming

How to fulfill the project’s purpose?

As the main objective of a hostel is to provide people with an economical stay while enabling them to interact with other tourists to exchange culture, the majority of this building is allocated to communal areas for socializing and various activities in the form of indoor spaces, multiple yards, and terraces. The rooms, thus, are only for resting and retaining luggage.

Staying at a hostel is generally based on sharing. This project consists of 24 rooms and has the capacity of 184 guests, 14 of whom are staying in private double rooms. The rooms benefit from sufficient light and view as small side yards have been designed to serve both rooms and hallways.

2nd Floor Plan- Rooms (+4.14)

Scale: 1.750 Shared Dorm Rooms Private Rooms Communal Area Main Lobby Restaurant Multifunctional Cafe Parking Shared Dorm Rooms Private Rooms Communal Area Main Lobby Restaurant Multifunctional Cafe Parking Mass Rooms Dorm Rooms Communal Area Multifunctional Cafe Restaurant Main Lobby Private Rooms Communal Parking Parking Mechanical Room Side Yards Side Yards Private Yards Public Yard Court Yard Private Yard CafeYard Space 7.5 m 7.5 m 7.5 m 7.5 m 5.5 m 7.5 m 7.5 m 7.5 m 7.5 7.5 7.5 5.5 5.5 5.5 5.5 5.5 A D G H 2 4 5 7 9 2 1 3 3 3 3 2 2 2 3 3 4 4 4 4 4 2 5 5 1. Main Shaft 2. Communal Areas 3. Shared Dorm Rooms 4. Private Double Rooms 5. Shared Bathroom
Shared Rooms Private Rooms

Circulation

To value the historical context of this neighborhood, the project follows some main principles of traditional Iranian architecture: spatial diversity, the significance of open spaces, axial design, and the use of traditional materials. Therefore, a 45-degree axis has been defined alongside Abdolrazagh and

intersection, where important spaces have been situated.

Sonbolestan’s 1. Porches Along The Sidewalk, resembling historical alleys, keep the building connected with the neighborhood 2. Small Yards in between the mass to provide light and view, keeping the building connected with the nature
3 1 2
3. The Connection Joint between main yards, since the yards are distinct characters yet visually connected.

Beheshte Niatus Tower

Professional Project

Year: 2020-2021

Team: Amirhossein Sahiholnasab, Bijan Vaziri, Fatemeh Taheri, Faezeh Hasamkhan, Soheila Kiani, Dorna Shafieioun

Role: Shop drawings and detail design of Terraces and Facade

Supervised by: Bijan Vaziri

Location: Tehran, Iran

Built-up Area: 70000 m2

Structure: Concrete Framing System with Prestressed Concrete Slab

Niatus tower is a 30-story residential building in one of the wealthiest neighborhoods in Tehran, with 60 apartment units. The building’s most significant architectural characteristic is its terraces, enabling it to integrate with nature vertically. In the project’s technical design, the team tried to use modern technologies and products in various parts to design as sustainably as possible.

During six months of my presence in the team, I collaborated with different teams of design, construction, mechanics, and landscape on terraces, planters, and ceramic façade, which contributed to my more profound understanding of building physics and various technical aspects requirements of a building to coordinate different disciplines.

04

Ceramic Facade and Terraces

Shop drawings of each floor plan have been provided to demonstrate the arrangement of ceramics, glass railings, and terraces types to ensure the least material waste by modularizing them.

I Shape Planter

Aluminium Rail

Laminated

2nd Floor Plan, Ceramic Facade Plan

Scale: 1.400

I Shape Planter

Aluminium Rail

Laminated

Glass

Horizontal

Strip Light

Type A

I Shape Planter

Glass Glass

Horizontal Horizontal

Aluminium Rail

Laminated

Strip Light Strip Light

14 15 16 17 18 19 20 21 22 N O P C D E F G 14 15 16 17 18 19 20 21 22 14 15 16 17 18 19 20 21 22 Q 1 2 3 4 8 9 10 11 12 13 14 15 16 17 18 19 20 21 22 14 17 21 22
Type B Type C

Looking at terraces in more details

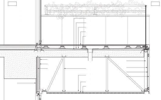
All the terraces’ and planters’ details have been carefully designed and drawn in various forms of 3D, exploded diagrams, and sections regarding modern technologies and products, namely handrails, root-resistant waterproofing, raised- flooring and so forth. During this process, both architectural and technological aspects of each element have been considered so the building would have an appealing appearance and a long life-cycle compared to other buildings of the same class.

Cross Section Longitudinal Section
Parts General Information Scale: 1.40 Scale: 1.40 Aluminium Blauster Aluminium Cap Plate Drain Inspection Planter Wall Cement Board Aluminium Rail For Ceramic Ceramic Tile Keil Concealed System Ceramic Tile Keil Concealed System Ceramic Tile Adhesive Connected Aluminium Rail Cement Mortar Cement Mortar Coating Coating Coating Coating Adhesive Aqua Pannel Aqua Pannel Aqua Pannel Aqua Pannel 2x RG Pannel Insulation Cement Screed Cement Screed Polymere W.P Polymere W.P Composite Floor Tile Composite Floor Tile Wooden Tile Wooden Tile Ceramic Tile Ceramic Tile Ceramic Tile Filter Geotextile Geodrain Geogrid Gravel Clicking Clamp U Profile @ Max 60 U Profile @ Max 120 Stud C100 @60 Stud C100 @60 40X80 Prof. @ Max 120 40X80 Prof. @ Max 120 Self Leveling Pedestal Self Leveling Pedestal In Out
Planter

Details

All of the details related to terraces and ceramic facades have been produced, so accurate surveying and estimating would be possible. In addition, these drawings may guarantee an exact construction based on what has been designed.

General Details of the facade and terraces have been accurately drawn on a 1:1 scale. Some of the profiles shown in these detail are uniquely customized for this project, such as strip lights, aluminum cover profiles using clamp connections, and connector profiles to ensure the detail’s stability.

A D a e D w n g T e D w g s s s u e d F o Zaferaniyeh, Tehran, Iran 021-2217-4650 021-2217-4649 S.Hamid SahiholnasabApproval Construction Tender Mechanical Engr: Electrical Engr: S.Ali Sahiholnasab S.Naser Sahiholnasab S.Davood SahiholnasabArchitect: P a p e S z e B C D E F G H J K L M N O P Q 1 2 3 4 5 6 7 8 9 10 11 12 13 14 15 16 17 18 19 20 21 22 23 24 D w n g N o R e v s o n S c a e A B C D E F G H K M N O Q P o e c t M a n a g e r P o e c T e 1 2 3 4 5 6 7 8 9 10 11 12 13 14 15 16 17 18 19 20 21 22 23 24 D E S G N N C. HANDS A 3 Coordination Civil Engr: 9 9 0 7 00 Please be noted that some of the tiles don't follow this order. Check shop deawings for further information. 1200 600 800 600 W H 100 W200- 100 100 H 200100 Ceramic Tile Aluminium Anchor PU Adhesive Fiber Mesh "Keil" Ratchet Screw Foam H 100 H 200100 100 W200- 100 W PU Adhesive Fiber Mesh Al. Anchor Ceramic Tile "Keil" Undercut Anchor "Keil" Ratchet Screw B B SC: 1:20 BACK OF CERAMIC TILE VIEW PU Adhesive Fiber Mesh Al. Anchor Ceramic Tile A A Section A-A Section B-B " L "
“Keil” Concealed Anchoring System Detail 1, Strip Light Detail 2, Glass Railing Scale: 1.5 Scale: 1.5 Filter Geotextile PVC Flora Drain PVC Perforated pipe Polymere Waterproofing Polymere Waterproofing Filter Filter Geotextile Geotextile Coating Ceramic Tiles Adhesive Cement Board THK=12.5 Cement Board THK=12.5 Wiremesh 50 x 50 L-Angle 30 x 30 U-Channel 80 @600 Cement Screed Cement Mortar Gravel

05 Small Ashayeri Library

Competition: Nomadic Library Design

Held by: Iran Fablab (info@fablab.ir)

Year: 2021

Group Project

Team: Dorna Shafieioon, Aria Torabi

Role: Initial Research and Analysis, Architectural Design, Detail design, Rendering and Post-production

Location: Iran

Built-up Area: 40-60 M2

Structure: Wooden Framing

Proper cultural infrastructure and facilities are crucial for every community. Nomads or “Ashayer” account for more than 1.5% of Iranian’s population, and despite leading numerous domains of art and science, they have always suffered from a lack of adequate cultural facilities such as libraries and schools.

The challenge of designing a portable library for various tribes of Iranian nomads was posed by Iran Fablab in collaboration with Iran Public Libraries’ Institution. This library should function as a place for cultural interaction, IT services, and education, along with its’ traditional role as a place to borrow and read books. It is of great importance to consider each tribe’s unique cultural values and technological considerations while designing.

Initial hand drawing sketch of the project

Northwest and West nomads consist of various tribes, including Shahseven and Bakhtiari. They Live in cold weather beside mountains in tents made of goats’ hair to keep warm during the winter and circulate the air in summer. They also have exquisite art crafts in various colors and forms.

Where and For Whom?

Iranian Nomads’ Habitats and Traditional Homes

West Nomads consist of Ghashghaee and Kurd tribes, living in relatively moderate habitats on hillsides of the Zagros mountains. They usually accommodate in rectangular-shaped tents, which are less decorated and lively than the Bakhtiaris’, though they have numerous unique traditions and customs.

There are 1 million Iranian nomads or “Ashayer” living in 104 ethnic groups, divided into four groups based on their culture and habitat’s climates similarities. Coming from original, unique culture, they all live sustainably in close interaction with nature. It is of great significance, thus, to study each ethnic’s and tribe’s aesthetics and living habits carefully. In addition, seasonal migration, various placements, and Iran’s diverse climate should be considered to guarantee climate comfort. Finally, as Ashayer tend to live entirely on their own, each group has their own traditional housing, made of traditional handcrafts and natural materials.

Northeast Nomads consist of Turkoman and some other Kurdish and Turkish tribes. Living by the Caspian Sea has enabled them to benefit from pleasant weather as well as numerous greeneries. Besides, as they live by the borders, the diversity of their customs is noticeable and different from other tribes.

South Nomads consist of Arab and Baloch tribes who accommodate in the deserts under severely harsh weather conditions. They live in circular-shaped tents made of wood, straws, and other natural materials. As a result of limited natural resources, these tribes have special characteristics.

Alachigh Kapar Bohun Bohun Alachigh

Design process Initial Steps Module’s features Arrangements

Designing for Ashayer can be challenging since they have an independent lifestyle with a rich culture and tradition of art, housing, and techniques. As a result, this project has been designed based on Ashayer’s current housing and their specific sense of art and space to be compatible with their desires.

Since Ashayer are constantly migrating, it is also vital for these freestanding structures to be easily transported, assembled, and dismantled by Ashayer themselves without any help from specialists.

Furthermore, innovative details and the use of modern technology are also essential factors in this design to develop Ashayer’s current technical knowledge regarding their own traditions.

Bohun Chit Wood Bohun Chit Wood Bohun Chit Wood
1. Required Area 1. Materials 1. Flexibility
2. Functions 2. Flexibility
The designated area Tribe’s traditional crafts Various arrangments Dividing different parts Merging structure and cover Interacting with nature
2. Functions Three different parts For different weathers Seperated modules
1. Modules 3. Surfaces 3. Extentions 1. West Tribes: Turkish and Kurdish 2. Northwest Tribes: Trukish and Lor 3. Northeast Tribes: Turkoman 4. South Tribes: Arabic and Baloch 5. Central Areas’ Tribes

How to assemble the module?

The main idea of these modules is the folding surfaces, a combination of structure and covering material. Each module consists of 7 of these surfaces and two individual columns. Besides these portable surfaces, the modules must be adaptable to various weather conditions. Thus, the structural details and cover material are designed flexible enough to enable the module to alter and become sloped when needed.

Needless to say, each of these elements is entirely replaceable by natural materials in case of any damage without any external interference.

connections Detail 1- Corner
connections
Detail 2- Middle colunm
colunm

Modules and Furniture Arrangments

A variety of closed, open, and semiopen spaces

A closed area to retain the heat, made of traditional fabrics

Diverse and flexible arrangement based on the tribes’ culture

For air to be circulated easily to mitigate the hot weather

Enabling numerous ways of interaction based on their culture

1.300

8.5 m 7 m 6.5 m 8.5 m 7 m 8.5 7 m 6 m 7.5 m 7.5 m
1. West Tribes Scale: 2. Northwest Tribes 3. Northeast Tribes 4. South Tribes
Library Library Library Library Library Library Library Class Class Class Class Class IT Services IT Services IT Services IT Services IT Services
5. Central Tribes

Other Projects

Mosha Villa (Professional Group Project- 2020)

A 5-story building designed by Tamouz architectural firm, BIM Model and design developments done by the author

Residential Building (Academic Individual Project- 2017)

Design A residential building with two units for two related families, considering cultural identity

Container Home (Professional Group Project- 2019)

Design A portable, self-sufficient container home’s plan, furnishing and systems

Cross Section

Scale: 1.500

South Elevation- 2nd Baghestan View

Alternative 1 Maquette

Longitude Section

Scale: 1.500

East Elevation- Arabi St View

North-west of The Container

-8.92 -5.43 -2.19 1.05 4.29 7.09 A B C D -9.67 11.73 -8.52 -5.28 -2.04 1.20 4.44 7.24 449 280 324 324 324 324 40 -8.92 -5.43 -2.19 1.05 4.29 7.09 1 2 -9.67 11.73 -8.52 -5.28 -2.04 1.20 4.44 7.24 449 280 324 324 324 324 40

Archi Graph Artworks Photography Sculpture Pottery

Haft Peikar Illustration- Khawarnaq Palace Film Poster Design- Big Fish Imaginary City- Collage Technique- Isfahan

Turn static files into dynamic content formats.

Create a flipbook
Issuu converts static files into: digital portfolios, online yearbooks, online catalogs, digital photo albums and more. Sign up and create your flipbook.
Portfolio 2023 by Dorna Shafieioun - Issuu