PORTFOLIO DOMINIC BIARRIO


![]()


Studio 03
Fall 2024
Prof. Maria Ferrari
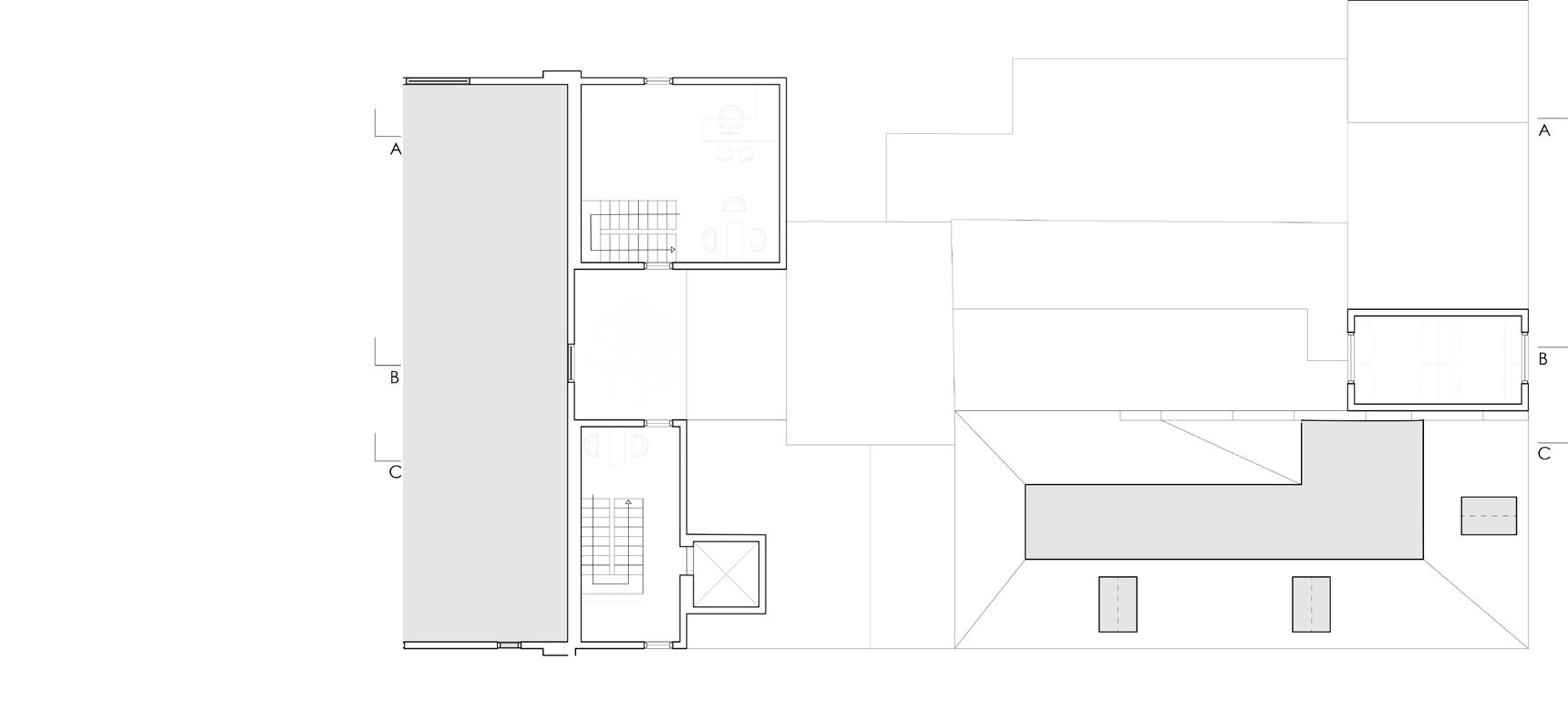
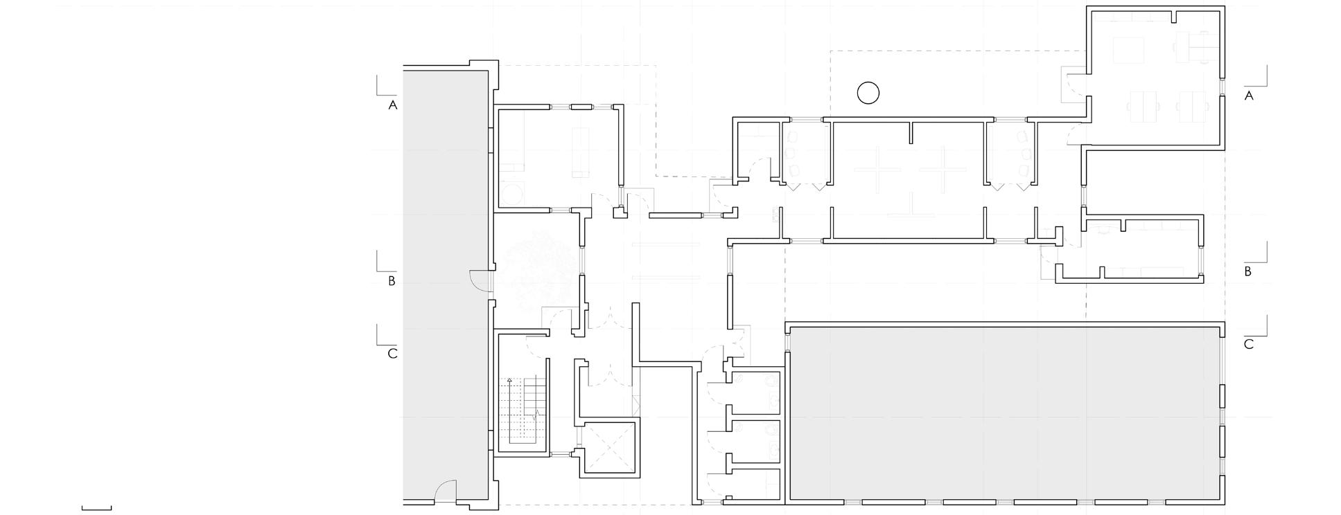
The Teen Activity Center is a scuulpture like hub designed to foster creativity and connection among students and artists showcasing their art. The large windows allow for people to gather on balconies, while also creating gaps in the walls to showcase art and sculptures. The illusion of the thick walls from the outside of the building creates a false narrative about the Lantern like community center.
Prominently positioned out front is an eye-catching elephant statue, a thoughtful nod to the nearby rhino statue in front of the Tufts building at the Museum of Fine Arts (MFA) in Boston. This connection not only symbolizes a playful dialogue between the two artworks but also highlights the importance of public art in enriching community spaces. The building’s architecture is designed to invite visitors in, creating an open and welcoming atmosphere where art can inspire and unite people from all walks of life, while illuminating the surrounding area .













Exploded Axonometric




Studio 02
Spring 2024
Prof. Dhruv Mehta
The Habitat for Humanity, a Community Center in Boston, is a vibrant hub designed to foster connection and engagement among students and people interested in the arts. Its architecture features open spaces that encourage interaction, with flexible rooms that can adapt for various activities, from workshops to social gatherings. The use of natural light and gathering spaces enhances the creative atmosphere, creating a welcoming and productive environment.
Hinging techniques used to create different rooms allow for the transformation of spaces to accommodate different group sizes and purposes, promoting inclusivity. Through creative programming and adaptable design, the center plays a crucial role in strengthening community ties and enhancing quality for students of all ages in Mission Hill.











Studio 03 | Precedent Study
Fall 2024
Prof. Maria Ferrari
Dominic Biarrio, Iris Weidner
Studio Gang
The Writers Theater designed by Studio Gang is an innovative cultural space located in Glencoe, Illinois, celebrated for its thoughtful integration of architecture and community engagement. The design emphasizes a close relationship between the audience and performers, featuring a flexible main stage that allows for varied theatrical experiences.
Central to the theater’s identity is the “lantern” structure, which serves as a striking visual focal point. This glowing element is crafted from translucent materials that filter light, creating an inviting ambiance both inside and out. The lantern not only provides illumination but also symbolizes the theater’s role as a beacon for creativity and connection, drawing people in and fostering a sense of belonging within the arts community. The overall design harmonizes aesthetics with functionality, making the Writers Theater a dynamic venue for storytelling and artistic exploration.






Spring 2024
Prof. Dhruv Mehta
Dominic Biarrio, Sabrina Berryman
Frank Gehry
The Winton Guest House, designed by Frank Gehry, is a striking example of contemporary architecture that reflects Gehry’s signature deconstructivist style. Located in Minnesota, this residential structure features an innovative design characterized by its dynamic shapes and rotating forms. The building’s angular walls and irregular windows create a sense of movement, challenging traditional architectural conventions.
The importance of these shapes and rotations lies in their ability to evoke emotion and intrigue. The asymmetry invites exploration and interaction, encouraging visitors to experience the space from multiple perspectives. Gehry’s use of unconventional materials and fluid forms not only enhances the aesthetic appeal but also fosters a connection between the guest house and its natural surroundings, making it a unique retreat that embodies creativity and modern living.




Studio 03
Fall 2024
Prof. Maria Ferrari
A shadow and light study explores the interplay between light and darkness, emphasizing how light shapes our perception of space. By utilizing apertures—such as openings, slits, or perforations—this study investigates how varying sizes and shapes affect the quality and intensity of light as it enters a space.
When light passes through these apertures, it casts intricate shadows that transform the environment, creating dynamic patterns and textures on surfaces. The angles and distances of the light source further influence the shadows’ depth and definition, allowing for a rich exploration of contrast and form. This study not only highlights the aesthetic aspects of light and shadow but also serves as a tool for understanding how natural and artificial light can be manipulated to enhance architectural experiences and evoke different moods.





Light trapped inside the punctures facade diffused light, which warps on corners and surfaces.
This method of displaying luminosity allows for concentrated light to shine on wherever the facads aperatures are aimed towards.

