Skip to main content

Portfolio 3-5

Page 1


Leopoldo J. Martinez

Contact:

Email - Leopoldo.mar0914@gmail.com

Phone - 951.464.0555

Address - 892 Melville Ave, San Jacinto CA

Education:

California Baptist University: BA to MArch | Undergraduate Third Year Sept 2023 - Current Day

Skills:

Adobe: Indesign | Photoshop | Ilistrator | Animate | Premier Pro

Microsoft: Word | Excel | PowerPoint

Graphics: AutoCAD | Revit |

3D Modeling: Sketchup | Rhinoceros 8 | D5

Languages: English (Fluent) | Spanish (Fluent)

Interests / Hobbies:

Mid Century Architecture | Phenomenology | Community Hubs

Hand Sketching | Digital Art | Watercoloring | Physical Media Collecting

Contents:

01: Schindler Addition | FA 2024

02: Poetry Foundation | SP 2025

03: Urban Live-Work |FA 2025

04: Additional Work

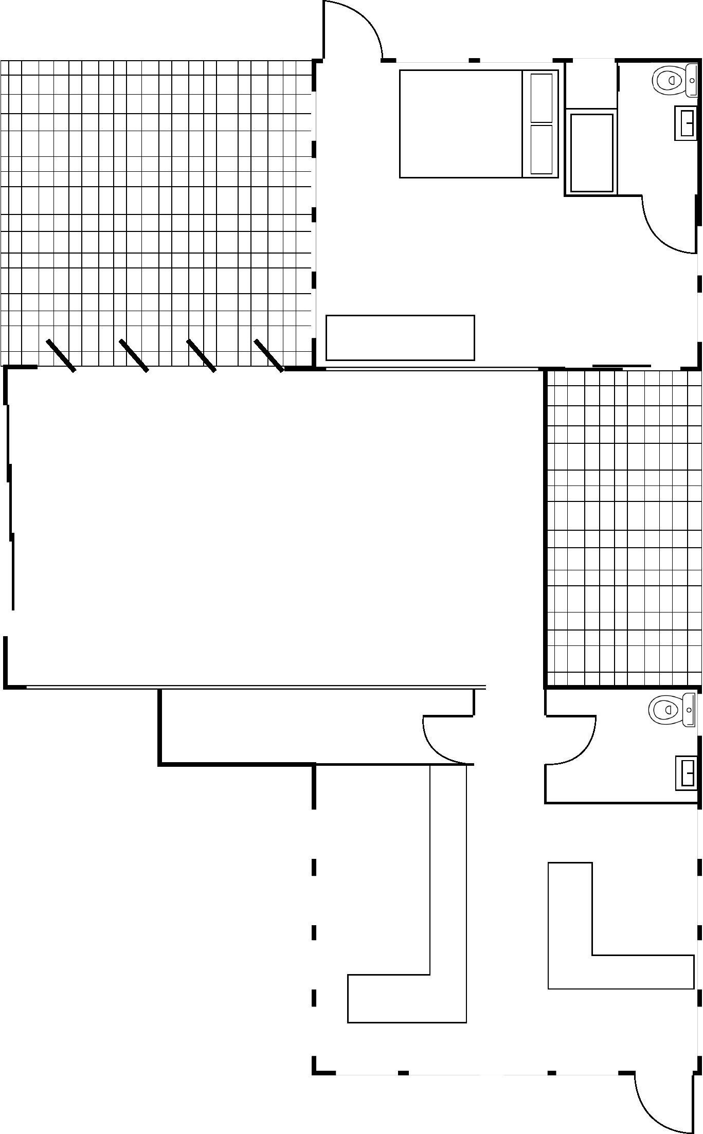
SCHINDLER ADDITION

FALL 2024 - DESIGN STUDIO 1 PROJECT

The Schindler addition was a project that tested my skills in continuing a premade narrative while adding enough novelty to make it interesting and enjoyable.

In my approach I decided to focus on symmetry while including elements like the specific doors and construction mannerisms for the concrete walls. The space was designed to hold staff and patrons in a public reception/ gallery space while also having a staff bedroom for site caretakers.

Many struggles came up when designing this addition due to its size and time constraints. Although, overall I gained a solid base for future necessary skills in site research and rapid design.

Leopoldo Martinez

POETRY FOUNDATION

SPRING 2025 - DESIGN STUDIO 2 PROJECT

This project’s goal was to provide a second home for the Poetry Foundation in the heart of Downtown Riverside. After surveying the site and its context in person, one major detriment I decided to address was the noise problem due to high traffic.

During my design process I ideated on many forms that could invite the local community in while keeping the harsh sounds out for a serene experience. The final design incorporated elements such as thick street-facing walls and ample glazing for natural sunlight to enter the space. The shape itself was meant to direct the building towards nearby community hotspots in the hope of further attracting those nearby.

Ultimately, this project taught me to be more open to differing ideas even if they might go against what I currently have at the moment. Even more than that, it demonstrated the pitfalls and ruts that I can fall in if I don’t correct those narrow minded ideals

Martinez

URBAN LIVE-WORK

This project’s goal was to incorporate apartments alongside a work type of our choice for a dual purpose high rise. Located in the Chelsea neighborhood of Manhattan, NY, this Live-Work building incorporated a culinary institute alongside residents.

My goal when designing this project was to experiment with guiding the moods of this within the building with stained glass windows. The idea was that the more energetic bottom floors meant for the work side would be defined by warm colors. On the other side, the residential apartments would have cool colored glass to encourage calmer and more relaxed environments for those living in them.

When reflecting, I realize that this project introduced me to many new workflows when it came to getting many of my ideas into the building cohesively. While many ideas I had needed to be discarded due to time or practicality, I still felt like I was able to explore them all in some way within my final design.

Leopoldo Martinez

ADDITIONAL WORK

VARIOUS YEARS - VARIOUS STUDIOS