PORTFOLIO






![]()






Versatile undergraduate architecture student capable at designing commercial and residential structures of varying styles and purposes Seeking to learn from professionals in an implementation environment in order to gain experience and enhance my abilities.
88/88 room 1805,
Khlong Nung Subdistrict, Khlong Luang District, Pathum Thani 12121
Dondy14485@gmailcom
098-141-4623
Instagram: Dondy ki : Limlab
WEBSITE
https://wwwbehancenet/gallery/120128275/AR102
KDS+TDS International Workshop 2025 – Participant Collaborative workshop between Thammasat Design School and Kyoto University focused on solving urban challenges through design thinking
Designing with DUST Exhibition – Participant International workshop on experimental material design using recycled waste and dust-based additives, in collaboration with Thammasat University, Bang Pho community, and Friends Making Work
Thai Obayashi Summer Camp 2024 – Participant
Participated in a professional camp focused on construction engineering, teamwork, and industry exposure
Student Committee of TDS, 2023
Head of Student Committee
Next-Gen Wood Makers Intensive Workshop –Participant
Hands-on woodworking workshop at Bangpho Creative District, designing and constructing a solid wood stool using teak legs and an ash wood top
Exhibitor Representative of Thammasat “ASA Expo 2024 & 2025 ” The Association of Siamese Architects Under Royal Patronage
Representative of Thammasat “Bangkok Design Weeks 2025” EM Districts, Thailand 2025
Architecture Intern – April Workshop Company Limited
Completed internship programs in 2023 and 2025.
SOFTWARE SKILLS
Revit
Photoshop Adobe Illustrator
Adobe Premiere Pro
Thammasat Design School
2020-2024 (Bachelor's degree) Architecture program
Thammasat Design School 2020-Present (Master degree) Architecture program
SKILLS 3D modelling Sketch and Drawing Woodworking and Craft
1st prize “ Logo Design for 25th anniversary of TDS”
Thammasat Design School, Pathum Thani, Thailand, 2023
Exhibitor “The COTTO CUBE Design Stage 2024” COTTO, 2024
Honorable Mention
"Living with Water" Prototype Design for Emergency Boat Station in Ubon Ratchathani Thammasat Design School, Pathum Thani, Thailand, 2020
Top 10 Innovation “Strange Tools Going ASEAN 2023” uselessland, Bangkok, Thailand 2023




M A L L

t o b i g w o r k s t h a t r e f l e c t i m a g i n a t i v e i d e a s .
P r o j e c t s p r o g r e s s f r o m r e a l , s m a l ls c a l e
b u i l d s















2021 2023 2023
Placed first in the class for model aesthetics, based on votes from instructors and peers. A memorable first achievement in architecture school. A proud first step in my architectural journey
The final outcome of the experiment explores how shapes and geometric forms can use planes, lines, and surfaces to express emotions, eventually becoming architectural expressions built on clear logic and ideas.
An experimental single-space design created for freerunning enthusiasts. The model features intricately divided areas that allow athletes to climb freely and enjoy a wide range of movement possibilities.
Study model of Wat Chedi Luang, a Buddhist temple in the historic center of Chiang Mai, Thailand.
The upper part of the structure collapsed after an earthquake, so this model shows the predicted original form of the chedi.
A wooden house and riverside pavilion model showcasing the cutaway structure that highlights the core of timber architecture This project was created during my internship


















The high‐rise model from the District Nova project is a complex and large‐scale piece. Creating the curved surfaces required precision and delicate assembly. It stands as a personal achievement that reflects dedication and effort.
A small study model of The Exchange 106 in Malaysia, showing the detailed steel structure at the tower’s crown.
I built my biggest model from paper and balsa wood, measuring around 2.4 x 2.4 meters. It was created for the WHITE LINE project, an architecture concept at a city scale With help from friends, the project turned out well.
PEEPER is a sculpture project I designed and brought to life
Showcased as Thammasat’s representative at “Bangkok Design Weeks 2025”, EM Districts, Thailand 2025
This is a study model of the world’s largest wooden building, The Grand Ring Expo 2025. My passion for woodwork led me to craft the model from hinoki pine and photograph it alongside the real construction.
-Present
My research, Development of Glulam Timber Structural Connections Using Wood Joints for Architectural Applications*, explores how traditional joinery techniques can be adapted for modern materials.


The Pavilion was designed and built by the student committee to honor graduates from the Faculty of Architecture. Its structure is inspired by the triangle, used as the core idea throughout the design
Created to function from all directions, inside and outside, the pavilion offers dedicated zones for graduate groups so each corner can be used without interruption The central walkway adds more spaces to enjoy, and the varied sizes of each section help control group capacity The project provided hands-on experience in real construction, transforming plans into an actual structure, and learning to collaborate as a team




























For this year, we designed a pavilion that can be disassembled and rebuilt, supported by metal parts for flexibility. Because of the limited budget, we chose to let the materials reveal their natural texture and tone Once it has served its purpose at the graduation celebration, we will reconstruct it into a playground for children in a remote area It will be given to a preschool in Chiang Rai to provide a space for play and growth.




HOUSE DE


ey wooden house was a de my research I worked and joints through a BIM omponents and drawings s designed for simple ort with a prefab system, ustomised to each client's







Built with Laminated Veneer Lumber (LVL), this design uses layered timber pressed under heat to create a strong and reliable structural material often used for beams and major supports. The form resembles a nordic‐inspired house, featuring Portal Frame‐style joints. Grooves are integrated for roof purlins and for inserting wall and ceiling boards directly into the frame








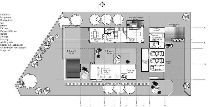
First home project for a family of five parents, a daughter, a son, and one housekeeper living in the Muang Thong Thani area The design develops from exploring shape‐altering terms, using “Subtrac” to cut, carve, or remove parts of the mass while keeping enough form to show its original outline The carved areas become green spaces that bring openness, natural light, and better airflow into the home.





After parking, you enter the main hall that opens to a central courtyard with a garden and a pool, bringing a fresh and calming feel to the home
Around the courtyard are the living room, kitchen, dining area, and a maid’s room connected to the garage. The upper floor is a private area with three bedrooms linked by a hallway from the stair hall, with a garden space at the back on the second level.
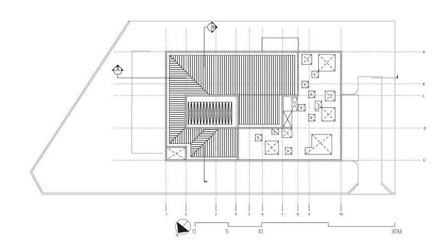
The roof is designed with a subtractive concept, creating carved‐out openings that let sunlight reach the garden below and make the house feel open and airy The covered areas above each room use a parapet roof.


The area around the site is filled with business zones, schools, and shops, creating everyday convenience. At the same time, business and residential zones are clearly divided The location is not too crowded, and there are several easy ways to reach the site.




1-Master Bedroom
2-Corridor
3-Dinning room
4-Stairs hall

The pavilion project starts with choosing a place and using the senses to notice its natural conditions such as the sound of leaves brushing together and the contrast between bright and dim areas shaped by tree shadows These sensations are then translated into architecture. This design reflects the cave opening and city scenery found at Phu Bo Bid, expressed through light.




Phu Bo Bit Forest Park is a scenic viewpoint overlooking the city The mountain is steep and located close to downtown Loei, rising about 500–600 meters above sea level. Its long rocky ridge stretches from west to east Visitors often come to capture night views of the city and enjoy the morning sea of mist The park sits within Chaiyaphruek and Kut Pong in Mueang Loei district.
Before reaching the top, the cave acts as a shortcut toward the summit. From the section illustration, the upper area holds five viewpoints facing various directions. Point A looks toward the town and is the busiest spot Points C and D are well known for sunrise mist views Locals refer to the city scenery as ‘Stars on the Ground.’

Inside Tham Lot, light and touch create a unique journey. The entrance glow helps you begin, but deeper inside the cave, your hands guide you through the darkness, feeling the stone surfaces until you arrive at the opposite opening where light greets you again This phenomenon inspired two key scene types: one dark and one bright, echoing the experience of moving inside a cave



The cave entrance guides visitors into an immersive walking experience At the end of the passage, a staircase leads to the first chamber, where light filters from above. The next chamber features small carved openings that create striking beams of light



The narrow path requires using your hands to touch and move through to the next hall

Long openings cut along vertical and horizontal lines guide light toward the next hall.












THAI
This extended Thai traditional medical center draws inspiration from the unique character of Northern culture, carried over from a previous project’s case study of Wat Chedi Luang The aim is to create a space that shares a similar mood and language From studying both architectural works, two key approaches to expressing Thai identity emerged: through abstract ideas and through physical form The abstract layer, or the essence, reflects the core concepts behind the design. For example, Wat Chedi Luang uses an axis aligned with cosmological beliefs and a symmetrical layout. Similarly, Siripanna adopts ideas from the layout of ancient cities with surrounding moats, using water to evoke lightness and a floating quality.



The plan uses a central axis extending from the lobby to the Thai massage area. Water features soften the surroundings, while small courtyards let natural light fall into the lower levels, visible in the left section These appear near the café and the treatment area.
From the drop-off, guests reach the reception hall, which connects to the lobby and the café/shop. After diagnosis, guests are directed to the rear treatment floors: Thai massage on the first floor, acupuncture on the second, and herbal steam on the third


The facade is designed with wooden slats combined with concrete fins at each room opening The slats and surrounding greenery help soften the sunlight before it enters the room, creating a calm and dim atmosphere for the space
A back courtyard allows sunlight to enter the interior, supporting the use of natural light in the design
For the tangible aspects or outer layers, these can be easily seen. They include elements visible to the eye, such as decorations that use specific pieces or patterns, and structural forms drawn from the past Examples include traditional frameworks like horse‐tail structures and the use of materials such as wood, brick, and mortar in construction.






1-Thai massage
2-Pond and Waiting area
3-Reception
4-Gallery

RANGSIT PUBLIC LIBRARY AR415
This project is a design proposal for a public library in the Rangsit area It follows the concept of “In Praise of Shadows,” inspired by the book by Jun’ichirō Tanizaki The aim is to create the feeling of reading under tree shade, recalling the past when this land was once a lush forest. The Voronoi idea is used to shape the shade-like atmosphere and to form the building itself. The project includes a plaza, co-working area, exhibition space, café, and a library with both books and digital media.







Functions are arranged on rising levels. The area facing the terminal opens as a plaza, guiding people inside, with a garden that slowly builds height along the way
Raise each function in stepped levels. The side facing the terminal opens into a plaza that draws people inside, with a garden that gradually rises from the ground upward
Extending the mass toward the plaza like reaching branches, creating a space that feels both inside and outside
Include each function’s details, ensure the spacing meets legal standards, and add the structure
Add details for each function, set distances to meet legal requirements, and include the structure.









Inspired by Jun’ichirō Tanizaki’s “In Praise of Shadows,” this design seeks to bring back the feeling of reading beneath soft tree cover, much like when the Rangsit area was filled with dense woodland. Voronoi patterns are used to express the filtered light of the canopy and guide the building’s form
Main vehicle access is from Phahonyothin Road, with a rear parking area for 60 cars and adjacent service spaces. A plaza at the front connects to Future Park Rangsit and supports events, leisure uses, exhibitions, and a children’s library on the first level The second level contains categorized library sections from 000–900 along with digital media spaces.
The structure follows Frei Otto’s branching system, starting from one point and splitting into repeated pairs based on the compound umbel pattern The branches extend until they meet the grid intersections, forming the frame. The connection points are then adjusted to link with the corner intersections of the Voronoi lines, shaping the load flow seen in the image.





1-step garden
2-2nd floor library
3-plaza to building
4-entrance hall

A 70,000‐square‐meter office project located at the central connection point between multiple provinces, close to the largest shopping mall in the area. The project targets game developers, driven by the rapid growth of the gaming industry that generates significant revenue for the country It

From the plan, there are three drop-off points to help spread out traffic There is one underground parking area and another one on the building, separating office users from retail visitors. A plaza links the library to the project, and the layout is shaped to resemble an electronic circuit
The site is located within the magnet zone of Future Park, surrounded by places like HomePro, FamilyMart, the van station, and Big C. This creates an opportunity to attract visitors from the Future Park network to engage with our event.












1-beta base
2-retail 1 floor
3-roof garden
4-main escalator
5-canteen


Siriraj Hospital is the first hospital in Thailand to research and develop robotic surgery. Today,


This type of parasite can live independently, yet once it attaches to a host, it begins to draw in the host’s resources. In the same way, Project White Line is an architectural system able to sustain itself, while also taking in patients from the existing Siriraj Hospital to reduce the issues caused by its current capacity.
A monorail, also known as a single-rail system, is a type of rail transport that differs from traditional systems by using one rail or a single concrete beam for trains to run on. The word “monorail” has been used since 1897, introduced by German engineer Eugen Langen, combining “mono” (single) and “rail” (a steel track for trains) Trains on a monorail run on a track narrower than the train itself and may use guides to keep them aligned. Monorails are often used for mediumcapacity public transport systems, carrying fewer passengers compared to heavy rail systems.






3




