Little - Health Science Buildings

Page 1

RESULTS BEYOND ARCHITECTURE

HEALTH SCIENCE BUILDINGS

HEALTH SCIENCE BUILDINGS

Having designed numerous Health Science Buildings for a variety of Colleges and Universities throughout the country, Little understands that each community and institution has very different programmatic requirements with diverse budgets. The following projects help illuminate various types of Health Science facilities and the programs, equipment needs and budgets of each to help you explore your future Health Science projects.

Little has a dedicated team of experts who can help you program your project as well as share stories of other successful projects, helping you create the right approach and solution for your campus.

Results Beyond Architecture 1

CURRICULUM & COST

Most health science programs rely heavily on simulation equipment, manikins, and skills trainers as the backbone of the curriculum. This world of simulation equipment can be daunting, but, as design professionals, we can help guide this process.

In a construction project, there are “hard” construction costs and “soft” costs. The hard costs include the land, the contractor fees, and the actual building materials and labor. The soft costs include almost everything else: permit fees, furniture, audio visual equipment, IT, etc. Also included as a soft cost is the Furniture, Fixtures, and Equipment (FF&E) associated with the simulation equipment and furniture needed for teaching labs. The quicker the owner, design team, and other partners can reach an accurate cost for this equipment, the better as often soft costs on health science facilities can be more than a typical building.

With this in mind, it’s critical that the FF&E cost be identified early to ensure the budget for both soft and hard costs will be accurate.

A successful building gets enough “hard” costs to be built well and beautifully designed, and the interior of the building gets enough of the “soft” costs to train, produce successful programs, and provide nice places for students to study and relax. Also, large changes in the furniture, fixtures, and equipment during construction can equate to challenges with time and budget if not planned correctly, so the goal is to plan early.

This diagram gives a rough idea of relative costs of certain simulation equipment.

Health Science Buildings 2
Results Beyond Architecture 3

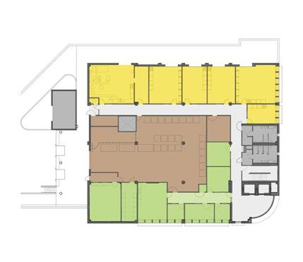
RANDOLPH COMMUNITY COLLEGE

Allied Health Building 45,058 sf

Serving as a new, iconic centerpiece on the Randolph Community College Campus, the Allied Health Center is a LEED Gold Certified building designed to promote the idea of natural health and wellness for students. A simulated hospital and outpatient healthcare facility is located on the first floor, while the second level is dedicated to traditional classrooms and future expansion.

Health Science Buildings 4
Results Beyond Architecture 5
Health Science Buildings 6 LEVEL 1
LEVEL 2
Results Beyond Architecture 7
COLLEGE
Health Building
sf 30016 sf BUILDING NET SQUARE FOOTAGE RADIOGRAPHY LAB HOSPITAL SIMULATION LAB FUTURE/OCCUPATIONAL THERAPY LAB MEDICAL ASSISTING LAB OFFICE SPACE CLASSROOMS SHARED SPACE BUILDING SERVICES EMS/PARAMEDICS LAB NURSING LAB 2571 sf 4956 sf 3014 sf 2871 sf 2768 sf 3236 sf 2229 sf 2485 sf 2550 sf 3336 sf 15042 sf BUILDING GROSSING FACTOR (1.50) 45058 sf BUILDING GROSS SQUARE FOOTAGE Primary Circulation, Vertical Penetrations, Walls 7.4% 66.6% 5.7% 11.0% 6.7% 6.4% 6.1% 7.2% 4.9% 5.5% 5.7% 33.4%
RANDOLPH COMMUNITY
Allied
45,058

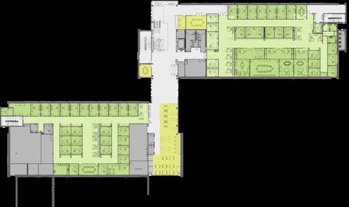
PFEIFFER UNIVERSITY

Health Science Center

45,289 sf

Pfeiffer University’s new Health Science Center will be home to the graduate programs of physician assistant studies and occupational therapy. The facility will provide an additional resource for affordable healthcare in the area while revitalizing downtown Albemarle by becoming home to hundreds of full-time college students and the associated faculty and staff.

Health Science Buildings 8
Results Beyond Architecture 9
Health Science Buildings 10
LEVEL 1 LEVEL 2 LEVEL 3 LEVEL 4

PFEIFFER UNIVERSITY

Results Beyond Architecture 11
Science Center 45,289 sf 28230 sf BUILDING NET SQUARE FOOTAGE OCCUPATIONAL THERAPY LAB ANATOMY LAB PHYSICIAN ASSISTANT LAB SIMULATION LAB OFFICE SPACE SHARED SPACE BUILDING SERVICES 3246 sf 3231 sf 2578 sf 1854 sf 5333 sf 738 sf 3508 sf 17059 sf BUILDING GROSSING FACTOR (1.60) 45289 sf BUILDING GROSS SQUARE FOOTAGE Primary Circulation, Vertical Penetrations, Walls CLASSROOMS 7742 sf 5.7% 62.3% 7.2% 7.1% 4.1% 11.8% 1.6% 7.7% 37.7% 17.1%
Health
Health Science Buildings 12

CAMPBELL UNIVERSITY

Tracey F. Smith Hall of Nursing and Health Sciences

72,302 sf

Located on Campbell’s Health Science Campus, the four-story Tracey F. Smith Hall of Nursing and Health Sciences houses the university’s nursing and physical therapy programs complete with classrooms, nursing labs, objective structured clinical examination (OSCE) suites and faculty offices.

Results Beyond Architecture 13

LEVEL 1

LEVEL 2

LEVEL 3

LEVEL 4

Health Science Buildings 14

CAMPBELL

Results Beyond Architecture 15 PHYSICIAN ASSISTANT LAB 3912 sf PHYSICAL THERAPY 11732 sf NURSING LAB 5190 sf CLASSROOMS 5831 sf RESEARCH 5635 sf OFFICE SPACE 9445 sf SHARED SPACE 3511 sf BUILDING SERVICES 5709 sf 50965 sf BUILDING NET SQUARE FOOTAGE 21337 sf BUILDING GROSSING FACTOR (1.42) 72302 sf BUILDING GROSS SQUARE FOOTAGE Primary Circulation, Vertical Penetrations, Walls
UNIVERSITY Tracey F. Smith Hall of Nursing and Health Sciences 72,302 sf 5.4% 16.2% 7.2% 8.1% 7.8% 13.1% 4.9% 7.9% 70.5% 29.5%

CAMPBELL UNIVERSITY

Jerry M. Wallace School of Osteopathic Medicine 96,500 sf

Completed in 2013, Campbell University’s School of Osteopathic Medicine was the first new medical school established in North Carolina in 35 years. The entire facility is a learning laboratory comprised of both formal and informal spaces stitched together by three design principles: learning is everywhere, transparency promotes informal learning opportunities and team-based problem solving is imperative to successful diagnosis and prepares students to collaborate with others in a real-world environment.

Health Science Buildings 16
Results Beyond Architecture 17

LEVEL 1

LEVEL 2

LEVEL 3

LEVEL 4

Health Science Buildings 18

CAMPBELL UNIVERSITY

Results Beyond Architecture 19 65478 sf BUILDING NET SQUARE FOOTAGE OMM LAB MEDICAL SIMULATION LAB ANATOMY LAB CLASSROOMS SHARED SPACE BUILDING SERVICES 5875 sf 6433 sf 5395 sf 12930 sf 11112 sf 7258 sf 31022 sf BUILDING GROSSING FACTOR (1.47) 96500 sf BUILDING GROSS SQUARE FOOTAGE Primary Circulation, Vertical Penetrations, Walls
Jerry M. Wallace School of Osteopathic Medicine 96,500 sf OFFICE SPACE 16475 sf 67.9% 6.1% 6.7% 5.6% 13.4% 11.5% 7.5% 32.1% 17.1%

DAVIDSON COUNTY COMMUNITY COLLEGE

Health Science Center

40,265 sf

Situated on the northern edge of the DCCC campus, this Health Science Center consolidates all of the College’s current health programs into one state-of-the-art facility that provides classroom space and medical simulation areas. This project is pursuing LEED Silver Certification.

Results Beyond Architecture 21
Health Science Buildings 22
LEVEL 1 LEVEL 2 LOWER
LEVEL

DAVIDSON COUNTY COMMUNITY COLLEGE

Results Beyond Architecture 23 33285 sf BUILDING NET SQUARE FOOTAGE CLASSROOMS SHARED SPACE BUILDING SERVICES 3450 sf 1640 sf 3728 sf 15509 sf BUILDING GROSSING FACTOR (1.47) 48794 sf BUILDING GROSS SQUARE FOOTAGE Primary Circulation, Vertical Penetrations, Walls PHARMACY LAB MEDICAL SIMULATION LAB MASSAGE THERAPY LAB MEDICAL ASSISTANT LAB NURSING LAB 1842 sf 3293 sf 3783 sf 4139 sf 3320 sf
Health Science Center 40,265 sf OFFICE SPACE 4411 sf EMS 3679 sf 6.8% 68.2% 7.1% 3.4% 7.6% 31.8% 3.8% 6.7% 7.8% 8.5% 9.0% 7.5%
Health Science Buildings 24

GLENDALE COMMUNITY COLLEGE

Health Science Building

45,662 sf

Set atop the campus’ hill, the Health Science Building looks out over the lower campus and connects to the upper parking garage, providing a transitional space for students entering campus. Boasting distinct Spanish architectural style, this facility provides specialized lab spaces, lecture halls, and faculty offices needed to support the college’s growing nursing program.

Results Beyond Architecture 25

LEVEL 3

Health Science Buildings 26
LEVEL 1 LEVEL 2 LEVEL 4

GLENDALE COMMUNITY COLLEGE

Results Beyond Architecture 27
Building 45,662 sf 34656 sf BUILDING NET SQUARE FOOTAGE GRAPHICS SUPPORT SPACE E.M.T. LAB & ASSOCIATED SPACES GENERAL STORAGE COMPUTER LAB OFFICE SPACE CLASSROOMS SHARED SPACE BUILDING SERVICES SHOP NURSING LAB 650 sf 2410 sf 3386 sf 5260 sf 5111 sf 2700 sf 5808 sf 5069 sf 2633 sf 1629 sf 11006 sf BUILDING GROSSING FACTOR (1.32) 45662 sf BUILDING GROSS SQUARE FOOTAGE Primary Circulation, Vertical Penetrations, Walls 75.9% 1.4% 5.3% 7.4% 11.5% 11.2% 5.9% 12.7% 11.1% 5.8% 3.6% 24.1%
Health Science
Health Science Buildings 28

FRANCIS MARION UNIVERSITY

Luther F. Carter Ceter for Health Sciences 53,454 sf

Results Beyond Architecture 29
LEED Silver certified, Francis Marion’s Center for Health Sciences is organized around a public green in downtown Florence. Home to FMU’s graduate health science programs and allied programs associated with the USC School of Medicine, this project was selected as the Best Educational project at the 2018 Design Build Institute of America (DBIA) Awards.

LEVEL 1

LEVEL 2

LEVEL 3

Health Science Buildings 30

FRANCIS MARION UNIVERSITY

Luther

Results Beyond Architecture 31 32948 sf BUILDING NET SQUARE FOOTAGE 20506 sf BUILDING GROSSING FACTOR (1.62) 53454 sf BUILDING GROSS SQUARE FOOTAGE Primary Circulation, Vertical Penetrations, Walls
F. Carter
Sciences 53,454 sf SHARED SPACES COUNSELING ANATOMY LAB OFFICE SPACE BUILDING SERVICES CLASSROOMS NURSING LAB 3121 sf 468 sf 3024 sf 7805 sf 2554 sf 9904 sf 6072 sf 11.4% 61.6% 38.4% 5.8% 0.9% 5.7% 14.6% 4.8% 18.5%
Ceter for Health

VICTOR VALLEY COMMUNITY COLLEGE

Health Science Building

27,106 sf

This new science and health building has been integrated into an existing complex of science buildings on the college’s main campus.

Health Science Buildings 32
Results Beyond Architecture 33
Health Science Buildings 34
LEVEL 1

VICTOR VALLEY COMMUNITY COLLEGE

Health Science Building

27,106 sf

DEAN’S

BUILDING

BUILDING

BUILDING

Primary

BUILDING

Results Beyond Architecture 35 19921 sf
NET SQUARE FOOTAGE 7185 sf
GROSSING FACTOR (1.36) 27106 sf
GROSS SQUARE FOOTAGE
Circulation, Vertical Penetrations, Walls
RADIOGRAPHY LAB FACULTY LABS CHEMISTRY LAB/ DIGITAL PHYSICAL SCIENCE LABS
ADMINISTRATION SUITE
SERVICES
FUNDAMENTALS LAB/ MEDICAL EQUIPMENT NURSING SIMULATION LABS/ DIGITAL NURSING LAB 2910 sf 1542 sf 3284 sf 1341 sf 1349 sf 3616 sf 5521 sf SHARED SPACE 358 sf 73.5% 26.5% 10.7% 5.7% 12.1% 4.9% 5.0% 13.3% 20.4% 1.3%
NURSING
Health Science Buildings 36

CRAFTON HILLS COLLEGE

Canyon Hall

45,197 sf

Canyon Hall, a new science building at Crafton Hills College, is located on a very challenging site within the College’s Yucaipa, CA campus. A large steel and glass window wall offers breathtaking views and glass corridors provide transparency and natural light into the building and laboratory spaces. An outdoor amphitheater provides a place for students and faculty to teach and learn outside.

Results Beyond Architecture 37
Health Science Buildings 38
LEVEL 1
LEVEL 2

Canyon

Results Beyond Architecture 39
CRAFTON HILLS COLLEGE
30114 sf BUILDING NET SQUARE FOOTAGE RADIOGRAPHY LAB & ASSOCIATED SPACES SHARED SPACE BUILDING SERVICES 3794 sf 4059 sf 2828 sf 15083 sf BUILDING GROSSING FACTOR (1.50) 45197 sf BUILDING GROSS SQUARE FOOTAGE Primary Circulation, Vertical Penetrations, Walls CHEMISTRY LAB & ASSOCIATED SPACES OFFICE SPACE CLASSROOMS 7343 sf 2635 sf 3044 sf BIOLOGY/ MICROBIOLOGY LAB & ASSOCIATED SPACES 6411 sf 66.6% 8.4% 9.0% 6.3% 33.4% 16.2% 5.8% 6.7% 14.2%
Hall 45,197 sf
Health Science Buildings 40

SOUTHERN CONNECTICUT STATE UNIVERSITY

Health and Human Services Building

93,810 sf

In partnership with Svigals, Little is working with Southern Connecticut State University on phase one of its new Health and Human Services building. Incorporating program space for six different departments, this project will help create a new face and identity for the University while creating a more unified campus that will embrace existing campus patterns and help shape new ones for learning and student life.

Results Beyond Architecture 41
Health Science Buildings 42
BASEMENT LEVEL LEVEL 2 LEVEL 1 LEVEL 3 LEVEL 4

SOUTHERN CONNECTICUT STATE UNIVERSITY

Results Beyond Architecture 43 FAMILY THERAPY CLINIC (MARRIAGE AND FAMILY COUNSELING/COMMUNICATION DISORDERS) 6955 sf 7.4% 60191 sf BUILDING NET SQUARE FOOTAGE EXERCISE SCIENCE LAB POLYSOMNOGRAPHY RECREATION, TOURISM & SPORTS MANAGENT (RTSM) OFFICE SPACE CLASSROOMS SHARED SPACE BUILDING SERVICES ATHLETIC TRAINING NURSING LAB 3616 sf 202 sf 5260 sf 666 sf 12900 sf 10749 sf 7299 sf 1515 sf 13506 sf 33619 sf BUILDING GROSSING FACTOR (1.56) 93810 sf BUILDING GROSS SQUARE FOOTAGE Primary Circulation, Vertical Penetrations, Walls 64.0% 3.9% 0.2% 0.7% 13.8% 3.0% 11.5% 7.8% 1.6% 14.4% 36.0%
and Human Services Building 93,810 sf
Health

LITTLE IS DEDICATED TO ENHANCING CLIENT PERFORMANCE BY ORCHESTRATING THE RIGHT MIX OF EXPERTISE, CREATIVITY AND INNOVATION TO DESIGN NEW DIMENSIONS OF SUCCESS.

OFFICE LOCATIONS

COMPANY INFORMATION

PRACTICES

440+

CHARLOTTE, NC DURHAM, NC

NEWPORT BEACH, CA ORLANDO, FL

WASHINGTON, DC

CHARLESTON, SC

115+* 114

EMPLOYEES LEED & WELL PROJECTS

*CERTIFIED OR PURSUING CERTIFICATION

LEED & WELL ACCREDITED PROFESSIONALS

SERVICES

COMMUNITY

HIGHER EDUCATION, CIVIC, JUSTICE, SCHOOLS

HEALTHCARE

ACUTE CARE, SPECIALTY CENTERS, MEDICAL OFFICE BUILDINGS & CLINICS

RETAIL

BRAND EXPERIENCE, SERVICE RETAIL, SUPERMARKETS, MARKETPLACE, CORPORATE

ROLLOUT

WORKPLACE

OFFICE, INTERIORS, MIXED-USE, CRITICAL FACILITIES

ENGINEERING

MECHANICAL, ELECTRICAL, STRUCTURAL, LOW VOLTAGE, PLUMBING, CIVIL, CENTER FOR BUILDING PERFORMANCE

ARCHITECTURE, INTERIOR ARCHITECTURE, ENGINEERING, PLANNING, SUSTAINABILITY, SITE DESIGN, BRAND CONSULTING, DIGITAL VISUALIZATION, SMART BUILDING TECHNOLOGIES

Health Science Buildings 44
www.littleonline.com
Issuu converts static files into: digital portfolios, online yearbooks, online catalogs, digital photo albums and more. Sign up and create your flipbook.
Little - Health Science Buildings by Little - Issuu