PORTAFOLIO
Laura Maria Tejada Angarita


![]()
Laura Maria Tejada Angarita


Arquitecta con experiencia en diseño, dibujo técnico y desarrollo de Proyectos Arquitectónicos. Manejo programas como AutoCAD y BIM Revit, lo que me permite optimizar procesos y garantizar precisión en cada etapa del proyecto.
Cuento con habilidades sólidas en la creación de Renders realistas y visualizaciones que transmiten ideas de manera clara y atractiva. Mi enfoque integra creatividad y funcionalidad, con el propósito de transformar conceptos en espacios habitables, estéticos y significativos.
Numero Telefonico
57 + 3184430699
Identificación
CC. 1007.914.137
Correo Electronico
lautejadaa@gmail.com
Link de trabajos completos
https://drive.google.com/drive/folders/1 VgD4gskerzzAXMXL5GaVqWuOHfTrJ4vX? usp=drive link
·Curso manejo Autocad 2D.
Universidad ECCI.
Bogota d.c, Colombia
Marzo 2019 – Mayo 2019
·Curso de Representacion de proyectos photoshop & ilustrator.
European School of Architecture.
Madrid, España
Febrero-2022
·Diplomado OnLive BIM REVIT Arquitectura, Nasvisworks ( 110 horas).
Naska Digital – Certificación AUTODESK
Bogota d.c, Colombia
Enero 2025
Auxiliar de Proyectos
ITC PROYECTOS-INMOBILIARIA-AVALUOS SAS
Cali, Colombia
Junio 2019 - agosto 2019
Diciembre 2019 - febrero 2020
Arquitecta Auxiliar Proyectos Constructor.
H a b i l i d a d e s
· AutoCAD – Avanzado
· Revit BIM – Avanzado
· Navisworks – Basico
· SketchUP – Medio
· 3dsmax – Medio
· Paquete office – Avanzado
· Photoshop – Avanzado
· illustrator – Medio
· D5 Render – Medio
· V-Ray – Medio
L e n g u a j e
Español: Idioma
Nativo
Ingles Nivel B1
Realizacion de avaluos de diferentes proyectos de constructoras para vaances de obra ante el banco Davivienda
Agosto – dic 2023
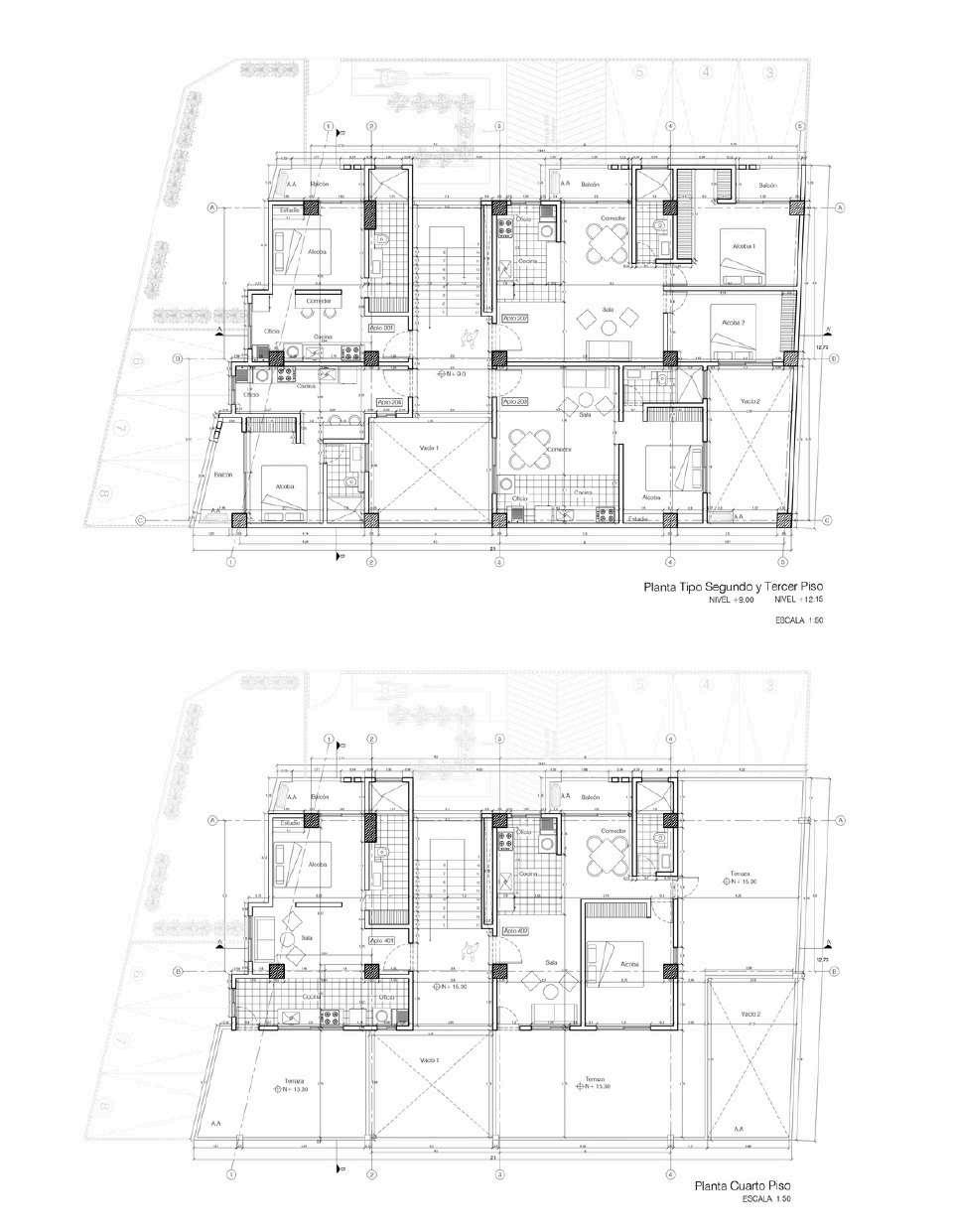
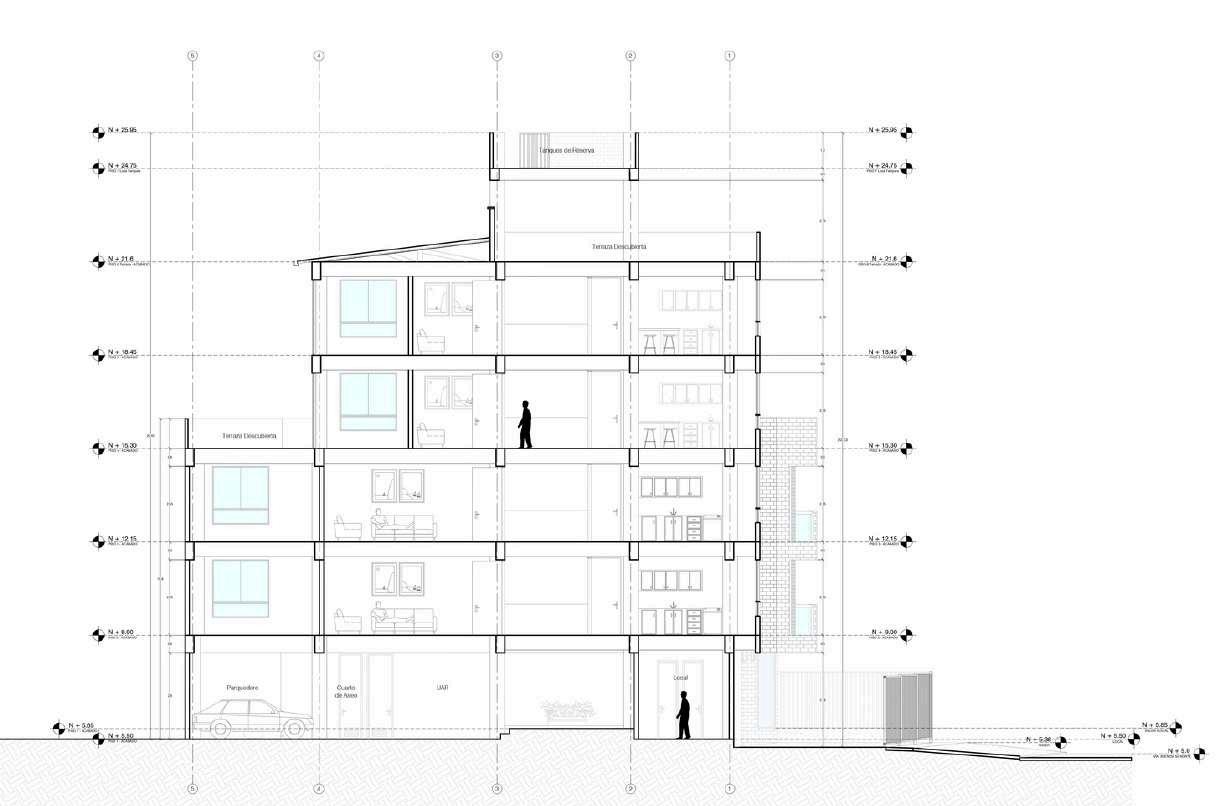
Diseño Arquitectónico Proyecto Edificio 6 pisos
12 unidades de Vivienda, Realización de Plantas- Cortes – Fachadas e Isometría inicialmente en AutoCAD y luego pasado completamente el proyecto a Revit BIM, coordinación entre ingenieros estructurales, hidrosanitario y eléctricos
Y gestión de proyecto para obtención de licencia de construcción Curaduría Urbana # 2.
Cali, Colombia
Enero 2024 – mayo 2025
M i D e s e m p e ñ o

Proyecto de edificio multifamiliar de seis niveles con fachada en ladrillo a la vista, diseñado bajo un enfoque moderno y funcional. La edificación contempla un total de 12 unidades de vivienda distribuidas en apartamentos de 1 y 2 habitaciones, adaptados a diferentes necesidades habitacionales. Además, el proyecto incluye un local comercial en el primer nivel y una terraza con espacios pensados para el esparcimiento y la integración. Se encuentra proyectado en la ciudad de Cali, Valle del Cauca, en el tradicional barrio La Flora.
Diseño integral del edificio, desarrollando los planos arquitectónicos (Planos,Cortes,Fachadas en autoCAD y Revit ) el modelado 3D y los renders para la presentación del proyecto. Encargada de los procesos ante curaduría para la obtención de la respectiva licencia de construcción, garantizando el cumplimiento de la normativa vigente.
Asimismo, coordiné el trabajo interdisciplinario con los ingenieros encargados de las áreas estructurales, sanitarias y eléctricas, asegurando la coherencia técnica y funcional del proyecto en todas sus etapas.

Planos arquitectónicos plantas, cortes , fachadas hechos en AutoCAD, mo sketchUP y v-ray, se proc completo en Revit para s materiales.

(Cali/Valle del Cauca / Colombia )


Rey David / Edificio

El proyecto se ubica en el barrio La Flora, un sector reconocido por su alta valorización y excelente conectividad. Cuenta con acceso directo a vías principales como la Avenida 6A Norte y la Carrera 5A Norte, lo que facilita la movilidad hacia diferentes puntos de la ciudad. Su localización estratégica lo sitúa en un entorno urbano consolidado, cercano a equipamientos de escala metropolitana.
En sus alrededores se destacan referentes urbanos como el Parque La Flora, espacio verde representativo del sector, y el Centro Comercial Chipichape, La zona predomina la residencial con una amplia oferta de comercio formal e informal, donde se encuentran almacenes de cadena como D1, además de restaurantes, servicios y espacios recreativos.
(Cali/La Flora / Colombia )

1.EL LUGAR
Se separa el área destinada al antejardín y se define la superficie efectiva para el desarrollo del edificio

3. AISLAMIENTOS LATERALES
Segun normativa del sector 4 m, se podra adosar las edificaciones colindantes.

5.FORMA
Forma de base para el diseño del proyceto.

2.IMPLANTACIÓN
Se toma la superficie y se hace un levantamiento de 6 pisos que son pisos maximos permitidos en el sector.

4. DEPRRIMIDOS
Deprimidos segun la Altura de la colindancia (Vecinos) 3 pisos, espacios para terrazas

6.VOLADIZOS
En predios con antejardín: será el 25 %, como máximo, de la profundidad del antejardín.

El proyecto se compone de 12 unidades de vivienda diseñadas para el confort de los residentes, un local comercial en el primer nivel que aporta dinamismo al entorno, una terraza común en la cubierta como espacio de recreación y encuentro, y un parqueadero privado que garantiza comodidad y seguridad vehicular.

Los Planos arquitectónicos presen el primer, segundo y tercer nive distribución del local, las vivienda comunes Cuadro de áreas que d superficies por nivel y el total del








Apartaestudio de 42 m² desarrollado bajo un concepto contemporáneo que prioriza funcionalidad, iluminación natural y aprovechamiento eficiente del espacio. La propuesta organiza de manera fluida la zona social, cocina abierta, área de descanso y baño, manteniendo continuidad visual y sensación de amplitud.



Ubicado en cuarto piso, esquinero, con vista directa al parque, el proyecto aprovecha la entrada de luz natural como elemento compositivo, potenciando la percepción espacial y la relación interior–exterior.
La materialidad y los acabados responden a una estética limpia y actual, donde predominan líneas definidas, tonos neutros y soluciones prácticas que optimizan cada metro cuadrado. integrando funcionalidad y confort en una propuesta compacta y bien resuelta.
Cocina contemporánea en verde salvia mate, con frentes lisos y tiradores negros. Revestimiento en cerámica blanca tipo subway con franja decorativa hidráulica y encimera blanca. Integración de madera clara y electrodomésticos en acero inoxidable que aportan contraste y calidez.


Vista parcial de cocina contemporánea en verde salvia mate, enmarcada por una celosía vertical en madera clara que actúa como filtro visual. Revestimiento en cerámica blanca tipo subway con franja decorativa y encimera blanca, generando un contraste cálido y equilibrado entre madera y tonos verdes.


Render de habitación y baño con un diseño moderno que combina acabados en madera clara y tonos blancos, generando espacios luminosos, cálidos y elegantes que transmiten confort y armonía.
Baño de diseño contemporáneo con composición limpia y contraste de materiales. Destaca el muro en ladrillo cara vista como elemento focal, combinado con porcelanato blanco y mobiliario en madera clara suspendida. La grifería y perfilería negra aportan carácter moderno, mientras la iluminación circular del espejo enfatiza la calidez y profundidad del espacio.




Baño contemporáneo con contraste entre ladrillo a la vista y porcelanato blanco. Mueble suspendido en madera clara con cubierta en terrazo y detalles en negro mate que aportan carácter y equilibrio visual.
Clóset en madera clara con diseño modular abierto, que integra zona para colgar prendas, estanterías, cajoneras y nichos iluminados. Propuesta funcional y organizada que optimiza el almacenamiento con una estética limpia y contemporánea.

DDetalle de encimera con cerámica tipo subway y franja hidráulica decorativa. Elementos en vidrio y madera natural que refuerzan la calidez y coherencia material del espacio.

Detalle de Comp cerámico, con pie que aportan fres texturas y mate





