

DIGITAL PORTFOLIO
BRIANNA REESE
SCAD MUSUEM OF ART

After taking interior and exterior measurements of the SCAD Museum of Art, students hand drew several illustrations. These included a detailed site plan, an axonometric view, and various diagrams, all initially sketched in pencil. Following that, they traced over their pencil work using Micron pens to create clean, precise renderings of the architecture.





STUDY MODELS
FALL 2024
SBLD 223
After thoroughly examining various case studies, students were assigned the project of developing two original case studies for an outdoor event space. The designs were required to be presented at a scale of 1/10, equating to 1 foot representing 10 feet in reality. This task aimed to encourage students to apply their knowledge and creativity in practical settings, allowing them to explore the nuances of outdoor event planning, spatial organization, and effective use of landscape features.

MODERN VILLA



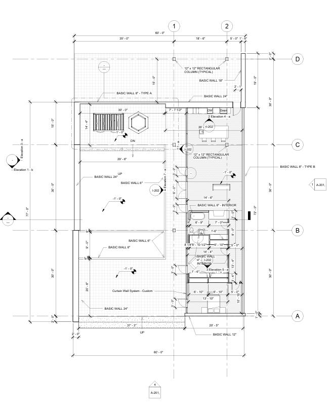
Students designed a furnished single-story home using Revit, incorporating features like a swimming pool and outdoor patio. They were guided step-by-step in creating the structure, furnishing the interior, and enhancing the overall design. After completing the project, students captured high-quality images that showcased various elements, including exterior elevations, interior perspectives, and floor plans with accurate dimensions and scales.
MODERN LAKE HOUSE

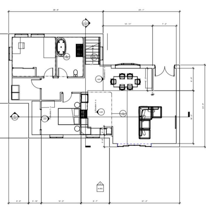
Students designed a furnished two-story home using Revit, incorporating features that focus on a inclined hill. They were given total creativity in creating the structure, furnishing the interior, and enhancing the overall design. After completing the project, students captured high-quality images that showcased various elements, including exterior elevations, interior perspectives, and floor plans with accurate dimensions and scales.



COLOR MATRIX
WINTER 2025 INDS 204
Students discovered an album cover that inspired them to create circular patterns. They used this design as a foundation, filling in the circles with vibrant Copic markers to bring their vision to life. Once they completed the coloring, they traced over the patterns with black Micron pens, adding a polished and defined look to their artwork.




