hello
2nd Year - Spring 2025
3rd Year - Fall 2025



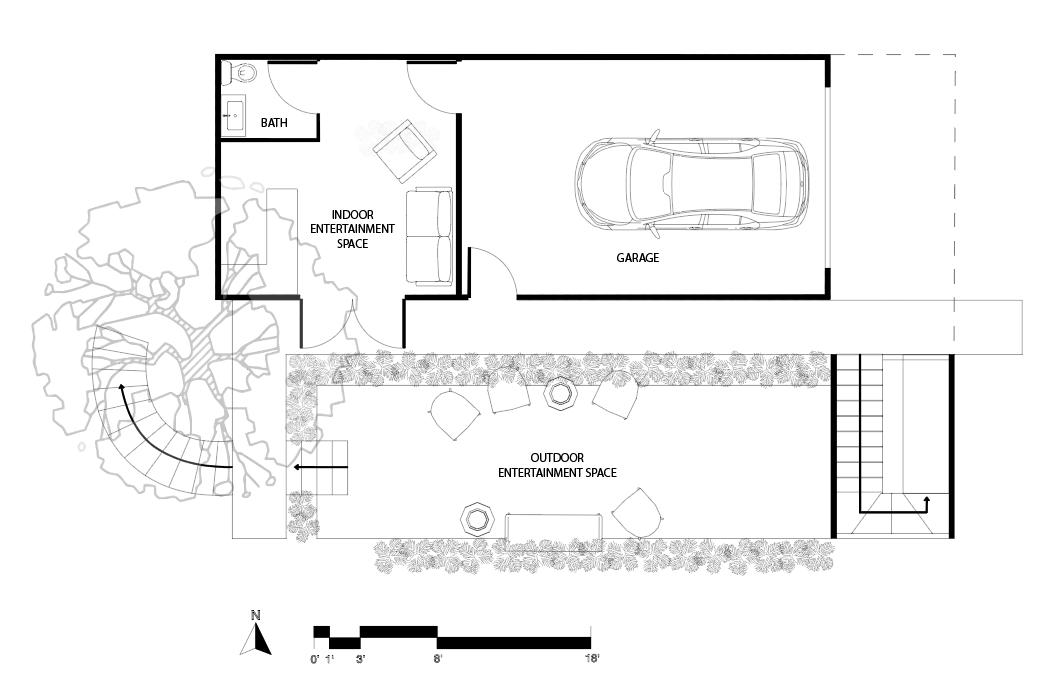
Tropical Junction
This tropical junction tiny home embraces the beauty of contrast - where steel meets soil, and industry meets life
Rooted in principles of adaptive reuse and environmental sensitivity, this tiny home design reimagines the industrial character of shipping containers within the vibrant, tropical landscape of Brazil.
By stacking and rotating the containers at varied angles, a dynamic dialogue is created between the rigid, manufactured forms and the organic density of the surrounding jungle.



The structure minimizes its impact on the land while maximizing connection to the outdoors, blurring the line between interior and exterior spaces.
Outdoor living areas extend into the landscape to accomodate family and friends to gather, eat, and celebrate together beyond the limitations of the interior footprint. This extension continues the vibrancy of the natural setting with pops of color that echo the spirit of the tropics.





02 Haleakala National Park Visitor Center
visitor center | maui, hawaii national park service


To preserve the natural and cultural resources of the site, this National Park Visitor Center redesign is grounded in the values of the Kanaka Maoli, the Native Hawaiian people.
The concept draws from the Lokahi Triangle, a foundational philosophy centered on balance and unity. Lokahi is achieved through reciprocal relationships between the Kanaka (the people), ‘Aina (the land), and Akua (the divine).


Meaning “House of the Sun”, Haleakala draws thousands of visitors each year for its panoramic vistas and exceptional stargazing.
In response to this etymology, a retractable roof system hovers above the amphitheater, allowing the space to open fully to the sky. When retracted, the amphitheater becomes a vessel for observing the sun’s movement and the brilliance of the night sky; when closed, it offers shelter while maintaining a filtered connection to light.








This project translates the Lokahi philosophy into architecture, creating spaces that honor cultural identity, respond to the landscape, and cultivate a sense of reverence and connection.
Architecturally, the three elements form a continuous sequence of exhibits that wrap around a central Lokahi amphitheater, following the geometry of the symbolic triangle. A continuous ramp traces the outer perimeter of the ovoid form, guiding visitors through each space, in a gradual, immersive progression. As the ramp ascends, two observation decks emerge, framing expansive views into the valley and reinforcing a constant visual dialogue.


At the heart of the project, the partially enclosed Lokahi amphitheater functions as both cultural anchor and active gathering space. Designed as a living stage, it supports contemporary Kanaka Maoli in dance, storytelling, and teaching. The space adapts to ceremony, audience, and environment, reinforcing culture as something dynamic and evolving rather than static.

Section A - A’

In this fully enclosed, glass viewing deck, users are immersed in light, cloud movement, and celestial views to encourage reflection and connection to the spiritual realm.





Lauhala displays cultural teachings and history, with interactive spaces to engage with objects such as local musical instruments, spinning displays, or walk-throughs of dance rituals.
Lokahi Large pivoting doors allow the amphitheater to transform from being fully open to frame the valley as a backdrop, to being closed to create an intimate, enclosed setting for performance or teaching.








Moodboard: A day in the Greenhouse
The Greenhouse is an adaptive reuse memory cafe inspired by the day my father took me to work with him at a greenhouse. This memory has remained very vivid and prominent due to the strong sensory elements - the smell of wet paint, the feeling of the natural textures, and the light refractions dancing across the floor. Along with the playfulness, curiousity, and laughter the day brought, the greenhouse became a sanctuary that felt safe and grounding, yet still offered room to explore, create, and grow.
Into the Greenhouse Coffee Co.
memory cafe | phoenix, arizona alzheimer’s society and association

Level One: Cafe Adjacencies



Materiality




Mezzanine: Pot Painting Studio Adjacencies








To strengthen the connection to the geographical and cultural context, the city’s traffic and flow of energy is reflected indoors for a cohesive and seamless transition into a new experience.
The compressed entry sequence eases users out of the outside energy, and redirects them to slow down and release any weight that the outside world carries.


creativity the gentle relationship between immersive nature and the space it allows for creative fluidity and room to grow
The Greenhouse cafe offers space for creativity to flourish while remaining grounded through connection to nature, light, and community. inspired by Kengo Kuma’s philosophy of dissolving the boundaries of architecture. This urban project emphasizes transparency, material tactility, and human-scaled experiences. By immersing occupants in greenery and natural rhythms, the cafe becomes a place where creativity emerges from stillness, sensory engagement, and shared presence.

intention for efficient, fluid, intuitive movement through the ordering process and maintaining adjacencies to support a variety of next steps and destinations

movement spatial grouping personalization












Fabric overhead sun shading devices were implemented to control heat gain along the Southern and Western facades while still allowing natural light to enter the building.
The colors of fabric are in accordance with local professional sports teams such as the Diamondbacks, Suns, Mercury with events that are adjacent to the site, while creating a visual interior-exterior continuity.





Featured custom-designed elements such as the overhead “bridge” guiding visitors inside, (referencing the Queen Anne’s Bridge from the memory) along with workbench-style community tables and booth seating that encourage social interaction.
The mezzanine is conceived as a pot-painting studio, evoking the sensory experience of handling soil, smelling paint, and engaging creatively with natural textures.






Entre Filas Winery
adaptive reuse winery | sonoma county, ca
Rooted in land, labor, and belonging, Entre Filas reexamines wine culture through the lens of those who shaped it. The project centers the legacy of Bracero laborers whose work built the agricultural foundation of the region, yet whose stories often remain untold.


The architecture makes labor visible. Production is not hidden but integrated into the visitor experience, allowing guests to engage with the physical processes behind each bottle. Through material honesty, agricultural proximity, and spatial sequencing inspired by vineyard rows, the design creates a return to the origins of wine—grounded in equity, dignity, and deep respect for the land and its workers.
The architectural language draws from Spanish and Mexican precedents while responding to the Northern California landscape, fostering gathering, shade, and communal exchange. Bilingual wayfinding and storytelling, transparent production spaces, and culturally grounded material choices create an accessible environment that honors land, labor, and lineage..







Currently in the design phase, this portable side table explores the use of a single continuous tubular steel frame to create structural clarity and visual lightness. Integrated handles and an open lower shelf prioritize easy mobility and accessible storage, merging function with streamlined form.

Portable Side Table
furniture design studio | oak and tubular steel

I design spaces as experiences.
My work is rooted in sustainability, adaptive reuse, and the belief that architecture should serve both people and the planet. I am deeply committed to creating inclusive environments that embrace cultural diversity, prioritize accessibility, and foster a genuine sense of belonging.
Through research-driven design, I explore how sensory elements such as light, texture, sound, material, and movement shape atmosphere and memory. I am interested not just in how a space functions, but in how it feels: how it welcomes, connects, restores, and tells stories. Whether transforming existing structures or designing new interventions, I aim to create thoughtful, environmentally responsible work that integrates culture, context, and human experience.
Thank you for taking the time to engage with my work. I hope it reflects both my values and my commitment to designing spaces that are inclusive, meaningful, and enduring.