A R c h i t E c t u R A l
P O R T F O L I O

RESORT - CANGGU, BALI
![]()
A R c h i t E c t u R A l
P O R T F O L I O

RESORT - CANGGU, BALI
MEDICAL CENTRE - REDFERN, SYDNEY
RAWSON HOMES - TOWNHOUSES, GINNINDERRY, ACT
MEDICAL CENTREEASTGARDENS, SYDNEY
DUPLEXES - LANE COVE NORTH, SYDNEY
INDUSTRIAL - ORMEAU, QLD STRUCTURAL PLANS
CASTLE HILL, SYDNEY



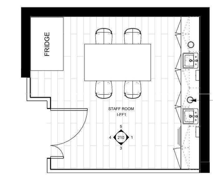
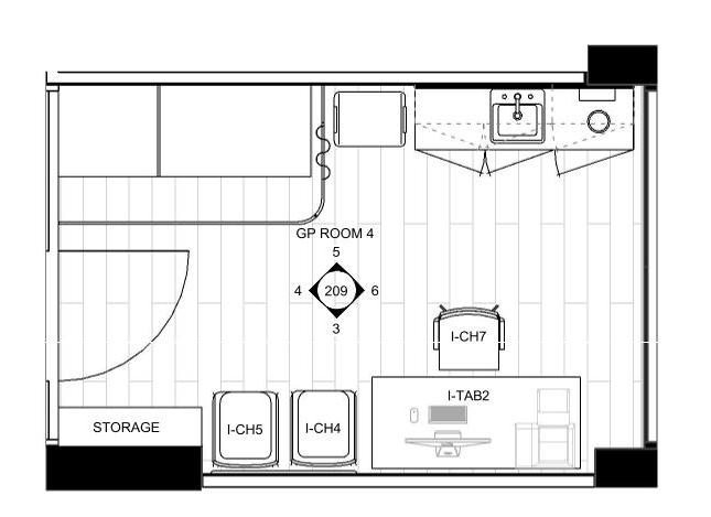
Working on projects in Bali, I was given the opportunity to conceptualise designs that blended traditional Balinese elements with modern influences. Collaborating with interior designers, I used my architectural perspective to implement features such as rooftop restaurants with associated pools, in addition to refining interiors of the rooms. These projects proved to be rewarding in their challenges, from learning about international design and construction standards, to understanding an entirely different market. Despite the tight commercial deadlines, I thoroughly enjoyed overcoming the unique obstacles presented by this project.

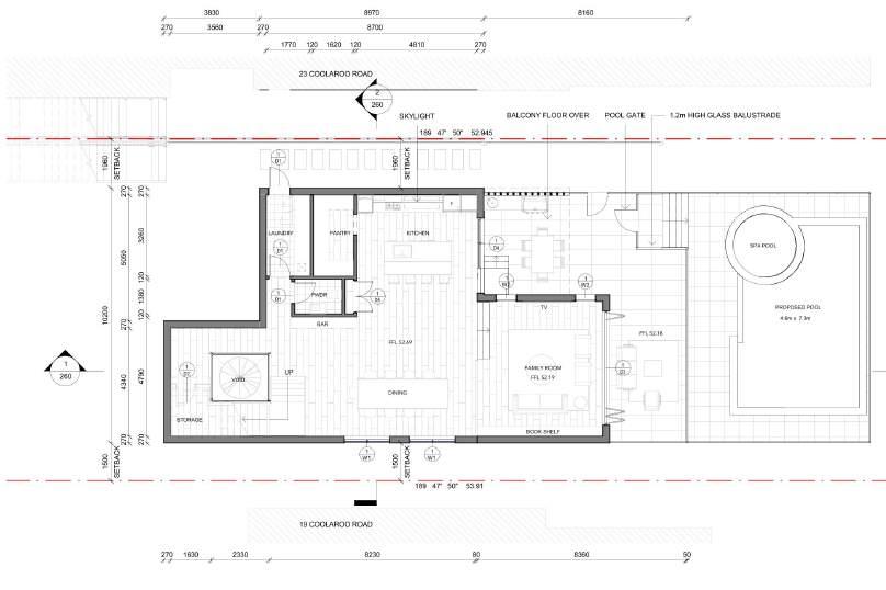
SITE PLAN - GROUND FLOOR


G.F - LOBBY FLOOR PLAN
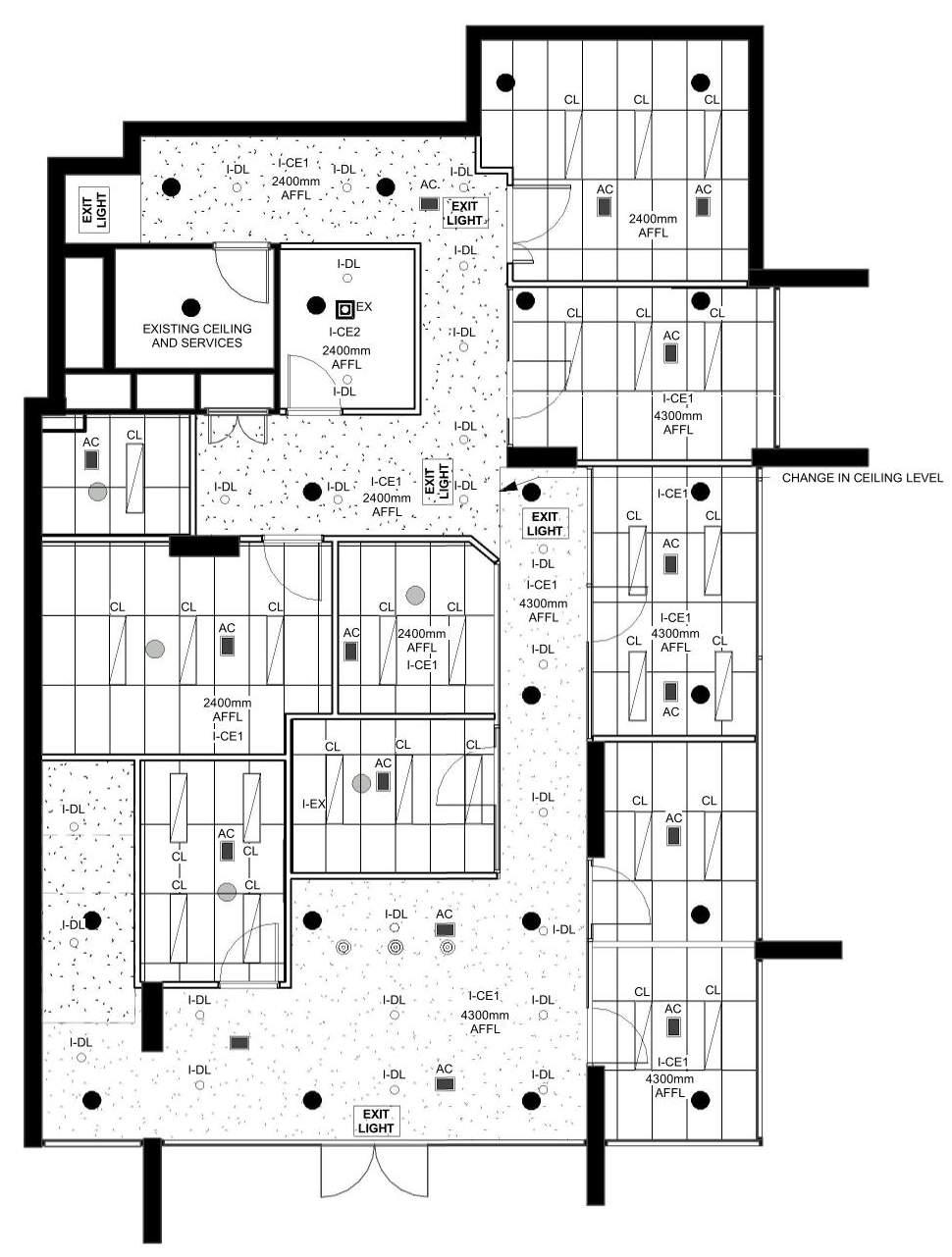
RECEPTION G.F - LOBBY CEILING PLAN



- ELEVATION 1B














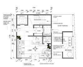
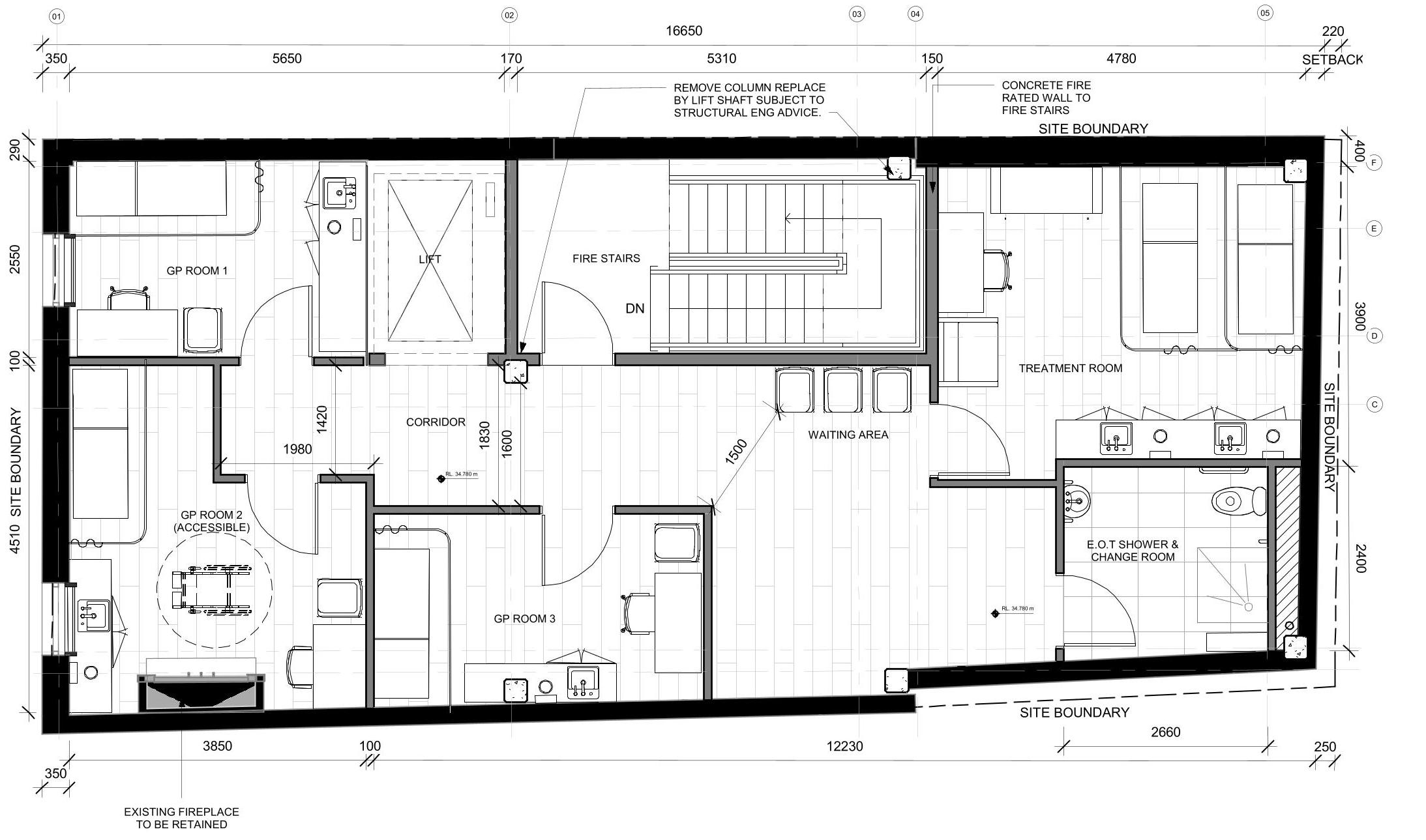
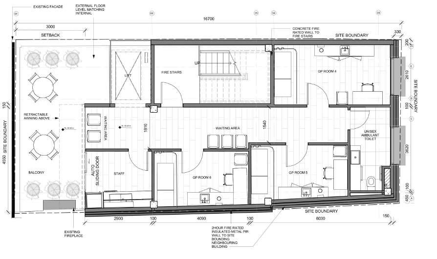
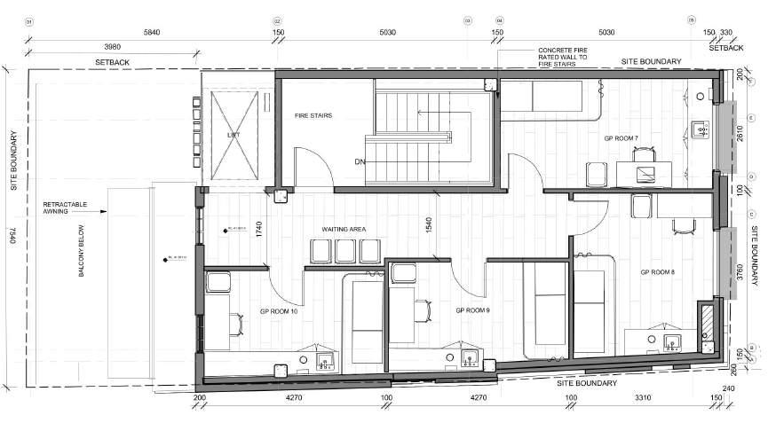
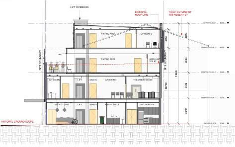
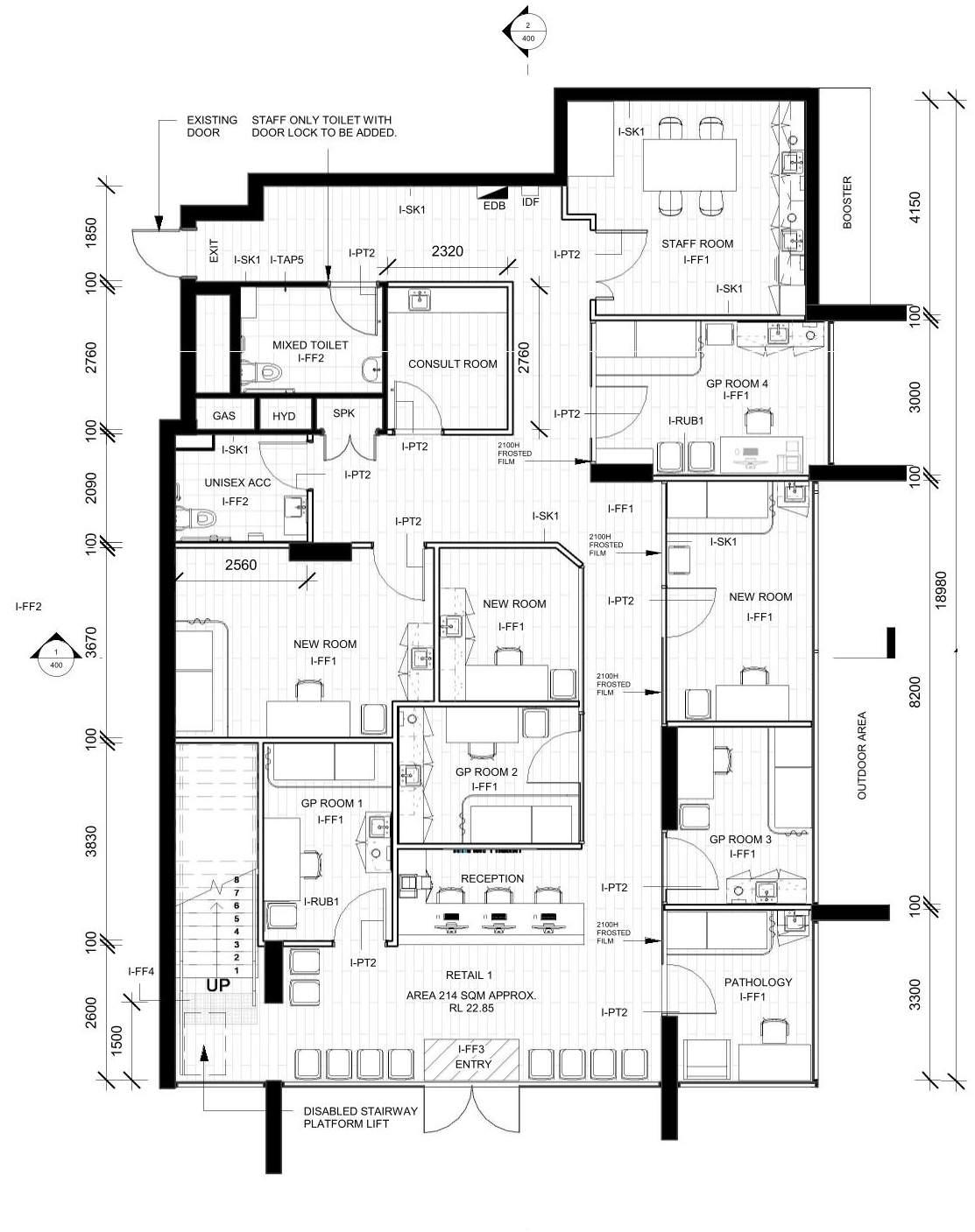
The Redfern Medical Centre was my favourite project of the year. I managed the project from start to finish, and since it was my first time working on a medical facility, I learned a great deal throughout the process. Designing a medical centre required special attention to sizes and details, particularly to ensure wheelchair accessibility throughout the clinic. One of the biggest challenges was navigating Council requirements, as the site was heritage-listed. While additional floors were permitted, meeting the strict regulations proved extremely difficult. I conducted extensive research on Redfern’s heritage controls to incorporate the neighbourhood’s historical themes into the design. The front façade was kept simple to complement the streetscape, while the side façade featured a heritage mural. Inspired by Redfern’s original connection to water and the ocean, I designed wave-like panels along the side elevations of the building, with one panel featuring subtle lighting to create a striking effect at night.














My previous role with Perfect Square Design was as a Design Coordinator. The company was primarily using ArchiCAD, and I was the only team member with experience in Revit. I took the lead on a project for Rawson Homes, who requested the design of 44 townhouses using Revit for their in-house team. I worked alongside a junior architect, mentoring her while also drafting for my solo projects. I learnt a lot about drafting in this role, but the experience was quite limited beyond this due to the repetitive nature of projects.


FRONT ELEVATION - TYPE 1
FOR HOUSE TYPE A1 AND A2


ELEVATION - TYPE 2 FOR HOUSE TYPE B1 AND B2








I saw the Medical Centre from inception, through to the construction and operation. My work involved weekly site visits which were really enjoyable and educational, seeing my vision come to life. I collaborated closely with the medical team to ensure the design met all their specific requirements. It’s highly rewarding and fulfilling to see the Medical Centre in operation now, with the doctors all satisfied with the final outcome.

CARPARKING AND LOADING DOCK PLAN PLUS OVERALL GROUND FLOOR PLAN













When I first began working with EMKC3, our client had requested a dual occupancy design. Since the team primarily focused on higher density residential/commercial developments, I was the only draftsperson that had experience with Council regulations and dual occupancy requirements. I managed the project and worked closely with the client to help them achieve their dream design. The site presented challenges, as it was bushfire prone land in addition to its steep topography. Requiring careful planning, I ensured colours, materials, and design details met all the necessary requirements for approval.



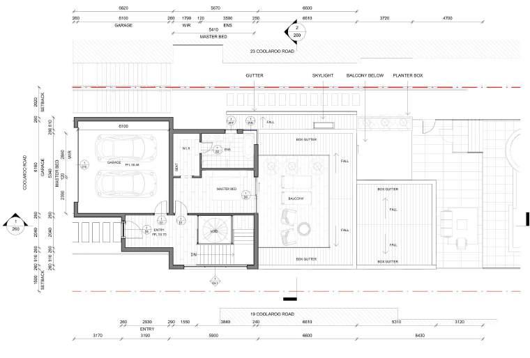
PROPOSED FIRST FLOOR










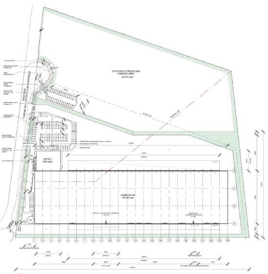
This was my first industrial project, starting with the initial brief and concept plans before progressing to more detailed designs. Navigating the various compliance requirements and meeting the client’s needs was a new challenge, but I quickly adapted, which prepared me for future industrial projects that followed. I particularly enjoyed designing the façade and selecting materials and colors that complemented the surrounding neighborhood. We successfully obtained approval, and the project is now under construction.












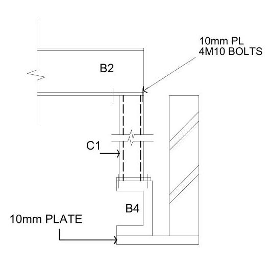
In my previous role, I had an additional responsibility where I worked alongside a structural engineer, drafting his structural plans in AutoCAD. Over the years, this experience taught me a great deal, both about structural design and the AutoCAD software itself.

TYPICAL GRATED DRAIN DETAIL
SAWN CONTROL JOINT DETAIL - S.J.
CONSTRUCTION JOINT DETAIL DETAIL

TYPICAL TRIMMER DETAILS
SLAB PENETRATION
EDGE OF SLAB YPICAL SLAB THICKENING ST1 UNDER NON-LOAD BEARING WALL (BRICK)

TYPICAL PIT DETAIL
TYPICAL GRATED DRAIN DETAIL
TYPICAL GRATED DRAIN DETAIL












sara.wadee@outlook.com
+61 426 503 644
Sydney, Australia
