Skip to main content

TKU EA1-SPRING 曾琬姿 PORTFOLIO

Page 1

Portfolio

TKU EA1-Fall
既然生活不如意,那就努力的如意過生活!

instagram

issuu

411360356 曾琬姿

指導老師:林宏聰

01 窗 景 大 師 題 操 作 過 程 轉 化 建 構 設 計 分 析 35 25 13 I n d e x

窗景

01
02

觀察窗內外的互動,尋找出物、街道、自然 和人的關係。

發現問題

1.排隊動線影響人行行人道動線

選擇位於淡水老街的阿香蝦捲店 觀察不同客流量帶來的影響

2.拿取時不衛生

3.油煙問題

03
04
06

概念模

利用移動來引響空間 使用程度,營造不同 的空間深度 08
09
10
11
12

大師題-操作過程

13
14

Wall House

案例:Wall HOUSE

場地面積:15acres

建築面積;100 sq.m.

成本:INR 1 million (37.5萬台幣)

建造年份:1997-2000

建築師:Anupama Kundoo

建築類型:住宅 自己住

位置:Tamil Nadu﹐India ,Auroville城外

(XRVP+5R4, Kuilapalayam, Tamil Nadu 605101印度)

出生:1967年4月24日(55歲)

印度:浦那

國籍:印度人

職業:建築師,教授

幾年活躍:1990–至今

設計方法:

利用廢料、非熟練勞動力、當地社區

15
Anupama Kundoo

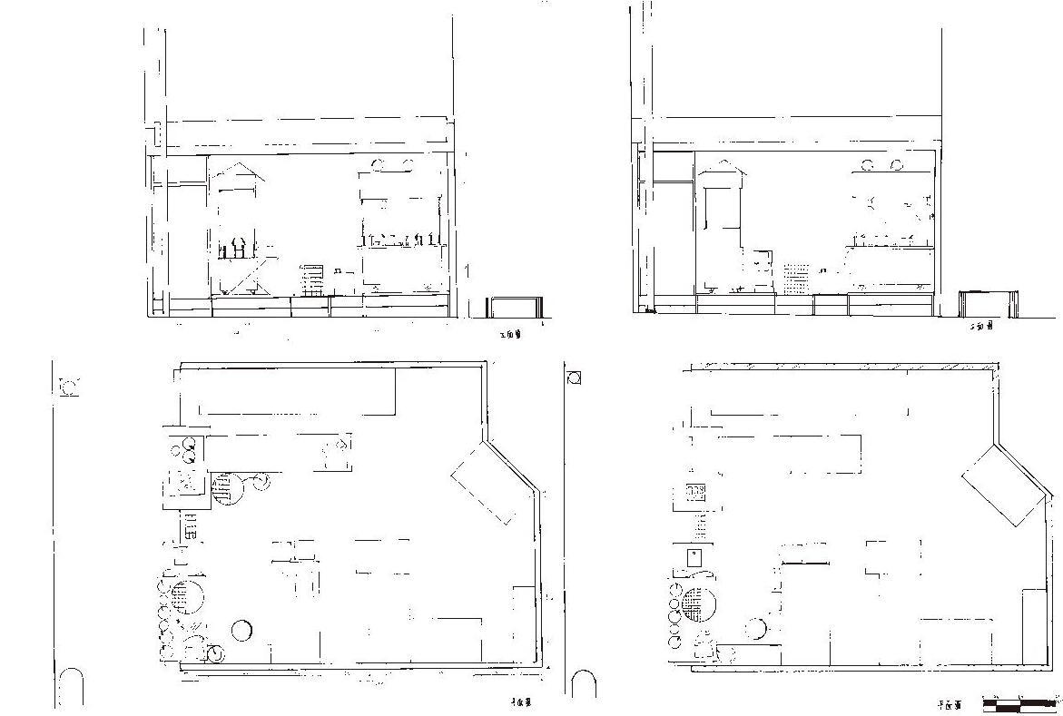
平面圖

16

立、剖面圖

17

立、剖面圖

18
19
20
21
22
23

初步特質分析

材料

1.梯形磚

2.Achukkal 磚以其獨特的扁平、薄型和獨特的紅色而聞名,通常由從周圍農田收集的 剩餘淤泥製成。

3.在當地用於烹飪的陶罐,隨著它們的使用逐漸減少,在一個沒有模板傳統的地區被 用作混凝土模板。

房子以清晰的線條和質量來界定,但室內外的空間卻模糊不清。 這裡的創新在於住宅建築方案的定義,以及內部和外部之間的 過渡空間。邊界和過渡空間以新的方式定義。

屋頂

1.平坦的梯田在部分預製樑上使用定制的梯形模塊,就像千斤頂拱門一樣。

2.底層的拱頂在結構上使用 achakal 磚。

3.使用定制的空心粘土管的懸鏈線拱頂絕緣並消除了對結構鋼的需求。

4.陶土盆被用作中間地板的填充物,以增加混凝土的有效深度,同時最大限度地減少 混凝土和鋼材的體積隔熱屋頂和模塊化材料組成

緩衝空間可以根據一天中的時間或氣候的變化 來改變領土圍護結構。西南立面是一個帶有網 眼的透明木結構,可以看到日落的全景,而拱 頂懸挑提供了足夠的陰影,並確保直射陽光的 熱量和眩光不會到達涼爽的室內。

被稱為“黎明之城”,是一個社會、經濟、 規劃和建築實驗。以精神核心為中心、四周 環繞著寬闊綠化帶的四個使用區的城市區域。 進入這個理想小鎮的人不能擁有任何財產, 也沒有流通的貨幣。Auroville Foundation 負 責滿足基本需求,因此成員可以專注於自我 發展和人類團結。

內外互動
Auroville
24

大師題-設計分析

25
26
27
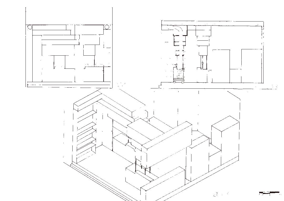
利用當地陶罐左右交錯堆疊,形成特殊的懸練拱頂系統,在陶罐與陶罐的 空隙中發現了一個有趣的紋路。

過渡空間

每當要從一個

都屬於半室外

空間,利用此

將過渡空間以

透明盒子呈現

,而屬於機能

的空間則以不

透明的方塊呈

現,從而發現

此棟建築就像

一個虛空間,

周圍被置入許

多實空間。

過渡空間
機能進入到下 一個機能時, 都會經過這個 過度空間,發 現這棟建築的 過渡空間時,
29
30

樓梯分割空間

32

視野穿透性

此棟建築具有兩處視野能直接穿透的地方,具有如此高 穿透時,利用門窗的開合來引響私密程度

33
34

大師題-轉化建構

35
36
34
利用拱型空隙延的紋路 延伸,發展出型態
39
40
41

設計正模

43

希望這是一個閱讀的空間,在一樓時在人與人交流溝通時去閱讀對方,

上二樓後動線圍繞著中間的挑空,在每一個閱讀位的前方開口,在放鬆時可以抬頭看看外面美麗的風景。

視野穿透性 透明盒子

利用原案利的手法引響視野穿透性,以塑造空間。

利用透明盒子的概念,將屬於書架或是閱讀空間的地方作為實空間,其餘為透明盒子。

44
45
47
49
50
51
52