

M T ACKENZIE AYLOR
LANDSCAPE ARCHITECTURE PORTFOLIO


MARBLE PROJECT
DESIGN FOUNDATIONS | SPRING 2022
The marble project, my first in Landscape Architecture as a transfer student into the program, introduced landforms and surface hydrology by exploring the relationship between land and water. We manipulated contours to create two intersecting waterways, each designed to carry a large or small marble from start to finish. Success depended on how well the marbles traveled through our designs, refined through iterative adjustments. After shaping the terrain, we incorporated vegetation, pathways, and gathering spaces—a space for one, a few, and many. This process taught me to embrace iteration as a tool to overcome design challenges and discover innovative solutions.


1ST ITERATION


2ND ITERATION






SPOT FOR ONE
SPOT FOR FEW
SPOT FOR MANY
FUNCTIONAL LIVING
RESIDENTIAL DESIGN | SPRING 2023
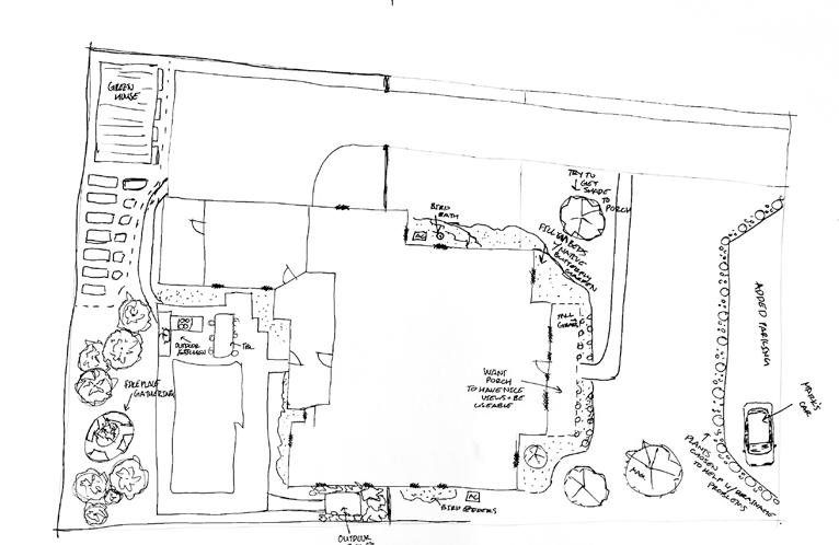
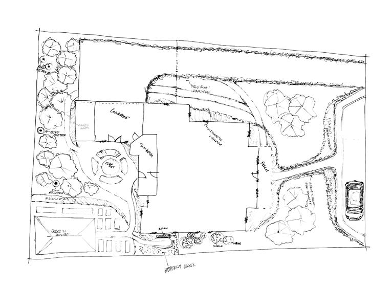
Completed during my second year, The Functional Living project was my first residential-scale design project and provided valuable experience working directly with a client. Tasked with creating a conceptual design, I developed three distinct options and refined them into one cohesive solution based on client feedback. Addressing drainage issues in both the front and back yards, I designed a space that worked with water flow rather than against it. The final design balanced areas for social gatherings, things to attract birds and other polinators, and a dedicated gardening space—key elements on the client’s wish list.
PLAN
DRIVEWAY WITH PERMEABLE PAVING
PERSPECTIVE




ADDITIONAL PARKING WITH PERMEABLE PAVING
RAIN GARDENS
FIRE PIT AND SEATING
RAIN GARDENS
VARIOUS FRUIT TREES
BIRD BATHS

SECTION A-A’

SECTION B-B’

CONCEPT 2

CONCEPT 3



RIVIANA REVIVAL
COMMUNITY DESIGN | SPRING 2024
PROMINENT SIGHT IMPRESSIONS
CREATINGWHOLISTIC COMMUNITIES
A REVIVAL is defined as the act of bringing something or someone back to a former state or condition. The Riviana Revival aims to restore a sense of purpose, life, and community to an abandoned rice mill near downtown Abbeville—a site that once played a key role in the city’s prosperity by providing jobs and boosting the local economy. However, the mill declined due to competition and hardships brought on by the COVID-19 pandemic in 2019. My research into the native plant communities revealed that this site was originally part of a coastal prairie ecosystem, which was largely eradicated across Louisiana in the 19th century due to industrialization and agricultural development.
CREATE A BROAD AND DIVERSE SITE THAT CAN GIVE BACK TO THE PEOPLE OF ABBEVILLE, PROVIDING FOR THE COMMUNITY ACROSS SEVERAL DIFFERENT FAUCETS OF THEIR NEED
MASTER PLAN

1. Boat launch
2. Kayak launch 3. Dock 4. Kayak Rental
5. Historic Mill Structure (Reprogrammed with restaurant and museum)
6. Cajun prairie meadow
7. Meadow boardwalk
8. Trail head mound
9. Rain gardens
10. Mima Mound Amphitheater 12. Demonstration Gardens 13. Parking Lot
DESIGN GOALS
ESTABLISH CONNECTIONS TO DOWNTOWN TO FURTHER COMMUNITY ENGAGEMENT MAKE THE MOST OF THE SPACE WHILE ALSO SPEAKING TO IT’S HISTORY
RE-ESTABLISH THE CAJUN PRAIRIE NATIVE PLANT COMMUNITY
The vision for Riviana Revival is to offer visitors a narrative experience that questions the historical cost of human progress on our natural environment. It explores whether development must always come at the expense of significant loss, and suggests a possible coexistence of human progress with nature, drawing on the forms and features of the Cajun prairies. The design repurposes and revitalizes the historic site, creating a variety of spaces that not only enhance the community and attract visitors but also offer an alternative to the often destructive story of human advancement.

Historic Mill Structure
with dinning/shopping and hotel)
Existing silos with planters and seat walls
Historic Mill Structure
with dinning/shopping and apts.)
Historic Silos - now rentable market spaces
Drop off/pull through lane
LEGEND
DESIGN DIAGRAM
REDUCE, REUSE, & RECYCLE
METAL REIMAGINED BUILDINGS WOOD REUSED WOOD FROM ANY DEMOLISHED BUILDUNG SUPPORTS FOR DECKING AND BOARD WALK
NATURAL SYSTEMS COLLAGE

METAL TAKEN FROM TORN DOWN BUILDING FOR SHADE COVER, RETAINING WALLS, AND SIGNAGE
YET
PROMINENT SIGHT IMPRESSIONS
POTENTIAL
CLOSE PROXIMITY TO DOWNTOWN ABBEVILLE
BUILDINGS KEPT AND REPURPOSED
BRICK PAVING REUSED FROM ANY DEMOLISHED BRICK STRUCTURE
CREATE A BROAD AND DIVERSE SITE THAT CAN GIVE BACK TO THE PEOPLE OF ABBEVILLE, PROVIDING FOR THE COMMUNITY ACROSS SEVERAL DIFFERENT FAUCETS OF THEIR NEED RE-ESTABLISH THE CAJUN PRAIRIE NATIVE PLANT COMMUNITY
ESTABLISH CONNECTIONS TO DOWNTOWN TO FURTHER COMMUNITY ENGAGEMENT MAKE THE MOST OF THE SPACE WHILE ALSO SPEAKING TO IT’S HISTORY


BRICK

PERSPECTIVE

SECTION A-A’

SECTION B-B’


Bioswale Sidewalk
Planter with seatwalls
Retaining wall
Trail Head Mound
Meadow boardwalk
Entrance
Sidewalk
First St. Planter
Bioswale

10’
Sidewalk
Retaining walls / seatwalls
Convertible



Convertible plaza space
Sidewalk
Rain garden
Mound 12’
DETAIL DRAWINGS
UNDISTURBED SUBGRADE
CONCRETE CAP



CONCRETE CAP


IRREGULAR BLUE STONE PAVERS
8"X4"X3" RECYCLED CLAY BRICKS #57, CLEAR, CRUSHED STONE BASE
IRREGULAR BLUE STONE PAVERS
MORTAR SETTING BED CCIP CONCRETE SUBBASE
#2, CLEAR, CRUSHED STONE AGGRAGATE SUBBASE 6" COMPACTED SUBGRADE
UNCOMPACTED SUBGRADE
SECTION A-A' 1-2" RANGE FOR MORTAR JOINTS
BLUESTONE PAVING TO SEAT WALL
SCALE: 1" = 10'-0" 1












ART EXPLORATION

STORY TELLING SHADOW
Medium | Gouache
This project explored the potential for two-dimensional elements to create dynamic and lively scenes that help narrate a story with depth and dimension.





STILL LIFE EXPLORATION
Medium | Gouache
The focus of this project was to explore the principles of mixing colors and color theory





HAND SKETCH | NYC SUBWAY Medium | Pen
HAND SKETCH | NYC HIGHLINE Medium | Pen
HAND SKETCH | MISSISSIPPI RIVER WATERFRONT Medium | Pen
THANK YOU

