Skip to main content

EA2-第三題-曾琬姿-作品集

Page 1

既然生活不如意,那就努力的如意過生活!

-曾琬姿
-指導老師:游雅婷 -issuu
-Group3
設計說明 設計過程 設計圖面 設計模型
01051319

藥調

題旨

迪化街在十九世紀時為台北重要的南北貨、茶葉、中藥材及布匹的集散地,為大稻埕地區 最重要的市街。經過1980年代的廢存爭議後,迪化街成為台北市保留最完整的老街,在每 年過年前也舉辦聲勢浩大的台北年貨大街。

設計意圖

中藥主題 : 旅客在進入花園後從採摘草藥到烘乾後加入自己的餐點中與自治香囊帶回家, 或是萃取其精華,以此調製自己喜歡的香味,讓人體驗從採摘到使用皆是自己以手包辦得 安心感。

風:利用建築的走向,將風從外影導致內部,匯聚到中央花園後,再以此流出讓四周的人也 因為香味的流動而被吸引。

基地分析

風向分析 太陽分析
夏季風向走向 冬季風向走向 太陽陰影照射面積
中藥行分布 車流人流 捷運站 公車站 交通分析 店鋪分析
發展過程

風的走向

利用建築的走向將風引道至中間花園後, 將其中中藥的香氣穿至路過的人。

在建築中設中煙囪的概念,使風可以從下流動上來。

利用建築牆體將廟宇的香火味阻隔住, 使其中的味道不會被引響到。

太陽的照射

利用太陽的走向以此設計出由南 到北,低到高的建築走向,以此 使陽光可以照射到花園內。

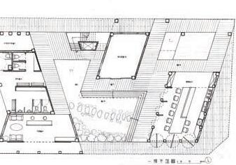
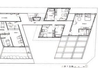
機能配置 一樓 行政 公廁 大廳 餐廳 調香空間 垂直 二樓 單人 按摩室 垂直 單人 雙人 三樓 主題 主題 垂直 雙人 公空間 私人空間 共空間 風的流動

建築計畫書

大小 (m2)

名稱 人數 需求事件 流程 介紹 開放時間

大廳 5 0工作人員2 Check in

2

調香工作坊 6 0

學員8

設置一個中藥調香工作坊,讓客人親自體 驗製作中藥香氛的過程。他們可以根據個 人喜好混合不同的中藥材料,製作屬於自 己的香氛產品,並帶回家作為紀念。

旅客進入大廳,在交誼中心等待,或與前台設定入住信息

旅館客人:由老師介紹重要特性,進入花園摘採需要用到的材料,再 去烘乾萃取牆進行操作,將成品帶入調香工作坊,由老師授課教導調 香方法,自行操作將自己採摘烘乾萃取的材料加入調配(操作等待時 間較長, 在進住旅館時由櫃檯詢問是否參加此活動,以此進行收費,與 告知課程操作時間)

外來的客人:由老師介紹中藥特性,參觀從採摘到烘乾再到萃取的操 作,由老師授課教導調香方法,自行操作以原本就萃取好的材料進行 操作

花園 餐廳

中藥按摩館 客房

5 0

廚師2 老師1

種花 摘花

用餐人數1 5 11 .~1 4. 1 7.~19 用餐桌椅 廚房島台 做飯 吃飯

100 按摩師4

按摩的人4 1 6.-22. 按摩床 按摩椅 按摩

在旅館內部設置一個中藥花園,種植各種

常用的中藥植物,讓人可以在裡面採摘所 需要的材料 ,旅客也可以在裡面感受到繁 華都市中寧靜的氛圍。

以中藥為主題的健康美食,在特定的時間 開設中藥烹飪課程,不僅能讓在此享用健 康的食物,也能讓人學習到製作方法。

在開始前先由中醫把脈,由醫師建議拿取 合適的藥材在放入每個房間的藥浴內,提 供按摩服務,結合中藥香燻在享受SPA的 過程中,聞到不同中藥的香氣。

進過材料介紹後採摘所需材料,將材料進行烘乾與萃取的操作,將材 料分為食用與調香使用後在到餐廳或是調香工作坊進行操作

進入花園採摘,進行烘乾操作, 由教師授課烹飪方法,自行操作或是由 廚師進行烹飪

提前與櫃檯預約,不同程度的按摩所需時間90 ~6 0分鐘不等。 主題 5 0 2~4

入住房間的人,可以獲得一個自己採摘烘 乾的草藥香囊

特色:在房間中有一個 大花園直接融融合進了住宿空間

雙人 4 0 2

單人 3 0 1

櫃檯 交誼沙發 導師
睡覺 床 衣櫃書 桌 電視櫃 置物櫃 冰 箱 飲料櫃 交誼沙發
9 .~11 1 4.~1 6.
櫃檯
教學 調香
展示台 調香牆 調香長桌

發展模-1

發展模-2
發展模-3

設計圖面

設計模型