

SARAH BRYANT

ARIDO, IDC, NEWH
bryansar@sheridancollege.ca
905-809-6005
Sarahlbryant
Skills
AutoCAD, Revit, Sketchup, D5, Enscape, Twin Motion, Canva, Procreate, Bluebeam, Adobe, Mircorsoft Office Suite
Fourth year student studying Interior Design at Sheridan College. With my experience in space planning, working drawings, rendering manually or digitally, and presenting final design packages and projects, I offer exceptional dedication to successfully complete design tasks.
Education
Honours Bachelors of Interior Design
Sheridan College, Mississauga, ON
Graduation pending 2026
Proficient in designing retail, corporate, hospitality and residential spaces that compliant to the Ontario Building Code
Skilled in conceptional and space planning
Utilizing 2D and 3D software’s to create high quality renderings and working drawings
Design Experience
Retail Design Institute, Social Chair
Canada Chapter
Design marketing posts for upcoming design events
Indigo Books & Music In., Store Design Intern
Toronto, ON
Supported retail store design through space planning, fixture design, and material selection
Collaborated with design teams to develop and execute brand-aligned concepts
Maintained floorplans, sourced samples, and updated the materials library
SARAH BRYANT




C O N T E N T S

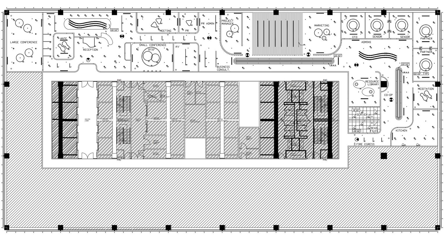
VERITY

is an advertising agency that represents inclusive and socially responsible makeup and skincare brands. Our design incorporates soft curves to represent the blending techniques used in the application of makeup. These curves also represent how makeup and skincare is not a linear process, as each individual has their own personal preferences that are ever changing.


RECEPTION PRIVATE OFFICES


















SECTIONAL ELEVATION




BETA CALCO B2 PUZZLE PENDANT
BETA CALCO SQUIGGLE PENDANT
BETA CALCO MIDI ARC W/ ACOUSTIC PANEL













BLOOM CLINIC




FLOORPLAN

The Bloom Clinic
is a pediatric clinic that draws inspiration from the wonder and adventure of hot air balloons, creating a space that is both comforting and whimsical for young patients. Just as hot air balloons evoke feelings of freedom, exploration, and uplifting journeys, the clinic aims to transform the often intimidating experience of visiting a healthcare facility into an exciting, positive adventure.
Just like the bright colors playful forms of a hot air balloon, the wayfinding throughout the clinic mimics this shape.




BARRIO


Barrio
, which means "neighborhood" in Spanish, represents the Spanish origins of tapas. This tapas style restaurant offers a semiprivate dining space that allows guests to focus on their tapa experience within their “neighborhood” of a social group. Spatial design within the idea of neighborhoods is emphasized on the floorplan through curved partitions enclosing tables.





































FERRAGAMO


Inspired by Salvatore Ferragamo’s use of form through one of his earliest shoe designs, we drew inspiration to create custom shoe and bag displays. Ferragamo viewed fashion as an extension of art that was meant to be bold yet functional. This design showcases this by placing emphasis on the relationship between fashion and art. Unlike many Ferragamo store locations, we used a bold colour palette of black and red, against more neutral floor and wall finishes, allowing these colours to capture attention.








FLOORPLAN
6,219 sq ft.
The design goal was to create a retail space that mimics the movemen and atmosphere of an art gallery, and displays Ferragamo products as the art pieces. Each Ferragamo product is placed with purpose either o or within a custom display that emphasize line, colour, texture, or form.

