BZ空間2025年冬季号

Page 1


"都市の鼓動" By Kaitaro Toike, Valuations

CONTENTS

特別企画 2

これからどうなる?  東京オフィスビル竣工マップ タイトな需給下で進む大規模化と都心集約 堅調な需要に支えられたオフィス供給は2027年から抑制局面へ 2029年の大量供給で市場は転換点を迎える オフィス関係者必見の開発動向を一挙公開

店舗マーケット情報 50

関西主要マーケット店舗賃料相場

2025

関西7エリア、梅田、心斎橋、難波、淀屋橋・本町、天王寺・阿倍野、京都、神戸の路面店舗賃料相場を一挙公開

店舗出店ケーススタディ 72

KOMEHYO OSAKA SHINSAIBASHI 株式会社コメ兵

圧倒的な商品展開とアートデザインが融合した空間で、日本ならではのリユース買い物体験を提供する 大阪・心斎橋に誕生した“ホットスポット”

物流マーケット情報 138

食品物流の生命線!冷凍・冷蔵物流センター最新事情

● 冷蔵倉庫の現状と課題、今後の方向性 一般社団法人日本冷蔵倉庫協会 マルチテナント型冷凍・冷蔵物流施設の開発ラッシュに潜む課題と懸念 同相談役 西願 廣行氏 ● 近年の全国冷凍・冷蔵拠点設立MAP

●コールドストレージ 賃借利用の普及に向けて CBRE リサーチ インダストリアルチームリーダー 高橋 加寿子

172

プロジェクトケーススタディ

株式会社丸井グループ

本社改修

共創を体現する空間づくりで、多様性に富んだ新たな価値創造へ 社員の創造性を高め、持続的成長を目指す

186

クローズアップ不動産戦略

卸売から体験へ、「あそびの価値」追求の軌跡 新六本木ヒルズ店が提示する未来の店舗像 株式会社ボーネルンド 専務取締役 池上 貴久氏

198

成長ベンチャーに訊く

特集・グロース上場ベンチャー オフィス熟考の時代、日本の未来を担う3社の展望は?

● 株式会社サイバーセキュリティクラウド 取締役CFO(公認会計士)倉田 雅史氏

● ARアドバンストテクノロジ株式会社 取締役執行役員 竹内 康修氏

● 株式会社坪田ラボ 代表取締役社長 坪田 一男氏

CBRE Idea Lab AI Art Collaboration CBRE社員の独創性とAIを融合させるアート作品コンテスト。「AI アート コラボレーショ ン」はCBRE Idea Labにおける数多くの取り組みの一つで、CBRE社員が最新のテクノ ロジーを駆使し、生成 AIを不動産の新たなマーケティングやプロモーションツールとし て活用する素地の醸成を目的としています。

全国の最新マーケット情報

北海道・東北

首都圏

東海・北陸

近畿圏

中国・四国

九州

物流施設・配送センター最新物件情報

CBRE Idea Lab

CBRE 東京本社に創設された、社内外のステークホルダーとの 共創を促進する拠点「CBRE Idea Lab」。不動産業界における 革新性、創造性、技術力を高めるプラットフォームの提供を目的 に、“場”の活用や交流を通じて、社員のアイデアや情報、社内外 のナレッジ、新たなテクノロジー、サポートを組み合わせ、クリエ イティブで付加価値の高いソリューションを共創することを目指 しています。

梅 田 店舗賃料相場 2025

関西主要マーケット店舗賃料相場

心斎橋 店舗賃料相場 2025

難 波 店舗賃料相場 2025

淀屋橋・

本 町

店舗賃料相場 2025

天王寺・

阿倍野

店舗賃料相場 2025

神 戸 店舗賃料相場 2025

J R九州が開発する物流施設ブランド

ブランドシンボルマーク

「物流の中心、地域を支える場所。」

本ブランド名は物流を表す“LOGI”と鉄道会社を連想させる“STATION”を組み合わせております。また、本ロ ゴは先進技術の結晶ともいえる新幹線をモチーフにしており、スピード感や先進性を表現しております。地域 の拠点である鉄道駅のように、本施設が物流における重要な拠点となるよう願いを込めております。

https://www.jrkyushu.co.jp

LOGI STATION」ラインナップ

LOGI STATION鳥栖Ⅰ

所在地

構造規模

敷地面積

延床面積 竣工

: : : : :

佐賀県鳥栖市曽根崎町字本成 ����番地1 他 鉄骨造�階建(ドライ倉庫) 約��,���㎡(約�,���坪) 約��,���㎡(約�,���坪) ����年�月(予定)

LOGI STATION福岡小郡

所在地

構造規模

敷地面積

延床面積 竣工

: : : : :

福岡県小郡市干潟���� 番�

鉄骨造地上� 階建(倉庫棟)、 鉄骨造平屋建(危険物倉庫棟) ��,���㎡(��,���坪) ��,���㎡(��,���坪) ����年��月

LOGI STATION熊本菊池

所在地

構造規模

敷地面積

延床面積 竣工

: : : : :

熊本県菊池市旭志伊坂字 西大笹���番6他 鉄骨造�階建(ドライ倉庫) 約��,���㎡(約�,���坪) 約��,���㎡(約�,���坪) ����年�月(予定)

LOGI STATION鳥栖Ⅱ

所在地 構造規模

敷地面積 延床面積 竣工

佐賀県鳥栖市村田町����番� 他

鉄骨造�階建(ドライ倉庫)、

鉄骨造平屋建(危険物倉庫)

約��,���㎡(約�,���坪) 約��,���㎡(約�,���坪)

����年�月(予定)

LOGI STATION福岡苅田

所在地

構造規模

福岡県京都郡苅田町大字南原 字浮殿下����番�� 他

鉄骨造平屋建(重量物倉庫1 棟、危険物倉庫�棟)、鉄骨造� 階建(重量物・ドライ倉庫�棟) 約��,���㎡(約�,���坪) 約��,���㎡(約�,���坪) ����年�月(予定)

〒812-8566福岡市博多区博多駅前3-25-21 TEL.092-474-2383(事業開発本部 開発部 物流開発課)

LOGI STATION小倉東

所在地

構造規模

敷地面積 延床面積 竣工

敷地面積 延床面積 竣工 : : : : : 福岡県北九州市小倉南区長野 本町�丁目 鉄骨・鉄骨鉄筋コンクリート造 �階建(冷凍・冷蔵・ドライ倉庫) 約��,���㎡(約�,���坪) 約��,���㎡(約�,���坪) ����年�月(予定)

鳥栖JCT

県道53号線

LOGI STATION 福岡小郡

LOGI STATION 福岡小郡

LOGI STATION 福岡小郡

筑後小郡IC

筑後小郡IC

県道53号線

6分割:約4,000坪から 提供可能

24時間常駐の防災センターを 設置

各区画ごとに専用事務所・ 休憩室・喫煙室を設置

共用部内に無人売店を設置

各区画ごとに荷物用EV1基・ 垂直搬送機1基設置

屋上に太陽光発電設備を 導入

危険物倉庫・構内図

危険物第4類相当が保管可能な約90坪(分割可能)の倉庫 貯蔵可能な危険物:①第一石油類、第二石油類、第三石油類、第四石油類…50倍、②①以外の危険物…20倍 ※記載の倍数は2区画の合計です。※設置する際は、消防協議が必要です。

東側空撮

危険物倉庫外観

危険物倉庫外観

危険物倉庫内

お問合せ先

約15m

延床面積 85,077㎡( 25,735坪)(倉庫棟) 298㎡(90坪)(危険物倉庫)

竣工 2025年10月

前面道路

約25m(東側・片側2車線) 約12m(南側) 約8m(北側)

駐車場・トラック待機場 363台・21台(駐輪場2ヶ所)

照明/照度(床面)

全館LED 倉庫・バース:200Lx、事務所:500Lx

お問合せ先

https://www.jrkyushu.co.jp

開口部

バース部:W8.8m~10m×H4.5m(オーバーヘッドドア(手動)・シャッター(電動)) 倉庫内:W8.5m×H4.0m(防火シャッター(手動)) バース台数・奥行

A区画・C区画・D区画・F区画:22台 B区画・E区画:19台 奥行:約13.8m(一部パワーゲート車対応) ドッグレベラー

荷物用EV

垂直搬送機

A区画・B区画・C区画・E区画 各区画毎に1基(別途、左記各区画毎に将来対応用1基)

各区画毎に1基(積載:3.5t 昇降速度:45m/min  かご内寸:W4.0m×D3.4m×H3.15m(かご扉:H3.0m))

各区画毎に1基(別途、各区画毎に将来対応用1基) (積載:1.5t 搬送能力:80パレット/h 最大パレット寸法:W1.5m×L1.5m)

〒812-8566福岡市博多区博多駅前3-25-21

従業員様の利便性を考慮し、事務所・休憩室・お手洗い・喫煙室は各区画へ設置

倉庫 垂直搬送機

倉庫(低床区画)

倉庫(床下防熱仕様)

将来対応垂直搬送機

A区画

A区画

荷物用EV

事務所等 フォークリフト充電箇所

防災センター 共用休憩室 バース ドックレベラー

D区画

D区画

低床式

(床下防熱仕様)

倉庫 13,320.244,029.3713,135.743,973.5613,320.244,029.3713,097.813,962.08

事務所

1F 4,277.011,293.794,379.011,324.654,277.011,293.794,209.001,273.22

2F 7,125.712,155.537,017.822,122.897,125.712,155.537,125.712,155.53

バース 1,917.52580.051,738.91526.021,917.52580.051,763.10533.33

計 359.03108.60336.42101.76359.03108.60351.22106.24

事務室 156.4247.31115.6534.98157.2147.55148.0644.78

休憩室等* 202.6161.29220.7766.78201.8261.05203.1661.46

合 計 13,679.274,137.9713,472.164,075.3213,679.274,137.9713,449.034,068.32

*休憩室、給湯室、トイレ、喫煙所

倉庫

事務所

13,135.743,973.5613,203.173,993.95149.0045.07149.0045.07

1F 4,379.011,324.654,159.941,258.38149.0045.07149.0045.07

2F 7,017.822,122.897,125.712,155.53- - -バース 1,738.91526.021,917.52580.04-

計 336.42101.76476.10144.02-

事務室 115.6534.98195.5759.16

休憩室等* 220.7766.78280.5384.86

合 計 13,472.164,075.3213,679.274,137.97149.0045.07149.0045.07

クロ ーズアップ不動産戦略

卸売から体験へ、 「あそびの価値」追求の軌跡。

新六本木ヒルズ店が提示する未来の店舗像。

株式会社ポーネルンド

あそび道具、環境、そして場づくりまで。創業以来40余年、子どもの成長 の鍵となる「あそび」の価値を追求し続ける株式会社ボーネルンド。その ビジネスの場は、卸売から直営店、体験咽のあそび場、そして自治体や企 業のあそび場の設計・プロデュースヘと、時代とともに進化を遂げてき た。2025年10月には旗艦店として六本木ヒルズ店をリニューアルオープ ン。フラッグシップとしての役割をどう再定義し、これからの礎を築こうとし ているのか。同社の拠点展開の道のりとともに闘いた。

び務取締役池J:貴久氏

卸売から直営店への挑戦 心斎橋第1号店での確かな一歩

ボーネルンドは、あそび道具の提供からあ そび環境の創造など、子どもの「あそび」につ いて総合的に取り組んでいる企業です。私た ちが主軸としている、子どもの発達に不可欠 な道具を社会に届ける事業は、もともとデン マー クのコンパン社製をはじめとした欧州 の大型遊具を輸入し、卸売りするところから 始まっています。1981年の創業当時、まだ日 本においてあそびが子どもの成長にどれほ ど重要か、認識は十分ではありませんでし た。そのような中でも、私たちが紹介する色 鮮やかで子どもの発達段階を深く考察して つくられた遊具に、真っ先に強く反応してく ださったのが、幼児教育の専門家の方々。彼 らから「購人の機会を、もっとつくれないか」 という熱い要望を多数いただきました。専門 家がこれほど価値を認めるものならば、そ の魅力をより広く、直接的に提案することで、 日本の子どもたちの成長に寄与できるはず だ 。その思いが、卸売業から直営店の展 開へと踏み出す大きな転換点となりました。

2025 Winter | Nº 186

AREA PICK-UP

札 幌 (仮称)南2西6オフィスビル計画 ··· 223

神奈川 AS-LOGI 綾瀬 ·············· 230

名古屋 栄トリッドスクエア ········ 243

松 山 L.Biz松山一番町 ············ 261

福 岡 H¹O博多駅前 ················· 270

古賀ロジスティクスセンター ···· 271

物流施設・配送センター

最新 物件情報

本誌物件情報の特色

事業用不動産に関する情報を無料で提供いたします。

賃貸オフィスはもちろん、倉庫、店舗、土地など、 あらゆる事業用不動産の情報を掲載しています。

掲載情報は、データ保有量国内No.1を誇る シービーアールイー株式会社の全国の支店・営業所から収集した 鮮度の高いものばかりです。

ご検討になりたい物件が見つかりましたら、

該当ページの電話番号にお問い合わせください。

シービーアールイー株式会社が 責任をもってご紹介させていただきます。

北海道・東北 P.225 P.232 P.245 P.253 P.262 P.272 首 都 圏

物件表の見方

シービーアールイー株式会社がおすすめするテナント募集情報です。

記載マークの見方は、

新築物件 駐車場あり

24時間使用可

天井高2,600mm以上

機械警備 個別空調 OAフロア 即入居可

シービーアールイー株式会社の 最寄りの営業所です。 お気軽にお問い合わせください。

みなとみらい線「新高島」駅

物件の所在地区。

ご希望の地区で物件を お選びください。

みなと みらい

エリア 728坪 (2,407㎡)

地域見出し。

北海道から沖縄まで 全国をカバーしています。

北海道・東北

みなとみらい線「みなとみらい」駅 徒歩3分みなとみらい線「新高島」駅 徒歩3分 4階 賃  料(/坪)/応相談 共 益 費(/坪)/応相談預託金(/坪)/応相談 税込賃料(/坪)/応相談 税込共益費(/坪)/応相談 コードNo./02-0071 みなと

首都圏

新横浜 エリア 344坪 (1,137㎡) JR「新横浜」駅 徒歩6分地下鉄「新横浜」駅 徒歩6分 9階 賃  料(/坪)/14,000円共 益 費(/坪)/込み 預託金/12ヶ月 税込賃料(/坪)/15,400円 税込共益費(/坪)/込み コードNo./01-0152

関内 エリア 672坪 (2,224㎡)

新川崎

エリア 191坪 (631㎡)

JR「関内」駅 徒歩1分横浜市営地下鉄「関内」駅 徒歩1分

20階 賃  料(/坪)/未定 共 益 費(/坪)/未定

東海・北陸

預託金(/坪)/未定

税込賃料(/坪)/未定 税込共益費(/坪)/未定 コードNo./06-6002

JR「新川崎」駅 徒歩3分JR「鹿島田」駅 徒歩3分

23階 賃  料(/坪)/応相談 共 益 費(/坪)/応相談預託金/12ヶ月 税込賃料(/坪)/応相談 税込共益費(/坪)/応相談 コードNo./01-0001

1 横浜駅東口周辺 7235 71 6 9万 12,594 11,449 03-6004

2 横浜駅東口周辺 4266 81 7 2万 13,200 12,000 02-0052

3 横浜駅東口周辺 4323 98 6 9万 12,630 11,482 03-6004

4 横浜駅東口周辺 5323 98 6 9万 12,630 11,482 03-6004

5 横浜駅東口周辺 6323 98 6 9万 12,630 11,482 03-6004

6 桜木町・関内駅周辺 2163 49 12万 11,000 10,000 05-0056

7 桜木町・関内駅周辺 8165 50 8 8万 12,100 11,000 05-0003

8 桜木町・関内駅周辺 6166 50 8 8万 12,100 11,000 05-0003

9 桜木町・関内駅周辺 B1172 52 12万 13,206 12,005 06-0107

10 桜木町・関内駅周辺 B1207 63 11 5万 12,650 11,500 05-0061

当該物件の募集階です。

地域により敷金も含む。

入居に必要な預託金です。

月額・坪単価の 賃料です(税込)。

データ登録されている 物件コードナンバーです。

物件表には未掲載ですが、通常のオフィス賃貸借では、 賃料の他に共益費が別途必要になります。

レンタルオフィス 世界No.1ブランド

リージャス

のご案内

2025年10月OPEN

東京 丸の内 シグネチャー日本生命丸の内ビル

東京都千代田区丸の内1-6-6 日本生命丸の内ビル21F

■「丸の内オアゾ」内に立地し商業施設、ホテル が隣接

交通

世界・日本国内ともに最多数の拠点を展開 あなたにとって最適なオフィススタイルをお選びいただけます

お電話でのお問い合わせ[平日9:00~18:00]

2025年11月OPEN

東京 六本木 リージャス六本木三河台スクエアビジネスセンター

東京都港区六本木4-2-14 六本木三河台スクエア3F

■飲食店が多数ある六本木の中心地 ■閑静なエリアでビジネスに集中可能 ■ご契約者様専用の屋上テラスあり

■さらなる注目を集める丸の内エリアのランド マークビル サービス 交通

● JR「東京駅」丸の内北口徒歩1分/東京メト ロ丸ノ内線「東京駅」徒歩1分/東京メトロ東 西線「大手町駅」徒歩2分 ●プライベートオフィス(個室)118室(331席) /受付サービス/ビジネスラウンジ/会議 室(3室)

神奈川県平塚市宝町3-1平塚MNビル(商業棟)2F 神奈川 オープンオフィス平塚駅前

■JR「平塚駅」至近

2025年10月OPEN

■全天候対応の屋内駐車場を58台完備、車で の通勤も可能

■新耐震基準

交通 ●JR「平塚駅」徒歩1分

サービス

●プライベートオフィス(個室)39室(72席)/ シェアオフィス(デスク単位契約/月額)/会 議室(1室)

岐阜 オープンオフィス岐阜駅前

2025年12月OPEN予定

岐阜県岐阜市長住町5-8 國六ビル1F

■3路線利用可能。ビジネスホテル併設 ■ビル隣に大きな駐車場あり ■閑静なエリア ■ラウンジスペースを広く確保

交通

サービス

● JR「岐阜駅」徒歩4分/名鉄「岐阜駅」徒歩 6分

●プライベートオフィス(個室)32室(54席)/ シェアオフィス(デスク単位契約/月額)/ バーチャルオフィス/会議室(1室)

2025年8月OPEN

福岡 リージャス天神ビジネスセンター

福岡県福岡市中央区天神1-10-20 天神ビジネスセンター6F

■大規模再開発計画「天神ビッグバン」の象徴ビル ■ビル内に飲食店多数 ■近隣は市役所、百貨店、オフィスビルが立ち並ぶ

交通 ●地下鉄空港線「天神駅」13番出口直結

サービス

●プライベートオフィス(個室)73室(192席)/ シェアオフィス(デスク単位契約/月額)/受付 サービス/ビジネスラウンジ/会議室(2室)

●東京メトロ日比谷線「六本木駅」徒歩5分/都 営大江戸線「六本木駅」徒歩5分  東京メトロ南北線「六本木一丁目駅」徒歩5分 ●プライベートオフィス(個室)32室(65席)/ シェアオフィス(デスク単位契約/月額)/受付 サービス/ビジネスラウンジ/会議室(1室)

2025年12月OPEN予定

神奈川 リージャス武蔵小杉ビジネスセンター

神奈川県川崎市中原区中丸子35-9 ディール武蔵小杉4F

■周辺には大型商業施設や高層マンションが立 ち並ぶエリア ■2023年12月竣工。1Fに店舗も入る複合ビル

交通

●JR横須賀線・湘南新宿ライン「武蔵小杉駅」横 須賀線口徒歩3分/東急電鉄「武蔵小杉駅」南 口1徒歩1分/JR南武線「向河原駅」徒歩7分 ●プライベートオフィス(個室)123室(288席)/ シェアオフィス(デスク単位契約/月額)/受付 サービス/ビジネスラウンジ/会議室(2室)

2026年1月OPEN予定

大阪 シグネチャーグラングリーン ゲートタワー

大阪府大阪市北区大深町5-54 グラングリーン大阪 南館 ゲートタワー7F

■7駅14路線が利用可能 ■JR「大阪駅」改札からオフィスロビーまで直結 ■関西国際空港。大阪国際空港へ良好なアクセス

交通 ● JR「大阪駅」直結/阪急電鉄・阪神電鉄「大阪 梅田駅」地下通路にて利用可能/Osaka Metro各線「梅田駅」地下通路にて利用可能 ●プライベートオフィス(個室)89室(237席)/ シェアオフィス(デスク単位契約/月額)/受付 サービス/ビジネスラウンジ/会議室(2室)

福岡 シグネチャー天神 明治通り

2025年12月OPEN予定

福岡県福岡市中央区天神2-8-35 天神住友生命FJビジネスセンター5,6F

■「天神ビッグバン」エリアの最高層オフィスビル ■ワークラウンジ、サウナ、ジム、屋上テラスなど 多彩なウェルビーイング設備を完備

サービス

交通 ● 地下鉄空港線「天神駅」直結/地下鉄空港線 「赤坂駅」徒歩5分/西鉄天神大牟田線「西 鉄福岡(天神)駅」徒歩7分 ●プライベートオフィス(個室)148室(358席) /受付サービス/ビジネスラウンジ/会議 室(1室)

サービス
サービス
サービス

市場動向 賃貸不動産市場その動向と相場

北海道

リクルート強化に新築へ移転 当社調査によ る2025年7~9 月期末の札幌中心部の空室率は 3.3%と、対前期 比0.2ポイント の上昇となった。想定成約賃料(共 益費込み)は、対 前期 比0.1%上 昇 の16,120円/坪となっている。

今期は札幌駅エリアに「ヒュー リックスクエア札幌」Ⅱ期棟(増 築)と、「MipLa札幌駅前」が竣 工した。同エリアでは2年ぶりの

相場表

HOKKAIDO

2年ぶりとなる札幌駅周辺への新規供給。

新築のみならず既存二次空室へも強い需要が。

新規供給だが、オフィス拡張を目 的に移転や分室、ビルグレード改 善を目的とした移転需要を中心に 商談が集まっている。この背景に は、就業環境を改善しリクルート を強化したいとの意識が働いてい ると思われる。単に従業員の増員 を受けオフィスを拡張する動きだ けでなく、増員計画を希望通り実 現させるために新築オフィスに移 転したい。そうした声は決して少 なくない。

札幌中心部 大型ビル以外 坪当たり 16,000円 ~ 21,000円

倉庫・配送センター 既存 坪当たり

空室率推移凡例  =上昇  =やや上昇  =横ばい  =やや低下  =低下

新築ビルだけでなく、既存ビル の需要も引き続き底堅さを見せて いる。市内中心部内でのオフィス 拡張に加え、中心部外からの立地 改善移転も散見される。新規供給 が増えても既存ビルの二次空室が 長期化していない背景には、マー ケットへの新規参入の動きが、ひ とつの下支え要因となっているの ではないだろうか。

札幌支店 布施 直

大型ビルは引き続き高い稼働率を維持しており、外部からだけで なく館内テナントによる増床の商談も増加している。

新築への移転で二次空室が発生しているが、需要が活発なため空 室率に大きな変化はなし。賃料相場の上昇は続いており、既存テ ナントへの賃料改定交渉に積極的なビルも散見される。

2023年・2024年に供給が多かったが、これらが成約し空室率 は低下。2025年は新規供給予定がなく、空室率はさらに低下す ると予測される。

※物件検討時の予算の目安です。詳しくはシービーアールイー㈱社員におたずねください。

文中の空室率については、2014年3月期より、データ算出の対象となるオフィスビルを、原則として延床面積1,000坪以上、かつ新耐震基準に準拠した物件に変更しました。

再開発が進む札幌・大通エリアに、 2025年12月、多様なオフィスニーズに対応する、

ミッドサイズオフィスビルが誕生。

近年、札幌では、JR 札幌駅周辺や地下鉄大通駅周辺を中心に、次々 と再開発事業が進められている。特に、百貨店などの商業施設や飲食 店とオフィス街が混在する、地下鉄大通駅の南側(大通~すすきのエ リア)では、多くの再開発事業が見られる。また、古いビルから新し いビルへの建て替えや、既存ビルのリニューアルの動きも活発である。 そのエリアに、2025年12月、地上9階建のミッドサイズオフィスビ ル「(仮称)南2西6オフィスビル計画」が誕生する。

同ビルの最寄りの地下鉄大通駅は、地下鉄南北線、東西線、東豊線 の3路線が乗り入れる。ビルから駅までは、徒歩約7分、地下歩行空 間の1番出口からは徒歩約4分。市電の停留所も近く、ビジネスワーカー の通勤だけでなく、買い物や食事等での札幌・大通中心部エリアへの アクセスにも便利な立地である。

1階は店舗(一部オフィス区画)、2~9階はオフィスフロアとして 使用される。基準階(2~8階)面積はワンフロア181 56坪(600 20 ㎡)で、最小 25 02 坪(82 71 ㎡)から最大 4 分割が可能。フロア 内は、基準天井高2,700mm の広々とした整形空間で、個別空調(冷 /暖房)など充実した設備を備えており、テナントの様々なオフィス ニーズにも対応できる。

また、駐車場は、38台分の機械式立体駐車場(ハイルーフ対応) を完備。駐車場が不足しているエリアであるため、その利便性は高い。 また、セキュリティ面では、エントランスや駐車場、外構周りなどの 共用部を中心に、監視カメラを設置。24時間体制で安心、安全なオフィ ス環境を提供する。

ビジネスにも、プライベートにも便利な環境に立つ「(仮称)南 2 西6オフィスビル計画」。多様なオフィスニーズを取り込んで、札幌 のさらなる進化の一翼を担っていくことだろう。

(仮称)南2西6オフィスビル計画

建物概要 ●所在地/北海道札幌市中央区南2条西6丁目8-5 8-8 8-10 8-11 8-17 11-1 11-2 12-2(地番)●構造/鉄骨造●規模/地上 9 階建●敷地面積/ 1,097 19 ㎡(331 89 坪)● 延床面積/7,462 70㎡(2,257 47坪)●主な用途/事務所・店舗●竣工/2025年12月中旬 (予定)●交通/地下鉄大通駅1番出口徒歩4分、地下鉄大通駅徒歩7分 お問い合わせ先

市場動向 賃貸不動産市場その動向と相場

東北

二次空室増加への備えを 2025年7~9月 期末の仙台市 内の空室率 は4.0%と、前 期 (2025年4~6月期)から横ば いとなった。空室面積は13,132 坪で、前期の13,101坪から微 増したが、空室率は変わらず、需 給バランスが安定していることを 示唆している。仙台の空室率は、 2024年1~3月期の5.0%をピ ークに、低下傾向にある。これは、 仙台駅周辺を中心とした再開発エ リアへのグレードアップ移転や拠 点統合、新規開設による、前向き な移転が背景にあると考えられる。

仙台では、今後、複数の新規プ ロジェクトが予定されている。特 に注目されるのは、「せんだい都 心再構築プロジェクト」の認定を 受けた、中~大規模オフィスビル の開発である。仙台駅西口を中心 に、複数の開発計画が進行中で、

相場表

TOHOKU

マーケットの需給バランスは安定的に推移。

駅西口を中心に複数の開発計画が進行中。

これらの新規供給は、既存ビルと の競争を激化させる一方、最新ス ペックを備えた高機能オフィスへ の需要を喚起する可能性もある。 基準階面積 が200坪前後の中規 模ビルは、過去10年間の需要に 鑑み、竣工後1年~1年半の間に は、リースアップしていくと思わ れる。一時的に、空室率を押し上 げる可能性があるものの、堅調な マーケットは続くだろう。

ただ、既存ビルの老朽化やスペ ック不足が顕在化する中、移転が 進めば、二次空室の増加が予想さ れる。そのため、既存ビルオーナ ーにとっては、設備更新や共用部 改修(アメニティ施設の増設など) による、競争力の強化が重要な課 題となってくるだろう。

賃料相場の回復に期待

わずかに上昇していた賃料相場 は引き続き上昇を続け、今後も高

まっていくことが想定される。依 然として、リーマンショック前の 賃料水準には戻っておらず、今後 の回復が期待される。

一方、企業の働き方改革やハイ ブリッドワークの定着により、オ フィス面積の最適化を図る動きも 継続している。ただ、仙台におい ては、職・住が近接していること から、オフィス面積の適正化ニー ズは、限定的であると考えられる。

総じて今期のオフィスマーケッ トは安定しているが、今後の供給 を見据えた需給バランスの変化に は、注意が必要である。

将来的には新規供給に伴う競争 激化が続けば、企業は立地・設備・ コストの最適化戦略を再考する必 要がある。仙台駅周辺の再開発は、 先進的なオフィス環境を求める企 業にとって、拠点強化の好機とな るだろう。

仙台支店 森 涼輔

空室率は前期から横ばい。直近3年間に竣工した新築ビルにおい ては堅調に成約が進み、既存ビルと比較して高水準な賃貸条件を 維持している。そのため、新築ビルへの移転に伴い発生する二次 空室など、割安感のある既存物件で需要が高まりやすい傾向が見 られる。 郡山市 坪当たり

盛岡市

倉庫・配送センター・注文建築

空室率推移凡例  =上昇  =やや上昇

直近では駅前の大型空室に需要が集中。引き続 き、20~30坪 前後の空室は多い一方、50坪以上の空室はほとんど見られない。 水面下で再開発の動きが見られるものの、今 後1~2年の間に新 規供給の予定はなく、具体的な開発計画の発表が待たれる。

新規開設や館内増床の動きが見られた。依然としてランドマーク ビルや駅前立地物件の人気は高い。賃料は横ばいで推移している。

今後の新規供給 は、2025年3.0万坪、2026年2.6万坪。倉庫 需要の動きは少しずつ出てきている。■仙台エリアでは、倉庫需 要は食品・日用雑貨が活発に動いている。■盛岡・北上エリアでは、 供給予定が数多くあるが、倉庫需要は横ばい。徐々に空室消化が 進む傾向にあるが、倉庫内で働く人の雇用面が課題。■郡山エリ アでは、開発および既存物件の空室が少ない状況が続く。

※物件検討時の予算の目安です。詳しくはシービーアールイー㈱社員におたずねください。 文中の空室率については、2014年3月期より、データ算出の対象となるオフィスビルを、原則として延床面積1,000坪以上、かつ新耐震基準に準拠した物件に変更しました。

事業用不動産のことなら シービーアールイー株式会社

札幌 | 北海道

東北

仙台 | 宮城 | 青森 | 岩手 | 秋田 山形 | 福島

道内主要都市

北広島 駅 徒 歩 4分 店舗 1F

住所 北海道北広島市中央5-8-1 名称 Fリミテッド北広島

面積 85㎡ 賃料 312,180円(税抜283,800円) 共益 56,760円(税抜51,600円) 26坪 保証金 1,700,000円 貸主 ㈱藤井ビル 011-231-4041

設備 その他 備考

千歳

駅 徒 歩 1分 オフィス

2F

坪からワンフロア最大133坪の区画 提案が可能

仙台市内

卸町 駅 徒 歩 14分 オフィス 1F

住所 宮城県仙台市宮城野区萩野町2-3-1 名称 オフィスヤマトⅢ 面積 126㎡ 賃料 相談 共益 相談 38坪 敷金 相談 媒介 シービーアールイー㈱ 022-262-5651

設備 その他

備考 ■鉄骨造(新耐震)■地上3階建■エレ ベーター1基■その他交通アクセス:市 営バス「宮千代一丁目」バス停徒歩3分

宮城県下

ウォークフォルテは約 60の専門店と 様々な施設が集まった大型複合ショッピ ングセンター

OAフロア………フリーアクセスフロア、二重床等が敷設されている物件 ブロードバンド………光ファイバー引込等、高度通信化が図られている物件 電気容量………電気容量が30VA/㎡以上確保されている物件 即入居可………現在空室で、即入居が可能な物件 条件相談可………提示条件に交渉の余地のある物件 略記号 の見方

ワンフロア………ワンフロア・ワンテナントで利用できる物件 天井高し………天井高が2,600mm以上の物件 24時間使用………24時間利用できる物件 機械警備………カードリーダー等機械警備が導入されている物件 個別空調………階別、部屋別の個別空調運転が可能な物件

駅   前………徒歩1分以内及び駅前ロータリー面す物件 駅 近 し………駅徒歩5分以内の物件 駅 直 結………地下階やデッキ等で地下街や駅に繋がっている物件 大通り面す………国道、他地方主要道に面している物件 金融機関近し………銀行・郵便局等の金融機関が徒歩5分以内の物件 新   築………築1年以内で未入居の物件 築   浅………竣工後5年以内の物件 大型ビル………延床面積3,000坪以上の物件 駐車場あり………ビル内に駐車場があり、現在空きのある物件 部屋形よし………整形もしくは無柱で使い勝手の良い物件

ワンフロア………ワンフロア・ワンテナントで利用できる物件 天井高し………天井高が2,600mm以上の物件 24時間使用………24時間利用できる物件 機械警備………カードリーダー等機械警備が導入されている物件 個別空調………階別、部屋別の個別空調運転が可能な物件 OAフロア………フリーアクセスフロア、二重床等が敷設されている物件 ブロードバンド………光ファイバー引込等、高度通信化が図られている物件 電気容量………電気容量が30VA/㎡以上確保されている物件 即入居可………現在空室で、即入居が可能な物件 条件相談可………提示条件に交渉の余地のある物件

略記号 の見方

札幌・道内主要都市

札幌駅前

エリア 200坪 (663㎡)

札幌駅

北口

エリア 59坪 (194㎡)

札幌駅 北口

323坪 (1,067㎡)

詳しくは web で! 全国の最新物件情報を多数掲載 世界No.1の実績を誇るCBREが提供する、 事業用不動産専門ポータルサイト。

地下鉄「さっぽろ」駅 徒歩2分地下鉄「大通」駅 徒歩4分

13階 賃  料(/坪)/応相談

共 益 費(/坪)/込み 預託金(/坪)/応相談 税込賃料(/坪)/応相談

税込共益費(/坪)/込み コードNo./01-6022

JR「札幌」駅 徒歩5分地下鉄「北12条」駅 徒歩3分

6階

賃  料(/坪)/応相談

共 益 費(/坪)/込み 預託金(/坪)/応相談 税込賃料(/坪)/応相談

JR「札幌」駅 徒歩2分

賃  料(/坪)/応相談

4階

税込共益費(/坪)/込み コードNo./01-6018

共 益 費(/坪)/込み 預託金/12ヶ月 税込賃料(/坪)/応相談

税込共益費(/坪)/込み コードNo./01-6013

中島公園 エリア 916坪 (3,028㎡)

地下鉄「大通」駅 1番出口徒歩4分

4階 賃  料(/坪)/応相談 共 益 費(/坪)/応相談預託金(/坪)/応相談 税込賃料(/坪)/応相談

税込共益費(/坪)/応相談 コードNo./02-6053

地下鉄「中島公園」駅 徒歩3分

7階 賃  料(/坪)/応相談 共 益 費(/坪)/込み 預託金/12ヶ月 税込賃料(/坪)/応相談

税込共益費(/坪)/込み コードNo./06-6032

1 札幌駅前 2130 39 20 4万 18,700 17,000 01-0078

2 札幌駅前 5135 41 15 6万 14,300 13,000 01-0026

3 札幌駅前 12143 43 20 4万 18,700 17,000 01-0078

4 大通 6317 96 10万 11,000 10,000 02-0351

5 大通 7317 96 10万 11,000 10,000 02-0351

6 大通 2318 96 10万 11,000 10,000 02-0351

7 大通 8343 104 27 6万 25,300 23,000 02-6021

8 大通 10343 104 27 6万 25,300 23,000 02-6021

9 西 11 丁目 1128 39 1 9万 6,930 6,300 03-0022

10 西 11 丁目 8138 42 15 6万 14,300 13,000 03-0024

11 西 11 丁目 4165 50 10万 11,000 10,000 03-0163

12 西 11 丁目 4244 74 3万 8,250 7,500 03-0149

13 西 11 丁目 7305 92 12万 11,000 10,000 03-0146

14 創成川東 2154 47 3万 11,000 10,000 05-0018

15 創成川東 1173 52 12万 22,000 20,000 05-0199

16 創成川東 5193 58 2 1万 7,700 7,000 05-0018

17 狸小路以南 1145 44 16 8万 15,400 14,000 06-6035

18 狸小路以南 1243 73 14 4万 13,200 12,000 06-6035

19 狸小路以南 2258 78 6万 11,000 10,000 06-6035

20 狸小路以南 1273 83 19 2万 17,600 16,000 06-6035

21 狸小路以南 8359 109 4 8万 8,800 8,000 06-6022

22 狸小路以南 4420 127 3 6万 6,600 6,000 06-0002

23 狸小路以南 8562 170 2 2万 6,050 5,500 06-0005

24 狸小路以南 9562 170 2 2万 6,050 5,500 06-0005

25 札幌駅北口 6228 69 5 4万 9,900 9,000 01-0106

26 札幌駅北口 1285 86 0 2万 1,914 1,740 01-0142

27 札幌駅北口 6585 177 8 4万 15,400 14,000 01-0122

28 白石・南郷通 2134 41 1 4万 4,950 4,500 02-0190

29 白石・南郷通 1336 102 3万 11,000 10,000 02-0149

30 菊水 3198 60 2 1万 7,700 7,000 01-0073

保証金・敷金 (坪当たり) 賃料 (坪当たり) 賃料 (税抜) コード No. ㎡坪数 31 菊水 2305 92 6万 11,000 10,000 01-0029 32 菊水 1343 104 2 6万 9,534 8,667 01-0022 33 平岸 5154 47 5 1万 9,350 8,500 02-0056 34 平岸 4450 136 5 1万 9,350 8,500 02-0056

35 平岸 6450 136 5 1万 9,350 8,500 02-0056

36 豊平 1106 32 1 9万 6,875 6,250 01-0027 37 琴似 2258 78 7 2万 13,200 12,000 01-6012 38 発寒 2144 44 1 9万 7,040

南区 2148

仙台・東北主要都市

中央

エリア 58坪 (190㎡)

詳しくは web で! 全国の最新物件情報を多数掲載 世界No.1の実績を誇るCBREが提供する、 事業用不動産専門ポータルサイト。

JR「仙台」駅 徒歩2分地下鉄「仙台」駅

賃  料(/坪)/応相談

27階

仙台駅

東口 エリア 230坪 (761㎡)

南町通

エリア 258坪 (854㎡)

本町

徒歩3分

共 益 費(/坪)/応相談預託金(/坪)/応相談 税込賃料(/坪)/応相談

税込共益費(/坪)/応相談 コードNo./01-0117

JR「仙台」駅 徒歩2分地下鉄「宮城野通」駅 徒歩9分

2階

賃  料(/坪)/応相談

共 益 費(/坪)/応相談預託金(/坪)/応相談 税込賃料(/坪)/応相談

地下鉄「仙台」駅

11階

税込共益費(/坪)/応相談 コードNo./01-0154

徒歩4分JR「仙台」駅 徒歩7分

賃  料(/坪)/応相談

税込賃料(/坪)/応相談

共 益 費(/坪)/込み 預託金/12ヶ月

税込共益費(/坪)/込み コードNo./01-6014

地下鉄「勾当台公園」駅 徒歩2分地下鉄「広瀬通」駅

賃  料(/坪)/応相談

税込賃料(/坪)/応相談

徒歩6分

共 益 費(/坪)/応相談預託金/12ヶ月

税込共益費(/坪)/応相談 コードNo./03-0005

地下鉄「勾当台公園」駅 徒歩3分地下鉄「北四番丁」駅 徒歩3分

9階

賃  料(/坪)/応相談

税込賃料(/坪)/応相談

1 仙台駅西口周辺 369 21 21万 19,250 17,500 01-0098

2 仙台駅西口周辺 12102 31 7 7万 11,000 10,000 01-0103

3 仙台駅西口周辺 7110 33 4 7万 8,573 7,794 02-0147

4 仙台駅西口周辺 3123 37 17 6万 16,168 14,698 01-0099

5 仙台駅西口周辺 4123 37 17 6万 16,168 14,698 01-0099

6 仙台駅西口周辺 4202 61 7 2万 13,200 12,000 02-0034

7 仙台駅西口周辺 4421 127 21万 19,250 17,500 01-0098

8 仙台駅西口周辺 7 497 150 26 6万 29,246 26,587 01-0035

9 仙台駅西口周辺 8 497 150 26 6万 29,246 26,587 01-0035

10 仙台駅西口周辺 3 955 289 7万 9,570 8,700 02-0017

11 本町 550 15 4

24

25

27 東北大学周辺 7124 37 3 9万 7,150 6,500 06-0040

30 宮町・上杉 3119

共 益 費(/坪)/応相談預託金/12ヶ月

税込共益費(/坪)/応相談 コードNo./04-0273

宮城野区役所周辺

市場動向

賃貸不動産市場その動向と相場

東京

強まる空室の品薄感

CBREの調査によると、2025 年7~9月期末の東 京23区内オ ールグレード空室率は、対前期比 0.4ポイント低下 の2.1%とな り、8期連続で低下した。

グレードA空室率は、対前期比 0.4ポイント低下の1.0%を記 録。まとまった空室を残していた、 複数の築浅ビルで分室開設があ り、グレードアップや建て替えを 理由とした移転などでも、大型空 室が消化された。利便性やグレー ドの向上を求める企業の移転が依 然として多く、グレードAクラス のビルに対する需要は、引き続き 高いと考えられる。

また、移転元となる既存ビルに おいても、館内テナントの増床な どにより、二次空室が発生しない ケースが引き続き散見されてい る。立地や設備水準など、競争力

相場表

TOKYO

グレードA空室率は1%台で推移。 全グレードで賃料相場は上昇傾向。

の高いビルの大型空室は、品薄感 が強まっており、複数の検討テナ ントで競合するケースが増えてい る。そのため、2026年のグレー ドA新規供給は13万坪と、過去 年間平均より約4割多いものの、 着々と内定が進んでおり、高稼働 で竣工するビルが多いことが予想 される。2028年、2029年竣 工予定のビルでも、早々にテナン トが内定するケースが見られ始め ている。

グレードBも同様に、引き続き、 賃料が割安な都心ビルを中心に、 拡張移転や分室、館内増床などで 空室消化が進んでいる。小規模な 物件においては、工事費用の高騰 を背景に、セットアップオフィス を希望するテナントも増えている。

市場は貸主優位が続く

空室の品薄感を背景に、賃料相 場はいずれのグレードも上昇して

種別 賃料(共益費込み)

主要3区

周辺7区 中小規模ビル 坪当たり

23区内 大規模ビル

23区内 中小規模ビル 坪当たり 13,000円 17,000円

立川 坪当たり 13,000円 ~ 22,000円

おり、2026年にかけて、コロナ 前のピーク時を上回る見通し。再 契約時の賃料改定や新規募集の 際、賃料を引き上げるビルが増え ているものの、空室が限られる現 在のマーケットにおいて、テナン トは物件確保を第一優先とし、賃 料上昇に対する許容度も高まって いるように感じられる。依然とし て、貸主優位のマーケットが続い ている。

ただし、将来においては、関税 政策の影響や、2029年に控える 約24万坪の大量供給に対し、既 存ビルで、二次空室発生への警戒 が高まると考えられる。そのため、 これらを要因として、賃料相場の 上昇率は徐々に鈍化し、空室率も 上昇することが予想される。いず れのグレードも、賃料が下落に転 じる可能性があると考えられる。

東京本社 井澤 健瑠

多くの物件で賃料相場は上昇傾向ではあるが、空室消化は引き続 き堅調。

引き続き空室消化が進んでおり、賃料相場も上昇傾向。

立地・エリアによって引き合いのばらつきはあるものの、全体と して空室消化は進んでいる。

全体的に空室消化は進んでいるが、ビルグレード・立地等の優劣によっ て、引き合いが集中する物件とそうでない物件の二極化が目立つ。

空室消化は進むが、キャンペーン等により他物件との差別化を 図っている。

全体的に空室消化は進んでいるが、ビルグレード・立地等の優劣によっ て、引き合いが集中する物件とそうでない物件の二極化が目立つ。

2025年竣工のビルは満室竣工が見込まれるが、それに伴うエリア内での大きな二次空 室も予定されておらず、空室率は引き続き低い。特に100坪を超える大型空室は希少。

(注)主要3区=千代田、中央、港 周辺7区=新宿、渋谷、文京、豊島、品川、台東、目黒 23区内=左記10区を除く東京都内 空室率推移凡例  =上昇  =やや上昇  =横ばい  =やや低下  =低下 ※物件検討時の予算の目安です。詳しくはシービーアールイー㈱社員におたずねください。 文中の空室率については、2014年3月期より、データ算出の対象となるオフィスビルを、原則として延床面積1,000坪以上、かつ新耐震基準に準拠した物件に変更しました。

市場動向 賃貸不動産市場その動向と相場

横浜

横浜駅周辺の空室率再び低下

CBREの調査によると、2025 年7~9月期末の横浜オールグレ ードの空室率 は4.3%と な り、 対 前期(2025年4~6月期)比1.0 ポイント低下した。

エリア別に見ると、「横浜駅周 辺」の空室率は、前期か ら0.5ポ イント低下し2.6%となった。新 規解約は出るものの、早期に後継 テナントが見つかるケースが多 く、空室率を引き下げている。な お、同エリアでは、引き続きまと まった空室が少な く、500坪以 上の面積を希望するテナントは、 「みなとみらい」と併せて、物件 の検討をする必要がある。

「みなとみらい」の空室率は、 対前期比1.3ポイント低下し、 5.4%となった。他のエリアと比 べて空室率は高いもの の、6期連

相場表

種別

YOKOHAMA

オールグレード空室率は4%台に低下。 県内マーケットで空室消化が進む。

続で低下している。築浅ビルを中 心に、500坪を超えるまとまっ た面積の成約が見られたことや、 200坪 前後の成約も続いている ことが、空室率低下の要因と考え られる。同エリアについては、潜 在的な大型空室はあるものの、 2027年まで新規供給がないた め、引き続き空室消化が続くこと が想定される。

新横浜では既存空室が長期化 「関内」の空室率は、対前期比 0.7ポ イント低下 し、3.0%とな っ た。100坪以下の空室消化が 進んだことが、空室率低下の要因 と考えられる。今 年12月には、 関内駅前に大型複合ビルが竣工予 定であるが、同エリアでの大型需 要は多くないため、竣工までにど の程度テナントを確保できるか が、今後の空室率に大きな影響を

賃料(共益費込み)

横浜 大規模ビル 坪当たり 18,000円 ~ 23,000円

需給の動向

与えることになりそうだ。

「新横浜」の空室率は対前期比 0.9ポイント上昇し4.7%となった。

既存空室の長期化が目立ち、空室 率上昇の要因となっている。一方 で、新築ビルには引き合いが多く、 同エリア内での動きが多いことが 特徴的である。

「川崎」の空室率は前期 比0.4 ポイント低下し4.3%となった。

空室が長期化する中、複数のビル で館内増床を中心に空室消化が進 み、新たな大型解約がなかったこ とから、空室率は若干低下した。

東京都内のマーケットが非常に タイトな中、神奈川県内において も、空室消化が進んでいる。特に 「みなとみらい」では、大型の引 き合いも出てきており、今後も空 室率は下がる見込みだ。来期以降 も、賃料相場の上昇が予測される。

横浜支店 三浦 恭平

横浜駅周辺は空室消化が進むも、一部ビルで空室が顕在化。 みなとみらい周辺は大型ビルを中心に空室消化が進む。

横浜 中小規模ビル 坪当たり 13,000円 ~ 18,000円 空室が限定的で新たな空室も少なく、空室率は横ばい。

関内 大規模ビル 坪当たり 12,000円

大型供給が予定されているものの、高稼働で竣工が見込まれるビ ルもあるため、需給の緩みは限定的。

関内 中小規模ビル 坪当たり 10,000円 ~ 12,000円 需要は限定的であり、一部のビルで空室が顕在化。

新横浜 大規模ビル 坪当たり 13,000円 16,000円 需要と供給が同程度にあり。

新横浜 中小規模ビル 坪当たり 11,000円 ~ 13,000円 需要と供給が同程度にあり。

川崎 大規模ビル 坪当たり 13,000円 ~ 16,000円 川崎駅周辺は空室消化が進むも、一部ビルで空室が顕在化。

川崎 中小規模ビル 坪当たり 11,000円 14,000円 空室が限定的で新たな空室も少なく、空室率は横ばい。

空室率推移凡例  =上昇  =やや上昇  =横ばい  =やや低下  =低下

空室率推移

※物件検討時の予算の目安です。詳しくはシービーアールイー㈱社員におたずねください。 文中の空室率については、2014年3月期より、データ算出の対象となるオフィスビルを、原則として延床面積1,000坪以上、かつ新耐震基準に準拠した物件に変更しました。

事業用不動産のことなら シービーアールイー株式会社 横浜支店

首都圏各地に快適にアクセスできる絶好の立地に、 最新機能を備えた物流施設が誕生。

次代のロジスティクスを力強く切り拓く。

神奈川県中央部に位置する綾瀬市は、市域を日本の大動脈である東 名高速道路が貫通し、近くには首都圏を広域にカバーする圏央道が通 り、さらに市内中心部も主要道路が交差する交通の要衝。東名高速道 路綾瀬スマート IC から車で約10分の地に、今秋誕生した物流施設が、 「AS-LOGI 綾瀬」。東京都心部から 40 キロ圏内、神奈川県内はもち ろん、首都圏各地を視野に入れた広域配送を実現する絶好の交通利便 性を誇る。また、立地は綾瀬工業団地内で、24時間365日の稼働も 可能。綾瀬市および近隣エリアは、住環境に優れたベッドタウンとし て人口も多く、労働力人口が豊富である。物件は、神奈川中央交通バ

周辺地図

ス綾瀬工業団地入口バス停から徒歩6分と公共交通のアクセスも良く、 従業員確保においても優位性の高い立地となっている。

建物構造は地上4階建で、各階フロア面積は約1,890坪。1階に奥 行約15m、大型車26台が同時接車できるトラックバースが設けられ ている。共用部も含めた一棟貸しを想定しているが、転貸時には、1 ~ 4 階を合わせた縦分割なども可能。倉庫内は、床荷重 1 5t/ ㎡、梁 下有効高5.5m、柱スパン10.6m×11.5mと作業しやすい空間。昇 降機も荷物用エレベーター(3 5t)4基、垂直搬送機(1 5t)2基と 充実しており、効率的な縦搬送を実現している。事務所スペースは1 階で、2階にはラウンジが設けられている。ラウンジのインテリアコー ディネイトは㈱日比谷花壇が行い、ワーカーに良質な憩いの空間を提 供している。駐車場は普通車42台と豊富にあり、災害対策では非常 用発電機や防災倉庫を設置して高い BCP 対応力を確保、災害リスク に備えている。

物流拠点として絶好の立地で高機能を発揮する「AS-LOGI 綾瀬」。 首都圏における新たな物流ビジネスに大いに貢献することだろう。

AS-LOGI 綾瀬

建物概要 ●所在地/神奈川県綾瀬市深谷上8-17-1●構造/鉄骨造●規模/地上4階建●敷地面積/ 11,529 71㎡(3,487 74坪)●延床面積/24,907 08㎡(7,534 39坪)●事業主/ TC 神 鋼不動産㈱●竣工/2025年(令和7年)9月●交通/東名高速道路綾瀬スマート IC 約3 0km お問い合わせ先 シービーアールイー株式会社 TEL.03-5288-9830

市場動向 賃貸不動産市場その動向と相場

関東・信越

KANTO ・SHINETSU

埼玉:希少な新築に需要集まる。

千葉:船橋で物件確保が一段と困難。

大型空室枯渇、賃料相場も上昇 CBREの調査によると、2025 年7~9月期 末 の「さいたま」エ リアの空室率は0.7%であり、対 前期(2025年4~6月期)比横 ばいで推移した。特 に150坪超 の大型区画は枯渇状態にあり、需 給のひっ迫が続いている。

オールグレードの想定成約賃料 (共益費込み) は20,210円とな り、前期比0.5%上昇した。大宮

相場表

種別

駅西口の競争力ある大型ビルが上 昇をけん引したためである。2025 年12月には「大宮サウスゲート フロント」が竣工予定で、最新ス ペックを備えた希少な大型区画が マーケットに新たな選択肢を提供 することになる。これにより、企 業の移転需要や新規進出を促し、 今後のマーケット活性化への期待 が一段と高まっている。加えて、 周辺再開発の進展も市場の注目度 をさらに押し上げている。

賃料(共益費込み)

海浜幕張で移転検討が増加

船橋駅周辺では空室消化がより 一層進み、空室がほぼない状況と なった。二次空室区画も館内増床 で消化されることが多く、物件確 保が困難な状況が続いている。

海浜幕張駅前は都内の賃料上昇 の影響もあり、都内からの移転検 討案件が増加傾向にある。

東京本社 金子小百合 正田健太朗

需給の動向

空室率推移 さいたま市

引き続き空室は少なく、150坪以上の大型空室が特に枯渇。大宮 エリアを中心に賃料の引き上げが散見される。今後もタイトな市 況が継続すると見込まれる。

駅前の新築物件には複数の引き合いが寄せられており、空室率は やや低下傾向。

海浜幕張駅 坪当たり 8,500円 ~

船橋駅 坪当たり 14,000円 ~ 18,000円

柏駅 坪当たり 14,000円 17,000円

空室状況はほぼ横ばいだが、大型面積を確保できるビルには 1,000坪を超える案件の問い合わせも出てきている。

立地・グレード感にかかわらず空室がほぼない状況が続いている。 新規の竣工予定もなく、物件確保が困難な状況が続くだろう。

前期と比較して、空室消化が進んでいる。一部物件では、既存テ ナントに対する賃料引き上げに向けた動きが見られる。

空室率は横ばい。館内リニューアル等で差別化の動きが顕著。

駅前の新築物件で複数の区画が内定し、空室率はやや低下。引き 続き需要は堅調。

空室率の低下傾向は加速しており、大型空室はほとんど見られない。一部 物件では、既存テナントに対する賃料引き上げの動きも確認されている。

2025年5月に新前橋駅前で新築物件が竣工。高崎エリアにおける空室消 化の進捗に伴い、駅近物件や大規模空室を中心に空室消化が進んでいる。

郊外からの移転や集約移転が散見さ れ、80坪以上の空室消化が 進んでいる。一方、撤退などで20坪程度の空室が散見される。

新築ビル竣工に伴い二次空室が顕在化し、空室率はわずかに上昇。 一方で、需要は回復基調にある。

長野駅近隣の管理状態の良好な物件ほど空室が少なく、人気物件 には引き合いが集中。

空室率推移凡例  =上昇  =やや上昇  =横ばい  =やや低下  =低下 ※物件検討時の予算の目安です。詳しくはシービーアールイー㈱社員におたずねください。 文中の空室率については、2014年3月期より、データ算出の対象となるオフィスビルを、原則として延床面積1,000坪以上、かつ新耐震基準に準拠した物件に変更しました。

まつかめビル

旧中山道に面する

大宮駅東口から徒歩7分

大宮区役所まで徒歩5分

建物概要

所在地 埼玉県さいたま市大宮区下町1-50

交通 JR 大宮駅徒歩 6分

構造 鉄骨鉄筋コンクリート造

規模 地上 6 階

延床面積 2,717 42㎡(822 01坪)

竣工 1985 年9月

空調 個別空調

エレベーター 2基

駐車場 平面駐車場あり

床仕様 フリーアクセスフロア(H=50 ㎜)

首都圏

東京

成田 駅 徒 歩

東京都下

立川 駅 徒 歩 6分 オフィス 2F

住所 東京都立川市曙町2-31-15 名称 日住金立川ビル 面積 66㎡ 賃料 218,680円(税抜198,800円) 共益 76,538円(税抜69,580円) 20坪 保証金 10ヶ 月 貸主 ㈲タマヱ 0422-48-0001

設備 その他 備考 ■JR中央線立川駅徒歩6分■鉄骨鉄筋コ ンクリ-ト造■地上6階、地下1階建 立川 駅 徒 歩 7分 オフィス 2F

住所

首都圏

千葉 | 茨城

千葉県下

千葉 駅 徒 歩 3分 オフィス

043-241-3798

首都圏

さいたま | 埼玉 | 群馬 | 栃木 | 長野 新潟

新潟県下

長岡 駅 徒 歩 4分 オフィス 1F

住所 新潟県長岡市今朝白1-8-18 名称 長岡センタービル

12階、 地下1階建■基準階にて18 ~ 71坪の空 室あり■4階は4区画合わせて113坪確 保可能

OAフロア………フリーアクセスフロア、二重床等が敷設されている物件 ブロードバンド………光ファイバー引込等、高度通信化が図られている物件 電気容量………電気容量が30VA/㎡以上確保されている物件 即入居可………現在空室で、即入居が可能な物件 条件相談可………提示条件に交渉の余地のある物件 略記号 の見方

ワンフロア………ワンフロア・ワンテナントで利用できる物件 天井高し………天井高が2,600mm以上の物件 24時間使用………24時間利用できる物件 機械警備………カードリーダー等機械警備が導入されている物件 個別空調………階別、部屋別の個別空調運転が可能な物件

駅   前………徒歩1分以内及び駅前ロータリー面す物件 駅 近 し………駅徒歩5分以内の物件 駅 直 結………地下階やデッキ等で地下街や駅に繋がっている物件 大通り面す………国道、他地方主要道に面している物件 金融機関近し………銀行・郵便局等の金融機関が徒歩5分以内の物件 新   築………築1年以内で未入居の物件 築   浅………竣工後5年以内の物件 大型ビル………延床面積3,000坪以上の物件 駐車場あり………ビル内に駐車場があり、現在空きのある物件 部屋形よし………整形もしくは無柱で使い勝手の良い物件

ワンフロア………ワンフロア・ワンテナントで利用できる物件 天井高し………天井高が2,600mm以上の物件 24時間使用………24時間利用できる物件 機械警備………カードリーダー等機械警備が導入されている物件 個別空調………階別、部屋別の個別空調運転が可能な物件 OAフロア………フリーアクセスフロア、二重床等が敷設されている物件 ブロードバンド………光ファイバー引込等、高度通信化が図られている物件 電気容量………電気容量が30VA/㎡以上確保されている物件 即入居可………現在空室で、即入居が可能な物件 条件相談可………提示条件に交渉の余地のある物件

略記号 の見方

東京都千代田区

丸の内 エリア 164坪 (544㎡)

丸の内

エリア 208坪 (689㎡)

詳しくは web で! 全国の最新物件情報を多数掲載 世界No.1の実績を誇るCBREが提供する、 事業用不動産専門ポータルサイト。

東京メトロ「東京」駅 徒歩3分JR「東京」駅 徒歩4分

6階 賃  料(/坪)/未定 共 益 費(/坪)/未定 預託金(/坪)/未定 税込賃料(/坪)/未定

税込共益費(/坪)/未定 コードNo./19-0152

東京メトロ「大手町」駅 直結東京メトロ「東京」駅 直結

21階

大手町 エリア 536坪 (1,772㎡)

大手町 エリア 782坪 (2,586㎡)

麹町 エリア 81坪 (271㎡)

永田町 エリア 132坪 (438㎡)

賃  料(/坪)/未定 共 益 費(/坪)/未定 預託金(/坪)/未定 税込賃料(/坪)/未定

税込共益費(/坪)/未定 コードNo./19-0119

東京メトロ「大手町」駅 直結都営「大手町」駅 徒歩5分

22階 賃  料(/坪)/未定 共 益 費(/坪)/未定 預託金(/坪)/未定

税込賃料(/坪)/未定

税込共益費(/坪)/未定 コードNo./19-0112

東京メトロ「大手町」駅 直結JR「東京」駅 徒歩3分

13階 賃  料(/坪)/未定 共 益 費(/坪)/未定 預託金(/坪)/未定 税込賃料(/坪)/未定

税込共益費(/坪)/未定 コードNo./19-0378

東京メトロ「大手町」駅 徒歩4分JR「神田」駅 徒歩6分

8階 賃  料(/坪)/未定 共 益 費(/坪)/未定 預託金(/坪)/未定 税込賃料(/坪)/未定 税込共益費(/坪)/未定 コードNo./08-6003

東京メトロ「麹町」駅 徒歩2分東京メトロ「半蔵門」駅 徒歩6分

7階 賃  料(/坪)/応相談 共 益 費(/坪)/込み 預託金/12ヶ月 税込賃料(/坪)/応相談

税込共益費(/坪)/込み コードNo./17-0123

東京メトロ「永田町」駅 徒歩1分東京メトロ「赤坂見附」駅 徒歩6分

5階 賃  料(/坪)/未定 共 益 費(/坪)/未定 預託金(/坪)/未定 税込賃料(/坪)/未定

税込共益費(/坪)/未定 コードNo./17-0236

No. エリア 階 貸室面積 保証金・敷金 (坪当たり) 賃料 (坪当たり) 賃料 (税抜) コード No. ㎡坪数

1 神田駅周辺 5195 59 12万 33,000 30,000 07-6003

2 神田駅周辺 6195 59 12万 33,000 30,000 07-6003

3 神田駅周辺 7195 59 12万 33,000 30,000 07-6003

4 神田駅周辺 8195 59 12万 33,000 30,000 07-6003

5 神田駅周辺 9195 59 12万 33,000 30,000 07-6003

6 神田駅周辺 18312 94 38 7万 71,020 64,564 08-6003

7 神田駅周辺 7317 96 18万 19,800 18,000 07-0177

8 神田駅周辺 3378 114 13万 17,930 16,300 08-0070

9 神田駅周辺 18433 131 38 9万 71,309 64,826 08-6003

10 神田駅周辺 18520 157 38 1万 69,863 63,512 08-6003

11 岩本町 3245 74 10 4万 14,300 13,000 04-0198

12 岩本町 9248 75 9 6万 17,600 16,000 04-0259

13 岩本町 6378 114 9 6万 17,600 16,000 04-0212

14 秋葉原駅周辺 4150 45 12 4万 22,660 20,600 01-6026

15 秋葉原駅周辺 7171 52 18万 33,000 30,000 02-6333

16 秋葉原駅周辺 8171 52 18万 33,000 30,000 02-6333

17 秋葉原駅周辺 2179 54 8万 11,000 10,000 02-0089

18 秋葉原駅周辺 6240 73 14万 15,400 14,000 02-0136

19 秋葉原駅周辺 2283 86 12万 13,200 12,000 01-0354

20 神田小川町 10316 96 20 1万 36,785 33,441 09-6023

階 貸室面積 保証金・敷金 (坪当たり) 賃料 (坪当たり) 賃料 (税抜) コード No. ㎡坪数

21 神田小川町 12316 96 21 3万 39,084 35,531 09-6023 22 神田小川町 13316 96 21 3万 39,084 35,531 09-6023

23 神田神保町 4205 62 10 8万 19,800 18,000 12-0128

24 神田神保町 3213 64 10 8万 19,800 18,000 12-0128

25 神田神保町 3262

No. エリア

東京都中央区

京橋

エリア

京橋

エリア 269坪 (890㎡)

詳しくは web で! 全国の最新物件情報を多数掲載 世界No.1の実績を誇るCBREが提供する、 事業用不動産専門ポータルサイト。

都営「宝町」駅 徒歩3分JR「東京」駅 徒歩8分

5階

賃  料(/坪)/50,570円共 益 費(/坪)/込み 預託金/6ヶ月

税込賃料(/坪)/55,627円 税込共益費(/坪)/込み コードNo./11-6015

東京メトロ「京橋」駅 直結都営「宝町」駅 徒歩4分

25階

京橋

エリア 397坪 (1,313㎡)

銀座

エリア 281坪 (931㎡)

新川

エリア 463坪 (1,533㎡)

勝どき

エリア 562坪 (1,860㎡)

賃  料(/坪)/応相談

共 益 費(/坪)/込み 預託金(/坪)/応相談 税込賃料(/坪)/応相談

税込共益費(/坪)/込み コードNo./11-0429

東京メトロ「京橋」駅 徒歩4分東京メトロ「日本橋」駅 徒歩4分

13階

賃  料(/坪)/応相談

税込賃料(/坪)/応相談

共 益 費(/坪)/込み 預託金/12ヶ月

税込共益費(/坪)/込み コードNo./11-0531

東京メトロ「東銀座」駅 徒歩3分都営「築地市場」駅 徒歩4分

13階

賃  料(/坪)/応相談 共 益 費(/坪)/込み 預託金(/坪)/応相談

税込賃料(/坪)/応相談

東京メトロ「茅場町」駅

2階

税込共益費(/坪)/込み コードNo./19-0307

徒歩4分JR「八丁堀」駅 徒歩8分

賃  料(/坪)/応相談

共 益 費(/坪)/5,000円預託金/12ヶ月 税込賃料(/坪)/応相談

税込共益費(/坪)/5,500円 コードNo./15-0424

都営「勝どき」駅 徒歩7分東京メトロ「月島」駅 徒歩12分

20階

賃  料(/坪)/応相談

税込賃料(/坪)/応相談

16階

共 益 費(/坪)/込み 預託金/12ヶ月

税込共益費(/坪)/込み コードNo./23-0088

徒歩10分東京メトロ「月島」駅 徒歩16分

賃  料(/坪)/応相談

共 益 費(/坪)/応相談預託金(/坪)/応相談 税込賃料(/坪)/応相談

税込共益費(/坪)/応相談 コードNo./23-0136

No. エリア 階 貸室面積 保証金・敷金 (坪当たり) 賃料 (坪当たり) 賃料 (税抜) コード No. ㎡坪数

1 日本橋・京橋 11870 263 49万 53,893 48,994 11-6015

2 日本橋・京橋 5870 263 30 3万 55,564 50,513 11-6015

3 日本橋・京橋 9870 263 50 5万 55,564 50,513 11-6015

4 日本橋・京橋 12870 263 50 9万 55,982 50,893 11-6015

5 銀座 6186 56 9 6万 17,600 16,000 17-0218

6 銀座 8188 57 30万 33,000 30,000 17-6065

7 銀座 4198 60 24 2万 26,620 24,200 19-0184

8

9 銀座 7198 60 25万 27,500 25,000 19-0184

10 銀座 5236 71 13 2万 18,150 16,500 19-0161

11 銀座 8278 84 35万 38,500 35,000 19-0019

12 銀座 9278 84 35万 38,500 35,000 19-0019

保証金・敷金 (坪当たり) 賃料 (坪当たり) 賃料 (税抜) コード No. ㎡坪数

21 新富・明石町 4273 83 11万 12,100 11,000 16-0126 22 新富・明石町 5279 85 12万 13,200 12,000 22-0021 23 新富・明石町 3304 92 7万 15,400 14,000 16-0282

24 八丁堀 4349 106 10 5万 11,550 10,500 12-0274

25 八丁堀 4590 179 19 2万 17,600 16,000 12-0354

26 茅場町 2215 65 14万 15,400 14,000 14-0139

27 茅場町 3272 82 6万 11,000 10,000 14-0242

28 箱崎町・新川 3219 66 7 9万 14,548 13,225 15-0387

29 箱崎町・新川 4229 69 6 5万 14,300 13,000 15-0125

30 本町・室町 2210 63 16万 17,600 16,000 06-0020

31 本町・室町 4272 82 21万 23,100 21,000 07-0031

東京都港区

内幸町

エリア 289坪 (958㎡)

虎ノ門

エリア 344坪 (1,138㎡)

虎ノ門 エリア 909坪 (3,005㎡)

赤坂 エリア 164坪 (542㎡)

詳しくは web で! 全国の最新物件情報を多数掲載 世界No.1の実績を誇るCBREが提供する、 事業用不動産専門ポータルサイト。

㎡)

坪 (

都営「内幸町」駅

6階

徒歩1分東京メトロ「霞ケ関」駅 徒歩5分

賃  料(/坪)/未定

共 益 費(/坪)/未定 預託金(/坪)/未定 税込賃料(/坪)/未定

税込共益費(/坪)/未定 コードNo./05-0121

東京メトロ「虎ノ門ヒルズ」駅 徒歩4分東京メトロ「神谷町」駅 徒歩6分

18階 賃  料(/坪)/未定 共 益 費(/坪)/未定 預託金(/坪)/未定

税込賃料(/坪)/未定

税込共益費(/坪)/未定 コードNo./07-0435

東京メトロ「虎ノ門ヒルズ」駅 直結東京メトロ「虎ノ門」駅 徒歩3分

28階 賃  料(/坪)/未定 共 益 費(/坪)/未定 預託金(/坪)/未定 税込賃料(/坪)/未定

税込共益費(/坪)/未定 コードNo./07-0433

東京メトロ「六本木一丁目」駅 徒歩2分東京メトロ「溜池山王」駅 徒歩3分

17階 賃  料(/坪)/応相談

共 益 費(/坪)/応相談預託金(/坪)/応相談 税込賃料(/坪)/応相談 税込共益費(/坪)/応相談 コードNo./09-0170

東京メトロ「神谷町」駅 直結 東京メトロ「六本木一丁目」駅 徒歩9分

3階 賃  料(/坪)/応相談 共 益 費(/坪)/応相談預託金(/坪)/応相談 税込賃料(/坪)/応相談 税込共益費(/坪)/応相談 コードNo./08-0152

東京メトロ「白金高輪」駅 徒歩8分東京メトロ「広尾」駅 徒歩15分

3階 賃  料(/坪)/応相談 共 益 費(/坪)/4,000円預託金(/坪)/未定 税込賃料(/坪)/応相談 税込共益費(/坪)/4,400円 コードNo./17-0170

都営「芝公園」駅徒歩4分 都営「大門」駅徒歩3分

3階 賃  料(/坪)/応相談

共 益 費(/坪)/5,000円預託金(/坪)/応相談 税込賃料(/坪)/応 相 談

税込共益費(/坪)/5,500円コードNo./19-0073

No. エリア 階 貸室面積 保証金・敷金 (坪当たり) 賃料 (坪当たり) 賃料 (税抜) コード No. ㎡坪数

1 新橋 1137 41 32 4万 29,700 27,000 06-0241

2 新橋 2149 45 8 4万 15,400 14,000 06-0068

3 新橋 8222 67 21 6万 19,800 18,000 03-0229

4 新橋 7231 70 9 2万 16,940 15,400 06-0048

5 新橋 6232 70 19 7万 36,087 32,806 03-6004

6 新橋 7232 70 19 7万 36,087 32,806 03-6004

7 虎ノ門 7173 52 15万 33,000 30,000 07-6006

8 虎ノ門 7413 125 22 8万 20,900 19,000 07-0154

9 汐留 7110 33 22万 30,250 27,500 01-6009

10 汐留 10110 33 22万 30,250 27,500 01-6009

11 赤坂 6192 58 21万 23,113 21,012 09-0457

12 赤坂 7192 58 21万 23,113 21,012 09-0457

13 赤坂 4340 103 27 6万 25,300 23,000 09-0261

14 六本木 B1184 56 15万 16,500 15,000 14-0175

15 北青山 8155 47 23万 25,300 23,000 12-0096

16 南青山 7306 93 19万 41,800 38,000 13-6130

17 南青山 9306 93 21万 46,200 42,000 13-6130

18 南青山 4309 94 22万 24,200 22,000 13-0213

19 麻布 3180 54 15万 27,500 25,000 18-0038

20 高輪・白金台 2311 94 8万 17,600 16,000 23-0119

貸室面積 保証金・敷金 (坪当たり) 賃料 (坪当たり) 賃料 (税抜) コード No. ㎡坪数 21 大門 5244 74 11 5万 25,300 23,000 20-6022 22 大門

新宿区・渋谷区・豊島区周辺

西新宿

エリア 101坪 (336㎡)

詳しくは web で! 全国の最新物件情報を多数掲載 世界No.1の実績を誇るCBREが提供する、 事業用不動産専門ポータルサイト。

東京メトロ「西新宿」駅 徒歩4分都営「都庁前」駅

4

西新宿 エリア

西新宿 エリア 127坪 (419㎡)

都庁前

神宮前

賃  料(/坪)/応相談

税込賃料(/坪)/応相談

徒歩7分

共 益 費(/坪)/込み 預託金/12ヶ月

税込共益費(/坪)/込み コードNo./02-0439

東京メトロ「西新宿」駅 徒歩5分都営「都庁前」駅

13階

徒歩6分

賃  料(/坪)/20,000円共 益 費(/坪)/4,000円預託金/10ヶ月 税込賃料(/坪)/22,000円 税込共益費(/坪)/4,400円 コードNo./02-0170

JR「新宿」駅 徒歩7分都営「都庁前」駅 徒歩2分

27階

賃  料(/坪)/未定

税込賃料(/坪)/未定

共 益 費(/坪)/なし 預託金(/坪)/未定

税込共益費(/坪)/なし コードNo./01-0141

都営「都庁前」駅徒歩4分 都営「新宿」駅徒歩5分

賃  料(/坪)/応相談

共 益 費(/坪)/応相談預託金(/坪)/応相談 税込賃料(/坪)/

税込共益費(/坪)/応相談コードNo./01-0110

JR「原宿」駅 徒歩7分東京メトロ「明治神宮前」駅 徒歩6分

6階

恵比寿

エリア

池袋

エリア

賃  料(/坪)/未定

税込賃料(/坪)/未定

75坪 (248㎡)

291坪 (963㎡)

共 益 費(/坪)/なし 預託金(/坪)/未定

税込共益費(/坪)/なし コードNo./04-0750

都営「恵比寿」駅 徒歩6分JR「恵比寿」駅 徒歩7分

賃  料(/坪)/応相談

8階

税込賃料(/坪)/応相談

共 益 費(/坪)/なし 預託金/12ヶ月

税込共益費(/坪)/なし コードNo./13-0448

東京メトロ「池袋」駅 直結JR「池袋」駅 徒歩3分

賃  料(/坪)/応相談

21階

No. エリア 階 貸室面積 保証金・敷金 (坪当たり)

税込賃料(/坪)/応相談

共 益 費(/坪)/応相談預託金/12ヶ月

税込共益費(/坪)/応相談 コードNo./01-6007

保証金・敷金 (坪当たり) 賃料 (坪当たり) 賃料 (税抜) コード No. ㎡坪数

1 西新宿 7238 72 22万 18,150 16,500 01-0084

2 西新宿 13400 121 20万 22,000 20,000 02-0170

3 西新宿 10421 127 20万 22,000 20,000 02-0170

4 新宿駅東口周辺 11148 45 25万 27,500 25,000 05-6044

5 新宿駅東口周辺 4400 121 36万 33,000 30,000 06-6006

6 新宿御苑前駅周辺 2282 85 7 1万 15,654 14,231 04-0309

7 新宿御苑前駅周辺 6365 111 18万 19,800 18,000 04-0218

8 四谷 B1280 85 24万 22,000 20,000 18-0083

9 四谷

13 市谷・神楽坂 1227 69 9万 16,500 15,000 16-0299

14

15 早稲田駅周辺 4202 61 9 8万

21 道玄坂・宇田川・神南 5320 97 14万 30,800 28,000 03-0448

22 道玄坂・宇田川・神南 6320 97 14万 30,800 28,000 03-0448

23 神宮前 B1350 106 25万 27,500 25,000 04-0905

24 代々木 2301 91 20万 27,500 25,000 06-0222

25 代々木 3 1,255 380 12万 22,000 20,000 07-0019

26 初台・上原 5387 117 21 4万 23,505 21,368 09-0095

27 円山町・神泉町 2290

このページのお問い合わせは 03.5288.9520

その他東 京23区

詳しくは web で!

全国の最新物件情報を多数掲載 世界No.1の実績を誇るCBREが提供する、 事業用不動産専門ポータルサイト。

1 日暮里 3429 130 7 2万 13,202 12,002 02-0026

2 上野駅東口周辺 4196 59 13万 28,600 26,000 02-6008

3 上野駅東口周辺 5196 59 13万 28,600 26,000 02-6008

4 秋葉原駅東口周辺 3537 162 17万 18,700 17,000 03-6003

5 浅草橋・蔵前 4228 69 16万 17,600 16,000 04-0124

6 湯島・本郷 10229 69 19 8万 36,365 33,059 06-6014

7 湯島・本郷 5248 75 7 4万 13,489 12,263 06-0083

8 後楽・神楽坂 3411 124 6 2万 11,440 10,400 01-0084

9 小石川 B1270 82 8 4万 15,400 14,000 05-0086

10 門前仲町駅周辺 6345 104 13 7万 15,057 13,688 06-0212

11 木場駅周辺 3733 222 10 4万 9,570 8,700 07-0058

12 亀戸駅周辺 1-7 3,689 1,116 16 1万 17,744 16,131 01-0119

13 北千住駅周辺 B1167 51 20万 22,000 20,000 10-0098

このページのお問い合わせは 03.5288.9520

東京都下・山梨

詳しくは web で! 全国の最新物件情報を多数掲載 世界No.1の実績を誇るCBREが提供する、 事業用不動産専門ポータルサイト。

1 吉祥寺駅周辺 4183 55 21万 23,100 21,000 01-0335

2 三鷹駅北口周辺 7185 56 12 9万 17,691 16,083 02-6002

3 武蔵境駅周辺 2182 55 7 8万 14,297 12,997 03-6002

4 立川駅南口周辺 2276 84 4万 7,369 6,699 01-0037

5 立川駅南口周辺 2497 150 15万 16,500 15,000 01-0016

6 立川駅南口周辺 3497 150 15万 16,500 15,000 01-0016

7 立川駅南口周辺 4497 150 15万 16,500 15,000 01-0016

8 立川駅南口周辺 5497 150 15万 16,500 15,000 01-0016

9 立川駅南口周辺 2564 171 18万 16,500 15,000 01-0026

10 立川駅北口周辺 M2402 122 30万 27,500 25,000 02-0132

11 立川駅北口周辺 1402 122 42万 38,500 35,000 02-0132

12 立川駅北口周辺 2585 177 60万 55,000 50,000 02-0132

このページのお問い合わせは 03.5288.9520

千葉・茨城

1 千葉駅周辺 8204 62 8万 11,000 10,000 03-0130

2 千葉駅周辺 9214 65 11万 12,100 11,000 03-0005

3 千葉駅周辺 3240 72 11 9万 10,909 9,917 02-0162

4 千葉駅周辺 2240 72 8 9万 16,262 14,784 01-6001

5 千葉駅周辺 9359 109 19 2万 17,600 16,000 03-0173

6 千葉駅周辺 7460 139 11 9万 10,909 9,917 02-0162

7 千葉駅周辺 7560 169 4 8万 8,831 8,028 02-0107

8 千葉市花見川区 6113 34 9 8万 9,020 8,200 01-0005

9 千葉市美浜区 5209 63 4 7万 8,580 7,800 01-0043

10 千葉市美浜区 1331 100 10万 18,700 17,000 01-6033

11 西船橋駅周辺 3125 38 8万 14,593 13,266 03-0003

12 船橋駅周辺

万 10,909 9,917 03-0011 18 八王子市 11243 74 11 9万 10,909 9,917 03-0011 19 八王子市 4272 82 10万 11,000 10,000

詳しくは web で! 全国の最新物件情報を多数掲載 世界No.1の実績を誇るCBREが提供する、 事業用不動産専門ポータルサイト。

物件検索サイト www.cbre-propertysearch.jp

横浜・神奈川県下

みなと

みらい エリア 404坪 (1,337㎡)

詳しくは web で! 全国の最新物件情報を多数掲載 世界No.1の実績を誇るCBREが提供する、 事業用不動産専門ポータルサイト。

みなとみらい線「新高島」駅 徒歩3分JR「横浜」駅 徒歩11分

6階

新横浜

エリア 223坪 (738㎡)

関内 エリア 675坪 (2,230㎡)

武蔵小杉

エリア 406坪 (1,344㎡)

新川崎

エリア 191坪 (631㎡)

賃  料(/坪)/応相談

税込賃料(/坪)/応相談

共 益 費(/坪)/込み 預託金/10ヶ月

税込共益費(/坪)/込み コードNo./02-0055

JR「新横浜」駅 徒歩6分地下鉄「新横浜」駅 徒歩6分 9階 賃  料(/坪)/応相談

税込賃料(/坪)/応相談

共 益 費(/坪)/込み 預託金/12ヶ月

税込共益費(/坪)/込み コードNo./01-0152

JR「関内」駅 徒歩1分地下鉄「関内」駅 徒歩1分

20階

賃  料(/坪)/未定

税込賃料(/坪)/未定

JR「武蔵小杉」駅

3階

共 益 費(/坪)/未定 預託金(/坪)/未定

税込共益費(/坪)/未定 コードNo./06-6002

徒歩3分東急「武蔵小杉」駅 徒歩8分

賃  料(/坪)/未定 共 益 費(/坪)/未定 預託金/12ヶ月

税込賃料(/坪)/未定

税込共益費(/坪)/未定 コードNo./01-6006

JR「新川崎」駅 徒歩3分JR「鹿島田」駅 徒歩3分

7階

賃  料(/坪)/応相談

税込賃料(/坪)/応相談

共 益 費(/坪)/込み 預託金/12ヶ月

税込共益費(/坪)/込み コードNo./01-0001

1 横浜駅西口周辺 6192 58 8 3万 15,142 13,765 01-0098

2 横浜駅西口周辺 2362 110 13万 14,300 13,000 01-0040

3 横浜駅西口周辺 3378 114 11 4万 10,450 9,500 01-0061

4 横浜駅西口周辺 2464 140 11 4万 10,450 9,500 01-0061

5 横浜駅西口周辺 4502 152 13万 14,300 13,000 01-0040

6 横浜駅西口周辺 5972 294 11 4万 10,450 9,500 01-0061

7 横浜駅東口周辺 3183 55 19 8万 18,150 16,500 02-0027

8 横浜駅東口周辺 4266 81 7 2万 13,200 12,000 02-0052

9 横浜駅東口周辺 3716 217 25万 27,500 25,000 02-6003

10 横浜駅東口周辺 5736 223 22万 24,200 22,000 02-6003

11 桜木町・関内駅周辺 6149 45 20万 22,000 20,000 01-0059

12 桜木町・関内駅周辺 2163 49 12万 11,000 10,000 05-0056

13 桜木町・関内駅周辺 8165 50 8万 11,000 10,000 05-0003

14 桜木町・関内駅周辺 7183 55 1 4万 7,700 7,000 03-0137

15 桜木町・関内駅周辺 6195 59 13万 14,300 13,000 05-0031

16 桜木町・関内駅周辺 4203 61 15 6万 14,300 13,000 06-6003

17 桜木町・関内駅周辺 8203 61 15 6万 14,300 13,000 06-6003

18 桜木町・関内駅周辺 B1207 63 11 5万 12,650 11,500 05-0061

19 桜木町・関内駅周辺 3237 72 12万 13,200 12,000 01-0041

20 桜木町・関内駅周辺 B1289 87 3 2万 8,800 8,000 03-0137

21 桜木町・関内駅周辺 2305 92 26 4万 24,200 22,000 01-0025

22 桜木町・関内駅周辺 7334 101 16万 17,600 16,000 01-0059

23 桜木町・関内駅周辺 4362 110 13万 14,300 13,000 05-0031

24 桜木町・関内駅周辺 5362 110 13万 14,300 13,000 05-0031

25 桜木町・関内駅周辺 3399 121 12万 11,000 10,000 05-0056

26 桜木町・関内駅周辺 4418 127 15 6万 14,300 13,000 03-0053

27 桜木町・関内駅周辺 7424 128 14 4万 13,200 12,000 05-0101

28 桜木町・関内駅周辺 8560 169 10 9万 15,400 14,000 06-0200

29 桜木町・関内駅周辺 5723 219 15 6万 14,300 13,000 03-0053

31 みなとみらい 4117 36 11 4万 20,900 19,000 04-6009

32 新横浜駅周辺 5158 48 7 3万 8,791 7,992 01-0083

33 新横浜駅周辺 6160 49 7 2万 8,797 7,997 01-0083

34 新横浜駅周辺 4169 51 10万 11,000 10,000 01-0049

35 新横浜駅周辺 2173 52 11 5万 12,627 11,479 02-0069

36 新横浜駅周辺 5201 61 8万 11,000 10,000 01-0043

37 新横浜駅周辺 4202 61 9 6万 13,200 12,000 01-0004

38 新横浜駅周辺 3216 65 2万 11,000 10,000 01-0066

39 新横浜駅周辺 9217 66 6 5万 11,880 10,800 01-0044

40 新横浜駅周辺 3230 70 4 6万 10,120 9,200 01-0135

41 新横浜駅周辺 2234 71 8万 11,000 10,000 01-0043

42 新横浜駅周辺 3318 96 6万 13,200 12,000 01-0099

新横浜駅周辺 9431 131 14 4万 13,200 12,000 01-0108

新横浜駅周辺 5457

30 みなとみらい 3117 36 11 4万 20,900 19,000 04-6009 No. エリア 階 貸室面積 保証金・敷金 (坪当たり) 賃料 (坪当たり) 賃料 (税抜) コード No. ㎡坪数

03.5288.9520

埼玉・栃木・群馬・新潟・長野

大宮 エリア 437坪 (1,445㎡)

大宮

エリア 500坪 (1,653㎡)

詳しくは web で!

全国の最新物件情報を多数掲載 世界No.1の実績を誇るCBREが提供する、 事業用不動産専門ポータルサイト。

JR「大宮」駅 徒歩6分東武「大宮」駅 徒歩9分

3階 賃  料(/坪)/応相談

共 益 費(/坪)/込み 預託金/12ヶ月 税込賃料(/坪)/応相談

税込共益費(/坪)/込み コードNo./02-6026

JR「さいたま新都心」駅 徒歩7分JR「北与野」駅 徒歩12分

12階

前橋

エリア 120坪 (397㎡)

新潟 エリア 166坪 (549㎡)

長野

エリア 32坪 (108㎡)

賃  料(/坪)/応相談

共 益 費(/坪)/込み 預託金(/坪)/応相談 税込賃料(/坪)/応相談

税込共益費(/坪)/込み コードNo./01-6002

JR「前橋」駅 徒歩10分上毛電鉄「中央前橋」駅 徒歩5分

6階

賃  料(/坪)/応相談

共 益 費(/坪)/込み 預託金/12ヶ月 税込賃料(/坪)/応相談

税込共益費(/坪)/込み コードNo./01-0026

JR「新潟」駅徒歩22分 13階 賃  料(/坪)/応相談 共 益 費(/坪)/込み 預託金/12ヶ月 税込賃料(/坪)/応 相 談 税込共益費(/坪)/込み コードNo./01-0108

JR「長野」駅徒歩7分長野電鉄「長野」駅徒歩5分

2階 賃  料(/坪)/6,000円共 益 費(/坪)/3,500円預託金/6ヶ月 税込賃料(/坪)/6,600円

税込共益費(/坪)/3,850円コードNo./01-0051

No. エリア 階

1 大宮駅東口周辺 5191 58 12万 13,200 12,000 01-0208

2 大宮駅東口周辺 4201 61 12万 11,000 10,000 01-0054

3 大宮駅東口周辺 3300 91 10 5万 11,528 10,480 01-0020

4 大宮駅東口周辺 4328 99 12万 13,200 12,000 01-0080

5 大宮駅東口周辺 1-5640 194 13万 14,300 13,000 01-0348

6 大宮駅西口周辺 2137 41 11 1万 15,400 14,000 02-0115

7 大宮駅西口周辺 5152 46 5 8万 15,825 14,386 02-0004

8 大宮駅西口周辺 3165 50 18万 16,500 15,000 02-0082

9 大宮駅西口周辺 3179 54 20万 22,000 20,000 02-6019

10 大宮駅西口周辺 1204 62 24 6万 22,546 20,496 02-0221

11 浦和駅周辺 2186 56 10 4万 14,300 13,000 01-0021

12 浦和駅周辺 7195 59 13万 14,300 13,000 01-0086

13 浦和駅周辺 1198 60 9 6万 17,600 16,000 01-0196

14 浦和駅周辺 3302 91 10 2万 18,700 17,000 01-0058

15 浦和区その他 B1164 50 21 6万 19,800 18,000 02-6001

16 浦和区その他 2175 53 3 7万 13,606 12,369 02-0041

17 浦和区その他 2177 53 4 7万 8,562 7,784 02-0007

18 南区 3193 58 3万 11,046 10,042 01-6024

19 南区 1208 63 8 4万 15,398 13,998 01-0040

20 南区 6209 63 4万 7,323 6,657 01-0095

21 南区 5214 65 3 9万 7,137 6,488 01-0095

22 南区 1-5 1,236 374 6 7万 7,356 6,687 01-0089

23 東大成 1124 38 7 2万 13,200 12,000 05-0051

24 東大成 2151 46 2 6万 8,190 7,445 05-0007

25 川越市 3152 46 10万 11,000 10,000 01-0026

26 川越市 1224 68 7 2万 13,200 12,000 01-0043

27 川越市 6261 79 9万 9,900 9,000 01-0026

28 熊谷市 5137 41 1 8万 6,643 6,039 01-0044

29 熊谷市 3183 55 2 1万 7,557 6,870 01-0141

30 熊谷市 2196 59 2 1万 7,592 6,902 01-0141

保証金・敷金 (坪当たり) 賃料 (坪当たり) 賃料 (税抜) コード No. ㎡坪数

31 熊谷市 5344 104 8 1万 14,850 13,500 01-0093

32 熊谷市 6448 136 8 1万 14,850 13,500 01-0093 33 川口・西川口 1159 48 25万 22,879 20,799 01-6024

34 川口・西川口 6179 54 16 3万 14,981 13,619 01-0029

35 所沢市 2117 35 9 9万 18,150 16,500 01-0273

36 所沢市 3378 114 7 2万 13,200 12,000 01-0086

名古屋

全グレードで空室率は低下傾向 当社調査によ る、2025年7~ 9月期末の名古屋オールグレード の空室率 は2.4%で、対前期比 0.7ポイント低下した。グレード

A空室率は、 同0.3ポイント低下 し1.1%、グレードB空室率は、 同0.8ポイント低下 し2.6%。ハ イグレードビルの需要の高さは、 相変わらず堅調である。

今年10月からの約1年間で、 「栄」エリアを中心に、延床面積 5,000坪以上の大型ビルだけで 5棟が竣工予定である。供給面積 は、事務所区画のみで計 約3.2万 坪にもなり、過去に例を見ない供 給となる。その引き合いは凄まじ く、竣工前の現時点で、いずれの 物件も、フロア単位での確保すら 難しい状況となっている。「栄」 エリアへの新規供給は、周辺企業 のみならず、郊外に拠点を置く地

相場表

種別

NAGOYA

オールグレード空室率は2%台まで低下。 ハイグレードビルの需要は引き続き堅調。

場企業の移転需要をも大きく喚起 している。郊外では難しかったリ クルートの強化ができることや、 良質で大型の面積を確保できるこ となどから、その受け皿になって いると言えるだろう。同エリアの 空室率の低下は顕著で、オールグ レード空室率は、対前期 比0.9ポ イント低下の2.7%になった。隣 接する「伏見・丸の内」エリアで も、対前期比0.8ポイント低下し、 3.3%となっている。

大量供給があれば、当然空室率 は上昇するはずである。しかし、 直近では、郊外からの動きが目立 ったことや、2026年以降は2030 年代の名古屋駅再開発まで大型供 給がないことから、中期的に空室 率の大きな上昇は考えにくい。今 後、まとまった面積を確保するた めには、今回の大量供給による限 りある二次空室を、いかにして取 得するかが鍵となるだろう。

賃料(共益費込み)

高まるセットアップオフィス需要 また、セットアップオフィスに ついて、名古屋でもその需要が高 まってきている。以前は、製造業 が高い割合を占めるマーケットで あることや、高単価であるなどの 理由から、セットアップ区画は、 空室が長期化する傾向にあった。 しかし、今年に入り、これまで長 らく空室を抱えていたセットアッ プ区画が、相次いで空室を消化し た。名古屋でも、什器・内装工事 費の高騰や、また入居までの長い 工期が、拡張や進出を図る企業の オフィス選定を悩ませてきた。そ こに、空室率が急激に低下し、選 択肢が少なくなったこともあり、 セットアップオフィスの需要を押 し上げたと考えられる。今後の動 向から、目が離せない。

名古屋支店 荒田 晃輔

需給の動向

空室率推移 名駅 坪当たり 17,000円

名駅西

伏見 坪当たり

環境改善等、前向きな動機の移転により空室消化が進んでいる。

現状、募集区画は限定的だが、2026年竣工予定の物件あり。

円 新築・既存物件ともに空室消化が進んでいる。 栄 坪当たり

空室の消化が進んでおり、まとまった区画の募集が少なくなって きている。 丸の内 坪当たり

周辺都市(岐阜)

坪当たり

面積帯を問わず空室消化が進み、他エリア同様に大型面積の確保 が難しくなりつつある。

需給バランスは変わらず、市場は横ばいで推移している。

周辺都市(三河) 坪当たり 9,500円 13,500円 エリア内の新規出店ニーズは依然少ない。拡張ニーズやビルグ レード改善ニーズは底堅くあるも、顕在化のハードルが高い。

周辺都市(三重) 坪当たり 9,000円 ~ 14,000円 四日市はビルグレード改善、拡張などの動きが多く、津はBCPの 向上を目的とした移転需要が多い。

周辺都市(静岡) 坪当たり

円 浜松、三島、沼津からの集約移転ニーズが増加。空室率は依然低く、 入居テナントへの賃料増額改定の動きも活発化している。

倉庫・配送センター 坪当たり 3,200円 ~ 4,000円 エリアによって差はあるが、尾張・三河の需要が多い。特に三河の空 室消化は顕著に進んでいるが、2025年は供給が重なり空室は微増。

空室率推移凡例  =上昇  =やや上昇  =横ばい  =やや低下  =低下 ※物件検討時の予算の目安です。詳しくはシービーアールイー㈱社員におたずねください。 文中の空室率については、2014年3月期より、データ算出の対象となるオフィスビルを、原則として延床面積1,000坪以上、かつ新耐震基準に準拠した物件に変更しました。

利便性の高さから様々な人が行き交う栄エリアに、 2026年春、ワーカーと環境に配慮した

新たなワークプレイスが誕生。

近年、再開発ラッシュに沸く名古屋・栄エリア。商業施設やオフィ スビルが集積するだけでなく、愛知芸術文化センターやオアシス21 などの文化・複合施設、久屋大通公園があり、文化や自然を感じられ る街でもある。その地に、第一生命保険㈱、鹿島建設㈱、ノリタケ㈱ の3社がそれぞれ所有していたビルを解体し、新たに1棟の高層ビル を建設中である。それが、「栄トリッドスクエア」だ。

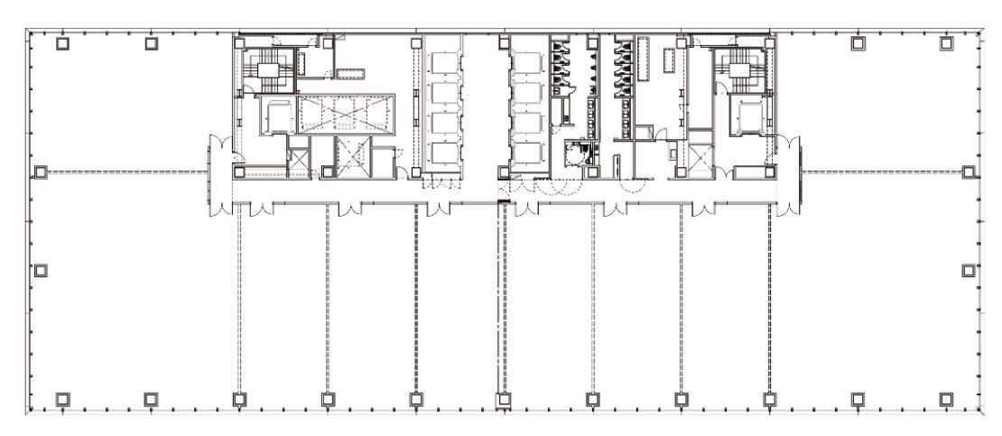
地上19階、地下1階、高さ約97m の同ビルは、空に向かって美し

基準階平面図

(名古屋テレビ塔への眺望)

く伸びる縦基調の外観デザインが特徴的である。事業者のノリタケの 陶磁器から着想を得て、ボーンチャイナを連想させる温もりのある色 調や、角部の柔らかな曲線美が表現されている。1階は、オフィスエ ントランスと店舗。エントランス内部は、天然木を取り入れたデザイ ンで、ノリタケの初期の製品「オールドノリタケ」も展示する予定で ある。2階は、入居者専用のワーカーズラウンジとテラス付きプレミ アムオフィス。ラウンジには、個人ブースやボックス席、個室の会議 室などがあり、多彩な空間でワーカーをサポートする。

3 ~ 19 階は オフィスフロアで、ワンフロア貸室面積約 446 坪の開放的な無柱空 間が広がる。最大 4 分割に対応し、最小区画は 73 52 坪。天井高 2,800mm、OA フロア100mm、床荷重500㎏/㎡(ヘビーデュー ティーゾーン1,000㎏/㎡)、細かいゾーニングと温度制御が可能な 個別空調などで、多様なニーズに対応したレイアウトが可能である。  同ビルは、熱田台地上に位置し、もともと洪水による危険度が低い とされるエリアに立地している。災害対策としては、建物内に最先端 の制震構造を採用し、2回線受電による電力供給や非常用発電で、停 電リスクを低減。各フロア共用部には、防災備蓄倉庫を設置している。 また、環境配慮型オフィスビルとして、「CASBEE- 建築(新築)」S ランク、「ZEB Ready」を取得するなど、高い省エネ性能とワーカー の快適性を両立する。

2026年3月、竣工を迎える「栄トリッドスクエア」。様々な人が行 き交う栄エリアに、またひとつ新しい顔が誕生する。

栄トリッドスクエア

建物概要 ●所在地/愛知県名古屋市中区新栄町 2-1 他(地番)●構造/ S 造一部 SRC 造●規模/地上 19 階、地下 1 階、塔屋 3 階建●敷地面積/ 3,418 76 ㎡(1,034 17 坪)●延床面積/ 40,140 61㎡(12,142 53坪)●主な用途/事務所、店舗、駐車場●事業主/第一生命保険 株式会社、鹿島建設株式会社、ノリタケ株式会社●竣工/2026年3月(予定)●交通/地下鉄 東山線・名城線栄駅徒歩2分、名鉄瀬戸線栄町駅徒歩2分 お問い合わせ先 株式会社第一ビルディング 名古屋支店 TEL.052-571-8271 鹿島建物総合管理株式会社 中部支社 TEL.052-684-8275

賃貸不動産市場その動向と相場 市場動向

金沢

空室率上昇も需要は堅調 当社調査による と2025年7~ 9月期末の金沢の空室率 は14.3 % と前期(2025年4~6月期) より1.5ポイント上昇した。主な 要因として、「Hirooka Terrace」 が空室を抱えたまま今年7月に竣 工したためだ。しかし、金沢駅周 辺の物件を筆頭に、エリア内移転 や新規出店等で成約していること に加え、今期は館内増床等で空室

金沢駅周辺

KANAZAWA

空室率上昇も賃料相場は安定。

再開発進行で今後の展開に注視。

が消化された事例も多かった。

想定成約賃料は、エリア全体が 10,810円/坪(0.1%減)、金 沢駅周辺 が12,160円/坪(0.2 %減)とわずかに低下したものの ほぼ横ばいとなった。

駐車場のひっ迫続く

駅西の金沢市広岡三丁目では、 ライブホール の「Zepp」やホテ ル計画があり、駐車場として暫定 利用していた予定地を返却しなく

富山 坪当たり 7,000円 ~ 11,000円

福井 坪当たり

倉庫・配送センター 坪当たり

倉庫・配送センター 坪当たり

てはならず、駐車場のひっ迫状態 は増すばかりだ。

駅東エリアでは、金沢駅から片 町エリアが、都市再生緊急整備地 域に指定されたことで、都ホテル 跡地において大規模開発が動き出 すことが期待される。高さ規制が 緩和され、より高い建物が建築可 能となるため、オフィスアセット は、市場に適した規模感にするこ とを念頭に置く必要があるだろう。

金沢営業所 井澤 啓貴

郊外型で駐車場が取れる物件に引き続きニーズが集中している。

新築ビルの竣工により空室は増加したが、既存ビルでは館内増床 等で空室消化が進んだ。

物件の選択肢は多いものの、駅前のビルを中心に空室消化が進ん でいる。

新築・築浅ビルではほぼ空室がなくなっている。

小規模倉庫の需要が著しく、空室が出ても間もなく決まる傾向。

新規の大型物流倉庫の計画が決まっており、空室は増えていくと 思われる。

空室率推移凡例  =上昇  =やや上昇  =横ばい  =やや低下  =低下 ※物件検討時の予算の目安です。詳しくはシービーアールイー㈱社員におたずねください。

文中の空室率については、2014年3月期より、データ算出の対象となるオフィスビルを、原則として延床面積1,000坪以上、かつ新耐震基準に準拠した物件に変更しました。

●石川県道 25号線沿い

●平面駐車場多数確保可

建物概要

所在地 石川県金沢市入江 2-54

交通 新神田バス停徒歩 4分

構造 鉄骨造

規模 地上 5 階

延床面積 1,931 49㎡(584 27坪)

竣工 1984 年10月

空調 個別空調

エレベーター 1基

駐車場 あり

お問い合わせ先

媒 介

シービーアールイー株式会社

金沢営業所

石川県金沢市広岡 3 -3 -11

TEL.076-224-6310

名古屋 | 愛知 | 静岡 | 岐阜 | 三重

名古屋市中村区

名古屋 駅 徒 歩 7分 店 舗 1F

住所 愛知県名古屋市中村区名駅南1-16-26 名称 名駅南Libertyビル

面積 96㎡ 賃料 相談 共益 相談

29坪 敷金 相談 専任媒介 シービーアールイー㈱ 052-205-6951

設備 その他

備考

■記載面積概算

名古屋市中区

栄 駅 徒 歩 3分 オフィス 5F

住所 愛知県名古屋市中区栄3-7-9 名称 新鏡栄ビル

面積 140㎡ 賃料 12,100円(税抜11,000円) 共益 3,850円(税抜3,500円)

42坪 敷金 12ヶ 月 貸主 ㈱かゞ見や本店 052-241-7251

設備 その他 備考

略記号 の見方

駅   前………徒歩1分以内及び駅前ロータリー面す物件 駅 近 し………駅徒歩5分以内の物件 駅 直 結………地下階やデッキ等で地下街や駅に繋がっている物件 大通り面す………国道、他地方主要道に面している物件 金融機関近し………銀行・郵便局等の金融機関が徒歩5分以内の物件

三重県下

近鉄津 駅 徒 歩 1分 オフィス 10F

住所 三重県津市羽所町700 名称 アスト津

面積 179㎡ 賃料 14,300円(税抜13,000円) 共益 4,400円(税抜4,000円) 54坪 敷金 12ヶ 月 貸主 津駅前都市開発㈱ 059-222-4122

設備 その他

備考

新   築………築1年以内で未入居の物件 築   浅………竣工後5年以内の物件 大型ビル………延床面積3,000坪以上の物件 駐車場あり………ビル内に駐車場があり、現在空きのある物件 部屋形よし………整形もしくは無柱で使い勝手の良い物件

北陸

金沢 | 石川 | 富山 | 福井

金沢市内

南町・尾山神社 バス停 徒 歩 1分 オフィス 5F

住所 石川県金沢市上堤町1-12 名称 金沢南町ビルディング

面積 235㎡ 賃料 433,400円(税抜394,000円) 共益 込み 71坪 保証金 6ヶ 月 媒介 シービーアールイー㈱ 076-224-6310

設備 その他 備考 ■百万石通り沿い■貸会議室あり

片町 バス停 徒 歩 3分 事務所兼店舗 2F

住所 石川県金沢市竪町31 名称 OKI BLD31

面積

設備 その他

備考

■竪町の商業ストリート沿いに立地

金沢 駅 徒 歩 2分 オフィス 2F

住所 石川県金沢市広岡1-5-23 名称 金沢第一ビル

面積 84㎡ 賃料 12,100円(税抜11,000円) 共益 込み 25坪 保証金 6ヶ 月 媒介 シービーアールイー㈱ 076-224-6310

金沢 駅 徒 歩 18分 オフィス 3F

住所 石川県金沢市二口町ニ53-1 名称 金沢フィットビル

面積 49㎡ 賃料 12,100円(税抜11,000円) 共益 込み 15坪 敷金 8ヶ 月 媒介 シービーアールイー㈱ 076-224-6310

設備 その他 備考 ■駐車場の利便性が高く、営業会社向き の物件■リフレッシュルームあり

金沢 駅 徒 歩 18分 事務所兼店舗 2F

住所 石川県金沢市南広岡町ハ42-1 名称 PARK HIROOKA

面積 133㎡ 賃料 484,000円(税抜440,000円) 共益 込み

40坪 敷金 6ヶ 月 媒介 シービーアールイー㈱ 076-224-6310

設備 その他 備考 ■木造合金メッキ鋼板葺・地上2階建■ 敷地内に平面駐車場確保可■近隣にド ラッグストアあり■他、空室あり

松島 バス停 徒 歩 3分 オフィス 1F

住所 石川県金沢市松島3-192 名称 松島三丁目貸事務所

面積 177㎡ 賃料 385,000円(税抜350,000円) 共益

設備 その他

ワンフロア………ワンフロア・ワンテナントで利用できる物件 天井高し………天井高が2,600mm以上の物件 24時間使用………24時間利用できる物件 機械警備………カードリーダー等機械警備が導入されている物件 個別空調………階別、部屋別の個別空調運転が可能な物件

54坪 敷金 6ヶ 月 媒介 シービーアールイー㈱ 076-224-6310

富山県下

富山 駅 徒 歩 5分 オフィス 8F

住所 富山県富山市桜橋通り2-25 名称 日進富山ビル 面積 220㎡ 賃料 相談 共益 込み

設備 その他 備考 ■貸会議室あり■荷物用エレベーターあ り■荷捌き駐車場あり

OAフロア………フリーアクセスフロア、二重床等が敷設されている物件 ブロードバンド………光ファイバー引込等、高度通信化が図られている物件 電気容量………電気容量が30VA/㎡以上確保されている物件 即入居可………現在空室で、即入居が可能な物件 条件相談可………提示条件に交渉の余地のある物件

略記号 の見方

名古屋

名古屋駅 周辺

伏見

エリア 34坪 (111㎡)

伏見

エリア 65坪 (215㎡)

詳しくは web で!

全国の最新物件情報を多数掲載 世界No.1の実績を誇るCBREが提供する、 事業用不動産専門ポータルサイト。

JR「名古屋」駅徒歩5分 地下鉄・名鉄・近鉄「名古屋」駅徒歩3分

相談 賃  料(/坪)/応相談

共 益 費(/坪)/応相談預託金(/坪)/応相談 税込賃料(/坪)/応 相 談

地下鉄「伏見」駅 徒歩1分

12階 賃  料(/坪)/応相談

税込賃料(/坪)/応相談

税込共益費(/坪)/応相談コードNo./03-0093

共 益 費(/坪)/応相談預託金(/坪)/応相談

税込共益費(/坪)/応相談 コードNo./05-0132

地下鉄「伏見」駅 徒歩4分地下鉄「丸の内」駅 徒歩3分

7階

43坪 (144㎡)

金山 エリア

賃  料(/坪)/応相談 共 益 費(/坪)/応相談預託金(/坪)/応相談 税込賃料(/坪)/応相談

税込共益費(/坪)/応相談 コードNo./05-6013

地下鉄「栄」駅 徒歩1分

19階 賃  料(/坪)/応相談 共 益 費(/坪)/応相談預託金(/坪)/応相談 税込賃料(/坪)/

税込共益費(/坪)/応相談 コードNo./10-6004

JR・地下鉄・私鉄各線「金山総合」駅 徒歩2分 7階 賃  料(/坪)/応相談

共 益 費(/坪)/応相談預託金(/坪)/応相談 税込賃料(/坪)/応相談

税込共益費(/坪)/応相談 コードNo./01-0065

1 名駅周辺 11105 32 17 9万 32,748 29,771 01-6009

2 名駅周辺 5106 32 10万 11,000 10,000 05-0015

3 名駅周辺 3132 40 14万 15,400 14,000 02-0081

4 名駅周辺 4174 53 12万 13,200 12,000 05-6002

5 名駅周辺 2182 55 9万 9,900 9,000 02-0017

6 名駅周辺 5182 55 9万 9,900 9,000 02-0017

7 名駅周辺 1202 61 24万 22,000 20,000 05-0075

8 名駅周辺 4274 83 14万 15,400 14,000 02-0100

9 名駅南 4154 47 13 2万 12,100 11,000 04-6011

10 名駅南 2169 51 2 5万 9,350 8,500 04-0110

11 名駅南 2229 69 2 6万 9,350 8,500 04-0110

12 名駅南 4640 194 2万 7,480 6,800 04-0110

13 名駅西 2204 62 4 2万 7,700 7,000 08-0105

14 名駅西 7235 71 22 8万 10,450 9,500 07-0053

15 名駅西 2357 108 4 2万 7,700 7,000 08-0105

16 丸の内 6186 56 2 9万 10,450 9,500 01-0027

17 丸の内 6231 70 2 9万 10,450 9,500 01-0027

18 丸の内 1274 83 5 1万 9,350 8,500 01-0010

19 丸の内 4417 126 2 9万 10,450 9,500 01-0027

20 丸の内・久屋大通駅周辺 6136 41 10万 11,000 10,000 03-0133

21 丸の内・久屋大通駅周辺 4138 42 9万 9,890 8,991 03-0089

22 丸の内・久屋大通駅周辺 8163 49 4 8万 8,800 8,000 03-0039

23 丸の内・伏見駅周辺 B1139 42 13 2万 13,200 12,000 05-0083

24 丸の内・伏見駅周辺 2152 46 6 4万 8,800 8,000 04-0036

25 丸の内・伏見駅周辺 3191 58 2 7万 9,898 8,998 04-0066

26 丸の内・伏見駅周辺 5191 58 2 9万 10,450 9,500 04-0066

27 丸の内・伏見駅周辺 2205 62 4 2万 11,532 10,484 04-0104

28 丸の内・伏見駅周辺 4210 64 2 9万 10,450 9,500 04-0066

29 丸の内・伏見駅周辺 3212 64 3 8万 10,313 9,375 04-0104

保証金・敷金 (坪当たり) 賃料 (坪当たり) 賃料 (税抜) コード No. ㎡坪数

31 丸の内・伏見駅周辺 5383 116 2 9万 10,450 9,500 04-0066

32 丸の内・伏見駅周辺 8383 116 2 9万 10,450 9,500 04-0066

33 栄・久屋大通駅周辺 7628 190 9 9万 18,150 16,500 06-0184

34 栄・久屋大通駅周辺 8628 190 9 9万 18,150 16,500 06-0184

35 栄・久屋大通駅周辺 9628 190 9 9万 18,150 16,500 06-0184

36 伏見駅周辺

伏見駅周辺

30 丸の内・伏見駅周辺 8263 80 14 4万 13,200 12,000 05-0083 No. エリア

栄・矢場町駅周辺 6226 68

東海主要都市

1

詳しくは web で! 全国の最新物件情報を多数掲載 世界No.1の実績を誇るCBREが提供する、 事業用不動産専門ポータルサイト。

㎡坪数

26 四日市市 2169 51 12 4

17 岐阜市 2172 52 3万 5,500 5,000 01-0225

19

21

22 津市 10179 54 15 6万 14,300 13,000 01-0091

23 津市 2196 59 1 3万 7,127 6,479 01-0027

24 津市 7197 60 12 6万 11,550 10,500 01-0091

25 四日市市 5121 37 12 4万

このページのお問い合わせは 076.224.6310

金沢・富山・福井

詳しくは web で! 全国の最新物件情報を多数掲載 世界No.1の実績を誇るCBREが提供する、 事業用不動産専門ポータルサイト。

1 武蔵が辻・香林坊 8274 83 6万 5,500 5,000 01-0037

2 武蔵が辻・香林坊 11275 83 11 7万 14,300 13,000 02-0475

3 武蔵が辻・香林坊 8303 92 4 8万 8,800 8,000 02-0071

4 武蔵が辻・香林坊 3306 92 4 8万 8,800 8,000 02-0071

5 武蔵が辻・香林坊 9321 97 6 4万 8,800 8,000 02-0222

6 武蔵が辻・香林坊 16447 135 13 2万 12,100 11,000 03-0270

7 武蔵が辻・香林坊 6500 151 4 8万 8,800 8,000 02-0071

8 武蔵が辻・香林坊

9 金沢駅周辺 9141 43 11

04-0220 10 金沢駅周辺 2198 60 15万 13,750 12,500 04-0280

11 金沢駅西 5210 63 4 8万 8,800 8,000 05-0148

12 金沢駅西

金沢駅西 3 1,362 412 21 6万 19,800 18,000 05-6025

金沢駅西 6 1,439 435 21 6万 19,800 18,000 05-6025

賃貸不動産市場その動向と相場 市場動向

大阪

梅田・淀屋橋で大きく空室消化 CBREの調査による、2025年 7~9月期末の大阪グレードA空 室率は2.9%となり、前期(2025 年4~6月期)の3.6%から大幅 に低下した。これは、主に「梅田」 「淀屋橋」で、新築ビルなどの空 室消化が大きく進んだためであ る。また、グレードAの賃料上昇 も大きく進んでいる。想定成約賃 料は26,000円/坪と、前期か ら3.4%上昇。前期の上昇率は 2.2%であり、大幅な価格上昇が 続いている。

大阪グレードB空室率は、対前 期比0.4ポイント低下 の1.7%。

大阪オールグレード空室率も、対 前期比0.3ポイント低下 の2.3% と、全グレードで空室は減少傾向 にある。大阪オールグレードのエ

相場表

OSAKA

全グレードで空室率が低下。

グレードAで大幅に賃料相場は上昇。

リアごとの空室率を前期と比較す ると、横ばいの「新大阪」を除い た全エリアで、低下している。

また、グレードBの想定成約賃 料は15,300円/坪と、対前期 比1.7%の上昇。オールグレード も14,760円/坪と1.4%上昇 し、全グレードで、賃料は上昇傾 向にある。大型面積の募集区画は 少なくなってきており、テナント の選択肢は限られつつある。

今後の新規供給

2025年12月には、「淀屋橋 ゲートタワー」が竣工を迎える。 ワンフロア基準 階1,000坪 クラ ス(低層階 約1,100坪、高層階 約940坪)の29階建、大阪メト ロ・京阪淀屋橋駅地下直結の超大 型物件であり、「淀屋橋」エリア において、間違いなくランドマー

種別 賃料(共益費込み)

クになる。ここ数年、「梅田」に 大型オフィスビルの集積が進み、 相対的に地位の低下が危惧されて いた「御堂筋」の復権への期待が かかる。

2026年以降は、新築ビルの供 給がかなり限定的になる。当社調 査によると、2027年、2029年 の供給はゼロ、2026年、2028 年も、過去平均を大きく下回る水 準の予定。建築費高騰により、建 築計画が凍結、もしくは延期とな った事例も。また、相当程度の築 年数が経過した物件を、オフィス ビルに建て替えるのではなく、リ ノベーションなどによって、長寿 命化を目指すというビルオーナー も多い。いずれにしても、供給量 が減ることにより、賃料水準が上 昇する可能性が高まっている。

関西支社 国枝 亮

需給の動向

空室率推移 梅田 大規模ビル 坪当たり 27,000円 ~ 37,000円 空室は引き続き減少傾向。賃料相場は大きく上昇している。

梅田 中小規模ビル 坪当たり 20,000円 ~ 27,000円 空室は少ない。賃料は上昇傾向で、今後も上昇が見込まれる

淀屋橋・本町大規模ビル 坪当たり 21,000円 ~ 29,000円 竣工済みの新築は空室が少ない。賃料は上昇傾向が続く。

淀屋橋・本町 中小規模ビル 坪当たり 15,500円 22,500円 全体的に空室が少ない。賃料も少しずつではあるが上昇傾向。

難波・心斎橋 大規模ビル 坪当たり 16,000円 ~ 23,000円 空室は少ない。賃料は上昇傾向。

難波・心斎橋 中小規模ビル 坪当たり 13,500円 ~ 17,500円 需要は堅調で'空室が少ない。

周辺都市 大規模ビル 坪当たり 13,000円 ~ 16,000円

周辺都市 中小規模ビル 坪当たり

事務所兼倉庫 市内・北摂・東大阪 坪当たり 5,500円 ~ 8,000円

安定的な需要があり空室は少ないものの、中心部よりも賃料上昇 は控えめ。

安定的な需要があり空室は少ないものの、中心部よりも賃料上昇 は控えめ。

新規供給がほとんど見られず、既存空室も依然として非常に少な い。特に汎用性の高い物件は、引き続き堅調な需要が見られ、相場 は高止まり。面積帯を問わず、限られた中から選定せざるを得ない。

倉庫・配送センター 坪当たり 4,000円 ~ 5,500円 「GLP ALFALINK茨木3」が満室に近い状態で竣工した。他物件 でもリースアップが進み、今期は四半期ベースで過去最大の需要 を見込む。

空室率推移凡例  =上昇  =やや上昇  =横ばい  =やや低下  =低下

※物件検討時の予算の目安です。詳しくはシービーアールイー㈱社員におたずねください。

文中の空室率については、2014年3月期より、データ算出の対象となるオフィスビルを、原則として延床面積1,000坪以上、かつ新耐震基準に準拠した物件に変更しました。

四丁目

東 本 願 寺 難 波 別

市場動向

賃貸不動産市場その動向と相場

神戸・京都

神戸は前向きな需要が中心 CBREの調査による、2025年 7~9月期末の神戸の空室率は前 期比0.4ポイント低下 の1.6%。

旺盛なテナント需要を背景に空室 消化が続き、特に旧居留地内の立 ち退き案件が市場の動きを活発化 させている。

今期のオールグレードの想定成 約賃料は12,480円/坪で、前 期比より0.6%上昇し、7期連続 の上昇となった。これまで賃料水 準が比較的低位にあった物件での 上昇が目立ち、市場全体を押し上 げるかたちとなっている。

移転動向としては、事業拡大に 伴う拡張移転や館内増床といった 前向きな動きが中心。立ち退きを 背景とした移転も散見され、中に は解約予告期間中の物件に次のテ

相場表

KOBE ・KYOTO

神戸:7期連続で想定成約賃料は上昇。 京都:空室率は緩やかな低下基調を予想。

ナントが内定するなど、旺盛な需 要を象徴する事例も見られた。

2028年 以降の新築ビルの竣 工予定まで、現在のタイトな市場 環境は継続する見込みである。オ フィス再編を検討する企業にとっ ては、希望物件を確保するため、 より一層早期の意思決定が求めら れるだろう。

京都は新庁舎完成が影響

2025年7~9月期末の京都の 空室率は対前期 比0.8ポイント上 昇 の2.8 %。京都市が新庁舎建て 替えのために一時賃借していた複 数の大型区画が、新庁舎完成によ って解約され、空室となったこと が主因だ。これにより「烏丸御池」 に空室が顕在化。一方、「四条烏丸」 「京都駅」の需要は変わらずにあ り、「日本生命四条ビル」は竣工

種別 賃料(共益費込み)

前から順調にテナント誘致が進 み、9月に満 室で竣工を迎えた。 これに伴い四条通・烏丸通に面す る大型または築浅ビルは、同エリ アの空室減少、賃料上昇を理由に、 賃料改定を加速させる動きが見受 けられる。

2027年末までの新規供給は 2025年第3四半期に2,100坪、 2027年第1四半期に1,200坪 と、合計でも現在のマーケット規 模に対して約3%。あまり新規供 給が見込めない状況にある。また、 来期竣工予定の物件のリーシング は好調で、テナントの堅調な需要 は今後も続くと見られる。このた め、空室率は緩やかな低下基調で 推移する見通しで、2027年末に は1%台と予想する。

関西支社 張詩云 石原亮

需給の動向

空室率推移 三宮~神戸 大規模ビル 坪当たり 16,000円 ~ 20,000円 大型ビル全体では空室率は安定しており、空室の消化が進んだ。 三宮~神戸 中小規模ビル 坪当たり 11,000円 ~ 16,000円 空室の消化ペースは速く、堅調な需要が継続。

姫路 坪当たり 9,000円 12,000円 企業の動きは増えてきたものの、需給はともに少ない状況が続く。

明石・加古川 坪当たり 8,000円 ~ 12,000円 状況に大きな変化がないため、需給はともに動きが少ない。

阪神間 坪当たり 8,000円 12,000円 状況に大きな変化がないため、需給はともに動きが少ない。

四条烏丸 大規模ビル 坪当たり 18,000円

円 四条烏丸の大型ビルのニーズが堅調。

四条烏丸 中小規模ビル 坪当たり 12,000円 18,000円 築浅ビルの需要は底堅い。

京都駅前 坪当たり

倉庫・配送センター・工場

空室が減少する状況が続いている。

空室率が低い状況は継続、竣工物件も順調にリーシングが進む。 直近の新規供給は限定的であるが物流再編ニーズは継続してあ り、賃料は郊外・都市部含め上昇傾向。

空室の増減に変化はなく、2026年に竣工を迎える新規供給物件 の引き合いは増加傾向。賃料は上昇傾向の見通し。

空室率推移凡例  =上昇  =やや上昇  =横ばい  =やや低下  =低下 ※物件検討時の予算の目安です。詳しくはシービーアールイー㈱社員におたずねください。 文中の空室率については、2014年3月期より、データ算出の対象となるオフィスビルを、原則として延床面積1,000坪以上、かつ新耐震基準に準拠した物件に変更しました。

和歌山県下

和歌山市 駅 徒 歩 15分

オフィス 4F

住所 和歌山県和歌山市九番丁15 名称 九番丁MGビル

面積 57㎡ 賃料 相談 共益 相談 17坪 敷金 相談 貸主 ㈱湊組興産 0734-53-8864

設備 その他 備考

大阪 | 和歌山 | 奈良 略記号 の見方

■南海和歌山市駅最寄り■2014年築の 物件■和歌山市役所が目の前かつ、けや き大通りが近くビジネスに適した立地

ワンフロア………ワンフロア・ワンテナントで利用できる物件 天井高し………天井高が2,600mm以上の物件 24時間使用………24時間利用できる物件 機械警備………カードリーダー等機械警備が導入されている物件 個別空調………階別、部屋別の個別空調運転が可能な物件

駅   前………徒歩1分以内及び駅前ロータリー面す物件 駅 近 し………駅徒歩5分以内の物件 駅 直 結………地下階やデッキ等で地下街や駅に繋がっている物件 大通り面す………国道、他地方主要道に面している物件 金融機関近し………銀行・郵便局等の金融機関が徒歩5分以内の物件 新   築………築1年以内で未入居の物件 築   浅………竣工後5年以内の物件 大型ビル………延床面積3,000坪以上の物件 駐車場あり………ビル内に駐車場があり、現在空きのある物件 部屋形よし………整形もしくは無柱で使い勝手の良い物件

OAフロア………フリーアクセスフロア、二重床等が敷設されている物件 ブロードバンド………光ファイバー引込等、高度通信化が図られている物件 電気容量………電気容量が30VA/㎡以上確保されている物件 即入居可………現在空室で、即入居が可能な物件 条件相談可………提示条件に交渉の余地のある物件

ワンフロア………ワンフロア・ワンテナントで利用できる物件 天井高し………天井高が2,600mm以上の物件 24時間使用………24時間利用できる物件 機械警備………カードリーダー等機械警備が導入されている物件 個別空調………階別、部屋別の個別空調運転が可能な物件 OAフロア………フリーアクセスフロア、二重床等が敷設されている物件 ブロードバンド………光ファイバー引込等、高度通信化が図られている物件 電気容量………電気容量が30VA/㎡以上確保されている物件 即入居可………現在空室で、即入居が可能な物件 条件相談可………提示条件に交渉の余地のある物件

略記号 の見方

梅田 エリア 122坪 (406㎡)

詳しくは web で! 全国の最新物件情報を多数掲載 世界No.1の実績を誇るCBREが提供する、 事業用不動産専門ポータルサイト。

JR「大阪」駅 徒歩1分阪急「大阪梅田」駅 徒歩5分

27階

梅田

エリア 143坪 (473㎡)

梅田 エリア 159坪 (526㎡)

梅田 エリア 165坪 (

中之島 エリア 474坪 (1,567

南森町・

南森町・

東天満 エリア 649坪 (2,148㎡)

賃  料(/坪)/応相談

共 益 費(/坪)/応相談預託金(/坪)/応相談 税込賃料(/坪)/応相談 税込共益費(/坪)/応相談 コードNo./01-0012

JR「大阪」駅 徒歩4分大阪メトロ「西梅田」駅 徒歩4分 10階 賃  料(/坪)/応相談

共 益 費(/坪)/応相談預託金(/坪)/応相談 税込賃料(/坪)/応相談

税込共益費(/坪)/応相談 コードNo./01-0006

JR「大阪」駅 徒歩8分阪急「大阪梅田」駅 徒歩7分

12階 賃  料(/坪)/応相談

共 益 費(/坪)/応相談預託金/12ヶ月 税込賃料(/坪)/応相談

税込共益費(/坪)/応相談 コードNo./04-6003

税込共益費(/坪)/応相談 コードNo./03-0228

9階 賃  料(/坪)/応相談 共 益 費(/坪)/応相談預託金(/坪)/応相談 税込賃料(/坪)/

税込共益費(/坪)/応相談 コードNo./06-0103

大阪メトロ「扇町」駅徒歩3分 JR「大阪天満宮」駅徒歩6分

6階 賃  料(/坪)/応相談 共 益 費(/坪)/応相談預託金/12ヶ月 税込賃料(/坪)/応 相 談

税込共益費(/坪)/応相談コードNo./12-0098

JR「桜ノ宮」駅 徒歩5分JR「大阪天満宮」駅 徒歩10分

18階 賃  料(/坪)/応相談

税込賃料(/坪)/応相談

No. エリア 階 貸室面積 保証金・敷金 (坪当たり) 賃料 (坪当たり) 賃料 (税抜) コード No. ㎡坪数

1 大阪駅周辺 5 77 23 19 8万 18,150 16,500 01-0009

2 大阪駅周辺 499 30 8 4万 15,400 14,000 02-0061

3 大阪駅周辺 299 30 5万 27,493 24,994 03-0050

4 大阪駅周辺 2100 30 10万 14,300 13,000 02-0016

5 大阪駅周辺 2 106 32 10万 18,150 16,500 02-0011

6 大阪駅周辺 8108 33 31 5万 26,400 24,000 03-0006

7 大阪駅周辺 B1118 36 5 6万 7,700 7,000 04-0185

8 大阪駅周辺 5122 37 10万 14,300 13,000 02-0016

9 大阪駅周辺 2137 42 17万 14,300 13,000 04-0109

10 大阪駅周辺 18 148 45 17万 18,699 16,999 03-0050

11 大阪駅周辺 8155 47 12万 13,200 12,000 04-0031

12 大阪駅周辺 5163 49 9万 8,250 7,500 04-0190

13 大阪駅周辺 10 218 66 8 4万 15,400 14,000 03-0048

14 大阪駅周辺 9262 79 27 6万 25,300 23,000 03-0211

15 大阪駅周辺 11262 79 27 6万 25,300 23,000 03-0211

16 大阪駅周辺 15300 91 11 9万 21,729 19,754 03-0050

17 大阪駅周辺 2368 111 17万 14,300 13,000 04-0109

18 堂島・曽根崎 7 61 19 16 5万 18,150 16,500 05-0009

19 堂島・曽根崎 4 84 26 14 4万 13,200 12,000 05-0069

20 堂島・曽根崎 2 85 26 14 4万 13,200 12,000 05-0069

共 益 費(/坪)/応相談預託金(/坪)/応相談

税込共益費(/坪)/応相談 コードNo./13-0142

コード No.

堂島・曽根崎 2136

堂島・曽根崎 3149 45 12万 13,200 12,000 06-0080 24 堂島・曽根崎 3 372 112 16 8万 15,400 14,000 05-0103 25 中之島 10110

大阪市中央区・西区

淀屋橋 エリア 128坪 (424㎡)

本町

エリア 66坪 (221㎡)

詳しくは web で! 全国の最新物件情報を多数掲載 世界No.1の実績を誇るCBREが提供する、 事業用不動産専門ポータルサイト。

大阪メトロ「淀屋橋」駅 徒歩5分大阪メトロ「肥後橋」駅 徒歩3分

4階

賃  料(/坪)/応相談

税込賃料(/坪)/応相談

共 益 費(/坪)/込み 預託金/12ヶ月

税込共益費(/坪)/込み コードNo./01-6017

大阪メトロ「淀屋橋」駅 徒歩5分大阪メトロ「北浜」駅 徒歩5分

7階

本町 エリア 89坪 (297㎡)

本町

137坪 (453㎡)

本町 エリア 200坪 (661㎡)

本町 エリア 236坪 (781㎡)

西本町

エリア 82坪 (274㎡)

賃  料(/坪)/応相談

税込賃料(/坪)/応相談

共 益 費(/坪)/2,000円預託金/12ヶ月

税込共益費(/坪)/2,200円 コードNo./04-0723

大阪メトロ「本町」駅 徒歩4分大阪メトロ「堺筋本町」駅 徒歩3分

賃  料(/坪)/応相談

税込賃料(/坪)/応相談

大阪メトロ「本町」駅 徒歩1分

5階

賃  料(/坪)/応相談

税込賃料(/坪)/

共 益 費(/坪)/3,500円預託金/12ヶ月

税込共益費(/坪)/3,850円 コードNo./04-0773

共 益 費(/坪)/応相談預託金/12ヶ月

税込共益費(/坪)/応相談 コードNo./03-0705

大阪メトロ「本町」駅 徒歩3分大阪メトロ「堺筋本町」駅 徒歩5分

5階

賃  料(/坪)/応相談

税込賃料(/坪)/応相談

大阪メトロ「本町」駅

徒歩1分

賃  料(/坪)/応相談

5階

税込賃料(/坪)/応相談

大阪メトロ「阿波座」駅

8階

共 益 費(/坪)/込み 預託金/12ヶ月

税込共益費(/坪)/込み コードNo./03-0670

共 益 費(/坪)/込み 預託金/12ヶ月

税込共益費(/坪)/込み コードNo./03-6015

徒歩3分大阪メトロ「本町」駅

賃  料(/坪)/応相談

税込賃料(/坪)/応相談

No. エリア 階 貸室面積 保証金・敷金 (坪当たり) 賃料 (坪当たり) 賃料 (税抜) コード No. ㎡坪数

1 淀屋橋 3220 67 11万 12,100 11,000 01-0607

2 淀屋橋 3368 111 9 5万 10,450 9,500 01-0630

3 本町駅周辺 9295 89 12万 13,200 12,000 03-0699

4 本町駅周辺 1331 100 25万 27,500 25,000 05-0517

5 本町駅周辺 5352 106 12 6万 11,550 10,500 05-0673

6 本町駅周辺 8570 172 13 2万 12,100 11,000 05-0544

7 本町駅周辺 9570 172 13 2万 12,100 11,000 05-0544

8 本町駅周辺 4998 302 11万 12,100 11,000 05-6007

9 北浜 2142 43 5 3万 9,900 9,000 02-0723

10 北浜 8179 54 14 4万 13,200 12,000 02-0675

11 北浜 3397 120 6 3万 11,550 10,500 02-0654

12 北浜 5401 121 14 4万 13,200 12,000 02-0675

13 堺筋本町駅周辺 4106 32 15万 16,500 15,000 04-0553

14 堺筋本町駅周辺 2221 67 10万 7,700 7,000 04-0610

15 堺筋本町駅周辺 B1286 87 12万 11,000 10,000 04-0592

16 堺筋本町駅周辺 4356 108 10 8万 9,900 9,000 04-0592

17 堺筋本町駅周辺 6401 121 15万 16,500 15,000 04-0553

18 堺筋本町駅周辺 3439 133 8万 8,800 8,000 06-0679

19 堺筋本町駅周辺 5512 155 8 4万 15,400 14,000 04-6012

20 堺筋本町駅周辺 5949 287 16 8万 15,400 14,000 04-0772

徒歩11分

共 益 費(/坪)/2,000円預託金/12ヶ月

税込共益費(/坪)/2,200円 コードNo./06-0053

No. エリア 階 貸室面積 保証金・敷金 (坪当たり) 賃料 (坪当たり) 賃料 (税抜) コード No. ㎡坪数

21 南船場・心斎橋 3176 53 13 8万 12,650 11,500 16-0195 22 南船場・心斎橋 B1201 61 10万 11,000 10,000 17-0036

南船場・心斎橋 B1281 85 10万 11,000 10,000 17-0036

24 南船場・心斎橋 3786 238 10万 11,000 10,000 17-0036

25 南船場・心斎橋 2788

新大阪

エリア 116坪 (384㎡)

天王寺・ 阿倍野 エリア 76坪 (251㎡)

詳しくは web で!

全国の最新物件情報を多数掲載 世界No.1の実績を誇るCBREが提供する、 事業用不動産専門ポータルサイト。

大阪メトロ「新大阪」駅 徒歩7分JR「新大阪」駅 徒歩8分

5階 賃  料(/坪)/応相談

共 益 費(/坪)/応相談預託金(/坪)/応相談 税込賃料(/坪)/応相談

大阪メトロ「天王寺」駅

2階

江坂 エリア 40坪 (133㎡)

和歌山 エリア 87坪 (

奈良

エリア 104坪 (345㎡)

税込共益費(/坪)/応相談 コードNo./09-6002

徒歩1分JR「天王寺」駅 徒歩3分

賃  料(/坪)/応相談

共 益 費(/坪)/応相談預託金/10ヶ月 税込賃料(/坪)/応相談

税込共益費(/坪)/応相談 コードNo./10-6002

ニュートラム「トレードセンター前」駅徒歩1分 ニュートラム「コスモスクエア」駅徒歩7分 4階 賃  料(/坪)/応相談 共 益 費(/坪)/込み 預託金(/坪)/応相談 税込賃料(/坪)/応 相 談 税込共益費(/坪)/込み コードNo./04-0009

大阪メトロ「江坂」駅 徒歩1分北大阪急行「江坂」駅 徒歩1分

11階 賃  料(/坪)/応相談 共 益 費(/坪)/込み 預託金/12ヶ月 税込賃料(/坪)/応相談

税込共益費(/坪)/込み コードNo./04-0009

JR「和歌山」駅 徒歩20分南海「和歌山市」駅 徒歩20分

2階 賃  料(/坪)/7,800円共 益 費(/坪)/3,000円預託金/5ヶ月 税込賃料(/坪)/8,580円 税込共益費(/坪)/3,300円 コードNo./01-0082

徒歩18分南海「和歌山市」駅 徒歩20分

9階 賃  料(/坪)/9,500円共 益 費(/坪)/3,500円預託金/12ヶ月 税込賃料(/坪)/10,450円 税込共益費(/坪)/3,850円 コードNo./01-0081

近鉄「新大宮」駅 徒歩8分

5階

賃  料(/坪)/応相談

共 益 費(/坪)/4,000円預託金/12ヶ月 税込賃料(/坪)/応相談

税込共益費(/坪)/4,400円 コードNo./01-0146

No. エリア 階 貸室面積 保証金・敷金 (坪当たり) 賃料 (坪当たり) 賃料 (税抜) コード No. ㎡坪数

1 西中島 4112 34 4万 11,000 10,000 01-0007

2 西中島 8134 41 7万 7,700 7,000 01-0285

3 西中島 7167 50 13万 14,300 13,000 01-0386

4 西中島 4195 59 7万 7,700 7,000 01-0285

5 西中島 6212 64 13万 11,000 10,000 01-0085

6 西中島 7489 148 16 4万 15,070 13,700 01-0131

7 JR 難波駅周辺 299 30 8 4万 10,450 9,500 04-0069

8 吹田市 6119 36 10万 11,000 10,000 03-0114

9 吹田市 3123 37 10 8万 9,900 9,000 02-0072

10 吹田市 5129 39 10 8万 9,900 9,000 02-0072

11 吹田市 4212 64 6万 11,000 10,000 04-6006

12 枚方市 6131 40 4 8万 17,523 15,930 02-0023

13 枚方市 7131 40 4 8万 17,523 15,930 02-0023

14 枚方市 9140 42 4 8万 17,578 15,980 02-0023

15 枚方市 5148 45 4 5万 16,422 14,929 02-0023

16 枚方市 7148 45 4 5万 16,422 14,929 02-0023

17 枚方市 3415 126 5 1万 18,698 16,998 02-0023

18 天王寺 3345 104 8 4万 15,400 14,000 01-0018

19 堺市 4119 36 6 4万 8,800 8,000 03-3033

20 堺市 2135 41 6 4万 8,800 8,000 03-3033

神戸・兵庫県下

三宮

東灘区 エリア 111坪 (368㎡)

姫路市

詳しくは web で! 全国の最新物件情報を多数掲載 世界No.1の実績を誇るCBREが提供する、 事業用不動産専門ポータルサイト。

JR「三ノ宮」駅 徒歩5分阪急「神戸三宮」駅 徒歩5分

5階

賃  料(/坪)/応相談

税込賃料(/坪)/応相談

共 益 費(/坪)/込み 預託金/12ヶ月

税込共益費(/坪)/込み コードNo./05-6005

JR「摂津本山」駅徒歩8分 阪急「岡本」駅徒歩12分 14階 賃  料(/坪)/応相談

税込賃料(/坪)/応 相 談

賃  料(/坪)/応相談

税込賃料(/坪)/応相談

1 新神戸・三ノ宮駅 3267 81 1 1万 8,468 7,698 02-0031

2 三ノ宮 2256 77 6 8万 10,182 9,256 03-0252

3 三ノ宮 B1338 102 5万 10,976 9,978 03-0164

4 三ノ宮 6346 105 4 2万 7,700 7,000 03-0028

5 三ノ宮・旧居留地 2157 47 15万 15,693 14,266 05-0134

6 三ノ宮・旧居留地 4296 90 11 3万 10,364 9,422 05-0113

7 元町・ハーバーランド 3331 100 12万

8

06.6292.1700

京都・滋賀

四条烏丸

エリア 101坪 (334㎡)

西院・

四条大宮

西院・

四条大宮

1

2

3

共 益 費(/坪)/込み 預託金/12ヶ月

税込共益費(/坪)/込み コードNo./04-0046

共 益 費(/坪)/込み 預託金/12ヶ月

税込共益費(/坪)/込み コードNo./01-0129

詳しくは web で! 全国の最新物件情報を多数掲載 世界No.1の実績を誇るCBREが提供する、 事業用不動産専門ポータルサイト。

阪急「大宮」駅徒歩5分 京福「四条大宮」駅徒歩5分 1階

賃  料(/坪)/応相談 共 益 費(/坪)/3,500円預託金/12ヶ月 税込賃料(/坪)/応 相 談

税込共益費(/坪)/3,850円コードNo./04-0051

阪急「大宮」駅 徒歩1分京福「四条大宮」駅 徒歩1分

賃  料(/坪)/応相談

共 益 費(/坪)/応相談預託金(/坪)/応相談 税込賃料(/坪)/

税込共益費(/坪)/応相談 コードNo./06-0009

JR「丹波口」駅 徒歩8分阪急「大宮」駅 徒歩10分

賃  料(/坪)/応相談 共 益 費(/坪)/応相談預託金/12ヶ月

税込賃料(/坪)/応相談 税込共益費(/坪)/応相談 コードNo./07-0016

4213 64 18万 16,500 15,000 02-0057

4 四条烏丸~五条 2191 58 7 8万 14,300 13,000 01-0146

5 四条烏丸~五条 7211 64 12 8万 17,600 16,000 04-0017

6 四条烏丸~五条 8211 64 12 8万 17,600 16,000 04-0017

7 四条烏丸~五条 8268 81 11万 12,100 11,000 04-0037

8 四条烏丸~五条 9268 81 11万

四条烏丸~五条

賃貸不動産市場その動向と相場 市場動向

広島・岡山

成約賃料は引き続き最高値を更新 シービーアールイー㈱の調査に よる、2025年7~9月期末の広 島市内中心部の空室率 は4.7 %と なり、対前期(2025年4~6月 期)比0.1ポイント低下した。 2025年初めに竣工した新築物 件の二次空室や、2022年に竣工 した「広島JPビルディング」の 二次空室の消化が進んだため、空 室率が低下した。

今期の想定成約賃料は、12,080 円/坪まで上昇し、対前期比プラ ス70円/坪となった。10期連続 で、過去最高値を更新している。

現在、JR広島駅北口で は「d_ ll HIROSHIMA(ディールヒロシ マ)」が建築中である。JR広島駅 周辺で、大型賃借区画を確保でき る希少な物件として、エントリー 企業が多数見られる状況である。

広島駅エリアでは、今後新規供給

相場表

HIROSHIMA・OKAYAMA

広島:新築・築浅ビルの二次空室消化が進む。 岡山:業種にかかわらず前向きな動きが継続。

の予定がなく、現状、既存ビルで しか検討ができない。そのため、 空室物件の価値が上がっており、 新築とともに、既存ビルの需要も 高まっていると言えるだろう。

一方、広島市中心部では、2025 年初めに竣工した「明治安田広島 ビル」「大同生命広島ビル」で、 緩やかに空室消化が進んでいる。 トレンドでもある「採用活動強化」 「環境改善」を目的とした、郊外 からの移転や、築古ビルからの移 転が、今後も続くと予測される。 市内中心部では、2027年に、広 島のランドマークビルとも言える 新規供給が予定されている。すで に大型区画のエントリーなどが複 数社あり、竣工時の稼働率も、広 島オフィスマーケットの今後の見 どころである。

岡山で待たれる新規供給

岡山市は、今期も引き続き、IT

系企業、不動産業、環境・リサイ クル関連企業など、業種にかかわ らず、立地改善や環境改善、拡張 移転など、採用環境やエンゲージ メントの向上につながる、前向き な動きが見受けられた。

ただしJR岡山駅前で、築浅か つハイグレードなビルでの、まと まった面積の空室確保は難しく、 岡山マーケット全体を見ても容易 ではない。その中で、移転の必要 性がある場合には、グレードや立 地などの希望要件を緩和するな ど、工夫が必要と言えるだろう。 また、立地を変えたくない場合に は、レイアウト変更など、居なが らにして環境を整えていく検討も 必要である。

マーケットの活性化のために も、好立地でハイグレードな新規 供給が、引き続き求められる。

広島支店 柴田雅也 名越正幸

種別 賃料(共益費込み)

需給の動向

空室率推移 広島駅北 坪当たり 11,000円 ~ 13,000円 空室は小規模区画か大型区画のいずれか。全体的に空室が少ない。

広島駅南 坪当たり 11,000円 ~ 13,000円 20坪以下の小規模区画が複数成約になり、空室消化が進む。

八丁堀・紙屋町 坪当たり 11,000円 13,000円 二次空室発生も館内増床、移転などで消化傾向。

大手町 坪当たり 9,000円 12,000円 需給の動向に大きな変化なし。小規模区画に入退去の動きあり。

岡山 桃太郎大通り 坪当たり 9,000円 13,000円 需給動向に変化は見受けられず全体的に緩やかな状況。

岡山 市役所筋 坪当たり 12,500円 15,500円 築年数に限らず、引き続き大型空室の確保は難しい。

広島 倉庫・配送センター 坪当たり 3,600円 ~ 4,300円 引き続き空室率は0%。一部水面下で荷物の入れ替わりによる動 きはある。2028年に予定の開発による新規供給に期待。

広島 倉庫・配送センター 坪当たり

円 ~

岡山 倉庫・配送センター 坪当たり 3,400円 ~

円 空室は相変わらず少なく、賃料は上昇傾向。検討エリアを広げて 捜索する動きも散見される。

円 今年供給の3棟が満室稼働で空室率は引き続 き0%。2026年以 降の新規供給も未定。タイトなマーケットから賃料も上昇傾向。

空室率推移凡例  =上昇  =やや上昇  =横ばい  =やや低下  =低下 ※物件検討時の予算の目安です。詳しくはシービーアールイー㈱社員におたずねください。

文中の空室率については、2014年3月期より、データ算出の対象となるオフィスビルを、原則として延床面積1,000坪以上、かつ新耐震基準に準拠した物件に変更しました。

岡 山

JR吉備線

JR宇野みなと線 JR山陽本線

JR山陽新幹線

桑田中学校 瀬戸内海放送

岡山駅前

西川緑道公園

家庭裁判所前

県立美術館

縮景園前

岡山県立 博物館

城下筋 岡山市立 オリエント 美術館

西川緑道公園 柳川

桃太郎大通り バスターミナル 天満屋

郵便局前

県庁通り

岡山 中央郵便局 クレド 岡山 岡山 ロッツ

(TSC) あくら通り

新西大寺町筋

岡山電気軌道

大雲寺前

岡山後楽園

旭 川

城下

岡山 シンフォニー ホール

日本 銀行 中国 銀行 林原美術館

県立図書館

岡山県庁

岡山城

西大寺町 小橋

ハレノワ

国清寺

広 島

市場動向 賃貸不動産市場その動向と相場

高松・松山

環境改善移転で空室率低下

当社調査によ る2025年7~9 月期末おける高松市の空室率は 7.2%となり、対前期(4~6月期) 比0.5ポイントの低下となった。

今期は引き続き空室の顕在化が 生じたが、築年数が経過した物件 からの環境改善に伴う移転もいく つか見受けられ、前向きな動きに よって空室消化が進んだ そのような中で、来年3月に兵

TAKAMATSU・MATSUYAMA

高松:インバウンド誘致に追い風の施設が。

松山:新築ビルの市場へのインパクト大。

庫町の「高松東 急REIホテル」が 営業終了するが、宿泊需要を見込 み「JRク レメントイン高松兵庫 町」にリブランドのうえ出店予定 となった。また今年10月には丸 亀町グリーン東館1階に「ポケモ ンセンターカガワ」が開業し、イ ンバウンド誘致への追い風が期待 される。

松山で相次ぐ新築ビルの竣工 松山市は今年8月末 に「d_ll

種別 賃料(共益費込み)

MATSUYAMA」 が竣工し、大 手IT系企業の本社の移転先として 選定され、マーケットにインパク トを与えた。また年末には「L.Biz 松山一番町」の竣工が控えている。 これらの竣工により、未消化の空 室による空室率への影響は避けら れない。そのため、新築ビルの今 後の空室消化動向から、引き続き 目が離せないだろう。

広島支店 名越 正幸

需給の動向

築浅大型ビルは引き続き品薄。空室が生じても消化が早い。

高松 中心部 中小規模ビル 坪当たり 8,000円 ~ 10,000円 需要は緩やかで、比較的検討しやすいマーケットといえる。

松山 中心部 ビル 坪当たり 11,000円 ~ 15,000円 引き続き、既存ビルでの大型空室確保は難しい。

空室率推移凡例  =上昇  =やや上昇  =横ばい  =やや低下  =低下

空室率推移

※物件検討時の予算の目安です。詳しくはシービーアールイー㈱社員におたずねください。 文中の空室率については、2014年3月期より、データ算出の対象となるオフィスビルを、原則として延床面積1,000坪以上、かつ新耐震基準に準拠した物件に変更しました。

松山城

高松シンボル タワー

高松サンポート 合同庁舎

JR四国本社

高松港旅客 ターミナルビル

JRホテル クレメント高松

JR クレメントイン

高松

水城通り

高松港

高松国税局 松山税務署

本町三丁目

伊予鉄市内線

県民ホール

JR高松 高松築港 (レグザムホール)

高松センチュリー ホテル

瀬戸大橋通り 香川銀行 リーガホテル ゼスト高松

県立高松 工芸高校

県立高松 高校

高松赤十字 病院

香川県庁

日本銀行 高松支店

高松東急 REIホテル

高松高等 検察庁 玉藻公園 四国電力

高松城跡

県立ミュージアム

愛媛県庁

坂の上の雲 ミュージアム

松山地方 裁判所 東急REI ホテル

愛媛県美術館

本町一丁目

香川大神宮

高松裁判所

高松三越 高松中央 郵便局

高松市美術館 マルナカ

法泉寺 ロイヤルパーク ホテル高松

美術館通り

高松市役所 フェリー

高松北 警察署 伊予 銀行

中央公園 志度街道

百十四銀行 本店

香川銀行本店

片原町

日本放送協会 松山放送局

JA愛媛本館

四国電力 株式会社

愛媛支店

松山市男女共同 参画推進センター 松山市

南堀端 松山市 市役所前 県庁前

松山市役所

日本銀行 松山支店

伊予銀行 本店

坊っちゃん列車 ミュージアム

愛媛県立 松山南高校 いよてつ

髙島屋

聖カタリナ大学

松山 ニューグランド ホテル ANA クラウン プラザホテル 松山 三越 カンデオ ホテルズ

松山中央郵便局

松山大街道

四国の最大都市、松山の中心街に誕生する 優れた環境性能と快適な執務機能を兼ね備えた シックなデザインのミドルサイズオフィスビル。

日本三古湯のひとつである道後温泉で知られる愛媛県松山市は、県 庁所在地として四国地方最多の人口約50万人を誇り、中国地方を含 めても、広島市、岡山市に次ぐ第3の都市である。その中でも一番町 界隈はコンパクトシティ構想により、愛媛県庁や松山市役所といった 行政機関をはじめ、多くの金融機関や企業が集まる中心地となってい る。だが、早くから賑わっていたエリアだけに、歴史あるビルの老朽 化も顕著で、そのため、2026年度完成予定の愛媛県庁第二別館建替 工事をはじめ、2030年までに市役所の新庁舎、伊予銀行本店、伊予 鉄会館、NTT 西日本四国支店跡地など、いくつもの大規模な建替工 事や再開発が進行中である。近い将来、周辺地域の景観が一変するこ とは、間違いないだろう。

そうした中、2025 年 12 月に竣工するミドルサイズのオフィスビ ルに注目が集まっている。それが「L.Biz 松山一番町」だ。場所は伊 予鉄道 JR 松山駅前線「県庁前」駅から徒歩1分の、大通りに面した好 立地である。14階建の建物は、4階までの低層階は濃いめのブラウン、 5階以上はガラス面とオフホワイトの壁面が格子柄に見えるシックな 外観に仕上げている。1階には商業テナントが入り、2~14階がオフィ スフロアとなっている。ワンフロア153坪超の広さを持つ執務スペー スは、最小 21.24 坪からの分割が可能であり、スタートアップから 大企業の支社まで、様々な用途に対応可能だ。天井高2 8m いっぱい までガラス面が広がり、開放感にあふれている。屋上にはテナント専 用のテラスがあり、松山城の城山公園が一望でき、憩いのひとときを 供してくれる。建築環境総合性能評価 CASBEE の A ランク、および 環境認証である ZEB Ready ともに取得済み。また、松山市には事業 所の新設・増設・移転に関する奨励金制度があるため、他の地域に比 べて拠点構築が有利なのも魅力のひとつだ。

今後ますますの発展が期待される松山市の中心街に誕生する「L.Biz 松山一番町」が、地域活性化の起爆剤となることは、想像に難くない だろう。

L.Biz 松山一番町

建物概要 ●所在地/愛媛県松山市一番町 4-1-6 ●構造/鉄骨造●規模/地上 14 階建●建築面積/ 2,905 40㎡(367 74坪)●延床面積/9,604 64㎡(2,905 4坪)●竣工/2025年(令和7 年)12月●交通/伊予鉄道 JR 松山駅前線県庁前駅徒歩1分、バス停大街道徒歩2分 お問い合わせ先

第一セントラルビル

建物概要

所在地 岡山県岡山市北区本町6 -36

交通 JR 岡山駅徒歩 2 分

構造 鉄骨鉄筋コンクリート造

規模 地上9 階、地下2階

延床面積 27,150 80 ㎡(8,213 10 坪)

竣工 1978 年11月

空調 フロア毎空調

エレベーター 5 基

駐車場 立体駐車場(タワー・機械式)

床仕様 2WAYフロアダクト等

テナント募集

募集階面積賃料敷金・保証金共益費

1F 199 27㎡ (60 28 坪)

3F 88 99㎡ (26.92坪)

お問い合わせ先 媒 介

相談相談相談

相談相談相談

杜の街グレース杜の街プラザ

建物概要

所在地 岡山県岡山市北区下石井 2-10 - 8

交通 JR 岡山駅徒歩12 分

構造 鉄骨造陸屋根

規模 地上 6 階

延床面積 10,786 00 ㎡(3,262 77坪)

竣工 2022 年2月

空調 なし

エレベーター 3 基(全 5 基)

駐車場 来客用 400 台

床仕様 スケルトン

お問い合わせ先 貸 主

クリニックテナント募集

募集階面積賃料敷金・保証金共益費 5F 172.76㎡ (52.26 坪) 相談相談相談

5F 384.19㎡ (116 22坪) 相談相談相談

両備ホールディングス株式会社

まちづくりカンパニー

岡山市北区下石井 2 - 10 - 8

シティセンタービル

建物概要

所在地 岡山県岡山市北区野田 2- 4 -1

交通 野田二丁目バス停徒歩 3 分

構造 地上 3 階

延床面積 5, 316 19㎡(1,608 15 坪)

竣工 1991年5月

空調 個別空調

エレベーター 1基

床仕様 2WAYフロアダクト等

募集階面積賃料(総額・税込)賃料(総額・税別)敷金・保証金(総額)共益費(総額・税込)共益費(総額・税別)

1F

1F 66 12㎡(

お問い合わせ先 貸 主

広島 | 岡山 | 山口 | 鳥取 | 島根

四国

高松 | 香川 | 松山 | 愛媛 | 徳島 高知

広島市内

立町 駅 徒 歩 1分 オフィス 9F

住所 広島県広島市中区基町13-9 名称 東洋証券広島スクエア

面積 89㎡ 賃料 相談 共益 相談 27坪 敷金 相談 媒介 シービーアールイー㈱ 082-243-9321

設備 その他 備考

三篠3丁目

バス停 徒 歩 2分 オフィス 5F

住所 広島県広島市西区三篠町2-4-22 名称 NKビル

面積 50㎡ 賃料 相談 共益 相談 15坪 敷金 10ヶ 月 媒介 シービーアールイー㈱ 082-243-9321

設備 その他 備考

岡山市内

岡山 駅 徒 歩 12分 オフィス 8F

住所 岡山県岡山市北区磨屋町10-20 名称 磨屋町ビル

面積 52㎡ 賃料 相談 共益 相談

設備 その他

備考

■鉄骨鉄筋コンクリート造■地上8階、

地下1階建

082-243-9321

徳島市内

徳島 駅 徒 歩 4分 オフィス 5F

住所 徳島県徳島市寺島本町西1-33 名称 第2中筋ビル 面積 114㎡ 賃料 相談 共益 相談 34坪 敷金 12ヶ 月 媒介 シービーアールイー㈱ 082-243-9321

略記号 の見方

ワンフロア………ワンフロア・ワンテナントで利用できる物件 天井高し………天井高が2,600mm以上の物件 24時間使用………24時間利用できる物件 機械警備………カードリーダー等機械警備が導入されている物件 個別空調………階別、部屋別の個別空調運転が可能な物件

駅   前………徒歩1分以内及び駅前ロータリー面す物件 駅 近 し………駅徒歩5分以内の物件 駅 直 結………地下階やデッキ等で地下街や駅に繋がっている物件 大通り面す………国道、他地方主要道に面している物件 金融機関近し………銀行・郵便局等の金融機関が徒歩5分以内の物件 新   築………築1年以内で未入居の物件 築   浅………竣工後5年以内の物件 大型ビル………延床面積3,000坪以上の物件 駐車場あり………ビル内に駐車場があり、現在空きのある物件 部屋形よし………整形もしくは無柱で使い勝手の良い物件

OAフロア………フリーアクセスフロア、二重床等が敷設されている物件 ブロードバンド………光ファイバー引込等、高度通信化が図られている物件 電気容量………電気容量が30VA/㎡以上確保されている物件 即入居可………現在空室で、即入居が可能な物件 条件相談可………提示条件に交渉の余地のある物件

ワンフロア………ワンフロア・ワンテナントで利用できる物件 天井高し………天井高が2,600mm以上の物件 24時間使用………24時間利用できる物件 機械警備………カードリーダー等機械警備が導入されている物件 個別空調………階別、部屋別の個別空調運転が可能な物件 OAフロア………フリーアクセスフロア、二重床等が敷設されている物件 ブロードバンド………光ファイバー引込等、高度通信化が図られている物件 電気容量………電気容量が30VA/㎡以上確保されている物件 即入居可………現在空室で、即入居が可能な物件 条件相談可………提示条件に交渉の余地のある物件

略記号 の見方

広島

稲荷町 エリア 19坪 (64㎡)

詳しくは web で! 全国の最新物件情報を多数掲載 世界No.1の実績を誇るCBREが提供する、 事業用不動産専門ポータルサイト。

広電「稲荷町」駅 徒歩1分JR「広島」駅 徒歩6分

4階

紙屋町 エリア 31坪 (103㎡)

立町 エリア 62坪 (205㎡)

観音新町

賃  料(/坪)/応相談

共 益 費(/坪)/応相談預託金(/坪)/応相談 税込賃料(/坪)/応相談

税込共益費(/坪)/応相談 コードNo./01-0218

広電「紙屋町東」駅徒歩1分 バス「紙屋町」停徒歩1分

階 賃  料(/坪)/応相談 共 益 費(/坪)/応相談預託金/12ヶ月 税込賃料(/坪)/応 相 談 税込共益費(/坪)/応相談コードNo./05-0030

広電「立町」駅 徒歩1分

3階

賃  料(/坪)/応相談 共 益 費(/坪)/込み 預託金/12ヶ月 税込賃料(/坪)/応相談

税込共益費(/坪)/込み コードNo./05-0037

「八丁堀」駅徒歩6分

4階 賃  料(/坪)/応相談 共 益 費(/坪)/応相談預託金/12ヶ月

税込賃料(/坪)/応 相 談 税込共益費(/坪)/応相談コードNo./07-0070

4階 賃  料(/坪)/応相談

税込賃料(/坪)/

岡山 エリア 21坪

共 益 費(/坪)/込み 預託金/12ヶ月

税込共益費(/坪)/込み コードNo./04-0042

詳しくは web で! 全国の最新物件情報を多数掲載 世界No.1の実績を誇るCBREが提供する、 事業用不動産専門ポータルサイト。

9階 賃  料(/坪)/応相談

預託金/12ヶ月 税込賃料(/坪)/応相談 税込共益費(/坪)/込み コードNo./03-0033

賃  料(/坪)/応相談

7階

税込賃料(/坪)/応相談

保証金・敷金

1 白島・上八丁堀 8126 38 10 8万 9,900 9,000 01-0004

2 白島・上八丁堀 1166 50 9万 9,900 9,000 01-0025

3 八丁堀 9122 37 27 6万 25,300 23,000 02-6002

4 八丁堀 9186 56 27 6万 25,300 23,000 02-6002

5 八丁堀 7316 96 12万 11,019 10,017 02-0033

6 八丁堀 9325 98 27 6万 25,300 23,000 02-6002

7 八丁堀 7 1,241 375 26 4万 24,200 22,000 02-6002

8 八丁堀 8 1,566 474 25 2万 23,100 21,000 02-6002

9 八丁堀 13 1,566 474 25 2万 23,100 21,000 02-6002

10 幟町 5126 38 8 5万 9,350 8,500 03-0039

11 幟町 10198 60 8 5万 9,350 8,500 03-0039

12 幟町

共 益 費(/坪)/込み 預託金/12ヶ月

税込共益費(/坪)/込み コードNo./03-6004

1

2

3

4

5

6

7

8

高松 エリア 125坪 (414㎡)

松山

エリア 275坪 (909㎡)

詳しくは web で! 全国の最新物件情報を多数掲載 世界No.1の実績を誇るCBREが提供する、 事業用不動産専門ポータルサイト。

JR「栗林」駅 徒歩10分

12階

賃  料(/坪)/応相談

税込賃料(/坪)/応相談

共 益 費(/坪)/込み 預託金/10ヶ月

税込共益費(/坪)/込み コードNo./01-0593

伊予鉄「本町一丁目」駅 徒歩1分JR「松山」駅 徒歩11分

賃  料(/坪)/応相談

税込賃料(/坪)/応相談

共 益 費(/坪)/込み 預託金(/坪)/応相談

税込共益費(/坪)/込み コードNo./01-6007

福岡

想定成約賃料は上昇傾向

CBREの調査による、2025年 7~9月期末の福岡主要オフィス ゾーンの空室率は、前期(2025 年4~6月期)よ り0.6ポイント 低下し4.0%、想定成約賃料(共 益費込み) は、0.6%上昇の 16,490円/坪となった。空室 率は4%台で推移し、想定成約賃 料は8期連続の上昇を見せている。

空室率低下の要因として、2025 年下半期は、天神・博多の両エリ アがともに、大型物件の新規供給 予定がなく、新築・既存物件を問 わず、募集空室が順調に消化した ことが挙げられる。特に、「博多」 エリアでは、既存物件を含め、立 ち退きや拡張移転、新規開設で、 堅調な需要が続いており、2025 年唯一の新規供給物件は、ほぼ満 室で竣工した。前述の移転理由か

相場表

種別

FUKUOKA

空室率は4%台で推移。 博多の前向きな需要は堅調。

ら、二次空室が発生しないケース が多く、2026年以降も継続した 需要が見込まれる。そのため、空 室在庫の品薄状態が続いていくと 思われる。「天神」については、 100年に一度と言われる再開発 プロジェクト「天神ビッグバン」 に、興味・関心のあるテナントが 多い。そのため、竣工後、ビルの 全容が明らかになるタイミングで の内覧が増えている。

コワーキングスペース開設が増加 近年、オフィスマーケットが活 発な要因の一つとして、従業員の エンゲージメント向上が挙げられ る。人手不足による人材獲得競争 が繰り広げられる中、オフィス環 境の改善は、新規採用だけでなく、 働く従業員のつなぎ止めにも、非 常に重要な役割を持っている。新 築物件で、既存物件にはなかった

貸室内設備や共用部のサービスが あり、内覧がきっかけで、移転の 検討をスタートするケースも見ら れた。一方、既存物件でも、リニ ューアルを実施し、入居テナント の満足度向上や、新規募集時のリ ーシングに備えた動きがある。

また、新築ビルを中心に、コワ ーキングスペースの開設も増加傾 向である。メリットとしては、契 約の柔軟性や、近年高騰する工事 費用の軽減が挙げられる。コワー キングスペースと言えば、スター トアップ企業向けや、短期プロジ ェクト利用のイメージがあるが、 首都圏を中心に、本社移転の候補 先として選択する企業も増えてき ている。直接契約ではハードルが 高いハイグレードビルへの入居も 比較的しやすく、今後、有効な選 択肢の一つとなっていくだろう。 福岡支店 百枝 あずさ

賃料(共益費込み)

需給の動向

空室率推移 博多駅前 坪当たり

立ち退き移転に加えて新規・拡張移転ニーズが継続しており、新 築・築浅、大型空室を中心に引き合いが強い。

空室は消化傾向が続く。予算感や面積確保の関係から、東比恵方 面まで広げて検討する案件も散見。

呉服町

天神 坪当たり 20,000円 ~

赤坂大名 坪当たり 15,000円 18,000円

北九州小倉

博多・天神中心部より割安感のあるエリアではあるが、立地・駐 車場不足の観点から、空室消化は進んでいない。

新築ビルの竣工により空室率は一時的に上昇するも、拡張・環境 改善を目的とした移転で空室消化が進む。

天神中心部より割安感のある物件を中心に引き合いがあり。徐々 に空室消化が進んでいる。

新築物件の空室消化は進んでいる。既存物件は、小倉駅周辺の空 室が減少傾向にあるが、駅徒歩10分以上ある物件は苦戦。

円 市内は空室がそれなりにある状況に変わりないが、市外の空き倉庫 が徐々に消化され始めているため、市内の倉庫へ検討が及ぶと予想。

空室率推移凡例  =上昇  =やや上昇  =横ばい  =やや低下  =低下 ※物件検討時の予算の目安です。詳しくはシービーアールイー㈱社員におたずねください。 文中の空室率については、2014年3月期より、データ算出の対象となるオフィスビルを、原則として延床面積1,000坪以上、かつ新耐震基準に準拠した物件に変更しました。

築港出入口

福岡国際センター

呉服町

千代県庁口

福岡県庁

昭和通り 明治通り

天神

西鉄福岡 (天神)

岩田屋 天神中央 公園

中洲川端

櫛田神社 ゲイツ 大丸

櫛田神社前

博多区役所

THEBASICSFUKUOKA

薬院

薬院大通

九州の玄関口・博多駅至近、徒歩3分の好立地。

多様な働き方を支援する野村不動産の

「H¹O(エイチワンオー)

」が満を持して九州初進出!

大規模再開発により街の機能が更新され、国内外から多くの企業が 集積し、活況を呈する博多エリア。2025 年 12 月、この地に野村不 動産のサービス付き小規模オフィス「H¹O 博多駅前」が、同ブラン ドとしては初の九州進出を果たす。

JR 各線、新幹線、地下鉄が乗り 入れる博多駅から徒歩3分の交通至便な地に竣工する「H¹O 博多駅前」 は、福岡空港へは地下鉄で直通5分と、国内・海外への出張に即応可 能な拠点。九州のビジネスハブとしての機能を最大限に活用できる、 まさに“都市を自在に駆ける”フットワークを実現している。

地上7階建の建物には、個室は3名から10名用を中心に、多様なサ イズのオフィスを展開。開閉可能な窓をしつらえた開放的なオフィス 空間としている。特筆すべきは空調設備であり、フロア一括制御では なく全室で個別空調を採用した。一人ひとりのワーカーの快適性を追 求した執務環境が、高い生産性を生み出す。2階に整備された共用ラ ウンジは、気分や用途で使い分けできる。Web 会議用の個室や会議 室も完備。さらに Wi-Fi と電源を備えた屋上テラスでは、開放的な環 境でのワークも可能とするなど、働き方の幅を広げる空間が用意され ている。

有人受付による来客対応や郵便物受け取り、ルームクリーニングサー ビスも提供され、ワーカーは本来のコア業務に集中できる。また、企 業の事業継続において不可欠なセキュリティ対策も万全。IC カード に加え、生体認証(顔認証)によるキーレスエントリーを導入し、エ ントランスから個室に至るまで多段階のセキュリティで、24 時間

365日、高度な安全性 を確保する。防犯カメ ラによる常時監視体制 も敷かれ、機密情報を 扱う企業も安心して事 業に専念できる。  九州初進出の H¹O ブランドとして、幅広 いニーズに応える 「H¹O 博多駅前」。ス タートアップの拠点か ら大企業の支店・支社 利用まで、多様化する 働き方の受け皿として、博多に新たなビジネスの潮流を生み出すはずだ。

H¹O 博多駅前

建物概要 ●所在地/福岡県福岡市博多区博多駅前2-4-2●構造/鉄骨造●規模/地上7階建●事業主 /野村不動産株式会社●運営会社/株式会社 Zero-Ten Park ●竣工/2025年12月(予定) ●交通/ JR 九州線・福岡市地下鉄博多駅徒歩3分 お問い合わせ先 野村不動産株式会社 TEL.0120-888-425 株式会社 Zero-Ten Park TEL.092-600-7570

九州の二大都市圏を結ぶ物流の要衝・古賀市に 優れたオペレーションの柔軟性・効率性を実現した

新時代の物流拠点が2026年春、誕生!

九州経済をけん引する福岡都市圏と北九州都市圏。この二大経済圏 のほぼ中間に位置し、古くから交通の要衝として栄えてきたのが福岡 県古賀市である。市内を九州自動車道が縦貫し、周辺には食品や自動 車関連をはじめとする工業団地が点在。近年では新たな産業用地の開 発も活発化しており、企業の集積地として、また九州全域を視野に入 れた広域配送のハブ拠点として、その戦略的重要性は増す一方となっ ている。

このような中、2026年春の竣工を目指し、新たな物流の未来を切 り拓く拠点として期待されているのが「古賀ロジスティクスセンター」

古賀ロジスティクスセンター 周辺地図

だ。九州自動車道「古賀 IC」まで約 3 5km(車で約 6 分)と、九州 の主要幹線道へ即座にアクセスできる好立地にあり、九州北部におけ る広域配送のリードタイム短縮と輸送コストの最適化に、貢献し得る 物件と言える。

延床面積約5 3万㎡を誇る地上2階建の同施設の特徴は、北側を高 床式、南側を低床式としたハイブリッド型のトラックバースを採用し ている点だ。これにより、様々な荷役方法・車両に対応可能となり、 オペレーションの柔軟性・効率性を最大化。また、梁下有効高 5,500mm の広大な庫内空間と、重量物にも対応可能な床荷重は、 周辺に集積する自動車部品や機械類などを扱うテナントにとっても理 想的なスペックとなっている。

さらに、最大8区画に分割対応が可能であり、大規模な単一拠点と しての活用から、スタートアップ企業の小規模な利用まで、あらゆる 事業規模にフィットする。戦略的な立地、多様なニーズに応える先進 的な施設仕様、そして企業の成長を支える柔軟性。これらすべてを兼 ね備えた「古賀ロジスティクスセンター」は、九州における次世代の ロジスティクスを担う中核拠点として、地域経済のさらなる活性化に 寄与していくことだろう。

古賀ロジスティクスセンター

建物概要 ●所在地/福岡県古賀市玄望園●構造/鉄骨造(一部 SRC 造)●規模/地上2階建●敷地面積 / 42,976 08 ㎡(13,000 26 坪)●延床面積/ 53,168 92 ㎡(16,083 59 坪)●竣工/ 2026年(令和8年)4月末(予定)●交通/九州自動車道古賀 IC 約3 5km、JR 古賀駅約5 5km お問い合わせ先 シービーアールイー株式会社

博多祇園 NKビル

建物概要

所在地 福岡県福岡市博多区冷泉町4 -17

交通 地下鉄祇園駅徒歩 2 分

構造 鉄骨造

規模 地上 8 階

延床面積 4, 327 53㎡(1, 309 11坪)

竣工 2018 年11月

空調 個別空調

エレベーター 2基

駐車場 立体駐車(タワー・機械式)

床仕様 OAフロア(H=100 ㎜)

» 九州の中心博多、天神、福岡空港へ快適アクセス

» 多様化するオフィスや組織の変化にも柔軟に対応 テーマに合わせたレイアウトで快適な環境を構築

テナント募集

募集階面積賃料(/坪)敷金・保証金共益費(/坪) 8F 127 30 ㎡ (38.50 坪) 18,700 円 (税抜17,000 円)

(仮称)N-base 福岡新宮

» 福岡市に近接した九州における交通の要衝

» 環境配慮の観点から太陽光発電設備を設置 また、BCP 対応として非常用発電設備の導入を計画

テナント募集

募集階面積賃料敷金・保証金共益費

1-5 階 16,656 86 坪相談相談相談

周辺地図

建物概要

所在地 福岡県糟屋郡新宮町的野755 -1

交通 九州自動車道古賀 ICより車で6分(3 5km) 福岡ICより車で約15分(約15km)

構造 鉄骨造

規模 地上 5 階

延床面積 70,231 76㎡(約21,266 24 坪)

竣工 2027年 4月(予定)

駐車場 計画台数150 台

お問い合わせ先

媒 介

大名町ビル

所在地

テナント募集

募集階面積賃料敷金・保証金

1F 352 15㎡ (106.52坪) 相談 12 ヶ月

2F 124.28 ㎡ (37.59 坪) 相談 12 ヶ月

7F 591 66㎡ (178 97坪) 相談 12 ヶ月

建物概要

所在地 福岡県福岡市中央区大名 2-12- 8

交通 地下鉄赤坂駅徒歩1分

構造 鉄骨造

規模 地上11階

延床面積 7,672 25㎡( 2, 316 22 坪)

竣工 2024 年1月

空調 個別空調

エレベーター 3 基

駐車場 あり

床仕様 OAフロア

天神住友生命 FJビジネスセンター

住所

設備 その他

福岡市博多区

駅 徒 歩 5分 オフィス 12F

住所 福岡県福岡市博多区中洲中島町2-3 名称 福岡フジランドビル

面積

設備

㎡ 賃料 17,600円(税抜16,000円) 共益 込み

坪 敷金 10ヶ 月 貸主 ㈱フジランド 092-271-4070

その他 備考

■地下鉄空港線中洲川端駅近く■大型オ フィスビル■個別空調■OAフロア■機 械警備■貸会議室あり■コワーキングス ペースあり

住所 福岡県福岡市博多区冷泉町5-32 名称 オーシャン博多ビル

面積 659㎡ 賃料 17,600円(税抜16,000円) 共益 込み

199坪 敷金 12ヶ 月 貸主 大洋地所㈱ 092-262-3011 設備 その他

備考

■地下鉄空港線利用可■地上8階、地下 1階建■OAフロア■個別空調■分割相 談

住所 福岡県福岡市博多区店屋町2-29 名称 iGS博多ビル

面積 162㎡ 賃料 18,700円(税抜17,000円) 共益 込み 49坪 敷金 10ヶ 月 貸主 アイシグリーンシステム㈱ 092-575-4519

設備 その他 備考 ■築浅物件■地上8階建■OAフロア■ 貸会議室完備(無料)

備考

■地下鉄祇園駅徒歩1分、地下鉄櫛田神 社前駅徒歩5分、JR・地下鉄博多駅徒歩 7分■貸ホール、貸会議室・レストラン あり

福岡市早良区

住所 福岡県福岡市早良区高取1-1-22 名称 田中ビル 面積 99㎡ 賃料 相談 共益 相談

設備 その他 備考 ■地下鉄空港線利用可

略記号 の見方

駅   前………徒歩1分以内及び駅前ロータリー面す物件 駅 近 し………駅徒歩5分以内の物件 駅 直 結………地下階やデッキ等で地下街や駅に繋がっている物件 大通り面す………国道、他地方主要道に面している物件 金融機関近し………銀行・郵便局等の金融機関が徒歩5分以内の物件 新   築………築1年以内で未入居の物件 築   浅………竣工後5年以内の物件 大型ビル………延床面積3,000坪以上の物件 駐車場あり………ビル内に駐車場があり、現在空きのある物件 部屋形よし………整形もしくは無柱で使い勝手の良い物件

設備

佐賀 駅 徒 歩 9分 オフィス 2F

5,500円(税抜5,000円) 共益 2,200円(税抜2,000円) 42坪 敷金

佐賀駅より徒歩9分■鉄筋コンク リート造■地上7階建■貸会議室あり■ リフレッシュルームあり

ワンフロア………ワンフロア・ワンテナントで利用できる物件 天井高し………天井高が2,600mm以上の物件 24時間使用………24時間利用できる物件 機械警備………カードリーダー等機械警備が導入されている物件 個別空調………階別、部屋別の個別空調運転が可能な物件 OAフロア………フリーアクセスフロア、二重床等が敷設されている物件 ブロードバンド………光ファイバー引込等、高度通信化が図られている物件 電気容量………電気容量が30VA/㎡以上確保されている物件 即入居可………現在空室で、即入居が可能な物件 条件相談可………提示条件に交渉の余地のある物件

博多駅 周辺エリア 236坪 (781㎡)

博多駅

周辺エリア 1,187坪 (3,926㎡)

天神 エリア 334坪

詳しくは web で! 全国の最新物件情報を多数掲載 世界No.1の実績を誇るCBREが提供する、 事業用不動産専門ポータルサイト。

地下鉄「博多」駅 徒歩5分JR「博多」駅 徒歩7分

6階

賃  料(/坪)/応相談

共 益 費(/坪)/込み 預託金(/坪)/応相談 税込賃料(/坪)/応相談

税込共益費(/坪)/込み コードNo./02-6038

JR「博多」駅 徒歩2分地下鉄「博多」駅 徒歩2分

12階

賃  料(/坪)/応相談

共 益 費(/坪)/応相談預託金(/坪)/応相談 税込賃料(/坪)/応相談

税込共益費(/坪)/応相談 コードNo./02-6035

地下鉄「天神」駅 徒歩1分地下鉄「天神南」駅 徒歩5分

18階

天神 エリア 382坪 (1,266㎡)

天神 エリア

574坪 (1,899

賃  料(/坪)/応相談

共 益 費(/坪)/応相談預託金(/坪)/応相談 税込賃料(/坪)/応相談

税込共益費(/坪)/応相談 コードNo./01-6146

地下鉄「天神」駅 徒歩3分地下鉄「赤坂」駅 徒歩5分

9階

賃  料(/坪)/応相談

共 益 費(/坪)/応相談預託金(/坪)/応相談 税込賃料(/坪)/応相談 税込共益費(/坪)/応相談 コードNo./01-6151

徒歩1分西鉄「福岡天神」駅 徒歩3分 11階 賃  料(/坪)/応相談

共 益 費(/坪)/応相談預託金(/坪)/応相談 税込賃料(/坪)/応相談

税込共益費(/坪)/応相談 コードNo./01-6003

No. エリア 階

1 博多駅前 B1259 78 20 4万 18,700 17,000 02-0099

2 博多駅前 2320 97 27 6万 25,300 23,000 02-0142

3 博多駅前 4392 119 21万 19,250 17,500 02-0067

4 博多駅東 6291 88 15万 16,500 15,000 03-6032

5 博多駅東 5300 91 10 8万 9,900 9,000 03-0292

6 博多駅東 10301 91 19 2万 17,600 16,000 03-0025

7 博多駅東 4417 126 5 7万 10,450 9,500 03-6071

8 博多駅東 4564 171 19 2万 17,600 16,000 03-0183

9 博多駅東 3758 229 18万 16,500 15,000 03-0203

10 呉服町 12275 83 16万 17,600 16,000 01-0056

11 呉服町 3625 189 19万 20,900 19,000 01-6032

12 呉服町 9642 194 10 2万 18,700 17,000 01-6032

13 呉服町 10642 194 10 2万 18,700 17,000 01-6032

14 呉服町 6659 199 19 2万 17,600 16,000 01-0090

15 呉服町 2667 202 11万 12,100 11,000 01-0107

16 呉服町 4 1,387 420 6万 6,600 6,000 01-0161

17 呉服町 6 1,713 518 6万 6,600 6,000 01-0161

18 天神 5212 64 10 8万 19,792 17,993 01-6176

19 天神 6212 64 10 8万 19,792 17,993 01-6176

20 天神 7212 64 10 8万 19,792 17,993 01-6176

21 天神 8212 64 10 8万 19,792 17,993 01-6176

22 天神 9212 64 10 8万 19,792 17,993 01-6176

23 天神 10215 65 13 2万 24,185 21,986 01-6176

24 天神 6224 68 28 8万 26,400 24,000 01-0024

25 天神 15235 71 19 8万 18,150 16,500 01-0111

26 天神 7281 85 21 6万 19,800 18,000 01-0068

27 天神 8285 86 22 8万 20,900 19,000 01-0006

28 天神 2322 97 21 6万 19,800 18,000 01-0205

29 天神 3348 105 22 5万 24,750 22,500 01-0131

30 天神 2349 105 27 5万 30,250 27,500 01-0131

貸室面積 保証金・敷金 (坪当たり) 賃料 (坪当たり) 賃料 (税抜) コード No. ㎡坪数

31 天神 B1369 112 27 5万 30,250 27,500 01-0131

32 天神 3570 172 20万 22,000 20,000 01-0005

33 天神 5631 191 22 8万 20,900 19,000 01-0006

34 赤坂・大名 3188 57 5 1万 18,700 17,000 02-6016

35 赤坂・大名 4188 57 5 1万 18,700 17,000 02-6016

36 赤坂・大名 6188 57 5 1万 18,700 17,000 02-6016

37 赤坂・大名 5192 58 13 8万 12,650 11,500 03-0041

38 赤坂・大名 5204 62 26万 28,600 26,000 02-6056

39 赤坂・大名 2249 75 22万 24,200 22,000 02-0393 40 赤坂・大名 3249 75 22万 24,200 22,000 02-0393

3251 76 22 2万

赤坂・大名 5251 76 22 2万 20,350 18,500 02-6160 44 赤坂・大名 6251 76 22 2万 20,350 18,500 02-6160 45 赤坂・大名 9251 76 22 2万 20,350 18,500 02-6160

赤坂・大名 1357 108 19 8万 18,150 16,500 04-0019 48 赤坂・大名 8363 110 13 9万 12,760 11,600 04-0001 49 赤坂・大名 3589 178 25万 27,500 25,000 02-0009

渡辺通・薬院

九州主要都市

北九州

エリア 163坪 (541㎡)

熊本

エリア 127坪 (420㎡)

長崎

エリア 72坪 (240㎡)

詳しくは web で! 全国の最新物件情報を多数掲載 世界No.1の実績を誇るCBREが提供する、 事業用不動産専門ポータルサイト。

JR「小倉」駅 徒歩5分

4階

賃  料(/坪)/16,000円共 益 費(/坪)/込み 預託金/12ヶ月 税込賃料(/坪)/17,600円 税込共益費(/坪)/込み コードNo./02-6008

市電「水道町」電停 徒歩3分

3階

賃  料(/坪)/応相談

税込賃料(/坪)/応相談

JR「長崎」駅 徒歩1分

6階

鹿児島 エリア 155坪 (513㎡)

那覇

エリア

賃  料(/坪)/応相談

税込賃料(/坪)/

共 益 費(/坪)/込み 預託金/12ヶ月

税込共益費(/坪)/込み コードNo./01-6052

共 益 費(/坪)/応相談預託金/12ヶ月

税込共益費(/坪)/応相談 コードNo./01-6005

バス「上之園町」停 徒歩1分市電「都通」駅 徒歩4分

7階

255坪 (844㎡)

賃  料(/坪)/応相談

税込賃料(/坪)/応相談

バス「第一天久」停 徒歩2分

3階

賃  料(/坪)/応相談

税込賃料(/坪)/応相談

1 小倉北区 2141 43 4 6万 6,380 5,800 01-0037

2 小倉北区 4150 45 1 7万 6,160 5,600 02-0032

3 小倉北区 5151 46 7 8万 10,780 9,800 01-0015

4 小倉北区 3156 47 3 8万 5,280 4,800 01-0048

5 小倉北区 12168 51 10 4万 11,440 10,400 01-0035

6 小倉北区 4197 60 3 4万 6,160 5,600 02-0032

7 小倉北区 4203 61 3 8万 5,280 4,800 01-0048

8 小倉北区 7219 66 3 4万 6,160 5,600 02-0032

9 小倉北区 6257 78 10 2万 9,350 8,500 01-0057

10 小倉北区 2262 79 4 6万 6,380 5,800 01-0037

11 小倉北区 4271 82 2 7万 4,950 4,500 02-0008

12 小倉北区 3292 88 4 6万 6,380 5,800 01-0037

13 小倉北区 B1314 95 10 4万 9,570 8,700 02-0032 14 小倉北区 2332 100 2

02-0012 17 小倉北区 5382 116 5 4万 7,480 6,800 01-0015 18 小倉北区 8610 184 2 7万 4,950 4,500 02-0008

19 熊本市 B1174 53 7 8万 7,150 6,500 01-0103

20 熊本市 1200 61 99 2万 54,546 49,587 01-0123

21 熊本市 3215 65 5 4万 9,900 9,000 01-0063

22 熊本市 2271 82 5 7万 10,479 9,526 01-0005

23 熊本市 1278 84 7 1万 13,088 11,898 01-0005

24 熊本市 3300 91 5 8万 10,551 9,592 01-0005

25 熊本市その他 1262 79 9 6万 8,800 8,000 02-0022

26 久留米市 3274 83 4 2万 7,700 7,000 01-0001

27 久留米市 B1354 107 5 4万 9,900 9,000 01-0048

28 久留米市 6379 115 4 8万 8,800 8,000 01-0004

29 久留米市 1490 148 5 9万 10,806 9,824 01-0004

30 久留米市 7821 248 4 8万 8,800 8,000 01-0004

共 益 費(/坪)/応相談預託金/12ヶ月

税込共益費(/坪)/応相談 コードNo./01-6013

共 益 費(/坪)/応相談預託金/6ヶ月

税込共益費(/坪)/応相談 コードNo./01-6024

No. エリア 階 貸室面積 保証金・敷金 (坪当たり) 賃料 (坪当たり) 賃料 (税抜) コード No. ㎡坪数

31 佐賀市 4187 57 3 9万 7,150 6,500 01-0047

32 佐賀市 1217 66 10 8万 9,900

01-0047 34 長崎市 4143 43 3 7万 6,845 6,223 01-6026

物流施設・ 配送センター

凡 例

※記載の数字は小数点以下を切り捨てて掲載しています。

東京都大田区

物件コード:

募集面積 (坪/㎡)

略記号

主な交通アクセス

東京モノレール/流通センター駅徒歩 分

首都高速 号羽田線/平和島出入口 階

坪 ㎡ ▢ 賃 相談

▢ 用 準工業地域

▢ 使 倉庫

…保証金 保 …竣工年 竣

募集階

▢ 保 ヶ月

▢ 竣 2025年 ▢ 入 2026年相談

…入居日 入

…月額賃料 賃 *複数の用途地域にかかる場合は、 主な用途地域を掲載しています。

…用途地域* 用

…使用用途 使

湾岸部エリア 坪当たり

内陸部エリア

南部エリア

北部エリア

湾岸部エリア

移転・統合により空室の変動はあるものの、依然として空室率は低 水準。物件確保には決断スピードが求められる。

需給バランスが引き締まり、タイトな状況が続いている。特にマル チテナント型物流施設の供給は限られ、不足感が出始めている。

各階接車可能なマルチ型の空室率は下がっているが、依然として供 給過多の状態。一方で、マルチ型の冷凍冷蔵倉庫の需要は底堅い。

2023年~2024年に大量供給があった座間・厚木の空室消化が進ん でいる。特に1,000坪以下で分割ができる物件への引き合いが多い。

三郷の需要は底堅く、空室は徐々に減ってきている。戸田・川口でも、 賃料条件を緩和する動きが出てきた関係で一部空室の消化が進んだ。

圏央道で空室消化が進み、今年でかなり空室率は低下する見込み。今後の新規物件 は軒並み賃料設定が高く、今のうちに移転や新規開設する動きが出てきている。

坪当たり 4,400円 6,200円 内陸に比べ新規開発が少なく、空室率は低下し相場上昇傾向は依然とし て続いている。竣工前の内定率も上昇し、底堅い需要が確認できる。

内陸部エリア 坪当たり 3,700円 ~ 4,800円

前期でやや上昇した賃料は横ばい。築浅の空室消化が進む。年末に向け テナントの動きが活発化し、大型成約により空室率が低下する見込み。

空室率推移凡例 = 上昇 = やや上昇

北海道

札幌市 | 北海道

お問い合わせは CBRE 札幌支店 011-231-6931

札幌市白石区 JR 函館本線/厚別駅

物件コード: 101104026006

道央自動車道/大谷地 IC1km

2,457 坪 8,123 ㎡ 相談 相談

準工業地域 倉庫 2022 年 即入居可

札幌市白石区 JR 函館本線/白石駅

物件コード: 101104036006

道央自動車道/札幌 IC0.8km

5,137 坪 16,984 ㎡ 相談 相談

準工業地域 事務所兼倉庫 2023 年 即入居可

札幌市西区 JR 函館本線/発寒中央駅徒歩19 分

物件コード: 101107026013

札樽自動車道/新川 IC2km

2,005 坪 6,628 ㎡ 相談 相談

準工業地域 倉庫・事務所 2023 年 即入居可

札幌市手稲区 JR 函館本線/発寒駅

物件コード: 101109016010

札樽自動車道/新川 IC3.5km

3,354 坪 11,090 ㎡ 相談 相談

準工業地域 倉庫 2003 年 即入居可

東北

仙台市 | 宮城県 | 青森県 | 岩手県

秋田県 | 山形県 | 福島県

お問い合わせは CBRE 本社   03-5288-9520

仙台市宮城野区 JR 仙石線/多賀城駅

物件コード: 104102035448

仙台東部道路/仙台港北 IC3.5km

4,993 坪 16,507 ㎡ 相談 相談

工業専用地域 倉庫・バース 2017年 即入居可

仙台市宮城野区 JR 仙石線/福田町駅徒歩14分

物件コード: 104102036021

国道 4号仙台バイパス 苦竹 IC1.5km

2,532 坪 8,371 ㎡ 相談 相談

工業専用地域 倉庫・事務所 2024 年 即入居可

仙台市宮城野区 JR 仙石線/多賀城駅徒歩 22分

物件コード: 104102036029

仙台東部道路/仙台港北 IC2.6km

2,060 坪 6,811 ㎡ 相談 相談

工業専用地域 倉庫・バース 2026 年 2026 年7月相談

名取市 仙台空港線/杜せきのした駅徒歩12分 1~2階 仙台北部道路/名取中央スマートIC0.9km

物件コード: 104207016001

2,268 坪 7,498 ㎡ 相談 相談

準工業地域 倉庫・バース 2024 年 即入居可

岩沼市 仙台空港線/仙台空港駅 1 2階 仙台東部道路/仙台空港 IC3.4km

物件コード: 104211016004

2,007 坪 6,636 ㎡ 相談 相談

工業専用地域 倉庫・バース 2024 年 即入居可

岩沼市 仙台空港線/仙台空港駅 1~4 階 仙台東部道路/仙台空港 IC3.4km

物件コード: 104211016008

1,378 坪 4,556 ㎡ 相談 相談

物流施設・配送センター

都心

お問い合わせは CBRE 本社   03-5288-9520

東京都港区 ゆりかもめ/芝浦ふ頭駅徒歩12分 5 階

物件コード: 113103240326

25 坪 82 ㎡ 相談 6ヶ月

準工業地域 倉庫 1986 年

北海道・宮城・東京

東京都港区 ゆりかもめ/芝浦ふ頭駅徒歩

物件コード:

東京

文京区 | 台東区 | 墨田区 | 江東区

お問い合わせは CBRE 本社   03-5288-9520

東京都江東区

階 首都高速 7号小松川線/錦糸町出入口 0.4km

物件コード: 113108046095 503 坪 1,662 ㎡ 相談 相談

準工業地域 倉庫・事務所 2025 年 即入居可

東京都江東区 JR 京葉線/越中島駅徒歩11分 4 階 首都高速 9 号深川線/枝川出口 0.7km

物件コード: 113108076101

3,055 坪 10,102 ㎡ 相談 相談

準工業地域 倉庫・事務所 2022 年 即入居可

東京都江東区 JR 京葉線 /新木場駅

物件コード: 113108095140

首都高速湾岸線/新木場出入口3.5km

1,015 坪 3,356 ㎡ 相談 相談

工業専用地域 倉庫・事務所 1994 年 即入居可

東京都江東区 JR 京葉線/新木場駅

物件コード: 113108096270

2階 首都高速湾岸線/新木場出入口1.1km

1,250 坪 4,133 ㎡ 相談 相談

工業専用地域 倉庫 2007年 2025 年12月

東京

品川区 | 目黒区 | 大田区 | 世田谷区 | 中野区

杉並区 | 豊島区 | 北区 | 荒川区

お問い合わせは CBRE 本社   03-5288-9520

東京都品川区 東京モノレール/天王洲アイル駅徒歩7分 1 4 階 首都高速湾岸線/大井出入口1.9km

物件コード: 113109020070

550 坪 1,818 ㎡ 660 万円(税抜600 万円) 10ヶ月

商業地域 倉庫・事務所 2001年 即入居可

東京都大田区 東京モノレール/流通センター駅 1~5 階 首都高速湾岸線/大井南出入口3.8km

物件コード: 113111010242

1,222 坪 4,041 ㎡ 740 万円(税抜672 万円)

工業専用地域 倉庫・事務所 1989 年 即入居可

最新情報は web で! www.cbre-propertysearch.jp

業界No.1の実績を誇るCBREが提供する、事業用不動産専門ポータルサイト。

東京都大田区 東京モノレール/昭和島駅徒歩12分 1~4 階

物件コード: 113111016010

首都高速1号羽田線/平和島出入口5km

3,451 坪 11,408 ㎡ 相談 相談

工業専用地域 倉庫・バース 2024 年 即入居可

東京都大田区 東京モノレール/昭和島駅徒歩15 分 1 4 階

物件コード: 113111016020

首都高速1号羽田線/平和島出入口3km

3,838 坪 12,689 ㎡ 相談 6ヶ月

工業専用地域 倉庫・バース 2024 年 即入居可

東京都大田区 東京モノレール/流通センター駅徒歩 5 分 1~ 6 階

物件コード: 113111016034

首都高速1号羽田線/平和島出入口

1,708 坪 5,647 ㎡ 相談 3ヶ月

準工業地域 倉庫・バース 2004 年 2026 年2月

東京都大田区 京急本線/六郷土手駅徒歩 8分

物件コード: 113111115440

首都高速1号羽田線/羽田出入口3.6km

2,961 坪 9,789 ㎡ 相談 6ヶ月

工業地域 倉庫・バース 2025 年 即入居可

東京都北区 都電荒川線/栄町駅徒歩1分 1~3 階 首都高速中央環状線/王子南出入口

物件コード: 113117025083

311 坪 1,030 ㎡ 274万円(税抜249 万円) 6ヶ月

倉庫・事務所 1966 年 即入居可

東京都荒川区 東京メトロ日比谷線/三ノ輪駅徒歩 5 分 1 5 階 首都高速1号上野線/入谷出入口

物件コード: 113118016009

146 坪 485 ㎡ 110 万円(税抜100 万円) 相談

準工業地域 倉庫・事務所 1986 年 即入居可

東京

板橋区 | 練馬区 | 足立区 | 葛飾区 | 江戸川区

お問い合わせは CBRE 本社   03-5288-9520

東京都板橋区 都営三田線/西台駅徒歩10 分 4 階

物件コード: 113119086004

首都高速 5 号池袋線/中台出入口2.7km

1,519 坪 5,024 ㎡ 相談 相談

工業専用地域 倉庫・バース 2024 年 即入居可

東京都板橋区 都営三田線/西高島平駅徒歩 4分

物件コード: 113119096003

首都高速 5 号池袋線/高島平出入口2.5km

490 坪 1,619 ㎡ 270 万円(税抜245 万円) 3ヶ月

準工業地域 倉庫 2025 年相談

東京都足立区 東京メトロ千代田線/北綾瀬駅徒歩25 分 1 2階

物件コード: 113121015440

206 坪 684 ㎡ 相談 相談

準工業地域 倉庫 1980 年 即入居可

東京都足立区 日暮里・舎人ライナー/舎人公園駅徒歩12分 1~5 階 首都高速川口線/加賀出入口 0.6km

物件コード: 113121055485

3,189 坪 10,544 ㎡ 相談 相談

準工業地域 倉庫・バース 2018 年 即入居可

東京都葛飾区 JR 総武線/新小岩駅徒歩13分 1 3 階 首都高速中央環状線/平井大橋出入口

物件コード: 113122016006

488 坪 1,615 ㎡ 550 万円(税抜500 万円) 12ヶ月 倉庫・事務所 2026 年9月

東京都葛飾区 京成押上線/京成立石駅 2階

東京都江戸川区 JR 京葉線/葛西臨海公園駅徒歩13分 3 階 首都高速湾岸線/葛西出入口 0.7km

物件コード: 113123036002

1,206 坪 3,989 ㎡ 相談 相談

準工業地域 倉庫・事務所 2022 年 2025 年相談

東京

東京都下

お問い合わせは CBRE 本社   03-5288-9520

八王子市 JR 八高線/北八王子駅徒歩12分

物件コード: 113201055255

中央自動車道/八王子 IC4km

2,333 坪 7,713 ㎡ 相談 相談

工業専用地域 倉庫・バース 2016 年 2027年7月

八王子市 JR 中央本線/八王子駅

中央自動車道/八王子 IC1.4km

物件コード: 113201056007 1,077 坪 3,560 ㎡ 相談 相談 倉庫・バース 2024 年 即入居可 立川市

物件コード: 113202050055

2,759 坪

物件コード: 113202056001

2,584 坪 8,542 ㎡ 相談 相談

倉庫・バース 2020 年 即入居可

府中市 JR 武蔵野線/北府中駅徒歩10 分

物件コード: 113206036002

中央自動車道/国立府中 IC3.6km

5,259 坪 17,382 ㎡ 相談 相談

工業地域 倉庫・バース 2024 年 即入居可

日野市 JR 中央本線/豊田駅徒歩12分 4 階 中央自動車道/八王子 IC5km

物件コード: 113212015024

1,982 坪 6,553 ㎡ 相談 6ヶ月

工業地域 倉庫・バース 2015 年 2026 年2月

日野市 JR 八高線/小宮駅

物件コード: 113212016013

中央自動車道/八王子 IC5km

1,300 坪 4,298 ㎡ 755万円(税抜687 万円) 4ヶ月

工業地域 倉庫・事務所 2000 年 2025 年相談

東村山市 西武新宿線/久米川駅

物件コード: 113213015032

関越自動車道/所沢 IC8.6km

445 坪 1,473 ㎡ 2,108 万円(税抜1,916万円) 4ヶ月

準工業地域 倉庫 1971年 2025 年12月

首都圏

千葉市 | 市川市 | 柏市 | 千葉県 | 茨城県

お問い合わせは CBRE 本社   03-5288-9520

物件コード: 113122068355

首都高速中央環状線/平井大橋出入口2.6km

1,753 坪 5,796 ㎡ 相談 相談

工業地域 倉庫・バース

千葉市稲毛区 JR 総武本線/四街道駅 3~4 階 東関東自動車道/千葉北 IC3.1km

物件コード: 112103016003

3,607 坪 11,925 ㎡ 相談 相談

工業地域 倉庫・バース 2020 年 2025 年12月

CBRE 物件検索サイト

最新情報は web で! www.cbre-propertysearch.jp

業界No.1の実績を誇るCBREが提供する、事業用不動産専門ポータルサイト。

千葉市稲毛区 JR 総武本線/四街道駅 2~3 階 東関東自動車道/千葉北 IC3.3km

物件コード: 112103016013

3,340 坪 11,042 ㎡ 相談 相談

工業専用地域 倉庫・バース 2023 年 即入居可

千葉市美浜区 JR 京葉線/千葉みなと駅 1階

物件コード: 112106016015

東関東自動車道/湾岸千葉 IC5km

364 坪 1,203 ㎡ 160 万円(税抜146万円) 2ヶ月

準工業地域 倉庫・事務所 1987年 即入居可

銚子市 JR 総武本線・銚子電鉄/銚子駅徒歩 3分

物件コード: 112202016001

1,374 坪 4,543 ㎡ 550 万円(税抜500 万円) 6ヶ月

準工業地域 倉庫・事務所 1989 年 即入居可

市川市 JR 京葉線/市川塩浜駅徒歩 27分

物件コード: 112203036016

首都高速湾岸線/千鳥町出入口1.1km

4,320 坪 14,283 ㎡ 2,139 万円(税抜1,944 万円) 6ヶ月

工業専用地域 倉庫・事務所 2001年 即入居可

船橋市 JR 京葉線/二俣新町駅徒歩10 分 1

物件コード: 112204045213

京葉道路/船橋 IC1.2km

1,381 坪 4,567 ㎡ 相談 相談

工業専用地域 倉庫・バース 1981年 即入居可

船橋市 JR 京葉線/南船橋駅徒歩 9 分 6 階

物件コード: 112204045214

東関東自動車道/谷津船橋 IC2.2km

2,031 坪 6,717 ㎡ 相談 相談

商業地域 倉庫・バース 2019 年 即入居可

松戸市 JR 常磐線/北松戸駅徒歩 6分 2 3 階

物件コード: 112207026011

東京外環自動車道/三郷南 IC4.2km

4,587 坪 15,163 ㎡ 相談 相談

工業専用地域 倉庫・バース 2023 年 即入居可

松戸市 京成松戸線/みのり台駅徒歩16分 3~4 階

物件コード: 112207026026

東京外環自動車道/松戸 IC4.2km

4,586 坪 15,161 ㎡ 相談 6ヶ月

工業専用地域 倉庫・バース 2024 年 即入居可

野田市 東武野田線/川間駅徒歩15 分 1

物件コード: 112208016020

常磐自動車道/柏 IC12.5km

3,620 坪 11,968 ㎡ 相談 相談

工業地域 倉庫・バース 2023 年 即入居可

柏市 東武野田線/高柳駅

物件コード: 112217036045

常磐自動車道/柏 IC12km

3,735 坪 12,349 ㎡ 相談 6ヶ月

工業地域 倉庫・バース 2024 年 即入居可

市原市 JR 内房線/姉ケ崎駅

館山自動車道/市原 IC 物件コード: 112219016016

694 坪 2,295 ㎡ 相談 相談

工業専用地域 倉庫 2000 年 即入居可

八千代市 東葉高速鉄道/八千代緑が丘駅徒歩10 分 2~3 階

物件コード: 112221016027

3,510 坪 11,605 ㎡ 相談 相談

工業専用地域 倉庫・バース 2026 年 2026 年3月

浦安市 JR 京葉線/新浦安駅 5 階 首都高速湾岸線/浦安出入口3.4km

物件コード: 112227015113

3,267 坪 10,801 ㎡ 相談 相談 準工業地域 倉庫・バース 2022 年 2026 年2月相談

四街道市 JR 総武本線/物井駅

112228016002

2,468 坪 8,161 ㎡ 相談 6ヶ月

物件コード: 112228016009

3 階 東関東自動車道/佐倉 IC6km

物流施設・配送センター

1,185 坪 3,918 ㎡ 相談 相談

準工業地域

物件コード: 112231015015

13分 4 階 東関東自動車道/千葉北 IC18.3km

3,136 坪 10,367 ㎡ 相談 相談

準工業地域 倉庫・バース 2016 年 2026 年8月

印西市 北総線/千葉ニュータウン中央駅徒歩18分 5 階 東関東自動車道/千葉北 IC16.8km

物件コード: 112231015017

1,161 坪 3,841 ㎡ 相談 相談

準工業地域 倉庫・バース 2017年 即入居可

印西市 北総線/印旛日本医大駅徒歩 25 分 1 3 階 東関東自動車道/成田 IC16.4km

物件コード: 112231016016

1,936 坪 6,401 ㎡ 相談 3ヶ月

準工業地域 倉庫・バース 2024 年 即入居可

山武郡芝山町 芝山鉄道/芝山千代田駅

新空港自動車道/新空港 IC

物件コード: 112409016013

1,948 坪 6,442 ㎡ 相談 相談

準工業地域 倉庫・事務所 2002 年 即入居可

下妻市 関東鉄道常総線/大宝駅

首都圏中央連絡自動車道/常総 IC20km

物件コード: 108210016015

2,782 坪 9,198 ㎡ 相談 1ヶ月

市街化調整区域 倉庫・事務所 2025 年 即入居可

牛久市 JR 常磐線/牛久駅

首都圏中央連絡自動車道/牛久阿見 IC7km

物件コード: 108219016001

915 坪 3,025 ㎡ 相談 2ヶ月

工業地域 倉庫・事務所 1972 年 即入居可

つくば市 つくばエクスプレス/みどりの駅徒歩25 分 1~4 階 常磐自動車道/谷田部 IC6km

物件コード: 108220016031

5,154 坪 17,039 ㎡ 相談 相談

工業地域 倉庫・バース 2025 年 即入居可

つくばみらい市 つくばエクスプレス/みらい平駅徒歩18分 1 4 階 常磐自動車道/谷田部 IC7.1km

物件コード: 108235016012

4,661 坪 15,410 ㎡ 相談 相談

準工業地域 倉庫・バース 2025 年 即入居可

小美玉市 JR 常磐線/石岡駅

物件コード: 108236016006

1階 常磐自動車道/石岡小美玉スマートIC9km

554 坪 1,831 ㎡ 相談 3ヶ月 倉庫・事務所 1986 年 即入居可

稲敷郡阿見町 JR 常磐線/牛久駅

物件コード: 108443015004

4 階 首都圏中央連絡自動車道/阿見東 IC0.8km

3,692 坪 12,205 ㎡ 相談 6ヶ月

準工業地域 倉庫・バース 2017年 2026 年4月相談

猿島郡五霞町 東武日光線/幸手駅

物件コード: 108542015005

階 首都圏中央連絡自動車道/五霞 IC1km

3,516 坪 11,623 ㎡ 相談 相談

準工業地域 倉庫・バース 2018 年 即入居可

猿島郡境町 JR 宇都宮線・湘南新宿ライン/栗橋駅 2階

首都圏中央連絡自動車道/境古河 IC1.3km

物件コード: 108546016005

2,870 坪 9,489 ㎡ 相談 6ヶ月

準工業地域 倉庫・バース 2024 年 即入居可

常総市 関東鉄道常総線/小絹駅 1 2階 常磐自動車道/谷和原 IC4km

物件コード: 108211015010

5,572 坪 18,422 ㎡ 相談 6ヶ月

市街化調整区域 倉庫・バース 2014 年 即入居可

CBRE 物件検索サイト

最新情報は web で! www.cbre-propertysearch.jp

業界No.1の実績を誇るCBREが提供する、事業用不動産専門ポータルサイト。

常総市 関東鉄道常総線/三妻駅 1階

物件コード: 108211016018

首都圏中央連絡自動車道/常総 IC

5,200 坪 17,190 ㎡ 相談 相談

準工業地域 倉庫・バース 2023 年 即入居可

首都圏

横浜市 | 神奈川県

お問い合わせは CBRE 本社   03-5288-9520

横浜市中区 JR 京浜東北・根岸線/山手駅 1 6 階 首都高速湾岸線/本牧ふ頭出入口 0.9km

物件コード: 114104115050

2,223 坪 7,351 ㎡ 相談 相談

工業専用地域 倉庫・バース 2000 年 2026 年4月

横浜市中区 JR 京浜東北・根岸線/根岸駅

物件コード: 114104116001

首都高速湾岸線/南本牧ふ頭 IC

1,379 坪 4,557 ㎡ 相談 相談

準工業地域 倉庫 2019 年 2026 年3月

横浜市鶴見区 京急本線/生麦駅徒歩 30 分 4 階

物件コード: 114101015199

首都高速湾岸線/大黒ふ頭出入口2.5km

4,236 坪 14,005 ㎡ 相談 相談

工業専用地域 倉庫・バース 2014 年 2026 年2月

横浜市金沢区 金沢シーサイドライン/幸浦駅徒歩 6分 1~4 階

物件コード: 114108016026

横浜横須賀道路/並木 IC1.1km

4,690 坪 15,504 ㎡ 相談 相談

工業地域 倉庫・バース 2026 年 2026 年1月

横浜市戸塚区 JR 東海道本線/戸塚駅 4 階

物件コード: 114110016010

横浜新道/上矢部 IC4km

2,026 坪 6,700 ㎡ 相談

工業地域 倉庫・バース 2022 年 2026 年1月

横浜市都筑区 JR 横浜線/小机駅

物件コード: 114118056013

首都高速湾岸線/横浜港北 IC0.2km

1,747 坪 5,775 ㎡ 相談 相談

工業専用地域 倉庫・事務所 2023 年 即入居可

川崎市川崎区 JR 京浜東北・根岸線/川崎駅

物件コード: 114131035099

首都高速湾岸線/東扇島出入口2.5km

9,663 坪 31,946 ㎡ 相談 相談

商業地域 倉庫・バース 1998 年 2026 年3月

平塚市 小田急小田原線/本厚木駅

物件コード: 114203015092

新東名高速道路/厚木南 IC1.3km

3,821 坪 12,631 ㎡ 相談 相談

準工業地域 倉庫・バース 2022 年 即入居可

小田原市 小田急小田原線/栢山駅 1~2階 小田原厚木道路/小田原東 IC3km

物件コード: 114206016009

2,351 坪 7,775 ㎡ 相談 相談

工業地域 倉庫・事務所 2024 年 即入居可

厚木市 JR 相模線/原当麻駅 1 4 階 首都圏中央連絡自動車道/相模原愛川 IC2km

物件コード: 114212056011

1,697 坪 5,611 ㎡ 相談 相談

工業地域 倉庫・バース 2021年 2026 年10月相談

海老名市 JR 相模線/社家駅徒歩15 分 1階 首都圏中央連絡自動車道/海老名 IC1km

海老名市 JR 相模線/門沢橋駅 1~2階 新東名高速道路 厚木南 IC2.7km

物件コード: 114215016029

1,007 坪 3,330 ㎡ 相談 相談

準工業地域

海老名市 小田急小田原線/海老名駅徒歩17分 1階 首都圏中央連絡自動車道/海老名 IC2.2km

物件コード: 114215016042

3,907 坪 12,915 ㎡ 相談 相談

準工業地域 倉庫・バース 2026 年 2026 年7月予定

座間市 小田急小田原線/相武台前駅徒歩17分 4

物件コード: 114216015055

東名高速道路/横浜町田 IC5.2km

2,068 坪 6,838 ㎡ 相談 相談

工業専用地域 倉庫・バース 2009 年 2026 年

東名高速道路 綾瀬スマートIC2.5km

物件コード: 114218016024

4,491 坪 14,846 ㎡ 相談 相談 工業専用地域 倉庫・バース 2026 年 2026 年3月相談

高座郡寒川町 JR 相模線/寒川駅徒歩17分

物件コード: 114321016007

首都圏中央連絡自動車道/寒川南 IC3.9km

2,520 坪 8,332 ㎡ 相談 相談

準工業地域 倉庫・バース 2023 年 即入居可

足柄上郡中井町 小田急小田原線/秦野駅

物件コード: 114361016005

東名高速道路/秦野中井 IC0.75km

352 坪 1,165 ㎡ 136万円(税抜123 万円) 相談

準工業地域 倉庫 1992 年 2025 年相談

足柄上郡山北町 JR 御殿場線/谷峨駅

物件コード: 114364016001

東名高速道路/大井松田 IC13km

1,033 坪 3,416 ㎡ 相談 相談

無指定 倉庫・事務所 1999 年 即入居可

愛甲郡愛川町 JR 相模線/原当麻駅 5 階 首都圏中央連絡自動車道/相模原愛川 IC2km

物件コード: 114401015036

4,197 坪 13,875 ㎡ 相談 6ヶ月

工業専用地域 倉庫・バース

首都圏

さいたま市 | 埼玉県| 群馬県| 栃木県| 新潟県

お問い合わせは CBRE 本社   03-5288-9520

さいたま市岩槻区 東武野田線/東岩槻駅

東北自動車道/蓮田スマートIC4.1km

物件コード: 111110015226

3,580 坪 11,836 ㎡ 相談 相談

工業地域 倉庫・バース 2016 年 2026 年10月

川越市 西武新宿線/本川越駅

関越自動車道/川越 IC5.3km

物件コード: 111201016055

3,106 坪 10,268 ㎡ 相談 相談

準工業地域 倉庫・バース 1992 年 即入居可

行田市 秩父鉄道秩父本線/東行田駅徒歩15 分

東北自動車道/羽生 IC12km

物件コード: 111206015014

2,607 坪 8,618 ㎡ 相談 相談

工業専用地域 倉庫・事務所 1997年 2026 年2月

飯能市 西武池袋線/入間市駅

首都圏中央連絡自動車道/狭山日高 IC0.7km

物件コード: 114215015157

1,867 坪 6,173 ㎡ 相談

物件コード: 111209016001

3,988 坪 13,183 ㎡ 相談 6ヶ月

無指定 倉庫・バース 2020 年 2026 年1月

最新情報は web で! www.cbre-propertysearch.jp

業界No.1の実績を誇るCBREが提供する、事業用不動産専門ポータルサイト。

東松山市 東武東上線/東松山駅 3~4 階

物件コード: 111212015052

関越自動車道/東松山 IC0.7km

3,222 坪 10,652 ㎡ 相談 6ヶ月

市街化調整区域 倉庫・バース 2022 年 即入居可

春日部市 東武野田線/藤の牛島駅 1 4 階

物件コード: 111214016017

東北自動車道/岩槻 IC10km

2,285 坪 7,554 ㎡ 相談 6ヶ月

市街化調整区域 倉庫・バース 2025 年 即入居可

狭山市 西武池袋線/稲荷山公園駅徒歩14分 1~2階 首都圏中央連絡自動車道/狭山日高 IC3km

物件コード: 111215015196

617 坪 2,041 ㎡ 242 万円(税抜220 万円) 4ヶ月

準住居地域 倉庫・事務所 1982 年 即入居可

狭山市 西武新宿線/南大塚駅徒歩19 分 2 4 階 関越自動車道/川越 IC2.7km

物件コード: 111215016003

1,051 坪 3,474 ㎡ 相談 1ヶ月

工業専用地域 倉庫 2020 年 即入居可

羽生市 東武伊勢崎線/南羽生駅

物件コード: 111216016007

東北自動車道/羽生 IC6.2km

10,838 坪 35,828 ㎡ 相談 相談

無指定 倉庫・バース 2022 年 即入居可

鴻巣市 JR 高崎線/北鴻巣駅 1

物件コード: 111217016003

首都圏中央連絡自動車道/桶川加納 IC10km

2,676 坪 8,848 ㎡ 相談 相談 工業地域 倉庫・バース 2023 年 即入居可

上尾市 JR 高崎線/北上尾駅 1 4 階

物件コード: 111219016015

首都圏中央連絡自動車道/桶川北本 IC4.5km

2,876 坪 9,509 ㎡ 相談 6ヶ月 工業地域 倉庫・バース 2022 年 2025 年12月

草加市 JR 武蔵野線/越谷レイクタウン駅 1~2階 東京外環自動車道/外環三郷西 IC4km

物件コード: 111221016007

1,883 坪 6,225 ㎡ 相談 相談

市街化調整区域 倉庫・バース 2020 年 2026 年5月

越谷市 JR 武蔵野線/越谷レイクタウン駅徒歩20 分 1 5 階 東京外環自動車道/草加 IC5.8km

物件コード: 111222015269

7,270 坪 24,033 ㎡ 相談 相談

準工業地域 倉庫・バース 2006 年 即入居可

戸田市 JR 埼京線/戸田公園駅

物件コード: 111224015412

首都高速 5 号池袋線/戸田南出入口1.5km

497 坪 1,643 ㎡ 336万円(税抜305 万円) 6ヶ月

工業地域 倉庫 1997年 即入居可

入間市 西武池袋線/入間市駅

物件コード: 111225016013

首都圏中央連絡自動車道/入間 IC0.3km

2,938 坪 9,714 ㎡ 相談 相談

市街化調整区域 倉庫・バース 2026 年 2026 年2月予定

新座市 JR 武蔵野線/新座駅徒歩15 分 1~4 階 関越自動車道/所沢 IC2km

物件コード: 111230015156

2,028 坪 6,705 ㎡ 相談 6ヶ月

工業地域 倉庫・バース 2021年 即入居可

新座市 JR 武蔵野線/新座駅徒歩18分 1 2階 関越自動車道/所沢 IC

物件コード: 111230016027

850 坪 2,812 ㎡ 457万円(税抜415 万円) 4ヶ月 第1種住居地域 倉庫・事務所 1995 年 2026 年4月

久喜市 JR 宇都宮線・湘南新宿ライン/東鷲宮駅徒歩20 分 B1 4 階 東北自動車道/久喜 IC4.8km

物件コード: 111232016008

4,685 坪 15,489 ㎡ 相談 相談

市街化調整区域 倉庫・バース 2023 年 即入居可

北本市 JR 高崎線/北本駅 3~4 階

物件コード: 111233015022

首都圏中央連絡自動車道/桶川加納 IC3.5km

物流施設・配送センター

2,888 坪 9,548 ㎡ 相談 相談

市街化調整区域 倉庫・バース 2014 年 即入居可

三郷市 JR 武蔵野線/新三郷駅 1 4 階

物件コード: 111237016025

東京外環自動車道/外環三郷西 IC2km

10,986 坪 36,319 ㎡ 相談 相談

工業地域 倉庫・バース 2026 年 2026 年2月相談

三郷市 JR 武蔵野線/三郷駅徒歩15 分

常磐自動車道/三郷 IC2.3km

物件コード: 111237016037

5,136 坪 16,981 ㎡ 相談 相談

市街化調整区域 倉庫・バース 2024 年 即入居可

坂戸市 東武東上線/北坂戸駅

関越自動車道/坂戸西スマートIC0.65km

物件コード: 111239015033

306 坪 1,013 ㎡ 相談 相談 準工業地域 倉庫 2001年 即入居可

坂戸市 東武東上線/若葉駅

首都圏中央連絡自動車道/坂戸 IC1km

物件コード: 111239016003

2,877 坪 9,513 ㎡ 相談 6ヶ月

市街化調整区域 倉庫・バース 2023 年 即入居可

東武日光線/幸手駅

首都圏中央連絡自動車道/幸手 IC1.4km

物件コード: 111240015013

4,333 坪 14,324 ㎡ 相談 相談

工業地域 倉庫・バース 2020 年 即入居可

鶴ヶ島市 東武越生線/一本松駅

首都圏中央連絡自動車道/圏央鶴ヶ島 IC1.4km

物件コード: 111241016004

4,650 坪 15,372 ㎡ 相談 相談

市街化調整区域 倉庫・バース 2025 年 即入居可

日高市 JR 八高線/高麗川駅 4~5 階

首都圏中央連絡自動車道/狭山日高 IC3.4km

物件コード: 111242015039

4,747 坪 15,694 ㎡ 相談 相談

市街化調整区域 倉庫・バース 2016 年 即入居可

ふじみ野市

物件コード: 111245016005

東武東上線/上福岡駅

4 階 関越自動車道/三芳スマートIC6km

1,625 坪 5,373 ㎡ 相談 相談

工業専用地域 倉庫・バース 2024 年 即入居可

入間郡毛呂山町 JR 八高線/毛呂駅徒歩 23分

関越自動車道/坂戸西スマートIC10km

物件コード: 111326016002

8,486 坪 28,054 ㎡ 相談 相談

市街化調整区域 倉庫・バース 2024 年 即入居可

比企郡嵐山町 東武東上線/武蔵嵐山駅

関越自動車道/嵐山小川 IC0.6km

物件コード: 111342016002

3,893 坪 12,872 ㎡ 相談 相談

市街化調整区域 倉庫・バース 2022 年 2026 年3月

比企郡川島町 東武東上線/高坂駅

首都圏中央連絡自動車道/川島 IC4km

物件コード: 111346015030

2,595 坪 8,579 ㎡ 相談 相談

工業専用地域 倉庫・バース 2017年 即入居可

南埼玉郡宮代町 JR 東北本線/久喜駅 1階 東北自動車道/久喜 IC5km

物件コード: 111442016001

1,892 坪 6,257 ㎡ 相談 相談

工業地域 倉庫・バース 2022 年 即入居可

高崎市 JR 上越新幹線/高崎駅 1 2階

関越自動車道/高崎玉村スマートIC3.4km

物件コード: 110202016014

6,878 坪 22,738 ㎡ 相談 6ヶ月

工業地域 倉庫・バース 2024 年 即入居可

CBRE 物件検索サイト

最新情報は web で! www.cbre-propertysearch.jp

業界No.1の実績を誇るCBREが提供する、事業用不動産専門ポータルサイト。

伊勢崎市

物件コード: 110204016005

2,342 坪 7,743 ㎡ 902 万円(税抜820 万円) 3ヶ月

無指定 倉庫 2022 年 2025 年相談

伊勢崎市

物件コード: 110204016018

1,007 坪 3,329 ㎡ 相談 4ヶ月

市街化調整区域

物件コード: 109202015018

2,534 坪 8,378 ㎡ 相談 相談

準工業地域 倉庫・バース 2016 年 2025 年相談

新潟市西蒲区 JR 越後線/巻駅

物件コード: 115108016001

北陸自動車道/巻潟東 IC0.3km

1,084 坪 3,584 ㎡ 相談 相談

準工業地域 倉庫 2024 年 即入居可

北陸

金沢市 | 石川県 | 富山県 | 福井県

お問い合わせは CBRE 金沢営業所 076-224-6310

河北郡内灘町 北陸鉄道浅野川線/内灘駅徒歩15 分 1~2階 北陸自動車道/金沢東 IC7km

物件コード: 117365016002

1,953 坪 6,458 ㎡ 相談 6ヶ月

近隣商業地域 倉庫・事務所 2026 年 2026 年6月予定

高岡市 JR 氷見線・城端線/高岡駅徒歩25 分 1 2階

物件コード: 116202015185

能越自動車道/高岡 IC5.7km

243 坪 806 ㎡ 53 万円(税抜48 万円) 6ヶ月

商業地域 倉庫 即入居可

射水市 JR 北陸新幹線・城端線/新高岡駅

物件コード: 116211016002

北陸自動車道/小杉 IC1km

290 坪 961 ㎡ 相談 相談

市街化調整区域 倉庫 2021年 即入居可

鯖江市 ハピラインふくい線/鯖江駅

物件コード: 118207016001

北陸自動車道/鯖江 IC1km

292 坪 966 ㎡ 相談 相談

無指定 倉庫 2020 年 即入居可

越前市 ハピラインふくい線/鯖江駅

物件コード: 118209016002

北陸自動車道/鯖江 IC4km

450 坪 1,487 ㎡ 相談 相談

準工業地域 倉庫 2021年 即入居可

東海

名古屋市 | 愛知県 | 岐阜県 | 三重県 | 静岡県

お問い合わせは CBRE 名古屋支店

名古屋市中川区 JR 関西本線/八田駅徒歩10 分 1

物件コード: 123110010234

名古屋高速万場線 烏森 IC3km

1,052 坪 3,478 ㎡ 相談 相談

準工業地域 倉庫・事務所 1990 年 即入居可

名古屋市港区 名鉄築港線/東名古屋港駅徒歩10 分 1 3 階 名古屋高速 4号東海線/船見出入口3km

物件コード: 123111036008

4,457 坪 14,736 ㎡ 相談

工業専用地域 倉庫・バース 2023 年 即入居可

名古屋市南区 JR 東海道本線/笠寺駅徒歩 8分 4 階 名古屋高速 3号大高線/笠寺出入口 0.5km

物件コード: 123112035087

906 坪 2,995 ㎡ 相談 相談

工業地域 倉庫 2019 年 即入居可

名古屋市守山区 JR 中央本線/神領駅

物件コード: 123113016007

東名高速道路/守山スマートIC2.4km

3,000 坪 9,917 ㎡ 相談 相談

準工業地域 倉庫 2022 年 即入居可 豊田市 名鉄三河線/猿投駅

物件コード: 123211016052

猿投グリーンロード/西広瀬 IC0.2km

2,608 坪 8,623 ㎡ 相談 相談

工業専用地域 倉庫・事務所 2026

名鉄空港線/中部国際空港駅徒歩10 分

中部国際空港連絡道路/セントレア東 IC0.1km

物件コード: 123216010106

884 坪 2,925 ㎡ 相談 相談

準工業地域 倉庫 2007年 2026 年2月

知多市 名鉄常滑線/長浦駅徒歩19 分 1 3 階 知多半島道路/東浦知多IC7.7km

物件コード: 123224016005

615 坪 2,033 ㎡ 相談 相談

準工業地域 倉庫 2007年 即入居可

丹羽郡扶桑町 名鉄犬山線/扶桑駅

物件コード: 123362016001

名神高速道路/小牧 IC9km

3,300 坪 10,910 ㎡ 相談 相談

工業地域 倉庫・事務所 2024 年 即入居可

弥富市 JR 関西本線/弥富駅

物件コード: 123235015027

伊勢湾岸自動車道/湾岸弥富 IC3.5km

3,691 坪 12,204 ㎡ 相談 相談

市街化調整区域 倉庫・事務所 2018 年 即入居可

弥富市 近鉄名古屋線/近鉄蟹江駅

物件コード: 123235016005

伊勢湾岸自動車道/湾岸弥富 IC0.7km

6,993 坪 23,119 ㎡ 相談 相談

工業地域 倉庫・事務所 2022 年 即入居可

弥富市 近鉄名古屋線/近鉄弥富駅 4 階 伊勢湾岸自動車道/湾岸弥富 IC0.9km

物件コード: 123235016006

1,272 坪 4,205 ㎡ 相談 相談

市街化調整区域 倉庫・事務所 2024 年 即入居可

瑞浪市 JR 中央本線/瑞浪駅 1~

中央自動車道/瑞浪 IC2km

物件コード: 121208016005

407 坪 1,345 ㎡ 相談 相談

工業地域 倉庫 1965 年 2025 年相談

羽島市 名鉄羽島線/新羽島駅徒歩19 分 1 3 階 名神高速道路/岐阜羽島 IC4km

物件コード: 121209016011

4,151 坪 13,725 ㎡ 相談 6ヶ月

準工業地域 倉庫・バース 2023 年 即入居可

桑名郡木曽岬町 近鉄名古屋線/近鉄弥富駅 2階 伊勢湾岸自動車道/弥富木曽岬 IC11.8km

物件コード: 124303016002

2,345 坪 7,753 ㎡ 相談 相談

市街化調整区域 倉庫 2022 年 即入居可

掛川市 JR 東海道本線/掛川駅 1~4 階 東名高速道路/掛川 IC3.8km

物件コード: 122213016009

3,669 坪 12,130 ㎡ 相談 相談 工業地域 倉庫・事務所 2025 年 2026 年1月

大阪

大阪市内

お問い合わせは CBRE 関西支社 06-6292-1730

大阪市西淀川区 JR 東西線/御幣島駅徒歩10 分

物件コード: 127113015007

553 坪 1,831 ㎡ 539 万円(税抜490 万円) 7ヶ月

工業地域 倉庫 1992 年 2025 年相談

大阪市西淀川区 阪神なんば線/福駅徒歩 5 分

物件コード: 127113065012

阪神高速 3号神戸線/姫島出入口1.7km

743 坪 2,457 ㎡ 385万円(税抜350 万円) 6ヶ月

工業地域 倉庫 1987年 2026 年2月

大阪市西淀川区 阪神なんば線/出来島駅徒歩 25 分 3 4 階 阪神高速 5 号湾岸線/中島出入口 0.5km

物件コード: 127113075052

2,100 坪 6,942 ㎡ 相談

工業専用地域 倉庫 2017年 即入居可

大阪市東成区 大阪メトロ今里筋線/今里駅徒歩 4分 1~2階

物件コード: 127115076001

阪神高速13号東大阪線/高井田出入口3km

117 坪 389 ㎡ 130 万円(税抜118 万円) 8ヶ月

第1種住居地域 倉庫 2025 年 即入居可

大阪市城東区 JR 片町線/鴫野駅徒歩10 分 1 4 階

物件コード: 127118036002

阪神高速13号東大阪線/高井田出入口3km

255 坪 843 ㎡ 220 万円(税抜200 万円) 6ヶ月

工業地域 倉庫 1984 年 2025 年相談

大阪市住之江区 大阪メトロ四つ橋線/北加賀屋駅徒歩15 分 2階

物件コード: 127125015026

6,559 坪 21,684 ㎡ 相談

工業専用地域 倉庫 2006 年 2026 年2月

大阪市住之江区 大阪メトロ四つ橋線/北加賀屋駅徒歩15 分 1~4 階 阪神高速15 号堺線/玉出出入口2.2km

物件コード: 127125016005

3,303 坪 10,921 ㎡ 相談 相談

工業専用地域 倉庫 2025 年 即入居可

大阪市住之江区 大阪メトロ南港ポートタウン線/平林駅 3 階 阪神高速 4号湾岸線/南港中出入口3km 物件コード: 127125046004

1,992 坪 6,586 ㎡ 相談 相談 倉庫 2015 年 即入居可

大阪市住之江区 大阪メトロ南港ポートタウン線/南港口駅徒歩1分 1階 阪神高速 4号湾岸線/南港中出入口1km

物件コード: 127125046013

3,950 坪 13,059 ㎡ 相談

準工業地域 倉庫 2026 年 2026 年相談

大阪市住之江区 大阪メトロ南港ポートタウン線/ポートタウン東駅徒歩10 分 1階 阪神高速16 号大阪港線/南港北出入口 0.7km

物件コード: 127125046018

902 坪 2,981 ㎡ 相談 倉庫 1986 年 2025 年相談

大阪市住之江区 大阪メトロ南港ポートタウン線/トレードセンター前駅 1階 阪神高速 4号湾岸線/南港北出入口 4.9km

物件コード: 127125046022

5,321 坪 17,591 ㎡ 相談

準工業地域

大阪

大阪府下 | 奈良県 | 和歌山県

お問い合わせは CBRE 関西支社

06-6292-1730

吹田市 大阪メトロ御堂筋線/江坂駅徒歩15 分

物件コード: 127205016009

名神高速道路/豊中 IC5.2km

1,491 坪 4,928 ㎡ 相談 相談

準工業地域 倉庫 2023 年 即入居可

物流施設・配送センター 静岡・大阪・奈良

高槻市 JR 東海道本線/高槻駅

物件コード: 127207026017

名神高速道路/茨木 IC8km

6,217 坪 20,555 ㎡ 相談

工業地域 倉庫 即入居可

茨木市 大阪モノレール彩都線/彩都西駅徒歩15 分

物件コード: 127211015104

名神高速道路/茨木 IC5km

3,999 坪 13,222 ㎡ 相談 相談

工業地域 倉庫 2016 年 2026

12号守口線/守口出入口3.6km

物件コード: 127215026011 801 坪 2,650 ㎡ 265万円(税抜240 万円) 倉庫 1986 年 2026 年12月

大東市 大阪メトロ長堀鶴見緑地線/門真南駅徒歩22分 4 階 近畿自動車道/大東鶴見 IC1km

物件コード: 127218016002

875 坪 2,892 ㎡ 相談

工業地域 倉庫 2022 年 即入居可

和泉市 南海泉北線/和泉中央駅徒歩 21分 1階

物件コード: 127219026007

722 坪 2,388 ㎡ 220 万円(税抜200 万円) 6ヶ月

準工業地域 工場・倉庫 即入居可

箕面市 北大阪急行電鉄南北線/箕面船場阪大前駅徒歩5分 B1~ 6 階

物件コード: 127220020043

1,533 坪 5,070 ㎡ 844万円(税抜767 万円) 相談

商業地域 事務所・倉庫 1973 年 即入居可

箕面市 北大阪急行電鉄南北線/箕面船場阪大前駅徒歩5分 B1 6 階

物件コード: 127220020044

569 坪 1,882 ㎡ 313 万円(税抜285 万円) 相談 事務所・倉庫 1980 年 即入居可

門真市

物件コード: 127223026016

大阪メトロ長堀鶴見緑地線/門真南駅 1 5 階 近畿自動車道/大東鶴見 IC2.6km

2,100 坪 6,942 ㎡ 相談 倉庫 即入居可

東大阪市

物件コード: 127227036005

近鉄けいはんな線/新石切駅徒歩 6分 1~2階 阪神高速13号東大阪線/水走出入口

1,000 坪 3,305 ㎡ 相談 準工業地域 倉庫 1973 年 2025 年相談

交野市 JR 片町線/星田駅徒歩15 分 3 4 階 第二京阪道路/交野南 IC0.8km

物件コード: 127230026001

5,640 坪 18,647 ㎡ 相談 相談 工業地域 倉庫 2021年 2026 年7月

奈良市 JR 桜井線/京終駅徒歩18分 1階 第二阪奈道路/宝来 IC7.2km

物件コード: 129201016016

57 坪 189 ㎡ 66万円(税抜60 万円) 3ヶ月 倉庫 2002 年 即入居可

最新情報は web で! www.cbre-propertysearch.jp

業界No.1の実績を誇るCBREが提供する、事業用不動産専門ポータルサイト。

大和郡山市 近鉄天理線/二階堂駅徒歩21分 1階

西名阪自動車道/郡山 IC 物件コード: 129203016003

1,001 坪 3,309 ㎡ 相談 市街化調整区域 倉庫 2026 年 2026 年夏

生駒郡安堵町 西名阪自動車道/大和まほろばスマートIC1.9km 1 4 階

物件コード: 129345016002

11,340 坪 37,488 ㎡ 相談 相談

準工業地域 倉庫 2023 年 即入居可

近畿圏

神戸市 | 兵庫県

お問い合わせは CBRE 関西支社 06-6292-1730

神戸市東灘区 神戸新交通六甲アイランド線/南魚崎駅 1~5 階

物件コード: 128101025041

阪神高速 5 号湾岸線/住吉浜出入口 0.3km

1,067 坪 3,528 ㎡ 相談 6ヶ月

工業専用地域 倉庫・事務所 1993 年 即入居可

神戸市灘区 阪神本線/西灘駅徒歩 22分 1 2階

物件コード: 128102026004

阪神高速 3号神戸線/摩耶出入口1.2km

1,230 坪 4,068 ㎡ 相談 3ヶ月

準工業地域 倉庫 2001年 即入居可

神戸市長田区 JR 山陽本線/鷹取駅徒歩13分 2~3 階 阪神高速 3号神戸線/若宮出入口1.1km

物件コード: 128106046006

4,665 坪 15,421 ㎡ 相談

工業専用地域 倉庫 2023 年 即入居可

神戸市須磨区 地下鉄西神・山手線/総合運動公園駅徒歩13分 1 4 階 神戸淡路鳴門自動車道/布施畑 IC0.7km

物件コード: 128107036008

1,068 坪 3,533 ㎡ 相談 相談

準工業地域 事務所兼倉庫 1992 年 2025 年相談

神戸市北区 神戸電鉄三田線/道場南口駅徒歩18分 1 4 階 中国自動車道/西宮北 IC4.5km

物件コード: 128109016007

6,552 坪 21,662 ㎡ 相談

準工業地域 倉庫 2025 年 即入居可

神戸市西区 神戸電鉄粟生線/木津駅徒歩 28分

物件コード: 128111015244

山陽自動車道/神戸西 IC1km

2,235 坪 7,388 ㎡ 相談 相談

準工業地域 倉庫 2019 年 2025 年12月

神戸市西区 神戸電鉄粟生線/木津駅徒歩15 分

物件コード: 128111016019

山陽自動車道/神戸西 IC1km

5,347 坪 17,677 ㎡ 相談 相談

準工業地域 倉庫 2022 年 即入居可

尼崎市 阪神本線/出屋敷駅徒歩10 分 1~4 階 阪神高速 3号神戸線/尼崎西出入口1.6km

物件コード: 128202046020

10,259 坪 33,916 ㎡ 相談 6ヶ月

工業地域 倉庫・事務所 2025 年 2026 年3月

西宮市 神戸電鉄三田線/田尾寺駅徒歩 9 分 1 4 階 中国自動車道/西宮北 IC0.2km

物件コード: 128204016011

12,534 坪 41,437 ㎡ 相談 相談

準工業地域 倉庫 2025 年 2025 年12月

伊丹市 JR 福知山線/北伊丹駅徒歩18分 1~2階 阪神高速11号池田線/池田出入口3.5km

物件コード: 128207026006

3,124

川西市 JR 福知山線/北伊丹駅徒歩16分 1~4 階 阪神高速11号池田線/川西小花出入口3.1km

物件コード: 128217016005

2,053 坪 6,788 ㎡ 相談

準工業地域 倉庫 2026 年 2026 年相談

三田市 JR 福知山線/相野駅徒歩 25 分 1 2階 舞鶴若狭自動車道/三田西 IC1.5km

物件コード: 128219016002

4,262 坪 14,091 ㎡ 相談 相談

工業専用地域 倉庫 2016 年 即入居可

加古郡稲美町 JR 山陽本線/東加古川駅徒歩 38分 1~3 階

物件コード: 128381016002

1,364 坪 4,511 ㎡ 242 万円(税抜220 万円) 相談

市街化調整区域 倉庫 1993 年 即入居可

近畿圏

京都市 | 京都府 | 滋賀県

お問い合わせは CBRE 関西支社 06-6292-1730

京都市南区 近鉄京都線/竹田駅 1

名神高速道路/京都南 IC2km

物件コード: 126107046012 259 坪 859 ㎡ 146万円(税抜132 万円) 4ヶ月

市街化調整区域 倉庫 1973 年 2025 年相談

京都市伏見区 JR 京都線/向日町駅

物件コード: 126109036008

名神高速道路/京都南 IC3.5km

2,180 坪 7,207 ㎡ 相談

準工業地域 倉庫 2023 年 即入居可

京都市伏見区 阪急京都線/西向日駅徒歩 33分

物件コード: 126109036019

階 阪神高速 8号京都線/城南宮南出入口 4.5km

3,330 坪 11,010 ㎡ 相談

工業専用地域 倉庫 2026 年 2026 年相談

長岡京市 JR 京都線/長岡京駅

物件コード: 126209016002

名神高速道路/大山崎 IC3.1km

4,641 坪 15,344 ㎡ 相談 相談

工業専用地域 倉庫 2024 年 即入居可

蒲生郡竜王町 JR 琵琶湖線/篠原駅

物件コード: 125384016003

名神高速道路/竜王 IC0.5km

300 坪 991 ㎡ 相談 倉庫 即入居可

湖南市 JR 草津線/石部駅徒歩 20 分

物件コード: 125211016004

階 名神高速道路/栗東湖南 IC2.1km

2,766 坪 9,145 ㎡ 相談

工業地域 倉庫 2025 年 即入居可

岡山県 | 島根県 | 鳥取県 | 四国

お問い合わせは CBRE 関西支社 06-6292-1730

岡山市北区 JR 宇野線/備中箕島駅

山陽自動車道/早島 IC4.3km

物件コード: 133101076004

1,968 坪 6,507 ㎡ 相談

無指定 倉庫 2025 年相談

最新情報は web で! www.cbre-propertysearch.jp

業界No.1の実績を誇るCBREが提供する、事業用不動産専門ポータルサイト。

総社市 岡山自動車道/岡山総社 IC0.6km 3 階

物件コード: 133208015006

1,000 坪 3,305 ㎡ 相談

市街化調整区域 倉庫 2015 年 即入居可

赤磐市 JR 山陽本線/熊山駅徒歩15 分 2階

物件コード: 133213016001

山陽自動車道/山陽 IC

270 坪 892 ㎡ 相談 倉庫 即入居可

広島市 | 広島県 | 山口県

北九州市小倉北区

物件コード: 140106016017

鹿児島本線・日豊本線/小倉駅 2階 北九州都市高速 2号線/日明出入口1km

物流施設・配送センター

2,723 坪 9,004 ㎡ 相談 相談

工業専用地域 倉庫・事務所 2024 年 即入居可

柳川市 西鉄天神大牟田線/蒲池駅 1階 有明海沿岸道路/柳川西 IC1.7km

物件コード: 140207016001

451 坪 1,494 ㎡ 149 万円(税抜136万円) 相談

無指定 倉庫 2020 年 即入居可

小郡市 甘木鉄道甘木線/小郡駅徒歩11分 1~2階 九州自動車道/鳥栖 IC2.7km

物件コード: 140216016005

1,746 坪 5,772 ㎡ 相談 相談

岡山・広島・福岡・佐賀・熊本・大分・鹿児島

お問い合わせは CBRE 福岡支店 092-686-6950

広島市中区 広島電鉄/江波駅

広島高速 3号線/吉島出入口1.9km 物件コード: 134101146003

3,284 坪 10,856 ㎡ 相談 相談

工業地域 倉庫・バース 2023 年 即入居可

広島市西区 広島電鉄/草津南駅 1 2階 広島南道路/商工センター出入口2.4km

物件コード: 134104066008

290 坪 958 ㎡ 相談 相談

準工業地域 事務所 1996 年 即入居可

広島市安佐南区 広島自動車道/広島西風新都 IC4km 1階

物件コード: 134105015504

939 坪 3,105 ㎡ 相談 6ヶ月

工業地域 倉庫 2020 年 即入居可

東広島市 山陽自動車道/志和 IC1.8km 1 2階

物件コード: 134212016003

1,680 坪 5,553 ㎡ 相談 相談

市街化調整区域 倉庫 2020 年 即入居可

廿日市市 JR 山陽本線/廿日市駅 1 2

物件コード: 134213016005

広島岩国道路/廿日市 IC3.8km

333 坪 1,104 ㎡ 215万円(税抜195 万円) 6ヶ月 倉庫・事務所 2025 年相談 九州

福岡市 | 福岡県 | 佐賀県 | 長崎県 | 熊本県

大分県 | 宮崎県 | 鹿児島県

お問い合わせは CBRE 福岡支店

092-686-6950

福岡市博多区 地下鉄空港線/東比恵駅徒歩19 分 1~4 階

物件コード: 140132066042

福岡都市高速環状線/半道橋出入口1km

3,426 坪 11,326 ㎡ 相談 相談

工業地域 倉庫・バース 2025 年 即入居可

福岡市東区 地下鉄箱崎線/箱崎九大前駅徒歩 5 分 1 4 階

物件コード: 140131016017

福岡都市高速1号香椎線/東浜出入口1.6km

8,391 坪 27,739 ㎡ 相談 相談

準工業地域 倉庫・バース 2026 年 2026 年6月

福岡市東区 JR 鹿児島本線/千早駅 1~4 階 福岡都市高速/アイランドシティ出入口1km

物件コード: 140131026030

7,417 坪 24,519 ㎡ 相談 相談

市街化調整区域 倉庫・バース 2023 年 即入居可

小郡市 甘木鉄道甘木線/今隈駅徒歩 9 分

階 大分自動車道/筑後小郡 IC0.5km

物件コード: 140216016009 2,000 坪 6,611 ㎡ 相談 相談 倉庫 2024 年 即入居可

小郡市 甘木鉄道/今隈駅徒歩 8分

物件コード: 140216016012

大分自動車道/筑後小郡 IC0.3km

500 坪 1,652 ㎡ 相談 相談 倉庫 2020 年 即入居可

小郡市 甘木鉄道/今隈駅徒歩11分

物件コード: 140216016013

大分自動車道/筑後小郡 IC0.4km

200 坪 661 ㎡ 相談 相談 倉庫 2022 年 即入居可

筑紫野市 JR 鹿児島本線/天拝山駅

物件コード: 140217016002

九州自動車道/筑紫野 IC1km

1,709 坪 5,650 ㎡ 相談 3ヶ月 準工業地域 倉庫・バース 2023 年 即入居可

筑紫野市 JR 鹿児島本線/天拝山駅 1階 九州自動車道/筑紫野 IC3.6km

物件コード: 140217016007

1,143 坪 3,781 ㎡ 相談

第1種住居地域 倉庫 即入居可

三井郡大刀洗町

甘木鉄道/山隈駅 大分自動車道/筑後小郡 IC3km

物件コード: 140503016001

1,350 坪 4,465 ㎡ 相談 相談

準工業地域 倉庫 即入居可

鳥栖市 JR 長崎本線・九州新幹線/新鳥栖駅徒歩15 分 1~2階 九州自動車道/鳥栖 IC4.5km

物件コード: 141203016008

3,128 坪 10,340 ㎡ 相談 相談

工業専用地域 倉庫・事務所 2021年 2025 年相談

菊池郡大津町 JR 豊肥本線/肥後大津駅

物件コード: 143403016005

九州自動車道/熊本 IC11.3km

1,328 坪 4,392 ㎡ 相談 3ヶ月 倉庫 2024 年 即入居可

杵築市 JR 日豊本線/杵築駅

物件コード: 144210016001

階 大分空港道路/杵築 IC3.9km

762 坪 2,520 ㎡ 相談 相談

準工業地域 倉庫 2025 年 2025 年相談

鹿児島市 JR 指宿枕崎線/坂之上駅 1階 指宿スカイライン/谷山 IC7.3km

物件コード: 146201016023

497 坪 1,643 ㎡ 相談 相談 倉庫 2025 年相談

霧島市 JR 日豊本線/国分駅 1階 東九州自動車道/国分 IC2.4km

物件コード: 146218016004

530 坪 1,752 ㎡ 相談 相談

倉庫・事務所 2026 年3月

最新情報は web で! www.cbre-propertysearch.jp

業界No.1の実績を誇るCBREが提供する、事業用不動産専門ポータルサイト。

S・LOGI 新座 West

敷地配置図

JR武蔵野線新座駅、新座貨物ターミナル駅、高速IC等の交通インフラに至近。

土地区画整理事業により生み出された希少な土地に誕生した「エスロジ新座」。

作業スタッフやトラックドライバー不足への対応、環境配慮など、 時代の要請に応える物流施設を提供いたします。

Access

新宿新都心20km圏内 モーダルシフトにも対応可能な好立地

幅広いニーズに対応可能な施設仕様

温度帯管理やマテハン導入等、お客様の様々なニーズを想定した、 シミズならではの可変性の高い施設仕様としています。

平面図

マルチ型

RCSS造により11m×11mの柱スパンとブレースのない空間を実現。

ラックや、大規模なマテハン機器の設置も可能で、空間を最大限有効 に活用することができます。

5.5m以上の梁下有効高さ設定

梁下有効高さを6.5m以上(1Fおよび4F)備える等、様々な階高設定 を採用し、幅広いニーズに対応可能です。※一部箇所を除きます。

トラックバースの倉庫化対応

トラックバースを倉庫仕様へと変更することができます。

特別高圧電力の受電

特別高圧電力の引込により、温度帯管理や、大規模なマテハン機器の 設置、庫内空調の設置等、多様な物流業務に対応できます。

強固な地盤と低い災害リスク

エスロジ

S・LOGI新座は非常に良好な地盤面と自然災害のリスクが僅少なエリアに立地しており、 災害時にも被害が少ない環境となっています。

新座市大和田3丁目2-16

プロロジスパーク古河4

面積表

倉庫トラックバース事務所計

3階

2階

1階

合計

1階 合計

危険物倉庫フォーク充電事務所計

国道・高速道路を利用し

東西南北マルチアクセスが可能

■圏央道「五霞IC」から約 8.8 ㎞(約11分)

■圏央道「境古河IC」から約 6.1 ㎞(約10分)

■加須エリアから約 10 ㎞

■新4号バイパス(国道)を利用し

計画概要

所在地 地域地区 容積率 建ぺい率 敷地面積 延床面積 / 用途地域 茨城県古河市北利根 工業専用地域 200% 60%

68,129㎡(20,609坪) 倉庫棟:123,266㎡(37,288坪) ※小型倉庫含む

建物概要

仕  様 2023年5月 柱RC造+梁S造 地上3階建 耐火構造 1-2階 高床式(1.0m) 1階 5.5m、2-3階 6.3m 11.0m×10.0m 1.5t/㎡ 338台(内カスタマー賃貸区画304台)

竣工 主体構造 階数 構造 プラットフォーム 梁下有効天井高 柱間隔 床荷重 駐車場

プロロジスパーク古河5

新4号国道

プロロジスパーク古河1

プロロジスパーク古河6 (HAZMAT倉庫) プロロジスパーク古河3 プロロジスパーク古河2

都心部への配送が可能 4

プロロジスパーク古河4

プロロジスパーク古河7 (HAZMAT倉庫)

古河プロジェクト (フェーズ2)開発エリア

プロロジスパーク古河7 HAZMAT

面積表

シェアオフィス J I H G F E D C B A

合計

倉庫 事務所 計

1,028㎡ 1,028㎡ 1,028㎡ 1,028㎡ 1,028㎡ 1,028㎡ 1,028㎡ 1,028㎡ 1,028㎡ 1,028㎡ 10,284㎡ 3,110坪

プロロジスパーク古河4・7

1,028㎡ 1,028㎡ 1,028㎡ 1,028㎡ 1,028㎡ 1,028㎡ 1,028㎡ 1,028㎡ 1,028㎡ 1,028㎡ 10,352㎡ 3,130坪

計画概要 所在地 地域地区 敷地面積 延床面積

/ 用途地域

建物概要

仕  様

竣工 階数 構造

プラットフォーム

梁下有効天井高 床荷重 駐車場

茨城県古河市北利根 工業専用地域 22,560㎡(6,824坪) 11,794㎡(3,567坪) ※HAZMAT倉庫棟10棟合計

2026年2月 地上1階建 鉄骨造 低床式 5.0m 1.5t/㎡ 3台/倉庫

「関東のど真ん中」 関東広域配送に最適な立地

各地への所要時間

■成田空港まで約 1 時間 10 分

■東京港・羽田空港まで約 1 時間 20 分

■「八王子JCT」まで約 1 時間 10 分

■「高崎JCT」まで約 1 時間 20 分

■宇都宮まで約 1 時間

■常陸那珂港まで約 1 時間 20 分

国内全拠点ガイド

内堀通り

東京本社

明治安田生命ビル21F

新丸ビル

丸ビル

丸の内 オアゾ

永代通り

J R

東 京 駅

明治安田ヴィレッジ

東京国際フォーラム

北海道庁

議会議事堂

JR札幌駅

札幌支店 日本生命札幌ビル15F 南口

札幌グランドホテル

三井住友銀行 時計台

広瀬通駅

青葉通 Loft

東京本社

〒100-0005

東京都千代田区丸の内2-1-1

TEL.03-5288-9288

名古屋支店

〒460-0008

名古屋市中区栄4-1-1

TEL.052-238-1055

金沢市企業局 日本銀行金沢支店

金沢信用金庫 NHK 金沢放送局

パークビル

金沢営業所

JR金沢駅西 第四NKビル5F

北國銀行本店

コンフィデンス 金沢 JR金沢 ABホテル

R&Bホテル 金沢駅西口

ハイアット セントリック

紙屋町西

エディオン

紙屋町東

〒920-0031

金沢市広岡3-3-11 TEL.076-224-6310

北3条通 北5条手稲通

相生通り

三井住友信託銀行

ANA クラウンプラザ ホテル札幌

札幌支店

〒060-0003

札幌市中央区北三条西4-1-1 TEL.011-231-6931

広島銀行本店

通本

三井住友銀行

三菱 UFJ銀行

ひろしま国際ホテル

(建替中)

広島支店 シシンヨービル6F

広島支店

〒730-0036

広島市中区袋町3-17 TEL.082-243-9321

〒980-0021

仙台市青葉区中央1-2-3

TEL.022-262-5651

〒220-0004

横浜市西区北幸1-11-15 TEL.045-316-4311

金沢営業所

広島支店

福岡支店

札幌支店

仙台支店

東京本社

横浜支店

名古屋支店

関西支社

お問い合わせ

シービーアールイー株式会社

宅地建物取引業/国土交通大臣免許(15)第1075号 不動産鑑定業/国土交通大臣登録(3)第261号 第二種金融商品取引業、投資運用業、投資助言・代理業/関東財務局長(金商)第1301号 不動産特定共同事業/金融庁長官・国土交通大臣第137号 警備業/東京都公安委員会認定第30003852号 総合不動産投資顧問業/総合 - 第160号 賃貸住宅管理業/国土交通大臣登録(01)第009861号 主な加盟団体 一般社団法人不動産流通経営協会   一般社団法人不動産証券化協会 (準会員)  公益社団法人日本不動産鑑定士協会連合会   公益社団法人日本ロジスティクスシステム協会 金融商品取引業協会 第二種金融商品取引業:一般社団法人 第二種金融商品取引業協会 金融商品取引業協会 投資運用業、投資助言・代理業:一般社団法人日本投資顧問業協会(JIAA)   東京本社 〒100-0005  東京都千代田区丸の内2-1-1 明治安田生命ビル TEL. 03-5288-9288(大代)

website: www.cbre.co.jp

2025 Winter | Nº 186

BZ空間 2025冬季号(12月1日発刊)

本誌掲載物件・推奨物件 2025年11月25日現在につき、 契約済の節はご了承ください。

広告有効期限 2026年2月末日

本誌の配送(配送先変更・中止等)に関する お問い合わせは下記にご連絡ください。

造本には十分注意しておりますが、 万一、乱丁・落丁本の場合はお取り替えいたします。

0120.980.459

※フリーダイヤル受付時間:10:00~18:00(土・日・祝日を除く)

TOPPANロジスティクス株式会社 FAX 03.5372.6120

発 行

シービーアールイー株式会社

発行人 辻貴史

〒100-0005

東京都千代田区丸の内2-1-1 明治安田生命ビル BZ空間編集部 Mail:BZ@cbre.com

編集人 千葉哲也

印刷

ビジネス不動産情報誌

「BZ空間」(ビズくうかん)は、

CBREが発行する事業用不動産情報誌です。

“BZ Kukan” is a commercial real estate information magazine published by CBRE.

アンケートにご協力ください

誌面づくりの参考にさせていただきます。

CBRE物件検索サイト

のTOPページ右下、または下記から アンケート入力フォームをご利用ください。

「BZ空間」のお届け先の変更や中止なども、 上記からお手続きいただけます。

同封のFAX用紙もご利用ください。

Issuu converts static files into: digital portfolios, online yearbooks, online catalogs, digital photo albums and more. Sign up and create your flipbook.