

doandat33@gmail.com
facebook.com/doandat33
behance.net/doandat33
instagram.com/doandat33

![]()


doandat33@gmail.com
facebook.com/doandat33
behance.net/doandat33
instagram.com/doandat33

- LÊN CONCEPT Ý TƯỞNG
- BASIC DESIGN
- PHỐI CẢNH 3D
Ngôi nhà nằm ở Havířov, Cộng hòa Séc. Cảnh quan xung quanh của ngôi nhà được hình thành bởi một dòng sông uốn khúc Lučina, rừng ngập nước và các cánh đồng nông nghiệp. Ngôi nhà 2 tầng với các bức tường sắp xếp thú vị. hiều cao phù hợp tỉ lệ, do đó không làm xáo trộn cảnh quan thiên nhiên nhẹ nhàng xung quanh.

































- TRIỂN KHAI Ý TƯỞNG - DETAIL DESIGN/ TRIỂN KHAI BẢN VẼ CHI TIẾT
- GIÁM SÁT THIẾT KẾ TẠI CÔNG TRƯỜNG 2018- 5/2019
Địa điểm của ngôi nhà nằm trên một tuyến đường lớn cùng với mật độ dân cư xung vô cùng cao tại Hà Đông, Hà Nội. Do vậy, giúp gia chủ có được cảm giác thoải mái và thư giãn khi về với căn nhà, tách biệt với khói bụi và ồn ào bên ngoài là vấn
đề được quan tâm nhất.


























- THỂ HIỆN PHỐI CẢNH 3D
- GIÁM SÁT THIẾT KẾ TẠI CÔNG TRƯỜNG.
Vị trí trung tâm Hà Nội, nằm trên phố Hàng Khay nơi có
mật độ người và giao thông cao. Mục đích là cải tạo ngôi
nhà cổ hẹp cũ bị bỏ quên, tạo nên không gian nhà hàng
và căn hộ hấp dẫn. Cân nhắc các vấn đề liên quan tới môi trường.
Quan sát cây xanh trên đầu chúng ta, tạo nên trải nghiệm
như chúng ta đang ở trong rừng. Đặc tính mạnh mẽ tác
động tới sự ý chú của con người.








- TRIỂN KHAI Ý TƯỞNG - BASIC DESIGN/ BẢN VẼ SƠ BỘ - THỂ HIỆN PHỐI CẢNH 3D
Địa điểm: Nằm ở tầng 1 của tòa nhà Keangnam landmark 72, Hà Nội.

1. Các ống trụ treo lơ lửng là điểm nhấn của toàn bộ không gian, để khiến sự chú ý của mọi người. Sự tò mò sẽ được tạo ra theo bản năng, kèm theo mong muốn được vào không gian.


2. Các ống trụ tạo ra một ranh giới rõ ràng của không gian riêng giữa các không gian công cộng xung quanh để làm cho khách hàng cảm thấy thuận tiện và thoải mái.

3. Thay đổi độ cao và kích cỡ khác nhau của các ống trụ sẽ mang lại nhiều cảm giác cho khách hàng ngồi, đi lại và ăn uống bên dưới.























...
- THỆ HỆ ẢNH MINH HỌA/ GRAPHIC DESIGN - THỂ HIỆN PHỐI CẢNH 3D.
Mục đích là tìm cách xây dựng một cộng đồng lành mạnh tự túc mới dựa trên các nguyên tắc & giá trị truyền thống của Việt Nam. Làng cộng đồng được cho là tăng trưởng dài hạn

để được quy hoạch tốt, thịnh vượng và môi trường xanh, đồng thời thiết lập tiêu chuẩn chất lượng cao cho cuộc sống bền vững. Dự án này là một câu trả lời cho sự phát triển nhanh không bền vững của các thành phố lớn nhất Việt Nam. Mục đích là để tạo ra một cuộc sống giá cả phải chăng nhưng chất lượng và chiến lược về lối sống tự túc và bền vững cho dân làng.











- IN CHARGE/ PHỤ TRÁCH DỰ ÁN - LÊN Ý TƯỞNG QUY HOẠCH MẶT BẰNG
TỔNG THỂ
Đây là cuộc thi “Thử thách thiết kế nhà ở giá rẻ” cho đặc khu kinh tế. Vị trí: Phnom Penh, Cambodia.
Để cải thiện điều kiện sống của công nhân trong ngành may mặc, việc cân nhắc cẩn thận không gian đô thị ngoài trời có thể ảnh hưởng rất lớn đến cuộc sống của họ. Tổ chức chỗ ở an toàn, một nơi để ăn và nghỉ ngơi vào ban đêm, cuộc sống hàng ngày xảy ra trong không gian ngoài trời và bán ngoài trời. Do đó, để cải thiện chất lượng cuộc sống của họ cũng như không gian đô thị cần được thiết kế thông minh. Để thúc đẩy các hoạt động ngoài trời nhằm tăng cường sự gắn kết cộng đồng như trước đây họ đã từng làm ở quê nhà, trước khi chuyển đến nơi ở mới.
Người lao động nên có cơ hội chăm sóc gia đình, kể cả trẻ em ở gần nơi làm việc và nhận dịch vụ công cộng cơ bản cho cộng
đồng. Mục đích của dự án là thiết kế nhà
ở giá rẻ cho công nhân với chất lượng cao của không gian ngoài trời và trong nhà để
ổn định với các thành viên trong gia đình. Khu vực nhà ở mới được đề xuất sẽ sớm trở thành một phần của sự kết hơp của thành phố Phnom Penh. Do đó, đề xuất xem xét chất lượng thành phố với các đặc điểm nông thôn. Khu vực này được bao quanh bởi một dòng sông có thể tăng cường các hoạt động ngoài trời và cũng để pha trộn cảnh quan sông với cảnh quan phát triển mới.











- IN CHARGE/ PHỤ TRÁCH DỰ ÁN - IDEA CONCEPT/ LÊN Ý TƯỞNG - GRAPHIC - PHỐI CẢNH 3D
Địa điểm: Vinhomes Riverside Với 2 khu đất liền kề nhau, gia chủ muốn cải tạo 1 căn và phá dỡ 1 căn đi làm cảnh quan và không gian sinh hoạt ngoài trời vui chơi cho trẻ nhỏ.













- IN CHARGE/ PHỤ TRÁCH DỰ ÁN
- DETAIL DESIGN/ TRIỂN KHAI BẢN VẼ
CHI TIẾT.
- GIÁM SÁT THIẾT KẾT TẠI CÔNG
TRƯỜNG 9/2019 - 12/2019.
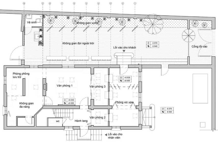
Địa điểm: 15 Chu Văn An, Hà Nội
Dự án cải tạo không gian làm việc và tiếp công dân của phòng lãnh sự.
Điểm nhấn của công trình là khu ngồi đợi ngoài trời.


Hình ảnh trước cải tạo

Hệ mái kính khung
sắt được đỡ bởi các cánh cửa trang trí cao 3.7m, được làm
thủcôngbởinhững
người thợ lành nghề. Kết hợp với cây xanh, một phần
không thể thiếu để
hoàn thiện không
gian, cái mà mang
lại cảm giác thư
giãn và mát mẻ cho
người ngồi trong nhữngngàyhè.











- IN CHARGE/ PHỤ TRÁCH DỰ ÁN - IDEA CONCEPT - DETAIL DESIGN/ TRIỂN KHAI BẢN VẼ CHI TIẾT.
Address: 24th floor, MD Complex Building, 68 Nguyen Co Thach, My Dinh, Tu Liem, Hanoi
Area: 640 spm





















- IN CHARGE/ PHCH DỰ ÁN - IDEA CONCEPT/ LÊN Ý TƯỞNG
Ocean Villa












- IN CHARGE/ PHỤ TRÁCH DỰ ÁN - IDEA CONCEPT
Address: 17th floor, MD Complex Building, 68 Nguyen Co Thach, My Dinh, Tu Liem, Hanoi Area: 640 spm

















- IN CHARGE/ PHỤ TRÁCH DỰ ÁN - INTERIOR CONCEPT - BASIC DESIGN/ BẢN VẼ SƠ BỘ - THỂ HIỆN PHỐI CẢNH 3D
Address: 74 Ba Trieu, Tran Hung Dao, Hoan Kiem, Hanoi
Area: 1424 spm

















CO-WORKING
CO-WORKING
CO-WORKING
CO-WORKING
CO-WORKING
CO-WORKING
CO-WORKING
CO-WORKING
CO-WORKING


CO-WORKING
CO-WORKING
CO-WORKING
CO-WORKING
CO-WORKING
CO-WORKING
CO-WORKING
CO-WORKING
CO-WORKING
CO-WORKING











INTERIOR CONCEPT
Address: Lô CC-01, đường số 4, khu công nghiệp Tân Đông hiệp B, phường Tân Đông Hiệp, thành phố Dĩ An, tỉnh Bình Dương, Việt Nam
Area: 1424 spm


























Thanks for reading !
