Portfolio-DoanDat 2023

Page 1

2 Đoàn Quốc Đạt Mobile number: 098 6336 910 doandat33@gmail.com facebook.com/doandat33 behance.net/doandat33 instagram.com/doandat33
3
4 0. 1. 2. 3. 4. 5. 6. 7. 8. 9. 10. 11. 12. 13. 14. 15. 5 6 10 14 16 22 28 34 36 40 46 50 54 64 68 72 MỤC LỤC Curriculum vitae (CV) House U Lučiny CH House Poke Restaurant Pizza 4p’s Keangnam landmark 72 Community Village in Hoi An Affordable housing design challenge Nhà Vinhomes Riverside Embassy of The Czech Republic Ladipage Office Ocean Villa Da Nang Lotus QA Office ATS Headquarter TÂN ĐÔNG HIỆP Headquarter Các Concept khác Green Lungs Hanoi

1. House U Lučiny

- LÊN CONCEPT Ý TƯỞNG

- BASIC DESIGN

- PHỐI CẢNH 3D

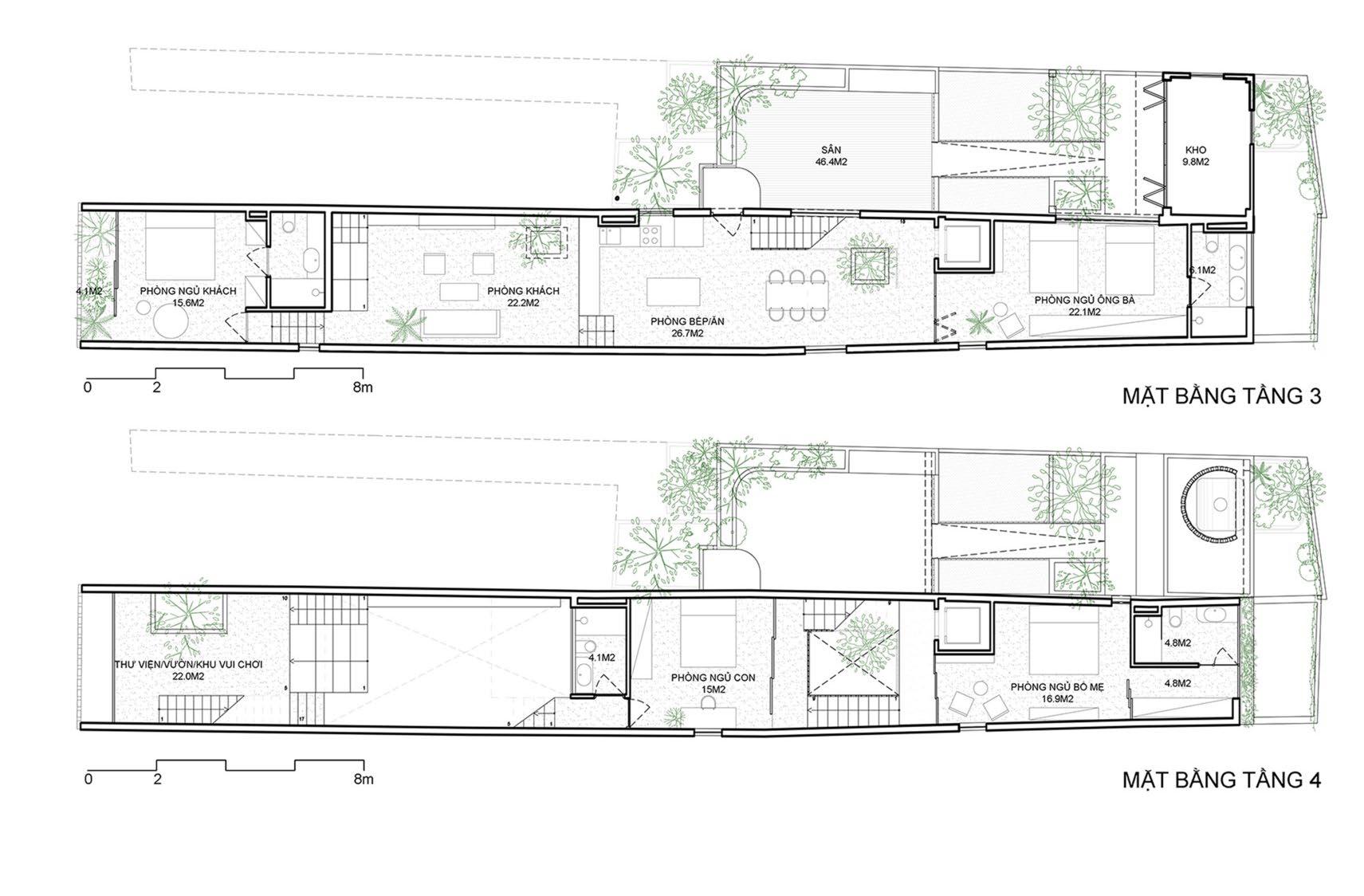
Ngôi nhà nằm ở Havířov, Cộng hòa Séc. Cảnh quan xung quanh của ngôi nhà được hình thành bởi một dòng sông uốn khúc Lučina, rừng ngập nước và các cánh đồng nông nghiệp. Ngôi nhà 2 tầng với các bức tường sắp xếp thú vị. hiều cao phù hợp tỉ lệ, do đó không làm xáo trộn cảnh quan thiên nhiên nhẹ nhàng xung quanh.

6
7
8 3D IMAGES Interior
Exterior
9 CONSTRUCTION SITE

2. CH House

- TRIỂN KHAI Ý TƯỞNG

- DETAIL DESIGN/ TRIỂN KHAI BẢN VẼ

CHI TIẾT

- GIÁM SÁT THIẾT KẾ TẠI CÔNG TRƯỜNG 2018- 5/2019

Địa điểm của ngôi nhà nằm trên một tuyến đường lớn cùng với mật độ dân cư xung vô cùng cao tại Hà Đông, Hà Nội. Do vậy, giúp gia chủ có được cảm giác thoải mái và thư giãn khi về với căn nhà, tách biệt với khói bụi và ồn ào bên ngoài là vấn đề được quan tâm nhất.

10
11
12
HÌNH ẢNH CÔNG TRÌNH photographed by Hoàng Lê
13

3. Poke Restaurant

- THỂ HIỆN PHỐI CẢNH 3D

- GIÁM SÁT THIẾT KẾ TẠI CÔNG TRƯỜNG.

Vị trí trung tâm Hà Nội, nằm trên phố Hàng Khay nơi có mật độ người và giao thông cao. Mục đích là cải tạo ngôi nhà cổ hẹp cũ bị bỏ quên, tạo nên không gian nhà hàng và căn hộ hấp dẫn. Cân nhắc các vấn đề liên quan tới môi trường. Quan sát cây xanh trên đầu chúng ta, tạo nên trải nghiệm như chúng ta đang ở trong rừng. Đặc tính mạnh mẽ tác động tới sự ý chú của con người.

14
15
HÌNH ẢNH CÔNG TRÌNH

4. Pizza 4p’s Keangnam landmark 72

- TRIỂN KHAI Ý TƯỞNG

- BASIC DESIGN/ BẢN VẼ SƠ BỘ

- THỂ HIỆN PHỐI CẢNH 3D

Địa điểm: Nằm ở tầng 1 của tòa nhà Keangnam landmark 72, Hà Nội.

CONCEPT DIAGRAMS

1. Các ống trụ treo lơ lửng là điểm nhấn của toàn bộ không gian, để khiến sự chú ý của mọi người. Sự tò mò sẽ được tạo ra theo bản năng, kèm theo mong muốn được vào không gian.

2. Các ống trụ tạo ra một ranh giới rõ ràng của không gian riêng giữa các không gian công cộng xung quanh để làm cho khách hàng cảm thấy thuận tiện và thoải mái.

3. Thay đổi độ cao và kích cỡ khác nhau của các ống trụ sẽ mang lại nhiều cảm giác cho khách hàng ngồi, đi lại và ăn uống bên dưới.

16

VẬT LIỆU CHO ỐNG TRỤ

17 Ý TƯỞNG
18
MẶT CẮT PHỐI CẢNH 3D
19
HÌNH ẢNH CÔNG TRÌNH photographed by Hoàng Lê
21
The lonely tree stands on the hillside ... in snowy

5. Community Village in Hoi An

- THỆ HỆ ẢNH MINH HỌA/ GRAPHIC DESIGN

- THỂ HIỆN PHỐI CẢNH 3D.

Mục đích là tìm cách xây dựng một cộng đồng lành mạnh tự túc mới dựa trên các nguyên tắc & giá trị truyền thống của Việt Nam. Làng cộng đồng được cho là tăng trưởng dài hạn để được quy hoạch tốt, thịnh vượng và môi trường xanh, đồng thời thiết lập tiêu chuẩn chất lượng cao cho cuộc sống bền vững.

CITY PROBLEMS

Dự án này là một câu trả lời cho sự phát triển nhanh không bền vững của các thành phố lớn nhất Việt Nam. Mục đích là để tạo ra một cuộc sống giá cả phải chăng nhưng chất lượng và chiến lược về lối sống tự túc và bền vững cho dân làng.

22
23
24
ECOLOGICAL
COMMUNITY

COMMUNITY OF ECOLOGICAL FARMERS

25
26
27

6. Affordable housing design challenge

- IN CHARGE/ PHỤ TRÁCH DỰ ÁN - LÊN Ý TƯỞNG QUY HOẠCH MẶT BẰNG TỔNG THỂ

Đây là cuộc thi “Thử thách thiết kế nhà ở giá rẻ” cho đặc khu kinh tế. Vị trí: Phnom Penh, Cambodia.

Để cải thiện điều kiện sống của công nhân trong ngành may mặc, việc cân nhắc cẩn thận không gian đô thị ngoài trời có thể ảnh hưởng rất lớn đến cuộc sống của họ. Tổ chức chỗ ở an toàn, một nơi để ăn và nghỉ ngơi vào ban đêm, cuộc sống hàng ngày xảy ra trong không gian ngoài trời và bán ngoài trời. Do đó, để cải thiện chất lượng cuộc sống của họ cũng như không gian đô thị cần được thiết kế thông minh. Để thúc đẩy các hoạt động ngoài trời nhằm tăng cường sự gắn kết cộng đồng như trước đây họ đã từng làm ở quê nhà, trước khi chuyển đến nơi ở mới.

Người lao động nên có cơ hội chăm sóc gia đình, kể cả trẻ em ở gần nơi làm việc và nhận dịch vụ công cộng cơ bản cho cộng đồng. Mục đích của dự án là thiết kế nhà ở giá rẻ cho công nhân với chất lượng cao của không gian ngoài trời và trong nhà để ổn định với các thành viên trong gia đình.

Khu vực nhà ở mới được đề xuất sẽ sớm trở thành một phần của sự kết hơp của thành phố Phnom Penh. Do đó, đề xuất xem xét chất lượng thành phố với các đặc điểm nông thôn. Khu vực này được bao quanh bởi một dòng sông có thể tăng cường các hoạt động ngoài trời và cũng để pha trộn cảnh quan sông với cảnh quan phát triển mới.

28
29
31
32
33

7. Nhà Vinhomes Riverside

- IN CHARGE/ PHỤ TRÁCH DỰ ÁN

- IDEA CONCEPT/ LÊN Ý TƯỞNG

- GRAPHIC

- PHỐI CẢNH 3D

Địa điểm: Vinhomes Riverside

Với 2 khu đất liền kề nhau, gia chủ muốn cải tạo 1 căn và phá dỡ 1 căn đi làm cảnh quan và không gian sinh hoạt ngoài trời vui chơi cho trẻ nhỏ.

34
35

8. Embassy of The Czech Republic

- IN CHARGE/ PHỤ TRÁCH DỰ ÁN

- DETAIL DESIGN/ TRIỂN KHAI BẢN VẼ

CHI TIẾT.

- GIÁM SÁT THIẾT KẾT TẠI CÔNG

TRƯỜNG 9/2019 - 12/2019.

Địa điểm: 15 Chu Văn An, Hà Nội Dự án cải tạo không gian làm việc và tiếp công dân của phòng lãnh sự. Điểm nhấn của công trình là khu ngồi đợi ngoài trời.

Hệ mái kính khung sắt được đỡ bởi các cánh cửa trang trí cao 3.7m, được làm thủ công bởi những người thợ lành nghề. Kết hợp với cây xanh, một phần không thể thiếu để hoàn thiện không gian, cái mà mang lại cảm giác thư giãn và mát mẻ cho người ngồi trong những ngày hè.

36
Hình ảnh trước cải tạo
37
HÌNH ẢNH CÔNG TRÌNH

The magic of the material

9. Ladipage Office

- IN CHARGE/ PHỤ TRÁCH

DỰ ÁN

- IDEA CONCEPT

- DETAIL DESIGN/ TRIỂN

KHAI BẢN VẼ CHI TIẾT.

Address: 24th floor, MD Complex Building, 68 Nguyen Co Thach, My Dinh, Tu Liem, Hanoi

Area: 640 spm

40
PARAMETRIC
41
42
43
44 RELAX - COFFEE - COWORKING
45

10. Ocean Villa Da Nang

- IDEA CONCEPT/ LÊN Ý TƯỞNG

Địa điểm: Ocean Villa Đà Nẵng.

46
MẶT BẰNG BỐ TRÍ NỘI THẤT CĂN E3
47
48
49

11. Lotus QA Office

- IN CHARGE/ PHỤ TRÁCH DỰ ÁN - IDEA CONCEPT

Address: 17th floor, MD Complex Building, 68 Nguyen Co Thach, My Dinh, Tu Liem, Hanoi Area: 640 spm

PARAMETRIC

50
51 LOTUS LOGO DEVELOP GROW UP GLOBAL COLOR
52
53

12. ATS Headquarter

- INTERIOR CONCEPT

- BASIC DESIGN/ BẢN VẼ SƠ BỘ

- THỂ HIỆN PHỐI CẢNH 3D

Address: 74 Ba Trieu, Tran Hung Dao, Hoan Kiem, Hanoi

Area: 1424 spm

54
55
SẢNH CHÍNH TÒA NHÀ

LEADING INTEGRATION

57
58 PHÒNG GIÁM ĐỐC PHÒNG VỆ SINH ĐIỂN HÌNH
59 KHÔNG GIAN THỜ
GIAN VĂN PHÒNG ĐIỂN HÌNH
KHÔNG

CO-WORKING

CO-WORKING

CO-WORKING

CO-WORKING

CO-WORKING

CO-WORKING

CO-WORKING

CO-WORKING

CO-WORKING

CO-WORKING

CO-WORKING

CO-WORKING

CO-WORKING

CO-WORKING

CO-WORKING

CO-WORKING

CO-WORKING

CO-WORKING

CO-WORKING

60
61

ATS - HỘI TRƯỜNG

62
Là không gian lớn, có thể dễ dàng thay đổi công năng.
63 LEADING
INTEGRATION

13. TÂN ĐÔNG HIỆP Headquarter

- INTERIOR CONCEPT - THỂ HIỆN 3D

Address: Lô CC-01, đường số 4, khu công nghiệp Tân Đông hiệp B, phường Tân Đông Hiệp, thành phố Dĩ An, tỉnh Bình Dương, Việt Nam

Area: 1424 spm

64
65
66
67

14. Các Concept khác

68
Showroom decor nằm ở mặt tiền sông Hàn tại thành phố Đà Nẵng.

CONCEPT DƯỚI DẠNG

69 THỂ HIỆN

Thể hiện bảng phối vật liệu

70
71

LongBiênBridge

ChươngDươngBridge

15. Green Lungs Hanoi

Lá phổi xanh Hà Nội (Green Lungs Hanoi) là dự

án phi lợi nhuận, phi chính trị nhằm trồng cây gây rừng cho thành phố Hà Nội. Dự án khởi xướng từ các cá nhân, tình nguyện viên yêu môi trường và mong muốn hành động để làm xanh môi trường thành phố.

Truy cập theo link để biết thêm thông tin: facebook.com/greenlungshanoi

72
73
75
Thanks for reading !

Turn static files into dynamic content formats.

Create a flipbook
Issuu converts static files into: digital portfolios, online yearbooks, online catalogs, digital photo albums and more. Sign up and create your flipbook.
Portfolio-DoanDat 2023 by Doan Dat - Issuu