Architecture Portfolio

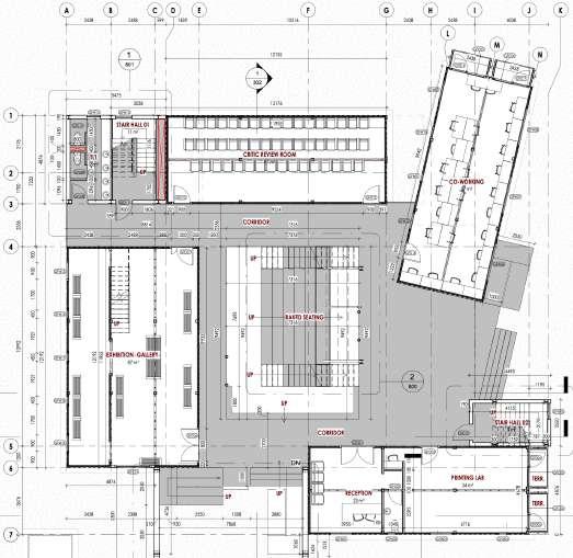
Page 1


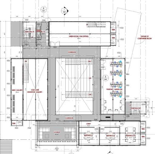
Description: A 700sqm, three-storey creative hub facility by the lagoon-front in the University of Lagos Built mostly with recycled shipping containers and a structural steel support system

Phases: Pre-design. Schematic Design. Design Development. Construction Document. Construction Admin. Softwares: Revit.

Status: Built

Photographs: Rubyspolaroid Jide Yeni

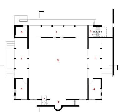
Description: Design development of a 400+ sqm, two-storey community mosque in Abijo where the building is a fusion of adopted and indigenous thought and execution

Phases: Pre-design. Schematic Design. Design Development. Construction Document. Construction Admin. Softwares: AutoCAD. Revit.

Status: Built

Photographs: Rubyspolaroid Mujib Ojeifo

1 - foyer

2 - male prayers

3 - qibla

4 - minaret

5 - female prayers

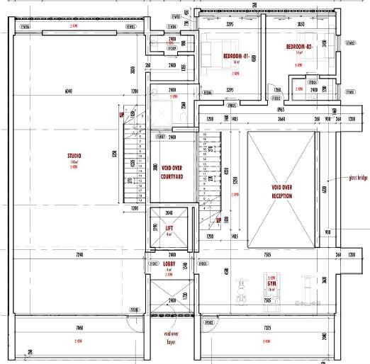
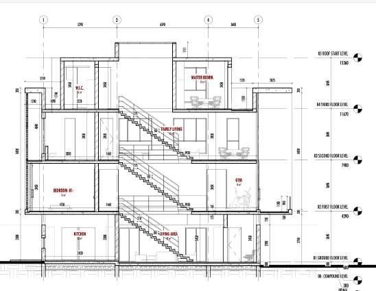
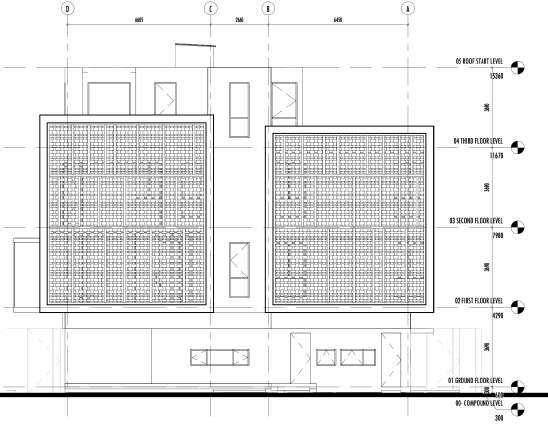
OSBORNE RESIDENCE

Description: A 250sqm, four-storey artist’s residence and studio building in Lagos Phases: Pre-design Schematic Design Design Development Construction Document Softwares: Revit. Status: Built.

Photographs: Client Author

floor plans

Description: As part of the JVS+TMU IPLAN program The schematic design of a two storey 100sqm building area villa residence for an architect on a hilly site

Phases: Pre-design. Schematic Design.

Softwares: Revit.

Status: Concept

OLUSOSUN STADIUM Lagos

Description: A design competition team entry for a multi-use stadium facility on a waste landfill site in Lagos that adapts and changes into residential, shopping and other commercial facilities when not in use as a stadium Phases: Pre-design. Schematic Design. Softwares: Revit. SketchUp. Lumion. Photoshop. Status: Concept

conceptual zoning

park ‘n’ ride and transport hub plastic sequestration

shopping mall

open market/ football pitch co-working hub

residential zone

skate park

the shopping mall terraces become stadium stands when the brise soleil [stadium seating) is projected forward to fully form the seats for the spectators

see various possibilities that this complex holds, whether being a commercial building with malls and markets or a sports stadium.

car park vs. night market
open market vs. football pitch
seats vs. brise soleil

STUDENT RESIDENCE

Description: A final group project as part of the JVS+TMU IPLAN program The schematic design of a 6 storey lightwood frame Student Residence (Toronto Metropolitan University) building combining knowledge from the Ontario Building Code, Material and Methods and Building Information Modeling courses.

Phases: Pre-design. Schematic Design.

Softwares: Revit Twinmotion 3DsMax Photoshop

Status: Concept

Roof Level

Typical Residential Layout

Level 3-6

Level 2

Level 1

Basement Levels

student residence spatial arrangement

Description: A design competition team entry for an urban community school in Bamako developed from a rich list of considerations including creating a fun and conducive learning environment, fluid movements and accessibility, climate responsiveness, resource and material availability, cost, and construction feasibility. Phases: Pre-design. Schematic Design.

Softwares: Revit 3DsMax Photoshop

Status: Concept

form development

SOUTHPARK COVE APARTMENT BUILDING

Description: A working drawing document for a built four-storey residential timber apartment building in Edmonton I reproduced as part of the completion requirements for an architecture training program. The drawings were done to acquire a comprehensive understanding of National Building Code NBC AE 2023, in its application and interpretation with respect to limiting distances, major occupancies, and fire protection Phases: Construction Document Softwares: Revit. Status: Built.

main floor plan

wall sections details

conceptual form development

STERLING TRAINING SCHOOL

Description: A proposed schematic design competition entry for a training facility where the brief required provision of a training block with offices and training classrooms, an auditorium block and a hotel block as residences when need arises.

conceptual form development

VALENTINE PAVILION Installation Concept

Description: The schematic design of a Valentine’s day themed installation passion project It was birthed as an expression of how similar the concept of love and life are with multiple ups and downs

Phases: Pre-design. Schematic Design.

Softwares: Revit. Photoshop.

Status: Concept

CAMERON APARTMENTS

Description: A proposed schematic design set for a 6-storey apartment block that comprises of 3 Bedroom apartments and 4 Bedroom Maisonettes with a communal leisure area, pool, greenery with adequate support facilities and car parking. The design concept is very intent on creating a communal block which brings the outside to the inside and loses the constricted apartment block feeling. Phases: Pre-design Schematic Design Softwares: Revit Lumion PowerPoint Status: Concept.

conceptual form development

axonometric views

Turn static files into dynamic content formats.

Create a flipbook
Issuu converts static files into: digital portfolios, online yearbooks, online catalogs, digital photo albums and more. Sign up and create your flipbook.
Architecture Portfolio by Damilare Ogunsanya - Issuu