Portfolio for UCL Bartlett MArch Architectural Design - Leonardo Dillon

Page 1


highlighted "Dubito, ergo cogito, ergo sum." – René Descartes. architecture works

Applying For:

MArch Architectural Design The Bartlett, Faculty of The Built Environment University College London Application Number 25137389

leonardo.dillon@ui.ac.id | leonardodillon02@gmail.com instagram.com/dillon.leonardo | instagram.com/arch.dillon linkedin.com/in/leonardo-dillon/ behance.net/leonardodillon highlighted architecture works

Dubito—I have always questioned the limits of traditional architecture and how design can address the complexities of our diverse world. Growing up in Indonesia, a country yet to embrace computational design, I wondered how architecture could harness this heterogeneity to create impactful solutions. Ergo Cogito—These doubts led me to explore computational design—using tools like Rhino, Grasshopper, and Python—to integrate technology, design, and sustainability. Projects like InfoMorph and international design competitions reflect my drive to merge the physical and digital realms, creating adaptive and inclusive spaces. Ergo Sum—hi, you can call me dillon, I am an architect-in-progress, driven by curiosity and a commitment to reimagining architectural methods.

This portfolio is a testament to my journey—how dubito sparked my questions as the input, cogito shaped my explorations through the design process, and sum defines the resulting architecture (output). This sum could inspire someone else's dubito, or even reignite my own, as fuel for future cogito. therefore, I strive to advance computational design to innovate, educate, and contribute to a better built environment.

working experiences

conducted a comprehensive analysis of 400 Google search results to identify trends, insights, and requirements for a community-based, data-driven disaster management platform, focusing on floods; synthesized raw data into actionable insights to develop a participatory urban flood resilience strategy; created visuals and insight reports to support decisionmaking in architectural research for further development; responsible for department laboratory operations and currently learning the KUKA robotics programming language.

since August 2024, provided feedback and evaluating student projects in Architecture Design on inside-out architecture; February to July 2024, guided students on foundational skills and creative communication in Basic Design II; earlier, in 2023, assessed and reviewed technical analyses, environmental simulations, and construction practices related to high-rise and widespan structures in Building Technology III.

research assistant | Aug 2024 - present | Architecture Design Lab (AD-LAB UI), IDN lecturer assistant | Aug 2023 - present | Universitas Indonesia (UI), IDN architectural intern | Aug 2024 - Dec 2024 | Pavilion95, IDN

contributed to the submission process for IAI Jakarta Awards with Greenhouse Ciledug and Rumah Emak; developed multiple facade options for Plaza Festival and prepared materials and presentations for Satpol PP Command Headquarters Mosque design proposals; designed and visualized pedestrian symbolic narrative patterns for Fatmawati and Supomo streets, and produced high-quality animations and visualizations for Satpol PP Command Headquarters; created physical models of Greenhouse Ciledug for IAI Jakarta Green Architecture Awards 2024; refined design presentation materials

educations publications

bachelor of architecture (S.Ars) | Aug 2020 - Aug 2024 | Universitas Indonesia (UI), IDN

GPA: 3.89/4.00 (139 credits + 6 block credits) elective course acoustics; geometry and architecture; urban housing theory; geographic psychology; architecture, city, and power; architecture, media, and context; high-rise building facade; everyday architecture, spatial objects; feasibility study of projects

Housing Stories (Kisah Merumah) July 2023 | Yayasan Ruang Nalar Habitat

SBN: 978-623-09-3182-6 a curated compilation of annotated bibliographies (pp. 71–75) and short stories (pp. 140-147) that interpret the concept of home through a holistic exploration of knowledge. this work delves into the relationship between humans, the built environment, and interconnected social networks, uncovering the profound meaning of home. it begins with the intimate experience of life in the space where everything originates home.

organizations & volunteers

co-head of concept | Mar 2023 - Jan 2024 | Architecture Fair UI 2024, IDN

arranged the concept for the Architecture Fair 2024, covering the competition, exhibition, student presentation, and talkshows; the exhibition featured 300+ works from UI and other Indonesian universities, curated by studio coordinator lecturers, held at the Museum Kebangkitan Indonesia.

director of outgoing competitions | Feb 2023 - Jan 2024 | EERI UI Student Chapter, IDN

organized a webinar series on earthquake engineering to enhance knowledge across architecture, structure, geotechnical, and modelmaking units; managed the recruitment and hiring process for 50+ students, selecting the best team for the Seismic Design Competition 2024 in the USA.

head of research and development | Jan 2022 - Feb 2023 | Architecture Students Association, IDN

awarded best manager with a 3.98/4.00 HR evaluation; led curriculum regeneration for 13 architecture departments and conducted performance evaluations for 34 managers; managed recruitment and hiring for 90+ students

honors & awards

exhibitor | 2024 | ATRIA, SAPPD, Institut Teknologi Bandung, IDN

selected by Universitas Indonesia to represent the university and showcase my final architecture project

best final project 2024 | Department of Architecture, Universitas Indonesia, IDN

awarded as best final project from 20 final projects

top GPA 2024 | Department of Architecture, Universitas Indonesia, IDN

awarded as best GPA with 3.89/4.00 from 75 graduates

honorable mention | 2024 | Net Zero Tech International Contest, National Taiwan University, TWN

awarded as excellence from 99 international teams (15+ country)

shortlisted project | 2024 | AFAIR, Universitas Indonesia, IDN

Selected from 100+ Architectural Design 4 Projects and 100+ Architectural Design 3 projects for the exhibition

top 5 2023 | Livable Oasis, ARCHDAY, Universitas Lambung Mangkurat, IDN

managed to enter top 5 and ranked 4th from 15+ competing university across Indonesia

exhibitor | 2023 MBloc Design Week's Exposisi Reinvent Jakarta Student Projects Exhibition, IDN

selected among 87 works from universities across Jakarta and honored as best 5 to present the project

champion | 2023 | Business-IT Case Competition, COMPFEST 15, Universitas Indonesia, IDN

awarded as the champion from 100+ competing teams across Indonesia

finalist | 2023 | Seismic Design Competition, EERI Student Leadership Council, USA

awarded as 11th in architecture award and best 7th presentation from 38 international teams (15+ country)

3rd winner | Bridge Design Competition, Nanyang Technological University, SGP

awarded as 3rd winner from 134 international teams (10+ country)

shortlisted project | 2022 AFAIR Universitas Indonesia, IDN

selected from 100+ Basic Design 2 Projects for the exhibition

most outstanding student | 2022 | Department of Architecture, Universitas Indonesia, IDN

elected from class of 2019-2021 with 300+ students as the best scientific papers submitter

top 5 2022 | Innovation on Maritime Building, SEPEKAN UAJ Yogyakarta, IDN

managed to enter top 5 from 80+ participant teams of 20+ competing university across Indonesia

skills interest

adobe suite (photoshop, illustrator, indesign, premiere pro), rhinoceros3d + grasshopper, sketchup, autocad, enscape, twinmotion, lumion, blender3d, figma, audition, visual studio code

cinematography, theatre (especially musical), diagrams, illustration, maths, physics, art, computational design, coding

1 2 3 4 5 6 7

Information Flow-based Urban Networks Architecture Construction

infomorph:

Information Flow-based Urban Networks Architecture Construction

speculative design | architecture proposition

July 2024 | ATRIA 2024 Exhibition by Institut Teknologi Bandung; Best Final Project at Universitas Indonesia Individual

to make haste!

dubito—The current state of urban systems relies on static and linear frameworks that fail to adapt to the complexity and dynamism of contemporary life.With the rise of the second machine age, information has become an abundant yet underutilized resource. This prompts a critical question: how can cities transform into systems that not only adapt to but also thrive within this new information-rich paradigm?

ergo cogito—In response, InfoMorph processes these doubts by adopting computational and algorithmic methodologies inspired by ecological systems Through Cellular Automata and Swarm Intelligence, I developed simulations that model collective behaviors, enabling urban environments to reorganize themselves dynamically. These algorithms guide resource flows spatial configurations, and architectural forms creating adaptive frameworks capable of evolving in real time This process leverages information as the driving force for creating metabolistic urban networks—systems that continuously self-regulate and respond to changing environmental and social conditions.

ergo sum—The result is InfoMorph, a vision of cities as dynamic self-organizing ecosystems that treat information as a physical resource. By integrating the physical and digital realms, it introduces the concept of multispace adaptive and scalable urban environments that regenerate and evolve. This plug-in architecture shifts the narrative from sustainability as mitigation to sustainability as regeneration demonstrating how architecture can actively shape resilient and inclusive futures

phase 1; theory frameworking

an urban computer for processing urbanscale information

a layered cityscape with structural urban network components, materialized by the swarm networks topologies. The left panel features sectional diagrams of vertical construction phases labeled with numeric bits of information. Key design elements include modular scalability and a visual emphasis on growth and integration within the urban network.

Information is physical, as shown by the second law of thermodynamics on entropy (Menges and Ahlquist, 2011). An ecological perspective views its metabolism— emergence, life, and death—shaping spatiality within systems (Lucas et al., 2012; Menges and Ahlquist, 2011). Positioned for algorithmic processing, information forms a cybernetic multispace integrating physical and digital realms through dynamic feedback loops (Menges and Ahlquist, 2011; Hopkins, 2023). This framework defines InfoMorph as a system managing and spatializing information ecologically and computationally.

The process begins with a 2D Cellular Automata script that organizes objects based on neighborhood rules, where cells with 2-3 neighbors remain active. These active cells are stacked to form threedimensional patterns, establishing foundational spatial relationships.

Evaluation: Urban contexts cannot be reduced to stacked floors; they exist in a 4D reality, encompassing three-dimensional space and the dynamic element of time.

The transition to three dimensions allows for the exploration of volumetric constraints and the development of more complex spatial relationships.

Evaluation: The transition to 3D enables the integration of Cellular Automata and Swarm Intelligence.

Employing a cybernetic design process, this study integrates cellular automata with swarm intelligence to model adaptive urban systems. Cellular automata evaluate urban cells, generating outputs that serve as inputs for swarm simulations to mimic dynamic crowd behaviors. The iterative feedback loop optimizes spatial performance, creating a responsive framework for urban planning that bridges computational design with adaptive ecologies. the consequences - multispace;

The physical world generates information, processed digitally through algorithms, and returns as a design response, creating an adaptive, dynamic city network. This interplay between the physical and digital realms manifests the multi-space concept, where the system continuously self-regulates through feedback loops.

form between things; The swarm networks generated through computational processes are evaluated based on their topological structures, focusing on the relationships between points and lines. These interactions evolve into distinct elements—nodes, relays, and modules—guided by the specific growth logic of each network. Their growth logic position swarm topologies as a foundational framework for the urban network materialization.

urban network morphing components; These components prioritize scalability and modularity, enabling fragments to adapt into diverse swarm network topologies and subsequently into urban networks. The components function either as parasitic or standalone elements, floating or rooted, capable of merging with or detaching from others. This plug-in adaptability, central to InfoMorph architecture, supports an autonomous and responsive urban logistics system, driven by the information processed within these networks.

In an ever-changing urban context, information constantly evolves, requiring the network components to adapt accordingly.

mapping of the urban network components
The dynamics of urban network components are ephemeral, as they must integrate with other urban networks.

from object to fields information as resource logistic of context digital physical second machine age from individual to collectives

design cybernetics algorithm components fragment architecture entities

urban networks swarm networks topology form between things

InfoMorph scenario

The whole study challenges the conventional top-down approach to city building by adopting an alternative perspective rooted in Allen’s logistics of context theory, through computational thinking and leverages information as a key resource, promoting a distributed design methodology that emphasizes adaptability, decentralization, and responsive urban systems—a living city that has its own metabolism!

bottom-up architecture

July 2023 MBloc Design Week's Exposisi Reinvent Jakarta Student Projects Exhibition; Shortlisted Project of Architecture Fair 2024 by Universitas Indonesia Individual

dubito—In dense urban areas, marginalized communities, particularly those with diverse sexual orientations, often face challenges in pursuing healthy intimacy. Public spaces are typically not designed to accommodate their need for privacy, comfort, and safety. This raises a critical question: how can architecture create inclusive spaces that empower these communities to form meaningful relationships while respecting their individuality and the complexities of urban contexts?

ergo cogito—The project tackles this challenge by adopting a bottom-up architectural approach. It starts with understanding user behaviors and contextual nuances, emphasizing inclusivity and the organic evolution of relationships. Inspired by the structure of dating apps, the design translates digital interaction patterns into site-specific parcels. These spaces reflect the fluidity of relationships, blending seamlessly into the urban fabric while fostering privacy and a sense of sanctuary.

ergo sum—The outcome is a network of adaptive and inclusive spaces designed to provide marginalized communities with a haven (/haven/) for meaningful interactions and connections (/nexus/). These architectural interventions empower users to pursue healthy intimacy without fear or judgment, demonstrating how bottom-up design can create spaces that adapt to the social and emotional dynamics of urban life.

phase 2; issue generating & scenario making free of judgement

Big data from dating apps reveals that online interactions alone are insufficient to build meaningful connections. In Indonesia, meeting potential partners online is often perceived as risky. Therefore, this highlights the need for a safe, physical space for such connections to take place without fear of harm or judgment.

Meanwhile in Blok M, with its reputation as a melting pot, offers a unique opportunity to bridge this gap. Site surveys show its allure lies in the hidden parcels within its dense urban morphology, creating intimate, secluded spaces. This characteristic inspires a design that leverages these hidden gems, integrating them into a safe, contextual framework for fostering genuine connections.

The architecture employs a bottom-up approach, using big data and site surveys, then scenario-making. By analyzing big data from inclusive dating apps and conducting site surveys, the project identifies critical issues related to privacy, accessibility, and social inclusivity. These insights shape a contextual-subversive architecture that seamlessly integrates into its surroundings while challenging conventional paradigms of public and private space.

phase 3; form driven by circulation and privacy level

The design emphasizes discreet integration within the urban fabric, ensuring that the parcel blends harmoniously into its setting. Spatial strategies prioritize a certain level of privacy for each program unit while fostering opportunities for genuine interaction, from intimate nooks to open communal areas. Materials, forms, and layouts respond to both the physical and cultural context, creating a haven that is not only visually unobtrusive but also deeply inclusive. This project demonstrates how architecture can bridge digital and physical realms, transforming abstract data into tangible spaces that enhance human connection. It offers a blueprint for rethinking urban social spaces as catalysts for relationships, reflecting the evolving needs of diverse, specifically marginalized communities. The form of the design is driven by circulation which is guided by programmatic units derived from issue analysis and data synthesis. Crossings and landings are utilized to establish connections and transitions, enhancing spatial continuity and accessibility.

poetic construction | tectonic

dubito—Can architecture transform industrial pig farming to prioritize animal wellbeing while maintaining ecological and structural integrity?

ergo cogito—This project reimagines pig farming using bamboo and a webbing technique, overlapping modules to create dynamic spaces that support pigs’ natural behaviors. The design integrates structure, program, and context while promoting freedom of movement and comfort.

ergo sum—The result is a sustainable, bamboo-based system that provides pigs with natural, spacious environments, minimizing the carbon footprint while fostering wellbeing for both animals and the ecosystem.

The bamboo joinery supports the intricate webbing, showcasing its strength and versatility. The primary grid shell structure integrates with a dynamic secondary structure, using hinge panels to adapt pigpens to lifecycle needs. Human and pig access are separated for hygiene and efficiency, with caretakers using an elevated pathway. The roof, oriented to Bali’s sun path, features woven patterns for light diffusion and rainproofing, blending function with local craftsmanship.

Oct 2022 Indonesia Building Technology Expo 2022 Universitas Indonesia Representative | Individual
The pens are modularly designed for efficient programming, with adjustable panel webbing to control visual permeability based on the pigs' lifecycle. For more information, scan the QR!

dubito—Can architecture address both thermal comfort and environmental sustainability by drawing inspiration from vernacular systems while introducing innovative technologies?

ergo cogito—This project utilizes tuff rocks, a traditional material known for its natural thermal properties, combined with an innovative water-based system. The rocks absorb heat from both the building and the surrounding environment, transferring it to water, which maintains thermal comfort while producing water at a stable 23°C. This byproduct is used for irrigation, creating a closed-loop system that mirrors the sustainable practices of vernacular architecture.

ergo sum—The result is an innovative yet contextually grounded architectural system that harmonizes thermal comfort and environmental sustainability, demonstrating how modern technology can enhance traditional building methods for a more sustainable future.

Ceiling fans complement the natural ventilation system, with air conditioning reserved for peak demands, maintaining a minimal 5°C temperature difference between inside and outside.

This holistic approach significantly reduces reliance on air conditioning, showcasing a synergy of technology, climate responsiveness, and sustainable design.

On a micro-scale, thermal comfort is enhanced by strategic gappings, separating exterior walls from the floor and slabs to promote natural wind flow.

Pipes, integral to both utility and aesthetics, form a double-skin facade aided by vegetation to regulate water temperature as part of the facade’s thermal performance.

The selected site lies within the Ciherang rice fields, a highly productive agricultural zone irrigated by the historic Van der Wijck ditch, which channels water from the Karang Talun Dam on the Progo River.

Compared to water, 0.32 times the volume of water is required to achieve the same temperature change.

To reduce the temperature of 1 kg or 1 m³ of air by 1°C, 1000 J is required. For brown tuff (heat capacity of 1.354 J/kg°C), 738.55 kg or 0.55 m³ is needed.

solar envelope.

This irrigation system supports diverse crop cultivation, including rice, tobacco, corn, melons, and long beans. The site’s suitability for rice cultivation is emphasized by optimal climatic and soil conditions: temperatures averaging 23°C, annual rainfall of 1500–2000 mm, and fertile paddy soil with a balanced sand-silt-clay composition. This agricultural richness informs the architectural approach, integrating systems to maintain thermal comfort while supporting sustainable irrigation, thereby preserving the symbiosis between the built environment and its agrarian context.

wind tunnel.

Wind movement mapping informs the volcanic tuff thickness and ventilation placement: east-facing areas maximize wind speed with high-density vents, while west-facing zones use thicker stone, shielding pipes, and vegetation for heat protection. North and south orientations adapt for spatial efficiency and environmental balance.

phase 3; form generating and performance optimization

Solar envelope simulation optimizes sunlight access for adjacent rice fields, removing obstructive surfaces to ensure consistent crop growth.

boole-a(n) salted fish

top-down architecture | generative design | typology study

dubito—Can a top-down approach, inspired by market and warehouse typologies, integrate privacy, circulation, and programmatic needs within site constraints?

ergo cogito—By analyzing precedents and extracting keywords like privacy and circulation, the project uses computational methods to synthesize form with site constraints.

ergo sum—The result is an innovative, context-responsive design that balances functional requirements.

phase 1; precedents analysis & synthesis

The Boolean Salted Fish project separates public and private spaces with a clear layout, using a centralized and fragmented organization. Public areas, like the fish market, are easily accessible, while private spaces, such as production and storage, ensure privacy and operational efficiency. Sequential openings guide users through the space, following the program's flow

Located at a pumping station near the Luar Batang Fish Market and Sunda Kelapa Harbor, the design merges market and warehouse typologies to serve both production and public functions. Circular flow and branching circulation optimize movement, connecting production areas with storage and market spaces. The pro ect adapts lessons from market and warehouse precedents to address the site's specific needs, enhancing both efficiency and productivity while maintaining clear spatial organization, which then serve as constraints for the Grasshopper definition process by translating the operative keywords.

phase 3; form generating

The project uses slicing and intersecting forms to separate public and private spaces. Public areas, like the fish market, are near the waterfront, while private spaces, such as salting and storage, are placed away from high-traffic zones. This slicing approach defines functional separations, optimizing operational efficiency and privacy.

The site, located at a pumping station near Luar Batang Fish Market and Sunda Kelapa Harbor, has narrow dimensions requiring efficient land-water circulation, to maximize salted fish production efficiency and adaptability to high dynamic between land-water activities.

The existing salted fish business, with a 5,000 sqm area, currently produces 1 ton per day in the dry season and 700 kg per day in the rainy season. In contrast, the Boolean Salted Fish design, with a footprint of just 1,500 sqm, boosts productivity by 300%. It features a 568 sqm loading dock that accommodates 8-10 boats, a 188.6 sqm wet storage with a capacity of 40-60 tons, and a 281.74 sqm dry salting area capable of processing 10 tons of fish in 3 days, all within the optimized space.

This increase in efficiency and productivity was made possible by the integration of scripting and formgeneration techniques, which optimized land-water circulation by challenging traditional RDTR (Rencana Detail Tata Ruang) regulations. By rethinking typical zoning and circulation patterns, the design adapts the site’s constraints and enhances its functionality, prioritizing seamless flow between land-based and water-based operations. The use of booleaning operative keyword allowed for the creation of distinct spaces that respond to the needs of both public and private functions, improving operational efficiency. This approach breaks away from conventional layouts, creating an innovative circulation model that maximizes productivity, while respecting the site's unique relationship between land and water.

bamboo eco-therm

research on sustainability | built Jan 2024 | Innovation Funding Program by Universitas Indonesia

“Eco-friendly wall panel, balanced temperature”

dubito—Can traditional materials like bamboo, when combined with advanced technology such as phase change material (PCM), provide an eco-friendly and sustainable solution for thermal comfort in highland tourism accommodations?

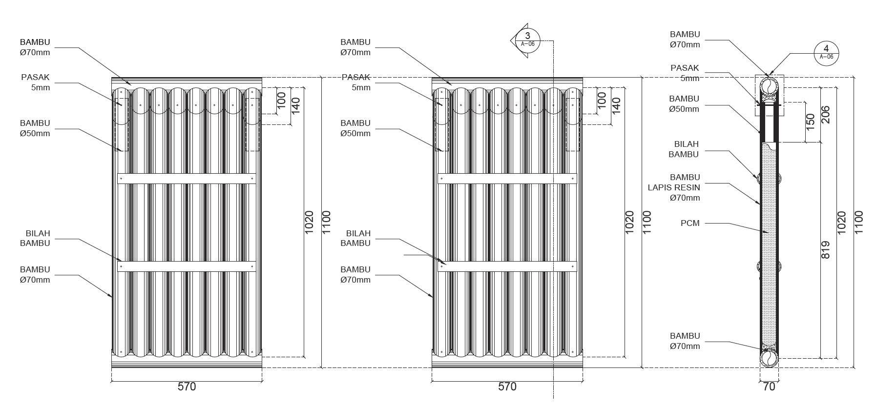
The bamboo panel is fabricated in the workshop, then transported to the site for installation on the villa's wall. Once installed, it undergoes testing by a mechanical engineer to evaluate its reliability as a thermal stabilizer.

In this project, my team role focused on designing the joints of the bio-based wall panels for modular bamboo villas, prioritizing ease of installation and functionality. The panels use a knockdown system for efficiency and shield PCM (phase change material) from direct sunlight to enhance performance. The panels securely contain coconut oilbased PCM, integrate with bamboo, and allow for easy disassembly and PCM replacement every 5–10 years, ensuring long-term sustainability.

*all of these drawings are made by me after discussion process

ergo sum—The result is a modular, scalable, and ecofriendly solution for tourism villas, prioritizing long-term functionality and environmental responsibility while contributing to SDG 7: Affordable and Clean Energy.

Team

project, competition

activities and engagement highlights

2023

Seismic Design Competition

EERI Student Leadership Council San Francisco, USA | Finalist

Zamrud Tower | team supervised by

Prof. Widjojo A. Prakoso, PhD, GEng;

Dr.-Ing. Josia Irwan Rastandi, M.T.;

Dr.-Ing. Ir. Ova Candra Dewi S.T., M.Sc. GP., IPU.

2024

Net Zero Tech International Contest National Taiwan University Taiwan

Honorable Mention

Sao Paulo Public Library team supervised by Ardiyansyah Yatim, Ph.D; Dr.-Ing. Ir. Ova Candra Dewi S.T., M.Sc. GP., IPU.

diagrams

2023

activities and engagement highlights

community service, platform, assistant,talk,volunteer

activities and engagement highlights

2024

ARCHADEMY

co-founder education platform

empower aspiring architecture students and design enthusiasts with engaging, accessible content.

ARCHADEMY reflects my passion for making architectural knowledge accessible and fostering growth in the field.

2023-2024

Building Technology III (Odd, 2023/2024) Basic Design II (Even 2023/2024) Architectural Design (Odd, 2024/2025)

lecturer assistant

provide feedback on inside-out architecture projects in Architecture Design 1 guide idea communication through media and diagrammatic thinking in Basic Design 2 and focus on high-rise and widespan structures, as well as environmental and structural

2024

Architecture Design Lab (AD-LAB) Universitas Indonesia

lab assistant

responsible for department laboratory operations and currently learning the KUKA robotics programming language through KUKRA|prc in GH.

2024

RECEHPOL:

Research Center of Housing and Policy

field researcher | team community service

studied housing and urban settlement theory, geographic psychology, and field reports; collected data on Kampung Kota (Urban Village) using participatory method with local communities; produced field reports on the history of the kampung, geosocial maps, village strengths, and proposed programs.

2024

Architecture Fair 2024

co-head of concept | team volunteer

helped

2024

Sharing TA: Ignissione keynote speaker talk

one

leonardo.dillon@ui.ac.id | leonardodillon02@gmail.com instagram.com/dillon.leonardo | instagram.com/arch.dillon linkedin.com/in/leonardo-dillon/ behance.net/leonardodillon highlighted architecture works

Leonardo Di on

Turn static files into dynamic content formats.

Create a flipbook
Issuu converts static files into: digital portfolios, online yearbooks, online catalogs, digital photo albums and more. Sign up and create your flipbook.