Skip to main content

Diksha_Portfolio_Architecture

Page 1


Diksha Singh +1 510-679-7868 diksha_singh@berkeley.edu

Professional and Architecture Works

conventional type

modulation 01 : sky bought to the lower level

modulation 02 : earth pulled up to the upper floors

Designing a new studio space for a long established and leading environmental graphics firm meant creating a spatial experience that provided continuity with their work ethic and yet explored new inter-relationships that could foster creative thinking

Urban Plot is programmed as a sustainable live-work setup with the lower two levels as the studio space and the upper two as a residence. The two-level office for a non-hierarchical design studio called for strong integration between the two floors. A central void acts as an interactive heart for the office.

LIVE-WORK DESTINATION

Location: Delhi, India

Architecture| Residential

Design Team Mukul Arora, Diksha Singh, Nivedita Sehgal, Saurabh Syal

Client Anthony Lopez

Gross built area: 4000 sqft

Professional | Group 2019

Contribution: Producing working drawings Coordination

the connecting void

The eastern light well, bringing light to the lower two levels of the live-work unit
The metalgrate bridge connects the front and back yard
The eastern light well, bringing light to the lower two levels of the live-work unit
The metalgrate bridge connects the front and back yard

CLUB

TWO AXIS AND FOLLIES SHAFT OF VIEW CURIOUS DYNAMICS OF URBAN SPACES

An urban club: The threshold of the club with the city plaza and retail plaza

Location: Devanhalli, Bangalore, India

Architecture | Social Hub

Design Team (DADA Partners): Mukul Arora, Diksha Singh

Consultants: Landart (Landscape)

Client Godrej Properties Ltd.

Gross built area:

Professional | Group 2018 - Present inside out

Two clubs and its dialogue with the city : the plan is an assemblage of a iconic spinethe boulevard - and the two anchors - the club and nandi hill park

urban building built with landform

3 fronts

porticos wrap the landscape at ground plane

proposal

A plan that works with the contours. The structure or framework emerges from the deep understanding of the uniques landform of the site

Creating a public interface between the city forest and the main street. an urban building that would sit hugging the sloping landform

terrace above

iconic red roof

The key design feature in this club building is the interlocking of volumes and planes on its façade as an interface to the very busy street to its front. Defined by its volumetric language and with careful use of material palette the form changes its character during the course of day with its ever changing light and shadow.

front
curious dynamic of urban spaces

This originates from the desire to create a larger volume in relatable proportions combined with the search for optimum use of light. This led to an contemporary, finely detailed building.

There are a series of smaller courts/ voids punctuated on all levels bringing in light and ventilation to the spaces and serving as lungs of the building.

The open to sky courtyard creates an efficient airflow providing a comfortable microclimate that influences all the spaces of the club.

To achieve a lighter tectonic a composite structure was adopted, allowing a delicate finale

construction details

*all presented drawings, illustrations are produced by me.

metal roof detail finish : epe cladding
metal roof partial plan
side elevation

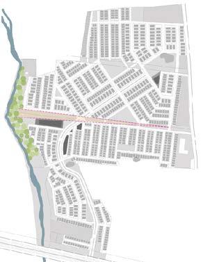
The site of approx 4 acres is located between Sabzi Mandi railway station and Pratap nagar metro station. The area nearby consists of different residential typologies and have adapted to the site differently.

The proposal focused in helping to connect the communities and also work for the betterment of the people and the commuters. A mixed use intervention works towards serving to different needs of different sections of the society and helps in bringing them together as a community.

THE URBAN LINK

Location: Sabzi Mandi Railway Station, New Delhi

Mixed Use Development | Transit Oriented Development

Guide: Manas Murthy Saurabh Banerjia

3rd Year STUDIO | 2015 Academic Individual

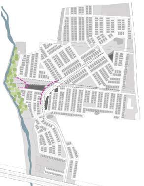
street vendors living in the slum area; they rely on the pedestrian traffic between the two stations

auto drivers live in nearly areas majorly bagichi pirji;

pedestrian commuters people going from the railway station to the metro station; these people create a daily cycle

Through footfall analysis, volumetric and spatial surveying and studying different typologies of housings of the area, the requirements for the proposal were derived. The focus while planning the proposal was the pedestrian axis that connects the railway station to the metro station, and to smaller axis roads connecting different residential colonies of the area.

bagichi pirji
PRATAP NAGAr
railway colony
bagichi pirji
site
railway station
metro station

Goal

• Provide better life style to the present dwellers in the slum.

• Commerce run by these dwellers, act as a source of income.(presently mostly work as street hawkers or are unemployed)

• School, community space for the residents as most of them are uneducated and do not go to school.

• Maintaining the axis will give maximum and easier pedestrian movement.

While exploring different massing and place making strategies

Pedestrian movement given priority.

• Central Plaza is an interface between all the different functions.

• Two major connections; between the railway station and metro station and the existing residential areas

• The front facade faces the main road at the periphery of the site to attract more footfall.

• The vehicular movement for the site shifted to the periphery of the site.

Through strategic integration of interstitial spaces and use of local streets to act as a multi-use spaces, informal activities such as, vegetable markets, weekly bazaars, etc. are given legitimacy and the residents in-turn offered a full spectrum of amenities. At a design level, ensuring flexibility of such spaces is central to their success. So, from a formal citywide retail spine to the informal retailing spaces, the design begins to address the notions of operating between ‘order and spontaneity’ proposal

The plan recognizes that mobility is about getting people to where they want to go, efficiently, conveniently, and safely. Mobility can be provided through high quality public realm, sensitivity to local context, high

public transport, and not necessarily by using wide street sections.

The proposed neighbourhood will be diverse in its use and population. The intent is to connect the different uses and make them universally accessible. The central spine is framed by architecture and open spaces, that celebrate the existing local neighbourhood structure and its people.

Turn static files into dynamic content formats.

Create a flipbook