Skip to main content

The Augusta on Main

Page 1


HISTORIC ST CHARLES

ON MAIN

Welcome to The Augusta on Main, a rare opportunity to live in the heart of St Charles?historic district This beautifully crafted luxury condominium and townhome community places you just steps from charming restaurants,boutique shops,and lively community events

The Augusta on Main offers an exceptional collection of residences, including 1-bedroom, 2-bedroom, and 3-bedroom condos, 2-bedroom penthouses, and spacious 3-bedroom, two-level townhomes Each home showcases elegant bathrooms and designer finishes throughout Gourmet kitchens feature sleek cabinetry,quartz countertops,and state-of-the-art appliances? perfect for both entertaining and everyday living

Open-concept layouts create a seamless flow between living and dining spaces, highlighted by light-filled interiors and a striking fireplace Thoughtfully designed with comfort and sophistication in mind,this newly constructed community delivers modern luxury in a refined and inviting setting ? PAGE01?

TimelessSurroundings.LuxuryLiving .

Comfort,Convenience,&Community

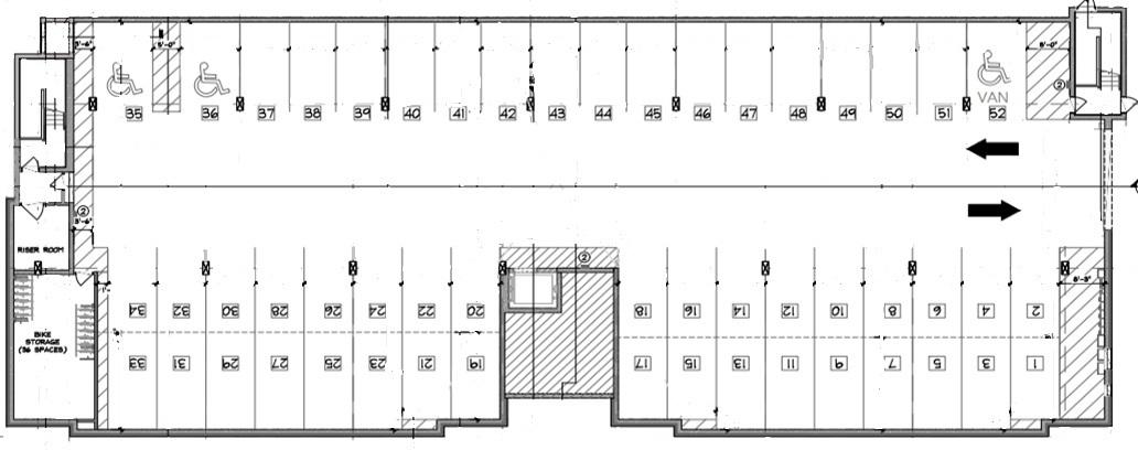
Situated within the highly regarded St Charles R-VI School District? Lincoln Elementary, Jefferson/ Hardin Middle School, and St Charles High School? The Augusta on Main pairs a historic setting with thoughtful modern conveniences Residents enjoy a secure building with elevator access, underground parking,and efficient modern utilities,including cable,electric service,forced-air heating,and central air conditioning

Interiors are elevated with spa-inspired bathrooms, luxury flooring, and carefully selected designer lighting and hardware, creating a polished and cohesive aesthetic throughout each residence Community amenities extend living beyond your front door and include a state-of-the-art fitness center with cold plunge and infrared sauna,a private speakeasy,and a rooftop deck ideal for relaxing,entertaining,or taking in sunset views

With easy access to the Katy Trail and the charm of historic Main Street just outside your door, The Augusta on Main offers a rare blend of lifestyle, convenience,and modern comfort? where history and contemporary living come together seamlessly

BuildingAmenities

- COMMUNITY AMENITY CENTER

- DESIGNER FINISHES

- DESIGNATED UNDERGROUND PARKING

- LOCATED NEAR THE KATY TRAIL

- BUILDING ELEVATOR SERVICING ALL FLOORS

- COMMUNITYROOFTOP DECK

- SECUREPACKAGE ROOM

- GATED ENTRANCE

- BIKESTORAGE

- ELEGANT 14' ENTRANCE WITH CHANDELIER

AmenityCenter

- FITNESS CENTER WITH COLD PLUNGE & INFRARED SAUNA

- FULL CHEF'S KITCHEN WITH A SEATING LOUNGE

- SPEAKEASYWITH WINE LOCKERS

- ROOFTOP DECK

- COMMUNITYPARTY/ ENTERTAINING ROOM

- OUTDOOR PATIO WITH FIRE PITS & GRILL

- RIVERFRONT VIEWS

- FIREPIT

1Bed|1Bath|640sq.ft.

2Bed|2Bath|1,108sq.ft.

3Bed|2.5Bath|2,012sq.ft.

AvailableModels

Penthouse

2Bed|2Bath|1,544sq.ft.

Townhome

InteriorDesignConcepts

Mat erials | Primary Bat hroom

1-BEDROOM

2-BEDROOM

3-BEDROOM TOWNHOUSE - OPTIONS FOR PATIO OR GARDEN -

PENTHOUSE

3-BEDROOM

ExperienceModernLuxury onHistoricMainStreet

The Historic Main Street District dates back to the late 1700's and briefly served as Missouri's State Capitol in the 1820's Renowned for it's iconic cobblestone and street lanterns, these historic buildings house over 40 restaurants and over 100 different retail boutiques and businesses along seven blocks of Main Street The nearby Missouri Riverfront features the 16-acre Frontier Park as well as a portion of the heavily biked Katy Trail, and also several cultural landmarks

In addition, four major employers call the area home and provide over 4,000 jobs within walking distance, including the St Charles City Hall, the St Charles County Government Center, the three-hundred-thirty-three-bed SSM St Joseph Health Center, and the Ameristar Casino & Resort Spa The City of St Charles recently announced the development of a new City Hall and Community Center at the north end of Main Street

Charming Hist oric At mosphere

Enjoy beautifully preserved 19th-century architecture and brick-lined streets that give the area a timeless,storybook feel

Walkable Lifest yle

Shops, restaurants, cafés, and entertainment are all within easy walking distance? no need to drive everywhere

Vibrant Communit y Event s

Experience year-round festivals like Christmas Traditions, the Festival of the Little Hills, and Music on Main just steps from your door

Riverfront Views & Recreat ion

The Missouri River and Katy Trail offer scenic walks, bike rides, and peaceful spots to relax outdoors

Local Dining & Night life

From cozy brunch spots to wine bars and live music venues, Main Street has an exciting food and entertainment scene

St rong Sense of Communit y Friendly neighbors, small businesses, and locally owned shops create a close-knit, welcoming environment

Hist oric & Modern Blend

Enjoy the best of both worlds: charming historic surroundings with access to modern amenities and conveniences

Proximit y t o St Louis

Just minutes from major highways, offering an easy commute to St Louis while maintaining a small-town,riverside lifestyle

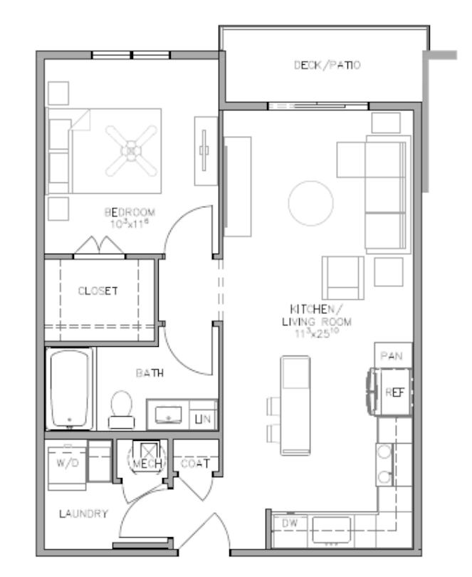
1-Bedroom

1Bed

1FullBath

640sq.ft.

ELEVATE YOUR LIFESTYLE AT THE AUGUSTA ON MAIN

Welcome to the Augusta on Main, a premier condominium/ townhome development nestled in the heart of St Charles?historic district Just steps away from restaurants, boutique shops, and vibrant local events, this 1-bedroom, 1-bathroom condo offers an exceptional living experience with designer finishes throughout The open-concept floor plan is perfect for modern living, featuring a sleek kitchen with high-end stainless steel appliances, custom cabinetry, and beautiful countertops that seamlessly flow into the spacious living room The expansive windows allow for plenty of natural light, creating a bright and inviting atmosphere

This condo also comes with premium amenities, including dedicated underground parking, a state-of-the-art fitness center with cold plunge and infrared sauna, and access to a rooftop deck with breathtaking views of the St Charles skyline? ideal for enjoying a peaceful sunset or hosting friends With prices starting at $265,000, The Augusta on Main combines sophisticated design, modern conveniences, and the charm of St Charles located near the Katy Trail

1-BedroomFeatures&Amenities

- 640 Finished Sq Ft

- 53 Sq Ft Outdoor Patio/ Balcony

- 1Bedroom / 1Full Bath

- 10' Ceiling Heights

- Wide Plank Luxury Vinyl Woodgrain Flooring

- Designer Lighting & Fixtures

- Solid Core Panel Entry Door

- Electric Fireplace

- In-Unit Storage

- Upgrade Packages Available

- Standard Kitchen Features:

- GEStainless Appliances

- Microwave over Oven/ Rance

- 30" 4-Burner Electric Range

- 32" Counter-Depth Refrigerator

- Quartz Countertops

- Tile Backsplash

- Oversized Island

- Build-In Pantry Cabinet

- Standard Bedroom Suite Features:

- Walk-In Closet

- Ceiling Fan

- Tub/ Shower Combo

- Designer Fixtures

- Secure Underground Parking

- One Assigned Space

- Gated Entrance

- Bike Storage

- Unparalleled Amenities

- Elegant 14' Entrance with Chandelier

- Fitness Center & Wellness Center with Infrared Sauna & Cold Plunge

- Community Party/ Entertaining Room with Full Kitchen and Seating

- Outdoor Community Garden Patio with Firepits and BBQ Grills

- Rooftop Speakeasy w/ Wine Lockers

- Community Rooftop Deck Facing Riverfront

- Walkable Historic Downtown

- Minutes from all the shops,cafes, restaurants, and entertainment along Historic Main Street

- Access to Katy Trail right outside the front door

- One block from 16-Acre Frontier Park along the Riverfront

- Minutes from Ameristar Casino & Spa

- Less than 10 minutes to Streets of St Charles and all its restaurants and entertainment,including Chicken 'N Pickle

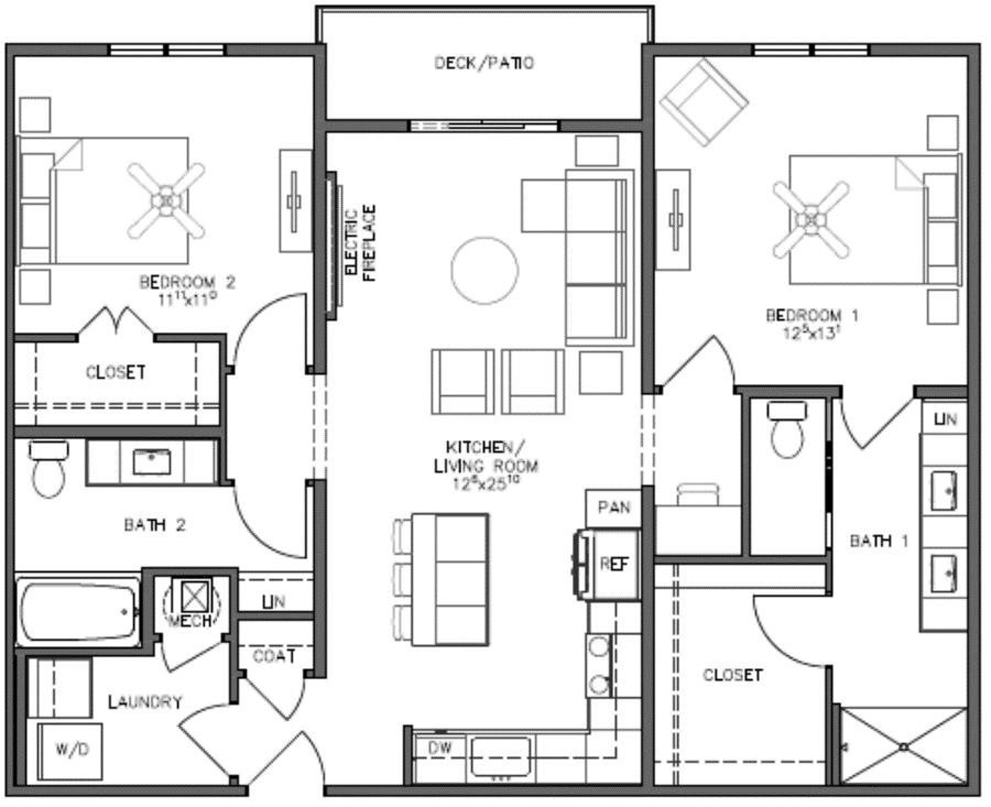
2-Bedroom

ELEVATE YOUR LIFESTYLE AT THE AUGUSTA ON MAIN

Timeless charm meets elevated modern luxury with this exclusive 2-bedroom, 2-bathroom condo that offers an unparalleled living experience in the heart of Historic Main Street, St Charles? just steps from vibrant restaurants, boutique shops, and riverfront trails Every detail in this residence has been thoughtfully designed, from the soaring ceilings and expansive windows to the designer finishes and hand-selected materials that bring both comfort and sophistication to every space The chef-inspired kitchen features stainless steel appliances, quartz countertops, and custom cabinetry that opens seamlessly into a light-filled living and dining area? perfect for entertaining or relaxing in refined comfort

This unit includes underground parking, access to a state-of-the-art fitness center with cold plunge and infrared sauna, and an exclusive rooftop deck with sweeping views of downtown St Charles? ideal for enjoying coffee at sunrise or cocktails at sunset Starting at $445,000, this is your opportunity to own a one-of-a-kind condo in one of the region?s most desirable walkable neighborhoods with access to the Katy Trail

2-BedroomFeatures&Amenities

- 1,108 Finished Sq Ft

- 58 Sq Ft Private Rooftop Terrace

- 2 Bedroom / 2 Full Baths

- Elevator Service to all Floors

- 10' Ceiling Heights

- Wide Plank Luxury Vinyl Woodgrain Flooring

- Designer Lighting & Fixtures

- Solid Core Panel Entry Door

- Spacious Laundry Room

- Electric Fireplace

- In-Unit Storage

- Upgrade Packages Available

- Standard Kitchen Features:

- GEStainless Appliances

- Microwave over Oven/ Range

- 30" 4-Burner Electric Range

- 32" Counter-Depth Refrigerator

- Quartz Countertops

- Tiled Backsplash

- Oversized Island

- Built-In Pantry Cabinet

- Standard Primary Suite Features:

- Walk-In Closet

- Ceiling Fan

- Double Vanity (Quartz)

- Designer Fixtures

- Shower with Frameless Glass Door

- Standard Secondary Bathroom Features:

- Tub/ Shower Combo

- Designer Fixtures & Quartz Countertops

- Secure Package Room

- Secure Underground Parking

- One Assigned Space

- Gated Entrance

- Bike Storage

- Unparalleled Amenities

- Elegant 14' Entrance with Chandelier

- Fitness Center & Wellness Center with Infrared Sauna & Cold Plunge

- Community Party/ Entertaining Room with Full Kitchen and Seating

- Outdoor Community Garden Patio with Firepits and BBQ Grills

- Rooftop Speakeasy w/ Wine Lockers

- Community Rooftop Deck Facing Riverfront

- Walkable Historic Downtown

- Minutes from all the shops,cafes, restaurants, and entertainment along Historic Main Street

- Access to Katy Trail right outside the front door

- One block from 16-Acre Frontier Park along the Riverfront

- Minutes from Ameristar Casino & Spa

- Less than 10 minutes to Streets of St Charles and all its restaurants and entertainment,including Chicken 'N Pickle

2-BedroomPenthouse

ELEVATE YOUR LIFESTYLE AT THE AUGUSTA ON MAIN

Timeless charm meets elevated modern luxury with this exclusive 2-bedroom, 2-bathroom penthouse condo that offers an unparalleled living experience in the heart of Historic Main Street, St Charles? just steps from vibrant restaurants, boutique shops, and riverfront trails Every detail in this residence has been thoughtfully designed, from the soaring ceilings and expansive windows to the designer finishes and hand-selected materials that bring both comfort and sophistication to every space The chef-inspired kitchen features stainless steel appliances, quartz countertops, and custom cabinetry that opens seamlessly into a light-filled living and dining area? perfect for entertaining or relaxing in refined comfort

This unit includes underground parking, access to a state-of-the-art fitness center with cold plunge and infrared sauna, and an exclusive rooftop deck with sweeping views of downtown St Charles? ideal for enjoying coffee at sunrise or cocktails at sunset This is your opportunity to own a one-of-a-kind penthouse in one of the region?s most desirable walkable neighborhoods with access to the Katy Trail

PenthouseFeatures&Amenities

- 1,544 Finished Sq Ft

- 496 Sq Ft Private Rooftop Terrace

- 2 Bedroom / 2 Full Baths

- Elevator Service to all Floors

- 10' Ceiling Heights

- Wide Plank Luxury Vinyl Woodgrain Flooring

- Designer Lighting & Fixtures

- Solid Core Panel Entry Door

- Spacious Laundry Room

- Gas Fireplace with Tiled Surround

- On-Site and In-Unit Storage

- Upgrade Packages Available

- Standard Kitchen Features:

- GEProfile Stainless Steel Appliances

- Wall Oven & Convection Microwave Combo

- 36" 5-Burner Gas Cooktop

- Built-In Wall Hood

- 36" Counter-Depth Refrigerator

- Quartz Countertops

- Tiled Backsplash

- Oversized Island

- Designer Cabinetry

- Butler's Pantry

- Standard Primary Suite Features:

- Ceiling Fan & Walk-In Closet

- Double Vanity & Quartz Countertop

- Soaking Tub & Designer Fixtures

- Tiled Shower with Frameless Glass Door

- Standard Secondary Bed & Bath Features:

- Ceiling Fan & Walk-In Closet

- Shower with Frameless Glass Door

- Designer Fixtures & Quartz Countertop

- Secure Package Room

- Secure Underground Parking

- Two Assigned Parking Spaces

- Gated Entrance

- Bike Storage

- Unparalleled Amenities

- Elegant 14' Entrance with Chandelier

- Fitness Center & Wellness Center with Infrared Sauna & Cold Plunge

- Community Party/ Entertaining Room with Full Kitchen and Seating

- Outdoor Community Garden Patio with Firepits and BBQ Grills

- Rooftop Speakeasy w/ Wine Lockers

- Community Rooftop Deck Facing Riverfront

- Walkable Historic Downtown

- Minutes from all the shops,cafes, restaurants, and entertainment along Historic Main Street

- Access to Katy Trail right outside the front door

- One block from 16-Acre Frontier Park along the Riverfront

- Minutes from Ameristar Casino & Spa

- Less than 10 minutes to Streets of St Charles and all its restaurants and entertainment,including Chicken 'N Pickle

TheKatie McLaughlinTeam

3-Bedroom

ELEVATE YOUR LIFESTYLE AT THE AUGUSTA ON MAIN

Welcome to The Augusta on Main, where luxury meets convenience in the heart of historic St Charles This stunning 3-bedroom, 2 5-bathroom condominium is designed for those who seek both style and functionality in a vibrant urban setting It's located just steps from charming local restaurants, boutique shopping, and lively cultural attractions As you enter, you?ll be greeted by an open-concept living space featuring sophisticated designer finishes throughout The gourmet kitchen is a chef?s dream, complete with high-end stainless steel appliances, custom cabinetry, and a large central island ideal for entertaining or casual dining The primary suite is a luxurious retreat, offering a walk-in closet and a spa-inspired bathroom with a large soaking tub, frameless glass shower, and dual vanities Two additional well-sized bedrooms provide versatility for family, guests, or a home office A full second bathroom is elegantly appointed, and a convenient half-bath is located off the main entertaining area

The property also features 2 dedicated parking spaces, access to an on-site fitness center, and a rooftop deck that offers sweeping views of the St Charles skyline Starting at $799,000, this luxury condominium offers the ideal blend of modern amenities, chic design, and an unbeatable location Don? t miss your chance to live in one of St Charles?most sought-after addresses!

3-BedroomFeatures&Amenities

- 1,930 Finished Sq Ft

- 109 Sq Ft Covered Balcony

- 3 Bedroom / 2 5 Baths

- Elevator Service to all Floors

- 10' Ceiling Heights

- Wide Plank Luxury Vinyl Woodgrain Flooring

- Designer Lighting & Fixtures

- Solid Core Panel Entry Door

- Spacious Laundry Room

- Electric Fireplace with Tiled Surround

- On-Site and In-Unit Storage

- Upgrade Packages Available

- Standard Kitchen Features:

- GEProfile Stainless Steel Appliances

- Wall Oven & Convection Microwave Combo

- 36" 5-Burner Gas Cooktop

- Built-In Wall Hood

- 36" Counter-Depth Refrigerator

- Quartz Countertops

- Tiled Backsplash

- Oversized Island

- Designer Cabinetry

- Butler's Pantry

- Standard Primary Suite Features:

- Ceiling Fan & Walk-In Closet

- Double Vanity & Quartz Countertop

- Soaking Tub & Designer Fixtures

- Tiled Shower with Frameless Glass Door

- Standard Secondary Bed & Bath Features:

- Ceiling Fan & Walk-In Closet

- Shower with Frameless Glass Door

- Designer Fixtures & Quartz Countertop

- Secure Package Room

- Secure Underground Parking

- Two Assigned Spaces

- Gated Entrance

- Bike Storage

- Unparalleled Amenities

- Elegant 14' Entrance with Chandelier

- Fitness Center & Wellness Center with Infrared Sauna & Cold Plunge

- Community Party/ Entertaining Room with Full Kitchen and Seating

- Outdoor Community Garden Patio with Firepits and BBQ Grills

- Rooftop Speakeasy w/ Wine Lockers

- Community Rooftop Deck Facing Riverfront

- Walkable Historic Downtown

- Minutes from all the shops,cafes, restaurants, and entertainment along Historic Main Street

- Access to Katy Trail right outside the front door

- One block from 16-Acre Frontier Park along the Riverfront

- Minutes from Ameristar Casino & Spa

- Less than 10 minutes to Streets of St Charles and all its restaurants and entertainment,including Chicken 'N Pickle

TheKatie McLaughlinTeam

Townhome

ELEVATE YOUR LIFESTYLE AT THE AUGUSTA ON MAIN

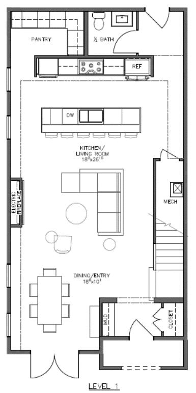
Welcome to The Augusta on Main! Located in the heart of St Charles' historic district, The Augusta on Main offers a rare opportunity to live in a unique, beautifully crafted luxury condominium/ townhome development just steps from charming restaurants, boutique shops, and vibrant community events This stunning 2-level townhouse features 3 spacious bedrooms, 2 5 elegantly designed bathrooms, and designer finishes throughout The gourmet kitchen is equipped with state-of-the-art appliances, sleek cabinetry, and a large island perfect for both entertaining and everyday living The main living area flows seamlessly to the dining room, creating an ideal space for hosting guests or relaxing with family The upstairs features a luxurious primary suite with a walk-in closet and spa-like bath, complete with a soaking tub and frameless glass shower Two additional well-sized bedrooms provide ample space for family or guests

Additional highlights of this modern residence include dedicated underground parking spaces, state-of-the-art fitness center with cold plunge and infrared sauna, and an expansive rooftop deck with sweeping views? perfect for enjoying sunsets or hosting outdoor gatherings With townhome pricing starting at $799,000, The Augusta on Main offers a rare combination of luxury, convenience, and location with access to the Katy Trail Choose from 8 available townhome units Live where history meets modern living!

TownhomeFeatures&Amenities

- 1,930 Finished Sq Ft

- 109 Sq Ft Covered Balcony

- 3 Bedroom / 2 5 Baths

- Elevator Service to all Floors

- 10' Ceiling Heights

- Wide Plank Luxury Vinyl Woodgrain Flooring

- Designer Lighting & Fixtures

- Solid Core Panel Entry Door

- Spacious Laundry Room

- Electric Fireplace with Tiled Surround

- On-Site and In-Unit Storage

- Upgrade Packages Available

- Standard Kitchen Features:

- GEProfile Stainless Steel Appliances

- Wall Oven & Convection Microwave Combo

- 36" 5-Burner Gas Cooktop

- Built-In Wall Hood

- 36" Counter-Depth Refrigerator

- Quartz Countertops

- Tiled Backsplash

- Oversized Island

- Designer Cabinetry

- Butler's Pantry

- Standard Primary Suite Features:

- Ceiling Fan & Walk-In Closet

- Double Vanity & Quartz Countertop

- Soaking Tub & Designer Fixtures

- Tiled Shower with Frameless Glass Door

- Standard Secondary Bed & Bath Features:

- Ceiling Fan & Walk-In Closet

- Shower with Frameless Glass Door

- Designer Fixtures & Quartz Countertop

- Secure Package Room

- Secure Underground Parking

- Two Assigned Parking Spaces

- Gated Entrance

- Bike Storage

- Unparalleled Amenities

- Elegant 14' Entrance with Chandelier

- Fitness Center & Wellness Center with Infrared Sauna & Cold Plunge

- Community Party/ Entertaining Room with Full Kitchen and Seating

- Outdoor Community Garden Patio with Firepits and BBQ Grills

- Rooftop Speakeasy w/ Wine Lockers

- Community Rooftop Deck Facing Riverfront

- Walkable Historic Downtown

- Minutes from all the shops,cafes, restaurants, and entertainment along Historic Main Street

- Access to Katy Trail right outside the front door

- One block from 16-Acre Frontier Park along the Riverfront

- Minutes from Ameristar Casino & Spa

- Less than 10 minutes to Streets of St Charles and all its restaurants and entertainment,including Chicken 'N Pickle

TheKatie McLaughlinTeam

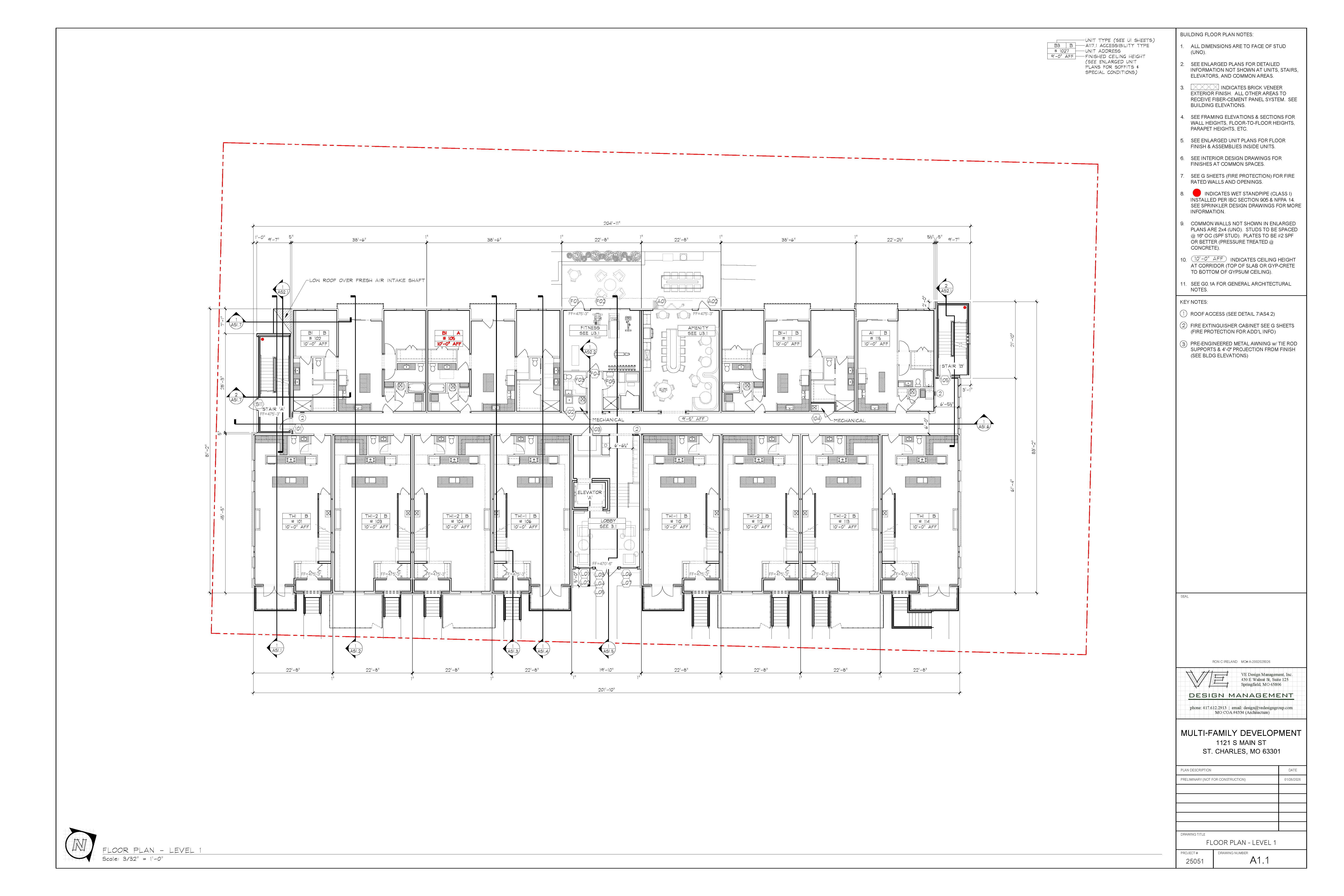
First FloorAmenities&Lobby

First Floor

SecondFloor

ThirdFloor

FourthFloor

Turn static files into dynamic content formats.

Create a flipbook
The Augusta on Main by dielmannsothebysrealty - Issuu