Mmodos casetas y módulos prefabricados

Page 1

Creamos espacios. Creamos soluciones. Creamos m2 con módulos prefabricados.

CATÁLOGO 2023

Descubre MMODOS

Mmodos es una empresa perteneciente a un sólido grupo empresarial fundado en 1982 con el propósito de diseñar y fabricar edificios modulares de alta calidad.

El compromiso de la dirección y de todos los empleados de la empresa Mmodos es satisfacer los requisitos y las expectativas de nuestros clientes fomentando a todos los niveles la formación y la mejora continua.

Desde siempre, Mmodos hace de la investigación y el desarrollo su mejor presentación en todos los ámbitos de la construcción modular, contando con los medios técnicos y humanos necesarios para alcanzar nuestros objetivos y los de nuestros clientes.

Medios técnicos

Ponemos a su disposición la tecnología más avanzada para que el resultado de su inversión sea el esperado.

Equipo humano

Los distintos departamentos de nuestra empresa hacen posible que la ejecución de su proyecto se lleve a cabo con todas las garantías.

La construcción modular está ampliamente representada en el mundo empresarial, pero no todas las empresas pueden ofrecer las ventajas que la empresa Mmodos pone a disposición de los clientes.

Gamas Mmodos

DESCUBRE NUESTRAS GAMAS 1

Los Módulos MP son soluciones arquitectónicas prefabricadas, versátiles y eficientes. Diseñados para adaptarse a diversas necesidades, estos módulos representan la modernidad y la flexibilidad en la construcción, ofreciendo espacios adaptables y de montaje sencillo para entornos residenciales o comerciales. Podemos encontrar módulos sencillos y conjuntos modulares.

2

Los Módulos WC son unidades prefabricadas que ofrecen soluciones eficientes para baños. Diseñados con enfoque en la practicidad y la calidad, estos módulos representan la excelencia en espacios sanitarios prefabricados. Proporcionan comodidad y funcionalidad, ofreciendo soluciones prácticas para entornos residenciales, comerciales o de construcción, asegurando un diseño higiénico y de fácil instalación.

WC
Módulos MP Módulos

1

Ventajas de nuestros módulos prefabricados

Estudio desde nuestro departamento de ingeniería cualquier proyecto o idea modular

2

3

Bajo coste de inversión inicial para nuestros cliente

Tiempos mínimos de fabricación e instalación

4

Óptima calidad en los acabados

5

Incorporación de nuevos materiales y nuevas tecnologías para dar mayor versatilidad a nuestros proyectos

Estructura metálica

BASTIDOR

Perfiles perimetrales plegados en chapa de acero de 2mm, conformada en trío, con perfiles galvanizados.

BASTIDOR

Perfiles perimetrales plegados en chapa de acero de 2mm, conformada en trío, con perfiles galvanizados.

Pilares plegados en chapa de acero.

Módulos MP 1
DE SUELO
DE TECHO
PILARES 1 2 3

Aislamiento superior: cubierta

Falso techo, de lamas de acero prelacado blanco de e=0,6mm.

2 3

Manta mineral de lana de reco, de espesor 80mm con barrera anti vapor.

Chapa trapezoidal, galvanizada de 0,6mm.

Cerramiento lateral

El cerramiento lateral se realiza con paneles de machihembrados de tipo Sándwich. El acabado exterior e interior es de acero galvanizado, perfilado y lacado en RA 9002 de calidad A-42. El espesor es de 0,5mm para exterior e interior. El peso, adherencia uniformidad de galvanizado, cumple las normas UNE 37501-88 y UNE 35508-88, respectivamente. El aislamiento es a base de poliuretano de densidad 35-40kg/m3, dando un espesor total al panel de 40mm.

1

Carpintería

Las ventanas son de aluminio lacado en blanco, correderas de 2 hojas, con vidrio transparente de 4mm, aunque, a petición del cliente puede ir cualquier tipo de carpintería y vidrios. Lleva reja de protección. La puerta de acceso tiene el cerco en aluminio lacado blanco y la hoja es un panel con las dos caras de chapa galvanizada y lacada en blanco, con aislamiento en poliuretano de 35-40 Kg/m3. Carpintería interior formada por puertas de acero galvanizado.

Instalación eléctrica

Este tipo de módulo está equipado de manera estándar con diferencial general y líneas con protección magneto-térmica independiente en los siguientes circuitos: alumbrado usos varios y climatización.

Adosamiento

La capacidad de ampliar espacios con este sistema consiste en ir adosando módulos en el mismo plano en sentido transversal o longitudinal.

Módulos WC 2

Estructura metálica

1 2 3

BASTIDOR

Perfiles perimetrales plegados en chapa de acero de 2mm, conformada en frío, con perfiles galvanizados.

Perfiles perimetrales plegados en chapa de acero de 2mm, conformada en frío, con correas transversales galvanizadas de tubo rectangular soldado, para apoyo de las chapas perfiladas de cubierta, todo ello en calidad A42.

PILARES

Pilares plegados en chapa de acero.

DE SUELO
BASTIDOR DE TECHO

Características de los sanitarios

Los elementos que componen los sanitarios están fabricados en fibra de vidrio acabadas en Gel coat blanco y pintura antideslizante. Termo eléctrico con instalación eléctrica para corriente monofásica de 220v protegida con interruptor automático, pudiendo ser colocados en serie.

Mecanismo y grifería

Los módulos sanitarios incorporan grifos monomando “hidromezcladores” AF/A EN LAVABOS.

Conducciones y desagües

Las conducciones se realizan con tubo de polipropileno y los desagües son realizados en tuberías de PVC de diámetro 110mm. La salida al desagüe se realiza horizontal y lateral, y la acometida de agua en conexión rápida de 1/2”.

Cerramiento lateral

El cerramiento lateral se realiza con paneles tipo sándwich de 40 mm de espesor, (se dispone de gama de colores para adaptarse a las necesidades del cliente). A petición del cliente se puede montar cualquier otro tipo de panel.

Carpintería

Carpintería exterior: la puerta de acceso tiene el cerco en aluminio lacado blanco y la hora es una panel con las dos caras de chapa galvanizada y lacada en blanco, con aislamiento en poliuretano. Carpintería interior: está formada por puertas de acero galvanizado.

Instalación eléctrica

Cableado por falso techo. Conexión por caja exterior. Este tipo de módulos está equipado de manera estándar con diferencial general y líneas de protección magnetotérmica independiente en los circuitos de alumbrado, tomas de corriente y termo.

MP 2

DIMENSIONES

SUPERFICIE

2200 x 2440 x 2770 mm

ALTURA INTERIOR LIBRE

5,37 m2 2500 mm

DIMENSIONES

SUPERFICIE

4000 x 2440 x 2770 mm

ALTURA INTERIOR LIBRE

DIMENSIONES

SUPERFICIE

ALTURA INTERIOR LIBRE

mm

6000 x 2440 x 2770 mm

9,76 m2 14,64 m2

mm

* Estos módulos pueden adaptarse a las necesidades y usos de cada cliente.
MP MP 4 6
2500
2500
PLANOS MÓDULOS MP

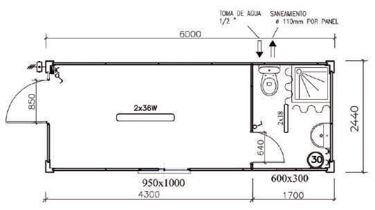
MP 6 con WC

DIMENSIONES

SUPERFICIE

6000 x 2440 x 2770 mm

14,64 m2

ALTURA INTERIOR LIBRE

MP 6 con WC y ducha

DIMENSIONES

SUPERFICIE

2500 mm

6000 x 2440 x 2770 mm

ALTURA INTERIOR LIBRE

MP 7

DIMENSIONES

SUPERFICIE

14,64 m2 2500 mm

7000 x 2400 x 2770 mm

17,08 m2

ALTURA INTERIOR LIBRE

2500 mm

* Estos módulos pueden adaptarse a las necesidades y usos de cada cliente.

WC

DIMENSIONES

SUPERFICIE

1200 x 1200 x 2770 mm

1,44 m2

ALTURA INTERIOR LIBRE

mm

DIMENSIONES

SUPERFICIE

2200 x 2440 x 2770 mm

5,37 m2

ALTURA INTERIOR LIBRE

WC WC

00 10A 25A

DIMENSIONES

SUPERFICIE

mm

4000 x 2440 x 2770 mm

9,76 m2

ALTURA INTERIOR LIBRE

mm

2500
2500
2550
* Estos módulos pueden adaptarse a las necesidades y usos de cada cliente.
PLANOS MÓDULOS WC

WC 25B

DIMENSIONES

SUPERFICIE

4000 x 2440 x 2770 mm

ALTURA INTERIOR LIBRE

9,76 m2 2500 mm

DIMENSIONES

SUPERFICIE

6000 x 2440 x 2770 mm

14,64 m2

ALTURA INTERIOR LIBRE

DIMENSIONES

SUPERFICIE

WC WC WC

50A 50B 50C

DIMENSIONES

SUPERFICIE

6000 x 2440 x 2770 mm

ALTURA INTERIOR LIBRE

ALTURA INTERIOR LIBRE

* Estos módulos pueden adaptarse a las necesidades y usos de cada cliente.

14,64 m2

6000 x 2440 x 2770 mm

14,64 m2

2500 mm 2500 mm 2500 mm

Tlf. 666 08 94 78 Autovía Murcia - Cartagena modulos@mmodos.com Salida 169, 30709 Roldán, Murcia

Turn static files into dynamic content formats.

Create a flipbook
Issuu converts static files into: digital portfolios, online yearbooks, online catalogs, digital photo albums and more. Sign up and create your flipbook.
Mmodos casetas y módulos prefabricados by Diego Q. D. - Issuu