Residencia Toron

Page 1

Residencia

Toron Pazzetti

La Residencia Toron Pazzetti es un proyecto interesante, ya que explora el desarrollo de una vivienda unifamiliar con un programa amplio en un predio de dimensiones reducidas (10 mts x 20mts).

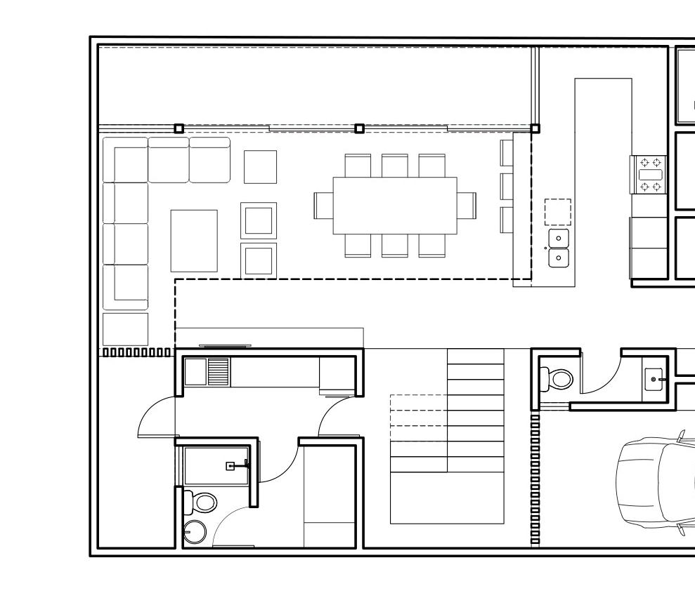
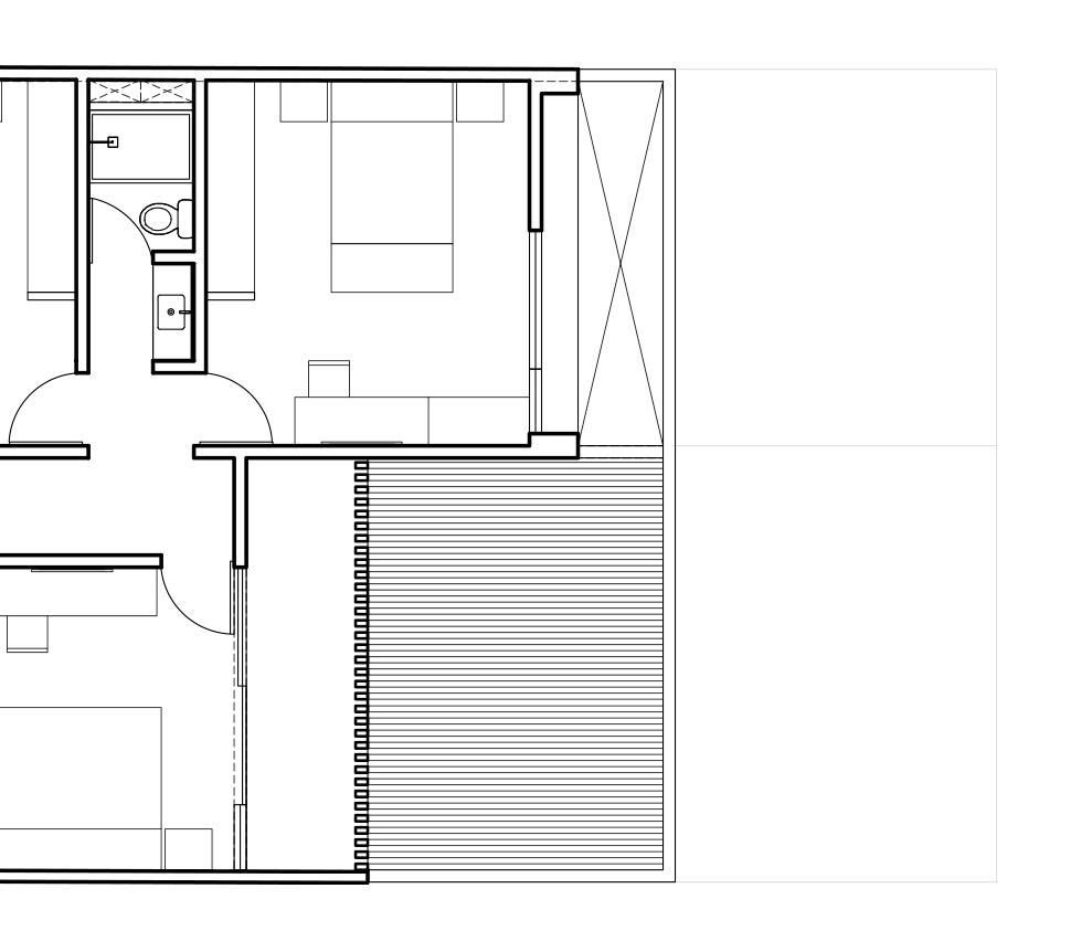
El programa de la Residencia cuenta con los siguientes ambientes: En la primer planta encontraremos el dormitorio principal + wc + baño, baño de visitas, cocina, sala, comedor, lavandería, dormitorio de servicio y parqueo para dos vehículos; En la segunda planta encontraremos, la sala familiar, dos dormitorios secundarios con un baño compartido y un tercer dormitorio con baño propio; Por último, en la tercer planta encontraremos un área de recreación con churrasquera.

Para poder adecuar el programa de necesidades en el predio y poder dotar a todos su ambientes de ventilación e iluminación vertical se utilizaron diversos patios, los cuales se distribuyen de forma estratégica alrededor de toda la residencial, permitiendo que la luz entre a todos los ambientes y que la ventilación sea constante alrededor de los mismos.

Por último la materialidad de la residencia se apoya en la madera, concreto, metal y ladrillo, creando ambientes que se perciben contemporáneos y a su vez resisten el paso del tiempo.

Ubicación

Fachada Frontal

Paleta de Materiales

Primer 1. Ingreso 2. Carport 3. Bodega 4. Recibidor 5. Dormitorio 9. Baño de Visita 10. Cocina 11. Comedor 12. Sala 13. Lavandería 9 10 11 12 13 14 15 16 16
Primer Nivel Dormitorio Principal 6. Walk-in Closet 7. Baño Completo 8. Closet Lavandería 14. Cuarto de Servicio 15. Baño de Servicio 16. Patio 1 5 6 7 2 3 4 8 16
Segundo
2.
1 2 3
1. Sala Familiar
Dormitorio
Segundo Nivel Dormitorio Secundario 3. Baño 4. Patio 2 4 2 3
Tercer 1. Sala Exterior 2. Comedor 1 2 3

Nivel

+ Área de Churrasquera 3.

Terraza

1 2
Tercer
Comedor

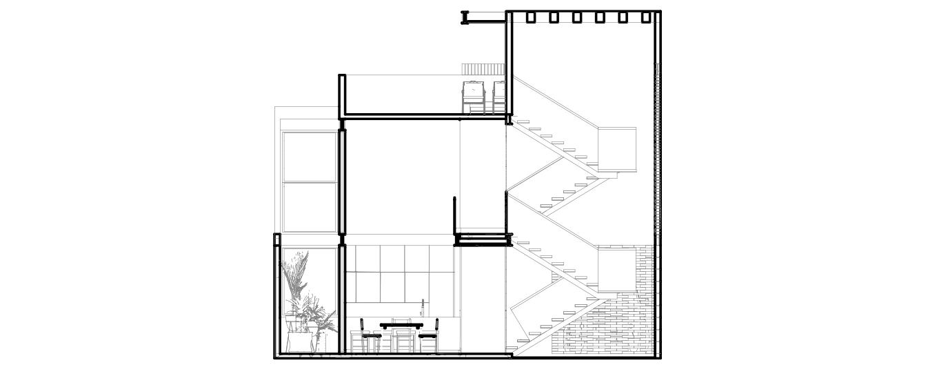
Sección A-A´

Sección B-B´

A
B´ B

Fachada Frontal

Dormitorio Principal

Sección C-C´

Sección D-D´

D D´

C
Dormitorio Principal Sanitario Dormitorio Principal Terraza Social

Área Social

Elevación Frontal Elevación Lateral Derecha

Dormitorio Secundario Dormitorio Secundario Sala Familiar
Dormitorio Secundario

Turn static files into dynamic content formats.

Create a flipbook
Issuu converts static files into: digital portfolios, online yearbooks, online catalogs, digital photo albums and more. Sign up and create your flipbook.
Residencia Toron by Diego Castillo - Issuu