Portfolio | Arch. Diego Valderrama

Page 1

DIEGO VALDERRAMA

PORTFOLIO
Diego Valderrama 02 _ _ Arch. Diego Valderrama Dublin, Ireland.
+353892074057 valderrama.loza@gmail.com

CURRICULUM VITAE

EDUCATION

Dec 2019

EXPERIENCE

Jan 2020 - Dec 2022 3 yrs

Jan 2021 - Sep 2021 9 mos

Jan 2021 - Present 3 yrs

SOFTWARE SKILLS

CAD - BIM:

GIS:

Rendering:

Adobe CC:

MS Office:

LANGUAGES

English

Spanish

Portuguese

French

National University of San Agustin of Arequipa, Peru.

Bachelor Degree in Architecture

Quality and Qualifications

Ireland (QQI): NFQ Level 7.

Architect Designer and BIM coordinator Espacio Alterno, Peru

Project Development Coordinator Architect Proyecta VG, Peru

Co-Founder Architect Persona Architects, Peru

ArchiCAD | AutoCAD | Revit | SketchUP

ArqGIS | Qgis | Space Syntax

D5 Render | Lumion

Photoshop | InDesign | Illustrator

Word | Excel | Powerpoint

Advanced Native Intermediate Elementary

Portfolio 03 _ _
Diego Valderrama 04 _ _
Portfolio 05 _ _ CONTENS Tech-Park Bachelor Thesis Salas House Professional Experience Velille Chapel Professional Experience Megacentro 101 Professional Experience 06 18 22 26 2019 2021 2022 2020

Technology Park: R&D and Business Innovation

UNIVERSITY:

YEAR:

SOFTWARE USED:

PROYECT AREA:

LOCATION:

National University of San Agustin, Peru 2019

ArchiCAD | D5 Render | Photoshop | AutoCAD 18,567.00 m²

Arequipa, Peru

This multifunctional complex houses office buildings, a university, commercial areas, business incubator, research center, library and auditorium. Its design embraces complexity and contradiction through the use of technological elements combined with a brutalist aesthetic. The architecture is characterized by a careful juxtaposition of forms and textures, where analog elements such as arches and vaults intertwine with artificial ruins, creating a dynamic and stimulating environment. The diversity of architectural styles and patterns merges into a unique collage that reflects the entrepreneurial dynamism and innovation that the park seeks to foster.

Portfolio 07 _ _
TECH-PARK Bachelor Thesis
Offices
Center Technical University
& Gallery ZONING STRUCTURAL SYSTEM
Parking Library Commerce
Center Business Incubator
Research
Auditorium
Underground
Development
SECTIONED AXONOMETRIC VIEW
Diego Valderrama 10 _ _
Portfolio 11 _ _
Diego Valderrama 12 _ _ ELEVATION PLAN

SALAS HOUSE

ARCHITECTURE FIRM:

ROLE:

YEAR:

SOFTWARE USED:

PROYECT AREA:

LOCATION:

Proyecta VG

Project Development Coordinator Architect | BIM Coordinator

2021

ArchiCAD | Revit | D5 Render | Photoshop | AutoCAD

162.00 m²

MejĂ­a, Peru

During my tenure at the firm Proyecta VG, I contributed to the Casa Salas project, exemplifying our dedication to crafting beachfront residences in Mejía. From the initial design concept to the final touches, my role encompassed designing beach houses, liaising directly with clients, ensuring BIM compliance as a coordinator, and overseeing construction to guarantee accuracy. Beyond managing the structural phase, I also curated finishings and supervised their implementation until the homes were ready for occupancy. The project’s challenge lay in the adept juggling of multifaceted tasks required for its comprehensive execution.

Portfolio 19 _ _
Professional experience at Proyecta VG.
Beach House
EXPLODED AXONOMETRIC VIEW

BUILDING PROCESS

Portfolio 21 _ _

VELILLE CHAPEL

Community and Religious Center

ARCHITECTURE FIRM:

ROLE:

YEAR:

SOFTWARE USED:

PROYECT AREA:

LOCATION:

Persona Architects

Designer Architect | Co-Founder

2021

ArchiCAD | D5 Render | Photoshop | AutoCAD

375.00 m²

Arequipa, Peru

The Velille Chapel stands as a beacon of community and spirituality in an emerging city, designed collaboratively with the local residents. Utilizing traditional construction methods and the region’s distinctive volcanic tuff, known as “Sillar,” the chapel redefines its purpose as both a religious sanctuary and a symbolic space for migrant residents. Overcoming the challenge of working with this unique material, the project imbues the landscape with a profound sense of identity and belonging, symbolizing hope and unity in a rapidly evolving urban environment.

Portfolio 23 _ _
Professional experience at Persona Architects.

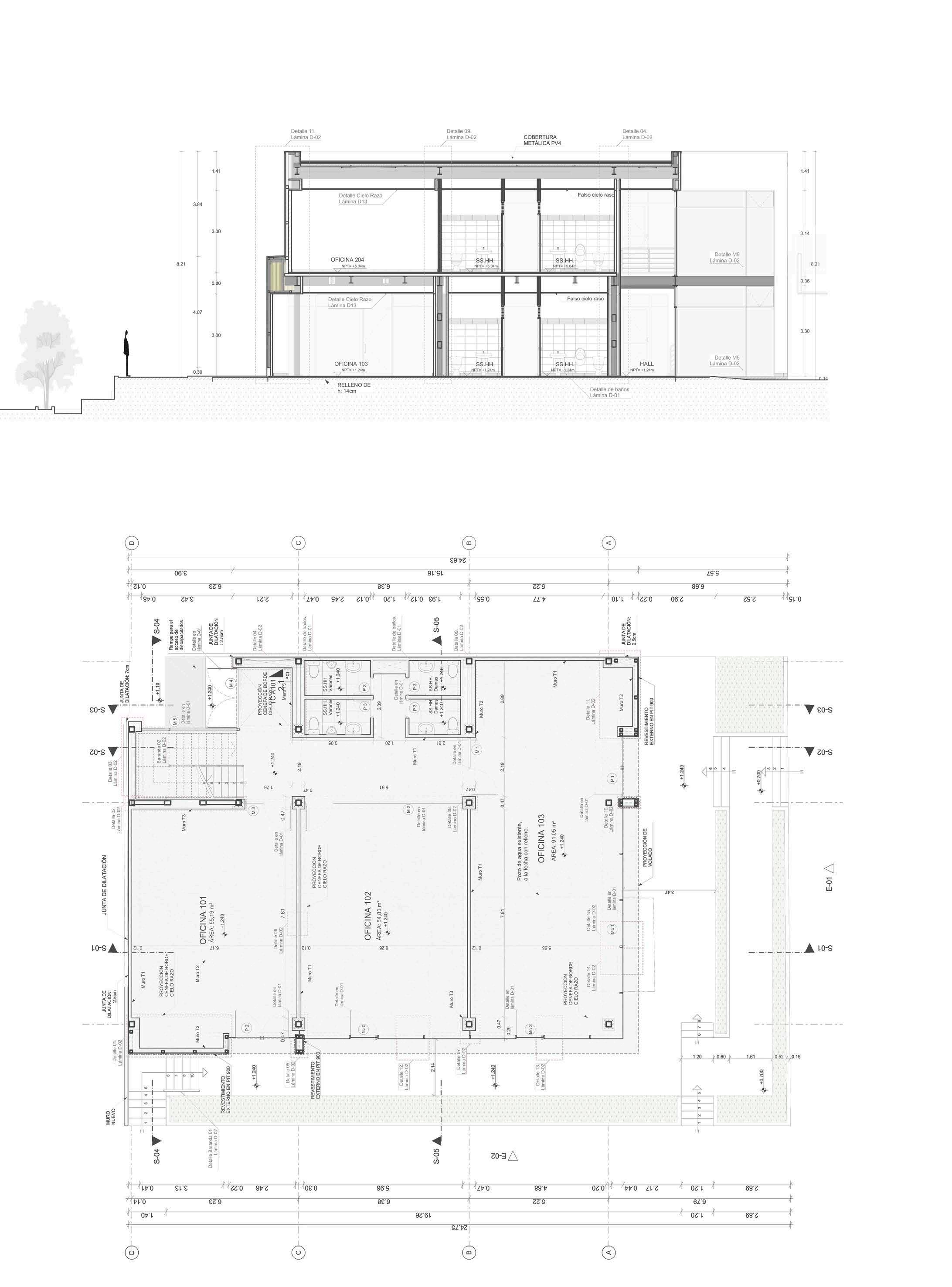
MEGACENTRO 101

Office Building for a Business Center

ARCHITECTURE FIRM:

ROLE:

YEAR:

SOFTWARE USED:

PROYECT AREA:

LOCATION:

Espacio Alterno

Designer Architect | BIM Coordinator

2020

ArchiCAD | Revit | D5 Render | Photoshop | AutoCAD

428.00 m²

Arequipa, Peru

Megacentro 101 office project showcases innovative architectural design within an industrial context. Located in an emerging Latin American city’s industrial park, the project seamlessly integrates pre-painted metal sheets for roofing and exterior walls with the pedestrian public realm. With a steel moment frame structural system and interior drywall featuring thermal and acoustic insulation, meticulous attention to detail ensures resolution of construction challenges. Leveraging BIM technology in ArchiCAD, the project achieves a high level of detail in the constructive system.

Portfolio 27 _ _
Professional experience at Espacio Alterno.
Diego Valderrama
28 _ _
STRUCTURAL SYSTEM
Portfolio 29 _ _ EXPLODED AXONOMETRIC VIEW
Diego Valderrama 30 _ _ FLOOR PLAN SECTION PLAN
Portfolio 31 _ _ DETAIL SECCTION PLAN

ARCHITECTURAL THEORY MATTERS.

A GLIMPSE INTO MY FAVORITE BOOKS.

Diego Valderrama 34 _ _
PORTFOLIO
Diego Valderrama

Turn static files into dynamic content formats.

Create a flipbook
Issuu converts static files into: digital portfolios, online yearbooks, online catalogs, digital photo albums and more. Sign up and create your flipbook.