104 Lazenby Drive

Page 1


Welcome home! This stunning home was customed designed by the owners to capture all the charm of the historic Fort Mill Belk-Mack home they once called home, but w/modern conveniences of a newer build. Soaring ceilings, extensive moldings & trim, gracious formal entertaining spaces, three gas fireplaces with traditional mantels- just a few of the fine details of this home. There truly is not another home like it! This is made for one-floor living, with additional upstairs bonus room outfitted as “the library” with an additional full bath+ walk in closet. This could be a guest rm, playroom or office - depending on your needs! Every room is warm and inviting, and the double french doors that lead to the porch, patio, and back yard showcase a private garden filled w/a variety of mature hydrangeas. Kitchen offers ample work space with two islands for prep space plus a breakfast bar, full breakfast table space, bar area with wine cooler, and desk space. 0.8 miles to main street retail!

Noteworthy Features

GENERAL

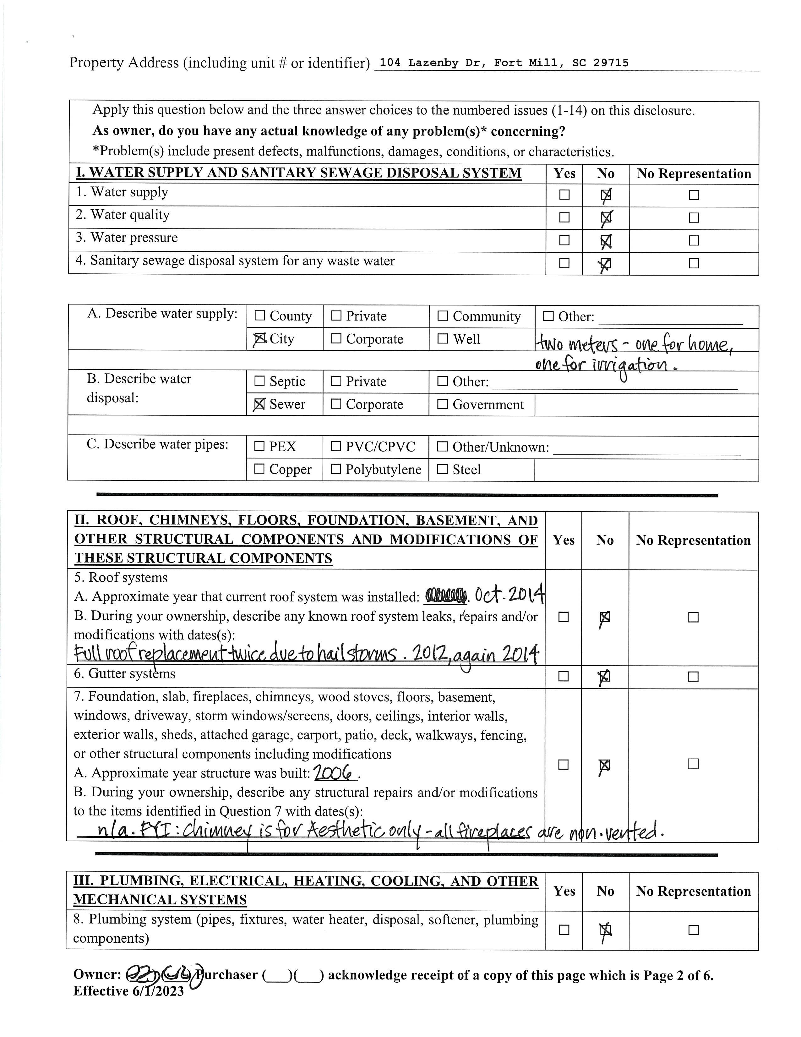
• Custom designed by sellers and constructed in 2006

• One floor living plus bonus room with full bath and closet upstairs

• 4356 Square feet of heated living area, with 3473 sf on the main floor

• Three garage bays, courtyard stye, and circular driveway

• Hard coat stucco and stone exterior

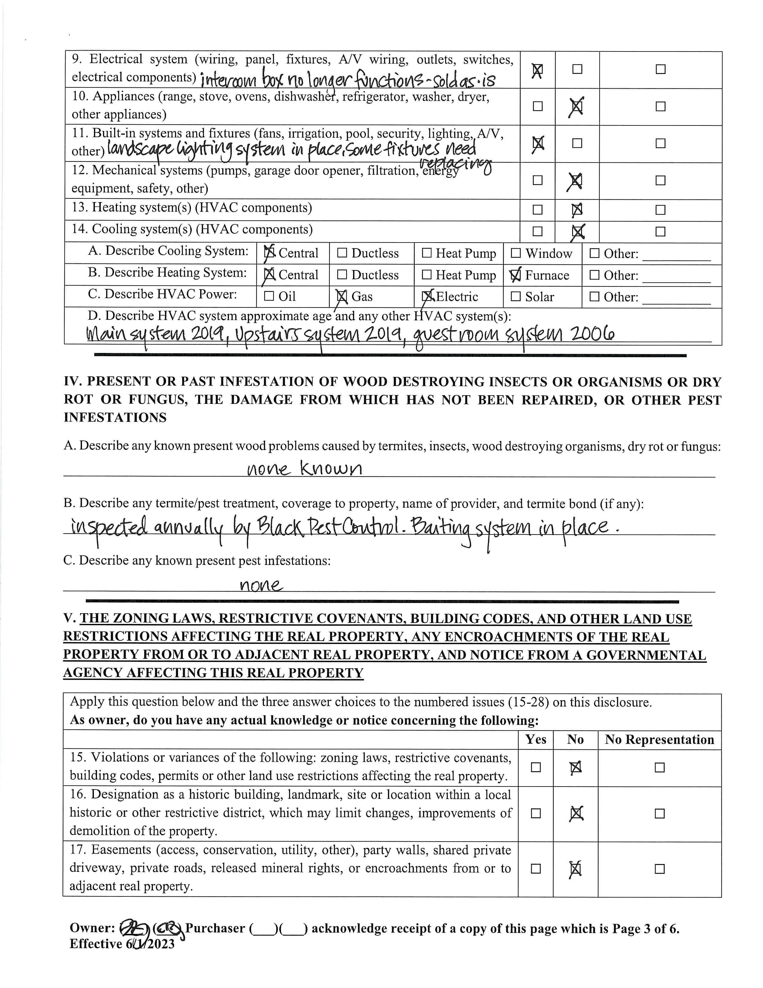
• Three unvented gas log fireplaces

• Alarm system

• Termite baiting system installed and maintained quarterly

• All appliances to remain including Kitchen(2018) and garage refrigerators, double ovens and warming drawer, gas cooktop (2024) with downdraft, built-in microwave, and wine cooler, washer, and dryer

• Ultimate flexibility in zoned heating and cooling with three systems: one for the main living areas including primary suite (2019), one for the guest rooms (2006), and one for upstairs (2019)

• Two water heaters: one for primary bath, one for the rest of the home (2014, 2019)

• Front porch with balustrade, stone floor step and walkway

• Covered back porch and stone patio. Large mechanical awning that extends and retracts on command

• Privacy hedge in rear yard with a variety of mature hydrangeas

• Generously sized crawl space for easy access to equipment

• Side door for “friends & family”

• All exterior doors have beveled glass

• Hardwood floors in all living spaces, carpeting in bedrooms, tile in baths and laundry

• Impeccably maintained one-owner home that has never had pets

LOCATION

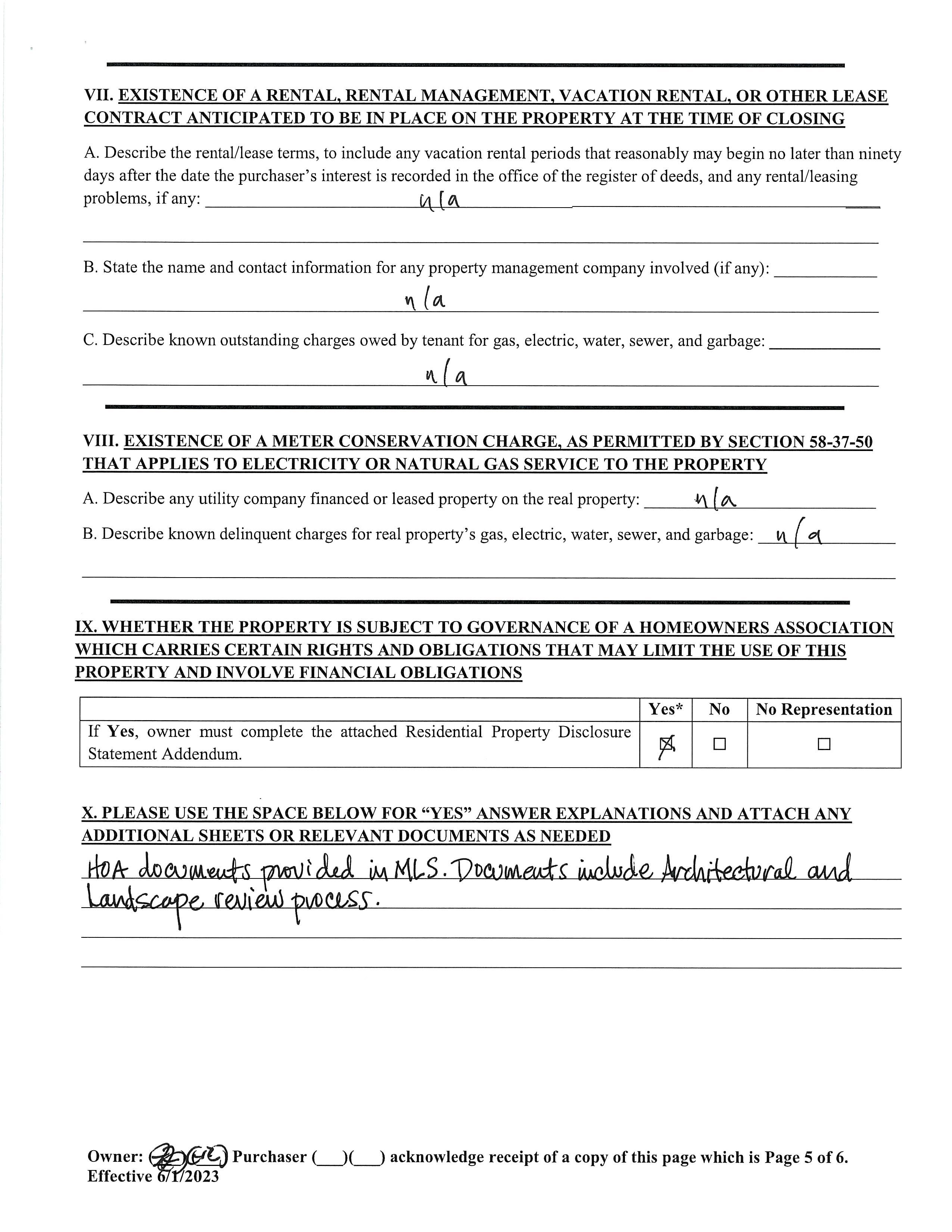
• 26-home community “the Meadow.”

• Hoa dues are $600/year, and community is self-managed

• There is common area space, including retention pond, at the end of the cul-de-sac

• Community adjoins Fort Mill Golf Club

• Less than one mile to Main Street

• 1.3 miles to Walter Elijah Park

• 2.6 miles to Kingsley, and access to I-77

• 3.8 miles to Anne Spring Close Greenway parking lot (access point to paths by bike / foot is approx. 2.5 mi distance)

• Community is built behind the historic home known as the Belk-Mack home on the National Historic Registry, formerly owned by the sellers of 104 Lazenby

• Community is private, with a well landscaped median and buffer between community and Banks Street

Noteworthy Features

FOYER AND HALLWAY

• French doors with large demilune window above

• Hallway connecting foyer, entertaining spaces, and side entrance

• Extensive moldings, chair railing and arches connecting living and dining rooms to hallway

• Side door to front of home, but entering adjacent to garage

• Two coat closets – one adjacent to garage, one in front foyer

• Laundry room with space for either top or front load washer and dryer, current appliances convey

• Cabinets above appliances, and on side wall with laundry sink

• Hallway transverses the home left to right – connecting primary suite at one end of the home, all the living spaces, and guest suites and stairs to bonus at the other end

• Powder room located off hallway. Note: vanity mirror does not convey.

LIVING AND DINING ROOMS

• Beautifully appointed formal rooms, each with a grand fireplace

• Double french doors with beveled glass and demilunes above lead from living room to rear porch and patio

• Ample room for china cabinets, buffet, and extensive furnishings and art

• Ceiling details such as barn-style in the living room, tray ceiling in the dining room

• Recessed can lights plus chandeliers – note that living room chandelier, and the ornamental mirror over the fireplace do not convey

• Exquisite spaces for entertaining

KITCHEN, BREAKFAST, AND FAMILY ROOM

• Open living floor plan between these three spaces, perfect for casual family living

• Kitchen with white cabinets, granite counters, tile backsplash, and stainless appliances

• Layout with double islands – one prep island, one peninsula style for additional prep and bar seating

• Double ovens, warming drawer, and built in microwave. Gas cooktop with 6-burners new 2024

• Bar area with glass front cabinets, wine cooler and ample counter and cabinet spaces

• Built in desk space for mail and the business of running a home

• Walk in pantry with fixed shelving

• Family room with gas log fireplace

• Breakfast room in sunny bay window

• Plantation shutters over windows in these spaces

PRIMARY SUITE

• Located on the right end of the home, this is s split bedroom floor plan and offers ultimate privacy

• Vaulted ceilings and bay window offering seven windows with plantation shutters

• Dressing area connecting bedroom with closets and bathroom

• His & hers walk in closets with built in shelving for both hanging and shelf space

Noteworthy Features

• Large bath with his & hers vanities, private toilet room with window, and soaking tub with air jets

• Generous walk-in closet with white tile and frameless glass door

GUEST ROOMS

• Two rooms with walk-in closets joined by a jack-and-jill bathroom

• Rooms have two windows each with 2” blinds and carpet

• Wide vanity space between double sinks for guest bath

• Vanities are separated from bathing area by privacy door

• Toilet, tub/shower, and a totally separate stand-up shower behind privacy door

• Two linen closets in vanity area

• Located at the left end of the home, split floor plan from primary suite

BONUS ROOM / FOURTH BEDROOM

• Located above the garage, bonus room is large and offers a full bath and walk in closet

• Hardwood floors

• Extensive built in bookshelves

• Ample space for a seating area, desk/office area, and game table

• Access to walk-out attic space for storage and equipment access

HEATED LIVING SPACE

1st FLOOR- 3473

2nd FLOOR- 883

TOTAL HEATED- 4356

GARAGE- 848 (unheated)

COVERED PATIO- 170 (unheated)

BONUS ROOM/ BEDROOM 4

15’-4” X 34’-0”

DEN

18’-10” X 15’-4”

BEDROOM 2

12’-0” X 12’-10”

BEDROOM 3

12’-10” X 12’-10”

BREAKFAST SPACE

12’-10” X 10’-0”

KITCHEN 15’-0” X 17’-4”

COVERED PORCH (unheated)

2nd FLOOR

PRIMARY BEDROOM 15’-4” X 21’-4”

LIVING ROOM

23’-2” X 16’-6”

3 CAR GARAGE (unheated)

23’-4” X 33’-2”

DINING ROOM

14’-8” X 19’-0”

1st FLOOR

104LazenbyDrive,FortMill,SouthCarolina29715-2344

104 Lazenby Drive, Fort Mill, South Carolina 29715-2344

MLS#: 4215068 Category: Residential County: York

Status: ACT City Tax Pd To: Fort Mill Tax Val: $628,236

Subdivision: The Meadow Complex:

Zoning Spec: R-15

Zoning:

Parcel ID: 020-05-03-018 Deed Ref: 3754-170

Legal Desc: LT# 1 THE MEADOW PH 1 MP 1

Apprx Acres: 0.40

Lot Desc: Private

Apx Lot Dim:

Prop Fin: Cash, Conventional

Assumable: No Ownership: Seller owned for at least one year

Spcl Cond: None Rd Respons: Publicly Maintained Road

Room Information

Main Prim BR Bedroom Bedroom Bath Full Bath Half Bath Full Kitchen Living Rm Dining Rm Bar Breakfast FamilyRm Laundry

Upper Bed/Bonus Bath Full

Parking Information

Main Lvl Garage: Yes Garage: Yes # Gar Sp: 3

Covered Sp: Open Prk Sp: No # Assg Sp: Driveway: Concrete Prkng Desc:

Carport: No # Carport Spc:

Parking Features: Circular Driveway, Garage Attached, Garage Door Opener, Garage Faces Side Features

Lot Description: Private

Waterbody Nm:

View:

Lake/Wtr Amen: None

Doors: French Doors Windows: Insulated Window(s) Laundry: Electric Dryer Hookup, Laundry Room, Main Level, Sink

Fixtures Exclsn: Yes/Chandelier in formal living room, and matching formal mirror over linving room fireplace. Also powder room mirror does not convey.

Foundation: Crawl Space

Basement Dtls: No

Fireplaces: Yes/Family Room, Gas Log(s), Gas Unvente

Fencing: 2nd Living Qtr: None

Accessibility:

Exterior Cover: Hard Stucco, Stone Veneer

Construct Type: Site Built

Road Frontage: Road Surface: Paved Patio/Porch: Awnings, Covered, Front Porch, Patio, Rear Porch

Roof: Architectural Shingle

Other Structure: None

Other Equipmnt: Horse Amenities: None

Security Feat: Security System

Utilities: Natural Gas, Underground Utilities

Inclusions:

Appliances: Dishwasher, Double Oven, Downdraft Cooktop, Dryer, Gas Cooktop, Microwave, Refrigerator, Refrigerator with Ice Maker, Wall Oven, Washer, Washer/Dryer Included, Wine Refrigerator

Interior Feat: Attic Walk-in, Breakfast Bar, Built-in Features, Entrance Foyer, Garden Tub, Kitchen Island, Open Floorplan, Pantry, Split BR Plan, Walk-In Closet(s), Walk-In Pantry, Whirlpool

Floors: Carpet, Tile, Wood Utilities

Sewer: City Sewer

Heat: Central, Forced Air, Natural Gas

Water: City Water

Cool: Central Air, Electric

Restrictions: Architectural Review - see attached HOA documents

Subject to HOA: Required

Association Information

HOA Mangemnt: Self managed- President David McWilliam

HOA Email: mcwilliamlaw@gmail.com

Subj to CCRs: Yes

HOA Phone: 615-430-7252

HOA 2

Email:

HOA Subj Dues: Mandatory

Assoc Fee: $600/Annually

Remarks Information

Public Rmrks: Welcome home! This stunning home was customed designed by the owners to capture all the charm of the historic Fort Mill Belk-Mack home they once called home, but w/modern conveniences of a newer build. Soaring ceilings, extensive moldings & trim, gracious formal entertaining spaces, three gas fireplaces with traditional mantels- just a few of the fine details of this home. There truly is not another home like it! This is made for one-floor living, with additional upstairs bonus room outfitted as "the library" with an additional full bath+ walk in closet. This could be a guest rm, playroom or office - depending on your needs! Every room is warm and inviting, and the double french doors that lead to the porch, patio, and back yard showcase a private garden filled w/a variety of mature hydrangeas. Kitchen offers ample work space with two islands fo prep space plus a breakfast bar, full breakfast table space, bar area with wine cooler, and desk space. 0.8 miles to main street retail!

Directions:

Listing Information

DOM: CDOM: Slr Contr: UC Dt: DDP-End Dt: LTC: ©2025 Canopy MLS. All rights reserved. Information herein deemed reliable but not guaranteed. Generated on 01/21/2025 11:06:28 AM

Turn static files into dynamic content formats.

Create a flipbook
Issuu converts static files into: digital portfolios, online yearbooks, online catalogs, digital photo albums and more. Sign up and create your flipbook.
104 Lazenby Drive by Dickens Mitchener - Issuu