625 Mattie Rose Lane

Page 1

625 Mattie Rose Lane CHARLOTTE, NC 28204

FEATURES

Elizabeth

$1,195,000

3 Bedrooms

3.1 Bathrooms

listedWonderful Townhome in an Incredible Location!

2,776 Sq Ft

MLS# 4123319

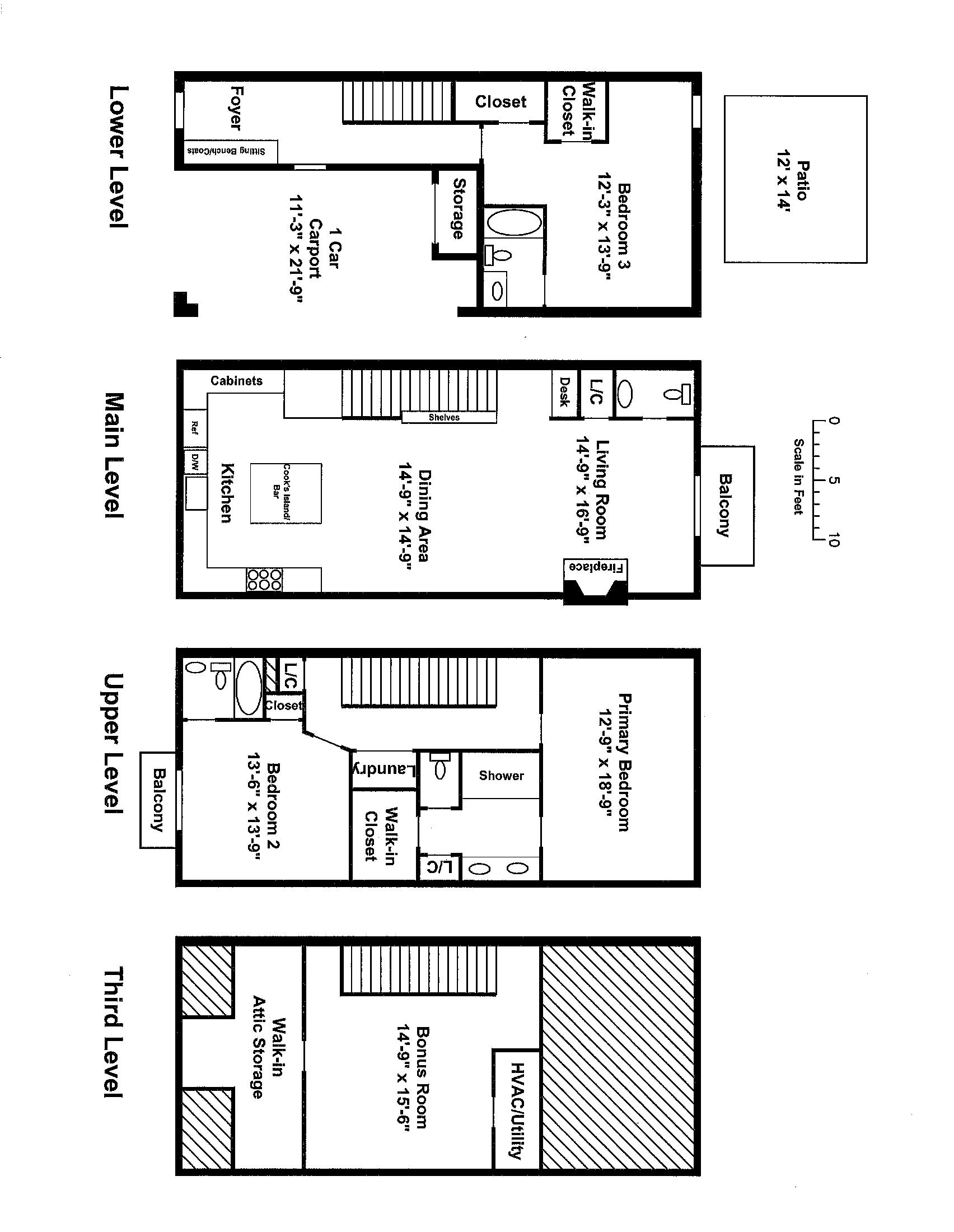
Experience the pinnacle of luxury in this exquisite ex-model townhouse, previously showcased by renowned Grandfather Homes. As an end unit, bask in an abundance of natural light that illuminates the high ceilings and designer finishes. The lower level welcomes you with a versatile drop zone and your choice of a guest suite with a full bath or a second living space. This flexible area seamlessly flows out to a stunning, fenced backyard with pristine turf, perfect for relaxation or entertaining. Ascend to the heart of the home where a gourmet kitchen, elegant dining area, and a fireside family room seamlessly blend, all opening to a covered porch overlooking your private backyard oasis. Retreat to the upper level and indulge in the primary suite, a sanctuary complete with a spa-like bath featuring a large shower, private water closet & spacious walk-in closet. This level also boasts a convenient laundry closet & a second bedroom with its own ensuite bath, bathed in natural light & offering breathtaking city views. Crown your experience with the top-level flex space, complete with a beverage refrigerator, inviting you to unwind or work from home. This level also offers generous walk-in attic space for all your storage needs. An elevator can easily be added to this unit as there is an existing shaft from the lower level to main level. Finally, enjoy the prime location with local shops and restaurants on 7th and Elizabeth just a stroll away. Close proximity to the vibrant energy of Uptown, the serenity of Independence Park, and the excitement of Memorial Stadium, all within easy reach. Visit dickensmitchener.com for

|
more information 2330 Randolph Road | Charlotte, NC 28207
704.342.1000 just
625MattieRoseLane,Charlotte,NorthCarolina
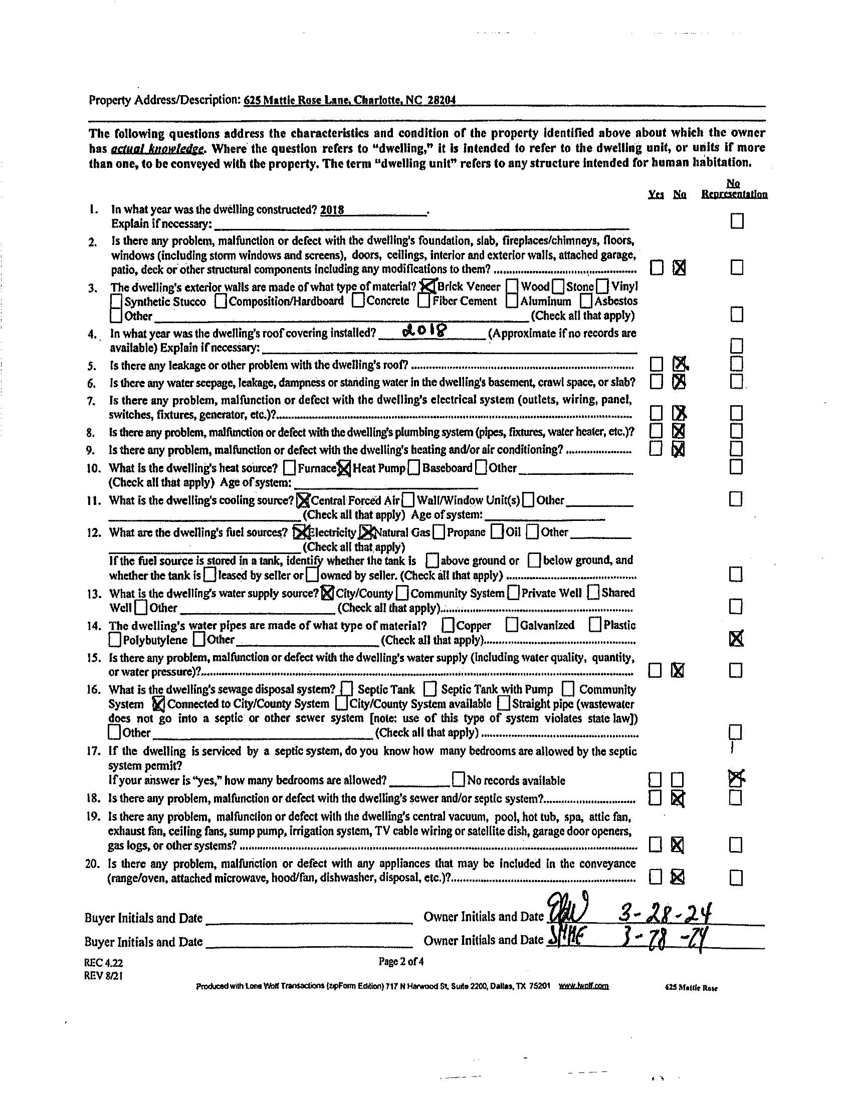
625 Mattie Rose Lane, Charlotte, North Carolina 28204-2639 MLS#: 4123319 Category: Residential County: Mecklenburg Status: ACT City Tax Pd To: Charlotte Tax Val: $1,022,400 List Price: $1,195,000 Subdivision: Elizabeth Complex:The Towers at Mattie Rose Zoning Spec: R309 Zoning: Parcel ID: 080-201-23 Deed Ref: 37378-50 Legal Desc: L16 M61-992 Apprx Acres: Apx Lot Dim: Lot Desc: End Unit, Views General Information School Information Type: Townhouse Elem: Eastover Style: European, Old World Middle: Sedgefield Levels Abv Grd: 4 Story High: Myers Park Const Type: Site Built SubType: Duplex Building Information Level # Beds FB/HB HLA Non-HLA Beds: 3 Main: 0 0/1 885 Baths: 3/1 Upper: 2 2/0 885 Yr Built: 2018 Third: 0 0/0 406 New Const: No Lower: 1 1/0 600 Prop Compl: Bsmt: 0 Cons Status: Completed 2LQt: Builder: Grandfather Homes Model: Above Grade HLA: 2,776 Additional SqFt: Tot Primary HLA: 2,776 Garage SF: Additional Information Prop Fin: Cash, Conventional Assumable: No Ownership: Seller owned for at least one year Spcl Cond: None Rd Respons: Publicly Maintained Road Room Information Main Kitchen DiningArea Bath Half Living Rm Upper Prim BR Bedroom Bath Full Bath Full Third Bonus Rm Lower Bedroom Bath Full Parking Information Main Lvl Garage: No Garage: No # Gar Sp: Carport: Yes # Carport Spc: 1 Covered Sp: 1 Open Prk Sp: No # Assg Sp: Driveway: Brick Prkng Desc: Parking
Driveway
Description:
View:
Doors: Windows: Laundry: In Hall, Laundry Closet, Upper Level Fixtures Exclsn: No Basement Dtls: No Foundation: Slab Fireplaces: Yes/Family Room, Gas, Insert Fencing: Back Yard, Fenced 2nd Living Qtr: Accessibility: Construct Type: Site Built Exterior Cover: Brick Partial, Hardboard Siding Road Frontage: Road Surface: Paved, Other Patio/Porch: Balcony, Patio Roof: Architectural Shingle Other Structure: Security Feat: Security System Inclusions: Utilities: Electricity Connected, Natural Gas Appliances: Beverage Refrigerator, Dishwasher, Disposal, Electric Water Heater, Exhaust Hood, Freezer, Gas Oven, Gas Range, Refrigerator, Washer/Dryer Included Interior Feat: Attic Walk-in, Breakfast Bar, Built-in Features, Drop Zone, Entrance Foyer, Kitchen Island, Open Floorplan, Vaulted Ceiling(s), Walk-In Closet(s) Floors: Prefinished Wood, Tile, Wood Exterior Feat: Lawn Maintenance Comm Feat: Street Lights Utilities Sewer: City Sewer Water: City Water Heat: Natural Gas Cool: Ceiling Fan(s), Central Air Restrictions: Architectural Review, Deed Association Information Subject to HOA: Required Subj to CCRs: Yes HOA Subj Dues: Mandatory HOA Mangemnt: HOA Phone: Assoc Fee: $275/Monthly Prop Spc Assess: No Spc Assess Cnfrm: No Condo/Townhouse Information Land Included: Yes Pets: Yes Unit Floor Level: 1 Entry Loc in Bldg: Main Remarks Information
28204-2639
Features: Carport Attached,
Features Lot
End Unit, Views
City

Public Rmrks: Luxury end unit townhome with all of the bells & whistles as the previous model unit by Grandfather Homes. City views, incredible natural light, large windows, high ceilings & designer finishes. Lower level welcomes you with a versatile drop zone & your choice of a guest suite with a full bath or 2nd living space. Ascend to the heart of the home on the main level with a gourmet kitchen, elegant dining area & fireside family rm, all open to covered porch overlooking the backyard oasis. Retreat to upper level & indulge in the primary suite with spa-like bath with a large shower, private water closet & spacious walk-in closet. This level also boasts a laundry closet & 2nd bedrm with en-suite bath. The top-level flex space with beverage fridge and walk-in attic space. Rare wonderful fenced backyard with mature plantings, a patio & low maintenance turf. Prime location with walking to shops & restaurants on 7th St. & Elizabeth. Close proximity to Uptown, Independence Park & Memorial Stadium.

Directions: 7th Street to Beaumont. Complex is at the end of the street on the left. There is parking at the end of the street in the cul de sac or there are 2 guest spaces on the left once you turn into the community. 2 places to park at the unit itself- in the carport and in the driveway. Or short term parking at the end of Mattie Rose to the left of the front door.

Listing Information

DOM: 0 CDOM: 0 Slr Contr:

UC
LTC: ©2024 Canopy MLS. All rights reserved. Information herein deemed reliable but not guaranteed. Generated on 04/02/2024 3:21:28 PM The listing broker’s offer of compensation is made only to participants of the MLS where the listing is filed.
Dt: DDP-End Dt:

Turn static files into dynamic content formats.

Create a flipbook
Issuu converts static files into: digital portfolios, online yearbooks, online catalogs, digital photo albums and more. Sign up and create your flipbook.
625 Mattie Rose Lane by Dickens Mitchener - Issuu