500 Sweetgum Drive #48C Digital Brochure

Page 1


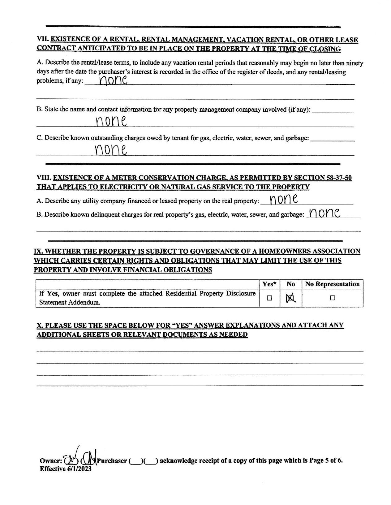
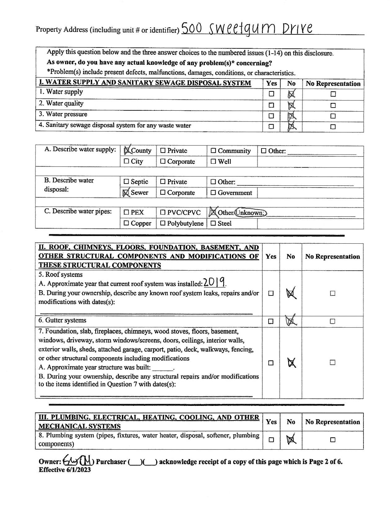
Welcome home to this inviting one-level, 2-bedroom retreat in sought-after Dogwood Hills! Thoughtful details, flexible living spaces, and wooded surroundings make this one stand out. Step inside to an open floorplan featuring a striking stone fireplace and seamless flow between the kitchen, dining, and family room. The kitchen boasts a custom raised bar, new microwave, and convenient access to both living and dining areas. A bright sunroom/flex space opens onto the expanded rear patio—perfect for cookouts, morning coffee, or simply enjoying the natural backdrop. The primary suite offers space and light with multiple windows, a walk-in closet, and ensuite bath. A generously sized second bedroom includes its own large closet and has a full bath nearby, ideal for guests. Additional highlights include a welcoming foyer with parquet flooring and coat closet, covered front entry with room for seating. Nicely landscaped side patio and peaceful, wooded common area in back. Dogwood Hills itself is a gem—beautifully wooded and conveniently located near Anne Springs Close Greenway (2,100 acres of nature, trails, and activities) and Kingsley Town Center with its lake, shops, and restaurants. This home offers comfort, flexibility, and connection to the outdoors—all on one level!!

Noteworthy Features

H OME IMPROVEMENTS

• Removed all popcorn ceilings for a modern, updated look

• Installed upgraded light fixtures throughout, including bathrooms

• Freshly painted interior for a bright, clean finish

• Extended the patio with concrete, more than doubling the outdoor living space

• Added a new microwave in the kitchen

• Converted front garden to low-maintenance rubber mulch for durability, curb appeal, and reduced upkeep

• Replaced and upgraded ceiling fans throughout the home

• Updated sliding glass door for improved function

• Installed updated wooden blinds in the primary

Why We Love Our Home & Community

This home offers the perfect balance of convenience, community, and lifestyle. Its location provides easy access to a wide variety of restaurants, from local favorites to well-known chains, and is just minutes from Pineville and Carolina Place Mall for shopping and dining. Carowinds, Kingsley, Baxter Village, and downtown Fort Mill are all close by, while both downtown Charlotte and Ballantyne can be reached in about 15 minutes, offering the best of both suburban living and city amenities.

The surrounding community is known for being family-friendly, with frequent festivals, markets, and gatherings held in downtown Fort Mill that create a true sense of connection. Outdoor enthusiasts will appreciate having the Anne Springs Close Greenway in their backyard, with more than 2,100 acres of trails, lakes, and recreation to explore, as well as close proximity to Lake Wylie for boating, fishing, and lakeside relaxation. Parks, recreation facilities, and the YMCA provide additional opportunities for sports and fitness.

Education is another highlight, with the Fort Mill School District consistently ranked the number one district in South Carolina and recognized for its excellent schools, programs, and teachers. This combination of outstanding schools, vibrant community life, and unmatched accessibility makes this home’s location one of the most desirable in the region.

500SweetgumDriveUnit#48C,FortMill,SouthCarolina

500 Sweetgum Drive #48C, Fort Mill, South Carolina 29715-8939

MLS#: 4305384 Category: Residential County: York

Status: ACT City Tax Pd To: Fort Mill Tax Val: $204,930 List Price: $242,000

Subdivision: Dogwood Hills Complex:

Zoning Spec:

Parcel ID: 728-01-01-158

Legal Desc: Unit 48-C Dogwood Hills

Apprx Acres:

Lot Desc: Cul-De-Sac

Zoning:

Deed Ref: 19992-361

Apx Lot Dim:

Additional Information

General Information

School Information Type: Condominium Elem: Springfield Style: Middle: Springfield

Levels Abv Grd: 1 Story High: Nation Ford Const Type: Site Built

SubType:

New Const: No Lower:

Prop Compl: Bsmt:

Prop Fin: Cash, Conventional, FHA, USDA Loan, VA Loan

Assumable: No

Spcl Cond: None

Rd Respons: Privately Maintained Road

Ownership: Seller owned for at least one year

Room Information

Main Kitchen Great Rm DiningArea

Prim BR Bath Full Bedroom Flex Space

Parking Information

Main Lvl Garage: No Garage: No # Gar Sp: Carport: No # Carport Spc:

Covered Sp: Open Prk Sp: No # Assg Sp: Driveway: Concrete

Parking Features: Parking Space(s)

Lot Description: Cul-De-Sac

View:

Windows: Insulated Window(s)

Prkng Desc: 2 parking spaces are dedicated to the Condo. They are in front of the Condo.

Features

Doors: Insulated Door(s), Sliding Doors

Laundry: Laundry Room, Main Level

Fixtures Exclsn: Basement Dtls: No

Foundation: Crawl Space

Accessibility:

Fireplaces: Yes/Great Room, Wood Burning

Construct Type: Site Built

Exterior Cover: Wood Road Frontage: Road Surface: Paved

Roof: Architectural Shingle

Security Feat: Radon Mitigation System

Utilities: Cable Available, Electricity Connected

Patio/Porch: Front Porch, Patio

Other Structure: Shed(s)

Inclusions:

Appliances: Dishwasher, Disposal, Electric Range, Electric Water Heater, Microwave, Refrigerator

Interior Feat: Attic Other, Built-in Features, Entrance Foyer, Open Floorplan, Walk-In Closet(s)

Floors: Carpet, Concrete, Linoleum, Parquet, Tile

Exterior Feat: Lawn Maintenance

Comm Feat: Street Lights

Sewer: City Sewer

Heat: Central, Electric

Utilities

Restrictions: Deed, Subdivision - HOA Rules and Regulations

Subject to HOA: Required

HOA Mangemnt: Braza Management

Water: City Water

Cool: Ceiling Fan(s), Central Air, Electric

Association Information

HOA Email: amy@brazamanagement.com

Land Included: No Pets: Yes

Subj to CCRs: Yes

HOA Phone: 919-576-9883

HOA 2 Email:

Condo/Townhouse Information

Unit Floor Level:

Remarks Information

HOA Subj Dues: Mandatory

Assoc Fee: $275.15/Monthly

Entry Loc in Bldg:

Public Rmrks: Welcome home to this inviting one-level, 2-bedroom retreat in sought-after Dogwood Hills! Thoughtful details, flexible living spaces, and wooded surroundings make this one stand out. Step inside to an open floorplan featuring a striking stone fireplace and seamless flow between the kitchen, dining, and family room. The kitchen boasts a custom raised bar, new microwave, and convenient access to both living and dining areas. A bright sunroom/flex space opens onto the expanded rear patio—perfect for cookouts, morning coffee, or simply enjoying the natural backdrop. The primary suite offers space and light with multiple windows, a walk-in closet, and ensuite bath. A generously sized second bedroom includes its own

large closet and has a full bath nearby, ideal for guests. Additional highlights include a welcoming foyer with parquet flooring and coat closet, covered front entry with room for seating. Nicely landscaped side patio and peaceful, wooded common area in back. Dogwood Hills itself is a gem—beautifully wooded and conveniently located near Anne Springs Close Greenway (2,100 acres of nature, trails, and activities) and Kingsley Town Center with its lake, shops, and restaurants. This home offers comfort, flexibility, and connection to the outdoors—all on one level!!

Directions: From 485-S, take Exit 64-B, turn Left onto Carolina Place Parkway, turn Left on Muskerry Drive, at the traffic circle take first exit onto Dorman Road, turn Right onto Regent Parkway, turn Left onto Heritage Boulevard Drive, and turn Left onto Dogwood Hills, and turn Left onto Sweetgum Drive. The condo is located second from the end of Sweetgum Drive.

Listing Information

DOM: CDOM: Slr Contr:

UC Dt: DDP-End Dt: LTC:

Listed By: Dickens Mitchener & Associates Inc (2708) Contact: scoddington@dickensmitchener.com ©2025 Canopy MLS. All rights reserved. Information herein deemed reliable but not guaranteed. Generated on 09/26/2025 9:57:30 AM

SKETCH/AREA TABLE ADDENDUM

SUBJECT INFO

Company:DickensMitchenerAgentName:SuzanneCoddington PropertyAddress:500SweetgumDrive48C City:FortMill: State:SCZipCode:29715 :condominium :measurehomes.net(980)428-122 : MeasuredBy::DavidHelmMeasureDate::09/17/2025

SKETCH

Turn static files into dynamic content formats.

Create a flipbook
Issuu converts static files into: digital portfolios, online yearbooks, online catalogs, digital photo albums and more. Sign up and create your flipbook.
500 Sweetgum Drive #48C Digital Brochure by Dickens Mitchener - Issuu