Enzo-Lucas Desessart 2023 Portfolio

Page 1

PORTFOLIO Enzo-Lucas Desessart 2023 A4 Lyon Echelle 1.1

SOMMAIRE

Présentation et démarche Curiculum vitæ

L’Hermitage d’Eylie Hébergement temporaire pour randonneurs

Maul Logement collectif modulaire

École Diderot Rénovation d’une école primaire

L’Ancien lavoir Aménagement rural

Ovalie Aménagement urbain

Mickleright Maison individuelle

Workshops Ateliers collectifs

Écriture Publications scolaires

Travaux annexes Concours et croquis

Construction Charpente bois, chantier et atelier

6 20 28 34 38 42 44 46 48 54 4

Je m’appelle Enzo-Lucas Desessart et suis diplômé d’État de l’école d’architecture de Montpellier où j’ai étudié de 2014 à 2021.

Cette période fut marquée par des évènements comme une césure, des voyages, des concours, des stages, un redoublement ainsi que plusieurs projets pendant lesquels j’ai eu la chance de travailler, dans un cadre professionnel ou scolaire, avec différents architectes mais aussi des professeurs et d’autres étudiants. Ce sont pour moi autant d’expériences dont je conserve les précieux enseignements.

Passionné par les disciplines manuelles et ayant œuvré sur des chantiers pendant mes études, j’ai choisi de me consacrer après l’obtention du diplôme au métier de charpentier. J’ai alors intégré une formation en alternance au sein de l’association ouvrière des compagnons du devoir et du tour France à Nancy, où j’ai obtenu en juillet 2022 mon certificat d’aptitude professionnel.

J’y ai appris un savoir-faire et des techniques de construction classiques en m’appuyant sur des projets tangibles, passant du chantier à l’atelier. J’y ai également découvert une méthode de travail et des connaissances architectoniques que j’aimerais maintenant exploiter dans ma pratique du métier d’architecte.

Ce portfolio rassemble quelques projets que j’ai pu concevoir au cours de ces dernières années d’études ainsi que quelques travaux et expériences réalisés en parallèle.

Enzo - Lucas DESESSART

Né le 20 février 1995 enzolucas.desessart@gmail.com 06 85 24 16 15

9 rue Louis Thévenet 69004 Lyon

Compétences

Langues

Français - langue maternelle Anglais - niveau C1+ Espagnol - niveau B1

Logiciels

Bonne maîtrise Autocad

Photoshop Illustrator Indesign Sketchup Lumion

Connaissances Vectorworks Vray

Première Pro Suite Office

Centres d’intérêt

Dessin

Graphisme Mécanique Construction Boxe anglaise Randonnée 2022 - Laboratoire DTF Nancy 2020 - Traversée des Pyrénées

Formations

2022 2021 2014 2010

Certificat d’Aptitude Professionnelle « Charpente bois traditionelle » Compagnons du devoir et du tour de France - Nancy

Diplôme d’État d’Architecte École Nationale Supérieur d’Architecture - Montpellier

Baccalauréat scientifique Lycée Jean Moulin - Béziers

Brevet d’Initiation Aéronautique Collège Jules Verne - Le Soler 2021-2022

Expériences professionnelles

Torreilles Toitures - Champenoux - 1 an Contrat d’apprentissage CAP charpentier bois 2018-2022

SE&ZO - Statut auto-entrepreneur Collaboration avec Maguelone Vidal Architecture, Le Bihan Architecture, Moko, particuliers 2019

Mir Architecten - Amsterdam - 3 mois 2017-2018 Sandrolini Architecte / Ingénierie - Paris - 1 an 2017

Artde3s - charpente métallique - 3 mois 2016 Axe Bois - charpente bois - 1 mois 2016

Restauration - équipier polyvalent - saisonnier 2016

Architecte diplômé d’État, charpentier bois. Recherche un poste en agence d’architecture et souhaite intégrer une formation HMONP, session 2023-2024. 2014-2015

Festival Architectures Vives - médiation 2012-2014 Rouge Gorge - travail agricole / usine - saisonnier 2012 RF Soudure - ferronnerie - 1 mois

Travail en magasin - manutention - saisonnier

L’HERMITAGE D’EYLIE

Hébergement temporaire pour randonneurs inspiré des cabanes d’estives. Eylie d’en Haut, Ariège. Sous la direction de M. Gilles CUSY Prix de Montpellier.

Pendant l’été 2020, à la suite d’un échec à l’examen du projet de fin d’étude, je suis parti marcher sur le chemin du GR 10.

Il s’agit d’un parcours traversant la chaîne des Pyrénées, reliant la mer Méditerranée à l’océan Atlantique. Ce dernier passe par quatre régions : les Pyrénées-Orientales, l’Ariège, les Hautes-Pyrénées et le Pays Basque. Il est emprunté tout au long de l’année par de nombreux randonneurs, certains le pratiquant partiellement et d’autres faisant la traversée complète, durant en moyenne quatre à six semaines.

N’ayant alors aucune expérience de ce genre d’excursion sur plus d’un mois, je suis parti seul de Banyuls-sur-Mer le 8 août 2020, pensant marcher une à deux semaines puis rentrer en cours de route. J’ai finalement atteint la ville d’Hendaye le 19 septembre 2020, cinq semaines après mon départ.

Cette expérience propice à l’introspection mais aussi aux rencontres fut extrêmement enrichissante de par la découverte d’un milieu, la montagne, mais aussi d’un univers : celui de la marche qui aujourd’hui me passionne.

Plus je progressais sur ce chemin et plus j’envisageais cette traversée comme un support pour ce projet de fin d’études, m’intéressant particulièrement aux abris et refuges de haute montagne. Ces architectures insulaires, isolées au milieu d’un environnement encore sauvage, proposent aux randonneurs et aux montagnards un confort des plus élémentaires : se protéger de la pluie, s’abriter du vent, allumer un feu, dormir dans un espace clos.

C’est là, dans cette marche d’une rive à une autre, que se trouve le point de départ du projet dont je vous propose la présentation.

6
7
Projet de fin d’études - 2021 Banyuls sur Mer Hendaye Pyrénées Occidentales Océan Atlantique Mer Méditerranée Hautes Pyrénées Ariège Pyrénées Orientales

Pamiers

15 317 Habitants (2015) Alt. +365m

Sentein / Eylie 154 Habitants (2015) Alt. +900m

Vicdessos

Saint-Girons 6 324 Habitants (2015) Alt. +387m ; +1 200m Image satellite du département de l’Ariège

537 Habitants (2015) Alt. +652m ; +1 585m Mérens-les-Vals 167 Habitants (2015) Alt. +929m ; +2 840m

Foix 9 706 Habitants (2015) Alt. +400 m

Tarascon sur Ariège 3 231 Habitants (2015) Alt. +463 m ; +1 187 m

20 000 m

Superficie:4890km² Population:153066 habitants(Sce.Insee2018) Densitédepopulation:31hab./km² Préfecture : Foix Sous-préféctures:PamiersetSaint-Girons

Etang d’Arraing Un jour de marche depuis Eylie. Alt. + 1965m

Ancienne mine du Bentaillou Alt. + 1935m

Eylie d’en Haut

Alt. + 900m

Etang d’Araing

Saqs Alt. + 1563m

Lez

Direction maison du Valier Deux jours de marche depuis Eylie Alt. + 930m

Besset Alt. + 1540m

Lasplanou Alt. + 1838m

Clos du Lac Alt. + 1821m

Grauillés Alt. + 1031m

Carte des refuges sur la section d’Eylie d’en Haut

2 500 m

Tracé du GR 10 Autres chemins de randonnée Cours d’eau Refuges proposant du ravitaillement Abris et cabanes pastorales

Projet de fin d’études - 2021 9

Plan de situation Echelle 1.4000

Vers l’océan Atlantique

Vers la mer Méditerranée

L’Hermitage d’Eylie

10

Profil Sud - Nord

Echelle 1.8000

Profil Ouest - Est

Echelle 1.8000

Eylie d’en Haut Alt. + 900m

Eylie d’en Haut Alt. + 900m

+1100 m

+1050 m

+1000 m

+950 m

+900 m

+1200 m

+1150 m

+1100 m

+1050 m

+1000 m

+1230 m +950 m

11
Projet de fin d’études - 2021
Sud
Ouest Est Nord
12 L’Hermitage d’Eylie

Projet de fin d’études - 2021

13

Vue sur le sommet

Vers l’océan Atlantique

Vers la mer Méditerranée

Plan du rez-de-chaussée

Vue sur la vallée

L’Hermitage d’Eylie

14
Projet
2021 15
de fin d’études -
16 L’Hermitage d’Eylie
18
d’Eylie
L’Hermitage
19
Projet de fin d’études - 2021

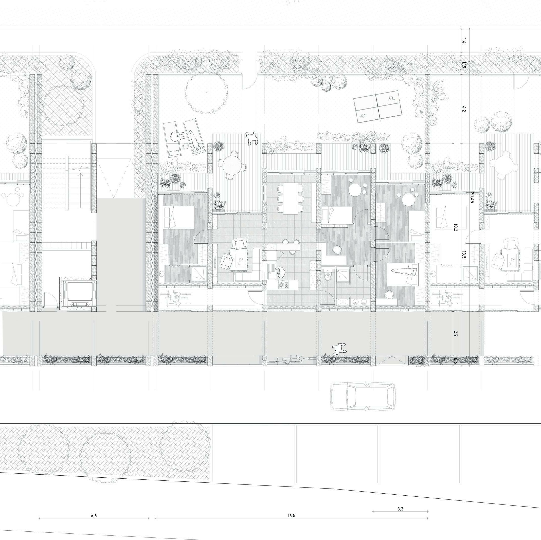
MAUL

Logement collectif modulaire. Montpellier, Hérault. Sous la direction de M. Boris BOUCHET.

Il s’agit d’un projet de logement collectif situé dans un quartier en pleine reconstruction dans le sud de Montpellier.

Son programme a été enrichi par l’ajout d’entités supplémentaires, notamment : des bureaux, une crèche, un restaurant ainsi qu’une bibliothèque. Le contexte environnant au site ne présentant pas ces services.

S’ajoutent ensuite plusieurs catégories de logements allant du studio étudiant jusqu’à des appartements aux dimensions proches d’immeubles-villas.

C’est cette agrégation d’éléments qui donne sa forme au bâtiment, le logement lui-même joue ici en quelque sorte le rôle de matériau de construction.

20 Maul
21
22 Maul
24 Maul
26 Maul

ÉCOLE DIDEROT

Agrandissement d’une école primaire. Montpellier, Hérault. Collaboration avec M. Sébastien PARDONNET. Sous la direction de M. Maxime ROUAULT.

S’inscrivant entre deux quartiers aux morphologies distinctes, lotissement pavillonnaire au sud et grands ensembles au nord, ce bâtiment s’insère au fond d’une parcelle en impasse et s’en distingue par son programme mais également par sa couleur et sa forme elle-même induite par sa composition.

Organisées autour de la cour de récréation, les salles de classe sont des volumes indépendants reliés entre eux par un préau qui s’inspire des qualités d’ombrage et de circulation d’un cloître.

Chaque salle dispose de son propre jardin, un patio, amenant des qualités d’ensoleillement et de ventilation naturelles et proposant aux enfants un petit monde appropriable le temps d’une année scolaire.

28 É cole Diderot
30 É cole Diderot
Semestre 9 - 2019 31
32 É cole Diderot
Semestre 9 - 2019 33

L’ANCIEN LAVOIR

Rénovation d’une commodité urbaine. Aspiran, Hérault. Sous la direction de Mme. Pascale DE TOURDONNET.

Village excentré dans le sud de la France, Aspiran est une commune encerclée par des vignes et accolée à un relief boisé, point de repère de son paysage proche. Victime d’un urbanisme pavillonnaire extensif, son centre historique a alors perdu peu à peu ses qualités piétonnes ainsi que ses lieux de rassemblement.

Ce projet implanté en limite du hameau au sein d’une ancienne école s’insère dans la pente et propose un passage entre la vieille-ville et la campagne voisine par la création de deux plateaux.

Cette topographie nouvelle est traversée par une rigole dans laquelle ruisselle un léger cours d’eau prenant sa source dans l’ancien lavoir au centre du village. Cette irrigation sillone le projet et lui amène des qualités accoustiques et de fraîcheur propices à la création d’un lieu de réunion.

34 L’ancien lavoir
Semestre 7 - 2018 35
36 L’ancien lavoir
Semestre 7 - 2018 37

OVALIE

Aménagement d’un nouveau quartier. Montpellier, Hérault. Projet en équipe. Sous la direction de Mme. Annabelle ISZATT.

S’inscrivant au sein d’une nouvelle ZAC située au sud de Montpellier, ce projet est le fruit d’un travail en collaboration avec six autres étudiants de l’Ensam.

Notre objectif principal fut de combiner des contraintes de densité, imposée par une proximité à la ville, avec des qualités d’espaces publics et de confort propres aux quartiers péri-urbains et à la maison individuelle.

38 O valie
Semestre 8 - 2019 39

MICKLEWRIGHT

Maison individuelle. Pérols, Hérault. Sous la direction de M. Brice LE BOUVIER.

C’est une maison pour une mère et ses enfants mais aussi occasionnellement un lieu de rassemblement pour la famille. Ses habitants occupaient une maison rustique et il était nécessaire d’en retrouver des élément, comme le foyer, dans cette constructions nouvelle. Le projet se trouve à Pérols et s’insère dans une légère pente. Il fait face à une vue dégagée, un étang, sur lequel le bâtiment s’ouvre et vient s’étirer.

Sa conception peut se résumer en quatre étapes : - choix d’une morphologie ouverte pour capter le paysage, - assignation d’une partie commune et d’une partie privée, - différenciation entre les volumes par une topographie, - séparation de ces espaces par une ligne végétale.

42 Semestre 3 - 2015

ABRI POST-SISMIQUE

Workshop Campus Tecnológico de Monterrey. Ville de Mexico, Mexique. Projet en équipe. Sous la direction de M. Daniel DELGADO.

44 Workshop - 2018

MAS MIRABEAU

Workshop chantier participatif. Fabrègues, Hérault. Projet en équipe. Sous la direction de M. Jean-Paul LAURENT.

Workshop - 2019 45

ARCHITECTURE ET PUBLICITÉ

Rapport d’étude. Sous la direction de M. Jean REHAULT.

«...de la même manière qu’on a pu observer une multiplication des panneaux publicitaires au sein de nos villes, on a pu voir s’implanter des bâtiments aux formes et aux couleurs similaires partout dans le monde. Ces franchises adoptent, à la manière des cathédrales du Moyen Âge, un style répétitif iconographique et remarquable puis l’exporte dans toutes les métropoles. Le bâtiment étant à peu de choses près le même d’un continent à l’autre, son apparence incarne son enseigne. À l’intérieur, son ambiance habituelle et artificielle matérialise l’essence de la marque.

Comme pour le parc de loisir, il est une expérience dupliquée dans laquelle le rapport entre image et architecture est à la fois visible et confondu.»

46 Semestre 6 - 2017

ENTRE INDUSTRIE MODERNE ET ARTISANAT CONTEMPORAIN

Mémoire de fin d’étude. Sous la direction de M. Eric WATIER.

«La seconde, également observable à Montpellier, consiste en la génération d’un urbanisme agressif et d’un marché de l’immobilier non régulé. De cette manière, comme l’appuie cette étude portant sur la croissance démographique et la dynamique immobilière, nous avons observé l’apparition à la périphérie de la ville de quartiers parfois sans contexte mais surtout sans habitants. Enfin, une conséquence, cette fois-ci plus indirecte de ce modèle de production, serait la banalisation de l’architecture au profit d’un meilleur rendement. Si c’est le prix au mètre carré qui dirige l’opération alors les architectes et constructeurs auront tendance à se diriger vers des systèmes constructifs standardisés et systématiques, écartant ainsi des chantiers des matériaux dont le prix et la mise en œuvre ne seraient pas assez compétitifs.

L’adoption de ces stratégies aurait alors pour aboutissement la perte d’un savoir-faire artisanal, de cultures constructives transmises au fil des générations de maîtres à apprentis sur les chantiers, pourtant premier support tangible d’une connexion directe entre les hommes et leur environnement.»

Semestre 9 - 2019 47

TRAVAUX ANNEXES

Dessins et illustrations réalisés dans le cadre de concours et de voyages.

Concours Construire Acier - 2017 49
50 Costello - Concours Fondation Jacques Rougerie - 2018 Concours réalisés en collaboration avec M. Sébastien PARDONNET 51

Scanned by CamScanner

Scanned by CamScanner

Scanned by CamScanner

CONSTRUCTION

Travaux d’atelier et de chantier. CAP session 2021-2022. Charpente bois.

54 Fabrications
CAP - 2021 / 2022 55

Merci pour votre lecture. Enzo-Lucas DESESSART enzolucas.desessart@gmail.com 06 85 24 16 15 9 rue Louis Thévenet 69004 Lyon

Turn static files into dynamic content formats.

Create a flipbook
Issuu converts static files into: digital portfolios, online yearbooks, online catalogs, digital photo albums and more. Sign up and create your flipbook.