Canadian Reclamation Fall 2024

Page 1


Evolutions

and opportunities in ecological restoration

Working with Indigenous communities can help protect the environment

Remediating a challenging chlorinated solvent site leads to significant return on investment

The shared responsibilities of workplace mental health

An official publication of the Canadian Land Reclamation Association / Une publication officielle de l’Association canadienne de réhabilitation des sites dégradés

contents

Message from CLRA President Kelly Zadko — 8

CLRA Executives and Directors — 10

CLRA Chapters — 12

Past Presidents — 13

The Green Retort: Mordor no more — 14

Why Join CLRA/ACRSD — 16

Thank You, Todd Clouse — 18

CLRA/ACRSD Members — 20

Meetings and recipient information — 24

AGAT Foundation creates change in Canadian communities — 26

Who is Joe Chowaniec? — 28

The responsibility of leaders and employees in workplace mental health — 30

Lethbridge Polytechnic educates next generation of environmental stewards — 36

Evolutions and opportunities in ecological restoration — 38

Remediating a challenging chlorinated solvent site — 42

H3M’s insights on AER Directive 88 — 44

Work with Indigenous communities can help us protect the environment — 48

Stabilizing Slopes: The Marquis Wildlife Corridor Project — 52

Ernco Environmental and Canadian Reclamation: A Legacy of Excellence — 5

IntelleKtEIG is transforming environmental data to business results — 59

Plant power and phytoremediation: The superheroes of soil restoration — 62

Mining waste to value in Thompson — 64

Index to advertisers — 66

l Pipeline Abandonments

l Facility Decommissioning

l Equipment Services

l Site Specific Liability Assessments (SSLA)

l Pipeline Optimization, Modifications & Discontinuations

l Pipeline Integrity Management Services

l Regulatory Applications & License Amendment Submissions

Land Reclamation Education At The University of Alberta

• The University of Alberta offers a full suite of programs for careers in land reclamation including BSc, MSc, PhD and college transfer degrees and certificates.

• The Land Reclamation International Graduate School provides training and professional development to foster highly qualified land reclamation professionals with the education and experience to take on leadership roles in industry, consulting, government and academia.

• Land reclamation is a multidisciplinary and interdisciplinary field and the programs offered by the University of Alberta ensure students gain knowledge across diverse areas.

• Graduates can obtain employment in industry, government, consulting, not for profits and academia.

• Graduates work on a diversity of human and nature caused disturbances that need reclamation; such as natural disasters like earthquakes and floods; protected areas like national parks; urban; oil and gas operations; agriculture; sand and gravel operations; coal, metal and mineral mining.

Faculty of Agricultural, Life and Environmental Sciences questions.ales@ualberta.ca | ualberta.ca/agriculture-life-environment-sciences/ Phone: (780) 492-4933

Land Reclamation International Graduate School (LRIGS) lrigs@ualberta.ca | lrigs.ualberta.ca

Phone: (780) 492-9088

Suite 300, 6 Roslyn Road Winnipeg, Manitoba, Canada R3L 0G5 www.delcommunications.com

President & CEO: DAVID LANGSTAFF

Managing Editor: LYNDON MCLEAN lyndon@delcommunications.com

Sales Manager: DAYNA OULION dayna@delcommunications.com

Sales representatives:

COLIN JAMES

ROSS JAMES

Production Services Provided by: S.G. Bennett Marketing Services

Creative Director / Design: KATHLEEN CABLE

All rights reserved. Contents may not be reproduced by any means, in whole or in part, without the prior written permission of the publisher.

While every effort has been made to ensure the accuracy of the information contained herein and the reliability of the source, the publisher in no way guarantees nor warrants the information and is not responsible for errors, omissions or statements made by advertisers. Opinions and recommendations made by contributors or advertisers are not necessarily those of the publisher, its directors, officers or employees.

Publications Mail Agreement #40934510 Return undeliverable Canadian addresses to:

DEL Communications Inc.

Suite 300, 6 Roslyn Road

Winnipeg, Manitoba R3L 0G5

Email: david@delcommunications.com

NO ONE WANTS TO

VISIT A PROJECT SITE TWICE.

At BrettYoung, our selective seed buying process, industry-leading erosion control solutions and team of experts can help you get the job done right the first time. Find quality solutions for your slope, soil, and environment with a partner who can help you along the way.

Let’s make your next job well done, a little easier.

Experience Reclamation, Simplified.

national president's message KELLY ZADKO

DEAR CLRA MEMBERS & FRIENDS

As we transition out of summer, I am honoured to connect with you for this Fall issue of our magazine. Over the past few months, in my role as National President, I have had the privilege of getting to know our chapter presidents from across the provinces, and I am truly inspired by the passion and dedication that each of you brings to the field of land reclamation.

Our organization’s strength lies in the incredible network of professionals, volunteers, and stakeholders who are committed to reclaiming and restoring land across Canada. One of my primary goals as President is to foster even stronger connections between our chapters, ensuring that we continue to share knowledge, experiences, and best practices that will drive the growth and success of the CLRA.

I’m excited about the future of our association and the potential we have to make a lasting impact on land reclamation in Canada. As we move forward and enter the 50th anniversary as an association in 2025, I encourage each member to actively engage with your local chapters, participate in events, and share your insights and expertise. Together, we can continue to build and grow a strong reclamation community!

Thank you for your ongoing dedication to the CLRA, and I look forward to working with all of you as we strive to advance our mission.

Warm regards,

CLRA Executives and Directors

President Kelly Zadko Calgary, AB

EXECUTIVE

Treasurer & Past President Fannie DesRosiers Calgary, AB

Secretary Maria Kudienko Calgary, AB

DIRECTORS

Frank Potter Sydney, NS

CHAPTER REPRESENTATIVES

AWARDS CHAIR

Director - Awards Chair Maria Kudienko

Ian Young Winnipeg, MB
Justin Straker Duncan, BC
Amber Flamand Calgary, AB
Lucie Labbé Montréal, QC

NAIT’s applied research is focused on the restoration and sustainable use of land and freshwater ecosystems, strengthening Canada’s natural resources sectors and the industries that support them.

Our experts translate knowledge from applied research projects to develop training programs that promote learner and community growth for businesses and communities throughout Canada.

CLRA Chapters and Past Presidents

ALBERTA EXECUTIVE

President Amber Flamand Calgary, AB

Vice-President Liana Phoenix Calgary, AB

Treasurer Megan Valvasori Calgary, AB

Secretary Susan Tiffin Calgary, AB

Past President Kelly Zadko Calgary, AB

DIRECTORS

Angela MacKinnon Calgary, AB

Brent Walchuk Sherwood Park, AB

Diana Dunn Calgary, AB

Duncan Mathers Calgary, AB

Troy Gooch Calgary, AB

Meghan Olesiuk Calgary, AB

ATLANTIC EXECUTIVE

President

Abby van der Jagt Dartmouth, NS

Vice-President Chris Thomson Saint John, NB

Past President Frank Potter Sydney, NS

Treasurer Carman Stevens Halifax, NS

Secretary Dawn Negus Bedford, NS

DIRECTORS

Bob Pett Halifax, NS

Jim Barnet Kilarney Road, NB

Tony Bowron Terence Bay, NS

Vicki Nash, Fredericton, NB

MANITOBA

CHAPTER REPRESENTATIVE

Ian Young Winnipeg, MB

BRITISH COLUMBIA

CHAPTER REPRESENTATIVE

Justin Straker Duncan, BC

ONTARIO

EXECUTIVE

Acting Co-Presidents

Quentin Smith Sudbury, ON

Sarah Barabash Etobicoke, ON

Acting Treasurer

Sarah Barabash Etobicoke, ON

Acting Secretary Lesley Hymers Toronto ON

DIRECTORS

Bill Mackasey Lindsay, ON

Christopher Hey Ottawa, ON

Peter Beckett Sudbury, ON

Samantha McGarry Sudbury, ON

QUEBÉC EXÉCUTIF

Présidente

Lucie Labbé

Montréal, QC

Vice-président Vacant

Secrétaire

Martin Beaudoin Nadeau Québec, QC

Trésorier

Nicolas Roy Outremont, QC

Coordonnateur

Pierre Fardeau

Montréal, QC

DIRECTEURS

Benoit Limoges Québec, QC

Gabriel Charbonneau

Val-David, QC

Kawina Robichaud

Saint-Anne-de-la-Pocatière, QC

Line Rochefort Québec, QC

Mélanie Pelletier Québec, QC

Pascal Guérin Québec, QC

SASKATCHEWAN EXECUTIVE

President

Mariela Kunz

Saskatoon, SK

Vice -President Vacant

Past President

Todd Clouse Regina, SK

Treasurer Vacant

Secretary Vacant

DIRECTORS

Christopher Gallop Regina, SK

Jessica Spira Saskatoon, SK

Josh Gibb Saskatoon, SK

Reese Giraudier Regina, SK

Todd Han Regina, SK

PAST PRESIDENTS

1976 – 1978 Jack Winch, Ontario

1978 – 1979 Jack Thirgood, British Columbia

1979 – 1980 Phil Lulman, Alberta

1980 – 1981 Bernard Brooks, Québec

1981 – 1982 Tom Peters, Ontario

1982 – 1983 Gordon Boutilier, Nova Scotia

1983 – 1984 Percy Sims, Alberta

1984 – 1985 Alex Ansell, Ontario

1985 – 1986 Paul Ziemkiewicz, Alberta

1986 – 1987 Keith Winterhalder, Ontario

1987 – 1988 Holly Quan, Alberta

1988 – 1989 Chris Powter, Alberta

1989 – 1990 Daniel Boivin, Québec

1990 – 1991 David Murray, Ontario

1991 – 1992 Thomas Oddie, Alberta

1992 – 1994 Margarete Kalin, Ontario

1994 – 1995 Judith Smith, Alberta

1995 – 1996 Darl Bolton, Ontario

1996 – 1997 Carol Jones, British Columbia

1997 – 1998 Moreen Miller, Ontario

1998 – 1999 David Lloyd, Alberta

1999 – 2000 Al Fedkenheuer, Alberta

2000 – 2001 David Polster, British Columbia

2001 – 2002 M. Anne Naeth, Alberta

2002 – 2003 Tracy Patterson, Alberta

2003 – 2004 Peter Beckett, Ontario

2004 – 2005 Lisa Lanteigne, Ontario

2005 – 2006 David Polster, British Columbia

2006 – 2007 Sherry Yundt, Ontario

2007 – 2008 Roger Didychuk, Alberta

2008 – 2010 Bryan Tisch, Ontario

2010 – 2015 David Polster, British Columbia

2015 – 2021 Andrea McEachern, Alberta

2021 – 2023 Fannie DesRosiers, Alberta

The GREEN RETORT with CLRA CORRESPONDENT

Chad Green

MORDOR NO MORE: CLEANING UP

It’s an experience cruising winding roads through the scenic Rocky Mountains and undulating foothills of southwest Montana. Unexpectedly perched on a stepped hillside of desiccated grasses was an enormous solitary brick tower rising prominently above the montane landscape in stark contrast to blue sky. Surprised, fascinated, and perplexed, I wondered, what is that?

The former Anaconda copper smelter smokestack is the world’s tallest freestanding masonry structure. It rises 178 metres (585 feet) above surrounding lands that once received a steady fallout of heavy metals. The local residents rallied to save the tower as the smelter was razed. Keeping the spectacular old smokestack as a monument might warn of the unintended financial, health, and ecological costs of unabated smelting. As you might guess, the tower marks a significant United States Environmental Protection Agency (USEPA) Superfund remediation site.

According to the USEPA Superfund website for the Anaconda Co. Smelter, remediation is an immense and ongoing project including:

• Over 500 square kilometres of impacted landscape (I converted everything to metric).

• Over 1,600 private properties were remediated, including blood lead level monitoring.

• Potable groundwater remediation, including water wells.

• Millions of cubic metres of waste material mitigated.

I wasn’t expecting quite that much. And yet, I was still impressed by the prominence of the 178-metre tower.

It got me thinking! I wonder how tall Sauron’s Tower in Sudbury is? I’ve been to Sudbury, and their smelter tower is huge! Apparently, the proper name is the Inco Superstack (of course they wouldn’t use a Lord of the Rings reference). That concrete and steel tower is 381 metres tall – over twice as tall as the masonry Anaconda tower. Its prominence in the Sudbury skyline is distinct! Only the CN Tower in Toronto has usurped the Superstack in height in Canada. The Superstack remains the second tallest freestanding structure in Canada, but not for much longer. The Sudbury Superstack, now owned by Vale, is out of service and undergoing phased dismantling over the next few years. This is a tremendous part of Canada’s mining and smelting legacy.

Maybe some CLRA members or readers are involved in remediation work at Sudbury? If not, perhaps there is opportunity at the Inco Superstack.

This glimpse into smelting is incidental to a vacation road trip –a reminder to always be inquisitive. Smelting is a dirty job, but somebody’s gotta do it. We once did a lot more of it. You might guess that the demand for smelting capacity is being largely met in jurisdictions with lower environmental standards than North America. That’s another topic.

In science, Chad

• Nearly 1,000 constructed wetlands.

• Capping of the smelter site and remediation and reclamation of surrounding lands.

• 9.1 kilometres of stream restoration.

Salix Resource Management Ltd. is an Alberta based environmental consulting company that provides "cradle to grave" environmental services, with a passion and commitment to the environment.

email: salixadmin@salix.ca

Office: (403) 638-3636

PO Box 5702 | Lacombe, AB | T4L 1X3

Steve Hoge R.T. (Ag.): 403-348-3250 info@terreneenvironmental.ca

Understand the human impact on the environment and discover meaningful solutions for our ecosystems through hands-on learning experiences with Concordia University of Edmonton’s Environmental Science 3 or 4-year degrees.

In and out of classrooms, translate what you learn with extraordinary field courses throughout Alberta and beyond in marine, freshwater and terrestrial ecology.

Take the first steps to growing your career and changing the way we live.

Environmental Monitoring

Assessment and Remediation

Land Reclamation

Water Resource and Water Quality Management

Climate Change and Decarbonization

Renewable Energy Development

Conservation of Biodiversity and Natural Areas

concordia.ab.ca/enviro-sci

WHY JOIN THE CLRA/ACRSD?

Membership is for one calendar year and includes member-exclusive access to the secure online CLRA Member Directory, news and event updates, and presentations and proceedings. You will also receive a subscription to our semi-annual publication, Canadian Reclamation, which features articles about current and emerging reclamation projects and practices.

These publications allow the organization to have an informal, instructional role in the decision-making processes of reclamation/rehabilitation projects and to act as a forum for the dissemination of ideas and information pertinent to reclamation activities.

CLRA/ACRSD is an active member of the International Affiliation of Land Reclamationists. As such, all members of CLRA/ ACRSD are also members of the IALR.

Sign-up for a three-year membership term and save up to 20 per cent on corporate and individual membership dues.

Select your preferred chapter affiliation(s) during the application/renewal process to receive updated specific to your geographical location (Alberta, Atlantic, British Columbia, Manitoba, Ontario, Quebec, Saskatchewan).

Note: Membership is free for full-time students.

MEMBER BENEFITS

• Listing and access to membership directory with over 500 individual and corporate members involved in land reclamation across Canada.

• Corporate members will have access to employee accounts and opportunity to share relevant events on our Website Event Calendar.

• Subscription to Canadian Reclamation magazine, featuring news, project articles, supplier information, and articles pertaining to land reclamation in Canada and around the world.

• Receive notices, calls for abstracts, and discounted registration fees for CLRA events, annual meetings, and conferences.

• Tremendous networking opportunities at national and chapter events.

• Link to other professional land reclamation associations in the UK, USA, Australia, and China.

• Initiatives to support educational awards and scholarships in land reclamation.

• Continuing education and development in professional land reclamation and remediation through lunch and learns, field trips, and workshops.

• Access to members-only portal including full online membership directory, job posting module, file sharing, webinars, and more!

SERVICES

RECLAMATION

• Subsoil & topsoil replacement

• Decompaction

• Contouring

• Erosion control

• Road decommissioning

• Revegetation

• Site preparation for tree planting

REMEDIATION

• Removal & transportation of impacted soils

• Provision of clean clay fill

• Soil treatment options

• ALLU bucket services

• Supply heavy duty mats

SPILL RESPONSE

• Containment

• Recovery & removal of impacted soils

• Supply heavy duty mats

TRUCKING SERVICES

• Tandem & tridem box trucks

• Tandem & tridem lowbeds

• Winch tractors, scissor necks, & Jeep combinations

• Heavy equipment hauling

• Two Ton pickers, dump trailers, & tilt decks

• Sanding Trucks

THANK YOU, TODD CLOUSE: A champion for land reclamation in Saskatchewan

The Canadian Land Reclamation Association (CLRA) would like to take a moment to recognize and thank Todd Clouse, an exceptional volunteer whose dedication has played a pivotal role in the growth and success of the Saskatchewan Chapter of the CLRA. We would like to take this opportunity to express our gratitude for Todd’s commitment and leadership, over the past several years.

In 2019, Todd Clouse embarked on a journey to further establish the Saskatchewan Chapter of the Canadian Land Reclamation Association. As an experienced Environmental Professional, he recognized the need for a local network that would bring together individuals and organizations interested in land reclamation, providing them with a platform for sharing knowledge and expertise.

Todd’s consulting knowledge brought a wealth of experience and expertise to his role with the CLRA. His professional background and deep understanding of environmental issues have helped the chapter’s initiatives and activities.

In addition to his role as Chapter President, Todd has also served on the National Board of the Canadian Land Reclamation Association, representing Saskatchewan's interests at a national level. His involvement in the national organization has ensured that the Saskatchewan Chapter remains connected to the larger CLRA community, allowing members to benefit from the knowledge, resources, and opportunities available across the country.

As Todd Clouse steps down from his role as President after five years of dedicated service, we want to extend our gratitude for his contributions to the CLRA and the Saskatchewan Chapter. Todd’s leadership and commitment have been instrumental in building the community of land reclamation professionals in Saskatchewan.

On behalf of the entire Canadian Land Reclamation Association and all those who have had the privilege of working with you, we extend our thanks.

At Lakeland College, your environmental sciences education goes beyond the classroom into fields, forests and wetlands.

In the conservation and reclamation major, develop in-demand skills as you:

• minimize industry impacts on Alberta’s natural landscapes.

• classify, manage and conserve soil.

• apply reclamation regulations, guidelines and techniques.

• identify and manage plant species.

Or, explore one of our other four Environmental Sciences’ majors.

After you graduate, continue learning in our Bachelor of Applied Science: Environmental Management program.

Join us at the Vermilion campus and put your learning into action.

lakelandcollege.ca/enviro

LAKELAND COLLEGE

Abacus Enterprises

KYLE STEWART

E: k.stewart@abacusent.ca

T: 780-939-5395

AGAT Laboratories

KELLY HOWARD

E: marketing@agatlabs.com

T: 403-736-2000

AGGERS Technical Services Ltd.

BRENDAN VICKERY

E: aggerstech@gmail.com

T: 403-862-4410

Alberta Society of Professional Biologists

DEAN FALKENBERG

E: executivedirector@aspb.ab.ca

T: 403-264-2504

All Service Drilling Inc.

KEN BIEBER

E: kbieber@allservicedrilling.com

T: 403-945-9912

ALS Environmental

GWEN HILTZ

E: gwen.hiltz@alsglobal.com

T: 780-413-5227

Ambipar Response/Ridgeline Canada

JAYME FINLEY

E: jayme.finley@ambipar.com

T: 403-464-3217

Arletta Environmental Consulting Corp.

JENNIFER CARSCALLEN

E: admin@arletta.ca

T: 403-9911879

Aspen Land Group Inc.

LESLEY FOY

E: lfoy@aspenlandgroup.com

T: 780-809-8191 ext:22

Association des gestionnaires régionaux des cours d'eau du Québec (AGRCQ)

CLAIRE MICHAUD

E: direction@agrcq.ca

T: 418-906 ext:7009

Aurora Land Consulting

MERIDITH BALL

E: meridith@auroraland.ca

T: 780-920-1314

CORPORATE MEMBERSHIP

INDIVIDUAL MEMBERS ARE NOT LISTED TO PROTECT THEIR PRIVACY

Ballast Environmental Consulting

ELVIE REINSON

E: elvie@ballastenviro.com

T: 403-452-3110

Barr Engineering and Environmental Science Canada Ltd.

BLAINE RENKAS

E: BRenkas@barr.com

T: 403-592-8300

Basin Environmental Ltd.

DARREN RATH

E: darren.rath@telus.net

T: 587-269-1180

Black Bear Environmental Services Ltd.

STEVEN WHITEHEAD

E: steve@blackbearenvironmental.ca

T: 403-512-8133

Blue Heron Solutions for Environmental Management Inc.

LINDA BYRON

E: lbyron@blueheronenv.com

T: 705-365-6676

Boreal Horticultural Services Ltd.

DAN MCCURDY

E: JudithAnneButt@gmail.com

T: 780-826-1709

Bowron Environmental Group Ltd.

KEVIN ATTER

E: kevin.atter@bowrongroup.com

T: 403-477-7088

BrettYoung TRAVIS UNGER

E: travis.unger@brettyoung.ca

T: 780-985-7307

BrettYoung Seeds Ltd.

COREY MANDRUSIAK

E: corey.mandrusiak@brettyoung.ca

T: 780-985-7308

Brock White - A White Cap Company

MICHAEL FAWCETT

E: mike.fawcett@whitecap.com

T: 905-265-4994

Bureau Veritas Laboratories

VIVIAN BOND

E: vivian.bond@bvlabs.com

T: 403-620-8358

Canadian Erosion and Containment

JAMES WILKINSON

E: james.wilkinson@cerosion.com

T: 587-580-8701

CARO Analytical Services

SYDNEY BACON

E: sbacon@caro.ca

T: 780-489-9100

Cascade Geotechnical Inc.

LESLIE COPELAND

E: lcopeland@cascade.ca

T: 780-454-2400

Choice Environmental Consulting Group Inc.

BRENT PHILLIPS

E: brent.phillips@choice-ecg.com

T: 587-5812575

Clean Harbors Environmental Services

VENESSA KUMPULA

E: kumpula.venessa@cleanharbors.com T: 780-446-1597

CNRL

DIANA DUNN

E: diana.dunn@cnrl.com

T: 403-386-5385

Colucent Environmental

TOM HILDITCH

E: tom@colucentenvironmental.com

T: 647-273-0230

Core Drilling Corp.

DAMIAN BRAKE

E: dbrake@coredrillingcorp.com T: 403-243-1240

Crescent Point Energy Corp.

MORGAN REID

E: mreid@crescentpointenergy.com

De Beers Canada

SUMMER ZAWACKY

E: summer.zawacky@debeersgroup.com

T: 250-486-0689

Ducks Unlimited Canada

MICHAEL WILLIAMS

E: m_williams@ducks.ca

T: 705-790-3567

Earthmaster Environmental Strategies Inc.

PATTI JANISSE

E: patti.janisse@earthmaster.ab.ca

T: 403-201-5111 ext:243

EcoLogic Horticulture Ltd.

NATHAN GILL

E: nathan@ecologichorticulture.com T: 403-399-2991

Ecosis Ltd.

BRANDY FARIS

E: farisb@ecosis.ca T: 403-540-4409

Ecoventure Inc.

WENDY LAIR

E: wendy.lair@ecoventure.ca T: 780-432-2490 ext:203

Element Materials Technology Inc.

DANIELLE HUTSON

E: danielle.hutson@element.com

T: 780-438-5522

Ember Resources

ERIN HIGH

E: ehigh@emberresources.com

Environmental Material Science

CAROLYN INGLIS

E: carolyninglis@ems-inc.ca

T: 403-3051766

EnviroSearch Ltd.

MARGOT FERGUSON

E: margot.ferguson@envirosearch.ca T: 403-543-5353

ERIS - Environmental Risk Information Services

BRIAN EASTCOTT

E: beastcott@erisinfo.com T: 416-510-6771

Ernco Environmental Drilling & Coring Inc.

AMANDA ERNST

E: amanda.e@erncodrill.com T: 403-887-1490

ETCON Environmental Services Ltd.

ANDY ETMANSKI

E: etcon@shaw.ca

T: 780-720-4445

Evolve Surface Strategies Inc.

LYNDA INGENTHRON

E: lynda@actionland.ca

T: 403-528-2558

Finite Environmental

JEFF ROBERTSON

E: jeffr@finiteenviro.ca

T: 587-859-3204

Flint Environmental Services

JESSICA BLITT

E: Jblitt@flintcorp.com

T: 403-404-7162

GCL Environmental Ltd.

TONY GREGOV

E: info@gclenv.com

T: 403-988-5544

GEN7 Environmental Solutions Ltd.

RYAN RADCHENKO

E: rradchenko@gen7env.com

T: 780-542-3676

Geo Tactical Remediation Ltd.

GORDON GUEST

E: gguest@geotactical.ca

T: 403-265-5533

GFL Environmental Inc

JEFFREY NEWMAN

E: jeffrey.newman@gflenv.com

T: 613-849-8522

GHD

AMANDA BODERO

E: amanda.bodero@ghd.com

T: 587-441 4587

Gibson Energy

MIKE MORDEN

E: mike.morden@gibsonenergy.com

T: 403-796-5763

Government of Alberta

TYREL HEMSLEY

E: tyrel.hemsley@gov.ab.ca

T: 403-297-2111

Great Excavations Inc

LISA SKIERKA

E: lisa.skierka@grtexc.com

T: 403-465-3929

Groupe Synergis

PIERRE-OLIVIER CÔTÉ

E: jparis@synergis.ca T: 819-536-0513

H3M Environmental Ltd.

H3M ENVIRONMENTAL

E: info@h3menviro.com T: 587-393-5180

Hodgson Contracting Ltd.

CHRIS WAKELIN

E: chris@hodgsoncontracting.com

T: 780-542 6655 ext:3

Imperial Oil / E&PS

KITTY CHOW

E: kitty.k.chow@esso.ca

T: 403-333-6926

Integral Ecology Group

JUSTIN STRAKER

E: jstraker@iegconsulting.com

T: 250-701 0600

J.E.D. Anchors & Environmental Ltd.

BARBARA BURNS

E: barb.burns@jeddrilling.ca

T: 403-886-5542

Jill Caldwell

JILL CALDWELL

E: admin@goodlandsenviro.com

T: 204-634-2245

Jorgensen Land Management Ltd.

DAVE JORGENSEN

E: Dave.J@Jorgensenland.com

JSK Consulting Ltd.

STACY THYGESEN

E: sthygesen@jskconsulting.ca

T: 403-347-9444

KBL Projects Ltd.

LANCE HAYMAN

E: lhayman@kblenv.com

T: 403-575-1351

Keneco Environmental Inc.

TOM STEVENSON E: tstevenson@kenecoenviro.com

T: 403-237-8137

Klohn Crippen Berger Ltd.

JESSICA HUDSON

E: jhudson@klohn.com T: 780-733-4608

Lakeland College

MARILYN SOMMER E: marilyn.sommer@lakelandcollege.ca T: 780-853-8457

Leaf Ninjas Inc. ANDREW RENAUX E: andrew@leafninjas.ca T: 403-921-2023

Leaf Ninjas Inc. DAVE CARLTON E: info@leafninjas.ca T: 403-971-5230

Lethbridge College

STEVE MACRAE E: s.macrae@lethbridgecollege.ca T: 403-317-3597

Long Chain Reclaim Ltd.

RACHELLE LOOSEMORE E: rloosemore@lcreclaim.com

T: 780-441-6347

Lydell Group Inc

DANIEL FRASER E: danielf@lydellgroup.ca

T: 780-542-6019

Maritime Hydroseed (1988) Ltd.

CHRIS THOMSON

E: chris@maritimehydroseed.com

T: 506-672-1600

Matidor.com

SEAN HUANG

E: sean.huang@matidor.com

T: 778-223-8599

Matrix Solutions Inc.

SHEILA LUTHER

E: sluther@matrix-solutions.com

T: 780-989-8335

MDG Consulting & Environmental Ltd.

MARK GILCHRIST

E: mark@mdgconsulting.ca T: 306-260-5536

Medicine Hat College

ALLISON CAMPBELL

E: acampbell@mhc.ab.ca

T: 403-525-2674

Millennium EMS Solutions Ltd.

IAN MITCHELL

E: imitchell@mems.ca

T: 403-270-4724

Morgan Construction and Environmental Ltd.

SEAN GOUGH

E: sgough@mcel.ca

T: 587-594-1360

NAIT Centre for Boreal Research

KEVIN KEMBALL

E: KKEMBALL@nait.ca

T: 780-983-5566

Nichols Environmental (Canada) Ltd.

BARRY RAKEWICH

E: rakewich@nicholsenvironmental.com

T: 780-484-3377

Nor-Alta Environmental Services Ltd.

LIANA PHOENIX

E: LPhoenix@nor-alta.com

T: 403-605-4054

North Shore Environmental Consultants Inc.

KELLY ZADKO

E: bd@northshoreenv.com

T: 780-467-3354

Northern Wildflowers Inc.

JENNY FORTIER

E: jenny@northernwildflowers.ca

T: 705-669-9434

NorthWind Land Resources Inc.

JACKIE PARENTEAU

E: Office@nwlr.ca

T: 780-481-9777

Nova Scotia Lands Inc.

CORY MACPHEE

E: cory.macphee@novascotia.ca

T: 902-574-1022

Osprey Scientific Inc.

KAREN SCHMIDT

E: kschmidt@ospreyscientific.com

T: 780-437-4334

Paragon Soil and Environmental Consulting Inc.

JACQUELINE AYOTTE

E: jayotte@paragonsoil.com

T: 780-434-0400

Peace River Forage Association of BC

SANDRA BURTON

E: coordinator@peaceforage.bc.ca

Pinchin Ltd.

REESE GIRAUDIER

E: jcostley@pinchin.com

T: 306-552-9161

Portage College

MICHAEL SCHULZ

E: michael.schulz@portagecollege.ca

T: 780-623-4934

Priscu and Associates Consulting Engineers Inc.

DOINA PRISCU

E: dpriscu@priscuengineers.com

T: 604-862-7731

Profile Products LLC

DAMON SUMP

E: dsump@profileproducts.com

T: 503-537-8462

Pure Environmental Waste Management Ltd.

ED GUENTHER

E: eguenther@pureenviro.eco

T: 403-478-9975

Ram River Environmental Consultants Ltd.

BLAKE CRAWFORD

E: info@rrec.ca

T: 403-729-2054

Remedx Remediation Services Inc.

ANGIE OOSTERLEE

E: angie@remedx.net

T: 403-209-0004

Resolve Earthworks & Environmental

MIKE TUYTTENS

E: mtuyttens@resolve-earthworks.ca

T: 587-229 7095

Restore Environmental Inc

KAEL HANAK

E: khanak@restore-nature.ca

T: 250-2576598

Rice Resource Technologies

KEVIN HUNSCHE

E: khunsche@riceresource.com

T: 780-469-1356

Road to Rail Construction Group Inc.

TARREN PIDHERNEY

E: tarren@rtrc.ca

T: 780-878-4340

Salix Resource Management Ltd.

STACY LUNDE

E: slunde@salix.ca

T: 403-638-3636

Satre Consulting Inc.

BRENT SATRE

E: bsatre@telusplanet.net T: 780-361-7608

Secure

AARON QUILICHINI

E: aquilichini@secure-energy.com

T: 306-315-0175

Secure Energy Services

NICK GIUGOVAZ

E: ngiugovaz@secure-energy.com

Sequoia Environmental Remediation Inc.

KEVIN KEENAN

E: kevin@sequoiaenvironmental.com

T: 403-272-5523

Signum Consulting Ltd.

RON LUTZ

E: ron.lutz@signumconsult.com T: 403-949-2260 ext:1

SLR Consulting Ltd.

MARIA KUDIENKO

E: mkudienko@slrconsulting.com

T: 403-888-9884

Solstice Canada Corp.

RENATE ANDERSEN

E: randersen@solsticecanada.com

T: 780-443-3431

Solstice Canada Corp.

DEANDRA WEBBER

E: dwebber@solsticecanada.com

T: 780-443-3431

Stantec Consulting Ltd.

DARREN HECK

E: darren.heck@stantec.com

T: 403-716-8137

Story Environmental Inc.

DENISE BELAND

E: accounting@storyenvironmental.com

T: 705-672-3324

Strathcona Resources Ltd.

AMBIKA SHARMA

E: ambika.sharma@strathconaresources.com

T: 403-930-3000

SUBLATUS Environmental

JASON POCZA

E: jason.pocza@sublatus.ca

T: 403-613-7250

Summit Liability Solutions Inc.

ZACH WINTONYK

E: zwintonyk@summitearth.com

T: 403-818-4129

SWAT Consulting Inc.

CHRISTINA COLENUTT

E: ccolenutt@swat-ab.ca

T: 866-610-7928

Sylvis Environmental Services

MIKE VAN HAM

E: info@sylvis.com

T: 604-777-9788

T2 Environnement

DANIEL TARTE

E: danielt@t2environnement.com

T: 514-894-0096

Terra Preta Organics

LEE MARTINEAU

E: lee@terrapreta.ca

T: 403-669-8669

TerraLogix Solutions Inc.

JODY STEVENS

E: jody.stevens@terralogix.ca

T: 403-217-7787 ext:221

Terrene Environmental Consulting Ltd.

STEVE HOGE

E: steve@terreneenvironmental.ca

T: 403-348-3250

Tetra Tech Canada Inc.

MARK FAWCETT

E: mark.fawcett@tetratech.com

T: 780-451-2121

Timberwolf Environmental

REG RIVARD

E: admin@timberwolfenviro.ca

T: 780-826-9806

Trace Associates Inc.

EMILY LAZDOWSKI

E: elazdowski@traceassociates.ca

T: 403-333-8171

Tree Time Services

DREW PATTERSON

E: drew@treetime.ca

T: 780-472-8878

Triton Environmental Consultants Ltd.

TESS VICARS

E: tvicars@triton-env.com

T: 403-262-9915

TRIUM Environmental Inc.

JEVINS WADDELL

E: info@triuminc.com

T: 403-932-5014

Tundra Environmental & Geotechnical Drilling Ltd.

JACKIE ANDERSON

E: jackie@tundraenvirodrilling.ca

T: 403-742-6601

Vitae Environmental Construction Ltd.

BROOKE BONERTZ

E: accounting@vitae-enviro.com

T: 403-627-4589

Walker Environmental Group Inc.

ERIN AGRO

E: eagro@walkerind.com

T: 647-326-5003

Waste Connection of Canada Inc.

GORD MACHON

E: gord.machon@wasteconnections.com

T: 403-880-3470

Waterline Resources Inc.

BRENT LENNOX

E: blennox@waterlineresources.com

T: 403-243-5611

Weir Construction Ltd.

SANDY ROBINSON

E: weir.construction@shaw.ca

T: 403-527-1829

West Earth Sciences Ltd.

TYLER ADAIR

E: tyler.adair@westx.com

T: 403-269-8887

WestMET Group Canada Ltd.

KYLE HOBBS

E: khobbs@westmetgroup.com

T: 403-884-3024

Whiterock Ventures Inc.

KAL KINGRA

E: kal@whiterockventures.ca

T: 780-235-0006

Worley Consulting

CLAIRE HYRICH

E: claire.hyrich@worley.com

T: 403-992-2914

X-Terra Environmental Services Ltd.

SHAWN DASCHUK

E: d.gordon@xtec.ca

T: 780-875-1442

LOCATIONS OF CLRA’S ANNUAL MEETINGS

1975 Guelph, ON

1976 Guelph, ON

1977 Edmonton, AB

1978 Sudbury, ON

1979 Regina, SK

1980 Timmins, ON

1981 Cranbrook, BC

1982 Sydney, NS

1983 Waterloo, ON

1984 Calgary, AB

1985 Quebéc City, QC

1986 Vancouver, BC

1987 Sudbury, ON

1988 Ottawa, ON

1989 Calgary, AB

1990 Thetford Mines, QB

1991 Kamloops, BC

1992 Edmonton, AB

1993 Lindsay, ON

1994 Pittsburgh, PA

1995 Saskatoon, SK

1996 Calgary, AB

1997 Cranbrook, AB

1998 Markham, ON

1999 Saskatoon, SK

2000 Edmonton, AB

2001 Halifax, NS

2002 Dawson Creek, BC

2003 Sudbury, ON

2004 Victoria, BC

2005 Dawson City, YT

2006 Ottawa, ON

2007 Halifax, NS

2008 Kannanaskis Village, AB

2009 Quebéc City, QC

2010 Courtenay, BC

2011 Sudbury, ON

2012 Sydney, NS

2013 Whitehorse, YT

2014 Province of Quebéc

2015 Winnipeg, MB

2016 Timmins, ON

2017 Fort McMurray, AB

2018 Miramichi, NB

2019 Kimberley, BC

2020 Virtual

2021 Virtual

2022 Hybrid – Red Deer, AB

2023 Quebéc City, QC

MEETINGS AND RECIPIENT INFORMATION

CLRA/ACRSD AWARD RECIPIENTS

DR. EDWARD M. WATKIN AWARD

1983 Edward Watkin

1984 Bernard Brooks

1985 Paul Ziemkiewics

1986 Percy Sims

1987 Alex Ansel

1988 Terry Macyk

1989 Chris Powter

1990 David Walker

1991 B.C. Technical & Research Committee on Reclamation

1992 Daniel Boivin

1993 Alberta Environmental Protection, Land Reclamation Division

1994 Laurentian University, Biology Department

1995 David Lloyd

1996 Ann Smreicu

1997 Darlene Hergott

1998 Sherry Yundt

1999 No recipient

2000 Heather Sinton

2001 Kerby Lowen

2002 No recipient

2003 Bill Lautenbach

2004 Bob Hart

2005 Construction Aggregates Limited

2006 Martin Fung

2007 Bryan Tisch

2008 No recipient

2009 Fred Bonner

2009 David Hopper

2010 The Ontario Aggregate Resource Corporation

2011 Xstrata Nickel (Onaping)

2011 Xstrata Nickel (Falconbridge)

2012 Michele Coleman

2013 LRIGS, University of Alberta

2014 No recipient

2015 No recipient

2016 Dr. Peter Beckett

2017 Gordon Dinwoodie

2018 Linwood Dunham

2019 Western Sky Land Trust

2020 No recipient

2021 Marissa Reckmann

2022 Kelly Osterman

LINDA JONES MEMORIAL AWARD

2016 Marie-Eve Marin

2017 Jennifer Buss

2018 Zachary McDougall

2019 Dinu Attalage

2020 No recipient

2021 Brandon Williams

2022 Behnaz Bahroudi

IN-TECH LAND RECLAMATION AWARD

1981 Jack Winch

1982 Phil Lulman

1983 Jack Thirgood

1984 Tom Peters

1985 Sarah Lowe

1986 No recipient

1987 Roger Berdusco

1988 Gordon Boutilier

1989 Edward Watkin

1990 Donald Klym

1991 Kieth Winterhalder

1992 Robert Michelutti

1993 Margarete Kalin

1994 No recipient

1995 Peter Beckett

1996 M. Anne Naeth

1997 No recipient

1998 Al Fedkenheuer

1999 Bob Gardiner

2000 Terry Macyk

2001 Chris Powter

2002 Martin Fung

2003 Sherry Yundt

2004 John Errington

2005 Carol Jones

2006 No recipient

2007 David Polster

2008 Bryan Tisch

2009 Line Rochefort

2010 Bill Price

2011 William Mackasey

2012 Robert Rutherford

2013 No recipient

2014 No recipient

2015 No recipient

2016 No recipient

2017 Bruce Anderson

2018 Michele Coleman

2019 No recipient

2020 No recipient

2021 Bob Pett (Individual)

2021 Nova Scotia Lands Inc. (Group)

2022 Clinton Smyth (Individual)

2022 Peatland Ecology Research Group (PERG) (Group)

DR. JACK WINCH EARLY CAREER AWARD

2019 Stephanie Marshall

2020 Samantha McGarry

2021 Chris Tenszen

2022 No recipient

Raising the bar for amphibious work programs in the boreal forest and beyond.

AGAT FOUNDATION CREATES CHANGE IN CANADIAN COMMUNITIES

“To connect industries, communities and stakeholders together through science; inspiring investment and change for tomorrow’s future” – this has been the guiding principle in the official development of the AGAT Foundation, a not-for-profit community foundation brought forth by AGAT Laboratories.

The AGAT Foundation has established itself as a powerful force for positive change though the support of AGAT Laboratories and its extensive network of clients throughout Canada’s environmental and energy sectors. Since its inception, it has focused on supporting health, education,

and environmental sustainability – causes that resonate deeply with AGAT’s core values and exemplifies AGAT Laboratories’ dedication to giving back to the communities in which it operates.

AGAT Laboratories has long been recognized for its expertise in providing analytical services across various industries, including environmental science, energy, mining, and agriculture. Beyond its technical achievements, AGAT has demonstrated a profound commitment to addressing broader social responsibilities inherent to its industry leadership. The AGAT Foundation emerged from this commitment, translating the company’s

values into impactful actions that benefit communities across the nation. Through the Foundation, AGAT effectively channels both corporate resources and client generosity into initiatives that make a tangible difference in people’s lives.

A key component of the AGAT Foundation’s success has been the steadfast support of AGAT’s clients, particularly those within the environmental sector. The environmental community has consistently aligned itself with the Foundation’s mission. These clients, many of whom are involved in environmental management, sustainability initiatives, and green technology, have stepped up as active partici-

pants in the Foundation’s fundraising and outreach efforts. Their contributions have not only helped expand the Foundation’s impact but have also strengthened the ties between AGAT Laboratories, its clients, and the communities they collectively serve.

A prominent example of this collaboration is the AGAT Foundation Charity Classic Golf Tournament. Each year, this event unites AGAT employees, clients, business partners, and members of the community for a day of camaraderie and philanthropy. The tournament has become a cornerstone of the Foundation’s fundraising efforts, generating vital resources for the Alberta Cancer Foundation’s Patient Financial Assistance Program. To date, over $1.9 million has been donated to the Alberta Cancer Foundation since AGAT took over in 2021. Beyond this, our commitment to supporting communities extends to other important causes. The Foundation has partnered with organizations such as Operation Smile, and it has contributed more than $1.5 million to the Prostate Cancer Centre, funding initiatives such as the MAN VAN program. These efforts clearly demonstrate how the AGAT Foundation thrives through both the internal dedication of our team and the external support of our clients and community, driving our mission forward. The Foundation is involved in many projects across the country; to learn more about our other efforts please go to https://agatfoundation.com/ initiatives/.

AGAT’s clients – deeply involved in environmental protection and preservation – naturally align with the Foundation’s objectives. Many of them see the value of participating in the AGAT Foundation’s activities as an extension of their own corporate social responsibility efforts. Their contributions, whether financial or through active involvement in Foundation events, underscore a shared vision for a healthier, more sustainable future.

As the AGAT Foundation continues to evolve, its growth stands as a testament to the powerful relationship between AGAT Laboratories, its clients, and the broader environmental community. Together, they have forged a partnership that not only benefits society but also promotes a deeper understanding of the role businesses can play in shaping a better world. This collaboration, driven by shared val-

ues and a commitment to giving back, highlights the profound impact that can be achieved when companies and their clients come together to support meaningful causes. Through the ongoing support of AGAT’s clients, the Foundation is well-positioned to continue its important work and create lasting change in communities across Canada.

WHO IS JOE CHOWANIEC?

Some of you reading this may not have met him yet, but for those of you who have had the pleasure of meeting Joe, you can attest to his brilliant mind, funny and kind nature, as he has been a staple in the environmental industry for over 30 years.

Joe has a Bachelor of Science degree (Specialized Physics) and a Bachelor of Science degree (Electrical Engineering), both from the University of Alberta, and joined The Environmental Services Association of Albert (ESAA) as a university summer student in the early ’90s. He realized early on in his career that through ESAA he would be able to make a huge impact on the environmental industry. Little did he know the impact he would make on the lives of so many.

Joe has dedicated over 30 years to the

ESAA, advancing through every level of the association and now holding the title of Executive Director, a position from which he will be stepping down in December of this year to start his much-deserved retirement.

Joe is recognized as a visionary and leader within the environmental sector, and he’s esteemed and respected by his peers. With a commitment to making a difference “one day at a time,” Joe acknowledges the significant impact we each possess within ourselves. He champions people, fostering their achievements, and igniting a passion for excellence while celebrating their triumphs.

One of Joe's greatest contributions to ESAA and the environmental community was the creation of the Remediation Technologies Symposium (RemTech) in 2002.

With over 40 years of experience, ALS is a global leader in providing laboratory testing, inspection, certification, and vertification solutions. ALS provides services to clients across Canada, with laboratories in Alberta, British Columbia, Manitoba, New Brunswick, Northwest Territory, Nova Scotia, Ontario, Saskatchewan, and Yukon Territory. With a passion for science, ALS serves clients with data-driven insights for a safer and healthier world.

Please visit www.alsglobal.com to learn more about sediment, air, tissue, aqueous, and soil testing services.

RemTech was his way to bring the industry together and is the premier remediation technology transfer event for environmental professionals, encompassing the latest innovations in soil and groundwater remediation. It’s also known for its incredible keynote speakers, amazing networking opportunities, and outstanding technical presentations.

Joe is passionate about giving back to the community we work in, and during his time with ESAA, he has helped raise $1.2 million dollars for many charities from Muscular Dystrophy Canada to the Jane Goodall Foundation. Joe is also a recipient of the Queen’s Diamond Jubilee medal for his work with Muscular Dystrophy Canada.

Beyond his professional endeavors, Joe loves to travel with his wife Rami. Together they have been all over the world, from the ghost towns in Alberta to Asia. Joe captures the splendor of our planet through his photography. He’s an award-winning photographer who has published two books – Abandoned Alberta and Abandoned Alberta II – with a third and final edition set to be released in late 2025.

Joe has a heart of gold and a love for everyone! If you haven’t had a chance to meet him, reach out and introduce yourself. He’s someone you want to meet for coffee, and the conversation and stories he can tell are like none other.

Joe, as you walk into retirement, be proud of what you created and the legacy you have left. We honour you and can’t wait to hear about all your new adventures of this next chapter. Cheers!

Environmental Environmental Technologist

THE SHARED BURDEN: Navigating the responsibility of leaders and employees in workplace mental health

This article dives into the dual responsibility that leaders and employees share in managing and mitigating workplace mental health. It will explore how both parties can contribute to a healthier work environment and challenge the notion that addressing mental health is the sole responsibility of one group or individual. Additionally, it explores common mental health myths that continue to influence the landscape of mental health in the workplace.

WORKPLACE MENTAL HEALTH MYTH #1: MENTAL HEALTH SUPPORT IS EXPENSIVE FOR EMPLOYERS.

Mental health is a tricky and nuanced topic, with an abundance of misinformation strewn about in the media and social media. It’s no secret that it has gained a lot of attention in recent years, and for good reason. One in five Canadians experience a mental illness in any years and at least 500,000 Canadians miss work due to mental illness every week (Canadian Psychological Association, 2024). Each year, the estimated economic cost of mental health is over $50 billion, $20 billion of which stems from the workplace alone. Workplace benefits offer a variety of resources which can include coverage for psychology sessions and Employee and Family Assistance Program (EFAP). Such resources take a reactive approach, where it is typically only enough coverage for short-term counselling (Canadian Mental Health Association, 2024).

Workplace mental well-being requires a proactive, two-pronged approach, where both leadership and the employees are responsible for and committed to creating a supportive work environment. Where mental well-being is not supported, mental illness becomes a higher risk, leading to low productivity, silent quitting, absenteeism, and leaves of absence. On average, Canadian workers miss out on 12 days in a year due to mental health, and employers lose over $17 billion relating to lost productivity alone (HR Reporter, 2023). It’s more expensive to negate mental health as a genuine risk than it is to provide resources proactively for employees.

Let’s be clear about this: employees are humans, and humans are not robots. In a world where we are exposed to an abundance of stressors daily, it’s unfair, inhuman, and unrealistic to expect that employees can “check it at the door”. Don’t get me wrong; I am not advocating for employees to stand at the water cooler for an eighthour day talking to their colleagues about how their partner hasn’t been pulling their weight at home. However, I am advocating for employees to feel safe and comfortable to show up as themselves in every aspect of their lives. This includes the workplace, and this is where trust can be built. If there is no trust, psychological safety cannot exist.

How can leaders support their team’s mental health?

Connection stems from communication without judgement, admitting mistakes, being transparent about how we’re feeling and sharing resources with others in our group. Somewhere along the way, many leaders have lost sight of or have never been trained in how to lead a team. Instead, leaders can fall into punitive approaches where micromanaging, gatekeeping, overemphasizing results, pitting employees against each other, and poor communication are at the core of the workplace culture.

This is not to say that being a leader is easy and that all leaders are consciously “bad”. But if you find yourself in a leadership position, ask yourself how you address mental health in your team. Here are some important considerations:

• Creating a Supportive Culture: Foster an environment where mental health is openly discussed and supported. Encourage diverse opinions, backgrounds, ethnicities and perspectives to emphasize safety.

• Encouraging Work-Life Balance: Set boundaries and model behaviour that shows employees it’s safe to have other priorities in

WORKPLACE MENTAL HEALTH MYTH #2: EMPLOYEES SHOULD LEAVE THEIR PERSONAL LIFE AT HOME.

life. Offer transparent communication about personal struggles, sharing where comfortable, to emphasize the human experience in the workplace.

• Providing Resources: Offer access to mental health resources and support systems ahead of time. Think outside of the box; EAPs, EFAPs, and insurance benefits are great but reactive. Offering mental health moments where employees can share if needed is one example of a proactive approach to foster communication and community.

How can employees support a psychologically safe work environment?

Employees are equally responsible for engaging in behaviours that foster trust and communication with colleagues and leadership. Often, we see employees struggling with a lack of focus and attention, working overtime and not being completely honest in performance reviews and check ins. They are struggling, but they are remaining silent about their struggles, putting on a smile and saying what they think their boss wants to hear, to avoid repercussions or drawing negative attention to themselves.

• Communicate Openly: Employees are equally responsible for engaging in behaviours that foster trust and communication with colleagues and leadership. Being honest about mental health struggles is terrifying for most people. It involves putting yourself in a vulnerable situation discussing personal experiences that are often misunderstood and stigmatized. Fear of being labelled as a “bad” employee for struggling is a very real experience.

• Advocate for Change or Improvement: Employees need to work together to identify gaps in the policies, procedures and culture of their workplace and have higher expectations for them to be addressed. Self-advocating means advocating for others as well in the workplace and community. Provide feedback to employers about what is working and what isn’t.

• Promote Work-Life Balance that is Right for You: In order to respect the needs and boundaries of others, they have to be clear, communicated and reinforced. Endorsing respect of other’s boundaries and being clear about your own can help set the expectations within the work culture and ensure employees are feeling respected, appreciated and balanced in life.

49 YEARS | 2800 REGISTRANTS

WORKPLACE MENTAL HEALTH MYTH #3: TALKING ABOUT YOUR MENTAL HEALTH STRUGGLES MAKES YOU WEAK.

WORKPLACE MENTAL HEALTH MYTH #4: EMPLOYEES WHO STRUGGLE WITH MENTAL HEALTH ARE NOT GOOD EMPLOYEES.

Recognizing and communicating that you are struggling with your mental health shows incredible courage, self-awareness, vulnerability and emotional intelligence. As someone who worked in the corporate world for over a decade, I cannot think of any workplace situation where these characteristics would not be incredibly valu-

REFERENCES:

able. It’s time to rethink the perception that experiencing anxiety, depression, burnout, stress, or any other mental health struggles is a deficit and a weakness. In truth, seeking help when we need it is a sign of strength and resilience.

The ideas presented in this article are not novel, I have seen and experienced many of them myself in the corporate world. Where I feel the gap exists is in the incorporation of all of these and more into the fibre of the company culture. Too often, mental health is treated as a checkbox without genuine care, intention, and implementation into the day to day.

Canadian Mental Health Association. (2024, March 27). Supporting mental health at work: Strategies for employers and employees. Canadian Mental Health Association.

https://cmha.ca/news/supporting-mental-health-at-work-strategies-for-employers-and-employees/

Canadian Psychological Association. (2024, May 29). Mental health and the workplace.

Canadian Psychological Association. https://cpa.ca/psychology-works-fact-sheet-mental-health-and-the-workplace/

HR Reporter. (2023, May 10). 1 in 3 Canadian workers taking time off work for mental health issues.

https://www.hrreporter.com/focus-areas/compensation-and-benefits/1-in-3-canadian-workers-taking-time-off-work-for-mental-healthissues/377323#:~:text=On%20average%2C%20workers%20in%20Canada,to%20business%20of%20lost%20productivity.

ENVIRONMENTAL

Areas where TerraLogix Solutions Inc. personnel have a proven record of performance:

• Biophysical Services and Pre-construction Assessments

• Corporate and Site-Specific Liability Assessments

• Upstream O&G/ Industrial/ Commercial Phase I ESAs

• Phase II ESAs

• Contaminant Hydrogeology

• Tier II Risk Assessments

• Soil and Groundwater Remediation

• Spill Response, Assessment and Closure

• Waste Management

• Regulatory Compliance

• Reclamation

• Vegetation Management

• Post reclamation soil and vegetation assessments

• Area Based Closure Program Management

• Facility Decommissioning Management

• Operations in Western Canada, including: AB, BC and SK

/WILD + PINE ENVIRONMENTAL

GROUP OF COMPANIES

/SEEDLING SUPPLY

SERVICES:

— REFORESTATION

Reclamation and forestry tree planting

— NATIVE SEED & CUTTINGS COLLECTION

Collection permitting, implementation, & submissions

— TREE & SHRUB SEEDLING PROPAGATION

Materials grown in Wild + Pine’s Bioprism

Advanced Vertical Greenhouse

— MECHANICAL SITE

PREPARATION

Prescriptions, implementation, & monitoring

— VEGETATION MANAGEMENT

Precision manual, chemical, & mechanical

— RESTORATION

PRESCRIPTIONS, MANAGEMENT, & MONITORING

Meeting & exceeding legislated standards

building forests and ecosystems for some of Canada’s largest resource producers and integrated engineering firms. As a group of environmental professionals that include Foresters, Agrologists, and Engineers, Wild + Pine understands, designs, and implements our work to the global standards and pace demanded by our clients.

LETHBRIDGE POLYTECHNIC EDUCATES NEXT GENERATION OF ENVIRONMENTAL STEWARDS

Being forward-thinking has always been a part of Lethbridge Polytechnic, from the institution’s beginning as Canada’s first publicly funded community college in 1957 to today, as the only polytechnic south of Calgary. Redesignated and renamed this year, the polytechnic formerly known as Lethbridge College was built on innovative, creative thinking.

That creative thinking now extends the polytechnic’s programming expertise to children – providing age-appropriate, K-12-curriculum-connected learning opportunities that align with polytechnic programs and potential careers. Lethbridge Polytechnic has offered environmental science courses since the 1970s. Through its youth initiatives, this commitment to environmental education is now extended to children and youth who may discover a future working in nature.

Summer camps devoted to environmental science have long been a highlight of youth programming at Lethbridge Polytechnic. Ecosystem Explorers, for sevento 10-year-olds, is a crash course in nature, teaching basic techniques for identifying plants and animals, and included geocaching actives around campus.

Joelle Reynolds, director of Lethbridge Polytechnic’s youth initiatives, says the goal is to build awareness of career pathways through engaging learning experiences that provide an authentic glimpse into industry.

“Lethbridge Polytechnic offers a broad array of youth programming, from summer camps through to dual credit courses that allow grade 10 to 12 students to earn credit at both high school and post-secondary levels,” she says. “We’re helping students explore their interests and develop core competencies along the way.”

For students who are energized by being outdoors, Lethbridge Polytechnic’s School of Environmental Sciences provides an opportunity to launch a career that aligns with their passions. The institution offers many post-secondary pathways, including three diploma courses – Environmental Assessment and Restoration, Renewable Resource Management and Natural Resource Compliance – and two bachelor programs, Bachelor of Ecosystem Management and Conservation Enforcement–Bachelor of Applied Science.

“We’re connecting with the environmental stewards of tomorrow today in hopes

that we can provide programming to help jumpstart their futures and create confidence in the pathway they’ve chosen,” Reynolds says.

For youth who grew up in nature, camping, hiking, hunting and fishing, enrolling in a related post-secondary program may be an easy choice. For others who haven’t grown up exploring the outdoors, it’s important to provide other ways to spark curiosity and discovery, Reynolds says.

The polytechnic works with several K-12 school systems to enhance environmental education. One example is a unique partnership with Livingstone Range School Division and its PEAKS Collegiate campus in Crowsnest Pass, Alberta.

PEAKS provides education, field experience, and career connections for students in grades 7 to 12 through exploratory programs and dual credit courses delivered by Lethbridge Polytechnic instructors. PEAKS students have access to a mobile Field Study Lab, a 26-foot-long trailer equipped for scientific discovery. The Field Study Lab was designed by Jonathan Friesen, lab technician and equipment room manager for the School of Environmental Sciences at Lethbridge Polytech-

nic. Using his 15 years of lab experience, Friesen wanted to replicate the equipment he uses daily.

“With this unit, we can bring the lab into the field completely self-contained, no external power needed,” Friesen says. “We can bring a high-end lab to the field as well as to different institutions to get kids excited about sciences and the outdoors. This trailer is also versatile enough to run an array of other programs out of it with lots of space for people and supplies.”

The lab is equipped with solar power, heat, stainless steel countertops and benches, two monitors, sampling, measurement and identification equipment, dissection and compound microscopes, and more. The lab, camps and pathway programs help students to explore whether a career in environmental sciences is for them. This benefits Lethbridge Polytechnic by ensuring students find the right program

fit for them. This also creates a talent pipeline for the industry. Even if students don’t find themselves in environmental careers, the experiences they have in junior and senior high can help inspire a lifelong respect for the environment.

For information about Lethbridge Polytechnic’s School of Environmental Sciences, visit lethpolytech.ca/programs. To learn more about the polytechnic’s youth initiatives, visit lethpolytech.ca/ youth-programs.

We have decades of experience in helping students be ready for their careers. Students gain hands-on experience to learn how to protect the planet’s land and water resources.

Pursue your passion with an Environmental Assessment and Restoration diploma from Lethbridge Polytechnic. Graduates can earn a Bachelor of Ecosystem Management degree with two more years of study.

APPLY TODAY!

leth polytech .ca/ear

EVOLUTIONS AND OPPORTUNITIES IN ECOLOGICAL RESTORATION

Evolutions in environmental awareness and stewardship have been influencing the economy and changing how we do business for a long time. A notable recent change has been the emergence and growth of ecological restoration, which presents an opportunity for repurposing the skills of reclamation practitioners. Reclamation in the industrial context has been evolving in Alberta since the 1980s, and the skills we’ve learned from reclaiming wellsites, mines, and pipelines are now in demand for new types of projects: things like habitat restoration, wetland replacement, afforestation, naturalization, and “soft” engineering. There are also new consumers of these services as the environmental non-government organizations (ENGOs) grow in purchasing power. Land trusts, watershed alliances, community groups, and even private landowners are now likely clients for reclamation consultants. This stage of growth and change presents exciting opportunities.

Since 2007, I’ve been practicing in land reclamation, mostly for upstream oil & gas clients in the first 10 years, and then

broadening my scope into midstream and mining more recently. In 2020, while I enjoyed the confinement and chaos of the pandemic, I assumed the position of Practice Area Lead, Reclamation at Trace Associates Inc. (out of the St. Albert, Alberta office). One responsibility of my new position was to grow and diversify our reclamation business. I had recently become aware of Alberta’s Wetland Replacement Program, so I began educating myself and set my sights on securing some wetland restoration projects to grow and diversify our business. That sparked an idea which eventually resulted in changing my title to “Practice Area Lead, Reclamation and Restoration.” Four years later, I have been fortunate to work on some unique ecological restoration projects, and I’ve learned a few things about the restoration market that are worth sharing.

PART 1 – EVOLUTIONS

First, some context. There are very few pristine places left that haven’t been impacted by humanity’s ambitions, so naturally, our definition of “conservation” has had to evolve in order to address the fallout. Conservation in the form of “preservation” began around the mid-1800s with the foresight of people like John Muir, Gifford Pinchot, and Theodore Roosevelt. At that time, there were still vast expanses of “wilderness” that could be fenced and preserved from the onslaught of westward expansion. Fast-forward 100 years into the mid-1900s and you enter what I’ll call the “protection” era of conservation, because

that’s when legislation for environmental protection began to appear. That was the era of Rachel Carson’s Silent Spring (1962) and formation of the U.S. Environmental Protection Agency (1970) in response to growing concerns about pollution. That’s also when the first versions of legislation requiring land reclamation appeared in Alberta (through the 1963 Surface Reclamation Act). At that time, reclamation was defined in the context of restoring land capability, a term that still appears in Alberta’s legal definition of land reclamation.

Now, into the 2000s, environmental conservation has permeated almost every aspect of our lives. Businesses must consider things like social licensing; environmental, social and governance (ESG) reporting; and circular economies. Households and individuals are considering the ethics and sustainability of their purchases. Academia, institutions, and think tanks continually spawn new ideas like stakeholder capitalism, nature-based solutions, degrowth, rewilding, etc. The United Nations declared 2021 to 2030 “The Decade on Ecosystem Restoration.” For us reclamation practitioners, we now measure reclamation success not only by restoring productive capability of the land, like bushels per acre or board-feet per hectare, but also by the restoration of ecosystem functions, like biodiversity, nutrient cycling, and wildlife habitat. Examples from Alberta are the 2007 Forested Update to the wellsite reclamation criteria, or the peatland criteria released in 2016, both of

Pollinator project at a Plains Midstream Canada facility (K. Saunders, 2024).

which shifted the focus toward ecosystem functions rather than land capability (a term that best applies to agricultural land). Conservation, as we know it in North America circa 2024, has passed the passive “preservation” and “protection” phases of the past and entered a more active “restoration” phase – so much so that conservation is essentially synonymous with restoration, and all the major players in land conservation, like Parks Canada, the U.S. Bureau of Land Management, and the Nature Conservancy of Canada (to name a few), are funding ecological restoration projects across their land bases.

PART 2 – OPPORTUNITIES

Parks Canada protects approximately 343,377 km2 of land. The U.S. Bureau of Land Management administers over 1 million km2 of federally owned land, mostly in the western states. The Nature Conservancy of Canada and their partners have contributed to the conservation of more than 150,000 km2 of land. These

are huge land bases which create opportunity for practitioners, and the numbers are growing. Parks Canada has ambitious growth targets and is working toward conserving 30 per cent of Canada’s land and oceans by 2030. The Nature Conservancy of Canada has a strategic plan that is aligned with major global initiatives to protect the planet in the face of rapid biodiversity loss and climate change. In addi-

tion to the “big” players, there are agencies and organizations of all sizes influencing land conservation, including municipalities, Indigenous groups, provincial governments, private industry, ENGOs, land trusts, watershed alliances, and community groups. A quick internet search will show that many of those organizations are proudly displaying their restoration efforts. Another emerging concept is the “se-

Figure 1. The Restorative Continuum (Gann GD, McDonald T, Walder B, Aronson J, Nelson CR, Jonson J, Hallett JG, Eisenberg C, Guariguata MR, Liu J, Hua F, Echeverría C, Gonzales E, Shaw N, Decleer K, Dixon KW (2019) International principles and standards for the practice of ecological restoration. Second edition. Restoration Ecology 27(S1): S1–S46.)
Native grassland restoration project at a Nature Conservancy of Canada property in southern Alberta (C. Tenszen, 2024).

It’s not just big, landscape-scale projects; it can be urban ecology, pollinator projects, rain gardens, watercourse rehabilitations, and other things that may be small individually but have amazing cumulative effects.

PO Box 5468 Leduc, AB T9E 6L7

1.877.249.1508

info@pvma.ca | www.pvma.ca

cure and restore model”, where degraded lands with high restoration and connectivity value are actually sought out with the intent to restore them.

Restoration happens in many different forms – usually starting with the letter “R.” Terms like rewilding, rehabilitation, remediation, revegetation, restoration, reclamation, and regenerative are all being used to describe something similar: the resto-

MEMBER REPRESENTATIVES

Our members are:

• Vegetation management • Utilities

• Oil and gas exploration and production

• Municipal government

• Pipelines

• Railways

• Transportation infrastructure

• Forestry

• Chemical companies

Through our members, we promote technological advancements and develop high professional standards for industrial vegetation management. We offer professional development seminars, design college-level curriculum, produce educational videos, create training programs, conduct major research projects, and present a collective voice to the public and government.

The Professional Vegetation Management Association (PVMA) was officially formed in 1978 as a response to rapidly increasing public concern over environmental issues and a fast growing number of stakeholders in the industry. Originally formed to provide a collective method of problem solving, we have evolved to take a more proactive approach to constantly emerging vegetation management issues.

WE’RE PROUD OF OUR PROACTIVE ENVIRONMENTAL STEWARDSHIP

• Consulting with government on regulatory issues

• Developing operating standards

• Developed a manual on how to plan and conduct vegetation management programs, as well as a field manual for rehabilitating soils affected by residual herbicides

• Delivering safety, environment, and training programs

• Communicating information to members

ration of ecosystem functions that have been lost for some reason or another. This can create a grey area about what’s considered reclamation versus restoration. For my purposes, I define them like this: Reclamation is done because you have to (for legal reasons). Restoration is done because you want to. What’s cool is that restoration can happen at any scale, too. It’s not just big, landscape-scale projects; it can be urban ecology, pollinator projects, rain gardens, watercourse rehabilitations, and other things that may be small individually but have amazing cumulative effects. The Society for Ecological Restoration is a global organization that advances the science, practice, and policy of ecological restoration. I like their “Restorative Continuum” graphic (Figure 1) that demonstrates the broad range and scale, from reducing impacts in an urban setting to full recovery of native ecosystems. This broad range and scale present a ton of opportunity to start something and see where it leads.

I’ve been fortunate in the last four years to work for a few clients that have chosen to implement restoration projects. One is the Nature Conservancy of Canada, which has implemented a wide range of restoration activities on many of their properties across Canada. Others include Plains Midstream Canada, which chose to improve habitat for pollinators on some of their vacant land and a municipal client with ambitious targets to restore their open spaces. In that time, I’ve learned that the skills of a reclamation practitioner are very applicable but don’t cover all the needs. I’ve found that my skills in project management, planning/logistics, communications, and my knowledge of soils, vegetation, etc. that are fundamental to reclamation are just as applicable to restoration, but that I need the help of experts I rarely needed for wellsite reclamation. This provided a great opportunity to expand my network to include other specialists like water resource engineers, landscape architects, and ecologists (the truly passionate ones who know the deep ecology of ecosystems they love). I’ve also learned to shift my mentality and

think longer term. In reclamation, we’re done after getting a certificate, but in restoration, we get to consider how our project will sustain forever.

In closing, I’d like to share a list of things that you can search yourself to build your own understanding and explore the opportunities in ecological restoration. Below is a random mix of keywords that showcase initiatives, funding, and ideas in Canada and around the world. Once you start looking, you’ll see that sectors of all sizes from around the world are into this movement, and that the opportunity is endless and exciting.

• Teck sets nature positive goal

• United Nations Decade on Ecosystem Restoration

• Nature Conservancy of Canada ecosystem restoration

• Society for Ecological Restoration

• City of Calgary habitat restoration

• Managing rights-of-way for pollinators

• Rewilding Europe

• Kaini Iinnii Rematriation

• Parks Canada A Natural Priority

• Cenovus caribou habitat initiative

• TD Friend of the Environment Foundation

• Weston Family grants

• Two billion trees

• Wetland replacement program

• Watershed resiliency and restoration program

• Trout Unlimited Canada

• Métis Indigenous Protected and Conserved Area

• Bureau of Land Management restoration landscapes

EVOLUTIONS 4

Chris Tenszen is the Practice Area Lead, Reclamation and Restoration, with Trace Associates Inc. (Trace). Chris has lived and worked in all four provinces of Western

Canada and spent time abroad in Australia. He worked in oilfield services, as a tour guide in the mountain parks, and as a fishing guide on Lake Athabasca before settling down for post-secondary and starting his career in environmental sciences. He earned a diploma in Conservation and Restoration Ecology from Lakeland College in 2007 and upgraded to a degree in Land Reclamation from the University of Alberta in 2011. Chris has over 15 years of environmental consulting experience and specializes in ecological restoration. Since 2007, he has helped restore thousands of hectares of land, including cropland, forested land, peatlands, and native grassland. His restoration projects have taken him from the Milk River Ridge on the 49th parallel to Zama City just south of the 60th. Chris is passionate about sustainability, conservation, and enjoying the outdoors. When he’s not working, you’ll find him outside somewhere, skiing, hiking, fishing, golfing, or camping. He is based out of Trace's St. Albert office and lives in Edmonton with his wife, two kids, and four cats

SIGNIFICANT RETURN ON INVESTMENT ACHIEVED BY SUCCESSFULLY REMEDIATING A CHALLENGING CHLORINATED SOLVENT SITE

In the field of environmental remediation, achieving a balance between effective cleanup and cost-efficiency can often be elusive. This case study demonstrating how a challenging chlorinated solvent site was successfully remediated producing a significant return on investment for the client. This project not only met stringent environmental standards but also paved the way for future redevelopment, transforming a previously problematic site into a valuable asset.

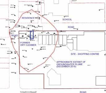
BACKGROUND: A COMPLEX ENVIRONMENTAL LEGACY

The site is an active shopping center in British Columbia. Historically, a dry cleaner had operated on the site from the 1960s until the late 1980s, resulting in substantial contamination of soil, groundwater, and soil vapour by tetrachloroethylene (PCE) and its degradation products. Over the years, multiple environmental investigations had been conducted, and various remediation activities had taken place without fully resolving the issue. Before

VEI’s involvement in 2018, the site remained classified as “High Risk” due to the suspected presence of dense non-aqueous phase liquid (DNAPL) and the migration of contaminants off-site via groundwater migration, affecting nearby residential areas and a school.

The site’s challenging geology and hydrogeology further complicated remediation efforts, with a plume of PCE-impacted groundwater located in a sand layer beneath very dense silt till, extending between approximately 11 to 21 metres below ground surface (mbgs). The combination of difficult drilling conditions and deep contamination presented a formidable obstacle.

CHALLENGES

Prior to VEI’s involvement, the site owner faced a bleak situation. The contamination had rendered the property illiquid, with potential ongoing liabilities from the groundwater plume migrating off-site. Full-scale excavation and disposal of the contaminated soil (“dig and dump”) would

have been prohibitively expensive, potentially costing tens of millions of dollars. Additionally, the operation of an existing perimeter groundwater pump-and-treat system was expected to continue indefinitely to prevent further off-site migration. There was no clear exit strategy, and the site remained an environmental and financial burden.

IN-SITU REMEDIATION APPROACH

In 2019, VEI initiated an in-situ remediation strategy using Trap & Treat® BOS 100®, a specialized treatment technology designed to address chlorinated volatile organic compounds (cVOCs), such as PCE. BOS 100® combines carbon adsorption and chemical reduction, effectively trapping and treating contaminants through a single application, with longterm control over contaminant back-diffusion to prevent contaminant “rebound”.

A pilot-scale injection of BOS 100® was conducted in the main hot spot within the groundwater plume where concentrations of PCE suggested the potential presence of

During remediation.
Post remediation.

DNAPL. The pilot test involved six temporary injection points, through which approximately 660 kilograms of BOS 100® were delivered in a water-based suspension. The results were promising, with a 58 per cent reduction in contaminant levels observed within three months. This success provided proof of concept and justified the move to full-scale site remediation.

FULL-SCALE REMEDIATION AND OVERCOMING CHALLENGES

In 2021, VEI implemented a full-scale injection program, deploying a total of 121 injection points both on-site and off-site, completed on a three- to five-metre spacing and targeting the contaminant plume from nine to 21 mbgs. Approximately 23,500 kilograms of BOS 100® were injected into 390,000 liters of water suspension, successfully treating the plume.

Despite the technical challenges encountered – such as refusal of direct-push rods and challenges with injection pressures –VEI adapted by modifying injection methods, adjusting borehole sealing materials, and reallocating remedial amendment mass where necessary. Through these strategic adaptations, the remediation team successfully navigated the complexities of the site’s subsurface conditions.

The client was also extremely pleased with the in-situ approach to remediation. Throughout the injection process, access to the commercial tenant spaces was maintained, and there was no loss of income due to requests for rent relief from the tenants.

POST-REMEDIATION SUCCESS

Post-remediation monitoring demonstrated impressive results. Contaminant concentrations in the worst-case area of the site were reduced by over 99.95 per cent following the full-scale injections, allowing the site to be reclassified from High Risk to a standard risk profile. This not only removed the requirement for ongoing groundwater extraction and treatment but also eliminated the need for long-term soil vapour monitoring, dramatically reducing future operation and maintenance costs.

In 2023, with contamination no longer posing a threat, the site owner applied for a risk-based Certificate of Compliance from the British Columbia Ministry of Environment and Climate Change Strategy. This regulatory milestone marked the successful closure of the site’s environmental liability.

RETURN ON INVESTMENT

The success of the in-situ remediation had

profound financial implications for the property owner. The site, previously considered a depreciated asset with no clear path forward, is now a candidate for redevelopment. The owner has since applied for a zoning change to enable mixed-use development, transforming the site into a high-value asset with significant potential for densification.

The investment in remediation, while substantial, had yielded a return far exceeding expectations. The site’s value is estimated to have increased by two to three times the total cost of remediation, risk assessment, and monitoring. For the owner, what once seemed like an indefinite environmental burden has been converted into a marketable and financially sound property.

CONCLUSION

This case study illustrates the power of innovative in-situ remediation technologies to not only meet environmental objectives but also deliver significant economic benefits. By employing a targeted and adaptive remediation approach, VEI successfully restored a contaminated site to full market value, demonstrating that effective remediation can offer substantial returns on investment for property owners grappling with legacy contamination.

H3M’S INSIGHTS ON AER DIRECTIVE 88: UPDATES TO LICENSEE LIFE CYCLE MANAGEMENT AND THE HOLISTIC APPROACH FOR LICENSEE ASSESSMENT

The Alberta Energy Regulator (AER) has recently updated Directive 88, a key framework for Licensee Life Cycle Management (LLCM). These revisions are designed to encourage more responsible energy resource management and ensure that licensees are equipped to manage their assets and liabilities throughout the life of a project. The update signifies a notable shift in how the AER assesses licensees, moving from a financial metrics-focused system to a more comprehensive, holistic approach.

WHAT ARE THE KEY CHANGES IN THE UPDATED DIRECTIVE 88?

1. Holistic Licensee Assessment: The AER has adopted a new assessment model that expands beyond financial metrics. It evaluates licensees’ financial health, operational history, compliance records, and overall capacity to manage their assets responsibly.

2. Life Cycle Management: Directive 88 now emphasizes managing licenses throughout their entire life cycle – from acquisition to closure. This ensures companies are prepared for decommissioning and environmental reclamation at the end of a project’s life.

3. Risk Management Framework: The revised framework considers a broader range of risks, including financial, operational, environmental, and governance risks. This enables the AER to intervene earlier if there are concerns about a licensee’s ability to meet its obligations.

4. Licensee Liability Rating (LLR) Adjustments: The traditional LLR system has been updated to incorporate additional factors, such as environmental risk and operational reliability. This reflects a more comprehensive understanding of a company’s ability to meet long-term obligations.

5. Enhanced Reporting and Monitoring: Licensees are now subject to stricter reporting requirements, including regular audits and inspections. This provides the AER with real-time information, helping to identify risks early in a project’s life.

6. Emphasis on Collaboration: The AER is promoting greater collaboration between industry, regulators, and stakeholders to address issues before they escalate. This is particularly relevant for aging infrastructure and environmental challenges.

WHY DOES IT MATTER?

These updates mean that the AER’s assessments are now more detailed, considering the following key factors:

1. Financial Health: Beyond simple asset-to-liability ratios, the AER assesses cash flow, debt levels, and long-term viability.

2. Operational Performance: Companies are evaluated based on their safety records and compliance history.

3. Environmental and Social Governance (ESG): The AER now examines a company’s environmental stewardship, reclamation efforts, and spill management capabilities.

4. Risk Management: Companies need to demonstrate robust processes for identifying and managing risks throughout the project life cycle.

5. Strategic Planning: The AER evaluates whether companies have long-term plans for managing assets and liabilities, including well closures and site reclamation.

HERE ARE THE BENEFITS WE SEE IN THE NEW HOLISTIC APPROACH

1. Proactive Risk Management: The updated framework enables the AER to identify risks earlier, reducing the likelihood of orphan wells and protecting taxpayers from the costs of abandoned projects.

2. Encouragement of Sustainable Practices: By focusing more on environmental and governance factors, the AER encourages companies to adopt responsible business practices.

3. Enhanced Stakeholder Protection: A thorough assessment of a company’s ability to manage its assets protects the environment and the public.

Partner

jfletcher@h3menviro.com 403.870.0843

In the short term, companies with weaker financials or compliance issues may face increased scrutiny. However, these updates will contribute to a more stable and responsible energy industry in Alberta over time.

4. Flexibility for Licensees: The nuanced assessment model accommodates companies with unique operations, allowing them to demonstrate their viability through measures beyond financial performance.

IMPACT ON THE INDUSTRY AND YOUR COMPANY

In the short term, companies with weaker financials or compliance issues may face increased scrutiny. However, these updates will contribute to a more stable and responsible energy industry in Alberta over time.

New market entrants will need to establish strong financial, operational, and environmental practices from the start, while estab-

lished companies may need to reassess their governance structures and business models to align with evolving regulatory standards.

The updated AER Directive 88 marks a significant shift in Alberta’s energy industry. It ensures that licensees are financially sound, operationally reliable, and environmentally responsible throughout their projects’ life cycles. These changes aim to promote sustainability and safeguard Alberta’s valuable energy resources for the future.

For any questions regarding the updates to the new Directive 88 or other AER directives, please reach out to our Reclamation and Remediation Manager, Jennifer Fletcher, at jfletcher@h3menviro.com.

TRUSTED TESTING FOR RECLAMATION

Expect nothing less than fast, reliable results and attentive service when you choose Element for environmental testing and analysis. At Element, we help our customers make certain that their products, materials, processes and services are safe, compliant and fit for purpose. Together, we make tomorrow safer than today.

Contact Western Canada’s most trusted testing partner for support with:

• site assessment

• remediation

• reclamation

• drilling services

• waste characterization

• emergency spill response

• agriculture and nutrients testing

HOW OUR WORK WITH INDIGENOUS COMMUNITIES CAN HELP US PROTECT THE ENVIRONMENT

When it comes to sustainable land management, western science tells us only half of the story.

If you are a scientist as I am, or have a STEM background, that statement may seem bold or a little out there.

As a Professional Agrologist who started an environmental management company 22 years ago, protecting the environment today and for generations to come has always been my goal. When we started collaborating with Indigenous Nations and organizations more than 10 years ago through our company, Solstice Environmental Management, we learned far more about the land and ecosystem than years of education and experience could ever give us.

The Indigenous way of knowing the land, and Indigenous Peoples’ lived experiences as users of the land, gives the other half of the story on protecting the environment. As longstanding environmental practitioners, our interactions with Indigenous communities are easily the most meaningful and impactful work we have done to date.

Over the last 22 years, Solstice has evolved from its origins as an assessment, remediation, and reclamation-focused business for upstream oil & gas. Today, our services also include baseline assessment and regulatory support services and deliver strategic solutions that protect inherent Indigenous and Treaty rights, food security, and the reduction of cumulative effects.

reclamation is a team sport and that we need the traditional ecological knowledge holders and land users in conjunction with western science to do our best work in reclamation.

What have we learned? And how can we use and share this knowledge to shape and progress how all of us manage and protect the environment?

The soil and groundwater remediation guidelines in Alberta and Canada are the standard for the environmental management and reclamation sectors. However, these guidelines are not aligned with how Indigenous communities have used the land for millennia, and they’re not aligned with how they use the land today.

Historically in many Indigenous communities, peat and bog water have been used as a source of drinking water and for tea. The water is also used to store food caches and for bathing. For the woodland Cree and Dene people who live in the boreal forest in Treaty 8, peat and bog water were a particularly important part of their culture and way of life.

Using peat and bog water was a widespread practice for many Indigenous land users until industrial development started taking over the land. Today, many Indig-

Left to right: Michelle Cotton, B.Sc., P.Ag.; Shaleigh Raine, Lands, Consultation and Economic Development Manager, Louis Bull Tribe; Irene Moonias, Knowledge Keeper, Louis Bull Tribe; and Meaghan Cooney, B.Sc., B.I.T., Solstice Ecologist. I love this photo and chose it because it shows
– MC

enous communities no longer have safe access to these water sources. This has happened because our Alberta guidelines do not consider peat and bog water to be a domestic use aquifer. This is a huge regulatory oversight and in direct conflict with traditional land use.

Another gap is that we do not have riskbased guidelines for peat and organic soils. These soils are associated with the wetlands that make up over 60 per cent of the landscape in Treaty 8. Currently, we use coarse-textured soils as a surrogate for organic impacts or we’re directed to use site-specific risk assessment for these soils for inorganic impacts.

This is another regulatory oversight; however, it also presents an opportunity for reconciliation. Including the Indigenous perspective on land use to develop appropriate risk-based guidelines would not only renew and recognize our relationship

with Indigenous Peoples in Canada, but it would also advance our collective environmental protection efforts.

Like many organizations that work with Indigenous Peoples, Solstice has learned a great deal from the Elders in these communities.

On a traditional land use study for a new development, we were fortunate to have a mountain Cree Elder teach us about Indigenous plants and medicines. This Elder was pointing out plants and medicines to include in their traditional land use study. Our team of environmental professionals was pointing out what we believed to be the “same” plants for inclusion in the study.

After several days together, building a relationship and trust, the Elder explained to our team that the plants we were observing were not the same medicines as the plants she was pointing out. She shared that the context of the plant was important. Where

1.888.545.7707 info@knightsspraying.ca www.knightsspraying.ca/careers 5002 - 65th Street, Vermilion, AB T9X 1X6

Digital Reporting • Jobsite Integrity

A Versatile Fleet of Equipment Ready for Any Job

Are you looking for a reliable and efficient reclamation and utility spraying service for your jobsites?

Look no further than Knights Spraying. Our crew of young professionals comes equipped with a fleet of vehicles to handle any type of work across your many sites. And thanks to our fully digital reporting options, you will always be up to date with our work and progress.

Knights Spraying is ready to join your project armed with decades of spraying and vegetation management experience. Our tech savvy crews of young, energetic professionals command a fleet of trucks and UTV’s dedicated to protecting your jobsite, and the environment, from the onset of noxious weeds and unwanted vegetation growth.

Partner with Knights Spraying for your next reclamation or utility project and experience our dedication to quality, safety, and sustainability. Contact us today to discuss your spraying needs.

a plant was growing in the landscape and what other plants were growing with it is what gave that plant its power as a medicine.

This evolved our understanding of reclamation. Reclamation is not always about replanting a particular species. It’s also about the context of where that plant is growing and what other plant life surrounds it. For reclamation professionals, there’s considerable evidence in western science that demonstrates this understanding. The work of Dr. Suzanne Simard, presented at a soil science workshop years ago, on the wisdom of the forest and “mother” trees comes to mind.

One of the important lessons from our interactions with Indigenous communities is the recognition that we are all Treaty people. There are millenniums of information and experience available to everyone through traditional land users.

Expanding our thinking and our regulatory structure for how we manage and protect the environment is an opportunity for Indigenous reconciliation and the recently coined reconciliACTION. ReconciliACTION aims to bring Indigenous and non-Indigenous people together in the spirit of reconciliation to create awareness, share, and learn.

By protecting inherent Indigenous and Treaty Rights, we protect the environment. If we are open, and if we take the time to listen, working alongside Indigenous Peoples, together reduce our cumulative impacts and make a difference.

Solstice Environmental Management has been providing specialized environmental management services in western Canada since 2002, balancing traditional ecological knowledge with our environmental expertise to find solutions. Together we Reclaim Value for Future Generations. Michelle Cotton is the CEO and founder of Solstice.

Don’t miss the world’s premier mineral exploration and mining convention

2-5 5

PROSPECTORS & DEVELOPERS ASSOCIATION OF CANADA

Up to 30,0 00 attendees 700+ hours of programming

1,100+ exhibitors Delegates from 130+ countries

Meet investors & senior execut ives Unrivaled networking pdac.ca/convention | Toronto, Canada

STABILIZING SLOPES: THE MARQUIS WILDLIFE CORRIDOR PROJECT

Provided by BrettYoung Professional Turf and Reclamation

In October 2022, a new bridge at the Horsehills Creek Crossing in Edmonton, Alberta, was constructed to support growth into the Marquis and Marquis West subdivisions. This development required immediate revegetation and slope stabilization in the surrounding area, which lies within the Marquis Wildlife Corridor. These corridors play a crucial role in promoting biodiversity, enabling wildlife to thrive and adapt to the challenges posed by human activity and climate change.

Installation was completed by Farlinger & Associates Ltd. (F&A) using an Epic 4,000-gallon Hydroseeder. A blended slurry of native grass seed and Profile Products LLC’s ProMatrix™ Engineered Fiber Matrix™ (EFM) was applied to help stabilize the slope and support vegetation growth.

ProMatrix™ EFM is a biodegradable bonded fiber matrix composed of 100 per cent recycled Thermally Refined™ wood fibres, crimped interlocking biodegradable fibres, and naturally derived biopolymers, designed to provide highly effective erosion control and promote rapid seed germination.

INSTALLATION PROCESS

Proper planning is key to the success of any project, beginning with detailed discussions between the landowner, contractor, and BrettYoung to define project goals.

ProMatrix™ was selected for its ability to create a flexible, erosion-resistant blanket that promotes rapid germination and plant growth. It’s also favored by Farlinger & Associates for its smooth blending in the hydroseeder, reducing clogging, which is crucial for projects requiring extensive hose work. Graham Charles, Foreman at F&A, noted, “The ProMatrix product blends well in the hydroseeder and has given us consistent success in slope stabilization.”

To prepare for hydroseeding, the on-site landscaper spread and contoured topsoil at an average depth of 100 mm (four inches) throughout the approximate 18,000 m2 site needing to be stabilized, protected and seeded. Installation involved the application of ProMatrix™ EFM and native grass seed using an Epic 4,000-gallon Hydroseeder. With limited access and steep slopes,

F&A utilized 110 metres (361 feet) of hose to reach the far corners of the wildlife corridor. The application rate for the ProMatrix was determined to be 3,920 kg/ha.

“Even with the steep terrain and limited access, the knowledge and expertise of Farlinger and Associates and the dependable performance of ProMatrix made all the difference. The site was stabilized quickly and efficiently – this combination truly delivered,” said Corey Mandrusiak, BrettYoung Reclamation & ESC

Specialist. The custom native seed mix, supplied by BrettYoung and applied without any additional soil amendments, included awned wheatgrass, western wheatgrass, slender wheatgrass, and Canada wildrye.

This mix was designed to promote rapid establishment and long-term stability, while also providing environmental benefits. These tall grasses not only create valuable forage for wildlife throughout the year, but they also offer excellent cover and hab-

Reclamation Seedlings, Planting, Management

Largest Private Inventory of Native Seed

Long-Term Indigenous Partnerships

BioEngineering –Stake Supply & Install

itat for birds, rabbits, deer, and various insects. The seeding rate was 225 kg/ha.

FOLLOW-UP VISITS

ProMatrix EFM paired with the specified native seed mix, contributed to this project’s success. Six months after the installation, grass was germinating, and we didn’t find any significant erosion. There was some wildlife damage from deer on one of the steeper slopes, but the grass germinated, established and covered the exposed area before erosion caused any severe damage.

RESULTS

A final follow-up visit, conducted 12months after installation, confirmed the site was fully stabilized. After just one full growing season, the native seed mix had taken root successfully, resulting in lush vegetation coverage across the entire area. There were no signs of erosion or other issues. With the vegetation now thriving, the site appears well-prepared to remain stable for years to come.

To see the full project in action, including interviews with Farlinger & Associates, visit our YouTube channel at: youtube.com/@brettyoungprofessionalturf.

ERNCO ENVIRONMENTAL AND CANADIAN RECLAMATION: A LEGACY OF EXCELLENCE

Reflecting on the recent history of reclamation and remediation in Canada, it’s clear that the contributions of our leading engineers and regional industry pioneers have been remarkable. Among the standout names in Western Canada is Ernco Environmental, a company that has evolved from its pioneering roots into a major player in the industry. What began as a modest single-bay shop in Sylvan Lake, Alberta, has rapidly expanded to a sprawling five-acre, 40,000-square-foot facility in Red Deer, Alberta, reflecting

our growth in providing comprehensive environmental and geotechnical drilling services across Canada over the past 16 years. This expansion reflects a broader trend within the industry, positioning Canada as a global leader in environmental, sustainability, and reclamation practices. The remarkable growth is a testament to the exceptional dedication of technical consultants, field crews, and drillers across the sector.

Starting in Alberta, Ernco’s planetary reputation has enabled us to undertake projects across British Columbia, Sas-

katchewan, Manitoba, Ontario, and the Territories. Originally a small operation focusing on phase 2, we have grown into a significant corporation offering services across all phases from 1 through 4. This growth underscores our commitment to thoroughness and inclusivity, ensuring no project or community is overlooked. Our diverse and specialized equipment allows us to tackle even the most complex projects, a testament to our commitment to meeting client needs effectively, including custom-machining rigs for specific sites.

Founded by Jordan and Josh Ernst, in col-

laboration with their father, Gerald Ernst, Ernco initially operated with a Geoprobe 6620. Since its inception, the company has expanded significantly, now employing over 50 skilled professionals. Our current fleet includes six Geoprobe 8040s, two Geoprobe Sonic 8140s, one Eijkelkamp XL/MAX 170 Sonic, four Geoprobe 7822s, five custom-designed Pionjar drilling rigs, three heli-portable drilling rigs, an ultra-remote Hagglund drilling rig, and, as of 2023, the versatile Geoprobe 3230. This growth in both equipment and expertise highlights our dedication to safety, skill, and excellence. We’re dedicated to upholding the highest industry safety standards to prevent and mitigate potential incidents.

As part of our commitment to delivering comprehensive solutions, Ernco has expanded its service offerings to include geophysical investigations and remedial excavations. This enhancement enables

us to oversee and manage every phase of a project, from initiation through to completion, thereby ensuring the highest standards of quality and efficiency.

We extend our deepest gratitude to our

clients, whom we consider part of the Ernco family, and to our dedicated staff, from the office to the field, who demonstrate remarkable resilience and creativity. These hardworking individuals who, re-

ENVIRONMENTAL & GEOTECHNICAL DRILLING LTD.

Tundra will work with you to determine the most efficient, cost-effective and safest drilling method for planning your next drilling program.

SERVICES PROVIDED:

• Solid Stem Augers 4”, 6”and 8”

• Hollow Stem Augers 3.25”, 4.25” and 6.63”

• Laskey Core System for Hollow Stem Augers for 3.25” and 4.25”

• HQ3 Coring • Air Rotary • ODEX

• HWT Casing Advancer • Monitoring Well Installs 1” to 4”

• Grouting • Well Decommissioning/Abandonments

• Pitcher Sampler • Shelby Tubing Sampling

gardless of weather conditions, ensure that we fulfill our environmental and community responsibilities. Even after 16 years, we continue to face new challenges and opportunities. Recently, we have expanded our services to include barge drilling, contributing to safe and sustainable water solutions across Canada, with over 10,000 dams in Western Canada alone.

To everyone – past and present – who has contributed to the advancement of environmental remediation and reclamation technologies in Canada, we extend our heartfelt thanks. Your support has been instrumental in our journey, and we look forward to the future with anticipation, commitment, and continuing growth.

"Let our support be your success."

Asset owners, consultants, contractors, and other industry representatives work hard every day to not only meet the various environmental regulatory requirements but also exceed them and deliver the best environmental outcomes possible in alignment with the expectation put forth by regulators and community stakeholders. While hard work and collaboration have served well for years, a massive opportunity exists to redefine how all

Leverage

• Standardize and drive consistency

• Measure each site with the most recent regulatory criteria

• Save time and money with advanced analytics to identify optimal plans

• Accelerate closure with real-time visibility and notifications

• Seamlessly import your data via AI

• Consultants deliver more value to their Client through data sharing

parties collaborate and use environmental data to optimize business performance, delivering:

• Improved financial performance;

• Identification of optimal portfolio and site plans;

• Accelerated regulatory processes;

• Improved data security; and

• Enhanced organizational knowledge.

IntelleKtEIG is an Environmental Information Governance cloud software solution that disrupts the status quo and offers all stakeholders better outcomes and improved business performance by consolidating environmental data in a centralized repository with asset owners and, when the asset owner approves, providing access to the right stakeholders at the right time. By consolidating the data streams with its owner, a new paradigm is possible that un-

locks tremendous value for the asset owners, consultants, contractors, regulators, and the public.

The heart of IntelleKtEIG is an Environmental Data Lake. IntelleKtEIG seamlessly collects and stores environmental data, making it possible to analyze, plan, and track environmental strategies anchored on real data and data associated with your environmental business processes. Are you tired of trying to manage thousands of old PDF reports and wasting money on people trying to redigest this information? No problem. IntelleKtEIG’s AI PDF-parsing technology can automatically parse and import all of this raw data.

IntelleKtEIG’s Dashboard provides a holistic view of your enterprise, portfolio, area, or individual site with real-time KPIs and aggregated business data, such as, total liabilities. Drill into an area or site and de-

velop optimal plans based on real data and past project results. IntelleKtEIG’s analytical tools ensure the optimal path forward is realized, and once that plan is set, as lab, geospatial, and other analytical data is produced, it is automatically streamed into IntelleKtEIG, instantly notifying you of key events. While the real-time connection saves time, it pales compared to the time saved by seeing the results and making a faster site-level decision that ultimately accelerates the timeline between data collection and data submission to the regulator.

IntelleKtEIG provides several site analytical tools to optimize the regulatory data/ document submission process. One of the key benefits these tools provide is a consistent approach to defining a conceptual site model. This tool provides numerous visual aids to assist in better site understanding and planning, a clear analysis of the results

49 YEARS | 2800 REGISTRANTS

taken from the site, and numerous visual tools to help visualize whether delineation is achieved or not. In addition to this standardized approach, the visual charts and reports are exportable and provide the regulator with a standardized structure and better visual charts to support your conclusions, thus helping to ensure acceptance of your submissions.

IntelleKtEIG makes it possible to:

• Understand regulatory change to environmental guidelines in real-time;

• Instantly understand the optimal opportunities for each asset;

• Implement real-time risk management;

• View environmental KPI’s in real-time; or

• Verify your corporate strategy is executed at the lowest level.

CONSULTANTS, CONTRACTORS, AND OTHER STAKEHOLDERS

Maintaining the status quo is easy; however, IntelleKtEIG is the perfect solution for innovative consultants and contractors who continuously strive to deliver better customer value and want to make more money.

Asset owners are demanding their raw digital data. IntelleKtEIG provides a unified platform on which the asset owner owns the data, and you can execute your work. This ensures consistency across the entire community, eliminates redundant work, reduces human error on your side that is costly and detrimental to your projects, and accelerates the entire environmental management process, thus eliminating your need to spend time on low-value tasks such as data management and report formatting and more time on value-add

activities that drive the project to closure.

Furthermore, as part of the authorized IntelleKtEIG community, you have the opportunity to license and use our software for clients that aren’t on board yet, and the opportunity to re-sell our software to your end clients, opening up new revenue channels for your business. For those innovative and technically oriented consultants, IntelleKtEIG’s open platform enables you to innovate and extend our product to develop your own IP allowing you to stand out from your competition. IntelleKtEIG ups your game and allows you to:

• Improve productivity

• Enhance client engagement

• Improve revenue and profitability

• Partner with IntelleKtEIG

www.intellekt-eig.com hello@intellekt-eig.com

PLANT POWER AND PHYTOREMEDIATION: THE SUPERHEROES OF SOIL RESTORATION

Poor-quality soil can arise from chemical, biological, and physical factors including the presence of pollutants, lack of beneficial soil bacteria, compaction, and lack of nutrients/organics, all of which can significantly affect plant establishment and vegetation growth. Industrial activity such as oil & gas exploration and extraction can degrade the quality of the soil to extent that plant establishment is extremely difficult and long-term survival is very poor. Restoring soil health to facilitate robust vegetation can be challenging and a bit of a chicken-and-egg scenario. Getting any type of vegetation (such as agronomic

grasses) to grow in poor-quality soil can go a long way to restoring soil health and eventually being able to sustain long-term native vegetation growth.

The use of plant growth promoting rhizobacteria (PGPR) can increase plant tolerance to stressors such as pollutants and soil compaction, facilitating revegetation of poor-quality soil, reduction of soil contaminants through plant uptake and/or bacterial degradation (phytoremediation), and improvement of soil nutrients with incorporation of the plant material into the soil at the end of the growing season. This makes soil conservation and restoration

Table 1. Carbon emissions comparison for Phytoremediation/Restoration vs. Disposal. Emissions are in tonnes and represent the totals for the soil restoration portion of the project.

significantly more sustainable and cost effective than soil disposal/replacement.

RESTORATION SITE DETAILS

Three abandoned oil & gas sites located in the Edson area of central Alberta required remediation/restoration of 55,000 tonnes of hydrocarbon contaminated subsoil prior to revegetation activities. Due to the volume of soil and remote forested location, disposal and replacement were cost prohibitive. Phytoremediation, using a combination of Pseudomonas bacteria and agronomic ryegrasses and fescues, was chosen to restore the soil, highlighting the benefits of using a sustainable technology for soil conservation prior to reclamation.

CARBON SEQUESTRATION BENEFITS

Carbon emissions were calculated for soil restoration activities and landfilling activities, accounting for the carbon sequestration capacity of the grasses used to phytoremediate the hydrocarbons. In general, the carbon emissions for phytoremediation activities were significantly less than for landfilling activities. When sequestration of carbon was included, on average, carbon emissions for soil restoration were less than 50 per cent of the emissions generated for landfilling of the soil (Table 1).

COST BENEFITS

The cost benefits of soil restoration are dependent on accessibility to landfills and

locations of the sites. For this project, restoration of the soil using phytoremediation was 54 per cent less expensive than the estimated landfilling costs, providing a total savings of $3.9 MM (Table 2).

RECLAMATION

Following soil restoration, the grasses were plowed under to add organics to the soil, the treatment areas used for phytoremediation were ripped and decompacted, and the cut areas were filled. The sites were contoured to match the surrounding areas, and the topsoil was replaced and mounded (Figure 1). Trees salvaged during recontouring activities were placed back onto the sites and the sites were planted using lodgepole pine and spruce trees.

Table 2. Cost comparison for Phytoremediation/Restoration vs. Disposal. Costs are for the soil restoration portion of the project.
Figure 1. Site history summary.

MINING WASTE TO VALUE IN THOMPSON

In the summer of 2018, a major mining operation in Thompson, Manitoba, ceased all activities at its smelter and refinery. With the closure came a comprehensive decommissioning plan, which originally focused on a costly remediation program for the Refinery’s Copper Residue Holding Ponds. After months of collaboration between the mine owner and KBL Projects Ltd., KBL proposed an innovative approach: instead of remediating the site, why not reclaim the copper precipitate and bring value back to the operation as part of the closure program? Impressed by this forward-thinking vision, KBL was awarded the contract as Prime Contractor, responsible for overseeing all Environmental Construction, Procurement, and Contract Management (EPCM) requirements.

KBL brought its expertise in waste management, mining reclamation, and environmental sustainability to craft a plan that went beyond traditional remediation. The new strategy focused on safely removing and treating the filtrate, extracting and neutralizing the copper precipitate, and transforming this waste into a marketable, shippable intermediate copper product. The project aimed to recover approximately 72,000 wet short tons (WST) of copper precipitate from the tailings ponds, effectively turning what had been considered a liability into a valuable resource. This marked a significant shift in how waste reclamation could be approached, offering the mine a profitable solution where only risks were once seen.

TRANSFORMING WASTE INTO VALUE

KBL’s reclamation efforts at the Thompson site, now extending into a third year, demonstrate the company’s commitment to transforming waste into value, aligned with the principles of the circular economy. By viewing waste as a potential resource, KBL turned what was once an environmental risk and financial liability into a valuable commodity. The copper precipitate, which had remained in holding ponds for years, was transformed into a marketable product through KBL’s innovative reclamation techniques. This approach not only mitigated environmental hazards but also generated a financial return for their clients with the project projected to be financially positive through three years of on-site processing and construction. It reflects KBL’s broader mission of

Thompson Ponds (2023).

ENVIRONMENTAL SERVICES

Contaminated

Sludge Processing

On-site Services

Remediation and Reclamation

Decommissioning, Demolition & Abatement

Landfill Construction

Water Management and Treatment

Dredging and Dewatering Consulting Services

Emergency Response

Soil and Groundwater Monitoring

Contaminated Site Management

Environmental Management Plans

Environmental Site Assessments

Regulatory Applications and Compliance

Cost Efficiencies Analysis

finding unique, responsible, and sustainable ways to manage waste and environmental liabilities while setting new standards in environmental stewardship.

KBL is passionate about delivering solutions that support environmental, social, and governance (ESG) standards. The Thompson project is a prime example of this passion in action. KBL managed the entire lifecycle of the project, from decommissioning to reclamation, ensuring the safe extraction, treatment, neutralization, and transportation of materials. Their processes are rooted in environmental best practices, backed by a commitment to safety and operational excellence. KBL’s zero Lost Time Incidents (LTI) on the project further underscores their dedication to safety, integrity, and delivering top-quality service.

THE RESULTS

KBL’s success stems from their collaborative, client-centered approach, driven by a four-step process that they apply across all their projects: 1) we listen, 2) provide solutions, 3) service excellence, and 4) proactive communication.

KBL is currently in the process of completing year three of major operations at the site after an initial trial. The process begins with a complex sludge and water treatment program managing PH and reducing solids in the ponds through an onsite water treatment system. In the first two years of operation the group treated 31,335m3 of raw water producing 3,543 metric tonnes of filter cake and 500 metric tonnes of nickel.

Once water is removed, the extraction process begins. Through three seasons of pond bulk extraction, KBL has removed over 38,000 metric tonnes of material considered contaminated before

going through the solids treatment process. This involved working in challenging northern environments with strict adherence to safety and environmental protection systems.

The processing of material is conducted in covered structures where the extracted material is chemically treated. Once the material is in an acceptable state the now marketable material is prepped and bagged for sale to various commodity markets. Over three seasons, the team has produced over 50,00 metric tonnes of copper and nickel precipitate for the client to sell.

Executing complex projects like the Thompson reclamation also requires a dedicated and highly trained team. KBL’s workforce brings years of expertise in environmental management and hazardous material handling to every project. Additionally, KBL emphasizes building strong relationships with local communities, stakeholders, and Indigenous groups, ensuring that their projects not only meet environmental goals but also positively impact the communities where they operate.

BUILDING ON SUCCESS

KBL’s achievements in Thompson are part of their larger mission to lead environmental remediation, reclamation, and sustainable development across Canada. Their work extends to remote and challenging locations, such as in the remote regions of Canada’s north. In each case, KBL’s innovative and practical solutions help clients manage environmental risks efficiently. The company specializes in services ranging from contaminated site remediation and facility decommissioning to hazardous material abatement, always aiming to provide cost-effective and sustainable methods for managing environmental risks.

Above: Hook truck loading copper bin. Right: Unhooking copper bag from hopper.

Turn static files into dynamic content formats.

Create a flipbook
Issuu converts static files into: digital portfolios, online yearbooks, online catalogs, digital photo albums and more. Sign up and create your flipbook.