Building Idaho Spring 2025

Page 1


IDAHO

How Flashpoint Building Systems’ ILS is Changing Construction Forever

The University of Idaho’s New Residence Halls in Moscow New Logistics Hub to Boost West Idaho’s Economy

Message from the Idaho AGC President, Jared Wise — 6

Idaho AGC Staff Listings — 8

Idaho AGC 2025 Board of Directors — 10

New Idaho AGC Members — 12

Idaho AGC Crossword — 14

Celebrating Excellence in Construction Partnering — 16

2025 Legislative Session Wrap-Up: Celebrating Wins, Building the Future — 18

Building Idaho’s Future - One Leader at a Time — 20

My Goals as Your New CEO — 22

Idaho’s Construction Boom Reflects Strong Fundamentals — But Will Federal Policy Undermine It? — 24

Idaho AGC’s Milwaukee Member of the Month - January to May 2025 — 26

Idaho’s Own Damien Garrett Wins National United Rentals 2025 Driver of the Year Award — 28

Breaking Ground on Employee Well-Being: How to Get Your Workforce to Use a EAP — 30

The Benefits of Physical Therapy for Those Working in Construction — 32

Construction’s Hidden Profit Center: How Procurement Can Transform the Bottom Line — 33

Blueprints at Your Feet: Flashpoint Building Systems — 36

Having Trust in AI — 39

A Home for Families and Scholar:

The University of Idaho’s New Residence Halls in Moscow — 42

A Need for the Community: St. Luke’s Hospital Expansion — 45

New Logistics Hub to Boost West Idaho’s Economy: The Nampa Logistics Center — 48

Index to Advertisers — 50

buildingIDAHO

IS PUBLISHED BY

DEL Communications Inc.

Suite 300, 6 Roslyn Road Winnipeg, MB R3L 0G5 www.delcommunications.com

PRESIDENT & CEO

DAVID LANGSTAFF

MANAGING EDITOR

SHAYNA WIWIERSKI shayna@delcommunications.com

ASSISTANT EDITOR

HAILEY REYES hreyes@idahoagc.org

ADVERTISING MANAGER DAYNA OULION

ADVERTISING SALES GARY BARRINGTON

JENNIFER HEBERT

ROSS JAMES

MIC PATERSON GARY SEAMANS

PRODUCTION SERVICES PROVIDED BY S.G. Bennett Marketing Services

CREATIVE DIRECTOR / LAYOUT & DESIGN KATHLEEN CABLE

CONTRIBUTING WRITERS

RYAN ESTUS

ERIC HELITZER

JEFF SHOAF

MACRINA WILKINS

© COPYRIGHT 2025

DEL Communications Inc. All rights reserved.

The contents of this publication may not be reproduced by any means, in whole or in part, without prior written consent of the publisher. Publications mail agreement #40934510

Return undeliverable addresses to:

Idaho AGC 1649 West Shoreline Drive, Suite 100 Boise, Idaho 83702

While every effort has been made to ensure the accuracy of the information contained in and the reliability of the source, the publisher and/or the Idaho Associated General Contractors in no way guarantees nor warrants the information and is not responsible for errors, omissions or statements made by advertisers. Opinions and recommendations made by contributors or advertisers are not necessarily those of the publisher, its directors, officers or employees.

PRINTED IN CANADA 04/2025

MESSAGE FROM IDAHO AGC PRESIDENT JARED WISE

General Manager – Interstate Concrete & Asphalt – Rathdrum

As we close another incredible year for the Idaho Associated General Contractors (AGC), I want to take a moment to reflect on our shared successes, outline the future direction of our organization, and express my sincere gratitude for your continued commitment to strengthening Idaho’s construction industry.

The past year has been one of growth, adaptation, and forward-thinking leadership. Thanks to your continued engagement and the hard work of the AGC board and staff, the Idaho AGC has remained a steadfast advocate for our industry, ensuring that our collective voice is heard at all levels of government. We have expanded workforce development initiatives, strengthened industry partnerships, and continued to provide the high-quality services and networking opportunities that set our organization apart.

This past year, we also embarked on a comprehensive strategic planning process to ensure that the Idaho AGC remains well-positioned to meet the challenges and opportunities ahead. Through extensive member input and thoughtful collaboration, we have established key strategic priorities that will guide us from 2025 to 2027:

• Strengthening advocacy & political influence: Expanding local and regional outreach efforts to ensure that policy decisions align with the needs of our industry.

• Enhancing workforce development: Serving as a central coordinator for workforce initiatives, advocating for industry-friendly education policies, and elevating Idaho’s construction career pipeline.

• Increasing member engagement: Creating opportunities for deeper involvement from all sectors of our membership, particularly specialty contractors, future leaders, and members outside the Treasure Valley.

• Optimizing organizational excellence: Investing in financial stability, diversifying revenue streams, and enhancing operational efficiency to better serve you.

These priorities will empower our members, advance industry innovation, and further solidify the Idaho AGC’s role as the trusted leader for construction in our state.

None of this would be possible without your unwavering support. Whether you participate in AGC events, contribute to workforce development efforts, engage in advocacy, or simply share your insights and experiences, you are shaping the future of Idaho’s construction industry. Your involvement is the foundation of our success, and I encourage you to remain engaged in the year ahead.

As we look forward to 2025 and beyond, I am excited about the opportunities before us. The Idaho AGC is stronger than ever, and together, we will continue to build a thriving and resilient industry.

Thank you for being part of this journey. I look forward to another successful year ahead! l

Over 25 Years of Electrical Testing Experience

• Acceptance and Maintenance Testing

• Ground Fault/Maintenance Switch Testing

• Grounding Systems Testing

• Circuit Breaker Testing & Repair

• Switchboards & Switchgear Testing

• Transformer Testing/Oil Sample Analysis

• Medium Voltage Cable Testing

• Electrical Equipment Calibration

• Thermographic Imaging Inspections

• Earth Resistance Testing (MSHA & OSHA)

• Electrical PPE Testing

• Ground Fault Testing

and safety violations caused by electrical system failures.

IDAHO ASSOCIATED GENERAL CONTRACTORS STAFF

WAYNE HAMMON

Chief Executive Officer whammon@idahoagc.org (208) 344-2531

TAMARA TRACY

Senior Director of Finance & Operations ttracy@idahoagc.org (208) 472-0457

SUE FUDGE

Senior Health Plan Director sfudge@idahoagc.org (208) 472-0455

SEAN SCHUPACK

Senior Director of Government Affairs sschupack@idahoagc.org (208) 472-0464

HAILEY REYES

Senior Director of MarCom & Events hreyes@idahoagc.org (208) 472-0463

DEVIN CASTERLINE

Membership Director dcasterline@idahoagc.org (208) 472-0451

MOLLY JOHNSON

Director of Workforce Development mjohnson@idahoagc.org (208) 472-0466

JENNY LARSEN

Health Plan Manager jlarsen@idahoagc.org (208) 472-0454

CASSIDY BOUGHTON

Social Media Manager & Events Coordinator cboughton@idahoagc.org (208) 472-0459

KAYLA POSSEHL

Member Experience Manager kpossehl@idahoagc.org (208) 472-0453

DEREN MARTINEZ

Plan Room Manager planroom@idahoagc.org (208) 344-2531

Participate in Idaho Power’s energy efficiency and demand response programs to earn cash incentives for your business. Energy-saving upgrades today can save you even more in the future. Installing efficient equipment or reducing load is good for your business customers, employees, and your bottom line!

Incentives are available for:

• New construction and major renovations

• Retrofits

• Custom projects

• Multifamily construction

• Energy management and facility tune-ups

• Flex Peak Program (demand response)

• Rewinding motors

We also offer training opportunities, energy assessments, and more.

See how easily you can save: idahopower.com/business

IDAHO ASSOCIATED GENERAL CONTRACTORS 2025 BOARD OF DIRECTORS

EXECUTIVE COMMITTEE

President Jared Wise Interstate Concrete & Asphalt

1st Vice President Anthony Guho Guho Corp.

2nd Vice President Tyler Resnick McAlvain Companies, Inc.

Secretary/Treasurer Seneca Hull Franz Witte Landscape Contracting, Inc.

Immediate Past President Matt Blandford Andersen Construction Company of Idaho, LLC

GENERAL CONTRACTOR DIRECTORS

Tim Brown Idaho Materials & Construction

Mike Burke Concrete Placing Co., Inc.

Ben Petzinger Okland Construction

Jeret Whitescarver Engineered Systems, Inc.

Mark Elder Sunroc Corporation

Jeff Trosper HK Contractors, Inc.

Bryce Parker Beniton Construction

Robert Grubb Wright Brothers, The Building Co.

SPECIALTY CONTRACTOR DIRECTORS

Jake Claridge Extreme Excavation, Inc.

John Buss Buss Mechanical Services, Inc.

ASSOCIATE DIRECTORS

Jake DeBerg United Rentals of Idaho

Cory Dietz Ash Grove Cement Co.

PAST PRESIDENT DIRECTORS

Darrin Dance Gale Lim Construction

Anna Sparrell CM Company

Jessee Rosin Mountain Companies

Bob Von Lintig Western Construction, Inc.

Zach Higgins Wright Brothers, The Building Co.

Chuck Graves McAlvain Companies, Inc.

Delwyn Mickelsen Mickelsen Construction Co.

Joe Jackson Engineered Structures, Inc.

Michael Arrington Starr Corporation

Garry Mattson Central Paving Co., Inc.

Paul Saucerman Saucerman Construction

Burke Hansen Hansen-Rice, Inc.

Harvey Neef Interior Systems, Inc.

Steve Heaton Western Construction, Inc.

NATIONAL BOARD OF GOVERNORS

Scott Cron Strata, Inc.

Seneca Hull Franz Witte Landscape Contracting, Inc.

Joe Meuleman Meuleman Law Group, PLLC

Brett Myron Petra, Inc.

Paul Saucerman Saucerman Construction

Josh Smith Knife River

Andrew Wolford Big-D Constructionl

OUR RENTALS DON’T MISS A BEAT

You can rent John Deere and Wirtgen Group equipment. Everything from late-model, low-hour compact equipment to full size production class machines maintained and monitored by us to deliver maximum uptime and reliability at your site. We also rent attachments.

Welcome, New Members

101 Mobility

40/50 Development, LLC

44 Iron, LLC

Action Garage Door

All County Roofing, Inc.

All Siding Construction, LLC

Andres Landscape, LLC

Any Weather Exteriors, LLC

Ark Commercial Roofing

AWP Safety

Barnoli & Sons Concrete Pumping

BH, Inc.

Briggs Steel, Inc.

Bronco Electric

Capital One

City of Trees Construction, LLC

Cochran, Inc.

Convergint

Cosco Fire Protection

CR Concrete

DalTile

Direct Siding Idaho, LLC

Eco Material Technologies

ESTECH, LLC

EverLine Coatings and Services Boise

Fence Unlimited, Inc.

Floform Countertops

Galban Electric

Gargoyle Granite

Gem State Benefits Advisors

Gem State Garage Door

Greybeard Steel, LLC

H&H Electric Boise

Harris Mountain West

Haulaway Storage Containers

HGT Construction

Idaho Construction & Excavation

Idaho Site Works, LLC

Intermountain Masonry Company

Interstate Plastics

iWest Companies

Jameson Supply

Johnson Controls

K2 Construction, Inc.

KT Advisory Services

Lightning Tool & Manufacturing, Inc.

McCauley Bond Agency

Meridian Plumbing Co., Inc.

Mickelsen Electric, LLC

Modern Glass Company

North Fork Enterprises

Owyhee Civil Corp.

Performance Contracting, Inc.

Pinnacle General Contracting, LLC

Pro Care Landscape Services

Quantum Lighting

RAMM Safety, LLC

Resource Recovery Systems Hauling

Riverbend Electric, LLC

Riverside Services

Rock Solid Project Solutions

Schreder & Brandt Mfg. Inc.

Shop Strange, Inc.

SiteWorks a DBA of Street Lights, LLC

Snake River Fabrication

Sunnyridge Construction, LLC

Superior Door

Swiss Precision Enterprises, Inc.

Teufel Landscape

The Goss Group, LLC

Valley Electric, Inc.

Veritas Electric, LLC

VIP Telecom, LLC

Westside Electric Company

White Cap

Wyoming Mechanical Supply

ZZ Construction l

SERVING BUILDERS FOR FOUR DECADES & COUNTING

Lets face it, the construction world today is facing more challenges than ever. Pairing up with a reliable supply partner who will help you navigate the tight supply chain has never been more important.

IdaPac, or Idaho Pacific Lumber Company, has been helping supply construction companies, builders, and homeowners with the rough framing materials, engineered wood products, and wholesale building materials that they need since 1979. Our company is employee-owned, and each of our team members are passionate about ensuring you save both time and money with our building supply materials. Reach out to us today to learn more!

1. Material used for foundations and structures

2. Heavy equipment used for digging and earthmoving

3. Detailed architectural or engineering drawing

4. Steel reinforcement used in concrete structures

5. Excavated area for utilities or foundations

6. Tall machine used for lifting heavy materials

7. System for water supply and waste removal

8. Temporary structure used for working at heights

9. Offer to undertake a construction project at a stated price

10. Legal document outlining project requirements and conditions

11. Framework used to support concrete until it hardens

12. Device used to measure angles and elevations

13. Protective equipment required on construction sites

14. A worker who specializes in cutting, shaping, and installing wood

15. Process of leveling and preparing ground for construction

16. Mixture of sand, gravel, cement, and water

17. Vertical structural element supporting a building

18. Material used for insulating buildings

19. Fastener used to join materials together

20. A room or area where construction meetings are held

Celebrating Excellence in Construction Partnering

The Idaho Associated General Contractors (AGC) and the Idaho Transportation Department (ITD) recently recognized outstanding achievements in construction collaboration through the 2024 AGC/ITD Excellence in Construction Partnering Awards. These awards celebrate the spirit of teamwork, innovative problem-solving, and exceptional communication that drive successful construction projects across Idaho.

Now in its fifth year, the awards program continues to highlight the best practices in construction partnering. The winners are recognized for their ability

to resolve complex challenges, enhance work zone safety, engage stakeholders, and deliver projects that meet shared goals.

“We’re proud to honor these outstanding teams for their commitment to excellence and collaboration,” said Dan McElhinney, ITD chief operations officer. “Great partnerships are the foundation of safe, efficient, and high-quality construction work in our state.”

Wayne Hammon, CEO of Idaho AGC, added, “These awards underscore the importance of teamwork and trust. When we work together as partners, we create lasting improvements for Idaho’s infrastructure and communities.”

THE 2024 AWARD WINNERS

This year’s winners showcased exemplary teamwork and innovation in delivering projects that benefit Idahoans. Here’s a look at the honored projects:

GOLD AWARD WINNERS

• M.A. DeAtley Construction, Inc. & ITD District 2: US-12 widening from Lochsa Ranger Station to Holly Creek

• Gale Lim Construction, LLC & ITD

District 5: US-26 widening from Moreland Road to MP 303.5

• Interstate Concrete & Asphalt & ITD

District 1: I-90 Osburn to Wallace, Big Creek to MP 58.5 Pavement

• Knife River Corporation & ITD

District 2: US-95 Aht’Wy Interchange and Plaza

• Knife River Corporation & ITD

District 3: SH-16 New freeway segment from I-84 to Franklin

• Knife River Corporation & ITD

District 6: US-20 South St. Anthony interchange

• Abhe & Svoboda & ITD District 4 & Bridge Division: US-93 Perrine Bridge corrosion protection project

• Coldwater Group, Inc. & ITD District 2: Eleven bridge repairs on SH-14 and SH-11

• Capital Paving Company, Inc. & ACHD: Lake Hazel and Maple Grove

intersection reconstruction

SILVER AWARD WINNERS

• Braun Jensen & LHTAC: Dixie Creek

Bridge Replacement

• Western Construction, Inc. & ITD

District 4: SH-77 Nibbs Creek to Rice Creek

• Geneva Rock, LLC & ITD District 4: SH-21 Stanley, SH-75 Ohio Gulch, and SH-77 Safety Improvements

• Cannon Builders, Inc. & ITD District 5: Ten bridge repairs on I-86, I-15, and US-39

• Knife River Corporation & ITD District 2: SH-64 D2 emergency flood repair

• HK Contractors, Inc. & ITD District 6: Rexburg Interchange 332/333 At-Grade Diverging Diamond Interchanges

• Knife River Corporation & ITD District 2: US-95 pavement reconstruction from MP 210 to White Bird

• Apollo, Inc. & ITD District 1: SH-53 widening and reconstruction from N Latah Street to MP 9.3

• Sunroc DBA DePatco & ITD District 6: SH-33 Teton County Baseline Road intersection improvements

• Scarsella Bros., Inc. & ITD District 1: I-90/SH-41 Offset At-Grade SPUI interchange

• Knife River Corporation & ITD District 3: I-84 Karcher interchange to Middleton Road

• Concrete Placing Company & ITD District 3: I-84 Centennial interchange to Franklin interchange

• Sundt-Cannon & ITD District 5: I-15 Fort Hall interchange

• Wadsworth Brothers Construction & ITD District 4: I-84 Kimberly interchange (SH-50)

BRONZE AWARD WINNERS

• HK Contractors, Inc. & ITD District 6: US-93 pavement from Willow Creek Summit to SH-75 Junction

• Central Washington Asphalt & ITD District 1: SH-54 pavement improvement from Athol MP 8.162 to 11.8

• Boswell Paving & ITD District 4: SH75 Bellevue to Hailey pavement project

• Knife River Corporation & ITD District 3: SH-55 and US-20/26 demolition for widening

LOOKING AHEAD

The winners were celebrated at the Idaho Transportation board meeting, at local district events, and at the Idaho AGC’s 90th Annual Awards Gala. These awards not only honor the winners, but also inspire the entire industry to prioritize effective partnering as the cornerstone of success.

The AGC and ITD extend their heartfelt congratulations to all the winners and thank everyone involved for their dedication and hard work, and encourage others to apply for this year’s awards. Together, we’re building a brighter future for Idaho. l

Celebrating Wins, Building the Future

As the dust settles on the 2025 Idaho Legislative Session, we’re proud to report that the Idaho AGC once again proved why we’re the state’s most trusted and effective voice on constructionrelated issues. With strong bipartisan support, key legislative victories, and the defeat of several harmful proposals, this session was a clear demonstration of what we can achieve when our industry speaks with one voice.

Our success wasn’t accidental — it was the result of years of preparation, deep relationships, and a relentless commitment to protecting and advancing Idaho’s construction industry. The Idaho AGC’s influence has never been stronger, and the results this year reflect the power of a unified, member-driven organization. Let’s take a moment to celebrate what we accomplished together.

MAJOR LEGISLATIVE VICTORIES

Infrastructure funding: A generational win

Infrastructure once again topped our priority list — and we delivered. House Bill 25 passed unanimously in both the House and Senate, injecting $1 billion into road and

bridge projects over the next three to four years. On top of that, Senate Bill 1295 adds another $275 million in FY 2026. These investments are a transformational step forward for Idaho’s infrastructure — and a major win for AGC members statewide.

Choice of law

We proudly authored and led the charge on Senate Bill 1006, which ensures Idaho construction projects are governed by Idaho law. This common-sense reform protects contractors from being forced into out-of-state arbitration or unfamiliar legal systems — and received strong bipartisan praise as a model for good policy.

Faster permitting

Few things stall progress like permit delays. We worked to pass S 1164, which sets firm timelines for local governments to process permits, and secured $650,000 in new funding for DEQ to hire staff needed to expedite clean air and water permits — key elements for keeping projects on track.

Jobsite waste flexibility

We also helped pass legislation that gives contractors the freedom to hire third-party waste removal services and

holds service providers accountable with response time requirements — adding efficiency and control to the jobsite.

PLAYING DEFENSE: PROTECTING OUR INDUSTRY

While we scored big wins on offense, we were equally vigilant in stopping harmful legislation from moving forward.

Protecting CM/GC procurement

The Idaho AGC successfully led the charge to stop S 1081, a bill that would have made price a mandatory part of CM/GC selection — undermining one of the most effective tools available to public owners. While the bill was pulled this year, we expect it to return, and we’ll be ready.

Shutting down bad ideas:

• H 214: Proposed changing apprentice electrician supervision rules — we helped stop it.

• H 252: Would have blacklisted contractors over employee paperwork — shut down.

• H 315: Threatened tax credits for data center construction — we killed it.

• H 86: We supported this bill, which protects against local EV charger mandates.

LEGISLATION BACKED BY COLLABORATION

Some of our best wins were the result of strong partnerships with constructionsavvy legislators — including AGC members themselves.

A special shout-out to AGC member Rep. Josh Wheeler, who sponsored legislation to modernize inspections by enabling virtual inspections and mandating quick turnaround times (or a fee refund).

Another victory came from AGC member Sen. Codi Galloway, who sponsored legislation to hold municipal governments responsible for responding to permit applications in a timely manner. This is the kind of practical, proconstruction policymaking we love to support.

MEMBER ENGAGEMENT: BOOTS ON THE GROUND

This wasn’t just a legislative session — it was a member-powered movement. From committee hearings and legislator Q&As to our annual Legislative Reception, Idaho AGC members showed up, spoke out, and stood strong for our industry.

A highlight this year was a special visit to the Capitol by our newly launched Construction Leadership Council (CLC). These emerging leaders got a behind-thescenes look at policymaking in action and helped carry our message into the future. It was a proud moment and a promising glimpse of what’s to come.

A RECORD YEAR — IN EVERY WAY

The 2025 session saw more than 890 bills introduced — the most in five years. Despite the chaos, the Idaho AGC remained focused, agile, and effective. Our early preparation and strong relationships made all the difference.

LOOKING AHEAD

We’re already laying the groundwork for 2026. The threats will return, the priorities will evolve, and the stakes will stay high. But with your continued support, we’ll stay ahead of the curve — advocating for policies that make Idaho’s construction industry safer, stronger, and more successful.

THANK YOU

None of this happens without you. Whether you joined us at the Capitol, made a call, shared insights, or simply stayed engaged — you helped shape the outcome.

Together, we’re not just reacting to legislation. We’re shaping it.

Let’s keep building — together. l

Building Idaho’s Future One Leader at a Time

An update from the Idaho AGC’s Construction Leadership Council

In the fall edition of this magazine, we were excited to share the re-launch of the Idaho AGC’s Construction Leadership Council (CLC). Now, we’re even more excited to share an update on how it’s going. The answer? It is THRIVING!

The CLC continues to grow as a dynamic platform for emerging leaders in the construction industry. Guided by their mission and vision (“Building Idaho’s Future One Leader at a Time”) the CLC is dedicated to equipping

the next generation of construction professionals with the tools, experiences, and community they need to thrive.

The CLC serves as a vital extension of the Idaho AGC, providing resources, guidance, and a platform for future leaders to succeed. It focuses on three key pillars:

• Professional development

• Community involvement

• Fostering a stronger, more innovative construction industry

This year, the council has seen

remarkable engagement and growth. They’ve hosted multiple happy hours with outstanding turnouts, giving early-career professionals the chance to connect with mentors, peers, and industry leaders in a casual and welcoming setting.

Another major milestone was the inaugural CLC Cornhole Tournament, hosted by our good friends at Kendall Auto Idaho in their new Commercial & RV Service Center. With nearly 100 participants, the event was a huge success and set an engaging tone for future CLC-

Clockwise from top left: The CLC group outside the Capitol Building. CLC meeting with Senator Treg Bernt. CLC mixer.

hosted gatherings. This event was key to the future success of the CLC, fundraising for its own future sustainability and growth, as well as creating scholarships for Boise State University’s Construction Management students.

The group also attended its first-ever CLC Day on the Hill during this year’s legislative session. Members of the council were given a front-row seat to policymaking in action, meeting with Senator Treg Bernt and Representative

Brent Crane, as well as attending a live committee hearing on key industry legislation. The experience offered an eye-opening look at how the Idaho AGC’s government affairs team works to advocate for the construction industry.

For many, it was a powerful reminder that leadership also means understanding and influencing the issues that shape our profession.

Looking ahead, the council is excited to officially add CLC events to the Idaho

AGC’s robust events calendar, including educational sessions, more networking opportunities, and in the fall, a service project.

Whether you’re just starting your construction career or looking to give back by mentoring others, the council is always open to new voices and perspectives.

If you’re passionate about the future of Idaho’s construction industry, there’s a place for you here. l

NMy Goals as Your New CEO

o matter where I travel across the nation, every time I attend an AGC meeting, I am reminded of just how much the AGC is one big family. These AGC events are where you meet up with your brothers, sisters, and cousins in the industry. They are where you talk about your job and how we are making a difference in the world, in our communities, and our families.

It was an honor to work with our now-former CEO, Steve Sandherr, for nearly 30 years. During his entire tenure at the AGC, he operated as a leader who inspired the staff to deliver for the members. His leadership created a great team at AGC. That team is hard working, passionate, and innovative.

One reason for that passion is that we get to represent an industry that positively impacts every person’s quality of life. Your accomplishments inspire us to tackle the many “challenges” you face. These include workforce shortages,

environmental rules, regulatory burdens, and the actions (or more likely the inaction) of congress.

My goals as your new CEO are to take on the transition from Steve, retain as much of the talented staff as we can, and achieve the goals contained in the business plan laid out by the AGC Board of Directors. And from my new vantage point, work with AGC leadership and staff to chart a course for the next year, the next five years, and the next decade.

My first big decision was choosing the person to take my former spot. I selected Jimmy Christianson, who has been the head of the AGC’s Government Relations Department, as the next AGC chief operating officer. He has a level of commitment to the organization, the members, and the staff that will help keep the organization on track.

AGC is an exceptional organization with a great history and great potential. Moving forward, we are going to continue advocating for you. We will

continue our efforts to help develop the industry’s workforce. We are going to keep providing world-class education programs. And we will keep finding ways to make it easier for you to engage with your national association and play an active role in helping build an even better industry.

To accomplish all of that, we are going to listen to members, work closely with our chapters, and enhance our network of influence in Washington and across the country.

The more we listen and the more we coordinate and the more we broaden our influence, the better we will be able to anticipate the next big industry threats and the next great industry needs. In other words, we will continue to have your back to look for the next canary in the coal mine and figure out how to turn the challenges of today into the opportunities of tomorrow.

It’s an honor to follow Steve in this role. I look forward to working with all of you in the days and years to come.

920 Laurel Street, Caldwell, ID 83605 O: 208-999-0489

C: 208-941-6504 jason@paradiseutilities.com paradiseutilities.com

I invite you to reach out with your thoughts and suggestions. If there is something we are doing you don’t understand, just ask. And if there are things we are doing you love, please let us know as well. My goal is to make sure the AGC continues to have a positive impact on the people like you who power the construction industry. l

Dusty

Idaho’s Construction Boom Reflects Strong Fundamentals — But Will Federal Policy Undermine It?

The construction industry has been a vital contributor to Idaho’s economic activity. In 2024 alone, construction added $8.5 billion to the state’s $128 billion economy, accounting for 6.7 percent of total state gross domestic product. That marks a 0.2 percentage point increase from the previous year and gives Idaho the fourth-largest construction share of economic output among all states. This growth reflects the impact of major developments in the past few years, such as Micron’s fabrication facility and Meta’s data center campus.

Idaho’s rise as a regional tech and advanced manufacturing hub has drawn thousands of new jobs to the state. The arrival of major employers is attracting new residents, fueling population growth and intensifying demand for housing.

Residential activity has followed suit: single-family permits surged 23 percent

in 2024. Idaho’s population rose 1.5 percent between July 2023 and July 2024—well above the national rate. Much of this growth is driven by domestic migration, as people relocate from other states in search of economic opportunity and affordability.

In March, construction employment in Idaho reached 77,500—an increase of 7,300 jobs or 10 percent from a year earlier. Since February 2020, employment has grown a whopping 41 percent. Metro areas including Boise, Coeur d’Alene, Idaho Falls, and Pocatello have all posted consistently strong gains, though growth in Lewiston, Idaho-Washington metro area stalled in the latest year.

But looming over this progress is federal policy. Nationally, 34 percent of the construction workforce is foreign-born. With the Trump administration moving to curtail immigration and reduce work authorization programs, competition for skilled labor could intensify.

The implications are serious: rising labor costs, delayed timelines, and greater uncertainty. Idaho, however, is well positioned to withstand these pressures, as only 14 percent of their construction labor force is foreign born.

Furthermore, the state’s strong project pipelines, population growth, and above-average job gains suggest a sector with solid foundations. But the outlook depends on how well the industry navigates labor challenges and policy uncertainty. l

Still, this robust hiring hints at growing stress. As demand for skilled workers grows, Idaho’s ability to meet project timelines and control costs could be tested. A broad range of projects—school facility upgrades, roadway improvements, and interchange reconstructions—are underway.

Idaho AGC’s Milwaukee Member of the Month –January to May 2025

New in 2025, the Milwaukee Member of the Month award celebrates Idaho AGC members and member employees who go above and beyond in supporting the industry, their companies, and our organization. These individuals exemplify leadership, innovation, and dedication—and we’re proud to recognize their outstanding contributions.

JANUARY: JEFF SLINGER

As the inaugural recipient of the Milwaukee Member of the Month award, Jeff Slinger sets a high bar for excellence. A project engineer at Andersen Construction since 1996, Slinger is widely respected for his dedication to workforce development and mentorship.

Slinger began his work with the ACE Mentor Program in Oregon in 2016 and later founded the Idaho chapter in 2022, where he currently serves as board chair. The 17-week afterschool program connects Treasure Valley students with industry professionals for hands-on, real-world experiences.

In 2024, Slinger also helped launch Idaho’s first Girls Build summer camp, empowering girls ages eight to 15 through construction-focused activities.

Through his leadership, Slinger is shaping a more inclusive and skilled construction workforce, inspiring both current professionals and future industry leaders.

FEBRUARY: NATE ISAAK

The Idaho AGC and Milwaukee Tool are proud to recognize Nate Isaak for his outstanding efforts in expanding the Idaho AGC Health Plan and improving employee benefits across the construction industry.

Since 2023, Isaak has brought over 180 new employees onto the plan, quoted 28 groups, secured six new plans, and welcomed five new AGC members. His work helps construction companies attract and retain top talent through meaningful, competitive benefits.

As a senior advisor at HUB International since 2011, Isaak is known for his honesty, deep industry knowledge, and creative, cost-effective benefit strategies. His reputation as a “straight shooter” is matched by his ability to consistently deliver real financial value to his clients.

Isaak’s dedication is strengthening the industry from the inside out—one employee at a time.

MARCH: HYRUM PITT

Hyrum Pitt leads business development and technology at Headwaters Construction Company, a premier general contractor based in Teton Valley, Idaho. Since its founding in 2003, Headwaters has grown from building high-end resort homes to delivering a broad range of residential, commercial, and institutional projects across the Mountain West.

When a major legislative challenge emerged, Pitt went the extra mile—literally—making an eight-hour round-trip drive through winter conditions to meet with a key legislator as a representative of our industry. His actions reflected not just professional duty, but a deep commitment to protecting and advancing Idaho’s construction industry.

Pitt’s passion and perseverance show just how much one dedicated individual can do to shape the future of our field.

APRIL: MEG ANDERSEN

Meg Andersen, community relations specialist at Kendall Auto Group, is a standout industry partner whose energy, creativity, and team spirit shine in every interaction.

Since Kendall Auto Idaho joined the association, Andersen has jumped in with both feet—joining the Event & Marketing Advisory Council and offering innovative ideas and unwavering support. One of her most impactful contributions was proposing a cornhole tournament hosted at Kendall’s Fleet Service Center. That idea became the Idaho AGC Construction Leadership Council’s first successful fundraiser, generating essential support for future CLC initiatives and BSU Construction Management student scholarships.

Andersen’s positive attitude, problem-solving mindset, and organizational savvy make her a joy to work with and an invaluable part of the Idaho AGC community.

MAY: C&B QUALITY TRAILER WORKS, INC.

C&B Quality Trailer Works, Inc. has been a proud Idaho AGC member for more than 20 years. Founded in 1986 in the Treasure Valley, this family-owned company has built a reputation for producing durable, high-performance trailers tailored to the demands of the construction industry.

From heavy-duty utility and dump trailers to enclosed and custom designs, C&B trailers are built to last—and they’re a familiar sight on job sites throughout Idaho.

In addition to supporting the industry, C&B gives back to the community through sponsorships of youth programs, schools, rodeos, and local events.

We’re proud to recognize C&B Quality Trailer Works as our Milwaukee Member of the Month for their long-standing commitment to both construction and community,

Who’s next? — Milwaukee Members of the Month are recognized with an inperson visit from Idaho AGC and Milwaukee Tool representatives, featured on our website and social media, celebrated in this magazine, and added to the Milwaukee Member of the Month plaque at the Idaho AGC office. And yes—they also receive some seriously sweet Milwaukee Tool swag.

Know someone who deserves the spotlight? We want to hear about them!

Call us at 208.344.2531 or email Cassidy Boughton at CBoughton@Idahoagc.org.l

Idaho’s Own Damien Garrett Wins National United Rentals 2025 Driver of the Year Award

Safety isn’t just a requirement at United Rentals—it’s a way of life. Drivers at United Rentals are recognized companywide through a Driver of the Year and Region’s Top Driver award.

No one exemplifies that commitment more than Idaho United Rentals employee, Damien Garrett, who was awarded the 2025 Driver of the Year award. Garrett was awarded the honor out of over 5,000 other United Rentals drivers nationwide, an impressive achievement.

Just how did Garrett outshine his peers? While he received several letters of recommendation and praise from his colleagues and peers, as well as many customers in the Treasure Valley, the numbers also spoke to his expertise, and numbers don’t lie. In the end, Garrett embodies the 1UR team spirit.

His passion for safety, customer service, and teamwork makes him an irreplaceable part of United Rentals’ recipe for success. While United Rentals is fortunate to have many skilled and committed drivers, Garrett’s leadership and dedication continue to inspire and shape the next generation.

With over 23 years of dedicated service, Garrett has not only set the standard for safety, he also demonstrated exceptional leadership and teamwork, making him a true role model within the company.

A COMMITMENT TO SAFETY LIKE NO OTHER

Garrett never cuts corners when it comes to safety. As a key member of the safety committee at United Rentals, he has earned the trust of both drivers, all United Rentals employees, and customers alike. He goes above and beyond by conducting driver safety evaluations, ensuring safe loading practices, and offering comprehensive training to not just drivers, but for all United Rentals employees and customers on essential safety protocols. His involvement in developing the United Rentals District Excavator Loading Standard Operating Procedure underscores his unwavering commitment to keeping everyone safe.

A CAREER BUILT ON HARD WORK & LEADERSHIP

Garrett’s journey at United Rentals began as a temporary equipment associate (EA), where his exceptional work ethic and attention to detail quickly set him apart. Even before earning his CDL, he volunteered for early and late deliveries to gain hands-on experience, demonstrating his unwavering commitment to growth.

Over the years, Garrett became the professional driver that teammates and customers could always count on, consistently taking on new challenges including mastering heavy-haul truck operations.

From working in dispatch to becoming a leader among drivers, Garrett’s influence is undeniable. He’s always the first to step up, whether it’s training new employees, coaching drivers on best practices, or tackling complex situations head-on. His leadership and willingness to support others make him an invaluable asset to the team.

RESPECTED BY PEERS AND CUSTOMERS ALIKE

Garrett is not just an exceptional driver; he is a mentor, problem-solver, and a true team player. His ability to think quickly,

communicate effectively, and lead with integrity has earned him widespread respect. Multiple customers have personally expressed their appreciation for his professionalism and dedication, with some even trying to recruit him onto their team! His commitment to safety, leadership, and teamwork makes him a standout, and everyone at United Rentals is proud to see him recognized as their 2025 Driver of the Year. l

His passion for safety, customer service, and teamwork makes him an irreplaceable part of United Rentals’ recipe for success.

Construction & Engineering TAX | AUDIT | ADVISORY

Building sound businesses.

Sorren is well-respected for our expertise in the construction and engineering industries. We make it a priority to understand the challenges that accompany a fluctuating economic landscape, and we apply decades of knowledge about the processes, internal controls, and activities required to make a business like yours run smoothly and profitably.

Breaking Ground on Employee Well-being: How to Get Your Workforce to Use an EAP

Why EAPs matter in construction

The construction industry is demanding—long hours, physical labor, and high-pressure deadlines take a toll on workers. Employee Assistance Programs (EAPs) offer critical support for mental health, financial counseling, substance abuse issues, and work-life balance. However, many employees don’t use these benefits due to lack of awareness, stigma, or misconceptions.

So how can construction companies break through the barriers and encourage their workforce to take advantage of these valuable resources?

1. MAKE EAP AWARENESS A YEAR-ROUND PRIORITY

Many companies mention the EAP during onboarding and never bring it up again. Instead, they integrate it into company communications throughout the year:

• Toolbox Talks: Dedicate a short segment to EAP benefits, tying them into safety and well-being topics.

• Posters on job sites & break areas: Use QR codes or hotline numbers for easy access.

• Payroll inserts & emails: Regular reminders with testimonials or success stories.

Tip: Highlight seasonal needs—stress management during peak summer projects, financial counseling after the holidays, or mental health support in winter.

2. ADDRESS THE STIGMA: NORMALIZE EAP USE

Many workers hesitate to use an EAP because they fear being judged. Combat this by:

• Leadership endorsement: Supervisors and managers should talk openly about the EAP and encourage use.

• Peer ambassadors: Designate respected employees to spread the word and share experiences (anonymously if needed).

• Confidentiality assurance: Communicate that EAP services are 100 percent private and separate from HR records.

Example message:

“Just like we prioritize safety on the job site, we need to prioritize mental and emotional well-being. The EAP is here to help, confidentially and at no cost to you.”

3. MAKE ACCESS SIMPLE AND MOBILE-FRIENDLY

Most EAPs offer 24/7 access through a variety of methods. Construction workers are always on the move, so the EAP must be easy to access:

• Provide employees with the 24/7 hotline for immediate help.

• Guide employees to download the mobile app for quick consultations.

• Make the online URL and any passwords/codes readily available to employees.

4. SHOW THE VALUE WITH REAL-LIFE SCENARIOS

Employees are more likely to use an EAP when they see its relevance. Share anonymized examples:

• “An employee struggling with back pain used the EAP to find a physical therapist.”

• “An employee worried about credit card debt got free financial counseling.”

• “A team member dealing with stress at home found family counseling services.”

These relatable stories help remove skepticism and personalize the benefit.

5. INTEGRATE EAP INTO SAFETY & HR PRACTICES

To make EAPs a natural part of company culture:

• Include EAP information in post-incident protocols. After accidents or stressful events, remind employees of mental health support options.

• Train managers on EAP referrals. Supervisors should recognize signs of stress, burnout, or substance issues and suggest EAP resources.

• Tie EAP usage to safety incentives. Reward teams that engage in wellness initiatives or complete EAP education sessions.

BUILD A CULTURE OF SUPPORT

An EAP is only effective if employees use it. By normalizing discussions, simplifying access, and showing real value, companies can help employees and their families get the support they need—leading to a healthier, more productive workforce. l

Construction Services

The Benefits of Physical Therapy for Those Working in Construction

According to OSHA, there were approximately 1.5 million workplace-related injuries/illnesses in 2023 alone – 90 percent of which were injuries. The construction sector made up 10 percent of these injuries. Construction workers are some of the hardest working people in America and have quite literally built this country. Without them, we would have no place to call home, no offices to work in, no hospitals to recover in, or stores to shop in. To take care of them is to take care of all of us. As a doctor of physical therapy, I will outline the benefits of physical therapy for our construction workers and what I believe is a recipe for success to mitigate injuries in this setting.

A recipe for success is to complete a prework screen, perform dynamic warm

ups, and see your physical therapist to help keep your body in tip-top shape so injuries don’t slow you down or keep you from work.

The first thing we should note is that you can’t prevent 100 percent of injuries or mitigate all risk of injury as accidents do happen. With that being said, “An ounce of prevention is worth a pound of cure.” It is no secret that prevention is the first defense against injury. I have two recommendations for you, the first is to participate in regular exercise, eat a healthy diet, drink plenty of water, and get adequate sleep. Those things alone will help mitigate your risk of injury, disease, and illness.

The second is to complete a pre-work screen. This is when a physical therapist completes a physical assessment, including musculoskeletal examination,

neuromuscular examination, and jobspecific functional examination to determine if you are safe to complete the physical requirements of the job.

The next layer of defense against injury is dynamic warm up training. If you have ever watched a sporting event – whether professional, college, high school, or pee-wee football – all of the athletes complete a warm up. A dynamic warm up is much more than standing around holding a few stretches for 10 seconds like most of us do…It is a customized routine that will allow you to prepare the body for movement, decrease injury risk, and improve concentration by increasing blood flow to the muscles and brain. Static stretches, meaning stretches that you pull and hold for a long time, are not recommended to do before activities. If you are interested in learning more about a dynamic warm up routine that can help you reduce injury risk, reach out to your local Wright Physical Therapy Clinic.

If an accident does happen and you do find yourself with a musculoskeletal injury, physical therapy is a crucial part of a multidisciplinary health team that will help you recover and get back to work safely. A physical therapist can effectively assess and treat injuries to help you recover quicker and safely. Most construction workers I know when injured usually “rub some dirt on it.” Although I appreciate their sentiment, I would much rather help them get to the root of their pain and allow them to get back to life. l

CONSTRUCTION’S HIDDEN PROFIT CENTER: How Procurement Can Transform the Bottom Line

Modernizing procurement practices offers improved profitability and sustainability in an industry known for its complexity, high risk, and thin margins.

The construction industry is at a critical juncture, with increasing pressures to build faster and to meet sustainability goals while also improving profitability. Historically, construction has lagged far behind other industries in adopting technological innovations, and inefficient procurement processes have often led to cost overruns, project delays, and massive material waste. However, a shift toward modern procurement strategies, supported by technology and a younger generation, is transforming how the industry operates—unlocking new potential for efficiency, sustainability, and profitability.

THE COST OF INEFFICIENCY IN TRADITIONALLY MANUAL PROCUREMENT

Traditionally manual procurement in construction is plagued every day by inefficiencies, contributing to the industry’s poor

productivity growth. According to a report by McKinsey, the global construction industry has seen productivity growth of just one percent annually over the past two decades, compared to 3.6 percent in the global manufacturing sector. One of the primary reasons for this stagnation is the reliance on outdated procurement methods, such as manual processes, paperbased record systems, and siloed communications between stakeholders. Let’s also not forget that each project is typically treated as a custom-build, making it difficult to replicate the efficiencies of the traditional manufacturing process. These construction-related inefficiencies result in significant cost overruns. The same McKinsey report indicates that large construction projects typically take 20 percent longer to finish than scheduled and run up to 80 percent over budget. The procurement phase significantly contributes to these delays and

Digital procurement platforms allow companies to manage multiple vendors simultaneously and switch suppliers quickly if delays or shortages occur.

cost overruns, as manual processes leave ample room for human error, miscommunication, and siloed data.

But it’s not just the financial impact that’s concerning. The environmental cost of inefficiencies in procurement can no longer be ignored. Material mismanagement, caused by poor procurement and outdated practices, is responsible for significant waste. A recent study by the World Bank found that construction and demolition waste accounts for approximately 30 percent of total global waste. Addressing inefficiencies is not only a matter of profitability but also critical for improving the industry’s sustainability footprint.

THE ROLE OF DIGITAL PROCUREMENT IN DRIVING PROFITABILITY

To tackle these challenges, forward-thinking, growing construction companies are adopting digital procurement tools that streamline operations and provide real-time visibility into their material workflows. Companies can automate key procurement processes such as material requests, pricing comparisons, order and delivery tracking, and invoice reconciliation by leveraging software solutions.

For instance, a Deloitte study found that cloud-based procurement software reduced procurement cycle times by up to 60 percent. Construction firms can avoid costly delays and overages by minimizing manual data entry, automating redundant purchase orders, and enhancing material-supplier

collaboration. Not to mention moving all of this critical data back into an accounting or ERP system to track real-time budgets without the lag time involved with manual, paper-based processes.

Beyond time savings, modern procurement practices also contribute to cost savings through enhanced vendor transparency. Digital platforms allow companies to source from their suppliers and keep a grasp on real-time pricing in one spot, which helps potentially secure better deals and improves price and availability transparency. This is particularly useful when sourcing sustainable materials, which may have higher upfront costs but can reduce overall project expenses in the long run through energy savings and long-term durability.

According to a World Green Building Council report, using sustainable materials can cut a building’s operational costs by up to nine percent. Modern procurement strategies make it easier to integrate these materials by providing real-time data on their availability, pricing, and environmental impact, ensuring that contractors make informed decisions.

PROCUREMENT AND SUPPLY CHAIN RESILIENCE

Another key benefit of modern procurement is increased supply chain resilience. The construction industry is highly dependent on global supply chains, and disruptions—such as those seen during the COVID-19 pandemic—can devastate project timelines and costs.

A robust procurement process mitigates these risks by diversifying supply sources and providing real-time visibility into supply chain disruptions. Digital procurement platforms allow companies to manage multiple vendors simultaneously and switch suppliers quickly if delays or shortages occur. A report by PwC highlighted that companies that have digitized their procurement and supply chain operations are 25 percent more likely to recover quickly from supply chain disruptions. In the face of increased global uncertainty—whether due to the global 2020 pandemic, political instability, or climate-related disasters—procurement resilience has become a critical factor in ensuring both the profitability and the sustainability of construction projects.

PROCUREMENT AS A DRIVER OF SUSTAINABILITY

While profitability is a primary goal, the importance of sustainability in construction cannot be understated. The building and construction sector is responsible for nearly 40 percent of global carbon emissions, and with urbanization on the rise, this figure is only expected to grow.

Procurement plays a vital role in addressing this issue. The choice of materials, suppliers, and logistics contribute to a project’s carbon footprint. By embracing modern procurement technologies, construction companies can integrate sustainability criteria into their decision-making processes. For example,

companies can prioritize sourcing from suppliers that meet stringent environmental standards or use lifecycle costing to assess the long-term environmental impact of different materials.

Adopting digital procurement platforms also allows for better tracking and reporting of data, enabling companies to measure and reduce their carbon emissions throughout the project lifecycle. According to research from the Ellen MacArthur Foundation, integrating circular economy principles into procurement can reduce the demand for virgin materials by up to 50 percent. This helps firms meet regulatory requirements and position themselves as leaders in sustainable construction, which is increasingly important to investors and consumers alike.

Modernizing procurement practices offers improved profitability and sustainability in an industry known for its complexity, high risk, and thin margins. By adopting digital procurement platforms, construction firms can streamline operations, reduce costs, mitigate supply chain risks, and enhance sustainability efforts.

As the construction industry faces mounting pressure to deliver on time and within budget while reducing its environmental impact, procurement will continue to play a pivotal role. The companies that embrace these innovations today are positioning themselves to thrive in a future that demands economic and environmental responsibility. l

Blueprints at Your Feet

How Flashpoint Building Systems’ Integrated Layout System (ILS) is changing construction forever

In the heart of Boise, Idaho, a small but ambitious company is quietly transforming the construction industry, one laser-etched subfloor at a time.

Flashpoint Building Systems, co-founded by childhood friends Nick Stoppello and Pat Churchman, is leveraging their patented and innovative Integrated Layout System (ILS) to

bridge the gap between complex architectural plans and the boots-on-the-ground reality of construction sites. By etching critical building information such as architectural, structural, and mechanical, electrical, and plumbing (MEP) details directly onto subfloor panels, Flashpoint is helping builders across Idaho and the nation save time, reduce errors, and improve efficiency.

The story of Flashpoint began in an elementary school playground where Stoppello and Churchman met as kids, and many years later, regular meetups over beers in Boise. Stoppello, armed with a degree in production operations management and a subsequent MBA, spent years managing commercial construction projects for a large firm in Seattle. Churchman, who holds a master’s in architecture, returned to Boise to work for a local firm. Both Boise natives, their paths converged again when Stoppello –

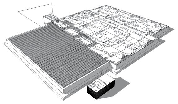
A model depicting how the ILS (Integrated Layout System) utilizes 4x8 sheets of subflooring to create a life-size blueprint on site. Each piece is laser engraved, cut to size, and numbered for quick and easy installation.

Flashpoints proprietary equipment solution laser-burning floor plans onto a 4’x8’ sheet of OSB.

Information from the original plan set consolidated into one comprehensive note depicting how and where to build a window opening.

tired of buying plane tickets home – decided to relocate.

“Pat and I would get together on a more frequent basis and honestly just commiserate about what we were seeing on job sites, more often than not about what was not working,” says Stoppello. “With enough beers over a few different commiseration sessions, him and I decided that while we aren’t the smartest people in the room, we are ambitious enough to try and solve it.”

The root of the problem, they concluded, lay in communication. Traditional plan sets—those sprawling, intricate blueprints— are notoriously difficult to standardize across projects. They’re printed on finite sheets of paper and handed to field workers who often lack the training and time to interpret them fully. Misinterpretations or missing details altogether were rampant, leading to costly errors and rework.

Their eureka moment? What if the plans were literally underfoot, etched onto the subfloor itself, so anyone—worker, homeowner, or inspector—could glance down and understand the project instantly?

“We wanted something so simple and intuitive that anybody could walk onto the job site and use it,” Stoppello says. No phones, no fancy tech to master—just the plans, right there on the four-by-eight sheets of plywood or OSB (oriented strand board) that make up a building’s subfloor.

Laser-engraved

Turning this vision into a reality wasn’t straightforward. Early prototyping involved an overhead projector and days of tracing plans onto subfloor sheets with Sharpies—a method Stoppello admits “was not the way we were gonna change the world.” Inkbased printing was quickly ruled out; it was too expensive and too fragile for the harsh conditions of a job site. Instead, they turned to laser engraving, partnering with a US-based manufacturer to

Above:
floor plan information depicting a typical bathroom layout. Below: Flashpoint’s ILS (Integrated Layout System) showing laser-engraved plan information at a typical bathroom (black lines). Contractor used spray paint to perform further quality control following rough in.

adapt a large-format CNC (computer numerical control) platform with laser capabilities.

The process begins with digital plans—typically AutoCAD, Revit, or even PDFs—provided by the design team. Flashpoint overlays a grid system matching the four-by-eight subfloor sheets, breaking the full plan into manageable “puzzle pieces.” Each sheet is laser-etched with precise details—wall footprints, plumbing locations, electrical layouts—then numbered, stacked in order, and shipped to the site alongside the standard lumber package. Installers simply lay the sheets sequentially, aligning the etched lines from one to the next. The result? A subfloor that doubles as a comprehensive, error-proof guide for every trade involved.

The precision, speed, and level of detail are unrivaled.

“Our CNC operates within ten-thousandths of an inch,” Stoppello says, a far cry from the quarter-inch tolerances of traditional chalk-line methods. Flashpoint guarantees no deviation greater than an eighth of an inch, a promise tempered only by the installer’s care in aligning sheets and the manufacturing tolerances in the dimensional lumber industry—a minor tradeoff for near-perfect accuracy.

Flashpoint’s impact became undeniable when they landed a contract with a top-five national home builder in 2022. Over the course of a year, they etched subfloors for 111 homes, averaging 2,500 square feet each. Before Flashpoint, the builder’s framing phase alone took 16 to 18 days. After adopting the ILS, that same duration was reduced to eight or nine days—a 50 percent reduction. Similar gains rippled across plumbing, electrical, and HVAC trades during the rough-in phase, where pre-etched layouts eliminated the need for separate layout steps and work was put in place per the plan the first time.

The system’s benefits extend beyond speed. By pre-cutting sheets and optimizing material use, Flashpoint reduces waste to below 10 percent—compared to the industry’s typical 10 to 15 percent excess. Installers rarely need a saw, cutting both labor time and safety risks.

“If you shorten project duration, you’re eliminating safety risk,” Stoppello argues. Fewer tools, less rework, and cleaner sites further enhance job-site safety, though he admits quantifying this is tricky. “An efficient job site is a safe job site.”

Real-world examples underscore the error-reduction potential. On traditional sites, a plumber might core a hole for a toilet flange only to hit a floor joist unknowingly—a costly mistake requiring structural repairs. Flashpoint’s pre-coordinated etchings ensure such conflicts are caught and resolved before sheets are produced.

“To quickly understand where everything lives, for example, we draw the footprint of, let’s say, a toilet in a restroom. We actually show where the drain connection, the sewer connection for the toilet lives in the space as well,” says Stoppello. “A plumber can

come in and they say, ‘okay, I’ve got a toilet here and a sink here, and here’s where my two drain lines need to be plumbed.’ And they can literally just put their hole saw right on the hole that we have drawn for the drain. There’s no layout that needs to be done, and there isn’t a surprise issue that needs to be resolved before they can finish their task at hand.”

Since its inception in summer 2020, Flashpoint has completed over 750,000 square feet of projects, ranging from commercial builds to residential developments. And they have collected a few accolades along the way; a win at Boise State University’s Hacking for Homebuilding, a reverse-pitch competition addressing construction inefficiencies and housing affordability, and a firstplace finish at the Boise Entrepreneur Week in fall 2023. They were also identified as the “Most Innovative Construction Tool” at the 2024 International Builders Show in Las Vegas. These victories provided seed money to refine their technology, culminating in a third-generation self-contained equipment solution inside a 40foot shipping container—a mobile solution that can be shipped anywhere the lumber needs to be processed.

This mobility is key to Flashpoint’s future. Stoppello and Churchman, still the company’s only employees (and selfdescribed “janitor and CTO”), envision a software-as-a-service model paired with equipment leasing. Clients—lumber yards, builders, or contractors—would operate the machines locally, while Flashpoint handles plan coordination remotely.

“We want to take this global,” Stoppello says, empowering endusers to enhance their margins while Flashpoint focuses on what it does best: turning complex plans into actionable, etched reality.

The broader implications are profound. In an industry plagued by labor shortages and waste, Flashpoint’s technology could unlock greater productivity from existing workers, attract new talent with its simplicity, and reduce material and time inefficiencies—key pillars of sustainability. He also sees potential in affordable housing, where DIY builders could use etched subfloors to construct homes with minimal supervision.

Flashpoint Building Systems is more than a Boise success story—it’s a blueprint for the construction industry’s evolution. By marrying ever-advancing design and planning technology with laser precision, Stoppello and Churchman are empowering builders to work smarter, faster, and safer. As they prepare to scale, their mission remains grounded in Idaho roots: to make construction less hard on the people who build our world, one perfectly etched subfloor at a time. For contractors in Idaho and beyond, Flashpoint isn’t just saving time—it’s redefining the process of how buildings rise from the ground up.

“If we can be more efficient with every touch, projects will be more sustainable,” Stoppello says. l

Having Trust in AI

Q&A with Trent Miskelly, CTO of Document Crunch, and John Andres, Director of Technology at Andres Construction

As AI adoption accelerates in the construction industry, one concern often rises above the rest: trust. While AI can help accomplish many tasks, users must be able to trust that their AIpowered tools are providing accurate, reliable, and industryspecific results.

In this Q&A, Trent Miskelly, CTO of Document Crunch, and John Andres, director of technology at Andres Construction, discuss the evolving role of AI in construction, the responsibility of building trustworthy AI-driven solutions, and how companies can evaluate their own current and future AI solutions.

Trent Miskelly (right) and John Andres.
As AI solutions continue to evolve and provide more transparency to gain user trust, AI’s role within construction companies will also evolve and grow.

Q1: How do you see AI adoption in construction growing and what are some challenges to adoption?

Trent Miskelly (TM): AI is becoming a vital tool in construction, but trust remains a key issue. While many companies are eager to explore AI-driven solutions, there’s hesitation due to concerns about reliability and accuracy. At Document Crunch, we take this responsibility very seriously. We’re highly focused on providing accurate results, plus ways that our customers can “trust but verify” those results. As AI solutions continue to evolve and provide more transparency to gain user trust, AI’s role within construction companies will also evolve and grow, particularly in areas like contract risk management, constructability analysis, and process automation.

John Andres (JA): From the contractor’s perspective, AI adoption is shifting from novelty to necessity. Initially, many firms experimented with AI in isolated tasks, but we’re now seeing deeper integration. Whether it’s contract review, compliance tracking, or even helping field teams understand complex obligations, AI is enabling greater efficiency. The challenge is ensuring AI systems understand industry-specific terms and workflows to deliver meaningful results, but many AI solutions already achieve that.

Q2: How can software vendors help users build confidence in AI?

TM: Transparency is critical. Users need to know where AI is pulling information from and how it reaches its conclusions. Our AI-powered responses are the combination of powerful language models and deep construction industry knowledge. We cite and link the source of every response within the original contract documents, which allows users to trust but verify any result.

JA: Trust is earned through consistent, accurate results. Early on, when I tested AI with our company handbook, I found errors that made it clear the system lacked proper context. These moments erode confidence. AI tools need to include features that instill trust and allow customers to confirm their results.

Q3: What are some of the biggest misconceptions about AI in construction?

TM: One major misconception is that AI provides absolute accuracy. We see claims of 99 percent accuracy in various AI tools out there, but those numbers often lack real-world validation. AI isn’t perfect—it’s evolving. That’s why we emphasize “trust but verify,” ensuring users can cross-check our results with original source documents.

JQ: Another misconception is that AI will replace human expertise. The reality is that AI serves as an augmentation tool, helping professionals make informed decisions faster. Take contract review, for example. AI helps highlight critical risks, but final judgment should still rest with experienced professionals. It’s about streamlining workflows, not replacing people.

Q4: How does AI handle construction’s unique terminology and complexities?

TM: The best AI solutions will be built and trained specifically for their industry. Likewise, general-purpose AI tools struggle with construction terminology. For instance, terms like “LDs” (liquidated damages) mean one thing in construction but something entirely different in another context. Document Crunch combines powerful language models with our deep construction industry knowledge to create tools that don’t just process information, but truly understand the nuances of construction contracts and project management.

JA: Generic AI can struggle with construction terminology and acronyms like GMP, RFP, RFI, and RFQ. It can misinterpret key industry terms without proper training, leading to flawed insights. Having an AI model trained on real construction documents and workflows is critical.

Q5: How can companies ensure the AI tools they choose align with their specific needs?

TM: Every construction company has a unique DNA—specific contract risk tolerances, preferences, and project workflows. That’s why AI tools must be customizable. Document Crunch allows users to tailor checklists and contract review processes to match their internal standards. This ensures we complement existing workflows rather than forcing companies to adapt to a one-size-fits-all approach.

JA: At Andres Construction, we work closely with Document Crunch to align AI recommendations with our specific risk profiles. The ability to customize contract reviews and legal checklists makes AI far more valuable. Otherwise, you end up with generic insights that don’t reflect the nuances of your business.

Q6: What are some key AI-driven advancements on the horizon for construction?

TM: We’re anticipating the biggest leap in AI’s reasoning capabilities. Right now, most AI models operate on a singleshot basis—you ask a question, and it provides an answer. The

future lies in reasoning models that can analyze entire projects holistically. For example, run full constructability assessments and proactively identify risks before they materialize. In the next 12 months, we expect AI to handle up to 75 percent of constructability analysis tasks with high reliability.

JA: I’m most excited about AI’s growing ability to help preconstruction teams make better go/no-go decisions. Instead of waiting until later in the process, we can use AI to analyze contracts at the outset and decide whether a project is worth pursuing. This prevents wasted effort on projects that don’t align with our risk appetite.

Q7: What advice do you have for construction firms looking to integrate AI?

TM: Start small and build from there. Identify a specific pain point—contract review, compliance tracking, or document retrieval—where AI can add immediate value. Then, work with vendors who prioritize transparency and provide tools that allow users to validate AI-driven insights.

JA: Invest in training. Many construction professionals aren’t yet comfortable with AI, and that’s understandable. We’ve found

that helping teams learn how to interact with AI effectively— especially how to ask the right questions—goes a long way in improving adoption and trust.

Q8: Any final thoughts on where AI is headed in construction?

Trent: We’re on the brink of AI fundamentally transforming construction workflows. From smarter contract analysis to project-level AI models that track construction progress in real-time, the next few years will be revolutionary. But to fully realize AI’s potential, we need industry-wide standards for evaluating AI solutions—a key initiative we’re driving through ConstructBench.

John: AI adoption will accelerate as trust improves. By ensuring proper validation and integrating it into existing workflows, the firms that embrace AI thoughtfully will gain a significant competitive edge. The key is treating AI as a partner, not a replacement, and continuously refining how it fits into your organization. l

A Home for Families and Scholars

The University of Idaho is building a new residential community that will provide stateof-the-art, purpose-built housing for graduate students, postdocs, and families.

The University of Idaho’s New Residence Halls

Atransformation is currently underway on the southeast edge of the University of Idaho’s Moscow campus.

The University of Idaho is building a new residential community that will provide state-of-the-art, purpose-built housing for graduate students, postdocs, and families. This expansive project, located in the South Hill area, aims to address the university’s growing housing needs while also supporting its path to becoming an R1 institution, a designation awarded to top-tier research universities and achieved by the university in February of this year.

The South Hill housing development consists of 15 buildings spread across three distinct phases. The project is a necessary upgrade for the university’s aging facilities, as the previous family housing structures, built in the 1960s and ‘70s, had long surpassed their useful life.

“We’re tearing down old family housing that was built 50 years ago or longer and building it with new purpose-built housing that is specifically for families and graduate students,” says Erik Elordi, executive director of campus services at the University of Idaho, adding that one of the key reasons for this project is that the university was on a mission to achieve R1 status. “One of the challenges that we’ve had to achieve R1 was in our recruitment of graduate students and postdoc students. We didn’t have a lot of housing available that was really desirable by that group of students.”

While the South Hill project is a significant step forward in modernizing the campus’s housing facilities, it is only one part of a larger initiative that also includes renovations to approximately 1,500 beds in traditional residence halls. The two projects, although separate, serve distinct purposes and are vital to

in Moscow

supporting students at different stages of their academic journey.

“Graduate students and postdocs often require different living conditions from undergraduates, which is why this new housing is so important,” says Elordi. “It’s tailored to meet the needs of these students, providing a space that’s both functional and conducive to their academic and personal lives.”

The new South Hill complex will include two main types of buildings: apartment-style units for graduate students and traditional family housing for students with children. The design caters to a range of needs, with 234 units and 412 rooms spread across seven apartment-style buildings and seven family housing buildings. The space will offer studio, one- and two-bedroom apartments, as well as two-, three-, and four-bedroom family units. The project’s total footprint will span approximately 186,000 square feet.

The development will also include a community center, which will provide shared amenities for all residents. This 9,400-square-foot space will house office space, meeting and study rooms, recreation areas, and even a kitchen for community gatherings. For residents with children or pets, the community center will feature a playground and a dog park.

The project is expected to cost around $70 million, funded through general bonds issued by the university. Construction began in late 2024, with the first phase already underway. While the full project is slated for completion in the summer of 2027, Elordi is optimistic that some units will be ready for occupancy as early as fall 2026, depending on how smoothly the construction phases progress.

The design and construction of the South Hill housing project have involved a close-knit team of professionals, including architects from Integrus Architecture and Design Collective, JUB and MW Engineers, as well as developers from Gilbane and Rocky Mountain Companies, and contractors from Lydig Construction.

The South Hill housing development consists of 15 buildings spread across three distinct phases.
The development will also include a community center, which will provide shared amenities for all residents. For residents with children or pets, the community center will feature a playground and a dog park.

Dan Snook, associate principal and architect at Integrus, explains the design intent behind the project.

“We were really focused on creating a community and create an identity for this portion of campus. The older buildings that were there, they were not in good condition and it wasn’t very much of an identity for what that space was,” says Snook. “We really saw this as an opportunity to create a community and create a place for graduate students and families.”

The design team paid particular attention to integrating the natural landscape into the project. Snook says

that they referenced the surrounding hills and mountains in the design of the apartment buildings, incorporating offset peaks in the roofs to reflect the local topography. They also made sure to include elements of the university’s historic architecture – like masonry and brick – to connect this project with the broader campus design, but without making it feel like just another academic building.

The housing will feature modern amenities, including air conditioning, something that is often missing in the university’s older residences. Furnished units will offer greater comfort and

convenience for residents, a step up from previous housing options. Additionally, energy efficiency was a key priority in the design, with the project going above and beyond Idaho’s energy codes. The project is currently on track to receive a National Green Building Standard (NGBS) Silver Certification.

“We’ve focused on creating a building that’s not just up to code, but exceeds it,” says Snook. “We’ve incorporated highquality insulation and better air sealing to ensure that the buildings are energyefficient. We also made the decision to go completely electric, with no fossil fuels used, which is something unique for this area and this market.”

The project’s energy-conscious approach is particularly important in Moscow, where winters can be harsh, and energy efficiency plays a crucial role in keeping housing affordable and comfortable. The air-tight design and electric-only systems will not only reduce energy costs but also align with the university’s sustainability goals.

The South Hill housing project is just one part of a broader vision to modernize and improve campus facilities. As Elordi explains, this project is about more than just providing students with a place to live—it’s about creating an environment that supports the university’s mission and enhances the student experience.

“One of the things that the University of Idaho is proud of is that we are consistently ranked as the best-value public university in the northwest and number-two nationally,” says Elordi. “We are very conscious of the cost of housing and the impact that it can have on decisions that the students make. We want to build a place that’s very affordable for students because that is something that’s really important to us as a university, as well as for the students that come here.” l

The South Hill housing project is just one part of a broader vision to modernize and improve campus facilities.
The design team paid particular attention to integrating the natural landscape into the project.

A Need for the Community

St. Luke’s Hospital expands in Boise to meet Idaho’s growing healthcare needs

In the heart of downtown Boise, a new tower of healthcare innovation is rising.

St. Luke’s Health System, a cornerstone of medical care across Idaho and eastern Oregon, has embarked on an ambitious effort to construct a new nine-story hospital tower and a six-story medical office plaza at its regional medical center. With a footprint spanning nearly a million square feet, this development aims to address a pressing need for expanded capacity in a state grappling with rapid population growth and a dire shortage of hospital beds.

“We are the sixth-lowest bed-per-capita

state in the country and the second-fastest growing state over the past decade,” says Dennis Mesaros, vice president of population health at St. Luke’s, who framed the project as a critical response to Idaho’s unique challenges.

With projections indicating that Idaho’s population could double by 2040—and a 40 percent surge expected in residents over 60, a demographic known for higher healthcare utilization—the pressure on existing infrastructure is palpable.

“Not a day goes by where we’re not full in terms of beds or operating room capacity,” Mesaros says. “Adding beds and procedural capacity is one of our

responsibilities to ensure access to care.”

The St. Luke’s Regional Medical Center, the state’s only tertiary referral hospital and home to its sole children’s hospital, serves a vast region with no comparable facility within a 300-mile radius. Without this expansion, families seeking specialized care—neurosciences, heart and vascular services, oncology, or pediatric treatment—would face daunting journeys to Salt Lake City, Portland, or Seattle.

“Our mission is to improve the health of the community we serve,” Mesaros says. “Access to care is one of our strategic pillars.”

St. Luke’s Health System has embarked on an ambitious effort to construct a new ninestory hospital tower and a six-story medical office plaza at its regional medical center.

The project, bordered by Avenue B, 4th Street, Jefferson Street, and 1st Street, integrates a new 900,000-squarefoot tower with an existing structure dating back to 1927. A connector bridge, set in place in September 2024, links the old and new, symbolizing a bridge between past and future care. The tower will house 80 additional beds—bringing much-needed relief to the current 400bed facility, including 113 pediatric beds—and 28 modern operating rooms, a significant upgrade from the 21

currently squeezed into the basement of the aging tower.

“We’ve had water infiltration issues down there more times than I can count,” Mesaros says, noting that the new thirdand fourth-floor ORs will accommodate advanced technologies like robotics, previously constrained by space and code limitations.

Adjacent to the tower, a 127,000-squarefoot medical office plaza will consolidate clinics for cardiology, neurosciences, and women’s services, reducing “patient

friction” by streamlining transitions from outpatient visits to diagnostics to inpatient care. Mesaros says they are designing this with the community’s needs in mind, citing feedback from staff who tested mock patient rooms and ORs, ensuring practical layouts that address workflow challenges—like adding lifts for bariatric patients, a safety priority for healthcare teams.

The construction, led by Layton Construction, is no small feat in a bustling downtown setting. Pat Kelly, a construction manager at Layton, described the logistical ballet of building next to an operational hospital.

“We’re right up against the existing St. Luke’s campus,” says Kelly. “Keeping them undisturbed, managing traffic and street closures, mitigating noise and vibration—that’s all part of the challenge.”

The project adheres to Boise’s Green Code, incorporating sustainable materials and operational efficiencies, though Kelly emphasized that the real complexity lies in the site itself: a tight urban block near the Boise River, requiring extensive groundwater management and a full shoring system for two below-grade levels.

Excavation began in late 2024, following a year of securing entitlements and closing Jefferson Street—a move that required city approval and

The project, bordered by Avenue B, 4th Street, Jefferson Street, and 1st Street, integrates a new 900,000-square-foot tower with an existing structure dating back to 1927.
The construction, led by Layton Construction, is no small feat in a bustling downtown setting.
The project adheres to Boise’s Green Code, incorporating sustainable materials and operational efficiencies. Photo taken in September 2024.
“Keeping them undisturbed, managing traffic and street closures, mitigating noise and vibration—that’s all part of the challenge.”

displaced non-clinical offices like HR. Steel framework will rise through 2025 and 2026, with substantial completion slated for September 2029 and the first patients welcomed in January 2030. The cost, initially pegged at $600 million in 2015, has ballooned due to inflation and competition for labor and materials with many large-scale projects throughout the growing Treasure Valley. Funding for the more than $1 billion project includes a $500 million bond issue, with the rest drawn from St. Luke’s cash flow.

Other local contractors working on this project include Inland Foundation Specialties, Engineered Structures, Inc. (ESI), Quality Electric Inc., Summit Wall Systems, Inc., Interior Systems Inc., CentiMark, and TMC Contractors Inc.

For Boise and beyond, the impact promises to be profound. The expansion will eventually create hundreds of jobs — some paying wages 60 percent above Idaho’s average—bolstering the local economy while anchoring specialized care close to home.

With three floors shelled for future adaptability—potentially for pediatric or behavioral health needs—St. Luke’s is building not just for today, but for Idaho’s tomorrow.

“When we’re at capacity, patients wait in the ER or delay critical surgeries,” Mesaros says. “This keeps people from having to leave the state for care.” l

The Partners Group is your resource for employee benefits, insurance, and financial needs.

Our teams work together to provide coordinated solutions that save time and money — it’s the One Partner Advantage®.

The expansion will eventually create hundreds of jobs — some paying wages 60 percent above Idaho’s average—bolstering the local economy while anchoring specialized care close to home.
Excavation began in late 2024, following a year of securing entitlements and closing Jefferson Street. Photo taken in September 2024.

New Logistics Hub to Boost West Idaho’s Economy

The Nampa Logistics

Center will provide prime rail access, efficient design, and a strategic location, driving regional growth and attracting major suppliers

A 120-acre logistics hub is coming to West Idaho.

The intermodal rail yard and logistics center, spearheaded by LDK Ventures, is poised to reshape West Idaho’s supply chain, drawing businesses with its strategic location and rare rail access. The center will have two-million square feet of industrial space and a 4,000-foot rail line in north Nampa, aiming to meet Idaho’s growing demand for efficient transportation and warehouse capacity.

“Our team designed the Nampa Logistics Center to establish a masterplanned logistics hub in the city of Nampa,” says Jason Klier, senior vice president of leasing & acquisitions at LDK Ventures. “This region is experiencing tremendous growth and an increasing demand for logistics facilities. This project helps meet that demand.”

Located off Northside Boulevard in north Nampa, the site has a number of strategic advantages: proximity to the Northside/I-84 interchange, access to an existing railway line, and a rare 120 acres of available land. Previously undeveloped, the property came with completed entitlements and offsite infrastructure— paving the way for an accelerated timeline that has developers and local leaders alike buzzing with anticipation.

“This project is so unique and as shovel-

The Nampa and Logistics Center is more than a collection of warehouses—it’s a symbol of a region on the rise.

ready as any land could be,” Klier noted, crediting the pre-existing groundwork for smoothing out what might otherwise have been a bumpy start.

The scope is ambitious. The 120acre site will house multiple buildings, featuring concrete-tilt construction, ample three-phase power, and both dock and grade-level loading—hallmarks of modern industrial design. Already, a 12-acre parcel has been sold to Rock Placing Co., a local firm planning a new office, showroom, and laydown area to accommodate its expanding operations. The project’s budget, while fluid due to its build-to-suit and owner/user model, is funded through private equity from established partners, a financing approach Klier says allows flexibility for each deal.

What sets Nampa’s Logistics Center

apart, however, is its integration of rail access—a rarity in a region historically reliant on trucking. The 4,000 feet of rail line, serviced by a responsive short-line operator, promises to cut transportation costs and reduce road congestion, a boon for businesses looking to move goods efficiently. Add to that a 60-megawatt Idaho Power substation on-site—one of the project’s standout features—and the result is a facility with some of the lowest electrical distribution costs in the area.

“The integration of rail access is significant, along with the sheer scale of the 120-acre master-planned development,” Klier says.

The project’s importance to West Idaho cannot be overstated. As the state’s population and economy grow—fueled in part by an influx of newcomers from pricier coastal states—the demand for

industrial space has surged. Nampa, a city of roughly 100,000 just 20 miles west of Boise, is well-positioned to capitalize on this trend. The logistics center’s efficient design, convenient location, and robust utility offerings—power, gas, fiber, sewer, water, and pressure irrigation—make it a magnet for major suppliers. Local leaders see it as a catalyst for job creation and a stronger logistics backbone, critical for a state where agriculture, manufacturing, and tech are increasingly intertwined.

Construction on the first phase of internal roadway infrastructure began in the fourth quarter of 2024, with completion expected by the second quarter of 2025. LDK Ventures, working alongside Colliers for leasing and Ardurra for civil engineering, plans to wrap up the remaining infrastructure by year’s end. Contractors and subcontractors are selected based on capacity, qualifications, and competitive pricing, ensuring the project stays on track despite its complexity.

So far, challenges have been minimal—a testament to the site’s readiness and the team’s foresight.

The Nampa and Logistics Center is more than a collection of warehouses— it’s a symbol of a region on the rise. As goods begin to flow through its rail lines and loading docks, West Idaho stands to gain not just efficiency, but a foothold in the national supply chain. In a state long defined by its wide-open spaces, this project is proof that the future can be built, one railcar at a time.

“Its efficient design, convenient location, availability of rail spur, and availability of all utilities are a large draw to major suppliers, which will ultimately contribute to local economic growth by creating jobs and enhancing the area’s logistics infrastructure,” says Klier. l

The logistics center’s efficient design, convenient location, and robust utility offerings—power, gas, fiber, sewer, water, and pressure irrigation—make it a magnet for major suppliers.

Turn static files into dynamic content formats.

Create a flipbook
Issuu converts static files into: digital portfolios, online yearbooks, online catalogs, digital photo albums and more. Sign up and create your flipbook.