MEMORIA. DISEÑO IX

Page 1

PROF. JOSÉ PLANA

En ocasiones me pregunto, ¿Qué podría ser lo más complejo para un estudiante de último curso de Arquitectura?

Algunos apuntarán al diseño, al desarrollo conceptual, al diseño de la estructura o la aplicación de las normativas, quizá la NFPA o alguna otra.

Todas ellas podrían ajustarse perfectamente a la respuesta, sin embargo, la respuesta en sí es mucho más sencilla y con seguridad, hasta ahora ha pasado inadvertida y no tiene relación alguna con ningún concepto técnico ni arquitectónico, mucho menos conceptual, ya que se trata de trabajar en grupo.

Este acto representa para la mayoría la posibilidad explícita del fracaso dado que en la preferencia del estudiante moderno, un compañero (a) podría ser sinónimo de mala compañía, doble trabajo, incertidumbre y temor a la incompatibilidad.

Temor que deberá resolver y superar mientras alcanza su idoneidad, porque, ¡oh sorpresa!, cada proyecto necesita del trabajo en grupo para hacerlo realidad.

Éste documento es prueba entonces que el problema ha sido encarado y resuelto, que las dificultades han sido superadas y que el producto ha sido bueno.

Parque Lefevre Diseño IX | 2024 4
INTRO
5
Introducción

CONT EN IDO

CAPÍTULO 1

ESTUDIO CONTEXTO

1.1 HISTORIA

El polígono en estudio se caracteriza por tener una riqueza histórica antiquísima.

1.2 POLÍGONO

Ubicado en Parque Lefevre, Ciudad de Panamá, Panamá.

1.3 POBLACIÓN

La informalidad conquistó los terrenos que progresivamente fueron invadidos.

1.4 NORMATIVA

Presentamos lo que dicta la ley en la actualidad sobre lo permitido a realizar.

1.5 USO DE SUELO

Caracterizado por una predominancia residencial, junto al conjunto monumental.

1.6 SERVIDUMBRE

Para comprender a detalle la situación del desarrollo y la adaptación de la normativa.

CAPÍTULO 2

INTERVENCIÓN URBANA

2.1 CONTEXTO

El contexto en el que se nos presenta el área de estudio es un barrio discordante a su alrededor.

2.2 INTERVENCIÓN

Rediseñar la trama urbana para que funcione como elemento permeable y no conflictivo.

IX | 2024 6
Parque Lefevre Diseño

CAPÍTULO

GRUPO 1

CAPÍTULO

7
Contenido
A. Alpizar P. Martez D. Carrasco J. Campos L. Silvera A. Pérez A. Gálvez N. Guerrero S. Omais Y. Blanco T. Chein T. Vega P. Espinosa J. Jaramillo R. Rosas A. Cedeño A. Morales J. Lastra S. Mizrachi D. Beck
GRUPO 4
GRUPO
GRUPO 2 GRUPO 5 GRUPO 3
6
3
6
4
CAPÍTULO
CAPÍTULO
7 CAPÍTULO 5 CAPÍTULO 8

CAPÍTULO

8
Parque Lefevre Diseño
IX | 2024
1
9 Estudio Contexto

CIUDAD ORIGINAL

Malambo (barrio suburbano)

Calle la Ampedrada

Calle de la Gerrera

Santo

Gallinero

Pierdevidas (barrio suburbano) Casas reales

Calle del Obispo

1- Convento de San Jose

2 - Convento de Santo Domingo

3 - Casa del Genoveses

4 - Casa del Obispo

5 - Casa del Cabildo

6 - Santa Iglesia Catedral

7- Convento de la Compañia de Jesus

8 - Puente del Matadero

9 - Convento de Monjas

10

del mapa actual del terreno junto con mapa de 1906 Actualmente colinda con la bahía de Panamá y con los corregimientos de San Francisco, Río Abajo y Juan Díaz

Polarizado
Plaza Rio
Mercado Cantinas Carcel
1 2 3 4 5 6 7 89 10 11
- Hospital de San Juan de Dios 11 - Convento y jardines de San Francisco
01 Parque
10
Calle de
Domingo Parque Lefevre Diseño IX | 2024
Lefevre Diseño IX | 2024

MAPA POLARIZADO

Cementerio Jardín de Paz

1960 Inicios y Fundación

Barrios Actuales

1960 desarrollo de barrios precarista

Sitio Arqueólogico de Panamá Viejo

1976 Declarado Patrimonio de la Humanidad por la UNESCO.

Av. Cincuentenario

1950 Construccion y

1984 comienza el desarrollo

Se destacan los puntos de desarrollo más importantes del área

Barriada Puente del Rey
Mapa Actual
11 Mapa Actual

PBARRIOS COLINDANTES

PARQUE LEFEVRE

A principios del siglo XX, Lefevre decide urbanizar la hacienda para crear un espacio de vivienda accesible para personas de clase media. La urbanización se inicia en 1915 y se completa en la década de 1930.

El Barrio de Parque Lefevre, ubicado en la ciudad de Panamá, tiene su origen en la antigua hacienda Santa Elena, propiedad del expresidente Ernesto T. Lefevre. Parque Lefevre se convierte en un barrio popular entre familias jóvenes y profesionales.

A partir de la década de 1980, el barrio experimenta un crecimiento comercial e industrial.

CCHANIS

A partir de la década de 1980, se inició el desarrollo residencial del área cercana al complejo deportivo, dando origen al barrio de Chanis. El barrio se caracteriza por sus casas unifamiliares, amplias calles arboladas y ambiente familiar.

Antes de convertirse en un barrio, la zona de Chanis era parte de la hacienda familiar de Ernesto Lefevre, un empresario panameño. Antes de convertirse en un barrio, la zona de Chanis era parte de la hacienda familiar de Ernesto Lefevre, un empresario panameño.

En los últimos años, ha experimentado un crecimiento comercial con la apertura de restaurantes, supermercados y otros servicios.

ZONA DEL GOLF

La Zona del Golf, ubicada en la Ciudad de Panamá, tiene una historia que se remonta a principios del siglo XX. Los primeros hoyos del campo de golf se construyeron en 1921, aprovechando la topografía natural del terreno.

Parque Lefevre Diseño IX | 2024

Alrededor del campo de golf, se desarrolló una comunidad residencial con casas de estilo colonial y moderno. La Zona del Golf se convirtió en un lugar exclusivo para familias de clase alta y diplomáticos.

A lo largo del tiempo, la Zona del Golf se ha expandido y modernizado, incorporando nuevas áreas residenciales, comercios y oficinas.

Z
12
Parque Lefevre Diseño IX | 2024

CRONOLOGÍA

AAV. CINCUENTENARIO

La idea de construir una avenida que conectara la Ciudad de Panamá con el Aeropuerto Internacional de Tocumen surge en la década de 1940. En la década de 1950 se inicia la construcción de la Avenida Cincuentenario. En sus inicios, la Avenida Cincuentenario era una vía de dos carriles por sentido, rodeada de áreas verdes y terrenos baldíos.

CCEMENTERIO JARDÍN DE PAZ

Su historia se remonta a la década de 1960, cuando un grupo de visionarios decidió crear un espacio único para el descanso eterno de sus seres queridos. 1960s Inicios y fundación, Se buscaba crear un espacio verde, tranquilo y con un diseño paisajístico único.

A partir de la década de 1960, la Avenida Cincuentenario experimenta un rápido crecimiento y transformación.

En la década de 1990, la Avenida Cincuentenario se amplía a cuatro carriles por sentido.

En 1971, se inicia la construcción del Cementerio Jardín de Paz. La construcción se realiza en varias etapas, a lo largo de la década de 1970.

A partir de la década de 1980, el Cementerio Jardín de Paz experimenta un rápido crecimiento. Se convierte en uno de los cementerios más populares de la Ciudad de Panamá.

MMANGLARES

Los primeros habitantes de la región utilizaban los manglares para la pesca, la caza y la recolección de recursos. Los colonizadores españoles comienzan a talar los manglares para la construcción de barcos y viviendas.

Se introduce la agricultura y la ganadería en las áreas adyacentes a los manglares, lo que provoca la deforestación y la degradación ambiental

1972: Se crea el Parque Nacional Soberanía, que protege una importante extensión de manglares en la Bahía de Panamá.

1980: Se funda la Asociación Nacional para la Conservación de la Naturaleza (ANCON), que trabaja en la protección de los manglares.

2000: Se crea el Refugio de Vida Silvestre Humedal Bahía Panamá.

Cronología

Cronología

13

CRONOLOGÍA

SSITIO ARQUEÓLOGICO DE PANAMÁ VIEJO

El Sitio Arqueológico de Panamá Viejo, ubicado en la Ciudad de Panamá, es un lugar fascinante que guarda entre sus ruinas siglos de historia. Fundada en 1519 por Pedro Arias Dávila, la ciudad de Panamá Viejo fue la primera ciudad española permanente en la costa del Pacífico americano y jugó un papel fundamental en la conquista y colonización del continente.

1519: Pedro Arias Dávila funda la ciudad de Nuestra Señora de la Asunción de Panamá.

1671: La ciudad es destruida por el pirata Henry Morgan.

Siglo XVII: La ciudad es abandonada y sus ruinas quedan cubiertas por la vegetación.

Siglo XX: Se inician las excavaciones arqueológicas para recuperar la historia de la ciudad.

1976: El Sitio Arqueológico de Panamá Viejo es declarado Patrimonio de la Humanidad por la UNESCO.

BBARRIDA PUENTE DEL REY

El Puente del Rey, ubicado en la barriada El Rey dentro del Conjunto Monumental Histórico de Panamá Viejo, es una estructura histórica que ha sido testigo de siglos de acontecimientos.

La construcción del Puente del Rey se inicia en 1619 por orden del rey Felipe III de España. El puente se inaugura en 1634, después de 15 años de construcción.

En su momento, era el puente de piedra más grande de América Latina.

A lo largo del siglo XIX y XX, el Puente del Rey sufre un proceso de deterioro debido a las inclemencias del tiempo y la falta de mantenimiento.

En 1984, el puente es declarado Monumento Histórico Nacional y comenzo el desarrollo de las viviendas conmemorando el monumento del puente del rey. El Puente del Rey es un importante atractivo turístico en la barriada El Rey y el Conjunto Monumental de Panamá Viejo. Es un lugar de esparcimiento para los residentes de la barriada.

Parque Lefevre Diseño IX | 2024

14
Parque Lefevre Diseño IX | 2024

Maqueta recreando de manera conceptualmente la precisión de la ubicación, características, colores y disposición de los edificaciones que eventualemnte fueron destruidas durante los incendios, sawueos y el paso del tiempo

Cronología
15
Cronología

POLÍGONO

CUERPOS DE AGUA

AÁREA VERDE

Gracias al estudio realizado en la zona, podemos definir distintos puntos verdes. Contamos con una gran parte de área verde perteneciente al jardín de paz, fuera de este las zonas verdes son mayormente escazas y de existir se encuentran en mal estado, es decir descuidado o son terrenos baldíos si ningún tipo de uso.

CCUERPOS DE AGUA

En el área de estudio se encuentran un cuerpo de agua importante, la cuenca de ri o Abajo. Muchas de las viviendas se hicieron a la orilla del río. Los pobladores tomaron parte de esas tierras para ello (llanuras de inundación). Este problema se da desde donde nace el río, en las montañas de Santa Librada, hasta que finaliza en el océano Pacífico.

VALORES CLIMÁTICOS

VLa temperatura promedio oscila entre los 30 y 32 grados Celsius durante todo el año. Es de conocimiento general que Panamá no cuenta con un clima estable, esto quiere decir que su temperatura puede variar a lo largo del año. Mediante el análisis de datos, podemos concluir diciendo que el sol se mantiene constante, mientras que los vientos van aumentando.

VIALIDADES

VEGETACIÓN

CARACTERÍSTICAS EXISTENTES

Isométrico del terreno 3D con representación en distintos planos, características existentes, Vialidades, Vegetación y cuerpos de agua

Parque Lefevre Diseño IX | 2024

Parque Lefevre Diseño IX | 2024

02
16

UBICACIÓN

Ciudad de Panamá, Panamá

Área: 1,391,189.03 m2

VIENTO CUERPOS DE AGUA ÁREA DE ESTUDIO ARÉA VERDE SOLEAMIENTO VÍAS Diagrama 2d Polígono de Área de intervención
17
Diagrama 2D Polígono de Área de intervención

TOPOGRAFÍA

FFORMA

Gracias al estudio realizado en la zona, podemos definir distintos puntos verdes. Contamos con una gran parte de área verde perteneciente al jardín de paz, fuera de este las zonas verdes son mayormente escazas y de existir se encuentran en mal estado, es decir descuidado o son terrenos baldíos si ningún tipo de uso.

ANIVEL MÁS ALTO

En el área de estudio se encuentran un cuerpo de agua importante, la cuenca de rio Abajo. Muchas de las viviendas se hicieron a la orilla del río. Los pobladores tomaron parte de esas tierras para ello (llanuras de inundación). Este problema se da desde donde nace el río, en las montañas de Santa Librada, hasta que finaliza en el océano Pacífico.

NIVEL MÁS BAJO

BLa temperatura promedio oscila entre los 30 y 32 grados Celsius durante todo el año. Es de conocimiento general que Panamá no cuenta con un clima estable, esto quiere decir que su temperatura puede variar a lo largo del año. Mediante el análisis de datos, podemos concluir diciendo que el sol se mantiene constante, mientras que los vientos van aumentando.

CURVAS DE NIVEL

CARACTERÍSTICAS EXISTENTES

Isométrico del terreno 3D con representación en distintos planos, características existentes, levantamiento de topografía y curvas de nivel

Parque Lefevre Diseño IX | 2024

Parque Lefevre Diseño IX | 2024

18

Topográfico de Área de intervención, curva de nivel menor de -2.00 m y curva gruesa Mayor de 32.00 m

Mapa
19 Topografía
Topografía

POBLACIÓN

CIUDAD DE PANAMÁ

1439575 personas en toda la Ciudad de Panamá

PARQUE LEFEVRE

42 832 personas en el corregimiento de Parque Lefevre

COMPARACIÓN

PANAMÁ VIEJO

3867 perosnas viviendo en la zona de Panamá Viejo

SANTA ANA

Superficie: 0.8 km2

Población: 13 495

Densidad: 17 049.9 EL CHORRILLO

Población: 16,335

Densidad: 33,264.4

PANAMÁ VIEJO

Superficie: 1.3 km2

Población: 8 270

Densidad: 5 949.6

Parque Lefevre Diseño IX | 2024

Parque Lefevre Diseño IX | 2024

C P P
03
20
Mapa de Densidad Poblacional
21
Mapa sobre la densidad del área. Se puede apreciar las zonas pobladas en contraste con las zonas que son del cementerio Jardín de Paz y del Centro Histórico de las Ruinas de Panamá La Vieja. Mapa Densidad Poblacional

TIPOLOGIA DE VIVIENDA

VIVIENDA CATEGORIA MEDIA

En esta zona podemos encontrar viviendas unifamiliar y complejos residenciales construidos con materiales más resistentes como bloque de concreto, acero, techo de teja y pared con revestimiento en la fachada posterior. Estructuralmente cuenta con una base sólida.

BVIVIENDA CATEGORIA BAJA

En esta zona ya entramos a las viviendas mayormente de un nivel cuyo materiales a utilizar son menos resistentes como pu eden ser escaleras de acero, soportes de madera, casas en ruinas, donde se puede apreciar el desgaste del tiempo en ellas.

COMERCIOS/INSTITUCIONALES

A lo largo del recorrido pudimos identificar diferentes comercios, se llegó a encontrar una parroquia, un gimnasio, y el cementerio “Jardín de Paz”. Varios de los comercios fueron identificados como lo que alguna vez fue solo una vivienda, la parroquia y el gimnasio se encontraban en buen estado, aunque como todo lo demás. eran establecimientos con un área pequeña.

VIVIENDAS: CASAS: 1,176

EDIFICIOS: 8

IGLESIAS: 2

CONVENTO: 1

COLEGIOS: 2

OFICINAS DEL MINISTERIO: 1

GALERAS/ DEPOSITOS: 30

Parque Lefevre Diseño IX | 2024

Parque Lefevre Diseño IX | 2024

M C
22

Imágenes de la situación actual de las viviendas en la zona de Panamá Viejo. Son viviendas que han sido construidas y mejoradas con el pasar de los años siguiendo el gusto del propietario del lote y muchas de estas utilizan como método constructivo el bloque de concreto y techos de zinc o en algunos casos tejas.

Descripción de Imagen

23 Realidad Actual

NORMATIVAS

El estudio de la normativa de códigos de uso de suelo en áreas urbanas es fundamental para comprender y gestionar el desarrollo sostenible.

La zona colindante enfrenta la tensión entre el crecimiento urbano y la preservación. Los códigos de uso de suelo deben equilibrar la construcción de viviendas y comercios con la protección del patrimonio.

La planificación adecuada del uso de suelo puede mejorar la calidad de vida de los residentes. La normativa debe promover espacios verdes, accesibilidad y seguridad.

La normativa de uso de suelo puede armonizar el desarrollo urbano con la preservación del patrimonio y la sostenibilidad en esta barriada única.

04
Parque Lefevre Diseño IX | 2024
24
Parque Lefevre Diseño IX | 2024
25
Mapa de Zonficiación del Plan de Odenamiento Territorial del Distrito de Panamá 2021 Mapa de Zonificación del Plan de Ordenamiento Territorial

VOCACIÓN DEL USO

Comercial: Comercio vecinal, central de abastos y bodega de acopio (mayoristas)

Terciario o servicios: Centro de convenciones

Institucional: Oficinas de gobierno/alcaldía, oficinas de administración local, estaciones de policía, bomberos, y otras dotaciones, centros penitenciarios y otras dotaciones de gran impacto

Educativos: Guardería y educación primaria, educación media y superior

Asistencial: Hospitales, centros y unidad de salud, asistencia social (asilos, orfanatos, etc.)

Cultural: Bibliotecas, centros comunitarios, centros cívicos, museos, instituciones religiosas, cementerios y servicios funerarios

Deportivo: Grandes centros deportivos especializados, canchas y polideportivos, estadios, piscinas

Infraestructura transporte: Aeródromos e instalaciones complementarias, gasolineras e instalaciones complementarias, terminal de transporte terrestre e instalaciones complementarias, estacionamiento de vehículos pesados, buses o vehículos de carga

INFRAESTRUCTURA

Terciario o servicios: Restaurantes, bares y cafeterías, espectáculo y ocio (cines, discotecas)

Infraestructura urbana: Energía eléctrica (plantas eléctricas), tratamiento y eliminación de residuos sólidos

Infraestructura transporte: complementarias, aeródromos e instalaciones complementarias, gasolineras e instalaciones complementarias, terminal de transporte terrestre e instalaciones complementarias, estacionamiento de vehículos pesados, buses o vehículos de carga

1EP EQUIPAMIENTO PÚBLICO

Parque Lefevre Diseño IX | 2024
26
Parque Lefevre Diseño IX | 2024

1CU

COMERCIAL URBANO

VOCACIÓN DEL USO

Comercial: Comercio urbano, servicios especializados, centro comercial, supermercados, central de abastos y bodega de acopio (mayoristas)

Terciario o servicios: Oficinas y entidades bancarias, restaurantes, bares y cafeterías, hoteles y alojamientos, espectáculo y ocio (cines, discotecas) comercios nocturnos, centros de convenciones y servicios al turismo

Logística e industrial: Industria de bajo impacto, almacenamiento y embalaje de productos no contaminantes, almacenamiento y venta de sustancias tóxicas y peligrosas y talleres de servicio, reparación y mantenimiento

Institucional: Oficinas de administración local, estaciones de policía, bomberos, y otras dotaciones, centros penitenciarios y otras dotaciones de gran impacto

Educativos: Guardería y educación primaria, educación media y superior

Asistencial: Hospitales, centros y unidad de salud, asistencia social (asilos, orfanatos, etc.)

Cultural: Bibliotecas, centros comunitarios, centros cívicos, museos e instituciones religiosas

Deportivo: Grandes centros deportivos especializados, canchas, polideportivos, estadios y piscinas

Infraestructura transporte: Embarcaderos e instalaciones complementarias, gasolineras e instalaciones complementarias, rminal de transporte terrestre e instalaciones complementarias y estacionamiento de vehículos pesados, buses o vehículos de carga

USOS PERMITIDOS

Comercial: Pequeños talleres y almacenes de venta

Logística e industrial: Logística y servicios

Institucional: Oficinas de Gobierno/Alcaldía

Infraestructura transporte: Aeródromos e instalaciones complementarias

Normativa 27 Normativa

VOCACIÓN DEL USO

Residencial: Vivienda multifamiliar

Comercial: Comercio vecinal, pequeños talleres y almacenes de venta

Terciario o servicios: Oficinas y entidades bancarias, restaurantes, bares y cafeterías, hoteles y alojamientos, espectáculo y ocio (cines, discotecas) comercios nocturnos, servicios al turismo

Logística e industrial: Industria de bajo impacto, almacenamiento y embalaje de productos no contaminantes

Institucional: Oficinas gobierno/alcaldía, oficinas de administración

local, estaciones de policía, bomberos, y otras dotaciones

Educativos: Guardería y educación primaria, educación media y superior

Asistencial: Centros y unidad de salud, asistencia social (asilos, orfanatos, etc.)

Cultural: Bibliotecas, centros comunitarios, centros cívicos, museos e instituciones religiosas

Deportivo: Canchas y polideportivos

Infraestructura transporte: complementarias, gasolineras e instalaciones complementarias y terminal de transporte terrestre e instalaciones complementarias

USOS PERMITIDOS

Comercial: Comercio urbano y servicios especializados

Logística e industrial: mantenimiento

Deportivo: Grandes centros deportivos especializados, estadios y piscinas

Infraestructura transporte: complementarias y estacionamiento de vehículos pesados, buses o vehículos de carga

1CV COMERCIAL VECINAL
Parque Lefevre Diseño IX | 2024
28
Parque Lefevre Diseño IX | 2024

R4 RESIDENCIAL DE MEDIANA DENSIDAD

VOCACIÓN DEL USO

Residencial: Vivienda unifamiliar aislada, bifamiliar una sobre otra, bifamiliar adosada e hilera

USOS PERMITIDOS

Comercial: Comercio vecinal

Institucional: Estaciones de policía, bomberos, y otras dotaciones

Educativo: Guardería, educación primaria, educación media y educación superior

Asistencial: Centros y unidades de salud. Asistencia Social (asilos, orfanatos, etc.)

Cultural: Centro comunitario, centro cívico e instituciones religiosas

Deportivo: Canchas, polideportivos y piscinas nfraestructura transporte: Embarcaderos, gasolineras e instalaciones complementarias

Normativa 29 Normativa

VOCACIÓN DEL USO

Residencial: Vivienda en apartamentos

USOS PERMITIDOS

Comercial: Comercio vecinal

Terciario o servicios: Oficinas, entidades bancarias, restaurantes, bares, cafeterías y uso de espectáculo y ocio (cines, discotecas)

Institucional: Estaciones de policía, bomberos, y otras dotaciones

Educativo: Guardería y educación primaria, educación media y superior

Asistencial: Centros y unidad de salud, asistencia social (asilos, orfanatos, etc.)

Cultural: Bibliotecas, centro comunitario, centro cívico, museos e instituciones religiosas

Deportivo: Canchas, polideportivos y piscinas

Infraestructura transporte: Embarcaderos, gasolineras e instalaciones complementarias

RM RESIDENCIAL MULTIFAMILIAR DE ALTA DENSIDAD

Parque Lefevre Diseño IX | 2024
30
Parque Lefevre Diseño IX | 2024

ZONA MIXTA DE BAJA INTENSIDAD

VOCACIÓN DEL USO

Residencial: Vivienda unifamiliar (aislada, adosada o en hilera) y vivienda multifamiliar

Comercial: Central de abastos y bodega de acopio (mayoristas)

Terciario o servicios: Oficinas, entidades bancarias, restaurantes, bares, cafeterías, hoteles, alojamientos, uso de espectáculo y ocio (cines, discotecas) y servicios al turismo

Logística e industrial: Industria de bajo impacto

Institucional: Oficinas de gobierno/alcaldía, oficinas de administración local, estaciones de policía, bomberos, y otras dotaciones, centros penitenciarios y otras dotaciones de gran impacto

Educativo: Guardería, educación primaria, educación media y educación superior

Asistencial: Hospitales, centros y unidades de salud asistencia social (asilos, orfanatos, etc.)

Cultural: Bibliotecas, centros comunitarios, centros cívicos, museos e instituciones religiosas

Deportivo: Canchas, polideportivos y piscinas

USOS PERMITIDOS

Comercial: Comercio vecinal, comercio urbano, servicios especializados, centro comercial, supermercados, pequeños talleres y almacenes de venta

Terciario o servicios: Comercios nocturnos y centros de convenciones

Logística e industrial: Almacenamiento y embalaje de productos no contaminantes

structura transporte: Gasolineras e instalaciones complementarias y terminal de transporte terrestre e instalaciones complementarias

ZM2
Normativa 31 Normativa

VOCACIÓN DEL USO

Residencial: Vivienda multifamiliar

Comercial: Central de abastos y bodega de acopio (mayoristas)

Terciario o servicios: Oficinas y entidades bancarias, restaurantes, bares y cafeterías, hoteles y alojamientos, espectáculo y ocio (cines, discotecas) comercios nocturnos, servicios al turismo

Logística e industrial: Industria de bajo impacto

Institucional: Oficinas de gobierno/alcaldía, oficinas de administración local, estaciones de policía, bomberos, y otras dotaciones, centros penitenciarios y otras dotaciones de gran impacto

Educativos: Guardería y educación primaria, educación media y superior

Asistencial: Hospitales, centros y unidades de salud asistencia social (asilos, orfanatos, etc.)

Cultural: Bibliotecas, centros comunitarios, centros cívicos, museos e instituciones religiosas

Deportivo: Grandes centros deportivos especializados, canchas, polideportivos, estadios y piscinas

USOS PERMITIDOS

Residencial: Vivienda unifamiliar (aislada, adosada o en hilera)

Comercial: Comercio vecinal, comercio urbano, servicios especializados, centro comercial, supermercados, pequeños talleres y almacenes de venta

Terciario o servicios: Comercios nocturnos y centros de convenciones

Logística e industrial: Almacenamiento y embalaje de productos no contaminantes, talleres de serv

Infraestructura transporte: complementarias, gasolineras e instalaciones complementarias y terminal de transporte terrestre e instalaciones complementarias

Parque Lefevre Diseño IX | 2024

Parque Lefevre Diseño IX | 2024

ZONA MIXTA DE ALTA INTENSIDAD

ZM5
32

1H-REMHT

RESIDENCIAL MONUMENTAL HISTÓRICO TURÍSTICO

USOS PERMITIDOS

Construcción, o modificación de edificios destinados al uso residencial de mediana densidad o de aquellos destinados al hospedaje público de la categoría de hostales, pequeños comercios vecinales o de barrio, venta de artesanía como uso complementario

1H-E-12

PATRIMONIO Y CONSERVACIÓN ARQUEOLÓGICA

Normativa 33 Normativa

USO DE SUELO

Analizar el contexto social, económico y cultural de la comunidad es esencial para comprender las necesidades y aspiraciones de los residentes.

Identificar posibles conflictos entre la normativa existente y la realidad en el terreno.

Analizar la actividad económica local, empleo, comercio y servicios disponibles.

Identificar a los actores clave: autoridades municipales, desarrolladores, propietarios de tierras, organizaciones comunitarias. Evaluar cómo la ocupación del suelo afecta el medio ambiente: deforestación, pérdida de hábitats, calidad del aire y agua. Buscar soluciones sostenibles que minimicen el impacto negativo.

05
Parque Lefevre Diseño IX | 2024
34
Parque Lefevre Diseño IX | 2024

BALDÍO JARDÍN DE PAZ RESIDENCIAL

un área total de 1,391,189.03 m INSTITUCIONAL

COMERCIAL Mapa de uso de suelo Mapa de análisis de uso de suelo dentro del área del proyecto. El terreno posee M. HISTÓRICO
35
2 CUERPOS DE AGUA Mapa de Uso de Suelo

ANÁLISIS DE USO DE SUELO

AÁREA DE ESTUDIO

El área de estudio cuenta con una dimensión de 1,391,189.03 m2 . El mismo actualmente cuenta con un 38% de área residencial, 6% comercial, 3% institucional, 26% de Jardín de Paz, 20% de Conjunto Histórico, 5% de Cuerpos de Agua y 2% de Lote Baldío.

CResidencial ComercialInstitucionalJardíndePazConjuntoHistóricoCuerposdeAgua Baldío

RESIDENCIAL

El área residencial abarca un metraje de 534,730.45m2, lo cual representa el 38% del área de estudio.

Residencial ComercialInstitucionalJardíndePazConjuntoHistóricoCuerposdeAgua Baldío

Parque Lefevre Diseño IX | 2024

Parque Lefevre Diseño IX | 2024

0 10 20 30 40
0 5 10 15 20 25 30
211,209.975,81 m² 211,209.975,81 m² 2
36

ANÁLISIS DE USO DE SUELO

IEl área institucional abarca un metraje de 19,286.97m2, lo cual representa el 3% del área de estudio. La misma esta conformada por 4 escuelas, entre ellas la Academia Bilingue Dajen, Escuela Juan B. Sosa y el Instituo William H. Kilpatrick. Además, esta conformado por 6 centros religiosos, entre iglesias y conventos.

CEl área comercial abarca un metraje de 87,273.67m2, lo cual re presenta el 6% del área de estudio.

INSTITUCIONAL COMERCIAL 0 5 10 15 20 25 30 Residencial
Baldío 0 5 10 15 20 25 30 Residencial ComercialInstitucionalJardíndePazConjuntoHistóricoCuerposdeAgua Baldío
ComercialInstitucionalJardíndePazConjuntoHistóricoCuerposdeAgua
37
Análisis Uso Suelo Análisis Uso de Suelo

ANÁLISIS DE USO DE SUELO

JARDÍN DE PAZ

El área del Cementerio Jardín de Paz abarca un 26% del área de estudio, contando con un metraje de 363,323.92m2.El mismo fue fundado en 1950.

Residencial ComercialInstitucionalJardíndePazConjuntoHistóricoCuerposdeAgua Baldío

MONUMENTO HISTÓRICO

El area de estudio se caracteriza por el Conjunto de Monumento Histórico el cual posee un metraje de 276,966.16m2, lo cual abarca el 20% del terreno.

| 2024

Residencial ComercialInstitucionalJardíndePazConjuntoHistóricoCuerposdeAgua Baldío

J
M
0 5 10 15 20 25 30
0 5 10 15 20 25 30
Parque Lefevre Diseño IX | 2024
38
Parque Lefevre Diseño IX

ANÁLISIS DE USO DE SUELO

CUERPOS DE AGUA

En el área de estudio se encuentran cuerpos de agua, como la cuenca de rio Abajo. Muchas de las viviendas se hicieron a la orilla del río. Los pobladores tomaron parte de esas tierras para ello (llanuras de inundación). Los cuerpos de agua abarcan un 5% del terreno.

LOTE BALDÍO

El aréa verde o baldío dentro del terreno posee un metraje de 33,954.9m2, lo cual representa el 2% del terreno.

0 5 10 15 20 25 30 Residencial
0 5 10 15 20 25 30 Residencial
A B
ComercialInstitucionalJardíndePazConjuntoHistóricoCuerposdeAgua Baldío
ComercialInstitucionalJardíndePazConjuntoHistóricoCuerposdeAgua Baldío
39
Análisis Uso Suelo Análisis Uso de Suelo

TRANSPORTE

MiBus es el sistema de transporte público masivo de buses que opera en los distritos de Panamá y San Miguelito. En el área de estudio podemos encontrar dos rutas, estas son, Panamá Viejo-Av Balboa-ZP 5 de Mayo y Albrook-Cincuentenario-Panamá Viejo-El Balboa. Ambas son rutas complementarias del sector.

La tendencia actual apunta hacia la integración de diferentes sistemas de transporte, la adopción de tecnologías inteligentes y la búsqueda de soluciones más sostenibles y eficientes. Se espera que el transporte público se vuelva aún más relevante en el futuro, como una alternativa indispensable para la movilidad urbana sostenible.

05
Parque Lefevre Diseño IX | 2024 Ruta Albrook-Cincuentenario-Panamá Viejo-El Balboa Ruta Albrook-Cincuentenario-Panamá Viejo-El Balboa Ruta Panamá Viejo-Av Balboa-ZP 5 de Mayo Ruta Panamá Viejo-Av Balboa-ZP 5 de Mayo
40
Parque Lefevre Diseño IX | 2024

TRANSPORTE A FUTURO

Dentro de los sitemas de transporte publico en la naciòn encontramos Metro Panamá la cual se encarga de dirigir toda la red vial y mantenimiento del metro en la ciudad. Por esto, a lo largo de los años han presentado diversas red maestras que en base a nuestra área de estudio mantienen un estación en el área frente al Jardín de Paz.

41
Análisis Transporte Análisis Transporte

SERVIDUMBRES

El objetivo de este trabajo es analizar una propuesta de intervención urbana en el barrio al cual pertenece el sitio histórico, que busca mejorar las condiciones de vida de sus habitantes, así como integrar y valorizar el patrimonio histórico de Panamá Viejo. Para ello, se revisará el marco teórico y normativo de la intervención urbana, se describirá el contexto socioeconómico y espacial del barrio.

Se presentará la propuesta de intervención y se evaluarán sus potenciales beneficios e impactos. Se espera que este trabajo contribuya al debate sobre el rol de la intervención urbana como herramienta para la preservación y revitalización del patrimonio histórico en las ciudades latinoamericanas.

06
Parque Lefevre Diseño IX | 2024
42
Parque Lefevre Diseño IX | 2024

El objetivo de este trabajo es analizar una propuesta de intervención urbana en el barrio al cual pertenece el sitio histórico,

2021 43
PLOT 2021
Mapa PLOT
Mapa

CONECTIVIDAD

En un contexto desigual se encuentra nuestra zona de estudio, siendo un lugar desfavorable en un centro histórico como lo es Panamá viejo. Las comunidades que se asentaron tienen una de las peores realidades de conectividad vial y peatonal del centro de la ciudad. Es importante resaltar de la misma forma la relación entre cementerio y contexto también deja mucho que desear.

Parque Lefevre Diseño IX | 2024
44
Parque Lefevre Diseño IX | 2024
Mapa MIVIOT 2003 45 Mapa MIVIOT 2003

Avenida

Cincuentenario

Av. 1a

Av. 2a

Av. 3a

Av. 4a

Av. 5a

Av. 6a

Av. 7a

Av. 8a

Av. 6 Sur

Av. 6 1/2 Sur

Av. 7 Sur

Av. 8 Sur

Calle A Sur

Calle Central

Calle 90 C

Este

Calle 98 C

Este

Calle 85 B

Este S 12.00 S 10.00S 5.00

Calle 88 C Este

Calle 91 C Este

Calle Morgan

Av. Pedro Arias

Dávila

Calle Norte

Calle 92 C

Este

Calle 5a

S 15.00 S 20.00 S 12.50
Calle B Calle D Calle E Calle Anayansi Parque Lefevre Diseño IX | 2024 EJEMPLO DE SECCIÓN
46
Parque Lefevre Diseño IX | 2024 Avenida Principal C. Principales en Urb. C. Secundarias C. Terciarias y Veredas
47
Mapa Jerarquías de Calles Mapa Jerarquías de Calle

IDAAN

La planificación adecuada del uso de suelo debe considerar la ubicación estratégica de fuentes de agua y la infraestructura necesaria para distribuir el agua a los hogares. La zonificación debe garantizar que las áreas residenciales tengan acceso cercano a puntos de abastecimiento de agua. El acceso al agua potable está estrechamente relacionado con la sostenibilidad ambiental. Una gestión adecuada de los recursos hídricos protege los ecosistemas locales y asegura la disponibilidad a largo plazo.

Parque Lefevre Diseño IX | 2024
48
Parque Lefevre Diseño IX | 2024 Línea de tuberías de agua potable y colectora de residuos
49
Mapa IDAAN 2020 Mapa IDAAN 2020

ETESA

Una comunidad con un servicio eléctrico estable atrae inversiones y fomenta el crecimiento económico local. La ubicación estratégica de infraestructuras eléctricas debe considerarse en la planificación urbana. Esto incluye subestaciones, líneas de transmisión y distribución. La planificación debe promover fuentes limpias y eficientes, como energía solar o eólica.

La infraestructura eléctrica debe diseñarse para minimizar la huella ecológica y proteger áreas naturales sensibles.

Parque Lefevre Diseño IX | 2024
50
Parque Lefevre Diseño IX | 2024

Localización de líneas de alimentación y postes de luz..

51
Mapa Elaboración Propia Mapa Elaboración Propia

PARQUE LEFEVRE

INTERVENCIÓN URBANA

El objetivo de este trabajo es analizar una propuesta de intervención urbana en el barrio al cual pertenece el sitio histórico, que busca mejorar las condiciones de vida de sus habitantes, así como integrar y valorizar el patrimonio histórico de Panamá Viejo. Para ello, se revisará el marco teórico y normativo de la intervención urbana, se describirá el contexto socioeconómico y espacial del barrio.

Se presentará la propuesta de intervención y se evaluarán sus potenciales beneficios e impactos.

Se espera que este trabajo contribuya al debate sobre el rol de la intervención urbana como herramienta para la preservación y revitalización del patrimonio histórico en las ciudades latinoamericanas.

Parque
Diseño IX | 2024 52
Lefevre
CAPÍTULO 2
53
Vista Aérea Volumétrica

CAPÍTULO

54
Parque Lefevre Diseño
IX | 2024
3

GRUPO 1

Ashley Alpízar

Diseñar un proyecto que fomente la interacción social, la cultura y la vida comunitaria entre los residentes. Áreas comunes atractivas: Crear plazas, parques infantiles, zonas de ocio y espacios multifuncionales que propicien el encuentro y la convivencia entre los vecinos. Mezcla de usos: Integrar comercios, restaurantes, cafés, oficinas y espacios culturales dentro del proyecto, generando un ambiente dinámico y diverso.

Ashley Gálvez

Crear un entorno que promueva el bienestar físico y mental de los residentes, a la vez que minimiza el impacto ambiental del proyecto. Amplias áreas verdes: Incorporar parques, jardines y espacios verdes para fomentar la actividad física al aire libre, el contacto con la naturaleza y la relajación. Opciones de movilidad sostenible: Priorizar el uso de la bicicleta, el transporte público y los desplazamientos a pie, creando infraestructura adecuada y segura.

Generar oportunidades de negocio, empleo y fortalecer la economía del barrio o la zona donde se ubica el proyecto.

Locales comerciales para emprendedores: Ofrecer espacios comerciales a precios accesibles para pequeños empresarios y emprendedores locales.

Priorizar la contratación de mano de obra local: Fomentar la contratación de trabajadores de la zona durante la construcción y operación del proyecto.

55 Grupo 1
Paola Espinosa

CONCEPTO

Un proyecto arquitectónico integral que combina áreas verdes, áreas residenciales y áreas comerciales se caracteriza por su enfoque en la creación de espacios armónicos y sostenibles que satisfagan las necesidades d e la comunidad de manera equilibrada. Este tipo de proyectos busca optimizar el uso del suelo y promover la interacción social, fomentando un estilo de vida saludable y vibrante.

ÁREAS VERDES

Función: Pulmones verdes que brindan oxígeno, regulan la temperatura y ofrecen espacios de recreación y esparcimiento para los residentes.

Características: Diseño paisajístico atractivo, variedad de especies vegetales, áreas de juegos infantiles, zonas para caminar o andar en bicicleta, y mobiliario urbano adecuado.

Ubicación estratégica: Integración en todo el proyecto, creando corredores verdes, parques centrales, jardines comunitarios y áreas verdes privadas.

ÁREAS RESIDENCIALES

Función: Viviendas que satisfagan las necesidades de alojamiento de la comunidad, considerando diferentes tipos de familias y estilos de vida.

Características: Diversidad de opciones habitacionales, desde apartamentos hasta casas unifamiliares, con diseños modernos y funcionales que aprovechen la luz natural y la ventilación. Amenidades: Áreas comunes como piscinas, gimnasios, salas de reuniones y zonas de juegos para niños, que promuevan la interacción social entre los residentes.

ÁREAS COMERCIALES

Función: Ofrecer una variedad de servicios y comercios que satisfagan las necesidades diarias de los residentes, evitando la necesidad de desplazarse a grandes distancias.

Características: Mezcla equilibrada de tiendas, restaurantes, cafés, oficinas y espacios culturales, creando un ambiente dinámico y atractivo. Diseño accesible: Fácil acceso para peatones, ciclistas y personas con movilidad reducida, fomentando la circulación fluida y segura dentro del proyecto.

56
Parque Lefevre Diseño IX | 2024

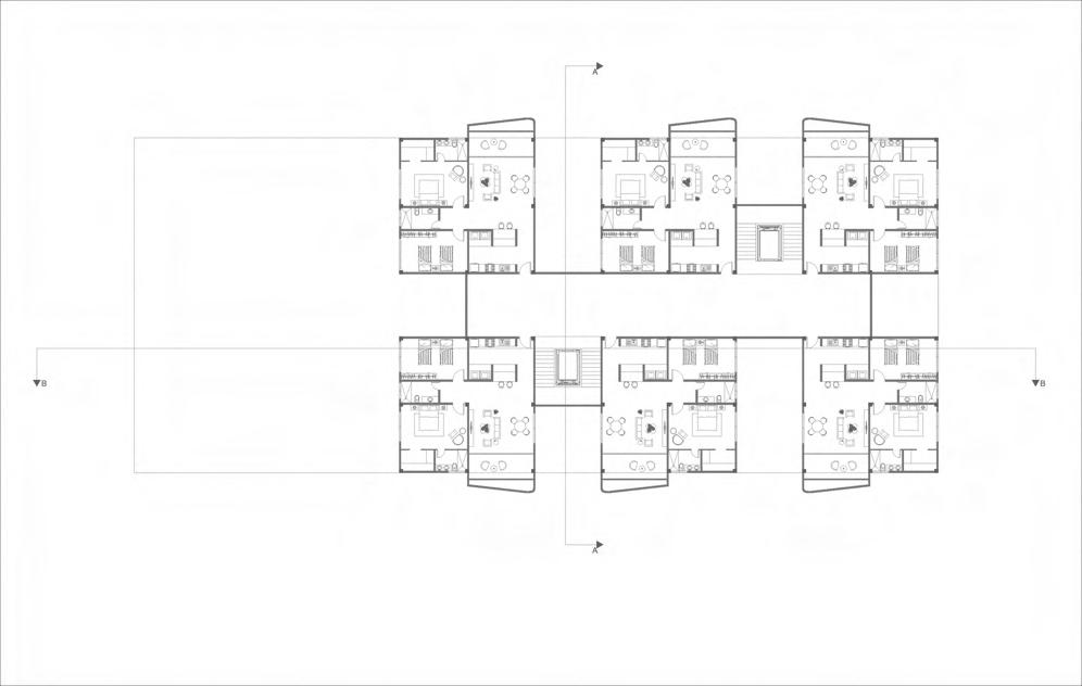
MASTER PLAN

Crear una obra maestra arquitectónica que combine a la perfección la vida moderna con el rico patrimonio cultural del país, fomentando un sentimiento de identidad y orgullo entre sus residentes y promoviendo al mismo tiempo prácticas sostenibles y la gestión medioambiental.

Combinación residencial: Proporcionar una amplia gama de opciones residenciales, incluyendo apartamentos, casas adosadas y viviendas unifamiliares, para atender a una variedad de estilos de vida y necesidades.

Experiencias culturales: Integrar experiencias culturales en el proyecto, como museos, galerías de arte, talleres tradicionales y espacios para representaciones.

Infraestructuras sostenibles: Incorporar infraestructuras sostenibles, como sistemas de recogida de agua de lluvia, paneles de energía solar y tejados verdes.

57

Proporciona una visión general del proceso de desarrollo de un proyecto arquitectónico integral que incluye residencias, áreas verdes y áreas comerciales.

58
Parque Lefevre Diseño IX | 2024

DETALLES

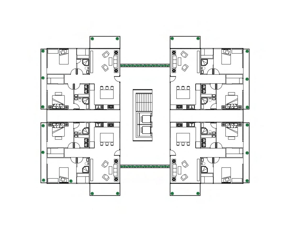
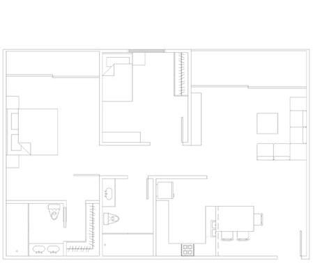
Distribución General: 1.

El apartamento cuenta con una distribución cuadrada para aprovechar al máximo el espacio.

Las áreas sociales, como la sala de estar, el comedor y la cocina, cuenta con dos recámaras y dos balcones. pueden ubicarse en un espacio integrado y abierto para crear una sensación de amplitud y fluidez.

Arquitectónico, apto 2 recámaras 100.43 m 59 Detalles
100.43
Planta
Planta Arquitectónica, apto. 2 recámaras
m

DETALLES

Las áreas comunes y sociales, como la sala de estar, el comedor y la cocina, podrían estar integradas en un espacio abierto para fomentar la interacción y la amplitud visual. Recámaras: 1.

Tres recámaras ubicadas estratégicamente para ofrecer privacidad a los residentes.

La recámara principal puede contar con un baño privado y un vestidor, mientras que las otras dos recámaras pueden compartir un baño adicional.

Cada recámara podría tener espacio para una cama de tamaño queen o matrimonial, mesitas de noche y armarios empotrados para almacenamiento. Baños: 2.

Dos baños completos, uno de ellos en suite con la recámara principal, equipados con ducha, lavamanos e inodoro.

El segundo baño podría ubicarse cerca de las otras dos recámaras y también incluir ducha, lavamanos e inodoro.

Planta Arquitectónica, apto. 3 recámaras 135.29 m

Planta Arquitectonica, apto 3 recámaras 135.29m
60
Parque Lefevre Diseño IX | 2024

DETALLES DE PLANTAS

PLANTA ARQUITECTONICA DE APARTAMENTOS

61 Detalles

DETALLES DE PLANTAS

PLANTA ARQUITECTONICA DE COMERCIOS

PLANTA ARQUITECTONICA DE ESTACIOMAMIENTOS

62
Parque Lefevre Diseño IX | 2024

PLANTA ARQUITECTONICA

SECCIÓ LONGITUDINAL

63 Secciones
64
Parque Lefevre Diseño IX | 2024
65
Vistas Generales
66
Parque Lefevre Diseño
IX | 2024
CAPÍTULO 3

GRUPO 2

Daniela Carrasco

Sirin Omais

Nos hemos dedicado a diseñar un entorno que sea funcional y que también fomente la interacción humana y el bienestar social. Aspiramos a crear un sentido de comunidad sólido y acogedor entre los residentes.

En este proyecto, hemos querido romper las barreras entre lo urbano y lo natural, ofreciendo a los residentes la oportunidad de disfrutar de todas las comodidades de la vida moderna en armonía con un entorno caminable.

Nuestra visión es crear un espacio que vaya más allá de lo convencional, donde la salud y el bienestar sean los pilares fundamentales. Con una cuidadosa integración se promueve un estilo de vida activo y saludable.

67 Grupo 2
Rebeca Rosas

CONCEPTO

RIVER INT HOUSE CLUB

"El concepto de 'River Int House Club' se basa en la convergencia de tres elementos clave: la elegancia de la vida residencial exclusiva, la intimidad de un hogar personalizado y las comodidades de un club de élite. Este proyecto redefine el concepto de vida urbana al ofrecer una experiencia residencial única que fusiona la exclusividad de un estilo de vida contemporáneo con la vida saludable y sostenible. El proyecto está diseñado para ser mayormente caminable, fomentando un estilo de vida activo y reduciendo la dependencia del automóvil.

INSPIRACIÓN

Inspirado en la arquitectura moderna y las demandas del estilo de vida saludable, el diseño de 'River Int House Club' se caracteriza por líneas suaves y formas orgánicas que se integran armoniosamente con el entorno circundante. Cada espacio ha sido diseñado para ofrecer espacios amplios, luminosos, libres y verdes. Buscando proporcionar así un refugio tranquilo y sereno en medio del bullicio urbano.

CRITERIOS DE DISEÑO

ARMONÍA

INTEGRACIÓN

RITMO

VEGETACIÓN

LUZ NATURAL

COLORIMETRÍA Y MATERIALIDAD

CONVIVENCIA

TRANQUILIDAD

VENTILACIÓN

FLEXIBILIDAD

MOVILIDAD REDUCIDA

63
Grupo 2- River Int House Club Diseño IX | 2024 Placas de piedra natural Tableros de madera Paneles de Vidrio DVH Placas de concreto
68
Parque Lefevre Diseño IX | 2024

LEYENDA

Edificios Residenciales

Zona Peatonal

Ciclovías

Caminos internos con jardin

Áreas verdes con zonas de descanso

Área de Estacionamientos

Entrada Principal Jardín Real

Entrada secundaria Fuente

Área Central de esparcimiento

Piscina/ Eventos

Zona de mercadito

Club Sport

"Vista Isométrica del Proyecto 'River Int House Club”En primer plano, se destacan las áreas verdes meticulosamente diseñadas, que ofrecen un oasis de tranquilidad en medio del entorno urbano. Los jardines y parques invitan a la relajación y la conexión con la naturaleza, mientras que las pasarelas peatonales permiten explorar el paisaje con comodidad. En el corazón del complejo, se encuentra el centro de recreación y bienestar, se puede disfrutar de áreas de entretenimiento y espacios de encuentro social.

Int House Club Diseño IX | 2024 64
Grupo 2- River
1 2 3 4 5 6 7 8 9 10 11 12
69

MASTER PLAN

RIVER INT HOUSE CLUB

RESIDENCIAS

Se destacan por la combinación de dos tipologías distintas y los edificios escalonados, cada nivel cuenta con terrazas y balcones, garantizando vistas agradables. Ofrece un ambiente acogedor y moderno a sus residentes. En la tipología 1, cada unidad consta de tres habitaciones y la tipología 2 con dos habitaciones por unidad. En total cada una de las tipologías se distribuyen en cuatro edificios residenciales, Ambas tipologías se distinguen por la integración de espacios verdes, donde la vegetación se equilibra de manera armoniosa, creando un entorno tranquilo y natural para los residentes.

AMENIDADES

Se ofrece un hogar excepcional y también una amplia gama de amenidades al aire libre que enriquecen la experiencia de vida de sus residentes. Desde espacios deportivos hasta áreas de recreación para niños y jóvenes, el complejo brinda oportunidades para mantener un estilo de vida activo y saludable. Además, se organizan mercaditos y eventos comunitarios al aire libre, que no solo fomentan la interacción entre vecinos, ofrecen la posibilidad de disfrutar de la cultura local y la gastronomía en un ambiente relajado y vibrante. Las amenidades se convierten en puntos de encuentro y disfrute.

Int House Club Diseño IX | 2024 65
Grupo 2- River
Club Sport Fachada de residencias
70
Parque Lefevre Diseño IX | 2024

LEYENDA

Edificio Residencial Modelo 1 (130M2)

Edificio Residencial Modelo 2 (100M2)

Zona Peatonal

Ciclovías

Caminos internos con jardin

Áreas verdes con zonas de descanso

Área de Estacionamientos

Entrada Principal Jardín Real

Entrada secundaria Fuente

Área Central de esparcimiento

Piscina/ Eventos

Zona de mercadito

Club Sport

"Master Plan de River Int House Club" En esta imagen del master plan de River Int House Club, se aprecia en plano 2D toda la infraestructura que conforma el área residencial propuesta. Desde zonas verdes hasta áreas de recreación, se puede observar cómo cada elemento se complementa entre sí, siguiendo una forma circular que promueve la armonía y la interacción comunitaria. Esta vista panorámica ofrece una visión completa de la meticulosa planificación detrás de este exclusivo desarrollo residencial.

Grupo 2- River Int House Club Diseño IX | 2024 66
1 2 3 4 5 6 7 8 9 10 11 12 13
71 Master Plan

RENDERS

RIVER INT HOUSE CLUB

Trabajo colaborativo

Daniela Carrasco - Sirin Omais- Rebeca Rosas

INFORMACIÓN

Tipología: Residencial

Software: Sketchup + Lumion + Photoshop

DESCRIPCIÓN

Los renders en 3D del proyecto River Int House Club representan la culminación de una visión arquitectónica excepcional, donde la fusión entre diseño innovador y funcionalidad alcanza su máximo esplendor. Cada render captura con precisión los detalles meticulosamente planificados de este desarrollo residencial único. Desde el juego de niveles escalonados hasta la cuidadosa integración de espacios verdes y áreas de recreación, cada imagen transporta al espectador a un mundo de lujo y sofisticación. Se muestra la belleza estética del proyecto y transmite su funcionalidad y comodidad.

VIDEO/ RENDER DIGITAL

Grupo 2- River Int House Club Diseño IX | 2024 67
72
Parque Lefevre Diseño IX | 2024

“Zona de Esparcimiento en Residencias River Int House Club"Esta cautivadora vista captura la belleza y la tranquilidad de la piscina, rodeada de vegetación y espacios diseñados para el descanso y la relajación. Desde cómodas tumbonas hasta áreas sombreadas, cada rincón ha sido cuidadosamente planificado para brindar a los residentes un refugio de paz y bienestar. Se refleja el compromiso de la creación de espacios que fomenten el equilibrio entre el cuerpo y la mente en medio del ajetreo urbano.

Renders

Grupo 2- River Int House Club Diseño IX | 2024 68
73

del

con la integración armoniosa con la naturaleza. La fachada acogedora se fusiona armoniosamentea creando un ambiente de serenidad y conexión con el entorno natural. Cada detalle ha sido planificado para minimizar el impacto ambiental y promover la eficiencia energética, desde el uso de materiales hasta la incorporación de elementos de diseño que maximizan la ventilación natural y la iluminación.

"Armonía Natural: Fachada en Residencias River Int House Club". Se destaca el compromiso proyecto
69
Grupo 2- River Int House Club Diseño IX | 2024
74
Parque Lefevre Diseño IX | 2024

DETALLES

RIVER INT HOUSE CLUB

HABITACIÓN 130 METROS HABITACIÓN 100 METROS

Con una distribución generosa este apartamento de 130 metros cuadrados ofrece un espacio amplio y versátil para disfrutar en familia. Con tres habitaciones, cocina abierta, área de estar, pantry y lavanderia permite un espacio versátil que ofrecen soluciones ingeniosas para adaptarse a las necesidades cambiantes de la vida moderna. Los ventanales permiten la entrada de luz natural, creando una atmósfera luminosa y serena en todo el espacio.

Este encantador apartamento de 100 metros cuadrados ofrece un diseño funcional y acogedor para toda la familia. La cocina, moderna y la sala de estar es el corazón del hogar con su luminosidad natural y espacio amplio, invita a la tranquilidad y la convivencia. Cuenta con dos habitacione, con espacio suficiente para descansar y relajarse. La lavandería integrada como mobiliario proporciona comodidad adicional en el espacio.

Pantry

Lavanderia

1

1

Planta arquitectónica “Apartamento Tipología 2 (100 metros cuadrados)” Planta arquitectónica “Apartamento Tipología 1 (130 metros cuadrados)”

Cocina
Habitacion Deluxe
Walking Closet
Estandar
Balcón
Habitaciones
1 Baño
Grupo 2- River Int House Club Diseño IX | 2024 70 1 2 3 4 5 6 7 8 9 10 Sala Comedor Cocina Pantry Lavanderia 1 Habitacion Deluxe Walking
2
Estandar 2 Baño Balcón 1 2 3 4 5 6 7 8 9 10 Sala
75 Detalles
Closet
Habitaciones
Comedor

"Organización Orgánica: Distribución de Apartamentos en Residencias River Int House Club" siguiendo una forma orgánica semi circular que refleja el enfoque moderno y vanguardista del proyecto.

"Estacionamientos en Residencias River Int House Club" Destaca la eficiencia y la amplitud, mostrando cómo se organizan en dos bloques grandes con capacidad suficiente para atender las necesidades de los residentes.

“Plantas Arquitectónicas River Int House Club Escalonada” Aplica para Tipología 1 y Tipología 2.

71
Grupo 2- River Int House Club Diseño IX | 2024
NIVEL PB
PRIMER ALTO SEGUNDO ALTOTERCER ALTO CUARTO ALTO QUINTO ALTOSEXTO ALTO
Y
| 2024 76
Parque Lefevre Diseño
IX

"Sección Longitudinal de Residencias River Int House Club". Destaca el ingenioso escalonado de las edificaciones, que se aprecia claramente en esta vista, agregando un aspecto dinámico y moderno al conjunto residencial. Además, se observa cómo los estacionamientos, dispuestos de manera continua, forman un solo bloque para ambas torres, ofreciendo una solución eficiente y conveniente para el acceso vehicular de los residentes.

"Sección Transversal de Residencias River Int House Club". Se revela en plano 2D la intrincada disposición de las residencias en el proyecto River Int House Club. Se aprecia claramente el ingenioso juego de niveles entre las torres, logrado gracias al diseño escalonado, que añade profundidad y dinamismo al conjunto arquitectónico. Además, se observa cómo los estacionamientos, estratégicamente ubicados, conectan ambas torres, proporcionando acceso conveniente y fluido a los residentes.

Grupo 2- River Int House Club Diseño IX | 2024 72
77
Plantas y Secciones
78
Parque Lefevre Diseño
IX | 2024
CAPÍTULO 5

GRUPO 3

Talia Chein

Este trabajo se realizó con una visión más allá de solo el turismo, se adaptó de tal forma que sea un recorrido histórico sin el uso de carros, uniendo el proyecto con la naturaleza, se buscó una solución moderna para conectar el futuro con la historia.

El objetivo se trata de desarrollar un proyecto residencial innovador y sostenible que maximice el uso del espacio disponible, ofreciendo unidades habitacionales cómodas y modernas junto con amenidades de alta calidad y áreas recreativas diseñadas para fomentar el bienestar y la convivencia de los residentes.

Lucía Silvera Ana Morales

Para este proyecto, buscamos crear espacios que satisfagan las necesidades de las personas de la comunidad. Queremos aprovechar el espacio al máximo y ofrecer espacios recreativos, volumenes diferentes y gran cantidad de áreas verde y vegetación

Saúl Mizrachi

El área de estudio tiene un alto potencial para el turismo, por eso, la visión para este proyecto va dirigido para fortalecer dicha área. Para lograrlo brindamos nuevo usos, flujo y nuevas actividades a las áreas ya existentes. Diseñamos 2 modelo de edificio que se adapten a las necesidades de los usuarios y se unifique con el contexto y el turismo, buscando atraer nuevos usuarios y priorizando la peatonalidad.

79 Grupo 3

A

ÁREAS RECREATIVAS

Dentro de la manzana se encuentran diferentes espacios con bancas, juegos infantiles y spots para fotografías donde pueden realizar distintos eventos con invitados locales o internacionales para los residentes y personas del área, invitando así un ambiente armónico, dando a resplandecer el área turística y comercial, ayudando así a que las personas se interesen más en la cultura panameña

ÁREAS VERDES

A CONCEPTO

No solo logramos enfocarnos en el área comercial y turística, sino que implementamos de la mejor forma áreas verdes para promover las actividades ecofriendly y sanas para el cuerpo humano, se mantuvo un espacio verde donde se pueden encontrar canchas de fútbol y baloncesto, grandes aceras para caminar por toda la manzana y espacios especiales para hacer ejercicio.

FLUJO RESIDENCIAL

La manzana en general está diseñada para ser t otalmente conectada, manteniendo un flujo asimétrico que sujeta todas las áreas que ofrece este proyecto, resaltando la importancia de el bienestar de los residentes y la diferentes funcionalidades de las aceras, debido a que se utilizan como generadores de espacios recreativos y conexión con las residencias. El máster es el resultado de visiones verdes y funcionales.

F
80
Parque Lefevre Diseño IX | 2024
81 Concepto
VISAS DEL MATER Y AREAS RECREACTIVAS

MASTER PLAN

En este proyecto, se nos asigno la manzana 2, la cual esta en el centro del conjunto residencial. Para esta, se busca poder ofrecerles a los habitantes soluciones habitacionales eficientes y funcionales, que integren el entorno con el interior de cada una de estas edificaciones.

Se buscó un resultado más ecofriendly al evitar el uso interno de carros o buses, dando espacio al uso de bicicletas, a su vez, se buscó un espacio central donde muestre unión entre las edificaciones implantadas en la manzana y turistas interesados en el espacio verde, incluyendo comercios en las PB de las edificaciones, permitiendo un flujo

82
Parque Lefevre Diseño IX | 2024

EN ESTA VISTA EN PLANTA, PODEMOS VER DE MANERA DETALLADA ELMASTER PLAN COMPLETO Y SU DSITRIBUCIÓN DE ESPACIOS.

83 Master Plan

PLANTAS EDIFICIO A

PLANTAARQUITECTÓNICA PB

ARQUITECTÓNICA NIVEL 004-006

PLANTA ARQUITECTÓNICA NIVEL 001-003

PLANTA PLANTA ARQUITECTÓNICA AZOTEA
84
Parque Lefevre Diseño IX | 2024

PLANTAS EDIFICIO B

PLANTA ARQUITECTÓNICA PB

PLANTA ARQUITECTÓNICA NIVEL 002

PLANTA ARQUITECTÓNICA TORRE 1 NIVEL 001

PLANTA ARQUITECTÓNICA TORRE 2 NIVEL 001

85 Plantas

PLANTAS EDIFICIO B

PLANTA ARQUITECTÓNICA NIVEL 003-004

PLANTA ARQUITECTÓNICA NIVEL 005-006

PLANTA ARQUITECTÓNICA NIVEL 007

86
Parque Lefevre Diseño IX | 2024

ELEVACIONES Y SECCIÓN

EDIFICIO A

ELEVACIONES Y SECCIÓN

EDIFICIO B

ELEVACIÓN FRONTAL

ELEVACIÓN LATERAL IZQUIERDA

ELEVACIÓN FRONTAL

ELEVACIÓN LATERAL IZQUIERDA

ELEVACIÓN POSTERIOR

ELEVACIÓNLATERAL DERECHA

ELEVACIÓN POSTERIOR

DERECHA

SECCIÓN TRANSVERSAL

SECCIÓN TRANSVERSAL

ELEVACIÓNLATERAL
87
Plantas y Secciones
88
Parque Lefevre Diseño IX | 2024
89
Generales
Vistas

CAPÍTULO

90
Parque Lefevre Diseño IX
| 2024
6

GRUPO 4

Pía Martez

Para realizar este proyecto nos unimos como equipo para llevarlo a cabo. Comenzamos analizando nuestro lote, utilizando lo aprendido en diseños arquitectónicos pasados. Después de muchos cambios logramos desarmar y amar la sincronía de él. Aprendimos que no siempre debemos seguir un patrón, es más salirnos de él.

Nicole Guerrero

El objetivo de este trabajo es analizar una propuesta de intervención urbana en el barrio al cual pertenece el sitio histórico, que busca mejorar las condiciones de vida de sus habitantes

Jaramillo

El concepto de este proyecto era crear un diseño que mezclara lo rural con lo urbano, en el cual se crearon espacios verdes que ayudaran con la ambientación de este tanto en el exterior como en el interior de los edificios, ademas queríamos un diseño arquitectónico que fuese mas allá de lo habitual dandole un toque moderno al terreno en si.

91 Grupo 4
Jesús

RCONCEPTO

RECREACIÓN

Para nosotros era sumamente importante tomar en cuenta las áreas comunes en el proyecto. No solamente para incluir las áreas verdes; más bien crear zonas que inviten a los residentes a integrarse entre ellos. Por lo tanto, dentro de este proyecto encontrarán cada edificio colindando con parques.

PPEATONAL

Sin dejar a un lado el automóvil, ya que es algo esencial en nuestras vidas, queríamos encontrar esa solución manteniendo los automóviles dentro del proyecto, pero sin tenerlos interrumpiendo el paso internamente, por lo que decidimos crear estacionamientos soterrados.

COMERCIO

CAl tener el proyecto completamente peatonal tenemos que conseguir algo además de los parques, que im pulse al peatón a moverse en su barrio. Comercios en planta baja de los edificios, también incluyendo una pequeña plaza donde se encuentran comercios de mayor tamaño.

92
Parque Lefevre Diseño IX | 2024
93 Concepto

MASTERPLAN

El espacio esta compuesto por una pequeña ciudad de edificios de planta baja comercial y cuatro pisois de apartamentos, rodeando zonas verdes de recreaci{on infantil, amplias calles peatonales, una plaza comercial y una vía con distintos usos alrededor de toda la manzana

94
Parque Lefevre Diseño IX | 2024
95 Master Plan

PLANTA DE ESTACIONAMIENTOS

La manzana completa cuenta con un piso subterráneo de estacionamientos ubicados estratégicamente cerca del acceso interior a cada edificio, pero cada uno de estos conectados en un solo espacio con opción de acceso desde ambas calles colindantes

96
Parque Lefevre Diseño IX | 2024

PLANTAS EDIFICIO A 3 RECÁMARAS

Cada apartamento tiene un metraje de 130m2, una recámara principal con baño interno y dos recámaras secundarias, un baño de visitas, cocina de concepto abierto, sala y comedor

97 Plantas

PLANTAS EDIFICIO B 2 RECÁMARAS

Cada apartamento tiene un metraje de 130m2, una recámara principal con baño interno y un recámara secundaria, ambas con balcón, un baño de visitas, cocina de concepto abierto con comedor incorporado y sala familiar con terraza

98
Parque Lefevre Diseño IX | 2024
99
Generales
Vistas

SECCIONES DE EDIFICIO A Y B

100
Parque Lefevre Diseño IX | 2024
101
Espacios Habitables

CAPÍTULO

102
Parque Lefevre Diseño
IX | 2024
7

Jassiel Campos

GRUPO 5

Para este proyecto se planteó diseñar una intervención urbana que revitalice el entorno urbano existente. Se estudiaron las necesidades de la comunidad local, como el contexto histórico, cultural y la densidad del área. Se desarrollaron propuestas que promuevan la sostenibilidad ambiental, la accesibilidad universal y la inclusión social, también se creó un espacio urbano dinámico, seguro y acogedor que contribuya como modelo para futuras intervenciones urbanísticas.

Yilian Blanco

El objetivo de este trabajo es analizar una propuesta de intervención urbana en el área de estudio al cual pertenece el sitio histórico, que busca mejorar las condiciones de vida de sus habitantes. Esto implica cuidar la escala, la estética y la sensibilidad histórica de las intervenciones propuestas, asegurando que complementen y enriquezcan el entorno sin perturbar su integridad ni su autenticidad.

Ana Cedeño

El objetivo del siguiente proyecto es crear un espacio habitacional innovador y equitativo que no solo satisfaga las necesidades presentes de la comunidad, sino que también proteja y mejore el entorno para las generaciones futuras, adoptando un enfoque integral que integre principios de sostenibilidad ambiental e inclusión social.

103 Grupo 5

CONCEPTO

El presente proyecto propone el diseño de residencias multifamiliares que fusionan elementos bohemios y modernos para crear un espacio único y acogedor. La conceptualización de este proyecto se basa en la idea de ofrecer un ambiente de convivencia vibrante y variado, que responda a las necesidades contemporáneas de las familias, al tiempo que cumple con las normativas del SENADIS (Servicio Naci onal de la Discapacidad) para garantizar la accesibilidad universal y la inclusión social.

PRINCIPIOS DE

DISEÑO

El diseño se inspira en la estética bohemia, caracterizada por sus colores vibrantes y texturas orgánicas. Esto se reflejará en la elección de materiales, acabados y detalles decorativos que aporten calidez y personalidad a los espacios. De igual forma, se integran elementos de diseño moderno y minimalista para c rear espacios funcionales y estéticamente atractivos. Además, se implementaron soluciones arquitectónicas que cumplen con las normativas del SENADIS, tales como rampas de acceso, puertas amplias y pasillos sin obstáculos.

DISTRIBUCION ESPACIAL

La distribución espacial dentro de nuestra propuesta se basa en zonas comunes, unidades habitacioneles y un área publica. Se priorizó la creación de espacios comunes amplios y versát iles, como patios interiores, jardines compartidos y áreas de recreación, que fomenten la interacción social y el sentido de comunidad entre los residentes. Por otro lado, cada unidad habitacional se diseño con un enfoque en la funcionalidad y el confort, incorporando elementos de diseño bohemio y moderno en la selección de mobiliario, iluminación y acabados.

Parque Lefevre Diseño IX | 2024

Vista desde la Plaza
104

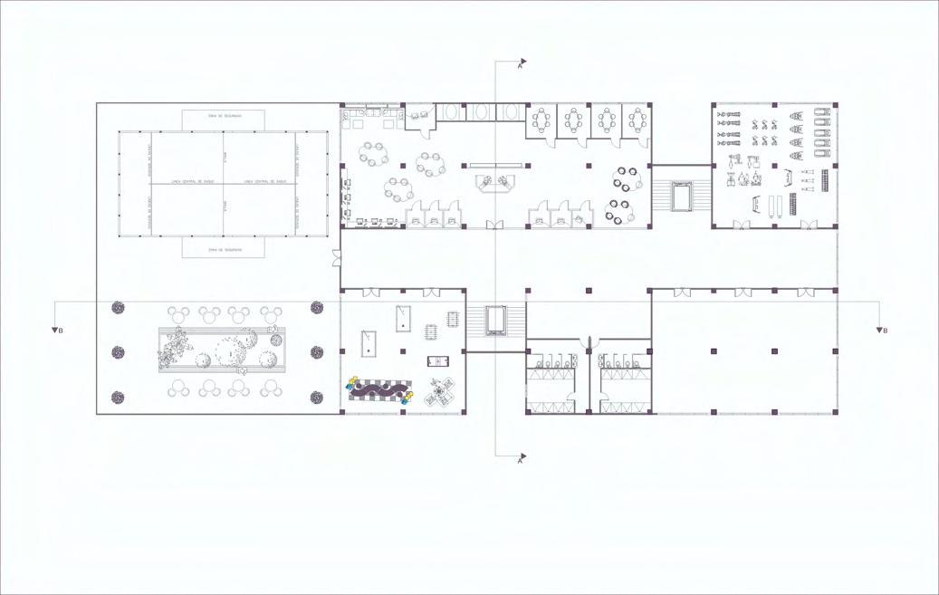
MASTER PLAN

El master plan propuesto combina la esencia de residencias multifamiliares diseñadas bajo los conceptos bohemios y modernos con la integración de una plaza pública multifuncional. Las residencias multifamiliares se conciben como espacios de convivencia que fusionan la calidez y la creatividad con la funcionalidad. Se prioriza la inclusión de elementos accesibles para personas con discapacidad, garantizando la igualdad de oportunidades y la integración social en el entorno residencial.

Por otro lado, la plaza pública se concibe como un espacio vibrante y dinámico, donde se integran ciclovías seguras, áreas de entretenimiento infantil, dos canchas de tenis y zonas de recreación para todo público. Esta planificación integral busca promover un estilo de vida activo y saludable, fomentando la ocial y fortaleciendo el sentido de unidad en el área.

Master Plan 105
106
Parque Lefevre Diseño IX | 2024

APARTAMENTOS 150M2

Para la optimización de la distribución de las plantas, nuestro enfoque se centra en garantizar la funcionalidad de cada componente, asegurándonos de que cada parte contribuya de manera efectiva hacia un objetivo compartido: la coherencia en la disposición, la eficiencia en la circulación, la definición clara de los núcleos y una organización que facilite el uso del espacio de manera intuitiva y eficaz.

107
Planta de Estacionamientos, Edificio con 3 Habitaciones

APARTAMENTOS 110M2

Las plantas de apartamentos de dos habitaciones con balcones se integran armoniosamente con las áreas sociales, que incluyen un coworking, gimnasio, salón de fiestas y cuarto de juegos. El diseño, inspirado en un estilo bohemio y moderno, destaca por sus espacios luminosos y funcionales, mientras que los acabados y materiales reflejan una estética contemporánea.

Planta de Estacionamientos, Edificio con 2 Habitaciones
108
Parque Lefevre Diseño IX | 2024

APARTAMENTOS 110M2

ELEVACIONES

APARTAMENTOS 150M2

Elevación Frontal Elevación Frontal Elevación Lateral Derecha Elevación Lateral Derecha Elevación Posterior Elevación Posterior Elevación Lateral Izquierda Elevación Lateral Izquierda
109
Parque para perros

SECCIONES

Sección AA Edificio con 2 Habitaciones

Sección BB Edificio con 3 Habitaciones

Sección BB Edificio con 2 Habitaciones

Sección AA Edificio con 3 Habitaciones

110
Parque Lefevre Diseño IX | 2024

RENDERS

Los renders presentados ofrecen una representación visual detallada de nuestro proyecto que combina residencias multifamiliares con una plaza pública. Las viviendas exhiben una variedad de estilos y configuraciones, adaptadas para satisfacer las necesidades de una comunidad diversa, mientras que la plaza pública se presenta como un punto focal animado y acogedor, con áreas verdes, zonas de recreación y esp actividades sociales.

111
Exterior Apartamento
112
Parque Lefevre Diseño IX | 2024
113
Vistas Generales

CAPÍTULO

114
Parque Lefevre Diseño
IX | 2024
8

Diego Beck

Tomás Vega

Entender el contexto antes del diseño es lo más importante al proponer un proyecto de cualquier escala. El área de estudio nos pide que necesitan una reforma urbana urgente, la forma en la que fue diseñada fue siempre pensando en la nueva vida que queremos generar dentro del barrio con el dilema conflictivo sobre si pertenecen o no al lugar.

GRUPO 6

Andrea Pérez

Es importante destacar que, en el área de estudio, la escasez de zonas verdes y espacios abiertos dificultaba considerablemente la interacción social y el bienestar comunitario.

Para este proyecto, se buscaba la creación de áreas recreativas y espacios de esparcimiento alejados de las concurridas carreteras. Estas áreas no solo se concebían como lugares de recreación, sino también como generadoras de corredores verdes que contribuirían significativamente al mantenimiento del confort climático.

José de la Lastra

Por lo tanto, el diseño y desarrollo de estas zonas recreativas no solo cumplían una función recreativa, sino que también respondían a la necesidad de mejorar la calidad de vida de los residentes, promoviendo un entorno más saludable y propicio para la convivencia.

115 Grupo 6

NIVEL CERO

PROPUESTA URBANA

Buscamos la comunicación con el contexto inmediato, de esta forma, el barrio tiene una vida más dinámica y no aislada. La propuesta tiene la intención de respetar la altura del edificio histórico de Panamá Viejo, que es la única memoria mejor conservada del sitio. Por lo que el horizonte volumétrico, junto a las perspectivas generadas mantiene aquella visión de la ciudad desde una altura a escala humana.

Localización lote dentro del proyecto

Parque Lefevre Diseño IX | 2024 116

Masas Emplazadas, generando llenos y vacíos en el lote

USOS: Comercial - Mixto - Residencial

Ejes Visuales Jerárquicos

Áreas Verdes Integradas

117 Conceptual

MASTER PLAN

Nuestra visión es generar un proyecto caminable, con el dinamismo que el sitio necesita, interconectando dos grandes sistemas de espacios abiertos como es el cementerio Jardín de Paz y el conjunto monumental de Panamá Viejo. Dentro de nuestro lote proponemos la transparencia en la planta baja

118
Parque Lefevre Diseño IX | 2024

SECCIÓN GENERAL

La propuesta tiene la intención de respetar la altura del edificio histórico de Panamá Viejo, que es la única memoria mejor conservada del sitio.

Por lo que el horizonte volumétrico, junto a las perspectivas generadas mantiene aquella visión de la ciudad desde una altura a escala humana.

119
Master Plan y Sección

VISTAS GENERALES

El proyecto se justifica en la necesidad de equipamiento de bienestar colectivo, entendiendo la integración social de una población sujeta a las condiciones y oportunidades que ofrece la infraestructura del mismo, posibilitando el contacto e interacción entre diferentes grupos sociales. La conectividad se plantea como una herramienta de desarrollo y mejora de las condiciones de vulnerabilidad social,

creando un tejido con la ciudad y el entorno natural, transformando los barrios de espacios netamente residenciales a espacios de socialización y convivencia. Desde esta perspectiva, se refleja la posibilidad de establecer una nueva conexión a un nuevo sistema de espacio abierto como lo es el mar de Panamá Viejo, deteriorado actualmente por el manglar y la acumulación de basura, pero con potencial comercial.

120
Parque Lefevre Diseño IX | 2024 Vista general de proyecto
121 Renders
Relación con su entorno Dinamismo en Edificio 3 Patio interno Edificio 1

SECCIÓN TRANSVERSAL

El escalonamiento genera mejor ventlación tanto dentro como fuera del edificio, tambien la protección necesaria a los peatones que circulan.

AXONOMÉTRICO

Se destaca la relación con su entorno inmediato, permite un dinamismo que va de acorde con las necesidades del lugar. Su forma en “L” permite una versatilidad en su cuadra ya que al ser un triángulo le brinda horizontalidad y verticalidad a la estructura.

El patio interno central es el punto de encuentro tanto para residentes como para transeúntes, funciona como centro deunidad para la comunidad

PLANTA NIVEL 100

Se destaca la distribución de los apartamentos, la forma del edifcio permite que cada apartamento tenga vista ininterrumpida.

PLANTA TÍPICA

Apartamentos de 130 m2, funciona con tres recámaras, dos baños, sala-comedor-cocina, y las vistas son aprovechadas por todos los espacios habitables, así como la ventilación.

Parque Lefevre Diseño IX | 2024 122
EDIF. 1

SECCIÓN TRANSVERSAL

Se destaca la circulación vertical que funciona tanto como eje de distribución como potenciador de luz y ventilación para el interior del módulo.

PLANTA TÍPICA

La siguiente distribución es para un apartamento de 84 m2. Dos recámaras, dos baños, sala-comedor-cocina, balcón.

Este patio interno con una quintuple altura, permite qe desde la planta baja hasta el último piso se permia la entrada de la luz natural. Los maceteros sirvenpara referscar a la fachada, como al interior de los apartamentos.

PLANTA NIVEL 100

La distribución de cada módulo se basa en un lobby central el cual sirve como patio interno. Su estructura se desliga de la principal, por lo que le brinda “autonomía” estructural.

11,00 7,50 6,00 5,00 5,352,15 3,282,732,901,35    123
EDIF. 2
Espacios Habitables

AXONOMÉTRICO

La relación que tiene la estructura con su entorno es una respuesta a las necesidades, como lo son: usos mixtos, asequibilidad de vivienda, reversión de áreas verdes, respeto por la trama urbana, conectividad coherente y el respeto a su contexto inmediato. Dentro del módulo se destaca su ventilación, iluminación, versatilidad, y sostenibilidad, pues la fachadabusca la relación de materiales locales que vayan a responder a un clima tropical y próximo a la línea costera de la ciudad.

SECCIÓN TRANSVERSAL

Se desarrollan siete niveles para distintos usos. EL nivel semisoterrado y el nivel cero permite el uso exclusivo de comercios, y del primer alto hasta el último piso, residencias.

PLANTA NIVEL 100

Al desarrollarse como un semiclaustro habrá apartamentos que tendrán la vista hacia el interior, pero por el desarrollo de paisajismo, evoca seguridad.

APARTAMENTO TÍPICO

Apartamentos de 130 m2, funciona con tres recámaras, dos baños, sala-comedor-cocina, y las vistas son aprovechadas por todos los espacios habitables, así como la ventilación.

124
Parque Lefevre Diseño IX | 2024
3
EDIF.

SECCIÓN LONGITUDINAL

El nivel -100 funciona como un solo espacio de estacionamiento para todos los módulos de edificios, de la misma forma se aprovecha para generar un nivel intermedio

en la planta baja que le da la altura necesaria a los espacios comerciales. El sistema de fachada movible depende directamente del propietario del apartamento que puede decidir entre una protección completa o parcial.

Planta de apartamentos de 130 m2 que funciona para 5 habitantes. Tres recámaras, sala-comedor-cocina, dos baños, lavandería, terraza, y balcones privados.

Espacios Habitables

125
PLANTA TÍPICA
EDIF. 4

PORTADAS

GANADORA

Ana Cedeño

Las Ruinas de Panamá la Vieja, se alzan como testigos de la evolución de la ciudad a lo largo de los años, logrando un contraste con la arquitectura que define la actualidad de Panamá, lo cual simboliza así la conexión entre el pasado y el presente. La portada busca capturar este contraste de manera impactante, utilizando formas que resalten tanto la belleza nostálgica de las ruinas

como la modernidad dinámica de la ciudad circundante. Se pretende transmitir la sensación de un viaje en el tiempo, donde el espectador es transportado desde la antigua gloria de Panamá la Vieja hasta la bulliciosa vida urbana que la rodea en la actualidad. No solo busca ser estética, sino también evocadora, dándole protagonismo a la historia.

Parque Lefevre Diseño IX | 2024 126
127
Concurso Portadas P. Martez Y. Blanco J. Campos L. Silvera A. Gálvez N. Guerrero S. Omais T. Chein T. Vega S. Mizrachi A. Morales J. Lastra

Turn static files into dynamic content formats.

Create a flipbook
Issuu converts static files into: digital portfolios, online yearbooks, online catalogs, digital photo albums and more. Sign up and create your flipbook.
MEMORIA. DISEÑO IX by dbeckg - Issuu