Madison Square Boys & Girls Club / New Harlem Facility Design Proposal

Page 1

MADISON SQUARE BOYS & GIRLS CLUB NEW HARLEM CLUBHOUSE FACILITY

DESIGN CHALLENGES 23 FEBRUARY 2015

OVERVIEW

The Flagship Central Harlem MSBG clubhouse will be a celebration of the cultural influences prevalent in “The Valley.” In cooperation with shareholders, Davis Brody Bond would explore the use of colorful and cost-effective masonry, metals and glazing. The exterior and interior cladding systems can be fabricated to permanently incorporate graphic art, photos or inspirational messages. The Central Harlem MSBG clubhouse design will be colorful, open, bright and uplifting. Reverently acknowledging the spectators who viewed polo ground events from Coogan’s Bluff, Davis Brody Bond will explore opportunities to strategically open the façade to express activity and receive natural light.

To establish productive relationships with athletic organizations that once called the polo grounds home, MSBGC and Davis Brody Bond will explore sponsorship opportunities by creating themed venues. Iconic images such as the 1954 World Series “The Catch” and the 1956 NY Giants NFL championship “Sneaker” game could be used as backdrops in the teen lounge or meeting rooms. The MSBGC might even construct a scaled-down “Explorers-only” Rucker Park court lined with photographs of the Harlem Rens, current NBA stars, and local legends.

The dialogue that leads to the Concept Design will also inform early presentations to the Madison Square Boys and Girls Club during the fundraising campaign; community groups, regulatory agencies and project donors should be participants. Davis Brody Bond will prepare representations to best explain and illustrate the design. These materials could include:

• 3D and physical conceptual models and renderings

• Presentation Drawings: floor plans, sections, elevations, and Illustrative site plans

• Animations and fly-throughs

These materials will illustrate the building or its individual spaces so that donors can envision the end result. At the end of a project we work with donors on the design of signage to ensure appropriate and elegant donor recognition. We work directly with the development staff of an institution to understand a donor’s wishes and make the process a favorable experience. We have in-house resources to support these efforts including a graphic design team that works with project teams to design and produce renderings and booklets illustrating the project goals and opportunities.

PROJECT FACTS

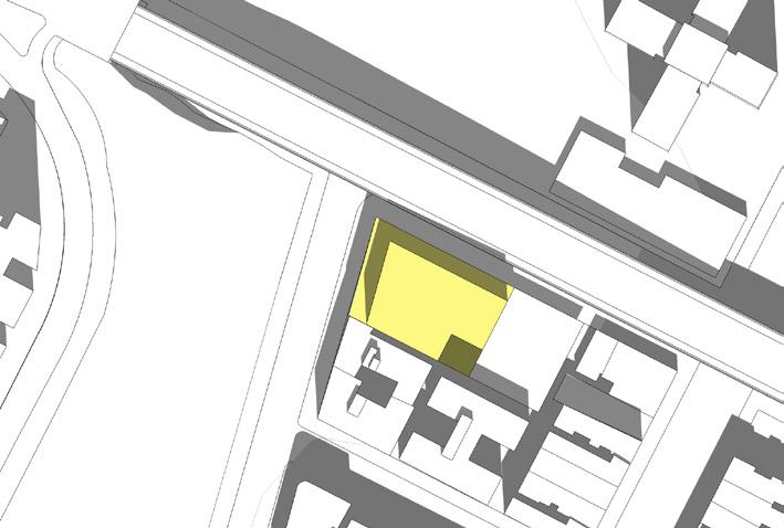
Zoning Regulation Permitted Existing Proposed Total Compliance Lot Area 14,450 sf 14,450 sf 14,450 sf 32-13 Use Group 4 4 No Change 33-123 Floor Area Ratio 6.5 <6.5 Complies 33-123 Floor Area (14,450x6.5) 93,925sf 27,106 sf < 93,925 sf < 93,925 sf Complies Yards 33-292 Rear Yard 30’-0” 0’ 0’/30’-0” Waiver req. 33-25 Side Yard 0’ 0’ 0’ Complies 33-25 Front Yard 0’ 0’ No change 33-292 Max Yard Level C8 (curb level) curb lev./30’-0” Waiver req. Height Regulations 33-432 Max Front St. Wall Ht. 60’-0” No change Complies Street Trees 26-41 One tree per 25’-0” 10 new trees Complies Off Street Parking 36-21 Not required 0 0 Complies Estimated extent of development for neighboring building with community use Estimated extent of development for neighboring building with commercial use Proposed new club WEST 155TH ST.

Zoning Summary

Address 250 Bradhurst Avenue

New York NY 10039

Block/Lot

Zoning District C8-3

Zoning

2047 / Lot 44

3B

Block
Lot Dimensions 101.92' x 154.83' Lot Area (sf) 14,450 sf Community District 10 BRADHURST AVENUE 20’-0” 15’-0” 60’-0” 2.7 1 1 5.6 BSA WAIVER REQUIRED TO DEVELOP 34’-8” 30’
Map

SITE CONSIDERATIONS

SITE ANALYSIS

HIGHBRIDGE PARK

JACKIE ROBINSON PARK M10

BRADHURST AVENUE

POLO GROUNDS TOWERS B/D

155TH STREET

VEHICULAR CIRCULATION

PEDESTRIAN PARK PATH

ACTIVE STREETFRONT

NOISE FROM OVERPASS

POLO GROUNDS

GARBAGE FACILITY

N SOLAR
RUCKER PARK
C

SITE CONTEXT

DECEMBER NOON

SOLAR STUDIES

MARCH NOON

JUNE NOON

SEPTEMBER NOON

PROGRAM

APPROACHES TO GYM, POOL & OFFICES

GYM & POOL APPROACH 1

MEMBER PROGRAM ADJACENT TO ENTRY AT GRADE MAXIMIZE LIGHT & VISIBILITY TO POOL

GYM & POOL APPROACH 2

PUBLIC ASSEMBLY GYM LOCATED

BELOW MEMBER PROGRAM

GYM & POOL APPROACH 3

MEMBER PROGRAM LOCATED ABOVE GYM

POOL AT LOWER LEVEL

GYM & POOL APPROACH 4

PUBLIC ASSEMBLY GYM LOCATED

ABOVE MEMBER PROGRAM

POOL AT LOWER LEVEL

The DBB team will assist MSGBC in first identifying key decisions that will shape the design. The process will begin by gathering facts and input from the MSGBC community. We will then organize and interpolate the data and present scenarios that have been informed by our firm’s experience and research. Such broad stroke factors might include whether/not to seek zoning variances for the S/E corner, how to best facilitate future expansion, and how to position the building for a future that we cannot quite know, but can certainly anticipate/project.

Other early decisions include how deep to excavate, which is linked to helping you set a budget and then stick to it. Once these decisions are made, other variables begin to fall into place: whether to build with steel or concrete, how many floors, what materials, just to begin.

Once these “building blocks” are established, the DBB team of Architects and specialty consultants will assist by weighting how and where to locate the large program elements, especially the Gym and optional pool. The largest of spaces affect the structural engineering, cost, and spatial organization more than the others.

As the approach is refined, circulation paths and adjacencies will be laid out, intelligently locating medium sized and smaller program spaces. It is perhaps these spaces that perhaps impact the day-to-day experience of the building the most –not just for MSBGC’s mission for the community, but also for those who spend a considerable amount of time in the facility and are responsible for the very success of the organization.

OFFICE APPROACH 1

VERTICALLY DISTRIBUTED

ADMINISTRATIVE PROGRAM

OFFICE APPROACH 2

INDEPENDENT HEADQUARTERS SUITE

LOWER LEVEL GYM AT THE J.C. DANIELS SCHOOL

BELOW GRADE GYM: VARIATIONS

BELOW GRADE GYM

AS OF RIGHT

BELOW GRADE GYM AS OF RIGHT — MAXIMUM FOOTORINT

BELOW GRADE GYM

AS OF RIGHT WITH RELOCATED MULTI-PURPOSE

INTERIORS: DIVERSITY & FLEXIBILITY

Multi-use spaces for sports, performance, working and meeting

INTERIORS: DIVERSITY & FLEXIBILITY

Spaces must be flexible to accommodate multi-use programs in fine arts, performing arts, or athletics, and designed to allow for individual workspace, collaboration, and small meeting opportunities

DAYLIT PROGRAM SPACES

EXTERIOR: MATERIAL, VISIBILITY & CHARACTER

LOOKING IN: COOGAN’S BLUFF

ROOFTOP MOVIES
The exterior appearance must be simultaneously inviting, approachable, iconic and cost-effective

Together with client and user groups, Davis Brody Bond will explore the use of colorful and cost-effective extreior materials including masonry, metals and glazing. Exterior and interior cladding can permanently incorporate graphic art, photos, poetry or inspirational messages. The Central Harlem MSBG clubhouse design will be colorful, open, bright and uplifting. Inspired by the spectators who viewed Polo Ground events from Coogan’s Bluff, Davis Brody Bond will explore opportunities to strategically open the façade to express activity and receive natural light.

EXTERIOR: BUILDING AS WELCOMING MARQUEE

Environmental graphics are an outward gesture that speaks to culture and history and conveys activities within the building. The Central Harlem MSBG clubhouse design will be open, bright and uplifting.

CONCEPT A: THEATER

SHELL SPACE

TEENS

JUNIORS

EXPLORERS

PERFORMING ARTS

SUPPORT

10’

FLOOR TO FLOOR FOR SMALLER SPACES

SMALLER SCALE OFFICES RELATE TO THE RESIDENTIAL STREET

ACTIVE SPACES INTERACT WITH THE COMMUNITY

GYM HQ
15’

The “Theater” concept provides boys and girls with a three-dimensional experience of the heart of the Madison Clubhouse. Their individual spaces are each tailored to their needs. This concept creates the opportunity for all the kids to visually connect with each other and for all the supporting spaces to oversee via the surrounding balconies. The opportunity to visually connect to each other and to the urban streetscape creates an interactive and exciting environment where all can feel a harmonious connection to each other and to their city environment.

POOL VISIBLE

CONCEPT A: THEATER PLANS

KITCHEN

COATS

LOCKERS

PERFORMING ARTS

GYM

SUPPORT HQ

EXPLORERS OFFICES

MEETING ROOMS

MULTI-PURPOSE/ GYM

(CREATES ONE MAJOR PUBLIC SPACE)

LL
OFFICES EDUCATION KIOSK LOCKERS COATS LOCKERS REAR COURTYARD MAIN ENTRY SECONDARY ENTRY BRADHURST AVENUE 155TH STREET
PERFORMING ARTS SECURITY
R 7 6 5 4 3 2 M TEENS JUNIORS EXPLORERS KITCHEN DINING SUPPORT ART MUSIC TECH SUPPORT MEETING LOCKERS LOCKERS OVERLOOK HQ BALCONY OVERLOOK MEETING

CONCEPT B: CANYON

PERFORMING ARTS MULTIPURPOSE

PERFORMING ARTS CONNECTION TO THE COMMUNITY

SMALL SCALE RELATES TO RESIDENTIAL COMMUNITY
HQ SHELL SPACE SUPPORT KIDS CLIMB 45 FEET TEENS JUNIORS
EXPLORERS
GYM 15’ TYPICAL

The “Canyon” concept uses the angle of the residential street to open up a vertically oriented 3D circulation space in-between rational and flexible program spaces and smaller scale support spaces facing the park. These larger rational spaces allow for greater efficiency and multiple uses. The Performing Arts space on grade can connect directly to the street and also be connected to the multipurpose smaller gym to create one singular community space.

POOL VISIBLE

CONCEPT B: CANYON PLANS

CONNECTIONS TO COMMUNITY KITCHEN COATS LOCKERS

PERFORMING ARTS/ FLEXIBLE PUBLIC SPACE

1
LL
MAIN ENTRY SECONDARY ENTRY
MINI-GYM
LOCKERS LOCKERS
PERFORMING ARTS GYM SUPPORT HQ EXPLORERS OFFICES MEETING ROOMS
R 7 6 5 4
TEENS ART JUNIORS SHELL SUPPORT MUSIC TECH EXPLORERS EDUCATION MEETING LOCKERS LOCKERS HQ TERRACE KITCHEN DINING
3 2

CONCEPT C: VIADUCT

CIRCULATION AND ACTIVITY FACES THE PARK DIRECT CONNECTION TO COMMUNITY HQ TEENS JUNIORS SUPPORT EXPLORERS PERFORMING ARTS 15’ TYPICAL

VIADUCT

The “Viaduct” concept visually connects all club members and potentially the larger community with a potentially active streetscape under the viaduct. Street activities are visually connected with the inner activities of the clubhouse. The major circulation and cascading “amphitheater” that connects all the club functions is located on the park side giving all members a view of a shaded sunlit and garden environment.

POOL VISIBLE

SCHEME C: VIADUCT PLANS

canteen coats main entry second entry meeting performing arts meeting wc wc lockers lockers club club club meeting canteen coats main entry second entry meeting performing arts meeting wc wc office gym multi-use lockers lockers club club club meeting 1 CLUB CLUB CLUB COATS MEETING MEETING MEETING WC WC POSSIBLE CONNECTION TO THE COMMUNITY PERFORMING ARTS CANTEEN LOCKERS LOCKERS GYM MULTI-USE OFFICE LL MAIN ENTRY SECONDARY ENTRY KITCHEN COATS LOCKERS PERFORMING ARTS GYM SUPPORT HQ EXPLORERS OFFICES MEETING ROOMS
wc wc teen center digital arts & music hq support hq support wc wc sprt soccer wc explorers dining club club meeting kitchen wc wc wc juniors fine art digital arts & music meeting tech center wc wc wc hq administration conference wc wc wc sprt shell wc explorers dining club club meeting kitchen wc wc wc juniors fine art digital arts & music meeting tech center wc wc wc hq administration conference wc wc wc sprt shell natatorium terrace lockers lockers 4 TEEN CENTER DIGITAL ARTS & MUSIC HQ SUPPORT WC WC HQ SUPPORT 3 JUNIORS CLUB FINE ART DIGITAL ARTS & MUSIC TECH CENTER MEETING WC WC 2 MEETING CLUB DINING EXPLORERS KITCHEN WC WC 5 POOL TERRACE LOCKERS 6 HQ ADMINISTRATION CONFERENCE WC WC WC WC 7 SHELL WC WC SPRT R SOCCER SPRT WC WC

CONCEPT D: PARK

BOYS

CIRCULATION
EXHIBITS THE
HQ TEENS JUNIORS SUPPORT
ARTS
GYM
AND GIRLS SPACES RELATE TO GREEN AND QUIET ENVIRONMENT
EXPLORERS PERFORMING
OVERLOOK HALF

The “Park” concept places all of the boys and girls club spaces facing the park to create a more peaceful green haven for the members to escape from the day-today noise and action of the city. The major vertical circulation is oriented to the viaduct, connecting to the movement of the city.

CONCEPT D: PARK PLANS

LL 1 MAIN ENTRY SECONDARY ENTRY OPEN TO GYM BELOW OUTDOOR RECREATION
COATS
SUPPORT
EXPLORERS OFFICES
ROOMS
MULTIPURPOSE/ GYM KITCHEN
LOCKERS PERFORMING ARTS GYM
HQ
MEETING
R 8 6 5
JUNIORS MUSIC TECH EXPLORERS DINING
ART TEENS LOCKERS LOCKERS
4 3 2
PERFORMING ARTS

SCHEME E WOVEN

Woven is a carefully knit organization of spaces and experiences. Expanding on MSGBC’s history and aspirations, Woven’s circulation path is inclusive, diverse, and inspiring. Like your logo, spaces interlock, presenting an environment where kids have a diverse set of experiences just by walking its halls, while still maintaining the physical separations necessary to make the clubhouse the safe haven that it is.

The ramp is a timeline, a story, where kids ascend and progress. The experience begins in the gracious lobby, where parents drop off. Clubhouses, set at different heights ascend by age group. Once cleared for safe passage, children can joyfully walk, skip, or run up the ramps as they would in safe streets. They glimpse and are inspired by activities in the Music Lab, Fine Arts Studios, and Sports Facilities – the very things that have shaped their community’s history and culture.

Woven’s façade pushes and pulls; it flows like a poetically formed slam dunk or smooth rap verse. The story of the building’s inner workings is projected to those outside the building, softly inviting them in. From the western cliff or the northern viaduct, observers see basketball, soccer, performing arts. Potentially swimming. Likewise, children can gaze out; the ramp provides ample opportunities for outdoor elevated “pocket parks” along with views toward the western park or street activity to the north.

The building is smart. While it initially appears complex it is strategically simple. The 8’ wide ramp which makes two full turns is a mere incision into the structural slab. Some program spaces are set at different heights low in the building but could be further simplified for economy – the ramp still holds the scheme’s rich organizational structure intact.

SCHEME E / WOVEN PLANS

KITCHEN

COATS

LOCKERS

PERFORMING ARTS

GYM

SUPPORT HQ

EXPLORERS

OFFICES

MEETING ROOMS

1
8 7 6 5 4 3 2 R

THEATER

• One 3D interactive volume connecting all age groups

• Each age group has its own “balcony”

• Great oversight from surrounding corridors

• More efficient floor-to-floor dimensions

• Gym and Half-Gym are located on the lower level to achieve largest footprint available as-of-right

• Performing arts at grade

CANYON VIADUCT

• Each floor is a rational flexible use opportunity • Largest footprint located at-grade for potential large-group gatherings

• Teen floor is approximately 45 feet above-grade

• Circulation “atrium” visually connects all the membership

PARK WOVEN 5 CONCEPTS:

• Gym and Half-Gym are located mid-level to the street creating an accessible well-lit event space

• Each age group space faces the quiet park

• Circulation is oriented along the more active city-street

• Teen floor is approximately 60 feet above grade

• Gym and Half-Gym are located together on the lower level for flexible event-use space

• Performing Arts on the first floor open to the streetscape

• Rational rectilinear spaces for all functions

• Efficiency and flexibility are maximized

• Common circulation as “amphitheater” allows park vistas

• Performing arts is located on the lower level allowing for an easy accessible events space

• Gym is located and exhibited on the fifth floor approximately 45 feet above grade

• Interlocking ramps and circulation path allow visual connectivity to internal spaces and external streetscape

SUMMARY

ARCHITECTS

ONE

NEW YORK, NY 10004

WWW.DAVISBRODY.COM

AND PLANNERS
NEW YORK PLAZA SUITE 4200

Turn static files into dynamic content formats.

Create a flipbook
Issuu converts static files into: digital portfolios, online yearbooks, online catalogs, digital photo albums and more. Sign up and create your flipbook.