Columbia Site 1 Planning & Programming Study

Page 1

Site 1 Planning + Zoning Study 1.9.2023
2
Executive Summary 1 Site + Sustainability 2 Zoning + Massing • Zoning Analysis • Zoning + Massing Studies • Zoning Calculations 3 Programming • Residential • Dining • Health • Campus Recreation • Commons • Residential + Health Test Fits 4 Building Organization • As-of-Right Scenarios • As-of-Right Evaluation Matrix • Contextual Rezoning Scenarios • Contextual Rezoning Evaluation Matrix Acknowledgments 5 Appendices • Zoning Metrics • Geotechnical Report • Building Systems • Benchmarking • Program Room Lists • Scenario Data • Health Test-Fit Prototypes • Health Test-Fits, Site Specific Contents 5 9 15 15 20 26 29 33 35 36 39 40 42 45 46 66 69 76 78 81 83 105 127 147 163 189 197 205
STREET
STREET
STREET
AMSTERDAM AVENUE
Hall
4
SITE 1 115TH
116TH
114TH
Hartley Hall
MORNINGSIDE DRIVE 44 Morningside Wallach
Mt. Sinai Morningside Church of Notre Dame Warren

Executive Summary

INTRODUCTION

“Site 1,” located between Amsterdam Avenue and Morningside Drive, consists of an existing parking lot on 115th Street and a Clinic Building on 114th Street. These two parcels constitute a substantial development site close to Columbia’s historic campus core. The site is one of the most significant opportunities for new construction remaining near the center of the campus and is well-positioned for programs that serve a campus-wide constituency. To the west, 115th Street terminates in an architecturally significant gate (currently closed) between Wallach and Hartley Halls and its re-opening could offer a strengthened pedestrian campus connection from this site to the central core.

This study examines the opportunities afforded by “as-ofright” zoning to accommodate a new building on this site for a mix of several different program uses. There are a number of site specific opportunities and challenges, including existing easements and development agreements with the adjacent hospital, potential air rights transfer, and the ability to use an alternate “as-of right” zoning rules for tower massing. In addition, the site was studied for the possibility of rezoning to “Contextual Zoning,” which would add some additional constraints to height and setback requirements.

PROPOSED PROGRAMS FOR THE SITE

The key programs identified by the University as potential candidates for Site 1 were undergraduate residences, a new Health Services Center, an additional dining facility and a satellite recreation facility. In addition, a space titled “Commons” has been included as a campus public space intended as flexible space for gathering, informal study, ancillary dining and to offer connections between the major public programs of the building. The four core programs envisioned for the building all currently experience excess demand and are undersized for optimal performance. In the case of Health Services, their programs are scattered in six locations across campus. Benchmarking research also indicates that Columbia’s existing provisions for Dining, Recreation and Health Services are undersized relative to peer institutions.

The initial selection of these programs recognized that there are beneficial relationships and alignments in their missions, much of which revolves around promoting wellness and the quality of student life and learning. Shared spaces for exercise/meditation, kitchen demonstration, nutrition and health-related education, and informal gathering and learning bridge between the four program areas and can contribute to a unified building identity and character.

The proposed programs for housing and dining used in this study were developed through interviews with Student Residential Life staff, review and tours of existing facilities and review/benchmarking of recent residential projects at peer institutions in urban settings. The program for Health Services and Recreation were derived from a pre-existing Program Studies (Columbia Health Facility Master Plan 2020 and the Dodge Gym Transformation Program 2019) supplemented by departmental interviews.

The optimal space requirements for all these programs will exceed the available development capacity of the site. Therefore, this study initially generated a number of different options of varied size and combination of uses to be located in the proposed project. With the review and input of the University, these options were refined into five basic combinations which were tested against the zoning requirements of the site. Three variants were also developed for the Contextual Zoning Option which has a reduced floor area.

The program options for the proposed building are:

• 300-Bed Student Residence, Dining, Health Services Option 3 & Commons

• 300-Bed Student Residence, Dining, Health Services Option 1, Recreation & Commons

• 400-Bed Student Residence, Dining, Health Services Option 2 and Commons

• 500-Bed Student Residence, Dining, Rec. & Commons

• 600-Bed Student Residence, Dining & Commons

COLUMBIA UNIVERSITY SITE 1 PLANNING + ZONING STUDY 1.9.2023 5

In addition, as part of a 2002 development agreement with the of this development agreement, any proposed development on and placed on its special order calendar as it will have minimal Additionally, under city zoning regulations, the University can apartment building (44 Morningside Drive) with available air rights which has been considered in this analysis.

SUMMARY OF APPLICABLE ZONING

The combined site offers the capacity to build 189,091 gsf as-of-right, with a possibility to increase this to 217,570 gsf with the transfer of air rights from the Columbia-owned 44 Morningside Drive. Potential air-rights from the Chapel of Notre Dame have not been pursued in the study. (Note that the Chapel is a NYC landmark and therefore transfer would make the developments subject to Landmarks Approval).

This projected area total is derived from the sum of allowable zoning area, deductions for a previous air rights transfer to the hospital, additional allowances for a below-grade floor and non-occupied mechanical/service spaces (neither of which are in calculated zoning area) and any potential air rights transfer.

BASE ZONING OPTION

R8 - Double Bar Massing

Spatial restrictions under current zoning regulations are described in greater detail in the body of the study, but are summarized as follows:

• Maximum lot coverage of 65% (excepting portions of a ground floor below 23’ in height)

• A 60-foot combined rear yard for each parcel or two (2) rear yard equivalents

• Minimum setback of 20’ above a maximum 85’ base.

• Additional setbacks above 85’ based on a sky-exposure plane of 2.7:1

• A 30-foot easement on the western boundary, approximately 60’-70’ (Manhattan Datum 198.21) above the street (note that this is not a city requirement, but part of the existing agreement with the hospital)

The as-of-right application of these requirements results in a scheme comprising two building forms, one fronting 114th and one on 115th Street, connected by a common ground floor that runs though block. Each building would require its own egress stairs and elevator core. The need to reduce the building footprint to meet a sky exposure plane means that the higher the building, the floorplate continues to reduce, ultimately creating a practical limit to the building height.

TOWER OPTION

Zoning Regulations allow for an alternative “Tower” massing. This approach:

• Limits Tower lot coverage to 40% (however full lot coverage is still allowed for one floor at ground level)

• Rear yard or 30-foot rear yard equivalents which can be located at each street line

• No setback requirement and tower can penetrate the sky exposure plane

Zoning Option 6
Base

R8 - Double Bar Massing

R8 - Single 40% Tower

The use of the Tower option allows for a single floor plate, which would not require duplication of egress stairs and elevators. Also, because the site already has 30-foot easement with the hospital to the west, which applies to either zoning scenario, the 40% lot coverage requirement does not generate as substantial a penalty to floorplate size. Combined with less duplication of vertical circulation core, this generates a more efficient overall floor. Because there is no sky exposure plane requirement, these floors do not need to reduce in size as the building height increases.

CONTEXTUAL ZONING OPTION

Contextual Zoning (R-8A and R-9A) has been proposed by a community group (Morningside Heights Community Coalition) for a 35-block area that includes this site. The proposed rezoning has not entered into the required environmental reviews. If Contextual Zoning were adopted for the site there would be no change to the maximum developable area. However, because of a maximum height limit, the site could not fully utilize additional air rights from adjacent properties. Contextual Zoning would require:

• Maximum lot coverage of 70% (excepting full lot coverage is allowed for one floor at ground level)

• A 60’ combined rear yard & street wall requirement

• A setback of 15 feet above a 95’ base.

• A maximum building height of 125’

• A 30’ easement on the western boundary with the Hospital, approximately 60’-70’ above the street, would still apply

Contextual Zoning precludes the option of a tower massing. The “two street bar” arrangement would be similar to that allowed under existing R-8 zoning, but the floorplates could be slightly larger. This is beneficial for programs like Health Services, however increased depth would not be an advantage for student housing floor layouts which can efficiently utilize a narrower floorplate. Most critically, the maximum height of 125’ would likely preclude the full use of available air rights.

The total amount that could be utilized will depend on the floor to floor height required by the selected program types. Housing would typically utilize a lower floor-to-floor height than health services. This study analyzed three of the program options under a contextual zoning development option.

Contextual R8-A R8 - Double Bar Massing

FINDINGS

There are viable as-of-right building development scenarios for each of the program combinations explored in this study. The five (5) program options were formulated with the intent of providing a range of space allocations, including scenarios that represented a minimum and maximum conditions for Residential Life and Health Services while still preserving a viable mix of the programs.

There are modest variations in net/gross area and operational efficiencies with certain program combinations, however the differences are not great enough to eliminate any of the program scenarios as viable options. For certain program combinations, largely those involving the larger Health Services component, the Tower Massing scheme offers a significant advantage in planning, area and operational efficiency.

All the proposed scenarios require further refinement as part of a design process, including exploration of entry location(s), further definition of the building’s lower levels for high traffic, public spaces, additional sectional/stair connections between floors, outdoor spaces at the street and rooftops, and the refinement of the boundary between public common and secure spaces. The final selected combination of program elements and space allocations will provide greater clarity for this development.

Option
Zoning Option COLUMBIA UNIVERSITY SITE 1 PLANNING + ZONING STUDY 1.9.2023 7
Tower
Contextual

MORNINGSIDE CAMPUS

Hartley Wallach Gate

AMSTERDAM AVE

114THST

115THST

116THST

MORNINGSIDE DR

113THST

MORNINGSIDE PARK

8

1. Site + Sustainability

The development site is a through-block L-shaped lot midway between Amsterdam Avenue and Morningside Drive with frontages along 114th Street and 115th Street. The northern portion of the site is an open-air parking lot used by Columbia University Operations and Public Safety Vehicles. The southern portion of the site is occupied by the six-story Clinic Building, constructed in 1926 as an apartment building and currently leased by Columbia University to Mount Sinai Morningside Hospital for use as an outpatient mental health facility.

Adjacent to the site north of 115th Street are six-story pre-war Columbia apartment buildings occupied by Law School Students and a classroom building (Warren) on Amsterdam. Directly to the east of the north lot is Cathedral Court, a six-story faculty apartment building owned by Columbia University which faces Morningside Drive. To the east of the south lot is the three-story Rectory building of the Notre Dame Chapel located on 114th Street and Morningside Drive. The Rectory and Chapel are designated New York City Landmarks. Further to the east of Cathedral Court and the Notre Dame Chapel is Morningside Park with uninterrupted views of Harlem.

On the west side of the site are buildings associated with Mount Sinai Morningside Hospital, which have a strong presence along Amsterdam Avenue and contribute to a separation between the site and the main campus. The hospital has a loading dock along 115th Street, but the overall character of the street is less institutional than that of 114th Street. Reinforcing connections across Amsterdam Avenue between the historic campus and the site will be one of the main challenges of any future development.

One opportunity for strengthening the connection to the main campus is the opening of the Hartley Wallach Gate on 115th Street and Amsterdam Avenue, which was raised as a possibility in our discussion with user groups at the University. With University-owned housing for students and faculty on both sides of 115th Street adjacent to the site, we envision this as a potential gateway for the new development and its primary orientation towards the Morningside campus.

COLUMBIA
1 PLANNING + ZONING STUDY 1.9.2023 9
Looking east on 115th Street towards Harley Wallach gate
UNIVERSITY SITE
Looking east at 44 Morningside Drive Looking west at Mt. Sinai Morningside Hospital Looking east on 115th Street from Amsterdam Avenue
10
Looking west on 115th Street Towards Hartley Wallach Gate

GEOTECHNICAL REPORT

In order to better understand the feasibility of below grade scope for this site, we enlisted the services of Langan Engineering to perform a geotechnical report in October of 2021. They performed three soil borings on the north lot as a preliminary analysis of the subsurface conditions, understanding that a more complete geotechnical report would need to be performed at a later date to support a future design. However, the borings consistently show bedrock at an elevation of about 10 feet below grade, which is not surprising given the location of the site at the eastern edge of Morningside Heights. Because of the proximity of

SITE UTILITIES

As a complement to the subsurface investigations, the team also considered opportunities for connecting with existing campus steam and chilled water infrastructure. Although most of the existing infrastructure is on the main campus to the west of Amsterdam Avenue, in our meetings with Columbia commissioning it was confirmed that there are currently hot and chilled water lines servicing east campus buildings north of 116th Street.

However, the work required to connect south to Site 1 is significant and most likely not viable because of the costs and

SOURCE:
1. SITE + SUSTAINABILITY (cont’d)
COLUMBIA UNIVERSITY SITE 1 PLANNING + ZONING STUDY 1.9.2023 11
Detail from Geotechnical Report (Langan)
Morning Side Site 1 Concept Design Phase Narrative | July 11, 2022 Page 5 of 18 WINDOW TO WALL RATIO Figure 3 Window to Wall ratio of BR+A Projects THERMAL BRIDGE MITIGATION Thermal bridge mitigation is an important part of envelope design High risk locations of thermal bridges are (1) Balconies/jewel boxes/overhangs (2) Corners/junctions (3) Windows Thermal bridge mitigation will be a part of 2023 NYS Stretch Code which will be adopted by NYC. Figure 4 Spandrel thermal bridging example REC WWR Morning Side Site 1 Concept Design Phase Narrative July 11, 2022 Page 9 of 18 Figure 9 20 ft on center geothermal layout 25 FT ON CENTER At 25 ft on center, the lot can fit approximately 40 wells. This does not include site boundary permitting limits and setbacks. Figure 10 25 ft on center geothermal layout Morning Side Site 1 Concept Design Phase Narrative | July 11, 2022 Page 12 of 18 Figure 12 Electrostatic Precipitator As seen in Figure 9 the photo catalytic oxidator removes particles responsible for poor air quality and odors. It does this by breaking down the molecular bonds of these particles; including VOCs. As shown in the diagram, the photo catalyst titanium dioxide produces hydroxyl radicals which break down the molecular structure of airborne particles. The resulting re-combination of the components result in formation of molecules not harmful or odiferous. Figure 13 Photo Catalytic Oxidator process, showing steps of grease and odor removal from exhaust air. Figure 14 (a) UV light tubes (b) Exterior of photo catalytic oxidator. Window in center of image shows glow of UV light Pages from Sustainability Concept Design Report (BR+A) MORNING SIDE CAMPUS - SITE 1 COLUMBIA UNIVERSITY CONCEPT DESIGN NARRATIVE JULY 11, 2022 12

Architecturally, the approach includes envelope target R values and glazing percentages. From a systems perspective, options include ground and air sourced heat pumps, along with various heat recovery systems to reduce load and to introduce alternative energy sources. Regardless of the system selection, the approach will be dedicated and internal. Connecting to the existing campus infrastructure is challenging from a cost and logistics perspective, but more importantly, would not be in alignment with the fossil fuel free mandates under Plan 2030.

The building systems report in its entirety is included in the

mitigation is an important part of envelope design High risk locations of thermal bridges are (1) boxes/overhangs (2) Corners/junctions (3) Windows Thermal bridge mitigation will be a part of 2023 NYS be adopted by NYC.

High performance buildings have a strong focus on reduced infiltration , tightly sealed, continuous controlled moisture movement. We recommend working with architect to encourage these types improve overall performance of the building’s enclosure.

Typical thermal bridging through glazed assemblies.
AIR SOURCE HEAT PUMPS Morning Side Site 1 | Concept Design Phase Narrative | July 11, 2022 | Page 5 of 18 RATIO
Figure 3 Window to Wall ratio of BR+A Projects
MITIGATION
Figure 4 Spandrel thermal bridging example
COLUMBIA UNIVERSITY SITE 1 PLANNING + ZONING STUDY 1.9.2023 13
Conceptual illustration from Columbia University Sustainability Plan 2021-2030
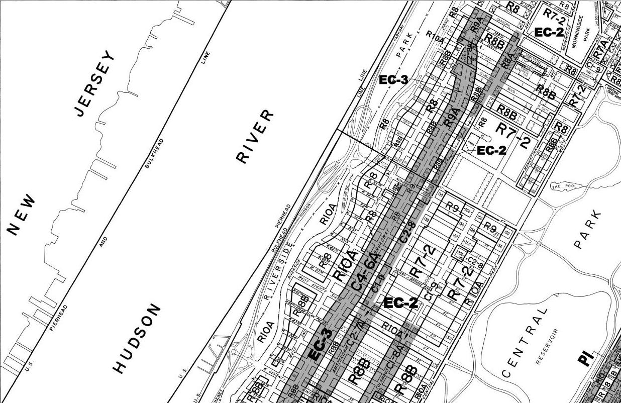
RIVER Zoning Map 5c and 5d, NYC Planning Commission Effective Date of Rezoning 4.30.2008 R = Residential, C = Commercial, M = Manufacturing
HUDSON
5b 5c

2. Zoning + Massing

EXISTING ZONING SUMMARY

The site is located in an R8 residential district. The proposed development is classified as a community facility use. A maximum Floor Area Ratio (FAR) of 6.5 applies to community facility buildings in R8 residential districts. The maximum FAR must be calculated based on the zoning lot, considering existing conditions and prior transfers of development rights.

Community facility buildings in R8 districts may use the standard height and setback regulations or tower regulations. The key bulk rules are summarized below:

Height and Setback (24-522)

• Lot coverage: 65% (except ground floor)

• Maximum base height: 85’ or 9 stories, whichever is less

• Minimum setback: 20’ (narrow street)

• Sky Exposure Plane: 2.7:1 (narrow street)

Tower (24-54)

• Maximum tower lot coverage: 40%

• Tower portion may penetrate the sky exposure plane

REAR YARD REQUIREMENTS

A 30’ rear yard is required for any interior lot portions of the zoning lot. A rear yard equivalent is required for through lot portions of the zoning lot. There are three (3) options per 24-382:

• A 60’ deep rear yard equivalent located at the midway point of the through lot portion

• Two 30’ deep rear yard equivalents extending along the full length of each street line

• Two 30’ deep rear yard equivalents extending along the full length of each side lot line

For scenarios involving a full-block zoning lot, no rear yard or rear yard equivalents are required (23-53).

There is a maximum lot coverage of 65% for interior or through lot portions of a zoning lot (40% for tower) though portions of the building below a height of 23’ can be excluded from lot coverage calculations.

The site plan diagrams on the following page demonstrate how these zoning rules may be applied to two different development scenarios.

Intro page from Zoning Summary Report 1.18.2022 produced by Envelope Zoning

COLUMBIA UNIVERSITY SITE 1 Block 1867 Zoning Summary The s te is ocated n an R8 resident al district The proposed development is class fied as a commun ty facility use A max mum Floor Area Ratio (FAR) of 6 5 applies to community fac ity buildings in R8 res dential distr cts The maximum FAR must be calcu ated based on the zoning lot considering existing conditions and pr or transfers of development rights Community facility buildings in R8 districts may use the standard height and setback regulat ons or tower regulations The key bulk rules are summar zed below - Height and Setback (24-522) - Maximum base height: 85 or 9 stories whichever s less - M nimum setback: 20 (narrow street) - Sky Exposure Plane: 27 1 (narrow street) - Tower (24-54) - Maximum tower ot coverage: 40% - Tower port on may penetrate the sky exposure plane A 30 rear yard s required for any interior ot port ons of the zoning lot A rear yard equivalent s required for through lot portions of the zon ng lot There are three options per 24-382: - A 60 deep rear yard equ valent located at the midway point of the through lot portion - Two 30 deep rear yard equ va ents extend ng along the fu l length of each street line - Two 30 deep rear yard equivalents extending along the full ength of each side lot line For scenarios involv ng a full-block zon ng lot no rear yard or rear yard equivalents are requ red (23-53) There is a maximum lot coverage of 65% for interior or through ot port ons of a zoning ot though portions of the building be ow a height of 23 can be excluded from lot coverage calculations ⓒ Enve ope Jan 14 2022
COLUMBIA UNIVERSITY SITE 1 PLANNING + ZONING STUDY 1.9.2023 15

The site plan images below demonstrate how these rules may development scenarios:

BASE ZONING OPTION

Spatial restrictions under current zoning regulations are described in greater detail in the body of the study, but are summarized as follows:

• Maximum lot coverage of 65% (excepting portions of a ground floor below 23’ in height)

• A 60’ combined rear yard for each parcel or two (2) rear yard equivalents

60-70’ above street).

Depending on the scenario, the zoning lot may include existing bulk regulations. The Zoning Resolution includes provisions fo “prevent the creation of additional non-compliances or increas non-compliances” (51-00).

• Minimum setback of 20’ above a maximum 85’ base.

• Additional setbacks above 85’ based on a sky-exposure plane of 2.7:1.

• A 30-foot easement on the western boundary, approximately 60’-70’ above the street (note that this is not a city requirement, but part of an existing agreement with the hospital)

The as-of-right application of these requirements results in a scheme of two building forms, one fronting 114th Street and one on 115th Street, connected by a common ground floor that runs though block. Each building would require its own egress stairs and elevator core. The need to reduce the building footprint to meet a sky exposure plane means that the higher the building, the floorplate continues to reduce, ultimately creating a practical limit to the building height.

2.
(cont’d)
ZONING
16

TOWER OPTION

Zoning Regulations allow for an alternative “Tower” massing. In this approach:

lot may include existing buildings that may not comply with the includes provisions for non-complying buildings that aim to compliances or increases in the degree of existing

• Tower lot coverage is limited to 40% (however full lot coverage is still allowed for one floor at ground level)

• Rear yard or 30’ rear yard equivalents can be located at each street line

• No setback requirement and tower can penetrate the sky exposure plane

• 30’ easement at hospital is still required

The use of the Tower option allows for a single floor plate, which would not require duplication of egress stairs and elevators. Also, because the site already has 30-foot easement with the hospital to the west, which applies to either zoning scenario, the 40% lot coverage requirement does not generate as substantial a penalty to floorplate size. Combined with less duplication of vertical circulation core, this generates a more efficient overall floorplate. Because there is no sky exposure plane requirement, these floors do not need to reduce in size as the building height increases.

There are certain limitations regarding where the Tower option can be employed when located near a park greater than one acre in size. The use of a Tower option was raised with the Department of City Planning who confirmed it was applicable to this site.

e how these
different
rules may be applied to two
COLUMBIA UNIVERSITY SITE 1 PLANNING + ZONING STUDY 1.9.2023 17

POTENTIAL CONTEXTUAL REZONING

Background

A community group (“Morningside Heights Community Coalition”) is leading a planning proposal that would seek to rezone a 35-block portion of Morningside Heights, including the subject site. The proposal generally seeks to introduce contextual zoning to this area, and would rezone the subject block from R8 to R8A and R9A.

The proposal is preliminary and has not yet entered the City Environmental Quality Review (CEQR) process or Uniform Land Use Review Procedure (ULURP). The group released a report (“Morningside Heights Planning Study) in May 2021 summarizing efforts to date since 2016. At this time, they indicated that they did not currently have funding to proceed with the next steps in the process - hiring consultants to complete an Environmental Assessment Statement.

The group preparing this proposal has received support and resources from local elected officials including Mark Levine, Gale Brewer, and staff from the City Council land use division. It is unclear how the political reshuffling of the 2021 elections may affect the future viability of this project. The proposal may also be revised if/when it moves through the formal land use approval process.

Zoning Implications

The development site is proposed to be rezoned to R8A. The maximum 6.5 FAR for community facility use would remain the same, but R8A requires buildings to use the Quality Housing bulk regulations, including a maximum 85’ base height and 120’ building height (increased to 95’/125’ if a >13’ ‘qualifying ground floor’ is provided). Quality Housing buildings on through lots are also required to provide a rear yard equivalent at the midpoint; therefore a single building scheme centered on the development site is not as-of-right and would require a discretionary approval.

Portions of the block within 100’ of Amsterdam Avenue (the Hospital) or Morningside Drive (44 Morningside / Notre Dame) are proposed to be rezoned from R8 to R9A, which allows a higher 7.5 FAR. The Zoning Resolution includes provisions for zoning lots that are divided by zoning district boundaries, including the ‘blended’ distribution of FAR based on the lot area in each district. This may allow for a reverse transfer of development rights from the hospital, or additional Morningside air rights, back to the development site, However, the feasibility of using this development rights transfer will likely be constrained by the height limit of the proposed R8A district.

The table below summarizes the key bulk rules that would apply to the development site under the current and potential zoning district:

+
(cont’d)
2. ZONING
MASSING
R8 R8A Max. FAR 6.5 6.5 Max. Base Height 85’ 95’ Min. Setback 20’ 15’ Max. Height N/A (Sky Exposure Plane) 125’ Max. Lot Coverage 65% 70% Min. Rear Yard (Interior Lot) 30’ 30’ Min. Rear Yard Equiv. Options: 1 x 60’ at midpoint (Through Lot) 1 x 60’ at midpoint 2 x 30’ at each street line 2 x 30’ at each side lot line 18
y a h he maximum 6.5 FAR for community facility
COLUMBIA UNIVERSITY SITE 1 PLANNING + ZONING STUDY 1.9.2023 19
Project Site

ZONING + MASSING

Within this framework of the existing as-of-right zoning, Columbia University has commissioned a series of studies to better understand the development potential for Site 1. Our efforts are a continuation of these studies and share with them an acknowledgment that the zoning approach for Site 1 can incorporate a range of options that consider the potential transfer of air rights from adjacent properties. In addition, the rezoning proposal introduced by Manhattan Community Board 9, which would change the existing zoning designation for Site 1 from R8 to contextual zoning R8A, adds a new option that has not been previously studied. With this in mind, DBB, along with our zoning consultant Envelope City, was asked to consider the following five zoning scenarios as a starting point of this study, listed here in order of decreasing development rights potential:

1 R8 as-of-right development, full site, with air rights transfer from 44 Morningside Drive (lot 23) and the Church of Notre Dame (lots 14 and 20)

2. R8 as-of-right development, full site, with air rights transfer from 44 Morningside Drive (lot 23)

3. R8 as-of-right development, full site

4. R8A proposed contextual rezoning development, full site

5. R8 as-of-right development, north lots only

Zoning Scenario One

285, 062 ZFA

As-of-Right, Full Site With Lots 20 & Lot 23 Air Rights Transfer

This scenario was not selected for further study because of the schedule and financial risks associated with the purchase of air rights from the Church of Notre Dame. The use of these air rights would also require approval from the Landmark Preservation Commission as the church and rectory are designated landmarks.

2

Zoning Scenario Two

177,227 ZFA

As-of-Right, Full Site With Lot 23 Air Rights Transfer

This scenario was selected for further study.

23 & Lot
of Right North Scenario As of Right Full with Lot 23 Air Rights Proposed Contextual Rezoning Full Site Scenario As
with
Scenario 1 As of Right Full Site
20 Air Rights Transfer As
of Right Full Scenario 2 As of Right Full Site
Lot 23 Air Rights Transfer 1
STUDIES
20

285,062 ZFA

Scenario 4

Proposed Contextual Rezoning Full Site

177,227 ZFA

Scenario 5

As of Right North Site

3

Zoning Scenario Three

150,172 ZFA

As-of-Right, Full Site

This scenario was not selected for further study because the air rights from Lot 23 are readily available and expand the programmatic options available to the university for this site.

As of Right North

4

Zoning Scenario Four

150,172 ZFA

Proposed Contextual Rezoning Full Site

150,172

Although the contextual rezoning is only a proposal, it is possible this proposal may eventually be approved. This scenario was selected for further study to understand the limitations rezoning would have on the development potential of this site.

5

Zoning Scenario Five

108,511 ZFA

As-of-Right, North Site only

108,511

This scenario was not selected for further study because the inclusion of the south block provides greater flexibility for the development of the site, especially with regard to the single tower massing. Also, the availability of a site of this scale, inclusive of the south lot, is a rarity this close to the main campus.

COLUMBIA UNIVERSITY SITE 1 PLANNING + ZONING STUDY 1.9.2023 21

ZONING SCENARIOS

MASSING CONSIDERATIONS

Among the many zoning regulations that affect the size and shape of any future development on this site, the rear yard setback soon emerged as a principle factor in the building massing approach. As noted earlier, for the through-block portion of the site, the rear yard requirement could be met in several ways. The conventional approach is a 30’ rear yard at the back of each lot, resulting in a 60’ rear yard at the midway point of the through lot. The resulting massing (Figure 1) is two bars separated by an open court, with one bar along 115th Street and a second bar along 114th Street. Although full lot coverage is allowed at the ground level, for the remaining above grade floors this zoning approach would yield two separate buildings.

However, for the through lot portion of the site, there is an option where the rear yard requirement is met with a 30’ deep rear yard equivalent extending along the full length of each street line. The resulting massing (Figure 2) is a single tower set back from the street on both sides, again with full lot coverage allowed at the ground level. This option requires a 40% lot coverage for the upper floors, but eliminates the sky exposure plane setbacks.

For the proposed contextual rezoning, the rear yard equivalent is not allowed, and only the conventional rear yard setback at the rear of the lot is an option. As a result, the massing approach here is limited to the double bar (Figure 3). This potential rezoning would also introduce a height limit to the bulk regulations, which does not exist in the as-of-right zoning.

For this reason, it is unlikely that the university would be able to use a substantial amount of the air rights transfer available for the site as the height limit will be reached before much, if any, of the transferred rights could be incorporated.

An important aspect of the zoning approach for this site, especially in the as-of-right schemes with air rights transfers, is the use of the 40% tower regulation. Anticipating program requirements that would benefit from the use of repetitive and larger floor plates, it became apparent that working within the sky exposure plane would result in floor plates that are too small to be used effectively. The tower regulations, however, allow for the massing to extend beyond the sky exposure plane when the associated floor plate is less than or equal to 40% of the total lot. Many of the massing and program combinations in the following pages use the 40% tower regulations to accommodate the target program mixes.

Ultimately, through our discussions with Columbia University, it was determined that this study should focus on the following three zoning and massing approaches:

A. R8 as-of-right double bar with air rights transfer from 44 Morningside

B. R8 as-of-right single tower with air rights transfer from 44 Morningside

C. R8A proposed contextual rezoning double bar

Scenario 1 Scenario 2 Scenario 3 Scenario 4 Scenario 5 As-of-Right As-of-Right As-of-Right Contextual As-of-Right w/ Air Rights Transfer Transfer Full Site Rezoning North Site Lot 23 and 20 with Air Rights Lot 23 Full Site Zoning Zoning District R-8 R-8 R-8 R-8A R-8 Existing Lot Area 26,786 26,786 26,786 26,786 16,694 FAR (Community Facility) 6.50 6.50 6.50 6.50 6.50 Rights (ZFA) Development Rights 174,109 174,109 174,109 174,109 108,511 Transfer, Lot 9 Existing 23,937 23,937 23,937 23,937 NA Transfer, Lot 23 Proposed 27,055 27,055 NA NA NA Transfer, Lot 20 Proposed 107,835 NA NA NA NA Total (ZFA) 285,062 177,227 150,172 150,172 108,511 GSF Equivalent Below Grade Level (GSF) 26,786 26,786 26,786 26,786 16,694 Ground floor (GSF) 26,786 26,786 26,786 26,786 1 6,694 Upper Floors (GSF) 277,509 163,998 135,519 135,519 100,164 Building Total (GSF) 331,081 217,570 189,091 189,091 133,552
2. ZONING + MASSING (cont’d) 22

Tower

Massing Scenario A

R8 as-of-right double bar with air rights transfer from 44 Morningside

Massing Scenario B

R8 as-of-right single tower with air rights transfer from 44 Morningside

R8 - Double Bar Massing

R8 - Single 40% Tower

Massing Scenario C

R8A proposed contextual rezoning double bar

COLUMBIA UNIVERSITY SITE 1 PLANNING + ZONING STUDY 1.9.2023 23

PRIOR APPROVALS AND EASEMENTS

Existing Zoning Lot

Lot 9 has previously been included in a zoning lot with Lots 1 & 5 (see 1989 Zoning Lot Description and Ownership Statement). The purpose of this zoning lot merger was to facilitate the transfer of development rights and redevelopment of the hospital. An agreement was entered into in 2002 between St. Luke’s-Roosevelt Hospital and Columbia with regard to potential future development involving the existing zoning lot (see 2002 Zoning Lot Development and Easement Agreement).

This agreement included an allocation of 23,926.5 SF of development rights from Columbia (Lot 9) to the Hospital (Lots 1&5). Because these development rights were transferred and used in the redevelopment of the hospital, Lot 9 cannot be separated from Lots 1 & 5; any future redevelopment involving Lot 9 must also include Lots 1 & 5 in the expanded zoning lot.

The agreement also includes a perpetual setback easement within 30’ of the eastern facade of the hospital building, at a limiting horizontal plane of 198.21’ above Manhattan datum, immediately below the lowest window sill of existing hospital windows (approx. 7th floor of the hospital building).

Prior BSA Approvals

As shown in the image above portions of the existing hospital building (shown in grey) are non-compliant with the minimum setbacks and sky exposure plane. The proposed redevelopment will not increase the degree of this noncompliance, which was previously approved by BSA.

• The redevelopment of the hospital required approvals from the NYC Board of Standards and Appeals.

• #42-88-BZ included a special permit per 73-641 for modifications to rear yard and height and setback requirements, as well as a variance per 72-21 for modifications to lot coverage requirements.

• #1259-88-A included an appeal to allow for lot-line windows on the eastern wall

As shown in the image above, portions of the existing h minimum setbacks and sky exposure plane. The propos degree of this non-compliance, which was previously a Jan 14, 2022

• Because of the existing zoning lot, these prior BSA approvals give the BSA jurisdiction over any future redevelopment involving Lot 9. See section below for more detail on this process.

EXISTING NON-COMPLIANCE

The zoning lot includes existing buildings that may not comply with the bulk regulations. The Zoning Resolution includes provisions for non-complying buildings that aim to “prevent the creation of additional non-compliances or increases in the degree of existing non-compliances” (51-00).

To calculate available development potential, we cannot increase non-compliance of the lot, but we are not penalized by existing non-compliance. See Appendix for details.

APPROVAL PATHS

As-of-Right

There is one redevelopment scenario that may be permitted as-of-right, without BSA review and approval: development of the north portion of the site (Lots 29-33 only, i.e. excluding Lot 9 or any transfer of development rights). This would be a standard filing with the Department of Buildings.

Zoning Lot Mergers

Transfer of development rights from adjacent lots on the block to the development site requires a zoning lot merger. This requires Zoning Exhibits, signed by all parties in interest for all properties, be prepared by a title company and filed with the Department of Finance and Department of Buildings. These are the official record of the extent and ownership of the zoning lot. Note that similar documents are required to be recorded even for a zoning lot consisting of a single tax lot.

non-compliances” (51-00).
+
(cont’d)
2. ZONING
MASSING
24
Non-compliant portions of existing hospital building

p g documents are required to be recorded even for a zoning lot consisting of a single tax lot

For a zoning lot merger involving multiple tax lots, a Zoning Lot Development Agreement (ZLDA) is typically signed by the property owners and submitted to the Department of Finance This agreement documents each party’s rights and responsibilities for future use and development within the merged zoning lot, for example specifying the allocation of development rights between lots in a table like this (from the existing ZLDA between Columbia and the Hospital):

For a zoning lot merger involving multiple tax lots, a Zoning Lot Development Agreement (ZLDA) is typically signed by the property owners and submitted to the Department of Finance. This agreement documents each party’s rights and responsibilities for future use and development within the merged zoning lot, for example specifying the allocation of

The BSA may allow an application to be filed on its Special Order Calendar (SOC) a the previous BSA approvals involving the hospital. The applicant should request a d the BSA Chair regarding whether the application may be appropriately filed on the S given that the proposed redevelopment is likely to have minimal if any impact on th building. Otherwise, a new application must be filed on the typical BZ calendar.

The BSA may allow an application to be filed on its Special Order Calendar (SOC) as an amendment to the previous BSA approvals involving the hospital. The applicant should request a determination by the BSA Chair regarding whether the application may be appropriately filed on the SOC calendar, given that the proposed redevelopment is likely to have minimal if any impact on the existing hospital building. Otherwise, a new application must be filed on the typical BZ calendar.

Landmarks Preservation Commission

Landmarks Preservation Commission

The Church of Notre Dame (Lot 20) and its rectory (Lot 14) are both designated as In Landmarks. Any redevelopment options involving transfer of development rights fro would require approvals from the Landmarks Preservation Commission.

Board of Standards and Appeals

The Church of Notre Dame (Lot 20) and its rectory (Lot 14) are both designated as Individual Landmarks. Any redevelopment options involving transfer of development rights from these lots would require the development to obtain approvals from the Landmarks Preservation Commission. The chart below summarizes the types of filings and approvals that may be required for different development scenarios:

The chart below summarizes the types of filings and approvals that may be required development scenarios:

As discussed in the previous section prior BSA approvals for the hospital redevelopment give the BSA jurisdi with Lots 1

Jan 14, 20

Lots 29, 30, 31, 32 Lots 29, 30, 31, 32, 9 (with 1 and 5)

Lots 29, 30, 31, 32, 9 (with 1 and 5)

23 development rights

Lots 29, 30, 31, 32, 9 (with 1 and 5)

23 development rights

14 & 2 dev. rights

DOF Zoning Lot Exhibits Zoning Lot Development Agreement BSA Approval LPC Approval DOB Approval COLUMBIA UNIVERSITY SITE 1 PLANNING + ZONING STUDY 1.9.2023 25

Zoning Calculations

DEVELOPMENT RIGHTS

The following table summarizes the lot area and development rights available to the site. Calculations are based on the area of the zoning lot (i.e. all tax lots included as development sites and any tax lots involved in transfer of development rights), and must take into account the combined lot area, existing buildings to remain, and prior transfers of development rights that have occurred between these lots.

Notes

• All areas are rounded to the nearest square foot

• Lot area (source: Envelope based on Digital Tax Map & mapPLUTO) should be verified via survey

• Existing building GFA (source: PLUTO) and any ZFA deductions should be verified via survey

• Amount of prior transfer per Exhibit D of 2002 Zoning Lot Development and Easement Agreement

LOT COVERAGE

The following tables summarize the lot coverage calculations applicable to the site. Note that the area of existing noncompliance on the Hospital site is excluded from these calculations as it was previously approved via BSA variance.

CURRENT R8 ZONING

Lot Area Max Allowed Existing Prior Dev. Lot# Site (6.5 FAR) Bldg. Area Transfer Rights 9 Development site (clinic) 10,092 65,599 42,672 -23,927 41,673 29 Development site (vacant) 6,604 42,926 0 42,926 30 Development site (vacant) 3,363 21,862 0 21,862 31 Development site (vacant) 3,363 21,862 0 21,862 33 Development site (vacant) 3,363 21,862 0 21,862 Site Subtotal 26,786 174,111 42,672 150,185 1+5 Hospital 40,367 262,384 280,560 23,927 0 Site + Hospital 67,153 436,496 323,232 150,185 23 44 Morningside 11,407 74,147 47,145 27,002 Site + Hospital + Lot 23 78,560 510,643 370,377 177,187 14 Church rectory 3,092 20,099 7,680 12,419 20 Church 17,491 113,693 20,591 93,102 Site + Hospital + Lot 23 + Church 99,144 644,435 398,648 282,708
Existing Existing Existing Lot Max Lot Max Footprint Max Dev. Lot# Site Lot Area Footprint Coverage Coverage Footprint to Remain Footprint 9 Development site (clinic) 10,092 6,773 67% 65% 6,560 0 6,560 29 Development site (vacant) 6,604 0 0% 65% 4,293 0 4,293 30 Development site (vacant) 3,363 0 0% 65% 2,186 0 2,186 31 Development site (vacant) 3,363 0 0% 65% 2,186 0 2,186 33 Development site (vacant) 3,363 0 0% 65% 2,186 0 2,186 Development Site Subtotal 26,786 6,773 25% 65% 17,411 0 17,411 1+5 Hospital 40,367 37,667 93% 70% 28,257 37,667 -9,411 Site + Hospital 67,153 44,440 66% 68% 45,668 37,667 17,411 23 44 Morningside 11,407 7,786 68% 74% 8,441 7,786 655 Site + Hospital + Lot 23 78,560 52,226 66% 69% 54,109 45,454 18,066 14 Church rectory 3,092 2,810 91% 65% 2,010 2,810 -800 20 Church 17,491 12,563 72% 71% 12,419 12,563 -144 Site + Hospital + Lot 23 + Church 99,144 67,599 68% 69% 68,538 60,826 17,122 26

POTENTIAL R8A ZONING

TOWER LOT COVERAGE

The following table summarizes the tower lot coverage calculations applicable to the site. A tower is defined as “any portion or portions of buildings which in the aggregate occupy not more than 40 percent of the lot area of a zoning lot” which “may penetrate an established sky exposure plane.” We estimate the existing portion of the Hospital building which penetrates the sky exposure plane to have a footprint of 6,100 SF, this figure should be verified.

Existing Existing Existing Lot Max Lot Max Footprint Max Dev. Lot# Site Lot Area Footprint Coverage Coverage Footprint to Remain Footprint 9 Development site (clinic) 10,092 6,773 67% 70% 7,065 0 7,065 29 Development site (vacant) 6,604 0 0% 70% 4,623 0 4,623 30 Development site (vacant) 3,363 0 0% 70% 2,354 0 2,354 31 Development site (vacant) 3,363 0 0% 70% 2,354 0 2,354 33 Development site (vacant) 3,363 0 0% 70% 2,354 0 2,354 Site Subtotal 26,786 6,773 25% 70% 18,750 0 18,750 1+5 Hospital 40,367 37,667 93% 75% 30,275 37,667 -7,392 Site + Hospital 67,153 44,440 66% 73% 49,026 37,667 18,750 23 44 Morningside 11,407 7,786 68% 79% 9,012 7,786 1,225 Site + Hospital + Lot 23 78,560 52,226 66% 74% 58,037 45,454 19,976 14 Church rectory 3,092 2,810 91% 70% 2,165 2,810 -646 20 Church 17,491 12,563 72% 76% 13,293 12,563 731 Site + Hospital + Lot 23 + Church 99,144 67,599 68% 74% 73,495 60,826 20,061
Max. Tower Existing Max. Dev. Lot Lot Max. Tower SEP Tower Lot# Site Area Coverage Footprint Penetrat. Footprint 9 Development site (clinic) 10,092 40% 4,037 0 4,037 29 Development site (vacant) 6,604 40% 2,642 0 2,642 30 Development site (vacant) 3,363 40% 1,345 0 1,345 31 Development site (vacant) 3,363 40% 1,345 0 1,345 33 Development site (vacant) 3,363 40% 1,345 0 1,345 Site Subtotal 26,786 40% 10,715 0 10,715 1+5 Hospital 40,367 40% 16,147 6,100 10,047 Site + Hospital 67,153 40% 26,861 6,100 20,761 23 44 Morningside 11,407 40% 4,563 0 4,563 Site + Hospital + Lot 23 78,560 40% 31,424 6,100 25,324 14 Church rectory 3,092 40% 1,237 0 1,237 20 Church 17,491 40% 6,996 0 6,996 Site + Hospital + Lot 23 + Church 99,144 40% 39,658 6,100 33,558
COLUMBIA UNIVERSITY SITE 1 PLANNING + ZONING STUDY 1.9.2023 27
28

3. Programming

PROPOSED PROGRAM

The programs identified for Site 1 were initially identified by the University for further exploration and development in the Study and included undergraduate student residences, an expanded and consolidated Health Services Center, an additional student dining facility and a satellite recreation space. These are all uses that are currently underserved on the campus and their expansion would significantly impact and enhance campus-life. In addition, these programs represent best uses for such a central location, since they serve a campus-wide constituency and benefit from proximity to other undergraduate residences, classrooms and academic spaces. Two of the uses (Health Services and Recreation) had already undergone independent programming and master planning efforts.

On many campuses these programs might occupy separate facilities, however at urban institutions such as Columbia, real estate is a premium and mixed-use buildings are far more common. Although these uses typically operate independently, with their own specific access requirements and security perimeters, there may be potential benefits in their co-location in a single facility. There are beneficial relationships and alignments in their missions, much of which revolves around promoting wellness and the overall quality of student life and learning. Areas for exercise/meditation, kitchen demonstration and teaching, nutrition and health-related education, and informal gathering and learning are examples of spaces that bridge between the four program areas and could contribute to a unified building identity and character.

COMMONS

In addition to the four core program areas, the planning effort identified the need for flexible public space, tentatively titled “Commons.” Unprogrammed social gathering space is in short supply at Columbia and the Commons has been conceived as flexible area for casual interaction, informal study, and even ancillary dining space. Most importantly it can engage the diverse users of the building, promote physical access and connections to and between the major programs, and could be further developed to support a shared mission of wellness and health. This area is intentionally not programmed in high-detail as we believe its opportunities will emerge as part of an overall building design process and resulting plan adjacencies.

METHODOLOGY

The proposed programs for housing and dining used in this study were developed through interviews with departmental staff, review and tours of existing facilities and review/ benchmarking of recent projects at peer institutions in urban settings. The program for Health Services and Recreation were derived from a pre-existing Program Studies (Columbia Health Facility Master Plan 2020 and the Dodge Gym Transformation Program 2018) supplemented by departmental interviews.

Benchmarking examples of recent student residences, with an emphasis on peer institutions in urban settings, were reviewed with departmental staff with attention to the mix of room types (singles/doubles), provisions for shared lounges and study space, relationship to toilet/shower rooms, and the distribution of kitchens and laundry. Benchmarking also looked at net and gross area per bed to assist in establish realistic planning targets. In the development of the student residences and Health Services programming, diagrammatic test-fits were also developed to better understand the dimensional constraints and opportunities of the zoningmandated floorplates and to conform the organization of major components of the program.

Dining Services has been programmed for a new stand-alone 400-seat student dining area with kitchen and servery. The Recreation program envisions a satellite location for student fitness, classes and related lockers/support that supplements, but does not replace existing facilities in Dodge.

COLUMBIA UNIVERSITY SITE 1 PLANNING + ZONING STUDY 1.9.2023 29

PROGRAM COMBINATION OPTIONS

Because the proposed site has a fixed capacity for new construction, it is not possible to build as much space as would ideally be provided for all the program uses identified for inclusion. Working with the University, the study has developed a series of alternate scenarios or combinations of programs. The chief variable in the development of the planning options are in the relative sizes of Student Housing and Health Services, as these are the two largest program components and occupy the bulk of the proposed building above the ground floor.

Dining is carried as a single option, primarily as there is a significant fixed space requirement for the kitchen and support space, and reductions in seating count would not effectively reduce overall space requirements in direct proportion. The Recreation program component is also carried as a fixed program area in the combinations. Because it requires its own locker/shower facilities and staffing, there is also an economy of scale here. Both Dining and Recreation spaces can potentially occupy space in the base and lower levels of the building that are less suitable to student housing and health services.

With the review and input of the University, these options were refined into five basic combinations which were tested against the zoning requirements of the site.

The program options for the proposed building are:

• 300-Bed Student Residence, Dining, Health Services (Option 3), and Commons

• 300-Bed Student Residence, Dining, Health Services (Option 1), Recreation, and Commons

• 400-Bed Student Residence, Dining, Health Services (Option 2), and Commons

• 500-Bed Student Residence, Dining, Rec. & Commons

• 600-Bed Student Residence, Dining, and Commons

Additionally, there are three sub-variants of the program options specific to Contextual Zoning, which has a smaller floor area capacity. The program requirements for the building are further defined in the following pages of the report.

PROGRAMMING (cont’d)
30
Plan Undergraduate Housing Campus Plan Morningside - Dining Plan Health Campus Plan Morningside - Recreation Existing Campus Locations RESIDENTIAL Existing Campus Locations DINING Existing Campus Locations HEALTH Existing Campus Locations RECREATION Baker Field COLUMBIA UNIVERSITY SITE 1 PLANNING + ZONING STUDY 1.9.2023 31
Program Requirements
32

Program Requirements Residential

Columbia University has a total of 22 undergraduate residence halls providing a range of housing options and amenities for students. The most prominent dormitories are located along the south lawn of the main campus and form the heart of the freshman community.  Undergraduate dormitories are also located along Broadway, on the side streets of the neighborhoods south of the campus, and on the East Campus across Amsterdam Avenue.

University housing is central to the Columbia University undergraduate experience, with many students electing to stay in dormitories throughout their upper-class years despite the availability of alternate housing options nearby.  Site 1 offers the university a rare opportunity to expand access to housing for its students and to reconsider oncampus living models at a meaningful scale, comparable to the largest existing dormitories.

As an urban campus, Columbia University has limited space to grow. When the opportunity arises, competing demands for space often require multi-use buildings where various functions are layered together. For this residence hall, this layering of functions is a unique benefit, as the other potential programs sharing this site, health, recreation and dining, are centered around an evolving understanding of wellness and position this project to enhance the quality of student life on campus in a holistic way.

For the development of the residence hall program, the team met regularly with leadership at Columbia University Campus Services, and also studied housing models at peer institutions. The latter studies can be referenced in the benchmarking analysis included in the appendix.

From our discussions we learned that the residence hall at Site 1 would be intended primarily for sophomores, and that the dormitory would need to house 200 students at a minimum (preferably 300) to provide a sense of community and identity. For this study a range of scales from 300 to 600 beds were considered. As a reference, the largest undergraduate dormitory on campus are John Jay at 467 beds and East Campus at 726 beds.

Other metrics of the programming include:

• Housing mix of 75–80% singles, 20–25% doubles

• Student to bathroom ratio of 4 to 1

• One (1) Resident Advisor per 40 students, or one per dormitory floor

• One (1) apartment for a Resident Hall Director

• Kitchens to be shared per floor or provided in conjunction with a full-service dining hall in the building

A primary focus of our study was the scale and relationship of shared spaces in the dormitory. One model found at peer institutions emphasized suite-type dormitory units with private common spaces and bathrooms. At Columbia, there was a concern this approach would internalize student interaction at the expense of fostering stronger communities at a broader scale. As a preferred alternate, other benchmark models were organized around bedrooms and bathrooms directly accessible from shared corridors, with communal spaces of various scales and use distributed at central locations on the floor.

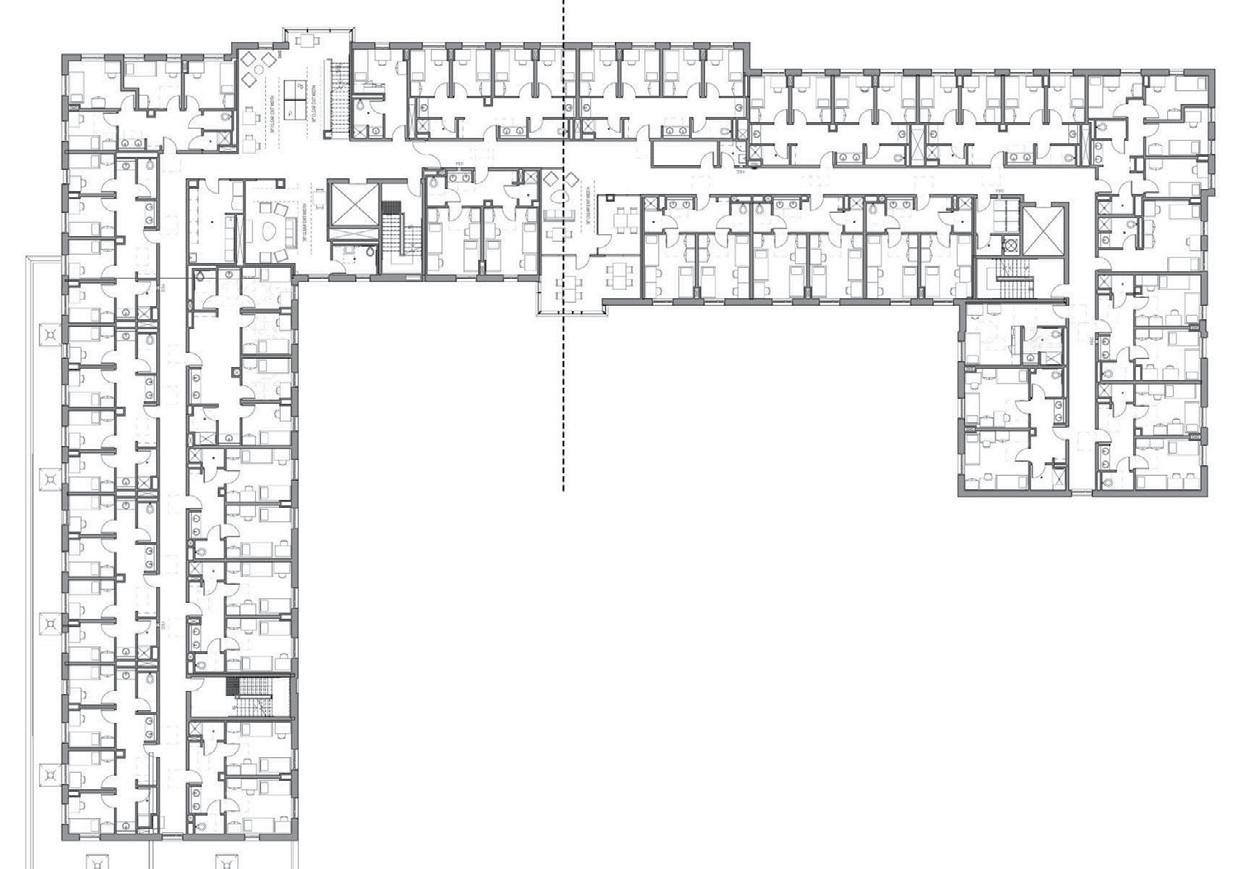
As part of our study, the team developed preliminary test fits. These should be understood as planning instruments to vet assumptions about the metrics of the program implementation. A design would need to be developed further in a later phase of work with continued involvement by Columbia University and their user groups. Our initial test fits suggest a 300 GSF per student bed ratio which is comparable to other dormitories in the benchmarking. The test fits show that the optimal building width to support the desired unit types is between 50’ to 60’. This is narrower than the maximum width of building allowed in some of the zoning scenarios considered, and as a consequence, a housing program might result in a building that does not utilize the full development potential of the site on a floor by floor basis. This will be explained in more detail in the program and building massing scenarios outlined towards the end of this study.

COLUMBIA UNIVERSITY SITE 1 PLANNING + ZONING STUDY 1.9.2023 33
34

Program Requirements Dining

Dining services at Columbia University are an important part of undergraduate student life, despite the availability of kitchens in many of the dormitories and plentiful options for dining out throughout the neighborhood. Columbia Dining serves 12,000 to 14,000 meals a day, structured around 6,800 student meal plans, including 1,500 that are mandatory for first year students. Overall participation is at 81% of the undergraduate student body. Prior to the pandemic, Columbia Dining provided 22 hours of continuous meal operation.

However, as an urban campus, the space allocated for dining services at Columbia University is far less than that of the other peer institutions. Columbia’s 9:1 student-to-seat ratio is more than double that of the other Ivies, which average 4:1. The challenges resulting from a deficiency of available space not only affect seating capacity, but also all other aspects of dining service, from food preparation and serving, to logistics, delivery, and staff support.

SITE 1

Site 1 offers Columbia Dining an excellent opportunity to expand upon its food service offering by providing a home for a new dining hall at a scale consistent with the main dining halls on campus. Although potentially sharing this site with a new dormitory, the dining hall would be scaled to meet campus-wide demands. This is consistent with the food service approach throughout the university, where each dining location is unique in terms of menu but not dedicated to a specific community of students. Over the course of this study, Davis Brody Bond, along with our food service consultant Davella Studios, met with representatives of Columbia Campus Services to better understand the goals for this new dining facility, and have proposed the following concepts for food service and associated space metrics as a guide for future development.

COMMONS FOOD HALL CONCEPT

This concept maximizes fresh preparation in an exhibition style format that utilizes small batch production, as well as foods prepared by the main kitchen staff. This approach enhances the customer’s perception of freshness and demystifies the origin of the product.

• In its purest sense the approach is to create mini restaurants or “platforms.” Each platform has its own food production and service format, but with an architecturally coordinated identity. With much of the food preparation and cooking done in front of the customer, preliminary and bulk preparation is supported by the main production kitchen.

• This exhibition servery will bring many of the kitchen functions out of the back of the house, thus visually engaging the customer in the process of preparing and serving food. This creates a dynamic, lively, and interactive environment bridging the areas of food production and product authenticity and customer service.

• Merchandising is another key component to this concept. The use of retail food display equipment as well as retail graphics and lighting will display food in an attractive manner and improve the perceived quality of the products offered.

• Control Points. Access to the all-you-care-to-eat (AYCE) dining program is an important factor during peak lunch and dinner times. Controlling the flow of customers into the space will allow the service points have time to adjust to peak customer surges and maintain consistent flow and customer throughput.

• Dining Areas. Seating areas should incorporate a variety of table styles to include four-tops, communal tables, bar-height and counter height. Additional elements should include self-service beverage stations, condiment stations and trash/recycling disposal counters. Seating layouts should take into consideration late night service and study areas.

• Micro Restaurants. A collection of micro restaurants presented as defined concepts with individual identities and a strong point of view. Each micro restaurant will have the ability to expand and contract in menu and offering based on demand.

• Main Kitchen & Support. Designed to support Commons Food Hall concept. Requires easy access to the loading dock and freight elevators. Infrastructure includes refrigerated and dry storage, hot and cold production, trash and recycling, ware-washing, food service offices and staff facilities.

COLUMBIA UNIVERSITY SITE 1 PLANNING + ZONING STUDY 1.9.2023 35

Program Requirements Health

BACKGROUND

Columbia Health advances the well-being of the university community by delivering medical and counseling services to Columbia University students in support of their personal and academic development. These services are offered through six departments:

• Medical Services

• Counseling & Psychological Services

• Disability Services

• Sexual Violence Response

• Alice! Health Promotion

• Administration

Columbia Health services are currently distributed across six locations on campus, in facilities that are over-utilized and outdated. Many of these were built for other functions and have been repurposed over time. As a consequence, they do not adequately support the quality of medical services

Columbia Health aspires to provide its students, nor can they address the growing demand for health services on campus. In particular, it is a challenge to provide care for students who would benefit from a more integrated approach when different services are located separately from one another across campus.

2020 MASTER PLAN

In 2020, Columbia University engaged the services of Ewing Cole to develop a master plan and programming study for Columbia Health. This was a first step towards the goal of co-locating all of Columbia Health in one facility sized to accommodate the growing demand and evolving models for health services on campus. The master plan addresses the following general issues:

• Space type and allocation that do not currently conform to industry standards for health care services

• Demand increase based on growing utilization trends for health services.

• Demand increase from anticipated growth in the Columbia University enrollment

• New programs to align Columbia Health services with evolving health care models

The Ewing Cole study maps out the following growth scenarios to address these demands:

• Right-sized, No Growth

• 2030 Growth

• 2045 Growth

SITE 1 PROGRAM OPTIONS

For this study, Davis Brody Bond was asked to update the 2020 Master Plan program, and to study how the various Columbia Health Growth scenarios can be accommodated in Site 1. Relative to the development potential for Site 1, the program growth scenarios for Columbia Health in the 2020 study were significant in their size, and as defined would limit the opportunities for a multi-use building that could be shared with a residence hall. This was especially true for the 2030 and 2045 growth options. With the aim of preserving a shared programming for Site 1, we were asked to include along with the Right-sized No Growth program two new and smaller program options. Together the three options under consideration for this study are:

• Health 1: 2030 Medical Services

• Health 2: 2030 Medical Services, Alice! Health Promotion and Administration

• Health 3: Current Program, Right-sized

These program options are built around Medical Services because the requirements for these spaces are the most specialized, and the current facilities in John Jay fall short of these standards. Also, the space that would be made available in John Jay if Medical Services were relocated represents an excellent opportunity for strengthening the existing programing in that building, one that would be hard to come by so close to the heart of the campus.

36
HEALTH 2 2030 Medical Services Alice! Health Promotion & Administration (Source: Ewing Cole 2020 study) 2030 w/ Current Services GSF Existing DGSF Right-sized, No Growth GSF 2045 w/ Current Services GSF DGSF DGSF DGSF HEALTH 1 2030 Medical Services (Source:
A Columbia Health /Administration 1,708 2,714 3,393 4,860 6,075 5,897 7,371 B Medical Services 10,205 32,850 41,063 44,918 56,148 54,499 68,124 C. Counseling & Psychological Services 6,698 16,331 20,414 20,118 25,148 24,409 30,512 D. Disability Services 9,006 16,881 21,101 17,531 21,914 21,270 26,588 E. Sexual Violence Response 1,655 5,026 6,283 5,670 7,088 6,879 8,599 F Alice! Health Promotion 2,957 4,091 5,114 4,982 6,228 6,045 7,556 Sub-Totals 32,229 77,893 97,366 98,079 122,599 119,000 148,750 2030 w/ Current Services GSF Existing DGSF Right-sized, No Growth GSF 2045 w/ Current Services GSF DGSF DGSF DGSF HEALTH 3 Current Program, Right-sized (Source: Ewing Cole 2020 study) A Columbia Health /Administration 1,708 2,714 3,393 4,860 6,075 5,897 7,371 B Medical Services 10,205 32,850 41,063 44,918 56,148 54,499 68,124 C Counseling & Psych. Services 6,698 16,331 20,414 20,118 25,148 24,409 30,512 D. Disability Services 9,006 16,881 21,101 17,531 21,914 21,270 26,588 E Sexual Violence Response 1,655 5,026 6,283 5,670 7,088 6,879 8,599 F Alice! Health Promotion 2,957 4,091 5,114 4,982 6,228 6,045 7,556 Sub-Totals 32,229 77,893 97,366 98,079 122,599 119,000 148,750 2030 w/ Current Services GSF Existing DGSF Right-sized, No Growth GSF 2045 w/ Current Services GSF DGSF DGSF DGSF A. Columbia Health /Administration 1,708 2,714 3,393 4,860 6,075 5,897 7,371 B Medical Services 10,205 32,850 41,063 44,918 56,148 54,499 68,124 C. Counseling & Psychological Services 6,698 16,331 20,414 20,118 25,148 24,409 30,512 D. Disability Services 9,006 16,881 21,101 17,531 21,914 21,270 26,588 E. Sexual Violence Response 1,655 5,026 6,283 5,670 7,088 6,879 8,599 F. Alice! Health Promotion 2,957 4,091 5,114 4,982 6,228 6,045 7,556 Sub-Totals 32,229 77,893 97,366 98,079 122,599 119,000 148,750 COLUMBIA UNIVERSITY SITE 1 PLANNING + ZONING STUDY 1.9.2023 37
Ewing Cole 2020 study)

PROGRAM UPDATES

The 2020 programming was conducted during the COVID-19 pandemic, but the metrics for that programming were based on pre-pandemic health service models. In our discussions with Columbia Health leadership, it was important to understand how the pandemic had changed the ways Columbia Health provided services to its students and what types of spaces would be needed to support these new service models. Contrary to expectations, we learned that although there has been an increase in the use of the telemedicine, there was no corresponding change in overall space needs.

The primary program adjustments from 2020 instead resulted from the restructuring of Columbia Health as a university department separate from Campus Services. This resulted in a modest increase of administrative spaces to accommodate previously shared positions. Other potential adjustments to the 2020 program are related to the check-in and waiting room strategy for Medical Services and Counseling. The precise modifications to the program cannot be quantified at this time, but will be a response to the way in which the space allocation for these services will be divided across multiple floors. Similarly, there may need to be some re-allocation of ready-supply storage for multiple floors. The Ewing Cole program presumed larger floor plates that will not be possible on Site 1, and the areas assigned to the entry sequence (and possibly storage)will need to be expanded to accommodate some repetition of functionality over a greater number of floors.

Lastly, during the 2020 programming, there was an interest in sharing Counseling and Medical Services on the same floor to avoid situations where students seeking psychological support can be identified by the floor they are visiting. Upon review of the floor sizes we anticipate at Site 1, Columbia Health is moving away from this approach, in favor of the efficiencies afforded by floors with dedicated programs.

HEALTH PROGRAM REQUIREMENTS (cont’d) 38

Program Requirements Campus Recreation

BACKGROUND

Campus Recreation and Physical Education is co-located with Columbia Athletics in the Dodge Fitness Center, and together are part of a single organization. The Dodge Fitness Center consists of two original buildings beneath Pupin Plaza that are over 100 years old, connected by a structure housing the main gym built in 1974. This grouping was developed to support an athletics program that was much smaller in size, serving an undergraduate population that was all male. By the time organized women’s sports were added to Columbia Athletics, following the introduction of co-education in 1983, this facility was fundamentally undersized.

Columbia Athletics has continued to grow and now fields 31 Men’s and Women’s intercollegiate Division 1 NCAA teams. The opening of Campbell Sports Center at Baker Field in 2012 has provided modern facilities and much-needed relief for the space demands at Dodge, but this has been overcome by an increase in utilization for Campus Recreation. Student enrollment growth has also increased demands for space, especially because Columbia Recreation includes Physical Education, which offers programs that are part of the graduation requirement for Columbia undergraduates.

SATELLITE

As an alternative to Dodge Fitness Center, where campus recreation competes for space with intercollegiate Athletics and Physical Education programming, Site 1 offers an opportunity for a customized satellite facility that is focused solely on recreation. As such it also invites a new way of thinking about the purpose and goals of recreation programming on campus.

WELL-BEING

In discussions with Campus Recreation user groups, there was an interest in moving away from traditional recreational programming and instead focusing on an integrated approach to meeting the well-being needs of the student community. This can involve working in partnership with other university departments and entails re-centering physical recreation as a contributor to emotional health and personal development.

PROGRAM

The spaces identified for this program include:

• Cardio Area (approx. 12,500 to 17,000 sf)

• Strength Training Area (approx. 14,000 to 17,000 sf)

• Multi-Purpose Spaces (7,500 to 10,000 sf)

• Staff (3 to 4 professional staff / 2 offices, custodial and security)

• Locker Rooms, Shower, and Changing Rooms (gender inclusive)

• Equipment Rooms

COLUMBIA UNIVERSITY SITE 1 PLANNING + ZONING STUDY 1.9.2023 39

Program Requirements Commons

BACKGROUND

From the early phases of the project, it became clear that the greatest potential for Site 1 was not in the individual programs that would be housed there, but in their collocation. This is especially true because the uses anticipated for Site 1 could all support a more holistic approach to student wellbeing if understood together. When we started to look at the program combinations for Site 1, it became clear that we also needed to build in a space that would be open for shared activities, a space that was not owned by any particular program but instead shared by all. For the purposes of the study we allocated 5000 GSF for the shared commons, and we understand this space as integral to the sequence of entry and access to the other programs on site.

ENTRY

Site Approach

Entry Level Sections

The diagrams on this spread show our preliminary ideas about the shared commons mapped onto the double bar and single tower zoning scenarios.

COMMONS

Entry Level Section

R8: Double Bar

R8A: Contextual

Based on our previous understanding of the site and its relationship to the main campus, we see the main entrance located on 115th Street, with possible connections south to a secondary entrance on 114th. In both scenarios, the shared spaces are located in areas where zoning requires open space on the second floor, ensuring that these spaces could have skylights and access to natural light from above.

BUILDING CORES

The commons would provide access to separate circulation cores when required by the program, each with dedicated security if needed. In the double bar scenario, the cores are divided naturally. In the single tower, we anticipate a satellite core at the eastern end to serve the lower floors and a central core to serve the upper floors. In both scenarios, the commons allows for a ground floor organization that combines shared spaces and dedicated entries. There are also ways of thinking about the commons vertically as a connection between the ground floor, the lower level, and shared amenity spaces on the second floor which have the potential for direct access to rooftop outdoor space.

Dining Dining Mech Recreation Recreation Health Residential Commons Courtyard 115th 114th 114th
40

Site

Approach Ground Floor Programs

COMMONS

COMMONS Entry

COMMONS Entry

Dining Dining Residential Dining Residential Recreation Recreation Dining Mech Commons 115th 114th 115th
Entry Level Plan Diagram R8: Double Bar R8A: Contextual Dining Res Lobby Recreation Health Entry Loading Residential Health Dining Loading Recreation Commons Lobby Hospital Loading Hospital Loading 44 Morningside Drive St Luke's Roosevelt Hospital Church of Notre Dame St Luke's Roosevelt Hospital Commons R8 - Double Bar R8A - Contextual R8 - Single Tower 115th Street 114th Street 115th Street 114th Street
Dining Res Lobby Recreation Health Entry Loading Residential Health Dining Loading Recreation Commons Lobby Hospital Loading Hospital Loading 44 Morningside Drive Luke's Roosevelt Hospital Church of Notre Dame 44 Morningside Drive St Luke's Roosevelt Hospital Church Notre Dame Commons
- Double Bar
- Contextual
- Single Tower Street Street 115th Street 114th Street
R8
R8A
R8
Approach Floor Programs
Level Plan Diagram
Single Tower
R8:
Level Section
Single Tower COLUMBIA UNIVERSITY SITE 1 PLANNING + ZONING STUDY 1.9.2023 41
R8:

Test Fits

Single Tower

Residential Program

Shared Spaces Options

Health

Organizational

These following test fits were developed as part of our programming study to understand the basic organization of the dormitory from a planning perspective, and to develop optimal building widths for the massing studies. These test fits align with the 300 GSF/bed programing ratio that we have seen in the benchmarking studies of dormitories at similar institutions.

Double Bar

Spaces Options

Beds Per Floor: 23

Single Beds: 16

Double Beds: 6

RA Beds: 1

Floor Plate Area: 7,000 SF

SINGLE TOWER Shared Spaces Options

Beds Per Floor: 29

Beds Per Floor: 23

Single Beds: 22

Double Beds: 6

RA

Single Beds: 16

Double Beds: 6

1

RA

9"
51' -
135' - 4"
Beds: 1 Floor Plate Area: 7,000 SF Area Per Bed: 304 SF Social Lounge Group Study Quiet Study
5 SITE AXON Beds
Single
Double RA
Floor Plate Area
Social
10"
- 0"
Per
Beds:
Beds:
Per
Lounge Group Study Quiet Study 141' -
60'
DOUBLE BAR Shared Spaces Options
Area Per Bed: 304 SF
42
Beds:
Floor Plate Area: 8,500 SF Area Per Bed: 293 SF Social Lounge Group Study Quiet Study

Test Fits Health Program

Organizational Diagrams

These building organization diagrams were developed to provide a broad understanding of the health program fit with respect to the double bar and tower massing options. Although diagrammatic, these are based on the clinical pod unit for medical services as defined in the 2020 Master Plan. The clinical pod is the basic organizational unit of the Medical Services program and is a good test for the viability of the health program fit in general. In the double bar, the north tower is close to fitting two clinical pods on one floor.

These floor plates are limited to the lowest levels below the 30’ light and air easement from the adjacent hospital. The south bar, however, is not adequately sized to support one clinical pod without adjustment to the program. The tower floor plan is larger and can accommodate two clinical pods with additional space for other programming as needed

Health
R8 - Double Bar R8 - Single
R8 - Double Bar R8 - Single Tower
Reception & Check-In Clinical Pod 1 Clinical Pod 2 Reception & Check-In Clinical Pod 1 Reception & Check-In Clinical Pod 1 Clinical Pod 2
COLUMBIA UNIVERSITY SITE 1 PLANNING + ZONING STUDY 1.9.2023 43
Shared Labs
220,000 215,000 210,000 205,000 200,000 195,000 190,000 185,000 180,000 175,000 170,000 165,000 160,000 155,000 150,000 145,000 140,000 135,000 130,000 125,000 120,000 115,000 110,000 105,000 100,000 95,000 90,000 85,000 80,000 75,000 70,000 65,000 60,000 55,000 50,000 45,000 40,000 35,000 30,000 25,000 20,000 15,000 10,000 5,000 12345678 300 BEDS HEALTH 2 DINING 500 BEDS 300 BEDS HEALTH 1 RECREATION DINING 500 BEDS RECREATION With Air Rights Transfer from 44 Morningside R8 AS-OF-RIGHT 300 BEDS HEALTH 3 DINING 600 BEDS DINING DINING HEALTH 2 400 BEDS DINING DINING DINING
Proposed Rezoning 400 BEDS RECREATION
Option A R8: Double Bar
Option B R8: Single Tower
Option C R8A: Contextual 44
GSF
CONTEXTUAL R8-A
Massing
Massing
Massing

4. Building Organization

The following pages illustrate program and massing combinations that together define a range of options for the development of Site 1. The three massing options were derived from the considerations outlined previously in the zoning study, and the eight program mixes were selected from a broader range of options to align institutional priorities with the development potential of the site.

PROGRAM

The programs under consideration for this site — residential, health, recreation and dining — offer Columbia University an opportunity to develop Site 1 as a place that supports a holistic approach to student well-being. The selection of these programs for potential inclusion in Site 1 show a willingness to question the conventional divisions between where students live, what they eat, how they spend their time and how they care for themselves in favor of a more comprehensive way to support student life on campus. However, as a totality the programs under consideration exceed the development potential for the site, especially when considering the larger ranges of options for housing and health. As a first step, this study involved laying out viable combinations that worked within the zoning limits, and then selecting from those a smaller subset to test against the building massing options.

In summary, these are the range of scales for each program type that were selected for the massing studies in the following pages.

• Residence Hall. All program mixes under consideration have housing as a primary program, with a range of 300-600 beds.

• Dining. For a relatively small allocation of space there is an opportunity to address in a significant way the need for additional dining on campus. All program mixes under consideration include a 400-seat dining hall.

• Shared Commons.  An allocation of 5000 GSF is included in all program mixes for a shared common space. This open program enhances and supports the building as a multi-use facility. The shared commons provides a social and physical framework by which other building uses are accessed and organized. More importantly, evolving programs in support of student wellness that arise from collaborations between the various groups in this building can use the shared commons as a home.

• Health. The health programs selected for these massing studies include:

– Health 3: the Right-sized No Growth program from the 2020 Ewing Cole Master Plan

– Health 2: 2030 Medical Services with Alice! Health Promotion and Admin

– Health 1: 2030 Medical Services only

Health 2 and Health 1 are smaller options that were added to support the multi-use programming that is intended for Site 1. All three scenarios will retain existing spaces on campus for the departments that are not relocating.

• Recreation. A student well-being recreation center with multi-purpose spaces, cardio and strengthening studios has been included in the program mixes under consideration.

SCENARIOS EVALUATION

The massing and program scenarios that follow are based on one of the following three options:

A. R8 As-of-right with Air Rights Transfer; Double Bar

B. R8 As-of-right with Air Rights Transfer; Single Tower

C. R8A Proposed Contextual Rezoning

The scenarios are given numerical scores based on the following evaluation criteria:

• Urban Design (15%). Relationship of building mass and scale to neighboring structures, service loading and public street frontages, and visual connections to campus & park

• Image + Identity (10%). Image Public program uses, access/ visibility on 115th, pedestrian connections to main campus.

• Program Accommodation (35%). Operational efficiencies for staffing & shared spaces based on floorplate size.

• Building Efficiency (20%). Additional gross area to accommodate higher proportion of circulation on smaller floorplates, additional egress stairs, duplication of toilets and support facilities, and some program duplication to function on multiple smaller floorplates.

• Cost (15%). Premiums for add’l building envelope relative to floor area, additional elevators and main HVA distribution lines, plumbing fixtures in two building massings.

• Approvals Process (5%). Requirements for special approval processes; DOB and BSA.

COLUMBIA UNIVERSITY SITE 1 PLANNING + ZONING STUDY 1.9.2023 45

Scenario A.1

Massing Scheme A: As-of-Right Base Option Program: 600 Student Beds, Dining

SCENARIO A.1 DATA

*For lot coverage and tower lot coverage calculations, see zoning calculations on page 26–27.

EVALUATION SUMMARY (6.9 Total Score)

• Neighborhood Context: 8

The double bar massing is consistent with the continuous street walls along 114th Street and 115th Street.

• Image and Identity: 8

The building has a strong presence along 115th, reinforcing connections to campus. The inner courtyard provides a setting for shared program activities.

• Program Accommodation: 8

Preliminary test fits show that this scenario supports a 300 GSF/bed ratio consistent with the benchmarking studies.

• Building Efficiency: 5

Double bar massing results in a lower net to gross area ratio.

• Cost: 5

Duplication of building cores and envelope is likely a cost increase over a comparable single tower scenario.

• Regulatory Path: 5

The same for all scenarios under consideration.

DESCRIPTION

This scenario is based on the as-of-right zoning with an air rights transfer from 44 Morningside Drive. The massing is organized as two separate bar buildings, one along 114th Street and one along 115th Street, both above a ground floor that covers the full lot. This scenario assumes one below-grade level also covering the full extent of the lot.

The programming for this scenario includes a residential hall with 600 beds, which is the largest dormitory under consideration in this study. There is also a dining hall with 400 seats, and a shared commons space

Although the ground floor is shared, the residence hall would be split between two buildings, each with a separate circulation core which could have dedicated secured entrances. In this scenario, the housing block at the north is 50’ deep to align with our preliminary test fits. The housing block to the south is deeper at 70’ to maximize the development potential of the narrow site. This may be an opportunity to consider different identities for the two housing blocks, with a typical dormitory of single and double bedrooms at the north tower, and apartment type suites utilizing the deeper floor plates at the south. An amenity floor with communal functions may be located on the second floor, organized around the open rear-yard court separating the two tower blocks.

Because the residence hall program benefits from the efficiency of a typical repetitive floor plan, this massing uses the 40% tower regulations for the north block to avoid the setbacks that would be required to stay within the sky exposure plane.

SUMMARY Zoning R8
with air rights transfer Massing Double Bar Floors Above Grade 18 Height 185’-0” ZONING Zoning District R8 Development Lot Area 26,786 FAR (Community Faciity) 6.5 Development Rights (ZFA) 174,109 Transfer, Lot 9 Existing (ZFA) -23,927 Transfer, Lot 23 Proposed (ZFA) 27,002 Total Development Rights (ZFA) 177,187 BULK REGULATIONS Min Max Scenario Overall Height 185’-0” Base Height 85’-0” 85’-0” Initial Setback: Narrow Street 20’-0” 20’-0” Sky Exposure: Narrow Street 2.7:1 Complies Rear Yard Equiv: 1x Midway 60’-0” 60 Lot Coverage* 18,066 13,983 Tower Lot Coverage* 25,324 6,891 Total Zoning Floor Area (ZFA) 177,187 171,787 GROSS AREA Below Grade Level (GSF) 26,777 Ground Floor (GSF) 26,777 Upper Floors (GSF) 158,279 Building Total (GSF) 211,833 PROGRAM Target Provided Residential (600 Beds) 180,000 181,056 Dining (400 Seats) 26,580 25,77 Shared Commons 5,000 5,000 Program Total Area (GSF) 211,580 211,833 Building Total Area (GSF) 211,833 211,833
As-of-right
46
100'-11" 100'-11" 165'-4" 100'-0" W115TH ST W114TH ST MORN I NGS I DE DR AMSTERDAM AVE LOTS 1/5 LOT 23 LOT 20 LOT 14 26,777 GFA N 30'-0"135'-4" 60'-0"50'-11"20'-0" 70'-11" 100'-0" 6,891 GFA 7,092 GFA 70'-11"60'-0"50'-11"20'-0" 30'-0"135'-4" 30'-0"70'-0" 6,891 GFA 4,964 GFA 30'-0"135'-4" 6,891 GFA 20'-0" 50'-11" 130'-11" LOT 23 165'-4"LOTS 1/5 LVL 18 LOT 20 LOT 14 100'-0" LOTS 1/5 LVL 8 W115TH STREET W114TH STREET 20'-0"50'-11"60'-0"70'-11" 185'-0" LVL 18 85'-0" SKY EXPOSURE PLANE 85'-0" LVL 8 1" = 40'-0" 1 LEVEL 1 1" = 40'-0" 2 LEVEL 2-4 1" = 40'-0" 3 LEVEL 5-8 1" = 40'-0" 4 LEVEL 9-18 5 SITE AXON NORTH FIXED 6 SITE AXON SOUTH FIXED 1" = 40'-0" 7 ELEVATION NORTH 1" = 40'-0" 8 ELEVATION SOUTH 1" = 40'-0" 9 MASSING SECTION 0'10' 100' 40' Site Axon South Fixed Site Axon
Massing Section Elevation
Elevation
Level 9-18 Level 5-8 Level 2-4 Level 1 A.1 Program Key Residential Health Dining Shared Common Recreation Plan Key Floor Area Building Footprint COLUMBIA UNIVERSITY SITE 1 PLANNING + ZONING STUDY 1.9.2023 47
North Fixed
South
North

Scenario A.2

Massing Scheme A: As-of-Right Base Option

Program: 500 Student Beds, Dining & Recreation

SCENARIO A.2 DATA

*For lot coverage and tower lot coverage calculations, see zoning calculations on page 26–27.

EVALUATION SUMMARY (6.8 Total Score)

• Neighborhood Context: 8

The double bar massing is consistent with the continuous street walls along 114th Street and 115th Street.

• Image and Identity: 8

The building has a strong presence along 115th, reinforcing connections to campus. The inner courtyard provides a setting for shared program activities.

• Program Accommodation: 8

Preliminary test fits show that this scenario supports a 300 GSF/bed ratio consistent with the benchmarking studies.

• Building Efficiency: 5

Double bar massing results in a lower net to gross area ratio.

• Cost: 5

Duplication of building cores and envelope is likely a cost increase over a comparable single tower scenario.

• Regulatory Path: 5

The same for all scenarios under consideration.

DESCRIPTION

This scenario is based on the as-of-right zoning with an air rights transfer from 44 Morningside Drive. The massing is organized as two separate bar buildings, one along 114th Street and one along 115th Street, both above a ground floor that covers the full lot. This scenario assumes one below-grade level also covering the full extent of the lot.

The programming for this scenario includes a residential hall with 500 beds, a dining hall with 400 seats, a well-being recreation center, and a shared commons space.

Although the ground floor is shared, the residence hall would be split between two buildings, each with a separate circulation core which could have dedicated secured entrances. This may be an opportunity to consider different identities for the two blocks, with a typical dormitory of single and double bedrooms at the north tower, and apartment type suites on the upper levels of the deeper floor plates at the south.

A well-being recreation center is located on the lower three floors of the south block, with the potential for shared programming between recreation and the residence hall on the second-floor spaces, organized around the open rear-yard court separating the two tower blocks.

Because the residence hall program benefits from the efficiency of a typical repetitive floor plan, we are using the 40% tower regulations for the north block to avoid the setbacks that would be required to stay within the sky exposure plane.

SUMMARY Zoning R8 As-of-right with air rights transfer Massing Double Bar Floors Above Grade 19 Height 195’-0” ZONING Zoning District R8 Lot Area 26,786 FAR (Community Faciity) 6.5 Development Rights (ZFA) 174,109 Transfer, Lot 9 Existing (ZFA) -23,927 Transfer, Lot 23 Proposed (ZFA) 27,002 Total Development Rights (ZFA) 177,187 BULK REGULATIONS Min Max Scenario Overall Height 195’-0” Base Height 85’-0” 80’-0” Initial Setback: Narrow Street 20’-0” 20’-0” Sky Exposure: Narrow Street 2.7:1 Complies Rear Yard Equivalent: 1x Midway 60’-0” 60’-0” Lot Coverage * 18,066 15,510 Tower Lot Coverage * 25,324 6,891 Total Zoning Floor Area (ZFA) 177,187 175,948 GROSS AREA Below Grade Level (GSF) 26,777 Ground Floor (GSF) 26,777 Upper Floors (GSF) 162,659 Building Total (GSF) 216,213 PROGRAM Target Provided Residential (500 Beds) 150,000 171,659 Dining (400 Seats) 26,580 25,777 Shared Commons 5,000 5,000 Recreation 36,400 13,777 Program Total Area (GSF) 217,980 216,213 Building Total Area (GSF) 216,213 216,213 48
100'-11" 100'-11" 165'-4" 100'-0" W115TH ST W114TH ST MORN I NGS I DE DR AMSTERDAM AVE LOTS 1/5 LOT 23 LOT 20 LOT 14 26,777 GFA 165'-4" 20'-0" 50'-11" 60'-0" 70'-11" 100'-0" 8,418 GFA 7,092 GFA 30'-0" 135'-4" 20'-0" 50'-11" 60'-0" 70'-11" 30'-0" 70'-0" 6,891 GFA 4,964 GFA 30'-0" 135'-4" 20'-0" 50'-11" 130'-11" 30'-0" 70'-0" 6,891 GFA LOT 1/5 165'-4" LOT 23 LVL 19 LOT 20 LOTS 14 100'-0" LOTS 1/5 LVL 7 W115TH STREET W114TH STREET 20'-0" 50'-11" 60'-0" 70'-11" 195'-0" LVL 19 80'-0" SKY EXPOSURE PLANE 85'-0" 1" = 40'-0" 1 LEVEL 1 1" = 40'-0" 2 LEVEL 2-3 1" = 40'-0" 3 LEVEL 4-7 1" = 40'-0" 4 LEVEL 8-19 5 SITE AXON NORTH FIXED 6 SITE AXON SOUTH FIXED 1" = 40'-0" 7 ELEVATION NORTH 1" = 40'-0" 8 ELEVATION SOUTH 1" = 40'-0" 9 MASSING SECTION 0' 10' 100' 40' Site Axon
Site Axon
Massing
Elevation
Elevation
Level 8-19 Level 4-7 Level 2-3 Level 1 A.2 Program Key Residential Health Dining Shared Common Recreation Plan Key Floor Area Building Footprint COLUMBIA UNIVERSITY SITE 1 PLANNING + ZONING STUDY 1.9.2023 49
South Fixed
North Fixed
Section
South
North

Scenario A.3

Massing Scheme A: As-of-Right Base Option Program: 400 Student Beds, Dining, Health Med +, Health 2

SCENARIO A.3 DATA

*For lot coverage and tower lot coverage calculations, see zoning calculations on page 26–27.

EVALUATION SUMMARY (4.4 Total Score)

• Neighborhood Context: 6

Double bar massing supports a continuous street wall along 114th Street & 115th Street, however the larger health program and the higher floor to floors results in taller buildings overall.

• Image and Identity: 8

The building has a strong presence along 115th, reinforcing connections to campus. The inner courtyard provides a setting for shared program activities.

• Program Accommodation: 4

The health program would benefit from larger and fewer floor plates than what is provided in this scenario

• Building Efficiency: 3

The double bar massing results in a lower net to gross area ratio, especially for the health program.

• Cost: 5

Duplication of building cores and envelope is likely a cost increase over a comparable single tower scenario.

• Regulatory Path: 5

The same for all scenarios under consideration.

DESCRIPTION

This scenario is based on the as-of-right zoning with an air rights transfer from 44 Morningside Drive. The massing is organized as two separate bar buildings, one along 114th Street and one along 115th Street, both above a ground floor that covers the full lot. This scenario assumes one below-grade level also covering the full extent of the lot.

The programming for this scenario includes a residential hall with 400 beds, a dining hall with 400 seats, a health facility with medical services, health promotion and admin spaces (Health 2), and a shared commons space.

Although the ground floor is shared, the residence hall and the health facility would be split between two buildings, each with a separate circulation core with dedicated secured entrances. In general, the available floor plates at the south block are smaller than optimal for the health facility program, which would benefit from fewer, larger floors. To house the selected health program, eleven stories are required in this scenario.

Because the residence hall and health services program benefit from the efficiency of a consistent floor plan, we are using the 40% tower regulations for the north and south blocks to avoid the setbacks that would be required to stay within the sky exposure plane.

SUMMARY Zoning R8 As-of-right with air rights transfer Massing Double Bar Floors Above Grade 16/13 Height 165’-0” ZONING Zoning District R8 Lot Area 26,786 FAR (Community Faciity) 6.5 Development Rights (ZFA) 174,109 Transfer, Lot 9 Existing (ZFA) -23,927 Transfer, Lot 23 Proposed (ZFA) 27,002 Total Development Rights (ZFA) 177,187 BULK REGULATIONS Min Max Scenario Overall Height 155’-0” Base Height 85’-0” 85’-0” Initial Setback: Narrow Street 20’-0” 20’-0” Sky Exposure: Narrow Street 2.7:1 Complies Rear Yard Equivalent: 1x Midway 60’-0” 70’-0” Lot Coverage * 18,066 15,510 Tower Lot Coverage * 25,324 10,455 Total Zoning Floor Area (ZFA) 177,187 175,293 GROSS AREA Below Grade Level (GSF) 26,777 Ground Floor (GSF) 26,777 Upper Floors (GSF) 161,970 Building Total (GSF) 215,524 PROGRAM Target Provided Residential (400 Beds) 120,000 119,446 Dining (400 Seats) 25,880 25,777 Shared Commons 5,000 5,000 Health (Med Plus) 68,600 65,301 Program Total Area (GSF) 219,480 215,524 Building Total Area (GSF) 215,524 215,524 50
100'-11" 100'-11" 165'-4" 100'-0" W115TH ST W114TH ST MORN I NGS I DE DR AMSTERDAM AVE LOTS 1/5 LOT 23 LOT 20 LOT 14 26,777 GFA 165'-4" 20'-0" 50'-11" 60'-0" 70'-11" 100'-0" 8,418 GFA 7,092 GFA 30'-0"135'-4" 20'-0" 50'-11" 60'-0" 70'-11" 30'-0"70'-0" 6,891 GFA 4,964 GFA 30'-0"135'-4" 20'-0" 50'-11" 60'-0" 30'-0"70'-0" 50'-11" 20'-0" 6,891 GFA 3,564 GFA LOT 1/5 165'-4" LOT 23 LVL 16 LOT 20 LOT 14 100'-0" LOTS 1/5 LVL 13 W115TH STREET W114TH STREET 20'-0"50'-11"60'-0"50'-11"20'-0" 77'-6" 165'-0" LVL 16 LVL 13 SKY EXPOSURE PLANE 165'-0" 85'-0" 1" = 40'-0" 1 LEVEL 1 1" = 40'-0" 2 LEVEL 2-3 1" = 40'-0" 3 LEVEL 4-6 1" = 40'-0" 4 LEVEL 7-16 7 SITE AXON NORTH FIXED 8 SITE AXON SOUTH FIXED 1" = 40'-0" 5 ELEVATION NORTH 1" = 40'-0" 6 ELEVATION SOUTH 1" = 40'-0" 9 MASSING SECTION 0' 10' 100' 40' Site
Site
Level 9 Level 5 Level 2 Level 1 A.3 Program Key Residential Health Dining Shared Common Recreation Plan Key Floor Area Building Footprint COLUMBIA UNIVERSITY SITE 1 PLANNING + ZONING STUDY 1.9.2023 51
Axon South Fixed
Axon North Fixed Massing Section Elevation South Elevation North

Scenario A.4

Massing Scheme A: As-of-Right Base Option Program: 300 Student Beds, Dining, Health Med, Recreation

SCENARIO A.4 DATA

*For lot coverage and tower lot coverage calculations, see zoning calculations on page 26–27.

EVALUATION SUMMARY (4.7 Total Score)

• Neighborhood Context: 6

The double bar massing supports a continuous street wall along 114th Street & 115th Street, however the larger health program and higher floor to floors result in taller buildings overall.

• Image and Identity: 8

The building has a strong presence along 115th, reinforcing connections to campus. The inner courtyard provides a setting for shared program activities.

• Program Accommodation: 4

The health program would benefit from larger and fewer floor plates than what is provided in this scenario

• Building Efficiency: 3

The double bar massing results in a lower net to gross area ratio, especially for the health program.

• Cost: 5

Duplication of building cores and envelope is likely a cost increase over a comparable single tower scenario.

• Regulatory Path: 5

The same for all scenarios under consideration.

DESCRIPTION

This scenario is based on the as-of-right zoning with an air rights transfer from 44 Morningside Drive. The massing is organized as two separate bar buildings, one along 114th Street and one along 115th Street, both above a ground floor that covers the full lot. This scenario assumes one below-grade level also covering the full extent of the lot.

The programming for this scenario includes a residential hall with 300 beds, a dining hall with 400 seats, a health facility with medical services (Health 1), a well-being recreation center, and a shared commons space. Although the ground floor is shared, the residence hall and the health facility would be split between two buildings, each with a separate circulation core with dedicated secured entrances.

In general, the available floor plates at the south block are smaller than optimal for the health facility program, which would benefit from fewer, larger floors. To house the selected health program, thirteen stories are required in this scenario. Because the residence hall and health services program benefit from the efficiency of a consistent floor plan, we are using the 40% tower regulations for the north and south blocks to avoid the setbacks that would be required to stay within the sky exposure plane.

SUMMARY Zoning R8 As-of-right with air rights transfer Massing Double Bar Floors Above Grade 16/13 Height 182’-6” ZONING Zoning District R8 Lot Area 26,786 FAR (Community Faciity) 6.5 Development Rights (ZFA) 174,109 Transfer, Lot 9 Existing (ZFA) -23,927 Transfer, Lot 23 Proposed (ZFA) 27,002 Total Development Rights (ZFA) 177,187 BULK REGULATIONS Min Max Scenario Overall Height 182’-6” Base Height 85’-0” 77’-6” Initial Setback: Narrow Street 20’-0” 20’-0” Sky Exposure: Narrow Street 2.7:1 Complies Rear Yard Equiv: 1x Midway 60’-0” 60’-0” Lot Coverage * 18,066 15,510 Tower Lot Coverage * 25,324 6,891 Total Zoning Floor Area (ZFA) 177,187 173,617 GROSS AREA Below Grade Level (GSF) 26,777 Ground Floor (GSF) 26,777 Upper Floors (GSF) 46,896 Building Total (GSF) 100,450 PROGRAM Target Provided Residential (300 Beds) 90,000 148,537 Dining (400 Seats) 26,580 25,777 Shared Commons 5,000 5,000 Health (2030 Med Services) 56,150 58,173 Recreation 36,400 23,727 Program Total Area (GSF) 214,130 237,487 Building Total Area (GSF) 100,450 100,450 52
100'-11" 100'-11" 165'-4" 100'-0" W115TH ST W114TH ST MORN I NGS I DE DR AMSTERDAM AVE LOTS 1/5 LOT 23 LOT 20 LOT 14 26,777 GFA 165'-4" 20'-0" 50'-11" 60'-0" 70'-11" 100'-0" 8,418 GFA 7,092 GFA 30'-0"135'-4" 20'-0" 50'-11" 60'-0" 70'-11" 30'-0"70'-0" 6,891 GFA 4,964 GFA 30'-0"135'-4" 20'-0" 50'-11" 30'-0"70'-0" 60'-0" 50'-11" 20'-0" 6,891 GFA 3,564 GFA 30'-0"70'-0" 6,891 GFA 20'-0" 50'-11" 60'-0" 50'-11" 20'-0" 30'-0"135'-4" LOT 1/5 165'-4" LOT 23 LVL 17 LOT 20 LOTS 14 100'-0" LOTS 1/5 LVL 11 W115TH STREET W114TH STREET 20'-0"50'-11"60'-0"50'-11"20'-0" 77'-6" LVL 17 LVL 11 182'-6" SKY EXPOSURE PLANE 140'-0" 85'-0" 1" = 50'-0" 1 LEVEL 1 1" = 50'-0" 2 LEVEL 2-3 1" = 50'-0" 3 LEVEL 4-6 1" = 50'-0" 4 LEVEL 7-11 1" = 50'-0" 5 Level 12-17 0'10' 100' 40' 6 SITE AXON NORTH FIXED 7 SITE AXON SOUTH FIXED 1" = 40'-0" 8 ELEVATION NORTH 1" = 40'-0" 9 ELEVATION SOUTH 1" = 40'-0" 10 MASSING SECTION Site
Site
Level 1 A.4 Program Key Residential Health Dining Shared Common Recreation Plan Key Floor Area Building Footprint Level 7-12 Level 2-3 Level 13-17 Level 4-6 COLUMBIA UNIVERSITY SITE 1 PLANNING + ZONING STUDY 1.9.2023 53
Axon South Fixed
Axon North Fixed Massing Section Elevation South Elevation North

Scenario A.5

Massing Scheme A: As-of-Right Base Option Program: 300 Student Beds, Dining, Health Med, Recreation

SCENARIO A.5 DATA

Zoning R8 As-of-right with air rights transfer

*For lot coverage and tower lot coverage calculations, see zoning calculations on page 26–27.

EVALUATION SUMMARY (5.1 Total Score)

• Neighborhood Context: 6

The double bar massing supports a continuous street wall along 114th Street & 115th Street, however the larger health program and the higher floor to floors results in taller buildings overall.

• Image and Identity: 6

The building has a strong presence along 115th, but this frontage is given to health instead of housing. The inner courtyard provides a setting for shared program activities.

• Program Accommodation: 5

The health program fit is better in the north bar, however, there would still be a benefit from larger and fewer floor plates than what is provided in this scenario.

• Building Efficiency: 4

The double bar massing results in a lower net to gross area ratio, especially for the health program.

• Cost: 5

Duplication of building cores and envelope is likely a cost increase over a comparable single tower scenario.

• Regulatory Path: 5

The same for all scenarios under consideration.

DESCRIPTION

This scenario is based on the as-of-right zoning with an air rights transfer from 44 Morningside Drive. The massing is organized as two separate bar buildings, one along 114th Street and one along 115th Street, both above a ground floor that covers the full lot. This scenario assumes one below-grade level also covering the full extent of the lot.

The programming for this scenario co-locates all the health services on campus in one building, right-sized to meet 2022 requirements (Health 3). This scenario also includes a residential hall with 300 beds, a dining hall with 400 seats, and a shared commons space. Although the ground floor is shared, the residence hall and the health facility would be split between two buildings, each with a separate circulation core with dedicated secured entrances.

In general, the available floor areas for health in this scenario improve upon those in other scenarios with two buildings, but are smaller than optimal for the health facility program, which would benefit from fewer, larger floors. To co-locate all right-sized health services, thirteen stories are required in this scenario.

Because the residence hall and health services program benefit from the efficiency of a consistent floor plan, we are using the 40% tower regulations for the north and south blocks to avoid the setbacks that would be required to stay within the sky exposure plane.

Massing Double
Floors Above Grade 13/15 Height 165’-0” ZONING Zoning District R8 Lot Area 26,786 FAR (Community Faciity) 6.5 Development Rights (ZFA) 174,109 Transfer, Lot 9 Existing (ZFA) -23,937 Transfer, Lot 23 Proposed (ZFA) 27,002 Total Development Rights (ZFA) 177,187 BULK REGULATIONS Min Max Scenario Overall Height 165’-0” Base Height 85’-0” 85’-0” Initial Setback: Narrow Street 20’-0” 20’-0” Sky Exposure: Narrow Street 2.7:1 Complies Rear Yard Equivalent: 1x Midway 60’-0” 60 Lot Coverage * 18,066 16,689 Tower Lot Coverage * 25,324 10,455 Total Zoning Floor Area (ZFA) 177,187 175,609 GROSS AREA Below Grade Level (GSF) 26,777 Ground Floor (GSF) 26,777 Upper Floors (GSF) 162,302 Building Total (GSF) 215,856 PROGRAM Target Provided Residential (300 Beds) 90,000 77,580 Dining (400 Seats) 26,580 25,777 Shared Commons 5,000 5,000 Health (2020 Right size) 97,278 107,499 Program Total Area (GSF) 218,858 215,856 Building Total Area (GSF) 215,856 215,856 54
SUMMARY
Bar
100'-11" 100'-11" 165'-4" 100'-0" W115TH ST W114TH ST MORN I NGS I DE DR AMSTERDAM AVE LOTS 1/5 LOT 23 LOT 20 LOT 14 26,777 GFA 30'-0"135'-4" 70'-11" 60'-0" 70'-11" 100'-0" 9,597 GFA 7,092 GFA 30'-0"135'-4" 70'-11" 60'-0" 70'-11" 30'-0"70'-0" 9,597 GFA 4,964 GFA 30'-0"70'-0" 20'-0" 50'-11" 60'-0" 50'-11" 20'-0" 6,891 GFA 3,564 GFA 30'-0"135'-4" LOTS 1/5 165'-4" LOT 23 LVL 13 LOT 20 LOT 14 100'-0" LOTS 1/5 LVL 15 W115TH STREET W114TH STREET SKY EXPOSURE PLANE LVL 13 LVL 15 20'-0"50'-11"60'-0"50'-11"20'-0" 165'-0" 85'-0" 155'-0" 77'-6" 20'-0" 50'-11" 60'-0" 50'-11" 20'-0" 6,891 GFA 30'-0"135'-4" 1" = 50'-0" 1 LEVEL 1 1" = 50'-0" 2 LEVEL 2-4 1" = 50'-0" 3 LEVEL 5-8 1" = 50'-0" 4 LEVEL 9-15 6 SITE AXON NORTH FIXED 7 SITE AXON SOUTH FIXED 1" = 40'-0" 8 ELEVATION NORTH 1" = 40'-0" 9 ELEVATION SOUTH 1" = 40'-0" 10 MASSING SECTION 0'10' 100' 40' 1" = 50'-0" 5 Level 13N Site Axon
Site
Massing
Level 1 A.5 Program
Residential Health Dining Shared
Floor
Building
Level 9-16 Level 2-4 Level 14N Level 5-8 COLUMBIA UNIVERSITY SITE 1 PLANNING + ZONING STUDY 1.9.2023 55
South Fixed
Axon North Fixed
Section Elevation South Elevation North
Key
Common Recreation Plan Key
Area
Footprint

Scenario B.1

Massing Scheme B: As-of-Right Single Tower Option Program: 600 Student Beds & Dining

SCENARIO B.1 DATA

*For lot coverage and tower lot coverage calculations, see zoning calculations on page 26–27.

EVALUATION SUMMARY (6.7 Total Score)

• Neighborhood Context: 3

The tower massing may be considered inconsistent with the urbanistic qualities of the surrounding neighborhood where continuous street walls are more common.

• Image and Identity: 5

The building image would benefit from a stronger presence on 115th Street. The tower massing does not provide a natural location for shared programming.

• Program Accommodation: 8

The tower massing is well suited to accommodate all of the program mixes selected in these scenarios.

• Building Efficiency: 8

The tower massing is fairly efficient in terms of net to gross floor areas.

• Cost: 7

The tower massing allows for a more efficient building core and envelope to area ratio which should result in a cost savings over the double bar scenarios.

• Regulatory Path: 5

The same for all scenarios under consideration.

DESCRIPTION

This scenario is based on the as-of-right zoning with an air rights transfer from 44 Morningside Drive. The massing is organized as a single tower with a rear yard equivalent setback along 114th Street and 115th Street for the through block portion of the site. As allowed by zoning, there is a ground floor that covers the full lot. This scenario assumes one below-grade level also covering the full extent of the lot.

The programming for this scenario includes a residential hall with 600 beds, which is the largest dormitory under consideration in this study. There is also a dining hall with 400 seats, and a shared commons space

The single tower massing accommodates the residential program in a straightforward way. The 60’ wide floor plate is less than the 70’ width allowed by the zoning, but is optimized to work with the dormitory program as shown in our preliminary test fits. The resulting tower occupies less than 40% of the lot, allowing for the use of the 40% tower regulations and thereby avoiding the setbacks at the upper floors that would be required to stay within the sky exposure plane. As a result, the tower can be a simple extrusion, with typical floors repeated as needed until the development rights for the site are fully utilized. The tower massing can also take advantage of open eastern views on its upper levels.

SUMMARY Zoning R8
rights transfer Massing Tower Floors Above Grade 19 Height 195’-0” ZONING Zoning District R8 Lot Area 26,786 FAR (Community Faciity) 6.5 Development Rights (ZFA) 174,109 Transfer, Lot 9 Existing (ZFA) -23,927 Transfer, Lot 23 Proposed (ZFA) 27,002 Total Development Rights (ZFA) 177,187 BULK REGULATIONS Min Max Scenario Overall Height 195’-0” Base Height 85’-0” 25’-0” Initial Setback: Narrow Street 20’-0” Sky Exposure: Narrow Street 2.7:1 Tower Rear Yard Equiv: 2x Midway 30’-0” 30’-0” Lot Coverage * 18,066 13,006 Tower Lot Coverage * 25,324 8,510 Total Zoning Floor Area (ZFA) 177,187 171,214 GROSS AREA Below Grade Level (GSF) 26,777 Ground Floor (GSF) 26,777 Upper Floors (GSF) 157,676 Building Total (GSF) 211,230 PROGRAM Target Provided Residential (600 Beds) 180,000 180,453 Dining (400 Seats) 26,580 25,777 Shared Commons 5,000 5,000 Program Total Area (GSF) 211,580 211,230 Building Total Area (GSF) 211,230 211,230 56
As-of-right with air
165'-4" 100'-11" 100'-11" 100'-0" W115TH ST W114TH ST MORN I NGS I DE DR AMSTERDAM AVE LOTS 1/5 LOT 23 LOT 20 LOT 14 26,777 GFA 30'-0" 60'-0" 30'-0" 141'-10" 30'-0" 8,510 GFA 10'-0" 30'-0" 60'-0" 30'-0" 70'-0" 65'-4" 30'-0" 141'-10" 30'-0" 63'-8" 37'-3" 13,006 GFA 10'-0" LOTS 1/5 165'-4" LOT 23 LVL 19 LOT 20 LOT 14 100'-0" LOTS 1/5 LVL 19 W115TH STREET W114TH STREET 30'-0" 141'-10" 30'-0" 195'-0" LVL 19 SKY EXPOSURE PLANE 85'-0" 1" = 50'-0" 1 LEVEL 1 1" = 50'-0" 3 LEVEL 3-19 1" = 50'-0" 5 LEVEL 2 0' 10' 100' 40' 2 SITE AXON NORTH FIXED 4 SITE AXON SOUTH FIXED 1" = 40'-0" 6 ELEVATION NORTH 1" = 40'-0" 7 ELEVATION SOUTH 1" = 40'-0" 8 SECTION Site Axon South
Site
Massing
Elevation
Elevation
Level 3-19 Level 2 Level 1 B.1 Program
Residential
Shared
Plan Key Floor Area Building Footprint COLUMBIA UNIVERSITY SITE 1 PLANNING + ZONING STUDY 1.9.2023 57
Fixed
Axon North Fixed
Section
South
North
Key
Health Dining
Common Recreation

Scenario B.2

Massing Scheme B: As-of-Right Single Tower Option Program: 500 Student Beds, Dining & Recreation

SCENARIO B.2 DATA

*For lot coverage and tower lot coverage calculations, see zoning calculations on page 26–27.

EVALUATION

SUMMARY (6.7 Total Score)

• Neighborhood Context: 3

The tower massing may be considered inconsistent with the urbanistic qualities of the surrounding neighborhood where continuous street walls are more common.

• Image and Identity: 5

The building image would benefit from a stronger presence on 115th Street. The tower massing does not provide a natural location for shared programming.

• Program Accommodation: 8

The tower massing is well suited to accommodate all of the program mixes selected in these scenarios.

• Building Efficiency: 8

The tower massing is fairly efficient in terms of net to gross floor areas.

• Cost: 7

The tower massing allows for a more efficient building core and envelope to area ratio which should result in a cost savings over the double bar scenarios.

• Regulatory Path: 5

The same for all scenarios under consideration.

DESCRIPTION

This scenario is based on the as-of-right zoning with an air rights transfer from 44 Morningside Drive. The massing is organized as a single tower with a rear yard equivalent setback along 114th Street and 115th Street for the through block portion of the site. As allowed by zoning, there is a ground floor that covers the full lot. This scenario assumes one below-grade level also covering the full extent of the lot.

The programming for this scenario includes a residential hall with 500 beds, a dining hall with 400 seats, a well-being recreation center, and a shared commons space.

The single tower massing accommodates the residential program in a straightforward way. The 60’ wide floor plate is less than the 70’ width allowed by the zoning, but is optimized to work with the dormitory program as shown in our preliminary test fits. The resulting tower occupies less than 40% of the lot, allowing for the use of the 40% tower regulations and thereby avoiding the setbacks at the upper floors that would be required to stay within the sky exposure plane. As a result, the tower can be a simple extrusion, with typical floors repeated as needed until the development rights for the site are fully utilized.

SUMMARY Zoning R8 As-of-right with air rights transfer Massing Tower Floors Above Grade 19 Height 197’-6” ZONING Zoning District R8 Lot Area 26,786 FAR (Community Faciity) 6.5 Development Rights (ZFA) 174,109 Transfer, Lot 9 Existing (ZFA) -23,927 Transfer, Lot 23 Proposed (ZFA) 27,002 Total Development Rights (ZFA) 177,187 BULK REGULATIONS Min Max Scenario Overall Height 197’-6” Base Height 85’-0” 37’-6” Initial Setback: Narrow Street 20’-0” 30’-0” Sky Exposure: Narrow Street 2.7:1 Tower Rear Yard Equivalent: 2 x Street Line 30’-0” Lot Coverage * 18,066 13,107 Tower Lot Coverage * 25,324 8,510 Total Zoning Floor Area (ZFA) 177,187 175,677 GROSS AREA Below Grade Level (GSF) 26,777 Ground Floor (GSF) 26,777 Upper Floors (GSF) 162,374 Building Total (GSF) 215,928 PROGRAM Target Provided Residential (500 Beds) 150,000 158,267 Dining (400 Seats) 26,580 25,777 Shared Commons 5,000 5,000 Recreation 36,400 26,884 Program Total Area (GSF) 217,980 215,928 Building Total Area (GSF) 215,928 215,928 58
165'-4" 100'-11" 100'-11" 100'-0" W115TH ST W114TH ST MORN I NGS I DE DR AMSTERDAM AVE LOTS 1/5 LOT 23 LOT 20 LOT 14 26,777 GFA
30'-0" 141'-10" 30'-0" 35'-11"65'-0"
13,107 GFA 30'-0"60'-0"10'-0" 30'-0"141'-10"30'-0" 8,510 GFA LOTS 1/5 165'-4" LOT 23 LVL 19 LOT 20 LOT 14 100'-0" LOTS 1/5 LVL 19 W115TH STREET W114TH STREET 30'-0"141'-10"30'-0" LVL 19 197'-6" SKY EXPOSURE PLANE 85'-0" 1" = 40'-0" 1 LEVEL 1 1" = 40'-0" 2 LEVEL 2-3 1" = 40'-0" 3 LEVEL 4-19 0' 10' 100' 40' 4 SITE AXON NORTH FIXED 5 SITE AXON SOUTH FIXED 1" = 40'-0" 6 ELEVATION NORTH 1" = 40'-0" 7 ELEVATION SOUTH 1" = 40'-0" 8 MASSING SECTION Site
Site
Elevation
Level 4-19 Level 2-3 Level 1 B.2 Program Key Residential Health Dining Shared Common Recreation Plan Key Floor Area Building Footprint COLUMBIA UNIVERSITY SITE 1 PLANNING + ZONING STUDY 1.9.2023 59
30'-0"70'-0"65'-4"
30'-0"60'-0"10'-0"
Axon South Fixed
Axon North Fixed Massing Section
South Elevation North

Scenario B.3

Massing Scheme B: As-of-Right Single Tower Option Program: 400 Student Beds, Dining, Health Med +

SCENARIO B.3 DATA

R8 As-of-right with air rights

*For lot coverage and tower lot coverage calculations, see zoning calculations on page 26–27.

EVALUATION SUMMARY (6.8 Total Score)

• Neighborhood Context: 4

The massing along the eastern portion of the lot is more consistent with the urbanistic qualities of the surrounding neighborhood where continuous street walls are more common.

• Image and Identity: 5

The building image would benefit from a stronger presence on 115th Street. The tower massing does not provide a natural location for shared programming.

• Program Accommodation: 8

The tower massing is well suited to accommodate all of the program mixes selected in these scenarios.

• Building Efficiency: 8

• The tower massing is fairly efficient in terms of net to gross floor areas.

• Cost: 7

The tower massing allows for a more efficient building core and envelope to area ratio which should result in a cost savings over the double bar scenarios.

• Regulatory Path: 5

The same for all scenarios under consideration.

DESCRIPTION

This scenario is based on the as-of-right zoning with an air rights transfer from 44 Morningside Drive. The massing is organized as a single tower with a rear yard equivalent setback along 114th and 115th Street for the through block portion of the site. As allowed by zoning, there is a ground floor that covers the full lot. This scenario assumes one below-grade level also covering the full extent of the lot.

The programming for this scenario includes a residential hall with 400 beds, a dining hall with 400 seats, a health facility with medical services, health promotion and admin spaces (Health 2), and a shared commons space.

The single tower massing accommodates the program in a straightforward way. The 60’ wide floor plate is less than the 70’ width allowed by the zoning, but is optimized to work with the dormitory program as shown in our preliminary test fits. The resulting tower occupies less than 40% of the lot, allowing for the use of the 40% tower regulations and thereby avoiding the setbacks at the upper floors that would be required to stay within the sky exposure plane.

To the east of the main tower, there is an adjacent block facing 115th Street. This block can have a dedicated circulation core for health separate from the tower core serving the dormitory. However, it also creates a larger floor plate on the lower levels of the building, which can be effectively utilized by Health Services and result in fewer floors than under Scenario A.

SUMMARY Zoning
Massing Tower Floors Above Grade 17 Height 182’-6” ZONING Zoning District R8 Lot Area 26,786 FAR (Community Faciity) 6.5 Development Rights (ZFA) 174,109 Transfer, Lot 9 Existing (ZFA) -23,002 Transfer, Lot 23 Proposed (ZFA) 27,002 Total Development Rights (ZFA) 177,187 BULK REGULATIONS Min Max Scenario Overall Height 182’-6” Base Height 85’-0” 72’-6” Initial Setback: Narrow Street 20’-0” 30’-0” Sky Exposure: Narrow Street 2.7:1 Tower Rear Yard Equiv.: 2 x Street Line 30’-0” 30’-0” Lot Coverage * 18,066 14,962 Tower Lot Coverage * 25,324 8,510 Total Zoning Floor Area (ZFA) 177,187 173,528 GROSS AREA Below Grade Level (GSF) 26,777 Ground Floor (GSF) 26,776 pper Floors (GSF) 160,113 Building Total (GSF) 213,666 PROGRAM Target Provided Residential (400 Beds) 120,000 126,727 Dining (400 Seats) 26,580 25,777 Shared Commons 5,000 5,000 Health(2030 Med Plus) 68,600 56,162 Program Total Area (GSF) 220,180 213,666 Building Total Area (GSF) 213,666 213,666 60
transfer
165'-4" 100'-11" 100'-11" 100'-0" W115TH ST W114TH ST MORN I NGS I DE DR AMSTERDAM AVE LOTS 1/5 LOT 23 LOT 20 LOT 14 26,777 GFA
30'-0" 141'-10" 30'-0" 35'-11"65'-0"
30'-0"70'-0"65'-4"
13,107 GFA 30'-0"60'-0"10'-0" 30'-0"141'-10"30'-0" 8,510 GFA
30'-0"60'-0"10'-0" 30'-0"60'-0"10'-0"
30'-0"40'-0"61'-10"40'-0"30'-0" 65'-0" 35'-11" 14,962 GFA LVL 17 LOTS 1/5 165'-4" LOT 23 LVL 17 LOT 20 LOT 14 100'-0" LOTS 1/5 W115TH STREET W114TH STREET 30'-0"141'-10"30'-0" LVL 17 182'-6" SKY EXPOSURE PLANE 85'-0" 1" = 40'-0" 1 LEVEL 1 1" = 40'-0" 2 LEVEL 5 1" = 40'-0" 3 LEVEL 6-17 1" = 40'-0" 5 LEVEL 2-4 0' 10' 100' 40' 4 SITE AXON NORTH FIXED 6 SITE AXON SOUTH FIXED 1" = 40'-0" 7 ELEVATION NORTH 1" = 40'-0" 8 ELEVATION SOUTH 1" = 40'-0" 9 SECTION
30'-0"70'-0"65'-4"
Massing
Elevation
Elevation
Site Axon South Fixed Site Axon North Fixed
Section
South
North
Level 1 B.3 Level 7-15 Program Key Residential Health Dining Shared Common Recreation Plan Key Floor Area Building Footprint COLUMBIA UNIVERSITY SITE 1 PLANNING + ZONING STUDY 1.9.2023 61
Level 5-6 Level 2-4

Scenario B.4

Massing Scheme B: As-of-Right Single Tower Option Program: 300 Student Beds, Dining, Health Med & Recreation

SCENARIO B.4 DATA

*For lot coverage and tower lot coverage calculations, see zoning calculations on page 26–27.

EVALUATION SUMMARY (7.0 Total Score)

• Neighborhood Context: 5

The massing along the eastern portion of the lot is more consistent with the urbanistic qualities of the surrounding neighborhood where continuous street walls are more common.

• Image and Identity: 5

The building image would benefit from a stronger presence on 115th Street. The tower massing does not provide a natural location for shared programming.

• Program Accommodation: 8

The tower massing is well suited to accommodate all of the program mixes selected in these scenarios.

• Building Efficiency: 8

The tower massing is fairly efficient in terms of net to gross floor areas.

• Cost: 7

The tower massing allows for a more efficient building core and envelope to area ratio which should result in a cost savings over the double bar scenarios.

• Regulatory Path: 5

The same for all scenarios under consideration.

DESCRIPTION

This scenario is based on the as-of-right zoning with an air rights transfer from 44 Morningside Drive. The massing is organized as a single tower with a rear yard equivalent setback along 114th Street and 115th Street for the through block portion of the site. As allowed by zoning, there is a ground floor that covers the full lot. This scenario assumes one below-grade level also covering the full extent of the lot.

The programming for this scenario includes a residential hall with 300 beds, a dining hall with 400 seats, a health facility with medical services (Health 1), a well-being recreation center, and a shared commons space.

The single tower massing accommodates the program in a straightforward way. The 60’ wide floor plate is less than the 70’ width allowed by the zoning, but is optimized to work with the dormitory program as shown in our preliminary test fits. The resulting tower occupies less than 40% of the lot, allowing for the use of the 40% tower regulations and thereby avoiding the setbacks at the upper floors that would be required to stay within the sky exposure plane. The lower six floors are dedicated for recreation and health, and the upper eleven floors for the dormitory.

SUMMARY Zoning R8 As-of-right with air rights transfer Massing Tower Floors Above Grade 17 Height 187’-6” ZONING Zoning District R8 Lot Area 26,786 FAR (Community Faciity) 6.5 Development Rights (ZFA) 174,109 Transfer, Lot 9 Existing (ZFA) -23,927 Transfer, Lot 23 Proposed (ZFA) 27,002 Total Development Rights (ZFA) 177,187 BULK REGULATIONS Min Max Scenario Overall Height 187’-6” Base Height 85’-0” 77’-6” Initial Setback: Narrow Street 20’-0” 30 Sky Exposure: Narrow Street 2.7:1 Tower Rear Yard Equiv: 2 x Street Line 30’-0” 30’-0” Lot Coverage * 18,066 13,107 Tower Lot Coverage * 25,324 8,510 Total Zoning Floor Area (ZFA) 177,187 110,351 GROSS AREA Below Grade Level (GSF) 26,777 Ground Floor (GSF) 26,777 Upper Floors (GSF) 159,145 Building Total (GSF) 212,699 PROGRAM Target Provided Residential (300 Beds) 90,000 98,110 Dining (400 Seats) 26,580 25,777 Shared Commons 5,000 5,000 Health (2030 Med) 56,150 56,928 Recreation 36,400 26,884 Program Total Area (GSF) 214,130 212,699 Building Total Area (GSF) 212,699 212,699 62
165'-4" 100'-11" 100'-11" 100'-0" W115TH ST W114TH ST MORN I NGS I DE DR AMSTERDAM AVE LOTS 1/5 LOT 23 LOT 20 LOT 14 26,777 GFA 30'-0"70'-0"65'-4" 30'-0" 141'-10" 30'-0" 35'-11"65'-0" 30'-0"60'-0"10'-0" 13,107 GFA 30'-0"60'-0"10'-0" 30'-0"141'-10"30'-0" 8,510 GFA LOTS 1/5 165'-4" LOT 23 LVL 17 LOT 20 LOT 14 100'-0" LOTS 1/5 LVL 17 W115TH STREET W114TH STREET 30'-0"141'-10"30'-0" 187'-6" LVL 17 SKY EXPOSURE PLANE 85'-0" 1" = 40'-0" 1 LEVEL 1 1" = 40'-0" 2 LEVEL 2-6 1" = 40'-0" 3 LEVEL 7-17 0' 10' 100' 40' 4 SITE AXON NORTH FIXED 5 SITE AXON SOUTH FIXED 1" = 40'-0" 6 ELEVATION NORTH 1" = 40'-0" 7 ELEVATION SOUTH 1" = 40'-0" 8 MASSING SECTION Site
Site
Massing
Elevation
Elevation
Level 2-6 Level 7-17 Level 1 B.4 Program Key Residential Health Dining Shared Common Recreation Plan Key Floor Area Building Footprint COLUMBIA UNIVERSITY SITE 1 PLANNING + ZONING STUDY 1.9.2023 63
Axon South Fixed
Axon North Fixed
Section
South
North

Scenario B.5

Massing Scheme B: As-of-Right Single Tower Option Program: 300 Student Beds, Dining, Health Right-sized

SCENARIO B.5 DATA

*For lot coverage and tower lot coverage calculations, see zoning calculations on page 26–27.

EVALUATION SUMMARY (7.0 Total Score)

• Neighborhood Context: 5

The massing along the eastern portion of the lot is more consistent with the urbanistic qualities of the surrounding neighborhood where continuous street walls are more common.

• Image and Identity: 5

The building image would benefit from a stronger presence on 115th Street. The tower massing does not provide a natural location for shared programming.

• Program Accommodation: 8

The tower massing is well suited to accommodate all of the program mixes selected in these scenarios.

• Building Efficiency: 8

The tower massing is fairly efficient in terms of net to gross floor areas.

• Cost: 7

The tower massing allows for a more efficient building core and envelope to area ratio which should result in a cost savings over the double bar scenarios.

• Regulatory Path: 5

The same for all scenarios under consideration.

DESCRIPTION

This scenario is based on the as-of-right zoning with an air rights transfer from 44 Morningside Drive. The massing is organized as a single tower with a rear yard equivalent setback along 114th Street and 115th Street for the through block portion of the site. As allowed by zoning, there is a ground floor that covers the full lot. This scenario assumes one below-grade level also covering the full extent of the lot.

The programming for this scenario co-locates all the health services on campus in one building, right-sized to meet current standards and health service models (Health 3). This scenario also includes a residential hall with 300 beds, a dining hall with 400 seats, and a shared commons space.

The single tower massing accommodates the program in a straightforward way. The 60’ wide floor plate is less than the 70’ width allowed by the zoning, but is optimized to work with the dormitory program as shown in our preliminary test fits. The resulting tower occupies less than 40% of the lot, allowing for the use of the 40% tower regulations and thereby avoiding the setbacks at the upper floors that would be required to stay within the sky exposure plane.

The tower scenario is particularly beneficial for the largest Health Services Program Option, essentially providingin six floors the spaces that need 12 floors under Scenario A.

SUMMARY Zoning R8
with air rights transfer Massing Tower Floors Above Grade 16 Height 177’-6” ZONING Zoning District R8 Lot Area 26,786 FAR (Community Faciity) 6.5 Development Rights (ZFA) 174,109 Transfer, Lot 9 Existing (ZFA) -23,927 Transfer, Lot 23 Proposed (ZFA) 27,002 Total Development Rights (ZFA) 177,187 BULK REGULATIONS Min Max Scenario Overall Height 177’-6” Base Height 85’-0” 77’-6” Initial Setback: Narrow Street 20’-0” Sky Exposure: Narrow Street 2.7:1 Tower Rear Yard: Interior Lot Portion 30’-0” 30’-0” Lot Coverage * 18,066 17,362 Tower Lot Coverage * 25,324 8,510 Total Zoning Floor Area (ZFA) 177,187 176,651 GROSS AREA Below Grade Level (GSF) 26,777 Ground Floor (GSF) 26,776 Upper Floors (GSF) 163,400 Building Total (GSF) 216,953 PROGRAM Target Provided Residential (300 Beds) 90,000 96,600 Dining (400 Seats) 26,580 25,777 Shared Commons 5,000 5,000 Health (2020 Right Size) 97,278 89,576 Program Total Area (GSF) 218,858 216,953 Building Total Area (GSF) 216,953 216,953 64
As-of-right
165'-4" 100'-11" 100'-11" 100'-0" W115TH ST W114TH ST MORN I NGS I DE DR AMSTERDAM AVE LOTS 1/5 LOT 23 LOT 20 LOT 14 26,777 GFA
30'-0" 141'-10" 30'-0" 35'-11"65'-0"
17,362 GFA 30'-0"60'-0"10'-0" 30'-0"141'-10"30'-0" 8,510 GFA LOTS 1/5 165'-4" LOT 23 LVL 16 52'6" LOT 20 LOT 14 100'-0" LOTS 1/5 LVL 16 W115TH STREET W114TH STREET 30'-0"141'-10"30'-0" LVL 16 177'-6" SKY EXPOSURE PLANE 85'-0" 13,107 GFA 30'-0" 141'-10" 30'-0"
1" = 40'-0" 1 LEVEL 1 1" = 40'-0" 2 LEVEL 2-4 1" = 40'-0" 3 LEVEL 7-16 0'10' 100' 40' 4 SITE AXON NORTH FIXED 5 SITE AXON SOUTH FIXED 1" = 40'-0" 6 ELEVATION NORTH 1" = 40'-0" 7 ELEVATION SOUTH 1" = 40'-0" 8 MASSING SECTION 1" = 40'-0" 9 Level 5-6
Level 7-12 Level 2-16 Level 1 B.5 Program Key Residential Health Dining Shared Common Recreation Plan Key Floor Area Building Footprint COLUMBIA UNIVERSITY SITE 1 PLANNING + ZONING STUDY 1.9.2023 65
100'-0"65'-4"
90'-0"10'-0"
30'-0"70'-0"65'-4" 30'-0"60'-0"10'-0"
Site Axon South Fixed Site Axon North Fixed Massing Section Elevation South Elevation North
Building Organization As-of-Right Scenarios Evaluation Matrix A.1 URBANDESIGNNEIGHBORHOOD(15%) PROGRAMACCOMMODATION(35%) IMAGE+IDENTITY(10%) BUILDINGEFFICIENCY(20%) COST(15%)APPROVALS PROCESS(5%) TOTALSCORE 165'-4" 100'-0" W114TH ST MORN I NGS I DE DR LOT 23 LOT 20 LOT 14 26,777 GFA N 30'-0"135'-4" 60'-0"50'-11"20'-0" 70'-11" 100'-0" 6,891 GFA 7,092 GFA 30'-0"135'-4" 30'-0"70'-0" 6,891 GFA 4,964 GFA LOT 23 165'-4"LOTS 1/5 LVL 18 LOT 20 LOT 14 100'-0" 1" = 40'-0" 2 LEVEL 2-4 6 SITE AXON SOUTH FIXED 1" = 40'-0" 7 ELEVATION NORTH 0'10' 100' 40' A.2 A.3 A.4 A.5 165'-4" MORN I NGS I DE LOT 23 26,777 GFA 165'-4" 20'-0" 50'-11" 60'-0" 70'-11" 100'-0" 8,418 GFA 7,092 GFA 30'-0" 135'-4" 30'-0" 70'-0" 6,891 GFA 4,964 GFA LOT 1/5 165'-4" LOT 23 LVL 19 LOT 20 LOTS 14 100'-0" 1" = 40'-0" 2 LEVEL 2-3 5 SITE AXON NORTH FIXED 1" = 40'-0" 7 ELEVATION NORTH 165'-4" 20'-0" 50'-11" 60'-0" 70'-11" 8,418 GFA 7,092 GFA 30'-0"135'-4" 6,891 GFA 4,964 GFA LOT 1/5 165'-4" LOT 23 LVL 16 LOT 20 LOT 14 100'-0" 7 SITE AXON NORTH FIXED 1" = 40'-0" 5 ELEVATION NORTH SOUTH LOT 1/5 165'-4" LOT 23 LVL 17 LOT 20 LOTS 14 100'-0" 6 SITE AXON NORTH FIXED 6 SITE AXON NORTH FIXED 5 5 5 5 5 5 5 5 5 5 5 5 3 3 4 8 8 4 4 5 8 8 6 6 6 8 8 8 8 6 6.9 6.8 4.4 4.7 5.1 66

(15%)

(20%) COST(15%)APPROVALS PROCESS(5%) TOTALSCORE

Shared
Recreation B.1 URBANDESIGNNEIGHBORHOOD
BUILDINGEFFICIENCY
165'-4" 100'-0" W114TH ST MORN I NGS I DE DR LOT 23 LOT 20 LOT 14 26,777 GFA 30'-0" 60'-0" 8,510 GFA 10'-0" 30'-0" 60'-0" 30'-0" 70'-0" 65'-4" 30'-0" 141'-10" 30'-0" 63'-8" 37'-3" 13,006 GFA 10'-0" LOTS 1/5 165'-4" LOT 23 LVL 19 LOT 20 LOT 14 100'-0" 1/5 LVL 19 1" = 50'-0" 3 LEVEL 3-19 1" = 50'-0" 5 LEVEL 2 0' 10' 100' 40' 2 SITE AXON NORTH FIXED 1" = 40'-0" 6 ELEVATION NORTH 1" = 40'-0" ELEVATION SOUTH B.2 B.3 B.4 B.5 165'-4" MORN I NGS I DE LOT 23 26,777 GFA 30'-0"70'-0"65'-4" 30'-0" 141'-10" 30'-0" 35'-11"65'-0" 30'-0"60'-0"10'-0" 13,107 GFA 30'-0"60'-0"10'-0" 8,510 GFA LOTS 1/5 165'-4" LOT 23 LVL 19 LOT 20 LOT 14 100'-0" 1/5 LVL 19 1" = 40'-0" 2 LEVEL 2-3 1" = 40'-0" 3 LEVEL 4-19 4 SITE AXON NORTH FIXED 1" = 40'-0" 6 ELEVATION NORTH 40'-0" ELEVATION SOUTH 30'-0"70'-0"65'-4" 35'-11"65'-0" 13,107 GFA 30'-0"70'-0"65'-4" 30'-0"40'-0"61'-10"40'-0"30'-0" 65'-0" 35'-11" 14,962 GFA LVL 17 LOTS 1/5 165'-4" LOT 23 LVL 17 LOT 20 LOT 14 100'-0" 4 SITE AXON NORTH FIXED 1" = 40'-0" 7 ELEVATION NORTH SOUTH LOTS 1/5 165'-4" LOT 23 LVL 17 LOT 20 LOT 14 100'-0" 1/5 LVL 17 4 SITE AXON NORTH FIXED 6 ELEVATION NORTH 40'-0" ELEVATION SOUTH 4 SITE AXON NORTH FIXED < Less Good Better > 5 5 5 5 5 7 7 7 7 7 8 8 8 8 8 8 8 8 8 8 3 3 4 5 5 5 5 5 5 5 6.7 6.7 6.8 7.0 7.0 67
Program Key Residential Health Dining
Common
PROGRAMACCOMMODATION(35%) IMAGE+IDENTITY(10%)
220,000 215,000 210,000 205,000 200,000 195,000 190,000 185,000 180,000 175,000 170,000 165,000 160,000 155,000 150,000 145,000 140,000 135,000 130,000 125,000 120,000 115,000 110,000 105,000 100,000 95,000 90,000 85,000 80,000 75,000 70,000 65,000 60,000 55,000 50,000 45,000 40,000 35,000 30,000 25,000 20,000 15,000 10,000 5,000 12345678 300 BEDS HEALTH 2 DINING 500 BEDS 300 BEDS HEALTH 1 RECREATION DINING 500 BEDS RECREATION
R8 AS-OF-RIGHT 300 BEDS HEALTH 3 DINING 600 BEDS DINING DINING HEALTH 2 400 BEDS DINING DINING DINING
GSF
With Air Rights Transfer from 44 Morningside
Proposed Rezoning 400 BEDS RECREATION
Option A R8: Double Bar
Option B R8: Single Tower Massing Option C R8A: Contextual 68
CONTEXTUAL R8-A
Massing
Massing

Proposed Contextual Rezoning Scenarios

The program and massing scenarios on the following pages (Scenarios C.6, C.7, and C.8) are based on a proposed contextual rezoning for the site. As such, these are not possible under current zoning and are not viable options. However, these scenarios illustrate the impact of the proposed rezoning if it were enacted, and so are important as part of this study. In general, the program options that have been accommodated are parallel to those in the as-of-right scenarios, but there is a reduction of 100 beds in the dormitory to account for the height limit in the proposed rezoning and the consequent loss of development potential.

Institutional Morningside Heights is uniquely rich in institutional uses, including the main academic campus of Columbia University along with: Union and Jewish Theological Seminaries Barnard College Teacher’s College • Riverside Church St. John the Divine Cathedral Mt. Sinai’s St. Luke’s-Roosevelt hospital • Manhattan School of Music The map at right also indicates the location of Columbia-owned residential buildings, which make up a significant portion of the neighborhood’s housing stock. Morningside Heights Planning Study 8 MHCC, CM Levine, BP Brewer, MCB9, Council Land Use Division Background and Existing Conditions Institutional ownership in the neighborhood. Data from PLUTO. 21 Morningside Heights Planning Study MHCC, CM Levine, BP Brewer, MCB9, Council Land Use Division Planning Framework Areas with a concentration of rent-stabilized units. Areas with substantial de-stabilization of units; and with low rates of non-compliance after rezoning. Areas with low rates of non-compliance after rezoning. Areas with no existing regulatory measures that can help protect existing rent-stabilized buildings; and with substantial unbuilt allowable floor area. Areas with substantial unbuilt allowable floor area. Pages from Morningside Heights Planning Study, 5/2021 May 2021 Morningside Heights Planning Study A Report of the Morningside Heights Community Coalition, Council Member Mark Levine, Borough President Gale Brewer, Manhattan Community Board 9, and the City Council Land Use Division COLUMBIA UNIVERSITY SITE 1 PLANNING + ZONING STUDY 1.9.2023 69

Scenario C.6

Massing Scheme C: Contextual Rezoning Option Program: 500 Student Beds & Dining

SCENARIO C.6 DATA

*For lot coverage and tower lot coverage calculations, see zoning calculations on page 26–27.

EVALUATION SUMMARY (6.1 Total Score)

• Neighborhood Context: 8

The double bar massing is consistent with the continuous street walls along 114th Street and 115th Street.

• Image and Identity: 8

The building has a strong presence along 115th, reinforcing connections to campus. The inner courtyard provides a setting for shared program activities.

• Program Accommodation: 6

The height limit under the proposed rezoning would result in a 100 bed reduction to the dormitory when compared to the associated program mix in the A.1 as-of-right scenario.

• Building Efficiency: 5

Double bar massing results in a lower net to gross area ratio.

• Cost: 5

Duplication of building cores and envelope is likely a cost increase over a comparable single tower scenario.

• Regulatory Path: 5

The same for all scenarios under consideration.

DESCRIPTION

This scenario is based on the proposed contextual rezoning of this site from R8 to R8A, which requires a conventional rear yard as there are no rear-yard equivalents for through lots in the proposed rezoning. Consequently, the massing is organized as two separate bar buildings, one along 114th Street and one along 115th Street, both above a ground floor that covers the full lot. This scenario assumes one below-grade level also covering the full extent of the lot. The proposed rezoning imposes a 125’ height limit for the site, and because of this, there will be limited opportunity to use air rights transfers from adjacent lots. For this study, the development potential is based on the FAR for this site only.

The programming for this scenario includes a residential hall with 500 beds, which is a 100 bed reduction from the corresponding full dormitory program in the as-of-right schemes. There is also a dining hall with 400 seats, and a shared commons space. As with all scenarios in our study, the dining hall and the shared commons provide places for social gathering prominently located at the entry level and at the level below, potentially connected by double-height spaces.

Although the ground floor is shared, the residence hall would be split between two buildings, each with a separate circulation core which could have dedicated secured entrances. Given the height restriction, the housing blocks are deeper than in our preliminary test fits to maximize the development potential and may be better suited for apartment type suites. It may also result in a slightly less efficient area/bed ratio than the 300 sf/bed ratio that has been used in the non-contextual massing options.

SUMMARY Zoning R8A Contextual Rezoning Massing Double Bar Floors Above Grade 11/10 Height 115’-0” ZONING Zoning District R8A Lot Area 26,786 FAR (Community Faciity) 6.5 Development Rights (ZFA) 174,109 Transfer, Lot 9 Existing (ZFA) -23,927 Transfer, Lot 23 Proposed (ZFA) n/a Total Development Rights (ZFA) 150,185 BULK REGULATIONS Min Max Scenario Overall Height 125 115’-0” Base Height 60 95’-0” 95’-0” Initial Setback: Narrow Street 15’-0” 15’-0” Rear Yard Equiv.: 1 x Street Line 60’-0” 60’-0” Lot Coverage* 18,750 17,734 Total Zoning Floor Area (ZFA) 177,227 149,722 GROSS AREA Below Grade Level (GSF) 26,777 Ground Floor (GSF) 26,026 Upper Floors (GSF) 135,685 Building Total (GSF) 188,488 PROGRAM Target Provided Residential (500 Beds) 150,000 157,711 Dining (400 Seats) 26,580 25,777 Shared Commons 5,000 5,000 Program Total Area (GSF) 181,580 188,488 Building Total Area (GSF) 188,488 188,488 70
100'-11" 100'-11" 50'-0"115'-4" 100'-0" W115TH ST W114TH ST MORN I NGS I DE DR AMSTERDAM AVE LOTS 1/5 LOT 23 LOT 20 LOT 14 26,027 GFA 100'-0" 50'-0"115'-4" 76'-0"60'-0"50'-10" 15'-0" 7600 GSA 10,134 GSA 30'-0"70'-0" 15'-0" 50'-10" 60'-0" 76'-0" 5,320 GSA 8,609 GSA 30'-0"20'-0"115'-4" 30'-0"135'-4" 15'-0" 50'-10" 60'-0" 15'-0"61'-0" 6,879 GSA 4,270 GSA 30'-0"70'-0" LOT 23 165'-4"LOTS 1/5 LVL 11 LOT 20 LOT 14 100'-0" LOTS 1/5 LVL 10 W115TH STREET W114TH STREET 15'-0"50'-10"60'-0"61'-0"15'-0" LVL 11 MAX ZONING HT 125'-0" 115'-0" 65'-0" 95'-0" 105'-0" LVL 10 SKY EXPOSURE PLANE 95'-0" 6,879 GSF 30'-0"135'-4" 136'-0"50'-10"15'-0" 1" = 40'-0" 1 LEVEL 1 1" = 40'-0" 2 LEVEL 2-4 1" = 40'-0" 3 LEVEL 5-6 1" = 40'-0" 4 LEVEL 7-10 0' 10' 100' 40' 5 SITE AXON NORTH FIXED 6 SITE AXON SOUTH FIXED 1" = 40'-0" 7 ELEVATION NORTH 1" = 40'-0" 8 ELEVATION SOUTH 1" = 40'-0" 9 MASSING SECTION 1" = 40'-0" 10 LEVEL 11 Site Axon
Site Axon
Massing
Elevation
Elevation
Level 1 C.6 Program Key Residential Health Dining Shared Common Recreation Plan Key Floor Area Building Footprint Level 7-10 Level 2-4 Level 11 Level 5-6 COLUMBIA UNIVERSITY SITE 1 PLANNING + ZONING STUDY 1.9.2023 71
South Fixed
North Fixed
Section
South
North

Scenario C.7

Massing Scheme C: Contextual Rezoning Option Program: 400 Student Beds, Dining & Recreation

SCENARIO C.7 DATA

*For lot coverage and tower lot coverage calculations, see zoning calculations on page 26–27.

EVALUATION SUMMARY (6.1 Total Score)

• Neighborhood Context: 8

The double bar massing is consistent with the continuous street walls along 114th Street and 115th Street.

• Image and Identity: 8

The building has a strong presence along 115th, reinforcing connections to campus. The inner courtyard provides a setting for shared program activities.

• Program Accommodation: 6

The height limit under the proposed rezoning would result in a 100 bed reduction to the dormitory when compared to the associated program mix in the A.2 as-of-right scenario.

• Building Efficiency: 5

Double bar massing results in a lower net to gross area ratio.

• Cost: 5

Duplication of building cores and envelope is likely a cost increase over a comparable single tower scenario.

• Regulatory Path: 5

The same for all scenarios under consideration.

DESCRIPTION

This scenario is based on the proposed contextual rezoning of this site from R8 to R8A, which requires a conventional rear yard as there are no rear-yard equivalents for through lots in the proposed rezoning. Consequently, the massing is organized as two separate bar buildings, one along 114th Street and one along 115th Street, both above a ground floor that covers the full lot. This scenario assumes one below-grade level also covering the full extent of the lot. The proposed rezoning imposes a 125’ height limit for the site, and because of this, there will be limited opportunity to use air rights transfers from adjacent lots. For this study, the development potential is based on the FAR for this site only.

The programming for this scenario includes a residential hall with 400 beds, a dining hall with 400 seats, a well-being recreation center, and a shared commons space. As with all scenarios in our study, the dining hall and the shared commons provide places for social gathering prominently located at the entry level and at the level below, potentially connected by double-height spaces.

Although the ground floor is shared, the residence hall would be split between two buildings, each with a separate circulation core which could have dedicated secured entrances. Given the height restriction, the housing blocks are deeper than in our preliminary test fits to maximize the development potential and may be better suited for apartment type suites. It may also result in a slightly less efficient area/bed ratio than the 300 sf/bed ratio that has been used in the non-contextual massing options.

SUMMARY Zoning R8A Contextual Rezoning Massing Double Bar Floors Above Grade 11/10 Height 115’-0” ZONING Zoning District R8A Lot Area 26,786 FAR (Community Faciity) 6.5 Development Rights (ZFA) 174,109 Transfer, Lot 9 Existing (ZFA) -23,937 Transfer, Lot 23 Proposed (ZFA) n/a Total Develop. Rights (ZFA) 150,172 BULK REGULATIONS Min Max Scenario Overall Height 125 115’-0” Base Height 60 95’-0” 80’-0” Initial Setback: Narrow Street 15’-0” 15 Rear Yard Equiv: 1 x Street Line 60’-0” 60’-0” Lot Coverage* 18,750 18,750 Total Zoning Floor Area (ZFA) 150,172 148,790 GROSS AREA Below Grade Level (GSF) 26,777 Ground Floor (GSF) 26,777 Upper Floors (GSF) 134,072 Building Total (GSF) 187,626 PROGRAM Target Provided Residential (400 Beds) 120,000 143,072 Dining (400 Seats) 26,580 25,777 Shared Commons 5,000 5,000 Recreation 26,580 13,777 Program Total Area (GSF) 178,160 187,626 Building Total Area (GSF) 187,626 187,626 72
100'-11" 100'-11" 165'-4" 100'-0" W115TH ST W114TH ST MORN I NGS I DE DR AMSTERDAM AVE LOTS 1/5 LOT 23 LOT 20 LOT 14 26,777 GFA 100'-0" 165'-4" 70'-11"60'-0"70'-11" 7,092 GSA 11,725 GSA 30'-0"70'-0" 70'-11" 60'-0" 70'-11" 30'-0"135'-4" 4,964 GSA 9,597 GSA 30'-0"135'-4" 15'-0" 55'-11" 60'-0" 55'-11" 15'-0" 30'-0"70'-0" 3,914 GSA 7,567 GSA 30'-0"70'-0" 15'-0" 55'-11" 60'-0" 70'-11" 30'-0"135'-4" 4,964 GSA 7,567 GSA LVL 11 LOTS 1/5 165'-4" LOT 23 LVL 9 LOT 20 LOT 14 100'-0" LOTS 1/5 W115TH STREET W114TH STREET 15'-0"55'-11"60'-0"55'-11"15'-0" LVL 9 115'-0" LVL 11 100'-0" 80'-0" 65'-0" MAX ZONING HT 125'-0" SKY EXPOSURE PLANE 95'-0" 1" = 40'-0" 1 LEVEL 1 1" = 40'-0" 2 LEVEL 2-4 1" = 40'-0" 3 LEVEL 5-6 1" = 40'-0" 4 LEVEL 9-11 1" = 40'-0" 5 LEVEL 7-8 0' 10' 100' 40' 6 SITE AXON NORTH FIXED 7 SITE AXON SOUTH FIXED 1" = 40'-0" 8 ELEVATION -NORTH 1" = 40'-0" 9 ELEVATION -SOUTH 1" = 40'-0" 10 SITE SECTION Site Axon South Fixed Site Axon North Fixed Massing Section Elevation South Elevation North Level 5-7 Level 2-3 Level 1 C.7 Level 8-11 Program Key Residential Health Dining Shared Common Recreation Plan Key Floor Area Building Footprint Level 4-5 COLUMBIA UNIVERSITY SITE 1 PLANNING + ZONING STUDY 1.9.2023 73

Scenario C.8

Massing Scheme C: Contextual Rezoning Option Program: 300 Student Beds, Dining & Health Med +

SCENARIO C.8

*For lot coverage and tower lot coverage calculations, see zoning calculations on page 26–27.

EVALUATION SUMMARY (4.0 Total Score)

• Neighborhood Context: 8

The double bar massing is consistent with the continuous street walls along 114th Street and 115th Street.

• Image and Identity: 8

The building has a strong presence along 115th, reinforcing connections to campus. The inner courtyard provides a setting for shared program activities.

• Program Accommodation: 2

The height limit under the proposed rezoning would result in a 100 bed reduction to the dormitory when compared to the associated program mix in the A.3 as-of-right scenario.

• Building Efficiency: 5

Double bar massing results in a lower net to gross area ratio.

• Cost: 5

Duplication of building cores and envelope is likely a cost increase over a comparable single tower scenario.

• Regulatory Path: 5

The same for all scenarios under consideration.

DESCRIPTION

This scenario is based on the proposed contextual rezoning of this site from R8 to R8A, which requires a conventional rear yard as there are no rear-yard equivalents for through lots in the proposed rezoning. Consequently, the massing is organized as two separate bar buildings, one along 114th Street and one along 115th Street, both above a ground floor that covers the full lot. This scenario assumes one below-grade level also covering the full extent of the lot. The proposed rezoning imposes a 125’ height limit for the site, and because of this, there will be limited opportunity to use air rights transfers from adjacent lots. For this study, the development potential is based on the FAR for this site only.

The programming for this scenario includes a residential hall with 300 beds, a dining hall with 400 seats, a health facility with medical services, health promotion and admin spaces (Health 2), and a shared commons space. As with all scenarios in our study, the dining hall and the shared commons provide places for social gathering prominently located at the entry level and at the level below, potentially connected by double-height spaces.

Although the ground floor is shared, the residence hall and the health facility would be split between two buildings, each with a separate circulation core with dedicated secured entrances.

In general, the available floor plates at the south block are smaller than optimal for the health facility program, which would benefit from fewer, larger floors. To house the selected health program, eleven stories are required in this scenario.

SUMMARY Zoning R8A Contextual Rezoning Massing Double Bar Floors Above Grade 10/09 Height 115’-0” ZONING Zoning District R8A Lot Area 26,786 FAR (Community Faciity) 6.5 Development Rights (ZFA) 174,109 Transfer, Lot 9 Existing (ZFA) -23,937 Transfer - Lot 23 Proposed (ZFA) n/a Total Development Rights (ZFA) 150,172 BULK REGULATIONS Min Max Scenario Overall Height 125 115’-0” Base Height 60 95’-0” 80’-0” Initial Setback: Narrow Street 15’-0” 15 Rear Yard Equiv: 1 x Street Line 60’-0” 60’-0” Lot Coverage* 18,750 18,750 Total Zoning Floor Area (ZFA) 150,172 148,789 GROSS AREA Below Grade Level (GSF) 26,777 Ground Floor (GSF) 26,776 Upper Floors (GSF) 134,072 Building Total (GSF) 187,625 PROGRAM Target Provided Residential (300 Beds) 90,000 103,704 Dining (400 Seats) 26,580 25,777 Shared Commons 5,000 5,000 Health (2030 Med Services) 68,600 53,144 Program Total Area (GSF) 190,180 187,625 Building Total Area (GSF) 187,625 187,625 74
DATA
100'-11" 100'-11" 165'-4" 100'-0" W115TH ST W114TH ST MORN I NGS I DE DR AMSTERDAM AVE LOTS 1/5 LOT 23 LOT 20 LOT 14 26,777 GFA 100'-0" 165'-4" 70'-11"60'-0"70'-11" 7,092 GSA 11,725 GSA 30'-0"70'-0" 70'-11" 60'-0" 70'-11" 30'-0"135'-4" 4,964 GSA 9,597 GSA 30'-0"135'-4" 15'-0" 55'-11" 60'-0" 55'-11" 15'-0" 30'-0"70'-0" 3,914 GSA 7,567 GSA 30'-0"70'-0" 15'-0" 55'-11" 60'-0" 70'-11" 30'-0"135'-4" 4,964 GSA 7,567 GSA LVL 11 LOTS 1/5 165'-4" LOT 23 LVL 9 LOT 20 LOT 14 100'-0" LOTS 1/5 W115TH STREET W114TH STREET 15'-0"55'-11"60'-0"55'-11"15'-0" LVL 9 115'-0" 90'-0" LVL 11 115'-0" 65'-0" MAX ZONING HT 125'-0" SKY EXPOSURE PLANE 95'-0" 1" = 40'-0" 1 LEVEL 1 1" = 40'-0" 2 LEVEL 2-4 1" = 40'-0" 3 LEVEL 5-6 1" = 40'-0" 4 LEVEL 9-11 1" = 40'-0" 5 LEVEL 7-8 0'10' 100' 40' 6 SITE AXON NORTH FIXED 7 SITE AXON SOUTH FIXED 1" = 40'-0" 8 ELEVATION -NORTH 1" = 40'-0" 9 ELEVATION -SOUTH 1" = 40'-0" 10 SITE SECTION Site Axon South Fixed Site Axon North Fixed Massing Section Elevation South Elevation North Level 7 Level 2-4 Level 1 C.8 Level 8-11 Program Key Residential Health Dining Shared Common Recreation Plan Key Floor Area Building Footprint Level 5-6 COLUMBIA UNIVERSITY SITE 1 PLANNING + ZONING STUDY 1.9.2023 75

• Urban Design (15%). Relationship of building mass and scale to neighboring structures, service loading and public street frontages, and visual connections to campus & park

• Image + Identity (10%). Image Public program uses, access/ visibility on 115th, pedestrian connections to main campus.

• Program Accommodation (35%). Operational efficiencies for staffing & shared spaces based on floorplate size.

• Building Efficiency (20%). Additional gross area to accommodate higher proportion of circulation on smaller floorplates, additional egress stairs, duplication of toilets and support facilities, and some program duplication to function on multiple smaller floorplates.

• Cost (15%). Premiums for add’l building envelope relative to floor area, additional elevators and main HVA distribution lines, plumbing fixtures in two building massings.

• Approvals Process (5%). Requirements for special approval processes; DOB and BSA.

Organization Contextual Rezoning Scenarios Evaluation Matrix
URBANDESIGNNEIGHBORHOOD(15%) PROGRAMACCOMMODATION(35%) IMAGE+IDENTITY(10%) BUILDINGEFFICIENCY(20%) COST(15%)APPROVALS PROCESS(5%) TOTALSCORE 50'-0"115'-4" 100'-0" W114TH ST MORN I NGS I DE DR LOT 23 LOT 20 LOT 14 26,027 GFA 100'-0" 50'-0"115'-4" 76'-0"60'-0"50'-10" 15'-0" 7600 GSA 10,134 GSA 30'-0"70'-0" 15'-0" 50'-10" 60'-0" 76'-0" 5,320 GSA 8,609 GSA 30'-0"20'-0"115'-4" LOT 23 165'-4"LOTS 1/5 LVL 11 LOT 20 LOT 14 100'-0" 1" = 40'-0" 2 LEVEL 2-4 1" = 40'-0" 3 LEVEL 5-6 0' 10' 100' 40' 5 SITE AXON NORTH FIXED 1" = 40'-0" 7 ELEVATION NORTH
165'-4" MORN I NGS I DE LOT 23 26,777 GFA 100'-0" 165'-4" 70'-11"60'-0"70'-11" 7,092 GSA 11,725 GSA 30'-0"70'-0" 70'-11" 60'-0" 70'-11" 30'-0"135'-4" 4,964 GSA 9,597 GSA LVL 11 LOTS 1/5 165'-4" LOT 23 LOT 20 LOT 14 100'-0" 1" = 40'-0" 2 LEVEL 2-4 1" = 40'-0" 3 LEVEL 5-6 6 SITE AXON NORTH FIXED 1" = 40'-0" 8 ELEVATION -NORTH -SOUTH 165'-4" 70'-11"60'-0"70'-11" 7,092 GSA 11,725 GSA 70'-11" 60'-0" 70'-11" 30'-0"135'-4" 4,964 GSA 9,597 GSA LVL 11 LOTS 1/5 165'-4" LOT 23 LOT 20 LOT 14 100'-0" 6 SITE AXON NORTH FIXED 1" = 40'-0" 8 ELEVATION -NORTH -SOUTH 5 5 5 5 5 5 8 8 6 8 8 8 Program Key Residential Health Dining Shared Common Recreation < Less Good Better >
Building
C.6
C.7 C.8
5 5 3 6.1 6.1 4.0 6 8 2 76
COLUMBIA UNIVERSITY SITE 1 PLANNING + ZONING STUDY 1.9.2023 77

Acknowledgments

Thank you to every individual who contributed time, information, and insights to this analysis and report.

COLUMBIA UNIVERSITY FACILITIES & OPERATIONS

David Greenberg, Executive Vice President

COLUMBIA UNIVERSITY PLANNING & CAPITAL PROJECT MANAGEMENT

Edward McArthur, Vice President

David Sasscer, Executive Director Project Management

Eugene Villalobos, Executive Director Space Planning

Chris Semlies, Director Project Management

Richard Peterson, Project Manager

Sung Youn Min, Senior Space Planner

COLUMBIA UNIVERSITY CAMPUS SERVICES

Scott Wright, Vice President

Vicky Dunn, Assistant Vice President, Columbia Dining

COLUMBIA HEALTH

Dr. Melanie Bernitz, Senior Vice President

Michael McNeil, Chief of Administration

COLUMBIA UNIVERSITY

PHYSICAL EDUCATION & RECREATION

Jeffrey Ryder, Director of Physical Education, Associate in Physical Education

Erich Ely, Director of Athletics Development

COLUMBIA UNIVERSITY OPERATIONS & MAINTENANCE

Hugo Brun-Patoja, Commissioning

Yves-Leo Dejoie, Engineering

WORKS REFERENCED AND CITED

Columbia Health Facility Masterplan, Phase 1: Programming & Benchmarking. Ewing Cole, June 17, 2020.

A Mixed-use Development for St. Luke’s Hospital and Columbia University. Appendix. Site # 5 Analysis. West 114th and 115th Street between Amsterdam Avenue and Morningside Drive. Beyer Blinder Belle Associates, February 16, 2000.

Columbia University Dodge Gym Transformation Area Program. Rafael Viñoly Architects, Final for Approval February 28, 2019.

Proposed Development Study 406-412 W 115th Street. Costas Kondylis & Partners LLP Architects. May 8, 2006. (PDF File name indicates May 8, 2008).

Memorandum Re: St. Luke’s/Roosevelt hospital Center

Proposed Columbia Development 406-412 W. 115th Street. Draft for Review (incorrectly labeled 225th Street on document), Costas Kondylis & Partners LLP Architects.

This report was prepared by Davis Brody Bond, LLP, Architects xand Planners. The team is comprised of:

DAVIS BRODY BOND

Architecture and Planning

Carl F. Krebs, FAIA, Partner

William H. Paxson, AIA, Partner

Fernando Hausch-Fen, AIA, Senior Associate

Brent Klokis, AIA, Associate

Jeana Kwon, AIA, Associate

Taylor J. Holland, Intermediate Architect

Dylan Jhirad, Director of Graphic Design

ENVELOPE ZONING

Zoning

Eldad Gothelf • Jonathan Fertel

Rachel Bristow • Diane Luebs

LANGAN

Geotechnical Engineering

Saul Shapiro • Jamie Roger

DAVELLA STUDIOS

Food Service

James Davella, President & Founder

Jan Singer, Director of Management Advisory Services

BR+A CONSULTING ENGINEERS

Sustainability

Andrew Kozak, Principal-In-Charge/Project Manager

Columbia Science Building Development Study (labeled Final Draft on Facsimile cover). Development Consulting Services, Inc., January 8, 2002 (PDF File name indicates January 8, 2008).

G. Weiner Memorandum, July 28, 2003, and G. Weiner personal communication, September 30, 2004 (PDF File name indicates September 30, 2014).

Morningside Heights Development Handbook. GWW Planning and Development LLC, October 4, 2013.

Morningside Heights Planning Study. A Report of the Morningside Heights Community Coalition, Council Member Mark Levine, Borough President Gale Brewer, Manhattan Community Board 9, and the City Council Land Use Division, May 2021.

Paul Hasting Memorandum. September 24, 2001.

SOM personal communication Laboratory Layout of Potential Science Building. December 5, 2001.

78
80

5.

5.1

Zoning Metrics (Envelope Zoning)

5.2 Geotechnical Report (Langan)

5.3 Building Systems (BR+A Consulting Engineers)

5.4 Benchmarking (Davis Brody Bond)

5.5 Program Room Lists (Davis Brody Bond, Davella Studios)

5.6 Scenario Data (Davis Brody Bond)

5.7 Health Test-Fit Prototypes (Davis Brody Bond)

5.8 Health Test-Fits, Site Specific (Davis Brody Bond)

81
Appendices
82

Zoning Metrics

Appendix 5.1
COLUMBIA UNIVERSITY SITE 1 PLANNING + ZONING STUDY 1.9.2023 83
Primary ZONING R8 OVERVIEW Community Fac. Manufacturing ZONING ANALYSIS 6.02 Residential RIGHTS 161,254 ZFA Commercial 0 174,111 0 0.00 6.50 0.00 FAR
WEST 115 STREET NY-MN-1867-9, NY-MN-1867-29, NY-MN-1867-30, NY-MN-1867-31, NY-MN-1867-33 Built Area 42,672 Lot Area EXISTING 26,786 ZONING METRICS 84
412

412 WEST 115 STREET

Commercial CF (Gnd) 21,429 10'/fl Total 115' 6.50 SCENARIO 1: As-Of-Right CF 0.00 ZONING ANALYSIS 0.00 128,446 149,875 0 HEIGHT Community Fac. Manufacturing ZFA ZFA FAR RIGHTS 161,254 PROPOSED CF 15' 174,111 0 6.02 Residential
NY-MN-1867-29, NY-MN-1867-30, NY-MN-1867-31, NY-MN-1867-33 COLUMBIA UNIVERSITY SITE 1 PLANNING + ZONING STUDY 1.9.2023 85
NY-MN-1867-9,

412 WEST 115 STREET

NY-MN-1867-9, NY-MN-1867-29, NY-MN-1867-30, NY-MN-1867-31, NY-MN-1867-33

ZONING ANALYSIS SCENARIO 1: As-Of-Right CF
86
ZONING METRICS (cont’d)
Primary ZONING R8 OVERVIEW Community Fac. Manufacturing ZONING ANALYSIS 6.02 Residential RIGHTS 100,499 ZFA Commercial 0 108,512 0 0.00 6.50 0.00 FAR
WEST 115 STREET NY-MN-1867-29, NY-MN-1867-30, NY-MN-1867-31, NY-MN-1867-33 Built Area 0 Lot Area EXISTING 16,694 COLUMBIA UNIVERSITY SITE 1 PLANNING + ZONING STUDY 1.9.2023 87
412

412

Commercial CF (Gnd) 13,355 10'/fl Total 145' 6.50 SCENARIO 1A: CF As-Of-Right (w/o Clinic) 0.00 ZONING ANALYSIS 0.00 95,149 108,504 0 HEIGHT Community Fac. Manufacturing ZFA ZFA FAR RIGHTS 100,499 PROPOSED CF 15' 108,512 0 6.02 Residential
WEST 115 STREET NY-MN-1867-29, NY-MN-1867-30, NY-MN-1867-31, NY-MN-1867-33 ZONING METRICS (cont’d) 88

412

WEST 115 STREET

NY-MN-1867-29, NY-MN-1867-30, NY-MN-1867-31, NY-MN-1867-33

ZONING ANALYSIS SCENARIO 1A: CF As-Of-Right (w/o Clinic)
COLUMBIA UNIVERSITY SITE 1 PLANNING + ZONING STUDY 1.9.2023 89

412

Primary ZONING R8 OVERVIEW Community Fac. Manufacturing ZONING ANALYSIS 6.02 Residential RIGHTS 161,254 ZFA Commercial 0 174,111 0 0.00 6.50 0.00 FAR
WEST 115 STREET NY-MN-1867-9, NY-MN-1867-29, NY-MN-1867-30, NY-MN-1867-31, NY-MN-1867-33 Built Area 42,672 Lot Area EXISTING 26,786 ZONING METRICS (cont’d) 90

412

NY-MN-1867-9,

ZONING ANALYSIS CF 21,429 CF (Gnd) Total 115' Commercial 128,706 0.00 SCENARIO 2: CF @ R8A 0.00 10'/fl 150,135 0 HEIGHT Community Fac. Manufacturing ZFA ZFA FAR RIGHTS 161,254 PROPOSED 15' 174,111 0 6.02 Residential 6.50
WEST 115 STREET
NY-MN-1867-29, NY-MN-1867-30,
COLUMBIA UNIVERSITY SITE 1 PLANNING + ZONING STUDY 1.9.2023 91
NY-MN-1867-31, NY-MN-1867-33

412 WEST 115 STREET

NY-MN-1867-9, NY-MN-1867-29, NY-MN-1867-30, NY-MN-1867-31, NY-MN-1867-33

ZONING ANALYSIS SCENARIO 2: CF @ R8A
92
ZONING METRICS (cont’d)
Primary ZONING R8 OVERVIEW Community Fac. Manufacturing ZONING ANALYSIS 6.02 Residential RIGHTS 161,254 ZFA Commercial 0 174,111 0 0.00 6.50 0.00 FAR
WEST 115 STREET NY-MN-1867-9, NY-MN-1867-29, NY-MN-1867-30, NY-MN-1867-31, NY-MN-1867-33 Built Area 42,672 Lot Area EXISTING 26,786 COLUMBIA UNIVERSITY SITE 1 PLANNING + ZONING STUDY 1.9.2023 93
412

412 WEST 115 STREET

NY-MN-1867-9, NY-MN-1867-29, NY-MN-1867-30, NY-MN-1867-31, NY-MN-1867-33

ZONING ANALYSIS SCENARIO 2: CF @ R8A
94
ZONING METRICS (cont’d)
Primary ZONING R8 OVERVIEW Community Fac. Manufacturing ZONING ANALYSIS 6.02 Residential RIGHTS 161,254 ZFA Commercial 0 174,111 0 0.00 6.50 0.00 FAR
WEST 115 STREET NY-MN-1867-9, NY-MN-1867-29, NY-MN-1867-30, NY-MN-1867-31, NY-MN-1867-33 Built Area 42,672 Lot Area EXISTING 26,786 COLUMBIA UNIVERSITY SITE 1 PLANNING + ZONING STUDY 1.9.2023 95
412
Commercial 0.00 6.50 Additional Rights 0 174,111 0 RIGHTS CF (Gnd) 10'/fl Community Fac. Manufacturing ZFA 15' Total 145' 175,371 PROPOSED 153,942 21,429 HEIGHT ZFA 6.02 0.00 161,254 ZFA Lot 23 SCENARIO 3: CF w/Lot 23 TDR CF FAR ZONING ANALYSIS Residential 27,055
WEST 115 STREET NY-MN-1867-9, NY-MN-1867-29, NY-MN-1867-30, NY-MN-1867-31, NY-MN-1867-33 ZONING METRICS (cont’d) 96
412

412 WEST 115 STREET

ZONING ANALYSIS SCENARIO 3: CF w/Lot 23 TDR

NY-MN-1867-9, NY-MN-1867-29, NY-MN-1867-30, NY-MN-1867-31, NY-MN-1867-33

COLUMBIA UNIVERSITY SITE 1 PLANNING + ZONING STUDY 1.9.2023 97

*Note prior transfer from Lot 9 diminishes the site's development

Primary ZONING R8 0.00 174,111* 0.00 ZFA 0 FAR Community Fac. Manufacturing block-view RIGHTS 161,254 0 Residential 6.02 6.50 ZONING ANALYSIS Commercial Built Area 42,672 Lot Area EXISTING 26,786
23,937
WEST 115 STREET NY-MN-1867-9, NY-MN-1867-29, NY-MN-1867-30, NY-MN-1867-31, NY-MN-1867-33 ZONING METRICS (cont’d) 98
potential by
412
SCENARIO 3A: Tower w/TDR from Lots 23 &20 ZONING ANALYSIS Com Facility (ground) Com Facility Dev. Rights Transfers Lot 23 Community Fac. Manufacturing 27,055 Total 6.02 0 174,111 273' 284,380 RIGHTS 161,254 15' PROPOSED HEIGHT 10'/fl 0 107,835 ZFA 0.00 Lot 9 6.50 0.00 21,429 ZFA FAR Lot 20 ZFA -23,937 Residential 263,546 Commercial
WEST 115 STREET NY-MN-1867-9, NY-MN-1867-29, NY-MN-1867-30, NY-MN-1867-31,
COLUMBIA UNIVERSITY SITE 1 PLANNING + ZONING STUDY 1.9.2023 99
412
NY-MN-1867-33

ZONING

METRICS (cont’d)

412 WEST 115 STREET

SCENARIO

ZONING ANALYSIS

3A: Tower w/TDR from Lots 23 &20
NY-MN-1867-9, NY-MN-1867-29, NY-MN-1867-30, NY-MN-1867-31, NY-MN-1867-33 100

*Note

Primary ZONING R8 0.00 174,111* 0.00 ZFA 0 FAR Community Fac. Manufacturing block-view RIGHTS 161,254 0 Residential 6.02 6.50 ZONING ANALYSIS Commercial Built Area 42,672 Lot Area EXISTING 26,786
prior
9
site's development potential by 23,937
WEST 115 STREET NY-MN-1867-9, NY-MN-1867-29, NY-MN-1867-30, NY-MN-1867-31, NY-MN-1867-33 COLUMBIA UNIVERSITY SITE 1 PLANNING + ZONING STUDY 1.9.2023 101
transfer from Lot
diminishes the
412

412

SCENARIO 3A: Tower w/TDR from Lots 23 &20 ZONING ANALYSIS Com Facility (ground) Com Facility Dev. Rights Transfers Lot 23 Community Fac. Manufacturing 27,055 Total 6.02 0 174,111 223' 284,975 RIGHTS 161,254 15' PROPOSED HEIGHT 10'/fl 0 107,835 ZFA 0.00 Lot 9 6.50 0.00 21,429 ZFA FAR Lot 20 ZFA -23,937 Residential 263,546 Commercial
WEST 115 STREET NY-MN-1867-9, NY-MN-1867-29, NY-MN-1867-30, NY-MN-1867-31,
METRICS (cont’d) 102
NY-MN-1867-33 ZONING

412 WEST 115 STREET

ZONING ANALYSIS

SCENARIO 3A: Tower w/TDR from Lots 23 &20

NY-MN-1867-9, NY-MN-1867-29, NY-MN-1867-30, NY-MN-1867-31, NY-MN-1867-33

COLUMBIA UNIVERSITY SITE 1 PLANNING + ZONING STUDY 1.9.2023 103
104

Geotechnical Report

Appendix 5.2
COLUMBIA UNIVERSITY SITE 1 PLANNING + ZONING STUDY 1.9.2023 105

Memorandum

To: Carl Krebs, Fernando Hausch-Fen – Davis Brody Bond Architects

From: Jamie Rodger, P.E., Saul Shapiro, P.E.

Info: File

Date: 12 November 2021

Re: Preliminary Geotechnical Engineering Study

Columbia University Site 1 at Morningside Campus

410 West 115th Street, New York, NY

Langan Project No.: 170678401

This memorandum presents the results of our preliminary geotechnical investigation and provides preliminary geotechnical recommendations for the design and construction of the proposed Columbia University Site 1 development at the Morningside campus This report was prepared in general accordance with executed contract, dated 8 October 2021

Our understanding of the project requirements is based on our discussions with DBB and review of the concept architectural drawings dated 4 November 2021 and historic data provided, and our general experience in the area. The recommendations presented herein are in accordance with the 2014 New York City Building Code (NYCBC).

All elevations presented herein reference the North American Vertical Datum of 19881 (NAVD88). A topographic survey was not available at the time of this study; however, the existing ground surface was estimated using publically available LiDAR GIS digital mapping2 All elevations should be considered approximate and the elevations should be confirmed when a topographic survey is completed for the property

SITE DESCRIPTION

The “site” located at 410 West 115th Street in the Morningside section of Manhattan, New York. The property is comprised of four lots identified as Block 1867, Lots 29, 30, 31 , and 33 with a total footprint of about 16,685 square feet The site is bound to the north by West 115th Street, to the south by a 6-story residential building, a church, and a 3-story rectory building, to the east by a 6-story residential building, and to the west by a an 8-story building serving the Mount Sinai Morningside hospital campus. A site location plan is presented in Figure 1.

1 NAVD 88 is 1.1 feet above the USGS (NGVD 1929) mean sea level at Sandy Hook, NJ [NAVD = NGVD – 1.104] Elevations estimated from NYC 2017 LiDAR TopoBathymetric Bare Earth DEM (mosaic)

2 Elevations estimated from NYC 2017 LiDAR TopoBathymetric Bare Earth DEM (mosaic)

Street,
Floor
York,
Langan Engineering, Environmental, Surveying, Landscape Architecture and Geology, D.P.C. 21 Penn Plaza, 360 West 31st
8th
New
NY 10001 T: 212.479.5400 F: 212.479.5444
GEOTECHNICAL REPORT 106

MEMO

Preliminary Geotechnical Engineering Study

Columbia University Site 1 at Morningside Campus

410 West 115th Street, New York, NY

Langan Project No.: 170678401

12 November 2021- Page 2 of 10

The site is in the Morningside section of Manhattan and is used as an on-grade parking lot Historic aerial imagery shows the site was previously occupied by several buildings. The former building at the east side of the site (Lot 29) was demolished sometime between 1987 and 1995.

Three former buildings at the west side of the site (Lots 30, 31, and 33) were demolished around 2009. The historic demolition drawings provided show the foundation walls, footings, and basement floor slab to be removed. However, we do not know for certain if all of the foundation elements were removed. The former cellars of the three buildings were reported to be backfilled in October 2010 using compacted lifts of processed demolition debris and imported fill.

Surface grades within the parking lot are relatively flat and are estimated to vary from about el 128.5 ft to el 130 ft.

The southeast side of the site is bounded by the property of The Church of Notre Dame. The buildings on this property are identified as individual landmarks with the New York City Landmarks Preservation Commission (LPC). There appears to be a masonry retaining wall between the site and the church property and the difference in surface elevations between both properties is not known at this time The depth and extent of any below grade levels of the buildings bordering the site are also not known.

PROPOSED DEVELOPMENT

The proposed development is depicted on five different concept zoning scenarios prepared by Davis Brody Bond Architects dated 4 November 2021. Each concept considers various multi-story buildings ranging between 11-stories to 29-stories high. All concepts consider constructing a single cellar level to about 13-feet deep.

Some concepts extend beyond the limit of the site explored as part of this study. Additional investigation will be necessary if these other areas are considered for development. Preliminary structural foundation loads were not available at the time of this preliminary study

REVIEW OF PUBLISHED INFORMATION

Local Geology

Geology in the site vicinity generally consists of gneiss and schist bedrock overlain by fill and glacial. According to Baskerville3, bedrock stratigraphy in the area consists of rock of the Lower Cambrian to Middle Ordovician Age (Hartland Formation). Below are generalized descriptions of rocks mapped in the vicinity of the site:

 Hartland Formation – Interbedded units of (1) gray, fine-grained quartz-feldspar granulite containing minor biotite and garnet; (2) weathered fine- to coarse-grained, gray to tan quartz-feldspar-muscovite-biotite-garnet schist (mica schist); and (3) dark greenish-black quartz-biotite-hornblende amphibolite. Intrusions of granite and pegmatite are common

COLUMBIA UNIVERSITY SITE 1 PLANNING + ZONING STUDY 1.9.2023 107
3 I-MAP 2306, Sheets 1&2 “Bedrock and Engineering Geology Maps of New York County, and parts of Kings and Queens Counties, New York, and parts of Bergen and Hudson Counties, New Jersey” C.A. Baskerville, USGS 1994.

MEMO

Preliminary Geotechnical Engineering Study

Columbia University Site 1 at Morningside Campus

410 West 115th Street, New York, NY

Langan Project No.: 170678401

12 November 2021- Page 3 of 10

(Baskerville 1994). Metamorphism has resulted in foliation – a distinct planar alignment of mineral grains – within rocks of the Hartland Formation. This grain alignment is commonly referred to as schistosity in the more platy schistose rock or compositional banding in gneissic rocks. Foliation is typically oriented either northwest or southeast and dips steeply within Manhattan as discussed by Baskerville, but may be altered locally as a result of folding.

An excerpt of the Baskerville bedrock geology map showing conditions in the site vicinity is presented in Figure 2.

PRELIMINARY SUBSURFA CE INVESTIGATION

Our preliminary geotechnical investigation included drilling three test borings identified as LB-1, LB-2(OW), and LB-3. Approximate locations of the borings are shown in Figure 3

Please note that additional investigation and analysis are required to provide final design information and to satisfy the NYCBC requirements for the minimum number of borings.

The borings were drilled by Craig Geotechnical Drilling, Co., Inc. between 25 October and 27 October 2021 using a truck-mounted drill rig under the full-time special inspection of Langan. The borings were advanced to depths of about 18 to 20 feet below the existing ground surface.

The borings were advanced through fill and soil using rotary drilling techniques with tri-cone roller bits and drilling fluid consisting of a mixture of polymer emulsion and water. Temporary flus h-joint steel casing was used to stabilize the boreholes and prevent fluid loss during drilling. The Standard Penetration Test (SPT)4 was performed in general accordance with ASTM D1586. Soils were sampled using a standard 2-inch-outer-diameter split-spoon sampler. SPT N-values and visual soil classifications were recorded by Langan’s inspecting engineer. All recovered soil samples were visually classified in the field in accordance with ASTM D2487 and the NYCBC.

Bedrock was cored using an NX-sized double-walled core barrel in general accordance with ASTM D2113. Recovery (REC)5 and rock quality designation (RQD)6 were determined for each core run. About 10 feet of bedrock was cored in all three boreholes

A 2-inch-diameter PVC groundwater observation well was installed in LB-2(OW) following completion of drilling. The well screen straddled the interface between decomposed rock and competent rock, and the well was flushed and pumped to establish the stabilized groundwater level.

4 The Standard Penetration Test is a measure of soil density and consistency. The testing involves driving a 2 -inch OD split-spoon sampler a distance of 2-ft, using a 140-lb hammer free falling from a height of 30-inches 5 The percent recovery is the ratio of the length of rock recovered over the total rock core length, expressed as a percentage.
GEOTECHNICAL REPORT (cont’d) 108
6 The RQD is defined as the ratio of the summation of each rock piece greater than 4 inches for NX-cores over the total core length, expressed as a percentage.

MEMO

Preliminary Geotechnical Engineering Study

Columbia University Site 1 at Morningside Campus

410 West 115th Street, New York, NY

Langan Project No.: 170678401

12 November 2021- Page 4 of 10

Soil and rock classifications, SPT N-values, REC, RQD, and other field observations were recorded on the boring logs, and well construction log, included in Appendix A.

SUBSURFACE CONDITION S

The general subsurface stratigraphy observed within the borings consists of uncontrolled fil l underlain by a layer of soft (decomposed) rock, and by competent bedrock. Detailed descriptions of each subsurface stratum are given below in order of increasing depth.

Stratum 1 – Uncontrolled and Controlled Fill [Class 7] 7

Uncontrolled and controlled fill was observed in all borings. The controlled fill placement is described in the historic demolition documents. The fill generally consists of medium to fine sand with variable concentrations of silt, gravel, and construction debris (e.g., brick, concrete, wood, etc.). The fill layer is estimated to extend to depths of about 6 feet to 8 feet below existing ground surface. SPT N-values typically varied from 6 to practical refusal (i.e., more than 50 blows over six inches of penetration) and were typically less than 20 bpf (blow per foot); the higher recorded SPT N-values are likely attributed to the presence of decomposed rock and construction debris, and are generally not considered a representative indicator of in situ density. The fill layer is generally considered to be in a medium dense to dense condition.

The fill classifies as Class 7 “Uncontrolled and Controlled Fill” in accordance with the NYCBC.

Stratum 2 – Granular Soil [Class 3 a ]

Dense coarse sand with decomposed rock fragments was observed at LB-3 below Stratum 1. The granular soil of Stratum 2 generally consisted of brown to gray medium to fine sand with variable concentrations of silt, gravel, and decomposed rock

The top of the sand layer was encountered at about 6 feet below existing grade at LB-3, corresponding to about el 122 ft. SPT N-values varied from 44 to 66.

The soils of Stratum 2 is generally considered as dense to very dense and generally classifies as SP-SM (poorly graded sand - silty sand) or SM (silty sands and sand-silt mixtures) in accordance with USCS, and as Class 3a “Dense Granular Soils,” in accordance with the NYCBC.

Stratum 3 – Rock

Soft rock (i.e. NYCBC Class 1d) was encountered in LB-1 and LB-3. The soft rock was encountered above the competent rock and measured about 1-foot thick

Competent bedrock was encountered in all borings. The top of competent bedrock (i.e., NYCBC Class 1c or better) varied from about 8 to 10 feet below existing grade. The top of bedrock is defined as the depth where rock coring started

7 Numbers in brackets indicate classification of soil and rock materials in accordance with the 2014 New York City Building Code COLUMBIA UNIVERSITY SITE 1 PLANNING + ZONING STUDY 1.9.2023 109

MEMO

Preliminary Geotechnical Engineering Study

Columbia University Site 1 at Morningside Campus

410 West 115th Street, New York, NY

Langan Project No.: 170678401

12 November 2021- Page 5 of 10

The bedrock typically consists of mica schist comprised of muscovite, tourmaline, garnet, and sillimanite Weathering of the bedrock varied from slightly weathered to fresh and fracture spacing varied from very close to wide. The rock is generally of a competent nature with RQD values between 55 to 98 percent (NYCBC Class 1a and Class 1b).

The bedrock classifies as Class 1a “hard sound rock” and Class 1b “medium hard rock” in accordance with the NYCBC. Where present, the highly weathered/highly fractured rock classifies as Class 1d “soft rock” in accordance with the NYCBC.

SEISMIC ASSESSMENT

Seismic design parameters were determined in accordance with the general procedures outlined in Section 1613.5 of the NYCBC. Foundations will consist of individual spread footings or strip footing that bear directly on bedrock or within 10 feet of rock. Therefore, we recommend that the site be assigned to Site Class B – “Rock”. The design spectral acceleration at short periods (SDS) is equal to 0.187g and the design spectral acceleration at 1-second (SD1) is equal to 0.049g. The resulting seismic design category ( SDC) is B. We assume that building will be assigned to Structural Occupancy/Risk Category III. This must be confirmed by the architect and structural engineer. Seismic design parameters are summarized are presented in Table 1

Table 1 – Preliminary Seismic Design Parameters

Liquefaction Evaluation

Liquefaction need not be considered for the design given that all soils are to be removed from the site and that the structure will be entirely supported on bedrock.

Description Parameter Recommended Value Building Code Reference Mapped Spectral Acceleration for short periods: Ss 0.281 g Section 1613.5 Mapped Spectral Acceleration for 1-sec period: S1 0.073 g Site Class B Table 1613.5.2 Site Coefficient: Fa 1.000 Table 1613.5.3 Site Coefficient: Fv 1.000 5 percent damped design spectral response acceleration at short periods: SDS 0.187 g Section 1613.5.4 5 percent damped design spectral response acceleration at 1-sec period: SD1 0.049 g Structural Occupancy/Risk Category - III Table 1604.5 Seismic Design Category - B Table 1613.5.6 (1) Table 1613.5.6 (2) Site Adjusted Peak Ground Acceleration PGAM 0.17 Table 1813.2.1
GEOTECHNICAL REPORT (cont’d) 110

MEMO

FEMA FLOOD ZONE

Preliminary Geotechnical Engineering Study

Columbia University Site 1 at Morningside Campus

410 West 115th Street, New York, NY

Langan Project No.: 170678401

12 November 2021- Page 6 of 10

The Federal Emergency Management Agency (FEMA) Primary Flood Insurance Rate Map (PFIRM), plate 3604970087G, and the effective Flood Insurance Rate Map (FIRM), plate 3604970087F bot show the site falls within unshaded portion of Zone X – Areas determined to be outside the 0.2% annual chance floodplain. Floodproofing is not required by the NYCBC or ASCE 24.

PRELIMINARY DESIGN AND CONSTRUCTION CONSIDERATIONS

The following section summarizes our preliminary design and construction considerations associated with foundations and support of excavation for the proposed building:

 The excavation to accommodate construction of a single cellar is anticipated to extend to depths of up to about 17 feet below existing grade; the corresponding subgrade elevation is about el 112 ft

 The site seismic design category (SDC) is B. Liquefaction need not be considered in the design of the building.

 Competent bedrock was encountered at depths varying from about 8 to 10 feet below grade. The majority of the rock is NYCBC Class 1a hard-sound rock and Class 1b mediumhard rock and can require significant effort to excavate.

 Groundwater was observed to be perched atop rock at a depth of about 8 feet below grade. Significant dewatering during construction is not anticipated, but some dewatering will be required to drain the site initially and to address surface water accumulation following precipitation events

 The design of foundation walls and cellar slabs must consider hydrostatic pressures, and foundation waterproofing must be installed to protect below grade space

 The building on the southeast is a designated landmarked building and the provisions of TPPN10/88 must be followed. Construction adjacent to the landmark may also be subject to the review and approval of the LPC

PRELIMINARY DESIGN RECOMMENDATIO NS

The following sections present our preliminary recommendations for geotechnical design.

Shallow Foundations

The subsurface conditions are considered amenable for supporting the proposed building using conventional shallow foundations comprised of continuous and isolated footings bearing atop competent bedrock Foundations should be proportioned assuming a gross allowable bearing pressure of 40 tons per square foot (tsf). The new foundation elements must bear at or below

COLUMBIA UNIVERSITY SITE 1 PLANNING + ZONING STUDY 1.9.2023 111

MEMO

Preliminary Geotechnical Engineering Study

Columbia University Site 1 at Morningside Campus

410 West 115th Street, New York, NY

Langan Project No.: 170678401

12 November 2021- Page 7 of 10

the footings of the adjacent buildings. Isolated footings should have a minimum plan dimension of 3 feet, and continuous strip footings should have a minimum width of 1.5 feet.

Settlement

Settlement of the shallow foundations will be the result of elastic compression of the rock mass and is expected to be negligible. Estimated settlements are dependent on the footing size and structural loads, and should be reevaluated once these parameters are finalized.

Lateral Resistance

Lateral loads can be resisted by friction on the bottom of footings or mat. We recommend an ultimate friction coefficient of 0.70 for mass concrete poured on clean sound rock and a minimum factor of safety of 1.5 when evaluating friction res istance. If additional resistance is needed, lateral loads can also be resisted by using shear pins doweled into rock, and/or by embedding footings to develop passive resistance from the surrounding rock. The allowable passive resistance provided by the rock will be dictated by the depth of embedment and the presence of discontinuities (fractures and foliation) at a particular location. Alternatively, floor slabs can be used as diaphragms to transfer loads to the exterior walls.

Hydrostatic Loads

The groundwater level is judged to be perched atop of the soft rock and sound bedrock at about 8 feet below existing grade. We recommend that the design groundwater level be assumed at a height of two feet above the stabilized groundwater table, or about el 123 ft to account for a utility breaks and prolonged precipitation that increase the water table. The proposed lowest level slab is expected to be located below the design groundwater level.

We recommend that all slabs and walls be designed to resist the full hyd rostatic pressure resulting from a design groundwater level of el 123 ft. While foundation drains and under-slab drainage systems are considered technically feasible, recent amendments to the Rules of the City of New York (RCNY) governing the use of public sewers (Title 15 RCNY - Chapter 19) explicitly preclude permanent groundwater discharge to a NYC sewer. While historically implemented throughout NYC, use of such drainage systems could place the property owner at risk to penalties, as outlined in the Administrative Code of the City of New York (24-524).

Pressure Slab

The lowest floor slab should be designed as a pressure slab to resist the hydrostatic pressure resulting from the design groundwater at el 123 ft. The slab must be designed integral with the walls and the columns. Intermediate vertical anchors as discussed above may be added between the columns to optimize floor slab thickness. The pressure slabs should be keyed into the foundation walls and cast with integral water -stops to prevent possible seepage at cold joints. The pressure slab should also be waterproofed as per the recommendations presented herein.

GEOTECHNICAL REPORT (cont’d) 112

Preliminary Geotechnical Engineering Study

MEMO

Uplift Loads

Post- Tensioned Anchors

Columbia University Site 1 at Morningside Campus

410 West 115th Street, New York, NY

Langan Project No.: 170678401

12 November 2021- Page 8 of 10

Uplift loads may be generated as a result of hydrostatic loads or from overturning forces caused by wind or seismic conditions Where present, uplift loads can be resisted using post-tensioned tie-down anchors. Post-tensioned tie-down anchors must consist of Class I (double corrosionprotected) high-strength threaded bars meeting ASTM A722.

The layout of the tie-down anchors must to be considered to provide the necessary uplift capacity and global stability (group effects), which is a function of the free-stressing length of the individual tie-down, and spacing of tie-downs.

Waterproofing

We recommend waterproofing foundation walls and pits with a fully bonded membrane type waterproofing system such as those manufactured by GCP Applied Technologies (formerly Grace Construction Products), Carlisle Coatings and Waterproofing, or Sika. We also recommend using a waterproofing membrane beneath below grade floors. The selection of waterproofing membranes should be coordinated with any environmental design and regulatory requirements. We recommend against using bentonite waterproofing or post -applied negative side crystalline waterproofing as a primary means of groundwater control.

We recommend installing horizontally applied waterproofing membranes on a minimum 2 inch thick lean concrete mud slab placed over an approved subgrade to provide a smooth, uniform application surface. Vertically applied waterproofing membranes should extend up to grade. Substrate preparation should be as per the manufacturer’s recommendation.

Quality control is critical to a successful waterproofing project. The waterproofing installation should be inspected daily, especially during placement of reinforcement for the floor slabs and perimeter walls. Any holes or tears should be repaired by following the manufacturer’s recommendations. Utility penetrations should be carefully sealed. All seams, including separations between wall and slab membranes, should be checked for tightness. We recommend that the waterproofing manufacturer inspect the waterproofing operations during construction and approve all work before concrete is poured. We also suggest discussing waterproofing details with the selected manufacturer.

The above waterproofing system described above will only protect the foundations of the new development and will not provide any waterproofing protection to adjacent foundations. Furthermore, it is unknown whether the adjacent foundations were waterproofed and whether any such system(s) are still functional. Adjoining foundations which are exposed during excavation for the development must be waterproofed as required by Section 3309.3 of the NYCBC.

COLUMBIA UNIVERSITY SITE 1 PLANNING + ZONING STUDY 1.9.2023 113

MEMO

Below Grade Walls and Pits

Preliminary Geotechnical Engineering Study

Columbia University Site 1 at Morningside Campus

410 West 115th Street, New York, NY

Langan Project No.: 170678401

12 November 2021- Page 9 of 10

Permanent below-grade walls will be subjected to lateral pressures from soil, rock, surcharge, and groundwater (hydrostatic) loads. Our preliminary lateral-pressure diagram is presented in Figure 4. We recommend that the below-grade wall next to the sidewalk be designed to resist a minimum vertical surcharge load of 300 psf. However, higher surcharge loads could be applied during construction from crane pads and outriggers; these loads (if applicable) will be provided by the crane designers. Earth pressures below the top of rock must be evaluated when the final foundation configuration is established and rock mass discontinuity data is available to appropriately estimate such loading For the purposes of preliminary design, we recommend a uniform lateral pressure of 250 psf be assumed within rock.

PRELIMINARY CONSTRUCTION RECOMMENDATIONS

Construction of the foundation of the new building will require general site preparation, excavation of fill and rock, and subgrade preparation. Other associated activates may include underpinning and monitoring of adjacent buildings in accordance with Technical Policy and Procedure Notice (TPPN) #10/88 – Procedures for the Avoidance of Damage to Historic Structures Resulting from Adjacent Construction.

An important consideration related to building design is consideration of the volume and quality of rock excavation required to establish the proposed cellar depths We will provide detailed construction recommendations when the design is developed and we prepare our final geotechnical engineering study.

DESIGN DEVELOPMENT AND CONSTRUCTION DOCUMENTS

We recommend that Langan remain engaged to assist the design team in developing the construction documents pertaining to foundations and earthwork for the project. We expect that our involvement during design may include: 1) completing additional geotechnical investigation, including borehole geophysical logging and excavation of test pits, 2) preparation of technical specifications; 3) review of design documents prepared by others; and 4) development of earthwork schemes (including support of excavation and underpinning systems).

GEOTECHNICAL REPORT (cont’d) 114

MEMO

LIMITATIONS

Preliminary Geotechnical Engineering Study

Columbia University Site 1 at Morningside Campus

410 West 115th Street, New York, NY

Langan Project No.: 170678401

12 November 2021- Page 10 of 10

The conclusions and recommendations provided in this preliminary report are based on subsurface conditions inferred from a limited number of borings, performed within the development parcel, and information provided by others. Additional exploration and analysis is required for design.

This report has been prepared to assist the owner, architect, and structural engineer in the preliminary design process and is only applicable to the envisioned project discussed herein. Any proposed changes in structures or their locations should be brought to our attention so that we can determine whether such changes affect our recommendations. Langan cannot assume responsibility for use of this preliminary report for any areas beyond the limits of this study or for any projects not specifically discussed herein. This report must not be used for the design of temporary works including scaffolding, construction hoists, and crane pads.

Information on subsurface strata and groundwater levels shown on the logs represents conditions encountered only at the locations indicated and at the time of investigation. If different conditions are encountered during construction, they should immediately be brought to Langan’s attention for evaluation because they may affect our recommendations.

Environmental issues (such as potentially contaminated soil and gr oundwater) are outside the scope of this study.

Sincerely,

Langan Engineering, Environmental, Surveying, Landscape Architecture, and Geology, D.P.C.

INITIAL: SS/jr

Enclosure(s):

Figure 1 – USGS Site Location Map

Figure 2 – Bedrock Geology Map

Figure 3 – Preliminary Subsurface Investigation Location Plan

Figure 4 – Preliminary Lateral Pressure Diagram

Appendix A – Preliminary Geotechnical Boring Logs

COLUMBIA UNIVERSITY SITE 1 PLANNING + ZONING STUDY 1.9.2023 115

FIGURES

GEOTECHNICAL REPORT (cont’d) 116
Filename: \\langan.com\data\NYC\data4\170678401\Project Data\CAD\01\SheetFiles\Geotechnical\170678401-BL101-0101.dwg Date: 11/11/2021 Time: 16:14 User: rzhao Style Table: Langan.stb Layout: Site Location WARNING: IT IS A VIOLATION OF THE NYS EDUCATION LAW ARTICLE 145 FOR ANY PERSON, UNLESS HE IS ACTING UNDER THE DIRECTION OF A LICENSED PROFESSIONAL ENGINEER, LAND SURVEYOR OR GEOLOGIST, TO ALTER THIS ITEM IN ANY WAY. © 2021 Langan COLUMBIA UNIVERSITY SITE 1 PLANNING + ZONING STUDY 1.9.2023 117

SOURCE:

NOTE:

Filename: \\langan.com\data\NYC\data4\170678401\Project Data\CAD\01\SheetFiles\Geotechnical\170678401-BL101-0101.dwg Date: 11/11/2021 Time: 16:14 User: rzhao Style Table: Langan.stb Layout: GEOLOGIC WARNING: IT IS A VIOLATION OF THE NYS EDUCATION LAW ARTICLE 145 FOR ANY PERSON, UNLESS HE IS ACTING UNDER THE DIRECTION OF A LICENSED PROFESSIONAL ENGINEER, LAND SURVEYOR OR GEOLOGIST, TO ALTER THIS ITEM IN ANY WAY. © 2021 Langan
GEOTECHNICAL REPORT (cont’d) 118
Filename: \\langan.com\data\NYC\data4\170678401\Project Data\CAD\01\SheetFiles\Geotechnical\170678401-BL101-0101.dwg Date: 11/11/2021 Time: 16:14 User: rzhao Style Table: Langan.stb Layout: BLP WARNING: IT IS A VIOLATION OF THE NYS EDUCATION LAW ARTICLE 145 FOR ANY PERSON, UNLESS HE IS ACTING UNDER THE DIRECTION OF A LICENSED PROFESSIONAL ENGINEER, LAND SURVEYOR OR GEOLOGIST, TO ALTER THIS ITEM IN ANY WAY. 21 Penn Plaza, 360 West 31st Street, 8th Floor New York, NY 10001 T: 212.479.5400 F: 212.479.5444 www.langan.com © 2021 Langan Langan Engineering, Environmental, Surveying, Landscape Architecture and Geology, D.P.C. COLUMBIA UNIVERSITY SITE 1 PLANNING + ZONING STUDY 1.9.2023 119

SURCHARGE q (psf)

0.5q psf

WATER

ROCK

GROUND SURFACE EL. 129±

SOIL

60 psf 1 ft

DESIGN FLOOD EL.125.0±

63 psf 1 ft

29 psf 1 ft

MEASURED GWT EL.121.0±

LEGEND:

= HEIGHT OF BELOW GRADE WALL (FT)

H

= DEPTH TO DESIGN GROUND WATER TABLE (FT), (EL.123.0±)

H W

250 psf

H

ROCK VARIES (TBD)

WH GWTH RH

BELOW-GRADE WALL

NOTES:

= DEPTH TO MEASURED GROUND WATER TABLE (FT), (EL.121.0±)

H GWT

ROCK PRESSURES PROVIDED HEREIN ARE PRELIMINARY AND MUST BE REEVALUATED BASED ON APPLIED SURCHARGE LOAD AND BEDROCK DISCONTINUITY DATA.

1.

= HEIGHT OF ROCK (FT) MIN. SIDEWALK SURCHARGE = 300 PSF

H R

WARNING: IT IS A VIOLATION OF THE NYS EDUCATION LAW ARTICLE 145 FOR ANY PERSON, UNLESS HE IS ACTING UNDER THE DIRECTION OF A LICENSED PROFESSIONAL ENGINEER, LAND SURVEYOR OR GEOLOGIST, TO ALTER THIS ITEM IN ANY WAY.

Filename: C:\Users\rzhao\Desktop\Projects\170678401 Columbia University Feasibility Study\170186103-BL101-0108.dwg Date: 11/11/2021 Time: 16:07 User: rzhao Style Table: Langan.stb Layout: ANSIA-BL (1)
© 2021 Langan GEOTECHNICAL REPORT (cont’d) 120

APPENDIX A

BORING LOGS AND WELL LOGS

COLUMBIA UNIVERSITY SITE 1 PLANNING + ZONING STUDY 1.9.2023 121

Asphalt

Dark brown coarse-fine SAND, some brick, some m-f gravel, trace silt, concrete fragments (moist)[FILL](Class 7)

Dark gray coarse-fine SAND, some brick, some concrete, some m-f gravel, trace silt (moist)[FILL](Class 7)

Reddish brown coarse-fine SAND, some brick, some concrete, some silt, medium gravel fragments (wet)[FILL](Class 7)

Reddish brown medium-fine SAND, some brick, some silt, some medium gravel, trace concrete (wet)[FILL](Class 7)

Dark gray medium-fine SAND, trace brick, trace silt (wet)[DECOMPOSED ROCK](Class 1d)

Gray SCHIST; medium to coarse grained; muscovite-garnet-tourmaline-sillimanite; slightly weathered; very close to close fracture spacing; fractures shallow dipping to near horizontal; disturbed; rock quality fair; [BEDROCK]; (Class 1b)

Started Drilling at 10/27/2021 8:40 AM

Predrill 3in thick asphalt. Take S-1 from 0.5 to 2ft

Take S-2 from 2 to 4ft

Introduce drilling water. Drill to 4ft, smooth drilling with grayish brown return

Take S-3 from 4 to 6ft

Take S-4 from 6 to 8ft

Drill to 8ft, smooth drilling with brown return

Take S-5 from 8 to 10ft

Obstruction encountered at 9ft. Drive casing from 0 to 9ft. Drill to 10ft, light rig chattering with grayish brown return. Start coring at 10ft C-1 at 10ft

C-2 at 15ft

Gray SCHIST; medium to coarse grained; muscovite-garnet-tourmaline-sillimanite; fresh; moderate fracture spacing; fractures shallow dipping to near horizontal; intact; rock quality excellent; [BEDROCK]; (Class 1a)

End of Boring 20 ft

Bottom of boring at 10/27/2021 11:20 AM

Borehole backfilled with soil cuttings and patched with cold asphalt

40 24 15 26 34 39 19 15 85/5 11 32 18 22 15 S-1 S-2 S-3 S-4 S-5 C-1 C-2 SS SS SS SS SS NX Core NX Core 14 18 13 18 8 REC=55''/60'' =92% REC=60''/60'' =100% 36 15 20
RQD=33''/60'' =55% RQD=59''/60'' =98%
1:40 1:50 1:25 1:20 1:25 1:10 1:15 1:20 1:15 1:15 +128.8 +120.5 +119.0 +109.0 Recov. (in) 0 Number Type Penetr. resist BL/6in Casing Depth (ft) Alex Tricanico 10 ft 5 3-7/8in Tricone Roller Bit Date Started Weight (lbs) 10/27/21Size and Type of Bit Drop (in) Sampler 20 ft Field Engineer 140 Automatic Drilling Foreman Water Level (ft.) 9 4 Drilling Company 2 Completion Sampler Hammer Date Finished Undisturbed Number of Samples Drop (in) Casing Diameter (in) CME Truck-Mounted Drill Rig 24 HR. 2-inch-diameter split spoon; 30 140 Drilling Equipment Rock Depth Casing Hammer Automatic Core 30 Weight (lbs) Craig Geotechnical Drilling Rong Zhao Completion Depth First Disturbed 10/27/2021 N-Value (Blows/ft) 10203040 20 129 ± (NAVD88) LB-1 408 W 115th St of 1 Project No. Sheet 1 Elevation and Datum Location MATERIAL SYMBOL Project Feasibility Study-Columbia University Sample Description Depth Scale 1 2 3 4 5 6 7 8 9 10 11 12 13 14 15 16 17 18 19 170678401 Log of Boring \\LANGAN.COM\DATA\NYC\DATA4\170678401\PROJECT DATA\_DISCIPLINE\GEOTECHNICAL\GINTLOGS\170678401_ENTERPRISE.GPJ ... 11/11/2021 2:26:56 PM ... Report: LogLANGAN (Drilling Fluid, Depth of Casing, Fluid Loss, Drilling Resistance, etc.) Remarks Coring (min) +129.0 Elev. (ft) 7474 6363 34 41 85/5 Sample Data GEOTECHNICAL REPORT (cont’d) 122

Asphalt

Grayish brown coarse-fine SAND, some Silt, trace Brick, trace m-f Gravel, trace Wood (dry) [FILL] (Class 7)

Brown medium-fine SAND, some Silt, trace Brick, medium Gravel fragments (wet) [FILL] (Class 7)

Orangish brown coarse-fine SAND, some Brick, some Silt, some m-f Gravel (wet) [FILL] (Class 7)

Brown coarse-fine SAND, trace Brick, trace Silt, fine Gravel fragments (wet) [FILL] (Class 7)

Gray SCHIST; fine to medium grained muscovite-garnet-tourmaline-sillimanite; fresh; close to moderate fracture spacing; fractures moderately dipping to shallow dipping; rock quality good; [BEDROCK]; (Class 1b)

Started Drilling at 10/25/2021 1:20 PM

Predrill 3in thick asphalt

Take S-1 from 0 to 2 ft

Take S-2 from 2 to 4 ft

Introduce drilling water. Drill to 4ft, smooth drilling with brown return

Take S-3 from 4 to 6 ft

Take S-4 from 6 to 8 ft

Drive casing to 8ft. Drill to 8ft, smooth drilling with grayish brown return C-1 at 8ft

Gray SCHIST; fine to medium grained muscovite-garnet-tourmaline-sillimanite; fresh; wide fracture spacing; fractures moderately dipping; intact; rock quality excellent; [BEDROCK]; (Class 1a)

End of Boring

Bottom of boring at 10/25/2021 3:40 PM

Install a monitoring well. Refer to well construction log for details. Surface was patched with mixed cement

7 3 6 23 3 5 60/4 22 4 4 8 S-1 S-2 S-3 S-4 C-1 C-2 SS SS SS SS NX Core NX Core 11 10 11 7 REC=57''/60'' =95% REC=60''/60'' =100% 4 5
RQD=48''/60'' =80% RQD=55''/60'' =92%
C-2 at 13ft
1:15 1:10 1:20 1:15 1:20 1:10 1:15 1:00 1:10 1:20 +128.8 +121.0 +111.0 Recov. (in) 0 Number Type Penetr. resist BL/6in Casing Depth (ft) Alex Tricanico 8 ft 4 3-7/8in Tricone Roller Bit Date Started Weight (lbs) 10/25/21Size and Type of Bit Drop (in) Sampler 18 ft Field Engineer 140 Automatic Drilling Foreman Water Level (ft.) 7 4 Drilling Company 2 Completion Sampler Hammer Date Finished Undisturbed Number of Samples Drop (in) Casing Diameter (in) CME Truck-Mounted Drill Rig 24 HR. 2-inch-diameter split spoon; 30 140 Drilling Equipment Rock Depth Casing Hammer Automatic Core 30 Weight (lbs) Craig Geotechnical Drilling Rong Zhao Completion Depth First Disturbed 10/25/2021 N-Value (Blows/ft) 10203040 20 129 ± (NAVD88) LB-2(OW) 408 W 115th St of 1 Project No. Sheet 1 Elevation and Datum Location MATERIAL SYMBOL Project Feasibility Study-Columbia University Sample Description Depth Scale 1 2 3 4 5 6 7 8 9 10 11 12 13 14 15 16 17 18 19 170678401 Log of Boring \\LANGAN.COM\DATA\NYC\DATA4\170678401\PROJECT DATA\_DISCIPLINE\GEOTECHNICAL\GINTLOGS\170678401_ENTERPRISE.GPJ ... 11/11/2021 2:26:58 PM ... Report: LogLANGAN (Drilling Fluid, Depth of Casing, Fluid Loss, Drilling Resistance, etc.) Remarks Coring (min) +129.0 Elev. (ft) 30 6 11 60/4 Sample Data COLUMBIA UNIVERSITY SITE 1 PLANNING + ZONING STUDY 1.9.2023 123

Asphalt

Grayish brown coarse-fine SAND, trace Brick, trace Silt, trace fine Gravel (dry) [FILL] (Class 7)

Grayish brown coarse-fine SAND, some Concrete, some m-f Gravel, trace Brick, trace Silt (wet) [FILL] (Class 7)

Grayish brown coarse-fine SAND, some Silt, trace Brick, trace fine Gravel (wet) [FILL] (Class 7)

Brown medium-fine SAND, some Silt, some Decomposed Rock, trace fine Gravel (wet) [SM] (Class 3a)

Brown to gray medium-fine SAND, some Decomposed Rock, trace Silt (wet) [SP-SM] (Class 3a)

Gray micaceous SCHIST; fine to medium grained muscovite-tourmaline-sillimanite; fresh; wide fracture spacing; fractures near horizontal; intact; rock quality excellent; [BEDROCK]; (Class 1a)

4 S-3SS80/5

Started Drilling at 10/25/2021 10:35 AM

Predrill 3in thick asphalt

Take S-1 from 0 to 2ft

Obstruction encountered at 1.25ft. Introduced drilling water, drill to 2ft, smooth drilling with brown return

Take S-2 from 2 to 4ft

Obstruction encountered at 3.5ft. Drill to 4ft, smooth drilling with brown return

Take S-3 from 4 to 6ft

Obstruction encountered at 4.5ft. Drill to 6ft, smooth drilling with brown return

Take S-4 from 6 to 8ft

Take S-5 from 8 to 10ft

Drive casing to 9ft. Switch to 4-7/8" roller bit and drill to 10ft, smooth to moderate rig chattering with brown return

Take S-6 from 10 to 12ft, obstruction encounrtered at 10ft. Switch to core barrel for rock coring C-1 at 10ft

C-2 at 15ft

Gray micaceous SCHIST; fine to medium grained muscovite-tourmaline-sillimanite; fresh to slightly weathered; moderate to wide fracture spacing; fractures shallow dipping to near horizontal; intact; rock quality excellent; [BEDROCK]; (Class 1a) End of Boring 20 ft

Bottom of boring at 10/25/2021 1:10 PM

Borehole backfilled with soil cuttings and bentonite to grade, top patched with cold asphalt

33 35 51 11 31 100/3 75/5 42 38 9 30 S-1 S-2 S-4 S-5 C-1 C-2 SS SS SS SS NX CORE NX Core 10 12 9 13 REC=56''/60'' =93% REC=60''/60'' =100% 56 42
RQD=56''/60'' =93% RQD=55''/60'' =92%
1:45 2:00 2:00 2:00 1:55 1:50 1:50 1:45 1:55 2:05 +127.8 +121.0 +118.0 +108.0 Recov. (in) 0 Number Type Penetr. resist BL/6in Casing Depth (ft) Alex Tricanico 10 ft 5 3-7/8in Tricone Roller Bit Date Started Weight (lbs)Size and Type of Bit Drop (in) Sampler 20 ft Field Engineer 140 Automatic Drilling Foreman Water Level (ft.) 9 4 Drilling Company 2 Completion Sampler Hammer Date Finished Undisturbed Number of Samples Drop (in) Casing Diameter (in) CME Truck-Mounted Drill Rig 24 HR. 2-inch-diameter split spoon; 30 140 Drilling Equipment Rock Depth Casing Hammer Automatic Core 30 Weight (lbs) Craig Geotechnical Drilling Rong Zhao Completion Depth First Disturbed 10/25/2021 10/25/2021 N-Value (Blows/ft) 10203040 20 128 ± (NAVD88) LB-3 408 W 115th St of 1 Project No. Sheet 1 Elevation and Datum Location MATERIAL SYMBOL Project Feasibility Study-Columbia University Sample Description Depth Scale 1 2 3 4 5 6 7 8 9 10 11 12 13 14 15 16 17 18 19 170678401 Log of Boring \\LANGAN.COM\DATA\NYC\DATA4\170678401\PROJECT DATA\_DISCIPLINE\GEOTECHNICAL\GINTLOGS\170678401_ENTERPRISE.GPJ ... 11/11/2021 3:40:57 PM ... Report: LogLANGAN (Drilling Fluid, Depth of Casing, Fluid Loss, Drilling Resistance, etc.) Remarks Coring (min) +128.0 Elev. (ft) 100/3 75/5 80/5 44 6666 Sample Data GEOTECHNICAL REPORT (cont’d) 124

10/25/2021

Alex Tricanico

Rong Zhao

The boring was advanced to 18 feet below the existing ground surface using mud rotary drilling techniques and NX core barrel. The well was installed to 13 feet below the ground surface and consisted of 10 feet slotted PVC pipe (screen) and 3 feet solid PVC pipe (riser) at top. A flush-mount well cap was installed to seal the well.

The observation well was flushed clean and developed using a pump.

CONSTRUCTION
PROJECT PROJECT NO.
LOCATION ELEVATION AND DATUM Manhattan, NY el. ± (NAVD 88) DRILLING AGENCY DATE STARTED DATE FINISHED Craig Geotechnical Drilling 10/25/2021 DRILLING EQUIPMENT DRILLER
Mounted
SIZE AND TYPE OF BIT LANGAN REP. 3-7/8in Tricone Roller
METHOD OF INSTALLATION METHOD OF WELL DEVELOPMENT TYPE OF RISER DIAMETER TYPE OF BACKFILL MATERIAL PVC 2 inch Soil Cuttings TYPE OF SCREEN DIAMETER TYPE OF SEAL MATERIAL Slotted PVC 2 inch Bentonite BOREHOLE DIAMETER TYPE OF FILTER MATERIAL 4 inch Silica Sand TOP OF CASING ELEVATION DEPTH (ft)TOP OF SEAL ELEVATION DEPTH (ft) Cover 128 1 Seal 0.0 TOP OF FILTER ELEVATION DEPTH (ft) 126 3 TOP OF SCREEN ELEVATION DEPTH (ft) Soil Cuttings 126 3 ELEVATION DEPTH (ft) Bentonite 111 18 Seal SCREEN LENGTH LENGTH (ft) 10 ft 8.0 SLOT SIZE ELEVATION DATE DEPTH TO WATER (ft) 121.3 10/25/2021 7.7 ELEVATION 21 DEPTH TO WATER (ft) 121.3 10/25/2021 7.7 ELEVATION 4/22/2021 ELEVATION DATE DEPTH TO WATER (ft) ELEVATION DATE 18.0 ELEVATION DATE DEPTH TO WATER (ft) N.T.S. 170678401 129
WELL
SUMMARY Well No. LB-2(OW)
Columbia Feasibility Study
Truck
Drill Rig
Bit
SUMMARY SOIL CLASSIFICATION DEPTH (FT)
WELL DETAILS 2" PVC Riser 2" PVC Screen Silica Filter Sand Langan Engineering, Environmental, Surveying, Landscape Architecture and Geology, D.P.C. BOTTOM OF BORING 0.025 inch GROUNDWATER ELEVATIONS BEDROCK FILL COLUMBIA UNIVERSITY SITE 1 PLANNING + ZONING STUDY 1.9.2023 125
126

Building Systems

Appendix 5.3
COLUMBIA UNIVERSITY SITE 1 PLANNING + ZONING STUDY 1.9.2023 127

MORNING SIDE CAMPUS - SITE 1

COLUMBIA UNIVERSITY CONCEPT DESIGN NARRATIVE

JULY 11, 2022

BUILDING SYSTEMS 128
Morning Side Site 1 | Concept Design Phase Narrative | July 11, 2022 | Page 2 of 18 TABLE OF CONTENTS INTRODUCTION 3 CONSIDERATIONS FOR BUILDING MASSING 3 ENCLOSURE MEAUSRES 4 AIR SOURCE HEAT PUMPS 6 GEOTHERMAL – GROUND SOURCE HEAT PUMPS 8 KITCHEN ENERGY RECOVERY 10 GENERAL EXHAUST ENERGY RECOERY 13 PASSIVE DHW RECOVERY FOR SHOWERS 15 DHW HEAT PUMP 16 RAINWATER RECOVERY 17 SOLAR 17 ELECTRIC VEHICLE 18 COLUMBIA UNIVERSITY SITE 1 PLANNING + ZONING STUDY 1.9.2023 129

INTRODUCTION

As part of Columbia’s current sustainability initiatives, building systems for all new construction on campus will not be using fossil fuels. This building will be served by stand- alone systems and will not be connecting to campus systems due to the distance and cost of connection. The following sections detail the proposed systems to serve the building, as well as energy conservation measures to reduce overall energy consumption.

CONSIDERATIONS FOR BUILDING MASSING

Morning Side Site 1 | Concept Design Phase Narrative | July 11, 2022 | Page 3 of 18
BUILDING SYSTEMS (cont’d) 130
Figure 1 Programing options for proposed tower

Using industry averages, and rough estimates of encl osure are as, it is predicted that t he high-performance envelope listed in the table above, will have a UA performance up to 35% better than NYS 2020 Stretch Code. Any value not explicit ly listed is expected to perform at prescriptive code values. The UA analysis below assumes a window-to-wall ratio of 30% for both baseline and proposed. Actual envelope performance will be determined as the design is developed fu rther.

Morning Side Site 1 | Concept Design Phase Narrative | July 11, 2022 | Page 4 of 18 ENCLOSURE MEAUSRES ENCLOSURE PERFOMRANCE NY Stretch Code 2020 (Prescriptive) High Performance Targets Roof U (BTU/hr.ft2.F) 0.030 (R-33) 0.02 (R-50) Wall U (BTU/hr.ft2.F) 0.061 (R-16.4) 0.033 (R-30) Window U (BTU/hr.ft2.F) 0.36 0.21 Window SHGC SHGC 0.36 0.25 Prescriptive WWR % Vertical Enclosure 30-40% <30%
COLUMBIA UNIVERSITY SITE 1 PLANNING + ZONING STUDY 1.9.2023 131
Figure 2 Estimated % UA reduction from baseline using high-performance envelope targets.

WINDOW TO WALL RATIO

THERMAL BRIDGE MITIGATION

Thermal bridge mitigation is an important part of envelope design High risk locations of thermal bridges are (1) Balconies/jewel boxes/overhangs (2) Corners/junctions (3) Windows Thermal bridge mitigation will be a part of 2023 NYS Stretch Code which will be adopted by NYC.

Morning Side Site 1 | Concept Design Phase Narrative | July 11, 2022 | Page 5 of 18
Figure 3 Window to Wall ratio of BR+A Projects
REC WWR BUILDING SYSTEMS (cont’d) 132
Figure 4 Spandrel thermal bridging example

OTHER PASSIVE HOUSE ENCLOSURE METHODS

High performance buildings have a strong focus on reduced infiltration , tightly sealed, continuous air barriers, and well controlled moisture movement. We recommend working with architect to encourage these types of assembly systems to improve overall performance of the building’s enclosure.

AIR SOURCE HEAT PUMPS

At 60-tons of cooling per module, the proposed design requires at least 5 modules. The dark blue section marked on in Figure 6 below represents the sizing of the ASHP. As seen in the cut sheet above, Figure 5, five (5) modules have overall dimensions of 103” x 489.5”. These dimensions do not include setback requirements on roof spaces. In Figure 6, the cyan blue area demarks the overall size of 2 400 -ton cooling towers. The dimension of this equipment is approximately 14’ x 28’, with a weight of 52,000 lbs. There will also be water source heat pump equipment located on the roof. It’s placement and total size is still being developed.

Morning Side Site 1 | Concept Design Phase Narrative | July 11, 2022 | Page 6 of 18
Figure 5 Typical thermal bridging through glazed assemblies. Figure 6 Arctic Air Source Heat Pump Cut Sheet
COLUMBIA UNIVERSITY SITE 1 PLANNING + ZONING STUDY 1.9.2023 133
Morning Side Site 1 | Concept Design Phase Narrative | July 11, 2022 | Page 7 of 18
BUILDING SYSTEMS (cont’d) 134
Figure 7 Roof layout plan of R-8 Double Bar Schemes.
Morning Side Site 1 | Concept Design Phase Narrative | July 11, 2022 | Page 8 of 18
GEOTHERMAL – GROUND SOURCE HEAT PUMPS
500 ft wells 800ft wells 3 tons/ well 4.8 tons/well Total SF Heating Load (MMBtu) # of wells # of wells 220,000 3.3 92 58 190,000 2.85 80 50 20
Figure 8 Rygan Concentric Geothermal Heat Exchanger
FT ON CENTER
COLUMBIA UNIVERSITY SITE 1 PLANNING + ZONING STUDY 1.9.2023 135
At 20 ft on center, the lot can fit approximately 65 wells. This does not include site boundary permitting limits and setback s.

25 FT ON CENTER

At 25 ft on center, the lot can fit approximately 40 wells. This does not include site boundary permitting limits and setbacks.

Morning Side Site 1 | Concept Design Phase Narrative | July 11, 2022 | Page 9 of 18
Figure 9 20 ft on center geothermal layout
BUILDING SYSTEMS (cont’d) 136
Figure 10 25 ft on center geothermal layout

KITCHEN ENERGY RECOVERY

KITCHEN HOOD EXHAUST ENERGY RECOVERY

A significant amount of heat is generated in a commercial kitchen that can be recycled for use elsewhere in the building. Preliminary analysis of the commercial kitchen estimates 5 million BTUs of recovery heat available per day.

A significant portion of this heat can be captured from the kitchen hood exhaust. An exhaust air handling unit will be used to extract this heat from the exhaust air stream. As shown in Figure 10 this air handling unit will consist of an exhaust fan, energy recovery coil, specialized air filtration and air treatment, and a water source heat pump utilized to mechanically transfer this heat into the campus hot water loop.

This method involves coupling the air handling unit to a water source heat pump wher e the energy recovery coil serves as the evaporator and the water -cooled condenser serves the heating hot water system directly. This method allows for high levels of controllability and heat recovery. Additional analysis upon refinement of the commercial kitchen and kitchen design will provide further detail

The air treatment systems will prove be a key component of the kitchen exhaust air handling unit. As shown in Figure 10 it includes a combination of a pre -filter, electrostatic precipitation (basis of design: Trion), photo catalytic oxidation (basis of design: Genesis Air), and UV light treatment. These air treatment systems combined will ensure clean, odor -free, and environmentally friendly air exhausted to the surrounding campus atmosphere. It al so ensures grease and other effluent byproducts are removed from the air stream prior to entering the fan and energy recovery coil region of the air handling unit ; which ensure minimal maintenance requirements and overall longevity of the equipment.

Morning Side Site 1 | Concept Design Phase Narrative | July 11, 2022 | Page 10 of 18
COLUMBIA UNIVERSITY SITE 1 PLANNING + ZONING STUDY 1.9.2023 137

As seen in Figure 11, the electrostatic precipitator captures airborne effluent particles by passing the air through an electrostatic field. The particles receive an ionized charge and move through a collection stage containing same and opposite charged plates. Every other plate is positively charged, and the other set of every other plate is negatively charged. The plate that maintains the same charge as the ionized particles, drive these particles to the oppositely charged plates which serve as the particle collectors. These particle collectors can be washed and replaced back into the system. Additionally, unlike typical air filters where dirty filters increase pressure drop and decrease airflow in the system, as th e collectors become dir ty it only results in an airflow drop of less than 5%.

Morning Side Site 1 | Concept Design Phase Narrative | July 11, 2022 | Page 11 of 18
Figure 11 Commercial Kitchen Exhaust System. Air exits kitchen through exhaust hood. It is sent through a screen filter to filter out large particles before entering the electrostatic precipitator. The ESP is made up of a prefilter, an ionizing section, collection plates and an air filter. The air is then sent through a photocatalytic oxidator as detailed in Figure 12 below. The air is then sent through an AHU with a fan, and an energy recovery coil that is connected to a water source heat pump.
BUILDING SYSTEMS (cont’d) 138

As seen in Figure 9 the photo catalytic oxidator removes particles responsible for poor air quality and odors. It does this by breaking down the molecular bonds of these particles; including VOCs. As shown in the diagram, the photo catalyst titanium dioxide produces hydroxyl radicals which break down the molecular structure of airborne particles. The resulting re-combination of the components result in formation of molecules not harmful or odiferous.

|
|
|
Morning Side Site 1
Concept
Design Phase
Narrative
July 11, 2022
Page
12 of 18 Figure 12 Electrostatic Precipitator Figure 13 Photo Catalytic Oxidator process, showing steps of grease and odor removal from exhaust air.
COLUMBIA UNIVERSITY SITE 1 PLANNING + ZONING STUDY 1.9.2023 139
Figure 14 (a) UV light tubes (b) Exterior of photo catalytic oxidator. Window in center of image shows glow of UV light

COOLERS AND FREEZERS

Coolers and freezers that support kitchen and commissary operations produce consistent, 24/7 heat recovery opportunities. A compressor rack refrigeration skid will be required to maintain the appropriate temperatures within each cooler and freezer. Instead of allowing the heat removed from the coolers and freezers (and its associated compressor motor heat) to be rejected to the atmosphere, a water -cooled condenser will be utilized to transfer this heat into the building hot water loop. The basis of design for this refr igeration skid is Zero Zone, Inc. (see Figure 14) with other competitors such as Hill Phoenix allowed to bid.

One key mechanism to accomplish effective heat transfer to the campus hot water loop is through specification of a refrigerant that optimizes t he cooler and freezer application and at the same time allows for heat to be transferred into the hot water loop. Modern technology has utilized carbon dioxide (CO2) as a refrigerant in applications such as this. CO2 is a natural refrigerant that is envi ronmentally benign, safe, and commonly used in refrigeration applications. CO2 has an ozone depletion potential of zero and a low global warming potential (GWP) of one (1). Upon further design of the commercial kitchen, CO2 and other refrigerants will be analyzed for this application to ensure a cost effective and energy efficient means of transferring this heat

GENERAL EXHAUST ENERGY RECOERY

Air handling units that feature large quantities of ventilation air in a single system will benefit from various forms of exhaust energy recovery. As each building matures in its design and load profile, more specifics on energy savings from heat recovery will be published. Dep ending on the application, energy recovery wheels often present the best cost/benefit analysis. A few options are presented below:

SINGLE ENERGY RECOVERY WHEEL

In this method, a single energy recovery wheel is positioned upstream of cooling and heating coils and tempers the outside air with energy from the building exhaust air. In AHU cooling mode, this results in decrease in both temperature and humidity in the resulting supply air. In AHU heating mode this results in an increase in both temperature a nd humidity. This method results in up to 90% energy recovery from the exhaust air but will be less based on the climate conditions; especially if defrost cycles are required. Thermotech is the basis of design due to its resilient construction, warranty, and 25-year

Morning Side Site 1 | Concept Design Phase Narrative | July 11, 2022 | Page 13 of 18
Figure 15 Edge XT CO2 Condensing Unit Water Cooled
BUILDING SYSTEMS (cont’d) 140

DUAL ENERGY RECOVERY WHEEL

In this method, the same function is performed as the single energy recovery wheel method above with one of two wheels. However, a second wheel allows for humidity control during the summer, if desired. This wheel is place downstream of the cooling coil. The process is shown in the psychrometric chart below. This method not only provides humidity control but also obtains approximately 70 – 75% energy savings.

Morning Side Site 1 | Concept Design Phase Narrative | July 11, 2022 | Page 14 of 18
minimum design life.
Figure 16 Single Energy Recovery Wheel
COLUMBIA UNIVERSITY SITE 1 PLANNING + ZONING STUDY 1.9.2023 141

PASSIVE DHW RECOVERY FOR SHOWERS

Heat reclamation system “power-pipe” will be installed on all drain piping from showers and bathtubs. “Power-pipe” is a vertical, counterflow heat exchanger that extracts heat out of drain water (usually warm) and applies it to preheat the cold water entering the building . The “Power-pipe” is installed into a section of available, vertical drain line in a dwelling. The design consists of a 2-inch central copper pipe (that carries the warm wastewater) with 1/2-in. copper coils wound around the central pipe. Heat is transferred from the wastewater passing through the large, central pipe to cold water simultaneously moving upward through the coils on the outside of the pipe. The coils are flattened a little where they touch the pipe to increase the contact area and imp rove heat transfer. The key to this patented device was that wastewater clings in a film-like fashion to the inside wall of the pipe as it undergoes gravity flow in the open drain, and this warm, falling film transfers heat through the pipe wall to the incoming cold water that passes through the copper coil wound around the pipe.

Morning Side Site 1 | Concept Design Phase Narrative | July 11, 2022 | Page 15 of 18
Figure 17 Psychometric chart showing dual energy recovery wheel Figure 18 Dual Energy Recovery Wheel Schematic
BUILDING SYSTEMS (cont’d) 142

DHW HEAT PUMP

The Site 1 building will require local temperature boosting of the domestic hot water. The latest hot water heat pump technology replaces the need for a local boile r by means of an air source heat pump to produce hot water temperatures as high as 176°F and at the same time use carbon dioxide (CO2) as the refrigerant The basis of design will be the Mitsubishi QAHV.

In standard HVAC and refrigeration applications, CO2 typically operates at low condensing temperatures (70 – 90°F). Once the condensing temperature exceeds approximately 100°F and 1000 psi, the refrigerant enters a super -critical state wh ere phase change is no longer applicable toward heat exchange. Due to its patented heat exchanger technology, the QAHV efficiently operates in the super -critical region and allows for high leaving hot water temperatures of up to 176°F. The QAHV also contains an inverter equipped compressor to allow for variable speed operation in steps of 1706 Btu/hr. The design will accommodate a large temperature difference between the inlet and outlet temperature as this machine operates very efficiently at a high del ta T.

A single module has a published output of 136,480 Btu/hr with an outdoor ambient temperature between 36°F - 122°F. Modules can be cascaded together to up to 16 total modules. This air source heat pump can operate down to an outdoor ambient temperature of -13°F at approximately 47% the published Btu/hr output. The coefficient of performance of the QAHV exceeds that of a fuel burning boiler.

The QAHV shall be equipped with the system as shown in Figure 16. The indirect heat exchanger is used for domestic water applications and the storage tank is required to maintain stable operation. This heat pump cannot be used for space heating or similar applications.

Morning Side Site 1 | Concept Design Phase Narrative | July 11, 2022 | Page 16 of 18
Figure 19 Domestic Hot Water Heat Pump
COLUMBIA UNIVERSITY SITE 1 PLANNING + ZONING STUDY 1.9.2023 143

RAINWATER RECOVERY

An average of 50+ inches of rainwater fall in New York city, per weather.gov (2010 -2019). The rainwater that falls on Site 1 can be harvested and used for cooling tower make up. We propose an AquaCell system.

SOLAR

Because roof space is limited, we recommend instillation of 2-axis tracking photovoltaic arrays to be installed on the roof to maximize efficacy of solar energy system. Paired with batteries, this energy could be used to power electric vehicle charging. Current basis of design is EOS Aqueous Zinc battery syst ems.

Morning Side Site 1 | Concept Design Phase Narrative | July 11, 2022 | Page 17 of 18
Figure 20 QAHV System Schematic Image Figure 21 AquaCell Rainwater recovery system.
BUILDING SYSTEMS (cont’d) 144

VEHICLE

Per NYC Administrative Code 406.2.11 Electrical Vehicle Charging stations, 3.1 kW of electrical capacity must be provided to at least 20% of parking spaces of a parking garage. By January 1 2030, that 3.1 kW capacity must be provided to 40% of parking spaces. If there is to be parking available on the site, we will propose Level 2 chargers to meet this requirement.

Morning Side Site 1 | Concept Design Phase Narrative | July 11, 2022 | Page 18 of 18
Figure 22 EOS Znyth (Battery) Energy Block. ELECTRIC
COLUMBIA UNIVERSITY SITE 1 PLANNING + ZONING STUDY 1.9.2023 145
146

Benchmarking

Appendix 5.4
COLUMBIA UNIVERSITY SITE 1 PLANNING + ZONING STUDY 1.9.2023 147

Hogan Hall • Columbia University • 116 Beds

Hogan Hall

Columbia University

Completion 1898 (converted 1994; renovated 2000)

Size 51,300 GSF

116 beds, 442 GSF (per bed)

6 stories

Features Full suite — kitchen, bath, living

HOGAN HALL

Hogan Hall • Columbia University • 116 Beds

KITCHEN SUITE COMMON CLOSET COMMON BATHBATH 1 BED 125 SF 1 BED 122 SF 1 BED 123 SF 1 BED 119 SF
26' 6" 28' 2" UNIT REFERENCE: HOGAN HALL SUITE 2 APPROX. 1392 GSF APPROX. 996 NSF 4 BEDS KITCHEN BATH LIVING ROOM CLOSET INTERIOR CORRIDOR UNIT REFERENCE: HOGAN HALL SUITE 3 APPROX. 1300 GSF APPROX. 777 NSF 4 BEDS KITCHEN BATH LIVING ROOM CLOSET INTERIOR CORRIDOR UNIT REFERENCE: HOGAN HALL SUITE 5 APPROX. 1555 GSF APPROX. 1160 NSF 5 BEDS KITCHEN BATH LIVING ROOM 2 CLOSET INTERIOR CORRIDOR UNIT REFERENCE: HOGAN HALL FLOOR PLATE APPROX. 8550 GSF SUITE TYPE 1 SUITE TYPE 2 SUITE TYPE 3 SUITE TYPE 4 SUITE TYPE 5
BENCHMARKING 148

River Hall

Columbia University

Completion 1906 (renovated 2001)

Size 32,100 GSF

129 beds, 241 GSF (per bed)

6 stories

Features Individual bedrooms accessible from shared corridors

SUITE COMMON BATH BATH 1 BED 108 SF 1 BED 108 SF 1 BED 142 SF 1 BED 106 SF 1 BED 111 SF 1 BED 106 SF KITCHEN SUITE COMMON 1 BED 106 SF 1 BED 114 SF 1 BED 106 SF 1 BED 144 SF
``
COLUMBIA UNIVERSITY SITE 1 PLANNING + ZONING STUDY 1.9.2023 149
River Hall • Columbia University • 129 Beds

Lauder College House

University of Pennsylvania

Completion 2015

Architect Bohlin Cywinski Jackson

Size 198,000 GSF

344 beds, 576 GSF (per bed) 7 stories

Features Half suite; bath, living 3-6 beds per suite

Teaching kitchen; fitness rooms; meditation garden

BATH SUITE COMMON 1 BED 116 SF 1 BED 98 SF 1 BED 96 SF 1 BED 111 SF
LAUDER COLLEGE HOUSE, UPENN
BENCHMARKING (cont’d) 150

New College House West University of Pennsylvania

Completed 2022

Architect Bohlin Cywinski Jackson

Size 250,000 GSF

450 beds, 556 GSF (per bed) 98 suites

13-story center tower, (2) 5-story

Features Half suites; bath, living; Teaching kitchen; fitness rooms; meditation garden

COLUMBIA UNIVERSITY SITE 1 PLANNING + ZONING STUDY 1.9.2023 151

High Street Residence Dickinson College

Completion 2018

Architect Deborah Berke Partners

Size 41,950 GSF

129 beds, 325 GSF (per bed)

4 stories

Features Individual bedrooms accessible from shared corridors, organized into groups; mix of 1- and 2-bed units

HIGH STREET RESIDENCE 5 BED SUITE APPROX 586 NSF APPROX 760 GSF 40' - 1" 19'4" 26'11" 1 BED 125 SF 2 BEDS 188 SF 2 BEDS 196 SF FLOOR COMMON BATH
UNIT REFERENCE: HIGH STREET RESIDENCE FLOOR PLATE APPROX. 10650 GSF SINGLE SUITE FLOOR PLATE 39 BEDS (14 SINGLES, 12 DOUBLES, 1 RA) 11 BATHROOM 5 LOUNGE/POCKET LOUNGE 1 MEETING ROOM 1 STORAGE INTERIOR CORRIDOR 1/8" = 1'-0" 1 HIGH STREET RESIDENCE PLAN BENCHMARKING (cont’d) 152

Othmer Hall

New York University

Completion 2002

Architect Davis Brody Bond

Size 200,000 GSF

400 beds, 500 GSF (per bed)

18 stories

Level 2-8 (112 units; no kitchen)

Level 9-18 (94 suites)

Features Full suite; Kitchen, Bath, Living

UNIT REFERENCE: NYU OTHMER APPROX. 865 GSF APPROX. 659 NSF 24'11" 5'0" 31' - 11" KITCHEN BATH 2 BEDS 195 SF 2 BEDS 189 SF SUITE COMMON
UNIT REFERENCE: NYU OTHMER APPROX. 865 GSF APPROX. 659 NSF FLOOR PLATE AREA: 6610 GSF 24'11" 5' 0" 31' - 11" 54' 10" 124' - 6" 37'5" 21'3" 1/8" = 1'-0" 1 NYU OTHMER COLUMBIA UNIVERSITY SITE 1 PLANNING + ZONING STUDY 1.9.2023 153

181 Mercer

New York University

Completion 2023

Architect Davis Brody Bond / KieranTimberlake

Size 156,000 GSF

415 beds, 376 GSF (per bed)

16-story student tower

Features Student housing level 8-16 (114 units)

Half suite: bath, living

Comprised of 1-5 bedroom units

26'11"
NYU MERCER STREET UNIT 5 BED SUITE APPROX. 722 NSF APPROX. 956 GSF NYU MERCER STREET UNIT 4 BED SUITE APPROX. 611 NSF APPROX. 833 GSF BATH COMMON 1 BED 124 SF 1 BED 122 SF 2 BED 169 SF
36' - 1"
FLOOR PLATE AREA: 17334 GSF BENCHMARKING (cont’d) 154

University Hall • New York University • 606 Beds

University Hall New York University

Completion 1998

Architect Davis Brody Bond

Size 200,000 GSF

606 beds, 330 GSF (per bed)

18 stories

Features Full suite; kitchen, bath, living

31' - 6"

UNIT REFERENCE:

NYU UNIVERSITY HALL

APPROX. 758 GSF

APPROX. 573 NSF

FLOOR PLATE AREA: 10447 GSF

4'6" 21'5"

BATH KITCHEN 2 BEDS 144 SF 2 BEDS 136 SF SUITE COMMON
4' 6" 21' 5" 31' - 6" UNIT REFERENCE: NYU UNIVERSITY HALL APPROX. 758 GSF APPROX. 573 NSF FLOOR PLATE AREA: 10447 GSF 67'10" 99' 2" 47' - 4" 42' 10" 93' - 6" 188' - 2" 1" = 10'-0" 4 NYU UNIVERSITY HALL COLUMBIA UNIVERSITY SITE 1 PLANNING + ZONING STUDY 1.9.2023 155

Residence & Wellness Center

Brown University

Completion 2021

Architect William Rawn Associates

Size 96,000 GSF

162 beds, 593 GSF (per bed), 4-5 stories

Features Shared bath & community spaces; individual bedrooms accessible from shared corridors; co-located with a student health & wellness center; includes flexible spaces for shared residential and health programming.

POD 113 SF POD 109 SF POD 104 SF POD 110 SF POD 110 SF POD 110 SF ADA BATH KITCHENETTE BATH POD COMMONS BATH
UNIT REFERENCE: TYP. RES FLOOR 2-4 APPROX. 12535 GSF RES & WELLNESS BENCHMARKING (cont’d) 156

Brook Hall Brown University

Completion 2023

Architect Deborah Berke and Partners

Size

125,000 GSF (64,000 + 61,000)

353 beds, 354 GSF (per bed)

5 stories

Features Half suites; bath, living

BATH COMMON BATH 1 BED 107 SF 1 BED 111 SF 1 BED 111 SF 1 BED 107 SF
COLUMBIA UNIVERSITY SITE 1 PLANNING + ZONING STUDY 1.9.2023 157

Campbell, Salice & Conley Residence Halls Fordham University

Completion 2010

Architect Sasaki

Size 170,000 GSF

460 beds, 370 GSF (per bed)

5 stories

Features Full suites; kitchen, bath, living

SUITE COMMON 2 BED 165 SF 2 BED 180 SF 2 BED 174 SF BATH BATH KITCHENETTE
BENCHMARKING (cont’d) 158
Fordham University • Fordham University • 460 Beds

Campus North Residential Commons

University of Chicago

Completion 2016

Architect Studio Gang Architects

Size 394,000 GSF

800 beds, 493 GSF (per bed)

3 towers, 15, 11, & 5 floors

252 singles, 193 doubles

Features Grouped into (8) “houses” of (100) students

Campus North Residential Commons • University of Chicago • 800 Beds 1 BED 198SF COMMON BATH KITCHEN COMMON 2 BEDS 193SF BED 123SF 1 BED 120SF BED 122SF 1 BED 138SF SUITE BED 123SF SUITE COMMON SUITE 1 BED 150SF SUITE BATH SUITE 1 BED 120SF SUITE BED 145SF 1 BED 149SF 1 BED 127SF 1 BED 105SF 2 BEDS 205SF BEDS 195SF
Campus North Residential Commons • University of Chicago • 800 Beds COLUMBIA UNIVERSITY SITE 1 PLANNING + ZONING STUDY 1.9.2023 159

Sojourner Truth Apartments at the Yard Rutgers University

Completion 2016

Architect Elkus Manfredi Architects Size 232,000 GSF

422 beds, 550 GSF (per bed)

135 apartments

13 stories

Features Full suites; kitchen, bath, living

BATH BATH 1 BED 113SF 1 BED 112SF 1 BED 110SF 1 BED 110SF COMMON KITCHEN
Sojourner Truth Apartments at the Yard • Rutgers University • 422 Beds
BENCHMARKING (cont’d) 160

Lincoln Street Residence

Northwestern University

Completion 2017

Architect William Rawn Associates

Size 140,000 GSF

450 beds, 332 GSF (per bed)

7 stories, 4 stories (west side)

Features Half suites; bath, living (2, 4 bed suites)

BATH BATH COMMON 1 BED 90SF 1 BED 93SF 1 BED 93SF 1 BED 90SF
COLUMBIA UNIVERSITY SITE 1 PLANNING + ZONING STUDY 1.9.2023 161

University Center The New School

Completion 2014

Architect SOM

Size 130,000 GSF residence tower

600 beds, 217 GSF (per bed)

16 stories, 9 residential

Features Full suite; kitchen, bath, closet

1 BED 127 SF 1 BED 127 SF
BATH COMMON
BENCHMARKING (cont’d) 162

Appendix 5.5 Program Room Lists

COLUMBIA UNIVERSITY SITE 1 PLANNING + ZONING STUDY 1.9.2023 163

Accessible through shared common area or directly from street. Entrance from 115th Street is preferred.

Access will be more restrictive than other potential program in the building. Security control point should restrict access to students who live in the dormitory and their guests. Provide security desk, no office needed.

Mail and package delivery at Columbia University is centralized on campus for all undergraduate residents. A dedicated mail and package room is not required.

Overall dormitory size is flexible, however 200 beds is considered a minimum size to foster a sense of community. Note that programming below is based on a 9-story dormitory of 22-23 beds per floor.

Student rooms may be organized into suites, however direct access to bedrooms from the corridor is preferred. Enclosed suites with internal corridors and private common rooms are not encouraged.

to a specific group of

subtotal is

on a 9-story dormitory. Rooms for Resident Advisors should be provided at a ratio of 1 for every 40 students or 1 per floor if the number of students per floor is less than 40. Resident Advisors rooms can be a typical two-bed room, but should have a table and two chairs in lieu of the second bed. RAs do not need a dedicated bathroom and may share with other students on the floor

Columbia University - Site 1 Residence Hall Program RESIDENCE HALL Quantity NSF/Room NSF/Subtotal Comments Building Lobby & Support Lobby 1 1800 1800
Mail & Package Room 0
Student Rooms - 200 Beds
Suites
Singles 160 135 21600 75% to 80% of all residents should be accommodated in single bed rooms. Doubles 40 200 8000 20% to 25% of all residents should be accommodated in double bed rooms. Room should be sized so that bunk beds are not required to accommodate two students Bathrooms 50 60 3000 Provide 1 bathroom for every 4 students. Bathroom may be accessed
the corridor
dedicated
bedrooms. Bathrooms
include
minimum. Resident Advisors 1 per floor 200 1800 Area
Resident Hall Director 1 400 400 A one-bedroom apartment should be provided for a Resident Hall Director for the dormitory. PRELIMINARY ROOM LIST: RESIDENTIAL 164
directly from
and does not need to be
should
1 toilet, 1 shower and 1 lavatory at a
based

for this

Columbia University - Site 1 Residence Hall Program Social Spaces Social Lounge 1 per floor 400 3600 Area subtotal is based on a 9-story dormitory. Social lounge should be located centrally
floor
directly accessible
Group Study 1 per floor 270 2430 Area subtotal is based on a 9-story dormitory. Alternate
programming
space
considered on a floor
floor
Quiet Study 1 per floor 135 1215 Area subtotal is based on a 9-story dormitory. Support Spaces - FOH Laundry 1 400 400 Should be generous in scale and have access to daylight to encourage use as a social space. Flex office for RHD 1 100 100 Printing station 1 per floor 100 900 Area subtotal is based on a 9-story dormitory. Located near elevators Bicycle Storage (Per Zoning) TBD Support Spaces - BOH Janitors Closet 1 per floor 25 225 Trash room 1 per floor 35 315 Recycling Room 1 per floor 35 315 Compactor Room 1 300 300 Subtotal (NSF) 46400 Grossing Factor 1.3 GSF/NSF Total (GSF) 60320 COLUMBIA UNIVERSITY SITE 1 PLANNING + ZONING STUDY 1.9.2023 165
on the
and
from elevators or other primary circulation.
or flexible
may be
by
basis.

HAND CRAFTED SOLUTIONS.

ELEVATED EXPERIENCES.

1 COLUMBIA UNIVERSITY COMMONS DINING PROGRAM BRIEF 17 FEB 2022 DINING COMMONS PROGRAM BRIEF - 17 FEB 2022 2
PROGRAM BRIEF: DINING 166

CONTENTS

• Basis of Design

• Micro Restaurant Concepts

• Space Program ming

• Sizing Comparison

• Option 1 | Food Hall (Full Program)

• Option 2 | Food Hall (Reduced Program)

• Option 3 | Food Hall (Basic Program)

BASIS OF DESIGN

DINING COMMONS PROGRAM BRIEF - 17 FEB 2022 3
4
COLUMBIA UNIVERSITY SITE 1 PLANNING + ZONING STUDY 1.9.2023 167

BASIS OF DESIGN

The Vision

• Preference for attended service model with a focus on hospitality

• Incorporate Teaching Kitchen concept; used by culinary team with no classes

• Need area/process to handle orders for allergy/dietary meal restrictions

• No need for onsite scratch baking program with NYC retail bakeries readily available

• Catering not a priority at this dining commons

BASIS OF DESIGN | FOOD HALL CONCEPT

• This concept maximizes fresh preparation in an exhibition style format that utilizes small batch production, as well as foods prepared by the main kitchen staff. This approach enhances the customer’s perception of freshness and demystifies the origin of the product.

• In its purest sense the approach is to create mini restaurants or “platforms”. Each platform has its own food production and service format, but with an architecturally coordinated identity. With much of the food preparation and cooking done in front of the customer, preliminary and bulk preparation is supported by the main production kitchen.

• This exhibition servery will bring many of the kitchen functions out of the back of the house, thus visually engaging the customer in the process of preparing and serving food. This creates a dynamic, lively, and interactive environment bridging the areas of food production and product authenticity and customer service.

• Merchandising is another key component to this concept. The use of retail food display equipment as well as retail graphics and lighting will display food in an attractive manner and improve the perceived quality of the products offered.

• Control Points: access to the Commons all-you-care-to-eat(AYCE)dining program is an important factor during peak lunch and dinner times. Controlling the flow of customers into the space will allow the service points have time to adjust to peak customer surges and maintain consistent flow and customer throughput.

• Dining Areas: seating areas should incorporate a variety of table styles to include four-tops, communal tables, bar-height and counter height. Additional elements should include self-service beverage stations, condiment stations and trash/recycling disposal counters. Seating layouts should take into consideration late night service and study areas.

• Micro Restaurants: A collection of micro restaurants presented as defined concepts with individual identities and a strong point of view. Each micro restaurant will have the ability to expand and contract in menu and offering based on demand.

• Main Kitchen & Support: Designed to support Commons Food Hall concept. Requires easy access to the loading dock and freight elevators. Infrastructure includes refrigerated and dry storage, hot and cold production, trash and recycling, ware-washing, food service offices and staff facilities.

DINING COMMONS PROGRAM BRIEF - 17 FEB 2022 5
DINING COMMONS PROGRAM BRIEF - 17 FEB 2022 6
(cont’d) 168
PROGRAM BRIEF: DINING

MICRO RESTAURANT CONCEPTS

• Anchored by a wood-burning hearth oven, this platform can offer a variety of baked and roasted menu items.

• Hand-tossed Pizzas, Flatbreads, Pasta al Forno and Casseroles.

7
DINING COMMONS PROGRAM BRIEF - 17 FEB 2022 8
COLUMBIA UNIVERSITY SITE 1 PLANNING + ZONING STUDY 1.9.2023 169
NY PIZZA JOINT

PROGRAM

BRIEF:

SHOWCASE KITCHEN + GRILLE

• A grill-powered restaurant with a core menu of breakfast and lunch offerings.

• Pop-up concepts to include popular fare and chef innovations.

• The go-to counter for the latest in NYC dining trends and local community engagement.

• Fresh sunny flavors from across the Mediterranean including Halal prepared proteins and authentic Middle-eastern fare.

• A tossed salad hub, similar to Sweet Greens or Chop’t, featuring Made-to-Order Salads and Grain Bowls celebrating the Mediterranean diet.

• Additional offerings could include a Levantine Hummus Bar, Spanish Tapas, or Southern French Dips and Bread Baskets.

DINING COMMONS PROGRAM BRIEF - 17 FEB 2022 9
DINING COMMONS PROGRAM BRIEF - 17 FEB 2022 10
MEDITERRANEAN TABLE DINING (cont’d) 170

MARKET BAR

• Farmer’s Market-forward offering of self-serve salad components, composed salads, hot and cold beans & grains & proteins.

• A rotating selection of seasonal hot comfort foods with a regional and global spin with a dedicated vegan and vegetarian section.

• Breakfast includes fruit, yogurt, breakfast salads, an avocado toast bar plus a variety of smears and toppings for baked goods.

• Soups and hot cereals complete a lunch or breakfast meal.

MADE TO ORDER SANDWICHES

• Sandwiches, wraps and pressed paninis all prepared to order behind the scenes.

• Kiosk ordering.

• Guest pick-up from a designated “CLICK & COLLECT” pick-up window.

DINING COMMONS PROGRAM BRIEF - 17 FEB 2022 11
DINING COMMONS PROGRAM BRIEF - 17 FEB 2022 12
COLUMBIA UNIVERSITY SITE 1 PLANNING + ZONING STUDY 1.9.2023 171

CEREAL, GRANARY AND WAFFLE BAR

• Self-service hot and cold cereals to include nostalgic favorites such like Cap’n Crunch to organic granola, oldfashioned oatmeal and hominy grits.

• A Waffle Bar complete with toasters and waffle irons with an assortment of sweet and savory toppings to include everyone’s favorite, Southern Fried Chicken.

BEVERAGES

Tapped

• A custom beverage dispensing system with an array of sodas, iced tea, juice and sparkling beverages

Brewed

• Self-service dispensed drip coffee featuring local roasters and seasonal favorites

Packaged

• Located outside the control zone, a selection of packaged sandwiches, salads, sushi, nosh boxes and other on-the-go snacks

DINING COMMONS PROGRAM BRIEF - 17 FEB 2022 13
DINING COMMONS PROGRAM BRIEF - 17 FEB 2022 14
(cont’d) 172
+ GRAB AND GO PROGRAM BRIEF: DINING
15
DINING COMMONS PROGRAM BRIEF - 17 FEB 2022 16 OPTION 1 – FULL PROGRAM • All you care to eat • Most robust offerings of all three options • Permanent ware/dish washing • 400-seats OPTION 2 – REDUCED PROGRAM • All you care to eat • Scaled back menu offerings from full program
Permanent ware/dish washing
300-seats OPTION 3 – BASIC PROGRAM • All you care to eat • Scaled back menu offerings from reduced program • 100% Disposable • 200-seats SPACE PROGRAM SUMMARY OPTION 1 FULL PROGRAM OPTION 2 REDUCED PROGRAM OPTION 3 BASIC PROGRAM FUNCTION NSF NSF NSF Dining 7,100 5,500 3,550 Serving 3,250 2,500 1,950 FOH Sanitation 1,000 1,000 0 Production 1,200 1,100 850 BOH Sanitation 650 650 650 Storage 3,120 2,670 2,520 Offices & Lockers 1,585 1,185 1,065 Support 580 580 580 TOTAL DINING COMMONS NSF 18,485 15,185 11,165 Net-to-Gross Factor 1.40 1.40 1.40 DINING COMMONS GSF 25,879 21,259 15,631 Difference 18% 40% PLATFORMS FULL REDUCED BASIC NY Pizza Joint X X X Showcase Kitchen & Grille X X X Mediterranean Table X X Market Bar X Made to Order Sandwich X X X Cereal/Granary/Waffle Bar X TOTAL PLATFORMS 6 4 3 Beverages and Grab and Go X X X COMMONS SPACE PROGRAM COLUMBIA UNIVERSITY SITE 1 PLANNING + ZONING STUDY 1.9.2023 173
SPACE PROGRAM OPTIONS
17 FUNCTION QTY Unit Total NSF Comments Dining Check-in/Greeting Stations 2 50 100 General Dining - A 200 16 3,200 General Dining - B 200 16 3,200 Reservable Dining 0 18 0 Divisible space; not fully enclosed room, part of overal dining seat count Condiment Islands 4 100 400 Distributed in dining areas Dish Drop 2 100 200 Adjacent to dining room Sub-total Dining 7,100 Serving Platform 1: NY Pizza Joint 1 600 600 Dough forming, toppings, oven(s) Platform 2: Showcase Kitchen & Grille 1 600 600 Charbroiler, griddles, deep fat fryers Platform 3: Mediterranean Table 1 400 400 Including dedicated cooking: grill, griddle, range, fryer Platform 4: Market Bar 1 400 400 Hot and Cold self-service bar Platform 5: Made to Order Sandwich 1 600 600 Sandwich and Salad adjacent to share support Platform 6: Cereal/Granary/Waffle Bar 1 350 350 Self service counter Beverages 2 150 300 Fountain beverages Sub-total Serving 3,250 FOH Sanitation Dishwashing 1 800 800 Conveyor with scrapping and automated rack machine Dish Storage 1 150 150 Mop Cabinet 1 50 50 Sub-total Sanitation 1,000 Production Commissary/Chop Shop 1 350 350 Allergy/Dietary Meal Production 1 150 150 Hot Production 1 350 350 Teaching Kitchen 1 250 250 Butcher Shop 1 100 100 Sub-total Food Production 1,200 BOH Sanitation Pot Wash / Scullery 1 350 350 Pot/Pan Storage 1 250 250 Mop Cabinet 1 50 50 Sub-total Sanitation 650 Storage Dry Storage 1 700 700 Main Receiving & integrated at platforms Equipment/Seasonal Storage 1 200 200 Paper Storage 1 300 300 Chemical Storage 1 120 120 Beverage Support/Syrup Storage 1 100 100 Centralized system, routing to beverage dispensing counters Bulk Refrigeration: Blast Chillers 1 100 100 Chiller integrated into holding walk-in Coolers 6 200 1,200 Main Receiving and integrated at platforms Freezers 1 400 400 Sub-total Storage 3,120 Offices & Lockers Offices: Director 1 120 120 Office with small meeting table Executive Chef 1 60 60 Receiving Clerk 1 60 60 Production and Service 1 300 300 Sous Chef, Production Manager, FOH Manager Staff Break/Mtg/Training Room 1 400 400 Multipurpose: demos, staff dining, internet station, training (AV technology built in); accommodate 20P Toilet/Changing Rooms 2 150 300 Common Locker Area 1 225 225 Not enclosed; in circulation hallway Linens/Uniforms/Laundry 1 120 120 Sub-total Offices & Lockers 1,585 Support Recycle Holding 1 240 240 Climate controlled with Trash Holding Cart/Can Wash 1 120 120 "Clean Room” and Grease Removal System Receiving 1 220 220 Sub-total Support 580 TOTAL DINING COMMONS NSF 18,485 Net-to-Gross Factor 1.40 Provides allowance for lobby, public toilets, vertical circulation DINING COMMONS GSF 25,879 COMMONS SPACE PROGRAM OPTION 1 - FULL PROGRAM PROGRAM BRIEF: DINING (cont’d) 174
18 FUNCTION QTY Unit Total NSF Comments Dining Check-in/Greeting Stations 2 50 100 General Dining - A 150 16 2,400 General Dining - B 150 16 2,400 Reservable Dining 0 18 0 Divisible space; not fully enclosed room, part of overal dining seat count Condiment Islands 4 100 400 Distributed in dining areas Dish Drop 2 100 200 Adjacent to dining room Sub-total Dining 5,500 Serving Platform 1: NY Pizza Joint 1 600 600 Dough forming, toppings, oven(s) Platform 2: Showcase Kitchen & Grille 1 600 600 Charbroiler, griddles, deep fat fryers Platform 3: Mediterranean Table 1 400 400 Including dedicated cooking: grill, griddle, range, fryer Platform 4: Market Bar 0 400 0 Hot and Cold self-service bar Platform 5: Made to Order Sandwich 1 600 600 Sandwich and Salad adjacent to share support Platform 6: Cereal/Granary/Waffle Bar 0 350 0 Self service counter Beverages 2 150 300 Fountain beverages Sub-total Serving 2,500 FOH Sanitation Dishwashing 1 800 800 Conveyor with scrapping and automated rack machine Dish Storage 1 150 150 Mop Cabinet 1 50 50 Sub-total Sanitation 1,000 Production Commissary/Chop Shop 1 350 350 Allergy/Dietary Meal Production 1 150 150 Hot Production 1 350 350 Teaching Kitchen 1 250 250 Butcher Shop 0 100 0 Sub-total Food Production 1,100 BOH Sanitation Pot Wash / Scullery 1 350 350 Pot/Pan Storage 1 250 250 Mop Cabinet 1 50 50 Sub-total Sanitation 650 Storage Dry Storage 1 500 500 Main Receiving & integrated at platforms Equipment/Seasonal Storage 1 200 200 Paper Storage 1 250 250 Chemical Storage 1 120 120 Beverage Support/Syrup Storage 1 100 100 Centralized system, routing to beverage dispensing counters Bulk Refrigeration: Blast Chillers 1 100 100 Chiller integrated into holding walk-in Coolers 5 200 1,000 Main Receiving and integrated at platforms Freezers 1 400 400 Sub-total Storage 2,670 Offices & Lockers Offices: Director 1 120 120 Office with small meeting table Executive Chef 1 60 60 Receiving Clerk 1 60 60 Production and Service 1 300 300 Sous Chef, Production Manager, FOH Manager Staff Break/Mtg/Training Room 0 400 0 Multipurpose: demos, staff dining, internet station, training (AV technology built in); accommodate 20P Toilet/Changing Rooms 2 150 300 Common Locker Area 1 225 225 Not enclosed; in circulation hallway Linens/Uniforms/Laundry 1 120 120 Sub-total Offices & Lockers 1,185 Support Recycle Holding 1 240 240 Climate controlled with Trash Holding Cart/Can Wash 1 120 120 "Clean Room” and Grease Removal System Receiving 1 220 220 Sub-total Support 580 TOTAL DINING COMMONS NSF 15,185 Net-to-Gross Factor 1.40 Provides allowance for lobby, public toilets, vertical circulation DINING COMMONS GSF 21,259 COMMONS SPACE PROGRAM OPTION 2 - REDUCED PROGRAM COLUMBIA UNIVERSITY SITE 1 PLANNING + ZONING STUDY 1.9.2023 175
19 FUNCTION QTY Unit Total NSF Comments Dining Check-in/Greeting Stations 1 50 50 General Dining - A 200 16 3,200 General Dining - B 0 16 0 Reservable Dining 0 18 0 Divisible space; not fully enclosed room, part of overal dining seat count Condiment Islands 2 100 200 Distributed in dining areas Dish Drop 1 100 100 Adjacent to dining room Sub-total Dining 3,550 Serving Platform 1: NY Pizza Joint 1 600 600 Dough forming, toppings, oven(s) Platform 2: Showcase Kitchen & Grille 1 600 600 Charbroiler, griddles, deep fat fryers Platform 3: Mediterranean Table 0 400 0 Including dedicated cooking: grill, griddle, range, fryer Platform 4: Market Bar 0 400 0 Hot and Cold self-service bar Platform 5: Made to Order Sandwich 1 600 600 Sandwich and Salad adjacent to share support Platform 6: Cereal/Granary/Waffle Bar 0 350 0 Self service counter Beverages 1 150 150 Fountain beverages Sub-total Serving 1,950 FOH Sanitation Dishwashing 0 800 0 Conveyor with scrapping and automated rack machine Dish Storage 0 150 0 Mop Cabinet 0 50 0 Sub-total Sanitation 0 Production Commissary/Chop Shop 1 350 350 Allergy/Dietary Meal Production 1 150 150 Hot Production 1 350 350 Teaching Kitchen 0 250 0 Butcher Shop 0 100 0 Sub-total Food Production 850 BOH Sanitation Pot Wash / Scullery 1 350 350 Pot/Pan Storage 1 250 250 Mop Cabinet 1 50 50 Sub-total Sanitation 650 Storage Dry Storage 1 500 500 Main Receiving & integrated at platforms Equipment/Seasonal Storage 1 200 200 Paper Storage 1 300 300 Chemical Storage 1 120 120 Beverage Support/Syrup Storage 1 100 100 Centralized system, routing to beverage dispensing counters Bulk Refrigeration: Blast Chillers 1 100 100 Chiller integrated into holding walk-in Coolers 4 200 800 Main Receiving and integrated at platforms Freezers 1 400 400 Sub-total Storage 2,520 Offices & Lockers Offices: Director 1 120 120 Office with small meeting table Executive Chef 0 60 0 Receiving Clerk 0 60 0 Production and Service 1 300 300 Chefs, Production Manager, FOH Manager Staff Break/Mtg/Training Room 0 400 0 Multipurpose: demos, staff dining, internet station, training (AV technology built in); accommodate 20P Toilet/Changing Rooms 2 150 300 Common Locker Area 1 225 225 Not enclosed; in circulation hallway Linens/Uniforms/Laundry 1 120 120 Sub-total Offices & Lockers 1,065 Support Recycle Holding 1 240 240 Climate controlled with Trash Holding Cart/Can Wash 1 120 120 "Clean Room” and Grease Removal System Receiving 1 220 220 Sub-total Support 580 TOTAL DINING COMMONS NSF 11,165 Net-to-Gross Factor 1.40 Provides allowance for lobby, public toilets, vertical circulation DINING COMMONS GSF 15,631 COMMONS SPACE PROGRAM OPTION 3 - BASIC PROGRAM PROGRAM BRIEF: DINING (cont’d) 176
Health 1 2030 Medical Sevice - 58,400 GSF Quantity NSF/Room Total NSF Medical Services Public spaces Reception Flex Check in/out Station 10 60 600 Kiosk Stations 10 30 300 Copy Room 1 70 70 Waiting - Healthy 5 200 1,000 Waiting - Sick 5 100 500 Waiting Toilet - Healthy 10 60 600 Waiting Toilet - Sick 5 60 300 Emergency Waiting Room 1 120 120 Emergency Waiting Toilet 1 60 60 Subtotal NSF 3,550 Clinical and Clinical Support Clinical Team Pods Triage/Exam 5 140 700 Exam - Provider 30 120 3,600 Exam - Reproductive Health / Special Use 10 140 1,400 Exam - Nursing 10 120 1,200 Visiting + Adjunct Provider Exam 5 120 600 Tele - Medicine 5 80 400 Treatment Room 5 140 700 Vitals 5 120 600 Observation 5 120 600 Rest and Recovery 5 120 600 Dedicated toilet for R&R 5 60 300 Patient Toilet 10 60 600 Phlebotomy 5 80 400 Sub-Waiting 5 90 450 Nurse Station 5 200 1,000 Team Work / Collaboration Room 5 350 1,750 Equipement Alcove - Crash Cart 5 30 150 Med Station 5 60 300 Microscope Room 5 60 300 Clean Supply 5 120 600 Equipement 5 120 600 Soiled Holding Room 5 100 500 Shared Lab 1 1,200 1,200 Lab Box Location 1 40 40 Meds Room 1 120 120 Trash Holding Room 1 100 100 Subtotal NSF 18,810 Staff Offices Clinical Pods Behavorial Health Office 5 140 700 Shared Nursing Office 5 160 800 Shared Medical Director 1 220 220 Associate Medical Director 1 120 120 HSA Work Room 1 350 350 Case Manager Work Room 1 350 350 Assoc. Director of Patient Services 1 120 120 Assoc. Director of Nursing 1 120 120 Immunization Compliance 1 60 60 Immunization Compliance Assistant 1 40 40 Assist Director Student Health Insurance 1 120 120 Senior Insurance Specialist 1 100 100
ROOM LIST: HEALTH 1 COLUMBIA UNIVERSITY SITE 1 PLANNING + ZONING STUDY 1.9.2023 177
perEwingColeReportdatedJune17,2020with2022updatesasnoted PRELIMINARY
Insurance Specialist 1 100 100 Purchasing & Inventory Work Station 1 60 60 Nutritionist 1 140 140 Clinical Office (2022 Update) 5 120 600 Staff Office(2022 Update) 5 120 600 Subtotal NSF 4,600 Staff Support Staff Support / Clinical Pods Kitchen 5 60 300 Staff Break / Lunch Room 5 200 1,000 Staff Toilet 5 60 300 Lockers 5 75 375 Shared Medium Conference Room 1 200 200 Multi-purpose/Training 1 600 600 Medical Record Storage 1 70 70 General Office Storage 1 70 70 Inventory Storage and Break down 1 400 400 Janitor's Closet 5 70 350 IT/Data 3 150 450 Mail Nook 1 70 70 Subtotal NSF 4,185 Total Medical Services Total NSF 31,145 Total Department DGSF (x1.5 Dept. Grossing Factor) 46,718 Total Building GSF (x1.25 Building Grossing Factor) 58,397 TOTAL HEALTH 1 PROGRAM 58,397
ROOM LIST: HEALTH
(cont’d) 178
PRELIMINARY
1
Health 2 2030 Medical Sevice Plus - 71,760 GSF (2030 Medical Services + 2030 Health Administration + 2030 Alice ! Health Promotion ) Quantity NSF/Room Total NSF Columbia Health Administration Public Spaces Reception 1 70 70 Copy Room 1 70 70 Waiting Area 6 25 150 Waiting Toilet 1 60 60 Subtotal NSF 350 Staff Offices Chief of Administration 1 220 220 Associate VP & Medical Director 1 220 220 Assistant Director Operations 1 120 120 Admin Assistant 1 70 70 Operations Managers 2 70 140 Research Managers 2 70 140 Columbia Health HR 2 120 240 Assoc. Director Columbia Health Finance 1 120 120 Finance Work Room 2 70 140 Associate Director Health Communications 1 120 120 Communications Team Room 4 70 280 IT office 2 70 140 IT Workroom 4 80 320 IT Director 1 120 120 Consult Room 0 120 0 Offices (2022 Update) 8 120 960 Workstations (2022 Update) 4 70 280 Team Room (2022 Update) 1 240 240 Subtotal NSF 3,870 Staff Support Medium Conference Room 1 240 240 General Storage 1 70 70 Shared Storage 1 150 150 Kitchen 1 60 60 Staff Break/ Lunch Room 1 100 100 Staff Toilet 2 60 120 IT Data 1 120 120 Subtotal NSF 860 Total Columbia Health / Administration Total NSF 5,080 Total Department DGSF (x1.35 Dept. Grossing Factor) 6,858 Total Building GSF (x1.25 Building Grossing Factor) 8,573 Alice Health Promotion! Public Services Reception 3 60 180 Copy Room 1 70 70 Waiting Area 1 250 250 Self-Care Station/Library 1 60 60 Public Toilet 1 60 60 Subtotal NSF 620 Staff Offices Director 1 180 180 Assistant Director - Alice 1 120 120 Associate Director - GHAP 1 140 140 GHAP Consultant 2 120 240 Operations Manager 1 100 100 Health Promotion Specialist 6 120 720 perEwingColeReportdatedJune17,2020with2022updatesasnoted PRELIMINARY ROOM LIST: HEALTH 2 COLUMBIA UNIVERSITY SITE 1 PLANNING + ZONING STUDY 1.9.2023 179
Shared Alice Consult 1 120 120 Student/Volumteer Work Stations 12 30 360 Staff Offices (2022 Update) 4 120 480 Subtotal NSF 2,460 Staff Support Alice Conference/Strategy Work Room 1 400 400 General Storage 3 70 210 Kitchen 1 60 60 Staff Break/Lunch Room 1 120 120 Staff Toilet 2 60 120 Staff Lockers 1 60 60 IT/DATA 1 120 120 Subtotal NSF 1,090 Total Alice Health Promotion Total NSF 4,170 Total Department DGSF (x1.35 Dept. Grossing Factor) 5,630 Total Building GSF (x1.25 Building Grossing Factor) 7,037 Medical Services (56,150) Public spaces Reception Flex Check in/out Station 10 60 600 Kiosk Stations 10 30 300 Copy Room 1 70 70 Waiting - Healthy 5 200 1,000 Waiting - Sick 5 100 500 Waiting Toilet - Healthy 10 60 600 Waiting Toilet - Sick 5 60 300 Emergency Waiting Room 1 120 120 Emergency Waiting Toilet 1 60 60 Subtotal NSF 3,550 Clinical and Clinical Support Clinical Team Pods Triage/Exam 5 140 700 Exam - Provider 30 120 3,600 Exam - Reproductive Health / Special Use 10 140 1,400 Exam - Nursing 10 120 1,200 Visiting + Adjunct Provider Exam 5 120 600 Tele - Medicine 5 80 400 Treatment Room 5 140 700 Vitals 5 120 600 Observation 5 120 600 Rest and Recovery 5 120 600 Dedicated toilet for R&R 5 60 300 Patient Toilet 10 60 600 Phlebotomy 5 80 400 Sub-Waiting 5 90 450 Nurse Station 5 200 1,000 Team Work / Collaboration Room 5 350 1,750 Equipement Alcove - Crash Cart 5 30 150 Med Station 5 60 300 Microscope Room 5 60 300 Clean Supply 5 120 600 Equipement 5 120 600 Soiled Holding Room 5 100 500 Shared Lab 1 1,200 1,200 Lab Box Location 1 40 40 Meds Room 1 120 120 Trash Holding Room 1 100 100 Subtotal NSF 18,810 Staff Offices Clinical Pods
ROOM LIST: HEALTH 2 (cont’d) 180
PRELIMINARY
Behavorial Health Office 5 140 700 Shared Nursing Office 5 160 800 Shared Medical Director 1 220 220 Associate Medical Director 1 120 120 HSA Work Room 1 350 350 Case Manager Work Room 1 350 350 Assoc. Director of Patient Services 1 120 120 Assoc. Director of Nursing 1 120 120 Immunization Compliance 1 60 60 Immunization Compliance Assistant 1 40 40 Assist Director Student Health Insurance 1 120 120 Senior Insurance Specialist 1 100 100 Insurance Specialist 1 100 100 Purchasing & Inventory Work Station 1 60 60 Nutritionist 1 140 140 Clinical Office (2022 Update) 5 120 600 Staff Office(2022 Update) 5 120 600 Subtotal NSF 3,400 Staff Support Staff Support / Clinical Pods Kitchen 5 60 300 Staff Break / Lunch Room 5 200 1,000 Staff Toilet 5 60 300 Lockers 5 75 375 Shared Medium Conference Room 1 200 200 Multi-purpose/Training 1 600 600 Medical Record Storage 1 70 70 General Office Storage 1 70 70 Inventory Storage and Break down 1 400 400 Janitor's Closet 5 70 350 IT/Data 3 150 450 Mail Nook 1 70 70 Subtotal NSF 4,185 Total Medical Services Total NSF 29,945 Total Department DGSF (x1.5 Dept. Grossing Factor) 44,918 Total Building GSF (x1.25 Building Grossing Factor) 56,147 TOTAL HEALTH 2 PROGRAM (GSF) 71,756
ROOM LIST: HEALTH 2 (cont’d) COLUMBIA UNIVERSITY SITE 1 PLANNING + ZONING STUDY 1.9.2023 181
PRELIMINARY
Health 3 COLUMBIA HEALTH - RIGHT SIZED - 107,950 GSF Quantity NSF/Room Total NSF Columbia Health Administration Staff Offices Chief of Administration 1 220 220 Associate VP & Medical Director 1 220 220 Admin Assistant 1 70 70 Operations Managers 1 70 70 Research Managers 1 70 70 IT office 2 70 140 IT Workroom 3 80 240 Consult Room 1 120 120 Offices (2022 Update) 8 120 960 Workstations (2022 Update) 4 70 280 Team Room (2022 Update) 1 240 240 Subtotal NSF 2,630 Staff Support Medium Conference Room 1 240 240 General Storage 1 70 70 Shared Storage 1 150 150 Kitchen 1 60 60 Staff Break/ Lunch Room 1 100 100 Staff Toilet 2 60 120 IT Data 1 120 120 Subtotal NSF 860 Total Columbia Health / Administration Total NSF 3,490 Total Department DGSF (x1.35 Dept. Grossing Factor) 4,712 Total Building GSF (x1.25 Building Grossing Factor) 5,889 Medical Services Public spaces Flex Check in/out Station 8 60 480 Kiosk Stations 8 30 240 Copy Room 1 70 70 Waiting - Healthy 1 650 650 Waiting - Sick 1 350 350 Waiting Toilet - Healthy 6 60 360 Waiting Toilet - Sick 3 60 180 Emergency Waiting Room 1 120 120 Emergency Waiting Toilet 1 60 60 Subtotal NSF 2,510 Clinical and Clinical Support Clinical Team Pods Exam - Provider 24 120 2,880 Exam - Reproductive Health / Special Use 8 140 1,120 Exam - Nursing 8 120 960 Treatment Room 4 140 560 Observation 4 120 480 Rest and Recovery 4 120 480 Dedicated toilet for R&R 4 60 240 Patient Toilet 8 60 480 Phlebotomy 4 80 320 Allergy / Immunization / travel Med 1 120 120 Sub-Waiting 4 90 360 Nurse Station 4 200 800 Team Work / Collaboration Room 4 350 1,400 Equipement Alcove - Crash Cart 4 30 120 Med Station 4 60 240 Microscope Room 4 60 240 Clean Supply 4 120 480 perEwingColeReportdatedJune17,2020with2022updatesasnoted PRELIMINARY ROOM LIST: HEALTH 3 182
Equipement 4 120 480 Soiled Holding Room 4 100 400 Shared Lab 1 800 800 Lab Box Location 1 40 40 Meds Room 1 120 120 Trash Holding Room 1 100 100 Subtotal NSF 13,220 Staff Offices Clinical Pods Behavorial Health Office 4 140 560 Shared Nursing Office 4 160 640 Shared Medical Director 1 220 220 Associate Medical Director 1 120 120 HSA Work Room 1 280 280 Case Manager Work Room 1 280 280 Assoc. Director of Patient Services 1 120 120 Assoc. Director of Nursing 1 120 120 Immunization Compliance 1 60 60 Immunization Compliance Assistant 1 40 40 Assist Director Student Health Insurance 1 120 120 Senior Insurance Specialist 1 100 100 Insurance Specialist 1 100 100 Purchasing & Inventory Work Station 1 60 60 Nutritionist 1 140 140 Clinical Office (2022 Update) 5 120 600 Staff Office(2022 Update) 5 120 600 Subtotal NSF 4,160 Staff Support Clinical Pods Kitchen 4 60 240 Staff Break / Lunch Room 4 200 800 Staff Toilet 4 60 240 Lockers 4 75 300 Shared Medium Conference Room 1 200 200 Multi-purpose/Training 1 600 600 Medical Record Storage 1 70 70 General Office Storage 1 70 70 Inventory Storage and Break down 1 400 400 Janitor's Closet 1 70 70 IT/Data 1 150 150 Mail Nook 1 70 70 Subtotal NSF 3,210 Total Medical Services Total NSF 23,100 Total Department DGSF (x1.5 Dept. Grossing Factor) 34,650 Total Building GSF (x1.25 Building Grossing Factor) 43,313 Counseling & Psychological Services Public spaces Reception Flex Check in/out Station 4 60 240 Kiosk Stations 2 30 60 Copy Room 1 70 70 Waiting A 20 25 500 Waiting B 20 25 500 Waiting Toilet 4 60 240 Subtotal NSF 1,610 Therapy Executive Director's Offce 1 220 220 Director of Clinical Services 1 200 200 Associate Director of Post Doc Training 1 200 200 PRELIMINARY ROOM LIST: HEALTH 3 (cont’d) COLUMBIA UNIVERSITY SITE 1 PLANNING + ZONING STUDY 1.9.2023 183

PRELIMINARY ROOM LIST: HEALTH 3 (cont’d)

Associate Director of Outreach 1 140 140 Associate Director of Eating Disorders 1 140 140 Associate Director of Operations 1 120 120 Senior Psychiatrist Office 3 175 525 Psychiatrist Office (Psychiatrist, Senior Psychiatrist) 5 140 700 Counseling Office (Psychologist, Senior Psychologist) 29 140 4,060 Social Worker Office 3 120 360 Tele-counseling Office 2 250 500 Group Room 1 800 800 Large Group/Workshop 2 100 200 Quiet/Observation 2 60 120 Clinical Provider (2022 Update) 9 140 1,260 Subtotal NSF 9,545 Staff Offices Support Staff Work Office 2 70 140 Administrative Office (2022 Update) 3 120 360 Subtotal NSF 500 Support Support Medium Conference 1 500 500 Shared Library 1 70 70 Medical Record Storage 1 70 70 General Storage 2 70 140 Kitchen 1 100 100 Staff Break/Lunch Room 1 300 300 Staff Toilet 4 60 240 Janitor's Closet 1 70 70 It/Data 1 140 140 Subtotal NSF 1,630 Total Counseling & Psychological Services Total NSF 13,285 Total Department DGSF (x1.4 Dept. Grossing Factor) 18,599 Total Building GSF (x1.25 Building Grossing Factor) 23,249 Disability Services Public Spaces Flex Check in/out Station 2 60 120 Kiosk Stations 0 50 0 Copy Room 1 70 70 Adm Coordinator 1 60 60 Waiting 1 360 360 Waiting Toilet 2 60 120 Subtotal NSF 730 Staff Offices Executives Director 1 220 220 Learning Specialist 1 200 200 Associate Director 1 120 120 Assoc. Dir. Of Testing Accomodations 1 120 120 Testing Accomodations Manager 1 280 280 Associate Director of Registration 1 120 120 Associate Director of Operations 1 120 120 Associate Director of Case Management 1 120 120 Coordinator 7 120 840 Staff Office 2 120 240 Non-testing Accomodations Manager 1 120 120 Graduate Assistant Shared Workroom 1 480 480 Asst. Technology Specialist 2 140 280 Director of Campus Access 1 120 120 Staff Office (2022 Update) 8 120 960 Staff Workstation (2022 Update) 2 70 140 Subtotal NSF 4,480 Staff Support Conference/Collaboration/Strategy 1 450 450 Small Conference 1 120 120 Record Storage 1 70 70
184

PRELIMINARY ROOM LIST: HEALTH 3 (cont’d)

General Storage 1 70 70 Kitchen 1 70 70 Staff Break/Lunch Room 1 225 225 Staff Toilet 2 60 120 Student Staff Lockers 20 5 100 IT/DATA 1 140 140 Subtotal NSF 1,365 Testing Staff Work Room (Grand Central) 1 300 300 Printing and Sanning Station 1 100 100 Private Testing Room 5 80 400 Large Testing 1 3,000 3,000 Small Testing Room 1 2,000 2,000 Student Lockers 200 5 1,000 Testing Equipment Storage 1 200 200 Accomodations Equipement Storage 1 200 200 Student Toilet 4 60 240 Subtotal NSF 7,440 Total Disability Services Total NSF - Admin 6,575 Total Department DGSF (x1.4 Dept. Grossing Factor) 9,205 Total NSF - Testing 7,440 Total Department DGSF (x1.2 Dept. Grossing Factor) 8,928 Total DGSF - Disability Services 18,133 Total Building GSF (x1.25 Building Grossing Factor) 22,666 Sexual Violence Response Public Spaces Flex Check In/Out - Public Services 2 60 120 Flex Check In/Out - Direct Services 2 60 120 Copy Room 1 70 70 Waiting Area - Public Services 6 25 150 Waiting Area - Direct Services 6 25 150 Waiting Toilet 1 60 60 Subtotal NSF 670 Staff Offices Public Services Executive Director 1 220 220 Associate Director of Operations 1 120 120 Peer Advocate/Satellite Staff Hotelling 1 120 120 Student and Staff Volunteer Suite 1 200 200 Direct Services Associate Director - Training and Prevention 1 120 120 Associate Director - Direct Services 1 120 120 Assistant Director of Direct Services 1 120 120 Survivor Advocate 2 120 240 Peer Advocate / Satellite Staff Hotelling 1 120 120 Training and Prevention Suite 1 180 180 Staff Office (2022 Update) 3 120 360 Subtotal NSF 1,920 Department Support Public Services Prevention and Outreach Material Library 1 70 70 Public /Student toilet 1 60 60 Record Storage 1 70 70 General Storage 2 70 140 Direct Services Student/Staff Respite/Quiet Room 1 60 60 Direct Services Toilet 1 60 60 Survivor Care Package Shopping/Storage 1 150 150 Shared Medium Conference 1 200 200 Kitchen 1 70 70 Staff Break/Lunch Room 1 240 240
COLUMBIA UNIVERSITY SITE 1 PLANNING + ZONING STUDY 1.9.2023 185
Staff Toilet 1 60 60 Staff Lockers 1 60 60 IT/DATA 1 120 120 Subtotal NSF 1,360 Total Sexual Violence Services Total NSF 3,950 Total Department DGSF (x1.4 Dept. Grossing Factor) 5,530 Total Building GSF (x1.25 Building Grossing Factor) 6,913 Alice Health Promotion! Public Services Reception 1 60 60 Copy Room 1 70 70 Waiting Area 1 250 250 Self-Care Station/Library 1 60 60 Public Multi Stall Toilet 0 0 0 Public Toilet 1 60 60 Subtotal NSF 500 Staff Offices Director 1 180 180 Assistant Director - Alice 1 120 120 Associate Director - GHAP 1 140 140 GHAP Consultant 2 120 240 Operations Manager 1 100 100 Health Promotion Specialist 3 120 360 Shared Alice Consult 1 120 120 Student/Volumteer Work Stations 6 30 180 Staff Offices (2022 Update) 4 120 480 Subtotal NSF 1,920 Staff Support Alice Conference/Strategy Work Room 1 400 400 General Storage 3 70 210 Kitchen 1 60 60 Staff Break/Lunch Room 1 120 120 Staff Toilet 2 60 120 Staff Lockers 1 60 60 IT/DATA 1 120 120 Subtotal NSF 1,090 Total Alice Health Promotion Total NSF 3,510 Total Department DGSF (x1.35 Dept. Grossing Factor) 4,739 Total Building GSF (x1.25 Building Grossing Factor) 5,923 TOTAL HEALTH 3 PROGRAM (GSF) 107,953
HEALTH
186
PRELIMINARY ROOM LIST:
3 (cont’d)

PRELIMINARY ROOM LIST: CAMPUS RECREATION

Columbia University - Site 1

Preliminary Room List

Campus Recreation

Student Wellbeing Center ( 36,500 GSF) perCampusRecreationUserMeetingOct27,2021and2019DodgeGymAreaProgram

Columbia University - Site 1

Quantity NSF/Room Recreation Area Cardio area 1 10000 Free weight area 1 10000 Subtotal NSF Collaborative Wellness Center Study Lounge - 70 person 1 3000 Meditation Room - 25 person 2 500 Mindfulness/ Movement Studios 2 800 Juice Bar/Café/Social Lounge 1 1500 Subtotal NSF Lockers and Changing Women 1 1250 Men 1 1250 Subtotal NSF Support Staff Offices 3 120 Equipment Room 1 200 Storage Room 1 200 Subtotal NSF Total Medical Services Total NSF Total Building GSF (x1.2 Grossing Factor)
Preliminary Room
Total NSF 10000 10000 20,000 3000 1000 1600 1500 7,100 1250 1250 2,500 360 200 200 760 30,360 36,432 COLUMBIA UNIVERSITY SITE 1 PLANNING + ZONING STUDY 1.9.2023 187
List
188

Appendix 5.6 Scenario Data

COLUMBIA UNIVERSITY SITE 1 PLANNING + ZONING STUDY 1.9.2023 189

SCENARIO DATA

SCENARIO A1 FLOOR AREAS

LEVELGFAZFA %ZFA

Level 026777 SF00 SF

Level 126777 SF8021421 SF

Level 213982 SF9513283 SF

Level 313982 SF9513283 SF

Level 413982 SF9513283 SF

Level 511855 SF9511262 SF

Level 611855 SF9511262 SF

Level 711855 SF9511262 SF

Level 811855 SF9511262 SF

Level 96891 SF956546 SF

Level 106891 SF956546 SF

Level 116891 SF956546 SF

Level 126891 SF956546 SF

Level 136891 SF956546 SF

Level 146891 SF956546 SF

Level 156891 SF956546 SF

Level 166891 SF956546 SF

Level 176891 SF956546 SF

Level 186891 SF956546 SF 211827 SF171781 SF

SCENARIO A1 PROGRAM AREAS

SCENARIO A1 CELLAR

LEVELGFA USE

Level 02000 SFCOMMON

Level 015777 SFDINING

Level 09000 SFRESIDENTIAL (600 BEDS)

26777 SF

SCENARIO A1 GROUND FLOOR

LEVELGFA USE

Level 13000 SFCOMMON

Level 110000 SFDINING

Level 113777 SFRESIDENTIAL (600 BEDS)

26777 SF

USE TARGETSCENARIO

COMMON 5000 SF 5000 SF

DINING 26580 SF 25777 SF

RESIDENTIAL (600 BEDS)180000 SF 181050 SF

211827 SF

SCENARIO

A2 FLOOR AREAS

LEVELGFA ZFA % ZFA

Level 026777 SF0 0 SF

Level 126777 SF8021421 SF

Level 215510 SF9514734 SF

Level 3N8418 SF957997 SF

Level 3S7092 SF956737 SF

Level 4N8418 SF957997 SF

Level 4S4964 SF954716 SF

Level 5N6891 SF956546 SF

Level 5S4964 SF954716 SF

Level 6N6891 SF956546 SF

Level 6S4964 SF954716 SF

Level 7N6891 SF956546 SF

Level 7S4964 SF954716 SF

Level 8N6891 SF956546 SF

Level 9N6891 SF956546 SF

Level 10N6891 SF956546 SF

Level 11N6891 SF956546 SF

Level 12N6891 SF956546 SF

Level 13N6891 SF956546 SF

Level 14N6891 SF956546 SF

Level 15N6891 SF956546 SF

Level 16N6891 SF956546 SF

Level 17N6891 SF956546 SF

Level 18N6891 SF956546 SF

Level 19N6891 SF956546 SF 216209 SF175944 SF

SCENARIO

SCENARIO A2 CELLAR

LEVELGFAZFAUSE

Level 02000 SF0 SFCOMMON

Level 015777 SF0 SFDINING

Level 09000 SF0 SFRESIDENTIAL

26777 SF0 SF

SCENARIO A2 GROUND FLOOR

LEVELGFAZFAUSE

Level 13000 SF2400 SFCOMMON

Level 113777 SF11021 SFRECREATION

Level 110000 SF8000 SFDINING 26777 SF21421 SF

SCENARIO A1 NORTH TOWER

LEVELGFA ZFA % ZFA USE

Level 26891 SF956546 SFRESIDENTIAL (600 BEDS)

Level 36891 SF956546 SFRESIDENTIAL (600 BEDS)

Level 46891 SF956546 SFRESIDENTIAL (600 BEDS)

Level 56891 SF956546 SFRESIDENTIAL (600 BEDS)

Level 66891 SF956546 SFRESIDENTIAL (600 BEDS)

Level 76891 SF956546 SFRESIDENTIAL (600 BEDS)

Level 86891 SF956546 SFRESIDENTIAL (600 BEDS)

Level 96891 SF956546 SFRESIDENTIAL (600 BEDS)

Level 106891 SF956546 SFRESIDENTIAL (600 BEDS)

Level 116891 SF956546 SFRESIDENTIAL (600 BEDS)

Level 126891 SF956546 SFRESIDENTIAL (600 BEDS)

Level 136891 SF956546 SFRESIDENTIAL (600 BEDS)

Level 146891 SF956546 SFRESIDENTIAL (600 BEDS)

Level 156891 SF956546 SFRESIDENTIAL (600 BEDS)

Level 166891 SF956546 SFRESIDENTIAL (600 BEDS)

Level 176891 SF956546 SFRESIDENTIAL (600 BEDS)

Level 186891 SF956546 SFRESIDENTIAL (600 BEDS) 117142 SF111285 SF

SCENARIO A1 SOUTH TOWER

LEVELGFA ZFA % ZFA USE

Level 27092 SF956737 SFRESIDENTIAL (600 BEDS)

Level 37092 SF956737 SFRESIDENTIAL (600 BEDS)

Level 47092 SF956737 SFRESIDENTIAL (600 BEDS)

Level 54964 SF954716 SFRESIDENTIAL (600 BEDS)

Level 64964 SF954716 SFRESIDENTIAL (600 BEDS)

Level 74964 SF954716 SFRESIDENTIAL (600 BEDS)

Level 84964 SF954716 SFRESIDENTIAL (600 BEDS) 41132 SF39075 SF

A.1 A.2

SCENARIO A2 NORTH TOWER

LEVELGFAZFAUSE

Level 28418 SF7997 SFRESIDENTIAL

Level 3N8418 SF7997 SFRESIDENTIAL

Level 4N8418 SF7997 SFRESIDENTIAL

Level 5N6891 SF6546 SFRESIDENTIAL

Level 6N6891 SF6546 SFRESIDENTIAL

Level 7N6891 SF6546 SFRESIDENTIAL

Level 8N6891 SF6546 SFRESIDENTIAL

Level 9N6891 SF6546 SFRESIDENTIAL

Level 10N6891 SF6546 SFRESIDENTIAL

Level 11N6891 SF6546 SFRESIDENTIAL

Level 12N6891 SF6546 SFRESIDENTIAL

Level 13N6891 SF6546 SFRESIDENTIAL

Level 14N6891 SF6546 SFRESIDENTIAL

Level 15N6891 SF6546 SFRESIDENTIAL

Level 16N6891 SF6546 SFRESIDENTIAL

Level 17N6891 SF6546 SFRESIDENTIAL

Level 18N6891 SF6546 SFRESIDENTIAL

Level 19N6891 SF6546 SFRESIDENTIAL 128615 SF122185 SF

SCENARIO A2 SOUTH TOWER

LEVELGFAZFAUSE

Level 27092 SF6737 SFRECREATION

Level 3S7092 SF6737 SFRECREATION

Level 4S4964 SF4716 SFRESIDENTIAL

Level 5S4964 SF4716 SFRESIDENTIAL

Level 6S4964 SF4716 SFRESIDENTIAL

PROGRAM AREAS
USE 5000 SF2400 SFCOMMON 25777 SF8000 SFDINING 27960 SF24495 SFRECREATION 157472 SF141049 SFRESIDENTIAL 216209 SF175944 SF
A2
GFAZFA
Level 7S4964 SF4716 SFRESIDENTIAL 34040 SF32338 SF 190

SCENARIO A3 FLOOR AREAS

LEVELGFA ZFA

% ZFA

Level 026777 SF00 SF

Level 126777 SF8021421 SF

Level 215510 SF9514734 SF

Level 3N8418 SF957997 SF

Level 3S7092 SF956737 SF

Level 4N8418 SF957997 SF

Level 4S4964 SF954716 SF

Level 5N6891 SF956546 SF

Level 5S4964 SF954716 SF

Level 6N6891 SF956546 SF

Level 6S4964 SF954716 SF

Level 7N6891 SF956546 SF

Level 7S3564 SF953386 SF

Level 8N6891 SF956546 SF

Level 8S3564 SF953386 SF

Level 9N6891 SF956546 SF

Level 9S3564 SF953386 SF

Level 10N6891 SF956546 SF

Level 10S3564 SF953386 SF

Level 11N6891 SF956546 SF

Level 11S3564 SF953386 SF

Level 12N6891 SF956546 SF

Level 12S3564 SF953386 SF

Level 13N6891 SF956546 SF

Level 13S3564 SF953386 SF

Level 14N6891 SF956546 SF

Level 15N6891 SF956546 SF

Level 16N6891 SF956546 SF 215521 SF175291 SF

SCENARIO A3 PROGRAM AREAS

USEGFAZFA

COMMON5000 SF2400 SF

DINING25777 SF8000 SF

HEALTH65301 SF56745 SF

RESIDENTIAL119444 SF108146 SF

215521 SF175291 SF

SCENARIO A4 FLOOR AREAS

LEVELGFA ZFA % ZFA

Level 026777 SF00 SF

Level 126777 SF8021421 SF

Level 215510 SF9514734 SF

Level 3N8418 SF957997 SF

Level 3S7092 SF956737 SF

Level 4N6891 SF956546 SF

Level 4S4964 SF954716 SF

Level 5N6891 SF956546 SF

Level 5S4964 SF954716 SF

Level 6N6891 SF956546 SF

Level 6S4964 SF954716 SF

Level 7N6891 SF956546 SF

Level 7S3564 SF953386 SF

Level 8N6891 SF956546 SF

Level 8S3564 SF953386 SF

Level 9N6891 SF956546 SF

Level 9S3564 SF953386 SF

Level 10N6891 SF956546 SF

Level 10S3564 SF953386 SF

Level 11N6891 SF956546 SF

Level 11S3564 SF953386 SF

Level 12N6891 SF956546 SF

Level 13N6891 SF956546 SF

Level 14N6891 SF956546 SF

Level 15N6891 SF956546 SF

Level 16N6891 SF956546 SF

Level 17N6891 SF956546 SF 213756 SF173614 SF

SCENARIO A4 PROGRAM AREAS

GFAZFA USE

5000 SF2400 SFCOMMON

25777 SF8000 SFDINING

58173 SF49973 SFHEALTH

23727 SF22541 SFRECREATION

101079 SF90700 SFRESIDENTIAL

213756 SF173614 SF

SCENARIO A3 CELLAR

LEVELGFAZFAUSE

Level 02000 SF0 SFCOMMON

Level 015777 SF0 SFDINING

Level 04500 SF0 SFHEALTH

Level 04500 SF0 SFRESIDENTIAL

26777 SF0 SF

SCENARIO A3 GROUND FLOOR

LEVELGFAZFAUSE

Level 13000 SF2400 SFCOMMON

Level 110000 SF8000 SFDINING

Level 16776 SF5421 SFHEALTH

Level 17000 SF5600 SFRESIDENTIAL

26777 SF21421 SF

SCENARIO A4 CELLAR

LEVELGFAZFAUSE

Level 02000 SF0 SFCOMMON

Level 015777 SF0 SFDINING

Level 04500 SF0 SFHEALTH

Level 04500 SF0 SFRESIDENTIAL

26777 SF0 SF

SCENARIO A4 GROUND FLOOR

LEVELGFAZFAUSE

Level 13000 SF2400 SFCOMMON

Level 16776 SF5421 SFHEALTH

Level 110000 SF8000 SFDINING

Level 17000 SF5600 SFRESIDENTIAL

26777 SF21421 SF

SCENARIO A3 NORTH TOWER

LEVELGFA ZFA % ZFAUSE

Level 28418 SF957997 SFRESIDENTIAL

Level 3N8418 SF957997 SFRESIDENTIAL

Level 4N8418 SF957997 SFRESIDENTIAL

Level 5N6891 SF956546 SFRESIDENTIAL

Level 6N6891 SF956546 SFRESIDENTIAL

Level 7N6891 SF956546 SFRESIDENTIAL

Level 8N6891 SF956546 SFRESIDENTIAL

Level 9N6891 SF956546 SFRESIDENTIAL

Level 10N6891 SF956546 SFRESIDENTIAL

Level 11N6891 SF956546 SFRESIDENTIAL

Level 12N6891 SF956546 SFRESIDENTIAL

Level 13N6891 SF956546 SFRESIDENTIAL

Level 14N6891 SF956546 SFRESIDENTIAL

Level 15N6891 SF956546 SFRESIDENTIAL

Level 16N6891 SF956546 SFRESIDENTIAL 107943 SF102546 SF

SCENARIO A3 SOUTH TOWER

LEVELGFA ZFA % ZFAUSE

Level 27092 SF956737 SFHEALTH

Level 3S7092 SF956737 SFHEALTH

Level 4S4964 SF954716 SFHEALTH

Level 5S4964 SF954716 SFHEALTH

Level 6S4964 SF954716 SFHEALTH

Level 7S3564 SF953386 SFHEALTH

Level 8S3564 SF953386 SFHEALTH

Level 9S3564 SF953386 SFHEALTH

Level 10S3564 SF953386 SFHEALTH

Level 11S3564 SF953386 SFHEALTH

Level 12S3564 SF953386 SFHEALTH

Level 13S3564 SF953386 SFHEALTH 54025 SF51324 SF

A.3 A.4

SCENARIO A4 NORTH TOWER

LEVELGFAZFAUSE

Level 28418 SF7997 SFRECREATION

Level 3N8418 SF7997 SFRECREATION

Level 4N6891 SF6546 SFRECREATION

Level 5N6891 SF6546 SFRESIDENTIAL

Level 6N6891 SF6546 SFRESIDENTIAL

Level 7N6891 SF6546 SFRESIDENTIAL

Level 8N6891 SF6546 SFRESIDENTIAL

Level 9N6891 SF6546 SFRESIDENTIAL

Level 10N6891 SF6546 SFRESIDENTIAL

Level 11N6891 SF6546 SFRESIDENTIAL

Level 12N6891 SF6546 SFRESIDENTIAL

Level 13N6891 SF6546 SFRESIDENTIAL

Level 14N6891 SF6546 SFRESIDENTIAL

Level 15N6891 SF6546 SFRESIDENTIAL

Level 16N6891 SF6546 SFRESIDENTIAL

Level 17N6891 SF6546 SFRESIDENTIAL 113307 SF107641 SF

SCENARIO A4 SOUTH TOWER

LEVELGFAZFAUSE

Level 27092 SF6737 SFHEALTH

Level 3S7092 SF6737 SFHEALTH

Level 4S4964 SF4716 SFHEALTH

Level 5S4964 SF4716 SFHEALTH

Level 6S4964 SF4716 SFHEALTH

Level 7S3564 SF3386 SFHEALTH

Level 8S3564 SF3386 SFHEALTH

Level 9S3564 SF3386 SFHEALTH

Level 10S3564 SF3386 SFHEALTH

Level 11S3564 SF3386 SFHEALTH 46897 SF44552 SF 191

SCENARIO A5 FLOOR AREAS

LEVELGFA ZFA

% ZFA

Level 026777 SF00 SF

Level 126777 SF8021421 SF

Level 216689 SF9515855 SF

Level 3N9597 SF959118 SF

Level 3S7092 SF956737 SF

Level 4N9597 SF959118 SF

Level 4S7092 SF956737 SF

Level 5N9597 SF959118 SF

Level 5S4964 SF954716 SF

Level 6N9597 SF959118 SF

Level 6S4964 SF954716 SF

Level 7N6891 SF956546 SF

Level 7S4964 SF954716 SF

Level 8N6891 SF956546 SF

Level 8S4964 SF954716 SF

Level 9N6891 SF956546 SF

Level 9S3564 SF953386 SF

Level 10N6891 SF956546 SF

Level 10S3564 SF953386 SF

Level 11N6891 SF956546 SF

Level 11S3564 SF953386 SF

Level 12N6891 SF956546 SF

Level 12S3564 SF953386 SF

Level 13N6891 SF956546 SF

Level 13S3564 SF953386 SF

Level 14S3564 SF953386 SF

Level 15S3564 SF953386 SF 215856 SF175609 SF

SCENARIO A5 PROGRAM AREAS

GFAZFAUSE

5000 SF2400 SFCOMMON

25777 SF8000 SFDINING

107498 SF96832 SFHEALTH

77581 SF68377 SFRESIDENTIAL

215856 SF175609 SF

SCENARIO B1 FLOOR AREAS

LEVELGFAZFA %ZFA

Level 026777 SF00 SF

Level 126777 SF8021421 SF

Level 213006 SF9512356 SF

Level 38510 SF958085 SF

Level 48510 SF958085 SF

Level 58510 SF958085 SF

Level 68510 SF958085 SF

Level 78510 SF958085 SF

Level 88510 SF958085 SF

Level 98510 SF958085 SF

Level 108510 SF958085 SF

Level 118510 SF958085 SF

Level 128510 SF958085 SF

Level 138510 SF958085 SF

Level 148510 SF958085 SF

Level 158510 SF958085 SF

Level 168510 SF958085 SF

Level 178510 SF958085 SF

Level 188510 SF958085 SF

Level 198510 SF958085 SF

211229 SF171214 SF

SCENARIO B1 PROGRAM AREAS

USEGFAZFA

COMMON5000 SF2400 SF

DINING 25777 SF8000 SF

RESIDENTIAL180453 SF160814 SF

211229 SF171214 SF

SCENARIO A5 CELLAR

LEVELGFA ZFA % ZFAUSE

Level 02000 SF00 SFCOMMON

Level 015777 SF00 SFDINING

Level 04500 SF00 SFHEALTH

Level 04500 SF00 SFRESIDENTIAL

26777 SF0 SF

SCENARIO A5 GROUND FLOOR

LEVELGFA ZFA % ZFAUSE

Level 13000 SF802400 SFCOMMON

Level 110000 SF808000 SFDINING

Level 17000 SF805600 SFRESIDENTIAL

Level 16776 SF805421 SFHEALTH

26777 SF21421 SF

SCENARIO A5 NORTH TOWER

LEVELGFA ZFA % ZFAUSE

Level 29597 SF959118 SFHEALTH

Level 3N9597 SF959118 SFHEALTH

Level 4N9597 SF959118 SFHEALTH

Level 5N9597 SF959118 SFHEALTH

Level 6N9597 SF959118 SFHEALTH

Level 7N6891 SF956546 SFHEALTH

Level 8N6891 SF956546 SFHEALTH

Level 9N6891 SF956546 SFHEALTH

Level 10N6891 SF956546 SFHEALTH

Level 11N6891 SF956546 SFHEALTH

Level 12N6891 SF956546 SFHEALTH

Level 13N6891 SF956546 SFHEALTH 96222 SF91411 SF

SCENARIO A5 SOUTH TOWER

LEVELGFA ZFA % ZFAUSE

Level 27092 SF956737 SFRESIDENTIAL

Level 3S7092 SF956737 SFRESIDENTIAL

Level 4S7092 SF956737 SFRESIDENTIAL

Level 5S4964 SF954716 SFRESIDENTIAL

Level 6S4964 SF954716 SFRESIDENTIAL

Level 7S4964 SF954716 SFRESIDENTIAL

Level 8S4964 SF954716 SFRESIDENTIAL

Level 9S3564 SF953386 SFRESIDENTIAL

Level 10S3564 SF953386 SFRESIDENTIAL

Level 11S3564 SF953386 SFRESIDENTIAL

Level 12S3564 SF953386 SFRESIDENTIAL

Level 13S3564 SF953386 SFRESIDENTIAL

Level 14S3564 SF953386 SFRESIDENTIAL

Level 15S3564 SF953386 SFRESIDENTIAL 66081 SF62777 SF

A.5 B.1

SCENARIO B1 CELLAR

LEVELGFAZFAUSE

Level 02000 SF0 SFCOMMON

Level 015777 SF0 SFDINING

Level 09000 SF0 SFRESIDENTIAL 26777 SF0 SF

SCENARIO B1 GROUND FLOOR

LEVELGFAZFAUSE

Level 13000 SF2400 SFCOMMON

Level 110000 SF8000 SFDINING

Level 113777 SF11021 SFRESIDENTIAL 26777 SF21421 SF

SCENARIO B1 TOWER

LEVELGFAZFA %ZFAUSE

Level 213006 SF9512356 SFRESIDENTIAL

Level 38510 SF958085 SFRESIDENTIAL

Level 48510 SF958085 SFRESIDENTIAL

Level 58510 SF958085 SFRESIDENTIAL

Level 68510 SF958085 SFRESIDENTIAL

Level 78510 SF958085 SFRESIDENTIAL

Level 88510 SF958085 SFRESIDENTIAL

Level 98510 SF958085 SFRESIDENTIAL

Level 108510 SF958085 SFRESIDENTIAL

Level 118510 SF958085 SFRESIDENTIAL

Level 128510 SF958085 SFRESIDENTIAL

Level 138510 SF958085 SFRESIDENTIAL

Level 148510 SF958085 SFRESIDENTIAL

Level 158510 SF958085 SFRESIDENTIAL

Level 168510 SF958085 SFRESIDENTIAL

Level 178510 SF958085 SFRESIDENTIAL

Level 188510 SF958085 SFRESIDENTIAL

Level 198510 SF958085 SFRESIDENTIAL 157676 SF 149792 SF 192

SCENARIO B2 FLOOR AREAS

LEVELGFA ZFA % ZFA

Level 026777 SF00 SF

Level 126777 SF8021421 SF

Level 213107 SF9512451 SF

Level 313107 SF9512451 SF

Level 48510 SF958085 SF

Level 58510 SF958085 SF

Level 68510 SF958085 SF

Level 78510 SF958085 SF

Level 88510 SF958085 SF

Level 98510 SF958085 SF

Level 108510 SF958085 SF

Level 118510 SF958085 SF

Level 128510 SF958085 SF

Level 138510 SF958085 SF

Level 148510 SF958085 SF

Level 158510 SF958085 SF

Level 168510 SF958085 SF

Level 178510 SF958085 SF

Level 188510 SF958085 SF

Level 198510 SF958085 SF 215926 SF175676 SF

SCENARIO B2 PROGRAM AREAS

GFAZFA USE

5000 SF2400 SFCOMMON

25777 SF8000 SFDINING

26883 SF23473 SFRECREATION

158267 SF141803 SFRESIDENTIAL 215926 SF175676 SF

SCENARIO B3 FLOOR AREAS

LEVELGFAZFA %ZFA

Level 026777 SF0 0 SF

Level 126777 SF8021421 SF

Level 214962 SF9514214 SF

Level 314962 SF9514214 SF

Level 414962 SF9514214 SF

Level 513107 SF9512451 SF

Level 68510 SF958085 SF

Level 78510 SF958085 SF

Level 88510 SF958085 SF

Level 98510 SF958085 SF

Level 108510 SF958085 SF

Level 118510 SF958085 SF

Level 128510 SF958085 SF

Level 138510 SF958085 SF

Level 148510 SF958085 SF

Level 158510 SF958085 SF

Level 168510 SF958085 SF

SCENARIO B2 CELLAR

LEVELGFA ZFA % ZFAUSE

Level 02000 SF00 SFCOMMON

Level 015777 SF00 SFDINING

Level 09000 SF00 SFRESIDENTIAL

26777 SF 0 SF

SCENARIO B2 GROUND FLOOR

LEVELGFA ZFA % ZFAUSE

Level 13000 SF802400 SFCOMMON

Level 113777 SF8011021 SFRECREATION

Level 110000 SF808000 SFDINING

26777 SF 21421 SF

SCENARIO B2 TOWER

LEVELGFA ZFA % ZFAUSE

Level 213107 SF9512451 SFRECREATION

Level 313107 SF9512451 SFRESIDENTIAL

Level 48510 SF958085 SFRESIDENTIAL

Level 58510 SF958085 SFRESIDENTIAL

Level 68510 SF958085 SFRESIDENTIAL

Level 78510 SF958085 SFRESIDENTIAL

Level 88510 SF958085 SFRESIDENTIAL

Level 98510 SF958085 SFRESIDENTIAL

Level 108510 SF958085 SFRESIDENTIAL

Level 118510 SF958085 SFRESIDENTIAL

Level 128510 SF958085 SFRESIDENTIAL

Level 138510 SF958085 SFRESIDENTIAL

Level 148510 SF958085 SFRESIDENTIAL

Level 158510 SF958085 SFRESIDENTIAL

Level 168510 SF958085 SFRESIDENTIAL

Level 178510 SF958085 SFRESIDENTIAL

Level 188510 SF958085 SFRESIDENTIAL

Level 198510 SF958085 SFRESIDENTIAL 162373 SF154255 SF

SCENARIO B3 CELLAR

LEVELGFAZFA %ZFAUSE

Level 02000 SF00 SFCOMMON

Level 04500 SF00 SFHEALTH

Level 015777 SF00 SFDINING

Level 04500 SF00 SFRESIDENTIAL 26777 SF0 SF

SCENARIO B3 GROUND FLOOR

LEVELGFAZFA %ZFAUSE

Level 13000 SF802400 SFCOMMON

Level 110000 SF808000 SFDINING

Level 17000 SF805600 SFRESIDENTIAL

Level 16776 SF805421 SFHEALTH 26777 SF21421 SF

SCENARIO B3 PROGRAM AREAS GFAZFAUSE

5000 SF2400 SFCOMMON 25777 SF8000 SFDINING

56161 SF48062 SFHEALTH

126727 SF115065 SFRESIDENTIAL 213665 SF173527 SF

B.2 B.3

SCENARIO B3 TOWER

LEVELGFAZFA %ZFAUSE

Level 214962 SF9514214 SFHEALTH

Level 314962 SF9514214 SFHEALTH

Level 414962 SF9514214 SFHEALTH

Level 513107 SF9512451 SFRESIDENTIAL

Level 68510 SF958085 SFRESIDENTIAL

Level 78510 SF958085 SFRESIDENTIAL

Level 88510 SF958085 SFRESIDENTIAL

Level 98510 SF958085 SFRESIDENTIAL

Level 108510 SF958085 SFRESIDENTIAL

Level 118510 SF958085 SFRESIDENTIAL

Level 128510 SF958085 SFRESIDENTIAL

Level 138510 SF958085 SFRESIDENTIAL

Level 148510 SF958085 SFRESIDENTIAL

Level 158510 SF958085 SFRESIDENTIAL

Level 168510 SF958085 SFRESIDENTIAL

Level 178510 SF958085 SFRESIDENTIAL 160112 SF 152106 SF

Level 178510 SF958085 SF 213665 SF 173527 SF COLUMBIA UNIVERSITY SITE 1 PLANNING + ZONING STUDY 1.9.2023 193

SCENARIO B4 FLOOR AREAS

LEVELGFA ZFA % ZFA

Level 026777 SF00 SF

Level 126777 SF8021421 SF

Level 213107 SF9512451 SF

Level 313107 SF9512451 SF

Level 413107 SF9512451 SF

Level 513107 SF9512451 SF

Level 613107 SF9512451 SF

Level 78510 SF958085 SF

Level 88510 SF958085 SF

Level 98510 SF958085 SF

Level 108510 SF958085 SF

Level 118510 SF958085 SF

Level 128510 SF958085 SF

Level 138510 SF958085 SF

Level 148510 SF958085 SF

Level 158510 SF958085 SF

Level 168510 SF958085 SF

Level 178510 SF958085 SF 212696 SF 172607 SF

SCENARIO B4 PROGRAM AREAS

GFA ZFA USE

5000 SF2400 SFCOMMON

25777 SF8000 SFDINING

56927 SF49805 SFHEALTH

26883 SF23473 SFRECREATION

98110 SF88930 SFRESIDENTIAL

212696 SF172607 SF

SCENARIO B5 FLOOR AREAS

LEVELGFA ZFA % ZFA

Level 026777 SF0 0 SF

Level 126777 SF8021421 SF

Level 217362 SF9516494 SF

Level 317362 SF9516494 SF

Level 417362 SF9516494 SF

Level 513107 SF9512451 SF

Level 613107 SF9512451 SF

Level 78510 SF958085 SF

Level 88510 SF958085 SF

Level 98510 SF958085 SF

Level 108510 SF958085 SF

Level 118510 SF958085 SF

Level 128510 SF958085 SF

Level 138510 SF958085 SF

Level 148510 SF958085 SF

Level 158510 SF958085 SF

Level 168510 SF958085 SF 216951 SF176650 SF

SCENARIO B5 PROGRAM AREAS

GFAZFA USE 5000 SF2400 SFCOMMON

SF8000 SFDINING

SF79804 SFHEALTH

SF86445 SFRESIDENTIAL

SF176650 SF

SCENARIO B4 CELLAR

LEVELGFA ZFA % ZFAUSE

Level 02000 SF00 SFCOMMON

Level 015777 SF00 SFDINING

Level 04500 SF00 SFHEALTH

Level 04500 SF00 SFRESIDENTIAL 26777 SF 0 SF

SCENARIO B4 GROUND FLOOR

LEVELGFA ZFA % ZFAUSE

Level 113777 SF8011021 SFRECREATION

Level 13000 SF802400 SFCOMMON

Level 110000 SF808000 SFDINING

26777 SF 21421 SF

SCENARIO B5 CELLAR

LEVELGFA ZFA % ZFAUSE

Level 02000 SF00 SFCOMMON

Level 015777 SF00 SFDINING

Level 04500 SF00 SFHEALTH

Level 04500 SF00 SFRESIDENTIAL 26777 SF 0 SF

SCENARIO B5 GROUND FLOOR

LEVELGFA ZFA % ZFAUSE

Level 13000 SF802400 SFCOMMON

Level 110000 SF808000 SFDINING

Level 17000 SF805600 SFRESIDENTIAL

Level 16776 SF805421 SFHEALTH 26777

Level

Level

Level

Level

Level

Level

Level

Level

SCENARIO B4 TOWER

LEVELGFA ZFA % ZFAUSE

Level 213107 SF9512451 SFRECREATION

Level 313107 SF9512451 SFHEALTH

Level 413107 SF9512451 SFHEALTH

Level 513107 SF9512451 SFHEALTH

Level 613107 SF9512451 SFHEALTH

Level 78510 SF958085 SFRESIDENTIAL

Level 88510 SF958085 SFRESIDENTIAL

Level 98510 SF958085 SFRESIDENTIAL

Level 108510 SF958085 SFRESIDENTIAL

Level 118510 SF958085 SFRESIDENTIAL

Level 128510 SF958085 SFRESIDENTIAL

Level 138510 SF958085 SFRESIDENTIAL

Level 148510 SF958085 SFRESIDENTIAL

Level 158510 SF958085 SFRESIDENTIAL

Level 168510 SF958085 SFRESIDENTIAL

Level 178510 SF958085 SFRESIDENTIAL 159143 SF151186 SF

B.5

25777
89575
96600
216951
SF 21421 SF SCENARIO B5 TOWER LEVELGFA ZFA % ZFAUSE
217362 SF9516494 SFHEALTH
317362 SF9516494 SFHEALTH Level 417362 SF9516494 SFHEALTH
513107 SF9512451 SFHEALTH
613107 SF9512451 SFHEALTH
Level
Level
Level
Level
78510 SF958085 SFRESIDENTIAL
88510 SF958085 SFRESIDENTIAL
98510 SF958085 SFRESIDENTIAL
108510 SF958085 SFRESIDENTIAL
Level
118510 SF958085 SFRESIDENTIAL
128510 SF958085 SFRESIDENTIAL
138510 SF958085 SFRESIDENTIAL
148510 SF958085 SFRESIDENTIAL
Level
158510 SF958085 SFRESIDENTIAL
168510 SF958085 SFRESIDENTIAL 163398 SF155228 SF B.4
SCENARIO DATA (cont’d) 194

SCENARIO C6 FLOOR AREAS

LEVELGFA ZFA % ZFA

Level 026777 SF00 SF

Level 126027 SF8020821 SF

Level 217734 SF9516848 SF

Level 3N10134 SF959628 SF

Level 3S7600 SF957220 SF

Level 4N10134 SF959628 SF

Level 4S7600 SF957220 SF

Level 5N8609 SF958179 SF

Level 5S5320 SF955054 SF

Level 6N8609 SF958179 SF

Level 6S5320 SF955054 SF

Level 7N6879 SF956535 SF

Level 7S5320 SF955054 SF

Level 8N6879 SF956535 SF

Level 8S5320 SF955054 SF

Level 9N6879 SF956535 SF

Level 9S5320 SF955054 SF

Level 10N6879 SF956535 SF

Level 10S4270 SF954057 SF

Level 11N6879 SF956535 SF 188493 SF149726 SF

SCENARIO C6 PROGRAM AREAS

GFAZFAUSE

5000 SF2400 SFCOMMON

25777 SF8000 SFDINING

157716 SF139326 SFRESIDENTIAL

188493 SF149726 SF

SCENARIO C7 FLOOR

LEVELGFA ZFA % ZFA

Level 026777 SF00 SF

Level 126777 SF8021421 SF

Level 218817 SF9517876 SF

Level 3N11725 SF9511139 SF

Level 3S7092 SF956737 SF

Level 4N11725 SF9511139 SF

Level 4S4964 SF954716 SF

Level 5N9597 SF959118 SF

Level 5S4964 SF954716 SF

Level 6N9597 SF959118 SF

Level 6S4964 SF954716 SF

Level 7N7567 SF957189 SF

Level 7S4964 SF954716 SF

Level 8N7567 SF957189 SF

Level 8S3914 SF953718 SF

Level 9N7567 SF957189 SF

Level 9S3914 SF953718 SF

Level 10N7567 SF957189 SF

SCENARIO C6 CELLAR

LEVELGFA ZFA % ZFAUSE

Level 02000 SF00 SFCOMMON

Level 015777 SF00 SFDINING

Level 09000 SF00 SFRESIDENTIAL

26777 SF0 SF

SCENARIO C6 GROUND FLOOR

LEVELGFA ZFA % ZFAUSE

Level 13000 SF802400 SFCOMMON

Level 110000 SF808000 SFDINING

Level 113026 SF8010421 SFRESIDENTIAL

26027 SF20821 SF

SCENARIO C6 NORTH TOWER

LEVELGFA ZFA % ZFAUSE

Level 210134 SF959628 SFRESIDENTIAL

Level 3N10134 SF959628 SFRESIDENTIAL

Level 4N10134 SF959628 SFRESIDENTIAL

Level 5N8609 SF958179 SFRESIDENTIAL

Level 6N8609 SF958179 SFRESIDENTIAL

Level 7N6879 SF956535 SFRESIDENTIAL

Level 8N6879 SF956535 SFRESIDENTIAL

Level 9N6879 SF956535 SFRESIDENTIAL

Level 10N6879 SF956535 SFRESIDENTIAL

Level 11N6879 SF956535 SFRESIDENTIAL 82019 SF77918 SF

SCENARIO C6 SOUTH TOWER

LEVELGFA ZFA % ZFAUSE

Level 27600 SF957220 SFRESIDENTIAL

Level 3S7600 SF957220 SFRESIDENTIAL

Level 4S7600 SF957220 SFRESIDENTIAL

Level 5S5320 SF955054 SFRESIDENTIAL

Level 6S5320 SF955054 SFRESIDENTIAL

Level 7S5320 SF955054 SFRESIDENTIAL

Level 8S5320 SF955054 SFRESIDENTIAL

Level 9S5320 SF955054 SFRESIDENTIAL

Level 10S4270 SF954057 SFRESIDENTIAL 53670 SF50987 SF

C.6

SCENARIO C7 CELLAR

LEVELGFAZFA %ZFAUSE

Level 02000 SF00 SFCOMMON

Level 015777 SF00 SFDINING

Level 09000 SF00 SFRESIDENTIAL

26777 SF0 SF

SCENARIO C7 GROUND FLOOR

LEVELGFAZFA %ZFAUSE

Level 13000 SF802400 SFCOMMON

Level 113777 SF8011021 SFRECREATION

Level 110000 SF808000 SFDINING 26777 SF21421 SF

SCENARIO C7 NORTH TOWER

C.7

LEVELGFAZFA %ZFAUSE

Level 211725 SF9511139 SFRESIDENTIAL

Level 3N11725 SF9511139 SFRESIDENTIAL

Level 4N11725 SF9511139 SFRESIDENTIAL

Level 5N9597 SF959118 SFRESIDENTIAL

Level 6N9597 SF959118 SFRESIDENTIAL

Level 7N7567 SF957189 SFRESIDENTIAL

Level 8N7567 SF957189 SFRESIDENTIAL

Level 9N7567 SF957189 SFRESIDENTIAL

Level 10N7567 SF957189 SFRESIDENTIAL

Level 11N7567 SF957189 SFRESIDENTIAL 92206 SF87596 SF

SCENARIO C7 SOUTH TOWER

LEVELGFAZFA %ZFAUSE

Level 27092 SF956737 SFRECREATION

Level 3S7092 SF956737 SFRECREATION

Level 4S4964 SF954716 SFRESIDENTIAL

Level 5S4964 SF954716 SFRESIDENTIAL

Level 6S4964 SF954716 SFRESIDENTIAL

Level 7S4964 SF954716 SFRESIDENTIAL

Level 8S3914 SF953718 SFRESIDENTIAL

Level 9S3914 SF953718 SFRESIDENTIAL 41868 SF39775 SF

SCENARIO C7 PROGRAM AREAS GFAZFA USE 5000 SF2400 SFCOMMON 25777 SF8000 SFDINING 27960 SF24495 SFRECREATION 128891 SF113897 SFRESIDENTIAL 187628 SF148792 SF
AREAS
Level 11N7567 SF957189 SF 187628 SF 148792 SF
COLUMBIA UNIVERSITY SITE 1 PLANNING + ZONING STUDY 1.9.2023 195

SCENARIO C8 FLOOR AREAS

LEVELGFAZFA %ZFA

Level 026777 SF00 SF

Level 126777 SF8021421 SF

Level 218817 SF9517876 SF

Level 3N11725 SF9511139 SF

Level 3S7092 SF956737 SF

Level 4N11725 SF9511139 SF

Level 4S4964 SF954716 SF

Level 5N9597 SF959118 SF

Level 5S4964 SF954716 SF

Level 6N9597 SF959118 SF

Level 6S4964 SF954716 SF

Level 7N7567 SF957189 SF

Level 7S4964 SF954716 SF

Level 8N7567 SF957189 SF

Level 8S3914 SF953718 SF

Level 9N7567 SF957189 SF

Level 9S3914 SF953718 SF

Level 10N7567 SF957189 SF

Level 11N7567 SF957189 SF 187628 SF148792 SF

SCENARIO C8 PROGRAM AREAS

GFAZFAUSE

5000 SF2400 SFCOMMON

25777 SF8000 SFDINING

53145 SF45196 SFHEALTH

103706 SF93196 SFRESIDENTIAL

187628 SF148792 SF

SCENARIO C8 GROUND FLOOR

LEVELGFA ZFA % ZFAUSE

Level 13000 SF802400 SFCOMMON

Level 110000 SF808000 SFDINING

Level 16776 SF805421 SFHEALTH

Level 17000 SF805600 SFRESIDENTIAL

26777 SF21421 SF

SCENARIO C8 CELLAR

LEVELGFA ZFA % ZFAUSE

Level 02000 SF00 SFCOMMON

Level 015777 SF00 SFDINING

Level 04500 SF00 SFHEALTH

Level 04500 SF00 SFRESIDENTIAL

26777 SF0 SF

SCENARIO C8 NORTH TOWER

LEVELGFA ZFA % ZFAUSE

Level 211725 SF9511139 SFRESIDENTIAL

Level 3N11725 SF9511139 SFRESIDENTIAL

Level 4N11725 SF9511139 SFRESIDENTIAL

Level 5N9597 SF959118 SFRESIDENTIAL

Level 6N9597 SF959118 SFRESIDENTIAL

Level 7N7567 SF957189 SFRESIDENTIAL

Level 8N7567 SF957189 SFRESIDENTIAL

Level 9N7567 SF957189 SFRESIDENTIAL

Level 10N7567 SF957189 SFRESIDENTIAL

Level 11N7567 SF957189 SFRESIDENTIAL 92206 SF87596 SF

SCENARIO C8 SOUTH TOWER

LEVELGFA ZFA % ZFAUSE

Level 27092 SF956737 SFHEALTH

Level 3S7092 SF956737 SFHEALTH

Level 4S4964 SF954716 SFHEALTH

Level 5S4964 SF954716 SFHEALTH

Level 6S4964 SF954716 SFHEALTH

Level 7S4964 SF954716 SFHEALTH

Level 8S3914 SF953718 SFHEALTH

Level 9S3914 SF953718 SFHEALTH 41868 SF39775 SF

(cont’d) 196
C.8 SCENARIO DATA

Appendix 5.7

Health Test-Fit

Prototypes

COLUMBIA UNIVERSITY SITE 1 PLANNING + ZONING STUDY 1.9.2023 197
- Medical Services Program Diagram - 2030 Current Services SHARED LABS MEDS ROOM 120SF LAB 1200SF TRASH HOLDING 100SF LAB BOX 40SF SHARED STAFF OFFICES ASSOC. MEDICAL DIRECTOR 120SF SENIOR INSURANCE SPECIALIST 100SF IMMUN. COMPL. 40SF PURCHASE INVENTORY 60SF MEDICAL DIRECTOR 220SF INSURANCE SPECIALIST 100SF NUTRITIONIST 140SF ASSIST DIR. STUDENT HEALTH INSURANCE 120SF IMMUN. COMPL. 60SF ASSOC. DIR. PATIENT SERVICES 120SF ASSOC. DIR. NURSING 120SF HSA WORKER ROOM 350SF CASE MANAGER WORK ROOM 350SF SHARED STAFF SUPPORT MEDIUM CONFERENCE 200SF MULTI-PURPOSE TRAINING 600SF MEDICAL RECORD STORAGE 70SF GENERAL OFFICE STORAGE 70SF INVENTORY STORAGE AND BREAK DOWN 70SF MAIL NOOK 70SF IT/DATA 3X150 450SF CLINICAL PODS CLINICAL POD 4960SF 24800SF X5 x5 HEALTH TEST-FIT PROTOTYPES Health - Medical Services Clinical Pod PUBLIC SPACES CHECK IN/OUT 2X60 120SF KIOSK STATIONS 2X60 120SF WAITING HEALTHY 200SF WAITING SICK 100SF TOILET SICK 60SF TOILET HEALTHY 2X60 120SF COPY ROOM 70SF EMERGENCY WAITING 120SF EMERGENCY TOILET 60SF COLLABORATION NURSING STATION 200SF TEAM COLLABORATION 350SF EXAMINATION ROOMS TRIAGE 140SF EXAM SPECIAL 2X140 280SF EXAM NURSING 2X140 280SF EXAM VISITING 120SF EXAM PROVIDER 6X120 600SF TREATMENT AND RECOVERY RECOVERY 120SF TREATMENT ROOM 140SF VITALS 120SF OBSERVATION 120SF TOILET 3X60 180SF PHELBOTOMY 80SF SUB WAITING 80SF TELECOM 80SF STAFF SMALL CONFERENCE 120SF KITCHEN 60SF STAFF BREAK ROOM 200SF KITCHEN 60SF LOCKERS 15X5 75SF TOILET 60SF STAFF OFFICES BEHAVIORAL HEATH OFFICE 140SF SHARED NURSING OFFICE 160SF STORAGE AND EQUIPMENT CLEAN SUPPLY 120SF EQUIPMENT 120SF SOILED HOLDING 100SF MICROSCOPE 60SF CRASH CART 60SF MED STATION 60SF JANITOR CLOSET 70SF Health - Medical Services Program Diagram - 2030 Current Services SHARED LABS MEDS ROOM 120SF LAB 1200SF TRASH HOLDING 100SF LAB BOX 40SF SHARED STAFF OFFICES ASSOC. MEDICAL DIRECTOR 120SF SENIOR INSURANCE SPECIALIST 100SF IMMUN. COMPL. 40SF PURCHASE INVENTORY 60SF MEDICAL DIRECTOR 220SF INSURANCE SPECIALIST 100SF NUTRITIONIST 140SF ASSIST DIR. STUDENT HEALTH INSURANCE 120SF IMMUN. COMPL. 60SF ASSOC. DIR. PATIENT SERVICES 120SF ASSOC. DIR. NURSING 120SF HSA WORKER ROOM 350SF CASE MANAGER WORK ROOM 350SF SHARED STAFF SUPPORT MEDIUM CONFERENCE 200SF MULTI-PURPOSE TRAINING 600SF MEDICAL RECORD STORAGE 70SF GENERAL OFFICE STORAGE 70SF INVENTORY STORAGE AND BREAK DOWN 70SF MAIL NOOK 70SF IT/DATA 3X150 450SF CLINICAL PODS CLINICAL POD 4960SF 24800SF X5 x5 198
Health

Health - Medical Services

Clinical Pod

Clinical Pod (+/- 5,250 GSF)

Triage/Exam

Exam - Provider (6)

Exam - Reproductive Health (2)

Exam - Nursing (2)

Visiting + Adjunct Provider Exam

Tele - Medicine

Treatment Room

Vitals

Observation

Rest and Recovery

Dedicated toilet for R&R

Patient Toilet

Phlebotomy

Sub-Waiting

Patient Toilet

Nurses Station

Collaboration Room

Equipment Alcove - Crash Cart

Med Station

Microscope Room

Clean Supply

Equipment

Soiled Holding Room

Health - Medical Services

Clinical Pod

Clinical Pod 2 Shared Entry Clinical Pod 1 COLUMBIA UNIVERSITY SITE 1 PLANNING + ZONING STUDY 1.9.2023 199
Health - Medical Services Clinical Pod Clinical Pod 1 Clinical Pod 2 Shared Entry HEALTH TEST-FIT PROTOTYPES (cont’d) Health - Counseling and Psychological Services Program Diagram - 2030 Current Services THERAPY COUNSELING OFFICE 40X140 5600SF PSYCHIATRIST OFFICE 8X140 1120SF SENIOR PSYCHIATRIST OFFICE 4X175 700SF CLIENT TOILET 2X60 120SF QUIET/ OBSERVATION 2X100 200SF EXECUTIVE DIRECTOR'S OFFICE 220SF DIRECTOR OF CLINICAL SERVICES 200SF ASSOCIATE DIRECTOR OF POST DOC TRAINING 200SF ASSOCIATE DIRECTOR OF EATING DISORDERS 140SF ASSOCIATE DIRECTOR OF OPERATIONS 120SF SOCIAL WORKER OFFICE 5X120 600SF GROUP ROOM 2X250 500SF LARGE GROUP WORKSHOP 800SF RECEPTION FLEX CHECKIN STATION 4X60 240SF PUBLIC SPACE RECEPTION WAITING AREA A 20X25 500SF RECEPTION WAITING AREA B 20X25 500SF RECEPTION KIOSK STATION 4X30 120SF RECEPTION COPY ROOM 70SF RECEPTION WAITING TOILET 4X60 240SF STAFF OFFICES SUPPORT/ STAFF OFFICE 2X100 200SF SUPPORT/ STAFF WORK ROOM 3X70 210SF STAFF SUPPORT STAFF BREAK/ LUNCHROOM 300SF STAFF TOILET 4X60 240SF MEDIUM CONFERENCE 500SF SHARED LIBRARY 70SF MEDICAL RECORDS STORAGE 70SF JANITOR'S CLOSET 70SF KITCHEN 100SF IT/ DATA 140SF GENERAL STORAGE 140SF Health - Medical Services Clinical Pod Clinical Pod 1 Clinical Pod 2 Shared Entry 200
Health - Counseling and Psychological Services Test Fit Floor 1 - 2030 Current Services Counseling and Psychological ServicesFloor 1 Health - Counseling and Psychological Services Test Fit Floor 2 - 2030 Current Services Counseling and Psychological ServicesFloor 2 COLUMBIA UNIVERSITY SITE 1 PLANNING + ZONING STUDY 1.9.2023 201

Health - Medical Services/ Counseling

Combined Floor Clinical Pod Shared Entry Counseling and Psychology HEALTH TEST-FIT PROTOTYPES (cont’d)
Health - Medical Services/ Counseling
Combined Floor Clinical Pod Shared Entry Counseling and Psychology
Counseling Combined Floor Clinical Pod Shared Entry Counseling and Psychology 202
Health - Medical Services/
Health - Medical Services/ Counseling Combined Floor Clinical Pod Shared Entry Counseling and Psychology Health - Disability Services Program Diagram - 2030 Current Services TESTING STUDENT LOCKERS 200X5 1000SF LARGE TESTING ROOM 3000SF SMALL TESTING ROOM 2000SF STUDENT TOILET 4X60 240SF TESTING EQUIPMENT STORAGE 200SF ACCOMMODATIONS EQUIPMENT STORAGE 200SF PRIVATE TESTING ROOM 5X80 400SF STAFF WORKROOM (GRAND CENTRAL) 300SF PRINTING/ SCANNING STATION 100SF WAITING AREA 360SF PUBLIC SPACE FLEX CHECK-IN 2X60 120SF ADMIN COORDINATOR 60SF COPY/ SCANNING ROOM 70SF WAITING TOILET 2X60 120SF STAFF OFFICES COORDINATOR 9X120 1080SF GRAD ASSISTANT SHARED WORKROOM 480SF LEARNING SPECIALISTS 2X200 400SF TESTING ACCOMMODATIONS MANAGER 350SF NON-TESTING ACCOMMODATIONS MANAGER 120SF ASST. TECHNOLOGY SPECIALIST 2X140 280SF STAFF OFFICE 3X70 210SF ASSOCIATE DIRECTOR OF TESTING ACCOMMODATIONS 120SF EXECUTIVE DIRECTOR'S OFFICE 220SF ASSOCIATE DIRECTOR OF REGISTRATION 120SF ASSOCIATE DIRECTOR 120SF ASSOCIATE DIRECTOR OF OPERATIONS 120SF ASSOCIATE DIRECTOR CASE MGMT 120SF DIRECTOR OF CAMPUS ACCESS 120SF STAFF SUPPORT CONFERENCE AND COLLABORATION 450SF STAFF BREAK/ LUNCH ROOM 225SF SMALL CONFERENCE 120SF STUDENT STAFF LOCKERS 20X5 100SF KITCHEN 70SF GENERAL STORAGE 70SF RECORD STORAGE 70SF IT/ DATA 140SF STAFF TOILET 2X60 120SF COLUMBIA UNIVERSITY SITE 1 PLANNING + ZONING STUDY 1.9.2023 203
- Disability Services Program Diagram - 2030 Current Services HEALTH TEST-FIT PROTOTYPES (cont’d) Health - Program Stacking 2030 Current Services A. Columbia Health /Administration B. Medical Services C. Counseling & Psychological Services D. Disability Services E. Sexual Violence Response F. Alice! Health Promotion SubTotals - Current Services DGSF GSF 4,860 6,075 44,918 56,148 20,118 25,148 17,531 21,914 5,670 7,088 4,982 6,228 98,079 122,599 2030 with current services Dedicated Medical and Counseling Floors Mixed Medical and Counseling Floors 1 2 3 4 5 6 7 8 9 10 11 Health - Disability Services Program Diagram - 2030 Current Services 204
Health

Site Specific

Appendix 5.8 Health Test-Fits
HEALTH TEST-FITS, SITE SPECIFIC Campus Plan Morningside - Columbia Health Havermeyer Disability Services 3,216 DGSF Chandler Disability Services 1,230 DGSF Lerner Sexual Violence Response Counseling and Psychological Services 8,278 DGSF Wien Disability Services 4,560 DGSF Wallach Columbia Health Administration 1,708 DGSF John Jay Medical Services Alice! Health Promotion Administration 13,237 DGSF 206
2020 Program
11 Existing DGSF DGSF GSF DGSF GSF DGSF GSF A. Columbia Health /Administration 1,708 2,714 3,393 4,860 6,075 1,998 2,498 B. Medical Services 10,205 32,850 41,063 44,918 56,148 1,800 2,250 C. Counseling & Psychological Services 6,698 16,331 20,414 20,118 25,148 1,764 2,205 D. Disability Services 9,006 16,881 21,101 17,531 21,914 196 245 E. Sexual Violence Response 1,655 5,026 6,283 5,670 7,088 504 630 F. Alice! Health Promotion 2,957 4,091 5,114 4,982 6,228 648 810 SubTotals - Current Services 32,229 77,893 97,366 98,079 122,599 6,910 8,638 G. New Medical Programs 11,375 14,219 H. New Wellness 9,768 12,210 I Shared Programs 14,466 18,083 J Building Support 3,108 3,885 SubTotals - With New Services 32,229 77,893 97,366 136,796 170,995 Summary - Ewing Cole Report Right Size No Growth 2030 with current services 2022 updates COLUMBIA UNIVERSITY SITE 1 PLANNING + ZONING STUDY 1.9.2023 207
Columbia Health
Summary

Health - Medical Services

North Bar

11,715 GSF/ Floor

Right Sized: 43,300 GSF, 3.75 Floors

2030: 58,400 GSF, 5 Floors

HEALTH TEST-FITS, SITE SPECIFIC (cont’d)
208

Health - Counseling Services

North Bar

6,890 GSF/ Floor

Right Sized: 22,620 GSF, 3.25 Floors

2030: 27,350 GSF, 4 Floors

COLUMBIA UNIVERSITY SITE 1 PLANNING + ZONING STUDY 1.9.2023 209

Health - Disability Services

North Bar

6,890 GSF/ Floor

Right Sized: 21,350 GSF, 3 Floors

2030: 22,160 GSF, 3.25 Floors

HEALTH TEST-FITS, SITE SPECIFIC (cont’d)
210

15,000 GSF/ Floor

Right Sized: 43,300 GSF, 3 Floors

2030: 58,400 GSF, 4 Floors

R8 - Single 40% Tower

Health - Medical Services Single Bar ical Services
Shared Labs
COLUMBIA UNIVERSITY SITE 1 PLANNING + ZONING STUDY 1.9.2023 211

Health - Counseling Services

Single Bar

13,100 GSF/ Floor

Right Sized: 22,620 GSF, 1.75 Floors

2030: 27,350 GSF, 2 Floors

HEALTH TEST-FITS, SITE SPECIFIC (cont’d)
212

Health - Disability Services

Single Bar

10,600 GSF/ Floor

Right Sized: 21,350 GSF, 2 Floors

2030: 22,160 GSF, 2 Floors

COLUMBIA UNIVERSITY SITE 1 PLANNING + ZONING STUDY 1.9.2023 213
HEALTH TEST-FITS, SITE SPECIFIC (cont’d) Single Bar 8 stories Double Bar 12 stories A. Columbia Health /Administration B. Medical Services C. Counseling & Psychological Services D. Disability Services E. Sexual Violence Response F. Alice! Health Promotion SubTotals - Current Services GSF 2,498 2,250 2,205 245 630 810 8,638 2022 updates
Preliminary Program Stacking DGSF GSF 2,714 3,393 32,850 41,063 16,331 20,414 16,881 21,101 5,026 6,283 4,091 5,114 77,893 97,366 Right Size No Growth 08 LL 01 02 03 04 05 06 07 09 10 11 LL 01 02 03 04 05 06 07 214
Health - Right Sized

Health - 2030

Preliminary Program Stacking

Single Bar 10 stories Double Bar 15 stories LL 01 02 03 04 05 06 07 08 09 08 LL 01 02 03 04 05 06 07 09 10 11 12 13 14 A. Columbia Health /Administration B. Medical Services C. Counseling & Psychological Services D. Disability Services E. Sexual Violence Response F. Alice! Health Promotion SubTotals - Current Services DGSF GSF 6,858 8,573 46,718 58,398 21,882 27,353 17,699 22,124 6,174 7,718 5,630 7,038 104,961 131,201 2030 with current services (updated 2022) GSF 2,498 2,250 2,205 245 630 810 8,638 2022 updates
COLUMBIA UNIVERSITY SITE 1 PLANNING + ZONING STUDY 1.9.2023 215
Brody Bond, LLP Architects and Planners One New York Plaza, Suite 4200 New York, NY 10004 www.davisbrodybond.com
Davis

Turn static files into dynamic content formats.

Create a flipbook
Issuu converts static files into: digital portfolios, online yearbooks, online catalogs, digital photo albums and more. Sign up and create your flipbook.