CTS in 2023 Fall

Page 1


City and Territory Studio

Haoyu Du S320987

Thanks to Prof. Francesca Frassoldati, Prof. Chiara Lucchini, Prof. Kevin John Painter

Mitesh Dixit, Elena Guidetti, Didem Turk, Ludovica Rolando, Francesca La Monaca, Alys Solly, Caterina Quaglio

and my teammate Wanqi Liu, Xiaohan Gao, He Yan

What is the city like? How do the various elements of cities make difference to each other and shape the overall system
? What can we do for it?

In the heart of every city lies a story, a narrative woven into the very fabric of its streets, buildings, and public spaces. This logbook is a testament to the journey through the intricate labyrinth of urban landscapes, recording the deep understanding of cities and the built environment.

As architects and urban planners, we are the custodians of these urban narratives. We shape the physical contours of human habitation, and in doing so, we influence the social, economic, and cultural life of our cities. Our work is not just about designing buildings or planning cities; it's about creating spaces that foster community, promote inclusivity, and enhance the quality of life.

However, we find ourselves at a critical juncture. The world is rapidly urbanizing, and with this comes a host of challenges. Climate change, population growth, and socio-economic disparities are exerting immense pressure on our cities. The need for sustainable, resilient, and equitable urban development has never been more urgent.

The task before us is daunting, but not insurmountable. We must leverage our knowledge, skills, and creativity to navigate these challenges. We must rethink our approach to design and planning, placing greater emphasis on sustainability, resilience, and social equity.

This logbook is a reflection of the commitment to this cause. It is a record of my efforts to understand and shape the urban environment in the face of these challenges. It is a testament to my belief in the power of architecture and urban planning to create positive change.

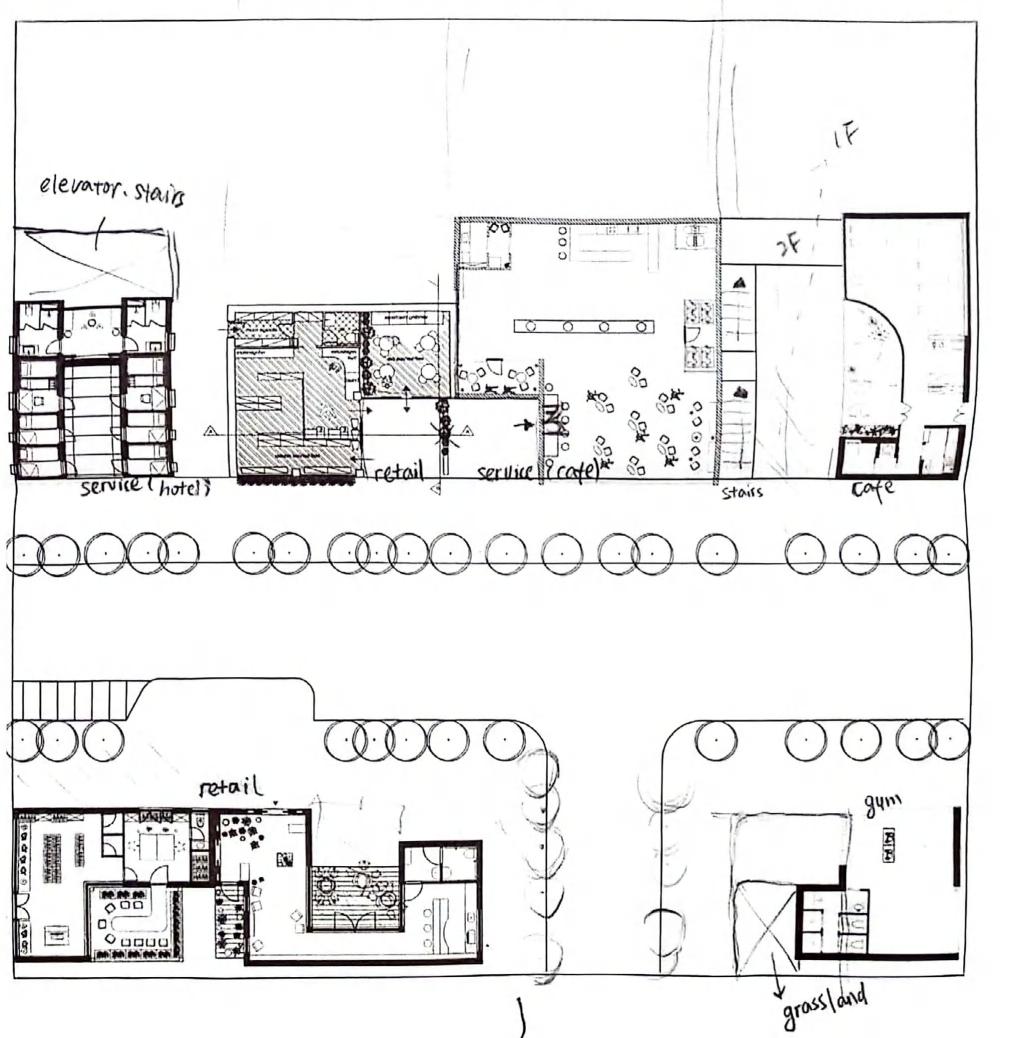
Step 1 Interior Space-Retail

Step 2 Super Slow Street

Step 3 Podium+

Step 4

Other Work -Exercise 0

Sketches in Italy

Research on CTS

01 Step 1

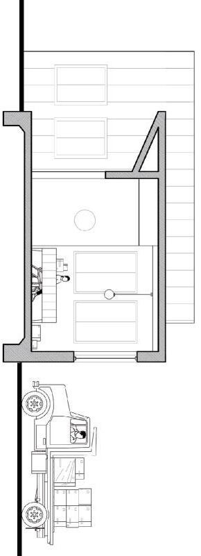
Conceiveing The Interior Rule of the Logistics

A Logistics Station

The process of logistics is defined as a collection of processes. Based on that, the scheme discusses the organisation on a spatial and temporal level.

Furthermore, the scheme explores how the space could be shaped and promoted from the relational system, atmosphere and materiality in terms of the exchange of space and matter, as well as the trasition between the public and the private.

Conceptulization at the very beginning...

/// Analyzed the function diagram based on different users (clients & staff)

/// Designed the space based on the procedure of logistics

Politecnico di Torino
Politecnico di Torino

1. Relatively self-contained space require doors for proper use.

2. Furniture and window locations need to be carefully considered.

3. Consider scenarios for more efficient and higher-capacity space use

Politecnico di Torino

Reference

Construction——Componentized production

Case Study

House in white, 1966

Prototype Research on Modular Components in Industry 4.0
Vitsae Headquarters / Leamington, UK

Structure

B11R2 A Logistics Station

step 1 - CONCEIVING THE INTERIOR

Politecnico di Torino City and Territory Studio - 2023/2024
Supervisors: Prof. Francesca Frassoldati, Prof. Chiara Lucchini, Prof. Kevin John Painter
Tutors: Mitesh Dixit, Elena Guidetti, Didem Turk, Ludovica Rolando, Francesca La Monaca, Alys Solly, Caterina Quaglio
Haoyu Du s320987

"... I can only say that, without having made any effort to seek them out, I found before me, alive -you could touch them and even hear them breathe- the six characters now seen on the stage. And they stayed there in my presence, each with his secret torment and all bound together by the one common origin and mutual entanglement of their affairs, while I had them enter the world ofart, constructing from their persons, their passions, and their adventures a novel, a drama, or at least a story. Born alive, they wished to live".

Politecnico di Torino
Area for Public (Reception)
Area for Semi-Public (Storage & Packing)
Luigi Pirandello, Preface to the first edition of Six Characters in Search of an Author (1921)
Politecnico di Torino | City
- 12

02 Step 2

Assembling the floor

Super Slow Street

Slow Flow

The programme approaches the design of the street from three perspectives: the architectural interface, street surface and urban furniture.

The architectural interface is designed to shape the public space. Semi-enclosed public spaces form corner gardens with different atmospheres.

The pavement of the street is aligned with the building façade, with marking lines forming a visual reality. The urban furniture is inspired by the modernist playground designed by Aldo Van Eyck in Amsterdam, which not only fits the theme of super slow but also add to the vitality of the neighbourhood.

Conceptulization

Politecnico di Torino
Reference: RiNo Streetscape Designs / Sasaki
Politecnico di Torino

Reference:

Politecnico di Torino
Krøyer Square / Vilhelm Lauritzen Architects + CobeCenter Street District / Sasaki
Politecnico di Torino

Urban furniture can be utilized in a flexible manner on the streets, providing adaptable solutions for public spaces

Aldo van Eyck Archive
Politecnico di Torino | City and Territory Studio - 21
St. Jerome in His Study, Oil on wood, 46 x 37 cm, National Gallery, London
Antonello da Messina
Politecnico di Torino | City and Territory Studio - 20

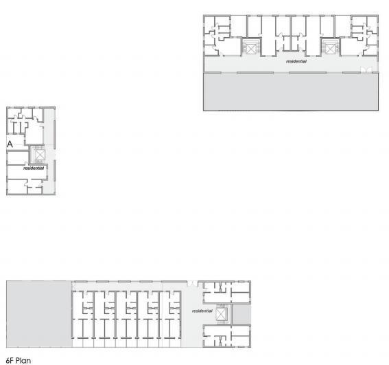
03 Step 3

Designing the block Podium+

Housing Loop

We are trying to create inclusive neighborhoods that offer a variety of housing types, as well as service facilities that can be shared.

In continuation of the streets from step 2, we are further exploring the organization of blocks, where street and courtyard are employed to deal with the transition between the public and the private. The outside of residential area is the semi-public streets as connections of retail space, while the inside is the semi-private courtyard as buffer zones of residential entrances. Besides, the community platform on 1F is used as a shared space for residents which is more private.

The street, courtyard and platform generate different scales and spatial experiences yet still interact with each other to emphasize the relationship between the public and the domestic.

Politecnico

The buildings demonstrate different programs with different dimensions from lower to higher levels. Wider commercial / office space on lower levels, public platform on the 1F, narrower social housing and terracing market rate housing on the top levels

Politecnico
Politecnico
Torino
Case Study: Xuhui Runaway Park, Sasaki
Politecnico
Politecnico di Torino

B3.1.2 Housing Loop

04 Step 4

Community Loop

The design continues the third step in the process by further exploring the urban context.

The site is located close to the suburb of Turin, with a main road to the north and a residential area to the south. We see it as a buffer zone between the urban environment and the residential area and intervene to design it as such.

The program continues the concept of step 2, which guarantees the use of the slow street through the separation of the pedestrian boulevard and the vehicular flow. Meanwhile the concept of community platform is further developed, defining the outdoor space system of residents with different section relationships. The corridor system, connects different public anchors to form a variety of urban open attributes

Politecnico di Torino | City
Politecnico di Torino
Politecnico di Torino | City and Territory Studio -39 Urban Fabric
Politecnico
Politecnico
Politecnico
Politecnico di Torino
Axonometric View
Long Section A 1:500
Politecnico di Torino | City and Territory Studio - 47

Community Loop

Politecnico
Politecnico di Torino
Politecnico di Torino
Supervisors: Prof. Francesca Frassoldati, Prof. Chiara Lucchini, Prof. Kevin John Painter
Tutors: Mitesh Dixit, Elena Guidetti, Didem Turk, Ludovica Rolando, Francesca La Monaca, Alys Solly, Caterina Quaglio
Haoyu Du / Yan He / Wanqi Liu / Xiaohan Gao

-Exercise 0

-Typology Analysis on CTS

Neighbor X: In Shanghai,China.

Actually I have no idea who my neighbor is; while the only clue I have about him/her is the obsolete stuff placed outside the door. I try to reconstruct the life mode from his/her belongings.

X represents, the unknown and uncertain which is just, kind of, like a ghost of anoymity haunting the city.

Politecnico di Torino | City and Territory Studio
Politecnico di Torino
Politecnico di Torino
City and Territory Studio - 55

Turn static files into dynamic content formats.

Create a flipbook
Issuu converts static files into: digital portfolios, online yearbooks, online catalogs, digital photo albums and more. Sign up and create your flipbook.